1. Introduction
Energy consumption rates are increasing rapidly in all countries around the world. For example, the average global electricity consumption grew by nearly 1% annually between 2011 and 2016 [
1]. Energy production is mainly responsible for global greenhouse gas emissions (GHG), leading to global warming and climate change. The buildings sector, especially residential buildings, is considered the most energy-consuming and greenhouse-gas-emitting cause of global warming. The building and residential sectors accounted for nearly 40% and 27% of the world’s energy usage between 2011 and 2016, respectively. Therefore, the most effective strategy to reduce this phenomenon is to improve the energy efficiency of the housing sector [
1,
2].
Despite increased electricity production rates, Egypt has recently faced recurring electricity crises due to climate change and the global energy crisis. Recently, in Egypt, especially in the summer months, the demand for electricity has increased unprecedentedly, coinciding with temperatures rising due to people resorting to operating air conditioners to achieve thermal comfort [
3]. The housing sector is the main energy consumer, compared with the other sectors, accounting for about 42.4% of total electricity consumption. This is due to several reasons, the most important of which is the excessive use of air conditioning in the summer season. The increase in energy demand is expected to continue in the coming years, with rapid urban development and population growth, which exceeded 100 million in the year 2021 [
4].
Egypt is moving, along with the global interest in improving the energy efficiency of buildings. Egypt’s 2030 vision aligns with some of the United Nations’ sustainable development goals to enhance energy efficiency in the building sector [
5]. Accurate and cost-effective retrofit activities for existing buildings significantly affect energy savings [
6]. It was reported that existing building retrofitting contributes to global warming reduction, as it reduces more than 40% of energy consumption [
7].
Although energy conservation these days is receiving attention from the public, designers, and decision-makers in Egypt, due to the increasing burden of energy consumption in the building sector, specifically residential buildings, Egypt has a lack of decision-making tools for energy retrofitting of residential buildings, especially in the luxury category of housing. ِAlso, the financial obstacle remains the biggest problem facing homeowners in implementing energy retrofit measures. This is the problem that the study tries to solve. The main objective of the research is to develop the first decision-making tool for energy efficiency retrofit measures in gated residential communities in Egypt. This is to achieve the most prominent goal: to contribute to solving the energy crisis and raising building energy efficiency in Egypt.
The research methodology consists of six phases; each phase consists of some organized steps. The first phase was surveying, collecting data and selecting the case study. The second phase was to evaluate the thermal performance of the case study dwellings through simulation processes using the DesignBuilder v7.1 software. The third phase was to investigate the optimal envelope retrofitting measures. Then, all envelope retrofit scenarios were simulated for each representative dwelling model, while the fifth phase was economic analysis to calculate the scenarios’ payback periods. Then, the tool database was created consisting of all previous results. Finally, the user interface for the EERMGCs tool was designed.
This research provides a framework for developing the first tool of this kind in Egypt, as no tool has been created before to help homeowners in gated communities retrofit their homes. The EERMGCs tool is also distinguished from the rest of the tools studied in the literature review by providing optimal energy efficiency solutions within any budget determined by the homeowner. It also provides the user other options according to their priorities in presenting the optimal retrofit scenarios, whether their priorities are the shortest payback period, the lowest cost, or the highest energy savings, which encourages homeowners to invest in retrofitting their homes, whatever the goals and priorities of their retrofitting. This tool is also easy to use, fast, simple, and does not require time or effort to learn; it can also be further developed and updated at any time.
  2. Literature Review
The research began with the literature review phase, which included a comprehensive study of all topics related to the research goal. The most critical issues addressed in the literature review are as follows:
- The Egyptian energy profile and electricity crises; 
- Gated community housing; 
- Sustainable energy retrofitting for existing buildings; 
- Existing global energy retrofit decision-making tools for homeowners. 
  2.1. The Egyptian Energy Profile and Electricity Crises
In all energy-related activities, Egypt relies mainly on three primary sources: oil, natural gas, and hydroelectric power generated from the Grand Dam [
8]. The Egyptian Electricity Holding Company (EEHC), affiliated with the Ministry of Electricity and Renewable Energy (MOERE), is mainly responsible for producing, transmitting, and distributing electricity, as it encapsulates 16 companies, including six for electricity transmission, one for transmission, and the rest for distribution. The average growth rate of installed capacity is 5.7% annually from 2017 to 2019. In 2021, the total installed capacity reached 58.818 GWe. More than 99% of the Egyptian population has access to electricity, and the number of subscribers at all effort levels increased to 37.9 million customers in 2021, compared to 37.1 million subscribers in 2020, with an increase of 2.2% [
9].
The distribution of installed capacities by source is 90.1% from thermal sources, 4.8% from hydropower sources, and 5.1% from renewable energy sources. Despite the continuous increase in electricity production, consumption rates also increased. For example, the total electricity consumption increased from about 331 PJ in 2005 to 556 PJ in 2019, a compound annual increase rate of 4.73% [
9]. The increase in consumption is due to several reasons, the most important of which are the increase in population, climate change with unprecedented high temperatures, and urban expansion [
4]. 
  2.2. Gated Community Housing
Gated community housing is a new type of urbanization that began to appear in the late twentieth century. These residential projects quickly expanded and spread around and within the cities. They are isolated by walls and gates with distinct capabilities, miscellaneous services, and robust security measures [
10]. Gated communities are spreading rapidly worldwide: in Egypt, the number of gated communities in Cairo increased from 466 in 2010 to 500 in 2013 [
11]. They are distributed on the outskirts of Cairo in the new cities surrounding it, such as New Cairo, 6th of October, El-Obour, and El-Shorouk City [
12]. Gated community dwellings vary from one-family separate villas and semi-detached units to apartment complexes. Most of the gated communities in Egypt are luxury housing, targeting a segment of the population with a high economic level. Therefore, they are distinguished by having a luxurious lifestyle, especially using air conditioners and other electricity-consuming devices. Consequently, this is considered one of Egypt’s most electricity-consuming sectors [
13].
  2.3. Sustainable Energy Retrofitting for Existing Buildings
Residential buildings constitute a large proportion of the Egyptian building stock, about 83.2% of the existing buildings with low thermal efficiency [
4]. The solution is to rapidly implement energy retrofit projects for the existing buildings. Sustainable retrofitting of existing buildings is one of the most effective ways to save energy and improve the environment. Therefore, over the past decade, many countries have made great efforts to improve the energy efficiency of existing buildings. 
Figure 1 shows the major phases of the overall process of a building retrofit project [
14]. 
Heat loss or gain for any building occurs through the envelope, as each element of the envelope contributes to the building’s heat loss or gain. This varies from one building to another depending on the conditions and design of the building. In general, heat in a multi-storey building is lost by a percentage of 40% from the exterior walls, 30% from the windows, 17% from air leaks, 7% from the roof, and 6% from the basement slab. In many retrofit projects, envelope retrofitting is the optimal solution that is more logical than other retrofitting types, as it is more effective in saving energy and costs less when compared to other retrofitting types [
15]. Many studies have reported the significant impacts of envelope retrofitting measures on increasing energy efficiency. For example, Frieza and Rakhshan found that thermal insulation for housing buildings in the UAE can reduce energy consumption by 20% [
16]. The performance of a double-skin roof was 28–34% higher than the typical single-layer insulated roof in terms of reducing heat gain in Singapore [
17]. In the hot and dry climate of Djibouti, it was found by Abdou Omar et al. that roof efficiency improved by 85% after installing the double roof [
18]. A study of the energy retrofit of an existing affordable building envelope in Spain reported that applying expanded polystyrene 6 cm for wall insulation, extruded polystyrene 8 cm for roof insulation, and a light-coloured façade led to a 25–88% reduction in energy consumption [
19]. The application of cool and green roofs in Italian residential buildings reduces overheating hours by 98%, according to Pisello et al. research [
20]. 
The research addressed a review of many building retrofit studies in Egypt, focusing on residential buildings, to investigate the most effective retrofit measures for energy efficiency in Egypt. These studies have shown that retrofitting measures have significantly reduced building energy consumption. For example, Ingy El-Darwish and Mohamed Gomaa reported that retrofitting measures in Egypt could achieve 23% energy savings by using 0.5 cm metal louvres as window shading [
21]. In a study of one of the luxury residential buildings in Egypt, Bassent Adly and Tamir El-khouly found that energy consumption can be reduced by 20.68% when retrofitting shading devices. They also used wall insulation material with thermal resistances R-value = 1.54, like expanded polystyrene 4 cm and rock wool 4 cm, which achieved a 9.21% energy saving [
1]. Mohammad Abdollah and Rossano Scoccia studied applying building envelope measures for affordable housing in Egypt, such as wall insulation and glazing retrofitting from available options in the Egyptian market. They reported that energy consumption decreased by 40% after applying these measures with a maximum payback period of 6.3 years [
22].
  2.4. Existing Global Energy Retrofit Decision-Making Tools for Homeowners
Community participation and cooperation between the government sector and homeowners is necessary for improving energy efficiency. So it is important to have tools that encourage homeowners to invest in energy efficiency in their homes. These tools also help them choose the optimal energy efficiency measures in terms of energy savings and cost savings. In many countries around the world, many decision-making tools for energy retrofitting have been produced by the public or private sectors to inform occupants and homeowners about energy retrofitting measures and encourage them to invest in energy retrofitting procedures [
23]. Some types specialize in only one aspect of energy retrofitting measures, such as insulation calculation tools [
24], solar panel calculation tools [
25], building envelope efficiency tools, and renewables selector tools. Some tools deal with overall building retrofit measures, whether these are the building envelope, building systems, or renewable energy. Some decision-making tool types include economic analysis for energy efficiency measures, such as the life cycle and payback period calculation [
26].
The French Scientific and Technical Center for Buildings developed ALICE (Amélioration des Logements en Intégrant les Contraintes du Confort d’Été). ALICE is an Excel tool that analyses the possibility of the impact on summer comfort of different thermal renovation measures and the effects of different behavioural scenarios of building occupants. Two thousand four hundred thermal simulations were conducted to calculate the interior temperature of a set of dwellings representing France’s most common building typologies. Occupants can assess and compare the impact of different retrofitting configurations on summer energy use [
27]. Home Energy Saver is an internet-based tool developed by the US Department of Energy; the tool calculates detailed energy consumption in housing buildings in the US and offers detailed evaluations of retrofitting measures such as yearly savings, annual electricity savings, yearly gas savings, annual carbon-emission reduction, investment cost, and payback period. One of the advantages of this tool is that it gives users the choice between two input and output modes, the first is the quick mode, which gives approximate results based on multiple assumptions, and the second is the detailed mode, whose output is more accurate, but requires a lot of input and consumes a long time [
28].
Researchers from British Colombia University, Canada, developed SWAHO (sustainability weighting assessment for homeowners). This tool provides easier decision-making for occupants and homeowners for their sustainable retrofitting projects. The SWAHO tool was developed by using Microsoft Excel with Visual Basic for Applications (VBA). It assesses 48 retrofitting measures in terms of 12 sustainability criteria using a knapsack problem method to optimize measures. The Excel database contains the assessments of the retrofitting measures. The SWAHO tool takes into account social criteria, so it presents particularity to users. Also, SWAHO enables homeowners to determine their priorities from among environmental and social criteria [
29]. 4ECasa is a home energy check tool developed by the National Agency for New Technologies in Italy. The tool helps users choose retrofitting measures for the building envelope and the heating system. The retrofitting measures are evaluated in terms of energy savings, economic savings, the complexity of implementation works, and CO
2 reduction. The evaluation of energy savings is conducted by a normative simplified calculation method considering standard conditions of use of the building. Compared to the other existing tools, the main advantage of this tool is to consider technological criteria such as the complexity of implementation works [
26].
  3. Methodology
This study aimed to develop a multi-objective decision-making tool that helps homeowners choose the optimal envelope energy retrofitting measures for their homes according to the priorities of each homeowner. This tool is applied to luxury housing in gated communities in Cairo. The methodology shown in 
Figure 2 was followed to develop the EERMGCs tool. The methodology consists of six phases, which are briefly explained in as follows:
- Phase 1—Data gathering and case study selection - This phase included collecting and analyzing data for: - (a)
- Luxury dwellings in Cairo’s gated communities and their structural, architectural, and thermal attributes: These gated communities are spread around Cairo, located within new urban areas on the capital’s outskirts. Each gated community is wholly designed and built by a real estate development company. Therefore, the dwellings within these communities have the same architectural and structural attributes. Each gated community often has various luxury models of villas, duplexes, or apartments. “Madinaty City” was chosen as a case study for applying the EERMGCs tool. All the data required for the selected case study were collected through three methods (visiting and surveying the site, the official website of the company that owns this gated community, conducting interviews and questionnaires with residents). The questionnaire, as shown in  Appendix A Figure A1- , was prepared and delivered in print or online to the occupants during the site visits. 
- (b)
- The local construction market: This step aimed to collect data about the locally available energy retrofitting measures and their costs. This phase was preceded by the literature review through which the most effective measures of envelope energy retrofitting for residential buildings in Egypt were studied. These retrofit measures are only for the elements of the building envelope (walls, roofs, glazing, and shading). The measures were filtered according to what suits the attributes and characteristics of the housing in the gated community. All the information required in this section was collected by three methods (communicating with the companies concerned, asking specialists, visiting the construction market) to find out the available measures on the local market, and then making a list of the most important ones along with their costs, including the materials and installation prices. 
 
- Phase 2—Representative dwelling thermal performance assessment 
A set of dwelling models was selected from the chosen case study area to be representative models to cover all dwelling types and to evaluate the base case thermal performance of case study dwellings. Then, a thermal simulation process was conducted for each representative dwelling model using the DesignBuilder v7.1 software. The data required for the simulation process were collected in the first phase. Phase 2 also included the step of verifying the simulation models by comparing actual consumption with consumption resulting from the simulation process for eight dwelling models. Changes in the cooling set-point and the occupancy schedule were conducted in order for energy simulation models to come as close as possible to actual consumption. Minimizing the number of simulation models for representative dwellings was conducted to simplify the simulation processes in the following phases. The details of all phase steps are explained in detail in 
Section 4.
      
This phase aimed to investigate the most effective envelope retrofit measures. A set of energy retrofit measures was identified for each building envelope element, based on the data collected from the Egyptian market and the literature review in the first phase, in addition to the selection criteria explained in 
Section 5.1. 
This phase also included applying one of the principles of experiment design (the Taguchi method), which is a quality control method and an engineering approach developed by the Japanese engineer Genichi Taguchi [
30]. In the beginning, the Taguchi method was created to produce a high-quality product at a low cost by conducting some statistical operations that indicate the factors that most influence the quality of the product or vice versa without consuming a lot of time and cost. Then, this method came to be widely used in experiments and scientific research to investigate the effect of factors and their variables on a dependent response without the need to repeat the experiment multiple times [
31]. This method can be applied with some statistical tools; the most common is the Minitab v21 software. 
In this paper, application of the Taguchi method aimed to reduce the number of required simulation models and determine the most effective energy-saving measures to simplify the simulation process. Initial retrofit scenarios were determined by the Taguchi method to investigate the effectiveness of retrofit measures. In 
Section 5.2, all steps of this process are explained in detail. In this phase, the initial investment cost was calculated for each energy retrofit alternative chosen for all representative dwelling models based on price data collected from the construction market.
      
The objective of this phase was to conduct simulation of all retrofitting scenarios. These scenarios were created based on the results of the Taguchi method and initial economic analysis in the previous phase, where the most energy-saving and least costly retrofitting measures were identified. The number of simulation models for each dwelling model was 81 envelope energy retrofitting scenarios. In this phase, 810 simulation runs of envelope energy retrofitting scenarios were performed for all dwelling models using the DesignBuilder v7.1 software. The results of the simulations included the annual energy-saving percentages for the scenarios in order to create the EERMGC tool database. All phase details are mentioned in 
Section 5.4.
      
In this phase, the total investment cost was calculated for each retrofitting scenario based on the results of the previous phases. Then, the payback periods were calculated for all scenarios to develop the EERMGCs tool database.
      
The EERMGCs tool database was developed by using an Excel spreadsheet. This database was an aggregation point for all previous results. Finally, the user interface for the EERMGCs tool was designed by Visual Basic for Applications (VBA). It is a simple and easy-to-use tool; it adapts to the different priorities of homeowners, offering them the optimal retrofitting measures according to their objectives. It provides the user with the optimal retrofit measures for their home within any budget they determine. Also, the user can control the criteria for the generated retrofit scenarios according to their priorities: the fastest payback period, the lowest investment costs, or the highest energy saving rate.
  4. Representative Dwelling Simulation Models
  4.1. The Case Study Dwelling Simulation Models
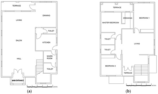
“Madinaty City” is the gated community chosen as a case study in this research. It is a luxurious housing complex located in the east of Cairo, as shown in 
Figure 3. It was built in 2005, containing sets of several dwelling models that vary between single-family houses and multi-family housing complexes. The “Golf area”, as shown in 
Figure 4, is a single-family villa district in “Madinaty City”; this area was chosen to apply the EERMGCs tool. All villa models in this gated community have the same structural, architectural, and thermal attributes, as shown in 
Table 1. They differ in the total area and the orientation of each villa. As shown in 
Figure 5 and 
Figure 6, the “Golf area” has two models of villas with different total areas, model A and B, of 600 m
2 and 350 m
2, respectively. Each villa consists of a ground, first, and roof floor. In this phase, the thermal performance of the base case of the case study dwellings was evaluated through simulation processes for a set of representative dwelling models using DesignBuilder v7.1 software. 
Figure 7 shows the simulation models for villa model A and villa model B. Sixteen simulation models were conducted for models A and B in eight orientations (north N, northeast NE, east E, southeast SE, south S, southwest SW, west W, northwest NW) to ensure that the simulation results would be accurate and robustly representative of all dwellings in the chosen gated community district. 
In most cases, each separate villa is owned by a nuclear family consisting of a husband, wife, and a number of children, ranging on average from two to four. Therefore, the number of occupants was assumed to be five and six for the Villa A and Villa B models, respectively. Occupancy schedules for weekdays were assumed as follows: occupants wake up at 6:30 a.m. and leave the house at 8 a.m., except for one person. The occupants return at 6:30 p.m. and stay up until 11:30 p.m. The schedule is slightly changed for the weekends. Lighting units in each room vary from incandescent lamps to halogen ceiling spotlights, with a diversity of lighting-power intensity levels for each space. The lighting schedule was assumed to correspond to the occupants’ schedule. Each room has a split air-conditioner (AC) unit serving mainly bedrooms and living rooms. Air-conditioner units operated during the summer season from 1 June to 30 September following the occupancy schedules. The occupancy schedule was assumed based on the interviews of and questionnaires submitted by occupants. Also, the data about other appliances (ceiling fans, refrigerators, water heaters, stoves, etc.) and operating schedules were determined according to the information collected from the interviews and questionnaires. The questionnaire sample, shown in 
Appendix A Figure A1, was created using Google Forms. A number of questionnaires were printed and distributed to the occupants, and others were sent online to be filled out, this was carried out during the site visits to the case study gated community. Data were collected from 36 questionnaires, about 19 of them from the villa model A, and the rest were from the villa Model B. The results of the questionnaires in this experiment were merely indicators to assume schedules of occupancy, activities, and operation of devices, as these data were assumed based on the outputs of the most common data from questionnaire results. 
  4.2. Validation of Simulation Models
The accuracy of the simulation models has been verified by comparing the eight simulation models’ energy consumption results with the actual consumption from the electricity bills of these eight villas. Electricity bills collected for the eight villas were for monthly consumption from January 2022 to December 2022. After conducting a number of calibration models with some changes in the cooling set-point and the occupancy schedule, the closest simulation models for the actual consumption were performed, and then these adjustments were applied to all simulated models. The difference between the actual electricity consumption and simulation model consumption does not exceed the acceptable range. For example, 
Figure 8 and 
Figure 9 show the difference in monthly electricity consumption between the actual dwelling models and the simulated models for villa model A with southwest orientation (SW) and villa model B with eastward orientation (E), which does not exceed 4.5%.
  4.3. Minimizing the Number of Simulation Models for Case Study-Representative Dwellings 
This step aimed to simplify the simulation runs and reduce their numbers. As mentioned above, each A and B villa model’s thermal performance was evaluated in eight orientations with a total of 16 simulation models. The simulation results showed that the annual energy consumption in some orientations is very close for the same villa model, and the difference between them does not exceed 2%, as shown in 
Figure 10. Therefore, the number of villa models representing all case study dwellings was five for each villa model, A and B, meaning that the number of the simulation models for the representative dwelling models in the base case was reduced from 16 to 10. Where the southwest orientation represents the south, the southeast orientation represents the east, and the northwest orientation represents the north, as shown in 
Figure 11. The selection criteria were for the orientation with the highest consumption rate, meaning that for every two close orientations in consumption rate, the selection priority was for the orientation with the highest consumption. 
  5. Envelope Energy Retrofitting Measures and the Taguchi Method
  5.1. Envelope Energy Retrofitting Measures
A set of envelope energy retrofitting measures was selected for each building envelope element (wall, roof, glazing, and shading). Selection criteria were determined based on what was studied in the literature review in the first phase and the recommendations of the Energy Code for Residential Buildings in Egypt. Also, among the selection criteria are the availability of retrofitting measures on the Egyptian market, their common use on the local construction market, and their ease of application. Choosing the lowest priced retrofitting measures, which have high energy efficiency, was always the selection priority. For example, there are some materials used for thermal insulation on the local market that have similar energy-saving rates; the material with the lowest price was chosen, such as expanded polystyrene EPS. This was the strategy for selecting all retrofit alternatives in this study. 
Table 2 shows the four retrofitting alternatives chosen for each building envelope element (walls, roofs, glazing, and shading devices) to apply in the thermal performance simulation for representative dwellings models. For simplicity, a shortcut code was given for each energy retrofitting alternative to be used in the following research phases, as shown in 
Table 2. Thermal performance for all case study models must be evaluated after applying these measures individually or as a package by the thermal simulation process in order to test the energy-saving efficiency of the energy retrofitting alternatives and scenarios. This process would require a huge number of thermal performance simulation runs. To reduce the total number of simulation runs, principles from the Design of Experiment (Taguchi method) were used.
   5.2. Design of Experiment (DOE—Taguchi Method) Application
Design of Experiment (DOE) is a branch of applied statistics that evaluates the factors that control the value of a parameter or a group of parameters. DOE provides predictive knowledge of multi-variable and complex processes with few trials that reduce project time and costs. There are different types of DOE designs, and the choice of type depends on the study objectives. DOE can be applied by several methods, such as mixture designs for different purposes, Taguchi design and response surface designs [
30]. The Taguchi method is a statistical method that reduces the variation in a design or production process by the robust design of experiments. It is one of the best optimization techniques to achieve high quality without consuming much time and cost [
32]. The Taguchi method has recently been used in energy efficiency optimization in buildings studies [
33]. 
The Taguchi mix-mode design method was used in this study phase to reduce the required model simulation runs. This method uses a fractional factorial order layout, termed Orthogonal Arrays (OA) to investigate the most effective energy retrofitting measures in order to reduce the number of simulations required [
31]. The Taguchi method uses the signal-to-noise ratio (SNR), which is a measure of robustness that aims to reduce the effect of noise and optimize the performance of the process [
33]. 
A signal-to-noise ratio (SNR) is the measure used in the Taguchi method; it is a robustness measure that can be used to determine the control factor settings that minimize the effect of noise on the response. It is an indicator of the influence of factors and their levels on the final response. The higher the SNR of a particular factor, the greater its influence on improving the final dependent response. This is because the higher the SNR, the smaller the noise factor influence (noise factors reduce final response improvement). Minitab software shows a separate SNR for each factor level combination in the process. The user has four options for outputting the SNR: larger is better, smaller is better, and two nominal is best ratios; it can determine it according to the goal of the study [
34,
35,
36].
For further clarification, in this study, the final response was considered to be energy consumption, and the influencing factors are the envelope elements. Each of the envelope elements has four levels that were the retrofitting measures. Therefore, the factor levels with a higher SNR are higher energy consumption. This study aimed to investigate the measures that have lower energy consumption, so these measures have lower SNR. Therefore, in this research, the smaller the SNR is, the better.
The Taguchi method was applied in this study by using the Minitab tool, which is a statistical software tool. The first step was inputting the four elements of the envelope (walls, roofs, glazing, and shading devices) as the main factors. The energy retrofitting alternatives for each envelope element were inputted as sub-variables which are named levels in the Minitab software. Then, the number of simulation runs was determined as 16 for every representative dwelling model. The Taguchi method determined an adequate fraction of the retrofitting measure combinations from all possible simulated scenarios. The retrofitting simulation scenarios determined by the Taguchi method were performed by Designebuilder software. Then, the energy consumption results for each scenario were inputted again into Minitab software to investigate each alternative’s effectiveness on energy efficiency and its impact on energy consumption. This process was repeated ten times, as there were ten different representative dwelling models, and these steps were performed for each one. For example, 
Table 3 shows the Taguchi method orders layout and the required energy consumption data of simulation runs for villa model B in (S and SW) orientation. 
The Taguchi method results determined the most and the least effective energy-saving measures. In this study, the measures with smaller signal-to-noise were the most energy-effective. From the SN ratios shown in 
Figure 12, it seems that the most effective retrofitting measures for wall, roof, glazing, and shading devices were (EPS) 5.00 cm, Polyurethane foam 3 cm, coloured double glazing with 6 mm/13 mm air and metal exterior roller blinds, respectively.
  5.3. Calculation of Initial Investment Cost
This step aimed to calculate the initial investment cost of each retrofit measure individually. Through the data collected from the Egyptian market in the first phase, a list of the prices for materials and installation of each alternative was prepared. The initial investment cost was calculated for each energy retrofit measure to all representative dwelling models. 
  5.4. Envelope Energy Retrofitting Simulation Scenarios
Both the results of the Taguchi method and the initial economic analysis investigated energy efficiency and cost efficiency for all energy measures implemented in the study. A matrix of retrofitting scenarios was formed for each representative dwelling model based on both the most effective energy-saving and the lowest cost alternatives. Every matrix consisted of 81 optimal scenarios that achieve energy and cost efficiency. 
Table 4 shows the 81 scenarios that represent the possible scenarios for all the mixes for the chosen retrofitting measures. As mentioned in previous phases, the number of representative dwelling models was 10 (Villa A and B models in five different orientations). Therefore, 81 simulation runs were conducted for each representative model, with a total of 810 simulation runs to apply various energy retrofitting measures and scenarios by using DesignBuilder v7.1 software. At the end of this step, the energy-saving rates for all simulated retrofitting scenarios were determined. For example, energy can be saved by 22.8% annually for villa model A with orientation of (S and SW), if the following measures are applied: expanded polystyrene (EPS) 3.00 cm for walls, polyurethane foam 3 cm for the roof and coloured double glazing with 6 mm/13 mm air for glazing. For example, the yearly energy consumption for all 81 retrofitting scenarios of villa type A with the orientation of (S & SW) is shown in 
Figure 13.
  5.5. Economic Analysis and Payback Period Calculation
This step aimed to calculate the payback period for each energy retrofit scenario. A payback period is a method used to determine the number of periods (usually years) required to cover the initial investment costs, taking into account interest rates and inflation. After the end of that period, the return on investment begins [
26].
Based on what was calculated in the initial investment cost analysis for each energy retrofit measure, all the investment costs for each retrofit scenario were calculated. Then, the payback period was calculated for each retrofit scenario based on the previous results of investment cost and energy consumption predicted from the simulation process.
Before calculating the payback period for the retrofit scenarios, inflation and market interest rates were set with the annual increase in electricity prices as determined by the Egyptian Ministry of Electricity. Prices were compiled in local currency (Egyptian pound), then converted into US dollars (USD) at the current exchange rate for the year 2023, where the age of the building is assumed to be 40 years. For example, 
Figure 14 shows the payback period calculation for retrofitting scenario No. 2 for Villa type A (S and SW).
  6. EERMGCs Tool Development
  6.1. Database Creation
The database of the EERMGCs tool is considered the collection point for the findings of all previous phases, and it combined all the collected information and results by using an Excel spreadsheet in order to set up a basis for the EERMGCs tool. The database involved all envelope energy retrofitting scenarios for all dwelling models in the case study. The data of each retrofitting scenario included its investment cost, energy consumption, energy saving rate, and the payback period. 
Table 5 presents the database sample for villa type A with the orientation of (S and SW). After creating and developing the database, the ERMGC tool was developed using Microsoft Excel with Visual Basic for Applications (VBA).
  6.2. EERMGCs Tool Interface Description and Method of Use
EERMGCs is a simple support tool that enables homeowners to choose the optimal energy retrofitting solution for their houses. It is a multi-objective tool that offers the optimal energy solutions according to the user’s objective and priorities, whether these are the highest energy-saving rate, the fastest payback period, or the lowest investment cost. It also provides the optimal possible energy retrofitting measures within a budget specified by the user. It is easy to use, fast, and scalable at any time. The following shows a description of the interface of the tool and how to use it:
  6.2.1. The Components of the Input Window and the Use Method
The input tab, as shown in 
Figure 15, has three main sections.
          
- The first section, as shown in  Figure 16- , is where the user determines the type and orientation of his villa model. The user has two choices for his villa type, either model A or model B. As for the orientation, the user has eight options: (N, NE, E, SE, S, SW, W, NW). 
- The second section, as shown in  Figure 17- , allows the user to choose the retrofit measures they prefer. This section shows the retrofitting measures for each element of the building (wall, roof, windows glazing, and shading devices). The user can select the retrofit measures they prefer and exclude the ones that do not suit them; therefore, the results shown do not contain these excluded measures. 
- The third section, as shown in  Figure 18- , is where the user determines their objective and priorities in choosing the energy measures shown later. In this section, the user has four options: (1) the highest energy savings, (2) the fastest payback period, (3) the lowest investment cost for retrofit measures, (4) the last option enables the user to determine a range for a specific budget within which they want to invest in the energy retrofitting of their house. The user must choose one of these four options according to their energy improvement objectives, priorities, and budget. These four options are considered evaluation criteria that control the outputs of the retrofitting measures that will appear for the user in the following window. At the bottom of the input tab is a start button, which the user clicks on when they finish entering all the required inputs, so the retrofit scenarios appear in the output table. 
  6.2.2. The Components of the Output Tab and the Use Method
After the user determines all the inputs in the previous step and then presses the start button, the five optimal envelope energy retrofitting scenarios that suit their priorities will be shown in the outputs tab, based on the tool’s database. The output tab, as shown in 
Figure 19, also has three main sections.
          
- The first section, as shown in  Figure 20- , is a table of the five optimal envelope energy retrofitting scenarios that suit the user’s priorities, which are shown in the outputs tab based on the tool’s database. The displayed scenarios are arranged from the most appropriate to the least according to the user’s priorities. The first scenario in the table is the most suitable scenario that most closely matches the user’s priorities, and so on. This gives the user more choices and flexibility to help and encourage them to invest in energy retrofits for their home. Also shown in the scenarios table is each scenario’s energy consumption rate, energy saving rate, investment cost, and payback period. 
- The second section, as shown in  Figure 21- , contains four illustrative charts to compare the shown scenarios in terms of payback period, annual energy saving percentage, yearly cost saving in USD, and retrofitting investment cost in USD. 
- The third section, as shown in  Figure 22- , contains a detailed key table that explains the description of the energy retrofitting measures in the main scenarios table. 
  6.3. Application Example of the EERMGCs Tool
This part addresses an example of how to use the EERMGCs tool; 
Figure 15 shows the inputs tab for this example. In this example, it was assumed that the user chose villa model type A and the south orientation, as shown in 
Figure 16. Then, the user moved to the second section, where they filtered the energy retrofitting measures and excluded the energy measures that did not suit them, as shown in 
Figure 17. Then, the last section in the input screen for user priority determination is shown in 
Figure 18. The user’s priority in this example was to set a specific budget ranging from USD 2500 to USD 3500, and then the user pressed the Start button. The output tab appeared, as shown in 
Figure 19, containing a table of the five optimal envelope energy retrofitting scenarios based on the user’s objectives. As shown in 
Figure 20, the scenarios table shows the retrofitting measures for each scenario, energy consumption rate, energy saving rate, investment cost, and payback period. 
Figure 21 shows the four comparative charts for the most suitable envelope energy retrofitting scenarios. The first chart shows the payback period of each scenario; the second chart shows the annual energy saving percentage; the third chart shows yearly cost saving in USD for each scenario; and the fourth one shows retrofitting investment cost in USD for each scenario. Also, the retrofitting measures legend contains a detailed key table that explains the description of the energy retrofitting measures is shown in 
Figure 22.
   7. Conclusions
This paper developed a multi-objective decision-making tool for envelope energy retrofitting in gated community housing in Cairo. This tool enables users and homeowners to determine the optimal retrofitting solutions that suit their objectives and priorities. This tool was developed by following a methodology consisting of successive steps. The research started by conducting a comprehensive review of previous studies, surveying the Egyptian construction market, communicating with building companies and conducting interviews with housing occupants. Then, the research moved to the data analysis phase, thermal performance simulation, and economic analysis. Finally, the database was created, and the EERMGCs tool was developed. This research will lead to essential impacts in encouraging the homeowners of luxury housing to implement energy retrofitting measures for their homes by showing them the energy and cost savings and the payback period of the energy retrofitting process. Egypt is in dire need of such a tool, especially with the multiple energy problems that it has experienced recently. Each phase of the study had significant results, and all of these results combined to create a huge database consisting of 810 energy retrofit scenarios with the investment cost for each scenario and its payback period. For example, according to scenario 52 for villa A (S and SW), energy can be saved by 22.8% annually if the following measures are applied: expanded polystyrene (EPS) 3.00 cm for the walls, polyurethane foam 3 cm for the roof, and coloured double glazing with 6 mm/13 mm air for glazing, with a payback period of 9.9 years. The final outcome of this study is developing the EERMGCs tool that helps and encourages homeowners to invest in retrofitting their home; it is simple and easy to use. It adapts to the different priorities of homeowners, offering them the optimal retrofitting measures according to their preferences. Also, the research provides a framework that can be considered a basis for developing decision-making tools for GCs housing in Egypt. 
The limitations of the research are that it was allocated only to luxury residential buildings in gated communities in Cairo, and it only applied retrofitting measures for the building envelope. Also, it is only concerned with the total cost for each scenario and the payback period. Future research can expand the scope of research to make this tool valid for use on other housing types in Egypt, in addition to searching for new energy measures that will suit these conditions and include them in the tool. We recommend that the official authorities encourage the development of this tool to make it suitable for all luxury housing, and make it available free of charge to homeowners.
   
  
    Author Contributions
Conceptualization, S.A.A., A.M. and M.Y.; methodology, S.A.A. and A.M.; software, S.A.A.; validation, S.A.A.; formal analysis, S.A.A.; investigation, S.A.A.; resources, S.A.A.; writing—original draft preparation, S.A.A.; writing—review and editing, S.A.A., A.M. and M.Y.; visualization S.A.A., A.M. and M.Y.; supervision, A.M. and M.Y. All authors have read and agreed to the published version of the manuscript.
Funding
This research received no external funding.
Data Availability Statement
Most of the data and the results are reported in the paper. Additional data can be requested from the corresponding author.
Conflicts of Interest
The authors declare no conflict of interest.
  Appendix A
  
    
  
  
    Figure A1.
      A sample of the questionnaire that was delivered in print or online to the occupants during the site visits to the case study in the data collection phase.
  
 
   Figure A1.
      A sample of the questionnaire that was delivered in print or online to the occupants during the site visits to the case study in the data collection phase.
  
 
References
- Adly, B.; El-khouly, T. Combining Retrofitting Techniques, Renewable Energy Resources and Regulations for Residential Buildings to Achieve Energy Efficiency in Gated Communities. Ain Shams Eng. J. 2022, 13, 101772. [Google Scholar] [CrossRef]
- William, M.A.; Elharidi, A.M.; Hanafy, A.A.; Attia, A. Energy-Efficient Retrofitting Strategies for Healthcare Facilities in Hot-Humid Climate: Parametric and Economical Analysis. Alex. Eng. J. 2020, 59, 4549–4562. [Google Scholar] [CrossRef]
- Egyptindependent. Available online: https://www.egyptdailynews.com/detail/cabinet-announces-egypts-power-outage-plan-will-be-lifted-by-end-of-summer (accessed on 10 September 2023).
- Gamaleldine, M.; Corvacho, H. Compliance with Building Energy Code for the Residential Sector in Egyptian Hot-Arid Climate: Potential Impact, Difficulties, and Further Improvements. Sustainability 2022, 14, 3936. [Google Scholar] [CrossRef]
- Ahmad, R.M.; El-Sayed, Z.; Taha, D.; Shokry, H.; Mahmoud, H. An Approach to Select an Energy-Efficient Shading Device for the South-Oriented Façades in Heritage Buildings in Alexandria, Egypt. Energy Rep. 2021, 7, 133–137. [Google Scholar] [CrossRef]
- Sameh, S.; Kamel, B. Promoting Green Retrofitting to Enhance Energy Efficiency of Residential Buildings in Egypt. J. Eng. Appl. Sci. 2020, 67, 1709–1728. [Google Scholar]
- Zhou, Z.; Zhang, S.; Wang, C.; Zuo, J.; He, Q.; Rameezdeen, R. Achieving Energy Efficient Buildings via Retrofitting of Existing Buildings: A Case Study. J. Clean. Prod. 2016, 112, 3605–3615. [Google Scholar] [CrossRef]
- Atlam, B.M.; Rapiea, A.M. Assessing the Future of Energy Security in Egypt. Int. J. Energy Econ. Policy 2016, 6, 684–700. [Google Scholar]
- Iaea. Available online: https://cnpp.iaea.org/countryprofiles/Egypt/Egypt.htm (accessed on 9 July 2023).
- Ismail, O.M.; Shalaby, A.M.; Samir, H. Assessing the Quality of Life in New Gated Communities in Egypt. Int. J. Eng. Res. Technol. 2019, 12, 2378–2388. [Google Scholar]
- Muawad, A.S.; Moussa, R.R.; Guirguis, M.N. The Impact of Residential Gated Compounds on Quality of Life in Egypt. Civ. Eng. Archit. 2022, 10, 1718–1724. [Google Scholar] [CrossRef]
- Abdelaziz Farid, M.M.; Ahmed, A.M.S. Urban Identity and Lifestyles of Gated Communities in Egypt. In Cities’ Identity through Architecture and Arts; Routledge: Oxford, UK, 2018; pp. 333–340. [Google Scholar] [CrossRef]
- Nazmy, E.; Fahmi, S.; Sayed, E. Residents’ Satisfaction at Gated Communities in Egypt. Int. J. Sci. Eng. Res. 2016, 7, 1185–1196. [Google Scholar]
- Ma, Z.; Cooper, P.; Daly, D.; Ledo, L. Existing Building Retrofits: Methodology and State-of-the-Art. Energy Build. 2012, 55, 889–902. [Google Scholar] [CrossRef]
- Basarir, B.; Diri, B.S.; Diri, C. Energy Efficient Retrofit Methods at the Building Envelopes of the School Buildings. In Proceedings of the Retrofit 2012 Conference, Salford, UK, 24–26 January 2012; pp. 1–13. [Google Scholar]
- Rakhshan, K.; Friess, W.A. Effectiveness and Viability of Residential Building Energy Retrofits in Dubai. J. Build. Eng. 2017, 13, 116–126. [Google Scholar] [CrossRef]
- Zingre, K.T.; Yang, E.H.; Wan, M.P. Dynamic Thermal Performance of Inclined Double-Skin Roof: Modeling and Experimental Investigation. Energy 2017, 133, 900–912. [Google Scholar] [CrossRef]
- Omar, A.I.; Virgone, J.; Vergnault, E.; David, D.; Idriss, A.I. Energy Saving Potential with a Double-Skin Roof Ventilated by Natural Convection in Djibouti. Energy Procedia 2017, 140, 361–373. [Google Scholar] [CrossRef]
- Casquero-Modrego, N.; Goñi-Modrego, M. Energy Retrofit of an Existing Affordable Building Envelope in Spain, Case Study. Sustain. Cities Soc. 2019, 44, 395–405. [Google Scholar] [CrossRef]
- Pisello, A.L.; Piselli, C.; Cotana, F. Thermal-Physics and Energy Performance of an Innovative Green Roof System: The Cool-Green Roof. Sol. Energy 2015, 116, 337–356. [Google Scholar] [CrossRef]
- El-Darwish, I.; Gomaa, M. Retrofitting Strategy for Building Envelopes to Achieve Energy Efficiency. Alex. Eng. J. 2020, 56, 579–589. [Google Scholar] [CrossRef]
- Scoccia, R.; Filippini, G.; Motta, M. Cooling Energy Use Reduction in Residential Buildings in Egypt Accounting for Global Warming Effects. Climate 2021, 9, 45. [Google Scholar]
- Esser, A.; Dunne, A.; Meeusen, T.; Quaschning, S.; Wegge, D.; Hermelink, A.; Schimschar, S.; Offermann, M.; John, A.; Reiser, M. Comprehensive Study of Building Energy Renovation Activities and the Uptake of Nearly Zero-Energy Buildings in the EU Final Rep; Publications Office of the European Union: Luxembourg, 2019. [Google Scholar]
- Møller, E.B.; Perkov, T.; Hansen, T.K. Web Tool Including Feasibility Study of Possible Input and Output Data; Technical University of Denmark: Lyngby, Denmark, 2020. [Google Scholar]
- Sharma, N.; Tiwari, P.K.; Ahmad, G.; Sharma, H. Optimum Tilt and Orientation Angle Determination with Application of Solar Data. In Proceedings of the 2021 International Conference on Artificial Intelligence and Smart Systems (ICAIS), Coimbatore, India, 25–27 March 2021. [Google Scholar]
- Seddiki, M.; Bennadji, A.; Laing, R.; Gray, D.; Alabid, J.M. Review of Existing Energy Retrofit Decision Tools for Homeowners. Sustainability 2021, 13, 10189. [Google Scholar] [CrossRef]
- CSTB ALICE. Amélioration Des Logements En Intégrant Les Contraintes Du Confort d’Eté. Cahier 2008, 3619, 1–17. [Google Scholar]
- Mills, E.; Brown, R.; Pinckard, M.; Warner, J. Home Energy Saver v.2.0, Computer Software. Version 00; Lawrence Berkeley National Lab. (LBNL): Berkeley, CA, USA, 1 September 2008.
- Li, P.; Froese, T.M. A Green Home Decision-Making Tool: Sustainability Assessment for Homeowners. Energy Build. 2017, 150, 421–431. [Google Scholar] [CrossRef]
- Fei, N.C.; Mehat, N.M.; Kamaruddin, S. Practical Applications of Taguchi Method for Optimization of Processing Parameters for Plastic Injection Moulding: A Retrospective Review. Int. Sch. Res. Not. 2013, 2013, 462174. [Google Scholar] [CrossRef]
- Hochstein, D.J.; Ahmad, A.B.; Magowan, R.E. Teaching the Taguchi Method of Experimental Design: Design and Testing of Concrete Mixes. In ASEE Annual Conference Proceedings; American Society for Engineering Education: Washington, DC, USA, 1997. [Google Scholar] [CrossRef]
- Libretexts. Available online: https://eng.libretexts.org/Bookshelves/Industrial_and_Systems_Engineering/Chemical_Process_Dynamics_and_Controls_(Woolf)/14%3A_Design_of_Experiments/14.01%3A_Design_of_Experiments_via_Taguchi_Methods_-_Orthogonal_Arrays (accessed on 28 August 2023).
- Zahraee, S.M.; Hatami, M.; Bavafa, A.A.; Ghafourian, K.; Rohani, J.M. Application of Statistical Taguchi Method to Optimize Main Elements in the Residential Buildings in Malaysia Based Energy Consumption. Appl. Mech. Mater. 2014, 606, 265–269. [Google Scholar] [CrossRef]
- Datta, S.; Bandyopadhyay, A. Grey-Based Taguchi Method for Optimization of Bead Geometry in Submerged Arc Bead-on-Plate Welding. Int. J. Adv. Manuf. Technol. 2008, 39, 1136–1143. [Google Scholar] [CrossRef]
- Zahraee, S.M.; Chegeni, A.; Rohani, J.M. Characterization of Manufacturing System Computer Simulation Using Taguchi Method. J. Teknol. 2015, 4, 77–82. [Google Scholar] [CrossRef][Green Version]
- Minitab. Available online: https://support.minitab.com/en-us/minitab/21/help-and-how-to/statistical-modeling/doe/how-to/taguchi/analyze-taguchi-design/methods-and-formulas/methods-and-formulas/ (accessed on 12 July 2023).
  
    
  
  
    Figure 1.
      The major phases of the overall process of a building retrofit project.
  
 
   Figure 1.
      The major phases of the overall process of a building retrofit project.
  
 
  
    
  
  
    Figure 2.
      Methodology phases of the EERMGCs tool development.
  
 
   Figure 2.
      Methodology phases of the EERMGCs tool development.
  
 
  
    
  
  
    Figure 3.
      The location of the case study, “Madinaty city” is on the outskirts east of Cairo.
  
 
   Figure 3.
      The location of the case study, “Madinaty city” is on the outskirts east of Cairo.
  
 
  
    
  
  
    Figure 4.
      The research case study, the “Golf area” layout; single-family villa district.
  
 
   Figure 4.
      The research case study, the “Golf area” layout; single-family villa district.
  
 
  
    
  
  
    Figure 5.
      Representative dwelling models for villa model A: (a) ground floor (b) first floor.
  
 
   Figure 5.
      Representative dwelling models for villa model A: (a) ground floor (b) first floor.
  
 
  
    
  
  
    Figure 6.
      Representative dwelling model for villa model B: (a) ground floor (b) first floor.
  
 
   Figure 6.
      Representative dwelling model for villa model B: (a) ground floor (b) first floor.
  
 
  
    
  
  
    Figure 7.
      Simulation model perspectives for (a) villa model A and (b) villa model B.
  
 
   Figure 7.
      Simulation model perspectives for (a) villa model A and (b) villa model B.
  
 
  
    
  
  
    Figure 8.
      Actual and simulation monthly energy consumption for villa A orientation (SW).
  
 
   Figure 8.
      Actual and simulation monthly energy consumption for villa A orientation (SW).
  
 
  
    
  
  
    Figure 9.
      Actual and simulation monthly energy consumption for villa B orientation (E).
  
 
   Figure 9.
      Actual and simulation monthly energy consumption for villa B orientation (E).
  
 
  
    
  
  
    Figure 10.
      Yearly energy consumption in eight orientations for (a) villa model A and (b) Villa model B.
  
 
   Figure 10.
      Yearly energy consumption in eight orientations for (a) villa model A and (b) Villa model B.
  
 
  
    
  
  
    Figure 11.
      The final simulation model orientations.
  
 
   Figure 11.
      The final simulation model orientations.
  
 
  
    
  
  
    Figure 12.
      The Taguchi method SNR results for each level of the main factors (retrofitting alternatives).
  
 
   Figure 12.
      The Taguchi method SNR results for each level of the main factors (retrofitting alternatives).
  
 
  
    
  
  
    Figure 13.
      Villa A (S and SW) yearly energy consumption for various retrofitting scenarios.
  
 
   Figure 13.
      Villa A (S and SW) yearly energy consumption for various retrofitting scenarios.
  
 
  
    
  
  
    Figure 14.
      The payback period calculation for retrofitting scenario No. 2 for Villa type A (S and SW).
  
 
   Figure 14.
      The payback period calculation for retrofitting scenario No. 2 for Villa type A (S and SW).
  
 
  
    
  
  
    Figure 15.
      Input window of EERMGCs tool user interface.
  
 
   Figure 15.
      Input window of EERMGCs tool user interface.
  
 
  
    
  
  
    Figure 16.
      The first section of EERMGCs tool input tab, where the user determines his villa type and orientation.
  
 
   Figure 16.
      The first section of EERMGCs tool input tab, where the user determines his villa type and orientation.
  
 
  
    
  
  
    Figure 17.
      The second section of EERMGCs tool input tab, where the user determines the retrofit measures that suit them.
  
 
   Figure 17.
      The second section of EERMGCs tool input tab, where the user determines the retrofit measures that suit them.
  
 
  
    
  
  
    Figure 18.
      The third section of the EERMGCs tool input tab, where the user determines their objective and priorities in choosing the energy retrofitting measures.
  
 
   Figure 18.
      The third section of the EERMGCs tool input tab, where the user determines their objective and priorities in choosing the energy retrofitting measures.
  
 
  
    
  
  
    Figure 19.
      Outputs tab of the EERMGCs tool’s user interface.
  
 
   Figure 19.
      Outputs tab of the EERMGCs tool’s user interface.
  
 
  
    
  
  
    Figure 20.
      The table of the most suitable envelope energy retrofitting scenarios of the ERMGCs tool application example.
  
 
   Figure 20.
      The table of the most suitable envelope energy retrofitting scenarios of the ERMGCs tool application example.
  
 
  
    
  
  
    Figure 21.
      The four comparative charts for the most suitable envelope energy scenarios of the application example of the EERMGCs tool.
  
 
   Figure 21.
      The four comparative charts for the most suitable envelope energy scenarios of the application example of the EERMGCs tool.
  
 
  
    
  
  
    Figure 22.
      The third section on the output tab, the legend of retrofitting measures.
  
 
   Figure 22.
      The third section on the output tab, the legend of retrofitting measures.
  
 
  
    
  
  
    Table 1.
    The common attributes for all case study dwelling models.
  
 
  
      Table 1.
    The common attributes for all case study dwelling models.
      
        | Building Attributes | Type A and B | 
|---|
| Building shape | Rectangular | 
| External Wall | U-value = 1.5 W/m2/K | 
| Brick 25 cm | 
| Mortar on each side 2.5 cm | 
| Plaster on each side 1.5 cm | 
| Roof | U-value = 0.52 W/m2/K | 
| Cement tiles 2 cm | 
| Mortar 2 cm | 
| Sand 6 cm | 
| Plain concrete 7 cm | 
| Expanded polystyrene 5 cm | 
| Vapour barrier 4 cm | 
| Reinforced concrete 10 cm | 
| Plaster 1 cm | 
| Glazing | U value including frame = 5.013 W/m2/K | 
| Solar heat gain coefficient (SHGC) = 0.78 | 
| Window-to-wall ratio (WWR) = 30% | 
| Single-glazed panel 3 mm thickness, with aluminium frames, no shading devices | 
      
 
  
    
  
  
    Table 2.
    The energy retrofit measures for envelope elements (walls, roofs, glazing, and shading devices).
  
 
  
      Table 2.
    The energy retrofit measures for envelope elements (walls, roofs, glazing, and shading devices).
      
        | Code | Wall Insulation | Code | Roof Insulation | Code | Glazing | Code | Shading Devices | 
|---|
| W1 | Expanded polystyrene (EPS) 3.00 cm
 | R1 | Tile foam of extruded polystyrene (XPS) 3 cm | G1 | Single glazing 6 cm with silver p20 sun control film coating | SH1 | Metal inside shading louvres | 
| W2 | Expanded polystyrene (EPS) 5.00 cm
 | R2 | Polyurethane foam 3 cm | G2 | Coloured double glazing with 6 mm/13 mm air | SH2 | Metal exterior roller blinds | 
| W3 | Expanded polystyrene (EPS) 10.00 cm
 | R3 | Expanded polystyrene (EPS) sheet coated
 on both sides with cement mortar and fibreglass mesh 3 cm
 | G3 | Clear double glazing with 3 mm/13 mm air | SH3 | Metal exterior shading louvres | 
| W4 | Polyurethane 5 cm | R4 | Tile foam of extruded polystyrene (XPS) 5 cm | G4 | Clear double glazing with 6 mm/13 mm air | SH4 | Inside shade roll—light translucent | 
| W0 | Without wall insulation | R0 | Without roof insulation | G0 | Without glazing retrofitting | SH0 | Without shading devices
 | 
      
 
  
    
  
  
    Table 3.
    Taguchi orders layout and required energy consumption data of simulation runs for villa model B (S and SW).
  
 
  
      Table 3.
    Taguchi orders layout and required energy consumption data of simulation runs for villa model B (S and SW).
      
        | Villa Model B (S and SW) | 
|---|
| Simulation Run Order
 | Wall Insulation
 | Roof Insulation
 | Glazing | Shading Devices | Annual Energy Consumption (kWh) | 
|---|
| 1 | W1 | R1 | G1 | SH1 | 22,078 | 
| 2 | W1 | R2 | G2 | SH2 | 18,961 | 
| 3 | W1 | R3 | G3 | SH3 | 21,361 | 
| 4 | W1 | R4 | G4 | SH4 | 21,226 | 
| 5 | W2 | R1 | G2 | SH3 | 19,445 | 
| 6 | W2 | R2 | G1 | SH4 | 21,768 | 
| 7 | W2 | R3 | G4 | SH1 | 19,619 | 
| 8 | W2 | R4 | G3 | SH2 | 20,084 | 
| 9 | W3 | R1 | G3 | SH4 | 21,303 | 
| 10 | W3 | R2 | G4 | SH3 | 20,103 | 
| 11 | W3 | R3 | G1 | SH2 | 20,877 | 
| 12 | W3 | R4 | G2 | SH1 | 19,561 | 
| 13 | W4 | R1 | G4 | SH2 | 19,910 | 
| 14 | W4 | R2 | G3 | SH1 | 21,052 | 
| 15 | W4 | R3 | G2 | SH4 | 20,335 | 
| 16 | W4 | R4 | G1 | SH3 | 22,716 | 
      
 
  
    
  
  
    Table 4.
    All possible scenarios for all the mixes of the chosen retrofitting measures.
  
 
  
      Table 4.
    All possible scenarios for all the mixes of the chosen retrofitting measures.
      
        | Scenario Number | Wall Insulation
 | Roof Insulation
 | Glazing | Shading Devices
 | Scenario Number | Wall Insulation
 | Roof Insulation
 | Glazing | Shading Devices
 | 
|---|
| 1 | W0 | R0 | G0 | SH0 | 42 | W1 | R1 | G1 | SH2 | 
| 2 | W0 | R0 | G0 | SH1 | 43 | W1 | R1 | G2 | SH0 | 
| 3 | W0 | R0 | G0 | SH2 | 44 | W1 | R1 | G2 | SH1 | 
| 4 | W0 | R0 | G1 | SH0 | 45 | W1 | R1 | G2 | SH2 | 
| 5 | W0 | R0 | G1 | SH1 | 46 | W1 | R2 | G0 | SH0 | 
| 6 | W0 | R0 | G1 | SH2 | 47 | W1 | R2 | G0 | SH1 | 
| 7 | W0 | R0 | G2 | SH0 | 48 | W1 | R2 | G0 | SH2 | 
| 8 | W0 | R0 | G2 | SH1 | 49 | W1 | R2 | G1 | SH0 | 
| 9 | W0 | R0 | G2 | SH2 | 50 | W1 | R2 | G1 | SH1 | 
| 10 | W0 | R1 | G0 | SH0 | 51 | W1 | R2 | G1 | SH2 | 
| 11 | W0 | R1 | G0 | SH1 | 52 | W1 | R2 | G2 | SH0 | 
| 12 | W0 | R1 | G0 | SH2 | 53 | W1 | R2 | G2 | SH1 | 
| 13 | W0 | R1 | G1 | SH0 | 54 | W1 | R2 | G2 | SH2 | 
| 14 | W0 | R1 | G1 | SH1 | 55 | W2 | R0 | G0 | SH0 | 
| 15 | W0 | R1 | G1 | SH2 | 56 | W2 | R0 | G0 | SH1 | 
| 16 | W0 | R1 | G2 | SH0 | 57 | W2 | R0 | G0 | SH2 | 
| 17 | W0 | R1 | G2 | SH1 | 58 | W2 | R0 | G1 | SH0 | 
| 18 | W0 | R1 | G2 | SH2 | 59 | W2 | R0 | G1 | SH1 | 
| 19 | W0 | R2 | G0 | SH0 | 60 | W2 | R0 | G1 | SH2 | 
| 20 | W0 | R2 | G0 | SH1 | 61 | W2 | R0 | G2 | SH0 | 
| 21 | W0 | R2 | G0 | SH2 | 62 | W2 | R0 | G2 | SH1 | 
| 22 | W0 | R2 | G1 | SH0 | 63 | W2 | R0 | G2 | SH2 | 
| 23 | W0 | R2 | G1 | SH1 | 64 | W2 | R1 | G0 | SH0 | 
| 24 | W0 | R2 | G1 | SH2 | 65 | W2 | R1 | G0 | SH1 | 
| 25 | W0 | R2 | G2 | SH0 | 66 | W2 | R1 | G0 | SH2 | 
| 26 | W0 | R2 | G2 | SH1 | 67 | W2 | R1 | G1 | SH0 | 
| 27 | W0 | R2 | G2 | SH2 | 68 | W2 | R1 | G1 | SH1 | 
| 28 | W1 | R0 | G0 | SH0 | 69 | W2 | R1 | G1 | SH2 | 
| 29 | W1 | R0 | G0 | SH1 | 70 | W2 | R1 | G2 | SH0 | 
| 30 | W1 | R0 | G0 | SH2 | 71 | W2 | R1 | G2 | SH1 | 
| 31 | W1 | R0 | G1 | SH0 | 72 | W2 | R1 | G2 | SH2 | 
| 32 | W1 | R0 | G1 | SH1 | 73 | W2 | R2 | G0 | SH0 | 
| 33 | W1 | R0 | G1 | SH2 | 74 | W2 | R2 | G0 | SH1 | 
| 34 | W1 | R0 | G2 | SH0 | 75 | W2 | R2 | G0 | SH2 | 
| 35 | W1 | R0 | G2 | SH1 | 76 | W2 | R2 | G1 | SH0 | 
| 36 | W1 | R0 | G2 | SH2 | 77 | W2 | R2 | G1 | SH1 | 
| 37 | W1 | R1 | G0 | SH0 | 78 | W2 | R2 | G1 | SH2 | 
| 38 | W1 | R1 | G0 | SH1 | 79 | W2 | R2 | G2 | SH0 | 
| 39 | W1 | R1 | G0 | SH2 | 80 | W2 | R2 | G2 | SH1 | 
| 40 | W1 | R1 | G1 | SH0 | 81 | W2 | R2 | G2 | SH2 | 
| 41 | W1 | R1 | G1 | SH1 |  |  |  |  |  | 
      
 
  
    
  
  
    Table 5.
    Database sample of ERMGC tool for villa type A with the orientation of (S and SW).
  
 
  
      Table 5.
    Database sample of ERMGC tool for villa type A with the orientation of (S and SW).
      
        | VILLA A (S & SW) | 
|---|
| Scenario Number | Wall Insulation
 | Roof Insulation
 | Glazing | Shading Devices
 | Yearly Consumption
 Saving (%)
 | Yearly Consumption (kwh)
 | Yearly Consumption Cost ($)
 | Yearly Consumption
 Saving (kwh)
 | Yearly Consumption
 Saving ($)
 | Retrofitting Investment Cost ($)
 | Payback Period (years) | 
|---|
| 1 | W0 | R0 | G0 | SH0 | 0.00 | 32,876 | 1151 | 0 | 0 | 0 | 0.00 | 
| 2 | W0 | R0 | G0 | SH1 | 20.20 | 26,236 | 919 | 6640 | 242 | 1464 | 4.02 | 
| 3 | W0 | R0 | G0 | SH2 | 23.40 | 25,184 | 882 | 7692 | 279 | 1913 | 4.36 | 
| 4 | W0 | R0 | G1 | SH0 | 6.70 | 30,674 | 1075 | 2202 | 80 | 563 | 4.44 | 
| 5 | W0 | R0 | G1 | SH1 | 22.20 | 25,578 | 896 | 7298 | 266 | 2026 | 4.70 | 
| 6 | W0 | R0 | G1 | SH2 | 22.74 | 25,400 | 890 | 7476 | 272 | 2476 | 5.29 | 
| 7 | W0 | R0 | G2 | SH0 | 18.50 | 26,794 | 939 | 6082 | 221 | 3938 | 7.89 | 
| 8 | W0 | R0 | G2 | SH1 | 27.43 | 23,859 | 836 | 9017 | 328 | 5401 | 7.55 | 
| 9 | W0 | R0 | G2 | SH2 | 27.97 | 23,681 | 830 | 9195 | 335 | 5851 | 7.81 | 
| 10 | W0 | R1 | G0 | SH0 | 6.30 | 30,805 | 1079 | 2071 | 76 | 1276 | 7.67 | 
| 11 | W0 | R1 | G0 | SH1 | 23.22 | 25,243 | 885 | 7633 | 278 | 2739 | 5.56 | 
| 12 | W0 | R1 | G0 | SH2 | 24.93 | 24,681 | 865 | 8195 | 298 | 3188 | 5.87 | 
| 13 | W0 | R1 | G1 | SH0 | 9.14 | 29,872 | 1047 | 3004 | 110 | 1838 | 7.64 | 
| 14 | W0 | R1 | G1 | SH1 | 25.39 | 24,529 | 859 | 8347 | 304 | 3301 | 5.93 | 
| 15 | W0 | R1 | G1 | SH2 | 27.10 | 23,967 | 840 | 8909 | 324 | 3751 | 6.16 | 
| 16 | W0 | R1 | G2 | SH0 | 17.66 | 27,072 | 948 | 5804 | 211 | 5213 | 9.33 | 
| 17 | W0 | R1 | G2 | SH1 | 33.65 | 21,814 | 765 | 11,062 | 402 | 6676 | 7.58 | 
| 18 | W0 | R1 | G2 | SH2 | 35.36 | 21,252 | 744 | 11,624 | 422 | 7126 | 7.65 | 
| 19 | W0 | R2 | G0 | SH0 | 7.40 | 30,444 | 1066 | 2432 | 89 | 2551 | 10.06 | 
| 20 | W0 | R2 | G0 | SH1 | 23.36 | 25,197 | 882 | 7679 | 279 | 4013 | 7.01 | 
| 21 | W0 | R2 | G0 | SH2 | 25.07 | 24,634 | 863 | 8242 | 300 | 4464 | 7.14 | 
| 22 | W0 | R2 | G1 | SH0 | 9.43 | 29,776 | 1043 | 3100 | 113 | 3114 | 9.85 | 
| 23 | W0 | R2 | G1 | SH1 | 25.46 | 24,506 | 858 | 8370 | 304 | 4576 | 7.18 | 
| 24 | W0 | R2 | G1 | SH2 | 27.17 | 23,944 | 839 | 8932 | 324 | 5026 | 7.29 | 
| 25 | W0 | R2 | G2 | SH0 | 17.95 | 26,977 | 945 | 5899 | 214 | 6488 | 10.27 | 
| 26 | W0 | R2 | G2 | SH1 | 33.72 | 21,791 | 764 | 11,085 | 403 | 7951 | 8.32 | 
| 27 | W0 | R2 | G2 | SH2 | 35.43 | 21,229 | 744 | 11,647 | 423 | 8401 | 8.35 | 
| 28 | W1 | R0 | G0 | SH0 | 9.00 | 29,918 | 1048 | 2958 | 108 | 1201 | 6.03 | 
| 29 | W1 | R0 | G0 | SH1 | 21.78 | 25,716 | 901 | 7160 | 260 | 2663 | 5.70 | 
| 30 | W1 | R0 | G0 | SH2 | 24.66 | 24,769 | 868 | 8107 | 295 | 3114 | 5.82 | 
| 31 | W1 | R0 | G1 | SH0 | 11.22 | 29,188 | 1023 | 3688 | 135 | 1764 | 6.64 | 
| 32 | W1 | R0 | G1 | SH1 | 26.47 | 24,174 | 847 | 8702 | 317 | 3226 | 5.68 | 
| 33 | W1 | R0 | G1 | SH2 | 28.18 | 23,612 | 827 | 9264 | 337 | 3676 | 5.95 | 
| 34 | W1 | R0 | G2 | SH0 | 17.38 | 27,164 | 951 | 5712 | 208 | 5139 | 9.33 | 
| 35 | W1 | R0 | G2 | SH1 | 34.73 | 21,459 | 752 | 11,417 | 415 | 6601 | 7.40 | 
| 36 | W1 | R0 | G2 | SH2 | 36.44 | 20,896 | 732 | 11,980 | 435 | 7051 | 7.48 | 
| 37 | W1 | R1 | G0 | SH0 | 10.98 | 29,267 | 1025 | 3609 | 131 | 2476 | 8.14 | 
| 38 | W1 | R1 | G0 | SH1 | 26.91 | 24,030 | 842 | 8846 | 321 | 3938 | 6.36 | 
| 39 | W1 | R1 | G0 | SH2 | 28.62 | 23,467 | 822 | 9409 | 342 | 4389 | 6.54 | 
| 40 | W1 | R1 | G1 | SH0 | 14.77 | 28,021 | 982 | 4855 | 177 | 3038 | 7.74 | 
| 41 | W1 | R1 | G1 | SH1 | 29.72 | 23,105 | 810 | 9771 | 355 | 4501 | 6.49 | 
| 42 | W1 | R1 | G1 | SH2 | 31.35 | 22,569 | 791 | 10,307 | 375 | 4951 | 6.66 | 
| 43 | W1 | R1 | G2 | SH0 | 22.11 | 25,609 | 897 | 7267 | 264 | 6414 | 9.25 | 
| 44 | W1 | R1 | G2 | SH1 | 37.06 | 20,693 | 725 | 12,183 | 442 | 7876 | 7.88 | 
| 45 | W1 | R1 | G2 | SH2 | 38.69 | 20,158 | 707 | 12,718 | 462 | 8326 | 7.94 | 
| 46 | W1 | R2 | G0 | SH0 | 11.27 | 29,171 | 1022 | 3705 | 135 | 3751 | 9.89 | 
| 47 | W1 | R2 | G0 | SH1 | 27.57 | 23,813 | 834 | 9063 | 329 | 5213 | 7.38 | 
| 48 | W1 | R2 | G0 | SH2 | 29.28 | 23,250 | 814 | 9626 | 350 | 5663 | 7.47 | 
| 49 | W1 | R2 | G1 | SH0 | 15.43 | 27,804 | 974 | 5072 | 185 | 4313 | 9.09 | 
| 50 | W1 | R2 | G1 | SH1 | 29.93 | 23,037 | 807 | 9839 | 358 | 5776 | 7.47 | 
| 51 | W1 | R2 | G1 | SH2 | 31.56 | 22,501 | 789 | 10,375 | 377 | 6226 | 7.56 | 
| 52 | W1 | R2 | G2 | SH0 | 22.77 | 25,392 | 889 | 7484 | 273 | 7688 | 9.97 | 
| 53 | W1 | R2 | G2 | SH1 | 37.27 | 20,625 | 723 | 12,251 | 445 | 9151 | 8.50 | 
| 54 | W1 | R2 | G2 | SH2 | 38.90 | 20,089 | 704 | 12,787 | 465 | 9601 | 8.52 | 
| 55 | W2 | R0 | G0 | SH0 | 12.50 | 28,767 | 1008 | 4109 | 150 | 1501 | 5.63 | 
| 56 | W2 | R0 | G0 | SH1 | 22.56 | 25,461 | 892 | 7415 | 269 | 2963 | 5.97 | 
| 57 | W2 | R0 | G0 | SH2 | 25.44 | 24,514 | 859 | 8362 | 304 | 3414 | 6.05 | 
| 58 | W2 | R0 | G1 | SH0 | 13.40 | 28,473 | 997 | 4403 | 160 | 2064 | 6.56 | 
| 59 | W2 | R0 | G1 | SH1 | 27.25 | 23,919 | 838 | 8957 | 325 | 3526 | 5.91 | 
| 60 | W2 | R0 | G1 | SH2 | 28.96 | 23,357 | 818 | 9519 | 346 | 3976 | 6.13 | 
| 61 | W2 | R0 | G2 | SH0 | 19.55 | 26,449 | 927 | 6427 | 234 | 5439 | 9.07 | 
| 62 | W2 | R0 | G2 | SH1 | 35.51 | 21,204 | 743 | 11,672 | 424 | 6901 | 7.50 | 
| 63 | W2 | R0 | G2 | SH2 | 37.22 | 20,642 | 724 | 12,234 | 445 | 7351 | 7.56 | 
| 64 | W2 | R1 | G0 | SH0 | 13.16 | 28,552 | 1000 | 4324 | 158 | 2776 | 7.85 | 
| 65 | W2 | R1 | G0 | SH1 | 28.21 | 23,602 | 827 | 9274 | 337 | 4238 | 6.46 | 
| 66 | W2 | R1 | G0 | SH2 | 29.92 | 23,040 | 807 | 9836 | 358 | 4688 | 6.63 | 
| 67 | W2 | R1 | G1 | SH0 | 16.91 | 27,318 | 957 | 5558 | 202 | 3338 | 7.56 | 
| 68 | W2 | R1 | G1 | SH1 | 30.67 | 22,793 | 799 | 10,083 | 366 | 4801 | 6.62 | 
| 69 | W2 | R1 | G1 | SH2 | 32.30 | 22,257 | 780 | 10,619 | 386 | 5251 | 6.78 | 
| 70 | W2 | R1 | G2 | SH0 | 24.24 | 24,907 | 872 | 7969 | 290 | 6714 | 9.05 | 
| 71 | W2 | R1 | G2 | SH1 | 38.01 | 20,381 | 714 | 12,495 | 454 | 8176 | 7.94 | 
| 72 | W2 | R1 | G2 | SH2 | 39.64 | 19,845 | 696 | 13,031 | 473 | 8626 | 7.99 | 
| 73 | W2 | R2 | G0 | SH0 | 13.45 | 28,456 | 997 | 4420 | 161 | 4051 | 9.42 | 
| 74 | W2 | R2 | G0 | SH1 | 28.87 | 23,385 | 820 | 9491 | 345 | 5513 | 7.42 | 
| 75 | W2 | R2 | G0 | SH2 | 30.58 | 22,823 | 800 | 10,053 | 366 | 5963 | 7.51 | 
| 76 | W2 | R2 | G1 | SH0 | 17.57 | 27,101 | 949 | 5775 | 211 | 4613 | 8.80 | 
| 77 | W2 | R2 | G1 | SH1 | 30.88 | 22,724 | 796 | 10,152 | 369 | 6076 | 7.55 | 
| 78 | W2 | R2 | G1 | SH2 | 32.51 | 22,189 | 778 | 10,687 | 388 | 6526 | 7.63 | 
| 79 | W2 | R2 | G2 | SH0 | 24.90 | 24,690 | 865 | 8186 | 297 | 7988 | 9.71 | 
| 80 | W2 | R2 | G2 | SH1 | 38.22 | 20,313 | 712 | 12,563 | 456 | 9451 | 8.53 | 
| 81 | W2 | R2 | G2 | SH2 | 39.85 | 19,777 | 693 | 13,099 | 476 | 9901 | 8.55 | 
      
 
|  | Disclaimer/Publisher’s Note: The statements, opinions and data contained in all publications are solely those of the individual author(s) and contributor(s) and not of MDPI and/or the editor(s). MDPI and/or the editor(s) disclaim responsibility for any injury to people or property resulting from any ideas, methods, instructions or products referred to in the content. | 
      
© 2023 by the authors. Licensee MDPI, Basel, Switzerland. This article is an open access article distributed under the terms and conditions of the Creative Commons Attribution (CC BY) license (https://creativecommons.org/licenses/by/4.0/).