Structural Feasibility and Compliance Assessment of Container vs. Cold-Formed Steel for a Sustainable 3D Printing Micro-Factory
Abstract
1. Introduction
The Emergence of Mobile Micro-Factories in the Circular Economy
2. Structural Analysis and Design Compliance
2.1. Design Loads and Action Combinations
2.2. Finite Element Analysis of the ISCC Platform
2.2.1. Analysis of the Unmodified Model
2.2.2. Analysis of the Modified Model
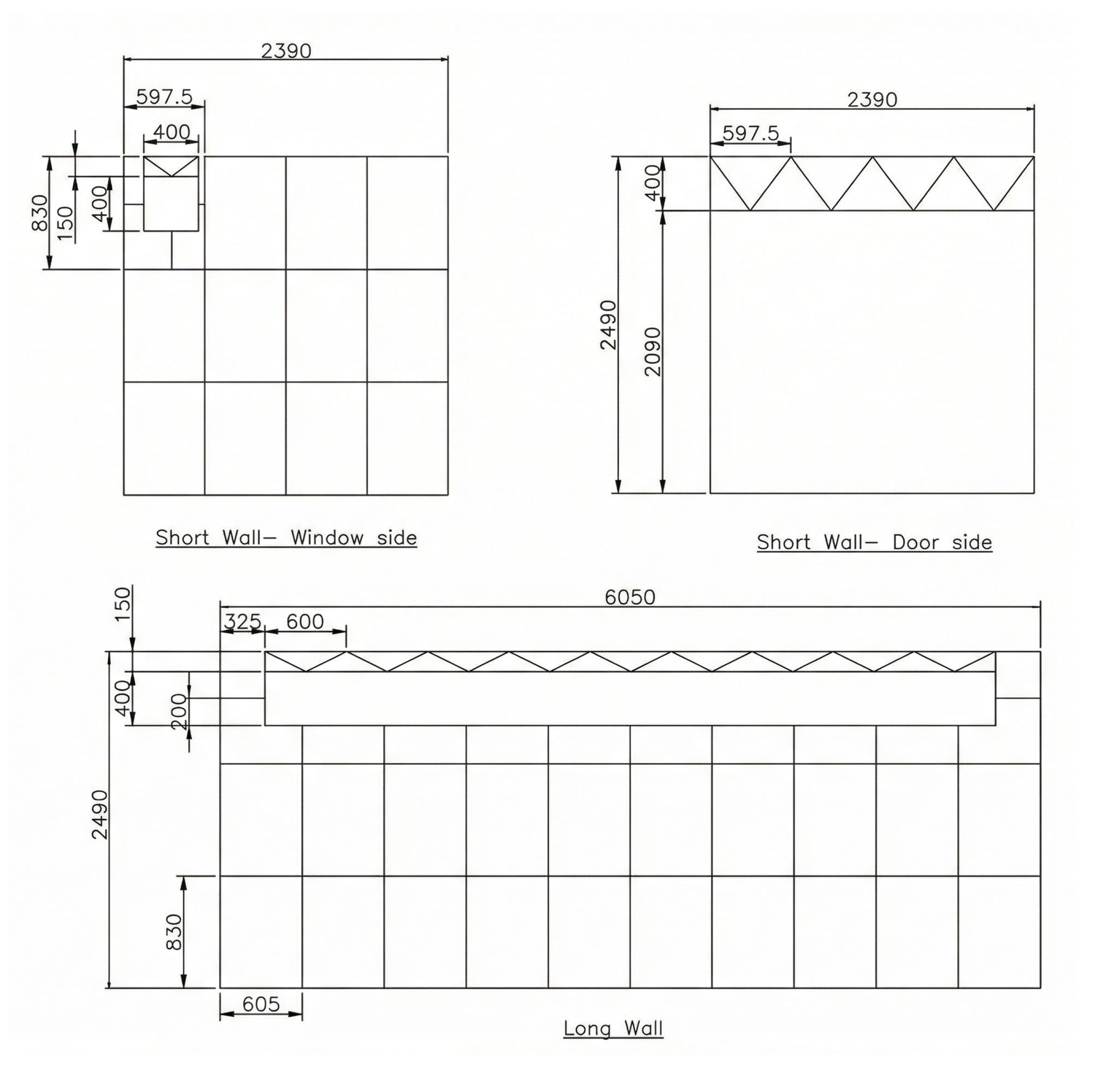
2.3. Analysis of the CFS Volumetric Structure
2.3.1. Analysis of the Initial Design
2.3.2. Analysis of the Final Compliant Design
3. Results
3.1. Unmodified Container Analysis and Initial Failure
3.2. Compliant Modified Designs
3.3. Comparative Metrics
4. Discussion
4.1. Structural Integrity and the “Modification Penalty”
4.2. Dynamic Performance and Operational Risk
4.3. Thermal Envelope and Lifecycle Energy Costs
4.4. Logistical and Regulatory Feasibility
4.5. Synthesis of Techno-Economic Factors
4.6. Limitations and Future Research
5. Conclusions
Author Contributions
Funding
Data Availability Statement
Acknowledgments
Conflicts of Interest
Appendix A. Detailed FEA Results for Unmodified ISCC Platform
| Surface | Load (Pa) | Max. Von Mises Stress (MPa) | Max. Deflection (mm) | Deflection Limit (L/500) (mm) | Status |
| Roof | 2250 | 127.9 | 15.9 | 12.19 | Fail |
| Floor | 10,560 | 43.24 | 0.59 | 12.19 | Pass |
| Windward Wall | 668.17 | 120.5 | 1.61 | 5.18 | Pass |
| Leeward Wall | 334.09 | 60.26 | 0.8 | 5.18 | Pass |
| Sidewall | 434.32 | 46.96 | 0.77 | 12.19 | Pass |
| Note 1: The yield stress for the container material (Corten Steel ASTM A242) is 345 MPa. All Von Mises stress values were found to be well within allowable limits. Note 2: The roof failed the serviceability criterion as its maximum deflection of 15.90 mm exceeded the allowable L/500 limit of 12.19 mm by approximately 30%. | |||||
Appendix B. Before-and-After FEA Results for ISCC Roof Modification
| Roof Design | Max. Von Mises Stress (MPa) | Max. Deflection (mm) | Deflection Limit (L/500) | Status | Change in Deflection |
| Unmodified | 127.9 | 15.9 | 12.19 mm | Fail | - |
| Modified | 156.5 | 7.24 | 12.19 mm | Pass | −54% |
| Note: The analysis confirms the midspan beam was highly effective, reducing the roof’s maximum deflection by 54% and successfully rectifying the initial serviceability failure. While the maximum stress increased, it remained well within allowable material limits. | |||||
Appendix C. FEA Results for Modified Walls with Openings
| Wall Section and State | Max. Von Mises Stress (MPa) | Max. Deflection (mm) | Deflection Limit (L/500) | Status |
| Sidewall with Clerestory Window | ||||
| Unmodified Sidewall | 46.96 | 0.77 | 12.19 mm | Pass |
| Modified Sidewall | 218.9 | 4.53 | 12.19 mm | Pass |
| End Walls with Fan Opening | ||||
| Unmodified Windward Wall | 120.5 | 1.61 | 5.18 mm | Pass |
| Modified Windward Wall | 86.39 | 1.54 | 5.18 mm | Pass |
| Unmodified Leeward Wall | 60.26 | 0.8 | 5.18 mm | Pass |
| Modified Leeward Wall | 43.19 | 0.77 | 5.18 mm | Pass |
| Note: While cutting the large window opening significantly increased local stresses on the sidewall, the values remained safely below the material’s yield limit of 345 MPa. All deflections for the modified walls were well within allowable serviceability limits, confirming the adequacy of the reinforced designs. | ||||
Appendix D. Initial vs. Final CFS Member Sections
| Member Group | Initial Section | Final Section | Change and Rationale |
| Studs, Noggins, Bracing | LC10019 | LC10019 | No Change. The initial section was found to be adequate. |
| Roof Joists & Beams | LC10230 | LC10230 | No Change. The initial section was adequate after adding two auxiliary beams. |
| Floor Joists | LC12730 | L-SC15024 | Increased. Section size was significantly upgraded to rectify the drastic 86.81 mm deflection failure. |
| Floor Beams | LC15230 | L-SC15024 | Changed. Section was optimized to work with the upgraded joists and new floor supports to resolve the failure. |
| Perimeter Frames | L-B2B-C10019 | L-B2B-C10010 | Decreased. Section was optimized to a smaller, lighter profile as the analysis showed lower stress in these members. |
| Note: The most significant changes were made to the floor system (joists and beams), which were substantially upgraded to handle the heavy imposed loads. Other areas, such as the perimeter frames, were optimized for material efficiency where the analysis showed they were initially over-specified. | |||
Appendix E. Detailed Mass and Cost Breakdown
| Platform | Component/Material | Mass (kg) | Cost ($) | Source |
| Modified ISCC Platform | ||||
| Standard 20-foot Container | 2050 | 4000 | ᵃ | |
| Midspan Reinforcement Member | 10 | 285.56 | ᵇ | |
| Window Installation (×4) | - | 2800 | ᶜ | |
| Air Vent Installation | - | 75 | ᶜ | |
| Subtotal (ISCC) | 2060 | 7160 | ||
| CFS Platform | ||||
| Frame Members (Various Sections) | 1019 | 11,261.08 | ᵈ | |
| Roof & Wall Cladding (Spandek) | 274.56 | 1458.54 | ᵈ | |
| Flooring (18 mm Marine Plywood) | 191.08 | 829.96 | ᵉ | |
| Subtotal (CFS) | 1484.64 | 13,548 | ||
| Total Difference | CFS is 575.36 kg lighter | ISCC is $6388 cheaper | ||
| Note: All costs are material and fabrication estimates based on supplier pricing at the time of research (2023) and are presented in AUD. They do not include costs for labor, transport, foundations, or internal fit-out. Sources: (a) Duncan (2023) [16]; (b) Lump Sculpture Studio (2023) [42]; (c) Ingenious Outdoor Storage Inc. (2023) [43]; (d) Roofing Supermarket (2023) [41]; (e) Trademaster (2023) [40]. | ||||
References
- Srai, J.S.; Kumar, M.; Graham, G.; Phillips, W.; Tooze, J.; Ford, S.; Beecher, P.; Raj, B.; Gregory, M.; Tiwari, M.K.; et al. Distributed manufacturing: Scope, challenges and opportunities. Int. J. Prod. Res. 2016, 54, 6917–6935. [Google Scholar] [CrossRef]
- Ahmed, A. A Community-Driven 3D Printing Micro-Factory Aims to Democratize Plastic Recycling [Poster], CSIRO Ending Plastic Waste Symposium 2023. 2023. Available online: https://wp.csiro.au/epws23/files/2023/08/Pitch-3-Circular-Economy-Aziz-Ahmed-2.pdf (accessed on 10 January 2026).
- Awan, U.; Sroufe, R.; Shahbaz, M. Industry 4.0 and the circular economy: A literature review and recommendations for future research. Bus. Strategy Environ. 2021, 30, 2038–2060. [Google Scholar] [CrossRef]
- Rauch, E.; Dallasega, P.; Matt, D.T. Sustainable production in emerging markets through Distributed Manufacturing Systems (DMS). J. Clean. Prod. 2016, 135, 127–138. [Google Scholar] [CrossRef]
- CSIRO. Sustainable Materials Development. 2025. Available online: https://www.csiro.au/en/research/production/materials/SustainableMaterials (accessed on 15 November 2025).
- National Research Council. Visionary Manufacturing Challenges for 2020; National Academy Press: Washington, DC, USA, 1998. [Google Scholar]
- CEM MICROFACTORY. Microfactory, Circular Economy Manufacturing. 2022. Available online: https://www.circulareconomymfg.com/microfactory (accessed on 14 March 2023).
- Jackson, M.; Zaman, A. Factory-In-a-Box- Mobile Production Capacity on Demand. Int. J. Mod. Eng. 2007, 8, 12–26. [Google Scholar]
- Barango, N. Transforming Shipping Containers into Ice Factories. Boxhub. 2022. Available online: https://boxhub.com/blog/relocalize-transforming-shipping-containers-into-ice-factories/ (accessed on 15 March 2023).
- Tsolakis, N.; Harrington, T.S.; Srai, J.S. Digital supply network design: A Circular Economy 4.0 decision-making system for real-world challenges. Prod. Plan. Control 2023, 34, 941–966. [Google Scholar] [CrossRef]
- Bridges, D.J.; Colborn, J.; Chan, A.S.T.; Winters, A.M.; Dengala, D.; Fornadel, C.M.; Kosloff, B. Modular Laboratories—Cost-effective and sustainable infrastructure for resource-limited settings. Am. J. Trop. Med. Hyg. 2014, 91, 1074–1078. [Google Scholar] [CrossRef] [PubMed]
- Sidenvall, V. Conceptual Design of AM Container for 3D-Printer Cloud Close to Customer Site. Master’s Thesis, Linköping University, Linköping, Sweden, 2016. [Google Scholar]
- re:3D. Gigabot and Terabot Dimensions. re:3d. 2023. Available online: https://re3d.zendesk.com/hc/en-us/articles/360053279091-Gigabot-and-Terabot-Dimensions (accessed on 6 May 2023).
- Lacey, A.W.; Chen, W.; Hao, H.; Bi, K. Structural response of modular buildings—An overview. J. Build. Eng. 2018, 16, 45–56. [Google Scholar] [CrossRef]
- Container Container. Shipping Container Dimensions. 2019. Available online: https://www.containercontainer.com/shipping-container-%20dimensions/ (accessed on 21 March 2023).
- Duncan, A. How Much Does a Shipping Container Cost? Canstar. 2023. Available online: https://www.canstar.com.au/home-loans/shipping-container-cost/ (accessed on 10 October 2023).
- Swinkin, H. Choose the Right Shipping Container. Boxhub. 2023. Available online: https://boxhub.com/blog/choosing-the-right-shipping-container/ (accessed on 15 March 2023).
- Cassa Mobile Project. Cassa Mobile. 2013. Available online: https://www.cassamobile.eu/ (accessed on 13 March 2023).
- Martinez-Garcia, M. Alternative Housing: The Shipping Container Home. White Paper, Center for Realtor Technology. 2014. Available online: https://www.scribd.com/document/317703923/shipping-container-homes-white-paper-2014-12-10-pdf (accessed on 25 March 2023).
- ContainerSpace. How to Fit an Access Door to Shipping Containers. 2019. Available online: https://www.containerspace.com.au/fitting-access-door-into-container/ (accessed on 25 March 2023).
- Giriunas, K.; Sezen, H.; Dupaix, R.B. Evaluation, modelling, and analysis of shipping container building structures. Eng. Struct. 2012, 43, 48–57. [Google Scholar] [CrossRef]
- Rose, G. How to Reinforce a Shipping Container Home: 5 Important Steps to Consider. Container Home Hub. 2023. Available online: https://containerhomehub.com/how-to-reinforce-a-shipping-container-home/ (accessed on 3 April 2023).
- Elrayies, G.M. Thermal Performance Assessment of Shipping Container Architecture in Hot and Humid Climates. Int. J. Adv. Sci. Eng. Inf. Technol. 2017, 7, 1114. [Google Scholar]
- Islam, H.; Zhang, G.; Setunge, S.; Bhuiyan, M.A. Life cycle assessment of shipping container home: A sustainable construction. Energy Build. 2016, 128, 673–685. [Google Scholar] [CrossRef]
- Carigliano, S. Benefits of Different Steel Sections. SkyCiv Cloud Structural Analysis Software. 2019. Available online: https://skyciv.com/technical/benefits-of-different-steel-sections/ (accessed on 14 May 2023).
- Andrews, K. 5-Minute Crash Course on Metal Framing. Steel Network. 2022. Available online: https://steelnetwork.com/5-minute-crash-course-on-metal-framing/ (accessed on 14 May 2023).
- Metframe Australia. Tiny House Steel Frame Kits. 2023. Available online: https://metframe.au/tiny-house-steel-frame-kits/ (accessed on 15 September 2023).
- Steel Frame Solutions. Tiny Home Plans. 2022. Available online: https://steelframesolutions.co.nz/tiny-homes/plans-designs/ (accessed on 15 September 2023).
- Steel.org.au. Light Gauge Steel Design Standard. 2023. Available online: https://www.steel.org.au/what-we-do/focus-areas/cold-formed-light-gauge-steel/standards-and-design/ (accessed on 14 May 2023).
- Mammadov, T. Feasibility Study of An Alternative Approach to Recycle Shipping Containers. Master’s Thesis, Illinois State University, Normal, IL, USA, 2015. Available online: https://ir.library.illinoisstate.edu/cgi/viewcontent.cgi?article=1432&context=etd (accessed on 25 March 2023).
- Reitz, L. Planning and Visualization of Energy-Efficient Container Buildings for Residential Purposes Under Three Climatic Conditions. Master’s Thesis, Dalarna University, Falun, Sweden, 2019. [Google Scholar]
- Cornell Engineers. Structural Engineers: Design Guides for Structural Engineers and Engineering Students. 2022. Available online: https://cornellengineers.com.au/design-guides/ (accessed on 20 March 2023).
- Garcia, P. AS/NZS 1170.2 Wind Load Calculation Example. SkyCiv. 2019. Available online: https://skyciv.com/docs/tech-notes/loading/asnzs-1170-2-wind-load-calculation-example/ (accessed on 3 May 2023).
- Song, P.P.; Qi, Y.M.; Cai, D.C. Research and application of Autodesk Fusion 360 in Industrial Design. IOP Conf. Ser. Mater. Sci. Eng. 2018, 359, 012037. [Google Scholar] [CrossRef]
- Fusion 360. AutoDesk. 2023. Available online: https://www.autodesk.com.au/products/fusion-360/overview (accessed on 18 March 2023).
- Palliaguru, N. Alternative Structural Design Strategies for Bridge Decks in Low Traffic Volume Roads. Doctoral Dissertation, Queensland University of Technology, Brisbane, Australia, 2013. [Google Scholar]
- Space GASS. World Class Structural Engineering Software. 2023. Available online: https://www.spacegass.com/ (accessed on 18 March 2023).
- Wermac. Steel Pipe Dimensions and Weights. 2023. Available online: https://www.wermac.org/pipes/submenu_pipes.html (accessed on 15 May 2023).
- Lysaght. SPANDEK®, Lysaght Professionals. 2023. Available online: https://professionals.lysaght.com/products/spandek (accessed on 10 October 2023).
- Trademaster. Marine Plywood 18 mm × 2400 × 1200. 2023. Available online: https://trademaster.au/products/marine-plywood-2400x1200x18mm (accessed on 10 October 2023).
- Roofing Supermarket. Steel Roofing Materials Supplies in Sydney. 2023. Available online: https://www.roofingsupermarket.com.au (accessed on 10 October 2023).
- Lump Sculpture Studio. Weathering Steel—Square Hollow Section. 2023. Available online: https://www.lump.com.au/residential/corten-square-hollow-section/ (accessed on 10 October 2023).
- Ingenious Outdoor Storage Inc. Container Modifications—Basic Price List for Guidance. 2023. Available online: https://shop.ingeniousstorage.com/pages/container-modifications-basic-price-list-for-guidance (accessed on 11 October 2023).
- Godshall, W.D. Frequency Response, Damping, and Transmissibility Characteristics of Top-Loaded Corrugated Containers; US Department of Agriculture, Forest Service, Forest Products Laboratory: Madison, WI, USA, 1917; Volume 160. [Google Scholar]
- Kempton, L.; Ahmed, A. Energy Analysis and Lifecycle Impact of a Net Zero Shipping Container Based Micro-Factory Facility. Sustain. Cities Soc. Adv. 2025, 2, 100021. [Google Scholar] [CrossRef]
- NS200; Standard for Residential and Low-Rise Steel Framing, Part 2: Design Solutions. National Association of Steel Housing: Hartwell, Australia, 2020.
- Kumar, K.S.K.; Stathopoulos, T. Wind loads on low building roofs: A stochastic perspective. J. Struct. Eng. 2000, 126, 944–953. [Google Scholar] [CrossRef]
- Rizzo, F.; Barbato, M.; Sepe, V. Shape dependence of wind pressure peak factor statistics in hyperbolic paraboloid roofs. J. Build. Eng. 2021, 44, 103203. [Google Scholar] [CrossRef]
- Yang, L.; Gurley, K.R.; Prevatt, D.O. Probabilistic modeling of wind pressure on low-rise buildings. J. Wind. Eng. Ind. Aerodyn. 2013, 114, 64–78. [Google Scholar] [CrossRef]
- Peng, X.; Yang, L.; Gavanski, E.; Gurley, K.; Prevatt, D. A comparison of methods to estimate peak wind loads on buildings. J. Wind. Eng. Ind. Aerodyn. 2014, 125, 39–52. [Google Scholar] [CrossRef]
- American Society of Civil Engineers. Minimum Design Loads and Associated Criteria for Buildings and Other Structures; American Society of Civil Engineers: Reston, VA, USA, 2017. [Google Scholar]












| Surface | Critical Load Combination | Load (Pa) | Direction |
|---|---|---|---|
| Floor | 1.2G + 1.5Q | 10,560 | Downward (-Y) |
| Roof | 1.5Q | 2250 | Downward (-Y) |
| Windward Wall | Wu | 668 | Towards Surface |
| Leeward Wall | Wu | 334 | Away from Surface |
| Sidewall (<2.59 m from edge) | Wu | 434 | Away from Surface |
| Performance Metric | ISO Shipping Container (ISCC) | Cold-Formed Steel (CFS) Modular | Suitability for Micro-Factory |
|---|---|---|---|
| Structural Modification | Low. Costly, labor-intensive retrofitting required to overcome inherent flaws. | High. Design is inherently flexible; openings and reinforcements are integrated. | CFS allows for optimal layout and avoids the “modification penalty.” |
| Dynamic Stability | Poor. Highly prone to resonant vibration amplification (up to 6.7×), posing severe risk to equipment. | Excellent. Allows for structural decoupling and dampening to be engineered from the outset. | CFS is critical for equipment longevity and operational reliability. |
| Thermal Performance | Constrained. Requires expensive, volume-reducing insulation, leading to higher lifecycle energy costs. | Superior. Deep wall cavities accommodate optimal insulation without sacrificing internal volume. | CFS provides lower long-term energy costs and maximizes operational space. |
| Regulatory Compliance | Complex. CSC certification is voided by modification, requiring costly re-inspections for legal transport. | Simple. Designed as a custom unit, bypassing the complex CSC framework. | CFS is structurally and legally cleaner for a highly modified mobile unit. |
| Comparative Material & Fabrication Cost (CapEx) | Deceptively High. Low initial cost is offset by high modification, mitigation, energy, and regulatory costs. | Lower TCO. Higher initial cost is balanced by superior operational efficiency and avoidance of hidden lifecycle costs. | CFS offers a stronger long-term return on investment. |
Disclaimer/Publisher’s Note: The statements, opinions and data contained in all publications are solely those of the individual author(s) and contributor(s) and not of MDPI and/or the editor(s). MDPI and/or the editor(s) disclaim responsibility for any injury to people or property resulting from any ideas, methods, instructions or products referred to in the content. |
© 2026 by the authors. Licensee MDPI, Basel, Switzerland. This article is an open access article distributed under the terms and conditions of the Creative Commons Attribution (CC BY) license.
Share and Cite
Cunzolo, M.N.; Ahmed, A. Structural Feasibility and Compliance Assessment of Container vs. Cold-Formed Steel for a Sustainable 3D Printing Micro-Factory. Designs 2026, 10, 7. https://doi.org/10.3390/designs10010007
Cunzolo MN, Ahmed A. Structural Feasibility and Compliance Assessment of Container vs. Cold-Formed Steel for a Sustainable 3D Printing Micro-Factory. Designs. 2026; 10(1):7. https://doi.org/10.3390/designs10010007
Chicago/Turabian StyleCunzolo, Michael Natale, and Aziz Ahmed. 2026. "Structural Feasibility and Compliance Assessment of Container vs. Cold-Formed Steel for a Sustainable 3D Printing Micro-Factory" Designs 10, no. 1: 7. https://doi.org/10.3390/designs10010007
APA StyleCunzolo, M. N., & Ahmed, A. (2026). Structural Feasibility and Compliance Assessment of Container vs. Cold-Formed Steel for a Sustainable 3D Printing Micro-Factory. Designs, 10(1), 7. https://doi.org/10.3390/designs10010007

