Abstract
The growing adoption of wind energy has resulted in an increasing number of decommissioned wind turbine blades, which pose significant disposal challenges due to their size, material composition, and environmental impact. Recycling these blades has thus become essential. To this aim, this study explores the potential of using recycled wind turbine blades in post-disaster housing applications and examines the feasibility of re-purposing these durable composite materials to create robust, cost-effective, and sustainable building solutions for emergency housing. A case study of a post-earthquake relief camp in Hatay, Türkiye, affected by the 2023 earthquake, is used for analysis. First, the energy consumption of thirty traditional modular container-based post-disaster housing units is simulated with a dynamic building simulation tool. Then, the study introduces novel wind turbine blade-based housing (WTB-bH) designs developed using the same simulation tool. The energy consumption of these (WTB-bH) units is compared to that of traditional containers. The results indicate that using recycled wind turbine blades for housing not only contributes to waste reduction but also achieves 27.3% energy savings compared to conventional methods. The novelty of this study is in demonstrating the potential of recycled wind turbine blades to offer durable and resilient housing solutions in post-disaster situations and to advocate for integrating this recycling method into disaster recovery frameworks, highlighting its ability to enhance sustainability and resource efficiency in construction. Overall, the output of this study may help to present a compelling case for the innovative reuse of decommissioned wind turbine blades, providing an eco-friendly alternative to traditional waste disposal methods while addressing critical needs in post-disaster scenarios.
1. Introduction
The February 2023 earthquakes in Türkiye were among the most devastating natural disasters in recent history, leading to widespread destruction and a significant loss of life [1]. The earthquakes, which struck southern and central Türkiye, resulted in the collapse of over 500,000 buildings and displaced approximately 3.3 million people across the region. As a result, temporary housing solutions became an immediate priority for the affected population [2].
In response to the urgent need for shelter, temporary container housing emerged as a vital solution, providing quick and flexible shelter options for those displaced by the disaster [3]. These container houses were rapidly deployed and assembled in the affected areas, offering robust structures that could withstand aftershocks and other environmental stresses [4]. The adaptability of these containers also allowed for various uses, including residential units, medical facilities, and support centers, helping to stabilize the affected communities [5].
For instance, in Hatay, one of the hardest-hit regions, more than 75,000 buildings were destroyed, forcing tens of thousands of people to relocate to container homes. These temporary shelters not only provided essential housing but also supported the ongoing provision of health services and other critical needs for the displaced population [6]. Large container relief camps like these have become a common sight in the disaster-stricken areas, symbolizing both the scale of the disaster and the resilience of the affected communities.
The swift deployment and effectiveness of container housing in Türkiye highlight the importance of having adaptable and sustainable emergency housing solutions in place, particularly in disaster-prone regions [7]. This case underscores the need for integrating such solutions into disaster recovery frameworks to ensure that affected populations receive the necessary support in the aftermath of catastrophic events [8].
On the other hand, the increasing adoption of wind energy worldwide has led to a significant environmental challenge: the disposal of decommissioned wind turbine blades. These blades, made primarily of composite materials like fiberglass and epoxy resin, are engineered for durability but present considerable disposal difficulties due to their size and non-biodegradable nature. The accumulation of these blades in landfills poses a long-term environmental threat, necessitating the exploration of innovative recycling and repurposing strategies [9,10]. Therefore, this study explores the potential of utilizing recycled wind turbine blades in constructing post-disaster housing. This approach not only addresses the disposal issue but also contributes to sustainable development by providing resilient, cost-effective, and environmentally friendly housing solutions in disaster-stricken regions. The recent earthquake in Hatay, Türkiye, serves as a critical case study, illustrating the feasibility and benefits of using wind turbine blade-based housing (WTB-bH) compared to traditional modular container housing [11,12,13]. The devastating earthquake in Hatay, Türkiye, in 2023 highlights the critical need for sustainable and resilient housing solutions in disaster-affected regions.
Recent research has focused on sustainable strategies for managing wind turbine blades at the end of their life, exploring recycling, repurposing, and lifespan extension, along with the associated challenges and opportunities, as shown in Figure 1. Bank et al. [14] explored the reuse of composite materials from decommissioned wind turbine blades in affordable housing. This study demonstrates the potential for these materials to create durable and sustainable housing, particularly in areas prone to environmental hazards, and shows that repurposing wind turbine blades can reduce construction costs and environmental impact.
Figure 1.
Some examples of decommissioned wind turbine blades (a) broken wind turbine blades (b) transportation of broken blades (the photo was taken by the authors with permission).
Delaney et al. [15] investigated the repurposing of wind turbine blades at their end-of-life (EOL) stage using a GIS-based approach. They estimated that by 2040, around 53,000 tonnes of blade material will require management in Ireland, with the highest concentrations in the west and southwest. The study highlighted the need for advanced planning and the potential benefits of repurposing within a circular economy.
Several studies have focused on recycling methods and the challenges associated with wind turbine blades. Hu et al. [16] emphasized mechanical recycling as the most efficient method and proposed a hierarchical approach to maximize material reuse, particularly for carbon fiber composites. Similarly, Khalid et al. [17] discussed modern recycling technologies and the transition to zero waste, advocating for a collaborative effort to achieve 100% recyclability.
Oliveira et al. [18] explored the incorporation of wind turbine blade waste into cement-based mortars, finding that replacing up to 15% of sand with this waste produced mortars with satisfactory mechanical properties, suitable for civil construction, while also reducing environmental impact. Zhang et al. [19] also examined the recycling of EoL wind turbine blades for use in civil engineering, proposing their use as fillers, concrete reinforcement, and supplementary cementitious materials, though they noted challenges such as technical complexity and high costs.
Jensen and Skelton [20], along with Tyurkay et al. [21], addressed the broader challenges and opportunities in recycling wind turbine blades within a circular economy framework. They both highlighted the need for industry-wide collaboration and innovation in recycling technologies to enhance sustainability, manage increasing WTB waste, and overcome technical complexities and high costs.
Dorigato [22] focused on the specific challenges of recycling thermosetting composites used in wind turbine blades due to their complex composition. He also explored innovative solutions to improve the recyclability of future composites. Gentry et al. [23] and André et al. [24] further explored the adaptive reuse of wind turbine blades, with Gentry focusing on their application in civil infrastructure and André on conceptual designs for pedestrian bridges, both emphasizing the structural challenges and the potential for sustainable construction solutions.
In a global context, Martini and Xydis [25] examined the options for repurposing and recycling wind turbine blades, emphasizing the development of cost-effective methods considering the expected 2.4 million metric tons of blade waste by 2050.
Leahy [26] and Mishnaevsky [27] both explored end-of-life options for wind turbine blades, with Leahy emphasizing repurposing as the most sustainable approach within a circular economy framework, while Mishnaevsky focused on the maintenance, reuse, and development of recyclable materials, highlighting emerging solutions like thermoplastic composites and bio-based materials for future turbines.
According to the author’s knowledge, there is no study on the usage of decommissioned wind turbine blades on post-disaster housing problems. Therefore, the aims of this study were as follows:
- Recycling the decommissioned wind turbine blades: Recycling wind turbine blades presents several challenges and complexities such as difficulties in recycling fiber-reinforced composites due to their complex composition. Moreover, recycling wind turbine blades involves technical and economic difficulties. Therefore, the aim of this study was to address these issues in line with sustainable energy production and environmental protection goals.
- Building resilient and economical post-disaster houses: Due to the high strength and light weight of the wind turbine blades, durable and cost-effective post-disaster housing strategies can be developed. Therefore, this study also aimed to build resilient and cost-effective post disaster housing applications. Besides the post-earthquake housing example in this study, these houses are also vulnerable to severe hurricanes and flooding.
- Decreasing energy consumption: Building relief camps from wind turbine blades can save energy since the wind turbine blades are made from durable, lightweight composite materials, and these materials provide extra insulation to the houses. Therefore, the aim of this study was to evaluate the energy saving potential of houses that are fully made from decommissioned wind turbine blades.
2. Materials and Methods
The method of study consisted of three parts. The first one was choosing the case zone, while the second one was the energy analysis of the container relief camp (baseline model). The last part of the method was changing the baseline model with wind turbine blade-based housing (WTB-bH).
2.1. Case Zone: Hatay Relief Camp
Hatay is situated in the southeastern part of Türkiye, bordered by Syria to the south with a coordinate of latitude 36° N, longitude 36° E, as shown in Figure 2. The province is in the Csa zone according to the Köppen–Geiger Climate Zone Classification [28]. The annual average temperature is around 21 °C, which is 6% higher than Türkiye’s average [29]. As of 2023, the population of Hatay is approximately 2.3 million; therefore, Hatay is one of the most populous provinces in Türkiye.
Figure 2.
The location of Hatay/Türkiye (the heart is for those who have lost their lives and loved ones in the Hatay earthquakes).
The population of Hatay reflects a diverse ethnic and cultural makeup, including a majority of Turks, as well as a significant Arab community. Additionally, there are various Christian and other religious groups present in the region. On the other hand, Hatay has a Mediterranean climate, with hot, dry summers and mild, wet winters, which contributes to its rich agriculture. However, the province was highly affected by two big earthquakes with a magnitude of 7.1 and 7.2 in 2023. As of 2024, there are 17 container cities in Hatay. Approximately 100,000 people live in these container cities. To this aim, a relief camp with 100 housing containers in Hatay was selected as a case study in this study. However, due to the long duration of the simulations, only 30 containers were selected as a case zone in this study. The selected relief camp was constructed in 2023 after the big earthquakes, as shown in Figure 3. According to the author’s knowledge, approximately 400 earthquake victims are staying in this relief camp.
Figure 3.
The selected post-earthquake container city: (a) a typical container home, (b) an earthquake relief camp.
2.2. Energy Analysis of the Camp
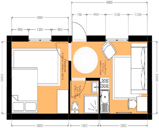
The architectural drawings of the containers were taken from the container manufacturers, who sent these containers to the relief camp. Then, a replica of the architectural drawings was drawn in an architectural drawing tool to integrate it into the Dynamic Building Energy Simulation Tool, as shown in Figure 4. A traditional container has dimensions of 7 m × 3 m with a height of 2.5 m. There are no green areas around the containers. The energy model of the camp was developed in DesignBuilder, as shown in Figure 5 [30]. DesignBuilder is a comprehensive software tool used for building performance simulation and energy analysis; therefore, the authors selected to use this tool. First, a traditional container was designed in the tool, and then 30 traditional houses with the same architectural configuration were simulated. The traditional container, which has a bathroom, bedroom, and living room, is called the “baseline model” in this study.
Figure 4.
Architectural drawing of a typical container for selected earthquake relief camp (developed by the authors).
Figure 5.
The baseline model for traditional container.
Material properties are important for calculating heat transfer between the two different zones. The U values of the components of the case house are shown in Table 1. The container houses are constructed from custom-shaped sandwich panels with EPS filling, and the exterior surface coatings are RAL 9002 electrostatically painted sheet metal. The same configuration is used for the roof and ground; however, the insulation thicknesses are different. For the walls, 50 mm thick, 12 kg/m3 polystyrene foam (EPS) is used, while 125 mm thick, 16 kg/m3 EPS was selected for the roof. The windows and doors of the traditional container house are made from PVC material. A PVC window with dimensions of 890 × 1135 mm was installed in the simulation tool for this study. The windows are a single sash that opens 90 degrees. The door frame is made of 1.2 mm thick painted sheet metal, and the door body is made of 0.5 mm thick painted sheet metal. It is a metal door with a sealing gasket.
Table 1.
Thermal and material properties of traditional container house components.
The heating and cooling system of the containers was a 12,000 Btu air conditioner. A TV, a refrigerator, kitchen equipment, a water heater, a vacuum cleaner, and an iron were also available in the containers. Therefore, this information was also integrated into the model as a power density of 375.24 W/m2. The occupancy density was calculated to be 0.19 people/m2. An activity list that included the occupancy time, operation time of the equipment, lighting, and opening time of the windows and doors was prepared to develop a correct time schedule for the energy simulation. The lighting power density was obtained to be 5.14 W/m2. Air infiltration was assumed to be 0.3 1/h. Finally, it is worth noting that the baseline model was calibrated with real measurements using HOBO sensors for one year [31].
The relief camp included 100 containers; however, only 30 containers were integrated into the BES tool. Therefore, to show the potential energy savings, 30 containers were selected for an example, as shown in Figure 6.
Figure 6.
The location of the selected containers in the post-earthquake relief camp (developed by the authors, the red box shows selected housings).
2.3. Wind Turbine Blade-Based Housing (WTB-bH)
For post-disaster housing examples, the most popular wind turbine type in Türkiye, with code E-44-900, was used for this study. The two reasons for selecting this type of wind turbine blades are the following: (a) being easily available and widely used in Türkiye and (b) providing ease of transportation, disassembly, and assembly compared to other large-scale turbines. The features of the selected wind turbine are given in Table 2.
Table 2.
Datasheet of E-44-900-type wind turbine used in this study.
The blades were 22 m long and were used for a 0.9 MW turbine. The maximum chord of the blade was 3.3 m. An example of a 22 m wind turbine blade is shown in Figure 7. Since the WTB-bH is intended to be constructed with the same architectural configuration as the traditional containers, the blades were cut and shred into smaller parts. It is worth noting that the authors firstly extracted the cylindrical root section of the blade for construction.
Figure 7.
E44-900-type wind turbine blade used in this study (the photos were taken by the authors with permission).
The E44-900 includes composite materials, including gelcoat, resin, and fiberglass. In this study, the thermal conductivity of the composite material was calculated to be 0.04 W/mK at room temperature (300 K) according to the literature [32]. In addition, an airgap (varying according to the shape from 0.13 m to 0.22 m) was used between the blade plates in the walls and roofs. For the energy analysis, the average thickness of the air gap (0.8 m) was taken due to the limitation of the BES tool.
The layers of the wall, ceiling, and roof are shown in Table 3. The authors preferred to use 18 cm of thickness of the blade for all the layers. It is worth noting that the wind turbine blades were made from a composite material mixture (Glass Fiber-Reinforced Plastic (GFK in German)), including gelcoat, resin, and fiberglass; therefore, the same thermo-physical configuration was included in the simulations. The windows and doors were also constructed from the decommissioned wind turbine blades, and the configuration of these frames were taken from the reference of [14]. For details, researchers may refer to [14]. The U values of the door (Clear Low-E with SDLs) and windows were calculated to be 0.26 W/m2K and 0.3 W/m2K, respectively.
Table 3.
Thermal and structural properties of WTB-bH.
Figure 8 depicts the CAD modeling and used zones of the E44-900 blade. The length of the blade was 22 m, and the largest distance of the width was 3.3 m long. Therefore, cut zone A was used for the walls of the WTB-bH, while zone B was for the roof and ground constructions. The edge of the blade was used for window frames and the door. One can note that wind turbine blades are typically large and complex structures, therefore making it challenging and generally inadvisable to cut and reattach the blade sections. However, in specific situations such as in this study or for particular applications, cutting procedures are considered. For cutting and bonding, the following procedures were applied for this study:
Figure 8.
CAD modeling of the E44-900 blade and its used zones: cut zones A, B, and C are for the walls, roof and ground, and door and window frames, respectively (all units are in cm).
- Safety process: The decommissioned blade was taken from the area via crane. The area around the blade was secured to prevent unauthorized access.
- Preparation process: The engineers evaluated the blade’s material composition (usually composite materials like fiberglass or carbon fiber, like in this study) and determined the best cutting approach. Additionally, the engineers developed a detailed cutting plan that specifies the cutting locations and the sequence of cuts.
- Cutting process: Engineers used diamond-coated blades for cutting, which were effective at cutting through fiberglass and carbon fiber without causing excessive heat or damage. At the same time, water jet cutters were used with high-pressure water jets.
- Handling process: After cutting, engineers carefully removed and transported the blade sections. These sections are often large and heavy, requiring cranes or other heavy machinery for safe handling.
- Bonding the cut sections: Engineers carefully aligned the two blade sections to ensure they matched perfectly. They used a high-strength adhesive, such as epoxy resins, that is compatible with the blade’s composite materials.
A BES model of the developed WTB-bH is shown in Figure 9, while the model of the selected 30 houses is depicted in Figure 10. For the inside of the roof, two shear webs were used to provide structural support and stability to a beam or wing by carrying shear forces. For the 3D model, environmental structures were also developed in DesignBuilder. Therefore, the shading effect of other WTB-bHs was also dynamically considered to provide more accurate results. The schedule of occupancy and openings were taken to be the same as for the baseline model.
Figure 9.
The developed WTB-bH in this study (developed by the authors).
Figure 10.
A BES model of the Hatay earthquake relief camp constructed with the WTB-bH (developed by the authors).
2.4. Economic Analysis of WTB-bH
In this study, although not the main objective, the cost of the WTB-bH to be constructed for a 100-container post-earthquake camp site was calculated to provide some insights and compared with the cost of a typical container house. However, the calculation of pay-back periods is not one of the objectives of this study. For the calculation of the costs, the following were considered:
- Project management costs;
- Labor costs;
- Cost of disassembly and reassembly for house construction;
- Cost of adhesive materials;
- Cost of cutting the blades;
- Transportation costs;
- VAT.
Finally, it is worth noting that all prices were taken from the wind turbine companies and government by conducting face-to-face interviews, and a cost analysis was performed for a post-disaster relief camp with 100 houses.
3. Results and Discussion
3.1. Comparison of Energy Consumptions
Before the simulation, the BES model was validated with real measurements according to the ASHRAE 14 Guideline [33]. In ASHRAE Guideline 14, the upper limits for MBE and CV (RMSE) in an hourly calibration process are defined as ±10% and 30%, respectively. The results depict that all MBE and CV (RMSE) values were within the limits with values of 7.61 and 12.87, respectively. Then, the energy consumption of both housing cases was simulated in DesignBuilder. The results show that constructing a post-disaster relief camp with WTB-bH decreases energy consumption by 27.3% compared to traditional container houses (Table 4). This significant reduction in energy consumption can be attributed to the unique thermal properties of the wind turbine blade material, which offers better insulation and air tightness compared to conventional container houses. The aerodynamic design of WTBs, initially crafted to withstand extreme weather conditions, also enhances the structural integrity of these homes, minimizing heat loss during colder months and reducing the need for artificial cooling in warmer climates.
Table 4.
Comparison of energy consumption for 30 houses.
Furthermore, the WTB-bH not only lowers energy demands but also contributes to sustainability efforts by repurposing waste materials that would otherwise be disposed of in landfills. This eco-friendly solution reduces the carbon footprint of both the construction process and the long-term energy consumption of the settlement. In post-disaster scenarios where energy infrastructure may be compromised, such energy-efficient structures provide a crucial advantage, enabling relief camps to function more autonomously with renewable energy sources like solar or small-scale wind turbines. Hence, the energy consumption of such camps can be further reduced by utilizing renewable energy, such as small wind turbine installations and solar panel setups, due to the suitability of their roofs.
3.2. Comparison of the Cost
Even though there is no cost for the container house and the wind turbine blades are provided for free, the cost increases by 20% in the case of establishing a post-disaster relief camp with the WTB-bH (Table 5). The cost of constructing a post-disaster relief camp for 100 WTB-bH was calculated to be USD 444,318. The 20% cost increase may be attributed to several factors associated with the adaptation and customization required to repurpose wind turbine blades (WTBs) for housing. The process of converting these blades into livable structures often involves specialized labor and equipment to modify their size, shape, and function, which adds to the overall construction costs.
Table 5.
Economic analysis results.
Additionally, while the materials themselves may be free, other costs such as transportation, installation, and the integration of necessary utilities (plumbing, electricity, and insulation) contribute to the 20% rise in expenses. Despite these upfront costs, the long-term energy savings due to the 27.3% reduction in energy consumption make WTB-bH homes a highly efficient and sustainable investment. Over time, the energy savings will offset the initial higher costs, providing an economically viable solution for long-term use in disaster relief and temporary housing situations.
Moreover, the potential for further reducing energy consumption by incorporating renewable energy technologies like small wind turbines and solar panels enhances the cost-effectiveness of these structures. The unique aerodynamic design and strength of wind turbine blades allow for the easy installation of such technologies, enabling these homes to operate independently of traditional energy grids, especially in disaster-prone or off-grid areas. This ability to harness renewable energy sources makes WTB-bH not only environmentally friendly but also a resilient choice in regions where infrastructure has been compromised.
Finally, while the initial costs of establishing WTB-bH camps may be higher compared to traditional container homes, their long-term benefits in terms of energy efficiency, sustainability, and disaster resilience make them a worthwhile investment.
The use of wind turbine blade-based homes (WTB-bH) offers several distinct advantages and disadvantages. On the positive side, WTB-bH structures are highly energy-efficient, reducing energy consumption by 27.3% compared to traditional container homes due to the superior insulation properties of wind turbine blades. They also promote sustainability by repurposing waste materials that would otherwise end up in landfills. Additionally, their design allows for the easy integration of renewable energy sources like solar panels and small wind turbines, enhancing energy independence in post-disaster or off-grid scenarios. However, there are notable disadvantages. Despite the free availability of materials, the overall cost of establishing WTB-bH camps can be 20% higher due to the need for specialized labor, equipment, and the adaptation of turbine blades for housing. Moreover, the transportation and installation of these large structures may pose logistical challenges, especially in remote or disaster-affected areas. Overall, WTB-bH presents a promising, though initially costlier, solution with long-term sustainability benefits.
The Computational Fluid Dynamics (CFD) analysis conducted on the wind turbine blade-based housing (WTB-bH) design provides a detailed examination of the distribution of dynamic pressure, temperature, and velocity magnitude, along with the flow streamlines surrounding the structure. As shown in Figure 11, airflow velocities range from 0 to 0.17 m/s, with a temperature distribution between 15.91 °C and 20.91 °C, and a pressure gradient varying between −0.01 and 0.02 Pa. These parameters were modeled to reflect the environmental conditions typically observed in regions like Hatay, Türkiye. The simulation results demonstrate distinct airflow patterns, with higher velocities indicating areas of increased ventilation and significant heat exchange, while zones with lower velocities experience restricted air movement, which contributes to thermal inefficiencies.
Figure 11.
Airflow and temperature distribution in wind turbine blade-based housing (WTB-bH).
The temperature distribution remains relatively consistent, with slight variations corresponding to the airflow dynamics. Areas with higher airflow exhibit more pronounced heat transfer, directly impacting the overall energy performance of the building. The pressure distribution further reveals interactions between airflow and structural elements, with turbulence or stagnation occurring in proximity to architectural obstacles. These findings suggest that targeted improvements in airflow management are necessary to optimize both energy efficiency and thermal comfort in WTB-bH structures, particularly in post-disaster housing contexts.
Beyond post-disaster relief, wind turbine blade-based housing (WTB-bH) has potential for broader applications in sustainable and off-grid housing solutions. The durable, lightweight, and thermally insulating properties of decommissioned wind turbine blades make them a viable alternative for remote areas, eco-friendly housing projects, and low-cost sustainable developments. In integrating this approach into circular economy frameworks, WTB-bH could contribute to reducing construction waste and addressing housing shortages in various regions. Future studies should explore the feasibility of expanding this concept for long-term, sustainable housing applications beyond emergency response scenarios.
4. Conclusions
This study designed a post-disaster relief camp with decommissioned wind turbine blades. Wind turbine blade-based homes (WTB-bH) presents a sustainable and energy-efficient alternative for post-disaster relief housing, offering a 27.3% reduction in energy consumption compared to traditional container homes. Although the initial costs of establishing such camps are 20% higher due to specialized labor and logistical challenges, these structures provide long-term benefits, including superior insulation and the ability to integrate renewable energy systems like solar panels and small wind turbines. By repurposing waste materials and reducing reliance on traditional energy grids, WTB-bH represents a forward-thinking solution for sustainable, resilient housing in disaster-prone and off-grid areas. Despite the upfront cost increase, the energy savings and environmental advantages make WTB-bH a valuable investment for the future.
Future studies should focus on the actual energy consumption values of these kinds of camps. Additionally, future studies should focus on optimizing the design and construction processes of wind turbine blade-based homes (WTB-bH) to further reduce costs and improve scalability. Research into more efficient methods for cutting, transporting, and adapting wind turbine blades for housing purposes could significantly lower the 20% cost increase currently associated with these structures. Moreover, exploring modular designs that make use of smaller, easily transportable blade segments could streamline the construction process, especially in disaster zones with limited infrastructure.
Further investigation into the integration of renewable energy technologies, such as solar panels and wind turbines, directly into the design of WTB-bH is another important area for future development. These technologies could be standardized for use with these structures, allowing for energy self-sufficiency in off-grid locations. Moreover, long-term studies on the durability and maintenance of WTB-bH in various climates and environments will be essential to ensure its viability as a sustainable housing solution.
Finally, exploring community acceptance and social factors related to WTB-bH deployment can help tailor designs to meet the cultural and practical needs of different regions. By addressing these key areas, future work can enhance the practicality, cost-efficiency, and sustainability of wind turbine blade-based housing solutions.
Author Contributions
Conceptualization, C.T. and M.D.; methodology, C.T.; software, C.T. and Y.A.S.S.; validation, C.T., M.D. and A.K.; formal analysis, Y.A.S.S.; investigation, C.T. and A.K.; resources, A.K.; data curation, C.T.; writing—original draft preparation, C.T. and Y.A.S.S.; writing—review and editing, C.T.; supervision, C.T. All authors have read and agreed to the published version of the manuscript.
Funding
This research received no external funding.
Data Availability Statement
The data presented in this study are available on request from the corresponding author. (The data are not publicly available due to privacy or ethical restrictions.)
Conflicts of Interest
The authors declare no conflicts of interest.
References
- Şevketoğlu, E. Management of pediatric emergencies during natural disasters: The 2023 earthquake in Turkey. Glob. Pediatr. 2024, 7, 100143. [Google Scholar] [CrossRef]
- Shinde, R.; Miyamoto, K.; Gilani, A. Field survey of buildings after Mw = 7.8 Turkey earthquake: Observations and remedial measures. In Proceedings of the World Conference on Earthquake Engineering (WCEE2024), Milan, Italy, 30 June–5 July 2024; Available online: https://www.researchgate.net/publication/381917764 (accessed on 24 January 2025).
- Çınaroğlu, M. Trauma, addiction, and the path to recovery after the Kahramanmaraş earthquakes. İstanbul Nişantaşı Üniversitesi Sosyal Bilimler Dergisi 2024, 12, 37–59. [Google Scholar] [CrossRef]
- Mavroulis, S.; Mavrouli, M.; Vassilakis, E.; Argyropoulos, I.; Carydis, P.; Lekkas, E. Debris management in Turkey provinces affected by the 6 February 2023 earthquakes: Challenges during recovery and potential health and environmental risks. Appl. Sci. 2023, 13, 8823. [Google Scholar] [CrossRef]
- Bilir, E.E.; Borman, P.; Ata, A.M.; Alemdaroğlu, E.; Bodur, H.; Yanık, B.; Yurdakul, F.; Kesikburun, B.; Güler, T.; Başkan, B.; et al. Clinical properties and rehabilitation needs of earthquake survivors in a subacute rehabilitation setting. Ulus. Travma Acil Cerrahi Derg. 2024, 30, 297–304. [Google Scholar] [CrossRef]
- Dinçer, A.E.; Dincer, N.N.; Tekin-Koru, A.; Yaşar, B.; Yılmaz, Z. The impact of Kahramanmaraş (2023) earthquakes: A comparative case study for Adıyaman and Malatya. Int. J. Disaster Risk Reduct. 2024, 110, 104647. [Google Scholar] [CrossRef]
- Ersoy, S. Evaluation of seismic behavior of the cultural heritage buildings in an ancient district of Antakya after the Kahramanmaraş earthquakes (Mw 7.7 and Mw 7.6). J. Build. Pathol. Rehabil. 2024, 9, 00392. [Google Scholar] [CrossRef]
- Balikuddembe, J.K.; Reinhardt, J.D.; Vahid, G.; Di, B. A scoping review of post-earthquake healthcare for vulnerable groups of the 2023 Turkey-Syria earthquakes. BMC Public Health 2024, 24, 945. [Google Scholar] [CrossRef]
- Ostachowicz, W.; McGugan, M.; Schröder-Hinrichs, J.-U.; Luczak, M. (Eds.) MARE-WINT: New Materials and Reliability in Offshore Wind Turbine Technology; Springer: Cham, Switzerland, 2016. [Google Scholar] [CrossRef]
- Liu, P.; Barlow, C.Y. Wind turbine blade waste in 2050. Waste Manag. 2017, 62, 229–240. [Google Scholar] [CrossRef]
- Nagle, A.J. Sustainability Assessment of the Repurposing of Wind Turbine Blades. Doctoral Thesis, University College Cork, Cork, Ireland, 2022. Available online: https://hdl.handle.net/10468/14976 (accessed on 20 January 2024).
- Saleh, Y.A.S.; Akkurt, G.G.; Turhan, C. Reconstructing energy-efficient buildings after a major earthquake in Hatay, Türkiye. Buildings 2024, 14, 2043. [Google Scholar] [CrossRef]
- Hasheminezhad, A.; Nazari, Z.; Yang, B.; Ceylan, H.; Kim, S. A comprehensive review of sustainable solutions for reusing wind turbine blade waste materials. J. Environ. Manag. 2024, 366, 121735. [Google Scholar] [CrossRef]
- Bank, L.C.; Arias, F.R.; Yazdanbakhsh, A.; Gentry, T.R.; Al-Haddad, T.; Chen, J.-F.; Morrow, R. Concepts for reusing composite materials from decommissioned wind turbine blades in affordable housing. Recycling 2018, 3, 3. [Google Scholar] [CrossRef]
- Delaney, E.L.; McKinley, J.M.; Megarry, W.; Graham, C.; Leahy, P.G.; Bank, L.C.; Gentry, R. An integrated geo-spatial approach for repurposing wind turbine blades. Resour. Conserv. Recycl. 2021, 170, 105601. [Google Scholar] [CrossRef]
- Hu, Y.; Zhang, Y.; Li, Y.; Wang, Y.; Li, G.; Liu, X. Wind turbine blade recycling: A review of the recovery and high-value utilization of decommissioned wind turbine blades. Resour. Conserv. Recycl. 2024, 210, 107813. [Google Scholar] [CrossRef]
- Khalid, M.Y.; Arif, Z.U.; Hossain, M.; Umer, R. Recycling of wind turbine blades through modern recycling technologies: A road to zero waste. Renew. Energy Focus 2023, 44, 373–389. [Google Scholar] [CrossRef]
- Oliveira, P.S.; Antunes, M.L.P.; da Cruz, N.C.; Rangel, E.C.; de Azevedo, A.R.G.; Durrant, S.F. Use of waste collected from wind turbine blade production as an eco-friendly ingredient in mortars for civil construction. J. Clean. Prod. 2020, 274, 122948. [Google Scholar] [CrossRef]
- Zhang, W.; Yu, H.; Yin, B.; Akbar, A.; Liew, K.M. Sustainable transformation of end-of-life wind turbine blades: Advancing clean energy solutions in civil engineering through recycling and upcycling. J. Clean. Prod. 2023, 426, 139184. [Google Scholar] [CrossRef]
- Jensen, J.P.; Skelton, K. Wind turbine blade recycling: Experiences, challenges and possibilities in a circular economy. Renew. Sustain. Energy Rev. 2018, 97, 165–176. [Google Scholar] [CrossRef]
- Tyurkay, A.; Kirkelund, G.M.; Lima, A.T.M. State-of-the-art circular economy practices for end-of-life wind turbine blades for use in the construction industry. Sustain. Prod. Consum. 2024, 47, 17–36. [Google Scholar] [CrossRef]
- Dorigato, A. Recycling of thermosetting composites for wind blade application. Adv. Ind. Eng. Polym. Res. 2021, 4, 116–132. [Google Scholar] [CrossRef]
- Gentry, R.; Bank, L.; Chen, J.F.; Arias, F.; Al-Haddad, T. Adaptive reuse of FRP composite wind turbine blades for civil infrastructure construction. In Proceedings of the 9th International Conference on Fibre-Reinforced Polymer (FRP) Composites in Civil Engineering (CICE 2018), Paris, France, 17–19 July 2018; Available online: https://www.researchgate.net/publication/328610754 (accessed on 6 May 2024).
- André, A.; Kullberg, J.; Nygren, D.; Mattsson, C.; Nedev, G.; Haghani, R. Re-use of wind turbine blades for construction and infrastructure applications. IOP Conf. Ser. Mater. Sci. Eng. 2020, 942, 012015. [Google Scholar] [CrossRef]
- Martini, R.; Xydis, G. Repurposing and recycling wind turbine blades in the United States. Environ. Prog. Sustain. Energy 2022, 42, e13932. [Google Scholar] [CrossRef]
- Leahy, P.G. End-of-life options for composite material wind turbine blades: Recover, repurpose or reuse? In Proceedings of the 14th SDEWES Conference, Dubrovnik, Crotia, 1–6 October 2019. [Google Scholar]
- Mishnaevsky, L., Jr. Sustainable end-of-life management of wind turbine blades: Overview of current and coming solutions. Materials 2021, 14, 1124. [Google Scholar] [CrossRef] [PubMed]
- Kottek, M.; Grieser, J.; Beck, C.; Rudolf, B.; Rubel, F. World Map of the Köppen-Geiger climate classification updated. Meteorologische Zeitschrift 2006, 15, 259–263. [Google Scholar] [CrossRef]
- Climate Transparency. Turkey Country Profile 2022. Available online: https://www.climate-transparency.org/wp-content/uploads/2022/10/CT2022-Turkey-Web.pdf (accessed on 2 September 2024).
- DesignBuilder, v.7.0.2.006. Available online: http://www.designbuilder.co.uk/ (accessed on 2 September 2024).
- Onset Computer Corporation. HOBO MX2305 Series Weatherproof Data Loggers. Available online: https://www.onsetcomp.com/ (accessed on 24 September 2024).
- Răut, I.; Călin, M.; Vuluga, Z.; Oancea, F.; Paceagiu, J.; Radu, N.; Doni, M.; Alexandrescu, E.; Purcar, V.; Gurban, A.-M.; et al. Fungal-based biopolymer composites for construction materials. Materials 2021, 14, 2906. [Google Scholar] [CrossRef] [PubMed]
- ASHRAE. ASHRAE Guideline 14-2014: Measurement of Energy, Demand, and Water Savings; American Society of Heating, Refrigerating, and Air-Conditioning Engineers: Atlanta, GA, USA, 2014; Available online: https://www.ashrae.org (accessed on 11 May 2024).
Disclaimer/Publisher’s Note: The statements, opinions and data contained in all publications are solely those of the individual author(s) and contributor(s) and not of MDPI and/or the editor(s). MDPI and/or the editor(s) disclaim responsibility for any injury to people or property resulting from any ideas, methods, instructions or products referred to in the content. |
© 2025 by the authors. Licensee MDPI, Basel, Switzerland. This article is an open access article distributed under the terms and conditions of the Creative Commons Attribution (CC BY) license (https://creativecommons.org/licenses/by/4.0/).










