Climate Change Impact on Energy Poverty and Energy Efficiency in the Public Housing Building Stock of Bari, Italy
Abstract
:1. Introduction
Energy Poverty in Italy
- Is there a link between sociodemographic indicators and building energy consumptions?
- Is there a link between energy consumption and users’ behavioural patterns, which can denote energy poverty conditions?
- How will climate change affect energy poverty?
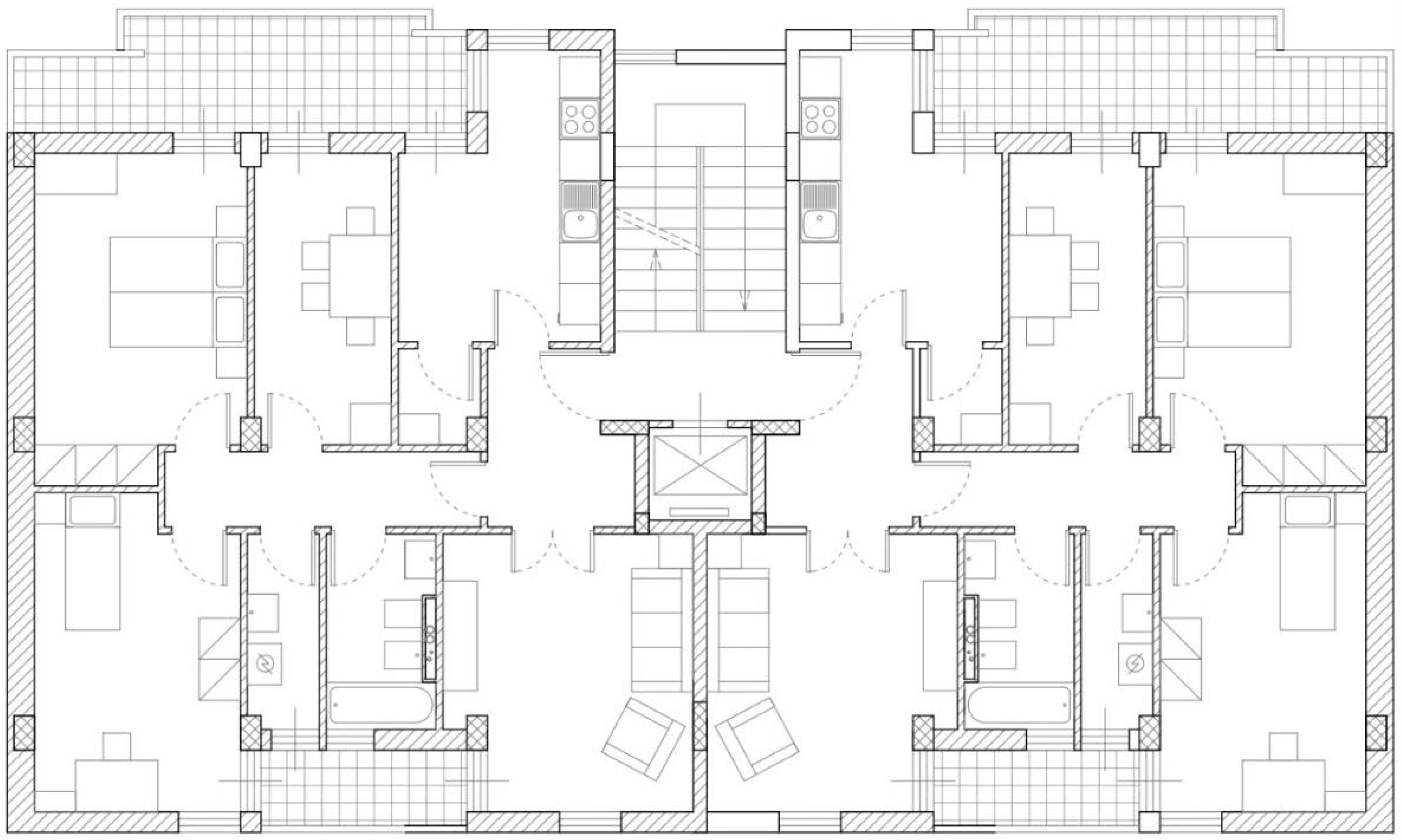
2. Case Overview
- Partially enclosed buildings, with two externally exposed facades (north–south or east–west) and two facades adjacent to surrounding buildings.
- Block of stairs and elevators generally positioned in the middle of the building and serving two apartments per floor.
- Internal layout of apartments characterised by a clear separation between living area and sleeping area with a corridor separating the two areas.
- Load-bearing reinforced concrete structures and uninsulated external walls (generally two layers of lightweight tufa stone or of perforated bricks with intermediate air cavity (U = 1.05 W/m2K).
- Uninsulated roof constituted of brick-cement structure with concrete topping and bitumen rainproofing finishing (U = 1.5 W/m2K).
- Windows with single glass and aluminium frame without thermal break, with external roller shutters as blackout closures (U = 5 W/m2K).
3. Materials and Methods
3.1. Measurement of the Energy Poverty
- The spending approach, where an examination of the energy costs incurred, compared to absolute or relative thresholds, provides an indicator to estimate the degree of domestic energy deprivation. The expense taken into consideration can be the real expense or the ideal one necessary to maintain indoor comfort conditions. A disadvantage of this approach is that it limits the causes of energy poverty to low incomes, inadequate quality of buildings and high energy prices, thus not considering the importance of the energy need and sociodemographic circumstances at the level of the tenants.
- The consensual approach, based on surveys with questionnaires proposed to families, by means of questions about the conditions of the house and the ability to reach needs considered basic, relative to the society in which the family lives. The consensual approach requires less complex data to be obtained than that necessary for the previous approach. Finally, a consensual approach has the power to capture the most “hidden” elements of energy poverty, such as social exclusion and material deprivation. The main disadvantage is the subjectivity of the method. Family units, in fact, may not be considered energy-poor despite being characterised as such according to other indicators. Furthermore, the energy-poor could deny the reality of their situation.
- Direct measurements, where the level of energy services (such as heating) is compared to a standard situation. The measurements try to measure whether sufficient levels of energy services are achieved in the home.
3.2. Assessment of Energy Consumption and Calibration of the Energy Model of a Selected Building
- Simulation in a standardised user regime of all apartments, where each apartment was modelled with the same heating setpoint temperature (21 °C) and the same ignition period (9 h).
- Change in the heating setpoint temperature.
- Change in the ignition period.
3.3. Generation of Future Weather Files
4. Results
4.1. Effects of Sociodemographic Indicators on Energy Consumptions
- Correlation between heating energy consumption and age of tenants.
- Correlation between heating energy consumption and number of tenants.
- Behavioural analysis of tenants and prediction of energy poverty conditions.
4.2. Calibration of Building Enery Model and Definition of Users’ Behavioural Patterns
- Apartment 1 is the only one among those analysed which was calibrated using the default settings previously reported.
- Apartments 2, 8, 9 and 10, on the other hand, required a calibration approach that provided for the gradual reduction in both the setpoint temperature and the system start-up period. This aspect is singular because it indicates lower indoor comfort conditions consequent to potential energy poverty.
- Apartments 3, 5 and 6, on the contrary, required a calibration approach that provided for the increase in the setpoint temperature and/or of the star-up period.
- Apartment 4 showed energy consumptions so low as to cover only the production of domestic hot water. Therefore, in the calibrated value, the heating system was switched off at all times. This situation highlights extreme energy poverty issues.
4.3. Climate Change and Future Energy Consumptions
5. Discussion and Conclusions
Author Contributions
Funding
Conflicts of Interest
References
- Middlemiss, L.; Ambrosio-Albalá, P.; Emmel, N.; Gillard, R.; Gilbertson, J.; Hargreaves, T.; Mullen, C.; Ryan, T.; Snell, C.; Tod, A. Energy poverty and social relations: A capabilities approach. Energy Res. Soc. Sci. 2019, 55, 227–235. [Google Scholar] [CrossRef]
- Bouzarovski, S.; Thomson, H.; Cornelis, M. Confronting Energy Poverty in Europe: A Research and Policy Agenda. Energies 2021, 14, 858. [Google Scholar] [CrossRef]
- Trinomics. Selecting Indicators to Measure Energy Poverty; ENER/A47516-2014. 2016. Available online: https://energy.ec.europa.eu/selecting-indicators-measure-energy-poverty_en (accessed on 7 February 2022).
- Scarpellini, S.; Rivera-Torres, P.; Suárez-Perales, I.; Aranda-Usón, A. Analysis of energy poverty intensity from the perspective of the regional administration: Empirical evidence from households in southern Europe. Energy Policy 2015, 86, 729–738. [Google Scholar] [CrossRef] [Green Version]
- Economidou, M.; Ringel, M.; Valentova, M.; Zancanella, P.; Tsemekidi-Tzeiranaki, S.; Zangheri, P.; Paci, D.; Serrenho, T. National Energy and Climate Plans for 2021–2030 under the EU Energy Union: Assessment of the Energy Efficiency Dimension; Publications Office of the European Union: Luxembourg, 2020. [Google Scholar] [CrossRef]
- European National Energy and Climate Plans (NECPs). Available online: https://energy.ec.europa.eu/topics/energy-strategy/national-energy-and-climate-plans-necps_en (accessed on 7 February 2022).
- Jessel, S.; Sawyer, S.; Hernández, D. Energy, Poverty, and Health in Climate Change: A Comprehensive Review of an Emerging Literature. Front. Public Health 2019, 7, 357. [Google Scholar] [CrossRef] [PubMed] [Green Version]
- Public Health England. Local Action on Health Inequalities: Fuel Poverty and Cold Home-Related Health Problems. Health Equity Evidence Review 7; UCL Institute of Health Equity: London, UK, 2014. [Google Scholar]
- Santamouris, M. Innovating to zero the building sector in Europe: Minimising the energy consumption, eradication of the energy poverty and mitigating the local climate change. Sol. Energy 2016, 128, 61–94. [Google Scholar] [CrossRef]
- Santamouris, M. Minimizing Energy Consumption, Energy Poverty and Global and Local Climate Change in the Built Environment: Innovating to Zero; Elsevier: Amsterdam, The Netherlands, 2019. [Google Scholar]
- Campagna, L.M.; Fiorito, F. On the Impact of Climate Change on Building Energy Consumptions: A Meta-Analysis. Energies 2022, 15, 354. [Google Scholar] [CrossRef]
- Dubois, U.; Meier, H. Energy affordability and energy inequality in Europe: Implications for policymaking. Energy Res. Soc. Sci. 2016, 18, 21–35. [Google Scholar] [CrossRef]
- Castaño-Rosa, R.; Solís-Guzmán, J.; Rubio-Bellido, C.; Marrero, M. Towards a multiple-indicator approach to energy poverty in the European Union: A review. Energy Build. 2019, 193, 36–48. [Google Scholar] [CrossRef]
- Liddell, C.; Morris, C. Fuel poverty and human health: A review of recent evidence. Energy Policy 2010, 38, 2987–2997. [Google Scholar] [CrossRef]
- Wilkinson, P.; Landon, M.; Armstrong, B.; Stevenson, S.; Pattenden, S.; McKee, M.; Fletcher, T. Cold Comfort. The Social and Environmental Determinants of Exceess Winter Deaths in England, 1986–1996; The Policy Press: Bristol, UK, 2001. [Google Scholar]
- Bull, A.; Mahmood, H.; Cush, N. Identifying people at risk of fuel poverty to prevent excess winter deaths. Nurs. Times 2010, 106, 12–13. [Google Scholar] [PubMed]
- Okushima, S. Understanding regional energy poverty in Japan: A direct measurement approach. Energy Build. 2019, 193, 174–184. [Google Scholar] [CrossRef]
- Sanchez-Guevara, C.; Núñez Peiró, M.; Taylor, J.; Mavrogianni, A.; Neila González, J. Assessing population vulnerability towards summer energy poverty: Case studies of Madrid and London. Energy Build. 2019, 190, 132–143. [Google Scholar] [CrossRef] [Green Version]
- Thomson, H.; Simcock, N.; Bouzarovski, S.; Petrova, S. Energy poverty and indoor cooling: An overlooked issue in Europe. Energy Build. 2019, 196, 21–29. [Google Scholar] [CrossRef] [Green Version]
- Oliveira Panão, M.J.N. Lessons learnt from using energy poverty expenditure-based indicators in a mild winter climate. Energy Build. 2021, 242, 110936. [Google Scholar] [CrossRef]
- Scarpellini, S.; Alexia Sanz Hernández, M.; Moneva, J.M.; Portillo-Tarragona, P.; Rodríguez, M.E.L. Measurement of spatial socioeconomic impact of energy poverty. Energy Policy 2019, 124, 320–331. [Google Scholar] [CrossRef]
- OECD. Social Housing: A Key Part of Past and Future Housing Policy; OECD: Paris, France, 2020. [Google Scholar]
- CEB. Housing Inequality in Europe. Tackling Inequalities in Europe: The Role of Social Investment; CEB: Paris, France, 2017. [Google Scholar]
- European Commission. EU Energy Poverty Observatory. Available online: https://www.energypoverty.eu/indicators-data (accessed on 29 March 2021).
- Faiella, I.; Lavecchia, L. Energy Poverty in Italy. Politica Econ. 2015, 31, 27–76. [Google Scholar] [CrossRef]
- Faiella, I.; Lavecchia, L. Energy poverty. How can you fight it, if you can’t measure it? Energy Build. 2021, 233, 110692. [Google Scholar] [CrossRef]
- European Parliament Directorate General for Internal Policies. Energy Efficiency for Low-Income Households; European Parliament: Brussels, Belgium, 2016. [Google Scholar]
- Italian Law nr. 373 of 30/04/1976. Rules for Thermal Energy Consumptions in Buildings; 1976.
- ISTAT. Italian Institute of Statistics. Open Data Platform. Available online: www.istat.it (accessed on 18 July 2020).
- ORCA Puglia. Regional Observatory on Housing Conditions. Available online: http://old.regione.puglia.it/web/orca (accessed on 16 March 2022).
- Di Biagi, P. La Grande Ricostruzione: Il Piano Ina-Casa e l’Italia Degli Anni Cinquanta; Donzelli: Rome, Italy, 2001. [Google Scholar]
- Hassani, H.; Yeganegi, M.R.; Beneki, C.; Unger, S.; Moradghaffari, M. Big data and energy poverty alleviation. Big Data Cogn. Comput. 2019, 3, 50. [Google Scholar] [CrossRef] [Green Version]
- Horta, A.; Gouveia, J.P.; Schmidt, L.; Sousa, J.C.; Palma, P.; Simões, S. Energy poverty in Portugal: Combining vulnerability mapping with household interviews. Energy Build. 2019, 203, 109423. [Google Scholar] [CrossRef] [Green Version]
- Robinson, C.; Yan, D.; Bouzarovski, S.; Zhang, Y. Energy poverty and thermal comfort in northern urban China: A household-scale typology of infrastructural inequalities. Energy Build. 2018, 177, 363–374. [Google Scholar] [CrossRef]
- Romero, J.C.; Linares, P.; López, X. The policy implications of energy poverty indicators. Energy Policy 2018, 115, 98–108. [Google Scholar] [CrossRef]
- Ortiz, J.; Casquero-Modrego, N.; Salom, J. Health and related economic effects of residential energy retrofitting in Spain. Energy Policy 2019, 130, 375–388. [Google Scholar] [CrossRef]
- Longhi, S. Residential energy expenditures and the relevance of changes in household circumstances. Energy Econ. 2015, 49, 440–450. [Google Scholar] [CrossRef] [Green Version]
- DesignBuilder v.7.0. Available online: https://designbuilder.co.uk/ (accessed on 21 April 2020).
- Singh, S.; Martinez Arias, A.; Kensek, K.; Schiler, M. Comparison of two different simulation programs while calibrating the same building. In Proceedings of the SIMBUILD 2012, Madison, WI, USA, 1–3 August 2012. [Google Scholar]
- ARPA Puglia. Official Website. Available online: www.arpa.puglia.it (accessed on 21 April 2020).
- ASHRAE. Guideline 14-2014: Measurement of Energy, Demand, and Water Savings; ASHRAE: Atlanta, GA, USA, 2014. [Google Scholar]
- Jentsch, M.F.; James, P.A.B.; Bourikas, L.; Bahaj, A.S. Transforming existing weather data for worldwide locations to enable energy and building performance simulation under future climates. Renew. Energy 2013, 55, 514–524. [Google Scholar] [CrossRef]
- Jentsch, M.F.; Bahaj, A.S.; James, P.A.B. Climate change future proofing of buildings—Generation and assessment of building simulation weather files. Energy Build. 2008, 40, 2148–2168. [Google Scholar] [CrossRef]
- IPCC. Emissions Scenarios. A Special Report of IPCC Working Group III; IPCC Special Report; Intergovernmental Panel on Climate Change: Geneva, Switzerland, 2000. [Google Scholar]
- Jahanbani, H.; Shui, L.T.; Bavani, A.M.; Ghazali, A.H. Uncertainty of climate change and its impact on reference evapotranspiration in Rasht City, Iran. J. Water Clim. Chang. 2011, 2, 72–83. [Google Scholar] [CrossRef]
- IPCC. Contribution of Working Groups I, II and III to the Fifth Assessment Report of the Intergovernmental Panel on Climate Change; Climate Change 2014: Syntesis Report; IPCC: Geneva, Switzerland, 2014; p. 151. [Google Scholar]
- Betto, F.; Garengo, P.; Lorenzoni, A. A new measure of Italian hidden energy poverty. Energy Policy 2020, 138, 111237. [Google Scholar] [CrossRef]
- DellaValle, N. People’s decisions matter: Understanding and addressing energy poverty with behavioral economics. Energy Build. 2019, 204, 109515. [Google Scholar] [CrossRef]
- Santamouris, M. Recent progress on urban overheating and heat island research. Integrated assessment of the energy, environmental, vulnerability and health impact. Synergies with the global climate change. Energy Build. 2020, 207, 109482. [Google Scholar] [CrossRef]
- Vardoulakis, S.; Dear, K.; Hajat, S.; Heaviside, C.; Eggen, B.; McMichael, A.J. Comparative assessment of the effects of climate change on heat- and cold-related mortality in the United Kingdom and Australia. Environ. Health Perspect. 2015, 122, 1285–1292. [Google Scholar] [CrossRef] [Green Version]
- Gronlund, C.J.; Sullivan, K.P.; Kefelegn, Y.; Cameron, L.; O’Neill, M.S. Climate change and temperature extremes: A review of heat- and cold-related morbidity and mortality concerns of municipalities. Maturitas 2018, 114, 54–59. [Google Scholar] [CrossRef] [PubMed]









| Apt. nr. | Measurement Period | CO [kWh] | CE [kWh] | k [%] | Heating Setpoint T [°C] | System Ignition Time [h] | Nr. of Occupants | Ave Age of Occupants [y] |
|---|---|---|---|---|---|---|---|---|
| 1 | 01 October 2017–30 October 2017 | 4.03 | 4.00 | 0.79 | ||||
| 31 October 2017–14 February 2018 | 24.29 | 26.61 | −8.72 | |||||
| 15 February 2018–31 March 2018 | 16.33 | 15.32 | 6.60 | |||||
| Average | 18.98 | 20.09 | −5.52 | 20.7 | 9 | 2 | 51.5 | |
| 2 | 01 October 2017–30 October 2017 | 1.48 | 1.50 | −0.91 | ||||
| 31 October 2017–14 February 2018 | 9.76 | 8.67 | 12.61 | |||||
| 15 February 2018–31 March 2018 | 15.30 | 15.18 | 0.74 | |||||
| average | 9.77 | 9.10 | 7.35 | 18 | 2 | 2 | 37.0 | |
| 3 | 01 October 2017–30 October 2017 | 6.50 | 5.93 | 9.76 | ||||
| 31 October 2017–14 February 2018 | 30.74 | 32.39 | −5.12 | |||||
| 15 February 2018–31 March 2018 | 20.05 | 19.56 | 2.53 | |||||
| average | 24.10 | 24.86 | −3.05 | 25.3 | 9 | 2 | 48.0 | |
| 4 | 01 October 2017–30 October 2017 | 3.19 | 3.07 | 3.89 | ||||
| 31 October 2017–14 February 2018 | 3.63 | 3.60 | 0.84 | |||||
| 15 February 2018–28 February 2018 | 2.76 | 2.70 | 2.27 | |||||
| average | 3.34 | 3.29 | 1.60 | - | 0 | 3 | 68.7 | |
| 5 | 01 October 2017–30 October 2017 | 4.31 | 4.18 | 3.21 | ||||
| 31 October 2017–14 February 2018 | 47.19 | 50.66 | −6.84 | |||||
| 15 February 2018–31 March 2018 | 46.95 | 50.73 | −7.44 | |||||
| average | 40.07 | 43.02 | −6.86 | 26 | 24 | 1 | 88.0 | |
| 6 | 01 October 2017–30 October 2017 | 3.07 | 2.90 | 5.75 | ||||
| 31 October 2017–14 February 2018 | 39.74 | 42.68 | −6.89 | |||||
| 15 February 2018–31 March 2018 | 32.21 | 30.10 | 7.01 | |||||
| average | 31.83 | 33.01 | −3.57 | 26 | 9 | 1 | 93.0 | |
| 8 | 01 October 2017–30 October 2017 | 3.09 | 3.26 | −5.12 | ||||
| 31 October 2017–14 February 2018 | 8.80 | 8.67 | 1.56 | |||||
| 15 February 2018–31 March 2018 | 8.10 | 8.89 | −8.79 | |||||
| average | 7.69 | 7.83 | −1.80 | 19 | 9 | 3 | 46.3 | |
| 9 | 01 October 2017–30 October 2017 | 7.75 | 8.05 | −3.79 | ||||
| 31 October 2017–14 February 2018 | 15.33 | 14.77 | 3.80 | |||||
| 15 February 2018–31 March 2018 | 12.39 | 12.89 | −3.87 | |||||
| average | 13.35 | 13.19 | 1.18 | 18 | 4 | 4 | 52.5 | |
| 10 | 01 October 2017–30 October 2017 | 9.40 | 9.52 | −1.19 | ||||
| 31 October 2017–14 February 2018 | 14.49 | 13.67 | 5.99 | |||||
| 15 February 2018–31 March 2018 | 13.34 | 14.68 | −9.18 | |||||
| average | 13.37 | 13.24 | 0.98 | 18 | 2 | 3 | 52.7 |
| Energy Consumption [kWh/m2] | Variation [%] | |||||
|---|---|---|---|---|---|---|
| 2020 | 2050 | 2080 | 2020–2050 | 2050–2080 | 2020–2080 | |
| Heating | 34.13 | 26.63 | 19.35 | −22.0 | −27.3 | −43.3 |
| Cooling | 37.50 | 51.35 | 70.89 | 37.0 | 38.0 | 89.1 |
| Total | 71.63 | 77.99 | 90.24 | 8.9 | 15.7 | 26.0 |
Publisher’s Note: MDPI stays neutral with regard to jurisdictional claims in published maps and institutional affiliations. |
© 2022 by the authors. Licensee MDPI, Basel, Switzerland. This article is an open access article distributed under the terms and conditions of the Creative Commons Attribution (CC BY) license (https://creativecommons.org/licenses/by/4.0/).
Share and Cite
Vurro, G.; Santamaria, V.; Chiarantoni, C.; Fiorito, F. Climate Change Impact on Energy Poverty and Energy Efficiency in the Public Housing Building Stock of Bari, Italy. Climate 2022, 10, 55. https://doi.org/10.3390/cli10040055
Vurro G, Santamaria V, Chiarantoni C, Fiorito F. Climate Change Impact on Energy Poverty and Energy Efficiency in the Public Housing Building Stock of Bari, Italy. Climate. 2022; 10(4):55. https://doi.org/10.3390/cli10040055
Chicago/Turabian StyleVurro, Giandomenico, Valentina Santamaria, Carla Chiarantoni, and Francesco Fiorito. 2022. "Climate Change Impact on Energy Poverty and Energy Efficiency in the Public Housing Building Stock of Bari, Italy" Climate 10, no. 4: 55. https://doi.org/10.3390/cli10040055
APA StyleVurro, G., Santamaria, V., Chiarantoni, C., & Fiorito, F. (2022). Climate Change Impact on Energy Poverty and Energy Efficiency in the Public Housing Building Stock of Bari, Italy. Climate, 10(4), 55. https://doi.org/10.3390/cli10040055

