On the Dragging Trajectory of Anchors in Clay for Merchant Ships
Abstract
1. Introduction
2. Mathematical Modelling
2.1. Anchor Chain Modelling
2.2. Anchor-Soil Interaction Modelling
2.3. Solution Procedure
- (1)
- Given a small tangential displacement increment , the normal displacement increment is solved according to Equation (15). Then the displacement increments in the vertical and horizontal directions are obtained as and .
- (2)
- Solve the increment of shank angle according to Equation (14), and the increment of , is solved according to Equation (3).
- (3)
- Based on the solution of , , and are updated, and then is updated.
- (4)
- Repeat step (1) to step (3), until Equation (16) is satisfied.
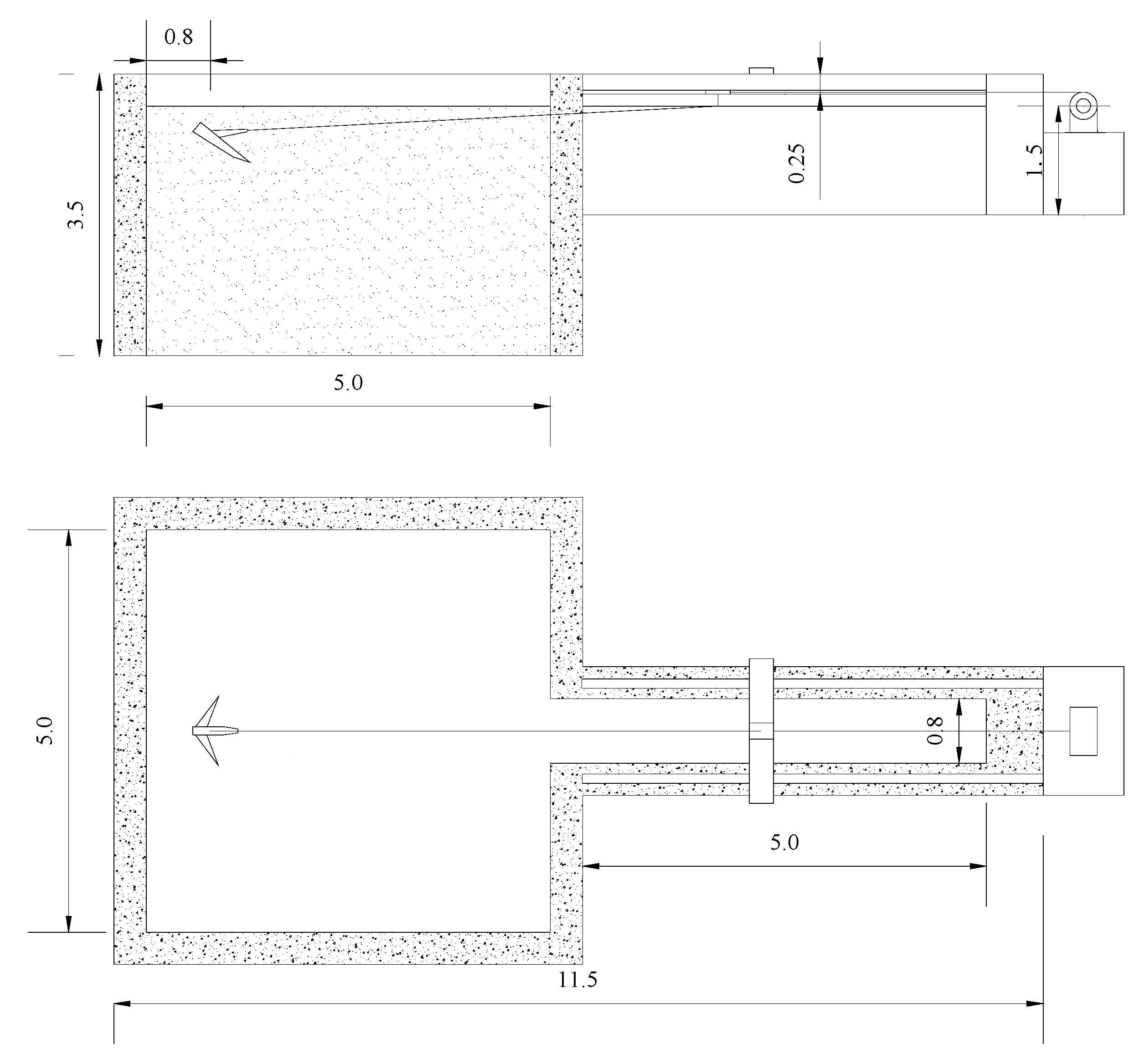
3. Experimental Set-Up
4. Results and Discussion
4.1. Validation of the Mathematical Model against the Test
4.2. Effects of the Soil Strength
4.3. Effects of the Shank/Fluke Pivot Angle
5. Conclusions
- (1)
- The proposed mathematical model can precisely predict the dragging trajectory of anchors, as it agrees well with the model tests. However, for tests with relatively small anchors, the measured trajectory is susceptible to disturbance.
- (2)
- Both the ultimate embedding depth of a dragging anchor and the distance it takes to reach the ultimate depth increase as the undrained shear strength of clay decreases.
- (3)
- The ultimate embedding depth of a dragging anchor and the distance it takes to reach the ultimate depth all increase with the shank-fluke pivot angle.
Author Contributions
Funding
Institutional Review Board Statement
Informed Consent Statement
Data Availability Statement
Conflicts of Interest
Nomenclature
| b | chain diameter |
| , , | dimensionless parameters |
| m, n, p, q | yield surface parameters |
| s | suspended chain length |
| z | embedding depth |
| chain diameter multiplier | |
| bearing capacity factor of chain | |
| clay sensitivity | |
| undrained shear strength of clay at the mudline | |
| vertical undrained shear strength gradient | |
| normal force on the fluke | |
| tangential force on the fluke | |
| M | rotating moment on the fluke |
| , , , | bearing capacity factors of the anchor |
| Ta | tension between chain and anchor |
| Xs | horizontal length of suspended chain |
| anchor fluke length | |
| anchor shank length | |
| anchor crown length | |
| the fluke thickness | |
| chain angle at the mudline | |
| chain angle at the anchor pivot | |
| angle of the fluke | |
| angle of the shank | |
| angle between the fluke and shank | |
| angle between the chain and the fluke | |
| angular velocity of the fluke | |
| tangential velocity of the fluke | |
| normal velocity of the fluke | |
| rotation to tangential translation ratio | |
| normal to tangential translation ratio | |
| X0 | horizontal length of on-seabed chain |
References
- Gao, P.; Duan, M.; Gao, Q.; Jia, X.; Huang, J. A prediction method for anchor penetration depth in clays. Ships Offshore Struct. 2016, 11, 782–789. [Google Scholar] [CrossRef]
- Zhuang, Y.; Li, Y.; Su, W. Influence of anchoring on burial depth of submarine pipelines. PLoS ONE 2016, 11, e0154954. [Google Scholar] [CrossRef] [PubMed]
- Yue, J.; Gan, L.; Zheng, Y.; Zhou, C.; Ma, Y.; Zhang, L.; Ouyang, Y. Numerical simulation research of submarine pipeline depth against emergency anchor loading parameter setting for the model. In Proceedings of the Twenty-Eighth (2018) International Ocean and Polar Engineering Conference, Sapporo, Japan, 10–15 June 2018; pp. 248–254. [Google Scholar]
- Jie, W.; Fan, Y.-T. Study on safety monitoring system for submarine power cable on the basis of AIS and radar technology. Phys. Procedia 2012, 24, 961–965. [Google Scholar] [CrossRef][Green Version]
- API Design. Analysis of Stationkeeping Systems for Floating Structures; American Petroleum Institute: Washington, DC, USA, 2008. [Google Scholar]
- DNV-RP-E301; Design and Installation of Fluke Anchors in Clay; Det Norske Veritas: Oslo, Norway, 2000.
- Wang, Z. Numerical Simulation Research of Submarine Pipeline Depth against Emergency Anchor Loading. Master’s Thesis, Wuhan University of Technology, Wuhan, China, 2016. [Google Scholar]
- Zhang, L. The Research of the Burial Depth and Protection of the Submarine Pipelines Based on the Ship’s Emergency Anchoring; Wuhan University of Technology: Wuhan, China, 2013. [Google Scholar]
- Yan, S.; Guo, B.; Sun, L.; Guo, W.; Lei, Z. Analytical and experimental studies of dragging hall anchors through rock berm. Ocean Eng. 2015, 108, 529–538. [Google Scholar] [CrossRef]
- Gaudin, C.; Vlahos, G.; Randolph, M.F.; Colwill, R.D. Investigation in centrifuge of anchor-pipeline interaction. Int. J. Offshore Polar Eng. 2007, 17, 67–73. [Google Scholar]
- Gaudin, C.; Landon, M.M.; Pedersen, V.; Kiat, C.H.; Leqin, W. Validation of rock berm cover design for offshore LNG pipeline in Hong Kong. Proc. Int. Offshore Polar Eng. Conf. 2009, 1, 546–553. [Google Scholar]
- Wang, L.Q.; Chia, H.K. Optimization study of pipeline rock armour protection design based on Finite Element Analysis. In Proceedings of the International Conference on Offshore Mechanics and Arctic Engineering—OMAE, Shanghai, China, 6–11 June 2010; Volume 5, pp. 165–170. [Google Scholar]
- Selker, R. Impact of dropped objects and anchor dragging on pipeline integrity. In Proceedings of the Twenty-Eighth (2018) International Ocean and Polar Engineering Conference, Sapporo, Japan, 10–15 June 2018; pp. 238–247. [Google Scholar]
- O’Neill, M.P.; Bransby, M.F.; Randolph, M.F. Drag anchor fluke-soil interaction in clays. Can. Geotech. J. 2003, 40, 78–94. [Google Scholar] [CrossRef]
- Murff, J.D. Limit analysis of multi-footing foundation systems. In Proceedings of the 8th International Conference on Computer methods and Advances in Geomechanics, Morgantown, WV, USA, 22–28 May 1994; pp. 223–244. [Google Scholar]
- Lade, P.V. Overview of constitutive models for soils. In ASCE Geotechnical Special Publication No. 128, Soil Constitutive Models: Evaluation, Selection, and Calibration; Yamamuro, J.A., Kaliakin, V.N., Eds.; American Society of Civil Engineers: Austin, TX, USA, 2005; pp. 1–34. [Google Scholar]










| Anchor Weight (kg) | Fluke Thickness (m) | Fluke Length (m) | Crown Length (m) | Shank Length (m) | Fluke Area (m2) |
|---|---|---|---|---|---|
| 36 | 0.02 | 0.26 | 0.055 | 0.5 | 0.0416 |
| 100 | 0.03 | 0.42 | 0.07 | 0.6 | 0.084 |
| Clay No. | Effective Density (kg/m3) | Mudline Undrained Shear Strength (kPa) | Undrained Shear Strength Gradient (kPa/m) |
|---|---|---|---|
| 1 | 750 | 2.5 | 1.42 |
| 2 | 800 | 4.0 | 1.80 |
Publisher’s Note: MDPI stays neutral with regard to jurisdictional claims in published maps and institutional affiliations. |
© 2021 by the authors. Licensee MDPI, Basel, Switzerland. This article is an open access article distributed under the terms and conditions of the Creative Commons Attribution (CC BY) license (http://creativecommons.org/licenses/by/4.0/).
Share and Cite
Zhuang, X.; Yan, K.; Gao, P.; Liu, Y. On the Dragging Trajectory of Anchors in Clay for Merchant Ships. J. Mar. Sci. Eng. 2021, 9, 118. https://doi.org/10.3390/jmse9020118
Zhuang X, Yan K, Gao P, Liu Y. On the Dragging Trajectory of Anchors in Clay for Merchant Ships. Journal of Marine Science and Engineering. 2021; 9(2):118. https://doi.org/10.3390/jmse9020118
Chicago/Turabian StyleZhuang, Xinqing, Keliang Yan, Pan Gao, and Yihua Liu. 2021. "On the Dragging Trajectory of Anchors in Clay for Merchant Ships" Journal of Marine Science and Engineering 9, no. 2: 118. https://doi.org/10.3390/jmse9020118
APA StyleZhuang, X., Yan, K., Gao, P., & Liu, Y. (2021). On the Dragging Trajectory of Anchors in Clay for Merchant Ships. Journal of Marine Science and Engineering, 9(2), 118. https://doi.org/10.3390/jmse9020118

