Abstract
Due to their unique structural configuration, Very Large Floating Structures (VLFS) exhibit significant hydroelastic responses during their motion in the water. These responses, which are a result of the interaction between the structure and the waves, can lead to undesirable vibrations and deformations, potentially compromising the stability and performance of the VLFS. Reducing the hydroelastic response in VLFS has become a critical research focus for scholars worldwide. In the field of marine engineering, various methods are employed to address this issue, with the use of porous structures being one of the most effective solutions. These porous structures help to dissipate the energy of propagating waves, thereby reducing the magnitude of hydroelastic responses. This paper introduces a multi-layer porous plate structure designed to mitigate the hydroelastic response of horizontally moored VLFS. The proposed structure consists of multiple layers of porous plates strategically arranged to optimize the dissipation of wave energy. To evaluate the performance of this structure, a series of physical model tests were conducted, focusing on the hydrodynamic behavior of the VLFS with the multi-layer porous plate structure. The experimental results indicate that within a specific wavelength range, the properly configured multi-layer porous plate structure can significantly reduce the hydroelastic response of the VLFS. This reduction is especially noticeable in the attenuation of wave-induced forces, leading to a decrease in the structural vibrations and enhancing the stability of the floating system. The findings demonstrate that this innovative design can provide a reliable method for improving the performance of VLFS in challenging marine environments.
1. Introduction
Very Large Floating Structures (VLFS) represent an emerging form of marine infrastructure that holds great potential in meeting the increasing demand for marine space and resource utilization along coastal regions. Unlike traditional floating platforms, VLFS exhibit distinct structural behaviors characterized by a massive horizontal dimension relative to their vertical scale. This unique geometry not only induces typical rigid-body motions common to all floating structures but also leads to significant elastic deformations. These rigid-body motions, along with the bending of the structure in a water environment, create complex interactions known as hydroelastic responses.
Hydroelastic responses refer to the coupled interaction between the rigid-body movements of the structure and the structural deformations caused by the dynamic wave environment. Mitigating excessive hydroelastic responses is crucial for the safety and functional operation of VLFS. If left uncontrolled, these dynamic motions can introduce several significant risks: (1) Damage to Sensitive Equipment: Excessive motion can compromise the operational integrity and accuracy of sensitive equipment installed on the structure, leading to malfunctions or reduced performance of vital systems. (2) Fatigue Damage: The cyclic stresses induced by the dynamic movements accelerate fatigue damage to structural components, which could result in premature failure of critical parts, posing risks to the overall stability of the structure. (3) Impact on Human Health and Performance: The motions may cause uncomfortable movements for personnel onboard, leading to symptoms such as nausea, dizziness, and seasickness, which can severely impact human performance and health. In general, these factors highlight the vital importance of effectively reducing the hydroelastic responses in VLFS to ensure the structure’s longevity, operational reliability, and the safety of personnel. The ability to control these dynamic motions not only improves the operational stability of the VLFS but also safeguards the integrity of the entire system, contributing to its sustainable and safe use in marine environments. Therefore, addressing these issues becomes paramount in the design and operation of VLFS to meet the demands of modern marine infrastructure while ensuring that risks are minimized.
Mitigating the hydroelastic response of VLFS remains a significant challenge, prompting extensive research into diverse countermeasures. Studies by Nagata [1], Ohmatsu [2], and Utsunomiya et al. [3] have demonstrated that traditional breakwaters can effectively mitigate the hydroelastic response of VLFS. However, this approach faces significant drawbacks, including substantial costs, complex construction, limited mobility, and adverse environmental impacts such as obstructing seawater flow and disrupting seabed integrity. Consequently, these limitations have prompted researchers to explore floating breakwaters as a promising alternative solution. Hong et al. [4] employed the higher-order boundary element method to investigate the shielding effect of multi-layer floating breakwaters on box-type VLFS. Through combined numerical simulations and physical model testing, Tay et al. [5] analyzed the hydroelastic response of a floating fuel storage facility protected by an external floating breakwater under wave action. In addition, researchers [6,7,8] have explored the use of floating breakwaters incorporating Oscillating Water Columns (OWCs) to mitigate the hydroelastic response of VLFS. An OWC is a wave energy converter (WEC) device that operates by utilizing the vertical oscillation of waves to compress air trapped within a chamber. This pressurized air drives a turbine-generator system, thereby converting wave mechanical energy into electricity. Integrating OWCs into breakwater structures thus offers a dual-function solution for both wave attenuation and renewable energy harvesting.
Inspired by hovercraft, many scholars [9,10,11,12,13] have proposed adding an air cushion chamber beneath the VLFS. Utilizing high-pressure air, this chamber is designed to form an air cushion between the VLFS bottom and the water surface, separating the bottom from the water. This reduces the impact of waves and currents on the structure, thereby diminishing the hydroelastic response of the VLFS.
Unlike the air cushion system, elastic vertical mooring [14,15,16,17,18] involves installing one or more springs or anchor chains/cables at the edge of the VLFS, connecting it to the seabed. These springs or chains possess a certain degree of stiffness, and function as a damping system. By stretching or compressing, they dissipate the mechanical energy of the VLFS, thereby reducing its hydroelastic response.
For pontoon-type VLFS, although most current research simplifies the structural geometry using regular shapes such as rectangles or circles, studies indicate that the geometric configuration of VLFS significantly influences its hydroelastic response [19,20,21,22]. Given that VLFS are flat structures with vertical dimensions substantially smaller than their horizontal dimensions, the majority of existing research has concentrated on optimizing the horizontal dimensions.
Due to their substantial size, VLFS are typically assembled modularly on-site using welded or rigid connectors. However, this approach often induces significant hydroelastic responses and bending moments. Consequently, recent years have witnessed notable advances in research on semi-rigid/flexible connectors [23,24,25,26,27,28]. Adopting appropriate connector strategies can effectively mitigate hydroelastic responses.
In recent years, some researchers have suggested a method that involves applying specific constraints at the boundary of VLFS to control its hydrodynamic elastic response [29,30]. The core idea of this method is to adjust the boundary conditions of VLFS in order to reduce the impact of hydrodynamic elasticity on the structural performance. Specifically, these constraints can be dynamically adjusted according to the actual conditions of VLFS, allowing for flexible responses to different environmental and operational conditions. This strategy enhances the stability and adaptability of VLFS in complex marine environments, thus better meeting practical application requirements.
An alternative approach to mitigate hydroelastic responses in VLFS involves deploying anti-motion devices at the structure’s fore or underside. Research by Ohta et al. [31], combining experimental and numerical studies, demonstrated that a submerged vertical plate attached to the bow of a VLFS reduces the hydroelastic response, although it increases transverse drift forces. Watanabe et al. [32] achieved similar motion reduction effects using a horizontal plate. A follow-up experimental study by Pham et al. [33] systematically compared the performance of horizontal, vertical, L-shaped, and inclined plates. To simultaneously achieve vibration suppression and wave energy capture, Tay [34] investigated a Power Take-Off (PTO) system hinged to the VLFS bow. This system demonstrated dual functionality: mitigating hydroelastic response under both regular and irregular waves while converting a portion of wave energy into electricity. Building on this concept, Nguyen et al. [35] designed a dual-mode Wave Energy Converter installed at the VLFS front. This device, comprising a floating horizontal plate and a submerged vertical plate, optimizes both hydroelastic response control and wave energy conversion efficiency by synergistically leveraging the horizontal plate’s effectiveness in short waves and the vertical plate’s performance in long waves. In the research mentioned above, the vibration reduction studies of VLFS typically focus on non-porous structures. However, porous structures, due to their excellent wave energy dissipation properties, have gradually gained attention from researchers. Porous structures can effectively alleviate the vibrations and impacts caused by waves, as they generate resistance in the water, reducing the propagation of wave energy. As a result, an increasing number of studies [36,37,38,39,40,41] are combining porous structures with the hydroelastic damping effects of VLFS, aiming to enhance vibration reduction performance by optimizing the design of the porous structures. Further innovations emerged through Cheng et al.’s [42] combined numerical and physical modeling, revealing that double-layer porous side plates outperformed solid plates in suppressing hydroelastic responses. Expanding on porous configurations, Fang et al. [43] tested a four-layer horizontal porous plate as an underwater breakwater, noting enhanced long-wave dissipation when adding substrate layers compared to conventional single/double-layer designs. While effective for wave dissipation, this multi-layered approach remains unexplored for VLFS hydroelastic mitigation.
This study further extends the application of multi-layer porous plates for reducing the hydroelastic response of VLFS. A series of physical model tests were conducted to evaluate its hydrodynamic performance. The VLFS model was horizontally moored using an eight-cable system, while the multi-layer porous plate structure was fabricated from acrylic polymer materials with a density close to that of water to minimize gravitational effects on the VLFS model. The results demonstrate that a properly configured multi-layer porous plate structure can effectively reduce the hydroelastic response of VLFS.
2. Experiment Setup
2.1. VLFS Model
In any model test study, similarity criteria between the model and the prototype must be ensured. In this experiment, the forces acting on the VLFS include wave forces, gravity, elastic forces, pressure, and resistance. For different types of forces, distinct similarity criteria can be derived for the prototype and model systems. However, these criteria cannot all be satisfied simultaneously unless the model is identical to the prototype. Consequently, when analyzing the similarity of physical phenomena, the approach should begin with the fundamental governing equations they share. Based on the specific objectives and requirements of the test, the dominant external forces relevant to the engineering problem under investigation should be selected to ensure similarity between the prototype and model, while similarity requirements for other secondary forces may be neglected.
In ocean and coastal engineering, the Froude scaling law is the most commonly applied criterion, particularly in experimental studies involving waves and their effects on structures. However, unlike traditional marine structures, the VLFS model exhibits not only rigid-body motions but also significant elastic deformation. Therefore, in addition to satisfying gravity similarity, the model must also ensure structural stiffness similarity. In this experiment, a sandwich model composed of two aluminum plates and two layers of polyethylene foam is adopted as the main structure of the VLFS, as shown in Figure 1. The two side aluminum plates are 2 mm thick. The lower foam layer is 60 mm thick and primarily provides buoyancy for the VLFS while transferring hydrodynamic forces to the aluminum plates. The foam layer sandwiched between the two aluminum plates is mainly used to adjust the structural stiffness with negligible added mass. This configuration ensures the structure satisfies both mass similarity and stiffness similarity requirements. The geometric dimensions of the VLFS model were scaled to approximately 1:50 based on Phase I experiments conducted by Japan’s Technological Research Association of Mega-Float (TRAM). The resulting model is 6 m long, 1.25 m wide, and 78 mm thick. The wave lengths employed in this study, ranging from 0.6 m to 4.8 m, correspond to prototype wave lengths of 30 m to 240 m. This range represents a significant portion of the wave lengths encountered in actual VLFS operational environments. The primary parameters of the VLFS model and the wave conditions are summarized in Table 1.
Figure 1.
Schematic diagram of VLFS material composition.
Table 1.
Principal detail and wave characteristics of the VLFS model.
2.2. Mooring System
In marine engineering, different marine environments, platform types, and engineering requirements may necessitate distinct mooring systems. In shallow waters, horizontal mooring systems can effectively provide stability and support, ensuring the positional integrity of platforms or vessels. This study investigates the hydroelastic response of a VLFS using a bollard-fender mooring system, as illustrated in Figure 2. Within this system, the fenders primarily constrain the VLFS’s horizontal motions, exerting minimal influence on its vertical movements. Given the complexity of the experimental setup, the physical fender components were omitted from this test. Eight mooring lines are symmetrically deployed on both sides of the VLFS, forming angles of 150°, −150°, −30°, and 30° relative to the x-axis, and lying parallel to the xoy plane. Each mooring line has a total length of 1.04 m and comprises four components: steel cable, tension gauge sensor, spring and turnbuckle (as shown in Figure 3). The instantaneous tension of the mooring line can be obtained through the tension gauge sensor. The spring is incorporated to adjust the equivalent stiffness of the mooring line, while the turnbuckle serves to precisely adjust the initial pretension. Selection of the spring stiffness can be referenced to the Chinese Transportation Industry Standard Wave Model Test Regulation (JTJ/T234-2001):
Figure 2.
VLFS under horizontal mooring (a) Schematic Diagram (b) Field Photograph.
Figure 3.
Schematic diagram of mooring line composition.
Tm—mooring tension of the model cable (N);
Cp—elasticity coefficient of prototype cable, with steel cable of Cp = 26.97 × 104 Mpa;
dp—diameter of prototype cable (m), dp = 0.1 in this paper;
∆S/S—relative length of prototype cable;
Λ—model scale, λ = 50 in this paper;
N—index, with steel cable adopting n = 1.5;
The mooring lines were simulated in conformity with elastic and gravitational similarity principles. Tension values under varying elongation rates were derived from Equation (1), with the fitted curve exhibiting near-linear characteristics as shown in Figure 4. The equivalent stiffness coefficient of the spring was calculated to be approximately 4500 N/m.
Figure 4.
Relationship of tension (Tm) versus deformation (∆S).
2.3. Experimental Conditions
The experiments were conducted in longitudinal sea conditions, with the VLFS’s x-axis aligned with the wave propagation direction. Initial mooring line tensions ranged from 1.5 to 2.5 N. Both regular and irregular waves were employed in the testing. For irregular waves, a modified JONSWAP spectrum S(f) proposed by Goda [44] was used:
where fP and TP denote the peak frequency and corresponding peak period, respectively, H1/3 and TH1/3 represent the significant wave height and period. The peak enhancement factor γ was set to an average value of 3.3 in this study. Regular waves were generated with effective wavelengths ranging from 0.6 to 4.8 m at 0.6 m increments, while irregular waves featured significant wavelengths from 1.2 to 6.0 m at 1.2 m increments. All tests were conducted at a water depth of 0.6 m. Both regular wave heights and significant wave heights for irregular waves were maintained at 0.05 m.
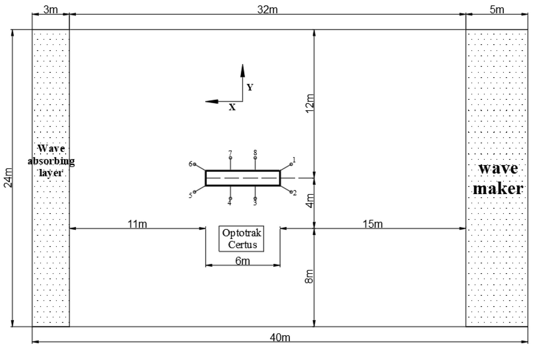
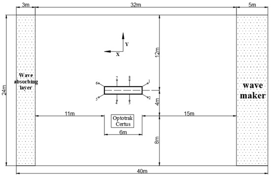
A total of 19 infrared markers were distributed across the VLFS model. Eleven markers were positioned along the centerline, with four additional markers on each side, as depicted in Figure 2 (M1–M19 represent infrared marker points 1 to 19). The six-degree-of-freedom optical tracking system (Optrak Certus) captured motion trajectories by detecting infrared emissions from these markers. Each marker was indirectly mounted via blue square foam blocks attached to the VLFS surface. This configuration optimized infrared incidence angles while preventing wave overtopping interference during testing. The Optotrak Certus is a six-degree-of-freedom optical real-time motion capture measurement system developed by Northern Digital Inc., (Waterloo, ON, Canada) as shown in Figure 5. It offers a maximum accuracy of 0.1 mm and a maximum resolution of 0.01 mm. During the experiment, the Optotrak Certus sensor can be fixed at specific positions in the water basin using a support frame. It captures light emitted by infrared markers on the VLFS model to obtain the corresponding motion time histories. Detailed usage instructions can be found in the Optotrak Certus User Guide [45]. The relative positions of the Optotrak Certus and the VLFS in the experimental water basin are illustrated in Figure 6 (1–8 correspond to the dolphin numbers).
Figure 5.
Schematic diagram of Optotrak Certus sensor.
Figure 6.
Schematic diagram of the relative position between Optrak Certus and VLFS models.
2.4. Multi-Layer Porous Plate Structure
The Multi-layer porous plate structure (MPPS) is a composite structure made up of multiple single-layer porous plates arranged in parallel, with each single-layer porous plate having multiple uniformly sized circular holes drilled on its surface. When waves pass through the multi-layer porous plate structure, some of the waves break due to the shallowing of the water depth, while others generate backflow upon contacting the side or bottom of the VLFS. The fluid exchange between the pores also generates greater resistance, thus reducing the incident wave energy and minimizing the water elastic response of the VLFS. Rigidly connected to the VLFS, the multi-layer porous plate structure moves synchronously with the floating structure. During significant VLFS displacements where the uppermost plate may emerge from the water surface (losing damping effectiveness), lower plates maintain continuous wave dissipation. Compared to conventional non-porous structures, the porous plate configuration significantly reduces vertical wave-induced forces on the VLFS.
In this experiment, acrylic sheets were selected as the material for the porous plates. Acrylic, a polymethyl methacrylate-based material with a density of approximately 1.19 kg/dm3, helps minimize the additional gravitational influence of the porous plate structure on the VLFS model. The experimental parameters for the multi-layer porous plate structure include the number of plates, porosity, plate spacing and submerged depth. Each individual porous plate measures 1.20 m in length, 0.40 m in width, and 5 mm in thickness. Adjacent plates are connected using twelve stainless steel screws. Based on the research by Cho and Kim [46], the optimal porosity p for porous plates fixed at specific underwater positions as wave elimination devices is approximately 0.1, where porosity is defined as the ratio of the open area to the total area of the porous plate. If p = 0, it indicates that the plate is non-permeable, while p = 1 indicates that there is no plate. Therefore, three porosity values were selected for this experiment: p = 0.06, 0.10 and 0.15. A pair of U-shaped connectors was installed on the end sides of the VLFS model. These connectors feature screw holes allowing the porous plate structure to be attached and secured directly beneath the VLFS model. The multi-layer porous plate structure was designed with three configurations: two-layer, three-layer, and four-layer combinations. Figure 7 illustrates these configurations and the installation position of the structure relative to the VLFS model.
Figure 7.
Schematic diagram of three multi-layer porous plate configurations and installation position. (a) two-layer multi-layer porous plate (b) three-layer multi-layer porous plate (c) four-layer multi-layer porous plate (d) Installation position of multi-layer porous plate structure.
3. Results and Discussions
3.1. Regular Wave Conditions
To obtain the hydroelastic responses of the VLFS under different working conditions, we monitored the motion of infrared markers 1–5 and 7–11 positioned along the central axis of the VLFS model, as illustrated in Figure 2a. Under regular wave conditions, the incident wavelength ranged from 0.1 to 0.8 times the structural length 2 L of the VLFS, with hydroelastic response defined as the mean amplitude of vertical displacement across all monitored markers. Figure 8 presents the hydroelastic responses of the VLFS model with multi-layer porous plate structures of varying layer numbers, where A represents the incident wave amplitude, l denotes the number of layers, p the porosity, hr the submerged depth (units: meters), and hj the plate spacing (units: meters). When λ/2 L = 0.1 or 0.2 (as shown in Figure 8a,b), implementing multi-layer porous plate structures effectively reduces hydroelastic responses on the wave-facing side of the VLFS model. For λ/2 L = 0.3 to 0.5 (as shown in Figure 8c–e), these structures decrease wave-facing side responses but increase responses on the leeward side. Nevertheless, the peak hydroelastic response still decreases, confirming that the multi-layer porous plate structure can still effectively reduce the hydroelastic response of VLFS within this wavelength range. When λ/2 L ≥ 0.6 (as shown in Figure 8f–h), multi-layer porous plates cause a slight increase in mid-section responses, though their overall impact on VLFS hydroelastic responses remains minimal. Notably, when λ/2 L ≤ 0.6, the hydroelastic response gradually decreases with the increase in the number of layers of the multi-layer porous plate structure, whereas beyond λ/2 L > 0.6, variations in the number of plates demonstrate a negligible effect. When the wavelength λ/2 L is equal to 0.2, the hydroelastic response of the wave-facing side of the VLFS can be reduced to a maximum of 47%.
Figure 8.
Effect of layer number in MPPS on hydroelastic response of VLFS under regular waves. (a) λ/2 L = 0.1 (b) λ/2 L = 0.2 (c) λ/2 L = 0.3 (d) λ/2 L = 0.4 (e) λ/2 L = 0.5 (f) λ/2 L = 0.6 (g) λ/2 L = 0.7 (h) λ/2 L = 0.8.
Figure 9 displays hydroelastic responses of the VLFS model incorporating multi-layer porous plates with varied porosity, where the submerged depth hr = 0.12 m, the plate spacing hj = 0.05 m, and the number of layers l = 3 or 4. As can be seen from the figure, whether the number of layers is 3 or 4, the multilayer porous plate structure exhibits similar patterns in its effect on the hydroelastic response of the VLFS. At wavelengths λ/2 L = 0.1 or 0.2 (as shown in Figure 9a,b), hydroelastic response decreases with increasing porosity. For λ/2 L = 0.3 to 0.5 (as shown in Figure 9c–e), wave-facing side responses increase with porosity while leeward side responses remain virtually unchanged. When λ/2 L > 0.5 (as shown in Figure 9f–h), porosity exerts no significant influence on VLFS hydroelastic responses. When the wavelength λ/2 L is equal to 0.2, the hydroelastic response of the wave-facing side of the VLFS can be reduced to a maximum of 55%.
Figure 9.
Effect of porosity in MPPS on hydroelastic response of VLFS under regular waves. (a) λ/2 L = 0.1 (b) λ/2 L = 0.2 (c) λ/2 L = 0.3 (d) λ/2 L = 0.4 (e) λ/2 L = 0.5 (f) λ/2 L = 0.6 (g) λ/2 L = 0.7 (h) λ/2 L = 0.8.
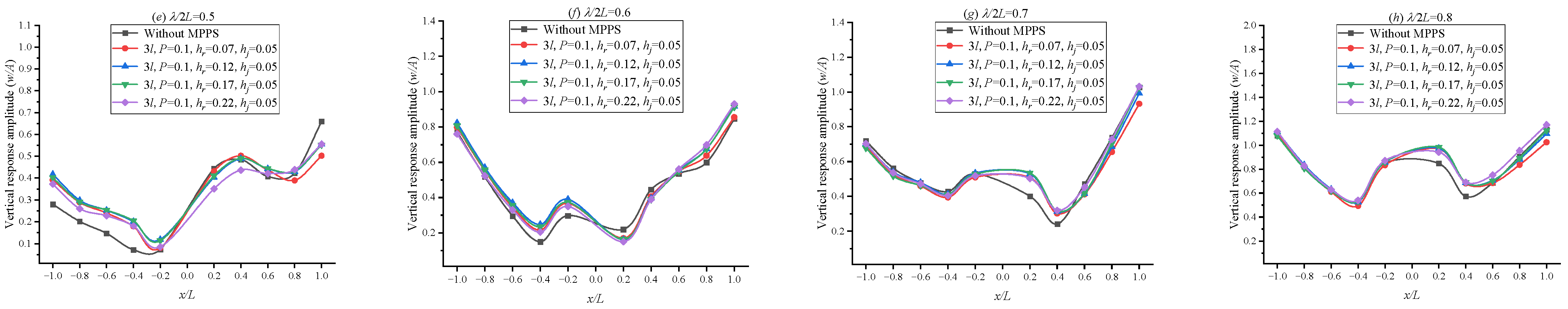
Figure 10 shows the hydroelastic response of the VLFS model with multi-layer porous plates of different plate spacing, where the number of layers l = 3, the porosity p = 0.1, and the submerged depth hr = 0.12. When the wavelength λ/2 L is less than or equal to 0.3 (as shown in Figure 10a–c), the hydroelastic response of the VLFS model decreases as the plate spacing hj increases. For wavelengths λ/2 L between 0.4 and 0.6 (as shown in Figure 10d–f), the optimal plate spacing is hj = 0.125 m, while the most unfavorable plate spacing is hj = 0.05 m. When the wavelength λ/2 L exceeds 0.6 (as shown in Figure 10g,h), the plate spacing hj has negligible effect on the hydroelastic response of the VLFS model. When the wavelength λ/2 L is equal to 0.2, the hydroelastic response of the wave-facing side of the VLFS can be reduced to a maximum of 46%.
Figure 10.
Effect of plate spacing in MPPS on hydroelastic response of VLFS under regular waves. (a) λ/2 L = 0.1 (b) λ/2 L = 0.2 (c) λ/2 L = 0.3 (d) λ/2 L = 0.4 (e) λ/2 L = 0.5 (f) λ/2 L = 0.6 (g) λ/2 L = 0.7 (h) λ/2 L = 0.8.
Figure 11 shows the hydroelastic response of the VLFS model for multi-layer porous plates with different submerged depths, where the number of layers l = 3, the porosity p = 0.1, and the plate spacing hj = 0.05 m. When the wavelength λ/2 L equals 0.1 or 0.2 (as shown in Figure 11a,b), the hydroelastic response of the VLFS model decreases with greater submerged depth of the multi-layer porous plate structure. When the wavelength λ/2 L is between 0.3 and 0.6 (as shown in Figure 11c–e), the hydroelastic response increases with increasing submerged depth of the multi-layer porous plate structure. For wavelengths λ/2 L greater than or equal to 0.6 (as shown in Figure 11e–h), changes in submerged depth of the multi-layer porous plate structure have minimal effect on the hydroelastic response of the VLFS model. When the wavelength λ/2 L is equal to 0.2, the hydroelastic response of the wave-facing side of the VLFS can be reduced to a maximum of 49%.

Figure 11.
Effect of submerged depth in MPPS on hydroelastic response of VLFS under regular waves. (a) λ/2 L = 0.1 (b) λ/2 L = 0.2 (c) λ/2 L = 0.3 (d) λ/2 L = 0.4 (e) λ/2 L = 0.5 (f) λ/2 L = 0.6 (g) λ/2 L = 0.7 (h) λ/2 L = 0.8.
Adding the multi-layer porous plate structure not only affects the hydroelastic response of the VLFS model, but also alters the mooring force in the VLFS model. In this paper, we investigate the influence of various parameters of multi-layer porous plates on the maximum cable mooring force under regular waves, considering incident wave lengths ranging from 0.1 to 1.0 times the length 2 L of the structure. Figure 12 shows the maximum mooring force of the VLFS model with multi-layer porous plate structures of varying layer numbers. As can be seen from the figure, the maximum mooring forces for VLFS models with 3-layer or 4-layer porous plate structures are relatively close. When the wavelength λ/2 L is ≤0.6, the maximum mooring force for the VLFS model with a double-layer porous plate structure is larger, while the mooring forces for VLFS models with 3-layer or 4-layer porous plate structures are less than that of the VLFS model without a multi-layer porous plate structure. When the wavelength λ/2 L is >0.6, the maximum mooring force for the VLFS model with the double-layer porous plate structure is smaller, whereas the maximum mooring forces for models with 3-layer or 4-layer porous plate structures are greater than that of the VLFS model without a multi-layer porous plate structure. For the VLFS model with a double-layer porous plate structure, the maximum mooring force occurs at the wavelength λ/2 L of 0.5, while for models with 3-layer or 4-layer porous plate structures, the maximum mooring force occurs at the wavelength λ/2 L of 0.7.
Figure 12.
The maximum mooring force of the VLFS model with MPPS of different layer numbers.
Figure 13 shows the maximum mooring force of the VLFS model with multi-layer porous plate structures of varying porosity. As can be seen from the figure, changes in porosity have a minor effect on the mooring force. For VLFS models with 3-layer or 4-layer porous plate structures, when the wavelength λ/2 L is ≤0.6, the maximum mooring force is less than or equal to that of the VLFS model without a porous plate structure. In contrast, when the wavelength λ/2 L is >0.6, the maximum mooring force is greater than that of the VLFS model without a porous plate structure. Furthermore, when the wavelength λ/2 L exceeds 0.6, the maximum mooring force of the VLFS model increases with the number of plate layers.
Figure 13.
The maximum mooring force of the VLFS model with MPPS of different porosity. (a) layer number l = 3 (b) layer number l = 4.
Figure 14 illustrates the maximum mooring forces of the VLFS model featuring multi-layer porous plate structures with varying plate spacing. As evident from the figure, variations in plate spacing exhibit a minor influence on the maximum mooring force of the VLFS model. Throughout all wavelength ranges considered in this experiment, the plate spacing of hj = 0.125 m yields the smallest maximum mooring force for the VLFS model. For the 3-layer porous plate structure, the peak value of the maximum mooring force occurs at the wavelength of 0.7.
Figure 14.
The maximum mooring force of the VLFS model with MPPS of different plate spacing.
Figure 15 illustrates the maximum mooring forces of the VLFS model featuring multi-layer porous plate structure with varying submerged depths. As shown in the figure, variations in submerged depth have minimal influence on the maximum mooring force of the VLFS model. For multi-layer porous plate structures, the greater the submerged depth, the smaller the maximum mooring force of the VLFS model.
Figure 15.
The maximum mooring force of the VLFS model with MPPS of different submerged depths.
3.2. Irregular Wave Conditions
In the previous chapter, the main focus was on the influence of multi-layer porous plate structures on the hydroelastic response and maximum mooring force of VLFS models under the action of regular waves. In contrast, this chapter focuses on their influence on VLFS hydroelastic response under irregular wave conditions. Unlike the former scenario, the energy distribution of the VLFS model’s hydroelastic response under irregular waves spans a broad frequency range rather than concentrating near a specific frequency. Consequently, spectral analysis provides deeper insight into energy distribution patterns. This chapter performs spectral analysis on the hydroelastic responses at infrared mark points 11, 8, 4, and 1 along the centerline axis of the VLFS model in Figure 2a. These markers correspond to the wave facing side endpoint, wave facing side quarter point, leeward side quarter point, and leeward side endpoint, respectively. Statistical analysis is further conducted on significant values of the time history records.
The significant wavelengths λs/2 L of irregular waves are 0.2, 0.4, 0.6, and 0.8, corresponding to significant periods of 0.88 s, 1.30 s, 1.72 s, and 2.17 s respectively. According to requirements in the Wave Model Test Procedures (JTJ/T 234-2001), irregular wave tests must capture over 100 wave cycles. Therefore, under waves with significant periods of 0.88 s and 1.30 s, the sampling duration for VLFS hydroelastic response is 163.84 s, whereas for waves with significant periods of 1.72 s and 2.17 s, the sampling duration extends to 326.78 s.
Figure 16 shows the hydroelastic response time series at infrared marked points 11, 8, 4, and 1 along the axis of the VLFS model without the multi-layer porous plate structure. From the figure, it can be observed that the time series of each marked point are different. When the wavelength λs/2 L is small (e.g., 0.2 or 0.4), the maximum hydroelastic response amplitude at infrared marked point 11 (wave-facing side endpoint) is much larger than that at the other marked points, while the maximum hydroelastic response amplitude at infrared marked point 4 (quarter position on the leeward side) is the smallest. As the wavelength gradually increases, the hydroelastic responses at all marked points increase to varying degrees. The maximum hydroelastic response amplitude at infrared marked point 1 (leeward side endpoint) gradually approaches that of infrared marked point 11, and the maximum hydroelastic response amplitude at infrared marked point 4 gradually approaches that of marked point 8 (quarter position on the windward side).
Figure 16.
Time histories of hydroelastic response at four infrared markers on the VLFS model without MPPS. (a) λs/2 L = 0.2 (b) λs/2 L = 0.4 (c) λs/2 L = 0.6 (d) λs/2 L = 0.8.
Figure 17 shows the hydroelastic response time series at infrared marked points 11, 8, 4, and 1 along the axis of the VLFS model with a three-layer porous plate structure, where the porosity p = 0.1, submerged depth hr = 0.12 m, and plate spacing hj = 0.05 m. To compare with the results from the model without multi-layer porous plate structure, the significant values of the hydroelastic response at different wavelengths for each point were statistically analyzed using the zero-crossing method, as shown in Table 2. When the multi-layer porous plate structure is installed, the hydroelastic response at marked point 11 (wave-facing side endpoint) decreases across all wavelength ranges, especially significantly when the wavelength λs/2 L is less than or equal to 0.4. At marked point 8 (quarter position on the wave-facing side), the hydroelastic response decreases noticeably when the wavelength λs/2 L is 0.2, while it slightly increases when the wavelength λs/2 L reaches 0.8. At marked point 4 (quarter position on the leeward side), the hydroelastic response decreases only when the wavelength λs/2 L is 0.2, and increases under all other wavelength conditions. At marked point 1 (leeward side endpoint), the hydroelastic response increases across all wavelength ranges. This indicates that under irregular wave action, the effectiveness of the multi-layer porous plate structure in mitigating the hydroelastic response of the VLFS diminishes progressively from the waveward side towards the leeward side. Nevertheless, for wavelengths λs/2 L < 0.6, the peak hydroelastic response of the VLFS with the multi-layer porous plate structure is always reduced. This demonstrates that the multi-layer porous plate structure is remarkably effective in suppressing the hydroelastic response of the VLFS within this specific wavelength range.
Figure 17.
Time histories of hydroelastic response at four infrared markers on the VLFS model with MPPS (l = 3, p = 0.1, hr = 0.12 m, hj = 0.05 m). (a) λs/2 L = 0.2 (b) λs/2 L = 0.4 (c) λs/2 L = 0.6 (d) λs/2 L = 0.8.
Table 2.
Comparison of significant values in hydroelastic response at monitoring points on VLFS with vs. without MPPS.
Figure 18 shows the spectral analysis results of the hydroelastic response at infrared marked points 11, 8, 4, and 1 along the axis of the VLFS model with and without a three-layer porous plate structure. From the figure, it can be observed that when the wavelength λs/2 L is less than or equal to 0.4, the use of multi-layer porous plate structure has a significant impact on the spectral characteristics of the hydroelastic response at each marked point of the VLFS model. The peak values of the hydroelastic response spectra at high frequencies decrease noticeably, while the peak values at low frequencies increase to some extent. This means that within this wavelength range, the multi-layer porous plate structure eliminates many of the high-frequency vibrations in the VLFS model. When the wavelength λs/2 L is 0.2, the use of a multi-layer porous plate structure may introduce additional peaks in the hydroelastic response spectrum, indicating that the installation of the multi-layer porous plate structure has caused some changes in the motion of the VLFS model at high frequencies. However, when the wavelength λs/2 L is greater than or equal to 0.6, the influence of the multi-layer porous plate structure on the spectrum of the hydroelastic response of the VLFS model at each infrared marker point is relatively small.
Figure 18.
Comparison of the hydroelastic response frequency spectra at VLFS monitoring points with and without MPPS. (a) λs/2 L = 0.2 (b) λs/2 L = 0.4 (c) λs/2 L = 0.6 (d) λs/2 L = 0.8.
4. Conclusions
In this study, a series of three-dimensional physical model experiments were conducted to investigate the impact of an innovative multi-layer porous plate structure on the hydroelastic response of VLFS under horizontal mooring conditions. The motion of the VLFS was obtained by monitoring different infrared marker points along the axis of the VLFS model, and the mooring force information was gathered using a load cell on the mooring rope. Under regular wave conditions, a sensitivity analysis was conducted to assess the effects of the number of layers, porosity, plate spacing, and submerged depth of the multi-layer porous plate structure on the hydroelastic response of the VLFS model. Under irregular wave conditions, a comparison of the statistical values and spectra of the hydroelastic response of VLFS with and without the multi-layer porous plate structure was made, leading to the following main conclusions:
- (1)
- The proposed multi-layer porous plate structure can effectively reduce the hydroelastic response of VLFS within a certain wavelength range. For regular waves, this range is wavelengths λ/2 L less than or equal to 0.4, and for irregular waves, the range is significant wavelengths λs/2 L less than or equal to 0.4.
- (2)
- Under horizontal mooring conditions, the optimal number of layers, porosity, plate spacing, and submerged depth of the multi-layer porous plate structure are all wavelength dependent. These parameters have a significant impact on the hydroelastic response of VLFS, while their effect on the maximum mooring force of VLFS is relatively small.
- (3)
- The effectiveness of the multi-layer porous plate structure in reducing the hydroelastic response of VLFS decreases gradually from the wave-facing side to the leeward side, and may even increase the hydroelastic response on the downwave side. However, for wavelengths that are not particularly large (specifically, λs/2 L ≤ 0.6), the overall maximum hydroelastic response of the VLFS is still reduced. In other words, in most cases, the multi-layer porous plate structure provides a satisfactory reduction in the hydroelastic response of VLFS.
The multi-layer porous plate structure proposed in this study can be deployed around the submerged sections of VLFS, such as in applications involving large floating oil and gas platforms or floating airports. Its dimensions can be tailored according to the actual size of the VLFS.
Author Contributions
M.F.: Research design, Research methods, Data analysis, Manuscript writing; M.G.: Research design, Literature review; Z.L.: Supervision, Data collection; X.L.: Supervision, Research funding support; H.Z.: Paper revision. All authors have read and agreed to the published version of the manuscript.
Funding
This work was funded by the Innovation Yongiiang 2035 Key Research and Development Programme (Grant No. 2025Z051).
Data Availability Statement
The original contributions presented in this study are included in the article. Further inquiries can be directed to the corresponding author.
Conflicts of Interest
The authors declare no conflict of interest.
References
- Nagata, S. Reduction of the motion of an elastic floating plate in waves by breakwaters. In Proceedings of the Second International Conference on Hydroelasticity in Marine Technology, Fukuoka, Japan, 1–3 December 1998; pp. 229–238. [Google Scholar]
- Ohmatsu, S. Numerical calculation method for the hydroelastic response of a pontoon-type very large floating structure close to a breakwater. J. Mar. Sci. Technol. 2000, 5, 147–160. [Google Scholar] [CrossRef]
- Utsunomiya, T.; Watanabe, E.; Nakamura, N. Analysis of drift force on VLFS by the near-field approach. In Proceedings of the 11th International Offshore and Polar Engineering Conference, Stavanger, Norway, 17–22 June 2001; pp. 217–221. [Google Scholar]
- Hong, S.Y.; Choi, Y.R.; Hong, S.W. Analysis of hydro-elastic response of pontoon-type VLFS coupled with floating breakwaters using a higher-order boundary element method. In Proceedings of the 12th International Offshore and Polar Engineering Conference, Kitakyushu, Japan, 26–31 May 2002; pp. 547–552. [Google Scholar]
- Tay, Z.Y.; Wang, C.M.; Utsunomiya, T. Hydroelastic responses and interactions of floating fuel storage modules placed side-by-side with floating breakwaters. Mar. Struct. 2009, 22, 633–658. [Google Scholar] [CrossRef]
- Maeda, H.; Onishi, Y.; Rheem, C.K.; Ikoma, T.; Washio, Y.; Osawa, H.; Arita, M. Flexible response reduction on a very large floating structure due to OWC wave power devices. J. Soc. Nav. Archit. Jpn. 2000, 2000, 279–285. [Google Scholar] [CrossRef]
- Hong, D.C.; Hong, S.Y. Hydroelastic responses and drift forces of a very-long floating structure equipped with a pin-connected oscillating-water-column breakwater system. Ocean Eng. 2007, 34, 696–708. [Google Scholar] [CrossRef]
- Hong, S.Y.; Kyoung, J.H.; Kim, B.W. Hydroelastic analysis of pontoon type VLFS considering the location and shape of OWC chamber. J. Ocean Eng. Technol. 2008, 22, 22–29. [Google Scholar]
- Lee, C.H.; Newman, J.N. Wave effects on large floating structures with air cushions. Mar. Struct. 2000, 13, 315–330. [Google Scholar] [CrossRef]
- Pinkster, J.A.; Scholte, E. The behaviour of a large air-supported MOB at sea. Mar. Struct. 2001, 14, 163–179. [Google Scholar] [CrossRef]
- Ikoma, T.; Kobayashi, M.; Masuda, K.; Rheem, C.K.; Maeda, H. A prediction method of hydroelastic motion of aircushion type floating structures considering with draft effect into hydrodynamic forces. In Proceedings of the International Conference on Offshore Mechanics and Arctic Engineering, Estoril, Portugal, 15–20 June 2008; Volume 48234, pp. 421–429. [Google Scholar]
- Jing, F.; Xu, L.; Guo, Z.; Liu, H. A Theoretical Study on the Hydrodynamics of a Zero-Pressurized Air-Cushion-Assisted Barge Platform. J. Mar. Sci. Eng. 2020, 8, 664. [Google Scholar] [CrossRef]
- Hong, S.; Hwang, W. Mitigation of hydroelastic response in pneumatically supported floating structures. Appl. Ocean Res. 2023, 138, 103640. [Google Scholar] [CrossRef]
- Khabakhpasheva, T.I.; Korobkin, A.A. Hydroelastic behaviour of compound floating plate in waves. J. Eng. Math. 2002, 44, 21–40. [Google Scholar] [CrossRef]
- Karmakar, D.; Soares, C.G. Scattering of gravity waves by a moored finite floating elastic plate. Appl. Ocean Res. 2012, 34, 135–149. [Google Scholar] [CrossRef]
- Karperaki, A.E.; Belibassakis, K.A.; Papathanasiou, T.K. Time-domain, shallow-water hydroelastic analysis of VLFS elastically connected to the seabed. Mar. Struct. 2016, 48, 33–51. [Google Scholar] [CrossRef]
- Nguyen, H.P.; Dai, J.; Wang, C.M.; Ang, K.K.; Luong, V.H. Reducing hydroelastic responses of pontoon-type VLFS using vertical elastic mooring lines. Mar. Struct. 2018, 59, 251–270. [Google Scholar] [CrossRef]
- Mohapatra, S.C.; Soares, C.G. Effect of mooring lines on the hydroelastic response of a floating flexible plate using the BIEM approach. J. Mar. Sci. Eng. 2021, 9, 941. [Google Scholar] [CrossRef]
- Okada, S. Study on edge shape of very large floating structures to reduce motion. J. Soc. Nav. Archit. Jpn. 1998, 1998, 263–269. [Google Scholar] [CrossRef]
- Takagi, K.; Nagayasu, M. Hydroelastic behavior of a mat-type very large floating structure of arbitrary geometry. In Proceedings of the MTS/IEEE Oceans 2001. An Ocean Odyssey. Conference Proceedings (IEEE Cat. No. 01CH37295), Honolulu, HI, USA, 5–8 November 2001; pp. 1923–1929. [Google Scholar]
- Tay, Z.Y.; Wang, C.M. Reducing hydroelastic response of very large floating structures by altering their plan shapes. J. Ocean Eng. Technol. 2012, 2, 69–81. [Google Scholar] [CrossRef]
- Gao, R.P. Hydroelasticity of VLFS: Allowances for Flexible Connectors, Gill Cells, Arbitrary Shapes and Stochastic Waves. Ph.D. Thesis, National University of Singapore, Singapore, 2012. [Google Scholar]
- Wang, C.M.; Riyansyah, M.; Choo, Y.S. Reducing hydroelastic response of interconnected floating beams using semi-rigid connections. Int. Conf. Offshore Mech. Arct. Eng. 2009, 43444, 1419–1425. [Google Scholar]
- Riyansyah, M.; Wang, C.M.; Choo, Y.S. Connection design for two-floating beam system for minimum hydroelastic response. Mar. Struct. 2010, 23, 67–87. [Google Scholar] [CrossRef]
- Michailides, C.; Loukogeorgaki, E.; Angelides, D.C. Response analysis and optimum configuration of a modular floating structure with flexible connectors. Appl. Ocean Res. 2013, 43, 112–130. [Google Scholar] [CrossRef]
- Zhang, H.C.; Xu, D.L.; Xia, S.Y.; Lu, C.; Qi, R.E.; Tian, C.; Wu, Y.S. Nonlinear network modeling of multi-module floating structures with arbitrary flexible connections. J. Fluids Struct. 2015, 59, 270–284. [Google Scholar] [CrossRef]
- Xu, D.; Zhang, H.; Xia, S.; Lu, C.; Qi, R.E.; Tian, C.; Wu, Y.S. Nonlinear dynamic characteristics of a multi-module floating airport with rigid-flexible connections. J. Hydrodyn. 2018, 30, 815–827. [Google Scholar] [CrossRef]
- Zhao, H.; Xu, D.; Zhang, H.; Xia, S.; Shi, Q.; Ding, R.; Wu, Y.S. An optimization method for stiffness configuration of flexible connectors for multi-modular floating systems. Ocean Eng. 2019, 181, 134–144. [Google Scholar] [CrossRef]
- Yang, J.S.; Yang, J.L.; Wang, B. Boundary control for floating beam system in irregular waves under one end pinned to reduce hydroelastic response. Ocean Eng. 2023, 270, 113586. [Google Scholar] [CrossRef]
- Zhang, G.; Li, Q.; Jiang, C.; el Moctar, O.; Sun, Z. Constraint effects on the hydroelasticity of very large floating structures. Ocean Eng. 2025, 331, 121304. [Google Scholar] [CrossRef]
- Ohta, H.; Torii, T.; Hayashi, N.; Watanabe, E.; Utsunomiya, T.; Sekita, K.; Sunahara, S. Effect of attachment of a horizontal/vertical plate on the wave response of a VLFS. In Proceedings of the Third International Workshop on Very Large Floating Structures, Honolulu, HI, USA, 22–24 September 1999; Volume 1, pp. 265–274. [Google Scholar]
- Watanabe, E.; Utsunomiya, T.; Kuramoto, M.; Ohta, H.; Torii, T.; Hayashi, N. Wave response analysis of VLFS with an attached submerged plate. Int. J. Offshore Polar Eng. 2003, 13, 190–197. [Google Scholar]
- Pham, D.C.; Wang, C.M.; Bangun, E.P. Experimental study on anti-heaving devices for very large floating structure. IES J. Part A Civ. Struct. Eng. 2009, 2, 255–271. [Google Scholar] [CrossRef]
- Tay, Z.Y. Energy extraction from an articulated plate anti-motion device of a very large floating structure under irregular waves. Renew. Energy 2019, 130, 206–222. [Google Scholar] [CrossRef]
- Nguyen, H.P.; Wang, C.M.; Luong, V.H. Two-mode WEC-type attachment for wave energy extraction and reduction of hydroelastic response of pontoon-type VLFS. Ocean Eng. 2020, 197, 106875. [Google Scholar] [CrossRef]
- Pu, J.; Lu, D.Q. Suppression of the hydroelastic responses of a composite very large floating structure by a submerged elastic ring. Appl. Ocean Res. 2023, 141, 103780. [Google Scholar] [CrossRef]
- Prasad, I.M.; Prasad, N.M.; Prasad, R.M.; Behera, H. Attenuation in hydroelastic response of floating-elastic-plate by porous membrane in two-layer fluid with bottom undulation. Ocean Eng. 2023, 280, 114806. [Google Scholar] [CrossRef]
- Alex, D.; Ashok, R.; Balasubramani, N. Hydroelastic analysis of a forced circular elastic floating plate in the presence of porous barrier. Appl. Ocean Res. 2024, 150, 104085. [Google Scholar] [CrossRef]
- Hemanth, S.; Karmakar, D. Hydroelastic analysis of VLFS integrated with porous floating box breakwater using multi-domain boundary element method. Mar. Struct. 2025, 101, 103747. [Google Scholar] [CrossRef]
- Chen, H.; Gilbert, R.P.; Guyenne, P. Dispersion and attenuation in a porous viscoelastic model for gravity waves on an ice-covered ocean. Eur. J. Mech.-B/Fluids 2019, 78, 88–105. [Google Scholar] [CrossRef]
- Xu, B.; Guyenne, P. Assessment of a porous viscoelastic model for wave attenuation in ice-covered seas. Appl. Ocean Res. 2022, 122, 103122. [Google Scholar] [CrossRef]
- Cheng, Y.; Ji, C.; Zhai, G.; Oleg, G. Dual inclined perforated anti-motion plates for mitigating hydroelastic response of a VLFS under wave action. Ocean Eng. 2016, 121, 572–591. [Google Scholar] [CrossRef]
- Fang, Z.; Xiao, L.; Kou, Y.; Li, J. Experimental study of the wave-dissipating performance of a four-layer horizontal porous-plate breakwater. Ocean Eng. 2018, 151, 222–233. [Google Scholar] [CrossRef]
- Goda, Y.; Suzuki, Y. Estimation of incident and reflected waves in random wave in random wave experiments. Coast. Eng. 1976, 15, 828–845. [Google Scholar]
- Northern Digital Inc. Optotrak Certus User Guide, Rev. 6 (IL-1070106); Northern Digital Inc.: Waterloo, ON, Canada, 2014; Available online: https://tsgdoc.socsci.ru.nl/images/e/eb/Optotrak_Certus_User_Guide_rev_6(IL-1070106).pdf (accessed on 31 August 2025).
- Cho, I.H.; Kim, M.H. Wave absorbing system using inclined perforated plates. J. Fluid Mech. 2008, 608, 1–20. [Google Scholar] [CrossRef]
Disclaimer/Publisher’s Note: The statements, opinions and data contained in all publications are solely those of the individual author(s) and contributor(s) and not of MDPI and/or the editor(s). MDPI and/or the editor(s) disclaim responsibility for any injury to people or property resulting from any ideas, methods, instructions or products referred to in the content. |
© 2025 by the authors. Licensee MDPI, Basel, Switzerland. This article is an open access article distributed under the terms and conditions of the Creative Commons Attribution (CC BY) license (https://creativecommons.org/licenses/by/4.0/).


















