Experimental Research on the Stiffness Step between the Main Hull and Superstructure of Cruise Ships
Abstract
1. Introduction
2. Experimental Details
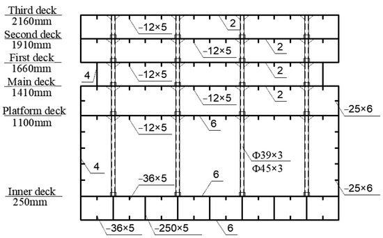
2.1. Description of the Model
2.2. Experimental Setup
2.3. Experimental Results
2.3.1. Experiment Results of M1
2.3.2. Experiment Results of M2 and M3
2.3.3. Experiment Results of M4 and M5
3. Analysis and Discussion
3.1. Longitudinal Stress Distribution Characteristics
3.2. Bending Efficiency of Superstructures
3.3. Maximum Longitudinal Stress and Deformation
4. Conclusions
Author Contributions
Funding
Institutional Review Board Statement
Informed Consent Statement
Data Availability Statement
Acknowledgments
Conflicts of Interest
Nomenclature
| Symbol | Description |
| σ | Longitudinal stress |
| M | Bending moment of cross-section |
| Iy | Moment of inertia on the neutral axis |
| z | Distance from the calculation position to the neutral axis |
| CL | Geometric similarity ratio between the prototype and the model |
| Ct | Thickness similarity ratio between the prototype and the model |
| CI | Ratio of moments of inertia between the prototype and the model |
| Ce | Height similarity ratio of the neutral axis between the prototype and the model |
| Ms | Moment of inertia of the prototype |
| Mm | Moment of inertia of the model |
| Hs | Height of neutral axis of the prototype |
| Hm | Height of neutral axis of the model |
| v | Bending efficiency of the superstructure |
| σsv | Actual longitudinal stress |
| σs | Longitudinal stress when the superstructure fully participates in the longitudinal bending |
Appendix A




References
- Wu, F.; Zhu, X.; Mei, Z. Ship Structural Mechanics; National Defense Industry Press: Beijing, China, 2010; pp. 18–34. [Google Scholar]
- Yang, B.; Pei, Z.; Wu, W. Research on Stress Distribution Characteristics of Cruise Ship Based on Modified Two-beam Theory. J. Ship Mech. 2022, 26, 1503–1513. [Google Scholar]
- Crawford, L.; Ruby, W. Model Tests on Hull-Deckhouse Interaction; Ship Structure Committee: Washington, DC, USA, 1955; Volume 4, pp. 693–699. [Google Scholar]
- Bleich, H. Nonlinear distribution of bending stresses due to distortion of the cross section. J. Appl. Mech. 1952, 29, 95–104. [Google Scholar] [CrossRef]
- Terazava, K.; Yagi, J. Stress distribution in deckhouse and superstructure. Soc. Nav. Archit. Jpn. 1964, 9, 51–150. [Google Scholar]
- Naar, H.; Varsta, P.; Kujala, P. A theory of coupled beams for strength assessment of passenger ships. Mar. Struct. 2004, 17, 590–611. [Google Scholar] [CrossRef]
- Morshedsolouk, F.; Khedmati, M. An extension of coupled beam method and its application to study ship’s hull-superstructure interaction problems. Lat. Am. J. Solids Struct. 2011, 8, 265–290. [Google Scholar] [CrossRef]
- Toming, R.; Kerge, E.; Naar, H. Hull and superstructure interaction using coupled beam method. In International Symposium on Practical Design of Ships and Other Floating Structures; Technical University of Denmark: Lyngby, Denmark, 2016; pp. 851–859. [Google Scholar]
- Yang, B.; Pei, Z.; Wu, W. Stress-distribution characteristics of cruise ship based on multiple-beam method. Ocean Eng. 2022, 266, 112646. [Google Scholar] [CrossRef]
- Paulling, J.; Payer, H. Hull-deckhouse interaction by finite-element calculations. Trans. Soc. Nav. Archit. Mar. Eng. 1968, 76, 281–296. [Google Scholar]
- Mitchell, G. Analysis of structural interaction between a ship’s hull and deckhouse. Trans. R. Inst. Nav. Archit. 1978, 120, 121–136. [Google Scholar]
- Fransman, J. The influence of passenger ship superstructures on the response of the hull girder. Trans. R. Inst. Nav. Archit. 1988, 131, 55–83. [Google Scholar]
- Mackney, M. Superstructure Effectiveness in the Preliminary Assessment of the Hull Behavior. Mar. Technol. 1999, 36, 29–43. [Google Scholar] [CrossRef]
- Fricke, W.; Gerlach, B. Effect of large openings without and with windows on the shear stiffness of side walls in passenger ships. Ships Offshore Struct. 2015, 10, 256–271. [Google Scholar] [CrossRef]
- Pei, Z.; Shen, W.; Yang, P.; Wu, W. Hull Strength and Structure Design; Science Press: Beijing, China, 2017; pp. 202–210. [Google Scholar]
- Pei, Z.; Ma, Z.; Zhu, B. Research on the bending efficiency of superstructure to hull girder strength of inland passenger ship. Ocean Eng. 2019, 195, 106762. [Google Scholar]
- Wu, W.; Duan, H.; Pei, Z.; Wong, C. Ship superstructure participation in the longitudinal bending strength test study. J. Ship Mech. 2001, 3, 62–68. [Google Scholar]
- Zhu, X. Experimental study on effect of cut-apart side wall plate on the longitudinal bending. Shipbuild. China 2003, 3, 67–74. [Google Scholar]
- Shi, G.; Gao, D. Analysis of hull girder ultimate strength for cruise ship with multi-layer superstructures. Ships Offshore Struct. 2019, 14, 698–708. [Google Scholar] [CrossRef]
- Shi, G.; Gao, D. Model experiment of large superstructures’ influence on hull girder ultimate strength for cruise ships. Ocean Eng. 2021, 222, 108626. [Google Scholar] [CrossRef]
- Araneda, J. Dimensional-directional analysis by a quaternionic representation of physical quantities. J. Frankl. Inst. 1996, 333, 113–126. [Google Scholar] [CrossRef]
- Pei, Z.; Xie, S.; Yang, B.; Ao, L. Research on model design of structural collapse test of large cruise ship. J. Wuhan Univ. Technol. 2022, 46, 242–246. [Google Scholar]
- Zhang, S.; Khan, I. Buckling and ultimate capability of plates and stiffened panels in axial compression. Mar. Struct. 2009, 22, 791–808. [Google Scholar] [CrossRef]















| Width (mm) | Height of Main Hull (mm) | Height of Deck (mm) | |
|---|---|---|---|
| Model | 2720 | 1410 | 250 |
| Parameter | Model |
|---|---|
| Height of neutral axis (mm) | 697.507 |
| Moment of inertia (mm2·mm2) | 5.43 × 1010 |
| Components | Dimension(mm) |
|---|---|
| Bottom plate | 6 |
| Inner bottom plate | 6 |
| Bottom girder | 5 |
| Bottom longitudinal | −36 × 5 |
| Inner longitudinal | −36 × 5 |
| Side longitudinal | −25 × 6 |
| Side plate | 4 |
| Deck plate | 2 |
| Deck longitudinal | −12 × 5 |
| Parameter | Symbol | Value |
|---|---|---|
| Moment of inertia of prototype (mm2·mm2) | Ms | 3.79 × 1014 |
| Moment of inertia after being scaled (mm2·mm2) | Ms/CI | 5.48 × 1010 |
| Moment of inertia of model (mm2·mm2) | Mm | 5.43 × 1010 |
| Error of the moment of inertia (%) | - | 0.887 |
| Height of neutral axis of prototype (mm) | Hs | 8408.6 |
| Height of neutral axis after being scaled (mm) | Hs/Ce | 700.7 |
| Height of neutral axis of model (mm) | Hm | 697.5 |
| Error of the height of neutral axis (%) | - | 0.458 |
| Order | Load (t) |
|---|---|
| 1 | 4 |
| 2 | 8 |
| 3 | 12 |
| 4 | 16 |
| 5 | 20 |
| 6 | 24 |
| 7 | 28 |
| 8 | 32 |
| 9 | 36 |
| 10 | 40 |
Disclaimer/Publisher’s Note: The statements, opinions and data contained in all publications are solely those of the individual author(s) and contributor(s) and not of MDPI and/or the editor(s). MDPI and/or the editor(s) disclaim responsibility for any injury to people or property resulting from any ideas, methods, instructions or products referred to in the content. |
© 2023 by the authors. Licensee MDPI, Basel, Switzerland. This article is an open access article distributed under the terms and conditions of the Creative Commons Attribution (CC BY) license (https://creativecommons.org/licenses/by/4.0/).
Share and Cite
Pei, Z.; Yang, B.; Liu, G.; Wu, W. Experimental Research on the Stiffness Step between the Main Hull and Superstructure of Cruise Ships. J. Mar. Sci. Eng. 2023, 11, 1264. https://doi.org/10.3390/jmse11071264
Pei Z, Yang B, Liu G, Wu W. Experimental Research on the Stiffness Step between the Main Hull and Superstructure of Cruise Ships. Journal of Marine Science and Engineering. 2023; 11(7):1264. https://doi.org/10.3390/jmse11071264
Chicago/Turabian StylePei, Zhiyong, Bin Yang, Guangwu Liu, and Weiguo Wu. 2023. "Experimental Research on the Stiffness Step between the Main Hull and Superstructure of Cruise Ships" Journal of Marine Science and Engineering 11, no. 7: 1264. https://doi.org/10.3390/jmse11071264
APA StylePei, Z., Yang, B., Liu, G., & Wu, W. (2023). Experimental Research on the Stiffness Step between the Main Hull and Superstructure of Cruise Ships. Journal of Marine Science and Engineering, 11(7), 1264. https://doi.org/10.3390/jmse11071264

