Multi-Objective Optimization Design of the Small Flow Rate Emitter Structure Based on the NSGA-II Genetic Algorithm
Abstract
1. Introduction
2. Materials and Methods
2.1. Structural Design of Small Flow Rate Emitters
2.2. Mesh Division and CFD Numerical Simulation
2.3. Simulation Indicators
2.3.1. Hydraulic Performance Indicators
2.3.2. Anti-Clogging Performance Indicators
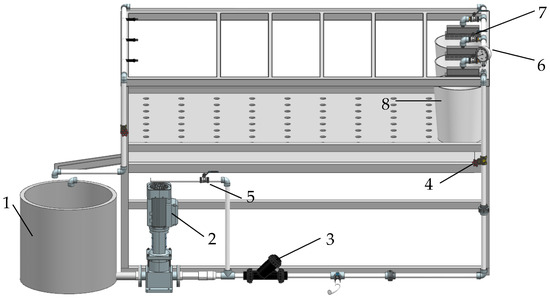
2.4. Validation of Simulation Results
2.5. RBF Neural Network with the NSGA-II Genetic Algorithm
3. Results
3.1. Accuracy of Emitter Hydraulic Performance Simulation
3.2. Response Law of Hydraulic Performance and Anti-Clogging Performance of Emitters to Flow Channel Structure
3.3. Relationships Between the Hydraulic Performance of Emitters and Anti-Clogging Performance Indicators
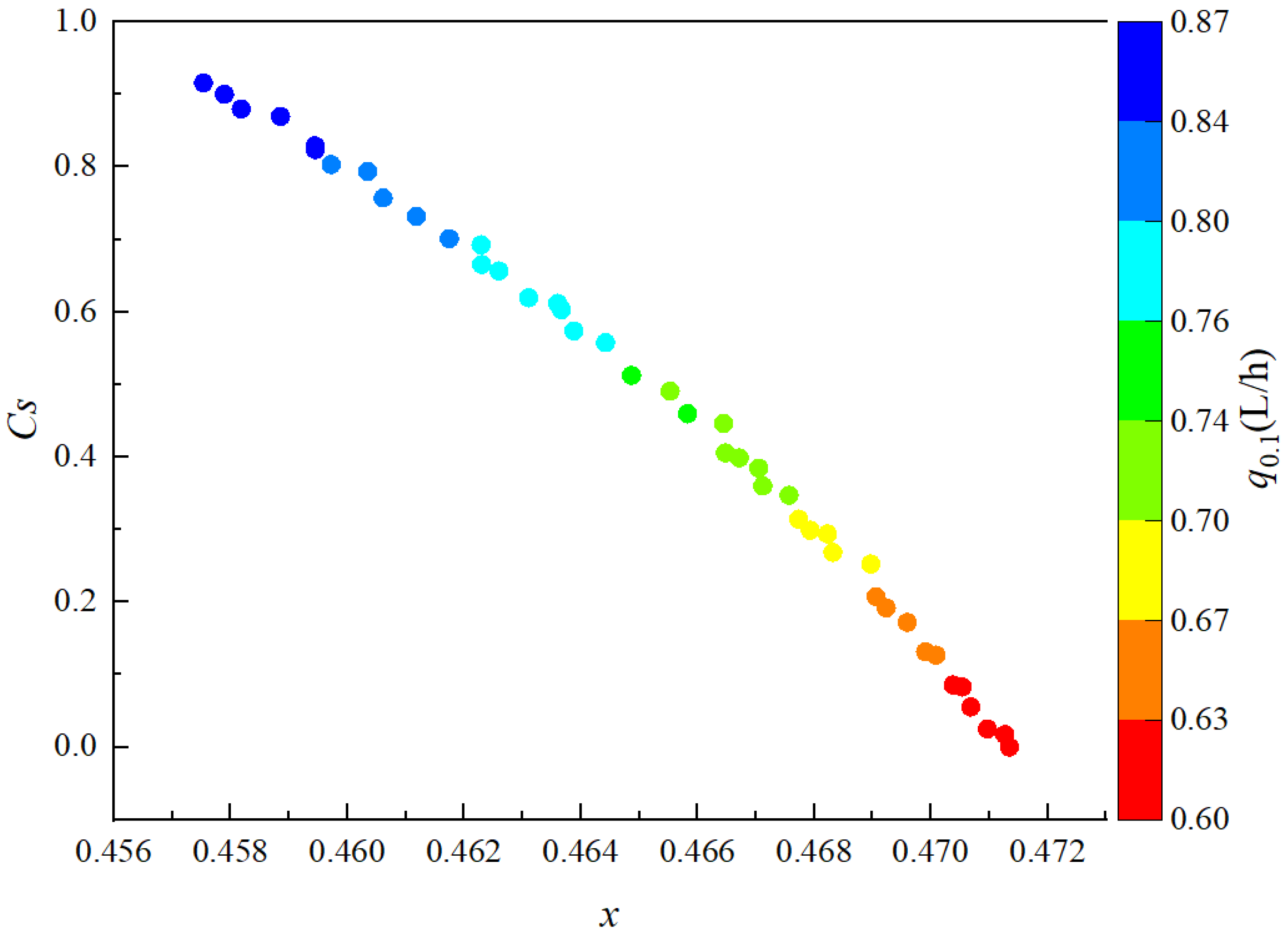
3.4. NSGA-II Genetic Algorithm Multi-Objective Optimization
3.5. Analysis of the Flow Field Inside the Emitter
4. Discussion
4.1. Response Law of the Hydraulic Performance of Emitters to Flow Channel Structural Parameters
4.2. Response Law of the Anti-Clogging Performance of the Emitter to the Structural Parameters of the Flow Channel
4.3. Optimization of the Emitter Channel Structure
5. Conclusions
Author Contributions
Funding
Institutional Review Board Statement
Data Availability Statement
Conflicts of Interest
References
- Kang, S.Z. China’s Ten Years of Agricultural Water Saving: Achievements, Challenges, and Countermeasures. China Water Resour. 2024, 14, 3680. [Google Scholar] [CrossRef]
- Wang, W.Y. By the End of This Year, China Will Have Built a Total of More Than 400 Million Mu of High-Efficiency Water-Saving Irrigation Area. 2022. Available online: https://h.xinhuaxmt.com/vh512/share/11193648?d=1348cb4&channel=weixin&time=1729350743158 (accessed on 19 October 2024).
- Netafim. What Low-Flow Drip Irrigation Technology Really Means. 2023. Available online: https://mp.weixin.qq.com/s/hIRkwg-SJYBIAdCdMOK3uQ (accessed on 19 October 2024).
- Nakayama, F.S.; Bucks, D.A. Irrigation Science. Irrig. Sci. 1991, 12, 187–192. [Google Scholar] [CrossRef]
- Camp, C.R. Subsurface Drip Irrigation: A Review. Trans. ASAE 1998, 41, 1353–1367. [Google Scholar] [CrossRef]
- Li, Y.K.; Yang, P.L.; Xu, T.W.; Liu, H.L.; Liu, H.S.; Xu, F.P. Hydraulic Property and Flow Characteristics of Three Labyrinth Flow Paths of Drip Irrigation Emitters under Micro-Pressure. Trans. ASABE 2009, 4, 1129–1138. [Google Scholar] [CrossRef]
- Yang, B. Development of Drip Irrigation Long Capillary Emitter and Optimization of Its Pipe Network. Master’s Dissertation, China Institute of Water Resources and Hydropower Research, Beijing, China, 2020. [Google Scholar]
- Li, J.S.; Yang, F.Y.; Liu, Y.C.; Li, Y.F. Performance of Low-Discharge Emitters Buried in Soil as Affected by Layered-Textural Soils. Trans. Chin. Soc. Agric. Eng. 2009, 25, 1–6. [Google Scholar]
- Sun, Z.H.; Huang, L.M.; Yang, P.L.; Qiu, L.C.; Zhang, Y.X. Effect of Lower Irrigation Limit and Emitter Flow on Winter Wheat Growth Under Subsurface Drip Irrigation. J. China Agric. Univ. 2019, 24, 41–50. [Google Scholar]
- Glaad, Y.K.; Klous, L.Z. Hydraulic and Mechanical Properties of Drippers. In Proceedings of the 2nd International Drip Irrigation Congress, San Diego, CA, USA, 7–14 July 1974; UMI: Ann Arbor, MI, USA, 1974; Volume 3, pp. 11–315. [Google Scholar]
- Yıdırım, G.; Agˇıraliogˇlu, N. Linear Solution for Hydraulic Analysis of Tapered Microirrigation Laterals. J. Irrig. Drain. Eng. 2004, 130, 78–87. [Google Scholar] [CrossRef]
- Wang, J.D. Experimental Study on the Hydraulic Performance and Anti-Clogging Performance of Drip Emitters. Master’s Dissertation, China Agricultural University, Beijing, China, 2004. [Google Scholar]
- Li, G.Y.; Wang, J.D.; Alam, M.; Zhao, Y.F. Influence of Geometrical Parameters of Labyrinth Flow Path of Drip Emitters on Hydraulic and Anti-Clogging Performance. Trans. ASABE 2006, 49, 637–643. [Google Scholar] [CrossRef]
- Chen, X.; Wu, P.T.; Fan, X.K.; Niu, W.Q. Numerical Simulation of Structural Parameters Using CFD and Anti-Clogging Design Analysis on Drip Emitter. J. Irrig. Drain. 2008, 27, 35–38. [Google Scholar] [CrossRef]
- Patil, S.S.; Nimbalkar, T.P.; Joshi, A. Hydraulic Study, Design & Analysis of Different Geometries of Drip Irrigation Emitter Labyrinth. Int. J. Eng. Adv. Technol. 2013, 2, 455–462. [Google Scholar]
- Yang, B.; Zhang, G.; Wang, J.D.; Gong, S.H.; Wang, H.T.; Mo, Y. Numerical Simulation Study on Hydraulic Performance of Toothed Labyrinth Flow Path Water Emitters. J. Irrig. Drain. 2019, 38, 71–76. [Google Scholar] [CrossRef]
- Xu, T.Y.; Bao, S.L.; Li, Z.L.; Yu, Q.Y.; Zhang, E.N. The Study of Structural Optimization on Hydraulic Performance and Anti-Clogging Performance of Labyrinth Drip Irrigation Emitters. Agronomy 2023, 13, 2496. [Google Scholar] [CrossRef]
- ISO/TC 23/SC 18/WG5 N4; Clogging Test Methods for Emitters. International Organization for Standardization: Geneva, Switzerland, 2003.
- Adin, A.; Sacks, M. Dripper-Clogging Factors in Wastewater Irrigation. J. Irrig. Drain. Eng. 1991, 117, 813–826. [Google Scholar] [CrossRef]
- Li, Y.K.; Yang, P.L.; Ren, S.M. General Review on Several Fundamental Points of Design Theory About Flow Path in Drip Irrigation Emitters. Trans. Chin. Soc. Agric. Mach. 2006, 145–149. [Google Scholar]
- Li, Y.; Feng, J.; Xue, S.; Muhammad, T.; Chen, X.; Wu, N.; Li, W.; Zhou, B. Formation Mechanism for Emitter Composite-Clogging in Drip Irrigation System. Irrig. Sci. 2018, 37, 169–181. [Google Scholar] [CrossRef]
- Wei, Z.Y.; Tang, Y.P.; Wen, J.Y.; Lu, B.H. Two-phase flow analysis and experimental investigation of micro-PIV and anti-clogging for micro-channels of emitter. Trans. CSAE 2008, 24, 1–9, (In Chinese with English Abstract). [Google Scholar]
- Wei, Z.Y.; Tang, Y.P.; Zhao, W.H.; Lu, B.H. Visualized experimental analysis of water-sand flow behaviors for labyrinth emitters. J. Mech. Eng. 2009, 45, 95–100. [Google Scholar] [CrossRef]
- Yu, L.M.; Xu, X.; Yang, Q.L.; Wu, Y.D.; Bai, X.J. Influence of Geometrical Parameters of Labyrinth Passage of Drip Irrigation Emitter on Sand Movement. J. Agric. Mach. 2017, 48, 255–261. [Google Scholar] [CrossRef]
- Wang, X.D. Study on Anti-clogging Performance and Structural Parameter Optimization of Drip Irrigation Bidirectional Flow Channel Emitters. Master’s Dissertation, Xi’an University of Science and Technology, Xi’an, China, 2019. [Google Scholar]
- Yu, L.M.; Yu, J.R.; Li, N.; Zhang, Y.; Wang, C.M.; Zhao, S.Y. Effect of Pressure-compensated Irrigation Compensation Chamber Structure Parameters on Particle Movement. J. Agric. Mach. 2023, 54, 338–349. [Google Scholar]
- Zhou, B.; Zhou, H.; Puig-Bargués, J.; Li, Y.K. Using an anti-clogging relative index (CRI) to assess emitters rapidly for drip irrigation systems with multiple low-quality water sources. Agric. Water Manag. 2019, 221, 270–278. [Google Scholar] [CrossRef]
- Zhang, W.; Wang, Z.; Cheng, S.; Dong, A.H.; Zhang, E.X.; Niu, W.Q. Anti-clogging ability of the labyrinth emitter and its evaluation method. Int. J. Agric. Biol. Eng. 2022, 15, 11. [Google Scholar] [CrossRef]
- Ren, C.J.; Wang, J.H.; Bai, D.; Zhao, X.Y.; Pei, Q.B. Application of Improved Ant Colony Algorithm in Identification of Solute Transport Parameters. J. Hydrodyn. 2017, 32, 344–350. [Google Scholar] [CrossRef]
- Wei, Z.L.; Chen, X.M. Optimization Design of Main Pipe of Mountain Self-pressurized Pipe Network Based on Genetic Algorithm. Water Sav. Irrig. 2018, 54–58. [Google Scholar]
- Zhang, J.; Zhao, W.; Tang, Y.; Lu, B. Structural optimization of labyrinth-channel emitters based on hydraulic and anti-clogging performances. Irrig. Sci. 2011, 29, 351–357. [Google Scholar] [CrossRef]
- Li, Y.K. Clogging Process, Mechanism, and Control of Drip Irrigation System Emitters; Science Press: Hong Kong, China, 2023. [Google Scholar]
- Wang, J.D.; Li, G.Y.; Qiu, X.Y.; Yu, P.F. Effects of flow passage forms on hydraulic performance of emitters. Trans. Chin. Soc. Agric. Eng. 2005, 21, 100–103. [Google Scholar]
- Wei, Q.; Shi, Y.; Dong, W.; Gang, L.; Huang, S. Study on hydraulic performance of drip emitters by computational fluid dynamics. Agric. Water Manag. 2006, 84, 130–136. [Google Scholar] [CrossRef]
- Zhang, L.J.; Li, S.Y. Numerical Experimental Investigation of Douche Hydraulic Performance on Drop Irrigation of Tooth-Type Labyrinth Channel. Hydropower Energy Sci. 2017, 35, 103–106. [Google Scholar]
- Niu, P.N.; Mo, Y.; Yao, B.L.; Yang, Z.Z.; Zhang, Y.Q.; Zhang, D.Q. The Impact of Flow Channel Structural Parameters on Both the Hydraulic Performance and Anticlogging Abilities of Variable Flow Emitters. Agronomy 2024, 14, 2560. [Google Scholar] [CrossRef]
- GB/T 17187-2009; Agricultural Irrigation Equipment—Emitters and Emitting Pipe—Specification and Test Methods. Standardization Administration of China: Beijing, China, 2009.
- Li, Y.K. Experimental Study and Numerical Simulation of Fractal Channel Design and Flow Characteristics of Drip Emitters. Doctoral Dissertation, China Agricultural University, Beijing, China, 2005. [Google Scholar]
- Jin, J.H.; Wang, F. Hydraulics-Series Textbooks for Water Supply and Drainage Engineering in the 21st Century; Hunan University Press: Changsha, China, 2004. [Google Scholar]
- Sha, Y.Q. Basic Laws of Sediment Movement. Sediment Res. 1956, 1–54. [Google Scholar] [CrossRef]
- Jones, O.C. An Improvement in the Calculation of Turbulent Friction in Rectangular Ducts. J. Fluids Eng. 1976, 98, 173–180. [Google Scholar] [CrossRef]
- Bannayan, M.; Hoogenboom, G. Using Pattern Recognition for Estimating Cultivar Coefficients of a Crop Simulation Model. Field Crops Res. 2009, 111, 290–302. [Google Scholar] [CrossRef]
- Dettori, M.; Cesaraccio, C.; Motroni, A.; Spano, D.; Duce, P. Using CERES-Wheat to Simulate Durum Wheat Production and Phenology in Southern Sardinia, Italy. Field Crops Res. 2011, 120, 179–188. [Google Scholar] [CrossRef]
- He, X.Q.; Liu, W.Q. Application of Regression Analysis; Renmin University China Press: Beijing, China, 2001. [Google Scholar]
- Xie, Q.; Niu, W.; Li, L. Effect of Tooth Angle and Pitch of Labyrinth Channel on Performance of Emitter. J. Drain. Irrig. Mach. Eng. 2013, 31, 449–455. [Google Scholar]
- Bounoua, S.; Molle, B.; Granier, J.; Haldenwang, P.; Izzati, S.N. Understanding Physical Clogging in Drip Irrigation: In Situ, In-Lab and Numerical Approaches. Irrig. Sci. 2016, 34, 327–342. [Google Scholar] [CrossRef]
- Niu, W.Q.; Yu, L.M.; Wu, P.T.; Fan, X.; Zhang, L. Influence of Angle of Labyrinth Channels on Anti-Clogging Performance of Emitter. Trans. Chin. Soc. Agric. Mach. 2009, 40, 51–55+67. [Google Scholar]
- Gao, N.; Mo, Y.; Wang, J.; Yang, L.H.; Gong, S.H. Effects of Flow Path Geometrical Parameters on the Hydraulic Performance of Variable Flow Emitters at the Conventional Water Supply Stage. Agriculture 2022, 12, 1531. [Google Scholar] [CrossRef]
- Shi, K.; Lu, T.; Zheng, W.; Zhang, X.; Zhangzhong, L. A Review of the Category, Mechanism, and Controlling Methods of Chemical Clogging in Drip Irrigation System. Agriculture 2022, 12, 202. [Google Scholar] [CrossRef]
- Li, Z.Q.; Chen, G.; Yang, X.C.; Shao, J.B. Study on Sedimentation Characteristics in Labyrinth Emitter. J. Northwest A F Univ. 2009, 37, 229–234. [Google Scholar] [CrossRef]
- Yu, L.M.; Wu, P.T.; Niu, W.Q.; Fan, X.; Zhang, L. CFD Numerical Simulation and PIV Verification About the Movement of Solid Particles in Labyrinth Channel. Trans. Chin. Soc. Agric. Mach. 2009, 40, 45–51. [Google Scholar]
- Feng, J.; Li, Y.; Wang, W.; Xue, S. Effect of Optimization Forms of Flow Path on Emitter Hydraulic and Anti-Clogging Performance in Drip Irrigation System. Irrig. Sci. 2018, 36, 37–47. [Google Scholar] [CrossRef]
- Zhai, Y.J.; Wu, W.Y.; Wang, Z.H.; Hu, Y.Q.; Xu, H. Analysis of the Effect of Pressure on Hydraulic and Anti-Clogging Performance of the Flow Channel Unit of the Irrigator Based on ANSYS Fluent Software. Water-Sav. Irrig. 2022, 47–53+59. [Google Scholar]
- Zhu, Z.; Yuan, R.B.; Chen, Y.J.; Luo, W.; Yang, X.; Cao, Z.P. Characteristic Analysis and Structure Optimization of Labyrinth Flow Channels with Different Internal Tooth Structures. J. Chongqing Univ. Technol. 2023, 37, 348–358. [Google Scholar] [CrossRef]













| Level of Factors | Tooth Height E (mm) | Pitch of Teeth B (mm) | Tooth Angle A (°) | Channel Depth D (mm) |
|---|---|---|---|---|
| Min | 0.9 | 0.9 | 25 | 0.45 |
| Max | 1.1 | 1.5 | 35 | 0.55 |
| Emitter Number | Mark | H (MPa) | |||||
|---|---|---|---|---|---|---|---|
| 0.02 | 0.04 | 0.06 | 0.8 | 0.10 | 0.15 | ||
| 62 | q (L·h−1) | 0.45 | 0.55 | 0.68 | 0.79 | 0.85 | 1.09 |
| qm (L·h−1) | 0.46 | 0.53 | 0.70 | 0.85 | 0.95 | 1.17 | |
| nRMSE (%) | 7.6 | ||||||
| x | 0.456 | ||||||
| xm | 0.463 | ||||||
| (%) | 0.70 | ||||||
| 63 | q (L·h−1) | 0.32 | 0.43 | 0.53 | 0.59 | 0.66 | 0.81 |
| qm (L·h−1) | 0.36 | 0.46 | 0.57 | 0.65 | 0.72 | 0.89 | |
| nRMSE (%) | 9.1 | ||||||
| x | 0.459 | ||||||
| xm | 0.452 | ||||||
| (%) | 0.61 | ||||||
| 64 | q (L·h−1) | 0.27 | 0.38 | 0.45 | 0.51 | 0.56 | 0.69 |
| qm (L·h−1) | 0.32 | 0.40 | 0.47 | 0.58 | 0.7 | 0.82 | |
| nRMSE (%) | 15.5 | ||||||
| x | 0.461 | ||||||
| xm | 0.487 | ||||||
| (%) | 2.60 | ||||||
| Mark | Regression Coefficient | Unstandardized Coefficient | Standardized Coefficient | t Value | p Value | Significance | |
|---|---|---|---|---|---|---|---|
| B | Standard Error | Beta | |||||
| q0.1 | Constant term | −0.572 | 0.012 | −46.884 | 0.000089 | ** | |
| D/mm | 1.305 | 0.017 | 0.449 | 76.336 | 0.0000029 | ** | |
| E/mm | 0.058 | 0.006 | 0.059 | 10.091 | 0.000057 | ** | |
| A/° | 0.001 | 0.000 | 0.025 | 4.169 | 0.000067 | ** | |
| B/mm | 0.427 | 0.003 | 0.882 | 149.854 | 0.0000012 | ** | |
| R2 | 0.67 | ||||||
| x | Constant term | 0.485 | 0.006 | 85.628 | 0.000000 | ** | |
| D/mm | −0.014 | 0.008 | −0.113 | −1.795 | 0.075078 | * | |
| E/mm | 0.011 | 0.003 | 0.262 | 4.155 | 0.000060 | ** | |
| A/° | 0.000 | 0.000 | −0.094 | −1.487 | 0.139655 | NS | |
| B/mm | −0.014 | 0.001 | −0.645 | −10.215 | 0.000015 | ** | |
| R2 | 0.996 | ||||||
| CRI | Constant term | 0.99 | 0.008 | 121.987 | 0.00752 | ** | |
| D/mm | −0.732 | 0.011 | −0.298 | −64.264 | 0.00072 | ** | |
| E/mm | −0.095 | 0.004 | −0.117 | −25.126 | 0.0035 | ** | |
| A/° | −0.002 | 0 | −0.038 | −8.179 | 0.0093 | ** | |
| B/mm | 0.389 | 0.002 | 0.952 | 205.237 | 0.000065 | ** | |
| R2 | 0.997 | ||||||
| Cs | Constant term | −0.184 | 0.091 | −2.023 | 0.045 | ** | |
| D/mm | 0.543 | 0.127 | 0.060 | 4.265 | 0.000039 | ** | |
| E/mm | −0.599 | 0.042 | −0.200 | −14.115 | 0.000087 | ** | |
| A/° | −0.046 | 0.003 | −0.254 | −17.967 | 0.000049 | ** | |
| B/mm | 1.401 | 0.021 | 0.935 | 66.021 | 0.0000086 | ** | |
| R2 | 0.975 | ||||||
| q0.1 (L/h) | Emitter Channel Structure | Characterization Indices of Hydraulic Performance and Anti-Clogging Performance of Emitter | ||||
|---|---|---|---|---|---|---|
| D (mm) | E (mm) | A (°) | B (mm) | x | Cs | |
| 0.62 | 0.55 | 0.9 | 17.46 | 0.99 | 0.470 | 0.131 |
| 0.71 | 0.54 | 0.92 | 17.46 | 1.21 | 0.466 | 0.446 |
| 0.82 | 0.55 | 0.9 | 17.46 | 1.31 | 0.463 | 0.619 |
| Filter Conditions | Emitter Number | Hydraulic Performance and Anti-Clogging Performance Index of Emitter | |||
|---|---|---|---|---|---|
| q0.1 (L/h) | x | Cs | |||
| q0.1 = 0.57–0.63 L/h | Max x | 19 | 0.63 | 0.473 | 0.186 |
| Max Cs | 53 | 0.63 | 0.471 | 0.531 | |
| q0.1 = 0.67–0.73 L/h | Max x | 101 | 0.73 | 0.473 | 0.417 |
| Max Cs | 32 | 0.72 | 0.466 | 0.930 | |
| q0.1 = 0.77–0.83 L/h | Max x | 52 | 0.78 | 0.469 | 0.794 |
| Max Cs | 58 | 0.78 | 0.463 | 0.934 | |
Disclaimer/Publisher’s Note: The statements, opinions and data contained in all publications are solely those of the individual author(s) and contributor(s) and not of MDPI and/or the editor(s). MDPI and/or the editor(s) disclaim responsibility for any injury to people or property resulting from any ideas, methods, instructions or products referred to in the content. |
© 2024 by the authors. Licensee MDPI, Basel, Switzerland. This article is an open access article distributed under the terms and conditions of the Creative Commons Attribution (CC BY) license (https://creativecommons.org/licenses/by/4.0/).
Share and Cite
Yang, Z.; Mo, Y.; Zhao, C.; Liu, H.; Zhang, Y.; Xiao, J.; Gong, S.; Bi, Y. Multi-Objective Optimization Design of the Small Flow Rate Emitter Structure Based on the NSGA-II Genetic Algorithm. Agriculture 2024, 14, 2336. https://doi.org/10.3390/agriculture14122336
Yang Z, Mo Y, Zhao C, Liu H, Zhang Y, Xiao J, Gong S, Bi Y. Multi-Objective Optimization Design of the Small Flow Rate Emitter Structure Based on the NSGA-II Genetic Algorithm. Agriculture. 2024; 14(12):2336. https://doi.org/10.3390/agriculture14122336
Chicago/Turabian StyleYang, Zongze, Yan Mo, Chunlong Zhao, Huaiyu Liu, Yanqun Zhang, Juan Xiao, Shihong Gong, and Yanan Bi. 2024. "Multi-Objective Optimization Design of the Small Flow Rate Emitter Structure Based on the NSGA-II Genetic Algorithm" Agriculture 14, no. 12: 2336. https://doi.org/10.3390/agriculture14122336
APA StyleYang, Z., Mo, Y., Zhao, C., Liu, H., Zhang, Y., Xiao, J., Gong, S., & Bi, Y. (2024). Multi-Objective Optimization Design of the Small Flow Rate Emitter Structure Based on the NSGA-II Genetic Algorithm. Agriculture, 14(12), 2336. https://doi.org/10.3390/agriculture14122336
