Seismic Damage Model of Bridge Piers Subjected to Biaxial Loading Considering the Impact of Energy Dissipation
Abstract
1. Introduction
2. Experimental
2.1. Test Specimen and Preparation
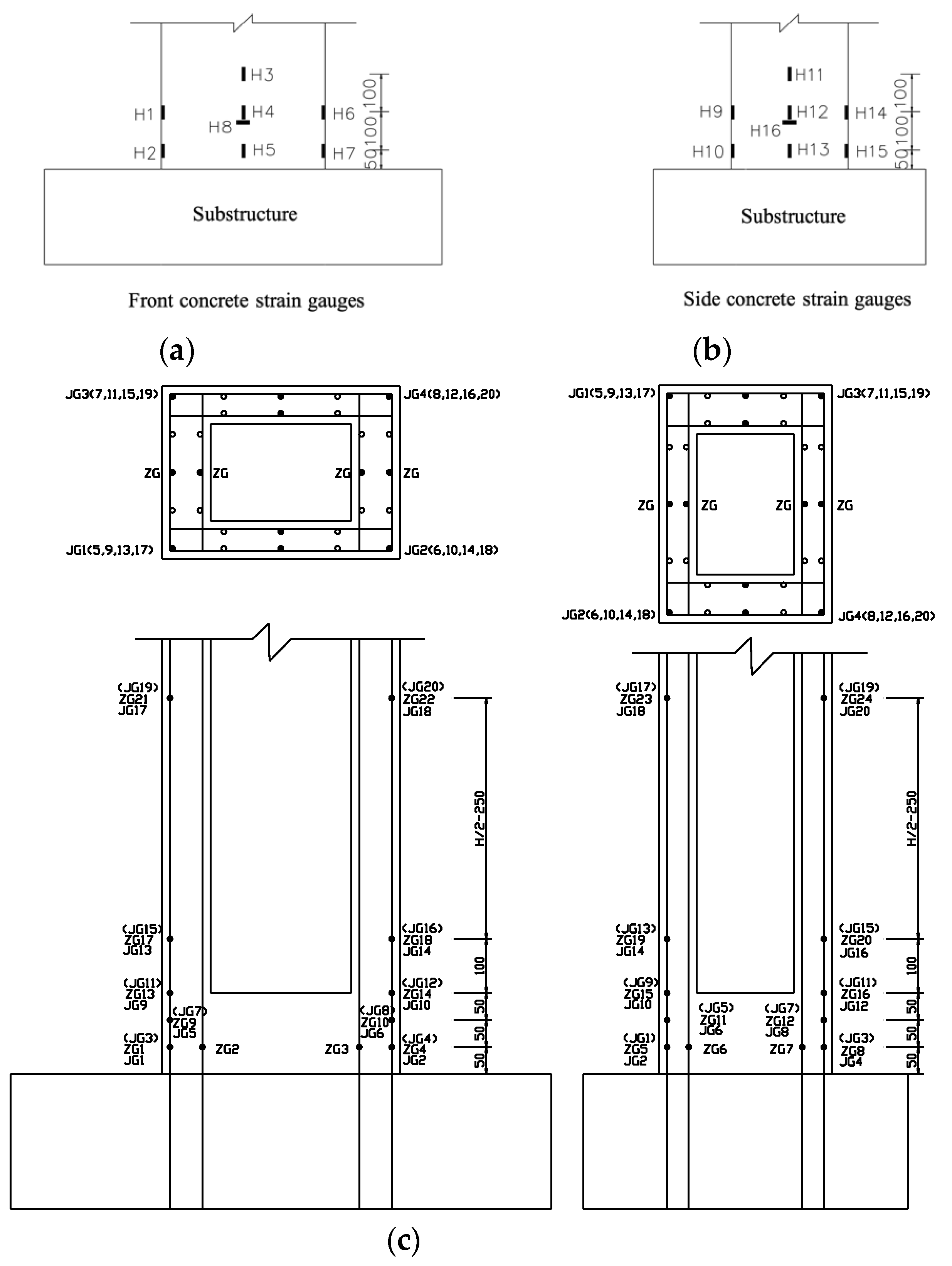
2.2. Strain Gauge Installation
2.3. Data Acquisition
2.4. Test Setup and Loading Procedure
2.5. Subsection
- Stage 1 (Figure 7a): Cracking on the concrete surface in the horizontal direction at the 4 mm displacement load after the formation of a plastic region. More cracks at higher position initiated with the increasing displacement loading;
- Stage 2 (Figure 7b): Yielding of longitudinal reinforcements at the 12 mm displacement load; the occurrence of yielding was indicated by the strain gauge values on longitudinal steels;
- Stage 3 (Figure 7c): Spalling of concrete at the footing interface after the yielding of longitudinal reinforcement at the 31 mm displacement load;
- Stage 4 (Figure 7d): Pier collapsing with the longitudinal reinforcement buckling or break in the testing end.
3. Seismic Damage Model
3.1. Review of Previous Damage Model
3.2. Modified Usami Model
3.3. Seismic Damage Model Considering Biaxial Coupling Load Effect
3.3.1. Damage Index Considering Biaxial Coupling Load Effect
3.3.2. Parameter Calibration for M-Usami Model
3.3.3. Parameter Calibration for the Usami Model and Park–Ang Model
3.4. Model Verification and Discussion
4. Conclusions
- Four consecutive damage stages were found: (a) cracking on concrete surface, (b) yielding of longitudinal reinforcements, (c) spalling of concrete, and (d) pier collapsing after the concrete crushed and the longitudinal bars ruptured due to the flexural failure.
- Both damage level and cumulative energy dissipation increase with displacement load. The damage level caused by the seismic waves can be reduced by designing specimens with a good seismic energy dissipation capacity.
- The cumulative dissipated energy parabolically increases with displacement load. Thus, the influence of energy dissipation on structural damage is more significant after the occurrence of reinforcement yielding, while the cumulative dissipated energy value is minimal when the displacement load is minute before the concrete cracking at the yielding displacement.
- The Usami damage model was improved by considering the impacts of energy dissipation at different displacement loads on the damage level to evaluate the damage index of hollow RC pier subjected to bilateral seismic excitations.
- The developed M-Usami damage index well characterizes the damage levels consistent with the testing results, and could be potentially used to evaluate the damage levels of hollow RC bridge piers in practice.
Author Contributions
Funding
Conflicts of Interest
References
- Bertagnoli, G.; Mancini, G.; Tondolo, F. Early age cracking of massive concrete piers. Mag. Concr. Res. 2011, 63, 723–736. [Google Scholar] [CrossRef]
- Wu, Z.; Wong, H.S.; Buenfeld, N.R. Transport properties of concrete after drying-wetting regimes to elucidate the effects of moisture content, hysteresis and microcracking. Cem. Concr. Res. 2017, 98, 136–154. [Google Scholar] [CrossRef]
- Zong, Z.; Xia, J.; Xu, C. Seismic study of high piers of large-span bridges: An overview and research development. J. Southeast Univ. Nat. Sci. Ed. 2013, 45, 445–452. [Google Scholar] [CrossRef]
- Chen, X.; Guan, Z.; Li, J.; Spencer, B.F., Jr. Shake Table Tests of Tall-Pier Bridges to Evaluate Seismic Performance. J. Bridge Eng. 2018, 23, 04018058. [Google Scholar] [CrossRef]
- Han, Q.; Du, X.; Zhou, Y. Experimental study of hollow rectangular bridge column performance under vertical and cyclically bilateral loads. Earthq. Eng. Eng. Vib. 2013, 12, 433–445. [Google Scholar] [CrossRef]
- Ceravolo, R.; Demarie, G.V.; Giordano, L.; Mancini, G.; Sabia, D. Problems in applying code-specified capacity design procedures to seismic design of tall piers. Eng. Struct. 2009, 31, 1811–1821. [Google Scholar] [CrossRef]
- Li, J.Z.; Tang, H.; Guan, Z. Shake table test and numerical analysis of a bridge model supported on elastomeric pad bearings. J. Earthq. Eng. 2017, 21, 604–634. [Google Scholar] [CrossRef]
- Kim, H.Y.; Lee, J.H.; Hwang, D.K.; Kwahk, I.J.; Kim, T.H.; Lee, S.H. Research for Hollow Reinforced Concrete Bridge Piers in Korea. World Acad. Sci. Eng. Technol. Int. J. Civ. Environ. Struct. Constr. Archit. Eng. 2015, 9, 951–958. [Google Scholar]
- Calvi, G.M.; Pavese, A.; Rasulo, A. Experimental and numerical studies on the seismic response of R.C. hollow bridge piers. Bull. Earthq. Eng. 2005, 3, 267–297. [Google Scholar] [CrossRef]
- Pinto, A.V.; Molina, J.; Tsionis, G. Cyclic tests on large scale models of existing bridge piers with rectangular hollow cross-section. Earthq. Eng. Struct. Dyn. 2003, 32, 1995–2012. [Google Scholar] [CrossRef]
- Yoshikazu, T.; Hirokazu, I. Inelastic seismic performance of RC tall piers with hollow section. In Proceedings of the 12th WCEE, Auckland, New Zealand, 4 February 2000. [Google Scholar]
- Yeh, Y.K.; Mo, Y.L.; Yang, C.Y. Seismic performance of rectangular hollow bridge columns. J. Struct. Eng. 2002, 128, 60–68. [Google Scholar] [CrossRef]
- Qiu, F.; Li, W.; Pan, P. Experimental tests on reinforced concrete columns under biaxial quasi-static loading. Eng. Struct. 2002, 24, 419–428. [Google Scholar] [CrossRef]
- Rodrigues, H.; Arede, A.; Varum, H.; Costa, A. Experimental study on the biaxial bending cyclic behaviour of RC columns. In Proceedings of the European Conference on Earthquake Engineering, Ohrid, Macedonia, 30 August–3 September 2010. [Google Scholar]
- Rodrigues, H.; Varum, H.; Arede, A.; Costa, A. A comparative analysis of energy dissipation and equivalent viscous damping of RC columns subjected to uniaxial and biaxial loading. Eng. Struct. 2012, 35, 149–164. [Google Scholar] [CrossRef]
- Rodrigues, H.; Varum, H.; Arede, A. Behavior of rectangular reinforced-concrete columns under biaxial cyclic loading and variable axial loads. J. Struct. Eng. 2015, 142. [Google Scholar] [CrossRef]
- Rodrigues, H.; Varum, H.; Arede, A.; Vila-Pouca, N.; Varum, H. Experimental study of repaired RC columns subjected to uniaxial and biaxial horizontal loading and variable axial load with longitudinal reinforcement welded steel bars solutions. Eng. Struct. 2018, 155, 371–386. [Google Scholar] [CrossRef]
- Tsuno, K.; Park, R. Experimental study of reinforced concrete bridge piers subjected to bidirectional quasi-static loading. Doboku Gakkai Ronbunshu 2004, 2004, 11–26. [Google Scholar] [CrossRef][Green Version]
- Chang, S.Y. Experimental studies of reinforced concrete bridge columns under axial load plus biaxial bending. J. Struct. Eng. 2009, 136, 12–25. [Google Scholar] [CrossRef]
- Cassese, P.; Ricci, P.; Verderame, G.M. Experimental study on the seismic performance of existing reinforced concrete bridge piers with hollow rectangular section. Eng. Struct. 2017, 144, 88–106. [Google Scholar] [CrossRef]
- Kumar, S.; Usami, T. A note on the evaluation of damage in steel structures under cyclic loading. J. Struct. Eng. 1994, 40, 177–188. [Google Scholar]
- Park, Y.J.; Ang, A.H.S. Mechanistic seismic damage model for reinforced concrete. J. Struct. Eng. 1985, 111, 722–739. [Google Scholar] [CrossRef]
- Kumar, S.; Usami, T. Damage evaluation in steel box columns by cyclic loading tests. J. Struct. Eng. 1996, 122, 626–634. [Google Scholar] [CrossRef]
- Wu, Z.; Wong, H.S.; Buenfeld, N.R. Effect of confining pressure and microcracks on mass transport properties of concrete. Adv. Appl. Ceram. 2014, 113, 485–495. [Google Scholar] [CrossRef]
- Wang, B.; Zheng, S.; Guo, X. Study on Restoring Force Model of SRHSHPC Frame Columns Considering Damage Effects. J. Build. Struct. 2012, 33, 69–76. (In Chinese) [Google Scholar]
- Sharifi, A.; Banan, M.R.; Banan, M.R. A strain-consistent approach for determination of bounds of ductility damage index for different performance levels for seismic design of RC frame members. Eng. Struct. 2012, 37, 143–151. [Google Scholar] [CrossRef]
- Mahboubi, S.; Shiravand, M.R. Proposed Input Energy-Based Damage Index for RC Bridge Piers. J. Bridge Eng. 2018, 24, 04018103. [Google Scholar] [CrossRef]
- Qu, Z.; Ye, L.-P. Strength deterioration model based on effective Hysteretic energe dissipation for RC members under cyclic loading. Eng. Mech. 2010, 28, 45–51. (In Chinese) [Google Scholar]
- Jiang, H.J.; Chen, L.Z.; Chen, Q. Seismic damage assessment and performance levels of reinforced concrete members. Procedia Eng. 2011, 14, 939–945. [Google Scholar] [CrossRef]
- Xia, J.; Zong, Z.; Xu, C.; Li, M. Seismic performance of double—skin steel—concrete composite box piers: Part I—Bidirectional quasi-static testing. J. Southeast Univ. 2016, 32, 58–66. [Google Scholar]
- FEMA. HAZUS: Multi-Hazard Loss Estimation Methodology Earthquake Model: Technical Manual. Available online: https://www.fema.gov/media-library/assets/documents/24609 (accessed on 6 October 2018).














| Specimen No. | Note | H (m) | n (%) | (%) | Ec (MPa) | |||
|---|---|---|---|---|---|---|---|---|
| B1 | Different axial load ratios with H = 4.8 m | 4.8 | 0.20 | 13.1 | 1.06 | 44.60 | 3.23 | 3.08 × 104 |
| B2 | 4.8 | 0.10 | 13.1 | 1.06 | 44.60 | 3.23 | 3.08 × 104 | |
| B3 | 4.8 | 0.05 | 13.1 | 1.06 | 49.15 | 3.36 | 3.14 × 104 | |
| B4 | Different stirrup ratios with H = 4.8 m | 4.8 | 0.10 | 13.1 | 0.73 | 49.15 | 3.36 | 3.14 × 104 |
| B5 | 4.8 | 0.10 | 13.1 | 0.56 | 49.15 | 3.36 | 3.14 × 104 | |
| B6 | Different axial load ratios with H = 5.8 m | 5.8 | 0.20 | 16.3 | 1.06 | 49.15 | 3.36 | 3.14 × 104 |
| B7 | 5.8 | 0.10 | 16.3 | 1.06 | 49.15 | 3.36 | 3.14 × 104 | |
| B8 | 5.8 | 0.05 | 16.3 | 1.06 | 49.15 | 3.36 | 3.14 × 104 | |
| B9 | Different axial load ratios with H = 3.8 m | 3.8 | 0.20 | 10.0 | 1.06 | 54.47 | 3.74 | 3.15 × 104 |
| B10 | 3.8 | 0.10 | 10.0 | 1.06 | 54.47 | 3.74 | 3.15 × 104 | |
| B11 | 3.8 | 0.05 | 10.0 | 1.06 | 49.15 | 3.36 | 3.14 × 104 | |
| B12 | Different slenderness ratios with H = 2.8 m | 2.8 | 0.20 | 6.9 | 1.06 | 54.47 | 3.74 | 3.15 × 104 |
| B13 | 2.8 | 0.10 | 6.9 | 1.06 | 54.47 | 3.74 | 3.15 × 104 | |
| B14 | 2.8 | 0.05 | 6.9 | 1.06 | 49.15 | 3.36 | 3.14 × 104 |
| Categories | Types | Resistance | Sensitivity Coefficient | Gate Length × Gate Width | Precision Grade |
|---|---|---|---|---|---|
| Concrete strain gauge | BX120-50AA | 119.9 ± 0.1 Ω | 2.08 ± 1% | 50 mm × 3 mm | A |
| Steel strain gauge | BX120-5AA | 119.9 ± 0.1 Ω | 2.08 ± 1% | 3 mm × 2 mm | A |
| Specimen | Axial Load Ratio n | in X Direction | Test Constant c in X Direction | in Y Direction | Test Constant c in Y Direction | ||
|---|---|---|---|---|---|---|---|
| B1 | 0.2 | 13.1 | 1.06 | π/4 | 1.64 | π/4 | 2.28 |
| B2 | 0.1 | 13.1 | 1.06 | π/4 | 1.79 | π/4 | 2.40 |
| B3 | 0.05 | 13.1 | 1.06 | π/4 | 1.84 | π/4 | 2.39 |
| B4 | 0.1 | 13.1 | 0.73 | π/4 | 2.64 | π/4 | 3.16 |
| B5 | 0.1 | 13.1 | 0.56 | π/4 | 2.92 | π/4 | 4.16 |
| B6 | 0.2 | 16.3 | 1.06 | π/4 | 2.00 | π/4 | 2.33 |
| B7 | 0.1 | 16.3 | 1.06 | π/4 | 2.09 | π/4 | 2.65 |
| B8 | 0.05 | 16.3 | 1.06 | π/4 | 2.15 | π/4 | 2.65 |
| B9 | 0.2 | 10 | 1.06 | π/4 | 1.43 | π/4 | 2.08 |
| B10 | 0.1 | 10 | 1.06 | π/4 | 1.54 | π/4 | 2.30 |
| B11 | 0.05 | 10 | 1.06 | π/4 | 1.55 | π/4 | 2.40 |
| B12 | 0.2 | 6.9 | 1.06 | π/4 | 1.11 | π/4 | 1.84 |
| B13 | 0.1 | 6.9 | 1.06 | π/4 | 1.18 | π/4 | 2.00 |
| B14 | 0.05 | 6.9 | 1.06 | π/4 | 1.30 | π/4 | 1.98 |
| Damage Index | Performance Level | Performance Objective | Damage Level Description | Qualitative Description of the Performance Level Division (Failure Phenomenon) |
|---|---|---|---|---|
| < 0.1 | I | Can use after simple repair | Most in good condition, minor damage only | No damage or local concrete slight cracking |
| 0.1 ≤ < 0.40 | II | Much damage needs to be repaired | Moderate damage | Cracking phenomenon is common and lateral longitudinal reinforcement yielded |
| 0.4 ≤ < 1.0 | III | Structure with unrepairable damage | Heavy damage | Concrete crushed and the ultimate bearing capacity reached |
| > 1.0 | IV | Structure collapse | Collapse | Ultimate compressive strain of core concrete, ultimate strength of longitudinal reinforcement reached; 85% of the limited load. |
© 2019 by the authors. Licensee MDPI, Basel, Switzerland. This article is an open access article distributed under the terms and conditions of the Creative Commons Attribution (CC BY) license (http://creativecommons.org/licenses/by/4.0/).
Share and Cite
Lin, S.; Xia, Z.; Xia, J. Seismic Damage Model of Bridge Piers Subjected to Biaxial Loading Considering the Impact of Energy Dissipation. Appl. Sci. 2019, 9, 1481. https://doi.org/10.3390/app9071481
Lin S, Xia Z, Xia J. Seismic Damage Model of Bridge Piers Subjected to Biaxial Loading Considering the Impact of Energy Dissipation. Applied Sciences. 2019; 9(7):1481. https://doi.org/10.3390/app9071481
Chicago/Turabian StyleLin, Shangshun, Zhanghua Xia, and Jian Xia. 2019. "Seismic Damage Model of Bridge Piers Subjected to Biaxial Loading Considering the Impact of Energy Dissipation" Applied Sciences 9, no. 7: 1481. https://doi.org/10.3390/app9071481
APA StyleLin, S., Xia, Z., & Xia, J. (2019). Seismic Damage Model of Bridge Piers Subjected to Biaxial Loading Considering the Impact of Energy Dissipation. Applied Sciences, 9(7), 1481. https://doi.org/10.3390/app9071481
