Predictive Equations for Modeling Shear Behavior in RC Columns with Non-Seismic Details for Enhanced Seismic Performance Assessment
Abstract
1. Introduction
2. Shear Spring Model
2.1. Analytical Model Types
2.2. Pinching4 Model

3. Predictive Equations for Shear Spring Parameters
3.1. Selected Experimental Data
- Rectangular cross-section;
- Reverse cyclic loading;
- Concrete compressive strength less than 35 MPa;
- Shear-span-to-depth ratio less than 3.5;
- Transverse reinforcement ratio less than 0.0025;
- Section aspect ratio (height/width) lower than 2.0;
- Confinement types limited to rectangular ties (Rs), rectangular and diagonal ties (RDs), and rectangular ties with J-hooks (RJs);
- Single specimen tested (cantilever (C) or double curvature (DC)).
3.2. Calibration of Model Parameters
- Maximum energy dissipation capacity coefficient: This is defined as the ratio of the total area under the backbone curve to the area up to the yield point.
- Residual strength and displacement: Residual strength () is assumed to be zero for simplicity, and the corresponding displacement () is taken as 1.5 times the maximum specimen displacement.
3.3. Development of Predictive Equations
3.4. Verification of Proposed Equations
3.5. Comparison with Existing Models
4. Seismic Fragility Assessment
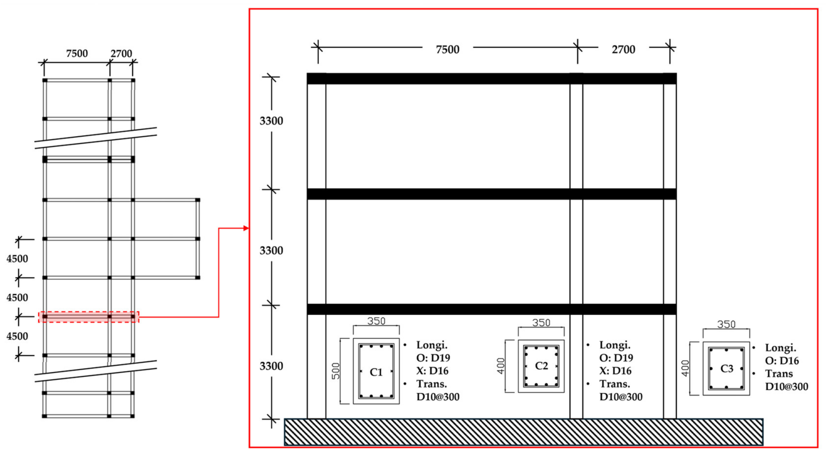
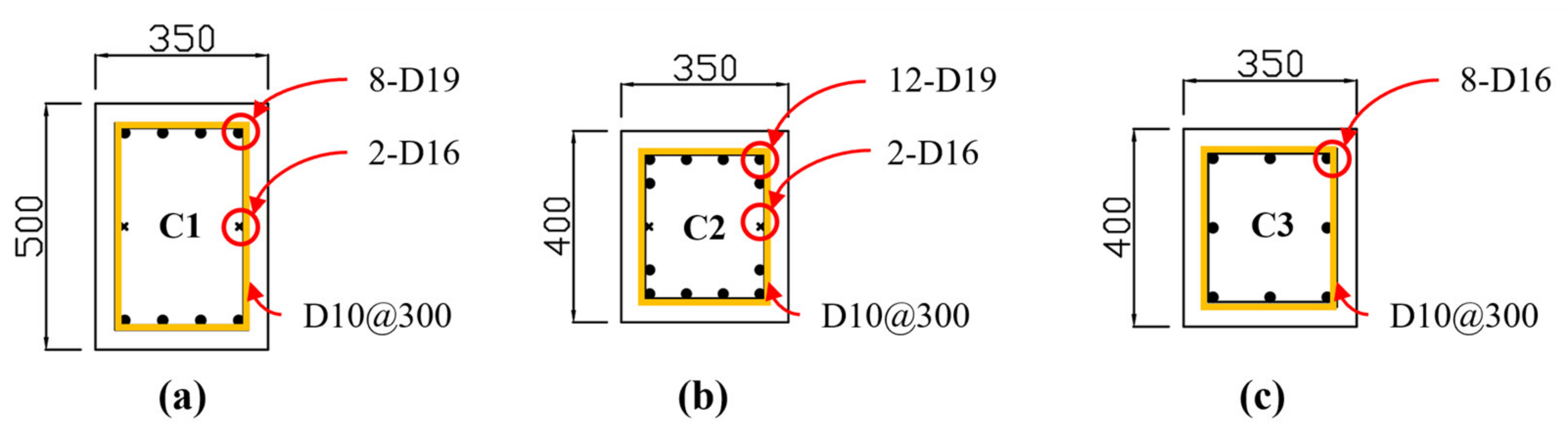
4.1. Selected Structure
4.2. Analytical Models
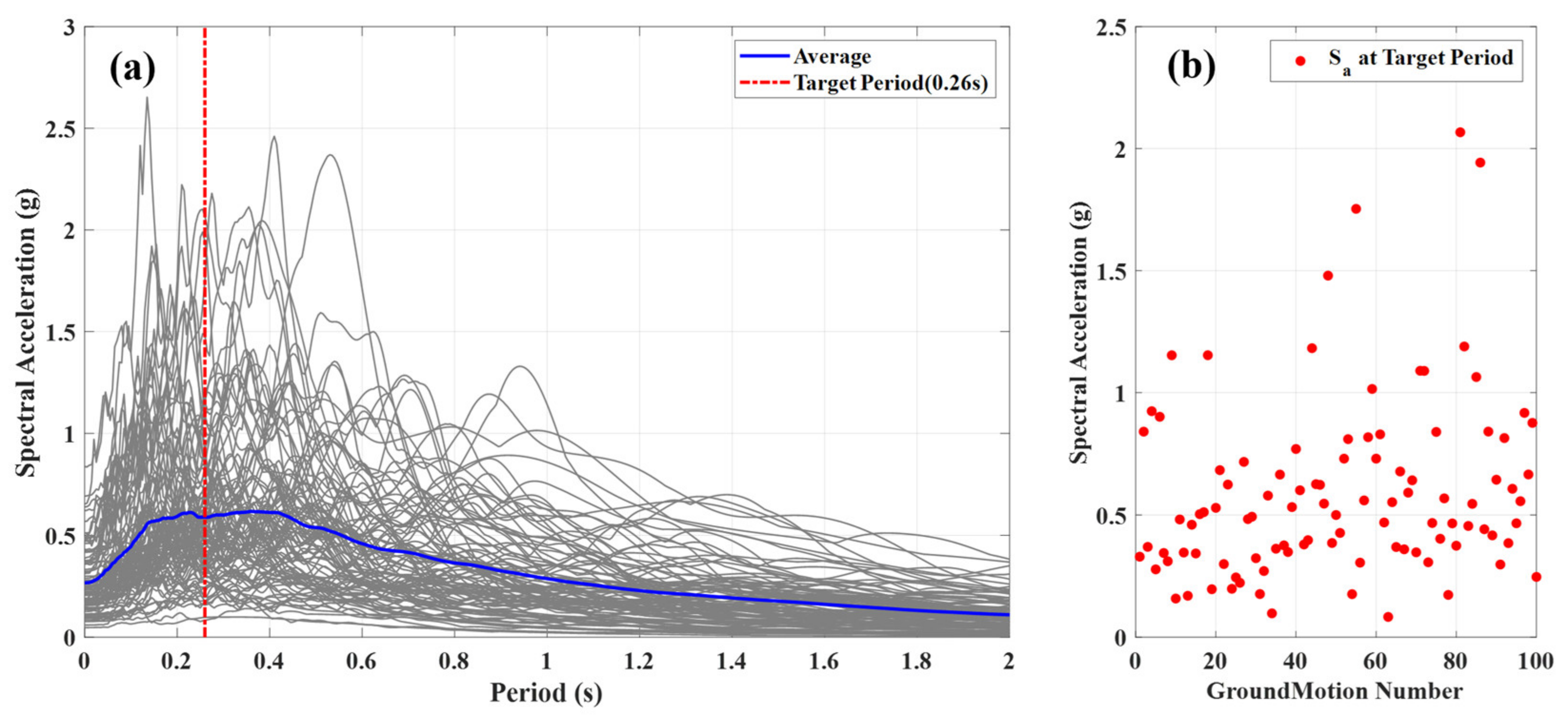
4.3. Selected Ground Motions and Limit States
4.4. Seismic Fragility Curves
5. Conclusions
Author Contributions
Funding
Institutional Review Board Statement
Informed Consent Statement
Data Availability Statement
Conflicts of Interest
Abbreviations
| RC | reinforced concrete |
| PGA | peak ground acceleration |
| SA | spectral acceleration |
| PEER | Pacific Earthquake Engineering Research |
| R | rectangular |
| RDs | rectangular and diagonal ties |
| RJs | rectangular ties with J-hooks |
| C | cantilever |
| DC | double curvature |
| F | flexural failure |
| FS | flexural–shear failure |
| S | shear failure |
| IDR | interstory drift ratio |
Appendix A
| Specimen | B (mm) | H (mm) | L (mm) | (MPa) | (MPa) | (MPa) | (kN) | Failure Mode | |||
|---|---|---|---|---|---|---|---|---|---|---|---|
| No. | Name | ||||||||||
| 1 | tana90u5 | 550.0 | 550.0 | 1650.0 | 32.0 | 511.0 | 325 | 0.012 | 0.032 | 968 | F |
| 2 | tana90u7 * | 550.0 | 550.0 | 1650.0 | 32.1 | 511.0 | 325 | 0.012 | 0.039 | 2913 | F |
| 3 | nag1063 | 200.0 | 200.0 | 300.0 | 21.6 | 371.0 | 344 | 0.013 | 0.018 | 147 | S |
| 4 | oh2d16rs | 200.0 | 200.0 | 400.0 | 32.0 | 369.0 | 316 | 0.020 | 0.013 | 183 | FS |
| 5 | oh4d13rs | 200.0 | 200.0 | 400.0 | 29.9 | 370.0 | 316 | 0.027 | 0.012 | 183 | FS |
| 6 | imai86 | 400.0 | 500.0 | 825.0 | 27.1 | 318.0 | 336 | 0.027 | 0.007 | 392 | S |
| 7 | zho10408 | 160.0 | 160.0 | 160.0 | 19.8 | 341.0 | 559 | 0.022 | 0.016 | 406 | S |
| 8 | zho11408 | 160.0 | 160.0 | 160.0 | 19.8 | 341.0 | 559 | 0.022 | 0.016 | 406 | S |
| 9 | zho12408 * | 160.0 | 160.0 | 160.0 | 19.8 | 341.0 | 559 | 0.022 | 0.039 | 406 | S |
| 10 | zho20408 * | 160.0 | 160.0 | 320.0 | 21.1 | 341.0 | 559 | 0.022 | 0.016 | 432 | FS |
| 11 | zho21408 * | 160.0 | 160.0 | 320.0 | 21.1 | 341.0 | 559 | 0.022 | 0.016 | 432 | F |
| 12 | zho22309 * | 160.0 | 160.0 | 320.0 | 21.1 | 341.0 | 559 | 0.022 | 0.039 | 486 | FS |
| 13 | zho30207 * | 160.0 | 160.0 | 480.0 | 28.8 | 341.0 | 559 | 0.022 | 0.016 | 517 | FS |
| 14 | zho31207 * | 160.0 | 160.0 | 480.0 | 28.8 | 341.0 | 559 | 0.022 | 0.016 | 517 | FS |
| 15 | zho32207 * | 160.0 | 160.0 | 480.0 | 28.8 | 341.0 | 559 | 0.022 | 0.039 | 517 | FS |
| 16 | kanstc1 * | 250.0 | 250.0 | 750.0 | 27.9 | 374.0 | 506 | 0.016 | 0.008 | 184 | F |
| 17 | kanstc2 * | 250.0 | 250.0 | 750.0 | 27.9 | 374.0 | 506 | 0.016 | 0.008 | 184 | F |
| 18 | kanstc3 * | 250.0 | 250.0 | 750.0 | 27.9 | 374.0 | 506 | 0.016 | 0.008 | 184 | F |
| 19 | ara89oa2 | 180.0 | 180.0 | 225.0 | 31.8 | 340.0 | 249 | 0.031 | 0.006 | 190 | S |
| 20 | ara89oa5 | 180.0 | 180.0 | 225.0 | 33.0 | 340.0 | 249 | 0.031 | 0.006 | 476 | S |
| 21 | umecus | 230.0 | 410.0 | 455.0 | 34.9 | 441.0 | 414 | 0.030 | 0.011 | 534 | S |
| 22 | umecuw | 410.0 | 230.0 | 455.0 | 34.9 | 441.0 | 414 | 0.030 | 0.010 | 534 | S |
| 23 | bettno11 | 305.0 | 305.0 | 457.0 | 29.9 | 462.0 | 414 | 0.024 | 0.006 | 288 | S |
| 24 | saatu3 | 350.0 | 350.0 | 1000.0 | 34.8 | 430.0 | 470 | 0.032 | 0.016 | 600 | F |
| 25 | saatu4 | 350.0 | 350.0 | 1000.0 | 32.0 | 438.0 | 470 | 0.032 | 0.023 | 600 | F |
| 26 | ly3clh18 | 457.2 | 457.2 | 1473.2 | 26.9 | 331.0 | 399.9 | 0.030 | 0.002 | 503 | S |
| 27 | ly2clh18 | 457.2 | 457.2 | 1473.2 | 33.1 | 331.0 | 399.9 | 0.019 | 0.002 | 503 | FS |
| 28 | ly2cmh18 | 457.2 | 457.2 | 1473.2 | 25.5 | 331.0 | 399.9 | 0.019 | 0.002 | 1512 | FS |
| 29 | ly3cmh18 | 457.2 | 457.2 | 1473.2 | 27.6 | 331.0 | 399.9 | 0.030 | 0.002 | 1512 | S |
| 30 | ly3cmd12 | 457.2 | 457.2 | 1473.2 | 27.6 | 331.0 | 399.9 | 0.030 | 0.006 | 1512 | S |
| 31 | ly3slh18 | 457.2 | 457.2 | 1473.2 | 26.9 | 331.0 | 399.9 | 0.030 | 0.002 | 503 | S |
| 32 | ly2slh18 | 457.2 | 457.2 | 1473.2 | 33.1 | 331.0 | 399.9 | 0.019 | 0.002 | 503 | FS |
| 33 | ly3smd12 | 457.2 | 457.2 | 1473.2 | 25.5 | 331.0 | 399.9 | 0.030 | 0.006 | 1512 | FS |
| 34 | moc11 * | 400.0 | 400.0 | 1400.0 | 24.9 | 497.0 | 459.5 | 0.021 | 0.026 | 450 | F |
| 35 | moc12 * | 400.0 | 400.0 | 1400.0 | 26.7 | 497.0 | 459.5 | 0.021 | 0.026 | 675 | F |
| 36 | moc13 * | 400.0 | 400.0 | 1400.0 | 26.1 | 497.0 | 459.5 | 0.021 | 0.026 | 900 | F |
| 37 | sezen1 | 457.2 | 457.2 | 1473.2 | 21.1 | 434.4 | 476 | 0.025 | 0.005 | 667 | FS |
| 38 | sezen2 | 457.2 | 457.2 | 1473.2 | 21.1 | 434.4 | 476 | 0.025 | 0.005 | 2669 | FS |
| 39 | sezen4 | 457.2 | 457.2 | 1473.2 | 21.8 | 434.4 | 476 | 0.025 | 0.005 | 667 | FS |
| 40 | Takemura_ Kawashima3 | 400.0 | 400.0 | 1245.0 | 34.3 | 363.0 | 368 | 0.016 | 0.005 | 157 | F |
| Specimen | (mm) | (mm) | (mm) | (kN) | (kN) | (kN) | |||||||
|---|---|---|---|---|---|---|---|---|---|---|---|---|---|
| No * | Name | ||||||||||||
| 1 | tana90u5 | 3.88 | 9.19 | 68.82 | 263.49 | 366.10 | 443.46 | 0.50 | 0.70 | −0.15 | 1.50 | 0.50 | 0.70 |
| 3 | nag1063 | 0.40 | 1.10 | 3.89 | 49.97 | 86.18 | 95.61 | 0.20 | 0.20 | −0.10 | 1.00 | 1.00 | 0.80 |
| 4 | oh2d16rs | 1.28 | 4.18 | 14.63 | 54.09 | 99.20 | 111.52 | 0.13 | 0.20 | −0.05 | 0.75 | 0.30 | 0.45 |
| 5 | oh4d13rs | 1.45 | 3.29 | 8.58 | 70.32 | 104.97 | 121.65 | 0.18 | 0.30 | −0.30 | 1.50 | 1.00 | 1.10 |
| 6 | imai86 | 0.30 | 2.81 | 13.97 | 240.98 | 483.95 | 518.44 | 0.15 | 0.35 | −0.20 | 11.00 | 2.20 | 4.00 |
| 7 | zho10408 | 0.22 | 0.90 | 1.59 | 43.02 | 85.34 | 90.98 | 0.05 | 0.30 | −0.50 | 1.30 | 0.50 | 1.00 |
| 8 | zho11408 | 0.50 | 1.20 | 2.59 | 50.10 | 84.83 | 100.44 | 0.20 | 0.40 | −0.50 | 1.00 | 1.10 | 0.50 |
| 19 | ara89oa2 | 0.51 | 1.27 | 2.23 | 91.86 | 125.51 | 156.70 | 0.05 | 0.15 | −0.50 | 2.00 | 0.20 | 1.00 |
| 20 | ara89oa5 | 0.28 | 0.53 | 2.76 | 84.37 | 118.08 | 133.96 | 0.10 | 0.22 | −0.60 | 3.50 | 0.10 | 2.87 |
| 21 | umecus | 1.20 | 3.18 | 7.47 | 227.77 | 301.33 | 387.18 | 0.20 | 0.20 | −0.05 | 3.00 | 1.80 | 3.00 |
| 22 | umecuw | 1.00 | 2.81 | 8.55 | 93.29 | 240.05 | 289.49 | 0.15 | 0.19 | 0.00 | 2.00 | 1.50 | 2.20 |
| 23 | bettno11 | 2.19 | 4.22 | 9.18 | 161.81 | 234.97 | 267.01 | 0.10 | 0.20 | −0.15 | 11.00 | 2.80 | 2.00 |
| 24 | saatu3 | 4.15 | 19.00 | 44.90 | 138.36 | 274.56 | 293.70 | 0.10 | 0.60 | −0.10 | 0.50 | 0.00 | 0.70 |
| 25 | saatu4 | 1.28 | 11.80 | 89.20 | 126.06 | 307.50 | 358.49 | 0.10 | 0.45 | −0.10 | 1.00 | 0.30 | 0.70 |
| 26 | ly3clh18 | 3.19 | 7.00 | 19.10 | 158.40 | 287.10 | 304.70 | 0.30 | 0.30 | −0.15 | 1.50 | 1.60 | 5.50 |
| 27 | ly2clh18 | 0.72 | 6.91 | 25.30 | 93.67 | 235.00 | 313.00 | 0.35 | 0.55 | −0.25 | 1.50 | 0.05 | 0.65 |
| 28 | ly2cmh18 | 1.59 | 5.96 | 14.90 | 157.20 | 298.00 | 366.00 | 0.10 | 0.40 | −0.50 | 0.30 | 0.20 | 0.25 |
| 29 | ly3cmh18 | 2.16 | 6.84 | 13.50 | 139.20 | 343.20 | 360.80 | 0.20 | 0.25 | −0.50 | 1.00 | 2.70 | 2.00 |
| 30 | ly3cmd12 | 3.42 | 11.20 | 18.50 | 214.80 | 369.60 | 390.50 | 0.25 | 0.50 | −0.25 | 0.50 | 0.00 | 0.60 |
| 31 | ly3slh18 | 1.91 | 7.73 | 45.50 | 110.28 | 266.20 | 297.00 | 0.22 | 0.20 | −0.20 | 2.00 | 4.00 | 5.50 |
| 32 | ly2slh18 | 1.88 | 4.96 | 53.80 | 96.00 | 220.00 | 297.70 | 0.40 | 0.60 | −0.40 | 7.00 | 4.00 | 5.00 |
| 33 | ly3smd12 | 3.73 | 7.89 | 25.09 | 260.38 | 382.02 | 438.35 | 0.30 | 0.50 | −0.40 | 0.50 | 2.00 | 2.00 |
| 37 | sezen1 | 3.01 | 8.20 | 55.02 | 118.18 | 306.84 | 332.77 | 0.40 | 0.30 | −0.20 | 1.00 | 3.00 | 8.00 |
| 38 | sezen2 | 1.20 | 9.32 | 12.14 | 185.46 | 375.07 | 391.29 | 0.20 | 0.40 | −0.50 | 1.00 | 1.00 | 1.00 |
| 39 | sezen4 | 4.12 | 12.84 | 30.15 | 162.58 | 297.91 | 324.04 | 0.15 | 0.30 | 0.00 | 0.00 | 0.50 | 0.50 |
| 40 | Takemura Kawashima3 | 2.40 | 6.58 | 74.18 | 86.63 | 146.40 | 168.42 | 0.20 | 0.70 | 0.10 | 2.00 | 5.00 | 3.00 |
References
- Seismic Building Design Code (KDS 41 17 00); Korean Design Standard. Mimistry of Land: Seoul, Republic of Korea, 2019.
- El-Attar, A.G.; White, R.N.; Gergely, P. Shake Table Test of a 1/6 Scale Three-Story Lightly Reinforced Concrete Building; National Center for Earthquake Engineering Research, State University of New York at Buffalo: Buffalo, NY, USA, 1991. [Google Scholar]
- Beres, A.; White, R.N.; Gergely, P. Seismic Behavior of Reinforced Concrete Frame Structures with Nonductile Details: Part I—Summary of Experimental Findings of Full Scale Beam-Column Joint Tests; U.S. National Center for Earthquake Engineering Research: New York, NY, USA, 1992. [Google Scholar]
- Bracci, J.M.; Reinhorn, A.M.; Mander, J.B. Seismic Resistance of Reinforced Concrete Frame Structures Designed for Gravity Loads: Performance of Structural System. ACI Mater. J. 1995, 92, 597–609. [Google Scholar] [CrossRef]
- Cosenza, E.; Manfredi, G.; Verderame, G. Seismic Assessment of Gravity Load Designed Rc Frames: Critical Issues in Structural Modelling. J. Earthq. Eng. 2002, 6, 101–122. [Google Scholar] [CrossRef]
- Nicoletti, V.; Carbonari, S.; Gara, F. Nomograms for the Pre-Dimensioning of RC Beam-Column Joints According to Eurocode 8. Structures 2022, 39, 958–973. [Google Scholar] [CrossRef]
- Liang, S.L.; Fu, F.; Huang, Z.Q.; Qian, K. Enhancement of Collapse-Resistant Capacity of Non-Seismically Designed RC Frames Using Various CFRP Strengthening Schemes. Eng. Struct. 2023, 291, 116450. [Google Scholar] [CrossRef]
- Ozcan, O.; Binici, B.; Ozcebe, G. Improving Seismic Performance of Deficient Reinforced Concrete Columns Using Carbon Fiber-Reinforced Polymers. Eng. Struct. 2008, 30, 1632–1646. [Google Scholar] [CrossRef]
- Kim, S.; Kim, S.J.; Chang, C. Seismic Performance Evaluation of RC Columns Retrofitted by 3D Textile Reinforced Mortars. Materials 2022, 15, 592. [Google Scholar] [CrossRef]
- Bakalis, K.; Vamvatsikos, D. Seismic Fragility Functions via Nonlinear Response History Analysis. J. Struct. Eng. 2018, 144, 04018181. [Google Scholar] [CrossRef]
- Kennedy, R.P.; Ravindra, M.K. Seismic Fragilities for Nuclear Power Plant Risk Studies. Nucl. Eng. Des. 1984, 79, 47–68. [Google Scholar] [CrossRef]
- Argyroudis, S.; Kaynia, A.M. Analytical Seismic Fragility Functions for Highway and Railway Embankments and Cuts. Earthq. Eng. Struct. Dyn. 2015, 44, 1863–1879. [Google Scholar] [CrossRef]
- Elwood, K.J. Modelling Failures in Existing Reinforced Concrete Columns. Can. J. Civ. Eng. 2004, 31, 846–859. [Google Scholar] [CrossRef]
- Haselton, C.B. Assessing Seismic Collapse Safety of Modern Reinforced Concrete Moment Frame Buildings; Stanford University: Stanford, CA, USA, 2006. [Google Scholar]
- LeBorgne, M.R.; Ghannoum, W.M. Calibrated Analytical Element for Lateral-Strength Degradation of Reinforced Concrete Columns. Eng. Struct. 2014, 81, 35–48. [Google Scholar] [CrossRef]
- Lee, C.S.; Han, S.W. Computationally Effective and Accurate Simulation of Cyclic Behaviour of Old Reinforced Concrete Columns. Eng. Struct. 2018, 173, 892–907. [Google Scholar] [CrossRef]
- Jeon, J.S.; Lowes, L.N.; DesRoches, R.; Brilakis, I. Fragility Curves for Non-Ductile Reinforced Concrete Frames That Exhibit Different Component Response Mechanisms. Eng. Struct. 2015, 85, 127–143. [Google Scholar] [CrossRef]
- Huang, C.; Huang, S. Seismic Resilience Assessment of Aging Bridges with Different Failure Modes. Structures 2021, 33, 3682–3690. [Google Scholar] [CrossRef]
- Huang, C.; Chen, L.; He, L.; Zhuo, W. Comparative Assessment of Seismic Collapse Risk for Non-Ductile and Ductile Bridges: A Case Study in China. Bull. Earthq. Eng. 2021, 19, 6641–6667. [Google Scholar] [CrossRef]
- Liu, K.Y.; Witarto, W.; Chang, K.C. Composed Analytical Models for Seismic Assessment of Reinforced Concrete Bridge Columns. Earthq. Eng. Struct. Dyn. 2015, 44, 265–281. [Google Scholar] [CrossRef]
- Haselton, C.B.; Liel, A.B.; Taylor-Lange, S.C.; Deierlein, G.G. Calibration of Model to Simulate Response of Reinforced Concrete Beam-Columns to Collapse. ACI Struct. J. 2016, 113, 1141–1152. [Google Scholar] [CrossRef]
- Ibarra, L.F.; Medina, R.A.; Krawinkler, H. Hysteretic Models That Incorporate Strength and Stiffness Deterioration. Earthq. Eng. Struct. Dyn. 2005, 34, 1489–1511. [Google Scholar] [CrossRef]
- Lowes, L.N.; Mitra, N.; Altoontash, A. A Beam-Column Joint Model for Simulating the Earthquake Response of Reinforced Concrete Frames. Peer2003/10 2003, 88, 421. [Google Scholar]
- Spacone, E.; Ciampi, V.; Filippou, F.C. Mixed Formulation of Nonlinear Beam Finite Element. Comput. Struct. 1996, 58, 71–83. [Google Scholar] [CrossRef]
- Mazzoni, S.; Mckenna, F.; Scott, M.H.; Fenves, G.L.; Iii, A. Open System for Earthquake Engineering Simulation (OpenSees) OpenSees Command Language Manual; Pacific Earthquake Engineering Research (PEER) Center: Berkeley, CA, USA, 2006. [Google Scholar]
- Huang, X.; Kwon, O.S. Numerical Models of RC Elements and Their Impacts on Seismic Performance Assessment. Earthq. Eng. Struct. Dyn. 2015, 44, 283–298. [Google Scholar] [CrossRef]
- Deierlein, G.G.; Reinhorn, A.M.; Willford, M.R. Nonlinear Structural Analysis For Seismic Design: A Guide for Practicing Engineers; NIST: Gaithersburg, MD, USA, 2010. [Google Scholar]
- Lignos, D.G.; Krawinkler, H. Deterioration Modeling of Steel Components in Support of Collapse Prediction of Steel Moment Frames under Earthquake Loading. J. Struct. Eng. 2011, 137, 1291–1302. [Google Scholar] [CrossRef]
- Berry, M.; Parrish, M.; Eberhard, M. PEER Structural Performance Database User’s Manual (Version 1.0) Table of Contents; Pacific Earthquake Engineering Research (PEER) Center: Berkeley, CA, USA, 2004. [Google Scholar]
- Cusson, D.; Paultre, P. High-Strength Concrete Columns Confined by Rectangular Ties. J. Struct. Eng. 1994, 120, 783–804. [Google Scholar] [CrossRef]
- Setzler, E.J.; Sezena, H. Model for the Lateral Behavior of Reinforced Concrete Columns Including Shear Deformations. Earthq. Spectra 2008, 24, 493–511. [Google Scholar] [CrossRef]
- Lee, H.S.; Kage, T.; Noguchi, T.; Tomosawa, F. An Experimental Study on the Retrofitting Effects of Reinforced Concrete Columns Damaged by Rebar Corrosion Strengthened with Carbon Fiber Sheets. Cem. Concr. Res. 2003, 33, 563–570. [Google Scholar] [CrossRef]
- Kargaran, A.; Kheyroddin, A. Experimental and Numerical Investigation of Seismic Retrofitting of RC Square Short Columns Using FRP Composites. Eur. J. Environ. Civ. Eng. 2022, 26, 4619–4642. [Google Scholar] [CrossRef]
- Truong, G.T.; Kim, J.C.; Choi, K.K. Seismic Performance of Reinforced Concrete Columns Retrofitted by Various Methods. Eng. Struct. 2017, 134, 217–235. [Google Scholar] [CrossRef]
- Wang, X.; Wu, S.; Jia, J.; Li, H.; Wei, Y.; Zhang, K.; Bai, Y. Experimental Evaluation of Seismic Performance of Corroded Precast RC Bridge Columns and the Retrofit Measure Using CFRP Jackets. Eng. Struct. 2021, 245, 112872. [Google Scholar] [CrossRef]
- Zaiter, A.; Lau, T.L. Experimental Study of Jacket Height and Reinforcement Effects on Seismic Retrofitting of Concrete Columns. Structures 2021, 31, 1084–1095. [Google Scholar] [CrossRef]
- Yassin, M.H.M. Nonlinear Analysis of Prestressed Concrete Structures under Monotonic and Cyclic Loads; University of California at Berkeley: Berkeley, CA, USA, 1994. [Google Scholar]
- Filippou, F.C.; Popov, E.P.; Bertero, V.V. Effects of Bond Deteroriation on Hysteretic Behavior of Reinforced Concrete Joint (EERC 83-19); Earthquake Engineering Research Center, University of California: Berkeley, CA, USA, 1983; Volume 212. [Google Scholar]
- Chiou, B.; Darragh, R.; Gregor, N.; Silva, W. NGA Project Strong-Motion Database. Earthq. Spectra 2008, 24, 23–44. [Google Scholar] [CrossRef]
- Kwon, O.S.; Elnashai, A. The Effect of Material and Ground Motion Uncertainty on the Seismic Vulnerability Curves of RC Structure. Eng. Struct. 2006, 28, 289–303. [Google Scholar] [CrossRef]
- EN 1998-2 (2005); Eurocode 8: Design of Structures for Earthquake Resistance—Part 2: Bridges. European Committee For Standardization: Bruzelles, Belgium, 2005.
- Sezen, H.; Moehle, J.P. Shear Strength Model for Lightly Reinforced Concrete Columns. J. Struct. Eng. 2004, 130, 1692–1703. [Google Scholar] [CrossRef]
- Jin, C.; Pan, Z.; Meng, S.; Qiao, Z. Seismic Behavior of Shear-Critical Reinforced High-Strength Concrete Columns. J. Struct. Eng. 2014, 141, 04014198. [Google Scholar] [CrossRef]
- Priestley, M.J.N.; Verma, R.; Xiao, Y. Seismic Shear Strength of Reinforced Concrete Columns. J. Struct. Eng. 1994, 120, 2310–2329. [Google Scholar] [CrossRef]
- Zhu, L.; Elwood, K.J.; Haukaas, T. Classification and Seismic Safety Evaluation of Existing Reinforced Concrete Columns. J. Struct. Eng. 2007, 133, 1316–1330. [Google Scholar] [CrossRef]

















| Maximum Force | Minimum Force | Initial Stiffness | Accumulated Energy | ||
|---|---|---|---|---|---|
| Calibrated/ Experiment | Med. | 1.006 | 1.023 | 0.868 | 1.074 |
| Std. | 0.046 | 0.075 | 0.479 | 0.326 | |
| Predicted/ Experiment | Med. | 0.981 | 0.971 | 0.864 | 0.702 |
| Std. | 0.110 | 0.126 | 0.604 | 0.314 | |
| Predicted/ Calibrated | Med. | 0.983 | 0.974 | 1.074 | 0.727 |
| Std. | 0.117 | 0.114 | 0.379 | 0.317 |
| Maximum Force () | Initial Stiffness () | Cumulated Energy Dissipation Capacity () | |||||||
|---|---|---|---|---|---|---|---|---|---|
| Models | Proposed | Lee and Han (2018) [16] | Haselton et al. (2016) [21] | Proposed | Lee and Han (2018) [16] | Haselton et al. (2016) [21] | Proposed | Lee and Han (2018) [16] | Haselton et al. (2016) [21] |
| Median | 0.96 | 0.97 | 0.95 | 0.94 | 0.76 | 0.83 | 0.82 | 0.74 | 0.94 |
| Standard Deviation | 0.11 | 0.11 | 0.24 | 0.25 | 0.22 | 0.35 | 0.13 | 0.19 | 0.26 |
| Specimen | (mm) | (mm) | (mm) | (kN) | (kN) | (kN) | |||||||
|---|---|---|---|---|---|---|---|---|---|---|---|---|---|
| No | Name | ||||||||||||
| 1 | C1 | 2.77 | 6.20 | 74.72 | 97.14 | 176.45 | 188.42 | 0.45 | 0.27 | 0.20 | 2.21 | 5.97 | 6.92 |
| 2 | C2 | 4.08 | 9.06 | 79.45 | 99.26 | 209.10 | 208.10 | 0.38 | 0.15 | 0.04 | 0.96 | 4.13 | 7.23 |
| 3 | C3 | 4.29 | 6.45 | 138.94 | 48.57 | 102.22 | 112.12 | 0.65 | 0.31 | 0.46 | 1.92 | 7.79 | 6.64 |
Disclaimer/Publisher’s Note: The statements, opinions and data contained in all publications are solely those of the individual author(s) and contributor(s) and not of MDPI and/or the editor(s). MDPI and/or the editor(s) disclaim responsibility for any injury to people or property resulting from any ideas, methods, instructions or products referred to in the content. |
© 2025 by the authors. Licensee MDPI, Basel, Switzerland. This article is an open access article distributed under the terms and conditions of the Creative Commons Attribution (CC BY) license (https://creativecommons.org/licenses/by/4.0/).
Share and Cite
Hwang, W.J.; Kim, S.J. Predictive Equations for Modeling Shear Behavior in RC Columns with Non-Seismic Details for Enhanced Seismic Performance Assessment. Appl. Sci. 2025, 15, 1376. https://doi.org/10.3390/app15031376
Hwang WJ, Kim SJ. Predictive Equations for Modeling Shear Behavior in RC Columns with Non-Seismic Details for Enhanced Seismic Performance Assessment. Applied Sciences. 2025; 15(3):1376. https://doi.org/10.3390/app15031376
Chicago/Turabian StyleHwang, Won Jun, and Sung Jig Kim. 2025. "Predictive Equations for Modeling Shear Behavior in RC Columns with Non-Seismic Details for Enhanced Seismic Performance Assessment" Applied Sciences 15, no. 3: 1376. https://doi.org/10.3390/app15031376
APA StyleHwang, W. J., & Kim, S. J. (2025). Predictive Equations for Modeling Shear Behavior in RC Columns with Non-Seismic Details for Enhanced Seismic Performance Assessment. Applied Sciences, 15(3), 1376. https://doi.org/10.3390/app15031376

