An Assessment of the Behaviour of Ceiling Beams of Different Structure
Abstract
1. Introduction
2. Materials and Methods
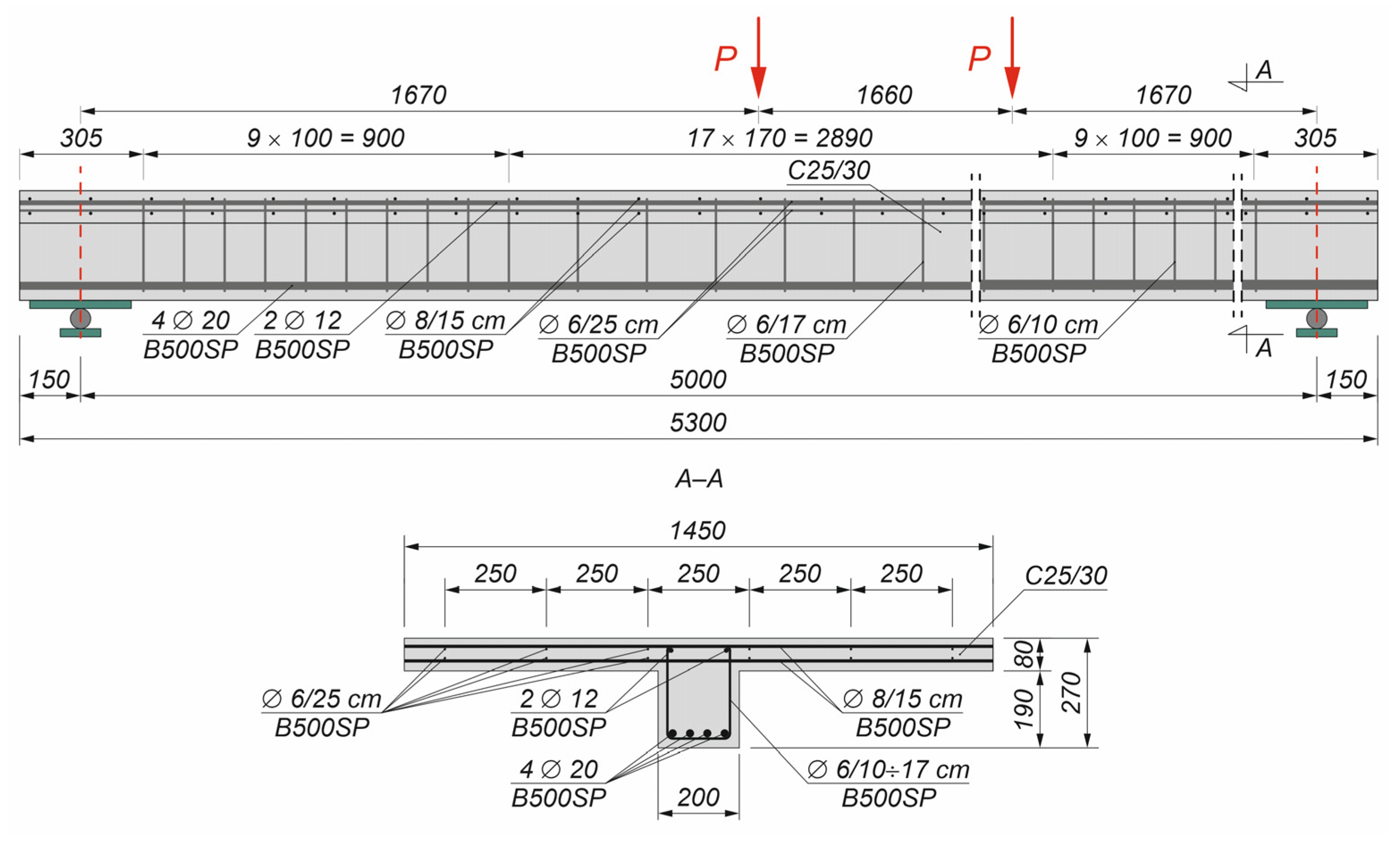
2.1. Analysed Beams
2.2. Numerical Models
3. Results
4. Discussion
5. Conclusions
Author Contributions
Funding
Institutional Review Board Statement
Informed Consent Statement
Data Availability Statement
Conflicts of Interest
References
- Winchester, N.; Reilly, J.M. The economic and emissions benefits of engineered wood products in a low-carbon future. Energy Econ. 2020, 85, 104596. [Google Scholar] [CrossRef]
- Tupenaite, L.; Kanapeckiene, L.; Naimaviciene, J.; Kaklauskas, A.; Gecys, T. Timber Construction as a Solution to Climate Change: A Systematic Literature Review. Buildings 2023, 13, 976. [Google Scholar] [CrossRef]
- Wdowiak-Postulak, A.; Świt, G.; Dziedzic-Jagocka, I. Application of Composite Bars in Wooden. Full-Scale, Innovative Engineering Products—Experimental and Numerical Study. Materials 2024, 17, 730. [Google Scholar] [CrossRef] [PubMed]
- Navaratnam, S.; Rajeev, P. Load-Carrying Capacity of Laminated Veneer Lumber Joists with Notches and Holes. J. Struct. Eng. 2023, 149, 12. [Google Scholar] [CrossRef]
- Wdowiak-Postulak, A. Numerical, theoretical and experimental model of the static performance of timber beams reinforced with steel, basalt and glass pre-stressed bars. Compos. Struct. 2023, 305, 116479. [Google Scholar] [CrossRef]
- Bakalarz, M.M.; Kossakowski, P.G. Numerical Analysis of Laminated Veneer Lumber Beams Strengthened with Various Carbon Composites. Polymers 2024, 16, 1697. [Google Scholar] [CrossRef]
- Chiniforush, A.A.; Valipour, H.R.; Ataei, A. Timber-timber composite (TTC) connections and beams: An experimental and numerical study. Constr. Build. Mater. 2021, 303, 124493. [Google Scholar] [CrossRef]
- Bedon, C.; Sciomenta, M.; Fragiacomo, M. Mechanical Characterization of Timber-to-Timber Composite (TTC) Joints with Self-Tapping Screws in a Standard Push-Out Setup. Appl. Sci. 2020, 10, 6534. [Google Scholar] [CrossRef]
- Chybiński, M.; Polus, Ł. Theoretical, experimental and numerical study of aluminium-timber composite beams with screwed connections. Constr. Build. Mater. 2019, 226, 317–330. [Google Scholar] [CrossRef]
- Romero, A.; Odenbreit, C. Innovative demountable steel-timber composite (STC) beams: Experimental full-scale bending tests. Eng. Struct. 2024, 318, 118599. [Google Scholar] [CrossRef]
- Aspila, A.; Heinisuo, M.; Mela, K.; Malaska, M.; Pajunen, S. Elastic design of steel-timber composite beams. Wood Mater. Sci. Eng. 2022, 17, 243–252. [Google Scholar] [CrossRef]
- Liu, R.; Liu, J.; Wu, Z.; Chen, L.; Wang, J. A Study on the Influence of Bolt Arrangement Parameters on the Bending Behavior of Timber–Steel Composite (TSC) Beams. Buildings 2022, 12, 2013. [Google Scholar] [CrossRef]
- Vella, N.; Kyvelou, P.; Buhagiar, S.; Gardner, L. Experimental study of composite cold-formed steel and timber flooring systems with innovative shear connectors. Thin-Walled Struct. 2024, 205 Pt C, 112571. [Google Scholar] [CrossRef]
- Hassanieh, A.; Valipour, H.R.; Bradford, M.A. Experimental and numerical investigation of short-term behaviour of CLT-steel composite beams. Eng. Struct. 2017, 144, 43–57. [Google Scholar] [CrossRef]
- Zhou, Y.; Zhao, Y.; Wang, C.-L.; Zhou, Y.; Zheng, J. Experimental study of the shear performance of H-shaped aluminum-timber composite connections. Constr. Build. Mater. 2022, 334, 127421. [Google Scholar] [CrossRef]
- Navaratnam, S.; Widdowfield Small, D.; Gatheeshgar, P.; Poologanathan, K.; Thamboo, J.; Higgins, C.; Mendis, P. Development of cross laminated timber-cold-formed steel composite beam for floor system to sustainable modular building construction. Structures 2021, 32, 681–690. [Google Scholar] [CrossRef]
- Saleh, S.M.; Jasim, N.A. Structural behavior of timber aluminum composite beams under static loads. Int. J. Eng. Res. Technol. 2014, 3, 1166–1173. [Google Scholar]
- Loss, C.; Davison, B. Innovative composite steel-timber floors with prefabricated modular components. Eng. Struct. 2017, 132, 695–713. [Google Scholar] [CrossRef]
- Hassanieh, A.; Valipour, H.R.; Bradford, M.A. Load-slip behaviour of steel-cross laminated timber (CLT) composite connections. J. Constr. Steel Res. 2016, 122, 110–121. [Google Scholar] [CrossRef]
- Deeves, B.P.H.; Woods, J.E. Experimental investigation of steel-timber shear connections with self-tapping screws. Constr. Build. Mater. 2025, 492, 142999. [Google Scholar] [CrossRef]
- Hassanieh, A.; Valipour, H.R.; Bradford, M.A. Composite connections between CLT slab and steel beam: Experiments and empirical models. J. Constr. Steel. Res. 2017, 138, 823–836. [Google Scholar] [CrossRef]
- Ataei, A.; Chiniforush, A.A.; Bradford, M.A.; Valipour, H.R.; Ngo, T.D. Behaviour of embedded bolted shear connectors in steel-timber composite beams subjected to cyclic loading. J. Build. Eng. 2022, 54, 104581. [Google Scholar] [CrossRef]
- Hassanieh, A.; Valipour, H.R.; Bradford, M.A. Bolt shear connectors in grout pockets: Finite element modelling and parametric study. Constr. Build. Mater. 2018, 176, 179–192. [Google Scholar] [CrossRef]
- Zhao, Y.; Yuan, Y.; Wang, C.-L.; Meng, S. Experimental and finite element analysis of flexural performance of steel-timber composite beams connected by hybrid-anchored screws. Eng. Struct. 2023, 292, 116503. [Google Scholar] [CrossRef]
- Hassanieh, A.; Valipour, H.R.; Bradford, M.A. Experimental and analytical behaviour of steel-timber composite connections. Constr. Build. Mater. 2016, 118, 63–75. [Google Scholar] [CrossRef]
- Saleh, S.M.; Jasim, N.A. Structural behavior of timber aluminum composite beams under impact loads. Int. J. Sci. Eng. Res. 2014, 5, 865–873. [Google Scholar]
- Hassanieh, A.; Valipour, H.R.; Bradford, M.A.; Sandhaas, C. Modelling of steel-timber composite connections: Validation of finite element model and parametric study. Eng. Struct. 2017, 138, 35–49. [Google Scholar] [CrossRef]
- Hassanieh, A.; Valipour, H.R.; Bradford, M.A. Experimental and numerical study of steel-timber composite (STC) beams. J. Constr. Steel. Res. 2016, 122, 367–378. [Google Scholar] [CrossRef]
- Chybiński, M.; Polus, Ł. Structural Behaviour of Aluminium–Timber Composite Beams with Partial Shear Connections. Appl. Sci. 2023, 13, 1603. [Google Scholar] [CrossRef]
- Romero, A.; Yang, J.; Hanus, F.; Odenbreit, C. Numerical Investigation of Steel-LVL Timber Composite Beams. ce/papers 2022, 5, 21–30. [Google Scholar] [CrossRef]
- Kyvelou, P.; Gardner, L.; Nethercot, D.A. Composite Action Between Cold-Formed Steel Beams and Wood-Based Floorboards. Int. J. Struct. Stab. Dyn. 2015, 15, 1540029. [Google Scholar] [CrossRef]
- Kyvelou, P.; Gardner, L.; Nethercot, D.A. Finite element modelling of composite cold-formed steel flooring systems. Eng. Struct. 2018, 158, 28–42. [Google Scholar] [CrossRef]
- Thulasirangan Lakshmidevi, M.; Reddy, K.S.K.K.; Al-Ameri, R.; Kafle, B. A Review on Design Considerations and Connection Techniques in Modular Composite Construction. Appl. Sci. 2025, 15, 5256. [Google Scholar] [CrossRef]
- Wagh, S.A.; Waghe, U.P. Comparative Study of R.C.C and Steel Concrete Composite Structures. Int. J. Eng. Res. Appl. 2014, 4, 369–376. [Google Scholar]
- Tao, M.-X.; Li, Z.-A.; Zhou, Q.-L.; Xu, L.-Y. Analysis of Equivalent Flexural Stiffness of Steel–Concrete Composite Beams in Frame Structures. Appl. Sci. 2021, 11, 10305. [Google Scholar] [CrossRef]
- Chung, L.; Lim, J.J.; Hwang, H.J.; Eom, T.-S. Review of Design Flexural Strengths of Steel–Concrete Composite Beams for Building Structures. Int. J. Concr. Struct. Mater. 2016, 10, 109–121. [Google Scholar] [CrossRef]
- Suárez-Riestra, F.; Estévez-Cimadevila, J.; Martín-Gutiérrez, E.; Otero-Chans, D. Timber-Timber-Composite (TTC) beam long-term behaviour. Full scale experimental campaign and simplified analytical model. Constr. Build. Mater. 2022, 361, 129649. [Google Scholar] [CrossRef]
- Eldeib, M.; Ma, X.; Zhuge, Y.; Rameezdeen, R.; Hassanli, R.; Ellis, M.; Abd-Elaal, E.-S. Structural behaviour of steel-timber composite elements: An overview. Low-Carbon Mater. Green Constr. 2025, 3, 4. [Google Scholar] [CrossRef]
- Bakht, B.; Krisciunas, R. Testing a Prototype Steel-Wood Composite Bridge. Struct. Eng. Int. 1997, 7, 35–41. [Google Scholar] [CrossRef]
- Odeh, D.J.; Kuehnel, P. The Hybrid CLT Steel Residence Hall. Structure 2019, August, 22–24. Available online: https://www.structuremag.org/article/the-hybrid-clt-steel-residence-hall/ (accessed on 28 September 2025).
- Winter, W.; Tavoussi, K.; Riola Parada, F.; Bradley, A. Timber-steel hybrid beams for multi-storey buildings: Final report. In Proceedings of the World Conference of Timber Engineering 2016, Vienna, Austria, 22–25 August 2016. [Google Scholar]
- EN 1992-1-1; Eurocode 2: Design of Concrete Structures—Part 1-1: General Rules and Rules for Buildings. European Committee for Standardization: Brussels, Belgium, 2004.
- EN 1994-1-1; Eurocode 4: Design of Composite Steel and Concrete Structures—Part 1-1: General Rules and Rules for Buildings. European Committee for Standardization: Brussels, Belgium, 2004.
- Hafezolghorani, M.; Hejazi, F.; Vaghei, R.; Jaafar, M.S.B.; Karimzade, K. Simplified Damage Plasticity Model for Concrete. Struct. Eng. Int. 2017, 27, 68–78. [Google Scholar] [CrossRef]
- Abramowicz, M.; Chybiński, M.; Polus, Ł.; Wróblewski, T. Free Vibrations of Sustainable Laminated Veneer Lumber Slabs. Sustainability 2024, 16, 166. [Google Scholar] [CrossRef]
- Kawecki, B.; Podgórski, J. 3D Abaqus Simulation of Bent Softwood Elements. Arch. Civ. Eng. 2020, 66, 323–337. [Google Scholar] [CrossRef]
- Dassault Systèmes. Abaqus 2025 Online Documentation. 2025. Available online: https://www.3ds.com/support/documentation (accessed on 8 September 2025).
- Kawecki, B. Dobór Parametrów Modeli Obliczeniowych Pełnych Dźwigarów z Kompozytów Drewno-Polimerowych Zbrojonych Włóknami; Wydawnictwo Politechniki Lubelskiej: Lublin, Poland, 2021. [Google Scholar]
- Declaration of Performance No. 03-0006-03, STEICO LVL X. Available online: https://www.steico.com/pl/produkty/produkty-konstrukcyjne/fornir-klejony-warstwowo-lvl/steico-lvl-x-barrier-veneer (accessed on 8 September 2025).
- Kotwica, E.I.; Nożyński, W. Konstrukcje Drewniane: Przykłady Obliczeń; Stowarzyszenie Producentów Płyt Drewnopochodnych w Polsce: Szczecin, Poland, 2015. [Google Scholar]
- Chybiński, M. Nośność i Stateczność Cienkościennych Prętów Stalowych z Lokalnymi Elementami Usztywniającymi; Publishing House of Poznan University of Technology: Poznan, Poland, 2015. [Google Scholar]
- Polus, Ł. An Analysis of Load Bearing Capacity and Stiffness of Aluminium-Concrete Composite Elements Subjected to Bending. Ph.D. Thesis, Poznan University of Technology, Poznan, Poland, 2021. [Google Scholar]
- Dorn, M.; Habrová, K.; Koubek, R.; Serrano, E. Determination of coefficients of friction for laminated veneer lumber on steel under high pressure loads. Friction 2020, 9, 367–379. [Google Scholar] [CrossRef]
- Guezouli, S.; Lachal, A. Numerical analysis of frictional contact effects in push-out tests. Eng. Struct. 2012, 40, 39–50. [Google Scholar] [CrossRef]
- Aliawdin, P.; Urbańska, K. Limit analysis of steel-concrete composite structures with slip. Civ. Environ. Eng. Rep. 2011, 7, 19–34. [Google Scholar]
- EN 1995-1-1; Eurocode 5, Design of Timber Structures—Part 1-1: General—Common Rules and Rules for Buildings. European Committee for Standardization: Brussels, Belgium, 2004.
- Kyvelou, P.; Gardner, L.; Nethercot, D.A. Design of composite cold-formed steel flooring systems. Structures 2017, 12, 242–252. [Google Scholar] [CrossRef]
- Jankowiak, I. The State of Deformation and Stiffness Analysis of RC Beams Strengthened by Means of CFRP Strips at Different Load Levels. Appl. Sci. 2022, 12, 9929. [Google Scholar] [CrossRef]

























| Beam | Acronym | Slab | Girder |
|---|---|---|---|
| Concrete T-beam | C | 80 × 1450 mm C25/30 | 200 × 190 mm C25/30 |
| Steel–concrete composite beam with full composite action | SCC | 80 × 1250 mm C25/30 | IPE 200 S235 |
| Timber–timber composite beam with full composite action | TTC | 63 × 1250 mm LVL X | 160 × 240 mm GL24h |
| Timber–timber composite beam with partial shear connections | TTS | 63 × 1250 mm LVL X | 160 × 240 mm GL24h |
| Timber–timber beam without connections | TTF | 63 × 1250 mm LVL X | 160 × 240 mm GL24h |
| Steel–timber composite beam with a cold-formed girder and full composite action | STCFC | 45 × 1250 mm LVL X | 2 × C280 × 75 × 2.5 S320GD |
| Steel–timber composite beam with a cold-formed girder and partial shear connections | STCFS | 45 × 1250 mm LVL X | 2 × C280 × 75 × 2.5 S320GD |
| Steel–timber beam with a cold-formed girder and without connections | STCFF | 45 × 1250 mm LVL X | 2 × C280 × 75 × 2.5 S320GD |
| Steel–timber composite beam with a hot-rolled girder and full composite action | STHRC | 63 × 1250 mm LVL X | IPE 200 S235 |
| Steel–timber composite beam with a hot-rolled girder and partial shear connections | STHRS | 63 × 1250 mm LVL X | IPE 200 S235 |
| Steel–timber beam with a hot-rolled girder and without connections | STHRF | 63 × 1250 mm LVL X | IPE 200 S235 |
| Elastic Behaviour | ||
|---|---|---|
| Young’s Modulus [MPa] | Poisson’s Ratio | |
| 26,600 | 0.2 | |
| Concrete damaged plasticity | ||
| Dilation angle | Eccentricity | fbo/fco |
| 40 | 0.1 | 1.16 |
| K | Viscosity parameter | |
| 0.67 | 0.0001 | |
| Compressive behaviour | ||
| Yield stress [MPa] | Damage parameter | Inelastic strain |
| 15.3 | 0 | 0 |
| 19.2 | 0 | 0.000048 |
| 22.5 | 0 | 0.000120 |
| 25.2 | 0 | 0.000215 |
| 27.3 | 0 | 0.000333 |
| 28.8 | 0 | 0.000475 |
| 29.7 | 0 | 0.000640 |
| 30.0 | 0 | 0.000828 |
| 29.7 | 0.01 | 0.001040 |
| 28.8 | 0.04 | 0.001275 |
| 27.3 | 0.09 | 0.001533 |
| 25.2 | 0.16 | 0.001815 |
| 22.5 | 0.25 | 0.002120 |
| 19.2 | 0.36 | 0.002448 |
| 15.3 | 0.49 | 0.002800 |
| 10.8 | 0.64 | 0.003175 |
| 5.7 | 0.81 | 0.003574 |
| Tensile behaviour | ||
| 3.0 | 0 | 0 |
| 0.03 | 0.99 | 0.001167 |
| Elastic Behaviour (Orthotropic Material, Engineering Constants) [45] | ||||||||
|---|---|---|---|---|---|---|---|---|
| Elastic Modulus [MPa] | Poisson’s Ratio [–] | Shear Modulus [MPa] | ||||||
| E1 | E2 | E3 | υ12 | υ13 | υ23 | G12 | G13 | G23 |
| 13,400 | 700 | 700 | 0.48 | 0.48 | 0.22 | 900 | 900 | 90 |
| Tensile behaviour | ||||||||
| Plastic behaviour | Hill’s function (potential) | |||||||
| Yield stress [MPa] | Plastic strain [–] | R11 | R22 | R33 | R12 | R13 | R23 | |
| 22 | 0.0 | 1.0 | 0.182 | 0.182 | 0.362 | 0.362 | 0.362 | |
| Compressive behaviour | ||||||||
| Plastic behaviour | Hill’s function (potential) | |||||||
| Yield stress [MPa] | Plastic strain [–] | R11 | R22 | R33 | R12 | R13 | R23 | |
| 30 | 0.0 | 1.0 | 0.133 | 0.133 | 0.266 | 0.266 | 0.266 | |
| ft,1 [MPa] | fc,1 [MPa] | fc,2 [MPa] | fv,12 [MPa] | ||
|---|---|---|---|---|---|
| 22.0 [49] | 30.0 [49] | 4.0 [49] | 4.6 [49] | ||
| Equations [47,48] | Tensile Behaviour | Compressive Behaviour | |||
| Elastic Behaviour (Orthotropic Material, Engineering Constants) [48] | ||||||||
|---|---|---|---|---|---|---|---|---|
| Elastic Modulus [MPa] | Poisson’s Ratio [–] | Shear Modulus [MPa] | ||||||
| E1 | E2 | E3 | υ12 | υ13 | υ23 | G12 | G13 | G23 |
| 11,439 | 732 | 458 | 0.335 | 0.358 | 0.416 | 715 | 529 | 690 |
| Plastic behaviour | Hill’s function (potential) | |||||||
| Yield stress [MPa] | Plastic strain [–] | R11 | R22 | R33 | R12 | R13 | R23 | |
| 19.2 | 0.0 | 1.0 | 0.141 | 0.141 | 0.316 | 0.316 | 0.316 | |
| Parameter | SCC | TTC | STCFC | STHRC |
|---|---|---|---|---|
| Position of the elastic neutral axis xel [mm] | 60.7 | 76.2 | 85.0 | 76.6 |
| Elastic bending resistance Mel [kNm] | 102.4 | 70.8 | 92.1 | 87.6 |
| Position of the plastic neutral axis xpl [mm] | 32.7 | 38.0 | 31.1 | 40.0 |
| Plastic bending resistance Mpl [kNm] | 142.0 | 142.6 | 141.9 | 144.0 |
| ft,1 [MPa] | fc,2 [MPa] | fv,12 [MPa] | |
|---|---|---|---|
| 19.2 [50] | 2.7 [50] | 3.5 [50] | |
| Equations [47,48] | Calculations | ||
| S235 [51] | |||
| E [MPa] | υ [–] | σtrue | εlnplastic |
| 210,000 | 0.3 | 304.77 | 0 |
| 469.81 | 0.172 | ||
| S320GD [52] | |||
| E [MPa] | υ [–] | ||
| 193,590 | 0.3 | ||
| σtrue | εlnplastic | σtrue | εlnplastic |
| 351.13 | 0.0 | 419.73 | 0.12005 |
| 381.52 | 0.06942 | 424.09 | 0.12708 |
| 388.10 | 0.07681 | 428.05 | 0.13407 |
| 394.46 | 0.08414 | 431.85 | 0.14100 |
| 400.07 | 0.09142 | 435.37 | 0.14789 |
| 405.49 | 0.09866 | 438.66 | 0.15474 |
| 410.51 | 0.10584 | 441.99 | 0.16153 |
| 415.31 | 0.11297 | 445.05 | 0.16829 |
| Beam | Mesh Size [mm] | Finite Element Type |
|---|---|---|
| C | 20 | 26,222 linear hexahedral elements of type C3D8R (beam and plates) 2493 linear line elements of type B31 (rebars) 342 linear line elements of type T3D2 (stirrups) |
| SCC | 15 | 41,919 linear hexahedral elements of type C3D8R (slab, girder and plates) 2574 linear line elements of type B31 (rebars) |
| TTC | 15 | 51,998 linear hexahedral elements of type C3D8R |
| TTS | 15 | 51,998 linear hexahedral elements of type C3D8R |
| TTF | 15 | 51,998 linear hexahedral elements of type C3D8R |
| STCFC | 10 (girder) 8 (slab) 20 (plates) | 155,734 linear hexahedral elements of type C3D8R (slab and plates) 12,720 linear quadrilateral elements of type S4R (girder) |
| STCFS | 10 (girder) 8 (slab) 20 (plates) | 155,734 linear hexahedral elements of type C3D8R (slab and plates) 12,720 linear quadrilateral elements of type S4R (girder) |
| STCFF | 10 (girder) 8 (slab) 20 (plates) | 155,734 linear hexahedral elements of type C3D8R (slab and plates) 12,720 linear quadrilateral elements of type S4R (girder) |
| STHRC | 5 (girder) 10 (slab) 20 (plates) | 142,916 linear hexahedral elements of type C3D8R |
| STHRS | 5 (girder) 10 (slab) 20 (plates) | 142,916 linear hexahedral elements of type C3D8R |
| STHRF | 5 (girder) 10 (slab) 20 (plates) | 142,916 linear hexahedral elements of type C3D8R |
| Beam | MelT [kNm] | MelN [kNm] | uelN [mm] | selN [mm] | MultT [kNm] | MultN [kNm] | uultN [mm] | sultN [mm] |
|---|---|---|---|---|---|---|---|---|
| C | – | 27.3 a | 3.5 | 0.0 | 142.3 | 155.0 b | 42.4 | 0.0 |
| 157.3 c | 52.9 | 0.0 | ||||||
| SCC | 102.4 | 117.9 | 19.9 | 0.0 | 142.0 | 150.0 | 47.0 | 0.0 |
| TTC | 70.8 | 72.0 | 25.0 | 0.0 | 142.6 | 131.8 | 183.3 | 0.0 |
| STCFC | 92.1 | 97.4 | 22.9 | 0.0 | 141.9 | 134.9 | 145.1 | 0.0 |
| STHRC | 87.6 | 87.7 | 23.9 | 0.0 | 144.0 | 132.3 | 194.1 | 0.0 |
| Beam | MelT [kNm] | MelN [kNm] | uelN [mm] | selN [mm] | MultT [kNm] | MultN [kNm] | uultN [mm] | sultN [mm] |
|---|---|---|---|---|---|---|---|---|
| TTC | 70.8 | 72.0 | 25.0 | 0.0 | 142.6 | 131.8 | 183.3 | 0.0 |
| TTS | – | 47.0 | 38.0 | 2.9 | – | 106.2 | 426.2 | 23.8 |
| TTF | – | 38.3 | 42.0 | 3.8 | – | 77.8 | 508.2 | 37.5 |
| Beam | MelT [kNm] | MelN [kNm] | uelN [mm] | selN [mm] | MultT [kNm] | MultN [kNm] | uultN [mm] | sultN [mm] |
|---|---|---|---|---|---|---|---|---|
| STCFC | 92.1 | 97.4 | 22.9 | 0.0 | 141.9 | 134.9 | 145.1 | 0.0 |
| STCFS | – | 76.7 | 33.4 | 3.0 | – | 102.1 | 293.4 | 18.1 |
| STCFF | – | 73.6 | 36.0 | 3.6 | – | 86.1 | 505.3 | 43.4 |
| Beam | MelT [kNm] | MelN [kNm] | uelN [mm] | selN [mm] | MultT [kNm] | MultN [kNm] | uultN [mm] | sultN [mm] |
|---|---|---|---|---|---|---|---|---|
| STHRC | 87.6 | 87.7 | 23.9 | 0.0 | 144.0 | 132.3 | 194.1 | 0.0 |
| STHRS | – | 73.0 | 34.4 | 2.2 | – | 123.5 | 302.6 | 7.1 |
| STHRF | – | 68.2 | 40.2 | 3.2 | – | 106.1 | 562.8 | 32.1 |
| Beam | MultN [kNm] | m [kg] | r [kNm/kg] |
|---|---|---|---|
| C | 157.3 | 2040.5 | 0.077 |
| SCC | 150.0 | 1443.5 | 0.104 |
| TTC | 131.8 | 306.7 | 0.430 |
| TTS | 106.2 | 306.7 | 0.346 |
| TTF | 77.8 | 306.7 | 0.254 |
| STCFC | 134.9 | 251.5 | 0.536 |
| STCFS | 102.1 | 251.5 | 0.406 |
| STCFF | 86.1 | 251.5 | 0.342 |
| STHRC | 132.3 | 339.7 | 0.389 |
| STHRS | 123.5 | 339.7 | 0.364 |
| STHRF | 106.1 | 339.7 | 0.312 |
Disclaimer/Publisher’s Note: The statements, opinions and data contained in all publications are solely those of the individual author(s) and contributor(s) and not of MDPI and/or the editor(s). MDPI and/or the editor(s) disclaim responsibility for any injury to people or property resulting from any ideas, methods, instructions or products referred to in the content. |
© 2025 by the authors. Licensee MDPI, Basel, Switzerland. This article is an open access article distributed under the terms and conditions of the Creative Commons Attribution (CC BY) license (https://creativecommons.org/licenses/by/4.0/).
Share and Cite
Ciesielczyk, K.; Studziński, R.; Chybiński, M.; Ścigałło, J.; Szymkuć, W.; Grabski, J.K.; Marciniak, T.; Polus, Ł. An Assessment of the Behaviour of Ceiling Beams of Different Structure. Appl. Sci. 2025, 15, 11543. https://doi.org/10.3390/app152111543
Ciesielczyk K, Studziński R, Chybiński M, Ścigałło J, Szymkuć W, Grabski JK, Marciniak T, Polus Ł. An Assessment of the Behaviour of Ceiling Beams of Different Structure. Applied Sciences. 2025; 15(21):11543. https://doi.org/10.3390/app152111543
Chicago/Turabian StyleCiesielczyk, Katarzyna, Robert Studziński, Marcin Chybiński, Jacek Ścigałło, Wojciech Szymkuć, Jakub Krzysztof Grabski, Tomasz Marciniak, and Łukasz Polus. 2025. "An Assessment of the Behaviour of Ceiling Beams of Different Structure" Applied Sciences 15, no. 21: 11543. https://doi.org/10.3390/app152111543
APA StyleCiesielczyk, K., Studziński, R., Chybiński, M., Ścigałło, J., Szymkuć, W., Grabski, J. K., Marciniak, T., & Polus, Ł. (2025). An Assessment of the Behaviour of Ceiling Beams of Different Structure. Applied Sciences, 15(21), 11543. https://doi.org/10.3390/app152111543

