Simulation of Rock Failure Cone Development Using a Modified Load-Transferring Anchor Design
Abstract
1. Introduction
2. Materials and Methods
2.1. Assumptions Adopted in the Model
- Damage initiation criterion: Max Principal Stress;
- Crack growth direction: perpendicular to the maximum principal tensile stress;
- Damage evolution: energy-based fracture propagation.
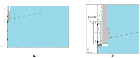
2.2. Model Geometry, Finite Element Mesh, and Boundary Conditions
- In the contact area between the conical anchor head and the rock, the element size was reduced to 2 mm;
- In the contact zone between the screw tip and the borehole bottom, a finer mesh was used with element sizes ranging from 0.4 mm to 1 mm;
- Along the predicted crack propagation path, the element size was refined to 5 mm to enhance the resolution of fracture development;
- Along the upper edge of the rock mass, the element size varied between 3 mm and 10 mm, depending on the specific subregion of the rock domain.
3. Results and Discussion
- The mesh density in critical regions of the model;
- The element size (edge length of finite elements);
- The radial clearance between the cylindrical borehole wall and the cylindrical surface of the anchor.
Model Validation
4. Summary and Conclusions
5. Model Limitations and Future Research Perspectives
Author Contributions
Funding
Institutional Review Board Statement
Informed Consent Statement
Data Availability Statement
Conflicts of Interest
References
- Kamara, M.E.; Rabbat, B.G. PCA Notes on ACI 318-05 Building Code Requirements for Structural Concrete with Design Applications; Portland Cement Association: Skokie, IL, USA, 2005; ISBN 0-89312-245-9. [Google Scholar]
- ACI Committee 318; Building Code Requirements for Structural Concrete (ACI 318-05) and Commentary (ACI 318R-05). American Concrete Institute: Farmington Hills, MI, USA, 2005; ISBN 0-87031-171-9.
- Nemes, R.; Lublói, É. Application of Anchors under Special Concrete Conditions. Period. Polytech. Civ. Eng. 2011, 55, 73. [Google Scholar] [CrossRef]
- Ren, Y.; Wang, H.; Guan, Z.; Yang, K. Evaluation of the Properties and Applications of FRP Bars and Anchors: A Review. Rev. Adv. Mater. Sci. 2023, 62, 20220287. [Google Scholar] [CrossRef]
- Serrano, A.; Olalla, C. Tensile Resistance of Rock Anchors. Int. J. Rock Mech. Min. Sci. 1999, 36, 449–474. [Google Scholar] [CrossRef]
- Gaudin, C.; Cassidy, M.J.; O’Loughlin, C.D.; Tian, Y.; Wang, D.; Chow, S. Recent Advances in Anchor Design for Floating Structures. Int. J. Offshore Polar Eng. 2017, 27, 44–53. [Google Scholar] [CrossRef]
- Brown, E.T. Rock Engineering Design of Post-Tensioned Anchors for Dams—A Review. J. Rock Mech. Geotech. Eng. 2015, 7, 1–13. [Google Scholar] [CrossRef]
- Bokor, B.; Tóth, M.; Sharma, A. Fasteners in Steel Fiber Reinforced Concrete Subjected to Increased Loading Rates. Fibers 2018, 6, 93. [Google Scholar] [CrossRef]
- Tóth, M.; Bokor, B.; Sharma, A. Befestigungen Im Stahlfaserverstärkten Beton Bei Betonbruch—Stand Der Technik Und Bemessungsansatz/Anchorages in Steel Fiber Reinforced Concrete in the Case of Concrete Breakout Failure—State of the Art and Design Concept. Bauingenieur 2021, 96, 254–265. [Google Scholar] [CrossRef]
- Tóth, M.; Bokor, B.; Sharma, A. Anchorage in Steel Fiber Reinforced Concrete—Concept, Experimental Evidence and Design Recommendations for Concrete Cone and Concrete Edge Breakout Failure Modes. Eng. Struct. 2019, 181, 60–75. [Google Scholar] [CrossRef]
- Bokor, B.; Sharma, A.; Hofmann, J. Experimental Investigations on Concrete Cone Failure of Rectangular and Non-Rectangular Anchor Groups. Eng. Struct. 2019, 188, 202–217. [Google Scholar] [CrossRef]
- Bokor, B.; Sharma, A.; Pregartner, T. An Assessment Method to Ensure Applicability of Concrete Capacity Method for Design of Anchorages: Linear Force Distribution Approach. Struct. Concr. 2023, 24, 7249–7271. [Google Scholar] [CrossRef]
- Zheng, H.; Wu, X.; Jiang, Y.; Wang, G.; Wang, Z. Shear Behavior of Rock Joints Reinforced with Fully-Grouted and Energy-Absorbing Bolts Subjected to Shear Cycles. J. Rock Mech. Geotech. Eng. 2024, S1674775524005766. [Google Scholar] [CrossRef]
- Kraft, R.; Zien, J. Mining Anchor Text for Query Refinement. In Proceedings of the 13th International Conference on World Wide Web, New York, NY, USA, 17–20 May 2004; ACM: New York, NY, USA, 2004; pp. 666–674. [Google Scholar]
- Cao, J.; Zhang, N.; Wang, S.; Qian, D.; Xie, Z. Physical Model Test Study on Support of Super Pre-Stressed Anchor in the Mining Engineering. Eng. Fail. Anal. 2020, 118, 104833. [Google Scholar] [CrossRef]
- Ma, Z.; Chen, C.; Sun, X.; Wu, G.; Liu, P.; Gao, L. Test and Numerical Simulation of Failure Mechanism of Barrel and Wedge Anchorage in Coal Mines. Constr. Build. Mater. 2020, 237, 117647. [Google Scholar] [CrossRef]
- Mahrenholtz, C.; Eligehausen, R. Dynamic Performance of Concrete Undercut Anchors for Nuclear Power Plants. Nucl. Eng. Des. 2013, 265, 1091–1100. [Google Scholar] [CrossRef]
- Kim, N.-K.; Park, J.-S.; Kim, S.-K. Numerical Simulation of Ground Anchors. Comput. Geotech. 2007, 34, 498–507. [Google Scholar] [CrossRef]
- Fangtian, W.; Cun, Z.; Shuaifeng, W.; Xiaogang, Z.; Shenghua, G. Whole Section Anchor–Grouting Reinforcement Technology and Its Application in Underground Roadways with Loose and Fractured Surrounding Rock. Tunn. Undergr. Space Technol. 2016, 51, 133–143. [Google Scholar] [CrossRef]
- Konietzky, H.; Frühwirt, T. Rock Bolting: Characterization and Fluid Transport Simulations of Fractures and Fracture Networks; TU Bergakademie Freiberg, Geotechnical Institute: Freiberg, Germany, 2024.
- Sujatha, E.R.; Sudarsan, J.S.; Nithiyanantham, S. A Review on Sustainable Reinforcing Techniques to Stabilize Slopes against Landslides. Int. J. Environ. Sci. Technol. 2023, 20, 13873–13882. [Google Scholar] [CrossRef]
- Brezzi, L.; Bisson, A.; Pasa, D.; Cola, S. Innovative Passive Reinforcements for the Gradual Stabilization of a Landslide According with the Observational Method. Landslides 2021, 18, 2143–2158. [Google Scholar] [CrossRef]
- Murgia, I.; Giadrossich, F.; Mao, Z.; Cohen, D.; Capra, G.F.; Schwarz, M. Modeling Shallow Landslides and Root Reinforcement: A Review. Ecol. Eng. 2022, 181, 106671. [Google Scholar] [CrossRef]
- Trofymchuk, O.; Kaliukh, I.; Berchun, V. Landslide Stabilization in Building Practice: Methodology and Case Study from Autonomic Republic of Crimea. In Advancing Culture of Living with Landslides; Mikoš, M., Arbanas, Ž., Yin, Y., Sassa, K., Eds.; Springer International Publishing: Cham, Switzerland, 2017; pp. 587–595. ISBN 978-3-319-53486-2. [Google Scholar]
- Knox, G.; Hadjigeorgiou, J. Performance of Conventional and Energy-Absorbing Self-Drilling Hollow Core Rockbolts Under Controlled Laboratory Conditions. Rock Mech. Rock Eng. 2023, 56, 4363–4378. [Google Scholar] [CrossRef]
- Jalali Moghadam, M.; Dastaran, N.; Zad, A. Introducing Expandable Mechanical Plate Anchors for Onshore and Offshore Anchoring. Mar. Georesources Geotechnol. 2022, 40, 329–348. [Google Scholar] [CrossRef]
- Cerfontaine, B.; White, D.; Kwa, K.; Gourvenec, S.; Knappett, J.; Brown, M. Anchor Geotechnics for Floating Offshore Wind: Current Technologies and Future Innovations. Ocean Eng. 2023, 279, 114327. [Google Scholar] [CrossRef]
- Gkournelos, P.D.; Triantafillou, T.C.; Bournas, D.A. Seismic Upgrading of Existing Reinforced Concrete Buildings: A State-of-the-Art Review. Eng. Struct. 2021, 240, 112273. [Google Scholar] [CrossRef]
- Zhong, C.; Christopoulos, C. Self-Centering Seismic-Resistant Structures: Historical Overview and State-of-the-Art. Earthq. Spectra 2022, 38, 1321–1356. [Google Scholar] [CrossRef]
- Cao, X.-Y.; Shen, D.; Feng, D.-C.; Wang, C.-L.; Qu, Z.; Wu, G. Seismic Retrofitting of Existing Frame Buildings through Externally Attached Sub-Structures: State of the Art Review and Future Perspectives. J. Build. Eng. 2022, 57, 104904. [Google Scholar] [CrossRef]
- Zheng, H.; Wu, X.; Jiang, Y.; Wang, G.; Li, B. Insights into Velocity-Dependent Shear Characteristics of Bolted Rock Joints: A Comparative Study of Fully-Grouted and Energy-Absorbing Bolts. Int. J. Rock Mech. Min. Sci. 2024, 183, 105910. [Google Scholar] [CrossRef]
- Wang, Z.; Liao, L.; Guo, S.; Zheng, H.; Wu, X. Numerical Investigation of Bolted Rock Joints under Varying Normal Stress and Joint Roughness Coefficient Conditions. Front. Earth Sci. 2024, 12, 1402708. [Google Scholar] [CrossRef]
- Jonak, J.; Wójcik, A.; Karpiński, R.; Jonak, K. Effect of Undercut Bolt Anchor Depth on Failure Cone Geometry: A Numerical FEM Analysis and Experimental Verification. Materials 2025, 18, 686. [Google Scholar] [CrossRef]
- Wójcik, A.; Jonak, K.; Karpiński, R.; Jonak, J.; Kalita, M.; Prostański, D. Mechanism of Rock Mass Detachment Using Undercutting Anchors: A Numerical Finite Element Method (FEM) Analysis. Materials 2024, 17, 4468. [Google Scholar] [CrossRef]
- Stephansson, O. (Ed.) Rock Bolting: Theory and Application in Mining and Underground Construction: Proceedings of the International Symposium on Rock Bolting, Abisko, 28 August–2 September 1983; Routledge: London, UK, 2020; ISBN 978-1-351-41818-8. [Google Scholar]
- McMillan, R. Empirical Analysis of Brittle Rock Mass Failure in Response to Undercut Advance for Preventive Support Maintenance. Ph.D. Thesis, University of British Columbia, Vancouver, BC, Canada, 2022. [Google Scholar] [CrossRef]
- Zheng, H.; Jiang, Y.; Wu, X.; Zhang, S.; Sugimoto, S. Investigation on Stress Distribution and Prestress Loss Model of Prestressed Anchor Cables Considering Corrosion-Induced Debonding. Rock Mech. Bull. 2025, 4, 100189. [Google Scholar] [CrossRef]
- Wu, X.; Zhao, M.; Ye, Q.; Jiang, Y.; Deng, T.; Zheng, H.; Wang, G.; Guan, Z. A New Deformable Cable for Rock Support in High Stress Tunnel: Steel Pipe Shrinkable Energy-Absorbing Cable. Int. J. Min. Sci. Technol. 2024, 34, 1083–1093. [Google Scholar] [CrossRef]
- Fuchs, W.; Eligehausen, R.; Breen, J.E. Concrete Capacity Design (CCD) Approach for Fastening to Concrete. Struct. J. 1995, 92, 73–94. [Google Scholar] [CrossRef]
- Hilti Anchor Fastening Technology Manual; Version 2023; Hilti: Schaan, Liechtenstein, 2023.
- Jonak, J.; Karpiński, R.; Wójcik, A. Influence of the Undercut Anchor Head Angle on the Propagation of the Failure Zone of the Rock Medium—Part II. Materials 2021, 14, 3880. [Google Scholar] [CrossRef]
- Tan, E.L.; Varsani, H.; Liao, F. Experimental Study on Demountable Steel-Concrete Connectors Subjected to Combined Shear and Tension. Eng. Struct. 2019, 183, 110–123. [Google Scholar] [CrossRef]
- Jonak, J.; Siegmund, M. FEM 3D Analysis of Rock Cone Failure Range during Pull-out of Undercut Anchors. IOP Conf. Ser. Mater. Sci. Eng. 2019, 710, 012046. [Google Scholar] [CrossRef]
- ACI Committee 355; State-of-the-Art Report on Anchorage to Concrete. American Concrete Institute: Detroit, MI, USA, 1991.
- Comite Euro-International Du Beton (CEB), Task Group VI/5. Fastenings to Concrete and Masonry Structures; ThomasTelford Services Ltd.: London, UK, 1994; p. 249. [Google Scholar]
- Jonak, J.; Siegmund, M.; Karpiński, R.; Wójcik, A. Three-Dimensional Finite Element Analysis of the Undercut Anchor Group Effect in Rock Cone Failure. Materials 2020, 13, 1332. [Google Scholar] [CrossRef]
- Farrow, C.B.; Lmed, F.; Richard, E. Klingner Tensile Capacity of Single Anchors in Concrete: Evaluation of Existing Formulas on an LRFD Basis. ACI Struct. J. 1996, 93, 128–137. [Google Scholar] [CrossRef]
- Cook, R.A. Behavior and Design of Ductile Multiple-Anchor Steel-to-Concrete Connections; The University of Texas at Austin: Austin, TX, USA, 1989; ISBN 979-8-206-89520-9. [Google Scholar]
- Ballarini, R.; Yueyue, X. Fracture Mechanics Model of Anchor Group Breakout. J. Eng. Mech. 2017, 143, 04016125. [Google Scholar] [CrossRef]
- Jonak, J.; Karpiński, R.; Siegmund, M.; Machrowska, A.; Prostański, D. Experimental Verification of Standard Recommendations for Estimating the Load-Carrying Capacity of Undercut Anchors in Rock Material. Adv. Sci. Technol. Res. J. 2021, 15, 230–244. [Google Scholar] [CrossRef]
- Jonak, J.; Karpiński, R.; Wójcik, A. Influence of Anchor Depth and Friction Coefficient Between Anchor and Rock on the Trajectory of Rock Masses Detachment. Adv. Sci. Technol. Res. J. 2023, 17, 290–298. [Google Scholar] [CrossRef]
- Bennett, M.S. Prediction of the Shear Cone Geometry Surrounding Headed Anchor Studs; Lehigh University: Bethlehem, PA, USA, 1979. [Google Scholar]
- Fuchs, W.; Eligehausen, R. Das CC-Verfahren Für Die Berechnung Der Betonausbruchlast von Verankerungen. Beton Und Stahlbetonbau 1995, 90, 6–9. [Google Scholar] [CrossRef]
- Michał, S.; Jonak, J.; Prostański, D.; Bałaga, D.; Kalita, M. Głowica Do Niekonwencjonalnego Odspajania Fragmentów Skał 1–26. Available online: https://uprp.gov.pl/sites/default/files/bup/2023/Wynalazki%20i%20wzory%20użytkowe/12_49-52/50/bup50_2023.pdf (accessed on 4 July 2025).
- Jonak, J.; Karpiński, R.; Wójcik, A.; Siegmund, M.; Kalita, M. Determining the Effect of Rock Strength Parameters on the Breakout Area Utilizing the New Design of the Undercut/Breakout Anchor. Materials 2022, 15, 851. [Google Scholar] [CrossRef] [PubMed]
- Jonak, J.; Karpiński, R.; Wójcik, A. Influence of the Undercut Anchor Head Angle on the Propagation of the Failure Zone of the Rock Medium. Materials 2021, 14, 2371. [Google Scholar] [CrossRef]
- Siegmund, M. Selected Technologies for Destruction of Rocks Cohesion by Using Their Tensile Strength Properties. Min. Mach. 2021, 39, 2–16. [Google Scholar] [CrossRef]
- Cebula, D.; Kalita, M.; Prostański, D. Próby Dołowe Technologii Drążenia Tuneli Ratowniczych Metodą Małego Penetratora TP130. Masz. Górnicze 2015, 1, 27–33. [Google Scholar]
- Siegmund, M.; Jonak, J. Analysis of the Results of Preliminary Studies and Determination of Direction of Further Research Work on Technology of Drilling the Rescue Tunnels by the Method of Mechanical Loosening. Cuprum Czas. Nauk.-Tech. Górnictwa Rud 2017, 82, 57–71. [Google Scholar]
- Wójcik, A.; Jonak, J.; Karpiński, R.; Jonak, K.; Prostański, D.; Kaczyński, R. A Numerical Study of the Influence of Cone Angle of the Breakout Anchor Head on the Crack Trajectory of the Medium. Adv. Sci. Technol. Res. J. 2024, 18, 101–112. [Google Scholar] [CrossRef]
- Jonak, J.; Karpiński, R.; Wójcik, A.; Siegmund, M. The Influence of the Physical-Mechanical Parameters of Rock on the Extent of the Initial Failure Zone under the Action of an Undercut Anchor. Materials 2021, 14, 1841. [Google Scholar] [CrossRef]
- Jonak, J. Kotwa Podcinająco-Odspajająca-Nr Zgłoszenia Patentowego A 429560//Biuletyn Urzędu Patentowego: Wynalazki I Wzory Użytkowe. 2019; Nr 25; p. 41. Available online: https://uprp.gov.pl/sites/default/files/bup/2019/Wynalazki%20i%20wzory%20u%C5%BCytkowe/12_25-26/25/bup25_2019.pdf (accessed on 1 May 2025).
- Siegmund, M.; Kalita, M.; Bałaga, D.; Kaczmarczyk, K.; Jonak, J. Testing the Rocks Loosening Process by Undercutting Anchors. Stud. Geotech. Mech. 2020, 42, 276–290. [Google Scholar] [CrossRef]
- Siegmund, M.; Jonak, J. Analysis of the Process of Loosening the Rocks with Different Strength Properties Using the Undercutting Bolts. IOP Conf. Ser. Mater. Sci. Eng. 2019, 679, 012014. [Google Scholar] [CrossRef]
- Gontarz, J.; Podgórski, J.; Jonak, J.; Kalita, M.; Siegmund, M. Comparison Between Numerical Analysis and Actual Results for a Pull-Out Test. Eng. Trans. 2019, 67, 311–331. [Google Scholar]
- Jonak, J.; Karpiński, R.; Wójcik, A.; Siegmund, M. Numerical Investigation of the Formation of a Failure Cone during the Pullout of an Undercutting Anchor. Materials 2023, 16, 2010. [Google Scholar] [CrossRef]
- Riccio, A.; Caruso, U.; Raimondo, A.; Sellitto, A. Robustness of XFEM Method for the Simulation of Cracks Propagation in Fracture Mechanics Problems. Am. J. Eng. Appl. Sci. 2016, 9, 599–610. [Google Scholar] [CrossRef]
- Motamedi, D.; Milani, A.S. 3D Nonlinear XFEM Simulation of Delamination in Unidirectional Composite Laminates: A Sensitivity Analysis of Modeling Parameters. Open J. Compos. Mater. 2013, 03, 113–126. [Google Scholar] [CrossRef][Green Version]
- Xiong, Z.; Zhu, C.; Yang, Y.; Lin, T.; Li, R. XFEM-Based Study of Fatigue Crack Propagation in Rocket Deflector Troughs under Coupled High-Temperature and Impact Conditions. J. Mar. Sci. Eng. 2024, 12, 207. [Google Scholar] [CrossRef]
- Gordeliy, E.; Peirce, A. Enrichment Strategies and Convergence Properties of the XFEM for Hydraulic Fracture Problems. Comput. Methods Appl. Mech. Eng. 2015, 283, 474–502. [Google Scholar] [CrossRef]
- Yu, Z.; Zhang, J.; Shen, J.; Chen, H. Simulation of Crack Propagation Behavior of Nuclear Graphite by Using XFEM, VCCT and CZM Methods. Nucl. Mater. Energy 2021, 29, 101063. [Google Scholar] [CrossRef]
- Wang, Y.; Javadi, A.A.; Fidelibus, C. A Hydro-mechanically-coupled XFEM Model for the Injection-induced Evolution of Multiple Fractures. Int. J. Numer. Anal. Methods Géoméch. 2023, 47, 1539–1558. [Google Scholar] [CrossRef]
- Huang, T.; Zhang, Y.X.; Yang, C. Multiscale Modelling of Multiple-Cracking Tensile Fracture Behaviour of Engineered Cementitious Composites. Eng. Fract. Mech. 2016, 160, 52–66. [Google Scholar] [CrossRef]
- Falkowicz, K. Numerical Investigations of Perforated CFRP Z-Cross-Section Profiles, under Axial Compression. Materials 2022, 15, 6874. [Google Scholar] [CrossRef]
- Wysmulski, P. The Effect of Load Eccentricity on the Compressed CFRP Z-Shaped Columns in the Weak Post-Critical State. Compos. Struct. 2022, 301, 116184. [Google Scholar] [CrossRef]
- Jing, L. A Review of Techniques, Advances and Outstanding Issues in Numerical Modelling for Rock Mechanics and Rock Engineering. Int. J. Rock Mech. Min. Sci. 2003, 40, 283–353. [Google Scholar] [CrossRef]
- Romero, A.; Galvín, P.; Domínguez, J. 3D Non-Linear Time Domain FEM–BEM Approach to Soil–Structure Interaction Problems. Eng. Anal. Bound. Elem. 2013, 37, 501–512. [Google Scholar] [CrossRef]
- Romero, A.; Galvín, P.; Tadeu, A. An Accurate Treatment of Non-Homogeneous Boundary Conditions for Development of the BEM. Eng. Anal. Bound. Elem. 2020, 116, 93–101. [Google Scholar] [CrossRef]
- Jing, L.; Hudson, J.A. Numerical Methods in Rock Mechanics. Int. J. Rock Mech. Min. Sci. 2002, 39, 409–427. [Google Scholar] [CrossRef]
- Walton, G.; Sinha, S. Challenges Associated with Numerical Back Analysis in Rock Mechanics. J. Rock Mech. Geotech. Eng. 2022, 14, 2058–2071. [Google Scholar] [CrossRef]
- Feng, X.-T.; Hudson, J.A. Specifying the Information Required for Rock Mechanics Modelling and Rock Engineering Design. Int. J. Rock Mech. Min. Sci. 2010, 47, 179–194. [Google Scholar] [CrossRef]
- Yu, H.; Taleghani, A.D.; Al Balushi, F.; Wang, H. Machine Learning for Rock Mechanics Problems; an Insight. Front. Mech. Eng. 2022, 8, 1003170. [Google Scholar] [CrossRef]
- Furtney, J.K.; Thielsen, C.; Fu, W.; Le Goc, R. Surrogate Models in Rock and Soil Mechanics: Integrating Numerical Modeling and Machine Learning. Rock Mech. Rock Eng. 2022, 55, 2845–2859. [Google Scholar] [CrossRef]
- Mahmoodzadeh, A.; Mohammadi, M.; Ghafoor Salim, S.; Farid Hama Ali, H.; Hashim Ibrahim, H.; Nariman Abdulhamid, S.; Nejati, H.R.; Rashidi, S. Machine Learning Techniques to Predict Rock Strength Parameters. Rock Mech. Rock Eng. 2022, 55, 1721–1741. [Google Scholar] [CrossRef]
- Wei, M.; Qiu, D.; Yue, T.; Duan, Y.; Wang, H. New Method Prediction of Rock Mechanics Parameters in Drilling Process Based on Machine Learning. Pet. Sci. Technol. 2025, 43, 360–383. [Google Scholar] [CrossRef]
- Tang, C.A.; Yang, W.T.; Fu, Y.F.; Xu, X.H. A New Approach to Numerical Method of Modelling Geological Processes and Rock Engineering Problems—Continuum to Discontinuum and Linearity to Nonlinearity. Eng. Geol. 1998, 49, 207–214. [Google Scholar] [CrossRef]
- Stead, D.; Eberhardt, E.; Coggan, J.S. Developments in the Characterization of Complex Rock Slope Deformation and Failure Using Numerical Modelling Techniques. Eng. Geol. 2006, 83, 217–235. [Google Scholar] [CrossRef]
- Wei, X.; Li, Z.; Zhao, G. A Review of Multiscale Numerical Modeling of Rock Mechanics and Rock Engineering. Deep Undergr. Sci. Eng. 2024, dug2.12127. [Google Scholar] [CrossRef]
- Tan, X.; Konietzky, H.; Chen, W. Numerical Simulation of Heterogeneous Rock Using Discrete Element Model Based on Digital Image Processing. Rock Mech. Rock Eng. 2016, 49, 4957–4964. [Google Scholar] [CrossRef]
- Zhang, F.; Damjanac, B.; Maxwell, S. Investigating Hydraulic Fracturing Complexity in Naturally Fractured Rock Masses Using Fully Coupled Multiscale Numerical Modeling. Rock Mech. Rock Eng. 2019, 52, 5137–5160. [Google Scholar] [CrossRef]
- Szabelski, J.; Karpiński, R.; Machrowska, A. Application of an Artificial Neural Network in the Modelling of Heat Curing Effects on the Strength of Adhesive Joints at Elevated Temperature with Imprecise Adhesive Mix Ratios. Materials 2022, 15, 721. [Google Scholar] [CrossRef]
- Jonak, J.; Karpiński, R.; Wójcik, A. Numerical Analysis of the Effect of Embedment Depth on the Geometry of the Cone Failure. J. Phys. Conf. Ser. 2021, 2130, 012012. [Google Scholar] [CrossRef]
- Jonak, J.; Karpiński, R.; Wójcik, A. Numerical Analysis of Undercut Anchor Effect on Rock. J. Phys. Conf. Ser. 2021, 2130, 012011. [Google Scholar] [CrossRef]
- Voit, K.; Kirnbauer, J. Tensile Characteristics and Fracture Energy of Fiber Reinforced and Non-Reinforced Ultra High Performance Concrete (UHPC). Int J Fract 2014, 188, 147–157. [Google Scholar] [CrossRef]
- Cervenka, V.; Cervenka, J.; Rymes, J. Numerical Simulation of Concrete Structures—From Research to Engineering Application. Struct. Concr. 2024, 25, 751–772. [Google Scholar] [CrossRef]
- Voit, K.; Zimmermann, T. Characteristics of Selected Concrete with Tunnel Excavation Material. Constr. Build. Mater. 2015, 101, 217–226. [Google Scholar] [CrossRef]
- Zeman, O.; Voit, K.; Lamplmair-Irsigler, S. Fastening in Concrete vs. Rock Mass—Comparative Determination of Pull-out Loads for Artificially Created Discontinuities in Concrete. Struct. Concr. 2024, 25, 4379–4391. [Google Scholar] [CrossRef]
- Riecky, D.; Zmindak, M.; Pelagic, Z. Numerical Finite Element Method Homogenization of Composite Materials Reinforced With Fibers. Komunikácie 2014, 16, 142–147. [Google Scholar] [CrossRef]
- Man, H.-K.; van Mier, J.G.M. Size Effect on Strength and Fracture Energy for Numerical Concrete with Realistic Aggregate Shapes. Int. J. Fract. 2008, 154, 61–72. [Google Scholar] [CrossRef]
- Lilliu, G.; Van Mier, J.G.M.; van Vliet, M.R.A. Numerical Characterization of the Elastic Properties of Heterogeneous Materials with a 3D Lattice Model. WIT Trans. Model. Simul. 1999, 22. [Google Scholar]
- Podgórski, J. Criterion for Angle Prediction for the Crack in Materials with Random Structure. Mech. Control 2011, 30. [Google Scholar]
- Gontarz, J.; Podgórski, J. Comparison of Various Criteria Determining the Direction of Crack Propagation Using the UDMGINI User Procedure Implemented in Abaqus. Materials 2021, 14, 3382. [Google Scholar] [CrossRef]

















| Mine | Number of Successful Detachment Tests Conducted |
|---|---|
| “ZALAS” | 30 |
| “Braciszów” | 27 |
| “Guido” | 36 |
| “Brenna” | 22 |
| Σ115 |
| Mine | fc (MPa) | Standard Deviation fc | ft (MPa) | Standard Deviation ft | k = fc/ft | φ (°) | c (MPa) | Rock | Description |
|---|---|---|---|---|---|---|---|---|---|
| Zalas | 106.5 | 23.86 | 5.9 | 1.91 | 18.1 | 54 | 8.6 | porphyry | Deck strongly undulating |
| Braciszów | 155.3 | 29.17 | 8.0 | 0.64 | 19.41 | 49.5 | 14.5 | sandstone | Sandstone, strong, compact |
| Brenna | 58.8 | 9.29 | 3.9 | 1.17 | 15.1 | 53 | 6.0 | sandstone | Sandstone, layered, weak |
| Guido | 97.4 | 25.52 | 6.2 | 0.94 | 15.7 | 49.6 | 11.9 | sandstone | Sandstone, compact, medium strength |
Disclaimer/Publisher’s Note: The statements, opinions and data contained in all publications are solely those of the individual author(s) and contributor(s) and not of MDPI and/or the editor(s). MDPI and/or the editor(s) disclaim responsibility for any injury to people or property resulting from any ideas, methods, instructions or products referred to in the content. |
© 2025 by the authors. Licensee MDPI, Basel, Switzerland. This article is an open access article distributed under the terms and conditions of the Creative Commons Attribution (CC BY) license (https://creativecommons.org/licenses/by/4.0/).
Share and Cite
Jonak, K.; Karpiński, R.; Wójcik, A.; Jonak, J. Simulation of Rock Failure Cone Development Using a Modified Load-Transferring Anchor Design. Appl. Sci. 2025, 15, 7653. https://doi.org/10.3390/app15147653
Jonak K, Karpiński R, Wójcik A, Jonak J. Simulation of Rock Failure Cone Development Using a Modified Load-Transferring Anchor Design. Applied Sciences. 2025; 15(14):7653. https://doi.org/10.3390/app15147653
Chicago/Turabian StyleJonak, Kamil, Robert Karpiński, Andrzej Wójcik, and Józef Jonak. 2025. "Simulation of Rock Failure Cone Development Using a Modified Load-Transferring Anchor Design" Applied Sciences 15, no. 14: 7653. https://doi.org/10.3390/app15147653
APA StyleJonak, K., Karpiński, R., Wójcik, A., & Jonak, J. (2025). Simulation of Rock Failure Cone Development Using a Modified Load-Transferring Anchor Design. Applied Sciences, 15(14), 7653. https://doi.org/10.3390/app15147653

