Next Article in Journal
Basic Approaches for Reducing Power Consumption in Finite State Machine Circuits—A Review
Previous Article in Journal
Assessment of Strong Earthquake Risk in Maqin–Maqu Segment of the Eastern Kunlun Fault, Northeast Tibet Plateau
 
 
Font Type:
Arial Georgia Verdana
Font Size:
Aa Aa Aa
Line Spacing:
Column Width:
Background:
Article

Study on the Smoke Control Performance of Air Curtains in Emergency Stairwells of Multi-Unit Residential Buildings

1
Korea Fire & Explosion Solutions Corporation, 22 Misagangbyeonseo-ro, Hanam-si 12918, Republic of Korea
2
Department of Fire and Disaster Prevention Engineering, Halla University, 28 Halladae-gil, Heungeop-myeon, Wonju-si 26404, Republic of Korea
*
Author to whom correspondence should be addressed.
Appl. Sci. 2024, 14(7), 2692; https://doi.org/10.3390/app14072692
Submission received: 9 January 2024 / Revised: 10 March 2024 / Accepted: 20 March 2024 / Published: 22 March 2024

Abstract

Recently, in high-rise buildings, pressurization systems have been installed in emergency stairwells to prevent the ingress of smoke. However, in older buildings, these stairwells often lack pressurization systems, while in buildings with fewer stories, such systems are not typically installed. This study conducts simulations and a hot smoke test to evaluate the performance of air curtains in blocking smoke and toxic gases in outdoor emergency stairwells where additional pressurization equipment cannot be installed. The simulation results showed that air curtains installed perpendicular to the floor were useful at preventing smoke ingress, and higher wind speeds increased their effectiveness. It is believed that air curtains can partially reduce smoke ingress in stairwells of older buildings or low-rise structures without pressurization systems, thereby ensuring fire safety.

1. Introduction

In modern cities, multi-unit residential apartment buildings, which usually exceed five stories, are commonly used as living spaces. In South Korea, as of 2022, the proportion of residents living in apartments exceeded 52.4% in terms of household composition, and apartments accounted for 64% of all housing types [1]. Consequently, fire damage in residential high-rise apartments has significantly increased [2]. When examining the causes of fatalities in multi-unit residential fires, 77.9% of the deaths were related to the inhalation of smoke and toxic gases [3]. To prevent toxic gases and smoke in such fires, the Korean NFSC501A, American NFPA 92, and British NFPA 101 advise fire prevention through the use of pressurization systems, and various related studies are ongoing [4].
Various studies are being conducted to achieve fire control by installing air curtains as an alternative to pressurization systems. The following studies assessed the effectiveness of air curtains in the case of a fire. In bi-directional tunnels, it was found that air curtains set at a 30° angle have a smoke control effect, and high air-curtain speeds with angles above 10° showed areas where smoke was blocked, even at high temperatures during a fire [5,6]. In a computational fluid dynamics (CFD) model study, the sealing efficiency of horizontal air curtains, vertical air curtains, and bi-directional vertical air curtains was compared at a doorway connecting two rooms at different temperatures [7]. Furthermore, CFD simulations using double-jet air curtains to test the smoke suppression and exhaust efficiency involved experiments to determine the toxic gas blocking performance in three scenarios: without air curtains, with double-jet air curtains, and with conventional air curtains [8]. In studies examining the effects of vertical and horizontal air curtains in multi-story buildings, vertical air curtains showed a reduced performance in under-ventilated situations, but were effective in over-ventilated conditions for fire blocking. Horizontal air curtains were found to be effective at controlling toxic gases even in poorly ventilated conditions. Furthermore, to enhance the air curtain performance, increasing the jet wind speed of the air curtain and providing indoor ventilation systems were proposed [9,10].
Zhou et al. designed operational conditions through investigating the impact of the spray direction of a composite air curtain on the extinguishing effect [11]. Razeghi, S.M.J. analyzed the conditions of an emergency ventilation system consisting of air curtains and exhaust fans to manage heat and toxicity in various fire scenarios [12]. Yan et al. revealed that the minimum thickness for sealing effectiveness is 0.3 m and that the jet velocity should be at least 2 m/s, depending on the thickness and spray velocity of the air curtain [13].
These studies demonstrate the effectiveness of air curtains at blocking toxic gases and smoke in fire situations. This study compared and analyzed the performance of air curtains installed in outdoor escape stairs, where separate pressurization equipment cannot be installed, to block smoke and toxic gases entering the stairs. Simulation results for cases installed in actual buildings were examined, and a hot smoke test was conducted to verify the effectiveness.

2. Research Methods and Scenarios

2.1. Research Methods

For this paper, the effectiveness of air curtains was demonstrated using the FDS Ver. 6.7.9 fire simulation program developed by the NIST. In addition, for comparison with the simulation results, a hot smoke test was conducted in the same type of building to visually verify the smoke-blocking effect. Figure 1 outlines our research. In this study, simulations were conducted on an actual building currently in the completion phase. Detailed simulation modeling was performed using CAD drawings and on-site surveys. The initial simulations aimed to validate the smoke control effectiveness of the air curtain, and a hot smoke test was executed to confirm alignment with the simulated trends.

2.2. Fire Simulation Scenarios

To distinguish the amount of smoke entering the stairwell based on the type of apartment, the installation type of the air curtain, and the differences in air-curtain wind speed, simulation scenarios were set as shown in Table 1. A scenario assuming a fire originating in the central part of the apartment living space was considered, and scenario variables were set based on the building type, the installation type of the air curtain, and the air-curtain wind speed. The wind speeds of the air curtains were selected based on the speeds of products available in the market as 10 m/s, 18 m/s, and 35 m/s. Furthermore, the spray angle of the air curtain was set at 30 degrees. The area of the exhaust and supply vents for the horizontal air curtain was 0.25 m2, while for the vertical air curtain, it was 0.5 m2, achieved by connecting two horizontal units.
Figure 2 shows the installation of air curtains. Figure 2a depicts the installation of a horizontal air curtain. It is installed at the top of the emergency stairwell fire door, horizontally aligned with the ceiling. Figure 2b depicts the installation of a vertical air curtain. It is installed perpendicular to the floor on the side opposite the hinges of the emergency stairwell fire door.

3. Simulation Setup

3.1. Fire Simulation Settings

The maximum heat release rate was configured according to real fire experiments and validation studies of fire safety performance evaluations and was based on bedroom fire scenarios in residential facilities (including a wardrobe, clothes, a desk, a chair, a computer, a bookshelf, and a bed) with a maximum heat release rate of 2795.51 kW and a fast fire spread rate. For apartment facilities, the corridor exhaust systems were assumed to be operational, and sprinklers were assumed to be non-operational. The soot yield value for the fire source was set at 0.1, and the CO yield value was set as 0.05.
The windows in the fire room were assumed to be closed, while the door was assumed to be open, allowing smoke to spread into the corridor; other fire doors were assumed to be closed. The floor-to-ceiling height of the apartment was 2.75 m, and the fire scenarios were conducted with a unit located in the center of the corridor. Air curtains were installed inside the outdoor emergency stairwell, and corridor smoke extraction devices were applied based on their actual performance. The exhaust system was designed based on the specified design airflow of the installed equipment in the building. For each case, a design airflow was applied, with Case 1 set at 7.5 m3/s and Cases 2 and 3 set at 5.625 m3/s.
When performing fire hazard assessments at high flow velocities, addressing grid independence is imperative. Through grid independence assessments, selecting the correct grid resolution guarantees the accuracy and reliability of the model, enabling precise prediction of smoke control performance in real-world scenarios involving air curtains. Therefore, the grid resolution was determined based on the heat release rate, temperature, and visibility at the target location. Grid validation was conducted for Case 3. Figure 3 represents the simulation results according to the grid resolution. In all figures, it can be observed that there was no significant change in the data when the grid resolution was below 0.25 m. Therefore, the grid resolution was set to below 0.25 m. In FDS, a minimum of two or more grid cells must be allocated to set the angle of the vents. Therefore, to set the angle at the air curtain’s outlet, the minimum grid size of the mesh where the air curtain is installed was set to 0.125 m. The grid in the fire room was set to 0.25 m × 0.25 m × 0.25 m, and for the outdoor emergency stairwell with the air curtain installed, the grid was set to 0.125 m × 0.125 m × 0.125 m.
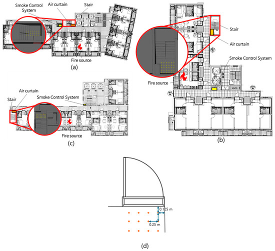
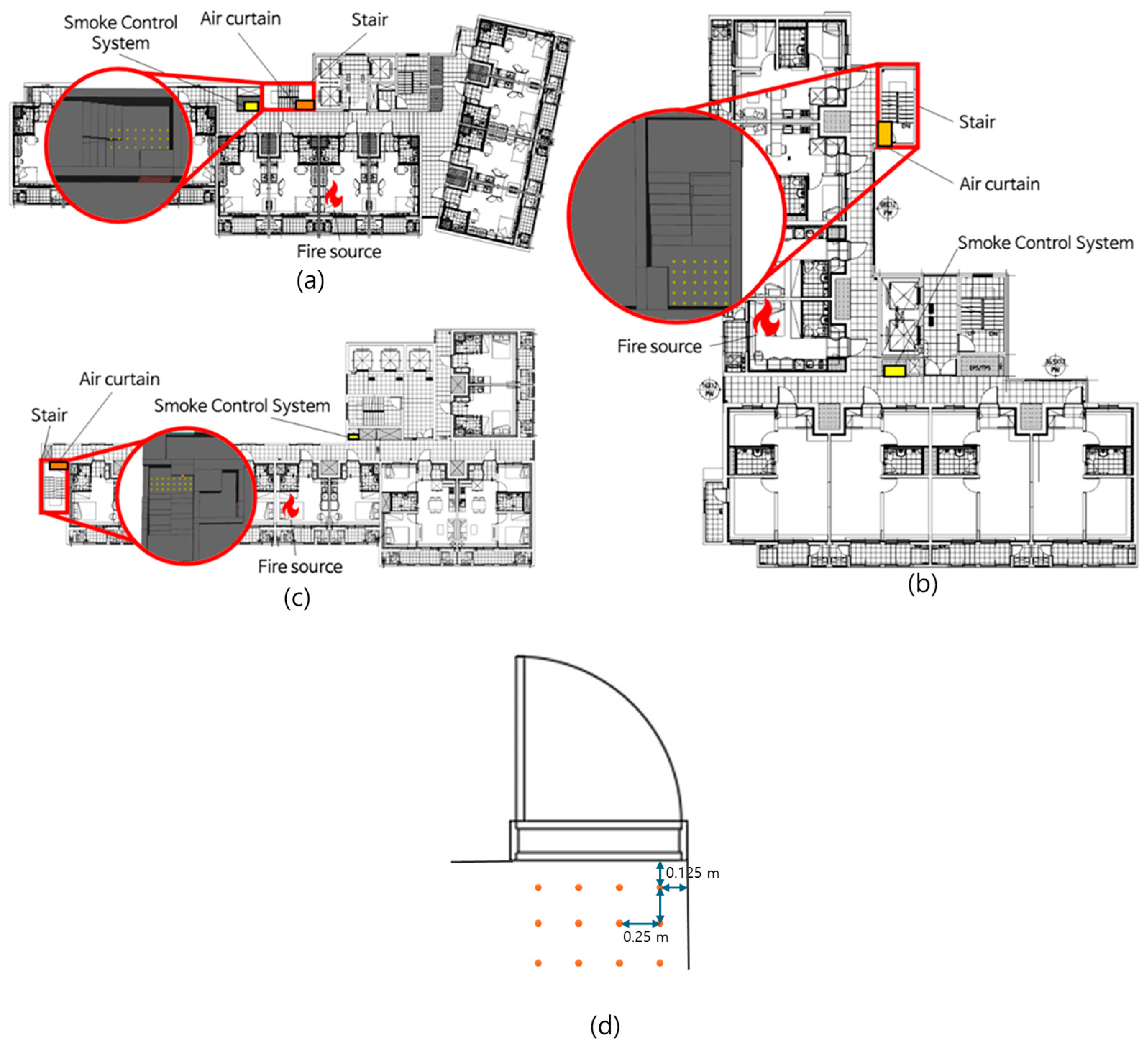
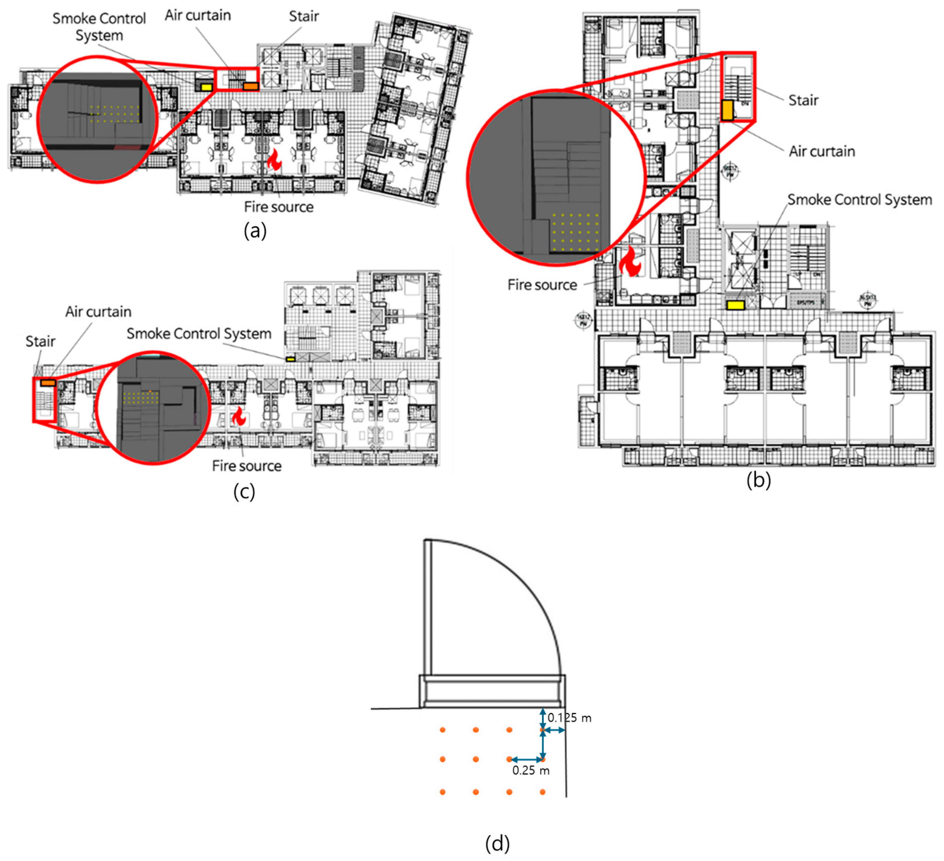
Figure 4 is the floor plan of the building used for fire simulations. Figure 4a shows the emergency stairwell located in the center of the corridor. Figure 4b shows the stairwell located at the end of the corridor with its wider side facing the corridor. Figure 4c shows the stairwell located at the end of the corridor with its shorter side facing the corridor. The simulation grid boundary conditions were set at 20 °C and 1 atm. Additionally, the external air conditions were assumed to be calm. The measurement height for smoke concentration and visibility was set at 1.8 m, using the breathing boundary as a reference. The installations were placed at a height of 1.8 m, with installation intervals represented in Figure 4d. Twelve measurement points for each case were utilized to derive average values.

3.2. Evacuation Simulation Settings

The simulation utilized PATHFINDER 2018, which was developed by Thunderhead Engineering in the US. The evacuation simulation aimed to calculate the time taken by residents in multi-unit buildings to open fire doors during evacuation, and then to apply this time to the fire simulation to assess the smoke control effect of the air curtains while the fire doors are open.
Accordingly, the start time for the evacuation simulation was set by adding the smoke detector detection time derived from the fire simulation and a delay time of 120 s. Simulations were executed to assess the operation times of smoke detectors in each case. All buildings in every scenario were equipped with smoke detectors. The respective operational times for each case were as follows: 25 s for Case 1, 28 s for Case 2, and 28 s for Case 3. The occupancy standard was based on the residential density in apartment buildings of 18.6 persons/m2, as recommended by NFPA 101. The walking speeds employed were obtained from experimental data from the Korea Institute of Construction Technology, and the age distribution of the population was based on the demographic statistics of South Korea. The occupancy for each case was as follows: 456 individuals for Case 1, 342 individuals for Case 2, and 363 individuals for Case 3, as input by the user in the simulation(Table 2).

Evacuation Simulation Results

According to the evacuation simulation results, the exit times for each case are as shown in Table 3.
Figure 5 depicts the evacuation simulation modeling. Figure 5a models the entire apartment, and Figure 5b,c show the scenario when residents enter the stairwell and the door opens after evacuation begins. Based on the evacuation simulation results, the average values of CO, CO2 and O2 concentrations; temperature; and visibility distance due to the fire were derived from the time the door opened to when it closed in the fire simulation. The assessment of toxic gases, temperature, visibility, and other hazards was conducted in accordance with South Korea’s fire safety standards. Accordingly, the evaluation criteria were set as follows: CO (carbon monoxide) levels exceeding 1400 ppm, CO2 (carbon dioxide) levels below 5%, O2 (oxygen) levels below 15%, temperature below 60 °C, and visibility exceeding 5 m.

4. Simulation Results Analysis

4.1. Analysis Results of Case 1 (with the Emergency Stairwell in the Middle of the Corridor)

The amount of toxic gases entering the emergency stairwell during the time residents open and close the fire door after a fire outbreak was analyzed. Figure 6 shows the variation in the amount of smoke over time for each case. In terms of the soot mass fraction, the cases without air curtains showed over 90% higher levels, and excluding those without air curtains, vertical air curtains demonstrated lower soot mass fractions than horizontal ones at the same wind speed.
Figure 7 shows the average temperature and visibility distance of the smoke at different times in Case 1. Figure 7a indicates that in scenarios without air curtains, the temperature in the stairwell nearly reached 120 °C, while in scenarios with air curtains, it did not exceed 30 °C. In these cases, the average temperature was found to decrease by more than 70%. Moreover, visibility was below 5 m without air curtains, but it exceeded 5 m when the air curtains were operational, with vertical air curtains being more effective than horizontal ones.
Figure 8 illustrates the vector velocity caused by air curtains when the entrance door was opened. After the fire door is opened, the vectors formed outside the stairwell by the air curtain show that the horizontal air curtain creates a rotating vortex at the door, whereas the vertical air curtain forms vectors directed towards the stairwell. This indicates that vertical air curtains are more effective at blocking smoke from entering the stairwell.

4.2. Analysis of Case 2 (Where the Emergency Stairwell Is Located at the End of the Corridor with Its Wider Side Facing the Corridor)

In Case 2, the emergency stairwell is situated at the end of the corridor with its wider side facing the corridor.
Figure 9 shows the change in the smoke amount according to the scenario during the opening and closing times of the stairwell’s fire door in Case 2. The soot mass fraction decreased by 49–80% in scenarios with air curtains compared to those without air curtains. Further, vertical air curtains were found to be more effective at smoke blocking than horizontal ones, and their effectiveness increased with higher wind speeds.
Figure 10 shows the temperature and visibility distance during the opening and closing times of the stairwell’s fire door for different scenarios. Figure 10a displays the temperature, which exceeded 140 °C in scenarios without air curtains. With air curtains installed, the temperature lowered to near or below the safety standards for human occupancy. In Case 2-H-35, with air curtains installed, an average temperature decrease of 65% was observed. Figure 10b displays the visibility distance, which was less than 5 m in certain cases, even with air curtains installed, owing to the structure of the stairwell. Therefore, to enhance visibility, additional scenarios, Case 2-V-35-2 and Case 2-H-35-2, with a wind speed of 35 m/s for vertical and horizontal air curtains were analyzed, where a visibility exceeding 5 m was achieved.
Figure 11 for Case 2 shows the vector values of the flow resulting from the operation of air curtains in the stairwell.
Figure 11a shows that with a horizontal air curtain and the stairwell walls closed, a circulating flow is created inside the stairwell, preventing smoke from being expelled when it enters. Therefore, installing an opening as in Figure 11b allows the smoke to be expelled even if a vortex is created, enhancing visibility.
Figure 11c shows that because the protruding wall blocks the spray angle of the stairwell air curtain and its location at the end of the corridor, the inflow into both the corridor and stairwell appears stronger. Similarly, as shown in Figure 11d, installing an opening within the stairwell allows the drawn smoke to be expelled, proving beneficial for maintaining visibility. The installation of an opening showed that Case 2-h-35-2 had about 19% less smoke than Case 2-h-35, and Case 2-V-35-2 exhibited approximately 65% less smoke than Case 2-V-35. With horizontal air curtains, there was a tendency for smoke to stagnate inside the stairwell owing to the rotating flow. However, vertical air curtains facilitated the flow of smoke outwards through the open wall structure more efficiently than horizontal air curtains. In terms of visibility, only Case 2-V-35-2 managed to maintain a visibility of more than 5 m.
Figure 12 visually presents the modeling of the openings of the emergency staircase. (a) illustrates a partially opened emergency staircase, while (b) shows the complete opening excluding the handrails.

4.3. Analysis of Case 3 (Where the Emergency Stairwell Is Located at the End of the Corridor with Its Shorter Side Facing the Corridor)

In Case 3, the stairwell is located at the end of the corridor, with the external wall of the stairwell open for ventilation. In Figure 13, in scenarios without air curtains, the stairwell’s soot mass fraction exceeded 98%, and Case 3-V-10 had less smoke than Case 3-H-35.
By examining the visibility and temperature in Figure 14, similar to Case 1, only Case 3-None, without air curtains, exceeded the human occupancy safety standard. With air curtains installed, all cases showed values that were below the standard, with vertical air curtains demonstrating a higher smoke control performance than horizontal ones.
Figure 15 illustrates the vectors of airflow generated by the air curtain when the entrance door is open.

5. Hot Smoke Test

A hot smoke test was conducted to verify the performance of the air curtains. The hot smoke test involves heating colored SF6 gas to create buoyancy, simulating a smoke-like appearance.
The experiment was conducted under the same conditions as in Case 3 in the previous simulations. The vertical air curtain, which exhibited the best smoke control performance in simulations, was used for visual observation. The wind speed of the air curtain was set at the commonly observed value of 10 m/s. The hot smoke test’s smoke generator was placed in the central corridor room, as shown in Figure 16.
The smoke quantity was determined based on the heat release rate applied in the fire simulation, using the smoke calculation formula from NFPA 92-b, and was set to 35,000 cmh.
m = 0.36 Q W 2 1 3 ( z b + 0.25 H )
m = mass flow rate in the plume (kg/s).
Q = heat release rate of the fire (kW).
W = width of the plume as it spills under the balcony (m).
z b = height from the underside of the balcony to the smoke layer interface (m).
H = height of the balcony above the base of the fire (m).
Figure 17a shows the installation of a vertical air curtain. The installed air curtain was 2.2 m high, which is equal to the height of the door. The hot smoke tester was installed as shown in Figure 17b. The setup included one smoke generator and one heat gun, and a thermocouple was installed on the reflector to monitor the temperature of the smoke during the experiment.
Figure 18 shows the progression of smoke dispersion in the corridor over 150 s following the operation of the hot smoke tester.
Based on the evacuation simulation results, the fire door of the stairwell was opened 157 s after the hot smoke tester was activated, aligned with the time that the first person opened the fire door. Figure 19a shows the situation 10 s after opening the fire door without the air curtain being operational. Smoke can be seen entering the stairwell. Figure 19b depicts the scenario with an operational air curtain, where less smoke was observed entering the stairwell compared to the non-operational scenario.

6. Conclusions

This paper examined the smoke control effectiveness of vertical and horizontal air curtains in three different scenarios. Regardless of the corridor layout, vertical air curtains were deemed more advantageous for ensuring safety.
The simulation results indicated that with a wind speed of 35 m/s and using vertical air curtains, the soot concentration decreased by 80–99% compared to no air curtains, depending on the case. Horizontal air curtains showed a reduction rate of 65–99% in different scenarios. In most cases, the installation of vertical air curtains proved to be more beneficial than horizontal ones.
Comparing the hot smoke test with the simulation, the visible smoke control effect was similar when a 10 m/s vertical air curtain was installed and the fire door was open. This indicates that in an actual fire, the installation of vertical air curtains could reduce the ingress of smoke into stairwells from corridors.
In cases where the stairwell is adjacent to a corridor that is not straight, setting the angle of the air curtain outside of protruding parts to prevent turbulence formation inside the stairwell appears to be advantageous for smoke control. Ventilation conditions may vary depending on the corridor layout and stairwell opening design, and additional experiments may be needed for air curtains with external air supply units, as opposed to integrated ones.
Based on the results of this study, it is believed that air curtains can partially reduce smoke ingress in stairwells of older buildings or low-rise structures without pressurization systems, thereby ensuring fire safety.

Author Contributions

Conceptualization, K.K. and D.S.; Methodology, K.K. and D.S.; Software, K.K.; Investigation, K.K.; Data curation, K.K.; Writing—original draft, K.K.; Writing—review & editing, K.K. and D.S.; Supervision, D.S.; Project administration, D.S. All authors have read and agreed to the published version of the manuscript.

Funding

This research received no external funding.

Institutional Review Board Statement

Not applicable.

Informed Consent Statement

Not applicable.

Data Availability Statement

The raw data supporting the conclusions of this article will be made available by the authors on request.

Conflicts of Interest

Author Kisung Kim was employed by the company Korea Fire & Explosion Solutions Corporation. The remaining authors declare that the research was conducted in the absence of any commercial or financial relationships that could be construed as a potential conflict of interest.

References

  1. 2022 Population and Housing Census; Statistics Korea: Daejeon, Republic of Korea, 2023.
  2. Seong-jae, H.; Myung-sik, L. Study on evacuation safety in high-rise fires—Focusing on escape-type evacuation systems. J. Archit. Inst. Korea 2021, 37, 125–136. [Google Scholar]
  3. Jae-seong, P. Study on the demographic characteristics of fatalities in multi-unit residential fires 2. J. Korean Soc. Hazard Mitig. 2020, 20, 95–101. [Google Scholar]
  4. Alianto, B.; Nasruddin, N.; Nugroho, Y.S. High-rise building fire safety using mechanical ventilation and stairwell pressurization: A review. J. Build. Eng. 2022, 50, 104224. [Google Scholar] [CrossRef]
  5. Yu, L.-X.; Beji, T.; Zadeh, S.E.; Liu, F.; Merci, B. Simulations of smoke flow fields in a wind tunnel under the effect of an air curtain for smoke confinement. Fire Technol. 2016, 52, 2007–2026. [Google Scholar] [CrossRef]
  6. Krajewski, G.; Węgrzyński, W. Air curtain as a barrier for smoke in case of fire: Numerical modelling. Bull. Pol. Acad. Sci. Tech. Sci. 2015, 63, 145–153. [Google Scholar] [CrossRef]
  7. Gonçalves, J.C.; Costa, J.J.; Figueiredo, A.R.; Lopes, A.M.G. CFD modelling of aerodynamic sealing by vertical and horizontal air curtains. Energy Build. 2012, 52, 153–160. [Google Scholar] [CrossRef]
  8. Luo, N.; Li, A.; Gao, R.; Tian, Z.; Zhang, W.; Mei, S.; Feng, L.; Ma, P. An experiment and simulation of smoke confinement and exhaust efficiency utilizing a modified opposite double-jet air curtain. Saf. Sci. 2013, 55, 17–25. [Google Scholar] [CrossRef]
  9. Safarzadeh, M.; Heidarinejad, G.; Pasdarshahri, H. The effect of vertical and horizontal air curtain on smoke and heat control in the multi-storey building. J. Build. Eng. 2021, 40, 102347. [Google Scholar] [CrossRef]
  10. Safarzadeh, M.; Heidarinejad, G.; Pasdarshahri, H. Air curtain to control smoke and fire spread in a ventilated multi-floor building. Int. J. Therm. Sci. 2021, 159, 106612. [Google Scholar] [CrossRef]
  11. Zhou, Z.; Lu, Y.; Cui, Y. Study on the Effect of Jet Direction of Compound Air Curtain on Smoke Control. Energies 2021, 14, 6983. [Google Scholar] [CrossRef]
  12. Razeghi, S.M.J.; Safarzadeh, M.; Pasdarshahri, H. Evaluation of air curtain and emergency exhaust system for smoke confinement of an enclosure. J. Build. Eng. 2021, 33, 101650. [Google Scholar] [CrossRef]
  13. Yan, X.; Yang, H.; Mo, H.; Xie, Y.; Jin, Z.; Zhou, Y. Numerical Simulation on the Smoke Prevention Performance of Air Curtains in an Island-Type Subway Station. Fire 2023, 6, 177. [Google Scholar] [CrossRef]
Figure 1. Study outline.
Figure 1. Study outline.
Applsci 14 02692 g001
Figure 2. Examples of air curtain installations. (a) Horizontal air curtain, (b) vertical air curtain.
Figure 2. Examples of air curtain installations. (a) Horizontal air curtain, (b) vertical air curtain.
Applsci 14 02692 g002
Figure 3. Comparison of simulation results according to grid resolution. (a) Heat release rate, (b) visibility, (c) temperature.
Figure 3. Comparison of simulation results according to grid resolution. (a) Heat release rate, (b) visibility, (c) temperature.
Applsci 14 02692 g003
Figure 4. Sectional fire simulation modeling and measurement points. (a) Case 1, (b) Case 2, (c) Case 3, (d) measurement points.
Figure 4. Sectional fire simulation modeling and measurement points. (a) Case 1, (b) Case 2, (c) Case 3, (d) measurement points.
Applsci 14 02692 g004
Figure 5. Evacuation simulation modeling. (a) Overall view of evacuation simulation. (b) Evacuation simulation before stairwell fire door opens. (c) Evacuation simulation after stairwell fire door opens.
Figure 5. Evacuation simulation modeling. (a) Overall view of evacuation simulation. (b) Evacuation simulation before stairwell fire door opens. (c) Evacuation simulation after stairwell fire door opens.
Applsci 14 02692 g005
Figure 6. Comparison of smoke amount in Case 1.
Figure 6. Comparison of smoke amount in Case 1.
Applsci 14 02692 g006
Figure 7. Time-based simulation results for Case 1. (a) Temperature. (b) Visibility distance.
Figure 7. Time-based simulation results for Case 1. (a) Temperature. (b) Visibility distance.
Applsci 14 02692 g007
Figure 8. Vector velocity caused by air curtains when the entrance door is open. (a) Horizontal air-curtain vector, (b) vertical air-curtain vector.
Figure 8. Vector velocity caused by air curtains when the entrance door is open. (a) Horizontal air-curtain vector, (b) vertical air-curtain vector.
Applsci 14 02692 g008
Figure 9. Comparison of smoke amount in Case 2 (2 added).
Figure 9. Comparison of smoke amount in Case 2 (2 added).
Applsci 14 02692 g009
Figure 10. Time-based simulation results for Case 2. (a) Temperature. (b) Visibility distance.
Figure 10. Time-based simulation results for Case 2. (a) Temperature. (b) Visibility distance.
Applsci 14 02692 g010
Figure 11. Vector velocity caused by air curtains when the entrance door is open. (a) Horizontal air-curtain vector with stairwell wall closed. (b) Horizontal air-curtain vector with stairwell wall open. (c) Vertical air-curtain vector with stairwell wall closed. (d) Vertical air-curtain vector with stairwell wall open.
Figure 11. Vector velocity caused by air curtains when the entrance door is open. (a) Horizontal air-curtain vector with stairwell wall closed. (b) Horizontal air-curtain vector with stairwell wall open. (c) Vertical air-curtain vector with stairwell wall closed. (d) Vertical air-curtain vector with stairwell wall open.
Applsci 14 02692 g011
Figure 12. Modeling of stairwell opening installation. (a) Partially open stairwell wall, (b) fully open stairwell wall.
Figure 12. Modeling of stairwell opening installation. (a) Partially open stairwell wall, (b) fully open stairwell wall.
Applsci 14 02692 g012
Figure 13. Comparison of smoke amount in Case 3.
Figure 13. Comparison of smoke amount in Case 3.
Applsci 14 02692 g013
Figure 14. Time-based simulation results for Case 3. (a) Temperature. (b) Visibility distance.
Figure 14. Time-based simulation results for Case 3. (a) Temperature. (b) Visibility distance.
Applsci 14 02692 g014
Figure 15. Vector velocity caused by air curtains when the entrance door is open: (a) horizontal air-curtain vector, (b) vertical air-curtain vector.
Figure 15. Vector velocity caused by air curtains when the entrance door is open: (a) horizontal air-curtain vector, (b) vertical air-curtain vector.
Applsci 14 02692 g015
Figure 16. Location of the hot smoke test experiment.
Figure 16. Location of the hot smoke test experiment.
Applsci 14 02692 g016
Figure 17. (a) Installation location of the vertical air curtain, (b) overview of the hot smoke test setup.
Figure 17. (a) Installation location of the vertical air curtain, (b) overview of the hot smoke test setup.
Applsci 14 02692 g017
Figure 18. Time after hot smoke tester operation: (a) 60 s, (b) 90 s, (c) 120 s, (d) 150 s.
Figure 18. Time after hot smoke tester operation: (a) 60 s, (b) 90 s, (c) 120 s, (d) 150 s.
Applsci 14 02692 g018
Figure 19. Photo of the experiment site (a) 10 s after opening the fire door without an air curtain, (b) 10 s after opening the fire door with an air curtain.
Figure 19. Photo of the experiment site (a) 10 s after opening the fire door without an air curtain, (b) 10 s after opening the fire door with an air curtain.
Applsci 14 02692 g019
Table 1. Fire simulation scenarios.
Table 1. Fire simulation scenarios.
Simulation ModelInstallation TypeMaximum Wind Speed of Air Curtain
Case 1Case 1-NoneNo air curtain installed-
Case 1-H-10Horizontal air curtain10 m/s
Case 1-H-1818 m/s
Case 1-H-3535 m/s
Case 1-V-10Vertical air curtain10 m/s
Case 1-V-1818 m/s
Case 1-V-3535 m/s
Case 2Case 2-NoneNo air curtain installed-
Case 2-H-10Horizontal air curtain10 m/s
Case 2-H-1818 m/s
Case 2-H-3535 m/s
Case 2-V-10Vertical air curtain10 m/s
Case 2-V-1818 m/s
Case 2-V-3535 m/s
Case 2-H-35-2Horizontal air curtain
(with stairwell external wall open)
35 m/s
Case 2-V-35-2Vertical air curtain
(with stairwell external wall open)
35 m/s
Case 3Case 3-NoneNo air curtain installed
Case 3-H-10Horizontal air curtain10 m/s
Case 3-H-1818 m/s
Case 3-H-3535 m/s
Case 3-V-10Vertical air curtain10 m/s
Case 3-V-1818 m/s
Case 3-V-3535 m/s
Table 2. Walking speed by age group.
Table 2. Walking speed by age group.
Evacuation Delay Time (s)Occupancy (s)Walking Speed (m/s)Building Occupancy by Gender and Age Distribution (%)
120 s18.6 persons/m2Children 1.0
Teenagers 1.3
Adult Men 1.2
Adult Women 1.1
Elderly Men 0.7
Elderly Women 0.97
Children 13.0
Teenagers 4.8
Adult Men 35.0
Elderly Men 6.2
Adult Women 33.2
Elderly Women 7.7
Table 3. Fire door opening time.
Table 3. Fire door opening time.
Case 1Case 2Case 3
Fire door opening time154–186 s156–191 s157–201 s
Disclaimer/Publisher’s Note: The statements, opinions and data contained in all publications are solely those of the individual author(s) and contributor(s) and not of MDPI and/or the editor(s). MDPI and/or the editor(s) disclaim responsibility for any injury to people or property resulting from any ideas, methods, instructions or products referred to in the content.

Share and Cite

MDPI and ACS Style

Kim, K.; Song, D. Study on the Smoke Control Performance of Air Curtains in Emergency Stairwells of Multi-Unit Residential Buildings. Appl. Sci. 2024, 14, 2692. https://doi.org/10.3390/app14072692

AMA Style

Kim K, Song D. Study on the Smoke Control Performance of Air Curtains in Emergency Stairwells of Multi-Unit Residential Buildings. Applied Sciences. 2024; 14(7):2692. https://doi.org/10.3390/app14072692

Chicago/Turabian Style

Kim, Kisung, and Dongwoo Song. 2024. "Study on the Smoke Control Performance of Air Curtains in Emergency Stairwells of Multi-Unit Residential Buildings" Applied Sciences 14, no. 7: 2692. https://doi.org/10.3390/app14072692

APA Style

Kim, K., & Song, D. (2024). Study on the Smoke Control Performance of Air Curtains in Emergency Stairwells of Multi-Unit Residential Buildings. Applied Sciences, 14(7), 2692. https://doi.org/10.3390/app14072692

Note that from the first issue of 2016, this journal uses article numbers instead of page numbers. See further details here.

Article Metrics

Back to TopTop