Strength, Durability, and Aesthetics of Corner Joints and Edge Banding in Furniture Design: A Review
Abstract
1. Introduction
2. Methods
3. Results and Discussion
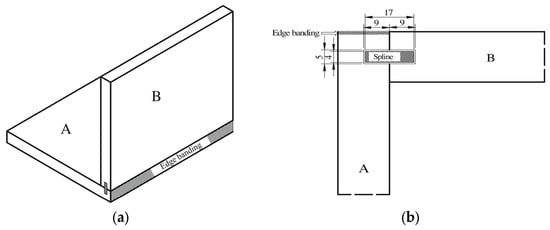
3.1. Edge Band Studies
3.1.1. The Influence of the Type of Glue on Quality of the Glued Joint
3.1.2. The Influence of the Edge Surface Treatment of Wood Based Panels
3.2. Corner Joints Studies
3.2.1. The Influence of Different Types of Corner Joints on the Overall Strength and Durability of Panel Furniture
3.2.2. The Influence of Different Factors on Load-Bearing Capacity and Failure Points Specific to Panel Corner Joints
3.2.3. Influences of Corner Joint Design on the Visual Appeal of Particleboard Furniture
4. Conclusions
- Comparison of edge materials: Investigating different methods for applying edge materials, focusing on wood slats or veneers versus ABS. Understanding the performance implications of these materials can improve edge banding procedures.
- Adhesive evaluation: Comparing various adhesive types across the same or different application procedures, considering the implications for edge materials. This will help identify the most effective adhesives for specific applications.
- Application techniques: Researching the impact of different application techniques on the strength and aesthetic properties of corner joints. This comparison will enhance knowledge of edge banding effectiveness in furniture design.
- Interdisciplinary collaboration: Encouraging collaboration across disciplines such as material science, engineering, and design to advance edge banding techniques and adhesive applications that meet industry needs.
- Long-term performance evaluation: Conducting longitudinal studies to assess the durability and performance of new edge banding methods and adhesives over time, providing insights into the lifecycle and reliability of furniture designs.
- Compatibility testing: Systematically investigating the compatibility and performance of various adhesive types under different environmental conditions to identify optimal solutions for furniture manufacturing.
- Sustainability focus: Prioritizing the exploration of biodegradable adhesives and smart materials to develop functional and environmentally responsible furniture solutions.
Author Contributions
Funding
Institutional Review Board Statement
Informed Consent Statement
Data Availability Statement
Conflicts of Interest
References
- Jivkov, V. Influence of Edge Banding on Banding Strength of End Corner Joints from 18 Mm Particleboard. In Proceedings of the International Conference of Nábytok 2002; University of Forestry: Sofia, Bulgaria, 2016. [Google Scholar]
- Cai, L.; Wang, F. Influence Of the Stiffness of Corner Joint an Case Furniture Deflection. Holz Als Roh Werkst. Eur. J. Wood Wood Ind. 1993, 51, 406–408. [Google Scholar] [CrossRef]
- Tankut, A.N.; Tankut, N. Evaluation the Effects of Edge Banding Type and Thickness on the Strength of Corner Joints in Case-Type Furniture. Mater. Des. 2010, 31, 2956–2963. [Google Scholar] [CrossRef]
- Zhou, C.M.; Wu, Z.H.; Ma, D.D. Study on the Solid Edge Banding Cracking of Panel Furniture. Adv. Mat. Res. 2011, 337, 418–421. [Google Scholar] [CrossRef]
- Miškinytė, U.; Juknelevičius, R. Quality Research of Edge Banding of Unit Furniture. IOP Conf. Ser. Mater. Sci. Eng. 2022, 1239, 012014. [Google Scholar] [CrossRef]
- Saçli, C. The Effect of Time and Edge Banding Type and Thickness on the Bending and Tensile Strength of Melamine Coated Particleboard. In Proceedings of the 27th International Conference Research for Furniture Industry, Ankara, Turkey, 17–18 September 2015; pp. 468–480. [Google Scholar]
- Jansen, I.; Rechner, R.; Beyer, E. Using Lasers in Edge Banding. Adhes. Adhes. 2009, 6, 36–40. [Google Scholar] [CrossRef]
- Kurt, Ş.; Uysal, B.; Özcan, C.; Yildirim, M.N. The Effects of Edge Banding Thickness of Uludag Fir Bonded with Some Adhesives on Withdrawal Strengths of Beech Dowel Pins in Composite Materials. Bioresources 2009, 4, 1682–1693. [Google Scholar] [CrossRef]
- Özcan, C.; Uysal, B.; Kurt, Ş.; Esen, R. Effect of Dowels and Adhesive Types on Withdrawal Strength in Particleboard and MDF. J. Adhes. Sci. Technol. 2013, 27, 843–854. [Google Scholar] [CrossRef]
- Yuksel, M.; Fathollahzadem, A.; Kuskun, T.; Kilic, H.; Kasal, A. Effect of the Diameter and Penetration of Dowels on Withdrawal Force Capacity of Medium Density Fiberboard and Particleboard. In Proceedings of the 2nd International Furniture Congress, Mugla, Turkey, 13–15 October 2016; pp. 605–611. [Google Scholar]
- Merdzhanov, V. Comparative Study of Tensile Bond Strength for Melted EVA Glue on Particle Boards with Different Edge Banding Materials. In Proceedings of the 5th International Conference on Processing Technologies for the Forest and Bio-Based Products Industries (PTF BPI 2018), Freising/Munich, Germany, 20–21 September 2018; pp. 1–6. [Google Scholar]
- Kubit, A.; Zielecki, W.; Kaščák, Ľ.; Szawara, P. Experimental Study of the Impact of Chamfer and Fillet in the Frontal Edge of Adherends on the Fatigue Properties of Adhesive Joints Subjected to Peel. Technol. I Autom. Montażu 2023, 119, 23–29. [Google Scholar] [CrossRef]
- Karaman, A. Effects of Wooden Dowel Species, Edge Banding Thickness, and Adhesive Types on Embedded Strength in Particleboard. Drv. Ind. 2022, 73, 205–214. [Google Scholar] [CrossRef]
- Vassiliou, V.; Barboutis, I. Bending Strength of Furniture Corner Joints Constructed with Insert Fittings. Ann. Wars. Univ. Life Sci. For. Wood Technol. SGGW 2009, 274, 268–274. [Google Scholar]
- Tankut, A.N.; Tankut, N. Investigations the Effects of Fastener, Glue, and Composite Material Types on the Strength of Corner Joints in Case-Type Furniture Construction. Mater. Des. 2009, 30, 4175–4182. [Google Scholar] [CrossRef]
- Yapici, F.; Likos, E.; Esen, R. The Effect of Edge Banding Thickness of Some Trees on Withdrawal Strength of Beech Dowel Pins in Composite Material. Wood Res. 2011, 56, 601–612. [Google Scholar]
- Śmietańska, K.; Mielczarek, M. Strength Properties of Furniture Corner Joints Constructed with Different Wooden Connectors and Wood-Based Materials. Ann. Wars. Univ. Life Sci.-SGGW. For. Wood Technol. 2022, 118, 55–66. [Google Scholar] [CrossRef]
- Fathollahzadeh, A.; Enayati, A.A.; Erdil, Y.Z. Effect of Laboratory-Accelerated Aging Treatment on the Ultimate Strength of a 4-Sided MDF Kitchen Cabinet. Turk. J. Agric. For. 2013, 37, 649–656. [Google Scholar] [CrossRef]
- Atar, M.; Özçifçi, A. The Effects of Screw and Back Panels on the Strength of Corner Joints in Case Furniture. Mater. Des. 2008, 29, 519–525. [Google Scholar] [CrossRef]
- Tankut, A.N.; Tankut, N. Effect of Some Factors on the Strength of Furniture Corner Joints Constructed with Wood Biscuits. Turk. J. Agric. For. 2004, 28, 301–309. [Google Scholar]
- European Committee for Standardization. Paints and Varnishes—Pull-Off Test for Adhesion—Test Method (EN ISO 4624:2017); European Committee for Standardization: Geneva, Switzerland, 2017. [Google Scholar]
- Džinčić, I.; Palija, T. The Influence of Particleboard Squareness on the Edge Bonding Quality. In Proceedings of the 6th International Scientific Conference “Wood Technology & Product Design”, Ohrid, North Macedonia, 13–15 September 2023; pp. 157–162. [Google Scholar]
- International Organization for Standardization. Adhesives—Determination of Strength of Bonded Joints—Part 1: Wedge Rupture Test (ISO 28510-1:2014); International Organization for Standardization: Geneva, Switzerland, 2014. [Google Scholar]
- European Committee for Standardization. Wood-Based Panels—Surface Soundness—Test Method (EN 311:2014); European Committee for Standardization: Geneva, Switzerland, 2014. [Google Scholar]
- Borysiuk, P.; Wacikowski, B.; Jasiński, W.; Adamik, Ł.; Auriga, R. Influence of Edge Band Material on Selected Properties of Particleboard Slats. Biul. Inf. OB-RPPD 2023, 1–2, 5–13. [Google Scholar]
- Lyu, J.; Jiang, L.; Chen, M. Influence of Temperature of Applying Glue, Glue Dosage and Feed Rate on Peel Strength of Edge Band from Curved Edge Part. IOP Conf. Ser. Mater. Sci. Eng. 2017, 274, 012159. [Google Scholar] [CrossRef]
- Ministry of Light Industry of the Republic of China. Test of Peeling Strength of Soft Covering Material from Furniture (QB/T 3655-1999); Ministry of Light Industry of the Republic, Press of China: Beijing, China, 1999. [Google Scholar]
- Hlavatý, J.; Tesařová, D. Temperature-Related Resistance of Bonds between Wood Particleboard and Surface Finishing Materials. Acta Fac. Xylologiae 2015, 57, 89–97. [Google Scholar]
- Altinok, M.; Taş, H.H.; Çimen, M. Effects of Combined Usage of Traditional Glue Joint Methods in Box Construction on Strength of Furniture. Mater. Des. 2009, 30, 3313–3317. [Google Scholar] [CrossRef]
- Dizel, T.; Uzun, İ. The Effects of Used Glue Type That Jointed with Particalboard on the Edge Bonding Strength. Artvin Çoruh Univ. Fac. For. J. 2007, 8, 15–25. [Google Scholar]
- Imirzi, H.O.; Ozkaya, K.; Efe, H. Determination of the Strength of L-Type Corner Joints Obtained from Wood-Based Board Materials Using Different Joining Techniques. Prod. J. 2016, 66, 214–224. [Google Scholar] [CrossRef]
- Szwajka, K.; Trzepieciński, T. The Influence of Machining Parameters and Tool Wear on the Delamination Process during Milling of Melamine-Faced Chipboard. Drewno 2017, 60, 117–131. [Google Scholar] [CrossRef]
- Triboulot, P.; Sales, C.; Zerizer, A.; Martin, P. Correlation of Fracture Toughness of Bonded Joints with Quality (Roughness) of Knife-Planed MDF Surfaces. Holzforschung 1995, 49, 465–470. [Google Scholar] [CrossRef]
- Institute of Turkish Standards. Wood Joints—The Rule of Dowel Joints TS 4539 (1983); Institute of Turkish Standards: Ankara, Turkey, 1983. [Google Scholar]
- American Society for Testing and Materials. Standard Methods of Evaluating the Wood-Base Fiber and Particle Materials (ASTM D1037); American Society for Testing and Materials: West Conshohocken, PA, USA, 1988. [Google Scholar]
- International Organization for Standardization. Hygrothermal Performance of Building Materials and Products—Determination of Water Absorption Coefficient by Partial Immersion (ISO 15148:2002); International Organization for Standardization: Geneva, Switzerland, 2002. [Google Scholar]
- Simek, M.; Haviarova, E.; Eckelman, C. The Effect of End Distance and Number of Ready-Toassemble Furniture Fasteners on Bending Moment Resistance of Corner Joints. Wood Fiber Sci. 2010, 42, 92–98. [Google Scholar]
- Norvydas, V.; Baltrušaitis, A.; Juodeikieno, I. Investigation of Miter Corner Joint Strength of Case Furniture from Particleboard. Medziagotyra 2012, 18, 352–357. [Google Scholar] [CrossRef]
- Kasal, A.; Erdil, Y.Z.; Zhang, J.; Efe, H.; Avci, E. Estimation Equations for Moment Resistances of L-Type Screw Corner Joints in Case Goods Furniture. Prod. J. 2008, 58, 21–27. [Google Scholar]
- Denizli, N. Improving the Strength and Durability of Panel-Based Cabinet Furniture; Purdue University: West Lafayette, IN, USA, 2001. [Google Scholar]
- Žulj, I.; Župčić, I.; Grbac, I.; Trupković, M. Research of Strength of Corner L Joints. In Proceedings of the 26th International Conference on Wood Science and Technology, ICWST 2015: Implementation of Wood Science in Woodworking Sector, Zagreb, Croatia, 16 October 2015; pp. 221–226. [Google Scholar]
- Župčić, I.; Žulj, I.; Kamerman, I.; Grbac, I.; Vlaović, Z. Research into Corner L Separable Assemblies in Storage Furniture. Drv. Ind. 2021, 72, 89–98. [Google Scholar] [CrossRef]
- Vassiliou, V.; Barboutis, I. Bending Strength of Corner Joints Constructed with Biscuits. In Proceedings of the International Conference of Nábytok, Zvolen, Slovakia, 13–15 May 2008; pp. 1–8. [Google Scholar]
- Vassiliou, V.; Barboutis, I. Screw Withdrawal Capacity Used in the Eccentric Joints of Cabinet Furniture Connectors in Particleboard and MDF. J. Wood Sci. 2005, 51, 572–576. [Google Scholar] [CrossRef]
- Smardzewski, J. The Reliability of Joints and Cabinet Furniture. Wood Res. 2009, 54, 67–76. [Google Scholar]
- Prekrat, S.; Janković, L.; Brezović, M. Design Analysis of Showcase Cabinet with Console Shelves. In Proceedings of the 29th International Conference Research for Furniture Industry, Ankara, Turkey, 19–20 September 2019; pp. 2–9. [Google Scholar]
- Máchová, E.; Langová, N.; Réh, R.; Joščák, P.; Krišt’ák, L.; Holouš, Z.; Igaz, R.; Hitka, M. Effect of Moisture Content on the Load Carrying Capacity and Stiffness of Corner Wood-Based and Plastic Joints. Bioresources 2019, 14, 8641–8655. [Google Scholar] [CrossRef]
- Malkoçoǧlu, A.; Yerlikaya, N.Ç.; Çakiroǧlu, F.L. Effects of Number and Distance between Dowels of Ready-to-Assemble Furniture on Bending Moment Resistance of Corner Joints. Wood Res. 2013, 58, 671–680. [Google Scholar]
- Lu, G.; Xiong, X.; Lu, D. Research on Visualization Method of Edge Banding Appear-Ance Quality Based on YOLOv7. Xresearch Squarex 2023, 1–19. [Google Scholar] [CrossRef]
- Antal, M.R.; Dénes, L.; Vas, Z.A.; Polgár, A. Comparative Study of Conventional and Zero-Joint Edgebanding. Acta Silv. Lignaria Hung. 2021, 17, 21–35. [Google Scholar] [CrossRef]
- Yerlikaya, N.C. Failure Load of Corner Joints, Which Are Reinforced with Glass-Fiber Fabric in Case-Type Furniture. Sci. Res. Essays 2013, 8, 325–339. [Google Scholar]
- Denkena, B.; Köhler, J.; Mengesha, M.S. Influence of the Cutting Edge Rounding on the Chip Formation Process: Part 1. Investigation of Material Flow, Process Forces, and Cutting Temperature. Prod. Eng. 2012, 6, 329–338. [Google Scholar] [CrossRef]





| Criteria | Description |
|---|---|
| Subject | Furniture design studies or material sciences, specifically focusing on edge banding and corner joints in wood materials, including particleboard, medium-density fiberboard (MDF), and similar materials used in furniture design and manufacturing. |
| Intervention | Studies examining the application of edge banding techniques and adhesive methods to corner joints, specifically aimed at improving visual design and structural stability in wood-based materials. |
| Comparator | Studies comparing traditional or alternative methods of edge banding and adhesive application to untreated wood or particleboard edges, including various techniques for edge banding and corner joints or variations in adhesive methods. |
| Outcomes | Measures of adhesive performance, edge banding durability, aesthetic quality of corner joints, structural integrity, and ease of application during manufacturing, including strength, durability, adhesion quality, and overall effectiveness in furniture design |
| Study design | Experimental studies, case studies, technical reports, and systematic reviews relevant to adhesive and edge banding technology, including design comparisons and investigations specifically focused on edge banding and corner joints. |
| Material | Advantages | Disadvantages | Use Cases | Key Insights |
|---|---|---|---|---|
| PVC |
|
|
| PVC is a cost-effective choice for moisture-prone environments but has environmental drawbacks. |
| ABS |
|
|
| ABS offers a more durable alternative to PVC, particularly suited for high-traffic or commercial settings, though it comes at a higher cost. |
| Wood veneer |
|
|
| Wood veneer is preferred for high-end furniture due to its natural beauty but requires careful handling and environmental controls. |
| Aluminum |
|
|
| Aluminum is visually striking and durable, making it ideal for contemporary designs, though it can be costly. |
| Edges for Special Applications |
|
|
| Special application edges offer flexibility for unique designs but require higher production investment and specific material selection, making them suitable for complex, custom furniture. |
| Glue Type | Material | Joint Type/Design | Key Findings | Practical Implications | Paper |
|---|---|---|---|---|---|
| PVAC | Particleboard | Dowel and spline joints | PVAC glue provided the highest tension strength | PVAC glue is highly effective for corner joint durability | Altinok et al. [29] |
| PVAC | Melamine-coated MDF | Case furniture corner joints | Higher diagonal tension and compression strength | PVAC glue enhances overall structural integrity | Tankut and Tankut [15] |
| PVAC | Wooden edge strip on particleboard | Edge strip | PVAC glue resulted in the highest bonding strength | PVAC is preferred for strong adhesive bonds on edges | Dizel and Uzun [30] |
| PVAC + screws | L-type corner joints | Corner joints | PVAC with screws offers the highest moment-carrying capacity | Combined PVAC glue and screws improve load-bearing joints | Imirzi et al. [31] |
| EVA | Particleboard | Edge band on three-layer particleboard | Glue temperature and application affect bonding | Optimal glue temperature and parameters critical for edge bonding strength | Džinčić and Palija [22] |
| Temperature variations | Particleboard | Glued joints | Temperature decreases joint stability at high temps | Careful glue selection and temperature control are needed to ensure joint stability | Hlavatý and Tesařová [28] |
| PVAC-D4, PUR-D4 | Particleboard with dowels | Dowels with PVC edge banding | Polyurethane glue provided the highest strength, a 0.8 mm edge band was most effective | Thinner edge bands perform better in dowel joints when combined with polyurethane glue | Karaman [13] |
| Laser technology | Particleboard and edge band | Edge band materials | Laser technology melts a pre-applied adhesive layer on edge bands, allowing precise adhesive distribution and strengthening the bond with the panel. | Laser-based edge banding provides high precision and consistency, suitable for high-quality, modern furniture with “zero joint” | Jansen et al. [7]. |
| Material Type | Treatment/ Technique | Testing Standards/Methods | Key Findings | Practical Implications | Paper |
|---|---|---|---|---|---|
| Particleboard | Sawing and milling | - | Surface quality influences glue thickness | Surface preparation is crucial for optimal glue performance | Triboulot et al. [33] |
| Particleboard | Pre-cutters, glue application | EN ISO 4624:2017 [21] | Angular deviation affects bonding strength | Maintaining minimal angular deviation improves bonding strength | Džinčić and Palija [22] |
| PVC edge bands | Temperature, glue dosage, feed rate | Chinese standard QB/T3655 [27] | Higher peel strength with optimal parameters | Guidelines for improving edge band durability and adhesion in furniture | Lyu et al. [26] |
| PVC and Melamine edge bands | Edge banding using hot-melt adhesive | Universal testing machine (bending and tensile test) | Thicker edge bands increase strength over time | Thicker edge bands, such as 2 mm PVC, enhance bending and tensile strength | Saçli [6] |
| Particleboard, glued joints | Chamfer, rounded edge (fillet) | Fatigue testing (frequency, stress application) | Rounded edges increase strength and fatigue resistance | Rounded edge modifications improve joint durability and lifetime | Kubit et al. [12] |
| Corner Joint Type | Effect on Strength | Effect on Durability | Papers |
|---|---|---|---|
| Cam connectors and dowels | High strength; varies by dowel number | Less durable under long-term stress | Jivkov [1], Tankut and Tankut [20], Jansen et al. [7] |
| Biscuits (wood vs. plastic) | Wood biscuits increase bending moment resistance | Wood biscuits last longer under cyclic loading | Imirzi et al. [31], Jivkov [1] |
| Confirmat screws | Superior strength in load-bearing applications | Aesthetic limitations unless concealed | Kasal et al. [39], Tankut and Tankut [20] |
| Lamello Clamex P and Invis Mx | Lower strength; suitable for lighter applications | Limited by low load-bearing capacity | Kasal et al. [39], Jansen et al. [7] |
| Miter joints | 8× higher strength than cam fittings with PVAC adhesive | Higher durability with veneered particleboard | Jansen et al. [7], Jivkov [1], Kasal et al. [39] |
| Edge banding thickness | Enhanced compression strength with 0.4 mm edge-banding | Increases joint stiffness | Jivkov [1], Jansen et al. [7] |
| Factor | Influence on Load-Bearing Capacity | Failure Points | Papers |
|---|---|---|---|
| Joint reinforcement (wood biscuits) | Enhances joint strength and failure load | High bending strength achieved with optimized spacing | Imirzi et al. [31], Kasal et al. [39], Jivkov [1] |
| Material type (particleboard, MDF) | Determines bending strength of corner joints | Particleboard is more susceptible to breakage than MDF | Tankut and Tankut [20], Jivkov [1], Jansen et al. [7] |
| Moisture content | Higher humidity improves load capacity | Swelling of dowels and adhesives may lead to stronger joints | Jivkov [1], Jansen et al. [7], Kasal et al. [39], |
| Dowel quantity and spacing | Increased dowel number and specific spacing enhances strength | Nonlinear response to spacing, optimal at 160 mm | Kasal et al. [39], Tankut and Tankut [20] |
| Adhesive type | PU adhesive offers superior strength over PVAC | Better penetration and swelling lead to stronger joints | Jivkov [1], Jansen et al. [7] |
| Loading method | Impacts joint performance under cyclic conditions | Screw crushing in face member, edge splitting | Kasal et al. [39], Tankut and Tankut [20] |
| Design Element | Aesthetic Influence | Additional Benefits | Papers |
|---|---|---|---|
| Edge banding quality | Defects (e.g., edge collapse, glue leakage) reduce appeal | Improves durability with ABS bands | Jivkov [1], Jansen et al. [7] |
| Radius on corners (≥1.5 mm) | Smooth edges improve visual and tactile appeal | Reduces edge damage, enhances safety | Jansen et al. [7], Kasal et al. [39], |
| Zero-joint edge banding | Seamless, invisible glue line | Enhanced moisture resistance, aesthetic durability | Jansen et al. [7], Tankut and Tankut [20] |
| Precision in edge-banding | High precision enhances overall appearance | Contributes to tactile quality and longevity | Jivkov [1], |
| Aging resistance of adhesives | Maintains aesthetic appeal over time | Minimizes discoloration and gloss changes | Jansen et al. [7], Tankut and Tankut [20] |
| Moisture resistance | Reduces visual deterioration at corners | Enhances durability against moisture damage | Jansen et al. [7], Tankut and Tankut [20] Antal et al. [50] |
| Cutting speed and feed | Influences edge banding quality, impacting visual appearance | Affects delamination factor and overall glue quality | Szwajka and Trzepieciński [32] |
| Thickness swelling resistance | Maintains visual integrity after moisture exposure | Improves joint durability against moisture | Jansen et al. [7], Yerlikaya [51] |
Disclaimer/Publisher’s Note: The statements, opinions and data contained in all publications are solely those of the individual author(s) and contributor(s) and not of MDPI and/or the editor(s). MDPI and/or the editor(s) disclaim responsibility for any injury to people or property resulting from any ideas, methods, instructions or products referred to in the content. |
© 2024 by the authors. Licensee MDPI, Basel, Switzerland. This article is an open access article distributed under the terms and conditions of the Creative Commons Attribution (CC BY) license (https://creativecommons.org/licenses/by/4.0/).
Share and Cite
Vlaović, Z.; Gržan, T.; Župčić, I.; Domljan, D.; Mihulja, G. Strength, Durability, and Aesthetics of Corner Joints and Edge Banding in Furniture Design: A Review. Appl. Sci. 2024, 14, 10285. https://doi.org/10.3390/app142210285
Vlaović Z, Gržan T, Župčić I, Domljan D, Mihulja G. Strength, Durability, and Aesthetics of Corner Joints and Edge Banding in Furniture Design: A Review. Applied Sciences. 2024; 14(22):10285. https://doi.org/10.3390/app142210285
Chicago/Turabian StyleVlaović, Zoran, Tomislav Gržan, Ivica Župčić, Danijela Domljan, and Goran Mihulja. 2024. "Strength, Durability, and Aesthetics of Corner Joints and Edge Banding in Furniture Design: A Review" Applied Sciences 14, no. 22: 10285. https://doi.org/10.3390/app142210285
APA StyleVlaović, Z., Gržan, T., Župčić, I., Domljan, D., & Mihulja, G. (2024). Strength, Durability, and Aesthetics of Corner Joints and Edge Banding in Furniture Design: A Review. Applied Sciences, 14(22), 10285. https://doi.org/10.3390/app142210285

