Analysis of the Model Used to Predict Continuous Deformations of the Land Surface in Areas Subject to Discontinuous Deformations—A Case Study
Abstract
1. Introduction
2. Materials and Methods
2.1. Research Area
2.2. Underground Exploitation of Hard Coal Seams
2.3. Discontinuous Deformations of the Land Surface
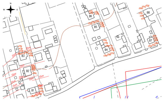
2.4. Observation Network and Geodetic Measurements
2.5. Bialek’s Model and the Values of Its Parameters
- Of any shape and any number of vertices;
- Of any height;
- Located at various depths;
- Located in one or several hard coal seams lying horizontally or inclined at any angle;
- With a longwall front moving at any velocity;
- Exploited at any time;
- Located in old goaves;
- Containing mining margins;
- Causing distant influences;
- Causing asymmetry of the profile of the subsidence trough on its slopes.
- —Exploitation coefficient;
- —Thickness of hard coal seam (a height of longwall) [m];
- —Range radii of the main influences [m];
- —Depth of the exploitation [m];
- —Range angle of the main influences [°];
- —Distance from the longwall front [m].
- —A simplified form of the octahedral strain [].
- —A dimensionless multiplier taking into account the asymmetry of the subsidence trough profile caused by the mining margin;
- , —The subsidence calculated by Knothe’s formula using the two different and radii of the influences’ dispersion [m];
- —A simplified form of the octahedral strain for ;
- ;
- ;
- [m];
- [m] (Table 2).
| 0 | 0.050 | 0.100 | 0.150 | 0.200 | 0.250 | 0.300 | |
|---|---|---|---|---|---|---|---|
| 0.800 | 0.844 | 0.916 | 1.003 | 1.099 | 1.200 | 1.303 |
- —The tangent of an angle of the main influences; a parameter of Knothe’s theory determined based on the maximum inclination ) and the maximum subsidence ) measured in the full subsidence trough with a known exploitation depth (:
- a—The exploitation coefficient determined based on the maximum subsidence () measured in the full subsidence trough and the thickness () of the hard coal seam (height of the exploitation), as follows:
- —The dimensionless multiplier taking into account the asymmetry of the subsidence trough profile caused by the mining margin; it can be assumed that the approximately size of the mining margin is proportional to the size of the parameter; the most frequently observed values are ; to determine the parameter, it is necessary to know the value of the maximum subsidence () in the full subsidence trough () and the subsidence value above the exploitation edge in this trough (), as follows:
- Based on the results of the geodetic measurements (of the terrain subsidence) carried out after the exploitation ended at points along the observation line running longitudinally or transversely through the center of the exploitation field. The terrain subsidence represents the profile of a static or quasistatic subsidence trough, in which a maximum value of subsidence () was observed. This solution is the most advantageous from the point of view of the small values of the errors in the determined model parameters, which should then translate into its high efficiency. The limitations are as follows: the possibility of physically stabilizing the observation points at a land surface exactly above the center of the exploitation field due to the complicated landform and its intensive development, as well as the time that the appropriate parameters were obtained (after the exploitation ended), which allows for making backward forecasts (i.e., reforecasts). In this article, this method was used to obtain the values of the model parameters, because they reflect the actual state of the rock mass after the exploitation had ended in the 1/II longwall of the 405/1 hard coal seam;
- As already known, the values of the model parameters from a neighboring mining area or an area where the exploitation was carried out under similar geological and mining conditions;
- Can be assumed as the standard values of the parameters of this model (, 2.0, and ); however, this reduces its effectiveness.
- —The number of point;
- —The theoretical value of the subsidence calculated for the -th point using Bialek’s model [mm];
- —The practical value of the subsidence measured at the -th point [mm].
3. Results
3.1. Values of the Inclinations Observed on the Land Surface
- —The final measuring cycle;
- —The number of measuring points;
- —The length of the section [m];
- —The initial measuring cycle;
- —The measured value of the inclination [].
3.2. Values of Inclinations Calculated Using Bialek’s Model
- The geometry and location of the mining fields (a file with the .eks extension);
- The location of the calculation points where the values of the deformation indicators are calculated (a file with the .pkt extension);
- The geological structure of the rock mass and the thickness of the overburden over the hard coal seams (a file with the .ndk extension);
- Connecting the abovementioned files into one file and controlling the EDBJ1 and EDBJ2 programs (files with the .st1 and .st2 extensions, respectively).
- The exploitation coefficient (roof rocks’ deflection coefficient): ;
- a tangent of the angle of a range of main influences: ;
- The parameter of the mining margin: ;
- The Awierszyn’s proportionality coefficient: [m];
- The coefficient of the impact deviation (due to the slope of the hard coal seam): ;
- The relaxion coefficient: ;
- The relaxion time: ;
- The coefficient of the subsidence velocity, calculated with Formula (12), as follows:
- The coefficient of the subsidence velocity, calculated by Formula (13), as follows:
4. Discussion
5. Conclusions
Funding
Institutional Review Board Statement
Informed Consent Statement
Data Availability Statement
Conflicts of Interest
References
- The Polish Geological Institute. Glossary of Terms and Concepts. Available online: https://www.pgi.gov.pl/zapadliska-home/slownik-pojec.html (accessed on 21 August 2024).
- Strzałkowski, P.; Ścigała, R.; Szafulera, K. Categories of Mining Areas of Closed Mines Due to Limitations of Land Use for Building Purposes on Selected Examples. E3S Web Conf. 2019, 106, 01010. [Google Scholar] [CrossRef]
- Popiołek, E. Ochrona Terenów Górniczych; Wydawnictwa AGH: Kraków, Poland, 2009; ISBN 978-83-7464-229-3. [Google Scholar]
- Strzałkowski, P.; Ścigała, R. Forecasting of Subsidence Cease Time Taking into Account Construction Planning in Mining Areas. In Schriftenreihe des Institutes fur Markscheidewesen und Geodasie an der Technischen Universitat Bergakademie Freiberg; VGE Verlag: Essen, Germany, 2011; pp. 252–257. [Google Scholar]
- Kwiatek, J. Ochrona Obiektów Budowlanych na Terenach Górniczych; Wydawnictwo Głównego Instytutu Górnictwa: Katowice, Poland, 1997; ISBN 978-83-906418-9-8. [Google Scholar]
- Xu, D.; Zhang, X.; Chen, W.; Jiang, X.; Liu, Z.; Bai, Y. Utilisation of the Deep Underground Space in Shanghai. Proc. Inst. Civ. Eng. Munic. Eng. 2019, 172, 218–223. [Google Scholar] [CrossRef]
- Jiang, X.; Zhang, X.; Chen, A.; Chen, J.; Bai, Y. Ground Surface Deformation Analysis of Quasi Rectangular EPB Shield Tunneling. In Proceedings of the GeoShanghai 2018 International Conference: Tunnelling and Underground Construction, Shanghai, China, 26–29 May 2024; Zhang, D., Huang, X., Eds.; Springer: Singapore, 2018; pp. 103–111, ISBN 9789811300165. [Google Scholar]
- Zhang, X.; Zhu, H.; Jiang, X.; Broere, W. Distributed Fiber Optic Sensors for Tunnel Monitoring: A State-of-the-Art Review. J. Rock Mech. Geotech. Eng. 2024, S1674775524001045. [Google Scholar] [CrossRef]
- Knothe, S. Równanie Profilu Ostatecznie Wykształconej Niecki Osiadania. Arch. Górnictwa Hut. 1953, 1, 22–38. [Google Scholar]
- Knothe, S. Wpływ Czasu Na Kształtowanie Się Niecki Osiadania. Arch. Górnictwa Hut. 1953, 1, 51–62. [Google Scholar]
- Litwiniszyn, J. Zastosowanie Równań Procesów Stochastycznych Do Mechaniki Górotworu. Arch. Górnictwa Hut. 1956, 1, 243–268. [Google Scholar]
- Litwiniszyn, J.; Mączyński, J.; Smolarski, A. O Pewnych Eksperymentalnych Badaniach Nad Zastosowaniem Piasku Jako Ośrodka Stochastycznego. Arch. Górnictwa Hut. 1956, 1, 293. [Google Scholar]
- Litwiniszyn, J. Time Space Process in Stochastic Media. Bull. l’Acad. Pol. Sci. Sér. Sci. Tech. 1958, 6. [Google Scholar]
- Litwiniszyn, J.; Smolarski, A. Contribution to Mechanics of Quasi—Stochastics Bodies. Bull. l’Acad. Pol. Sci. Sér. Sci. Tech. 1962, 10, 309–313. [Google Scholar]
- Litwiniszyn, J. The Model of a Random Walk of Particles Adapted to Researches on Problems of Mechanics of Loose Media. Bull. l’Acad. Pol. Sci. Sér. Sci. Tech. 1964, 12, 341–346. [Google Scholar]
- Litwiniszyn, J. Przemieszczenia Górotworu w Świetle Teorii Prawdopodobieństwa. Arch. Górnictwa Hut. 1954, 2, 447–463. [Google Scholar]
- Budryk, W. Wyznaczanie Wielkości Poziomych Odkształceń Terenu. Arch. Górnictwa Hut. 1953, 1, 63–74. [Google Scholar]
- Kochmański, T. Obliczanie Ruchów Punktów Górotworu Pod Wpływem Eksploatacji Górniczej; Państwowe Wydawnictwo Naukowe: Warsaw, Poland, 1956. [Google Scholar]
- Drzęźla, B. Podstawy Teoretyczne Wyznaczania Parametrów Teorii Ruchów Górotworu Nad Eksploatacją Górniczą. Zeszyty Naukowe Politechniki Śląskiej 1978, 87. [Google Scholar]
- Drzęźla, B. Przybliżona Ocena Niektórych Parametrów Kinematyki Niecki Osiadania Przy Zmianach Prędkości Wybierania i Postojach Ścian. Przegląd Górniczy 1995, 9, 10–16. [Google Scholar]
- Sroka, A. Wpływ Postępu Frontu Eksploatacji Górniczej Na Kształtowanie Się Wskaźników Deformacji Górotworu. Ph.D. Theies, Akademia Górniczo-Hutnicza, Kraków, Poland, 1974. [Google Scholar]
- Zych, J. Metoda Prognozowania Wpływów Eksploatacji Górniczej Na Powierzchnię Terenu Uwzględniająca Asymetryczny Przebieg Procesu Deformacji; Dział Wydawnictw Politechniki Śląskiej: Gliwice, Poland, 1987. [Google Scholar]
- Białek, J. Opis Nieustalonej Fazy Obniżeń Terenu Górniczego z Uwzględnieniem Asymetrii Wpływów Końcowych; Wydawnictwo Politechniki Śląskiej: Gliwice, Poland, 1991. [Google Scholar]
- Bialek, J. Application of the Composition of Two or More Subsidence Troughs Calculated after the S. Knothe’s Equation to the Description of Results of Field Observations. Rud. -Metal. Zb. 1995, 42, 19–28. [Google Scholar]
- Dżegniuk, B. Niektóre Efekty Nieliniowe w Procesie Osiadania Nad Eksploatacją Górniczą; Geodezja; Akademia Górniczo-Hutnicza: Kraków, Poland, 1975. [Google Scholar]
- Białek, J. Nieliniowy Matematyczny Model Osiadania Powierzchni w Czasie Wskutek Prowadzonej Eksploatacji Górniczej. Zeszyty Naukowe Politechniki Śląskiej 1985, 138. [Google Scholar]
- Dziura, T.; Kot, A.; Trzcionka, P. Przesunięcie Krawędzi Eksploatacji Jako Dodatkowy Parametr Teorii Ruchów Górotworu S. Knothego i T. Kochmańskiego. Zeszyty Naukowe Politechniki Śląskiej Górnictwo 1974, 59, 435. [Google Scholar]
- Białek, J. Sposób Poprawy Opisu Wpływów Dalekich. Przegląd Górniczy 1993, 49, 1–5. [Google Scholar]
- Opałka, K. Wpływ Aktywacji Eksploatacji Dokonanych Na Kształtowanie Wskaźników Deformacji Powierzchni Terenu. Ph.D. Thesis, Politechnika Śląska, Gliwice, Poland, 1983. [Google Scholar]
- Wycisło, K. Wpływ Czasu Na Przebieg Obniżeń Górotworu Nad Eksploatacją Górniczą. Ph.D. Thesis, Akademia Górniczo-Hutnicza, Kraków, Poland, 1964. [Google Scholar]
- Skinderowicz, B. Wpływ Czasu Na Kształtowanie Się Dynamicznych Niecek Osiadania; Główny Instytut Górnictwa: Katowice, Poland, 1976. [Google Scholar]
- Awierszyn, S. Sdwiżenije Gornych Porod Pri Podziemnych Razrabotkach; Ugletiechizdat: Moskwa, Poland, 1947. [Google Scholar]
- Białek, J. Algorytm Obliczania Chwilowych i Czasowo Ekstremalnych Wskaźników Deformacji Przestrzennej Dynamicznej Niecki Osiadania Wraz z Oprogramowaniem. Ph.D. Thesis, Politechnika Śląska, Gliwice, Poland, 1980. [Google Scholar]
- Białek, J. Opis Systemu Programów LDANE, EDN1, EDN2 Do Prognozowania Deformacji Powierzchni; Politechnika Śląska: Gliwice, Poland, 1988. [Google Scholar]
- Hejmanowski, R.; Kwinta, A. System Prognozowania Deformacji Modez; AGH Uczelniane Wydawnictwa Naukowo-Dydaktyczne: Kraków, Poland, 2009. [Google Scholar]
- Hejmanowski, R.; Malinowska, A. Evaluation of Reliability of Subsidence Prediction Based on Spatial Statistical Analysis. Int. J. Rock Mech. Min. Sci. 2009, 46, 432–438. [Google Scholar] [CrossRef]
- Hejmanowski, R.; Kwinta, A. Modelowanie Deformacji Ciągłych Powierzchni Terenu w Warunkach Zmiennego Zalegania Złoża. Gospod. Surowcami Miner. 2010, 26, 143–153. [Google Scholar]
- Ścigała, R. Software System for Identification of Parameters Needed for Forecast of Deformations Caused by Underground Extraction. Remote Sens. Environ. 2013, 2, 52–61. [Google Scholar]
- Ścigała, R. Computer System for Mining Damages Data Processing; Geotechnika: Strbske Pleso, Slovakia, 2002; pp. 193–195. [Google Scholar]
- Ścigała, R.; Strzałkowski, P. Software for Predictions of Underground Mining Influences on the Land Surface and Rock Mass; Geotechnika: Vysoke Tatry, Slovakia, 2000; pp. 158–160. [Google Scholar]
- Perżyło, D. A New Model for Forecasting of Land Surface Subsidence Caused by Underground Extraction of Deposits. Int. J. Environ. Sci. Technol. 2023, 20, 3733–3748. [Google Scholar] [CrossRef]
- Pietruszka, K. Prognozowanie Deformacji Na Terenach Górniczych Metodą Badań Modelowych (MES) Weryfikowanych Pomiarami Geodezyjnymi. Wyższy Urząd Górniczy Bezpieczeństwo Pracy Ochr. Sr. Górnictwie 2002, 5, 25–26. [Google Scholar]
- Pietruszka, K. Opracowanie Wyników Pomiaru Deformacji Obiektów Powierzchniowych Na Terenach Górniczych Metodą Badań Modelowych (MES). In Problemy eksploatacji górniczej pod terenami zagospodarowanymi; Główny Instytut Górnictwa: Katowice, Poland, 2005; pp. 431–436. [Google Scholar]
- Wesołowski, M.; Kołodziejczyk, P.; Chmiela, A. Influences of Extraction of Abandoned Workings on the Process of the Deformation of the Surface Mining Area; Fundacion de Investigacion Tecnologica Luis Fernandez Velasco: Asturias, Spain, 2013; pp. 196–201. [Google Scholar]
- Sikora, P.; Mielimąka, R. Determination of Parameters for the Prognosis of Rock Mass Deformation with the Use of the Cellular Automaton Method. IOP Conf. Ser. Earth Environ. Sci. 2019, 261, 012045. [Google Scholar] [CrossRef]
- Sikora, P. Simulation Possibilites of the Post-Mining Goafs Impact on the Deformations Induced by Next Underground Mining Operations with Use of the Cellular Automata Method. Geotech. Geol. Eng. 2021, 39, 1923–1935. [Google Scholar] [CrossRef]
- Białek, J.; Wesołowski, M.; Mielimąka, R.; Sikora, P. Deformations of Mining Terrain Caused by the Partial Exploitation in the Aspect of Measurements and Numerical Modeling. Sustainability 2020, 12, 5072. [Google Scholar] [CrossRef]
- Gruszczyński, W. Prognozowanie Deformacji Za Pomocą Sieci Neuronowych Dla Niecek w Stanie Asymptotycznym. In Problemy Eksploatacji Górniczej pod Terenami Zagospodarowanymi; Główny Instytut Górnictwa: Katowice, Poland, 2005; pp. 135–144. [Google Scholar]
- Ścigała, R. The Influence of Extraction Field Discretization on the Quality of Predictions of Post-Mining Deformations. IOP Conf. Ser. Earth Environ. Sci. 2019, 261, 012053. [Google Scholar] [CrossRef]
- Orwat, J. The Forecast Effectiveness of Mining Exploitation Effects on the Exploited Area Conducted with the Use of Bialek’s Formulas. AIP Conf. Proc. 2016, 1738, 080013. [Google Scholar] [CrossRef]
- Orwat, J.; Mielimaka, R. The Comparison of Measured Deformation Indicators of Mining Area with Theoretical Values Calculated Using Knothe’s Formulas. AIP Conf. Proc. 2016, 2849, 080014. [Google Scholar] [CrossRef]
- Orwat, J.; Mielimąka, R. Approximation of Average Course of Measured Curvatures of Mining Area with Reference to Their Forecast Values by Bialek’s Formulas. AIP Conf. Proc. 2017, 2928, 130003. [Google Scholar] [CrossRef]
- Mielimąka, R.; Orwat, J. Approximation of Average Course of Measured Curvatures of Mining Area with Reference to Their Forecast Values by Knothe’s Formulas. AIP Conf. Proc. 2017, 1863, 130005. [Google Scholar]
- Ścigała, R. The Identification of Parameters of Theories Used for Prognoses of Post Mining Deformations by Means of Present Software. Arch. Min. Sci. 2013, 58, 1347–1357. [Google Scholar] [CrossRef]
- Wróblewska, M.; Grygierek, M. Assessment of Visual Representation Methods of Linear Discontinuous Deformation Zones in the Right-of-Way. Appl. Sci. 2022, 12, 2538. [Google Scholar] [CrossRef]
- Orwat, J.; Gromysz, K. Occurrence Consequences of Mining Terrain Surface Discontinuous Linear Deformations in a Residential Building. J. Phys. Conf. Ser. 2021, 1781, 012013. [Google Scholar] [CrossRef]
- Orwat, J. Causes Analysis of Occurrence of the Terrain Surface Discontinuous Deformations of a Linear Type. J. Phys. Conf. Ser. 2020, 1426, 012016. [Google Scholar] [CrossRef]
- Strzałkowski, P.; Szafulera, K. Occurrence of Linear Discontinuous Deformations in Upper Silesia (Poland) in Conditions of Intensive Mining Extraction—Case Study. Energies 2020, 13, 1897. [Google Scholar] [CrossRef]
- Ścigała, R.; Szafulera, K. Linear Discontinuous Deformations Created on the Surface as an Effect of Underground Mining and Local Geological Conditions-Case Study. Bull. Eng. Geol. Environ. 2020, 79, 2059–2068. [Google Scholar] [CrossRef]
- Orwat, J. Influence of Discontinuous Linear Deformation on the Values of Continuous Deformations of a Mining Area and a Building Induced by an Exploitation of Hard Coal Seam. Appl. Sci. 2023, 13, 3549. [Google Scholar] [CrossRef]
- Orwat, J. Deviations’ Analysis of the Single-Family Buildings in the Mining Area. J. Phys. Conf. Ser. 2024, 2714, 012002. [Google Scholar] [CrossRef]
- Gromysz, K. Revitalisation of a Vertically Deflected Historical 16th Century Bell Tower. IOP Conf. Ser. Mater. Sci. Eng. 2019, 471, 052025. [Google Scholar] [CrossRef]
- Gromysz, K. Examples of Even Lifting of Structural Elements of Existing Buildings. IOP Conf. Ser. Mater. Sci. Eng. 2020, 960, 032050. [Google Scholar] [CrossRef]
- Yang, X. Application of Comprehensive Rectification Method in Rectification of Buildings. E3S Web Conf. 2020, 165, 04004. [Google Scholar] [CrossRef]
- Gromysz, K. Rectification an 11-Storey Vertically Deflected Residential Building. Procedia Eng. 2013, 57, 382–391. [Google Scholar] [CrossRef]
- Smolana, M.; Gromysz, K. Effect of Eccentricity of Applied Force and Geometrical Imperfections on Stiffness of Stack of Cuboidal Steel Elements. Materials 2020, 13, 3174. [Google Scholar] [CrossRef]
- Gromysz, K. Methods of Removing Buildings Deflection Used in Poland. IOP Conf. Ser. Mater. Sci. Eng. 2017, 245, 032096. [Google Scholar] [CrossRef]
- Gromysz, K.; Orwat, J. Computing the Value of Uneven Raising of Building Consisting of Nine Segments Deflected from Vertical Due to Mining Exploitation. J. Phys. Conf. Ser. 2023, 2540, 012008. [Google Scholar] [CrossRef]
- Gromysz, K.; Smolana, M.; Drusa, M. Research on the Characteristics of Jacks Used to Rectify Tilted Buildings. Buildings 2024, 14, 1581. [Google Scholar] [CrossRef]











| Feature | The 404/3 Seam | The 404/5 Seam | The 405/1 Seam | ||
|---|---|---|---|---|---|
| Longwall | 1/II | 2/II | 1/II | 2/II | 1/II |
| Depth (m) | 410–500 | 500–575 | 430–510 | 500–600 | 495–605 |
| Height (m) | 4.0 | 3.4 | 3.3 | 3.5 | 1.7 |
| Declination (°) | 18.8 | 15.8 | 16.9 | 21.1 | 18.0 |
| Run (m) | 460 | 245 | 500 | 300 | 443 |
| Length (m) | 220 | 243 | 230 | 233 | 240 |
| Time | May 2013– December 2013 | August 2016– February 2017 | November 2015– June 2016 | October 2017– April 2018 | February 2019– August 2019 |
| Parameter | ||||
|---|---|---|---|---|
| Value | 0.976 ± 0.0032 | 2.167 ± 0.0072 | 0.117 ± 0.0004 | 0.9967 |
| Building | Section | 4 March 2019 | 17 August 2019 | Category of Mining Area | ||
|---|---|---|---|---|---|---|
[mm] | [mm] | [m] | ||||
| B1 | z01p-z02p | −278.1 | −305.2 | 5.091 | −5.32 | 3rd |
| z02p-z03p | −136.3 | −119.4 | 4.632 | 3.65 | 2nd | |
| z34d-z35d | 151.5 | 130.7 | 7.044 | −2.95 | 2nd | |
| z35d-z36d | −40.8 | −41.7 | 5.764 | −0.16 | 0 | |
| B2 | z04g-z05g | −212.6 | −221.5 | 6.273 | −1.42 | 1st |
| z06g-z07g | −188.8 | −194.6 | 3.399 | −1.71 | 1st | |
| z07g-z08g | −217.4 | −267.2 | 3.601 | −13.83 | 4th | |
| B3 | z09p-z10d | −160.2 | −167.3 | 3.678 | −1.93 | 1st |
| z10d-z11d | −221.1 | −299.2 | 5.502 | −14.19 | 4th | |
| z56d-z57d | 130.5 | 130.7 | 6.221 | 0.03 | 0 | |
| z57d-z58g | 62.6 | 74.4 | 6.030 | 1.96 | 1st | |
| G | z12p-z13p | −37.8 | −37.9 | 4.202 | −0.02 | 0 |
| z13p-z14p | −32.6 | −28.7 | 5.268 | 0.74 | 1st | |
| B4 | z15p-z16p | −141.3 | −146.1 | 5.061 | −0.95 | 1st |
| z16p-z17p | −98.3 | −102.2 | 3.493 | −1.12 | 1st | |
| z18g-z19p | −9.7 | −10.6 | 4.567 | −0.20 | 0 | |
| z19p-z20g | 13.5 | 9.4 | 6.151 | −0.67 | 1st | |
| z37d-z38d | 30.0 | 41.2 | 4.001 | 2.80 | 2nd | |
| z38d-z39d | 24.1 | 22.0 | 4.944 | −0.42 | 0 | |
| B5 | z21p-z22p | −118.5 | −117.6 | 3.251 | 0.28 | 0 |
| z22p-z23p | −154.6 | −157.4 | 4.742 | −0.59 | 1st | |
| z53d-z54d | −26.0 | −24.1 | 6.722 | 0.28 | 0 | |
| z54d-z55d | −68.2 | −67.3 | 5.583 | 0.16 | 0 | |
| B6 | z24g-z25g | −185.2 | −184.0 | 4.930 | 0.24 | 0 |
| z26g-z27p | −7.3 | −3.4 | 4.379 | 0.89 | 1st | |
| B7 | z28d-z29d | −39.9 | −36.7 | 4.084 | 0.78 | 1st |
| z29d-z30d | −21.2 | −27.0 | 4.511 | −1.29 | 1st | |
| z40d-z41d | 35.6 | 38.5 | 4.118 | 0.70 | 1st | |
| z41d-z42d | 122.7 | 144.8 | 4.257 | 5.19 | 3rd | |
| B8 | z31d-z32d | −74.4 | −77.3 | 6.461 | −0.45 | 0 |
| z32d-z33d | 62.0 | 61.2 | 5.544 | −0.14 | 0 | |
| z50d-z51d | −16.2 | −14.0 | 5.492 | 0.40 | 0 | |
| z51d-z52d | −6.6 | 74.5 | 4.356 | 18.62 | 5th | |
| Category of Mining Area | |
|---|---|
| 0 | |
| 1st | |
| 2nd | |
| 3rd | |
| 4th | |
| 5th |
| Category of Mining Area | Number of Measured Inclinations | Percent of Total Number Measured Inclinations [%] |
|---|---|---|
| 0 | 12 | 36.36 |
| 1st | 13 | 39.39 |
| 2nd | 3 | 9.10 |
| 3rd | 2 | 6.06 |
| 4th | 2 | 6.06 |
| 5th | 1 | 3.03 |
| Total | 33 | 100.00 |
| Building | Point | 17 August 2019 | Category of Mining Area |
|---|---|---|---|
| B1 | 3 | 1.8 | 1st |
| 4 | 1.8 | 1st | |
| 2 | 1.9 | 1st | |
| 1 | 1.8 | 1st | |
| B2 | 5 | 1.3 | 1st |
| 6 | 1.2 | 1st | |
| 7 | 1.2 | 1st | |
| B3 | 8 | 0.9 | 1st |
| 9 | 0.9 | 1st | |
| 11 | 0.8 | 1st | |
| 10 | 0.8 | 1st | |
| G | 12 | 0.7 | 1st |
| 13 | 0.7 | 1st | |
| B4 | 16 | 1.3 | 1st |
| 17 | 1.2 | 1st | |
| 18 | 1.2 | 1st | |
| 19 | 1.1 | 1st | |
| 15 | 1.4 | 1st | |
| 14 | 1.4 | 1st | |
| B5 | 20 | 0.8 | 1st |
| 21 | 0.7 | 1st | |
| 23 | 0.7 | 1st | |
| 22 | 0.7 | 1st | |
| B6 | 24 | 0.6 | 1st |
| 25 | 0.5 | 0 | |
| B7 | 28 | 0.9 | 1st |
| 29 | 0.8 | 1st | |
| 27 | 0.9 | 1st | |
| 26 | 1.0 | 1st | |
| B8 | 30 | 0.6 | 1st |
| 31 | 0.5 | 0 | |
| 32 | 0.5 | 0 | |
| 33 | 0.5 | 0 | |
| Category of Mining Area | Number of Model Inclinations | Percent of Total Number of Model Inclinations |
|---|---|---|
| 0 | 4 | 12.12 |
| 1st | 29 | 87.88 |
| 2nd | 0 | 0 |
| 3rd | 0 | 0 |
| 4th | 0 | 0 |
| 5th | 0 | 0 |
| Total | 33 | 100.00 |
| Building | Section | Absolute Value of Practical Inclination | Point | Value of Theoretical Inclination | Difference between the Theoretical and Practical Values of Inclinations | Deviations of the Model from the Practical Values of Inclinations [%] |
|---|---|---|---|---|---|---|
| B1 | z01p-z02p | 5.32 | 3 | 1.8 | −3.52 | −66.19 |
| z02p-z03p | 3.65 | 4 | 1.8 | −1.85 | −50.67 | |
| z34d-z35d | 2.95 | 2 | 1.9 | −1.05 | −35.66 | |
| z35d-z36d | 0.16 | 1 | 1.8 | 1.64 | 1052.80 | |
| B2 | z04g-z05g | 1.42 | 5 | 1.3 | −0.12 | −8.37 |
| z06g-z07g | 1.71 | 6 | 1.2 | −0.51 | −29.68 | |
| z07g-z08g | 13.83 | 7 | 1.2 | −12.63 | −91.32 | |
| B3 | z09p-z10d | 1.93 | 8 | 0.9 | −1.03 | −53.38 |
| z10d-z11d | 14.19 | 9 | 0.9 | −13.29 | −93.66 | |
| z56d-z57d | 0.03 | 11 | 0.8 | 0.77 | 2388.40 | |
| z57d-z58g | 1.96 | 10 | 0.8 | −1.16 | −59.12 | |
| G | z12p-z13p | 0.02 | 12 | 0.7 | 0.68 | 2841.40 |
| z13p-z14p | 0.74 | 13 | 0.7 | −0.04 | −5.45 | |
| B4 | z15p-z16p | 0.95 | 16 | 1.3 | 0.35 | 37.07 |
| z16p-z17p | 1.12 | 17 | 1.2 | 0.08 | 7.48 | |
| z18g-z19p | 0.20 | 18 | 1.2 | 1.00 | 508.93 | |
| z19p-z20g | 0.67 | 19 | 1.1 | 0.43 | 65.03 | |
| z37d-z38d | 2.80 | 15 | 1.4 | −1.40 | −49.99 | |
| z38d-z39d | 0.42 | 14 | 1.4 | 0.98 | 229.60 | |
| B5 | z21p-z22p | 0.28 | 20 | 0.8 | 0.52 | 188.98 |
| z22p-z23p | 0.59 | 21 | 0.7 | 0.11 | 18.55 | |
| z53d-z54d | 0.28 | 23 | 0.7 | 0.42 | 147.65 | |
| z54d-z55d | 0.16 | 22 | 0.7 | 0.54 | 334.23 | |
| B6 | z24g-z25g | 0.24 | 24 | 0.6 | 0.36 | 146.50 |
| z26g-z27p | 0.89 | 25 | 0.5 | −0.39 | −43.86 | |
| B7 | z28d-z29d | 0.78 | 28 | 0.9 | 0.12 | 14.86 |
| z29d-z30d | 1.29 | 29 | 0.8 | −0.49 | −37.78 | |
| z40d-z41d | 0.70 | 27 | 0.9 | 0.20 | 27.80 | |
| z41d-z42d | 5.19 | 26 | 1.0 | −4.19 | −80.74 | |
| B8 | z31d-z32d | 0.45 | 30 | 0.6 | 0.15 | 33.68 |
| z32d-z33d | 0.14 | 31 | 0.5 | 0.36 | 246.50 | |
| z50d-z51d | 0.40 | 32 | 0.5 | 0.10 | 24.82 | |
| z51d-z52d | 18.62 | 33 | 0.5 | −18.12 | −97.31 |
Disclaimer/Publisher’s Note: The statements, opinions and data contained in all publications are solely those of the individual author(s) and contributor(s) and not of MDPI and/or the editor(s). MDPI and/or the editor(s) disclaim responsibility for any injury to people or property resulting from any ideas, methods, instructions or products referred to in the content. |
© 2024 by the author. Licensee MDPI, Basel, Switzerland. This article is an open access article distributed under the terms and conditions of the Creative Commons Attribution (CC BY) license (https://creativecommons.org/licenses/by/4.0/).
Share and Cite
Paszek, J. Analysis of the Model Used to Predict Continuous Deformations of the Land Surface in Areas Subject to Discontinuous Deformations—A Case Study. Appl. Sci. 2024, 14, 7676. https://doi.org/10.3390/app14177676
Paszek J. Analysis of the Model Used to Predict Continuous Deformations of the Land Surface in Areas Subject to Discontinuous Deformations—A Case Study. Applied Sciences. 2024; 14(17):7676. https://doi.org/10.3390/app14177676
Chicago/Turabian StylePaszek, Justyna. 2024. "Analysis of the Model Used to Predict Continuous Deformations of the Land Surface in Areas Subject to Discontinuous Deformations—A Case Study" Applied Sciences 14, no. 17: 7676. https://doi.org/10.3390/app14177676
APA StylePaszek, J. (2024). Analysis of the Model Used to Predict Continuous Deformations of the Land Surface in Areas Subject to Discontinuous Deformations—A Case Study. Applied Sciences, 14(17), 7676. https://doi.org/10.3390/app14177676

