Seismic Assessment and Retrofitting of an Historical Masonry Building Damaged during the 2016 Centro Italia Seismic Event
Abstract
1. Introduction
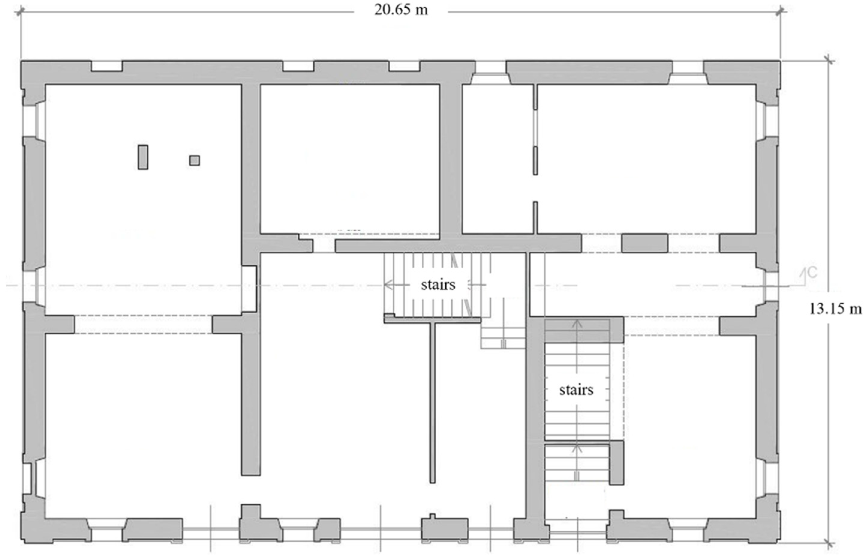
2. Description of the Building
3. Numerical Analysis
3.1. Current Configuration
3.2. Retrofitted Configuration: Intervention on Masonry Walls
3.3. Retrofitted Configuration: Intervention on the Roof Structure
4. Conclusions
Author Contributions
Funding
Institutional Review Board Statement
Informed Consent Statement
Data Availability Statement
Conflicts of Interest
References
- Brandonisio, G.; Lucibello, G.; Mele, E.; De Luca, A. Damage and performance evaluation of masonry churches in the 2009 L’Aquila earthquake. Eng. Fail. Anal. 2013, 34, 693–714. [Google Scholar] [CrossRef]
- De Matteis, G.; Criber, E.; Brando, G. Damage probability matrices for three-nave masonry churches in Abruzzi after the 2009 L’Aquila earthquake. Int. J. Archit. Herit. 2016, 10, 120–145. [Google Scholar]
- Gattulli, V.; Antonacci, E.; Vestroni, F. Field observations and failure analysis of the Basilica S. Maria di Collemaggio after the 2009 L’Aquila earthquake. Eng. Fail. Anal. 2013, 34, 715–734. [Google Scholar] [CrossRef]
- Acito, M.; Bocciarelli, M.; Chesi, C.; Milani, G. Collapse of the clock tower in Finale Emilia after the May 2012 Emilia-Romagna earthquake sequence: Numerical insight. Eng. Struct. 2014, 72, 70–91. [Google Scholar] [CrossRef]
- Jain, A.; Acito, M.; Chesi, C. Seismic sequence of 2016–2017: Linear and non-linear interpretation models for evolution of damage in San Francesco church, Centro Italia. Eng. Struct. 2020, 211, 110418. [Google Scholar] [CrossRef]
- Clementi, F.; Milani, G.; Ferrante, A.; Valente, M.; Lenci, S. Crumbling of amatrice clock tower during 2016 central italy seismic sequence: Advanced numerical insights. Frat. Ed Integrita Strutt. 2020, 14, 313–335. [Google Scholar] [CrossRef]
- Del Gaudio, C.; Di Domenico, M.; Ricci, P.; Verderame, G.M. Preliminary prediction of damage to residential buildings following the 21st August 2017 Ischia earthquake. Bull. Earthq. Eng. 2018, 16, 4607–4637. [Google Scholar] [CrossRef]
- Formisano, A.; Milani, G. Seismic vulnerability analysis and retrofitting of the SS. Rosario church bell tower in Finale Emilia (Modena, Italy). Front. Built Environ. 2019, 5, 70. [Google Scholar] [CrossRef]
- Priestley, M.J.N.; Seible, F. Design of seismic retrofit measures for concrete and masonry structures. Constr. Build. Mater. 1995, 9, 365–377. [Google Scholar] [CrossRef]
- Cao, X.Y.; Feng, D.C.; Wang, Z.; Wu, G. Parametric investigation of the assembled bolt-connected buckling-restrained brace and performance evaluation of its application into structural retrofit. J. Build. Eng. 2022, 48, 103988. [Google Scholar] [CrossRef]
- Pampanin, S.; Christopoulos, C.; Chen, T.H. Development and validation of a metallic haunch seismic retrofit solution for existing under-designed RC frame buildings. Earthq. Eng. Struct. Dyn. 2006, 35, 1739–1766. [Google Scholar] [CrossRef]
- Cao, X.Y.; Shen, D.; Feng, D.C.; Wang, C.L.; Qu, Z.; Wu, G. Seismic retrofitting of existing frame buildings through externally attached sub-structures: State of the art review and future perspectives. J. Build. Eng. 2022, 57, 104904. [Google Scholar] [CrossRef]
- D’Altri, A.M.; Sarhosis, V.; Milani, G.; Rots, J.; Cattari, S.; Lagomarsino, S.; Sacco, E.; Tralli, A.; Castellazzi, G.; de Miranda, S. Modeling strategies for the computational analysis of unreinforced masonry structures: Review and classification. Arch. Comput. Methods Eng. 2020, 27, 1153–1185. [Google Scholar] [CrossRef]
- Sacco, E.; Addessi, D.; Sab, K. New trends in mechanics of masonry. Meccanica 2018, 53, 1565–1569. [Google Scholar] [CrossRef]
- Masciotta, M.G.; Lourenço, P.B. Seismic analysis of slender monumental structures: Current strategies and challenges. Appl. Sci. 2022, 12, 7340. [Google Scholar] [CrossRef]
- Valente, M.; Milani, G.; Grande, E.; Formisano, A. Historical masonry building aggregates: Advanced numerical insight for an effective seismic assessment on two row housing compounds. Eng. Struct. 2019, 190, 360–379. [Google Scholar] [CrossRef]
- Tomazevic, M. The Computer Program POR; Report ZRMK; ZRMK: Ljubljana, Slovenia, 1978. (In Slovenian) [Google Scholar]
- Lagomarsino, S.; Penna, A.; Galasco, A.; Cattari, S. TREMURI program: An equivalent frame model for the nonlinear seismic analysis of masonry buildings. Eng. Struct. 2013, 56, 1787–1799. [Google Scholar] [CrossRef]
- Roca, P.; Cervera, M.; Gariup, G.; Pelà, L. Structural analysis of masonry historical constructions. classical and advanced approaches. Arch. Comput. Methods Eng. 2010, 17, 299–325. [Google Scholar] [CrossRef]
- Quagliarini, E.; Maracchini, G.; Clementi, F. Uses and limits of the Equivalent Frame Model on existing unreinforced masonry buildings for assessing their seismic risk: A review. J. Build. Eng. 2017, 10, 166–182. [Google Scholar] [CrossRef]
- Sansoni, C.; da Silva, L.C.M.; Marques, R.; Pampanin, S.; Lourenço, P.B. SLaMA-URM method for the seismic vulnerability assessment of UnReinforced Masonry structures: Formulation and validation for a substructure. J. Build. Eng. 2022, 63, 105487. [Google Scholar]
- Brando, G.; Pagliaroli, A.; Cocco, G.; Di Buccio, F. Site effects and damage scenarios: The case study of two historic centers following the 2016 central italy earthquake. Eng. Geol. 2020, 272, 105647. [Google Scholar] [CrossRef]
- Garofano, A.; Lestuzzi, P. Seismic assessment of a historical masonry building in Switzerland: The “Ancien Hôpital De Sion”. Int. J. Archit. Herit. 2016, 10, 975–992. [Google Scholar] [CrossRef]
- Griffith, M.C.; Magenes, G.; Melis, G.; Picchi, L. Evaluation of out-of-plane stability of unreinforced masonry walls subjected to seismic excitation. J. Earthq. Eng. 2003, 7, 141–169. [Google Scholar] [CrossRef]
- Ministero delle Infrastrutture e dei trasporti. Nuove Norme Tecniche per le Costruzioni—Decreto Ministeriale del 17/01/2018; NTC2018—Italian Design Building Code, only in Italian; Ministero delle Infrastrutture e dei trasporti: Rome, Italy, 2018. [Google Scholar]
- Ministero delle Infrastrutture e dei trasporti. Istruzioni per l’applicazione delle Nuove Norme Tecniche per le Costruzioni di cui al decreto ministeriale 17/01/2018; Circolare n. 7 del 21/01/2019; Commentary to the Italian Design Building Code, only in Italian; Ministero delle Infrastrutture e dei trasporti: Rome, Italy, 2019. [Google Scholar]
- Magenes, G. A method for pushover analysis in seismic assessment of masonry buildings. In Proceedings of the 12th World Conference on Earthquake Engineering, Auckland, New Zealand, 30 January–4 February 2000. [Google Scholar]
- Scamardo, M.A.; Crespi, P.; Longarini, N.; Zucca, M. Seismic vulnerability and retrofitting of a historical masonry building. In Proceedings of the REHABEND Construction Pathology, Rehabilitation Technology and Heritage Management, Granada, Spain, 13–16 September 2022. [Google Scholar]
- Fajfar, P.; Gaspersic, P. The N2 method for the seismic damage analysis of RC buildings. Earthq. Eng. Struct. Dyn. 1996, 25, 31–46. [Google Scholar] [CrossRef]
- Vintzileou, E.; Tassios, T.P. Three-leaf stone masonry strengthened by injecting cement grouts. ASCE J. Struct. Eng. 1995, 121, 848–856. [Google Scholar] [CrossRef]
- MIDAS FEA Analysis Reference. 2021. Available online: https://www.midasoft.com/bridge-library/civil/products/midasfeanx (accessed on 1 January 2021).
- Dauda, J.A.; Silva, L.C.; Lourenço, P.B.; Iuorio, O. Out-of-plane loaded masonry walls retrofitted with oriented strand boards: Numerical analysis and influencing parameters. Eng. Struct. 2021, 243, 112683. [Google Scholar] [CrossRef]
- Gavric, I.; Fragiacomo, M.; Ceccotti, A. Cyclic behaviour of typical metal connectors for cross-laminated (CLT) structures. Mater. Struct. 2015, 48, 1841–1857. [Google Scholar] [CrossRef]
- Clough, W. Effect of Stiffness Degradation on Earthquake Ductility Requirements, 1st ed.; Structural Engineering Laboratory, University of California: Berkeley, CA, USA, 1996; pp. 1–134. [Google Scholar]
- Iervolino, I.; Galasso, C.; Cosenza, E. REXEL: Computer aided record selection for code-based seismic structural analysis. Bull. Earthq. Eng. 2010, 8, 339–362. [Google Scholar] [CrossRef]
- Poiani, M.; Gazzani, V.; Clementi, F.; Milani, G.; Valente, M.; Lenci, S. Iconic crumbling of the clock tower in Centro Italia after 2016 central Italy seismic sequence: Advanced numerical insight. Procedia Struct. Integr. 2018, 11, 314–321. [Google Scholar] [CrossRef]






















| γ [kN/m3] | E [MPa] | G [MPa] | fm [MPa] | τ0 [MPa] |
|---|---|---|---|---|
| 20 | 1230 | 410 | 2.00 | 0.035 |
| Limit State | SLV | |
|---|---|---|
| Life of the structure (VN) | [year] | 50 |
| Use category | [-] | II |
| Coefficient for use category (Cu) | [-] | 1 |
| Reference life (VR) | [year] | 50 |
| Topographic coefficient (ST) | [-] | 1 |
| Soil category | [-] | C |
| Design ground acceleration (ag) | [g] | 0.299 |
| Probability of exceedance (PVR) | [%] | 10 |
| PGAC | PGAD | RIPGA | RPC | RPD | RIRP |
|---|---|---|---|---|---|
| [g] | [g] | [-] | [year] | [year] | [-] |
| 0.047 | 0.299 | 0.157 | 6 | 475 | 0.013 |
| Mechanism | PGACLM | PGAD | RIPGA | RPCLM | RPD | RIRP |
|---|---|---|---|---|---|---|
| [n°] | [g] | [g] | [-] | [year] | [year] | [-] |
| 1 | 0.118 | 0.299 | 0.395 | 41 | 475 | 0.086 |
| 2 | 0.141 | 0.299 | 0.472 | 58 | 475 | 0.122 |
| 3 | 0.221 | 0.299 | 0.740 | 169 | 475 | 0.356 |
| 4 | 0.100 | 0.299 | 0.335 | 28 | 475 | 0.059 |
| 5 | 0.135 | 0.299 | 0.452 | 53 | 475 | 0.112 |
| 6 | 0.219 | 0.299 | 0.733 | 166 | 475 | 0.349 |
| 7 | 0.165 | 0.299 | 0.553 | 83 | 475 | 0.175 |
| 8 | 0.243 | 0.299 | 0.814 | 229 | 475 | 0.482 |
| γ [kN/m3] | E [MPa] | G [MPa] | fm [MPa] | τ0 [MPa] |
|---|---|---|---|---|
| 20 | 2091 | 697 | 3.40 | 0.06 |
| PGAC | PGAD | RIPGA | RPC | RPD | RIRP |
|---|---|---|---|---|---|
| [g] | [g] | [-] | [year] | [year] | [-] |
| 0.427 | 0.299 | 1.428 | 2475 | 475 | 5.211 |
| Mechanism | PGACLM | PGAD | RIPGA | RPCLM | RPD | RIRP |
|---|---|---|---|---|---|---|
| [n°] | [g] | [g] | [-] | [year] | [year] | [-] |
| 1 | 0.427 | 0.299 | 1.430 | 2475 | 475 | 5.211 |
| 2 | 0.427 | 0.299 | 1.430 | 2475 | 475 | 5.211 |
| 3 | 0.427 | 0.299 | 1.430 | 2475 | 475 | 5.211 |
| 4 | 0.427 | 0.299 | 1.430 | 2475 | 475 | 5.211 |
| 5 | 0.427 | 0.299 | 1.430 | 2475 | 475 | 5.211 |
| 6 | 0.427 | 0.299 | 1.430 | 2475 | 475 | 5.211 |
| 7 | 0.427 | 0.299 | 1.430 | 2475 | 475 | 5.211 |
| 8 | 0.427 | 0.299 | 1.430 | 2475 | 475 | 5.211 |
| 9 | 0.427 | 0.299 | 1.430 | 2475 | 475 | 5.211 |
| 10 | 0.427 | 0.299 | 1.430 | 2475 | 475 | 5.211 |
| 11 | 0.427 | 0.299 | 1.430 | 2475 | 475 | 5.211 |
| γ [kN/m3] | Ex [MPa] | Ey [MPa] | Ez [MPa] |
| 5 | 7059 | 5387 | 370 |
| G [MPa] | νxy [-] | νxz [-] | νyz [-] |
| 690 | 0.4500 | 0.0138 | 0.0138 |
| ψ [°] | e [-] | fbo/fco [-] | Kc [-] | v [-] |
|---|---|---|---|---|
| 10 | 0.100 | 1.160 | 0.667 | 0 |
Publisher’s Note: MDPI stays neutral with regard to jurisdictional claims in published maps and institutional affiliations. |
© 2022 by the authors. Licensee MDPI, Basel, Switzerland. This article is an open access article distributed under the terms and conditions of the Creative Commons Attribution (CC BY) license (https://creativecommons.org/licenses/by/4.0/).
Share and Cite
Zucca, M.; Reccia, E.; Longarini, N.; Cazzani, A. Seismic Assessment and Retrofitting of an Historical Masonry Building Damaged during the 2016 Centro Italia Seismic Event. Appl. Sci. 2022, 12, 11789. https://doi.org/10.3390/app122211789
Zucca M, Reccia E, Longarini N, Cazzani A. Seismic Assessment and Retrofitting of an Historical Masonry Building Damaged during the 2016 Centro Italia Seismic Event. Applied Sciences. 2022; 12(22):11789. https://doi.org/10.3390/app122211789
Chicago/Turabian StyleZucca, Marco, Emanuele Reccia, Nicola Longarini, and Antonio Cazzani. 2022. "Seismic Assessment and Retrofitting of an Historical Masonry Building Damaged during the 2016 Centro Italia Seismic Event" Applied Sciences 12, no. 22: 11789. https://doi.org/10.3390/app122211789
APA StyleZucca, M., Reccia, E., Longarini, N., & Cazzani, A. (2022). Seismic Assessment and Retrofitting of an Historical Masonry Building Damaged during the 2016 Centro Italia Seismic Event. Applied Sciences, 12(22), 11789. https://doi.org/10.3390/app122211789

