The Effect of the Machining Strategy on the Surface Accuracy When Milling with a Ball End Cutting Tool of the Aluminum Alloy AlCu4Mg
Abstract
1. Introduction
2. Materials and Equipment
- Roughing operation—end mill tool D 18 mm, depth of cut ap = 1 mm, side step ae = 2 mm, toolpath tolerance T = 0.1 mm, surface allowance P = 0.5 mm;
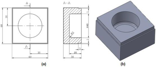
- Semi-finish operation—ball end mill D 8 mm, cutting material HSS Co8, depth of cut ap was defined in accordance with the scallop height setting in the CAM system, where the value was 0.1 mm, surface allowance P = 0.2 mm;
- Finishing operation—ball end mill D 6 mm, cutting material HSS Co8, ap = 0.4 mm, side step ae = 0.25 mm, toolpath tolerance T = 0.01 mm, scallop height SH = 0.01 mm.
- Constant Z—This strategy produces high-quality finishes, especially on steep surfaces, and minimizes movements in all three axes that slow older machines and control systems. This strategy allows the function of machining flat areas. Work areas will be automatically created and can be machined using contour pocket machining. The schematic diagram illustrated Constant Z strategy is shown in Figure 2;


- Constant stepover—3D projection machining strategies generate a 2D toolpath with a constant pitch in a plane parallel to the XY plane of the current zero point. This 2D toolpath is then projected onto the 3D model to create a 3D toolpath. This method offers good results when machining prismatic parts but has significant disadvantages when machining curved surfaces because it does not incorporate the curvature of the surface.The constant step is constant for all surfaces, regardless of whether they are steep faces or shallow areas. For these options, the appropriate geometry must be defined. The schematic diagram illustrating the constant stepover strategy is shown in Figure 4;


- -
- Geometric deviation measurement by using the coordinate measuring technique. CMM device Carl Zeiss Contura G2 was used, where some deviations were measured and compared;
- -
- Surface texture evaluation using digital microscope Keyence VHX 5000, where the ball end mill effect in various milling strategies was investigated;
- -
- Roughness measurement and evaluation using a Mitutoyo Surftest SJ 410 device.
2.1. Methodology for the Evaluation of Geometrical Deviations
2.2. Methodology for Dimension Evaluation
2.3. Surface Texture Evaluation Methodology
2.4. Roughness Evaluation Methodology
3. Results
3.1. Geometrical Deviations Evaluation
3.1.1. Roundness Deviations
3.1.2. Deviations of Cylindricity
3.1.3. Straightness Deviations
3.1.4. Flatness Deviations
- Dimension evaluation
3.2. Surface Texture Evaluation
3.3. Roughness Evaluation
4. Discussion
5. Conclusions
Author Contributions
Funding
Institutional Review Board Statement
Informed Consent Statement
Data Availability Statement
Conflicts of Interest
References
- Benardos, P.G.; Vosniakos, G.C. Predicting surface roughness in machining: A review. Int. J. Mach. Tools Manuf. 2003, 43, 833–844. [Google Scholar] [CrossRef]
- Ünüvar, A.; Can, A. A novel iso-scallop tool-path generation for efficient five-axis machining of free-form surfaces. Int. J. Adv. Manuf. Technol. 2010, 51, 1083–1098. [Google Scholar] [CrossRef]
- Langeron, J.M.; Duc, E.; Lartigue, C.; Bourdet, P. A new format for 5-axis tool path computation, using Bspline curves. Comput.-Aided Des. 2004, 36, 1219–1229. [Google Scholar] [CrossRef]
- Romeroa, P.E.; Doradoa, R.; Díaza, F.A.; Rubio, E.M. Influence of pocket geometry and tool path strategy in pocket milling of UNS A96063 alloy. Procedia Eng. 2013, 63, 523–531. [Google Scholar] [CrossRef]
- Choi, B.K.; Kim, B.H. Die-cavity pocketing via cutting simulation. Comput. Aided Des. 1997, 29, 837–846. [Google Scholar] [CrossRef]
- Li, R.; Yang, F.; Wang, X. Modeling and Predicting the Machined Surface Roughness and Milling Power in Scot’s Pine Helical Milling Process. Machines 2022, 10, 331. [Google Scholar] [CrossRef]
- Li, R.; Yao, Q.; Xu, W.; Li, J.; Wang, X. Study of Cutting Power and Power Efficiency during Straight-Tooth Cylindrical Milling Process of Particle Boards. Materials 2022, 15, 879. [Google Scholar] [CrossRef]
- Li, R.; He, C.; Xu, W.; Wang, X. Modeling and optimizing the specific cutting energy of medium density fiberboard during the helical up-milling process. Wood Mater. Sci. Eng. 2022, 1–8. [Google Scholar] [CrossRef]
- Quintana, J.; Ciurana, J.; Ribatallada, J. Surface Roughness Generation and Material Removal Rate in Ball End Milling Operations. Mater. Manuf. Process. 2010, 25, 386–398. [Google Scholar] [CrossRef]
- DIN4760; Form Deviations; Concepts; Classification System. Deutches Institut Fuer Normung, e.V.: Berlin, Germany, 1982.
- Vakondios, D.; Kyratsis, P.; Yaldis, S.; Antoniadis, A. Influence of milling strategy on the surface roughness in ball end milling of the aluminum alloy Al7075-T6. Measurement 2012, 45, 1480–1488. [Google Scholar] [CrossRef]
- Bas, G.; Demircioglu, P.; Durakbasa, N.; Osanna, P.H. A nanometrological management approach to assess the profile and the surface characteristics of the end milling tools by multi-measurement analysis. In Proceedings of the XX IMEKO World Congress. Metrology for Green Growth, Busan, Korea, 9−14 September 2012. [Google Scholar]
- Antoniadis, A.; Savakis, C.; Bilalis, N.; Balouktsis, A. Prediction of Surface Topomorphy and Roughness in Ball-End Milling. Int. J. Adv. Manuf. Technol. 2003, 21, 965–971. [Google Scholar] [CrossRef]
- Varga, J.; Toth, T.; Frankovský, P.; Dulebová, Ľ.; Spišák, E.; Zajačko, I.; Živčák, J. The influence of automated machining strategy on geometric deviations of machined surfaces. Appl. Sci. 2021, 11, 2353. [Google Scholar] [CrossRef]
- Jung, T.S.; Yang, M.Y.; Lee, K.J. A new approach to analysing machined surfaces by ball-end milling, part I. Int. J. Adv. Manuf. Technol. 2005, 25, 833–840. [Google Scholar] [CrossRef]
- Mizugaki, Y.; Hao, M.; Kikkawa, K. Geometric Generating Mechanism of Machined Surface by Ball-nosed End Milling. CIRP Ann.-Manuf. Technol. 2001, 50, 69–72. [Google Scholar] [CrossRef]
- Feng, H.Y.; Huiwen, L. Constant scallop-height tool path generation for three-axis sculptured surface machining. CAD Comput. Aided Des. 2002, 34, 647–654. [Google Scholar] [CrossRef]
- Mizugaki, Y.; Hao, M.; Kikkawa, K.; Terai, H. Theoretical Estimation of Machined Surface Profile Based on Cutting Edge Movement and Tool Orientation in Ball-nosed End Milling. Manuf. Technol. 2003, 52, 49–52. [Google Scholar] [CrossRef]
- Chen, J.-S.; Huang, Y.-K.; Chen, M.-S. A study of the surface scallop generating mechanism in the ball-end milling process. Int. J. Mach. Tools Manuf. 2005, 45, 1077–1084. [Google Scholar] [CrossRef]
- Quan, K.W.; Vickers, G.W. Ball-Mills Versus End-Mills for Curved Surface Machining. Int. J. Adv. Manuf. Technol. 1989, 111, 22–26. [Google Scholar] [CrossRef]
- López de Lacalle, L.N.; Arizmendi, M.; Fernández, J.; Lamikiz, A.; Gil, A.; Sánchez, J.A.; Campa, F.J.; Veiga, F. Model development for the prediction of surface topography generated by ball-end mills taking into account the tool parallel axis offset. Experimental validation. Ann. CIRP 2008, 57, 104. [Google Scholar] [CrossRef]
- Kuroda, M.; Tsukamoto, H.; Omokawa, H.; Egawa, T.; Koreta, N. Analysis of surface roughness generated by ball end mill machining. Int. J. Jpn. Soc. Precis. Eng. 1993, 59, 1537–1542. [Google Scholar] [CrossRef]
- Kruth, J.P.; Klewais, P. Optimization and dynamic adaptation of the cutter inclination during five-axis mill-ing of sculptured surfaces. Mater. Sci. 1994, 43, 443–448. [Google Scholar] [CrossRef]
- Capla, R.; Souza, A.F.; Brandão, L.C.; Coelho, R.T. Some effects of stock variations due to the use of 2 axes strategy on roughing. In Proceedings of the 18th International Congress of Mechanical Engineering, Ouro Preto, Brazil, 6–11 November 2005. [Google Scholar]
- Batista, M.F.; Brandão, L.C.; Coelho, R.T. The influence of some cutting parameters in finishing milling of hardened steel using a ball nose tool. In Proceedings of the 18th International Congress of Mechanical Engineering, Ouro Preto, Brazil, 6 November 2005. [Google Scholar]
- Arruda, E.M.; Brandão, L.C.; Filho, S.L.; Oliveira, J.A. Integrated optimization using mixture design to confirm the finishing of AISI P20 using different cutting strategies and ball nose end mills. Measurement 2014, 47, 54–63. [Google Scholar] [CrossRef]
- Wang, Z.; Hongyu, L.; Tianbiao, Y. Study on Surface Integrity and Surface Roughness Model of Titanium Alloy TC21 Milling Considering Tool Vibration. Appl. Sci. 2022, 12, 4041. [Google Scholar] [CrossRef]
- Liu, C.; Ren, C.Z.; Wang, G.F.; Yang, Y.W.; Zhang, L. Study on surface defects in milling Inconel 718 super alloy. J. Mech. Sci. Technol. 2015, 47, 1723–1730. [Google Scholar] [CrossRef]
- Wang, T.; Xie, L.J.; Wang, X.B. Simulation study on defect formation mechanism of the machined surface in milling of high volume fraction SiCp/Al composite. Int. J. Adv. Manuf. Technol. 2015, 79, 1185–1194. [Google Scholar] [CrossRef]
- Ramos, A.M.; Relvas, C.; Simoes, J.A. The influence of finishing milling strategies on texture, roughness and dimensional deviations on the machining of complex surface. J. Mater. Process. Technol. 2003, 136, 209–216. [Google Scholar] [CrossRef]
- Toh, C.K. Surface topography analysis in high speed finish milling inclined hardened steel. Precis. Eng. 2004, 28, 386–398. [Google Scholar] [CrossRef]
- Mikó, B.; Beňo, J.; Maňková, I. Experimental Verification of Cusp Heights when 3D Milling Rounded Surfaces. Acta Polytech. Hung. 2012, 9, 101–116. [Google Scholar]
- Vyboishchik, A.V. Modelling Topology of Freeform Surfaces with Ball-end Milling. Procedia Eng. 2016, 150, 761–767. [Google Scholar] [CrossRef]
- Li, Y.; Gu, P. Free-form surface inspection techniques state of the art review. CAD Comput. Aided Des. 2004, 36, 1395–1417. [Google Scholar] [CrossRef]
- Gapinski, B.; Grzelka, M.; Rucki, M. The accuracy analysis of the roundness measurement with coordinate measuring machines. In Proceedings of the XVIII Imeko World Congress, Metrology for a Suistainable Development, Rio de Janeiro, Brazil, 17−22 September 2006. [Google Scholar]
- Zheng, P.; Wu, J.; Zhang, L. Research of the On-Line Evaluating the Cylindricity Error Technology Based on the New Generation of GPS. Procedia Eng. 2017, 174, 402–409. [Google Scholar] [CrossRef]
- Nadolny, K.; Kaplonek, W. Analysis of Flatness Deviations for Austenitic Stainless Steel Work-pieces after Efficient Surface Machining. Mater. Sci. 2014, 14, 204–213. [Google Scholar] [CrossRef]
- Mikó, B.; Farkas, G.; Bodonyi, I. Investigation of Points Sampling Strategies in Case of Flatness. Cut. Tool Technol. Syst. 2019, 91, 143–156. [Google Scholar] [CrossRef]
- Kuo, J.; Weng, W. Multi-axis synchronization machining effects on free-form surface with image processing. Int. J. Adv. Manuf. Technol. 2020, 111, 1135–1146. [Google Scholar] [CrossRef]
- Liang, T.; Lu, D.; Yang, X.; Zhang, J.; Ma, X.; Zhao, W. Feed fluctuation of ball screw feed systems and its effects on part surface quality. Int. J. Mach. Tools Manuf. 2016, 101, 1–9. [Google Scholar] [CrossRef]
- Liang, X.; Zahngiang, L. Tool wear behaviors and corresponding machined surface topography during high-speed machining of Ti-6Al-4V with fine grain tools. Tribol. Int. 2018, 121, 321–332. [Google Scholar] [CrossRef]
- Vila, C.; Abellán-Nebot, J.V.; Siller-Carrillo, H.R. Study of Different Cutting Strategies for Sustainable Machining of Hardened Steels. Procedia Eng. 2015, 132, 1120–1127. [Google Scholar] [CrossRef]
- Ali, S.H.R.; Mohamd, O.M. Dimensional and Geometrical Form Accuracy of Circular Pockets Manufactured for Aluminum, Copper and Steel Materials on CNC Milling Machine Using CMM. Int. J. Eng. Res. Afr. 2015, 17, 64–73. [Google Scholar] [CrossRef]
- López De Lacalle, L.N.; Lamikiz, A.; Muñoa, J.; Salgado, M.A.; Sánchez, J.A. Improving the High-Speed Finishing of Forming Tools for Advanced High-Strength Steels (AHSS). Int. J. Adv. Manuf. Technol. 2005, 29, 49–63. [Google Scholar] [CrossRef]





























| Tensile Strength [MPa] | Yield Strength [MPa] | Hardness [HB] |
|---|---|---|
| 101.89 | 86.69 | 90.20 |
| Tool Diameter [mm] | Cutting Speed [m·min−1] | Feed per Tooth [mm] | Spindle Frequency [RPM] | Tool Producer | Tool Code |
|---|---|---|---|---|---|
| End Mill D18 | 270 | 0.125 | 4800 | Korloy | AMS2018S |
| Ball End Mill D8 | 123 | 0.024 | 4900 | ZPS-FN | 510418.080 |
| Ball End Mill D6 | 92 | 0.022 | 4900 | ZPS-FN | 510418.080 |
| Path | Constant Z [mm] | Circular–Pocket [mm] | Constant Stepover–Pocket Auto Border [mm] | Spiral [mm] |
|---|---|---|---|---|
| 1 | 0.0927 | 0.0901 | 0.0876 | 0.0830 |
| 2 | 0.0848 | 0.0909 | 0.0821 | 0.0872 |
| 3 | 0.0876 | 0.0909 | 0.0888 | 0.0874 |
| 4 | 0.0870 | 0.0906 | 0.0897 | 0.0881 |
| 5 | 0.0872 | 0.0907 | 0.0889 | 0.0886 |
| 6 | 0.0854 | 0.0895 | 0.0876 | 0.0890 |
| 7 | 0.0854 | 0.0889 | 0.0876 | 0.0894 |
| 8 | 0.0871 | 0.0918 | 0.0891 | 0.0893 |
| 9 | 0.0855 | 0.0869 | 0.0864 | 0.0899 |
| 10 | 0.0862 | 0.0853 | 0.0875 | 0.0842 |
| Average | 0.0869 | 0.0896 | 0.0875 | 0.0876 |
| Standard deviation | 0.0023 | 0.0020 | 0.0021 | 0.0023 |
| Path | Constant Z [mm] | Circular–Pocket [mm] | Constant STEPOVER–POCKET AUTO Border [mm] | Spiral [mm] |
|---|---|---|---|---|
| 1 | 0.0093 | 0.0123 | 0.0129 | 0.0124 |
| 2 | 0.0091 | 0.0140 | 0.0132 | 0.0106 |
| 3 | 0.0088 | 0.0138 | 0.0129 | 0.0125 |
| 4 | 0.0092 | 0.0130 | 0.0131 | 0.0120 |
| 5 | 0.0093 | 0.0131 | 0.0131 | 0.0117 |
| 6 | 0.0095 | 0.0134 | 0.0132 | 0.0119 |
| 7 | 0.0098 | 0.0153 | 0.0137 | 0.0119 |
| 8 | 0.0103 | 0.0176 | 0.0162 | 0.0124 |
| 9 | 0.0109 | 0.0142 | 0.0140 | 0.0128 |
| 10 | 0.0862 | 0.0853 | 0.0875 | 0.0842 |
| Average | 0.0172 | 0.0212 | 0.0210 | 0.0192 |
| Standard deviation | 0.0242 | 0.0226 | 0.0234 | 0.0228 |
| Section | Constant Z [mm] | Circular–Pocket [mm] | Constant Stepover–Pocket Auto Border [mm] | Spiral [mm] |
|---|---|---|---|---|
| +XZ | 0.0041 | 0.0116 | 0.0112 | 0.0103 |
| +YZ | 0.0065 | 0.0089 | 0.0036 | 0.0043 |
| −XZ | 0.0111 | 0.0063 | 0.0066 | 0.0103 |
| −YZ | 0.0052 | 0.0096 | 0.0112 | 0.0114 |
| Average | 0.0067 | 0.0091 | 0.0081 | 0.0091 |
| Standard deviation | 0.0031 | 0.0021 | 0.0037 | 0.0032 |
| Constant Z [mm] | Circular–Pocket [mm] | Constant Step Over–Pocket Auto Border [mm] | Spiral [mm] | |
|---|---|---|---|---|
| Flatness deviations | 0.0085 | 0.0054 | 0.0079 | 0.0196 |
| Constant Z [mm] | Circular-Pocket [mm] | Constant Stepover-Pocket Auto Border [mm] | Spiral [mm] | |
|---|---|---|---|---|
| Depth achieved [mm] | 19.8741 | 19.9508 | 19.9704 | 19.9620 |
Publisher’s Note: MDPI stays neutral with regard to jurisdictional claims in published maps and institutional affiliations. |
© 2022 by the authors. Licensee MDPI, Basel, Switzerland. This article is an open access article distributed under the terms and conditions of the Creative Commons Attribution (CC BY) license (https://creativecommons.org/licenses/by/4.0/).
Share and Cite
Varga, J.; Tóth, T.; Kaščák, Ľ.; Spišák, E. The Effect of the Machining Strategy on the Surface Accuracy When Milling with a Ball End Cutting Tool of the Aluminum Alloy AlCu4Mg. Appl. Sci. 2022, 12, 10638. https://doi.org/10.3390/app122010638
Varga J, Tóth T, Kaščák Ľ, Spišák E. The Effect of the Machining Strategy on the Surface Accuracy When Milling with a Ball End Cutting Tool of the Aluminum Alloy AlCu4Mg. Applied Sciences. 2022; 12(20):10638. https://doi.org/10.3390/app122010638
Chicago/Turabian StyleVarga, Ján, Teodor Tóth, Ľuboš Kaščák, and Emil Spišák. 2022. "The Effect of the Machining Strategy on the Surface Accuracy When Milling with a Ball End Cutting Tool of the Aluminum Alloy AlCu4Mg" Applied Sciences 12, no. 20: 10638. https://doi.org/10.3390/app122010638
APA StyleVarga, J., Tóth, T., Kaščák, Ľ., & Spišák, E. (2022). The Effect of the Machining Strategy on the Surface Accuracy When Milling with a Ball End Cutting Tool of the Aluminum Alloy AlCu4Mg. Applied Sciences, 12(20), 10638. https://doi.org/10.3390/app122010638

