Mobile Off-Grid Energy Generation Unit for Temporary Energy Supply
Abstract
:1. Introduction
2. Materials and Methods
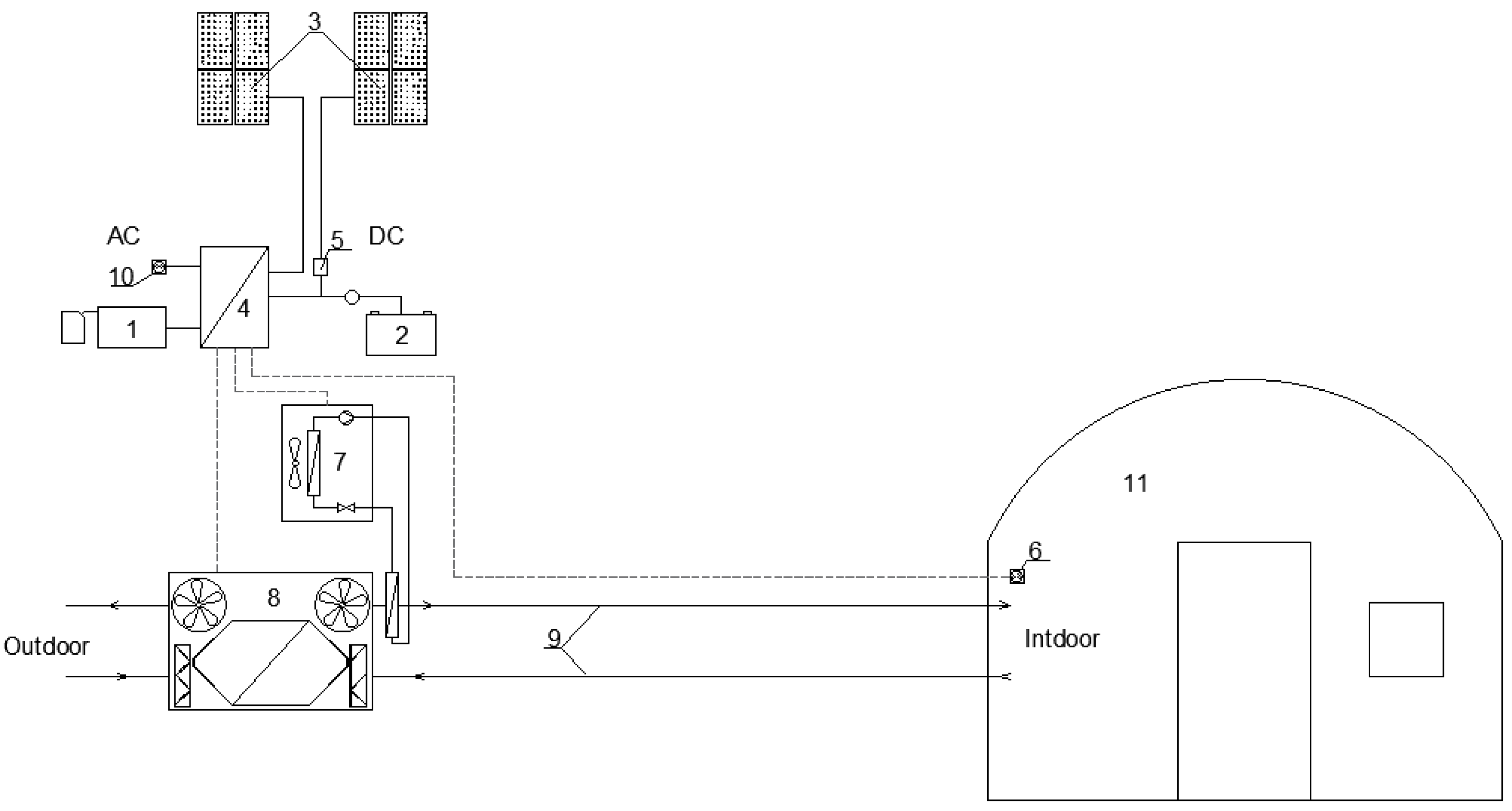
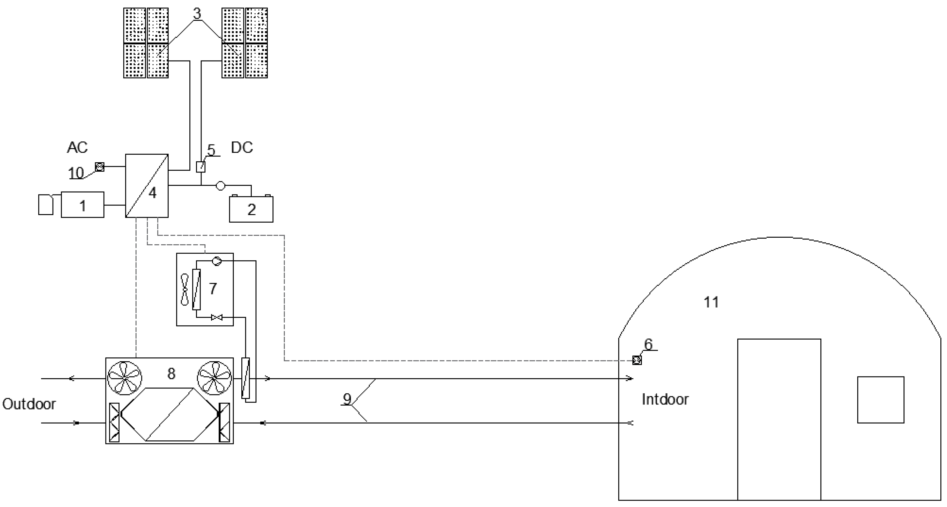
2.1. Experimental Context
2.2. Theoretical Model
- System simulations were made for a one-year period for Riga, Latvia climate conditions with 20 s calculation step;
- Controllers sent on/off signals to heat pump depending on the air temperature in the tent and control precise temperature (for heating or cooling needs) in the tent according to timetable (see Table 3);
- A comfortable climate for occupants’ wellbeing and for the reduction of CO2 in the tent was provided by an air-to-air heat recovery device according to sensor signals, and ventilation was provided only during heating periods;
- Parameters of the tent were adopted according to the manufacturer’s specification (see Table 3);
- The diesel generator was switched on in cases when additional electricity was required or if the storage battery could not be charged during the day;
- The electrical load of the system was ~2.3 kW;
- A digital model observed heat emissions from occupants, lighting and electricity consumption from equipment according to Table 3.
2.3. Validation of Digital Model
3. Results
- climatic conditions;
- current lighting (presence or absence of shading);
- possible contamination (soiling, dust cover, etc.);
- the angle of inclination of the elements.
4. Discussion
5. Conclusions
Author Contributions
Funding
Informed Consent Statement
Conflicts of Interest
References
- Coronavirus: Italian Patients Treated in Tents and Warehouse 2020. BBC News, 13 March 2020.
- UNHCR Global Trends Forced Displacement in 2020; UNHCR: Geneva, Switzerland, 2020.
- UNHCR Global Trends UNHCR: Global Trends Forced Displacement in 2018; UNHCR: Geneva, Switzerland, 2019.
- NATO. Operations and Missions: Past and Present; NATO: Brussels, Belgium, 2021. [Google Scholar]
- Prozuments, A.; Staveckis, A.; Zemitis, J.; Bajare, D. Evaluation of Heating and Cooling Loads for a Well-Insulated Single-Family House under Variable Climate Pattern. Environ. Clim. Technol. 2021, 25, 750–763. [Google Scholar] [CrossRef]
- Prozuments, A.; Borodinecs, A.; Zemitis, J. Survey Based Evaluation of Indoor Environment in an Administrative Military Facility. J. Sustain. Archit. Civ. Eng. 2020, 27, 96–107. [Google Scholar] [CrossRef]
- NPR The NPR Daily Newsletter. Available online: https://www.npr.org/2011/06/25/137414737/among-the-costs-of-war-20b-in-air-conditioning (accessed on 26 November 2021).
- NATO. NATO’s Science for Peace and Security (SPS) Programme: The SPS project “Camp Energy Efficiency”; NATO: Brussels, Belgium, 2018; Available online: https://www.nato.int/cps/en/natohq/news_158964.htm (accessed on 26 November 2021).
- NATO. Secretary General’s Annual Report 2019; NATO: Brussels, Belgium, 2020. [Google Scholar]
- Neves, D.; Baptista, P.; Pires, J.M. Sustainable and inclusive energy solutions in refugee camps: Developing a modelling approach for energy demand and alternative renewable power supply. J. Clean. Prod. 2021, 298, 126745. [Google Scholar] [CrossRef]
- van Hove, E.; Johnson, N.G. Refugee settlements in transition: Energy access and development challenges in Northern Uganda. Energy Res. Soc. Sci. 2021, 78, 102103. [Google Scholar] [CrossRef]
- Pearson, J.; Wagner, T.; Delorit, J.; Schuldt, S. Meeting Temporary Facility Energy Demand with Climate-Optimized Off-Grid Energy Systems. IEEE Open Access J. Power Energy 2020, 7, 203–211. [Google Scholar] [CrossRef]
- Moore, B. Refugee settlements and sustainable planning. Forced Migr. Rev. 2017. Available online: https://www.fmreview.org/sites/fmr/files/FMRdownloads/en/shelter/moore.pdf (accessed on 23 October 2021).
- Lehne, J.; Blyth, W.; Lahn, G.; Bazilian, M.; Grafham, O. Energy services for refugees and displaced people. Energy Strateg. Rev. 2016, 13, 134–146. [Google Scholar] [CrossRef] [Green Version]
- Lahn, G.; Grafham, O. Heat, Light and Power for Refugees: Saving Lives, Reducing Costs; Chatham House, the Royal Institute of International Affairs: London, UK, 2015; p. 69. [Google Scholar]
- Bogdanovics, R.; Borodinecs, A.; Zemitis, J.; Zajacs, A. Using a mobile modular energy unit with PV panels for heating. ASHRAE J. 2021, 63, 38–46. [Google Scholar]
- Raghuwanshi, S.S.; Arya, R. Reliability evaluation of stand-alone hybrid photovoltaic energy system for rural healthcare centre. Sustain. Energy Technol. Assessments 2020, 37, 100624. [Google Scholar] [CrossRef]
- Dedović, M.M.; Avdaković, S.; Mujezinović, A.; Dautbašić, N. Integration of pv into the sarajevo canton energy system-air quality and heating challenges. Energies 2021, 14, 123. [Google Scholar] [CrossRef]
- Liu, Y.; Wang, Y.; Luo, X. Design and operation optimization of distributed solar energy system based on dynamic operation strategy. Energies 2021, 14, 69. [Google Scholar] [CrossRef]
- Zajacs, A.; Bogdanovics, R.; Borodinecs, A. Analysis of low temperature lift heat pump application in a district heating system for flue gas condenser efficiency improvement. Sustain. Cities Soc. 2020, 57, 102130. [Google Scholar] [CrossRef]
- Duman, A.C.; Güler, Ö. Techno-economic analysis of off-grid PV/wind/fuel cell hybrid system combinations with a comparison of regularly and seasonally occupied households. Sustain. Cities Soc. 2018, 42, 107–126. [Google Scholar] [CrossRef]
- Islam, M.M.; Sun, Z. Onsite generation system sizing for manufacturing plant considering renewable sources towards sustainability. Sustain. Energy Technol. Assess. 2019, 32, 1–18. [Google Scholar] [CrossRef]
- El Zein, M.; Gebresenbet, G. Investigating off-grid systems for a mobile automated milking facility. Heliyon 2021, 7, e06630. [Google Scholar] [CrossRef] [PubMed]
- Franceschi, J.; Rothkop, J.; Miller, G. Off-grid solar PV power for humanitarian action: From emergency communications to refugee camp micro-grids. Procedia Eng. 2014, 78, 229–235. [Google Scholar] [CrossRef] [Green Version]
- Prompinit, K.; Plangklang, B.; Hiranvarodom, S. Design and construction of a mobile PV hybrid system prototype for isolated electrification. Procedia Eng. 2011, 8, 138–145. [Google Scholar] [CrossRef] [Green Version]
- Obydenkova, S.V.; Pearce, J.M. Technical viability of mobile solar photovoltaic systems for indigenous nomadic communities in northern latitudes. Renew. Energy 2016, 89, 253–267. [Google Scholar] [CrossRef] [Green Version]
- The International Renewable Energy Agency (IRENA). Renewables for Refugee Settlements Sustainable Energy Access in Humanitatian Situations; International Renewable Energy Agency: Abu Dhabi, United Arab Emirates, 2019; p. 52. [Google Scholar]
- Fasulo, L. The 2030 Agenda for Sustainable Development. In An Insider’s Guide to the UN; Yale University Press: London, UK, 2020. [Google Scholar]
- Borodinecs, A.; Prozuments, A.; Zajacs, A.; Zemitis, J. Retrofitting of fire stations in cold climate regions. Mag. Civ. Eng. 2019, 90, 85–92. [Google Scholar] [CrossRef]
- Plavenieks, G.; Lesinskis, A.; Dimdina, I. Case Study of Indoor Air Quality and Energy Efficiency in Passive House in Latvia. In Proceedings of the REHVA Annual Conference 2015, Riga, Latvia, 6–9 May 2015. [Google Scholar]
- Shipkovs, P.; Kashkarova, G.; Snegirjovs, A.; Vanags, M.; Lebedeva, K.; Shipkovs, J.; Migla, L. Investigations of solar collector’s in latvian conditions. Renew. Energy Power Qual. J. 2011, 1. [Google Scholar] [CrossRef]
- Global Solar Atlas Global Solar Atlas v2.6. Available online: https://globalsolaratlas.info/map (accessed on 20 October 2021).
- UNHCR, the UN Refugee Agency. Available online: https://storymaps.esri.com/stories/2016/refugee-camps/# (accessed on 3 November 2021).







| Goudoubo in Burkina Faso | Dadaab in Kenya | |
|---|---|---|
| Population | 10,327 | 356,014 |
| Costs (for electricity generation with diesel fuel) | 31.5 k$/year | 2.3 M$/year |
| Energy-related costs in the global budget | 8% | 20% |
| Energy consumed per household | 10.6 $/month (about 5–7% of total household earnings) | 17.20 $/month (about 24% of total household earnings) |
| Component | Component | ||
| PV Batteries | Value | Storage Battery | Value |
| Slope of surface | 0° | Cell energy capacity | 20 Ah |
| Azimuth of surface | Facing South | Cells in parallel | 6 |
| Short-circuit current | 9.63 A | Cells in series | 2 |
| Open-circuit voltage | 40.69 V | Charging efficiency | 0.92 |
| Voltage at Max power point | 33.21 V | Max current per cell charging | 100 A |
| Current at Max power point | 9.23 A | Max current per cell discharge | −200 A |
| Temperature coefficient of ISC | 0.00443 A/K | Max charge voltage per cell | 2.8 A |
| Temperature coefficient of VOC | −0.141 V/K | Inverter | Value |
| Number of cells wired in series | 60 | Regulator efficiency | 0.98 |
| Module area | 1.46 m2 | Inverter efficiency (DC to AC) | 0.94 |
| Number of modules in series | 2 | Inverter efficiency (AC to DC) | 0.94 |
| Number of modules in parallel | 6 | High limit on fractional state of change (FSOC) | 100% |
| Heat pump | Value | Low limit on FSOC | 0 |
| −20 °C outside dry-bulb temperature (DBT) | Heating capacity 3.52 kW | Charge to discharge limit on FSOC | 0 |
| 5 °C intake DBT | Heating power 1.76 kW | Inverter output power capacity | 2400 W |
| 29 °C outside DBT | Total cooling capacity 3.5 kW | Current for grid charging of battery | 100 A |
| 22 °C intake DBT | Cooling power 0.95 kW | Upper limit on FSOC grid charging | 100% |
| Air-to-air heat recovery unit | Value | Diesel generator | Value |
| Heat recovery sensible effectiveness | 0.797 | Relate power | 2.0 kW |
| Heat recovery latent effectiveness | 0.889 | Max power | 2.4 kW |
| Ventilation flow rate | 350 m3/h | ||
| Ventilation fan total power | 150 W | Min power | 0.6 kW |
| Tent Parameters | Value | |||||
| Roof and wall | U = 1.13 W/m2K | |||||
| Floor | U = 0.87 W/m2K | |||||
| Volume | 35.25 m3 | |||||
| Area | 20 m2 floor; 48.6 m2 walls and roof | |||||
| Heat Loss | 73.32 W/K | |||||
| Capacitance | 42.3 kJ/K | |||||
| Weather | Riga, Latvia | |||||
| Timetable | ||||||
| Time | Occupant | Heating T (°C) | Cooling T (°C) | Light (W) | Equipment (W) | |
| Count | W (met) | |||||
| 12 a.m.–6 a.m. | 5 | 100 (0.9) | 18 ± 2 | 23 ± 1 | - | - |
| 6 a.m.–10 a.m. | 2 | 125 (1.1) | 18 ± 2 | 23 ± 1 | 55 | - |
| 10 a.m.–1 p.m. | 0 | - | 5 ± 2 | 27 ± 1 | - | - |
| 1 p.m.–3 p.m. | 5 | 125 (1.1) | 18 ± 2 | 23 ± 1 | 55 | 300 |
| 3 p.m.–8 p.m. | 0 | - | 5 ± 2 | 27 ± 1 | - | - |
| 8 p.m.–10 p.m. | 5 | 125 (1.1) | 18 ± 2 | 23 ± 1 | 55 | 40 |
| 10 p.m.–12 a.m. | 5 | 100 (0.9) | 18 ± 2 | 23 ± 1 | - | - |
| Year Seasons | ||||
|---|---|---|---|---|
| Spring (2020) | Summer (2020) | Autumn (2020) | Winter (2021) | |
| Electricity consumed (kWh) | 4.22 | 5.20 | 354 | 1.001 |
| Diesel generator produced electricity (kWh) | 210 | 60 | 370 | 1.173 |
| Diesel consumed (l) | 70 | 20 | 119 | 378 |
| Diesel generator work time (h) | 193 | 55 | 298 | 955 |
| Recovered heat (kWh) | 1.347 | - | 1.080 | 3.114 |
| Heat from heat pump (kWh) | 804 | - | 687 | 2.104 |
| Waste heat from diesel generator (kWh) | 480 | - | 803 | 2.554 |
| City | Average | |
|---|---|---|
| DNI, kWh/m2 | PVout, kWh/kWp | |
| Riga | 2.79 | 2.87 |
| Stockholm | 2.96 | 2.89 |
| London | 2.29 | 2.74 |
| Produced Electricity, kWh | Diesel Fuel Consumption, l | |||
|---|---|---|---|---|
| Spring, 2020 | Without PV | 0 | 241 | - |
| PV | 797 | 70 | −71% | |
| Summer, 2020 | Without PV | 0 | 300 | - |
| PV | 1203 | 20 | −93% | |
| Autumn, 2020 | Without PV | 0 | 205 | - |
| PV | 286 | 119 | −42% | |
| Winter, 2021 | Without PV | 0 | 416 | - |
| PV | 132 | 378 | −9% | |
| Town | Electricity, kWh | Energy, kWh | Time, h | ||||||
|---|---|---|---|---|---|---|---|---|---|
| Total Required | PV Produced | Additional Required | Heat Recovered | Heat Supplied | Cool Supplied | Heating | Cooling | Diesel Work | |
| Stockholm (Sweden) | 1968 | 2313 | 1639 | 5585 | 3669 | 392 | 1626 | 115 | 1369 |
| Riga (Latvia) | 1989 | 2268 | 1674 | 5571 | 3616 | 457 | 1600 | 134 | 1460 |
| London (United Kingdom) | 944 | 2169 | 577 | 1895 | 1152 | 559 | 609 | 165 | 412 |
| Case | Town, TRNSYS | Average Air T °C | PV Prod. el, kWh | Diesel Fuel Cons., l | Heating Time, h | Cooling Time, h | Diesel Generator Work Time, h | Reduction of Diesel Fuel Consumption, % |
|---|---|---|---|---|---|---|---|---|
| 0 | Garissa (Kenya) | 29.2 | 0 | 2402 | 0 | 5426 | 6011 | |
| 1 | 4732 | 1033 | 0 | 5426 | 2577 | 57 | ||
| 0 | Jerusalem (Israel) | 16.1 | 0 | 1247 | 185 | 1153 | 3211 | |
| 1 | 4769 | 56 | 190 | 1152 | 135 | 96 | ||
| 0 | Malakal (South Sudan) | 28.0 | 0 | 2117 | 0 | 4367 | 5374 | |
| 1 | 4417 | 827 | 0 | 4367 | 2092 | 61 | ||
| 0 | Kigoma (Tanzania) | 23.5 | 0 | 1654 | 0 | 2340 | 4439 | |
| 1 | 3588 | 577 | 0 | 2340 | 1627 | 65 | ||
| 0 | Addis Ababa (Ethiopia) | 16.6 | 0 | 947 | 38 | 762 | 2375 | |
| 1 | 4496 | 54 | 41 | 762 | 145 | 94 | ||
| 0 | Peshawar (Pakistan) | 22.6 | 0 | 1697 | 56 | 3125 | 4256 | |
| 1 | 4213 | 519 | 56 | 3125 | 1293 | 69 |
| City | Average | |
|---|---|---|
| DNI, kWh/m2 | PVout, kWh/kWp | |
| Garissa | 4.01 | 4.3 |
| Jerusalem | 5.97 | 4.85 |
| Malakal | 4.18 | 4.42 |
| Kigoma | 4.33 | 4.46 |
| Addis Ababa | 4.82 | 4.7 |
| Peshawar | 3.97 | 4.25 |
| Town, TRNSYS | Total Required el, kWh | PV Produced el, kWh | Difference, % (PV Produced Electricity/Electricity Consumed) |
|---|---|---|---|
| Garissa (Kenya) | 6057 | 4732 | 78 |
| Jerusalem (Israel) | 1659 | 4769 | 287 |
| Malakal (South Sudan) | 4900 | 4417 | 90 |
| Kigoma (Tanzania) | 2766 | 3588 | 130 |
| Addis Ababa (Ethiopia) | 1163 | 4496 | 387 |
| Peshawar (Pakistan) | 3694 | 4213 | 114 |
Publisher’s Note: MDPI stays neutral with regard to jurisdictional claims in published maps and institutional affiliations. |
© 2022 by the authors. Licensee MDPI, Basel, Switzerland. This article is an open access article distributed under the terms and conditions of the Creative Commons Attribution (CC BY) license (https://creativecommons.org/licenses/by/4.0/).
Share and Cite
Borodinecs, A.; Zajecs, D.; Lebedeva, K.; Bogdanovics, R. Mobile Off-Grid Energy Generation Unit for Temporary Energy Supply. Appl. Sci. 2022, 12, 673. https://doi.org/10.3390/app12020673
Borodinecs A, Zajecs D, Lebedeva K, Bogdanovics R. Mobile Off-Grid Energy Generation Unit for Temporary Energy Supply. Applied Sciences. 2022; 12(2):673. https://doi.org/10.3390/app12020673
Chicago/Turabian StyleBorodinecs, Anatolijs, Deniss Zajecs, Kristina Lebedeva, and Raimonds Bogdanovics. 2022. "Mobile Off-Grid Energy Generation Unit for Temporary Energy Supply" Applied Sciences 12, no. 2: 673. https://doi.org/10.3390/app12020673
APA StyleBorodinecs, A., Zajecs, D., Lebedeva, K., & Bogdanovics, R. (2022). Mobile Off-Grid Energy Generation Unit for Temporary Energy Supply. Applied Sciences, 12(2), 673. https://doi.org/10.3390/app12020673

