Next Article in Journal
The Effect of “Directness” of the Distance Metric to Produce Compact and Accurate Associative Classification Models
Previous Article in Journal
Artificial Intelligence Applied to Medical Imaging and Computational Biology
 
 
Font Type:
Arial Georgia Verdana
Font Size:
Aa Aa Aa
Line Spacing:
Column Width:
Background:
Article

Vibration Response Analysis of Overhead System Regarding Train-Track-Bridge Dynamic Interaction

1
Highway Institute, Chang’an University, Xi’an 710064, China
2
Jiangsu Hua Tong Engineering Testing Corporation, Nanjing 210014, China
3
School of Mechanical Engineering, Yancheng Institute of Technology, Yancheng 224051, China
*
Author to whom correspondence should be addressed.
Appl. Sci. 2022, 12(18), 9053; https://doi.org/10.3390/app12189053
Submission received: 30 July 2022 / Revised: 30 August 2022 / Accepted: 6 September 2022 / Published: 8 September 2022

Abstract

:
Based on the paucity of studies on the analysis of the coupled vibration response of the train-track-overhead System, in this article, finite element software ABAQUS was integrated with multi-body dynamics software, Universal Mechanism (UM), to construct a joint simulation model of the train-track overhead system under a railway line, with the focus on the investigation of the influence of different track irregularity levels, speeds and damping coefficients on the coupled vibration response of the vehicle-track-overhead system. The findings demonstrate that the response of the train body is sensitive to track irregularity, which primarily impacts the safety index of train operation. The results also suggest that the level of track irregularity should be rigorously regulated above AAR5 during construction. The train-track-overhead system functions well and satisfies the overhead system’s design requirements when the train travels through the reinforced line at a speed of no more than 60 km/h. When the train speed is 100 km/h, the vertical acceleration exceeds the limit for the “I” overhead system. There is a possibility of excessive lateral acceleration of the train body and excessive lateral force of the wheel and rail when the train speed is greater than 60 km/h, which endangers the safety of the driver. While it has little effect on the mid-span and vertical displacements, the damping factor of the bridge has a substantial impact on the vertical acceleration and mid-span acceleration of the vertical and horizontal beams. The study’s findings provide useful guidance.

1. Introduction

The earliest study on the vibration of the train bridge coupling system of a railway bridge is the research paper on train bridge vibration that Willis submitted in 1849. The report made note of the fact that the effect of a moving load will cause the bridge to vibrate and that, under the same circumstances, the stress and displacement induced by the moving load are greater than those caused by a static load. Therefore, it may be concluded that the vibration brought on by a train passing through the bridge is what caused the Chester railway bridge in England to collapse. A three-dimensional (3-D) model for train-track-bridge interaction was put out by Xu and Zhai [1] using novel techniques and the foundations of strongly coupling theory. They also built a coupling matrix for the track-bridge finite element system and developed a flexible method for coupling the track and the bridge and solved the matrix formulations by taking wheel-rail separations into account. Zhang and Xia [2] proposed an inter-system iteration method for dynamic analysis of coupled train–bridge systems. In this approach, the dynamic responses of the training subsystem and bridge subsystem are solved independently; iteration within time-step is avoided, computation memory is saved, programming effort is decreased, and the bridge subsystem may easily be implemented using commercial structural analysis tools. Zhu et al. [3] proposed a linear complementary method to describe the wheel-rail separation in train bridge dynamic interaction, which can avoid the traditional trial and error iterative process in two-dimensional space. Fedorova and Sivaselvan [4] created a robust algorithm for analyzing train track structure interaction, in which the train and substructure are modeled separately and then coupled by contact force via the Lagrange multiplier. Subsequently, Zeng et al. [5] proposed a train bridge interaction dynamic analysis scheme based on a local Lagrange multiplier that allowed for the partitioning and non-iterative dynamic analysis of train and bridge subsystems. Azimi et al. [6] proposed a new structural characteristic formula of train bridge interaction elements that can more realistically capture the response of the bridge and train.
Except for the advancement in coupling train-bridge interactions, recently, the focus of research has shifted to the vibration of structures subjected to train bridge coupling. Deshan [7], based on the background of the Yujiang bridge in the Nanguang line, established a refined numerical simulation model for coupled vibration analysis of a train-bridge system. The space vibration responses are calculated by co-simulation based on multi-body system dynamics and the finite element method when the ICE EMU train passes the long-span cable-stayed bridge at different speeds. Cheng [8] established a complete vertical analysis model of the train track bridge coupling system and the vibration differential equations of the coupling system. The influence of track irregularity level, train running speed, and train suspension parameters on the dynamic response of the train track bridge coupling system are analyzed and compared, and the sensitive irregularity wavelength range of trains at different speeds is obtained. The results show that the higher the train speed, the greater the ride comfort index, and the longer the irregularity wavelength, the larger the influence range. Zeng [9] transformed the track irregularity excitation into virtual excitation using the virtual excitation method of random vibration, and by using MATLAB software, he was able to resolve the virtual response problem with the system by employing numerical separation and iteration. Later, the time-varying power spectrum and standard deviation of the train and bridge subsystem’s random response were obtained, and the system’s random vibration properties were examined. Gao [10] developed a dynamic analysis model for the spatial coupling system of a high-speed train ballast-less track bridge based on the construction background of Guangzhou Zhuhai railway’s Xi Jiang extra-large continuous beam bridge and performed a vibration simulation analysis of the train track bridge system, with track irregularity serving as a vibration excitation source. The dynamic responses of trains and bridges at various speeds and track irregularity levels are calculated, and a preliminary discussion of the relationship between dynamic response values and train speed and track irregularity levels is conducted. Based on nonlinear Hertz contact theory, Yang [11] developed a finite element model of train track bridge vertical vibration, derived the rail bridge coupling element of arbitrary length combination, and investigated the impact of track and bridge element length. The findings indicate that using a larger bridge element and improving the track element can achieve the required accuracy and efficiency and that the length of the track element affects the calculation’s outcome. There must be a minimum of two-track units per minimum train wheelbase. Chu [12] and Batti [13] divided the train bridge system into two subsystems, established train and bridge motion equations for each, and connected them through wheel-rail interaction to study the vibration response of a truss bridge under train action. This model has been widely adopted and applied by researchers worldwide, having a significant impact on modern train bridge vibration theory. Zhai [14] used numerical analysis techniques and track irregularity samples as systematic excitation to investigate the dynamic performance of a large steel truss arch bridge and track under train operation. The findings show that the train track bridge dynamic interaction theory can be used to assess and evaluate the dynamic behavior of complex bridge structures in actual high-speed railway engineering.
It is clear from the published works that the theory and method of train-track-bridge interaction have been gradually perfected. The theoretical investigation establishes a research foundation for the vibration response of train-track-bridge interaction to bridge structure and train. However, there are still some gaps in the study of dynamic characteristics of temporary structure railway line reinforcement systems under train-track-bridge coupling during construction in terms of coupled response. This paper takes the Longhai railway overpass project on Jingjiu road as an example, with the overpass project adopting the structural form of a framed underpass. To ensure the safety of the upper and lower structures during the construction of the underpass bridge structure, it is necessary to study the dynamic performance of the overhead system of the superstructure. This paper combines MIDAS/civil software, ABAQUS finite element software, and multi-body dynamics software Universal Mechanism (UM), analyzes the vibration response of the overhead system under the coupling effect of the vehicle track overhead system, and investigates the impact of track irregularity, train speed and bridge damping coefficient on the dynamic response of the train track overhead system to provide a new modeling idea for the research of train-track -bridge systems, guiding the design of this type of structure, and guaranteeing the structural safety.

1.1. Overhead System Model

1.1.1. Overhead System Parameters

The Jingjiu-Longhai railway overpass is built in the form of a crossing ground bridge. During construction, horizontal and vertical beams are used to reinforce the existing track. Meanwhile, the train passing through this section is limited to a maximum speed of 45 km/h. The overhead railway line is 80 m long, with 10 × 8 m continuous steel structural beams used for reinforcement. The longitudinal beam is made of I100 I-beam, and the transverse girder is made of I56b I-beam, with four transverse spans (12 m and 9 m) and four ordinary beret plates forming a group. The transverse spans (12 m and 9 m) are referred to as “I aerial system” and “II aerial system”, respectively. Figure 1 and Figure 2 show cross-sections and elevations.
This study uses the T60 rail type, which has the equivalent rectangular section, equivalent height h, and equivalent width b. The T60 rail has an elastic modulus (E) of 2.059 × 1011 MPa. Then:
b   h = A  
b h 3 / 12 = J y  
where: A-rail section area, value   A = 77.45   cm 2 .
J y -second moment of area, value     J y = 3217   cm 4 .
Simultaneous Equations (1) and (2) are obtained. b = 0.0347   m , h = 0.223   m . The rail equivalent is shown in Figure 3.
The sleeper type is the speed-up line sleeper (type II), and the basic parameters are shown in Table 1.
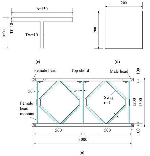
Table 2 and Table 3 display the precise dimensional parameters of I100 I-beams and I56 I-beams. Material 16 Mn; chord 2I10a; channel steel (C100 48 5.3/8.5, spacing 8 cm); web I8 (H = 80 mm, B = 50 mm, Tf = 4.5 mm, Tw = 6.5 mm) are the specifications for the Bailey plate transverse beam. The Bailey plate’s connection is made with a pin. The “W” arrangement of T-shaped steel is used to reinforce the reinforcement system, and the type of T-shaped steel used is T75-150 × 7 × 10 (h = 75 mm, b = 150 mm, Tf = 10 mm, Tw = 7 mm). This ensures the transverse stability of the longitudinal and transverse beams. Figure 4 illustrates specific material dimension information.

1.1.2. Model Building and Boundary Processing

The overhead system has a total length of 80 m and a standard span of 8 m. For the consideration of calculation efficiency, the influence of the three-span overhead system was calculated. The total length of the overhead architecture model along the track line direction is 24 m, which is divided into 12 m and 9 m along the road direction of the frame bridge. The 12 m transverse girder was arranged in two spans of 7 m + 5 m. A B32 three-dimensional beam element was used to discretize the structure. The concrete sleeper has little effect on the stiffness of the structure, which is simplified in the model as a mass element applied to the relevant rail beam joints. The joints are rigidly joined, and nodal plates and rivets were not taken into consideration. The finite element numerical models of the two types of overhead systems are shown in Figure 5.

1.1.3. Model Validation

Software for finite element analysis of the overhead system model was created using Midas/Civil and ABAQUS. The two calculation models underwent eigenvalue analysis, and the validity of the models was confirmed by contrasting the analysis’s findings. The first ten main modes of the “I” overhead system are shown in Table 4.
The first five primary modes of the overhead system are compared in Figure 6a–e. On the left is the result of the ABAQUS calculation, and on the right is the result of the MIDAS/civil calculation. The first ten natural vibration periods of the models created by the two software programs are not different, as can be seen from the eigenvalue analysis data and vibration mode diagram in the above table. This shows that the simulation of the overhead system’s mass and stiffness is essentially consistent, and it can be determined that the models created by Midas/civil and ABAQUS are essentially accurate.

1.2. The Training Model

There are two different types of single-section train modeling, for freight trains and passenger trains, respectively. The choice of normal-speed trains and heavy-load trucks is mentioned in reference [15]; the heavy-load truck uses C80 in this paper. The trained model is created to determine the characteristics of each train component as well as the connection relationships between each component based on the rigid body establishment, force element definition, constraints application, and determination of wheel and rail contact. Later, the equation for the dynamics of the train system is assembled and created [16]. The train modeling makes three assumptions: (1) the train body, bogie, and wheel equivalent train components are rigid bodies; (2) each part of the train body is symmetric about the train body’s axis; and (3) the connection between bogie and wheelset, bolster, and train body only considers linear performance, which is simplified as the spring plus damping structure.
The train is composed of three parts: wheelset, bogie, and body. One train has two bogies, each bogie has two wheelset systems, bogies, and wheelset between the suspension for a suspension system, the suspension between the train body and the bogie for two suspension systems (freight train, only one suspension), and body weight through the bogies and wheelset to the rail to bridge structure. To summarize, a train is made up of seven rigid bodies: the body, the front and rear frames, the first-round pair, the second-round pair, the third-round pair, and the fourth-round pair. Each rigid body is thought to have six degrees of freedom. Figure 7 depicts the degrees of freedom of the wheelset. Each rigid body in the system has five degrees of freedom, while each passenger train or truck train has 35 degrees of freedom (not including the rigid body’s telescopic degrees of freedom).
Figure 8 represents the bogie model. UM employs substructure modeling, defining the bogie and its attached wheelsets and suspension as a substructure that is repeatedly invoked in subsequent modeling. The front view and side view of the train dynamics model are shown in Figure 9. The passenger train and freight train entire train models have been established in UM, and the model diagram is shown in Figure 10.

1.3. Wheel-Rail Contact and Track Model

Hertz’s nonlinear elastic contact theory is used to make wheel-rail contact. The contact surface of two elastomers is thought to form an ellipse, and the pressure inside the contact spot is distributed as a parabolic cylinder. The normal compression between wheel and rail determines the normal contact force. For the track model, the continuous elastic foundation beam model was chosen. The rail is regarded as an elastic continuous beam, the vertical foundation under the rail as a parallel linear spring damping system, and the lateral foundation as a series linear spring damping system. Only the stiffness and damping of the rail are considered, while both the inertial effect and the longitudinal deformation along the rail direction are not considered. The standard model CHN60 is adopted, and the orbit model is shown in Figure 11.

1.4. Coupling of Train Line Overhead System

ABAQUS was used to calculate and output the mass matrix, stiffness matrix, and modal information of the overhead system, with a format of *.FIL. A 3D train model is established in UM, and the overhead system model established is imported through the ABAQUS interface provided by UM. The training model in UM is coupled through wheel-rail contact. The established train-track-bridge multi-body system model is shown in Figure 12. The process of joint simulation is shown in Figure 13.

2. System Dynamics Theory of Train-Track Overhead System

2.1. Vibration Analysis Model of Overhead Structures

The train bridge coupling system assumes no relative displacement between the track and the beam, as well as no elastic deformation of fasteners such as the base plate and fastener under the track. Then, the differential equations of motion of the nodes in the overhead system are as shown in Equations (3) and (4) [17,18,19,20].
M X .. + C X ˙ + K X = F
F = F e + F w
where: F e = External forces on bridge joints. In the paper, only the interaction between the train rail bridge system is considered, so F e   = 0.
F w = Wheel rail force transmitted from the vehicle to bridge through track structure.

2.2. Vibration Analysis Model of Accelerated Train

Any rigid body in space has six degrees of freedom, according to rigid body dynamics. Without taking into account the rigid body’s axial expansion and contraction, each rigid body has five degrees of freedom: Horizontal, vertical, rolling, nodding, shaking. The train dynamics model has 35 degrees of freedom per vehicle, based on the number of rigid bodies. The differential equations of motion of the train body and the two bogies can be expressed by Equation (5).
M c c 0 0 0 M t 1 t 1 0 0 0 M t 2 t 2 v ¨ c v ¨ t 1 v ¨ t 2 + C c c C t 1 c C t 2 c C c t 1 C t 1 t 1 0 C c t 2 0 C t 2 t 2 v ˙ c v ˙ t 1 v ˙ t 2 + K c c K t 1 c K t 2 c K c t 1 K t 1 t 1 0 K c t 2 0 K t 2 t 2 v c v t 1 v t 2 = F c F t 1 F t 2
  • where: c = train
  • t 1 ,   t 2   = the front and rear bogies
  • v = Displacement of train body
  • ν ˙   = Moving speed of train body
  • ν .. = Moving acceleration of train body
  • M = Mass submatrix
  • C = Damped submatrix
  • K —Stiffness submatrix.
The load vector consists of two parts, which are expressed as shown in Equation (6).
{ F c F t 1 F t 2 } = { F c e F t 1 e F t 2 e } + { 0 F t 1 w F t 2 w }
where: F c e , F t 1 e , F t 2 e = External force acting on train body and bogie; F t 1 w , F t 2 w = The force of the wheelset transmitted to the bogie through primary suspension.

2.3. Vibration Analysis Model of Track Structure

The track type is a ballasted track. The Ritz method is used to introduce the normal mode coordinates of rail. Considering the vertical ( q V k ( t ) ), transverse ( q L k ( t ) ) and torsion ( q T k ( t ) ) modes of the rail, the two order ordinary differential equations of rail vibration are obtained as shown in Equation (7):
q .. V k ( t ) + E I Y m r ( k π l ) 4 q V k ( t ) = i = 1 N F V i Z k ( x s i ) + j = 1 4 P j Z k ( x w j ) ( k = 1 ~ N V )   q .. L k ( t ) + E I Z m r ( k π l ) 4 q L k ( t ) = i = 1 N F L i Z k ( x s i ) + j = 1 4 Q j Y k ( x w j ) ( k = 1 ~ N L )   q .. T k ( t ) + G r I t ρ r I 0 ( k π l ) 2 q T k ( t ) = i = 1 N M s i Φ k ( x s i ) + j = 1 4 M w j Φ k ( x w j ) ( k = 1 ~ N T )
  • where:   I Y , I Z = the moment of inertia of rail section to y and z axes, respectively
  • I t = the moment of inertia of rail torsion
  • I 0   = the polar inertia moment of the rail section
  • ρ r   = the rail density
  • G r = the rail shear modulus
  • F V i , F L i = the vertical and horizontal reaction force of the i -th fulcrum
  • P j , Q j   = the vertical and transverse load of the jth wheel acting on the rail
  • M s i = the rail reaction moment at the ith fulcrum
  • M w j   = the moment of the jth wheel acting on the rail
  • x w j   = the jth coordinate
  • x s i = the coordinate of the ith fulcrum
  • N V , N L and N T = the highest order of rail vertical, laterial, and torsional,
  • L = the rail length
  • Z k , Y k , and Φ k = the vertical, transverse, and torsional mode functions of rail, respectively.

3. Coupling Vibration Analysis of Train-Track-Overhead System

3.1. Response Performance Evaluation of Train-Bridge System

The overhead system, train, and track are all considered in the coupling vibration analysis of the train-track-overhead system. The coupling vibration of the train bridge is influenced by a variety of factors. In this study, three variables—track irregularity level, speed, and damping coefficient—are used to analyze the dynamic response of the vehicle-bridge coupling system. This study examines the dynamic behavior of a freight train and a bus traveling at standard speed through an 80 m continuous beam overhead system with 10 spans. Bus and freight train axle weights are 12.5 t and 25 t, respectively. Table 5 provides a summary of the corresponding dynamic performance evaluation index limits. Referring to [17,18,19,20], Table 1 summarizes the corresponding dynamic performance evaluation index limits.

3.2. Influence of Track Irregularity on the Dynamic Response of Train Track Overhead System

Orbital irregularities are variations in orbital geometry, space position, and size from their typical states. Direction, gauge, height, and level irregularity are the four fundamental types of track irregularity that are typically discussed [20,21,22]. Short wave irregularity, medium wave irregularity, and long wave irregularity are the three levels of irregularity that can be classified based on wavelength [23,24,25]. The North American Railway Association (AAR) obtained the power spectral density curve of track irregularity based on a significant amount of observed data, and fitted it into an even function indicated by roughness constant and cutoff frequency. The track level is separated into six levels, with the first level being the worst and the sixth level being the best. The wavelength range is 1.524–304.8 m.
(1)
Uneven height:
S v ( Ω ) = k A v Ω c 2 Ω 2 ( Ω 2 + Ω c 2 )
(2)
Uneven direction
S a ( Ω ) = k A a Ω c 2 Ω 2 ( Ω 2 + Ω c 2 )
(3)
Uneven level and gauge:
S c ( Ω ) = S g ( Ω ) = 4 k A v Ω c 2 ( Ω 2 + Ω c 2 ) ( Ω 2 + Ω s 2 )
where: S ( Ω ) is the power spectral density (W/Hz); Ω is the spatial circular frequency of the track smoothness (rad/m); A v , A a is the roughness constant (cm2·rad/m); Ω c , Ω s is the cutoff frequency (rad/m); k is the safety factor, and A is the safety factor, which can range from 0.25 to 1.0 as needed, but is usually 0.25. Table 6 contains the parameter values.
For simulation purposes, the American orbital irregularity spectrum was used [26,27]. The track smoothness wavelength is set at 1–80 m, and the number of harmonics is set at 3000, taking into account the influence of medium and long waves and ignoring the influence of short waves. The train load takes some time to reach steady-state balance. In the model calculation, the first distance of the overhead system was set at 20 m. Simulation analysis was performed on the passenger train for the I and II overhand systems, and six different levels of irregularity for the train’s 45 km/h design speed were chosen. Since the dynamic response therein is fairly obvious, this section concentrates on the dynamic response in the middle of the span. Table 7 and Table 8 list the maximum value for each response, and a “*” is displayed for any data that do not meet the specifications.
Table 7 and Table 8 show that the dynamic performance of the two types of overhead systems gradually improves as the track irregularity level decreases. The two overhead systems’ performance improvements are minimal but fall within the normative limit listed in Table 5, demonstrating that the overhead systems’ sensitivity to the level of track irregularity is low. Under the same irregularity level, the dynamic deflection of the I overhead system is less than the II aerial system response.
The dynamic response of trains is significantly influenced by the unevenness level, and the dynamic response indices gradually rise as the unevenness level decreases. Table 7 demonstrates that the risk of a derailment is decreased when the level of track irregularities is controlled above AAR5.
The safety indexes of train operation are primarily impacted by track irregularity, and the Sperling indexes of train bodies satisfy all levels of the requirements. In order for the smoothness of the track to meet the requirements of the AAR5 standard, the change in track line must be strictly monitored during the construction of this road bridge.
To assess the system’s safety, the dynamic response of the overhead system under a load of freight trains was computed. The target speed was set at 45 km/h, and AAR5 was used to adjust for track unevenness. Figure 11 and Figure 12 represent the overhead system’s dynamic response, while Table 9 shows the highest value of the matching train body response.
Figure 14 and Figure 15 demonstrate that, under the aforementioned circumstances, the vertical peak deflection of the two types of train moving across the I overhead system is 4.97 mm, the maximum lateral displacement is 0.21 mm, the vertical acceleration is 2.81 m/s2, and the lateral acceleration is 0.27 m/s2. Regarding the II overhead system, the peak’s vertical deflection is 6.03 mm, the lateral displacement is 0.69 mm at its maximum, 1.41 m/s2 is the vertical acceleration, and 0.21 m/s2 is the lateral acceleration. The structural graph shows that the II aerial system’s harmonic vibration, lateral displacement, and horizontal displacement all cross aside. This is due to the II aerial system’s torsional deformation, which is brought on by a partial load carried by the horizontal lift beam. Under the influence of the train’s dead weight, the structure’s midspan transverse amplitude generates transverse static displacement, which causes the midspan to transversely deviate to one side.
As seen in Table 9, when there is a significant wheel/rail lateral force that is close to the specification limit, freight trains can cross the I aerial system. In general, both overhead systems can carry the necessary loads at their intended speeds.

3.3. Influence of Train Speed on the Dynamic Response of Train Bridge System

AAR5 was chosen to examine the impact of train speed on the dynamic response of the train bridge system to track irregularity. A 20 km/h increment was used to increase the train’s speed from 20 km/h to 100 km/h. Since the train’s loading must be stable for some time, the train is programmed to begin loading at 20 m from the overhead system. The system’s dynamic indexes are shown in Table 10 and Table 11, with the nonconformity index represented by “*”.
According to the above table, all of the indexes of the two types of structures generally increase with speed, with the transverse force of wheel and rail being the most sensitive to speed change, owing to the large loading force on the overhead system at high train speeds. Additionally, according to the train’s response, the lateral acceleration of the train body has exceeded the limit when the speed reaches 60 km/h, which could result in the train body overturning. When the speed reaches 80 km/h, the lateral force of the wheel and rail is greater than the permissible limit of 48 kN, which is easily capable of resulting in wheel-rail stripping. The II overhead system performs superbly, according to observations of the two different types of overhead systems. At a speed of 100 km/h, the I aerial system’s span experiences a vertical acceleration greater than 0.35 m/s2, in accordance with the standards for vertical acceleration, specifically the maximum vertical acceleration threshold. In general, the train bridge system functions well and satisfies the design specifications of the overhead system when the train speed is less than 60 km/h. Then, I overhead system data is chosen, various index changes with speed curves are examined, and a thorough analysis of the outcomes is carried out under various intuitive reaction conditions.
Figure 16a shows that, when a passenger train is operating, the maximum deflection of the mid-span vertical and horizontal girders rises along with the rise in train running speed, which first increases gradually and then quickens. The maximum deflection is 2.62 mm, which is less than the specification’s 10 mm maximum deflection limit. As seen in Figure 16b, the overhead system’s lateral displacement is more sensitive to train speed than its horizontal displacement, which is easily altered. As the speed rises, the overall lateral displacement increases, also. According to the study, the speed range is much smaller than the standard requirements of the transverse displacement limit of 2 mm, going up to 0.20 mm.
The mid-span of the structure’s maximum vertical acceleration is depicted in Figure 17a. Additionally, it shows that the vertical acceleration of the aerial system’s midspan is roughly linear but still directly proportional to the increase in velocity. This vertical acceleration’s maximum value of 3.88 m/s2 is higher than the 0.35 m/s2 specified by the specification [20].
Figure 17b shows the change in the mid-span transverse acceleration of the overhead system, which rises slowly at the beginning with the change in the train speed, rises sharply after the train speed reaches 60 km/h, and reaches the maximum value of 0.41 m/s2 at 100 km/h. However, the transverse acceleration does not exceed the limit value of 0.2 m/s2, as required by the specification.

3.4. Influence of Damping on the Dynamic Response of Train Track Bridge System

Due to track irregularities, wheel rail wear, and other factors, the train will have a dynamic impact on the bridge structure when it travels at a certain speed. The internal force and deformation of the bridge will be greater as a result of this impact than they would be under a static live load. The key concept is: the maximum dynamic deflection caused by excitation and wheel rail force to the maximum static deflection caused by applying the same train load at low speed or static state when the train crosses the bridge at a certain speed [28]. Its formula is as follows:
μ = Y d Y p 1
where Y d = the maximum dynamic deflection of the beam response when the train passes through the bridge structure at a given speed. Y p = the maximum static deflection of the structure when the train is loaded.
Damping refers to all forms of friction and other obstacles that lessen free vibration. In the fields of civil engineering, machinery, aerospace, and other related fields, the damping ratio is a crucial concept of structural dynamics. It describes the standard damping size of structures and expresses the relationship between damping coefficient and critical damping coefficient. The value of damping is determined by the structure’s shape, material, type of support, and other factors. In practice, structural damping is expressed as the damping ratio, which is frequently measured using extremely complex experiments. The damping ratio can be calculated by definition, shown in Formula (12).
ξ = C / C 0 C 0 = 2 m w 1
where: C = the damping coefficient, C 0 = the critical damping coefficient, m = weight of object, w 1 = natural frequency of structure.
The damping ratio is defined in Reference [29] as the ratio between the actual resistance of damped vibration and the resistance necessary to produce critical damping. The damping ratio, which has no units and shows how the structure vibrates after being excited, is attenuated. It can be broken down into four categories: greater than 1, greater than 0, equal to 1, and between 0 and 1. All structures have typical damping ratios between 0 and 1. It is specified in Reference [30] that the structural damping ratio is 0.05. Reference [30] states the steel structure’s seismic damping ratio should be between 0.01 and 0.1.
The damping factor affects the vibration of the aerial body. When the damping value of the aerial body is large, the energy dissipation increases, and the corresponding vibration energy of the beam body decreases. The damping ratios are 2.5 percent, 5 percent, 7.5 percent, and 1 percent, respectively, under five groups of working conditions, according to research on the overhead system damping effect. The test is conducted using the piers (1 m in diameter) of the II aerial system structure, and a freight train traveling at 45 km/h is used to determine whether the irregularity level complies with AAR5. The chart displays various damping ratios under the influence of structure vibration response and vibration response.
Figure 18, Figure 19 and Figure 20 show that the free vibration of the train leaving the bridge primarily reflects the impact of damping on the overhead system. The repeating vibration has a minor amplitude with a large damping ratio, and a comparatively large amplitude with no damping. The vibration mode essentially stays the same, the wave peaks and troughs are comparable to how they were in the case of each damping ratio, and the damping has no discernible impact on the vibration frequency.
Table 12 shows that the mid-span deflection, vertical acceleration, lateral amplitude, and transverse acceleration of the aerial body of horizontal and vertical beams gradually decrease with an increase in damping ratio. When there is no damping, the range of response indices is maximized, and the vibration response is most pronounced. The mid-span vertical acceleration and transverse acceleration are more sensitive to the change in damping ratio than the mid-span deflection and transverse amplitude.
Figure 21 shows the variation in the impact coefficient of the structure with the change in train speed under different damping ratios. The damping effect is not obvious because of the low speed. Speeds from 100 km/h to 200 km/h are selected in this section. Multiple conditions can be found in the figure with the change in the damping ratio. The changing trend does not alter significantly, there are two peaks, and the respective peak times are close while the impact coefficient curve is developing.The first peak appears at 125 km/h and the second peak near 190 km/h. When the damping ratio is small, the curvature at the peak value is large, while the impact coefficient at the neighboring points is relatively small. With the increase in damping ratio, the peak value decreases. Increasing the damping ratio of the beam can reduce the impact coefficient and fulfill a good shock absorption role.

4. Conclusions

In this study, the vertical and horizontal lifting girder overhead system model was created using finite element software, and the corresponding freight and passenger train models and track models were created using the multi-body dynamics software Universal Mechanism. An external flexible body was brought into UM together with the overhead system in order to conduct the train bridge joint simulation. The dynamic reaction of the train track overhead system was investigated by the UM post-processing program. These are the results.
(1) The analysis concluded that the response of the train body is more sensitive to track irregularity, which mainly affected the safety index of train operation, and that the Sperling index of the train body met the requirements at all levels. When the irregularity level was lower than AAR5, there was a risk of derailment and overturn of the train. For the construction process of this road bridge, the linear change of the track should be strictly controlled to ensure that the smoothness of the track meets the AAR5 standard. The calculation showed that the train-track-overhead system works well and meets the design requirements of the overhead system when the train passes through the reinforced line at a speed not exceeding 60 km/h.
(2) The vibration response of the two types of overhead systems increases with speed, and the wheel rail lateral force is the most sensitive, when taking into account the impact of vehicle speed on the entire system at the AAR5 irregularity level. Tracking the train’s reaction, the risk of the vehicle body overturning increased when the vehicle speed hit 60 km/h, as the lateral acceleration of the vehicle body had exceeded the limit. When the vehicle was traveling at 80 km/h, the wheel rail lateral force was more than the permissible limit of 48 kN, which was readily capable of resulting in wheel rail peeling. The II overhead system had exceptional overall performance; however, the I overhead system’s vertical acceleration in the middle of the span surpassed the specification’s maximum vertical acceleration limit of 0.35 g when the vehicle was traveling at 100 km/h. In general, the vehicle bridge system functioned well and satisfied the design specifications of the overhead system when the vehicle speed was less than 60 km/h.
(3) The damping factor of the bridge had a significant influence on the transverse and vertical acceleration of the transverse and vertical spans but had little influence on their transverse and vertical displacement. It can be concluded that increasing the bridge damping ratio can improve the structure’s seismic performance.
(4) It is challenging to fully take into account the actual wheel-rail contact’s complexity as well as the numerous factors that have an impact on the train track bridge coupling system. The resonance of the train bridge caused by train load requires further discussion because only one train model was taken into consideration in this paper, and neither the no-load nor heavy-load grouping of the train was taken into account.

Author Contributions

All authors substantially contributed to this work. L.L. performed the theory analysis. X.W. and J.C. established the FEM model. X.F. and L.L. wrote the paper. W.C. revised and finalized the paper. All authors helped with the writing of the paper. All authors have read and agreed to the published version of the manuscript.

Funding

This study was financially funded by the Natural Science Basic Research Program of Shaanxi (2022JZ-32), and the Fundamental Research Funds for the Central universities (300102212212).

Institutional Review Board Statement

Not applicable.

Informed Consent Statement

Not applicable.

Data Availability Statement

Not applicable.

Conflicts of Interest

The authors declare no conflict of interest.

References

  1. Xu, L.; Zhai, W. A three-dimensional model for train-track-bridge dynamic interactions with a hypothesis of wheel-rail rigid contact. Mech. Syst. Signal Process. 2019, 132, 471–489. [Google Scholar] [CrossRef]
  2. Zhang, N.; Xia, H. Dynamic analysis of coupled train–bridge system based on inter-system iteration method. Comput. Struct. 2013, 114, 26–34. [Google Scholar] [CrossRef]
  3. Zhu, D.Y.; Zhang, Y.H.; Ouyang, H. A linear complementarity method for dynamic analysis of bridges under moving trains considering separation and surface roughness. Comput. Struct. 2015, 154, 135–144. [Google Scholar] [CrossRef]
  4. Fedorova, M.; Sivaselvan, M.V. An algorithm for dynamic train-track-structure interaction analysis for high-speed trains. Eng. Struct. 2017, 148, 857–877. [Google Scholar] [CrossRef]
  5. Zeng, Q.; Stoura, C.D.; Dimitrakopoulos, E.G. A localized LaGrange multipliers approach for the problem of train-bridge-interaction. Eng. Struct. 2018, 168, 82–92. [Google Scholar] [CrossRef]
  6. Azimi, H.; Galal, K.; Pekau, O.A. A modified numerical VBI element for vehicles with constant velocity including road irregularities. Eng. Struct. 2011, 33, 2212–2220. [Google Scholar] [CrossRef]
  7. Shan, D.; Cui, S.; Zhen, H. Coupled Vibration Analysis of Vehicle-Bridge System Based on Multi-Body Dynamics. J. Transp. Technol. 2013, 3, 31799. [Google Scholar]
  8. Cheng, X. Random Vibration Response Analysis of Train-Rail-Bridge Coupling System. Master’s Thesis, Suzhou University, Suzhou, China, 2016. [Google Scholar]
  9. Zeng, D. Random Vibration Response Analysis of train-bridge coupling System. Pearl River Water Transp. 2018, 9, 4–5. (In Chinese) [Google Scholar]
  10. Gao, Y. Research on Space Coupled Vibration of High-Speed Railway Train—Rail Bridge. Master’s Thesis, South China University of Technology, Wuhan, China, 2012. [Google Scholar]
  11. Yang, H. Dynamic Analysis Theory of High-Speed Railway Train-Line-Bridge and Research on the Influence of Track Excitation on Bridge. Master’s Thesis, Huazhong University of Science and Technology, Huazhong, China, 2014. [Google Scholar]
  12. Chu, K.H.; Garg, V.K.; Wiriyachai, A. Dynamic Interaction of Railway Train and Bridges. Veh. Syst. Dyn. 1980, 9, 207–236. [Google Scholar] [CrossRef]
  13. Batti, M.H. Vertical and Lateral Dynamic Response of Railway Bridge Due to Nonlinear Train and Track Irregularities. Ph.D. Thesis, Illinois Institute of Technology, Chicago, IL, USA, 1982. [Google Scholar]
  14. Zhai, W. High-speed train–track–bridge dynamic interactions—Part II: Experimental validation and engineering application. Int. J. Rail Transp. 2013, 1, 25–41. [Google Scholar] [CrossRef]
  15. Zhai, W.M.; He, X. Theory and Engineering Application of Train-Track-Bridge Dynamic Interaction; Science Press: Beijing, China, 2011; pp. 110–120. [Google Scholar]
  16. Jiang, B. Research on the Influence of the Linear Change of High-Speed Railway Bridges on the Dynamic Performance of Rail-Train Bridge Systems. Master’s Thesis, Harbin Institute of Technology, Harbin, China, 2017. [Google Scholar]
  17. TB/T 2360-93; Test Appraisal Method and Evaluation Standard for Dynamic Performance of Railway Locomotives. Ministry of Railways of the People’s Republic of China: Beijing, China; China Railway Publishing House: Beijing, China, 1994.
  18. Academy of Railway Sciences. Interim Provisions for the Design of New 200 km/h Mixed Passenger and Freight Railway; Ministry of Railways of the People’s Republic of China: Beijing, China, 2005. [Google Scholar]
  19. TB 10082-2017. Industry-Standard of the People’s Republic of China Code for Design of Railway Track. China Railway Press: Beijing, China, 2017.
  20. He, X. Dynamic Interaction between Train and Structure; Science Press: Beijing, China, 2002. [Google Scholar]
  21. Hertz, H. Ueber die Berührung fester elastischer Körper. J. Reine Angew. Math. 1882, 92, 156–173. [Google Scholar] [CrossRef]
  22. Zhu, Z.; Wang, L.; Yang, L.; Yu, Z. Influence of track irregularity short-wave component on train-simply supported beam bridge coupling vibration. J. Hum. Univ. 2016, 43, 53–60. [Google Scholar]
  23. Fang, J.; Lei, X.; Lian, S.; Liu, L. Study on an unfavorable wavelength of track irregularity of speed-increasing line. J. Railw. Eng. 2010, 27, 27–31. [Google Scholar]
  24. Li, C. The relationship between unfavorable wavelength and speed of high and bottom unevenness. J. Southwest Jiaotong Univ. 1997, 32, 61–64. [Google Scholar]
  25. Knothe, K.; Grassie, S.L. Modeling of Railway Track and train/track interaction at high frequencies. Train Syst. Dyn. 1993, 22, 209–262. [Google Scholar] [CrossRef]
  26. Andersson, C.; Abrahamsson, T. Simulation of interaction between a train in general motion and a track. Veh. Syst. Dyn. 2002, 38, 433–455. [Google Scholar] [CrossRef]
  27. Deng, J.; Wu, D.; Li, Q. Dynamic factor analysis of simple-supported bridges using discrete moving load model. Eng. Mech. 2012, 29, 177–183. [Google Scholar]
  28. Ministry of Housing and Urban-Rural Construction of the People’s Republic of China. Specification for Seismic Design of Prestressed Concrete Structures; China Academy of Building Sciences: Beijing, China, 2004.
  29. Ministry of transport of the people’s Republic of China. Specifications for Seismic Design of Highway Bridges; Chinese People’s Republic Ministry of Transport: Beijing, China, 2020.
  30. China Academy of Building Sciences. Code for Seismic Design of Buildings; China Academy of Building Sciences: Beijing, China, 2010. [Google Scholar]
Figure 1. Cross-section of an overhead system (unit: mm): (a) Cross-section of type I overhead system. (b) Cross-section of type II overhead system.
Figure 1. Cross-section of an overhead system (unit: mm): (a) Cross-section of type I overhead system. (b) Cross-section of type II overhead system.
Applsci 12 09053 g001
Figure 2. Elevation of the overhead system (unit: mm): (a) Elevation of type I overhand system. (b) Elevation of type II overhand system.
Figure 2. Elevation of the overhead system (unit: mm): (a) Elevation of type I overhand system. (b) Elevation of type II overhand system.
Applsci 12 09053 g002
Figure 3. Model of equivalent rectangular rail beam (unit: m).
Figure 3. Model of equivalent rectangular rail beam (unit: m).
Applsci 12 09053 g003
Figure 4. Material dimension details (unit: mm): (a) I100-I beam. (b) I56b-I beam. (c) T75 steel. (d) Steel sleeper beam (B200 × 200 × 480). (e) A section of Bailey.
Figure 4. Material dimension details (unit: mm): (a) I100-I beam. (b) I56b-I beam. (c) T75 steel. (d) Steel sleeper beam (B200 × 200 × 480). (e) A section of Bailey.
Applsci 12 09053 g004aApplsci 12 09053 g004b
Figure 5. One-span model diagram of track and overhead system: (a) A cross model diagram type I aerial system. (b) A cross model diagram type II aerial system.
Figure 5. One-span model diagram of track and overhead system: (a) A cross model diagram type I aerial system. (b) A cross model diagram type II aerial system.
Applsci 12 09053 g005
Figure 6. Comparison of vibration modes calculated by ABAQUS and Midas: (a) First order mode. (b) Second order mode. (c) Three order mode. (d) Four order mode. (e) Five order mode.
Figure 6. Comparison of vibration modes calculated by ABAQUS and Midas: (a) First order mode. (b) Second order mode. (c) Three order mode. (d) Four order mode. (e) Five order mode.
Applsci 12 09053 g006aApplsci 12 09053 g006b
Figure 7. Wheel set with six degrees of freedom.
Figure 7. Wheel set with six degrees of freedom.
Applsci 12 09053 g007
Figure 8. Bogie model.
Figure 8. Bogie model.
Applsci 12 09053 g008
Figure 9. Front view and side view of train dynamics model.
Figure 9. Front view and side view of train dynamics model.
Applsci 12 09053 g009
Figure 10. Train model: (a) Passenger train model. (b) Freight train model.
Figure 10. Train model: (a) Passenger train model. (b) Freight train model.
Applsci 12 09053 g010
Figure 11. Orbital dynamics model and parameter setting.
Figure 11. Orbital dynamics model and parameter setting.
Applsci 12 09053 g011
Figure 12. Train-track-overhead system model.
Figure 12. Train-track-overhead system model.
Applsci 12 09053 g012
Figure 13. The process of joint simulation.
Figure 13. The process of joint simulation.
Applsci 12 09053 g013
Figure 14. I Overhead system dynamic response: (a) Mid−span vertical deflection (unit: mm). (b) Mid−span vertical acceleration (unit: m/s2). (c) Mid−span lateral displacement (unit: mm). (d) Mid−span lateral acceleration (unit: m/s2).
Figure 14. I Overhead system dynamic response: (a) Mid−span vertical deflection (unit: mm). (b) Mid−span vertical acceleration (unit: m/s2). (c) Mid−span lateral displacement (unit: mm). (d) Mid−span lateral acceleration (unit: m/s2).
Applsci 12 09053 g014
Figure 15. II Overhead system dynamic response: (a) Mid−span vertical deflection (unit: mm) (b) Mid−span vertical acceleration (unit: m/s2). (c) Mid−span lateral displacement (unit: mm). (d) Mid−span lateral acceleration (unit: m/s2).
Figure 15. II Overhead system dynamic response: (a) Mid−span vertical deflection (unit: mm) (b) Mid−span vertical acceleration (unit: m/s2). (c) Mid−span lateral displacement (unit: mm). (d) Mid−span lateral acceleration (unit: m/s2).
Applsci 12 09053 g015
Figure 16. Mid-span displacement response under different speed levels (unit: mm): (a) Mid-span maximum vertical deflection. (b) Mid-span lateral displacement.
Figure 16. Mid-span displacement response under different speed levels (unit: mm): (a) Mid-span maximum vertical deflection. (b) Mid-span lateral displacement.
Applsci 12 09053 g016
Figure 17. Mid-span acceleration response under different speed levels (unit: m/s2): (a) Mid-span vertical acceleration. (b) Mid-span lateral acceleration.
Figure 17. Mid-span acceleration response under different speed levels (unit: m/s2): (a) Mid-span vertical acceleration. (b) Mid-span lateral acceleration.
Applsci 12 09053 g017
Figure 18. Mid−span vibration response of structure with damping ratio of 0.025: (a) Mid−span deflection (mm). (b) Mid−span vertical acceleration (m/s2). (c) Mid−span transverse amplitude (mm). (d) Mid−span lateral acceleration (m/s2).
Figure 18. Mid−span vibration response of structure with damping ratio of 0.025: (a) Mid−span deflection (mm). (b) Mid−span vertical acceleration (m/s2). (c) Mid−span transverse amplitude (mm). (d) Mid−span lateral acceleration (m/s2).
Applsci 12 09053 g018
Figure 19. Mid−span vibration response of structure with damping ratio of 0.05: (a) Mid−span deflection (mm). (b) Mid−span vertical acceleration (m/s2). (c) Mid−span transverse amplitude (mm). (d) Mid−span lateral acceleration (m/s2).
Figure 19. Mid−span vibration response of structure with damping ratio of 0.05: (a) Mid−span deflection (mm). (b) Mid−span vertical acceleration (m/s2). (c) Mid−span transverse amplitude (mm). (d) Mid−span lateral acceleration (m/s2).
Applsci 12 09053 g019
Figure 20. Mid−span vibration response of structure with damping ratio of 0: (a) Mid−span deflection (mm). (b) Mid−span vertical acceleration (m/s2). (c) Mid−span transverse amplitude (mm). (d) Mid−span lateral acceleration (m/s2).
Figure 20. Mid−span vibration response of structure with damping ratio of 0: (a) Mid−span deflection (mm). (b) Mid−span vertical acceleration (m/s2). (c) Mid−span transverse amplitude (mm). (d) Mid−span lateral acceleration (m/s2).
Applsci 12 09053 g020
Figure 21. The impact coefficient varies with the damping ratio of trains crossing the bridge.
Figure 21. The impact coefficient varies with the damping ratio of trains crossing the bridge.
Applsci 12 09053 g021
Table 1. Basic parameters of sleeper.
Table 1. Basic parameters of sleeper.
Main TypeSleeper Quality
M s   ( kg )
Sleeper Length
L s   ( m )
The Average Width of the Bottom Surface l b   ( m ) Effective Support Length (Half Pillow)
l e   ( m )
Speed-up line sleeper (type II)2512.50.2730.95
Table 2. Calculation parameters of the strengthened longitudinal beam.
Table 2. Calculation parameters of the strengthened longitudinal beam.
NameTypeElasticity Modulus
(Pa)
Poisson’s RatioMoment of Inertia
( m 4 )
Acreage
(m2)
Altitude
(m)
Density ( kg / m 3 )
I-beamI1002.1 × 10110.39.23 × 10−36.56 × 10−217800
Table 3. Calculation parameters of reinforced beam.
Table 3. Calculation parameters of reinforced beam.
TypeSize (mm)Acreage
(cm2)
hbdtrr1
I56b560.0168.014.521.014.57.3146.635
I10010003604040//656.00
Table 4. Vertical forward tenth order modal characteristic frequency.
Table 4. Vertical forward tenth order modal characteristic frequency.
ModalityMidas/Civil (Hz)ABAQUS (Hz)Deviation
123.20624.2394.44%
2425.89227.7053.17%
326.84128.9814.25%
429.36730.5684.09%
530.81832.6255.87%
633.29837.5383.72%
736.87741.8042.55%
846.62045.7621.84%
948.57648.2110.74%
1050.31053.5076.34%
Table 5. Standard limits for dynamic performance evaluation of train-bridge systems.
Table 5. Standard limits for dynamic performance evaluation of train-bridge systems.
ClassificationIndexPassenger TrainFreight Train
Security Indexderailment coefficient0.80.8
Wheel load reduction rate0.90.9
Axle lateral force (kN)4884
Riding indexBody acceleration (g)transverse0.100.5
vertical0.130.7
Sperling indextransverse3.04.25
vertical3.04.25
Bridge dynamic performanceLateral amplitude (mm)2.00
Vertical amplitude (mm)10.00
Lateral acceleration (g)0.20
vertical acceleration (g)0.35
Table 6. US AAR orbital spectral parameters.
Table 6. US AAR orbital spectral parameters.
ParametersLine Grade
Class OneClass TwoClass ThreeClass FourClass FiveClass Six
A v (cm2·rad/m)1.21071.01810.68160.53760.20950.0339
A a (cm2·rad/m)3.36341.21070.41280.30270.07620.0339
Ω s (rad/m)0.60460.93080.85201.13120.82090.4380
Ω c (rad/m)0.82450.82450.82450.82450.82450.8245
Maximum allowable speed (km/h)Truck16406496128176
Passenger244896128144176
Table 7. The dynamic response of the train under various track irregularity grades. (“*” is displayed for any data that do not meet the specifications).
Table 7. The dynamic response of the train under various track irregularity grades. (“*” is displayed for any data that do not meet the specifications).
Overhead SystemGrade of IrregularityDerailment CoefficientHorizontal Force (kN)Vertical Acceleration (m/s2)Lateral Acceleration (m/s2)Wheel Weight Load Shedding RateSperling Index
VerticalLateral
ILevel 1*1.98**154.91*0.87*2.41**2.48*2.382.69
Level 2*1.37**126.78*0.22*2.53**1.92*1.562.54
Level 3*1.63**71.93*0.30*1.44**1.27*1.342.47
Level 4*1.21*42.820.47*1.43**0.78*1.582.41
Level 50.6532.820.350.560.591.262.16
Level 60.5631.340.090.700.461.121.62
IILevel 1*1.56**152.41*0.53*2.74**2.42*1.852.80
Level 2*1.82**115.31*0.43*2.66**2.08*1.242.71
Level 3*1.65**87.42*0.380.85*1.63*1.142.63
Level 40.82*58.79*0.41*1.41**1.54*1.602.42
Level 50.5126.680.370.840.601.431.91
Level 60.3220.000.110.510.271.091.64
Table 8. The dynamic response of the aerial system under various track irregularity grades.
Table 8. The dynamic response of the aerial system under various track irregularity grades.
Overhead SystemGrade of IrregularityVertical Displacement (mm)Lateral Displacement (mm)Vertical Acceleration (m/s2)Lateral Acceleration (m/s2)
ILevel 12.390.651.630.47
Level 22.280.631.750.82
Level 32.290.531.640.54
Level 42.170.481.720.18
Level 52.160.141.830.18
Level 62.070.111.710.18
IILevel 13.130.541.480.68
Level 23.040.692.480.56
Level 33.040.401.420.72
Level 42.950.391.590.45
Level 52.830.211.470.22
Level 62.820.121.290.21
Table 9. Dynamic response of freight train under AAR5 track irregularity.
Table 9. Dynamic response of freight train under AAR5 track irregularity.
Overhead SystemDerailment CoefficientLateral Force (KN)Vertical Acceleration
(m/s2)
Lateral Acceleration (m/s2)Wheel Weight Reduction RateSperling Index
VerticalLateral
I0.7773.602.082.600.783.073.56
II0.5850.601.021.820.542.052.38
Table 10. Response of trains crossing the bridge at different speeds. (“*” is displayed for any data that do not meet the specifications).
Table 10. Response of trains crossing the bridge at different speeds. (“*” is displayed for any data that do not meet the specifications).
Overhead SystemSpeed (km/h)Derailment CoefficientLateral Force (kN)Vertical Acceleration (m/s2)Lateral Acceleration (m/s2)Wheel Weight Reduction RateSperling Index
VerticalLateral
I200.7121.450.170.270.530.970.57
400.6433.080.300.880.540.981.93
600.6941.690.29*1.04*0.601.652.82
800.73*48.55*0.29*1.38*0.731.312.42
1000.81*56.06*0.31*1.98**1.07*1.732.89
II200.4918.900.090.190.380.781.32
400.5023.200.390.740.431.181.77
600.5130.960.25*1.17*0.670.921.62
800.6138.020.31*1.26*0.751.542.31
1000.8345.100.34*1.40*0.951.712.72
Table 11. The response of the overhead system at different speeds.
Table 11. The response of the overhead system at different speeds.
Overhead SystemSpeed (km/h)Vertical Deflection (mm)Lateral Displacement (mm)Vertical Acceleration (m/s2)Lateral Acceleration (m/s2)
I202.060.130.620.06
402.150.141.750.10
602.200.192.710.15
802.350.203.200.27
1002.620.16*3.88*0.41
II202.830.190.270.13
402.840.210.790.08
602.790.211.040.12
802.870.241.410.17
1002.930.261.820.21
Table 12. Maximum response in lower span with a different damping ratio.
Table 12. Maximum response in lower span with a different damping ratio.
Damping RatioAcross the Deflection (mm)Lateral Displacement (mm)Vertical Acceleration (m/s2)Lateral Acceleration (m/s2)
none6.6820.7353.1380.586
0.0256.6050.7092.2350.336
0.0506.6200.6901.8620.278
0.0756.6210.6731.6330.232
0.1006.6180.6581.4840.200
Publisher’s Note: MDPI stays neutral with regard to jurisdictional claims in published maps and institutional affiliations.

Share and Cite

MDPI and ACS Style

Fan, X.; Liu, L.; Wang, X.; Cao, J.; Cheng, W. Vibration Response Analysis of Overhead System Regarding Train-Track-Bridge Dynamic Interaction. Appl. Sci. 2022, 12, 9053. https://doi.org/10.3390/app12189053

AMA Style

Fan X, Liu L, Wang X, Cao J, Cheng W. Vibration Response Analysis of Overhead System Regarding Train-Track-Bridge Dynamic Interaction. Applied Sciences. 2022; 12(18):9053. https://doi.org/10.3390/app12189053

Chicago/Turabian Style

Fan, Xiangyan, Laijun Liu, Xiaodan Wang, Jincheng Cao, and Wenjie Cheng. 2022. "Vibration Response Analysis of Overhead System Regarding Train-Track-Bridge Dynamic Interaction" Applied Sciences 12, no. 18: 9053. https://doi.org/10.3390/app12189053

APA Style

Fan, X., Liu, L., Wang, X., Cao, J., & Cheng, W. (2022). Vibration Response Analysis of Overhead System Regarding Train-Track-Bridge Dynamic Interaction. Applied Sciences, 12(18), 9053. https://doi.org/10.3390/app12189053

Note that from the first issue of 2016, this journal uses article numbers instead of page numbers. See further details here.

Article Metrics

Back to TopTop