Abstract
Different parameters of the circular-arc, trapezoidal and equal cross-section-shaped flow channels were analyzed, and the core volume goodness factor was used for the comparison of the three different types of flow channels. During the experiment, the Reynolds number (Re) on the air side ranged from 1200 to 5100. The results showed that the overall heat transfer performance of the three channels in this paper are circular-arc, trapezoidal and equal cross-section in order from good to bad. The overall heat transfer enhancement performance of the circular-arc flow channel is the best, which is 9–26.2% and 3.6–11.8% higher than that of the equal and trapezoidal cross-section flow channels, respectively. This showed that although the divergent flow channel structure reduces the fluid velocity in the flow process, it weakens the convective heat transfer performance in the flow channel. However, this gradually decreasing cross-sectional area improves the downstream heat transfer area and reduces the pressure drop in the flow process, thus promoting the overall heat transfer performance. With the increase in the circular radius (R), both the j and f factors increase, and the highest overall heat transfer performance is obtained at R = 300 mm. The convective heat transfer coefficient increases with the decrease in the inlet height.
1. Introduction
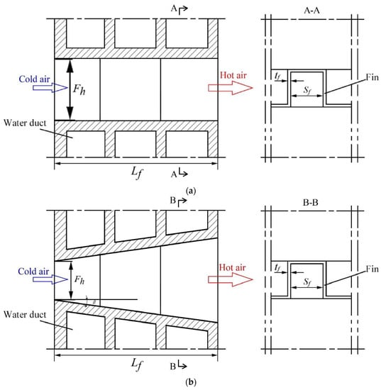
The equal cross-section flow channel heat exchange surface is widely used in plate-fin heat exchangers due to its advantages of a simple structure and low cost [1,2,3]. However, the structure of this conventional equal-section flow channel has many defects: (1) The temperature difference at the inlet is large, and the temperature difference at the outlet becomes small during the flow of the cooling medium, which limits the convective heat transfer capacity at the outlet region. (2) The increase in the flow rate of the cooling medium increases the pressure drop (ΔP), which increases in the form of a parabola as the flow rate increases. In order to improve these defects, a curved flow channel structure was proposed in this paper. The cross-sectional area that was perpendicular to the flow direction of the cooling medium changed, and the flow channel from the inlet to the outlet was a divergent structure, which is shown in Figure 1a.
Figure 1.
Curved flow channel and temperature difference distribution in a trapezoidal flow channel. (a) Curved flow channel; (b) temperature difference distribution in a trapezoidal flow channel [5].
In previous research [4,5], the heat transfer performance of the trapezoidal flow channel was mainly studied. The trapezoidal flow channel is a curved flow channel with a very representative special shape. The results showed that when the slope angle (β) in the trapezoidal flow channel was between 0° and 40°, the overall heat transfer performance of the trapezoidal flow channel was better than that of the equal cross-section flow channel. When the core volume goodness factor (ηohstdα) was introduced for evaluation, its overall heat transfer performance was 5–20% higher. At the same time, the temperature difference in the trapezoidal flow channel was linearly distributed, which improved the heat transfer effect at the exit region. The temperature difference distribution is shown in Figure 1b.
In the study of trapezoidal flow channels, research results from theory, simulations and experiments have been obtained. Falkner et al. [6] firstly solved the flow characteristics of the wedge plate structure by using the similarity solution method and obtained the velocity discrete equation of the structure. Subsequently, Hartree [7] and Stewartson [8] et al. further derived and improved Falkner et al.’s discrete equation. They found that boundary layer separation occurs when the wedge angle exceeds −0.199π. A few years later, Schlichting et al. [9] analyzed different wedge structures and studied the effects of different structures on the boundary layer. Farhanieh et al. [10] used numerical calculation methods to solve the heat transfer and flow properties of the laminar flow in the trapezoidal flow channel for different trapezoidal flow channel structures and sizes. Ghosh et al. [11] took diffusers of different shapes as research objects and optimized their design with a symmetric structure by using a genetic algorithm. They concluded that the optimum pressure recovery coefficient for different methods did not vary greatly. Chen et al. [12] simulated and analyzed the heat transfer and flow performance of ejectors with different structural parameters and concluded that the maximum entrainment ratio could be obtained by optimizing the geometric parameters. Their research results show that the optimal inclination angle of the mixing chamber is 14, and the optimal ratio of the diameter of the mixing chamber to the diameter of the main nozzle is 1.7. However, in fact, few studies on heat transfer of this kind of extruded structure are available. In application, Cur and Anselmino [13] first proposed an accelerated flow evaporator, which was a trapezoidal flow channel structure with a large inlet and a small outlet. During the flow in the evaporator, the downstream air flow rate increased, thereby improving the local convective heat transfer performance of the downstream region. However, the accelerated flow evaporator increased the pressure drop. Waltrich et al. [14,15] conducted experimental tests on accelerated evaporators with nine different structural forms. Their experimental results show that the accelerated evaporator requires less pump power than the reference evaporator in the case of low heat transfer capacity. In this case, the volume and material consumption of the accelerated flow evaporator are less than that of the direct evaporator. However, when the heat transfer capacity is large, the power consumption of the accelerated flow evaporator increases exponentially, which limits its application. This is because the pressure drop of the condensed evaporator is larger at a high Reynolds number. The diverging flow channel structure proposed in this paper can be applied to the field where the reduced flow channel structure cannot be applied.
Compared with the number of research papers on the trapezoidal flow channel, relatively fewer studies are available on the curved flow channel. Matsubara et al. [16] used the CFD method to study the heat transfer and flow performance in a curved pipe with a radius ratio of 0.92. They found that the outer part of the curved pipe has the best convective heat transfer performance by analyzing the Nusselt number at different positions. At the same time, the improvement in heat transfer is mainly due to the eddy current, which also increases the transverse convection of the secondary flow, thus improving the heat transfer characteristics. Bahaidarah et al. [17] studied the volumetric entropy generation rate in the sharp-angled corrugated flow channel. The results showed that the total entropy increase gradually increased with the increase in Re. However, when the Reynolds number ranged from 25 to 400, the total entropy increases along the flow channel direction gradually reduced. Sarkar et al. [18] studied the two-dimensional flow characteristics of corrugated flow channels at different Reynolds numbers (100 < Re < 2123). The heat transfer and flow characteristics of the structure in laminar flow and transition flow were studied. The changes of Nusselt number, friction coefficient and area goodness factor at six different amplitudes (0.05 mm, 0.075 mm and 0.1 mm) and wavelengths (0.5 mm and 1 mm) were compared. Ho et al. [19] studied the straight-line flow channel and pin-fin surface with nine different structures using experimental methods. These structures were mainly used in the condenser to enhance the film-wise condensation on the vertical plate. By comparing the sinusoidal-type and pin-type flow channel surfaces, it was found that the sinusoidal-type surface had the best heat transfer performance at the same p/l ratio (p is fin pitch and l is fin height). Wen et al. [20] used numerical simulation methods to study the overall heat transfer performance of sinusoidal-type plate-fin heat exchangers based on fluid–structure interaction analysis. Analysis of the pressure distribution indicated that the maximum pressure value was mainly at the inlet and outlet of the fin, at which the fluctuating pressure value reached a peak value. Vidal et al. [21] and Marin et al. [22] carried out CFD analysis of rectangular, hexagonal and sinusoidal flow channels by direct numerical simulation and the evaluated heat transfer and flow performance in different flow channels. However, the curved flow channel studied above is equal in area and shape perpendicular to the flow channel and is different from the flow channel forms defined in this paper.
At the same time, in the wet condition in which the phase change occurs, the condensate in the curved flow channel is more likely to flow out of the flow channel, and the condensate at this time is mainly affected by the combined action of the component of gravity on the curved surface and the tensor of the liquid film. Research on the phase change heat transfer will be explored in future research because of the limited length of this paper. Therefore, the significance of studying the curved flow channel is that the curved flow channel can improve the temperature difference distribution, improve the efficiency of heat transfer and reduce the pressure drop. In this paper, the circular-arc-shaped flow channel is taken as an example to study the curved flow channel.
2. Experimental Method
2.1. Samples
In this paper, three types of flow channels with equal, trapezoidal and circular-arc cross-sections are studied experimentally. The heat exchange units of the three flow channels are made of 6061 aluminum alloy. Figure 2 shows schematic diagrams of the real object and structural parameters of three different flow channel structures. Table 1, Table 2 and Table 3 show the specific parameters of three different flow channel structures.

Figure 2.
Schematic diagram of the structural parameters of the three flow channels. (a) Equal cross-section flow channel; (b) trapezoidal flow channel; (c) circular-arc-shaped flow channel [5].
Table 1.
Parameter table for equal cross-section flow channels.
Table 2.
Parameter table for trapezoidal flow channels.
Table 3.
Parameter table for circular-arc-shaped flow channels.
2.2. Wind Tunnel Tests
The wind tunnel test table shown in Figure 3 was used to test the heat transfer and flow performance of three different flow channels. The test table is mainly composed of an air circulation system, water circulation system, test part, control unit and data acquisition system. The Reynolds number range during the test was 1200–5100, and the Reynolds number range is mainly suitable for heavy-duty vehicle use conditions. In order to prevent the change in the Reynolds number on the water side from affecting the experimental results, the water flow was kept constant during the experiment, and the Reynolds number on the water side was constant at Re = 2432.
Figure 3.
Schematic diagram of test table [18].
Water and air acted as a working medium for heat exchange. A T-type copper-constantan thermocouple was used to measure the air temperature of the inlet and outlet in the air circulation loop, and its calibration accuracy is 0.1 °C. The numbers of thermocouples at the inlet and outlet are 12 and 36, respectively, and the locations of thermocouples inside the rectangular duct were established following the method recommended by ASHRAE [23] standard. The temperature value at the inlet is the average value obtained by 12 thermocouples, and the temperature value at the outlet is the average value measured by 36 thermocouples. Air velocity was measured by an inclined pressure gauge and pitot tube assemblies. The model of the inclined pressure gauge is YYT-2000B and its measuring range is 0–2000 Pa. The pressure drops of the two heat transfer units were measured with a U-tube manometer. The equal power heating method described in [24] was adopted to heat the hot water bath to reduce the heat balance and experiment time. The water pipe, test channel and test unit were wrapped with 10 mm heat insulation materials for insulation. The mass flow rate on the water side was measured by a pulsed flow transducer with an accuracy of 0.0025 l/s, which is a high-frequency liquid digital turbine flowmeter. The calibrated thermosensitive sensor (RTDs, pt1000 Ω) was used to measure the temperature on the water side with a measurement accuracy of ±0.05 °C.
The heat transfer and flow characteristics were evaluated using Colburn factor j (j factor) and friction factor f (f factor) according to the structural parameters of the different flow channels. In plate-fin heat exchangers, the j factor and f factor can be expressed as [25]:
The friction factor in the equal and curved cross-section flow channel is described as:
In Equation (2), um is the mean velocity in the equal and curved cross-section flow channels. dh is the hydraulic diameter of the flow channels. Lf and ρ represent the length of the flow channels and the density of the air.
In the above equations, the Nusselt number (Nu) and the Prandtl number (Pr) can be expressed as follows:
where h is the convective heat transfer coefficient, μ is dynamic viscosity and λ is heat conductivity.
The uncertainties of experimental results can be calculated by using the error evaluation method [26,27]. The expression of uncertainty is
In Equation (5), R is a function of the dependent variables vi (i = 1, 2, …, n), and δvi (i = 1, 2, …, n) represents the uncertainties of variable vi. Therefore, δR/R represents the uncertainty of the variable.
As for uncertainties of the j and f factors, they can be described as [27]
So, the uncertainties of the j and the f factors are 2.12% and 3.19%, respectively.
2.3. Data Reduction
The convective heat transfer coefficient (h) on the air side can be expressed as:
where Q is the average capacity of heat transmission for both the air side and the water side, and ΔTln is the average logarithmic temperature difference. The specific expressions for Q and ΔTln are calculated as follows:
where
h = Q/(A·ΔTln)
Q = (Qa + Qw)/2
In the above equations, is mass flow rate, ΔTa is temperature difference on the air side between the inlet and outlet and ΔTw is temperature difference on the water side between the inlet and outlet.
Reynolds number in the equal cross-section flow channel is Rem:
The flow condition of trapezoidal and circular-arc-shaped flow channels can be evaluated by the maximum Reynolds number (Remax):
In the above two equations, Rem is calculated by using mean velocity (um). Remax is calculated by using maximum velocity (uin) at the inlet of curved flow channels.
The uncertainties of the velocities um and uin calculated by using Equation (11) are about 1.54% and 2.1%, respectively.
The same flow channel form and different structural parameters were evaluated by the overall heat transfer evaluation index JF factor, and the expression formula of the JF factor was as follows [28]:
where the subscript “i” stands for different channels, for example, different circular radii R (R = 200 mm, R = 250 mm and R = 300 mm), in the circular-arc-shaped flow channel, and “0” represents the reference duct with the equal cross-section flow channel (R→∞).
3. Results and Discussion
3.1. Overall Heat Transfer Performance for Different Flow Channels
The core volume goodness factor (ηohstdα) and Estdα were proposed by Shah and Sekulić [29], and they were used to comprehensively evaluate the flow channels of three different structures, including equal, trapezoidal and circular-arc cross-sections, as shown in Figure 4.
Figure 4.
Comparison of core volume goodness factor of three flow channels.
The significance of using the core volume goodness factor is that it can compare the overall heat transfer performance for different flow channels and different heat transfer areas. ηohstdα is energy consumption per unit volume while the temperature changes by 1 K in a heat exchanger, and Estdα is the friction power consumed by the unit volume of the heat exchanger. E is the fluid pumping power per unit surface area, gc is the proportionality constant in Newton’s second law of motion, ηo is the extended surface efficiency on one fluid side of the extended surface heat exchanger and σ is the ratio of the free flow area to the frontal area. The subscript “std” is a benchmark and follows the ARI standard [30,31]. For constant Estdα, a surface having a high plot of ηohstdα vs. Estdα is characterized as the best from the viewpoint of the heat exchanger volume; that is, under the same “Estdα”, a larger value of ηohstdα means that only a small heat exchanger volume is required at the same capacity of heat transmission. During the experiment, the Reynolds number (Re) on the air side ranged from 1200 to 5100.
Figure 4 shows the variation curve of the “ηohstdα” value for three different-shaped flow channels. In the figure, the slope angle of the trapezoidal cross-section flow channel is 40°, which is because the corresponding overheat transfer performance of this angle is best. It can be seen from the figure that the “ηohstdα” values of the three structures increase with the increase in “Estdα”. Under the same “Estdα”, the circular-arc-shaped flow channel has the best overall heat transfer performance, while the equal cross-section flow channel has the worst overall heat transfer performance. The sorting of the overall heat transfer performance for the three channels is circular-arc cross-section-shaped, trapezoidal cross-section-shaped and equal cross-section-shaped. The value of ηohstdα in the circular-arc-shaped flow channel is about 9–26.2% larger than that in the equal cross-section flow channel. In fact, when Estdα is maximum, the value of the ηohstdα of the circular-arc-shaped flow channel is about 26.2% larger than that in the equal-section flow channel. The ηohstdα of the circular-arc flow channel is 3.6–11.8% better than that of the trapezoidal flow channel. This indicates that the curved flow channel has better overall heat transfer performance than that of the straight flow channel. It is true that the volume goodness factor is pretty much the same as the trapezoidal case with only a small percentage enhancement at a low Reynolds number, as shown in Figure 4. However, at high Reynolds numbers, the overall heat transfer performance of the trapezoidal flow channel was about 20% higher than that of the equal cross-section flow channel; that is to say, the trapezoidal case is mainly used at a high Reynolds number.
3.2. Performance of Heat Transfer and Flow Characteristics in Different Circular-Arc-Shaped Flow Channels
3.2.1. Heat Transfer and Flow Performance with Different Structural Parameters
Figure 5 shows the relationship between the convective heat transfer coefficient (h) and pressure drop (ΔP) with the inlet velocity (uin) corresponding to the circular-arc-shaped flow channels at different inlet heights (Fh) and circular radii (R), in which Fh = 9.5, 10.5 and 11.5 mm, R = 200 mm, 250 mm and 300 mm, Lf = 60 mm, Sf = 4.0 mm and tf = 0.4 mm.
Figure 5.
Comparison of heat transfer and flow performance of different circular-arc channels. (a) Heat transfer performance; (b) flow performance.
It can be seen from the figure that for different structure parameters of flow channels, with the head on the wind speed increases, h and ΔP increase, and the growth of the heat transfer coefficient is close to the linear growth trend. At the same time, the pressure drop is a parabolic growth pattern of growth. In the figure, #4 and #3 have the maximum and minimum convective heat transfer coefficients, while #1 and #7 have the maximum and minimum pressure drops, respectively. Through the comparison of #4, #5 and #6, it can be found that, at the same circle radius, the convective heat transfer performance gradually increases with the decrease in the inlet height; that is to say, a smaller inlet height will improve the convective heat transfer performance. In addition, it can be seen that the heat transfer coefficient curves under different structural parameters are close to each other. This shows that the influence of changing the inlet height and the radius of the circle on the heat transfer performance is relatively small.
3.2.2. Performance Analysis with Different Circular Radii
Figure 6a,b shows the variation rules of the j and f factors of three arc-shaped flow channels with different radii (R). As can be seen from the two figures, the j factor and f factor decrease gradually with the increase in the Reynolds number for any circular flow channel. At the same time, the increasing trend of the j and f factors is constant during the changing process of the circle radius from 200 mm to 250 mm and from 250 mm to 300 mm. In other words, an increase in the radius of a circle does not cause drastic changes in the j and f factors. Under the same Re condition, both the j factor and f factor increase with the increase in the circle radius, and the j factor and f factor are the largest at R = 300 mm. Therefore, the large radius circular flow channel can indeed enhance the heat transfer enhancement effect. When 1200 ≤ Re ≤ 5100, the j factor of the flow channel decreases by 13.1% and 6.8% for the structure with a circle radius of 300 mm and for the structure with a circle radius of 200 mm and 250 mm, respectively. For the f factor, the decrease is 39.7% and 21.6%, respectively.

Figure 6.
Performance analysis with different circular radii. (a) j factor; (b) f factor; (c) JF factor.
As shown in Figure 6c, the JF factor is adopted as the evaluation index of the overall enhanced heat transfer performance, and the overall heat transfer performance of the circular-arc flow channel with different circular radii is analyzed. As can be seen from the figure, with the same Reynolds number, the circular-arc flow channel with a radius of 300 mm has the best overall heat transfer enhancement capability. On the other hand, the overall heat transfer performance of the circular-arc flow channel increases with the increase in the circular radius. The main reason for this phenomenon is that as the radius of the circle increases gradually, the radius of curvature of the flow channel decreases. This reduces the cross-sectional area of the flow channel, which increases the speed of air flow and thus improves the local heat transfer coefficient in the flow channel.
3.2.3. Overall Heat Transfer Performance
Figure 7 shows the relationship between the core volume goodness factor (ηohstdα) and Estdα of the circular-arc-shaped flow channel with nine different structural parameters. As can be seen from the figure, for any circular-arc flow channel, ηohstdα increases with the increase in Estdα. Under the same Estdα, #5 (instead of #4) has the best overall heat transfer performance, while #3 has the worst overall heat transfer performance. At the same time, through the comparison of nine runner structures, it is found that under the same Estdα condition, the ηohstdα values of the four runner structures of #1, #2 and #3 remain the same. This indicates that, at a smaller radius, the change in the inlet height has less effect on the core volume goodness factor.
Figure 7.
Comparison of core volume goodness factor of different circular-arc-shaped flow channels.
3.3. Empirical Formulas for Heat Transfer and Flow Performance of Circular-Arc-Shaped Flow Channels with Different Structures
The main structural parameters of the circular-arc-shaped flow channel are Sf, Lf, tf, Fh and R. Through multiple regression analysis and the F significance test of the experimental data of nine kinds of flow channel structures, the experimental correlation formula of factor j and factor f in circular-arc-shaped flow channels was obtained, shown in Equations (17) and (18).
Figure 8 shows the comparison between experimental correlation values and experimental values of the heat transfer and flow performance in different circular-arc flow channels with different radii. The two experimental correlations can accurately predict j and f factors, and the prediction error of 90% of the experimental data can be controlled within 10%.
Figure 8.
Comparison between the fitting values of the correlation expressions of factor j and factor f and the experimental data. (a) factor j; (b) factor f.
4. Conclusions
The heat transfer and flow characteristics in the equal, trapezoidal and circular-arc-shaped flow channels were studied experimentally in this paper, and the Reynolds number on the air side ranged from 1200 to 5100. The different circular radii R (R = 200 mm, R = 250 mm and R = 300 mm) of the circular-arc-shaped flow channel were analyzed. The core volume goodness factor was used to compare the equal cross-section flow channel, trapezoidal flow channel and circular-arc-shaped flow channel. This paper can be concluded as follows:
- With the increase in the circular radius, both the j and f factors increase, and the highest overall heat transfer performance is obtained at R = 300 mm.
- Comparing the three kinds of flow channels by using the core volume goodness factor shows that the overall heat transfer performance ranks from the circular-arc-shaped flow channel, trapezoidal flow channel to equal cross-section flow channel from best to worst. The overall heat transfer performance of the circular-arc-shaped flow channel is 26.2% (maximum value) larger than that of the equal cross-section channel. The divergent structure has better thermal hydraulic performance than the tapered and straight structures.
- With the decrease in the inlet height (Fh), h in the flow channels increases gradually. The pressure drop in different flow channels increases with the increase in flow velocity in the form of a parabola.
- The empirical formulas for heat transfer and flow performance of different circular-arcs were fitted by multiple regression analysis and F significance test. The empirical formula of the j and f factors can achieve 90% accurate prediction and the error range is controlled within 10%. When processing experimental data, the maximum mean deviation and maximum absolute deviation of the j factor were 1.05% and 3.77%, respectively. The maximum mean deviation and maximum absolute deviation of the f factor were 2.8% and 4.91%, respectively.
Author Contributions
Conceptualization, H.S.; methodology, H.S.; software, S.F.; validation, S.F.; formal analysis, D.Q.; writing—original draft preparation, D.Q. All authors have read and agreed to the published version of the manuscript.
Funding
This research was funded by National Natural Science Foundation of China, Grant Numbers 51806114 and 51874187.
Institutional Review Board Statement
Not applicable.
Informed Consent Statement
Not applicable.
Data Availability Statement
The data presented in this study are available on request from the corresponding author.
Conflicts of Interest
The authors declare no conflict of interest.
References
- Vitillo, F.; Cachon, L.; Reulet, F.; Millan, P. Flow analysis of an innovative compact heat exchanger channel geometry. Int. J. Heat Fluid Flow 2016, 58, 30–39. [Google Scholar] [CrossRef]
- Zhang, X.L.; Zhang, Y.L. Experimental study on enhanced heat transfer and flow performance of magnetic nanofluids under alternating magnetic field. Int. J. Therm. Sci. 2021, 164, 106897. [Google Scholar] [CrossRef]
- Khoshvaght, A.M.; Zanganeh, A.; Akbari, M.H.; Eskandari, M. Experimental investigation on thermal-hydraulic characteristics of a tube equipped with modified vortex-generator inserts. Exp. Heat Transf. 2017, 30, 11–24. [Google Scholar] [CrossRef]
- Zhang, X.L.; Zhang, Y.L. Heat transfer and flow characteristics of Fe3O4-water nanofluids under magnetic excitation. Int. J. Therm. Sci. 2021, 163, 106826. [Google Scholar] [CrossRef]
- Zhang, X.; Zhang, Y.; Liu, Z.; Liu, J. Analysis of heat transfer and flow characteristics in typical cambered ducts. Int. J. Therm. Sci. 2020, 150, 106226. [Google Scholar] [CrossRef]
- Falkner, V.M.; Skan, S.W. Some approximate solutions of the boundary layer equations. Philos. Mag. 1931, 12, 865–896. [Google Scholar] [CrossRef]
- Hartree, D.R. On an equation occurring in Falkner and Skan’s approximate treatment of the equation of the boundary layer. Math. Proc. Camb. Philos. Soc. 1937, 33, 223–239. [Google Scholar] [CrossRef]
- Stewartson, K. Further solution of the Falkner-Skan equation. Math. Proc. Camb. Philos. Soc. 1954, 50, 454–465. [Google Scholar] [CrossRef]
- Schlichting, H. Boundary-Layer Theory; McGraw-Hill: New York, NY, USA, 1968. [Google Scholar]
- Farhanieh, B.; Sunden, B. Three-dimensional laminar flow and heat transfer in the entrance region of trapezoidal ducts. Int. J. Numer. Methods Fluids 1991, 13, 537–559. [Google Scholar] [CrossRef]
- Ghosh, S.; Pratihar, D.K.; Maiti, B.; Das, P.K. An evolutionary optimization of diffuser shapes based on CFD simulations. Int. J. Numer. Methods Fluids 2010, 63, 1147–1166. [Google Scholar] [CrossRef]
- Chen, W.X.; Chong, D.T.; Yan, J.J.; Liu, L.P. Numerical optimization on the geometrical factors of natural gas ejectors. Int. J. Therm. Sci. 2011, 50, 1554–1561. [Google Scholar] [CrossRef]
- Cur, N.O.; Anselmino, J.J. Evaporator for Home Refrigerator. U.S. Patent No. 5157941, 27 October 1992. [Google Scholar]
- Waltrich, P.J.; Barbosa, J.R.; Melo, C.; Hermes, C.L. Air-side heat transfer and pressure drop in accelerated flow evaporators. Int. Refrig. Air Cond. Conf. 2008, 7, 2311–2319. [Google Scholar] [CrossRef]
- Waltrich, P.J.; Barbosa, J.R.; Hermes, C.L.; Melo, C. Air-side heat transfer and pressure drop characteristics of accelerated flow evaporators. Int. J. Refrig. 2011, 34, 484–497. [Google Scholar] [CrossRef]
- Matsubara, K.; Miura, T. Spatially advancing turbulent flow and heat transfer in a curved channel at friction-velocity-based Reynolds number 550. Int. J. Heat Mass Transf. 2017, 108, 2433. [Google Scholar] [CrossRef]
- Bahaidarah, H.M. Entropy generation during fluid flow in sharp edge wavy channels with horizontal pitch. Adv. Mech. Eng. 2016, 8, 1–10. [Google Scholar] [CrossRef] [Green Version]
- Sarkar, M.; Paramane, S.B.; Sharma, A. Periodically fully developed heat and fluid flow characteristics in furrowed wavy channel. Heat Transf. Eng. 2016, 38, 278–288. [Google Scholar] [CrossRef]
- Ho, J.Y.; Leong, K.C.; Wong, T.N. Filmwise condensation of steam on sinusoidal pin fin arrays: Effects of fin height and fin pitch. Int. J. Heat Mass Transf. 2019, 130, 1004–1015. [Google Scholar] [CrossRef]
- Wen, J.; Li, K.; Wang, C.; Zhang, X.; Wang, S. Optimization investigation on configuration parameters of sine wavy fin in plate-fin heat exchanger based on fluid structure interaction analysis. Int. J. Heat Mass Transf. 2019, 131, 385–402. [Google Scholar] [CrossRef]
- Vidal, A.; Nagib, H.; Schlatter, P.; Vinuesa, R. Secondary flow in spanwise-periodic in-phase sinusoidal channels. J. Fluid Mech. 2018, 851, 288–316. [Google Scholar] [CrossRef]
- Marin, O.; Vinuesa, R.; Obabko, A.V.; Schlatter, P. Characterization of the secondary flow in hexagonal ducts. Phys. Fluids 2016, 28, 125101. [Google Scholar] [CrossRef]
- ASHRAE. Handbook Fundamental S1 Edition; American Society of Heating, Refrigerating and Air-Conditioning Engineers, Inc.: Atlanta, GA, USA, 1993; Chapter 13; pp. 14–15. [Google Scholar]
- Wan, R.; Wang, Y.; Kavtaradze, R.; Ji, H.; He, X. Research on the air-side thermal hydraulic performance of louvered fin and flat tube heat exchangers under low-pressure environment. Exp. Heat Transf. 2020, 33, 81–99. [Google Scholar] [CrossRef]
- Manglik, R.M.; Bergles, A.E. Heat transfer and pressure drop correlations for the rectangular offset strip fin compact heat exchanger. Exp. Therm. Fluid Sci. 1995, 10, 171–180. [Google Scholar] [CrossRef]
- Mofft, R.J. Describing the uncertainties in experiment results. Exp. Therm. Fluid Sci. 1988, 1, 3–17. [Google Scholar] [CrossRef] [Green Version]
- Zhang, X.; Wang, Y.; Li, M.; Wang, S.; Li, X. Improved flow and heat transfer characteristics for heat exchanger by using a new humped wavy fin. Appl. Therm. Eng. 2017, 124, 510–520. [Google Scholar] [CrossRef]
- Yakut, K.; Alemdaroglu, N.; Kotcioglu, I.; Celik, C. Experimental investigation of thermal resistance of a heat sink with hexagonal fins. Appl. Therm. Eng. 2006, 26, 2262–2271. [Google Scholar] [CrossRef]
- Shah, R.K.; Sekulic, D.P. Fundamentals of Heat Exchanger Design; John Wiley & Sons: Hoboken, NJ, USA, 2003. [Google Scholar]
- Zhang, Y.; Zhang, X.; Li, M.; Liu, Z. Research on heat transfer enhancement and flow characteristic of heat exchange surface in cosine style runner. Heat Mass Transf. 2019, 55, 3117–3131. [Google Scholar] [CrossRef]
- ARI Standard 410; Standard for Forced Circulation Air-Cooling and Air-Heating Coils. Air-Conditioning and Refrigeration Institute: Arlington, VA, USA, 1981.
Publisher’s Note: MDPI stays neutral with regard to jurisdictional claims in published maps and institutional affiliations. |
© 2021 by the authors. Licensee MDPI, Basel, Switzerland. This article is an open access article distributed under the terms and conditions of the Creative Commons Attribution (CC BY) license (https://creativecommons.org/licenses/by/4.0/).