Experimental/Numerical Evaluation of Steel Trapezoidal Corrugated Infill Panels with an Opening
Abstract
1. Introduction
2. Test Program
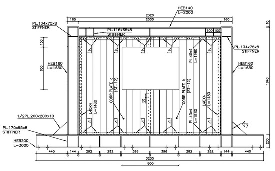
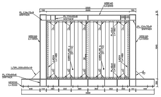
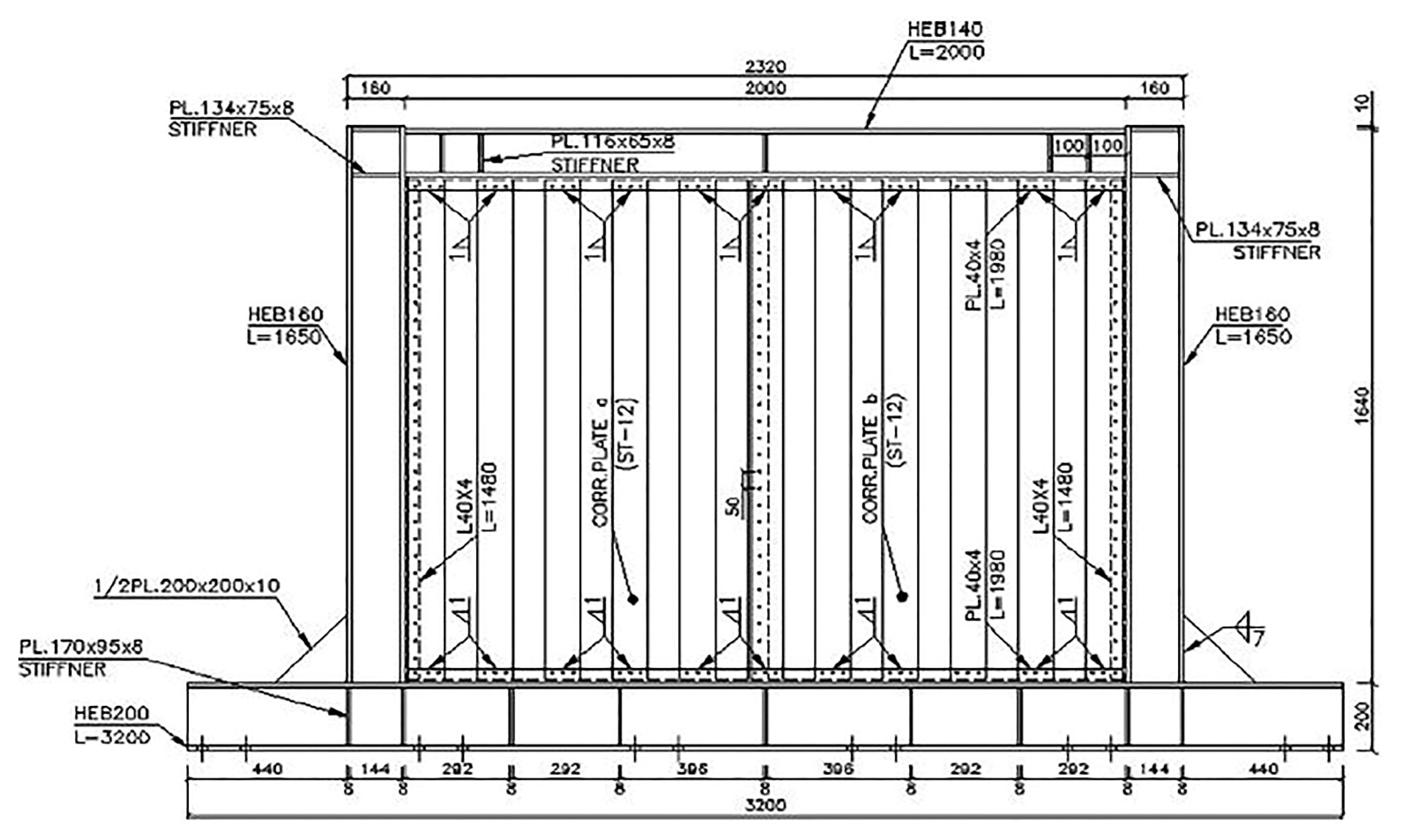
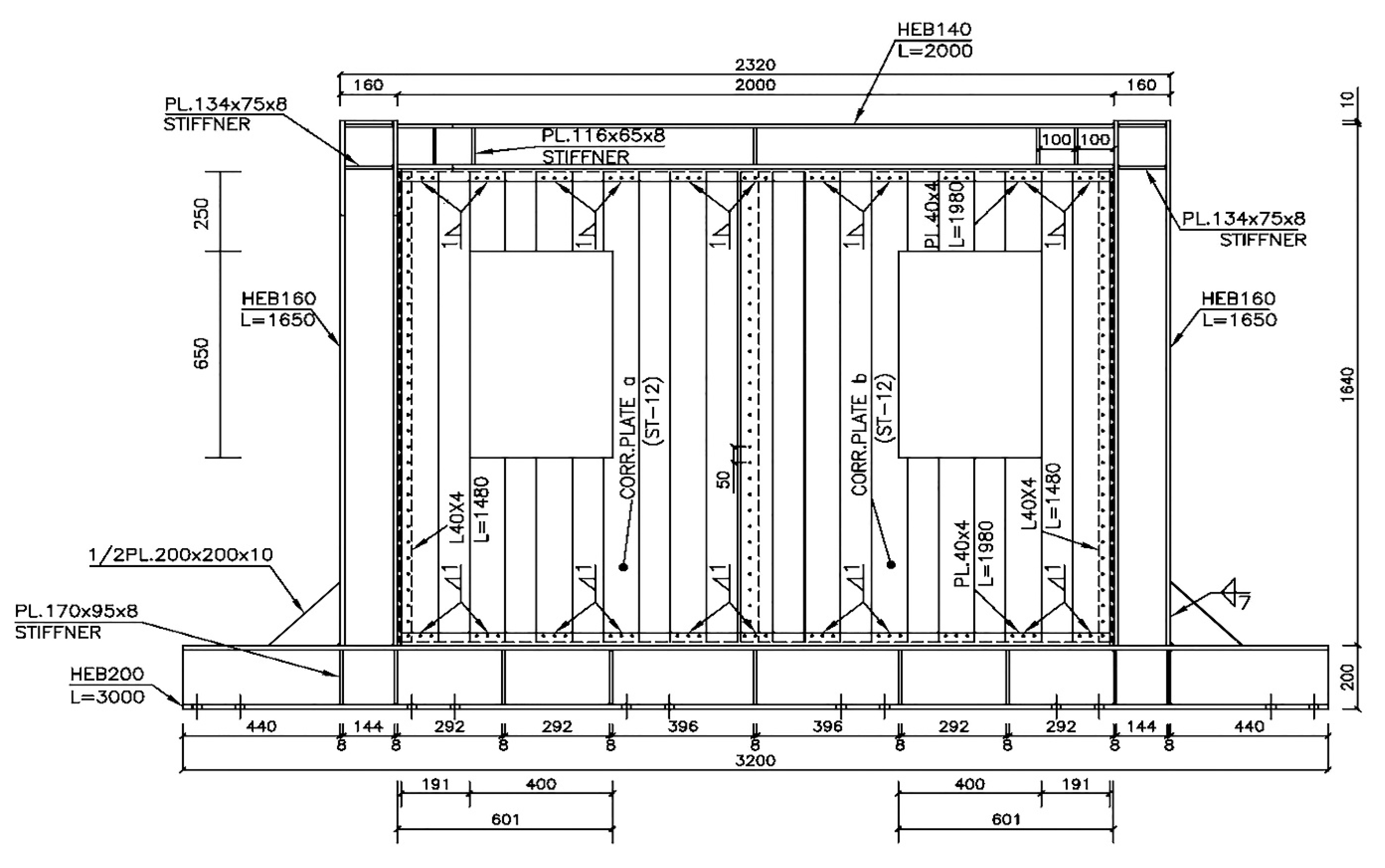
2.1. Specimens Type
2.2. Material Properties
2.3. Test Setup
2.4. Loading Program
3. Results
3.1. Behavior of Specimen 1
3.2. Behavior of Specimen 2
3.3. Strength and Stiffness
3.4. Ductility Ratio and Energy Dissipation Capacity
4. Numerical Analysis
4.1. Numerical Modeling and Verification
4.2. Parametric Analysis
5. Summary and Conclusions
- The initial stiffness, ultimate strength and ductility ratio of two tested specimens with an opening were 65%, 21% and 39% smaller compared to the specimen without an opening, respectively. The opening percentage of both specimens was equal to 18%.
- The energy dissipation capacity of the specimen without an opening was 21% larger than the specimen with one opening.
- The energy dissipation capacity of the specimen with two openings was 8% larger than the specimen with one opening. The beam yielding along with the columns yielding in the specimen with two openings occurred at larger strains compared to the specimen with one opening. Therefore, the performance of the specimen with two openings is somewhat better than the specimen with one opening, while the opening percentage is the same for both tested specimens.
- Similar to the specimen without opening, both tested specimens with opening dissipated energy by plastic deformations without any pinching in the hysteretic loops.
- The numerical results indicated that the reduction of ultimate strength and initial stiffness of CSIPs due to the existence of an opening can be compensated by the increase of the infill plate thickness.
- The numerical results specified that the ultimate strength of CSIPs with and without a stiffened opening is close to each other.
Author Contributions
Funding
Conflicts of Interest
References
- Driver, R.G.; Kulak, G.L.; Kennedy, D.J.L.; Elwi, A.E. Cyclic test of four-story steel plate shear wall. J. Struct. Eng. 1998, 124, 112–120. [Google Scholar] [CrossRef]
- Ghosh, S.; Adam, F.; Das, A. Design of steel plate shear walls considering inelastic drift demand. J. Construct. Steel Res. 2009, 65, 1431–1437. [Google Scholar] [CrossRef]
- Kang, T.H.K.; Martin, R.D.; Park, H.G.; Wilkerson, R.; Youssef, N. Tall building with steel plate shear walls subject to load reversal. Struct. Des. Tall Special Build. 2013, 22, 500–520. [Google Scholar] [CrossRef]
- Moradi, M.J.; Hariri-Ardebili, M.A. Developing a library of shear walls database and the neural network based predictive meta-model. Appl. Sci. 2019, 9, 2562. [Google Scholar] [CrossRef]
- Tong, J.Z.; Guo, Y.L. Elastic buckling behavior of steel trapezoidal corrugated shear walls with vertical stiffeners. Thin-Wall Struct. 2015, 95, 31–39. [Google Scholar] [CrossRef]
- Hosseinzadeh, L.; Mofid, M.; Aziminejad, A.; Emami, F. Elastic interactive buckling strength of corrugated steel shear wall under pure shear force. Struct. Des. Tall Special Build. 2017, 26, e1357. [Google Scholar] [CrossRef]
- Gholizadeh, M.; Yadollahi, Y. Comparing steel plate shear wall behavior with simple and corrugated plates. Appl. Mech. Mater. 2012, 147, 80–85. [Google Scholar] [CrossRef]
- Hosseinzadeh, L.; Emmami, F.; Mofid, M. Experimental investigation on the behavior of corrugated steel shear wall subjected to the different angle of trapezoidal plate. Struct. Des. Tall Special Build. 2017, 26, e1390. [Google Scholar] [CrossRef]
- Emmami, F.; Mofid, M.; Vafai, A. Experimental study on cyclic behavior of trapezoidally corrugated steel shear walls. Eng. Struct. 2013, 48, 750–762. [Google Scholar] [CrossRef]
- Vigh, L.G.; Deierlein, G.G.; Miranda, E.; Liel, A.B.; Tipping, S. Seismic performance assessment of steel corrugated shear wall system using non-linear analysis. J. Construct. Steel Res. 2013, 85, 48–59. [Google Scholar] [CrossRef]
- Shimizu, N.; Kanno, R.; Ikarashi, K.; Sato, K.; Hanya, K. Cyclic behavior of corrugated steel shear diaphragms with end failure. J. Struct. Eng. 2013, 139, 796–806. [Google Scholar] [CrossRef]
- Vigh, L.G.; Liel, A.B.; Deierlein, G.G.; Miranda, E.; Tipping, S. Component model calibration for cyclic behavior of a corrugated shear wall. Thin-Wall Struct. 2014, 75, 53–62. [Google Scholar] [CrossRef]
- Emmami, F.; Mofid, M. On the hysteretic behavior of trapezoidally corrugated steel shear walls. Struct. Des. Tall Special Build. 2014, 23, 94–104. [Google Scholar] [CrossRef]
- Farzampour, A.; Mansouri, I.; Hu, J.W. Seismic behavior investigation of the corrugated steel shear walls considering variations of corrugation geometrical characteristics. Int. J. Steel Struct. 2018, 18, 1297–1305. [Google Scholar] [CrossRef]
- Cao, Q.; Huang, J. Experimental study and numerical simulation of corrugated steel plate shear walls subjected to cyclic loads. Thin-Wall Struct. 2018, 127, 306–317. [Google Scholar] [CrossRef]
- Zhang, W.; Mahdavian, M.; Yu, C. Lateral strength and deflection of cold-formed steel shear walls using corrugated sheathing. J. Construct. Steel Res. 2018, 148, 399–408. [Google Scholar] [CrossRef]
- Tipping, S.; Stojadinovic, B. Innovative Corrugated Steel Shear Walls for Multi-Story Residential Buildings. In Proceedings of the 14th World Conference on Earthquake Engineering, Beijing, China, 12–17 October 2008. [Google Scholar]
- Topkaya, C.; Kurban, C.O. Natural periods of steel plate shear wall systems. J. Construct. Steel Res. 2009, 65, 542–551. [Google Scholar] [CrossRef]
- Berman, J.W. Seismic behavior of code designed steel plate shear walls. Eng. Struct. 2011, 33, 230–244. [Google Scholar] [CrossRef]
- Bhowmick, A.K.; Grondin, G.Y.; Driver, R.G. Estimating fundamental periods of steel plate shear walls. Eng. Struct. 2011, 33, 1883–1893. [Google Scholar] [CrossRef]
- Liu, S.; Warn, G.P. Seismic performance and sensitivity of floor isolation systems in steel plate shear wall structures. Eng. Struct. 2012, 42, 115–126. [Google Scholar] [CrossRef]
- Qu, B.; Guo, X.; Chi, H.; Pollino, M. Probabilistic evaluation of effect of column stiffness on seismic performance of steel plate shear walls. Eng. Struct. 2012, 43, 169–179. [Google Scholar] [CrossRef]
- Moradi, M.J.; Roshani, M.M.; Shabani, A.; Kioumarsi, M. Prediction of the load-bearing behavior of SPSW with rectangular opening by RBF network. Appl. Sci. 2020, 10, 1185. [Google Scholar] [CrossRef]
- Ahmad Khan, N.; Srivastava, G. Models for strength and stiffness of steel plate shear walls with openings. Structures 2020, 27, 2096–2113. [Google Scholar] [CrossRef]
- Hossienzadeh, S.A.A.; Tehranizadeh, M. Introduction of stiffened large rectangular openings in steel plate shear walls. J. Construct. Steel Res. 2012, 77, 180–192. [Google Scholar] [CrossRef]
- Alavi, E.; Nateghi, F. Experimental study on diagonally stiffened steel plate shear walls with central perforation. J. Construct. Steel Res. 2013, 89, 9–20. [Google Scholar] [CrossRef]
- Farzampour, A.; Yekrangnia, M. On the Behavior of Corrugated Steel Shear Walls with and without Opening. In Proceedings of the Second European Conference on Earthquake Engineering and Seismology, Istanbul, Turkey, 25–29 August 2014. [Google Scholar]
- Farzampour, A.; Laman, J.A.; Mofid, M. Behavior prediction of corrugated steel plate shear walls with openings. J. Construct. Steel Res. 2015, 114, 258–268. [Google Scholar] [CrossRef]
- Bahrebar, M.; Kabir, M.Z.; Zirakian, T.; Hajsadeghi, M.; Lim, J.B.P. Structural performance assessment of trapezoidally-corrugated and centrally-perforated steel plate shear walls. J. Construct. Steel Res. 2016, 122, 584–594. [Google Scholar] [CrossRef]
- James, J.; Kumar, A.S. Corrugated steel plate shear wall with opening and stiffener at opening. Int. J. Sci. Res. 2016, 5, 1205–1209. [Google Scholar]
- Shariati, M.; Faegh, S.S.; Mehrabi, P.; Bahavarnia, S.; Zandi, Y.; Rezaee Masoom, D.; Toghroli, A.; Trung, N.T.; Salih, M.N.A. Numerical study on the structural performance of corrugated low yield point steel plate shear walls with circular openings. Steel Compos. Struct. 2019, 33, 569–581. [Google Scholar]
- Bahrebar, M.; Lim, J.B.P.; Clifton, G.C.; Zirakian, T.; Shahmohammadi, A.; Hajsadeghi, M. Perforated steel plate shear walls with curved corrugated webs under cyclic loading. Structures 2020, 24, 600–609. [Google Scholar] [CrossRef]
- Standard Test Methods for Tension Testing of Metallic Materials [Metric]; ASTM E8M-04; ASTM International: West Conshohocken, PA, USA, 2008.
- Acceptance Criteria for Cyclic Racking Shear Tests for Metal-Sheathed Shear Walls with Steel Framing; AC 154; ICC Evaluation Service, Inc.: Brea, CA, USA, 2008.
- Uang, C.M. Establishing R (or Rw) and Cd factors for building seismic provisions. J. Struct. Eng. 1991, 117, 19–28. [Google Scholar] [CrossRef]
- Lemaitre, J.; Chaboche, J.L. Mechanics of Solid Materials; Cambridge University Press: Cambridge, UK, 1990. [Google Scholar]

























| Type | Young’s Modulus (GPa) | Yield Stress (MPa) | Ultimate Stress (MPa) | Percent Elongation (%) |
|---|---|---|---|---|
| Plate | 210 | 221 | 339 | 35.6 |
| Beam | 210 | 359 | 482 | 30.8 |
| Column | 210 | 311 | 411 | 34.9 |
| Specimens | Ductility Ratio (μ) | Dissipated Energy (kN·m) |
|---|---|---|
| Specimen 1 | 9.7 | 101.9 |
| Specimen 2 | 9.6 | 110.1 |
| Specimen tested by Emami et al. [9] | 16 | 122.9 |
Publisher’s Note: MDPI stays neutral with regard to jurisdictional claims in published maps and institutional affiliations. |
© 2021 by the authors. Licensee MDPI, Basel, Switzerland. This article is an open access article distributed under the terms and conditions of the Creative Commons Attribution (CC BY) license (https://creativecommons.org/licenses/by/4.0/).
Share and Cite
Gilvaee, M.Y.; Mofid, M. Experimental/Numerical Evaluation of Steel Trapezoidal Corrugated Infill Panels with an Opening. Appl. Sci. 2021, 11, 3275. https://doi.org/10.3390/app11073275
Gilvaee MY, Mofid M. Experimental/Numerical Evaluation of Steel Trapezoidal Corrugated Infill Panels with an Opening. Applied Sciences. 2021; 11(7):3275. https://doi.org/10.3390/app11073275
Chicago/Turabian StyleGilvaee, Majid Yaseri, and Massood Mofid. 2021. "Experimental/Numerical Evaluation of Steel Trapezoidal Corrugated Infill Panels with an Opening" Applied Sciences 11, no. 7: 3275. https://doi.org/10.3390/app11073275
APA StyleGilvaee, M. Y., & Mofid, M. (2021). Experimental/Numerical Evaluation of Steel Trapezoidal Corrugated Infill Panels with an Opening. Applied Sciences, 11(7), 3275. https://doi.org/10.3390/app11073275
