Strengthening Effect of the External Prestressing Method That Simulated a Deterioration Bridge
Abstract
1. Introduction
2. Experimental Program
2.1. Experimental Method and Content
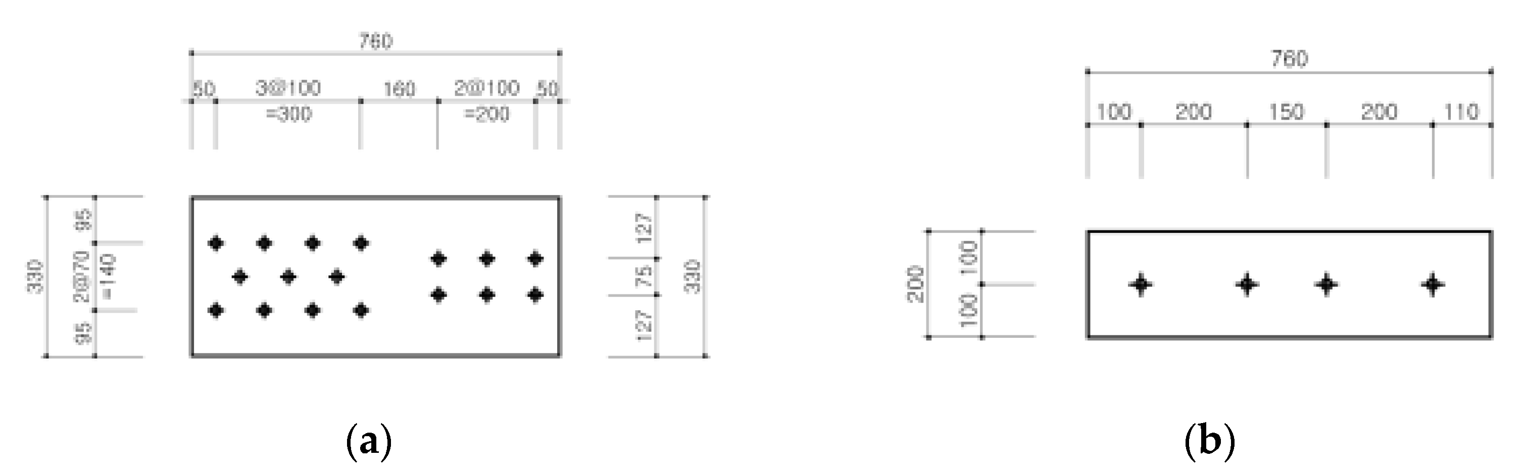
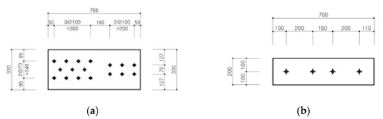
2.2. Strengthening of Specimen
2.3. Measurement and Loading Method
3. Test Result
4. Conclusions
Author Contributions
Funding
Institutional Review Board Statement
Informed Consent Statement
Data Availability Statement
Acknowledgments
Conflicts of Interest
References
- Jung, W.T.; Park, J.S.; Kang, J.Y.; Park, H.B. Strengthening effect of prestressed near-surface-mounted CFRP tendon on reinforced concrete beam. Adv. Mater. Sci. Eng. 2018, 2018, 9210827. [Google Scholar] [CrossRef]
- Park, H.B.; Park, J.S.; Kang, J.Y.; Jung, W.T. Fatigue behavior of concrete beam with prestressed near-surface mounted CFRP reinforcement according to the strength and developed length. Materials. 2019, 12, 51. [Google Scholar] [CrossRef]
- Jung, W.T.; Park, J.S.; Kang, J.Y.; Keum, M.S. Flexural behavior of concrete beam strengthened by near-surface mounted CFRP reinforcement using equivalent section model. Adv. Mater. Sci. Eng. 2017, 2017, 9180624. [Google Scholar] [CrossRef]
- Kim, S.H.; Park, S.Y.; Park, Y.H.; Jeon, S.J. Friction characteristics of post-tensioning tendons in full-scale structures. Eng. Struct. 2019, 183, 389–397. [Google Scholar] [CrossRef]
- Kim, S.H.; Park, S.Y.; Jeon, S.J. Long-term characteristics of prestressing force in post-tensioned structures measured using smart strand. Appl. Sci. 2020, 10, 4084. [Google Scholar] [CrossRef]
- Potson, R.W.; Frank, K.H.; West, J.S. Enduring strength. Civil. Eng.-ASCE 2003, 73, 58–63. [Google Scholar]
- Lee, H.Y.; Jung, W.T.; Chung, W.S. Field test of an old RC bridge before and after NSM strengthening. Comp. Struct. 2018, 202, 793–801. [Google Scholar] [CrossRef]
- Lee, H.Y.; Jung, W.T.; Chung, W.S. Flexural strengthening of reinforced concrete beams with pre-stressed near surface mounted CFRP systems. Comp. Struct. 2017, 163, 1–12. [Google Scholar] [CrossRef]
- Lee, H.Y.; Jung, W.T.; Chung, W.S. Post-tension near-surface-mounted strengthening systems of full-scale PSC girders. Constr. Build. Mater. 2017, 151, 71–82. [Google Scholar] [CrossRef]
- Lee, H.Y.; Jung, W.T.; Chung, W. Post-tension near-surface mounted strengthening system for reinforced concrete beams with changes in concrete condition. Compos. Part B Eng. 2019, 161, 514–529. [Google Scholar] [CrossRef]
- Jung, W.T.; Park, J.S.; Kang, J.Y.; Keum, M.S.; Park, Y.H. Flexural behaviour of RC beams strengthened with prestressed CFRP NSM tendon using new prestressing system. Int. J. Polym. Sci. 2017, 2017. [Google Scholar] [CrossRef]
- Herbrand, M.; Classen, M. Shear tests on continuous prestressed concrete beams with external prestressing. Struct. Concr. 2015, 16, 428–437. [Google Scholar] [CrossRef]
- Pisani, M.A. Behaviour under long-term loading of externally prestressed concrete beams. Eng. Struct. 2018, 160, 24–33. [Google Scholar] [CrossRef]
- Senthil, R.; Manisekar, R. Ultimate flexural behaviour of externally prestressed new beams and distressed beams. J. Eng. Sci. Technol. 2015, 10, 461–484. [Google Scholar]
- Kaur, H.; Singh, J. A review on external prestressing in concrete. Int. Res. J. Eng. Technol. 2017, 4, 1801–1805. [Google Scholar]
- Li, Y.Y.; Guo, B.; Liu, J. Research on reinforced concrete beam enlarged cross section method experiment and finite element simulation. Appl. Mech. Mater. 2014, 638, 208–213. [Google Scholar] [CrossRef]
- Lee, B.J.; Park, J.K.; Kim, M.Y.; Shin, H.M.; Park, C.H. Experimental study on flexural behavior of PSC I girder and the effect of external prestressing. J. Korea Concr. Inst. 2007, 19, 755–762. [Google Scholar]
- Xue, W.; Tan, Y.; Peng, F. Experimental study on damaged prestressed concrete beams using external post-tensioned tendons. ACI Struct. J. 2020, 117, 159–168. [Google Scholar] [CrossRef]
- Oh, B.H.; Kim, K.S. Ultimate behavior and load distribution characteristics of prestressed concrete girder bridge. J. KSCE 2001, 21, 761–771. [Google Scholar]
- Han, M.Y.; Park, S.K. A strengthening method of PSC girder using external prestressing and glass fiber reinforcement. J. Korea Concr. Inst. 1999, 19, 387–395. [Google Scholar]
- Naaman, A.E.; Burns, N.H.; French, C.; Gamble, W.L.; Mattock, A.H. Stresses in unbonded prestressing tendons at ultimate: Recommendation. ACI Struct. J. 2002, 99, 518–529. [Google Scholar]
- Naaman, A.E.; Aldhairi, F.M. Stress at ultimate in unbonded post-tensioning tendon: Part 1-Evaluation of the state of the art. ACI Struct. J. 1991, 85, 641–650. [Google Scholar]
- Naaman, A.E.; Aldhairi, F.M. Stress at ultimate in unbonded post-tensioning tendon: Part 2-Proposed methodology. ACI Struct. J. 1991, 88, 683–690. [Google Scholar]
- Ozkul, O.; Nassif, H.; Tanchan, P.; Harajli, M.H. Rational approach for prediction stress in beams with unbonded tendons. ACI Struct. J. 2008, 105, 338–347. [Google Scholar]
- Kim, S.H.; Park, J.S.; Jung, W.T.; Kim, T.K.; Park, H.B. Experimental study on strengthening effect analysis of a deteriorated bridge using external prestressing method. Appl. Sci. 2021, 11, 2478. [Google Scholar] [CrossRef]
- Carin, L.; Jose, A.; John, E.; Michael, E. Field measurements of prestress losses in external tendons. ACI Struct. J. 1996, 93, 596–601. [Google Scholar]
- Carin, L.; Michael, E.; David, M.; John, E. Stresses in external tendons at ultimate. ACI Struct. J. 2005, 102, 206–213. [Google Scholar]
- Aparicio, A.C.; Ramos, G.; Casas, J.R. Testing of externally prestressed concrete beams. Eng. Struct. 2002, 24, 73–84. [Google Scholar] [CrossRef]
- Russell, B.W.; Burns, N.H. Measured transfer lengths of 0.5 and 0.6 in. strands in pretensioned concrete. PCI J. 1996, 41, 44–65. [Google Scholar] [CrossRef]
- Shenoy, C.V.; Gregory, C.F. Structural tests of 27-year-old prestressed concrete bridge beams. PCI J. 1991, 36, 80–90. [Google Scholar] [CrossRef]
- Pessiki, S.; Kaczinski, M.; Wescott, H.H. Evaluation of effective prestress force in 28-year-old prestressed concrete bridge beams. PCI J. 1996, 41, 78–89. [Google Scholar] [CrossRef]
- Tabatabai, H.; Dickson, T.J. Structural evaluation of a 34-year-old precast post-tensioned concrete girder. PCI J. 1993, 38, 50–63. [Google Scholar] [CrossRef]
- Harajli, M.H.; Mabsout, M.E.; Al-Hajj, J.A. Response of externally post-tensioned continuous members. ACI Struct. J. 2002, 99, 671–680. [Google Scholar]
- Nilson, A.H. Design of Prestressed Concrete, 2nd ed.; John Wiley & Sons, Inc.: Hoboken, NJ, USA, 1987; pp. 255–277. [Google Scholar]












| No. | Name of Specimen | Concrete Compressive Strength (MPa) | Reinforcement Quantity D (mm)-ea | Strengthening Status |
|---|---|---|---|---|
| 1 | C40-D22-NS | 40 | 22-3 | - |
| 2 | C40-D19-NS | 40 | 19-3 | - |
| 3 | C20-D22-NS | 20 | 22-3 | - |
| 4 | C20-D19-NS | 20 | 19-3 | - |
| 5 | C40-D22-EP | 40 | 22-3 | External prestressing |
| 6 | C40-D19-EP | 40 | 19-3 | External prestressing |
| 7 | C20-D22-EP | 20 | 22-3 | External prestressing |
| 8 | C20-D19-EP | 20 | 19-3 | External prestressing |
| No. | Name of Specimen | Design Pe (kN) | Measured Pe(kN) | |
|---|---|---|---|---|
| T1 | T2 | |||
| 5 | C40-D22-EP | 100 | 82 (82%) | 78 (78%) |
| 6 | C40-D19-EP | 100 | 69 (69%) | 69 (69%) |
| 7 | C20-D22-EP | 50 | 32 (64%) | 28 (56%) |
| 8 | C20-D19-EP | 50 | 33 (66%) | 35 (70%) |
| No. | Name of Specimen | Crack (Pcr, kN) | Yield (Py, kN) | Failure (Pu, kN) | |||
|---|---|---|---|---|---|---|---|
| Design | Measured | Design | Measured | Design | Measured | ||
| 1 | C40-D22-NS | 52.7 | 53.9 (102%) | 162.7 | 188.9 (116%) | 182.1 | 217.1 (119%) |
| 2 | C40-D19-NS | 52.7 | 57.7 (109%) | 116.4 | 143.1 (123%) | 127.3 | 163.5 (128%) |
| 3 | C20-D22-NS | 33.9 | 30.9 (91%) | 161.0 | 184.9 (115%) | 165.6 | 200.6 (121%) |
| 4 | C20-D19-NS | 33.9 | 31.2 (92%) | 115.7 | 134.4 (116%) | 118.9 | 155.4 (131%) |
| 5 | C40-D22-EP | 97.1 | 135.3 (139%) | 272.4 | 303.1 (111%) | 250.9 | 350.2 (140%) |
| 6 | C40-D19-EP | 103.7 | 128.9 (124%) | 235.2 | 270 (115%) | 205.7 | 291.4 (142%) |
| 7 | C20-D22-EP | 55.8 | 60.7 (109%) | 241.3 | 253.6 (105%) | 247.1 | 322.3 (130%) |
| 8 | C20-D19-EP | 58.9 | 58.9 (100%) | 200.0 | 214.3(107%) | 200.2 | 244.9 (122%) |
Publisher’s Note: MDPI stays neutral with regard to jurisdictional claims in published maps and institutional affiliations. |
© 2021 by the authors. Licensee MDPI, Basel, Switzerland. This article is an open access article distributed under the terms and conditions of the Creative Commons Attribution (CC BY) license (http://creativecommons.org/licenses/by/4.0/).
Share and Cite
Kim, S.-H.; Park, J.-S.; Jung, W.-T.; Kang, J.-Y. Strengthening Effect of the External Prestressing Method That Simulated a Deterioration Bridge. Appl. Sci. 2021, 11, 2553. https://doi.org/10.3390/app11062553
Kim S-H, Park J-S, Jung W-T, Kang J-Y. Strengthening Effect of the External Prestressing Method That Simulated a Deterioration Bridge. Applied Sciences. 2021; 11(6):2553. https://doi.org/10.3390/app11062553
Chicago/Turabian StyleKim, Sang-Hyun, Jong-Sup Park, Woo-Tai Jung, and Jae-Yoon Kang. 2021. "Strengthening Effect of the External Prestressing Method That Simulated a Deterioration Bridge" Applied Sciences 11, no. 6: 2553. https://doi.org/10.3390/app11062553
APA StyleKim, S.-H., Park, J.-S., Jung, W.-T., & Kang, J.-Y. (2021). Strengthening Effect of the External Prestressing Method That Simulated a Deterioration Bridge. Applied Sciences, 11(6), 2553. https://doi.org/10.3390/app11062553
