Next Article in Journal
A Taxonomy of Technologies for Human-Centred Logistics 4.0
Next Article in Special Issue
Novel Approaches and Technologies for Heritage Buildings Conservation: Editorial
Previous Article in Journal
A Short S-Equol Exposure Has a Long-Term Inhibitory Effect on Adipogenesis in Mouse 3T3-L1 Cells
Previous Article in Special Issue
Advances in the Restoration of Buildings with LIDAR Technology and 3D Reconstruction: Forged and Vaults of the Refectory of Santo Domingo de Orihuela (16th Century)
 
 
Font Type:
Arial Georgia Verdana
Font Size:
Aa Aa Aa
Line Spacing:
Column Width:
Background:
Article

Application of Anti-Moisture Technologies in Historical Constructions from the Perspective of Sustainability

Department of Building Technology, Faculty of Civil Engineering, Slovak University of Technology in Bratislava, 810 05 Bratislava, Slovakia
*
Author to whom correspondence should be addressed.
Appl. Sci. 2021, 11(20), 9659; https://doi.org/10.3390/app11209659
Submission received: 19 September 2021 / Revised: 5 October 2021 / Accepted: 14 October 2021 / Published: 16 October 2021

Abstract

:
Restoration of landmarks hit by rising moisture is in conjunction with the concept of sustainability by a very current theme. This problem needs to be addressed from a global point of view. The article discusses individual remediation technologies (invasive and non-invasive), which were applied and long-term investigated on several historical buildings within Slovakia. It describes the costs of their implementation, efficiency rate and importance from the perspective of the preservation of the nation’s cultural heritage and from the perspective of sustainability and the possibility of using these objects. From the perspective of sustainability, it is also shown that some interventions helped with remediation of the moist structure. This step results in a positive impact on the surroundings and protection of persons located in the vicinity of these buildings. It also helps to sustainability in terms of an environmental point of view because the demolition of renewed buildings is not necessary. The Article conclusion notes the level of efficiency of individual technologies. It also provides recommendations that could also be applied to many other historic buildings.

1. Introduction

Sustainability can be considered as one of the most important aspects of our future. Under this term, it is possible to imagine a wide range of things. The example can be said that sustainability is the current topic not only in construction [1,2], but also in sectors such as agriculture [3], trade [4] and many more. From this point of view, sustainability can be evaluated as very current.
This contribution deals with the application of invasive and non-invasive remediation technologies to prevent buildings from moisture. These technologies were applied to various historical buildings within Slovakia and their anti-moisture efficiency was investigated for a long time.
Moisture in historical buildings can be considered a global problem that occurs in all climatic zones. Architectural monuments are prone mainly on the rising moisture that leads to degradation of construction structures and thus to reduction of the lifetime not only of these structures but also throughout whole historical building. There are many historical buildings in Slovakia and in the world where this correction process was neglected. As a result, these significant cultural monuments were deteriorated, and many had to be demolished. This phenomenon results in the destruction of individual construction elements, and reduction of thermal and mechanical qualities of materials [5]. Humidity also worsens the environment and can negatively affect people who live in such buildings for a long time. It is obvious that certain forms of isolation have also been dealt with in the distant past, as evidenced by the work [6] dating from before Christ.
The problem of humidity and its effect on human health has been described many times in the past. Kenwood [7] drew attention to this fact in his publication at the end of the 19th century. Unfortunately, this problem has been overlooked for many years and has not been considered as a real threat from a professional point of view. As a suitable example can be assigned research [8], which dealt with the creation of an overview of international works that dealt with the removal of rising damp. The article lists publications that were collected by 2017. The Figure 1 shows that publications with this theme began to have a rising tendency after 2005.
Publications according to multiple criteria were analyzed in this contribution. Interesting for us can be Figure 2. Here is the percentage of remediation technologies usage in listed research. In our contribution we will focus on remediation technologies (undercutting, magnetokinesis) that have had a relatively small representation in this research. We also describe the efficiency of ventilation systems that had a high percentage of representation.
With increasing time and increasing destruction, many authors started to be more intensively engaged in research aimed at remediation of historical constructions and the impact of moisture to these structures [9,10,11]. However, the problem of the research has remains inconsistency in implementing and publishing research and also different standards by which moisture and also the salination of buildings that accompanies the dampness are classified. However, in this article, the authors do not deal with this problem that is minorly mentioned in the other publication [9].
It is clear today that with the problem of rising moisture is necessary to fight. Removal of moisture can be considered a key factor of monuments protection. This step and sanitation interventions can be contributed to the extension of the durability and thus to sustainability of historical objects. Such buildings would not have to be threat to their surroundings and also for nature anymore, to which dilapidation causes a specific burden.
The question is. Are non-invasive remediation methods sufficient to remove high humidity from historical constructions? Or is it more appropriate to apply invasive remediation interventions, even at the cost of violating the original integrity of the structure? From a technological point of view, it is assumed that direct methods should be more appropriate. When applied correctly, they should provide functional insulation against rising humidity and thus extend the life of the construction. Much research is needed to draw clear conclusions. This publication can help to draw such conclusions. Subsequently, it is possible to follow up on this publication with further research. Subsequently, it would be possible to create a comprehensive idea that would provide those skilled in the art with clear information about the suitability of the application of the particular technology. The suitability and thus the positive efficiency of the selection would mean a high degree of sustainability of historical constructions from a technical, environmental, but also economic point of view.

2. Methodology of Research

Research methodology consisted of the analysis of three selected historical buildings within Slovakia. Various remediation methods that help against increasing moisture were applied to these buildings. The effectiveness of these methods was monitored for a long time and the individual results were recorded. As an Evaluation Standard was selected the Czech Standard ČSN P 73 0610 [12], which divides moisture up to 5 degrees (Table 1).
In our research, moisture was monitored within Western Slovakia. As for the above, various remediation technologies were applied to buildings. To construction no. 1 (Building of the monuments board), which has been deteriorating for years, was used undercutting technology (in combination with the injection and plates that were applied in small portions shown graphically in a particular chapter).
Building number 2 are church crypts in Nitra. Here, ventilation technology was applied, which was ensured by revitalizing the original Baroque ventilation system. As the last will be in the contribution mentioned the research of the historical structure (building no. 3), which has been applied by non-invasive technology called magnetokinesis.
The measurements were to prove the degree of efficiency of individual technologies implemented on the investigated buildings. In order to examine the moisture in situ, an attached contact meter hygroscope TESTO 616 was used.
Due to the clarity, the authors devote a separate chapter to every building. In each one, the description of the specific remediation method used for the examined structure, the materials and costs of its implementation will be stated.
Due to the objectivity of the results, several measurements were performed on three different historical buildings. These measurements were performed in situ and the measured data represent real values proving the moisture content of the structure directly in the field. Subsequently, the measured values will be given in the tables that demonstrate the efficiency of individual technologies.

3. Building No. 1—Building of the Monuments Board Káčer’s Farmstead

The history of the purpose of using the first examined building can be evaluated as very interesting and diverse. The history of the object located in the national cultural monuments of the Káčer’s farmstead from around the 17th century, can be dated to the first half of the 19th century. At this time, the first part of the current depository (the ground floor of today’s southern part) was created. This section has been treating the farmstead’s economic purposes. Later, until 1895 this building was rebuilt into the current L shape. At the beginning of the 20th century, the owner of this complex changed. With this change, the initial change in the use of the building came. New owner, Austria-Hungarian Army, changed the use for their needs. Subsequent this building had military use for almost the whole 20th century. Since 1919, the building has been used as a school of state guard for Slovakia. Needs of this usage has contributed to another rebuild, which was related to the superstructure of the entire floor. In this rebuilding, the original timbers of the roof were carefully maintained, and the building received today’s form. Shortly, it went to the possession of the Czechoslovak Army. Since 2002, the whole area of Kačer’s farmstead has been in the management of the Monuments board of the Slovak republic. However, the use of a building as a military school in the second half of the 20th century was reflected on her neglected state and appearance. Her new use therefore required a large restoration.
The problem of the building was mainly in interiors and exteriors plasters (Figure 3). These were in ramshackle state, which also restricted the use of a building.
For this reason, research consisting of humidity measurements were carried and subsequent proposal for appropriate technology to remove humidity was made. Several invasive technologies have been proposed for the given object, but in this paper, we will focus mainly on the technology of undercutting.
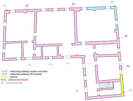
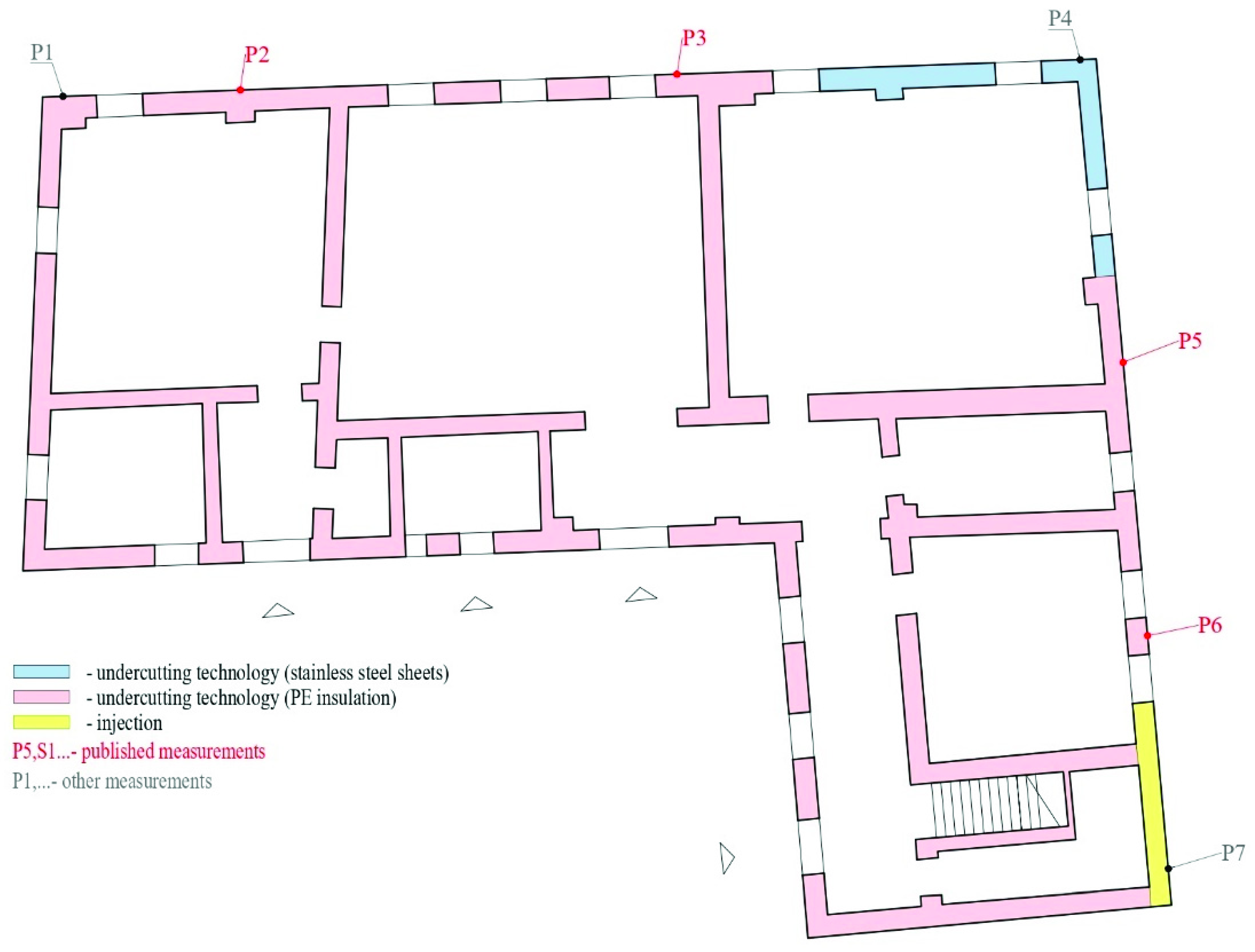
The principle of this method is to create a joint and insert an additional insulating layer. To create a new storage joint in the masonry, a rope saw fitted with diamond-tipped tips was used, which ensured a trouble-free cutting of the mixed masonry. The investigated undercutting technology was realized in successive steps and the masonry was undercut in sections of 25–30 cm. Subsequently, after each working stroke, the joint was cleaned and a foil double PE insulation 2 mm thick was inserted. Between the examined points P3 and P4, the PE insulation was replaced by stainless steel sheets. Subsequently, the joint was wedged with plastic wedges and filled with a mortar with a low expansion effect.
The level of total costs for the implementation of remediation interventions consisting in the prevention of wetting of the depositary was approximately €10,000 in the examined building. The length of the wall at which the sanitation intervention was performed was approximately 95 m.
The results before and after the application of the stroke are shown in Table 2.
Figure 4 represents the selected places where these measurements were realized.
As values state, after application of the invasive method of undercutting (in combination with other methods in parts of the building), moisture from the point of view of the ČSN P 73 0610 standards significantly decreased. Walls can be considered as surface dry. This phenomenon occurred after a relatively short time. This fact has helped to restore the building from its original state (Figure 5a) to a new state (Figure 5b). For a comparison of functionality, reference may be made to another publication [9]. Here, the authors researched several similar objects where invasive remediation interventions were applied. These interventions can be considered very successful from a technological point of view. Properly implemented, a new impermeable layer will be created that can withstand rising humidity. From the perspective of the sustainability of historical buildings, this intervention may be considered as a very positive. At all inspected points, the level of wetting dropped significantly by an average of 65% of the original moisture value, which indicates the success of remediation interventions. The building also found new use as a depositary for storing archaeological findings. New use of this building can be evaluated as one of the most positive in terms of sustainability of historical buildings.
Last but not least, it is also necessary to review the appropriateness of this technology also from the perspective of environmental sustainability as well as economic sustainability. This intervention has also signed significantly on these factors. The level of total costs for the implementation of remediation interventions consisting in the prevention of wetting of the depositary was approximately €10,000 in the examined building. However, in terms of long-term use, these costs can be considered properly invested. Even though invasive technologies are more costly, the research shows that these technologies are functional. The application has achieved complete removal of moisture and thus in the long run will not be necessary to address the repairs to which a larger amount of finance would be incurred.
In terms of environmentally sustainability, can be also considered the intervention as successful. The restoration of the monument has completely removed the environmental burden. In particular, this load was caused by the dilapidated parts of the building. Many elements corroded, others have been exposed to the weather and have completely lost their functionality and underlay the destruction. Subsequently, there was created a debris, which negatively influenced the environment and polluted it in many locations. This phenomenon has been removed by complete recovery of the object. The renewed building is positively affecting the health of workers who work within and also at the city’s residents in terms of the attractiveness of the building. Its revitalization also increased the visit rate of tourists searching historical monuments.

4. Building No. 2—Church Crypts in Nitra

Church is an early Baroque building of a rectangular floor plan and is located in the center of the building of the monastery inverted into a small square. The church building is a single aisle, the main frontage of the church has a massive side tower. Piarist Church was built between 1742 and 1789 (year of consecration) at the place of older sacral building that was demolished. Construction was unusually long, during which the construction was damaged by three fires. The towers were completed in 1769, but any documentation from construction, including church damage information apparently remained. There is also no documentation on the construction development of the church in the 19th century and the first half of the 20th century, when it can be assumed that at least maintenance work was carried out. In 1927–1928, the restoration of both towers was realized to today’s form. During World War II, the roofs were damaged by perforating wounds, which was repaired in 2002.
According to the oral presentation, costly cosmetic treatment of surfaces was realized in the church at the first half of the 1940s in which extensive marble surfaces were installed on the wall. At the same time, the church was lined with a bright cream marble early in full pledge and the aisle was lined with a brick-red marble approximately into the waist height. In the space of the presbytery, an increased cladding with a height of 1.5 m of the cream marble was formed above a skirting board. This has created an inner marble skirting board. These adjustments probably had a target to disguise plaster surfaces that have been damaged by leaning moisture. It is not excluded that at the latest during this period, the closed outputs of ventilation shafts from the crypts below the church and the entrance to the crypts was walled.
Based on expertise, marble tiles were removed in the church’s main aisle and also in presbytery.
In research, the building can be divided into two parts. The first are church crypts that were discovered during re-search. The second was the aisle of the church where has been successfully applied injection technology to altars built from bricks. The second part is not included in that publication but can also create a certain idea of the functionality of that technology.
The chapter problems were an unhealthy environment, in particular preserved human body remains and also the closure of all ventilation openings that occurred in the mid-20th century. Initial remediation interventions were mainly focused on the functionality recovery of the original Baroque ventilation system.
The moisture values measured before and after the execution of the ventilation system are shown in Table 3.
The selected measurement points represents Figure 6.
As can be observed from the values measured in the range for several years, the renewal of the original ventilation system did not help remove moisture. However, the conditions in crypt have improved where breathing conditions have improved. However, it must be pointed out that it could be due to relocation of the remains of the stored bodies out of the crypts. Even though intensive ventilation helped to improve air quality, but the problem with moisture in the walls definitively did not resolve. For comparison, the application of an invasive method (grouting) to another part of this building can be mentioned. Here, the original humidity reached values ranging from 10.1 to 14.0%. After the application of grouting, these values during the years 2010 to 2014 decreased to values from 3.6 to 4.9%. This means a high degree of drying of the masonry after the application of invasive technology. The failure of ventilation can be caused by various factors. The positive result of ventilation also depends on the active air flow, which in our climatic zone forms a significant problem due to a relatively high humidity throughout the year. Therefore, it is preferable to use this technology as a supplement to other technologies [13]. Other forms of ventilation have already been reported in the past within a practical part [14], wherein the Knapen’s channels are mentioned [15], which were spread in Slovakia, the Czech Republic, Germany, and France [14]. Such a system was realized, for example, in the Versailles Palace and also in many other buildings such as New College, Oxford and Cambridge [16]. The implementation of this system is still actual even though the functionality of the technology has been refuted. In the 60s of the 20th century several experiments that refute the functionality of such technology were carried out. There are analyses that confirm the success of ventilation systems [17,18,19], but it should be noted that it is a little different method of ventilation. Some publications have investigated efficiency and concluded that in the implementation of air ventilation channels, it is necessary to ensure natural or by ventilating equipment-controlled air flow is ensured [17]. From the perspective of economic sustainability, this intervention has been financially unpretentious, but in the long term, these spaces will require constant maintenance and repairs. Subsequently, it will be necessary to proceed with actions to ensure a dehumidification of the crypt to such level that their lifetime can be maintained. This will also have a positive environmental impact. This will also ensure sustainability from the perspective of the restriction of negative environ-mental impact.

5. Building No. 3—Historical Construction from 19th Century

The investigated object was built in the early 19th century at the site of the original building from 1715. Subsequently, the object went through several changes in 1886 and 1921. The property is a three-aisle with rectangular floor plan with a semi-circular conclusion. In close proximity to about 10 m, this building borders the same building, which was also built in the 19th Century. This building is also built of the same materials and has the same use as the researched building no. 3.
Relatively debatable wireless dehumidification technology—Magnetokinesis is applied to the investigated object. The wireless dehumidification-based device principle lies in the conversion of so-called free energy into electricity or in creating a weak electromagnetic field in the building. This field causes the movement of solid parts such as salts contained in water, but also the movement of water molecules, also called magnetokinesis. This method according to the manufacturer does not affect living organisms and also its advantage is a relatively low price. The publication [13] states that the principle of free energy conversion to electricity is questioned by scientists, it also states that some ideas of the functioning of the devices are hypothetical, and functioning was not scientifically clarified. Considerably beneficial is also an article [20], where the author refers to other authors and publications that point to malfunctions, respectively, non-demonstrated effectiveness of these technologies. The author cites some conclusions such as [12], where is mentioned that the standard applies to those remediation systems which use, and efficiency is credited and long-term verified on objects in practice. Also [21] evaluates the attitude of experts to the technology in question as considerably reserved. Last but not least, it refers to the publication [22], which evaluates that climate effects, in particular the rainfall affects the change in moisture level of the examined object more than the operation of the magnetic apparatus. Subsequently, based on the measurement analysis, the use of magnetokinesis methods for basement objects is not recommended. At the end of the above article, the author indicates that these methods cannot be recommended from those experts in the field until companies offering these methods does not submit the relevant results of measurements or expressions of prestigious, widespread publicly recognized scientific organization or technical university from the Czech Republic, respectively, from abroad, as the methods in question are not included even in ČSN P 73 0610 and are not included in the remediation methods in WTA directions. Therefore, the research is actual in terms of sustainability in the remediation of historical constructions. It can also help in further research related to the theme of wireless dehumidification.
The problem of the researched object is known for a relatively long time. This is also evidenced by this fact that the technology in question was applied to the building around 2003. The problem is mainly in a high humidity caused by a capillary rise.
On 17 July 2020 at 9:20, inspection of a historical structure was performed, where a device that protects from humidity is installed. This device works on the principles of magnetokinesis. A few assessment measurements for randomly selected sites have been accompanied by the inspection. Measurements demonstrated the surface moisture of the structure ranging from 6.9% to 15.6%. In some places the masonry showed only small level of humidity. However, this phenomenon can be attributed to the remedial plasters that are applied to a larger part of the object. However, in many places, mainly due to their age, they lost their functionality However, from the first survey could be deduced that the object is considerably damp in some places. The measured values (Figure 7) are also evidenced of this.
In the research, several measurements were acceded to several points. Table 4 represents the selected moisture values. These were realized at selected locations (Figure 6) and subsequently recorded.
Figure 8 represents the selected places where the measurements were realized.
Measurements indicate considerable moisture in some cases even waterlogging of the walls of the object. In places, where it is certainly noted that there was no residential plaster used, respectively, where it has lost its functionality the construction is showing a moisture level on the surface of the value moving at 10% and more. This suggests system malfunction. In several masonry places, high values also exhibit at a height of about 150 cm above the floor level. High values could be caused by condensation of water vapor. However, in control measurements of about 220 cm, moisture values ranged at 1.0%. We consider such values according to ČSN as a dry construction. To moisture of the object also helps rainwater gutter that is carried out by rainwater gutter pipes on final circuit of building and absorbing wells, that are clogged with sediments which results in a limitation of their functionality. It will be necessary to focus on this technology and its functionality in the long term. It is an assumption that the technology does not fulfil the purpose as even after almost two decades, the construction is still exposed to high humidity. Measurements of the neighboring building are also used to compare the effectiveness of this technology. It is adjacent to the examined object. It is built at the same time, from the same materials and also serves the same purpose. The size of this building is also identical to the examined object, but no remediation technology is applied in this building. On 16 th July 2021, comparative measurements were performed. These measurements revealed that the neighboring building showed similar moisture values. Humidity values were above the level of 10% and in some places reached up to 16.0%. These facts can be considered as another piece of evidence for comparing the functionality of wireless dehumidification technology.

6. Discussions

Based on published analyses, it can be stated that those results point to the degree of effectiveness of technologies de-scribed. Technologies subjected to examination are diverse. Their effectiveness can be also assessed as diverse and different. In direct technologies, this effectiveness can be evaluated positively. On the contrary, in indirect methods such as ventilation and magnetokinesis can be considerably doubted about their effectiveness. This argument is also supported by measured values in published tables. The research revealed that of the examined technologies, only direct methods were able to ensure significant dehumidification of the construction. However, this does not mean that some methods do not work. When using ventilation, there is also a certain decrease in humidity many times. Unfortunately, this decrease was not sufficient to dry the examined object. In contrast, there are publications referenced above by the authors that describe the positive effect of such methods. In many cases, however, forced air circulation is used. However, this was not the aim of this research. The original vents were functional here, which in the past were supposed to provide some form of dehumidification by ventilation. However, after years, even with the contribution of modern measuring methods, it proved to be insufficient.
The use of inappropriate technologies can have a negative impact on the construction as a whole. This impact will reflect on its condition from perspective of sustainability. Therefore, in renewed buildings, it is also necessary to consider both the financial and environmental sustainability. This would application of ineffective technologies not secured. It would also not contribute to sustainability in terms of technical condition of the object and its subsequent use.
However, all technologies need to be further investigated and analysed on multiple buildings. This would help to define the appropriateness and effectiveness of the proposed technologies.
This article can help to extend the knowledge of individual remediation technologies and their impact on sustainability. It will also help to extend the publications in this area.
It is necessary to continue such research in the long term and also to follow up further research, because the removal of moisture and salinity from historical constructions can be considered the most important when saving a wet building, as such an intervention will help extend the technical life of the building, but also improve the environment for people who are in such a building for a long time. However, this does not reduce the need to address the comprehensive restoration of individual historic buildings.

7. Conclusions

It is clear from the results listed that the application of additional impermeable layer as well as injecting for functional technology can be identified as a functional technology. Unfortunately, they are also implemented at the price of disrupting the original integrity of the structure, which is many times contrary to the strict understanding of the Venetian Charter. In contrast to this fact, there are non-invasive methods whose efficiency is either low or very limited. In many cases they are not able to deal with a high degree of moisture (in some cases even wetness). The values collected during the research also contribute to this statement.
We are aware that the use of direct technologies such as undercutting cannot be applied in all historical buildings but should be noted that in selected cases is this solution the most appropriate one in view of different aspects of sustainability. This solution is necessary too to save these buildings and therefore cannot be taken literally, which requires the protection of the original material in historic heritage buildings, as effective solutions to moisture-related problems would not be possible. This fact is also proved by the results of wetting measurements after the application of direct methods. They prove that these methods are necessary in selected cases and after careful consideration. It is necessary to increase communication between investors, designers, constructors, and preservationist to find optimal solutions in terms of the use of the renewed building while maintaining its historical and cultural value and simultaneously ensuring the health positive conditions for users of this building to minimize costs from the lifelong cycle of building and minimization environmental risks.

Author Contributions

Conceptualization, P.Š., J.G. and O.M.; methodology, P.Š. and O.M.; validation, P.Š. and O.M.; formal analysis, P.Š., J.G., O.M., B.C. and S.S.; investigation, P.Š. and O.M.; resources, P.Š. and O.M.; data curation, P.Š., J.G. and O.M.; writing—original draft preparation, P.Š.; writing—review and editing, P.Š., J.G., O.M., B.C. and S.S.; visualization, P.Š.; supervision, J.G. and O.M.; project administration, P.Š., J.G. and O.M.; funding acquisition, J.G. All authors have read and agreed to the published version of the manuscript.

Funding

This research was funded by VEGA, grand number 1/0511/19. This paper was created as a research work for the project VEGA N. 1/0511/19.

Institutional Review Board Statement

Not applicable.

Informed Consent Statement

Not applicable.

Data Availability Statement

Not applicable.

Conflicts of Interest

The authors declare no conflict of interest.

References

  1. Švajlenka, J.; Kozlovská, M. Houses based on wood as an ecological and sustainable housing alternative—Case study. Sustainability 2018, 10, 1502. [Google Scholar] [CrossRef] [Green Version]
  2. Svajlenka, J.; Kozlovska, M.; Spisakova, M. The benefits of modern method of construction based on wood in the context of sustainability. Int. J. Environ. Sci. Technol. 2017, 14, 1591–1602. [Google Scholar] [CrossRef]
  3. Saravia-Matus, S.; Amjath-Babu, T.S.; Aravindakshan, S.; Sieber, S.; Saravia, J.A.; Gomez y Paloma, S. Can enhancing efficiency promote the economic viability of smallholder farmers? A case of Sierra Leone. Sustainability 2021, 13, 4235. [Google Scholar] [CrossRef]
  4. Ma, Q.; Chang, C.-C.; Lin, C.-T. Detecting the crisis of supply chain management on e-commerce for sustainability using Q-technique. Sustainability 2021, 13, 9098. [Google Scholar] [CrossRef]
  5. Vitiello, V.; Castellucio, R.; Merino, M.D. Experimental research to evaluate the percentage change of thermal and mechanical performances of bricks in historical buildings due to moisture. Constr. Build. Mater. 2020, 244, 118107. [Google Scholar] [CrossRef]
  6. Vitruvius, P.M. Deset Knih o Architektuře; Preložil Otoupalík, A., Ed.; Svoboda: Prague, Czech Republic, 1979. [Google Scholar]
  7. Kenwood, H.R. Dampness in and about houses. Public Health 1892, 5, 247–250. [Google Scholar] [CrossRef]
  8. Franzoni, E. State of the art on methods for reducing rising damp in masonry. J. C. Herit. 2018, 31, S3–S9. [Google Scholar] [CrossRef]
  9. Šťastný, P.; Gašparík, J.; Makýš, O. Analysis of moisture and salinity of historical constructions before and after the application of remediations. J. Build. Eng. 2021, 41, 102785. [Google Scholar] [CrossRef]
  10. Camuffo, D. Chapter 8—Rising damp treatment and prevention. In Microclimate for Cultural Heritage, 3rd ed.; Elsevier: Amsterdam, The Netherlands, 2019; pp. 153–166. [Google Scholar]
  11. Franzoni, E.; Rirsch, E.; Paselli, Y. Which methods are suitable to assess the effectiveness of chemical injection treatments in the laboratory? J. Build. Eng. 2020, 29, 101131. [Google Scholar] [CrossRef]
  12. Hydroizolace Staveb, Sanace Vlhkého Zdiva, Základní Ustanovení. Available online: http://seznamcsn.agentura-cas.cz/Vysledky.aspx (accessed on 10 October 2021).
  13. Makýš, O. Technológia Obnovy Budov, Ochrana a Oprava Spodných a Obalových Konštrukcií; Spektrum STU: Bratislava, Slovakia, 2018; pp. 27–80. [Google Scholar]
  14. Witzany, J. Poruchy a Rekonstrukce Zděných Budov; ČKAIT: Prague, Czech Republic, 1999. [Google Scholar]
  15. Howell, J. Property: Tubes That Suck up Your Money, but Not the Damp. Available online: https://www.independent.co.uk/news/business/property-tubes-that-suck-up-your-money-but-not-the-damp-1163400.html (accessed on 30 August 2021).
  16. ProTen Services Celebrates 80 Years of Services. Available online: https://web.archive.org/web/20100524191140/http://www.protenservices.co.uk/pdf/name/27/ProTen_Services_celebrates_80_YYear_of_Service.pdf (accessed on 30 August 2021).
  17. Pazderka, J.; Hájková, E.; Jiránek, M. Underground air duct to control rising moisture in historic buildings: Improved design and its drying efficiency. Acta Polytech. 2017, 57, 331–339. [Google Scholar] [CrossRef] [Green Version]
  18. Torres, I.; de Freitas, V.P. The influence of the thickness of the walls and their properties on the treatment of rising damp in historic buildings. Constr. Build. Mat. 2010, 24, 1331–1339. [Google Scholar] [CrossRef]
  19. Torres, I.M. Wall base ventilation system to treat rising damp: The influence of the size of the channels. J. C. Herit. 2014, 15, 121–127. [Google Scholar] [CrossRef]
  20. Klečka, T. Magnetokinetické Metody Sanace Vlhkosti. Available online: https://stavba.tzb-info.cz/vlhkost-a-kondenzace-v-konstrukcich/2894-magnetokineticke-metody-sanace-vlhkosti (accessed on 30 August 2021).
  21. Vlček, M.; Klečka, T.; Kolář, K.; Kolísko, J. Sanace Vlhkého Zdiva; WTA CZ: Praha, Czech Republic, 2000. [Google Scholar]
  22. Burgetová, E. Závěry experimentálního ověřování účinnosti magnetokinetické sanační metody. In Proceedings of the 24. Konference Sanace a Rekonstrukce Staveb 2002, Prague, Czech Republic, 2002; Česká Stavební Společnost, WTA CZ: Prague, Czech Republic, 2002; pp. 123–128. [Google Scholar]
Figure 1. International papers per year [8].
Figure 1. International papers per year [8].
Applsci 11 09659 g001
Figure 2. Repair systems considered in the 46 scientific papers examined (papers investigating more than one system were counted more than one time) (CDP: Chemical Damp Proofing) [8].
Figure 2. Repair systems considered in the 46 scientific papers examined (papers investigating more than one system were counted more than one time) (CDP: Chemical Damp Proofing) [8].
Applsci 11 09659 g002
Figure 3. Facade condition before applying remediation intervention.
Figure 3. Facade condition before applying remediation intervention.
Applsci 11 09659 g003
Figure 4. Humidity measurement points (1st researched building).
Figure 4. Humidity measurement points (1st researched building).
Applsci 11 09659 g004
Figure 5. View on the state of building (a) before and (b) after recovery.
Figure 5. View on the state of building (a) before and (b) after recovery.
Applsci 11 09659 g005
Figure 6. Humidity measurement points (2nd researched building).
Figure 6. Humidity measurement points (2nd researched building).
Applsci 11 09659 g006
Figure 7. A picture representing the moisture rate of the structure.
Figure 7. A picture representing the moisture rate of the structure.
Applsci 11 09659 g007
Figure 8. Humidity measurement points on a historic construction (3rd researched building).
Figure 8. Humidity measurement points on a historic construction (3rd researched building).
Applsci 11 09659 g008
Table 1. Degree of moisture of constructions [12].
Table 1. Degree of moisture of constructions [12].
Degree of HumidityMoisture (uM) [%]
1Very low moisture<3.0
2Low moisture3.0–5.0
3Increased moisture5.0–7.5
4High moisture7.5–10
5Very high moisture (to waterlogging)>10
Table 2. Selected moisture values before and after the implementation of remediation technology no. 1.
Table 2. Selected moisture values before and after the implementation of remediation technology no. 1.
Place of MeasurementMeasuring Height from Floor [cm]Mass Moisture [%]Measuring Height from Floor [cm]Mass Moisture [%]
Date7 July 20188 November 201911 March 2020 7 July 20188 November 201911 March 2020
P23012.51.71.91508.76.56.0
P3309.23.42.11502.71.81.4
P53014.32.01.81506.02.22.2
P63010.92.02.31504.12.42.5
Table 3. Selected moisture values before and after remediation technology.
Table 3. Selected moisture values before and after remediation technology.
Place of Measurement Measuring Height from Floor [cm]Mass Moisture [%]
Date9 March 20106 October 201021 June 20115 October 201119 June 20124 December 201212 April 201330 October 201310 December 20132 July 2014
P215017.413.213.011.510.19.48.48.38.89.1
P310013.513.813.914.013.612.011.812.112.110.9
P412012.112.312.512.011.811.811.812.011.411.3
P616014.112.112.112.112.314.614.213.313.112.9
P816014.013.914.013.513.211.811.011.411.211.6
P916014.213.812.411.511.19.712.513.414.211.5
Table 4. Selected Moisture values in object with Applied Magnetokinesis Technology.
Table 4. Selected Moisture values in object with Applied Magnetokinesis Technology.
Place of MeasurementMeasuring Height from Floor [cm]Mass Moisture [%]Measuring Height from Floor [cm]Mass Moisture [%]
Date23 July 202016 July 2021 23 July 202016 July 2021
P8302.61.01501.51.5
P11308.91.11501.32.6
P153010.310.31504.71.4
P163014.712.91507.47.8
P24303.94.61501.61.4
P303016.414.21501.01.2
P31307.03.01501.51.7
P34302.23.91502.21.6
P393010.12.21501.11.1
P47308.96.81501.31.3
P53309.010.21503.12.6
Publisher’s Note: MDPI stays neutral with regard to jurisdictional claims in published maps and institutional affiliations.

Share and Cite

MDPI and ACS Style

Šťastný, P.; Gašparík, J.; Makýš, O.; Chamulová, B.; Szalayová, S. Application of Anti-Moisture Technologies in Historical Constructions from the Perspective of Sustainability. Appl. Sci. 2021, 11, 9659. https://doi.org/10.3390/app11209659

AMA Style

Šťastný P, Gašparík J, Makýš O, Chamulová B, Szalayová S. Application of Anti-Moisture Technologies in Historical Constructions from the Perspective of Sustainability. Applied Sciences. 2021; 11(20):9659. https://doi.org/10.3390/app11209659

Chicago/Turabian Style

Šťastný, Patrik, Jozef Gašparík, Oto Makýš, Barbara Chamulová, and Sylvia Szalayová. 2021. "Application of Anti-Moisture Technologies in Historical Constructions from the Perspective of Sustainability" Applied Sciences 11, no. 20: 9659. https://doi.org/10.3390/app11209659

APA Style

Šťastný, P., Gašparík, J., Makýš, O., Chamulová, B., & Szalayová, S. (2021). Application of Anti-Moisture Technologies in Historical Constructions from the Perspective of Sustainability. Applied Sciences, 11(20), 9659. https://doi.org/10.3390/app11209659

Note that from the first issue of 2016, this journal uses article numbers instead of page numbers. See further details here.

Article Metrics

Back to TopTop