Energy Transformation on Vault in Elite Artistic Gymnastics: Comparisons between Simple and Difficult Tsukahara and Yurchenko Vaults
Abstract
:1. Introduction
2. Materials and Methods
2.1. Participants
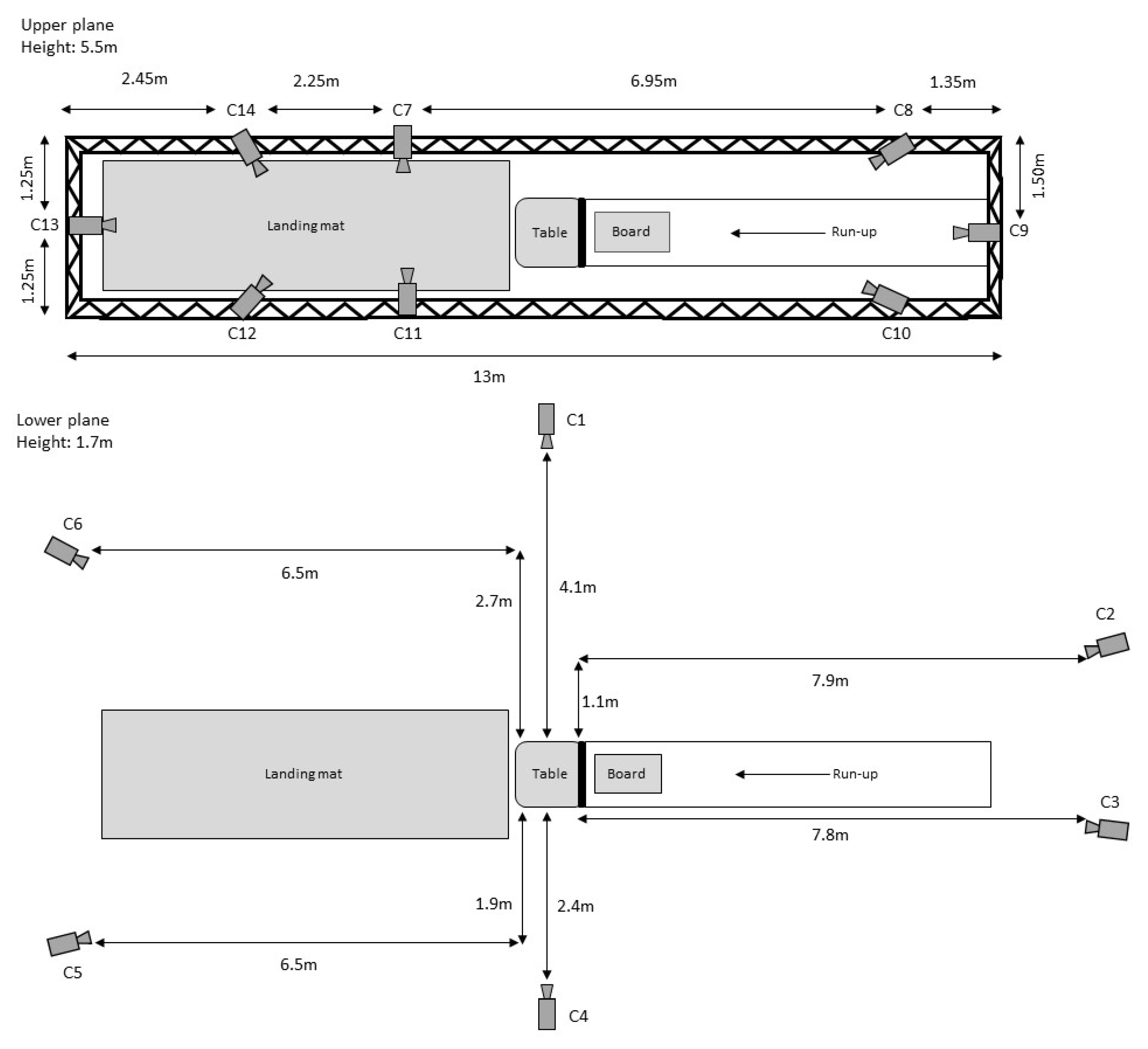
2.2. Procedures
- body mass;
- height;
- length of legs (distance from superior iliac spine to lateral malleolus;
- width of ankles (distance from lateral to medial malleolus;
- width of knee at the level of joint gap;
- width of elbows (distance from lateral to medial epicondyle);
- width of wrists (distance from radial to ulnar styloid process);
- thickness of hands in the area of metacarpal bones;
- vertical distance between centre of rotation of the shoulder joint and acromion.
2.3. Energy Calculations
Segments and Segment Properties
- Head: mid forehead (mean of ‘RFHD’ and ‘LFHD’) to ‘C7’;
- Thorax: ‘PelvisCoM’ to ‘C7’;
- Pelvis: ‘PelvisO’ (origin of pelvis coordinate system, approximately the lower edge of the pelvis in the sagittal plane) to ‘PelvisCoM’ (approximately the upper edge of the pelvis in the sagittal plane);
- L/R Humerus: shoulder joint centre to elbow joint centre;
- L/R Radius: elbow joint centre to wrist joint centre;
- L/R Hand: wrist joint centre to hand coordinate system origin (approximately the most distal point of the fingers);
- L/R Femur: hip joint centre to knee joint centre;
- L/R Tibia: knee joint centre to ankle joint centre;
- L/R Foot: ankle joint centre to foot coordinate system origin (approximately the distal end of the 5th metatarsal).
2.4. Statistical Analysis
3. Results
3.1. Energy Transformation of Tsukahara and Yurchenko Vaults
3.2. Simple vs. Difficult Yurchenko and Tsukahara Vaults
4. Discussion
4.1. Energy Flux of Tsukahara and Yurchenko Vaults
4.2. Energy Flux of Tsukahara and Yurchenko Vaults
5. Conclusions
Supplementary Materials
Author Contributions
Funding
Institutional Review Board Statement
Informed Consent Statement
Data Availability Statement
Acknowledgments
Conflicts of Interest
Appendix A
Appendix A.1. Estimate of the Segment’s Cylindrical Radius
- For femur and humerus segments: the perpendicular distance between the longitudinal axis (i.e., the z-axis provided by PIGP) and the marker on the perimeter of the segment (e.g., ‘LTHI’, ‘LUPA’).
- For head and pelvis segments: the average perpendicular distance between the longitudinal axis and multiple markers on the perimeter of the segment (i.e., ‘’RASI’/’LASI’/’RPSI’/’LPSI’ for the pelvis, and ‘RFHD’/‘LFHD’/‘RBHD’/‘RBHD’ for the head).
- For tibia and radius (forearm) segments: the mean of the distal and proximal (manually measured) joint widths.
- For hand and foot segments: the (manually measured) proximal joint width
Appendix B
Appendix B.1. Calculating Translational Velocity, Momentum, and Rotational Energy
Appendix B.2. Calculating Angular Momentum and Rotational Kinetic Energy
Appendix B.2.1. Local
Appendix B.2.2. Total
References
- FIG. Code of Points Mag (2017–2020); FIG: Lausanne, Switzerland, 2017. [Google Scholar]
- Atiković, A.; Smajlović, N. Relation between vault difficulty values and biomechanical parameters in mens artistic gymnastics. Sci. Gymn. J. 2011, 3, 91–105. [Google Scholar]
- Schärer, C.; Lehmann, T.; Naundorf, F.; Taube, W.; Hübner, K. The faster, the better? Relationships between run-up speed, the degree of difficulty (d-score), height and length of flight on vault in artistic gymnastics. PLoS ONE 2019, 14, e0213310. [Google Scholar] [CrossRef] [PubMed]
- Van der Eb, J.; Filius, M.; Rougoor, G.; Van Niel, C.; De Water, J.; Coolen, B.; De Koning, H. Optimal velocity profiles for vault. In 30th Annual International Symposium on Biomechanics in Sports; Bradshaw, E.J., Burnett, A., Hume, P.A., Eds.; ISBS: Melbourne, Australian, 2012. [Google Scholar]
- Fujihara, T. Revisting run-up velocity in gymnastics vaulting. In Proceedings of the 34th International Conference of Biomechanics in Sport, Tsukuba, Japan, 18–22 July 2016; Ae, M., Enomoto, Y., Fujii, N., Takagi, H., Eds.; ISBS: Tsukuba, Korea, 2016; pp. 593–596. [Google Scholar]
- Brehmer, S.; Naundorf, F. Age related development of run up velocity on vault. Sci. Gymn. J. 2011, 3, 19–27. [Google Scholar]
- Naundorf, F.; Brehmer, S.; Knoll, K.; Bronst, A.; Wagner, R. Development of the velocity for vault runs in artistic gymnastics for the last decade. In Proceedings of the 26th International Conference on Biomechanics in Sports (2008), Seoul, Korea, 14–18 July 2008; Kwon, Y., Shim, J., Shim, J., Shin, I., Eds.; ISBS: Seoul, Korea, 2008. [Google Scholar]
- Schärer, C.; Haller, N.; Taube, W.; Hübner, K. Physical determinants of vault performance and their age-related differences across male junior and elite top-level gymnasts. PLoS ONE 2019, 14, e0225975. [Google Scholar] [CrossRef] [PubMed]
- Karpowicz, K.; Krych, K.; Karpowicz, M.; Nowak, W.; Gronek, P. The relationship between ca repeat polymorphism of the IGF-1 gene and the structure of motor skills in young athletes. Acta Biochim. Pol. 2018, 65, 43–50. [Google Scholar] [CrossRef] [PubMed] [Green Version]
- Prassas, S.; Kwon, Y.H.; Sands, W.A. Biomechanical research in artistic gymnastics: A review. Sports Biomech. 2006, 5, 261–291. [Google Scholar] [CrossRef] [PubMed]
- Krug, J.; Knoll, K.; Köthe, T.; Zocher, H.-D. Running approach velocity and energy transformation in difficult vaults in gymnastics. In XVI International Symposium of Biomechanics in Sports; Riehle, H., Vieten, M., Eds.; ISBS: Konstanz, Germany, 1998; pp. 160–163. [Google Scholar]
- Vicon. Vicon Plug-In Gait Product Guide—Foundation Notes Revision; Vicon Motion Systems Ltd.: Oxford, UK, 2010; Volume 2.0. [Google Scholar]
- Kwon, Y.-H.; Fortney, V.L.; Shin, I.-S. 3-d analysis of yurchenko vaults performed by female gymnasts during the 1988 seoul olympic games. Int. J. Sports Biomech. 1990, 6, 157–176. [Google Scholar] [CrossRef]
- Wittenburg, J. Dynamics of Systems of Rigid Bodies (Volume 33), 2nd ed.; Springer: Berlin/Heidelberg, Germany, 2008. [Google Scholar]
- Schüler, A.; Schleichardt, A.; Fichtner, I.; Ueberschär, O. Zur analyse der winkelgeschwindigkeit von rotationsbewegungen–vergleich zweier berechnungsmethoden mit beispielen aus dem wasserspringen und weiteren sportarten. In Technologien im Leistungssport 3, Tagungsband zur 19. Frühjahrsschule am 14/15. Mai 2018; Fichtner, I., Ed.; Meyer & Meyer Sportverlag: Leipzig, Germany, 2018; pp. 89–90. [Google Scholar]
- Peraire, J.; Widnall, S. Lecture l26-3d Rigid Body Dynamics: The Inertia Tensor. Available online: https://ocw.mit.edu/courses/aeronautics-and-astronautics/16-07-dynamics-fall-2009/lecture-notes/MIT16_07F09_Lec26.pdf (accessed on 1 February 2021).
- Holm, S. A simple sequentially rejective multiple test procedure. Scand. J. Stat. 1979, 6, 65–70. [Google Scholar]
- Fritz, C.; Morris, P.; Richler, J. Effect size estimates: Current use, calculations, and interpretation. J. Exp. Psychol. Gen. 2012, 141, 2–18. [Google Scholar] [CrossRef] [PubMed] [Green Version]
- Cohen, J.W. Statistical Power Analysis for the Behavioral Sciences, 2nd ed.; Lawrence Erlbaum Associates: New York, NY, USA, 1988. [Google Scholar]
- Penitente, G.; Merni, F.; Fantozzi, S.; Perretta, N. Kinematics of the Springboard Phase in Yurchenko-Style Vaults, 25th ed.; Menzel, H.-J., Chagas, M.H., Eds.; ISBS Symposium: Ouro Preto, Brazil, 2007. [Google Scholar]
- Koperski, A.; Kochanowicz, A.; Słodkowski, C. Gymnasts’ special quickness-force abilities and the indicators of jump from a springboard. Balt. J. Health Phys. Act. 2010, 2, 139–143. [Google Scholar] [CrossRef] [Green Version]
- Motoshima, J.; Kitagawa, J.; Maeda, A. The relationship between the mechanical parameters in the take-off of a vault and the drop jump ability. Sci. Gymn. J. 2015, 3, 37–45. [Google Scholar]
- Knoll, K.; Naundorf, F.; Bronst, A.; Wagner, R.; Brehmer, S.; Lehmann, T. 3 Decades of Force Measurement on Vault in Gymnastics, Proceedings of the 32nd International Conference of Biomechanics in Sports, Johnson City, TN, USA, 12–16 July 2014; Sato, K., Sands, W.A., Mizuguchi, S., Eds.; ISBS: Johnson City, WA, USA, 2014. [Google Scholar]
- Glasheen, J.W.; McMahon, T.A. Arms are different from legs: Mechanics and energetics of human hand-running. J. Appl. Physiol. 1995, 78, 1280–1287. [Google Scholar] [CrossRef] [PubMed]
- Knoll, K. Aufbau und Erhalt des Drehimpulses bei Absprüngen und Abdrücken in technisch-akrobatischen Sportarten. Z. Für Angew. Train. 2004, 11, 72–83. [Google Scholar]
- Farana, R.; Vaverka, F. The effect of biomechanical variables on the assessment of vaulting in top-level artistic female gymnasts in world cup competitions. Acta Univ. Palacki. Olomuc. Gymn. 2012, 42, 49–57. [Google Scholar] [CrossRef] [Green Version]
- Bradshaw, E.J.; Le Rossignol, P. Anthropometric and biomechanical field measures of floor and vault ability in 8 to 14 year old talent-selected gymnasts. Sports Biomech. 2004, 3, 249–262. [Google Scholar] [CrossRef] [PubMed]
- Koh, M.; Jennings, L. Strategies in preflight for an optimal yurchenko layout vault. J. Biomech. 2007, 40, 1256–1261. [Google Scholar] [CrossRef]
- Farana, R.; Uchytil, J.; Zahradnik, D.; Jandacka, D. The “akopian” vault performed by elite male gymnasts: Which biomechanical variables are related to a judge’s score? Acta Gymnica 2015, 45, 33–40. [Google Scholar] [CrossRef] [Green Version]
- Park, C.-H.; Kim, Y.-K.; Joo, J.-Y. Comparative Analysis of Yang Hak-Seon Vault and Tsukahara, Proceedings of the 32nd International Conference of Biomechanics in Sports, Johnson City, TN, USA, 12–16 July 2014; Sato, K., Sands, W.A., Mizuguchi, S., Eds.; ISBS: Johnson City, WA, USA, 2014. [Google Scholar]
- Takei, Y. The roche vault performed by elite gymnasts: Somersaulting technique, deterministic model, and judges’ scores. J. Appl. Biomech. 2007, 23, 1–11. [Google Scholar] [CrossRef] [PubMed]
- Hedbávný, P.; Kalichová, M. Optimization of velocity characteristics of the yurchenko vault. Sci. Gymnast. J. 2015, 7, 37–49. [Google Scholar]






| Athlete. | Level | Yurchenko Layout | Tsukahara Layout | ||||||
|---|---|---|---|---|---|---|---|---|---|
| 0° | 360° | 720° | 900° | 0° | 360° | 720° | 900° | ||
| 1 | Junior n | x | x | ||||||
| 2 | Junior n | x | x | ||||||
| 3 | Junior int | x | x | x | x | x | x | ||
| 4 | Junior int | x | |||||||
| 5 | Junior n | x | x | x | |||||
| 6 | Junior n | x | x | x | |||||
| 7 | Junior int | x | x | ||||||
| 8 | Junior int | x | x | ||||||
| 9 | Junior int | x | x | ||||||
| 10 | Junior int | x | |||||||
| 11 | Junior n | x | |||||||
| 12 | Junior int | x | x | ||||||
| 13 | Junior int | x | x | ||||||
| 14 | Elite int | x | x | x | |||||
| 15 | Elite n | x | x | x | |||||
| 16 | Elite n | x | |||||||
| 17 | Elite int | x | x | x | x | ||||
| 18 | Elite int | x | x | x | |||||
| 19 | Elite int | x | x | ||||||
| 20 | Elite int | x | x | x | |||||
| Total | 5 | 4 | 7 | 4 | 5 | 11 | 10 | 2 | |
Publisher’s Note: MDPI stays neutral with regard to jurisdictional claims in published maps and institutional affiliations. |
© 2021 by the authors. Licensee MDPI, Basel, Switzerland. This article is an open access article distributed under the terms and conditions of the Creative Commons Attribution (CC BY) license (https://creativecommons.org/licenses/by/4.0/).
Share and Cite
Schärer, C.; Gross, M.; Lorenzetti, S.; Hübner, K. Energy Transformation on Vault in Elite Artistic Gymnastics: Comparisons between Simple and Difficult Tsukahara and Yurchenko Vaults. Appl. Sci. 2021, 11, 9484. https://doi.org/10.3390/app11209484
Schärer C, Gross M, Lorenzetti S, Hübner K. Energy Transformation on Vault in Elite Artistic Gymnastics: Comparisons between Simple and Difficult Tsukahara and Yurchenko Vaults. Applied Sciences. 2021; 11(20):9484. https://doi.org/10.3390/app11209484
Chicago/Turabian StyleSchärer, Christoph, Micah Gross, Silvio Lorenzetti, and Klaus Hübner. 2021. "Energy Transformation on Vault in Elite Artistic Gymnastics: Comparisons between Simple and Difficult Tsukahara and Yurchenko Vaults" Applied Sciences 11, no. 20: 9484. https://doi.org/10.3390/app11209484
APA StyleSchärer, C., Gross, M., Lorenzetti, S., & Hübner, K. (2021). Energy Transformation on Vault in Elite Artistic Gymnastics: Comparisons between Simple and Difficult Tsukahara and Yurchenko Vaults. Applied Sciences, 11(20), 9484. https://doi.org/10.3390/app11209484

