The Study of Cooling Mechanism Design for High-Power Communication Module with Experimental Verification
Abstract
1. Introduction
2. Description of Heat Dissipation System Structure and Issues
2.1. Heat Dissipation System Structure Design
2.2. Description of Issues
3. Internal Clamp Cold Plate Design
- Type I: Heat pipes 4 to 6 were curved and clamped internally to the upper copper panel, the inner and outer diameters of each curved pipe were 15 mm and 21 mm, respectively; heat pipes 1, 3, 7, 8, and 9 were straight and each pipe had a length of 99 mm as shown in Figure 4.
- Type II: Heat pipes 10 to 12 were curved and clamped internally to the upper copper panel, and the inner and outer diameters of each curved pipe were 10 mm and 21 mm, respectively; heat pipes 1 to 9 were straight, and each pipe had a length of 94 mm as shown in Figure 5.
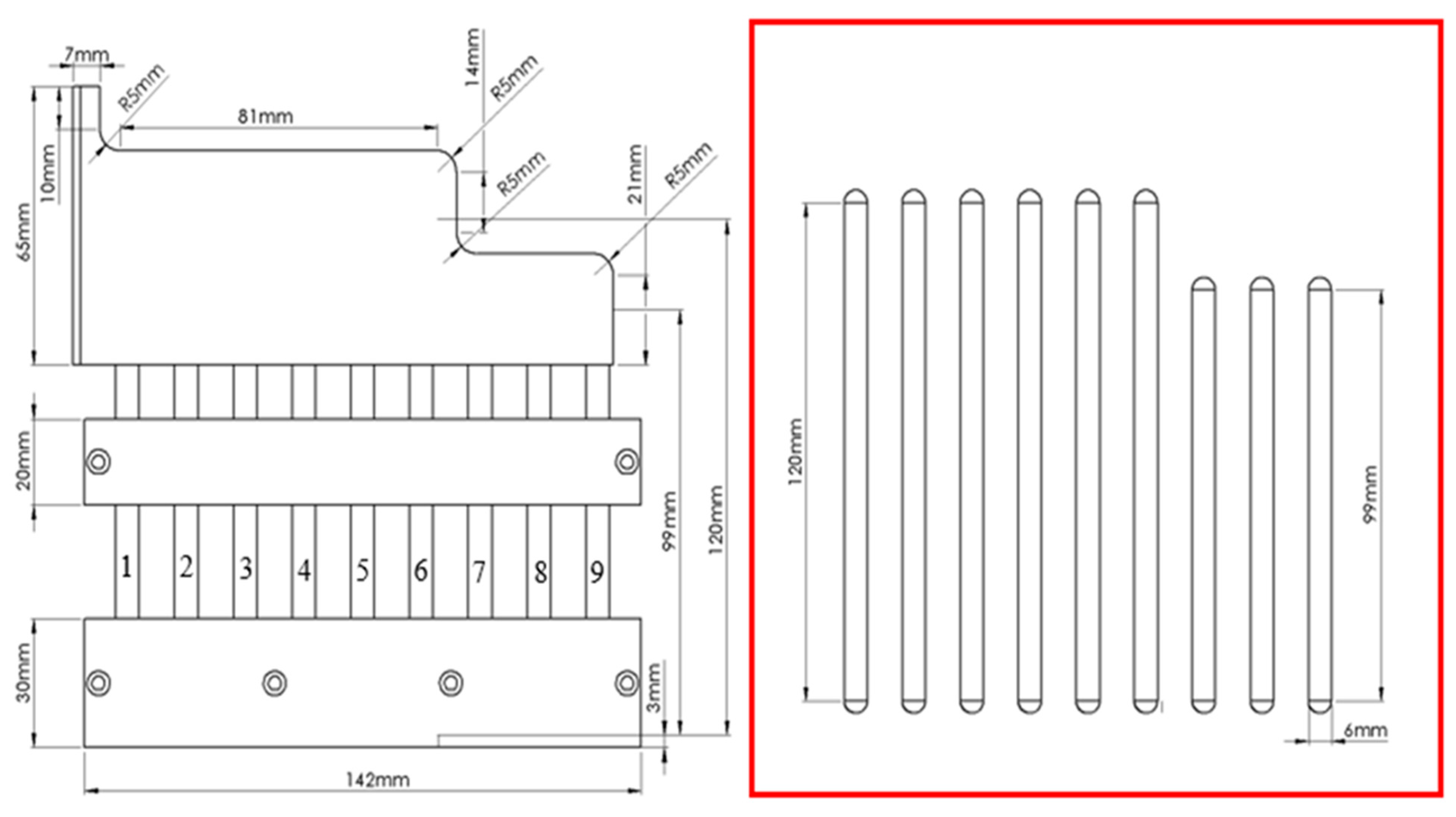
- Type III: Heat pipes 1 to 6 were straight and clamped internally to the upper copper panel, and each pipe had a length of 120 mm; heat pipes 7, 8, and 9 were straight and 99 mm in length as shown in Figure 6.
- Type IV: Heat pipes 1 to 9 were straight with lengths of 94 mm as shown in Figure 7.
4. Heat Dissipation Performance Simulation and Analysis
4.1. Simulation System Design
4.2. Simulation Parameter Settings
4.2.1. Material Selection
4.2.2. Physical Model
4.3. Simulation Result Analysis
5. Experiment Verification
5.1. Experiment Equipment
5.1.1. The Computer System:
- One computer equipped with Signal Express Software to compute the captured signal.
- Signal capture software:
5.1.2. The Measurement System:
- The system uses the DAQ data measure interface which captures, processes, and converts the signal source from the sensor (thermocouple). It primarily consists of a high-performance measurement and controller card, signal processing module, filter amplifier, and charge amplifier. Combined with Signal Express included in the graphic control software, temperature data captured by the measurement system records complete data in real time.
- The temperature data measure device has 8 channels and can simultaneously capture 8 sets of temperature data and is designed with 2 sets of compensation for internal cold points.
5.1.3. The Power Supply System:
- Power supply conditions, cooling fan 23 VDC/0.9 A, thermoelectric cooling chip 15.3 VDC/4.51 A, and heat generator 20 VDC/2.4 A.
5.1.4. The Cooling System:
5.2. Discussion
6. Conclusions
Author Contributions
Funding
Institutional Review Board Statement
Informed Consent Statement
Data Availability Statement
Conflicts of Interest
Abbreviations
| CPU | central processing unit |
| VC | vapor chambers |
| AR | aspect ratio |
| TEC | Thermo Electric Cooler |
Nomenclature
| Cross-sectional area perpendicular to heat transfer direction | |
| specific heat capacity | |
| natural convection coefficient | |
| Temperature difference of heat passing section | |
| environmental temperature | |
| Temperature | |
| thermal conductivity of material | |
| density of the material | |
| heat flux | |
| time | |
| Heat transfer path length | |
| Temperature gradient | |
| heat generation | |
| Thermal conductivity |
References
- Azar, K.; Mandrone, C.D. Effect of Pin Fin Density of the Thermal Performance of Unshrouded Pin Fin Heat Sinks. J. Electron. Packag. 1994, 116, 306–309. [Google Scholar] [CrossRef]
- Lehmann, G.L.; Wirtz, R.A. Convection from Surface Mounted Repeating Ribs in a Channel Flow. In Proceedings of the American Society of Mechanical Engineers, Winter Annual Meeting, New Orleans, LA, USA, 9–14 December 1984. ASME Paper No.84-WA/HT-88. [Google Scholar]
- Lehmann, G.L.; Wirtz, R.A. The Effect of Variations in Stream-Wise Spacing and Length on Convection from Surface Mounted Retangular Components. Trans. ASME 1985, 111, 39–47. [Google Scholar]
- Arvizu, D.E. Experimental Heat Transfer from an Array of Heated Cubical Elements on an Adiabatic Channel Wall. Ph.D. Thesis, Department of Mechanical Engineering, Stanford University, Stanford, CA, USA, 1981. [Google Scholar]
- Lin, S.-C.; Chuang, F.-S.; Chou, C.-A. Experimental study of the heat sink assembly with oblique straight fins. Exp. Therm. Fluid Sci. 2005, 29, 591–600. [Google Scholar] [CrossRef]
- Khan, W.A.; Culham, J.R.; Yovanovich, M.M. Performance of Shrouded Pin-Fin Heat Sinks for Electronic Cooling. J. Thermophys. Heat Transf. 2006, 20, 408–414. [Google Scholar] [CrossRef]
- Yang, K.; Chu, W.; Chen, I.; Wang, C. Experimental Investigations on Airside Performance of Heat Sinks Having Pin Fin Configurations. In Proceedings of the Twenty-Third Annual IEEE Semiconductor Thermal Measurement and Management Symposium, San Jose, CA, USA, 18–22 March 2007; pp. 208–212. [Google Scholar]
- Oh, Y.W.; Choi, Y.S.; Ha, M.Y.; Min, J.K. A numerical study on the buoyancy effect around slanted-pin fins mounted on a vertical plate (Part-I: Laminar natural convection). Int. J. Mass Transf. 2019, 132, 731–744. [Google Scholar] [CrossRef]
- Elnaggar, M.H.A.; Edwan, E. Heat Pipes for Computer Cooling Applications. In Electronics Cooling; Intech Open Science: London, UK, 2016; Chapter 4; pp. 52–73. [Google Scholar] [CrossRef]
- Luo, Q.; Guan, Z.; Mao, Y.; Xiao, W.; Zeng, W. Research on Flat Heat Pipes Used in the Heat Dissipation of Laptop. China Steel Focus 2021, 5, 33–34. [Google Scholar]
- Kim, K.-S.; Won, M.-H.; Kim, J.-W.; Back, B.J. Heat pipe cooling technology for desktop PC CPU. Appl. Therm. Eng. 2003, 23, 1137–1144. [Google Scholar] [CrossRef]
- Mansouri, N.; Zaghlol, A.; Weasner, C. Characterization of an Embedded Heat Pipe Heat Sink for Multiple Heat sources for power electronics applications. In Proceedings of the 18th IEEE Intersociety Conference on Thermal and Thermomechanical Phe-nomena in Electronic Systems, Las Vegas, NV, USA, 28–31 May 2019. No. 675. [Google Scholar]
- Wrobel, R.; Hussein, A. A Feasibility Study of Additively Manufactured Heat Guides for Enhanced Heat Transfer in Electrical Machines. IEEE Trans. Ind. Appl. 2020, 56, 205–215. [Google Scholar] [CrossRef]
- Nakkaew, S.; Chitipalungsri, T.; SeonAhn, H.; Jerng, D.; Asirvatham, L.G.; SelimDalkılıç, A.; Mahian, O.; Wongwises, S. Application of the heat pipe to enhance the performance of the vapor compression refrigeration system. Case Stud. Therm. Eng. 2019, 15. [Google Scholar] [CrossRef]
- Sun, H.; Lin, B.; Lin, Z.; Zhu, Y. Experimental study on a novel flat heat pipe heating system integrated with phase change material and thermoelectric unit. Energy 2019, 189, 116181. [Google Scholar] [CrossRef]
- Zhang, T.; Yan, Z.W.; Xiao, L.; Fu, H.D.; Pei, G.; Jic, J. Experimental, study and design sensitivity analysis of a heat pipe photovoltaic/thermal system. Appl. Therm. Eng. 2019, 162, 114318. [Google Scholar] [CrossRef]
- Siricharoenpanich, A.; Wiriyasart, S.; Srichat, A.; Naphon, P. Thermal management system of CPU cooling with a novel short heat pipe cooling system. Case Stud. Therm. Eng. 2019, 15, 100545. [Google Scholar] [CrossRef]
- Kang, S.W.; Tsai, M.C. Development and Application of Heat Pipe and Vapor Chamber Heat Spreader. J. Ind. Mater. 2011, 293, 111–118. [Google Scholar]
- Mansouri, N.; Zaghlol, A.; Weasner, C. Force Convection Performance of the Heat Sink with Embedded Heat Pipes Comparing Two Embedding Technologies for Heat Pipes. In Proceedings of the 2020 19th IEEE Intersociety Conference on Thermal and Thermomechanical Phenomena in Electronic Systems (ITherm), Orlando, FL, USA, 21–23 July 2020. [Google Scholar]





























| Item | Element | Spec. Heat | Density | Thermal Conductivity |
|---|---|---|---|---|
| a | Upper Heat Transfer Panel (Copper C1100) | 386 | 8940 | 391.1 |
| b | Middle Heat Transfer Panel (Aluminum 6061-T4) | 872 | 2700 | 247 |
| c | Lower Heat Transfer Panel (Copper C1100) | 386 | 8940 | 391.1 |
| d | Direct Heat Pipe (Oxygen-free copper C1020) | 385 | 8940 | 20,000 |
| e | Curved Heat Pipe (Oxygen-free copper C1020) | 385 | 8940 | 16,000 |
| Type I | Type II | Type III | Type IV | |
|---|---|---|---|---|
| Max Temperature | 90.1 °C | 88.6 °C | 94.2 °C | 94.5 °C |
| Min Temperature | 87.2 °C | 85.9 °C | 90.9 °C | 90.5 °C |
| Item | Hardware | Manufacturer | Type Specification |
|---|---|---|---|
| 1 | IPC-610-H | ADVANTECH | Industrial Computer P4–2.4 GHz, 2 G RAM |
| 2 | NI cDAQ-9178 | National Instruments | High performance data streams:7, Timing resolution:12.5 ns |
| 3 | NI 9212 | National Instruments | 8 channels, 2 internal cold-junction compensation channels |
| 4 | Thermocouple | Thermocouple Technology | K-Type |
| 5 | Power Supply | Topward 6303 A | DC 30 V, 3 A |
| 6 | Power Supply | Gwinstek SPS-1820 | DC 18 V,20 A |
| 7 | Thermo Electric Cooler | KRYOTHERM Drift-0.6 | Vmax = 24.6 V, Imax = 15.1 A, Qmax = 229.3 Watt |
| 8 | FAN | Symbang D17251V24HB | DC 24 V, 0.87 A, 3400 RPM |
| Type I | Type II | |||||||
|---|---|---|---|---|---|---|---|---|
| Temperature | Point 1 | Point 2 | Point 3 | Point 4 | Point 1 | Point 2 | Point 3 | Point 4 |
| No active cooling which in 3600 s | 79.6 °C | 72.0 °C | 81.7 °C | 83.5 °C | 76.5 °C | 76.3 °C | 79.2 °C | 75.3 °C |
| Active cooling which in 5400 s | 47.2 °C | 46.1 °C | 49.6 °C | 50.6 °C | 43.8 °C | 44.2 °C | 45.8 °C | 43.4 °C |
| Type I | Type II | |||||||
|---|---|---|---|---|---|---|---|---|
| Temperature | Point 5 | Point 6 | Point 7 | Point 8 | Point 5 | Point 6 | Point 7 | Point 8 |
| No active cooling which in 3600 s | 90.1 °C | 89.4 °C | 91.3 °C | 90.9 °C | 90.2 °C | 88.3 °C | 90.2 °C | 89.6 °C |
| Active cooling which in 5400 s | 56.2 °C | 55.7 °C | 57.7 °C | 57.4 °C | 55.1 °C | 54.0 °C | 56.0 °C | 55.4 °C |
| Type I | Type II | |||||||
|---|---|---|---|---|---|---|---|---|
| Temperature | Point 1 | Point 2 | Point 3 | Point 4 | Point 1 | Point 2 | Point 3 | Point 4 |
| Active cooling which in 3600 s | 46.7 °C | 46.2 °C | 48.7 °C | 50.0 °C | 42.2 °C | 42.7 °C | 44.4°C | 41.9 °C |
| Type I | Type II | |||||||
|---|---|---|---|---|---|---|---|---|
| Temperature | Point 5 | Point 6 | Point 7 | Point 8 | Point 5 | Point 6 | Point 7 | Point 8 |
| Active cooling which in 3600 s | 55.7 °C | 55.2 °C | 57.2 °C | 56.9 °C | 54.0 °C | 52.4 °C | 54.9 °C | 54.6 °C |
Publisher’s Note: MDPI stays neutral with regard to jurisdictional claims in published maps and institutional affiliations. |
© 2021 by the authors. Licensee MDPI, Basel, Switzerland. This article is an open access article distributed under the terms and conditions of the Creative Commons Attribution (CC BY) license (https://creativecommons.org/licenses/by/4.0/).
Share and Cite
Yu, T.-P.; Lee, Y.-L.; Li, Y.-W.; Mao, S.-W. The Study of Cooling Mechanism Design for High-Power Communication Module with Experimental Verification. Appl. Sci. 2021, 11, 5188. https://doi.org/10.3390/app11115188
Yu T-P, Lee Y-L, Li Y-W, Mao S-W. The Study of Cooling Mechanism Design for High-Power Communication Module with Experimental Verification. Applied Sciences. 2021; 11(11):5188. https://doi.org/10.3390/app11115188
Chicago/Turabian StyleYu, Tsu-Ping, Yung-Lung Lee, Ya-We Li, and Shih-Wei Mao. 2021. "The Study of Cooling Mechanism Design for High-Power Communication Module with Experimental Verification" Applied Sciences 11, no. 11: 5188. https://doi.org/10.3390/app11115188
APA StyleYu, T.-P., Lee, Y.-L., Li, Y.-W., & Mao, S.-W. (2021). The Study of Cooling Mechanism Design for High-Power Communication Module with Experimental Verification. Applied Sciences, 11(11), 5188. https://doi.org/10.3390/app11115188
