Abstract
The building sector is one of the crucial stakeholders in the global energy and environmental scenario. Life cycle assessment (LCA) is a tool widely used to evaluate the environmental performance of buildings, materials and activities. Saudi Arabia has a rapidly growing construction sector with over $1 Trillion of ongoing projects. The housing sector, annually needing over 2.32 million new residential units in coming years, is yet to entertain environmental performance of buildings in its list of priorities. The present work undertakes a LCA study of a three-bedroom modern villa located in Dhahran. Providing the structural details of the villa, an account of the 18 main construction materials in terms of quantity and application has been produced. Embodied energy of these materials has been estimated adopting ‘cradle-to-gate’ approach. Environmental impacts of the materials have been modeled with the help of SimaPro software. The results suggest that concrete accounts for more than 43% of the total embodied energy of the house and is also the predominant material in terms of the overall environmental impacts. Steel is the second most prominent material both in terms of quantity and embodied energy.
1. Introduction
The world faces stringent environmental challenges of which global warming is the most significant. Over the last century, the global atmospheric temperature has grown by 0.5 °C due to an increased concentration of greenhouse gases (GHG) [1]. Forecasts suggest that unless a serious collective effort is made at the global level, the average atmospheric temperature is expected to further rise by as much as 6 °C by the end of this century [2]. The rise in sea level due to the melting of glaciers is one of the most prominent implications of global warming. Estimates suggest that Antarctica is now annually losing around 160 billion tonnes of ice to the ocean, which is twice previous findings [3]. Climate change as a result of global warming is resulting into wide ranging problems such as seasonal disorder, a pattern of intense and more frequent weather related events such as floods, droughts, storms, heat waves and forest fires. It has been reported that since the advent of the 20th century natural disasters such as floods, storms, earthquakes, bushfires have resulted in an estimated loss of nearly 8 Million lives and over $7 Trillion of economic loss [4,5]. Future projections suggest that by the year 2060 more than one Billion people around the world might be living in areas at risk of devastating flooding due to climate change [6]. The year 2016 was recorded as the warmest year on record and the first six months were the planet’s warmest half-year since records began in 1880 [7,8,9]. The average atmospheric temperature in 2016 was recorded to be 1 °C warmer than in the middle of the 20th century and 1.3 °C warmer than in the late 19th century. Also 2016 was the 3rd year in row to set a new record for atmospheric temperature [10]. Realizing the need for a paradigm shift in human activities contributing to global warming, countries across the world are placing an ever greater emphasis on sustainable development. In this respect, through the Paris Agreement, 195 countries have adopted the first-ever universally legally binding global climate deal to avoid dangerous climate change by limiting global warming to well below 2 °C [8].
Buildings, accounting for over 40% of energy use and more than one third of the total GHG emissions at the global level, play a critical role in the global energy and environmental scenario [11,12,13,14,15]. A building consumes energy in its entire life i.e., from construction to decommissioning. This use of energy during a building’s life cycle is direct as well as indirect. The direct use of energy encompasses construction, operation, maintenance, renovation, and demolition of a building; whereas the indirect use of energy is related to the production of materials used in construction and installation of equipment [16,17]. The operational phase of buildings is the most significant in terms of life cycle energy consumption. The use of energy in the operational phase has been reported to vary between 40% and 90% depending on various factors including climatic conditions and user behavior [18,19]. For example, in China, residential and office buildings have been reported to be respectively consuming 55% and 78% of their total life cycle energy during their operations [18]. In another case study the operational phase has been reported to be respectively representing 73% and 64% of the life cycle energy and CO2 emissions [20]. A study in Australia reports the operation of residential buildings to be responsible for 65–90% of the total life cycle energy consumption [19]. In Saudi Arabia, the operational phase of buildings account for almost 80% of the total electricity consumption at the national level [21]. Estimates suggest that since the 1970s the worldwide rate of growth of carbon dioxide (CO2) emissions has grown at an annual rate of 2.5% and 1.7% for commercial and residential buildings respectively [22,23]. The buildings sector is also responsible for significant non-CO2 GHG emissions such as halocarbons, CFCs, and hydrofluorocarbons (HFCs). It is also estimated that, in a business as usual scenario, GHG emissions from buildings are likely to more than double in the next 20 years. It is therefore evident that if the desired targets for GHG emissions reductions are to be met, emissions from the building sector need to be greatly reduced. It is vital that, while adding to the overall stock of buildings, the impacts on climate change during the entire life cycle of buildings are mitigated. The building sector has the greatest potential for reducing GHG emissions in comparison to other major emitting sectors. Estimates suggest that with the reliable and commercially available solutions, energy demand in both new and existing buildings can be cut by 30% to 80% [11].
Life cycle assessment (LCA) is one of the most effective tools being used to improve the energy and environmental profiles of buildings. LCA provides a material and energy balance over the entire life of a material, product or service, determining its interaction with its environment, and assessing its impacts on the environment. There have been a number of LCA tools developed in advanced countries to investigate the energy and environmental performance of materials and activities and to help in decision making by comparing available options [24]. For its effectiveness, LCA is an important part of building and construction projects in the developed world [25]. The academic and research community is also paying significant attention to the LCA studies. Ma et al. have studied the LCA of energy consumption and CO2 emissions for an office building [20]. Zhang and Wang discuss a hybrid input-output analysis for life-cycle energy consumption and carbon emissions from buildings [26]. Hong et al. have investigated the life cycle energy consumption of buildings using a multi-regional hybrid approach [18]. Heravi et al. examined the energy use during the production and construction of concrete and steel for residential buildings [21]. Guan et al. provided life cycle energy analysis of eight different residential buildings in Australia [19]. Mastrucci et al. have provided a review of LCA studies investigating the environmental impacts of building stocks at several scales, from urban to transnational [27].
The Kingdom of Saudi Arabia (KSA) is the largest country in the Gulf Cooperation Council (GCC) region. It has a sizable and fast growing building sector that is heavily contributing to the energy and environmental stresses facing the country. The country is yet to embrace building sustainability trends and practices. Integration of LCA in building practices can be an effective tool in this respect. The concept of LCA, however, is virtually new to the Saudi construction industry. There is also a clear gap in academic and research work in terms of LCA studies on the building sector of KSA or even neighboring countries in the GCC region with similar construction practices. The present study is therefore a novel and much needed contribution to the knowledge base in the field of LCA. It aims to undertake a LCA of a modern 3-bedroom house in Saudi Arabia focusing on the construction materials. The main objectives of the work are to:
- Carry out an audit of materials involved in the construction of the house
- Quantify the embodied energy of the house
- Examine the associated environmental impacts
The present work undertakes an LCA study of a three bedroom semi-detached villa located in the Dhahran region of Saudi Arabia. It involved both empirical data collection and analysis as well as modelling work. The primary data on the materials involved in the construction process, application of materials and structural details has been collected from the project file including bill of quantity (BOQ). Data was also collated through studying audit reports/records and interviewing relevant personnel including project director, contractor and construction engineer. SimaPro software has been used to model the environmental impacts of the house.
2. LCA and Scope of the Study
Every product, system or activity imposes certain environmental impacts at various stages of its life cycle as indicated in Figure 1. Life cycle assessment (LCA) is a useful tool that serves many purposes such as to: identify ingredients, processes and systems having major contribution in terms of environmental impacts; compare the available options with the aim of minimizing environmental impacts; guide on long-term and strategic planning towards trends in materials and product design. LCA provides a material and energy account covering the full life of an object, activity or service, investigating its interaction with environment. Importance of LCA has been growing in the construction industry across the world. Since LCA adopts a comprehensive and systemic approach to determine environmental performance, it is attracting huge interest across the world by the building and construction sector not only to select environmentally preferable products but also to evaluate and optimize processes and techniques [23,24].
Figure 1.
Basic life cycle of a material highlighting the ‘cradle to grave’ approach.
Life cycle assessment can be defined as a process to calculate the environmental impacts related to a product or system by identifying and describing the material and energy used, and wastes released to the environment. The analysis covers the entire life cycle of the product or system, encompassing, extraction and processing of materials; production; distribution; use; maintenance; recycling and final disposal [25]. Generally, a complete life cycle study incorporates four interactive steps: planning; inventory analysis; impact assessment and improvement analysis [28,29]. The International Organization for Standards (ISO) in the ISO 14044 standard describes the four LCA stages as: goal and scope definition; inventory analysis, impact assessment and interpretation [30]. The results and findings of LCA studies are dictated significantly by their planning phase that defines the aim, objectives and the boundaries of investigation. The results also depend on the inventory analysis. The environmental impacts affiliated with energy consumption, for example, vary from one country to another depending on energy mix from different sources i.e., thermal, nuclear and hydropower. LCA studies may vary significantly in terms of their scope and boundaries. For example, the boundaries of LCA studies have varied in terms of focusing on the complete life cycle of a building or a part of it [21,26,27,28]. In terms of scope, LCA studies have also varied to focus on an individual building material, a set of materials or the complete range of materials needed in a building [31,32,33]. Similarly, LCA studies of buildings have also been carried out concentrating individually on the associated energy, environmental impacts or both of these together [19,20,21].
In terms of scope, the present LCA work adopting ‘cradle-to-gate’ approach examines the construction phase of a 3-bedroom house in Saudi Arabia in terms of the involved material and their embodied energy as highlighted in Figure 2. The audit of the materials involved in the construction has been undertaken with the help of bill of quantity (BOQ) file, site surveys, interviews and discussions with contractors and project management team. The BOQ file was found to be having issues like missing information and lack of clarity about some of the materials and their use. Site surveys, and interviews and discussions with the project team helped to address these gaps. Embodied energy and environmental impacts associated with the construction materials have been investigated with the help of SimaPro software (SaaS, Brisbane, Australia). The functional unit in the study is 1 m2 of net floor area.
Figure 2.
Methodology of the life cycle assessment (LCA) study.
3. House Structural Details
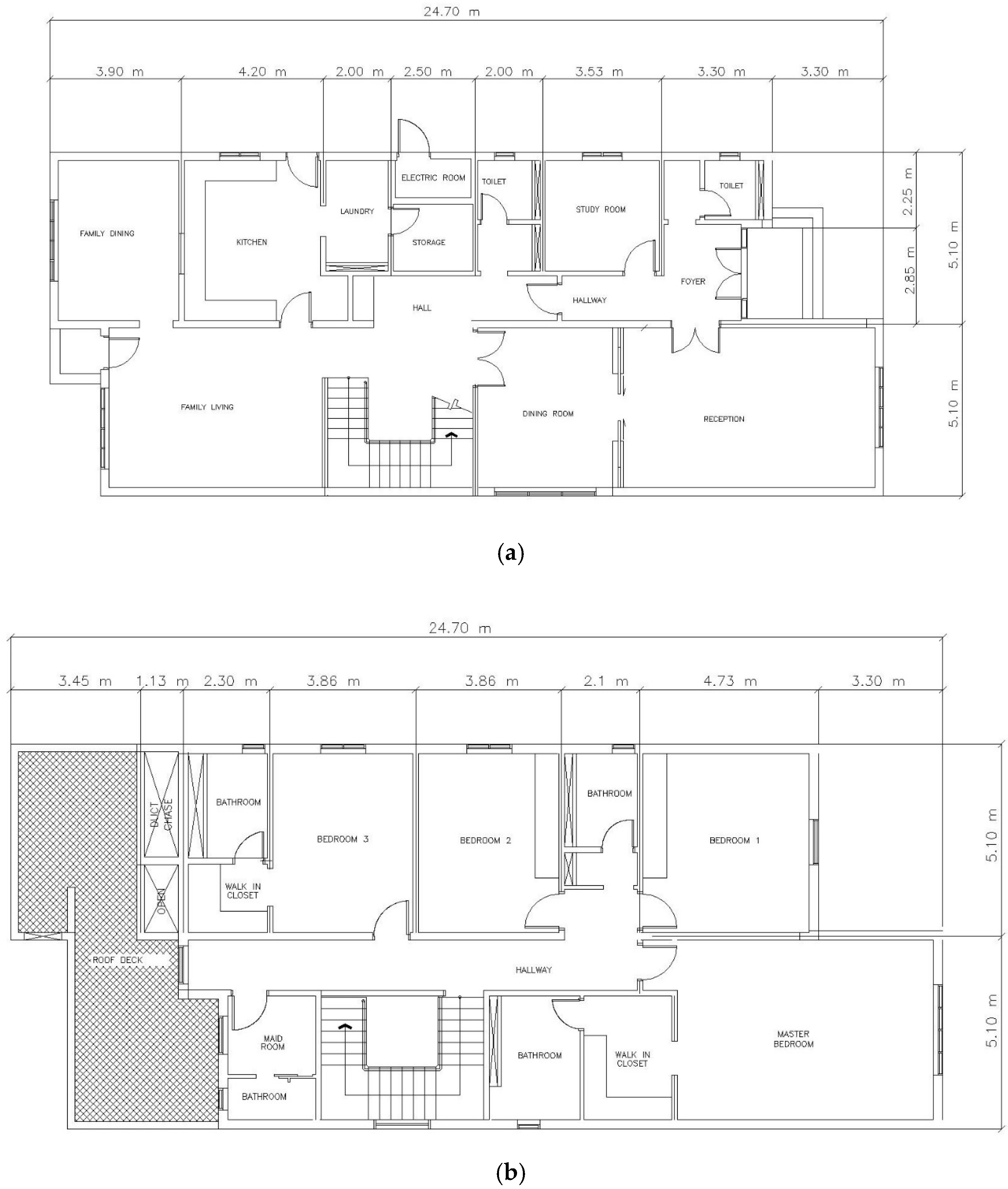
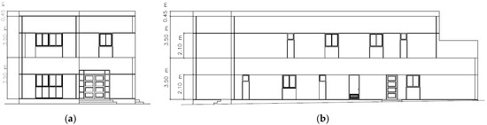
The 3-bedroom house being studied in this study is within the King Fahd University of Petroleum and Minerals (KFUPM) situated in the Eastern Province of Saudi Arabia. KFUPM has a huge campus encompassing teaching and administration blocks, residences for faculty, staff and students, schools, community centers, warehouses and workshops. Building plans, elevations and section of the studied house are respectively provided in Figure 3, Figure 4 and Figure 5. Details of the building structural features and key systems are provided in Table 1.
Figure 3.
Building floor plans. (a) Ground floor; (b) First floor.
Figure 4.
Building elevations. (a) Front elevation; (b) Side elevation.
Figure 5.
Section view of the house.
Table 1.
Main structural details of the house.
The selected house, built in 2013, is a typical modern villa. It represents the vast majoroty of residential buildings in the country in terms of construction material.
4. Materials
The house studied in this study has concrete based structure. External walls are made of concrete masonry units (CMU) while reinforced concrete is used for roofs, columns, beams and stairs etc. Other materials with significant contribution include steel, aluminium glass, wood, polyvinyle chloride (PVC), insulations, paints, ceramic and cement tiles and galvanized iron sheets. Inventory of the materials used in the construction of the house has been mainly obtained from the project BOQ file. Building drawings and project specification, manufacturer products description and published standards were also consulted. The process of calculating the material quantities was not straight forward because important details were missing from the BOQ file. Missing details have been acquired through interviews and discussion as well as standards and guidelines. Details of the 18 main employed materials have been provided in Table 2 along with their application and quantity.
Table 2.
Overview of building material inventory.
5. Embodied Energy
An embodied energy analysis of the materials has been carried out using ‘cradle to gate’ boundary conditions. Embodied energy values are calculated in SimaPro (v: 8.05.13) using Cumulative Energy Demand method 1.04. Some of the materials are used in more than one form. Concrete, for example, is used as concrete masonry units as well as ready mix reinforced concrete. Similarly bitumen is used as membrane as well as spray paint. The material audit reveals that concrete is the single largest material both in terms of mass and embodied energy as shown in Table 3. Overall, concrete accounts for over 43% of the total embodied energy followed by steel that has a share of over 19% as shown in Figure 6. In terms of embodied energy per unit mass, however, concrete and plaster have least values while polystyrene is on the top of the list.
Table 3.
Embodied energy of materials involved in house construction.
Figure 6.
Distribution of the house embodied energy by the type of materials.
6. Environmental Impacts
As part of the LCA study an environmental impact assessment of the materials used in the construction of the house has also been carried out. The inventory data modeling is performed through a LCA software, SimaPro. Within SimaPro, Ecoinvent database (v: 3.0) is used for material modelling, and Environmental Product Declaration (EPD) method has been used as the impact assessment technique. EPD is recommended by EN 15804 with a complete guidline for estimating environmental impacts and has been used in several LCA studies [34,35]. Generally, EPD method is used for creation of environmental impacts declaration and is considered important for the reporting in the product category rules. It considers a damage oriented approach and includes the impact categories related to the endpoint approach i.e., Acidification Potential (AP), Eutrophication Potential (EP), Global Warming Potential (GWP), Photochemical Oxidation Potential (POCP), Ozone Depletion Potential (ODP), and Abiotic Depletion Factor (ADF). An overview of the results indicates that concrete is the most environmentally harmful material followed by steel in terms of AP, EP and GWP. In terms of POCP, ODP and ADF, steel, ceramics and polystyrene are the leading materials respectively as shown in Figure 7. Polystyrene, used as thermal insulation, is however, the predominant contributor in terms of ozone depletion impacts followed by concrete. The production of polystyrene used to employ chlorofluorocarbons (CFCs), a substance with huge ODP, as the expanding agent until 1987. However after the use of CFCs was banned, polystyrene is now being produced from hydro chlorofluorocarbons (HCFCs) which is still resulting into significant ODP.
Figure 7.
Environmental impacts of materials.
7. Discussion
Domestic buildings constitute the bulk of the building stock across the world and thus their energy and environmental performances are predominant [36]. The GCC region has a vast and fast growing construction sector with ongoing projects worth around $2.5 Trillion [37]. Accounting for 43% of this total investment, Saudi Arabia is experiencing a rapid growth in the construction sector and residential buildings constitute over 90% of the total new projects [38]. While around 70% of the Saudi population is under the age of 30 years, estimates suggest that KSA needs to build 2.32 million new homes by 2020 to satisfy the requirements of the surging population [13]. Traditionally, the energy and environmental performance of buildings has not been a priority for the construction industry stakeholders. Presently the building industry accounts for 80% of the electricity being consumed in KSA. Domestic buildings consume more than 50% of the total electricity [13]. These figures are much higher than the global average, and advocate for an improvement in the current building construction and use practices. A 100% reliance on fossil fuels makes the situation more alarming from the environmental perspective. The country is already emitting almost four times the CO2 as compared to the global average figure of 5 metric ton/capita [38]. The rapid growth trends in the construction industry are set to add to the associated environmental stresses. The building sector therefore has to play an important role in addressing the energy and environmental challenges the country is facing. This can be achieved by switching to energy efficient and environmentally friendly solutions both during the construction and operational phase of buildings. In recent years there has been a growing realisation amongst the Saudi policy making circles to improve the energy efficiency and sustainability standards across all sectors in the country especially in buildings. In 2016, it was made mandatory for all new residential buildings to have thermal insulation in order to qualify for connection to the national electric grid [39]. Traditionally, the country has had heavily subsidized utility tariffs [12,40,41]. This situation however is fast changing as electricity prices are undergoing a major rationalization process. The year 2016 saw the first tariff increment in 15 years as electricity prices increased by up to 45% [42]. Further hikes in tariff are being forecasted, as according to the Vision 2030 policy framework, by year 2020, utility subsidies are set to be cut by around 54 Billion US$ [43]. The trend in increasing the electricity tariff is expected to also motivate the building sector to adopt sustainability measures.
Since 1950s the life style in Saudi Arabia has greatly changed. The society has seen a transformation from a Bedouin lifestyle to a modern urban one. The nature of dwellings has been completely revolutionized. For example tents and shelters, that used to be a common housing feature, are almost nonexistent now. Traditional dwellings, employing vernacular architectural techniques such as courtyards and wind towers, were made of construction materials including clay (adobe), coral, limestone, and wood. These have been replaced by concrete and steel built housing, exhibiting weaker thermal characteristics [44]. The modern buildings, also owing to their huge air conditioning load, have a comparatively large energy and environmental footprint.
Presently, the concept of LCA is virtually nonexistent in the Saudi building sector. Assessment of the environmental performance of buildings and construction projects is neither a requirement nor it is practiced. An overview of LCA studies in the building sector across the world [16] reveals that most of the studies are carried out in developed countries and there is no notable contribution coming from the GCC region in general and Saudi Arabia in particular as highlighted in Figure 8. To improve the sustainability standards of its large and fast growing building sector, it is crucial for Saudi Arabia to take into account the environmental performance of buildings as an integral part of construction practices. LCA can be a very useful tool in this respect. It can help evealuate and reduce the environmental impacts of buildings, materials, and activities in the construction sector.
Figure 8.
Geographic concentration of LCA studies carried out across the world.
Understanding the embodied impacts of materials allows the building sector to choose better materials in order to reduce the life cycle impacts of buildings [45]. Embodied energy and environmental impacts of materials are greately influenced by the parameters involved in their production processes which vary from place to place. The present work is the first LCA study on buildings not only in KSA but in the whole GCC region. It has focused on the construction phase of a 3-bedroom house by investigating the materials involved in terms of their embodied energy and associated enviromental impacts. After the operational phase, construction is the second most important part of the entire life cycle of buildings in terms of energy consumption and environmental impacts. The construction phase also influences the operational phase of buildings—for example, improved thermal inuslation of the building-envelope helps reduce the energy consumption and subsequent environmental emissions during the use of buildings [13,46,47]. The relationship between the construction and operational phases of a building would depend upon various factors including the nature of construction materiasl and building design, climatic conditions, user behaviour and the considered lifespan of buildings. An LCA study from Australia indicates that the construction phase may account for up to 30% of the life cycle energy consumption of buildings for a 50-year life span [18]. Another study from Australia reports the embodied energy during the construction phase of buildings accounts for 27% of their life cycle energy for a lifespan of 100 years [48]. Another study comparing five different buildings from China, Thailand and Australia has reported the embodied energy to be in the range of 13% to 46% of their total life cycle energy consumption for a lifespan of 50 years [20].
In the absence of local databases, the present study uses the universal databases for embodied energy and environmental impact assessments. To promote the application of LCA in the GCC region, it will be helpful to develop an embodied energy database of wide ranging construction materials taking into account local production and processing paramaters. To develop a local database, the regulation and standardization of materials, equipment and construction activities also need to be improved.
8. Conclusions
The studied 3-bedroom house is a typical modern residential villa with a concrete based structure. Findings of the life LCA reveal that, quantitatively, concrete accounts for over 91% of the total materials used in building. The embodied energy value of the house in terms of functional unit has been estimated to be 10,370 MJ/m2. Concrete is found to be responsible for 43.4% of the total embodied energy going into the house. In terms of unit mass, concrete and plaster jointly have the lowest embodied energy value, 1.7 MJ/kg. It is also evident from the fact that concrete’s overall share in terms of the total embodied energy is lower than its share in terms of mass. Steel, an integral part of concrete structures, is the second most prominent material both in terms of its quantitative and embodied energy share. Polystyrene, polyethylene, and gypsum lead the list of materials in terms of embodied energy values with respective figures of 106 MJ/kg, 95 MJ/kg and 92 MJ/kg. The results of the environmental impacts assessment indicate that concrete is the most burdonsome material followed by steel in terms of Acidification Potential (AP), Eutrophication Potential (EP), and Global Warming Potential (GWP). In terms of Photochemical Oxidation Potential (POCP), Ozone Depletion Potential (ODP), and Abiotic Depletion Factor (ADF), steel, ceramics and polystyrene are the leading materials respectively. Environmental impacts of buildings are not presently being adhered to in the KSA. The findings of this study will educate the construction industry about the environmental impacts of the main construction materials being used in KSA. The study recommends further studies to be carried out exploring the scope for other more environmentally friendly materials. Similarly, construction methods and techniques should also be investigated in order to improve the sustainability standards of buildings.
Author Contributions
Muhammad Asif and Mian Mobeen Shaukat conceived the idea and designed the framework for the LCA analysis. Ammar Homoud Ahmad Dehwah and Hassan Saeed Khan collected the data. Farhan Ashraf and Muhammad Asif performed the LCA and modeling. Muhammad Asif and Muhammad Tahir Hassan wrote the paper.
Conflicts of Interest
The authors declare no conflict of interest.
References
- Asif, M. Energy Crisis in Pakistan: Origins, Challenges and Sustainable Solutions, 1st ed.; Oxford University Press: Karachi, Pakistan, 2011. [Google Scholar]
- Ghosh, P. Science Adviser Warns Climate Target ‘Out the Window. BBC NEWS. 25 August 2012. Available online: http://www.bbc.co.uk/news/science-environment-19348194 (accessed on 15 February 2017).
- McMillan, M.; Shepherd, A.; Sundal, A.; Briggs, K.; Muir, A.; Ridout, A.; Hogg, A; Wingham, D. Increased ice losses from Antarctica detected by CryoSat-2. American Geophysical Union. Geophys. Res. Lett. 2014, 41, 3899–3905. [Google Scholar] [CrossRef]
- Karlsruhe Institute of Technology (KIT). Natural Disasters Since 1900: Over 8 Million Deaths and 7 Trillion US Dollars Damage; Press Release 058/2016; Karlsruhe Institute of Technology: Karlsruhe, Germany, 2016. [Google Scholar]
- Amos, J. Economic losses from natural disasters counted. BBC, 18 April 2016. [Google Scholar]
- Billion people face global flooding risk by 2060, charity warns. BBC, 16 May 2016.
- McGrawth, M. 2016 ‘very likely’ to be world’s warmest year. BBC, 14 November 2016. [Google Scholar]
- EC, Paris Agreement, Climate Action, European Commission. Available online: https://ec.europa.eu/clima/policies/international/negotiations/paris/index_en.htm (accessed on 15 February 2017).
- Lynch, P. 2016 Climate Trends Continue to Break Records. NASA, 19 July 2016. Available online: https://www.nasa.gov/feature/goddard/2016/climate-trends-continue-to-break-records (accessed on 15 February 2017).
- Potter, S. NASA, NOAA Data Show 2016 Warmest Year on Record Globally; Press Release: 17-006; NASA: New York, NY, USA, 2017.
- United Nations Environment Programme (UNEP). Buildings and Climate Change: Summary for Decision Makers; United Nations Environment Programme: Paris, France, 2009. [Google Scholar]
- Asif, M. Urban Scale Application of Solar PV to Improve Sustainability in the Building and the Energy Sectors of KSA. Sustainability 2016, 8, 1127. [Google Scholar] [CrossRef]
- Asif, M. Growth and sustainability trends in the buildings sector in the GCC region with particular reference to the KSA and UAE. Renew. Sustain. Energy Rev. 2016, 55, 1267–1273. [Google Scholar] [CrossRef]
- Alrashed, F.; Asif, M. Climatic Classifications of Saudi Arabia for Building Energy Modelling. Energy Procedia 2015, 75, 1425–1430. [Google Scholar] [CrossRef]
- Kannan, R.; Strachan, N. Modelling the UK residential energy sector under longterm decarbonisation scenarios: Comparison between energy systems and sectoral modelling approaches. Appl. Energy 2009, 86, 416–428. [Google Scholar] [CrossRef]
- Cabeza, F.; Rincón, L.; Vilariño, V.; Pérez, G.; Castell, A. Life cycle assessment (LCA) and life cycle energy analysis (LCEA) of buildings and the building sector: A review. Renew. Sustain. Energy Rev. 2014, 29, 394–416. [Google Scholar] [CrossRef]
- Sartori, I.; Hestnes, A.G. Energy use in the life cycle of conventional and low-energy buildings: A review article. Energy Build. 2007, 3, 249–257. [Google Scholar] [CrossRef]
- Hong, J.; Zhang, X.; Shen, Q.; Zhang, W.; Feng, Y. A multi-regional based hybrid method for assessing life cycle energy use of buildings: A case study. J. Clean. Prod. 2017, 148, 760–772. [Google Scholar] [CrossRef]
- Guana, L.; Walmselya, M.; Chen, G. Life Cycle Energy Analysis of Eight Residential Houses in Brisbane, Australia. Procedia Eng. 2015, 121, 653–661. [Google Scholar] [CrossRef]
- Ma, J.; Du, G.; Zhang, Z.; Wang, P.; Xie, B. Life cycle analysis of energy consumption and CO2 emissions from a typical large office building in Tianjin, China. Build. Environ. 2017, 117, 36–48. [Google Scholar] [CrossRef]
- Heravi, G.; Nafisi, T.; Mousavi, R. Evaluation of energy consumption during production and construction of concrete and steel frames of residential buildings. Energy Build. 2016, 130, 244–252. [Google Scholar] [CrossRef]
- Seppo, J. An Environmental Impact of an Office Building throughout Its Life Cycle. Ph.D. Thesis, Helsinki University of Technology, Espoo, Finland, 2004. [Google Scholar]
- Adalberth, K.; Almgren, A.; Petersen, H. Life cycle assessment of four multi-family buildings. Int. J. Low Energy Sustain. Build. 2001, 2, 1–21. [Google Scholar]
- Asif, M.; Currie, J.; Muneer, T. Comparison of Aluminium and Stainless Steel Built in Storage Solar Water Heater. Build. Serv. Eng. Res. Technol. 2007, 28, 337–346. [Google Scholar] [CrossRef]
- Asif, M.; Kelley, R.; Muneer, T. Life Cycle Assessment: A Case Study of a Dwelling Home in Scotland. Build. Environ. 2007, 42, 1391–1394. [Google Scholar] [CrossRef]
- Zhang, X.; Wang, F. Hybrid input-output analysis for life-cycle energy consumption and carbon emissions of China’s building sector. Build. Environ. 2016, 104, 188–197. [Google Scholar] [CrossRef]
- Mastrucci, A.; Marvuglia, A.; Leopold, U.; Benetto, E. Life Cycle Assessment of building stocks from urban to transnational scales: A review. Renew. Sustain. Energy Rev. 2017, 74, 316–332. [Google Scholar] [CrossRef]
- Asif, M.; Muneer, T. Life Cycle Assessment of Built-in-Storage Solar Water Heaters in Pakistan. Build. Serv. Eng. Res. Technol. 2006, 27, 63–69. [Google Scholar] [CrossRef]
- Bayer, C.; Gamble, M.; Gentry, R.; Joshi, S. AIA Guide to Building Life Cycle Assessment in Practice; The American Institute of Architects: Washington, DC, USA, 2006. [Google Scholar]
- ISO 14044. Environmental Impacts-Life Cycle Assessment—Requirements and Guidelines; ISO: Geneva, Switzerland, 2006. [Google Scholar]
- Koroneos, C.; Dompros, A. Environmental assessment of brick production in Greece. Build. Environ. 2007, 42, 2114–2123. [Google Scholar] [CrossRef]
- Kumbhar, S.; Kulkarni, N.; Rao, A.; Rao, B. Environmental Life Cycle Assessment of Traditional Bricks in Western Maharashtra, India. Energy Procedia 2014, 54, 260–269. [Google Scholar] [CrossRef]
- Bribián, I.; Capilla, A.; Usón, A. Life cycle assessment of building materials: Comparative analysis of energy and environmental impacts and evaluation of the eco-efficiency improvement potential. Build. Environ. 2011, 46, 1133–1140. [Google Scholar] [CrossRef]
- Klijn-Chevalerias, M.; Javed, S. The Dutch approach for assessing and reducing environmental impacts of building materials. Build. Environ. 2017, 111, 147–159. [Google Scholar] [CrossRef]
- Roh, S.; Tae, S.; Suk, S.; Ford, G. Evaluating the embodied environmental impacts of major building tasks and materials of apartment buildings in Korea. Renew. Sustain. Energy Rev. 2017, 73, 135–144. [Google Scholar] [CrossRef]
- Li, D.; Chen, H.; Hui, C.; Zhang, J.; Li, Q. A methodology for estimating the life-cycle carbon efficiency of a residential building. Build. Environ. 2013, 59, 448–455. [Google Scholar] [CrossRef]
- McCullough, D. Saudi Arabia’s green decree brings hopes of sustainability. The Guardian, 12 May 2014. [Google Scholar]
- Alrashed, F.; Asif, M. Trends in Residential Energy Consumption in Saudi Arabia with Particular Reference to the Eastern Province. J. Sustain. Dev. Energy, Water Environ. Syst. 2014, 2, 376–387. [Google Scholar] [CrossRef]
- Saudi Electricity Company (SEC), Thermal Insulation, Saudi Electricity Company. Available online: https://www.se.com.sa/en-us/Pages/ThermalInsulationinBuildings.aspx (accessed on 15 February 2017).
- Alrashed, F.; Asif, M. Saudi Building Industry’s Views on Sustainability in Buildings: Questionnaire Survey. Energy Procedia 2014, 62, 382–390. [Google Scholar] [CrossRef]
- Alrashed, F.; Asif, M. Prospects of Renewable Energy to promote Zero-Energy Residential Buildings in Saudi Arabia. Energy Procedia 2012, 18, 1096–1105. [Google Scholar] [CrossRef]
- Only 26% users affected by hike in power tariff. Arab News, 23 June 2016.
- Bloomberg. Saudi Arabia to Cut Public Sector Wages and Subsidies by 2020; Bloomberg: New York, NY, USA, 2016. [Google Scholar]
- Alrashed, F.; Asif, M.; Burek, S. The Role of Vernacular Construction Techniques and Materials for Developing Zero-Energy Homes in Various Desert Climates. Buildings 2017, 7, 17. [Google Scholar] [CrossRef]
- Basbagill, J.; Flager, F.; Lepech, M.; Fischer, M. Application of life-cycle assessment to early stage building design for reduced embodied environmental impacts. Build. Environ. 2013, 60, 81–92. [Google Scholar] [CrossRef]
- Asif, M.; Muneer, T. Sustainability Assessment of Super Insulated Timber Windows, Construction Materials. Inst. Civ. Eng. 2013, 166, 3–7. [Google Scholar]
- Asif, M.; Muneer, T.; Kubie, J. A Value Engineering Analysis of Aluminium Clad Timber Windows. Build. Serv. Eng. Res. Technol. 2005, 26, 1–11. [Google Scholar] [CrossRef]
- Stephan, A.; Crawford, R.; Myttenaere, K. Multi-scale life cycle energy analysis of a low-density suburban neighborhood in Melbourne, Australia. Build. Environ. 2013, 68, 35–49. [Google Scholar] [CrossRef]
© 2017 by the authors. Licensee MDPI, Basel, Switzerland. This article is an open access article distributed under the terms and conditions of the Creative Commons Attribution (CC BY) license (http://creativecommons.org/licenses/by/4.0/).







