Trans Territorialization: Building Empowerment beyond Identity Politics
Abstract
1. Introduction
1.1. Territorialization and LGBTQ+ Sociality
1.2. Expanding the Gayborhood
2. Materials and Methods
3. Building Black Transgender Empowerment
3.1. Memphis and the Queer South
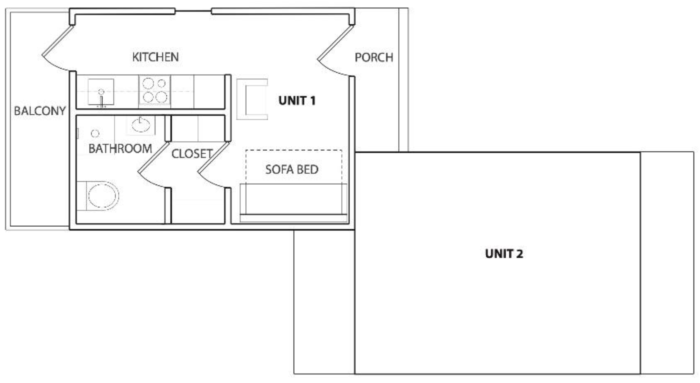
3.2. Tiny Homes
3.3. Housing Activism and Neighborhood Transformation
4. Discussion
5. Conclusions
Author Contributions
Funding
Institutional Review Board Statement
Informed Consent Statement
Acknowledgments
Conflicts of Interest
| 1 | In this paper, we use the term LGBTQ+ (lesbian, gay, bisexual, transgender, queer, and beyond) when referring to sexually and gender non-conforming social identities since the 1970s. We also employ the term to directly refer to transgender and gender non-conforming people whose spaces are the focus of our case study. These terms were first introduced in scholarly literature in the past three decades. They are also sometimes employed by grassroots activist groups outside academia, as is the case with the term TGNC that is used in some of My Sistah’s House blog posts. For a detailed discussion of the use of terminology in transgender studies, see DeVun and Tortorici (2018). |
| 2 | Community Land Trusts (CLTs) are non-profit, community-based organizations that purchase land to ensure collective stewardship and affordability for current and future tenants. CLTs can be used for housing, commercial, agricultural, or retail uses. |
| 3 | Gaiety Newspaper collection, Rhodes College Archives, http://hdl.handle.net/10267/30704 (accessed on 2 June 2022). |
| 4 | K. Gore, interviewed by Stathis G. Yeros, 18 May 2022. |
| 5 | The term cisgender refers to non-TGNC embodiments. |
References
- Altman, Irwin. 1975. The Environment and Social Behavior: Privacy, Personal Space, Territory, Crowding. Monterey: Brooks/Cole Pub. Co. [Google Scholar]
- Angeles, Leonora C., and Jennifer Roberton. 2020. Empathy and Inclusive Public Safety in the City: Examining LGBTQ2+ Voices and Experiences of Intersectional Discrimination. Women’s Studies International Forum 78: 102313. [Google Scholar] [CrossRef]
- Armstrong, Elizabeth A. 2002. Forging Gay Identities: Organizing Sexuality in San Francisco, 1950–1994. Chicago: University of Chicago Press. [Google Scholar]
- Ash, Stephen V. 2013. A Massacre in Memphis: The Race Riot That Shook the Nation One Year after the Civil War. New York: Farrar, Straus and Giroux. [Google Scholar]
- Atalay, Ozlem, and Petra L. Doan. 2019. Reading LGBT Movement through Its Spatiality in Istanbul, Turkey. Geography Research Forum 39: 106–26. [Google Scholar]
- Bain, Alison L., and Julie A. Podmore. 2021. Placing LGBTQ+ Urban Activisms. Urban Studies 58: 1305–26. [Google Scholar] [CrossRef]
- Bain, Alison L., William Payne, and Jaclyn Isen. 2015. Rendering a Neighbourhood Queer. Social & Cultural Geography 16: 424–43. [Google Scholar] [CrossRef]
- Boyd, Nan Alamilla. 2005. Wide-Open Town: A History of Queer San Francisco to 1965. Berkeley: University of California Press. [Google Scholar]
- Brenner, Neil. 2018. Debating Planetary Urbanization: For an Engaged Pluralism. Environment and Planning D: Society and Space 36: 570–90. [Google Scholar] [CrossRef]
- Browne, Kath. 2008. Imagining Cities, Living the Other: Between the Gay Urban Idyll and Rural Lesbian Lives. The Open Geography Journal 1: 25–32. [Google Scholar] [CrossRef]
- Browne, Kath, Jason Lim, and Gavin Brown, eds. 2007. Geographies of Sexualities: Theory, Practices, and Politics. Burlington: Ashgate. [Google Scholar]
- Buring, Daneel. 1996. Gay Activism Behind the Magnolia Curtain: The Memphis Gay Coalition, 1979–1991. Journal of Homosexuality 32: 113–35. [Google Scholar] [CrossRef]
- Buring, Daneel. 1997a. Lesbian and Gay Memphis: Building Communities behind the Magnolia Curtain. New York: Garland. [Google Scholar]
- Buring, Daneel. 1997b. Softball and Alcohol: The Limits of Lesbian Community in Memphis from the 1940s through the 1960s. In Carryin’ On in the Lesbian and Gay South. New York: NYU Press, pp. 203–23. [Google Scholar]
- Casa de Luz. n.d. Historia de la Casa. Available online: https://www.casadeluztj.org/historia (accessed on 10 June 2022).
- Castells, Manuel. 1983. The City and the Grassroots: A Cross-Cultural Theory of Urban Social Movements. Berkeley: University of California Press. [Google Scholar]
- CBS News. 2021. Nonprofit Builds Tiny Homes for Trans Women Living on the Streets: ‘We’re Doing It out Loud and Proud’. Available online: https://www.cbsnews.com/news/nonprofit-tiny-homes-trans-women/ (accessed on 16 July 2022).
- Chauncey, George. 1994. Gay New York: Gender, Urban Culture, and the Making of the Gay Male World, 1890–1940. New York: Basic Books. [Google Scholar]
- Chiesi, Leonardo. 2015. Territoriality as Appropriation of Space: How ‘Engaging with Space’ Frames Sociality. In Cultural Sustainability and Regional Development Theories and Practices of Territorialisation. London and New York: Routledge. [Google Scholar]
- Cranz, Galen. 2016. Ethnography for Designers. London and New York: Routledge. [Google Scholar]
- Crawford, Lucas. 2015. Transgender Architectonics: The Shape of Change in Modernist Space. Burlington: Ashgate. [Google Scholar]
- Crawford, Lucas. 2020. The Crumple and the Scrape. Places Journal. [Google Scholar] [CrossRef]
- D’Emilio, John. 1998. Sexual Politics, Sexual Communities: The Making of a Homosexual Minority in the United States, 1940–1970, 2nd ed. Chicago: University of Chicago Press. First published 1983. [Google Scholar]
- Davis, Angela Y. 2019. Foreword. In Maestrapeace: San Francisco’s Monumental Feminist Mural. Edited by Juana Alicia, Miranda Bergman, Edythe Boone, Susan Kelk Cervantes, Meera Desai, Yvonne Littleton and Irene Pérez. Berkeley: Heyday, pp. 11–38. [Google Scholar]
- Davis, John Emmeus, and Lincoln Institute of Land Policy, eds. 2010. The Community Land Trust Reader. Cambridge: Lincoln Institute of Land Policy. [Google Scholar]
- DeFilippis, James, Olivia R. Williams, Joseph Pierce, Deborah G. Martin, Rich Kruger, and Azadeh Hadizadeh Esfahani. 2019. On the Transformative Potential of Community Land Trusts in the United States. Antipode 51: 795–817. [Google Scholar] [CrossRef]
- Delany, Samuel R. 1999. Times Square Red, Times Square Blue. Sexual Cultures. New York: New York University Press. [Google Scholar]
- Delavega, Elena. 2015. 2015 Memphis Poverty Fact Sheet. Memphis: The University of Memphis and The Mid-South Family and Community Empowerment Institute. [Google Scholar]
- DeVun, Leah, and Zeb Tortorici. 2018. Trans, Time, and History. TSQ: Transgender Studies Quarterly 5: 518–39. [Google Scholar] [CrossRef]
- Doan, Petra L. 2015. Planning and LGBTQ Communities: The Need for Inclusive Queer Spaces. New York: Routledge. [Google Scholar]
- Dowdy, G. Wayne. 2011. A Brief History of Memphis. Available online: https://www.overdrive.com/search?q=84AB98E8-3011-45A8-905C-31E4BF8A1EF7 (accessed on 3 June 2022).
- Duggan, Lisa. 2014. The Twilight of Equality? Neoliberalism, Cultural Politics, and the Attack on Democracy, 2nd ed. Boston: Beacon Press. First published 2003. [Google Scholar]
- Gates, Gary J., and Jason Ost. 2004. The Gay & Lesbian Atlas. Washington, DC: Urban Institute Press. [Google Scholar]
- Ghaziani, Amin. 2014. There Goes the Gayborhood? Princeton: Princeton University Press. [Google Scholar]
- Ghaziani, Amin. 2018. Sexual Meanings, Placemaking, and the Urban Imaginary. In Routledge Handbook of Cultural Sociology. London and New York: Routledge, pp. 226–34. [Google Scholar]
- Gieseking, Jen Jack. 2020. A Queer New York: Geographies of Lesbians, Dykes, and Queers. New York: New York University Press. [Google Scholar]
- Goh, Petra L. 2015. Place/Out: Planning for Radical Queer Activism. In Planning and LGBTQ Communities: The Need for Inclusive Queer Spaces. London and New York: Routledge, pp. 217–34. [Google Scholar]
- Gore, Kayla. 2019. Transition in the South. My Sistah’s House (Blog), February 8. [Google Scholar]
- Gorny, Robert Alexander, and Dirk van den Heuvel. 2017. New Figurations in Architecture Theory: From Queer Performance to Becoming Trans. Footprint 21: 1–9. [Google Scholar] [CrossRef]
- Grant, Jaime M., Lisa A. Mottet, Justin Tanis, Jack Harrison, Jody L. Herman, and Mara Keisling. 2011. Injustice at Every Turn: A Report of the National Transgender Discrimination Survey. Washington, DC: National Center for Transgender Equality and National Gay and Lesbian Task Force. [Google Scholar]
- Halberstam, Jack. 2005. In a Queer Time and Place: Transgender Bodies, Subcultural Lives. New York: New York University Press. [Google Scholar]
- Halberstam, Jack. 2018. Unbuilding Gender: Trans* Anarchitectures in and Beyond the Work of Gordon Matta-Clark. Places Journal. [Google Scholar] [CrossRef]
- Hanhardt, Christina B. 2013. Safe Space: Gay Neighborhood History and the Politics of Violence. Durham: Duke University Press. [Google Scholar]
- Hess, Abigail Johnson. 2021. Activist Kayla Gore Is Building Tiny Homes—And Trans Futures—In Memphis, Tennessee. CNBC. Available online: https://www.cnbc.com/2021/06/08/kayla-gore-on-building-tiny-homesand-trans-futuresin-memphis.html (accessed on 29 July 2022).
- House of Tulip. n.d. Our Vision. Available online: https://houseoftulip.org/our-vision (accessed on 10 June 2022).
- Howard, John, ed. 1997. Carryin’ on in the Lesbian and Gay South. New York: New York University Press. [Google Scholar]
- Johnson, E. Patrick. 2011. Sweet Tea Black Gay Men of the South. Chapel Hill: University of North Carolina Press. [Google Scholar]
- Johnson, E. Patrick. 2018. Black. Queer. Southern. Women: An Oral History. Chapel Hill: University of North Carolina Press. [Google Scholar]
- Jones, Chelle. 2020. Balancing Safety and Visibility: Lesbian Community Building Strategies in South Korea. Journal of Lesbian Studies 24: 272–85. [Google Scholar] [CrossRef]
- Kaldor, Mary, and Saskia Sassen. 2020. Cities at War: Global Insecurity and Urban Resistance. New York: Columbia University Press. [Google Scholar]
- Kärrholm, Mattias. 2007. The Materiality of Territorial Production: A Conceptual Discussion of Territoriality, Materiality, and the Everyday Life of Public Space. Space and Culture 10: 437–53. [Google Scholar] [CrossRef]
- Kennedy, Elizabeth Lapovsky, and Madeline D. Davis. 1993. Boots of Leather, Slippers of Gold: The History of a Lesbian Community. London and New York: Routledge. [Google Scholar]
- Knopp, Larry, and Michael Brown. 2003. Queer Diffusions. Environment and Planning D: Society and Space 21: 409–24. [Google Scholar] [CrossRef]
- Knopp, Larry, and Michael Brown. 2021. Travel Guides, Urban Spatial Imaginaries and LGBTQ+ Activism: The Case of Damron Guides. Urban Studies 58: 1380–96. [Google Scholar] [CrossRef]
- Lambda Legal. n.d. Lambda Legal Sues Tennessee Over Anti-Transgender Birth Certificate Policy. Available online: https://www.lambdalegal.org/blog/20190423_lambda-legal-sues-tennessee-birth-certificate-policy (accessed on 15 July 2022).
- Lauterbach, Preston. 2016. Memphis Burning. Places Journal. [Google Scholar] [CrossRef][Green Version]
- Lewis, Nathaniel M. 2013. Ottawa’s Le/The Village: Creating a Gaybourhood amidst the ‘Death of the Village’. Geoforum 49: 233–42. [Google Scholar] [CrossRef]
- Low, Setha M., and Irwin Altman. 1992. Place Attachment. In Place Attachment. Edited by Irwin Altman and Setha M. Low. Boston: Springer, pp. 1–12. [Google Scholar] [CrossRef]
- McElroy, Erin, and Alex Werth. 2019. Deracinated Dispossessions: On the Foreclosures of ‘Gentrification’ in Oakland, CA. Antipode 51: 878–98. [Google Scholar] [CrossRef]
- Müller, Francis. 2021. Design Ethnography: Epistemology and Methodology. Cham: Springer. [Google Scholar]
- Muñoz, José Esteban. 2009. Cruising Utopia: The Then and There of Queer Futurity. New York: New York University Press. [Google Scholar]
- Nash, Catherine J., and Andrew Gorman-Murray. 2014. LGBT Neighbourhoods and ‘New Mobilities’: Towards Understanding Transformations in Sexual and Gendered Urban Landscapes. International Journal of Urban and Regional Research 38: 756–72. [Google Scholar] [CrossRef]
- National Civil Rights Museum. n.d. Exhibitions. Available online: https://www.civilrightsmuseum.org/exhibitions/?source=adwords&campaign=&medium=cpc&keyword=national%20civil%20rights%20museum&target=kwd-312983525&loc=9075555&device=c&gclid=Cj0KCQjw54iXBhCXARIsADWpsG8vPg9tSIuEoccX76BFnaeD1_SRvk8jII029cbfz3Nkqkt5ZjBTdDIaAmtTEALw_wcB (accessed on 28 July 2022).
- Oakland CLT. n.d. Liberated 23rd Avenue. Available online: https://oakclt.org/portfolio-items/liberated23rdave/ (accessed on 10 June 2022).
- Orne, Jason, and Dylan Stuckey. 2017. Boystown: Sex & Community in Chicago. Chicago: The University of Chicago Press. [Google Scholar]
- Oswin, Natalie. 2019. Global City Futures: Desire and Development in Singapore. Athens: The University of Georgia Press. [Google Scholar]
- Pekkanen, Robert, Steven Rathgeb Smith, and Yutaka Tsujinaka, eds. 2014. Nonprofits and Advocacy: Engaging Community and Government in an Era of Retrenchment. Baltimore: Johns Hopkins University Press. [Google Scholar]
- Pink, Sarah, Vaike Fors, Debora Lanzeni, Melisa Duque, Yolande Strengers, and Shanti Sumartojo. 2022. Design Ethnography: Research, Responsibility, and Futures. London and New York: Routledge. [Google Scholar]
- Podmore, Julie A. 2006. Gone ‘Underground’? Lesbian Visibility and the Consolidation of Queer Space in Montréal. Social & Cultural Geography 7: 595–625. [Google Scholar] [CrossRef]
- Podmore, Julie A. 2013. Critical Commentary: Sexualities Landscapes beyond Homonormativity. Geoforum 49: 263–67. [Google Scholar] [CrossRef]
- Poe, Ryan. 2020. The 901: Why Memphis Has a Big Appetite for Tiny Homes. The Commercial Appeal. Available online: https://www.commercialappeal.com/story/news/local/the-901/2020/02/27/tiny-homes-one-creative-answer-memphis-rising-rents-901/4889908002/ (accessed on 16 July 2022).
- Puar, Jasbir K. 2007. Terrorist Assemblages: Homonationalism in Queer Times. Durham: Duke University Press. [Google Scholar]
- Queer the Land. n.d. Who We Are. Available online: https://queertheland.org/who-we-are/ (accessed on 10 June 2022).
- Queering the Farm. n.d. Instagram Feed. Available online: https://www.instagram.com/queeringthefarm/ (accessed on 10 June 2022).
- Ramos, Regner, and Sharif Mowlabocus, eds. 2021. Queer Sites in Global Contexts: Technologies, Spaces, and Otherness. London and New York: Routledge. [Google Scholar]
- Robinson, Brandon Andrew. 2020. Coming out to the Streets: LGBTQ Youth Experiencing Homelessness. Oakland: University of California Press. [Google Scholar]
- Rosenberg, Rae. 2017. The Whiteness of Gay Urban Belonging: Criminalizing LGBTQ Youth of Color in Queer Spaces of Care. Urban Geography 38: 137–48. [Google Scholar] [CrossRef]
- Rosenberg, Rae. 2020. Negotiating Racialised (Un)Belonging: Black LGBTQ Resistance in Toronto’s Gay Village. Urban Studies 58: 1397–1413. [Google Scholar] [CrossRef]
- Roy, Ananya, and Hilary Malson, eds. 2016. Housing Justice in Unequal Cities. Los Angeles: UCLA Institute on Inequality and Democracy. [Google Scholar]
- Rubin, Gayle. 2011. Deviations: A Gayle Rubin Reader. Durham: Duke University Press. [Google Scholar]
- Seamon, David. 2018. Life Takes Place: Phenomenology, Lifeworlds and Place Making. London and New York: Routledge. [Google Scholar]
- Spade, Dean. 2015. Normal Life: Administrative Violence, Critical Trans Politics, and the Limits of Law. Durham: Duke University Press. First published 2011. [Google Scholar]
- Sprayregen, Molly. 2021. Activist Kayla Gore Is Building Tiny Homes for Trans Women of Color. Forbes. Available online: https://www.forbes.com/sites/mollysprayregen/2021/02/19/activist-kayla-gore-is-building-tiny-homes-for-trans-women-of-color/ (accessed on 15 July 2022).
- Spruce, Emma. 2021. The Place of Transversal LGBTQ+ Urban Activisms. Urban Studies 58: 1520–28. [Google Scholar] [CrossRef]
- Stone, Amy L. 2018. The Geography of Research on LGBTQ Life: Why Sociologists Should Study the South, Rural Queers, and Ordinary Cities. Sociology Compass 12: e12638. [Google Scholar] [CrossRef]
- Thompson, Brock. 2010. The Un-Natural State: Arkansas and the Queer South. Fayetteville: The University of Arkansas Press. [Google Scholar]
- Thrift, N. J. 1983. On the Determination of Social Action in Space and Time. Environment and Planning D: Society and Space 1: 23–57. [Google Scholar] [CrossRef]
- U.S. Census Bureau. n.d. DP05: Census Bureau Table. Available online: https://data.census.gov/cedsci/table?q=Memphis%20city,%20Tennessee&tid=ACSDP5Y2020.DP05 (accessed on 15 July 2022).
- U.S. Federal Bureau of Investigations. 2021. Crime Data Explorer. Available online: https://crime-data-explorer.app.cloud.gov/pages/explorer/crime/crime-trend (accessed on 28 July 2022).
- Watkins, Jerry. 2017. Keep on Carryin’ on: Recent Research on the LGBTQ History of the American South. History Compass 15: e12428. [Google Scholar] [CrossRef]
- Weiss, Margot Danielle. 2011. Techniques of Pleasure: BDSM and the Circuits of Sexuality. Durham: Duke University Press. [Google Scholar]
- Whitlock, Reta Ugena. 2013. Queer South Rising: Voices of a Contested Place. Charlotte: Information Age Publishing. [Google Scholar]
- Yang, Yo-Hsin. 2022. Sexuality on the Move: Gay Transnational Mobility Embedded on Racialised Desire for ‘White Asians’. Gender, Place & Culture, 1–21. [Google Scholar] [CrossRef]
- Yeros, Stathis G. 2022. AIDS and the City: Bathhouses, Emplaced Empathy and the de-Sexualization of San Francisco. Urban History, 1–18. [Google Scholar] [CrossRef]









Publisher’s Note: MDPI stays neutral with regard to jurisdictional claims in published maps and institutional affiliations. |
© 2022 by the authors. Licensee MDPI, Basel, Switzerland. This article is an open access article distributed under the terms and conditions of the Creative Commons Attribution (CC BY) license (https://creativecommons.org/licenses/by/4.0/).
Share and Cite
Yeros, S.G.; Chiesi, L. Trans Territorialization: Building Empowerment beyond Identity Politics. Soc. Sci. 2022, 11, 429. https://doi.org/10.3390/socsci11100429
Yeros SG, Chiesi L. Trans Territorialization: Building Empowerment beyond Identity Politics. Social Sciences. 2022; 11(10):429. https://doi.org/10.3390/socsci11100429
Chicago/Turabian StyleYeros, Stathis G., and Leonardo Chiesi. 2022. "Trans Territorialization: Building Empowerment beyond Identity Politics" Social Sciences 11, no. 10: 429. https://doi.org/10.3390/socsci11100429
APA StyleYeros, S. G., & Chiesi, L. (2022). Trans Territorialization: Building Empowerment beyond Identity Politics. Social Sciences, 11(10), 429. https://doi.org/10.3390/socsci11100429

