Daylighting Retrofit Methods as a Tool for Enhancing Daylight Provision in Existing Educational Spaces—A Case Study
Abstract
1. Introduction
1.1. Lighting Codes for Classrooms
1.2. Sample of the Space under Investigation
1.3. Daily Sunshine at the Area of Study
2. Materials and Methods
2.1. Simulation Software
2.1.1. Simulation Time
2.1.2. Radiance Parameters
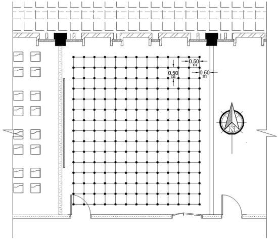
2.1.3. Horizontal Sensors Grid
2.1.4. Vertical Sensors Grid
2.2. Suggested Retrofit Daylighting Techniques
- Case No.1: In this case, the changes applied to the classroom were limited to the reflectance of the ceiling and the wall facing the windows (back wall). The reflectance of these elements was modified as shown in Table 3.
- Case No.2: In this case, a clerestory window was constructed at the common wall between the classroom and the corridor, as illustrated in Figure 7. The window was double-glazed for acoustic purposes and had a transmittance value of 0.65.
- Case No.3: In this case, six lightshelves were installed within the frame of the northern windows, at a distance of 2/3 of the windows’ height. The upper surface had a reflectance factor of 0.95, while the lower surface was matte. Every lightshelf was 0.3 m wide and extended 0.3 m to the outside and 0.3 m into the classroom, as illustrated in Figure 8.
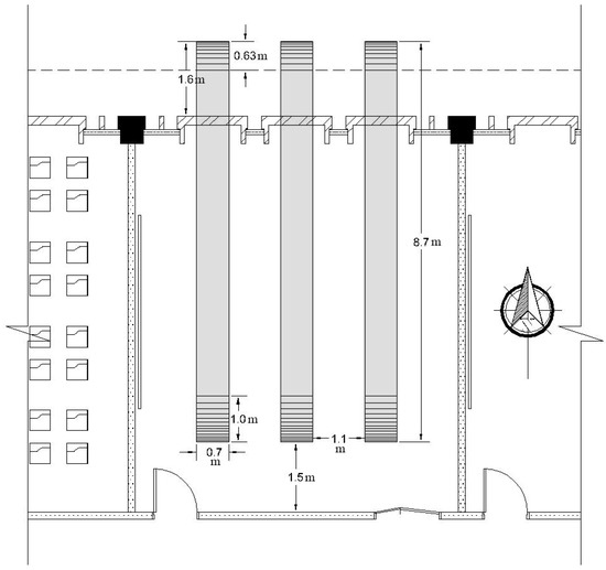
- Case No.4: In this case, three anidolic ducts were installed between the false ceiling and the concrete slab, as shown in Figure 9. The anidolic duct was made of stainless steel, with an internal reflectance value is 0.95. The duct extended 1.6 m outside the windows to the north, and it ended at the deeper side of the classroom, as shown in Figure 10. The entry aperture of the anidolic duct was 0.63 m × 0.7 m, while the exit aperture was 1.0 m × 0.7 m. The duct was sealed with a single-pane glass of 0.9 VLT on both entry and exit apertures. The height of the duct was 0.5 m.
- Case No.5: In this case, three anidolic ducts were installed between the false ceiling and the concrete slab. The anidolic ducts were made of stainless steel and had an internal reflectance value of 0.95. The ducts in this case, shown in Figure 11 and Figure 12, differed from the ducts in Case No.4 only by direction (to south). The exit apertures were the same for Case No.4 and Case No.5. As in Case No.4, the entry and exit apertures were sealed with a single-pane glass of 0.9 VLT.
- Case No.6: In this case, the settings of Case No.2 and Case No.5 were combined together, clerestory window and the anidolic ducts directed toward north. The characteristics of the two settings were the same as described previously.
- Case No.7: In this case, the settings of Case No.2 and Case No.6 were combined together, clerestory window and the anidolic ducts directed toward south. The characteristics of the two settings were the same as described previously.
3. Results and Discussion
3.1. Illuminance Level and Distribution on Horizontal Plane
3.2. Illuminance Level and Distribution on the Vertical Plane
4. Conclusions
Author Contributions
Funding
Acknowledgments
Conflicts of Interest
References
- De Giuli, V.; Da Pos, O.; De Carli, M. Indoor environmental quality and pupil perception in Italian primary schools. Build. Environ. 2012, 56, 335–345. [Google Scholar] [CrossRef]
- Kruger, E.L.; Zannin, P.H.T. Acoustic, thermal and luminous comfort in classrooms. Build. Environ. 2004, 39, 1055–1063. [Google Scholar] [CrossRef]
- De Santoli, L.; Fraticelli, F.; Fornari, F.; Calice, C. Energy performance assessment and a retrofit strategies in public school buildings in Rome. Energy Build. 2014, 68, 196–202. [Google Scholar] [CrossRef]
- Erhorn, H.; Mroz, T.; Mørck, O.; Schmidt, F.; Schoff, L.; Thomsen, K.E. The Energy Concept Adviser—A tool to improve energy efficiency in educational buildings. Energy Build. 2008, 40, 419–428. [Google Scholar] [CrossRef]
- Abdelatia, B.; Sernidor, C.; Marenne, C. Daylighting Strategy for Sustainable Schools: Case Study of Prototype Classrooms in Libya. J. Sustain. Dev. 2010, 3, 60–67. [Google Scholar] [CrossRef]
- Hathaway, W.E. Lights, windows, color: Elements of the school environment. In Proceedings of the 59th Annual Meeting of the Council of Educational Facility Planners, Alberta, OH, Canada, 26–29 September 1983; p. 28. [Google Scholar]
- Lang, D.C. Teacher Interactions within the Physical Environment: How Teachers Alter Their Space and/or Routines Because of Classroom Character. Ph.D. Thesis, University of Washington, Seattle, WA, USA, 2002. [Google Scholar]
- Rittner, H.; Robbin, M. Color and light in learning. Sch. Plan. Manag. 2002, 41, 57–58. [Google Scholar]
- Woolner, P.; Hall, E.; Higgins, S.; McCaughey, C.; Wall, K. A sound foundation? What we know about the impact of environments on learning and the implications for Building Schools for the Future. Oxf. Rev. Educ. 2007, 33, 47–70. [Google Scholar] [CrossRef]
- Winterbottom, M.; Wilkins, A. Lighting and discomfort in the classroom. J. Environ. Psychol. 2009, 29, 63–75. [Google Scholar] [CrossRef]
- Carlucci, S.; Causone, F.; De Rosa, F.; Pagliano, L. A review of indices for assessing visual comfort with a view to their use in optimization processes to support building integrated design. Renew. Sustain. Energy Rev. 2015, 47, 1016–1033. [Google Scholar] [CrossRef]
- Frontczak, M.; Wargocki, P. Literature survey on how different factors influence human comfort in indoor environments. Build. Environ. 2011, 46, 922–937. [Google Scholar] [CrossRef]
- Boneh, M. Comfort in Educational Buildings—Influence of Windows and Other Openings. Environ. Energy Build. 1982, 4, 239–243. [Google Scholar] [CrossRef]
- Labib, R. Improving daylighting in existing classrooms using laser cut panels. Light. Res. Technol. 2013, 45, 585–598. [Google Scholar] [CrossRef]
- Ne’eman, E. A Comprehensive Approach to the Integration of Daylight and Electric Light in Buildings. Energy Build. 1984, 6, 97–108. [Google Scholar] [CrossRef]
- Osterhaus, W.K.E. Discomfort glare assessment and prevention for daylight applications in office environments. Sol. Energy 2005, 79, 140–158. [Google Scholar] [CrossRef]
- Alrubaih, M.S.; Zain, M.F.M.; Alghoul, M.A.; Ibrahim, N.L.N.; Shameri, M.A.; Elayeb, O. Research and development on aspects of daylighting fundamentals. Renew. Sustain. Energy Rev. 2013, 21, 494–505. [Google Scholar] [CrossRef]
- Yu, X.; Su, Y. Daylight availability assessment and its potential energy saving estimation—A literature review. Renew. Sustain. Energy Rev. 2015, 52, 494–503. [Google Scholar] [CrossRef]
- Ne’eman, E.; Shrifteilig, D. Daylighting of buildings in a hot climate. Energy Build. 1982, 4, 195–204. [Google Scholar] [CrossRef]
- Al-Khatatbeh, B.J.; Ma’bdeh, S.N. Improving visual comfort and energy efficiency in existing classrooms using passive daylighting techniques. Energy Procedia 2017, 136, 102–108. [Google Scholar] [CrossRef]
- Dascalakia, E.G.; Sermpetzoglou, V.G. Energy performance and indoor environmental quality in Hellenic schools. Energy Build. 2011, 43, 718–727. [Google Scholar] [CrossRef]
- Bezjak, B.; Cerne, B.; Kalcic, I.; Medved, S. Optimizing the Form of School Buildings by Using the Requirements for Daylight Illumination. Archit. Sci. Rev. 2011, 46, 305–311. [Google Scholar] [CrossRef]
- Yener, A.K. Daylight Analysis in Classrooms with Solar Control. Archit. Sci. Rev. 2011, 45, 311–316. [Google Scholar] [CrossRef]
- Kruger, E.L.; Dorigo, A.L. Daylighting analysis in a public school in Curitiba, Brazil. Renew. Energy 2008, 33, 1695–1702. [Google Scholar] [CrossRef]
- Rea, M.S. The IESNA Lighting Handbook: Reference & Application, 10th ed.; Illuminating Engineering Society of North America: New York, NY, USA, 2000; ISBN 0879952415. [Google Scholar]
- LG5 CIBSE/SLL. Lighting Guide 5: Lighting for Education; Chartered Institution of Building Services Engineers: London, UK, 2011. [Google Scholar]
- European Committee for Standardization. Light and Lighting—Lighting of Work Places—Part 1: Indoor Work Places; EN 17037, Daylight in Buildings; CEN: Brussels, Belgium, 2002. [Google Scholar]
- Hensen, J.L.M.; Lamberts, R. Building Performance Simulation for Design and Operation, 2nd ed.; Taylor and Francis: London, UK, 2019. [Google Scholar]
- Jarosz, W. Efficient Monte Carlo Methods for Light Transport in Scattering Media. Ph.D. Thesis, University of California, San Diego, CA, USA, 2008. [Google Scholar]
- Nikpor, M.; Kandar, M.Z.; Roshan, M. Empirical validation of IES<VE>simulation in term of daylight in self-shading office room in Malaysia. J. Basic Appl. Sci. Res. 2013, 3, 106–112. [Google Scholar]
- Kelindienst, S. Improving the Daylighting Conditions of Existing Buildings: The Benefits and Limitations of Integrating Anidolic Daylighting Systems Using the American Classroom as a Model. Master’s Thesis, Massachusetts Institute of Technology, Cambridge, MA, USA, 2003. [Google Scholar]
- Linhart, F.; Wittkopf, S.K.; Scartezzini, J.L. Performance of Anidolic daylighting systems in Tropical climates-Parametric studies for identification of main influencing factors. Sol. Energy 2010, 84, 1085–1094. [Google Scholar] [CrossRef]
- Ciugudeanu, C.; Beu, D. Passive Tubular Daylight Guidance System Survey. Procedia Technol. 2016, 22, 690–696. [Google Scholar] [CrossRef]
- Malet-Damour, B.; Boyer, H.; Fakra, A.H.; Bojic, M. Light pipes performance prediction: Inter model and experimental confrontation on vertical circular light-guides. Energy Procedia 2014, 57, 1977–1986. [Google Scholar] [CrossRef]
- Linhart, F.; Scartezzini, J.L. Minimizing lighting power density in office rooms equipped with Anidolic Daylighting Systems. Sol. Energy 2010, 84, 587–595. [Google Scholar] [CrossRef]
- Lechner, N. Heating, Cooling, Lighting: Sustainable Design Methods for Architects, 3rd ed.; John Wiley & Sons, Inc.: Hoboken, NJ, USA, 2009; ISBN 13: 978-0470048092. [Google Scholar]
- Alkhatatbeh, B.J. Utilizing Daylight Potentials as a Tool for Improving Visual Comfort and Energy Efficiency in Existing Classroom—Case of Jordan University of Science and Technology (JUST). Master’s Thesis, Jordan University of Science and Technology, Irbid, Jordan, 2017. [Google Scholar]
- Brembilla, E.; Hopfe, C.J.; Mardaljevic, J. Influence of input reflectance values on climate-based daylight metrics using sensitivity analysis. J. Build. Perform. Simul. 2018, 11, 333–349. [Google Scholar] [CrossRef]
- Moazzeni, M.H.; Ghiabaklou, Z. Investigating the influence of light shelf geometry parameters on daylight performance and visual comfort, a case study of educational space in Tehran, Iran. Buildings 2016, 6, 26. [Google Scholar] [CrossRef]
- Freewan, A. Using Tubular Daylighting Systems to Improve Illuminance Level in Double Loaded Corridors in Educational Buildings. Jordan J. Civ. Eng. 2016, 10, 184–196. [Google Scholar] [CrossRef]
- Grobe, L.O.; Gecit, B.H.; Sevinc, Z.; Altinkaya, G.; Aksakarya, G.; Ergin, M.; Zturk, Y.; Kazanasmaz, T. Scale-model and simulation-based assessments for design alternatives of daylight redirecting systems for side-lighting in an educational design room. METU J. Fac. Archit. 2017, 34. [Google Scholar] [CrossRef]


























| Member | Material Reflectance |
|---|---|
| Ceiling | 0.70 |
| Floor | 0.44 |
| Walls | 0.56 |
| Desks plane | 0.21 |
| The chalkboard | 0.10 |
| External ground | 0.20 |
| Parameter | Description | Value |
|---|---|---|
| -aa | Ambient accuracy | 0.1 |
| -ab | Ambient bounces | 8 |
| -ad | Ambient divisions | 4096 |
| -ar | Ambient resolution | 2048 |
| -as | Ambient super-samples | 1024 |
| -dc | Direct certainty | 1 |
| -dp | Direct-pretest density | 2048 |
| -dr | Direct relays | 6 |
| -ds | Source substructuring | 1 |
| -dt | Direct thresholding | 0 |
| -lr | Limit reflection | 16 |
| -lw | Limit weight | 0 |
| -ps | Pixel sampling rate | 1 |
| -pt | Sampling threshold | 0 |
| -sj | Specular jitter | 0 |
| -st | Specular threshold | 0 |
| Element | Measured Reflectance in the Classroom | Simulated Reflectance in Case No.1 |
|---|---|---|
| Ceiling | 0.70 | 0.85 |
| Back wall | 0.56 | 0.70 |
© 2019 by the authors. Licensee MDPI, Basel, Switzerland. This article is an open access article distributed under the terms and conditions of the Creative Commons Attribution (CC BY) license (http://creativecommons.org/licenses/by/4.0/).
Share and Cite
Ma’bdeh, S.; Al-Khatatbeh, B. Daylighting Retrofit Methods as a Tool for Enhancing Daylight Provision in Existing Educational Spaces—A Case Study. Buildings 2019, 9, 159. https://doi.org/10.3390/buildings9070159
Ma’bdeh S, Al-Khatatbeh B. Daylighting Retrofit Methods as a Tool for Enhancing Daylight Provision in Existing Educational Spaces—A Case Study. Buildings. 2019; 9(7):159. https://doi.org/10.3390/buildings9070159
Chicago/Turabian StyleMa’bdeh, Shouib, and Baraa Al-Khatatbeh. 2019. "Daylighting Retrofit Methods as a Tool for Enhancing Daylight Provision in Existing Educational Spaces—A Case Study" Buildings 9, no. 7: 159. https://doi.org/10.3390/buildings9070159
APA StyleMa’bdeh, S., & Al-Khatatbeh, B. (2019). Daylighting Retrofit Methods as a Tool for Enhancing Daylight Provision in Existing Educational Spaces—A Case Study. Buildings, 9(7), 159. https://doi.org/10.3390/buildings9070159

