Seismic Strengthening and Energy Efficiency: Towards an Integrated Approach for the Rehabilitation of Existing RC Buildings
Abstract
1. Introduction
- (a)
- reuse or recyclability of the construction works, their materials and parts after demolition;
- (b)
- durability of the construction works; and,
- (c)
- use of environmentally compatible raw and secondary materials in the construction works”.
2. Review of the Italian Energy Efficiency Rules
3. Mechanical and Thermal Properties of Infill Types
4. Seismic and Thermal Rehabilitation: An Application of Integrated Approach
- C1
- as-built;
- C2
- rehabilitated by replacing the external layer of the as-built infill walls with a new panel having better thermal insulation properties; and,
- C3
- rehabilitated by considering a double-skin solution where new RC frames are externally added and properly connected to the existing RC structure.
4.1. Building Type Description and Modelling
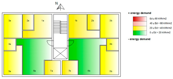
4.2. Energy Assessment of the As-Built Building
4.3. Seismic Assessment of the As-Built Structure
4.4. Design of Thermal and Seismic Rehabilitation
5. Final Remarks
Acknowledgments
Author Contributions
Conflicts of Interest
References
- Ilki, A.; Fardis, M.N. (Eds.) Seismic Evaluation and Rehabilitation of Structures; Springer: Berlin/Heidelberg, Germany, 2014. [Google Scholar]
- Joint Research Center (JRC). New European Technical Rules for the Assessment and Retrofitting of Existing Structures; Dimova, S., Pinto, A., Luechinger, P., Denton, S., Eds.; Joint Research Center: Brussels, Belgium, 2015. [Google Scholar]
- CPR 305/2011/EU. Regulation (EU) No 305/2011 of the European Parliament and of the Council of 9 March 2011 laying down behavior conditions for the marketing of construction products and repealing Council Directive 89/106/EEC. Off. J. Eur. Union 2011, L 88, 5–43. [Google Scholar]
- CPD 89/106/CEE. Council Directive of 21 December 1988 on the approximation of laws, regulations and administrative provisions of the Member States relating to construction products. Off. J. Eur. Commun. 1989, L 40, 12–26. [Google Scholar]
- Buildings Performance Institute Europe (BPIE). Europe’s Buildings under the Microscope. A Country-by-Country Review of the Energy Performance of Buildings; Buildings Performance Institute Europe: Brussels, Belgium, 2011. [Google Scholar]
- Masi, A.; Manfredi, V.; Ventura, G. Progettazione integrata di interventi per il miglioramento delle prestazioni sismiche e termiche di edifici esistenti in c.a. In Proceedings of the ANIDIS Conference “L’ingegneria Sismica in Italia”, L’Aquila, Italy, 13–17 September 2015. (In Italian). [Google Scholar]
- ISTAT2011. 15° Censimento Generale Della Popolazione e delle Abitazioni. Available online: http://istat.it/MD/ (accessed on 20 February 2018). (In Italian).
- Rossetto, T.; Peiris, N.; Alarcon, J.E.; So, E.; Sargeant, S.; Free, M.; Sword-Daniels, V.; Del Re, D.; Libberton, C.; Verrucci, E.; et al. Field Observations from the Aquila, Italy Earthquake of April 6, 2009. Bull. Earthq. Eng. 2011, 9, 11–37. [Google Scholar] [CrossRef]
- Ricci, P.; De Luca, F.; Verderame, G.M. 6th April 2009 L’Aquila earthquake, Italy: Reinforced concrete building performance. Bull. Earthq. Eng. 2011, 9, 285–305. [Google Scholar] [CrossRef]
- Manfredi, G.; Prota, A.; Verderame, G.M.; De Luca, F.; Ricci, P. 2012 Emilia earthquake, Italy: Reinforced concrete buildings response. Bull. Earthq. Eng. 2014, 12, 2275–2298. [Google Scholar] [CrossRef]
- Penna, A.; Morandi, P.; Rota, M.; Manzini, C.F.; da Porto, F.; Magenes, G. Performance of masonry buildings during the Emilia 2012 earthquake. Bull. Earthq. Eng. 2014, 12, 2255–2273. [Google Scholar] [CrossRef]
- Masi, A.; Chiauzzi, L.; Santarsiero, G.; Liuzzi, M.; Tramutoli, V. Seismic damage recognition based on field survey and remote sensing: General remarks and examples from the 2016 Central Italy earthquake. Nat. Hazards 2017. [Google Scholar] [CrossRef]
- Law n. 10, 9 January 1991. Norme per L’attuazione del Piano Energetico Nazionale in Materia di uso Razionale Dell’energia, di Risparmio Energetico e di Sviluppo Delle Fonti Rinnovabili di Energia, n.13, 16–1-1991—Suppl. Ordinario n. 6.; Gazzetta Ufficiale: Rome, Italy, 1991. (In Italian)
- Fardis, M.N. Seismic Design, Assessment and Retrofitting of Concrete Buildings (Based on EN-Eurocode 8); Springer Science+Business Media BV: Dordrecht, The Netherlands, 2009; 766p, ISBN 978-1-4020-9841-3. [Google Scholar]
- Calvi, G.M. Choices and Criteria for Seismic Strengthening. J. Earthq. Eng. 2013, 17, 769–802. [Google Scholar] [CrossRef]
- Marino, F.P.R.; Grieco, M. La certificazione energetica degli edifici e il. D. Lgs 2009, 192, 720. (In Italian) [Google Scholar]
- Sassu, M.; Stochino, F.; Mistretta, F. Assessment method for Combined Structural and Energy Retrofitting in Masonry Buildings. Buildings 2017, 7, 71. [Google Scholar] [CrossRef]
- Mauro, G.M.; Menna, C.; Vitiello, U.; Asprone, D.; Ascione, F.; Bianco, N.; Prota, A.; Vanoli, G.P. A Multi-Step Approach to Assess the Lifecycle Economic Impact of Seismic Risk on Optimal Energy Retrofit. Sustainability 2017, 9, 989. [Google Scholar] [CrossRef]
- Calvi, G.M.; Sousa, L.; Ruggeri, C. Energy efficiency and seismic resilience: A common approach. In Multi-Hazard Approaches to Civil Infrastructure Engineering; Gardoni, P., LaFave, J.M., Eds.; Springer International Publishing: Cham, Switzerland, 2016. [Google Scholar]
- Marques, R.; Lamego, P.; Lourenço, P.B.; Sousa, M.L. Efficiency and Cost-Benefit Analysis of Seismic Strengthening Techniques for Old Residential Buildings in Lisbon. J. Earthq. Eng. 2017. [Google Scholar] [CrossRef]
- Fardis, M.N. Design provisions for masonry-infilled RC frames. In Proceedings of the 12th World Conference on Earthquake Engineering, Auckland, New Zeland, 30 January–4 February 2000. [Google Scholar]
- Dolšek, M.; Fajfar, P. Soft storey effects in uniformly infilled reinforced concrete frames. J. Earthq. Eng. 2001, 5, 1–12. [Google Scholar] [CrossRef]
- Masi, A.; Digrisolo, A.; Manfredi, V. Fragility curves of gravity-load designed RC buildings with regularity in plan. Earthq. Struct. 2015, 9, 1–27. [Google Scholar] [CrossRef]
- Manfredi, V.; Masi, A. Consistency of analysis methods considered in EC8-3 for the seismic assessment of RC existing buildings. Bull. Earthq. Eng. 2017. [Google Scholar] [CrossRef]
- Fardis, M.N.; Panagiotakos, T.B. Seismic design and response of bare and masonry-infilled reinforced concrete buildings. Part II: Infilled structures. J. Earthq. Eng. 1997, 1, 475–503. [Google Scholar] [CrossRef]
- Masi, A. Seismic vulnerability assessment of gravity load designed R/C frames. Bull. Earthq. Eng. 2003, 1, 371–395. [Google Scholar] [CrossRef]
- Repapis, C.; Zeris, C.; Vintzileou, E. Evaluation of the seismic performance of existing RC buildings: II. A case study for regular and irregular buildings. J. Earthq. Eng. 2006, 10, 429–452. [Google Scholar] [CrossRef]
- Verderame, G.M.; De Luca, F.; Ricci, P.; Manfredi, G. Preliminary analysis of a soft-storey mechanism after the 2009 L’Aquila earthquake. Earthq. Eng. Struct. Dyn. 2011, 40, 925–944. [Google Scholar] [CrossRef]
- Braga, F.; Manfredi, V.; Masi, A.; Salvatori, A.; Vona, M. Performance of nonstructural elements in RC buildings during the L’Aquila, 2009 earthquake. Bull. Earthq. Eng. 2011, 9, 307–324. [Google Scholar] [CrossRef]
- Manfredi, V.; Masi, A. Combining in-plane and out-of-plane behavior of masonry infills in the seismic analysis of RC buildings. Earthq. Struct. 2014, 6, 457–472. [Google Scholar] [CrossRef]
- Calvi, G.M.; Bolognini, D.; Penna, A. Seismic performance of masonry-infilled r.c. frames: Benefits of slight reinforcement. In Proceedings of the Sismica 2004—6° Congresso Nacional de Sismologia e Engenharia Sísmica, Guimarães, Portugal, 14–16 April 2004. [Google Scholar]
- Guidi, G.; da Porto, F.; Dalla Benetta, M.; Verlato, N.; Modena, C. Comportamento sperimentale nel piano e fuori dal piano di tamponamenti in muratura armata e rinforzata. In Proceedings of the ANIDIS Conference “L’ingegneria Sismica in Italia”, Padova, Italy, 30 June–4 July 2013. (In Italian). [Google Scholar]
- Preti, M.; Migliorati, L.; Giuriani, E. Experimental testing of engineered masonry infill walls for post-earthquake structural damage control. Bull. Earthq. Eng. 2015, 13, 2029. [Google Scholar] [CrossRef]
- Da Porto, F.; Verlato, N.; Guidi, G.; Modena, C. The INSYSME project: Innovative construction systems for earthquake resistant masonry infill walls. In Brick and Block Masonry—Trends, Innovations and Challenges; Modena, C., da Porto, F., Valluzzi, M.R., Eds.; Taylor & Francis Group: London, UK, 2016; ISBN 978-1-138-02999-6. [Google Scholar]
- Morandi, P.; Milanesi, R.R.; Magenes, G. Innovative seismic solution for clay masonry infills with sliding joints: Principles and details. In Brick and Block Masonry—Trends, Innovations and Challenges; Modena, C., da Porto, F., Valluzzi, M.R., Eds.; Taylor & Francis Group: London, UK, 2016; ISBN 978-1-138-02999-6. [Google Scholar]
- Fiore, A.; Mezzina, M.; Porco, F.; Uva, G. Solidarizzazione delle tamponature per il miglioramento sismico di edifici esistenti. In Proceedings of the ANIDIS Conference “L’ingegneria sismica in Italia”, Padova, Italy, 30 June–4 July 2013. (In Italian). [Google Scholar]
- Vamvatsikos, D.; Cornell, C.A. Incremental dynamic analysis. Earthq. Eng. Struct. Dyn. 2002, 31, 491–514. [Google Scholar] [CrossRef]
- Marini, A.; Feroldi, F.; Belleri, A.; Passoni, C.; Preti, M.; Giuriani, E.; Riva, P.; Plizzari, G. Coupling energy refurbishment with structural strengthening in retrofit interventions. In Proceedings of the SAFESUST Workshop, Ispra, Italy, 26–27 November 2015. [Google Scholar]
- Law n. 373, 30 March 1976. Norme per il Contenimento del Consumo Energetico per usi Termici Negli Edifici, n.148; Gazzetta Ufficiale: Rome, Italy, 1976. (In Italian)
- Presidential Decree n. 412, 26 August 1993. Regolamento Recante Norme per la Progettazione, L’installazione, L’esercizio e la Manutenzione Degli Impianti Termici Degli Edifici ai Fini del Contenimento dei Consumi di Energia, in Attuazione dell’art. 4, Comma 4, della Legge 9 gennaio 1991, n. 10, n.242, 14-10-1993–S.O. n. 96; Gazzetta Ufficiale: Rome, Italy, 1993. (In Italian)
- Directive 2002/91/EC of the European Parliament and of the Council of 16 December 2002 on the energy performance of buildings. Off. J. Eur. Commun. 2003, L 1, 65–71.
- Kyoto Protocol to the United Nations Framework Convention on Climate Change. United Nations, 1998. Available online: http://unfccc.int/ (accessed on 20 February 2018).
- Legislative Decree n. 192, 19 August 2005. Attuazione della Direttiva 2002/91/CE Relativa al Rendimento Energetico Nell’edilizia, n. 222, 23-9-2005—Suppl. Ordinario n. 158; Gazzetta Ufficiale: Rome, Italy, 2005. (In Italian)
- Legislative Decree n. 311, 29 December 2006. Disposizioni Correttive ed Integrative al Decreto Legislativo n. 192 del 2005, Recante Attuazione Della Direttiva 2002/91/CE, Relativa al Rendimento Energetico Nell’edilizia, n. 26; Gazzetta Ufficiale: Rome, Italy, 2007. (In Italian)
- Presidential Decree n. 59, 2 Aprile 2009. Regolamento di Attuazione Dell’articolo 4, Comma 1, Lettere a) e b), del Decreto Legislativo 19 Agosto 2005, n. 192, Concernente Attuazione Della Direttiva 2002/91/CE sul Rendimento Energetico in Edilizia, n. 132; Gazzetta Ufficiale: Rome, Italy, 2009. (In Italian)
- Directive 2010/31/EU of the European Parliament and of the Council of 19 May 2010 on the energy performance of buildings. Off. J. Eur. Union 2010, L 153, 13–35.
- Legislative Decree n. 28, 3 March 2011. Attuazione Della Direttiva 2009/28/CE Sulla Promozione Dell’uso Dell’energia da Fonti Rinnovabili, Recante Modifica e Successiva Abrogazione Delle Direttive 2001/77/CE e 2003/30/CE, n.71 del 28-3-2011—Suppl. Ordinario n. 81; Gazzetta Ufficiale: Rome, Italy, 2011. (In Italian)
- Ministerial Decree 26 June 2015. Applicazione Delle Metodologie di Calcolo Delle Prestazioni Energetiche e Definizione Delle Prescrizioni e dei Requisiti Minimi Degli Edifici, n. 162, 15-07-2015—Suppl. Ordinario n. 39; Gazzetta Ufficiale: Rome, Italy, 2015.
- Masi, A.; Manfredi, V.; Vona, M.; Braga, F.; Salvatori, A. Prestazioni degli elementi non strutturali negli edifici in c.a.: Implicazioni progettuali e costruttive alla luce dell’esperienza del terremoto dell’Abruzzo 2009. Progett. Sismica 2010, 51–66. (In Italian) [Google Scholar]
- Lamego, P.; Lourenço, P.B.; Sousa, M.L. Marques, R. Seismic vulnerability and risk analysis of the old building stock at urban scale: Application to a neighbourhood in Lisbon. Bull. Earthq. Eng. 2017, 15, 2901–2937. [Google Scholar] [CrossRef]
- De Sortis, A.; Bazzurro, P.; Mollaioli, F.; Bruno, S. Influenza delle tamponature sul rischio sismico degli edifici in calcestruzzo armato. In Proceedings of the ANIDIS Conference “L’ingegneria Sismica in Italia”, Pisa, Italy, 10–14 June 2007. (In Italian). [Google Scholar]
- Campioli, A.; Ferrari, S.; Lavagna, M. Il D.Lgs 192/2005 e le chiusure verticali opache. Come si cambia. Costruire 2006, 277, 1–7. (In Italian) [Google Scholar]
- Biondi, S.; Colangelo, F.; Nuti, C. La Risposta Sismica dei Telai con Tamponature Murarie; CNR-Gruppo Nazionale per la Difesa dai Terremoti: Roma, Italy, 2000; p. 179. (In Italian) [Google Scholar]
- Colangelo, F. Stima della resistenza a compressione delle tamponature. Costruire Laterizio 2004, 17, 62–67. (In Italian) [Google Scholar]
- Beconcini, M.L. Resistenza a Forze Orizzontali di Pareti in Elementi Forati di Laterizio. Research Report. 2004. Available online: www.laterizio.it (accessed on 20 February 2018). (In Italian).
- Campioli, A.; Ferrari, S.; Lavagna, M.; Monticelli, C.; Morello, E. Involucri in laterizio. Ricette di chiusura. Costruire 2006, 281, 165–180. (In Italian) [Google Scholar]
- Albanesi, T.; Bergami, A.V.; Nuti, C.; Biondi, S.; Candigliota, E. Caratterizzazione teorico-sperimentale di tamponature in laterizio per telai in cemento armato. In Proceedings of the ANIDIS Conference “L’ingegneria sismica in Italia”, Pisa, Italy, 10–14 June 2007. (In Italian). [Google Scholar]
- Circular n. 617, 2 February 2009. Istruzioni per L’applicazione Delle “Nuove Norme Tecniche per le Costruzioni” di cui al D.M. 14 Gennaio 2008. Ministero delle Infrastrutture e dei Trasporti, n. 47, 26 February 2009, Supplemento Ordinario n. 27; Gazzetta Ufficiale: Rome, Italy, 2009. (In Italian)
- Monticelli, C. Il comportamento energetico di pareti in laterizio a vista. Costru. Laterizio 2009, 127, 54–61. (In Italian) [Google Scholar]
- Ministrial Decree 14 January 2008, NTC 2008. Norme Tecniche per le Costruzioni, Ministero delle Infrastrutture. Available online: http//www.cslp.it (accessed on 20 February 2018). (In Italian).
- McKenna, F. OpenSees: A framework for earthquake engineering simulation. Comput. Sci. Eng. 2011, 13, 58–66. [Google Scholar] [CrossRef]
- Ibarra, L.F.; Medina, R.A.; Krawinkler, H. Hysteretic models that incorporate strength and stiffness deterioration. Earthq. Eng. Struct. Dyn. 2005, 34, 1489–1511. [Google Scholar] [CrossRef]
- Haselton, C.B.; Deierlein, G.G. Assessing Seismic Collapse Safety of Modern Reinforced Concrete Moment Frame Buildings; Blume Report n. 156; Department of Civil and Environmental Engineering, Stanford University: Standford, CA, USA, 2007. [Google Scholar]
- Sezen, H. Seismic Response and Modeling of Reinforced Concrete Building Columns. Ph.D. Thesis, Department of Civil and Environmental Engineering, University of California, Berkeley, CA, USA, 2002. [Google Scholar]
- Elwood, K.J.; Moehle, J.P. Dynamic collapse analysis for a reinforced concrete frame sustaining shear and axial failures. Earthq. Engng. Struct. Dyn. 2008, 37, 991–1012. [Google Scholar] [CrossRef]
- Bertoldi, S.H.; Decanini, L.D.; Gavarini, C. Telai tamponati soggetti ad azioni sismiche, un modello semplificato, confronto sperimentale e numerico. In Proceedings of the VI ANIDIS Conference “L’ingegneria sismica in Italia”, Perugia, Italy, 13–15 October 1993. (In Italian). [Google Scholar]
- Masi, A.; Manfredi, V.; Cetraro, G. In-plane performance of RC infilled frames under seismic actions: Experimental versus code provision values. In Brick and Block Masonry—Trends, Innovations and Challenges; Modena, C., da Porto, F., Valluzzi, M.R., Eds.; Taylor & Francis Group: London, UK, 2016; ISBN 978-1-138-02999-6. [Google Scholar]
- Decanini, L.; Liberatore, L.; Mollaioli, F. Strength and stiffness reduction factors for infilled frames with openings. Earthq. Eng. Eng. Vib. 2014, 13, 437–454. [Google Scholar] [CrossRef]
- UNI/TS 11300-1. Prestazioni Energetiche Degli Edifici Parte 1: Determinazione del Fabbisogno di Energia Termica Dell’edificio per la Climatizzazione Estiva ed Invernale; Ente Italiano di Normazione: Milano, Italia, 2014. (In Italian) [Google Scholar]
- Acca Software S.p.A. Thermus. Prestazioni energetiche e Certificazione. Available online: www.acca.it (accessed on 20 February 2018).
- Iervolino, I.; Spillatura, A.; Bazzurro, P. RINTC project: Assessing the (implicit) seismic risk of code-conforming structures in Italy. In Proceedings of the COMPDYN 2017, 6th ECCOMAS Thematic Conference on Computational Methods in Structural Dynamics and Earthquake Engineering, Rhodes Island, Greece, 15–17 June 2017; Papadrakakis, M., Fragiadakis, M., Eds.; National Technical University of Athens: Athens, Greece, 2017. [Google Scholar]
- Camata, G.; Celano, F.; De Risi, M.T.; Franchin, P.; Magliulo, G.; Manfredi, V.; Masi, A.; Mollaioli, F.; Noto, F.; Ricci, P.; et al. RINTC project: Nonlinear Dynamic Analyses of Italian code-conforming Reinforced Concrete Buildings for Risk of Collapse Assessment. In Proceedings of the COMPDYN 2017—6th ECCOMAS Thematic Conference on Computational Methods in Structural Dynamics and Earthquake Engineering, Rhodes Island, Greece, 15–17 June 2017; Papadrakakis, M., Fragiadakis, M., Eds.; National Technical University of Athens: Athens, Greece, 2017. [Google Scholar]
- Masi, A.; Santarsiero, G.; Nigro, D. Cyclic tests on external RC beam-column joints: Role of seismic design level and axial load value on the ultimate capacity. J. Earthq. Eng. 2013, 17, 110–136. [Google Scholar] [CrossRef]
- Presidential Decree n. 3519/2006. Criteri Generali Per L’individuazione Delle Zone Sismiche e Per la Formazione e L’aggiornamento Degli Elenchi Delle Medesime Zone, n. 108; Gazzetta Ufficiale: Rome, Italy, 2006. (In Italian)
- European Commission. Proposal for a Directive of the European Parliament and of the Council Amending Directive 2012/27/EU on Energy Efficiency; European Commission: Brussels, Belgium, 2016. [Google Scholar]










| Climatic Zone | U (W/m2K) |
|---|---|
| A and B | 0.45 |
| C | 0.38 |
| D | 0.34 |
| E | 0.30 |
| F | 0.28 |
| ID | PGA (g) | PGV (cm/s) | Sa,max (g) | HI (m) |
|---|---|---|---|---|
| 1 | 0.046 | 1.61 | 0.167 | 0.049 |
| 2 | 0.035 | 2.13 | 0.125 | 0.054 |
| 3 | 0.043 | 0.41 | 0.183 | 0.054 |
| 4 | 0.021 | 0.83 | 0.086 | 0.052 |
| 5 | 0.070 | 0.26 | 0.339 | 0.047 |
| 6 | 0.050 | 2.37 | 0.089 | 0.052 |
| 7 | 0.029 | 0.45 | 0.108 | 0.061 |
| 8 | 0.009 | 0.85 | 0.037 | 0.083 |
| 9 | 0.026 | 0.31 | 0.105 | 0.064 |
| 10 | 0.028 | 0.56 | 0.147 | 0.055 |
| DLLS | LSLS | |||||
|---|---|---|---|---|---|---|
| Seismic Zone | Se,C (g) | Se,D (g) | αDL = Se,C/Se,D | Se,C (g) | Se,D (g) | αLS = Se,C/Se,D |
| Low | 0.105 | 0.015 | 7.00 | 0.110 | 0.049 | 2.24 |
| Mid | 0.054 | 1.94 | 0.144 | 0.76 | ||
| High | 0.084 | 1.25 | 0.289 | 0.38 | ||
| Seismic Zone | (C1) As-Built | (C2) Partial Replacement of Infills | (C3) New Infilled Frames | ||||||
|---|---|---|---|---|---|---|---|---|---|
| Se,C (g) | Se,D (g) | α = Se,C/Se,D | Se,C (g) | Se,D (g) | α = Se,C/Se,C | Se,C (g) | Se,D (g) | α = Se,C/Se,C | |
| Low | 0.110 | 0.049 | 2.24 | 0.168 | 0.052 | 3.23 | 0.430 | 0.055 | 7.81 |
| Mid | 0.144 | 0.76 | 0.159 | 1.05 | 0.168 | 2.56 | |||
| High | 0.289 | 0.38 | 0.302 | 0.55 | 0.312 | 1.38 | |||
| ID Intervention | Tx (s) | M%x (%) | Ty (s) | M%y (%) |
|---|---|---|---|---|
| C1 (as-built) | 0.85 | 82.4 | 0.80 | 80.3 |
| C2 | 0.63 | 79.7 | 0.56 | 79.1 |
| C3 | 0.60 | 80.0 | 0.49 | 82.1 |
© 2018 by the authors. Licensee MDPI, Basel, Switzerland. This article is an open access article distributed under the terms and conditions of the Creative Commons Attribution (CC BY) license (http://creativecommons.org/licenses/by/4.0/).
Share and Cite
Manfredi, V.; Masi, A. Seismic Strengthening and Energy Efficiency: Towards an Integrated Approach for the Rehabilitation of Existing RC Buildings. Buildings 2018, 8, 36. https://doi.org/10.3390/buildings8030036
Manfredi V, Masi A. Seismic Strengthening and Energy Efficiency: Towards an Integrated Approach for the Rehabilitation of Existing RC Buildings. Buildings. 2018; 8(3):36. https://doi.org/10.3390/buildings8030036
Chicago/Turabian StyleManfredi, Vincenzo, and Angelo Masi. 2018. "Seismic Strengthening and Energy Efficiency: Towards an Integrated Approach for the Rehabilitation of Existing RC Buildings" Buildings 8, no. 3: 36. https://doi.org/10.3390/buildings8030036
APA StyleManfredi, V., & Masi, A. (2018). Seismic Strengthening and Energy Efficiency: Towards an Integrated Approach for the Rehabilitation of Existing RC Buildings. Buildings, 8(3), 36. https://doi.org/10.3390/buildings8030036
