Next Article in Journal
The Acoustics of the Double Elliptical Vault of the Royal Palace of Caserta (Italy)
Next Article in Special Issue
Nearly Zero Energy Standard for Non-Residential Buildings with high Energy Demands—An Empirical Case Study Using the State-Related Properties of BAVARIA
Previous Article in Journal
Buildings Energy Performance in a Market Comparison Approach
 
 
Font Type:
Arial Georgia Verdana
Font Size:
Aa Aa Aa
Line Spacing:
Column Width:
Background:
Article

The Role of Vernacular Construction Techniques and Materials for Developing Zero-Energy Homes in Various Desert Climates

1
School of Engineering and Built Environment, Glasgow Caledonian University, Cowcaddens Road, Glasgow G4 0BA, UK
2
Department of Architectural Engineering, King Fahd University of Petroleum and Minerals, Dhahran 31261, Saudi Arabia
*
Author to whom correspondence should be addressed.
Buildings 2017, 7(1), 17; https://doi.org/10.3390/buildings7010017
Submission received: 17 November 2016 / Revised: 7 January 2017 / Accepted: 14 February 2017 / Published: 27 February 2017

Abstract

:
Hot desert regions, like Saudi Arabia, are very challenging in terms of building energy consumption. The role of the housing sector in the country is critical as it accounts for half of the total national electricity consumption. It is important to apply sustainable energy concepts in this sector, and the application of Zero-Energy Homes (ZEHs) could be an appropriate option in this regard. In ZEHs, the energy demand needs to be reduced significantly before employing renewable energy, and a way to achieve that is through applying vernacular construction techniques and materials. This study aims to investigate the role of courtyard, mushrabiyah and adobe construction for the development of ZEHs in the five main Saudi climatic zones represented by Dhahran, Guriat, Riyadh, Jeddah and Khamis Mushait. A base house is designed, modelled and compared with measured electricity values. The comparison between the base house and the houses adapted with these techniques and materials is undertaken based on the annual electricity demand and the maximum power demand, and findings reveal that mushrabiyah can reduce them by 4% and 3%, respectively, while adobe can reduce them by 6% and 19%, respectively. Courtyards are found to be not helpful in terms of energy saving.

1. Introduction

The world faces a string of serious energy and environmental challenges. Fossil fuel reserves, presently contributing to over 80% of the world’s total primary energy consumption, for example, are declining; the demand for energy is on a steep rise; and energy prices are fluctuating and rising [1]. The global primary energy consumption is reported to have increased by 29% from 2000 to 2010 and is forecasted to see a further 20% jump by 2020 [2]. While there are growing concerns about the security of energy supplies, environmental security is also one of the biggest threats for the planet. The global energy and environmental scenarios are closely interlinked; the problems with the supply and use of energy are related to wider environmental issues, including global warming.
Buildings and the construction industry have a strong interaction with the global energy and environmental scenarios. Buildings are responsible for more than 40% of global energy consumption and over a third of the total global greenhouse gas (GHG) emissions [3]. A building uses energy throughout its life (i.e., from its construction to its demolition). The demand for energy in buildings in their life cycle is both direct and indirect. Direct energy is used for construction, operation, renovation and demolition in a building; whereas indirect energy is consumed by a building for the production of material used in its construction and technical installations [4,5]. Given the crucial role buildings can play towards mitigating the energy and environmental issues, the application of energy-efficient and sustainable buildings has received significant attention across the world especially in the residential sector [6]. The residential sector represents 26% and 17% of world energy consumption and carbon dioxide (CO2), respectively [7]. Many forms of sustainable residential buildings, such as Low-energy homes, zero-energy homes, passive houses and plus-energy homes, are being developed across the world, as can be reflected through the number of buildings going for sustainability certification. For instance, the worldwide number of buildings certified by the Leadership in Energy and Environmental Design (LEED) has exceeded 70,000 [8]. In Europe, the Building Research Establishment Environmental Assessment Methodology (BREEAM) has reported more than 8500 projects that have been assessed and certified [9]. Furthermore, in Australia, the number of projects that were assessed and certified by Green Star is 993 [10]. Furthermore, there are currently more than 450 buildings in Japan that were certified by the Comprehensive Assessment System for Built Environment Efficiency (CASBEE) [11].
The present work concerns regarding the development of Zero-Energy Homes (ZEHs). A ZEH is a term widely known for residential buildings with zero net energy consumption and zero CO2 emissions. A more descriptive definition of ZEH is provided by Torcellini et al. as: “a residential building with greatly reduced energy needs through efficiency gains such that the balance of energy needs can be supplied with renewable technologies” [12]. There seems to be an understanding that in ZEHs, off-site renewable energy generation can also be employed in case the on-site renewable systems are not practical or are not sufficient to support the energy requirements of the building. The on-site renewable resources for ZEHs include solar, wind, geothermal and biomass [13]. However, one of the most critical aspects of a ZEH is that its energy needs should be reduced before applying any of the renewable energy technologies. This reduction can be met through combining suitable sustainable design features and energy-efficiency measures [14,15,16]. The applications of the vernacular techniques and materials have been demonstrated as sustainable options for buildings through their improved energy, environmental and thermal performance [17,18].
One third of the world’s land is located in desert regions [19]. Hot deserts are amongst the most challenging regions in terms of energy consumption in buildings due to the intensive demand for cooling, as they experiences an extreme maximum air temperature of over 50 °C [20]. Saudi Arabia is an example of a hot desert country that lies between 31° N–17.5° N latitude and 50° E–36.6° E longitude. Saudi Arabia, on the one hand, has experience with vernacular housing, and on the other hand, it has many climatic zones that can represent various hot desert subzones. In addition, its residential sector is set to experience a strong growth in the future as the Saudi population is rising at a rate of 2.5% per year, and only 24% of the Saudi nationals have their own homes [21]. Estimates also suggested that around two-thirds of the population are under the age of 30 years [22]. To meet the needs of the constantly growing population, the country needs to build 230 thousand new homes annually through to 2020 [23]. Currently, the Ministry of Housing is planning to build 500 thousand housing units in the major cities of Saudi Arabia [24]. On the other hand, the residential sector in Saudi Arabia is responsible for 50% of the total national electricity consumption [25]. Therefore, it is essential to apply sustainable energy concepts in this sector, and the application of ZEHs could be an option in this regard. However, in order to develop ZEHs in Saudi Arabia, the current household electricity demand for dwellings in the country needs to be reduced by up to 50% before applying any renewable energy applications [26]. In particular, the international benchmark value for ZEH is about 90 kWh/m2, while it exceeds 175 kWh/m2 in Saudi houses [27,28,29].
This work aims to explore the role vernacular construction techniques and material can play in developing ZEHs in hot desert climates by taking Saudi Arabia as an example. The key objectives of this study are as below.
  • Review the traditional vernacular architecture techniques traditionally practiced in the hot desert climate of Saudi Arabia;
  • Develop the base model of a modern home aspired to be for Saudi residents;
  • Examine the impacts of individual vernacular features on the energy performance of the developed home under the five climatic zones of Saudi Arabia.
The present work discusses the traditional vernacular architecture, especially in Saudi Arabia, followed by describing the climatic zones in the country. It also presents the main aspects of a virtual (base) house designed based on a detailed questionnaire survey that was undertaken to determine an aspired dwelling in Saudi Arabia. Before adapting the base house with vernacular construction techniques and materials, the electricity performance of the base house itself has been compared with measured electricity values. Thereafter, a comparison between the base house and the houses adapted with vernacular construction techniques and materials has been undertaken based on the annual electricity demand and the maximum power demand.

2. Vernacular Architecture

Vernacular architecture is a human construct that results from the interrelations between ecological, economic, material, political and social factors [30]. Through history, many vernacular techniques and materials shaped by the local culture, weather and geographical location were employed around the world [31,32,33,34,35,36]. In addition, many of these techniques and materials have been utilised in various regions with different climatic conditions and cultural backgrounds. For example, adobe construction (clay or mud) has been used as a main construction material for thousands of years for the construction of buildings in most inhabited regions all over the world [32,35,37,38,39,40,41,42,43,44]. Moreover, some examples of modern buildings built from adobe construction can be found in many countries that have different climatic conditions [41,45,46]. Similarly, many vernacular techniques like courtyards and wind towers (catchers) were applied in modern buildings for passive designs [47]. However, there are some vernacular techniques that have been developed for hot desert climates to seek cooling and daylighting. Alp determines these techniques as courtyards, wind towers, badgeers, domes, air vents, planting, cooling towers, roof ponds, water walls, solar chimneys, induction vents and mushrabiyah/rowshans [39]. The selection of these techniques and materials for such a building is usually dependent on the desired benefits, as well as the local availability of construction materials and skilled labour.

2.1. Vernacular Architecture in Saudi Arabia

Over the last few decades, the life style of Saudi nationals has substantially changed, transforming from Bedouinism (desert life) to modern urbanism, affecting the nature of their dwellings. The housing in Saudi Arabia has dramatically transferred from tents and shelters to more permanent housing. Many vernacular architectural techniques, such as wind towers, courtyards, fountains and mushrabiyas, were traditionally used for cooling and daylighting [39]. Typical dwellings had thick walls, floors and roofs for better thermal performance [39]. Vernacular housing units were constructed from local materials that were produced in situ, such as clay (adobe), limestone, coral, stone and wood [48]. Adobe is a vernacular construction material that used to be widely used in the Saudi Arabian vernacular buildings, because of its local availability and its ability to protect from the outside weather. It was the main construction material for walls, floors and roofs within all vernacular types in Saudi Arabia, and although some types do not have adobe walls, all have an adobe roof. It is made from clay, sand, silt and water and is used for construction in hot desert regions. Houses built with adobe construction materials have stood the test of time: there are examples of such buildings that are more than 500 years old [40]. A study by Saleh has shown that, because of its lower thermal conductivity, the energy performance of adobe-based houses in Saudi Arabia is better than stone-built buildings [49]. Typically, the thickness of adobe walls is about 30–50 cm, while it should be at least 45 cm thick to gain the full benefit of the thermal mass, and typically, the roof is 30–40 cm thick [50]. However, with the introduction of concrete and steel building materials, the use of adobe has largely disappeared, despite studies showing that it has superior thermal properties compared to concrete and steel based structures [38,42,49,50], to the extent that it is difficult to find modern houses in Saudi Arabia built from adobe. Traditionally, the vernacular architectural types in Saudi Arabia can be categorized into four types.

2.1.1. The Arabian Gulf Type

The Arabian Gulf type is typical of the Eastern Province of Saudi Arabia, between the Arabian/Persian Gulf coast and the Najd region, influenced by neighbouring countries, such as Kuwait and Bahrain [48]. It is a courtyard house constructed from local stone and mud (see Figure 1). The concept of the courtyard was employed in Saudi vernacular houses to seek privacy, natural ventilation and daylighting [51]. Depending on the size of the house and the number of floors, the wall thickness varies from 35 to 80 cm and roof thickness between 30 and 65 cm [51].

2.1.2. The Hejaz Type

Hejaz region is home to the holy cities Makkah and Madina. The Ottoman Empire had an impact on shaping the Hejaz type when it ruled the region during the 16th century [48]. The buildings here are usually multi-storey with extensive decoration and wooden mushrabiyahs (see Figure 2). Mushrabiyah, also called rowshan, is a screened bay window that allows for natural ventilation and daylighting without affecting the resident’s privacy [51,52]. This type has been encouraged by pilgrims’ need for lodging and the seasonal renting of rooms, or even whole floors or buildings [48]. The use of adobe is limited, and the main construction materials are wood and stone, mainly due to local availability of stone [48]. The thickness of walls, floors and roofs is often between 50 and 60 cm [51].

2.1.3. The Najd Type

The Najd region is the central region of Saudi Arabia, also housing the national capital Riyadh. A Najd vernacular house can be typified as square or rectangular with rarely more than one floor [48]. Rooms are arranged around the central colonnaded courtyard and have small windows (see Figure 3). The adobe walls, floors and roof are between 50 cm and 80 cm thick, or sometimes even more [48].

2.1.4. The Asir Type

The Asir house can be a single or multi-storey, up to four floors. An Asir house with more than two floors is usually called Al-Qasabat. It has a relatively small area (about 100 m2) and with a height up to 10 m (see Figure 4) [51,54]. Asir houses are massive in terms of construction material, mainly for security reasons and to protect against weather [55]. The thickness of walls is from 60 to 100 cm [51].

2.2. Modern Houses in Saudi Arabia

The applications of the vernacular construction techniques and materials have been demonstrated as a sustainable option for buildings [17,18]. However, these techniques and materials are not being employed anymore in the Saudi building industry [56]. In fact, energy-intensive heating, ventilating and air conditioning (HVAC) systems have led to a move away from these sustainable features, and much of the architectural knowledge built up over the previous centuries appears to have been forgotten [39]. On the other hand, the modern houses have thinner walls and roofs and are made mostly from hollow blocks and reinforced concrete (see Figure 5). Consequently, these buildings are mainly dependent on HVAC systems that consume massive amounts of energy.

3. Climatic Zones and Solar Energy in Saudi Arabia

Saudi Arabia is a large country with an area of 2.3 million square kilometres and a land elevation that varies from 0 to 3000 m above the mean sea level [57]. With such a large land area and variation with regards to sea level, different parts of the country have distinctive climatic features, as are clearly noticeable in day to day life. Over the years, Saudi Arabia has been regionalized climatically by scientific and administrative bodies in several ways; it has been classified individually, part of the Gulf Cooperation Council (GCC) Countries, part of the Arab World and part of the Middle East North Africa (MENA) region [58]. The majority of these classifications described the country either as a desert or arid region (i.e., as one or two climatic zones). Köppen-Geiger, for example, has classified the country into two climatic zones, including the desert cold arid zone in the southwestern region and the remaining as a desert hot arid zone [59]. This simple description is misleading, as it conceals significant climatic differences amongst various regions of the country.
Said et al. classifies the country into six climatic zones [60]. Given the fact that the Empty Quarter is an uninhabited region; five locations are selected as representative of the five habited climatic zones: Dhahran, Guriat, Riyadh, Jeddah and Khamis Mushait. Figure 6 and Table 1 show the representative cities and the climatic characteristics of these climatic zones.
Saudi Arabia has a healthy potential for renewable energy, especially solar energy. The geographic location of Saudi Arabia is ideal for harnessing solar energy. According to the Saudi Solar Radiation Atlas, the country annually receives around 3245 sunshine hours accounting for an annual solar radiation figure of over 2200 kWh/m2 [62]. In the five climatic zones of Saudi Arabia, the weather records have shown that the annual global solar radiation level ranges from 1715 kWh/m2 (in Dhahran) to 2275 kWh/m2 (in Jeddah), while the number of sunshine hours varies from 2698 (in Khamis Mushait) to 3397 (in Riyadh) [61]. The monthly data showed that the solar radiation level varies between 170 kWh/m2 (in Dhahran) and 250 kWh/m2 (in Guriat) during the summer months and between 90 kWh/m2 (in Guriat) to 190 kWh/m2 (in Khamis Mushait) during the winter months (see Figure 7). The monthly sunshine hours were observed to vary from 165 (in Khamis Mushait) to 383 (in Riyadh) during the summer months and from 181 (in Guriat) to 236 (in Riyadh) during the winter months (see Figure 7).
In order to examine the electricity generation from solar photovoltaics (PV), a sensitivity analysis was applied using hypothetical PV ratings in all locations. The used software to achieve that is Integrated Environmental Solutions <Virtual Environment> (IES <VE>). The selected type of PV system is monocrystalline with 15% nominal efficiency. The results showed that the annual electricity generation from 1.0 kW PV is between 1400 kWh/m2 and 2000 kWh/m2 depending on the location (see Figure 8).

4. The Study Models

The present work aims to examine the energy performance of some vernacular construction techniques and material in the five Saudi climatic zones. In a previous work, the authors explored, through a questionnaire survey, the attractiveness of some vernacular techniques that were employed in Saudi vernacular houses to the Saudi nationals [63]. The results of this work revealed that courtyard and mushrabiyah are the most attractive vernacular techniques to the participants in comparison to other techniques like dome structure and cooling towers [63]. Thus, the current work concerns examining the energy performance of the courtyard and mushrabiyah adapted in a modern Saudi dwelling. The courtyard is a vernacular technique that has been used in Arabian Gulf and Najd types; while mushrabiyah has been employed as a vernacular technique in the Hejaz type. In addition, the adobe construction was selected for this work as the main construction material due to the better thermal performance in comparison to other vernacular construction materials used in Saudi Arabia. It was the main construction material for walls, floors and roofs within all vernacular types in Saudi Arabia. In order to examine these techniques and material, a virtual (base) house was modelled in all concerned locations using IES <VE>. The weather files used in the simulation were extracted from Meteonorm 5.1. Meteonorm generates hourly time series for the desired location on the basis of well-validated models and data banks of tens of years [61].

4.1. Base Model

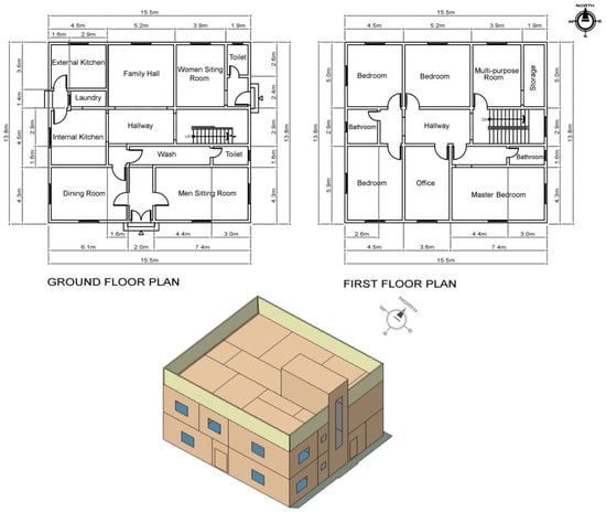
The base house in this study was designed on the basis of a detailed questionnaire survey that was undertaken to determine the aspired dwelling in Saudi Arabia. The participants were selected randomly from different regions covering all climatic zones in Saudi Arabia. Survey participants were asked about the type, size, number of floors and functional spaces of their possible future (inspired) dwelling. The survey was conducted between December 2011 and February 2012 employing web-based and in-person approaches. A total of 453 responses were received from dwelling users employing web-based and in-person approaches. The majority of the questionnaire survey participants have chosen their targeted future home to be a two-storey detached house (villa) with a total site area between 400 m2 and 600 m2. It consists of a master bedroom, three regular bedrooms, four bathrooms and toilets, two guestrooms (one each for men and women), two kitchens (one internal and the other is external), a living room, a dining room, an office, a multi-purpose room, a laundry and storage. Some of the main features of the designed home are highlighted in Figure 9 and Table 2.
The base house designed in this work was modelled in the five climatic zones of Saudi Arabia. Since the electricity performance of buildings is influenced by their orientation, the modelled home was simulated at each location for eight different orientations covering the 360° compass range in steps of 45°. The orientation was optimized on the basis of the minimum annual household electricity requirement. Generally, the orientation of buildings is found to influence the electricity performance of dwellings by less than 0.5%. The optimum orientation was found to be the north, similar to Figure 9, for all locations, except for Jeddah, where it is found to be the east. The simulation results revealed that Dhahran and Jeddah are the most challenging locations in terms of annual electricity demand and the peak power demand due to their higher air temperature and relative humidity especially during the summer months (see Figure 10 and Figure 11). The simulation results revealed that the annual electricity demand for houses in Dhahran, Guriat, Riyadh, Jeddah and Khamis Mushait is 129 kWh/m2, 91 kWh/m2, 112 kWh/m2, 165 kWh/m2 and 60 kWh/m2, respectively.
Before undertaking the investigation, the electricity performance of the base house was compared with measured electricity values gathered from 20 dwellings that were similar to the base house in terms of air-conditioning (A/C) system, thermal insulation, type of windows and energy source for cooking. The electricity data for these homes, located in the Dhahran Zone, were obtained from their monthly electricity bills for period between January 2012 and December 2012. Dhahran is a main representative city in the Eastern Province, which has the highest maximum temperature among all climatic zones (see Table 1). The Eastern Province is a vital region in Saudi Arabia because of its large land area, accounting for almost one third of the entire country. Due to its harsh weather conditions, it is one of the most challenging areas in Saudi Arabia in terms of residential electricity demand as indicated in Figure 10 and Figure 11. The annual electricity consumption for the base house in Dhahran was found to be 129 kWh/m2, which is in close proximity with the average for the 20 dwellings in the same location; the mean and median electricity consumption values for the survey dwellings are 147 kWh/m2 and 137 kWh/m2, respectively (see Table 3). In terms of the monthly electricity consumption, the findings of this study have shown a clear correlation between the values for the base house and the surveyed dwellings in most of the months (see Figure 12). However, the monthly electricity consumption for the surveyed dwellings is a bit higher during the cold season, and this could be because the winter in 2012 was colder in comparison to the extracted weather file from Meteonorm 5.1 [65].

4.2. Courtyard Model

The base house in this study was adapted with an internal courtyard that has a floor area of 16 m2, as shown in Figure 13. This has revealed a decreasing in the house floor area, roof area and external walls area by 7.5%, 6% and 22%, respectively. On the other hand, through incorporating 38 m2 of window area to the courtyard, the house window-to-wall ratio has increased by 2%.

4.3. Mushrabiyah Model

Subsequently, all windows in the typical house were featured with mushrabiyah, as indicated in Figure 14. Mushrabiyah is an efficient passive design feature that controls the passage of air current to reduce temperature, as it reduces the reflected heat and solar radiation and allows air to pass through freely [52]. Its role towards reducing electricity demand can be understood from the control of direct solar radiation on windows and the help in utilising both daylighting and natural ventilation. It controls the passage of direct lights and reduces the air temperature. Additionally, the mushrabiyah was originally used as a water drinking place; therefore, it has the ability also of increasing the humidity.

4.4. Adobe Construction Model

Furthermore, adobe construction has been chosen for this study due to better thermal performance in comparison to the stone [49]. Table 4 and Table 5 provide the thermal properties of the adobe construction and the materials used in adobe construction.

5. Results

The simulation results of adapting the base house with a courtyard revealed an increase of annual electricity demand in all of the examined locations (see Table 6). However, the mushrabiyah house has shown savings in demand for electricity on an annual basis in comparison to the base and courtyard houses within all locations (see Table 6). Similarly, the adobe construction house has shown more savings in demand for electricity compared to all of the developed models, as indicated in Table 6.
The simulated monthly electricity consumptions for the adapted models (i.e., courtyard, mushrabiayah and adobe construction) in each of the climatic zones are shown in Figure 15. It is clear that, in every case, the base model with modern construction showed higher demand for electricity during at least part of the year in comparison to houses with mushrabiyah and adobe construction. In particular, adapting the house with either mushrabiayah or adobe construction has shown a reduction in the demand for electricity during the summer months from May–September (see Figure 15). Mushrabiyahs have contributed to reducing the annual electricity demand by between 1% and 4% in Khamis Mushait and Jeddah, respectively, while adobe construction has helped in reducing the electricity demand by 3%–6% in Khamis Mushait and Riyadh, respectively (see Table 6 and Figure 16). The simulation results revealed that, due to the extreme hot climates of the examined locations, the courtyard has increased the annual electricity demand by around 4% in all locations with the exception of Khamis Mushait, the location with the lowest annual electricity demand, where the results have shown a clear correlation for the monthly electricity demand between the base and courtyard houses (see Table 6, Figure 15 and Figure 16). In terms of the peak power demand, the results revealed that mushrabiyah can contribute to reducing the demand by around 3% in all locations while adobe construction can reduce the demand by between 5% in Dhahran to 19% in Khamis Mushait (see Table 7). In fact, the energy reductions from these vernacular techniques and construction materials are mainly associated with the demand for lighting and HVAC systems. In particular, the adaptation of mushrabiyah into the base house has shown a reduction in the HVAC load by almost 4%–6% in all locations; however, the adaptation of adobe construction has shown a reduction between 6% in Jeddah to 13% in Khamis Mushait for the HVAC system (see Table 8). Additionally, the adaptation of the courtyard has reduced the demand for lighting by 8% in all locations. On the other hand, the courtyard has contributed to increasing the demand for the HVAC system between 9% in Jeddah to 11% in Khamis Mushait (see Table 8).

6. Discussion and Conclusions

Given the energy and environmental challenges, residential buildings can play a significant role in improving the situation. Due to their high temperatures, deserts are among the most challenging regions when it comes to residential energy consumption. In this study, Saudi Arabia was undertaken as an example as it can represent various desert climatic zones. The selected locations that represent the Saudi climatic zones in this study are Dhahran, Guriat, Riyadh, Jeddah and Khamis Mushait. The Saudi residential sector suffers from high demand for electricity to meet the comfort and life style needs for residents. Therefore, it is crucial to consider sustainable energy concepts in this sector, and the application of ZEHs can be an option in this respect. Vernacular construction techniques and materials have traditionally been used in this part of the world, though they have ceased to be employed in the wake of the modern construction boom in recent decades. This study aims to investigate the role of courtyard, mushrabiyah and adobe construction in developing ZEHs in all climatic zones of Saudi Arabia.
The comparison for the three models (courtyard, mushrabiyah and adobe construction) with the base model for each location in this study is based on two parameters: the annual electricity demand, as a measure of energy efficiency, and the maximum power demand, as an important parameter in designing the renewable technologies for any ZEH. It was observed from this study that the annual electricity consumption for houses in Dhahran, Guriat, Riyadh, Jeddah and Khamis Mushait is 129 kWh/m2, 91 kWh/m2, 112 kWh/m2, 165 kWh/m2 and 60 kWh/m2, respectively. This leads to the fact that the household electricity demand needs to be reduced significantly, especially in Dhahran, Riyadh and Jeddah, as it is higher than the international benchmark values for ZEH, which is about 90 kWh/m2.
The findings of this work have showed electricity savings by the adaptation of mushrabiyah and adobe construction material in a modern Saudi dwelling in terms of total electricity demand and maximum power demand. The use of mushrabiyah can contribute in reducing the electricity demand and maximum power demand by up to 4% and 3%, respectively. The findings also revealed that the mushrabiyahs could save up to 6% of the HVAC load. Interestingly, the maximum electricity saving by mushrabiyah was observed in Jeddah, where it is an aspect of its vernacular type. Adobe is a thermally-efficient, sustainable and durable material widely available locally. It is inexpensive, easy to produce and requires fewer manufacturing skills and less production energy compared to the currently widely-used construction materials (i.e., concrete and steel). Particularly, the adobe construction can reduce the annual electricity demand and peak power demand by up to 6% and 19%, respectively. It can also reduce the HVAC load by up to 13%.
The simulation results revealed that, due to the harsh weather conditions of the examined locations, the courtyard has increased the annual electricity demand by around 4% in all locations with the exception of Khamish Mushait, where the results have shown a clear correlation for the monthly electricity demand between the base and courtyard houses. Although, the adaptation of the courtyard has contributed to reducing the demand for lighting by 8% in all locations, it has increased the demand for the HVAC system between 9% in Jeddah and 11% in Khamis Mushait. This can be understood from the fact that adapting the courtyard has increased the exposed area that includes solid walls and windows to the direct solar radiations and harsh weather conditions, which result in adding more loads to the HVAC system and increasing the demand for electricity.
This work showed that houses built with both traditional construction methods, using adobe as the principal building material, and mushrabiyah as a vernacular design feature could reduce the annual electricity demand of these houses by 8% in almost all locations and, therefore, recommends the development of ZEH in Saudi Arabia using them as a step towards reducing the electricity demand. Moreover, the application of other vernacular techniques, sustainable design features and energy-efficiency measures should also be taken into account to meet the targeted reduction in demand for electricity similar to the ZEH benchmark. This work also showed that the courtyard is technically unviable for Saudi dwellings. In further research, it is essential to investigate the role that can be played by other vernacular techniques in developing ZEHs. However, attention should be paid to the fact that the application of some of these techniques may face obstacles especially in terms of their attractiveness to the Saudi residents.

Author Contributions

Farajallah Alrashed and Stas Burek conceived and designed the modelling work; Farajallah Alrashed performed the modelling work, Muhammad Asif and Farajallah Alrashed analysed the results and wrote the paper.

Conflicts of Interest

The authors declare no conflict of interest.

References

  1. International Energy Agency. Key World Energy Statistics 2013; International Energy Agency: Paris, France, 2013. [Google Scholar]
  2. Energy Information Administration International Energy Outlook. 2013. Available online: http://www.eia.gov/forecasts/ieo/more_highlights.cfm (accessed on 5 August 2014).
  3. United Nation Environmental Programme, Sustainable Buildings and Climate Initiative (UNEP SBCI). Buildings and Climate Change: A Summary for Decision-Makers, 1st ed.; United Nation Environmental Programme, Sustainable Buildings and Climate Initiative: Paris, France, 2009. [Google Scholar]
  4. Cabezaa, L.F.; Rincóna, L.; Vilariñob, V.; Péreza, G.; Castella, A. Life cycle assessment (LCA) and life cycle energy analysis (LCEA) of buildings and the building sector: A review. Renew. Sustain. Energy Rev. 2014, 29, 394–416. [Google Scholar] [CrossRef]
  5. Sartori, I.; Hestnes, A.G. Energy use in the life cycle of conventional and low-energy buildings: A review article. Energy Build. 2007, 39, 249–257. [Google Scholar] [CrossRef]
  6. Mumovic, D.; Santamouris, M. A Handbook of Sustainable Building Design and Engineering: An Integrated Approach to Energy, Health and Operational Performance, 1st ed.; Earthscan: London, UK, 2009. [Google Scholar]
  7. International Energy Agency. CO2 Emissions from Fuel Combustion: Highlights; International Energy Agency: Paris, France, 2014. [Google Scholar]
  8. LEED Directory. Available online: http://www.usgbc.org/projects (accessed on 20 September 2015).
  9. GreenBookLive Certified BREEAM Assessments. Available online: http://www.greenbooklive.com/search/scheme.jsp?id=202 (accessed on 20 September 2015).
  10. Green Star Green Star Project Directory. Available online: http://www.gbca.org.au/project-directory.asp (accessed on 20 September 2015).
  11. CASBEE Dissemination of CASBEE in Japan. Available online: http://www.ibec.or.jp/CASBEE/english/statistics.htm (accessed on 20 September 2015).
  12. Torcellini, P.; Pless, S.; Deru, M.; Crawley, D. Zero energy buildings: A critical look at the definition. In ACEEE Summer Study on Energy Efficiency in Buildings; National Renewable Energy Laboratory and Department of Energy: Pacific Grove, CA, USA, 2006; Volume 3, pp. 275–286. [Google Scholar]
  13. Atchinson, B. Zero-Net-Energy Homes. Available online: http://www.aging.ny.gov/livableny/ResourceManual/Design/IV2t.pdf (accessed on 10 March 2013).
  14. Wang, L.; Gwilliam, J.; Jones, P. Case study of zero energy house design in UK. Energy Build. 2009, 41, 1215–1222. [Google Scholar] [CrossRef]
  15. Aelenei, L.; Gonzalves, H.; Rodrigues, C. The road towards “zero energy” in buildings: lessons learned from SOLARXXI building in Portugal. In Proceedings of the EUROSUN 2010 International Conference on Solar Heating, Cooling and Buildings, Graz, Austria, 28 September–1 October 2010.
  16. Aelenei, L.; Aelenei, D.; Gonçalves, H.; Lollini, R.; Musall, E.; Alessandra, S.; Cubi, E.; Noguchi, M. Design issues for net zero-energy buildings. In Proceedings of the ZEMCH 2012 International Conference, Glasgow, UK, 20–22 August 2012; pp. 37–48.
  17. Heal, A.; Paradise, C.; Forster, W. The Vernacular as a model for sustainable design. In Proceedings of the 23rd Conference on Passive and Low Energy Architecture, Geneva, Switzerland, 6–8 September 2006.
  18. Sayigh, A. Sustainability, Energy and Architecture: Case Studies in Realizing Green Buildings, 1st ed.; Academic Press: Oxford, UK, 2014. [Google Scholar]
  19. Abul-Enein, H. Principals of Geography Climate [Arabic], 1st ed.; Dar Al Nahda: Beirut, Lebanon, 1985. [Google Scholar]
  20. Batanouny, K. Plants in the Deserts of the Middle East, 1st ed.; Springer Science & Business Media: New York, NY, USA, 2001. [Google Scholar]
  21. Deloitte. GCC Powers of Construction 2010: Construction Sector Overview; Deloitte: New York, NY, USA, 2010. [Google Scholar]
  22. Central Department of Statistics & Information Population Estimates between 2010 and 2025. Available online: http://www.cdsi.gov.sa/pdf/PopulationEstimates2010-2025-admareas.pdf (accessed on 9 August 2013).
  23. National Commercial Bank. Market Review & Outlook; National Commercial Bank: Jeddah, Saudi Arabia, 2011. [Google Scholar]
  24. Ministry of Housing The Ministry of Housing Continues the Steps by More than 47 Projects [Arabic]. Available online: http://housing.gov.sa/JFn07b (accessed on 8 August 2014).
  25. Ministry of Water and Electricity. The Electricity in the Kingdom. Available online: http://www.mowe.gov.sa/Arabic/PDF/Electricity In The Kingdom 20122/index.html#/5/ (accessed on 3 May 2014).
  26. Alrashed, F.; Asif, M. Analysis of critical climate related factors for the application of zero-energy homes in Saudi Arabia. Renew. Sustain. Energy Rev. 2015, 41, 1395–1403. [Google Scholar] [CrossRef]
  27. Tucson/Pima County. Tucson/Pima County Net-Zero Energy Building Standard: Cash Flow Positive on Day 1; Tucson/Pima County: Tucson, AZ, USA, 2012. [Google Scholar]
  28. Alrashed, F.; Asif, M. Trends in residential energy consumption in Saudi Arabia with particular reference to the Eastern Province. J. Sustain. Dev. Energy Water Environ. Syst. 2014, 2, 376–387. [Google Scholar] [CrossRef]
  29. Elhadidy, M.A.; Ahmad, A. Electric energy consumption in selected residential buildings at KFUPM, Dhahran, Saudi Arabia. In Proceedings of the 2000 Mediterranean Conference for Environment and Solar, Beirut, Lebanon, 16–17 November 2000; IEEE: Beirut, Lebanon, 2000; pp. 223–226. [Google Scholar]
  30. Asquith, L.; Vellinga, M. Vernacular Architecture in the Twenty-First Century: Theory, Education and Practice; Taylor & Francis: Oxon, UK, 2006. [Google Scholar]
  31. Aziz, T.A.; Shawket, I.M. New strategy of upgrading slum areas in developing countries using vernacular trends to achieve a sustainable housing development. Energy Procedia 2011, 6, 228–235. [Google Scholar] [CrossRef]
  32. Bodach, S.; Lang, W.; Hamhaber, J. Climate responsive building design strategies of vernacular architecture in Nepal. Energy Build. 2014, 81, 227–242. [Google Scholar] [CrossRef]
  33. Engin, N.; Vural, N.; Vural, S.; Sumerkan, M.R. Climatic effect in the formation of vernacular houses in the Eastern Black Sea region. Build. Environ. 2007, 42, 960–969. [Google Scholar] [CrossRef]
  34. Majid, N.H.A.; Shuichi, H.; Takagi, N. Vernacular Wisdom: The Basis of Formulating Compatible Living Environment in Oman. Procedia Soc. Behav. Sci. 2012, 68, 637–648. [Google Scholar] [CrossRef]
  35. Priya, R.S.; Sundarraja, M.C.; Radhakrishnan, S.; Vijayalakshmi, L. Solar passive techniques in the vernacular buildings of coastal regions in Nagapattinam, TamilNadu-India—A qualitative and quantitative analysis. Energy Build. 2012, 49, 50–61. [Google Scholar] [CrossRef]
  36. Toe, D.H.C.; Kubota, T. Comparative assessment of vernacular passive cooling techniques for improving indoor thermal comfort of modern terraced houses in hot–humid climate of Malaysia. Sol. Energy 2015, 114, 229–258. [Google Scholar] [CrossRef]
  37. Yorulmaz, M. Turkish standards and codes on adobe and adobe constructions. In International Workshop: Earthen Buildings in Seismic Areas; Office of Foreign Disaster Assistance (OFDA): Albuquerque, NM, USA, 1981; pp. 503–519. [Google Scholar]
  38. Austin, G.S. Adobe as a building material. N. M. Geol. 1984, 6, 69–71. [Google Scholar]
  39. Alp, A.V. Vernacular climate control in desert architecture. Energy Build. 1991, 16, 809–815. [Google Scholar]
  40. Algifri, A.H.; Gadhi, S.M.B.; Nijaguna, B.T. Thermal behaviour of adobe and concrete houses in Yemen. Renew. Energy 1992, 2, 597–602. [Google Scholar] [CrossRef]
  41. Loaiza, C.; Blondet, M.; Ottazzi, G. Housing Report: Adobe House Report#52; World Housing Encyclopedia: Lima, Peru, 2002. [Google Scholar]
  42. Revuelta, J.; Garcia-Diaz, A.; Soto-Zarazua, G.; Rico-Garcia, E. Adobe as a sustainable material: A thermal performance. J. Appl. Sci. 2010, 10, 2211–2216. [Google Scholar]
  43. Hamard, E.; Morel, J.-C.; Salgado, F.; Marcom, A.; Meunier, N. A procedure to assess the suitability of plaster to protect vernacular earthen architecture. J. Cult. Herit. 2013, 14, 109–115. [Google Scholar] [CrossRef]
  44. Saljoughinejad, S.; Rashidisharifabad, S. Classification of Climatic Strategies, Used in Iranian Vernacular Residences Based on Spatial Constituent Elements. Build. Environ. 2015, 92, 475–493. [Google Scholar] [CrossRef]
  45. Hall, M.R.; Lindsay, R.; Krayenhoff, M. Modern Earth Buildings: Materials, Engineering, Construction and Applications; Woodhead Publishing Limited: Cambridge, UK, 2012. [Google Scholar]
  46. Kumar, A. Housing Report: Rural Mud House with Pitched Roof Report#23; World housing encyclopedia: Bhopal, India, 2002. [Google Scholar]
  47. Hyde, R. Boiclimatic Housing: Innovative Designs for Warm Climaties; Earthscan: London, UK, 2008. [Google Scholar]
  48. Saudi Commision for Tourism & Antiquities. Saudi Urban Heritage, 1st ed.Saudi Commision for Tourism & Antiquities: Riyadh, Saudi Arabia, 2010.
  49. Saleh, M.A.E. Adobe as a thermal regulating material. Sol. Wind Technol. 1990, 7, 407–416. [Google Scholar] [CrossRef]
  50. Heathcote, K. The thermal performance of earth buildings. Inf. Constr. 2011, 63, 117–126. [Google Scholar] [CrossRef]
  51. Ragette, F. Traditional Domestic Architecture of the Arab Region, 2nd ed.; American University of Sharjah: Sharjah, Saudi Arabia, 2006. [Google Scholar]
  52. Abdelsalam, T.; Rihan, G.M. The impact of sustainability trends on housing design identity of Arab cities. HBRC J. 2013, 9, 159–172. [Google Scholar] [CrossRef]
  53. Saleh, M.A.E. The integration of tradition and modernity: A search for an urban and architectural identity in Arriyadh, the capital of Saudi Arabia. Habitat Int. 1998, 22, 571–589. [Google Scholar] [CrossRef]
  54. Abu-Ghazzeh, T. The art of building construction in Al-Alkhalaf village, Saudi Arabia. J. King Saud Univ. 1995, 7, 31–63. [Google Scholar]
  55. Saleh, M.A.E. Al-Alkhalaf: A traditional defensible settlement of southwestern Saudi Arabia. Build. Environ. 1996, 31, 179–195. [Google Scholar] [CrossRef]
  56. Abu-Ghazzeh, T.M. Vernacular architecture education in the Islamic society of Saudi Arabia: Towards the development of an authentic contemporary built environment. Habitat Int. 1997, 21, 229–253. [Google Scholar] [CrossRef]
  57. General Commission for Survey Official Map of the Kingdom (English Version). Available online: http://www.gcs.gov.sa/Products/Topographic-Products/Official-Map-Of-The-Kingdom-Of-Saudi-Arabia.aspx (accessed on 12 July 2012).
  58. Alrashed, F.; Asif, M. Climatic classifications of Saudi Arabia for building energy modelling. Energy Procedia 2015, 75, 1425–1430. [Google Scholar] [CrossRef]
  59. Institute for Veterinary Public Health World Maps of Köppen-Giger Climate Classification. Available online: http://koeppen-geiger.vu-wien.ac.at/ (accessed on 18 March 2011).
  60. Said, S.A.M.; Habib, M.A.; Iqbal, M.O. Database for building energy prediction in Saudi Arabia. Energy Convers. Manag. 2003, 44, 191–201. [Google Scholar] [CrossRef]
  61. Meteonorm Meteonorm: Station Map. Available online: http://meteonorm.com/products/meteonorm/stations/ (accessed on 8 August 2013).
  62. Energy Reasearch Institute. Solar Radiation Atlas for the Kingdom of Saudi Arabia, 2nd ed.; King Abdulaziz City for Science and Technology: Riyadh, Saudi Arabia, 1999. [Google Scholar]
  63. Alrashed, F.; Asif, M. Challenges facing the application of zero-energy homes in Saudi Arabia: Construction industry and user perspective. In Proceedings of the ZEMCH 2012 International Conference, Glasgow, UK, 20–22 August 2012; pp. 391–398.
  64. Monawar, A.H. A Study of Energy Conservation in the Existing Apartment Buildings in Makkah Region, Saudi Arabia. Ph.D. Thesis, University of Newcastle Upon Tyne, Newcastle, UK, 2001. [Google Scholar]
  65. Tutiempo Network. Climate Dhahran—Year 2012—Historical Weather Records. Available online: http://www.tutiempo.net/en/Climate/Dhahran/2012/404160.htm (accessed on 28 February 2013).
  66. Arnold, P.J. Thermal conductivity of masonry materials. J. Inst. Heat. Vent. Eng. 1969, 37, 101–108, 117. [Google Scholar]
  67. Goodhew, S.; Griffiths, R. Sustainable earth walls to meet the building regulations. Energy Build. 2005, 37, 451–459. [Google Scholar] [CrossRef]
  68. Armer, G.S.T.; Clarke, J.L.; Garas, F.K. Building the Future: Innovation in Design, Materials and Construction; CRC Press: Boca Raton, FL, USA, 1994. [Google Scholar]
Figure 1. The vernacular house of the Arabian Gulf type.
Figure 1. The vernacular house of the Arabian Gulf type.
Buildings 07 00017 g001
Figure 2. The vernacular house of the Hejaz type [48].
Figure 2. The vernacular house of the Hejaz type [48].
Buildings 07 00017 g002
Figure 3. The vernacular house of the Najd type [53].
Figure 3. The vernacular house of the Najd type [53].
Buildings 07 00017 g003
Figure 4. The vernacular house of the Asir type [54].
Figure 4. The vernacular house of the Asir type [54].
Buildings 07 00017 g004
Figure 5. Sample modern houses in Saudi Arabia.
Figure 5. Sample modern houses in Saudi Arabia.
Buildings 07 00017 g005
Figure 6. The climatic zones in Saudi Arabia [60].
Figure 6. The climatic zones in Saudi Arabia [60].
Buildings 07 00017 g006
Figure 7. The monthly global solar radiation in the five main climatic zones of Saudi Arabia [61].
Figure 7. The monthly global solar radiation in the five main climatic zones of Saudi Arabia [61].
Buildings 07 00017 g007
Figure 8. The electricity generation from various solar PVs for all locations.
Figure 8. The electricity generation from various solar PVs for all locations.
Buildings 07 00017 g008
Figure 9. Model and floor plans for the base house.
Figure 9. Model and floor plans for the base house.
Buildings 07 00017 g009
Figure 10. Monthly electricity consumption for the base house based on the optimum orientation in the five climatic zones.
Figure 10. Monthly electricity consumption for the base house based on the optimum orientation in the five climatic zones.
Buildings 07 00017 g010
Figure 11. Annual peak power demand for the base house based on the optimum orientation in the five climatic zones.
Figure 11. Annual peak power demand for the base house based on the optimum orientation in the five climatic zones.
Buildings 07 00017 g011
Figure 12. Monthly electricity consumption for the base house and surveyed houses.
Figure 12. Monthly electricity consumption for the base house and surveyed houses.
Buildings 07 00017 g012
Figure 13. Floor plans and 3D isometric view of the base house after incorporating the courtyard.
Figure 13. Floor plans and 3D isometric view of the base house after incorporating the courtyard.
Buildings 07 00017 g013
Figure 14. 3D isometric of the base house featured with mushrabiyahs.
Figure 14. 3D isometric of the base house featured with mushrabiyahs.
Buildings 07 00017 g014
Figure 15. The annual electricity performance of the base, courtyard, mushrabiyah and adobe construction houses in (a) Dhahran; (b) Guriat; (c) Riyadh; (d) Jeddah; and (e) Khamis Mushait.
Figure 15. The annual electricity performance of the base, courtyard, mushrabiyah and adobe construction houses in (a) Dhahran; (b) Guriat; (c) Riyadh; (d) Jeddah; and (e) Khamis Mushait.
Buildings 07 00017 g015
Figure 16. The annually saved electricity by adapting vernacular techniques and adobe construction in all locations.
Figure 16. The annually saved electricity by adapting vernacular techniques and adobe construction in all locations.
Buildings 07 00017 g016
Table 1. Climatic parameters for the represented locations [61].
Table 1. Climatic parameters for the represented locations [61].
LocationGeographic CoordinatesAir TemperatureRelative Humidity
Latitude (°N)Longitude (°E)Elevation (m)Minimum (°C)Maximum (°C)Mean (°C)Minimum (%)Maximum (%)Mean (%)
Dhahran26.350.1225.045.725.8199957
Guriat31.337.4502-3.343.919.81210040
Riyadh24.746.85832.243.725.1109132
Jeddah21.539.23313.941.727.93710065
Khamis Mushait18.342.720512.734.318.91710051
Table 2. Key features of the base house.
Table 2. Key features of the base house.
House FeatureDescription
Ground Floor Area214.1 m2
First Floor Area214.1 m2
Total Glazed Area55.2 m2
Total External wall Area446.8 m2
Total Roof Area228.1 m2
Lettable Area76%
Circulation Area24%
Window-to-Wall Ratio (WWR)10%
Construction Materials
External Wall(25 mm Stucco + 75 mm Concrete Block + 50 mm Polystyrene + 75 mm Concrete Block + 25 mm Stucco) U-Value = 0.49 W/m2·K
Internal Wall(25 mm Stucco + 100 mm Concrete Block + 25 mm Stucco) U-Value = 2.50 W/m2·K
Roof(25 mm Terrazzo + 25 mm Mortar + 4 mm Bitumen Layer + 150 mm Cast Concrete + 200 mm Concrete Block + 25 mm Stucco + 15 mm Gypsum Board) U-Value = 1.74 W/m2·K
Ceiling(20 mm Granite + 25 mm Mortar + 150 mm Cast Concrete + 200 mm Concrete Block + 25 mm Stucco + 15 mm Gypsum Board) U-Value = 1.57 W/m2·K
Ground Floor(15 mm Granite + 25 mm Mortar + 100 mm Cast Concrete) U-Value = 0.48 W/m2·K
WindowsAluminium Window with thermal break, U-Value = 3.43 W/m2·K
External DoorsExternal Door (Aluminium Door—Aluminium frame with thermal break) U-Value = 6.42 W/m2·K
Internal DoorsInternal Door (40 mm Wooden door) U-Value = 2.60 W/m2·K
Systems
HVAC SystemMin. Flow rate = 8 L/s/person for Mini Split System
Lighting SystemTungsten Halogen Lamps at (Bathrooms, Toilets, and Kitchens), and Compact Fluorescent Lamps at (All other Spaces)
Domestic Hot Water190 litter (90% Delivery Efficiency)
Auxiliary ventilationKitchen = 50 L/s, Toilets and bathrooms = 25 L/s
Kitchen AppliancesMaximum Power Consumption = 30 W/m2 [64]
Living Zone AppliancesMaximum Power Consumption = 7 W/m2 [64]
Sleeping Zone AppliancesMaximum Power Consumption = 7 W/m2 [64]
Guest Zone AppliancesMaximum Power Consumption = 5 W/m2 [64]
Heating Simulation set-point20.0 °C
Cooling Simulation set-point24.0 °C
Table 3. Conditioned area and electricity consumption for the base and surveyed houses.
Table 3. Conditioned area and electricity consumption for the base and surveyed houses.
HouseConditioned Area (m2)Electricity Consumption (kWh/Year)Electricity Consumption (kWh/m2/Year)
Base42855,222129
118023,434130
218014,98683
318022,789127
48014,031175
540071,763179
646068,886150
710013,649137
817530,536175
9809770122
1036063,196176
1140047,394119
1213519,963148
1312523,491188
1412015,202127
1520054,983275
1611015,202138
1713021,356164
1824029,069121
1936543,031118
2015012,40183
Table 4. Thermal properties of the materials used in adobe construction.
Table 4. Thermal properties of the materials used in adobe construction.
MaterialThickness (m)Conductivity (W/(m·K))Density (kg/m3)Specific Heat Capacity (J/(kg·K))Source
Adobe wall0.5000.73016501000[66]
Adobe roof/slab0.3000.73016501000[66]
Adobe with straw0.0250.180440900[67]
Palm tree fronds-mat0.0150.1666001200[68]
Table 5. Description and U-Values for the adobe construction systems.
Table 5. Description and U-Values for the adobe construction systems.
SystemDescription
Roof(4 mm bitumen layer + 300 mm adobe roof + 15 mm palm tree fronds-mat + 15 mm gypsum board) U-Value = 1.35 W/m2·K
External wall(25 mm adobe with Straw + 500 mm adobe wall + 25 mm Adobe with straw) U-Value = 0.90 W/m2·K
Slab on-grade(20 mm granite + 25 mm mortar + 300 mm adobe slab) U-Value = 0.41 W/m2·K
Internal wall(25 mm adobe with Straw + 500 mm adobe wall + 25 mm adobe with Straw) U-Value = 0.83 W/m2·K
Internal floor/ceiling(20 mm granite + 25 mm mortar + 300 mm adobe slab + 15 mm Palm tree fronds-mat + 15 mm gypsum board) U-Value = 1.18 W/m2·K
Table 6. The annual electricity demand in kWh/m2.
Table 6. The annual electricity demand in kWh/m2.
LocationBaseCourtyardMushrabiyahAdobe Construction
Dhahran129136125123
Guriat92959087
Riyadh112118109106
Jeddah165175158158
Khamis Mushait60615958
Table 7. The annual peak power demand in W/m2.
Table 7. The annual peak power demand in W/m2.
LocationBaseCourtyardMushrabiyahAdobe Construction
Dhahran85.690.183.281.7
Guriat57.660.456.051.5
Riyadh62.565.261.057.8
Jeddah90.695.488.582.4
Khamis Mushait36.337.235.529.4
Table 8. The annual demand for HVAC load in kWh/m2.
Table 8. The annual demand for HVAC load in kWh/m2.
LocationBaseCourtyardMushrabiyahAdobe Construction
Dhahran84.4792.3480.8078.22
Guriat47.0252.1245.3342.04
Riyadh67.6074.7064.9161.17
Jeddah120.79131.52113.90113.56
Khamis Mushait15.8017.5514.9413.71

Share and Cite

MDPI and ACS Style

Alrashed, F.; Asif, M.; Burek, S. The Role of Vernacular Construction Techniques and Materials for Developing Zero-Energy Homes in Various Desert Climates. Buildings 2017, 7, 17. https://doi.org/10.3390/buildings7010017

AMA Style

Alrashed F, Asif M, Burek S. The Role of Vernacular Construction Techniques and Materials for Developing Zero-Energy Homes in Various Desert Climates. Buildings. 2017; 7(1):17. https://doi.org/10.3390/buildings7010017

Chicago/Turabian Style

Alrashed, Farajallah, Muhammad Asif, and Stas Burek. 2017. "The Role of Vernacular Construction Techniques and Materials for Developing Zero-Energy Homes in Various Desert Climates" Buildings 7, no. 1: 17. https://doi.org/10.3390/buildings7010017

APA Style

Alrashed, F., Asif, M., & Burek, S. (2017). The Role of Vernacular Construction Techniques and Materials for Developing Zero-Energy Homes in Various Desert Climates. Buildings, 7(1), 17. https://doi.org/10.3390/buildings7010017

Note that from the first issue of 2016, this journal uses article numbers instead of page numbers. See further details here.

Article Metrics

Back to TopTop