Next Article in Journal
Porosity and Permeability in Construction Materials as Key Parameters for Their Durability and Performance: A Review
Next Article in Special Issue
Ground Settlement Susceptibility Assessment in Urban Areas Using PSInSAR and Ensemble Learning: An Integrated Geospatial Approach
Previous Article in Journal
Eco-Friendly Flame-Retardant Construction Composites Based on Bio-Based TPU, Recycled Rice Husk, and Ammonium Polyphosphate
Previous Article in Special Issue
Experimental Study on Performance of High-Performance Concrete Based on Different Fine Aggregate Systems
 
 
Font Type:
Arial Georgia Verdana
Font Size:
Aa Aa Aa
Line Spacing:
Column Width:
Background:
Article

A Second-Order Second-Moment Approximate Probabilistic Design Method for Structural Components Considering the Curvature of Limit State Surfaces

by
Hanmin Liu
1,*,
Yicheng Mao
2,
Zhenhao Zhang
2,
Fang Yuan
2 and
Fuming Wang
2
1
School of Civil and Environmental Engineering, Hunan University of Science and Engineering, Yongzhou 425199, China
2
School of Civil and Environmental Engineering, Changsha University of Science and Technology, Changsha 410114, China
*
Author to whom correspondence should be addressed.
Buildings 2025, 15(18), 3421; https://doi.org/10.3390/buildings15183421
Submission received: 15 June 2025 / Revised: 3 September 2025 / Accepted: 12 September 2025 / Published: 22 September 2025

Abstract

The current engineering structural design code employs a direct probability design method based on the Taylor series expansion of the performance function at verification points, retaining only linear terms. This approach ignores the curvature and other nonlinear properties of the performance function, leading to insufficient accuracy. To address the deficiencies of the current design method, this paper develops an approximate probability design method that considers the curvature of the limit state surface, integrating it with the second-order moment theory based on the direct probability design method. Using a simply supported plate as a representative example, this paper systematically compares the performance of the proposed design method with the direct probability design method, the partial coefficient method, and the design value method in reinforcement design. The reinforcement areas calculated by the four methods are similar, confirming the correctness and practicality of the proposed method for engineering applications. The accuracy of the design outcomes from the various methods is validated through Monte Carlo simulation. The results indicate that the method proposed in this paper exhibits a high accuracy, with the relative errors of the reliability indices in the two examples being 0.346% and 0.228%, respectively—significantly lower than those of the direct probability design method (2.919% and 0.769%, respectively). This underscores the effectiveness and substantial benefits of the proposed method in structural reliability design, offering a dependable, highly accurate, and economically viable design tool for engineering applications.

1. Introduction

The core task of engineering structure design is to analyze the various effects that structures endure alongside their resistance capabilities. This aims to find an optimal approach for balancing safety and economy [1]. The goal is to design structures that provide sufficient reliability using the most economical methods, ensuring they meet necessary functionalities throughout their intended lifespan [2]. The theoretical research on structural reliability has been booming with the transition from the allowable stress design method to probability-based limit state design method [3,4,5]. Freudenthal [6,7] first studied the intrinsic relationship between the safety factor and the failure probability of the results in the traditional design method. Cornell [8] studied the reliability analysis method based on probability theory and gave the definition of the first-order second-moment theory of structural reliability. Lind and Hasofer [9,10] gave a geometric interpretation of the reliability index and introduced the concept of the design checking point to ensure that the same reliability index value can be obtained by dealing with different equivalent equations of the same failure surface. Shinozuka [11] further proved that the design checking point is the maximum possible failure point. According to the geometric meaning of the reliability index, the iterative calculation formula of the reliability index is established using the optimization algorithm. The expression of transforming the reliability index into structural failure probability is based on the assumption that the comprehensive state variables obey a normal distribution. If the probability distribution of random variables is not considered, the accuracy of the structural reliability analysis will be insufficient. Therefore, a series of algorithms for equivalently transforming the arbitrary probability distribution of basic random variables into a normal distribution have been developed [12,13,14,15], and the first-order second-moment method is used for reliability analysis.
The first-order second-moment method is to make the first-order Taylor expansion of the structural performance function at the checking point, which does not reflect the convexity of the limit state surface and only uses the low-order statistical information of the random variable. When the degree of nonlinearity of the limit state equation is high, the reliability calculation error is large. The high-order direct moment method [16,17,18] makes up for the defects of the first-order second-moment method. Many scholars consider the nonlinear characteristics of the limit state equation by means of a Taylor series high-order expansion of the performance function. In the process of calculating the failure probability, the influence of the curvature change of the performance function surface near the checking point is considered, and the reliability analysis is carried out using the high-order statistical information of the random variable. In general, it has a better calculation accuracy than the first-order second-moment method. At present, the second-order second-moment method [19,20,21] and the second-order fourth-moment method [22,23,24] are mainly used. The first-order second-moment method and the high-order direct moment method weaken the random propagation relationship between the structural load effect and the load action, and it is difficult to comprehensively solve the overall reliability analysis problem of the structure. Later, the response surface method was developed in the reliability analysis of the structural system [25,26]. However, in the analysis, it is necessary to list the surrogate model that approximates the nonlinear performance function for each key section of the structure, identify the surrogate model parameters, and combine it with the first-order second-moment method to calculate the reliability, and the analysis workload is large.
In recent years, the international community has shifted towards using probabilistic limit state design methods in structural engineering [27]. Reliability-based probabilistic design effectively addresses engineering uncertainties, extending its application from structural to geotechnical engineering. Movahedi’s work on the reliability analysis and design optimization of laterally loaded piles demonstrates the efficacy of incorporating reliability theory into practical design contexts [28]. The first-order second-moment method enables engineers to calculate the average resistance R of structural components μ R based on the statistical characteristics and distribution types of basic variables, while considering a target reliability index β T . This allows for dimensioning of structural components to ensure that the failure probability p f remains within an acceptable threshold p 0 over a specified time period. This approach is termed the direct probabilistic design method [29]. In order to facilitate the calculation of structural designs, Lind [30] proposed the concept of the partial safety factor and introduced the root linearization coefficient to derive the partial safety factor of structural resistance and the action effect. The international structural reliability design standard ISO2394 [31] and the European structural reliability design code EN1990 [32] are based on this idea to determine the partial safety factor for structural design. Many scholars have established various expressions for probabilistic limit state design in different engineering structures based on reliability theory [33,34,35,36]. However, most formulations rely on the Taylor series expansion of the performance function up to the linear term at verification points, neglecting the nonlinear characteristics such as curvature of the performance function. Recent studies on enhancing the reliability design of structural components have introduced a simplified modeling strategy based on equivalent yield strength [37]. This approach provides the essential material constitutive and mechanical models necessary to determine the load effect and resistance statistical parameters required by the second-order second-moment theory. It also aids in constructing the limit state equation. This paper addresses the current state of research on structural reliability theory and its applications. It emphasizes safety and economic considerations in engineering design. Building on the direct probabilistic design method, this study proposes a design approach that incorporates the curvature and nonlinear features of limit state surfaces near design verification points, thereby enhancing the application of approximate probabilistic design methods and providing a framework that ensures structural reliability in practical engineering designs.

2. Consider the Approximate Probability Design Theory of Limit State Surface Curvature

2.1. Mapping Transformation Method

The principle of the mapping transformation method is to utilize the mapping where the values of the cumulative distribution functions are equal. This transforms non-normally distributed random variables into normally distributed random variables. Then, the reliability index is solved using the first-order second-moment method [38]. Assume that each component of the basic variable X = ( X 1 , X 2 , , X n ) T of the structure is an independent non-normally distributed variable, while the probability density function of X i ( i = 1 , 2 , , n ) is f X i ( x i ) , and the cumulative distribution function is F X i ( x i ) .
For each variable X i , perform the following transformation to map any random variable X to the standard normal variable Y:
F X i ( X i ) = Φ ( Y i )
That is
X i = F X i 1 [ Φ ( Y i ) ]
The functional expression represented by Y is
Z = g X ( X ) = g X { F X 1 1 [ Φ ( Y 1 ) ] ,   F X 2 1 [ Φ ( Y 2 ) ] ,   ,   F X n 1 [ Φ ( Y n ) ] } = g Y ( Y )
As shown in Figure 1, Y is established in the standard normal space; for the variable Y i that follows the standard normal distribution, according to the first-order Taylor series expansion of the functional function at the verification point, the expression for the structural reliability index β can be obtained as
β = g X ( x * ) i = 1 n g Y i y * y * i = 1 n ( g Y i y * ) 2
Define the sensitivity coefficient of the random variable Y i as follows:
cos θ Y i = g Y i y * i = 1 n ( g Y i y * ) 2 , i = 1 , 2 , , n
The coordinates of the design acceptance point y * in the space of standardised normal variables Y are
y i * = β cos θ Y i , i = 1 , 2 , , n
Among them,
g Y ( y * ) Y i = g X ( x * ) X i X i Y i y *
The analytical expressions of some basic distributional probabilities checking point x * can be found directly through Equation (2), and differentiating both sides of Equation (1) yields
f X i ( X i ) d X i = φ ( Y i ) d Y i
It can be seen that the mapping transformation is an equal probability transformation, which ensures that the probabilities before and after the transformation are equal, and it also satisfies probability micronutrient equality. According to Equation (8) can be obtained
d X i d Y i y * = X i Y i y * = φ ( y i * ) f X i ( x i * )
The mapping transformation method to solve the reliability index can be used as an iterative process of the checkpoint method for independent normally distributed variables, and the iterative calculation steps are as follows:
(1) Select the initial value of the coordinates of the check point x * ; in general x * = μ X ;
(2) Calculate the initial value of y * according to Equation (1);
(3) Calculate the value of the direction cosine cos θ Y i according to Equations (5), (7) and (9);
(4) Calculate the reliability index β based on Equations (4), (7) and (9);
(5) Calculate the new y * value according to Equation (6);
(6) Calculate the new x * value according to Equation (2);
(7) Repeat calculation steps (3) to (6) with the new x i * , when x * ( 1 ) x * ( 0 ) < ε , ε for the required allowable error value, then stop the calculation; the solution of the reliability index β value for the required reliability index can be obtained; if x * ( 1 ) x * ( 0 ) ε , then take = x * ( 0 )   x * ( 1 ) , repeat the calculation steps (3) to (6), and the result is in line with the requirements.
The mapping transformation method is essentially a first-order second-moment method, which is simple to compute and only uses the mean and variance of the basic variables, and it can be better applied to the problem of solving the reliability of the function with a low degree of nonlinearity. However, it does not consider the local nature of the function in the vicinity of the design acceptance point, which will produce a large error when the degree of nonlinearity of the function is high. The nonlinear effect can be assessed by examining the higher-order terms in the Taylor expansion of a function. When the contribution of second-order terms is significantly smaller than that of first-order terms, specifically when the proportion of second-order terms is less than 5% ( | 2 g ( x * ) σ X 2 | 2 | g ( x * ) σ X | < 0.05 ), the function is considered weakly nonlinear.

2.2. Direct Probabilistic Design Method

For the structural performance function Z = R S , S represents the effect, and R is the resistance, where the random variables R and S obey normal distribution. Because Z is a linear function of R and S, according to the linear combination of normal random variables’ correlation properties, it can be obtained that Z also obeys the normal distribution, and its mean value μ Z = μ R μ S and standard deviation σ Z = σ R 2 + σ S 2 . The structural reliability index is
β = μ R μ S σ R 2 + σ S 2
When the target reliability index β T is given, the average value μ R of the resistance R can be obtained by substituting the statistical parameters of the resistance R and the load effect S into Equation (10). The standard value of resistance R K can be obtained from Equation (11), where K R is the mean value factor of R. Then, the cross-section design is based on the standard value of resistance R K .
R K = μ R K R
In practical engineering, the probability distribution of most random variables does not obey the normal distribution, and it is usually necessary to convert the non-normally distributed underlying variables by equivalent normalization. The criterion for equivalent normalization is that the values of the probability distribution function and the probability density function of the equivalent normal variable X i (with mean μ X i and standard deviation σ X i ) are equal to the values of the probability distribution function and the probability density function of the original non-normal variable X i (with mean μ X i and standard deviation σ X i ) at the design acceptance point X i * [11].
From this it follows
F X i ( x i * ) = Φ ( x i * μ X i σ X i ) = F X i ( x i * )
f X i ( x i * ) = 1 σ X i φ ( x i * μ X i σ X i ) = f X i ( x i * )
Find the mean of the equivalent normal distribution μ X i for
μ X i = x i * Φ 1 [ F X i ( x i * ) ] σ X i
The standard deviation of the equivalent normal distribution σ X i is
σ X i = ϕ { Φ 1 [ F X i ( x i * ) ] } f X i ( x i * )
Consider a simple case; assume that the structural limit state equation is Z = R S G S Q = 0 ; S G is the permanent load effect, which follows normal distribution; S Q is the variable load effect, which follows an extreme value type I distribution; and R is the structural resistance, which follows a lognormal distribution [17]. The coefficient δ R of variation of R , the mean μ S G and standard deviation σ S G of S G , the mean μ S Q and standard deviation σ S Q of S Q , and the target reliability index β T are known, and the steps for solving the standard value of resistance R K are as follows:
(1) List the limit state equations and the known probability models for the distribution of the underlying variables and statistical parameters;
(2) Select the initial value of the coordinates of the design check point x * so that S G * = μ S G , S Q * = μ S Q , R * = S G * + S Q * ;
(3) Performa an equivalent normalization of S Q and R using Equations (14) and (15);
(4) Calculate the direction cosine cos θ S i , cos θ R ;
(5) Calculate the coordinates x * of the checkpoint for the next iteration according to Equation (16);
x * = μ X i α X i β T σ X i
(6) Repeat the calculation from step (2) to step (5) with the coordinates of the design check point of the new round, and when the difference between the coordinates of the check point obtained this time and the previous one is less than the specified error, take the value of X i * of the current round as the coordinates of the check point sought;
(7) Solve for the equivalent normal mean value μ R of the resistance R, which can be obtained as follows:
μ R = R * α R β T σ R
The average value μ R of resistance R can be obtained by substituting the equivalent normal mean μ R obtained from Equation (17) into Equations (14) and (15). When R obeys a lognormal distribution, it can be obtained that
μ R = ( 1 + δ R 2 ) exp ( μ R R * 1 + ln R * )
The standard value of the resistance R K is then calculated from Equation (11) for the section design. The flowchart of this method is shown in Figure 2.

2.3. Approximate Probabilistic Design Method Based on Second-Order Second-Moment Theory

Using the first-order second-moment method to solve the reliability index ignores the various nonlinear properties of the structural limit state equation surface. The method of improving the accuracy of reliability calculation and analysis by considering the influence of the quadratic nonlinearity of the structural limit state equation is called the second-order second-moment method [39]. All input random variables, including various loads, component sizes, and material information, are statistically independent in the original space. For general independent random variables, it is always possible to transform them into random variables obeying a standard normal distribution by means of an equal probability transformation. Assuming that Y = ( Y 1 , Y 2 , , Y n ) T is already a transformed random variable obeying a standard normal distribution, the structure function thus expressed is
Z = g Y ( Y ) = g Y ( Y 1 , Y 2 , , Y n )
The expression of structural failure probability is
p f = g Y ( Y ) < 0 φ ( y 1 ) φ ( y 2 ) φ ( y n ) d y 1 d y 2 d y n = 1 ( 2 π ) n g Y ( Y ) < 0 exp ( 1 2 y T y ) d y
After Taylor series expansion of the limit state surface equation at the design checking point y * to the quadratic term, the calculation expression is as follows:
Z Q = g Y ( y * ) + g Y ( y * ) T ( Y y * ) + 1 2 ( Y y * ) T 2 g Y ( y * ) ( Y y * )
where g Y ( y * ) = ( g Y ( y * ) Y 1 , g Y ( y * ) Y 2 , , g Y ( y * ) Y n ) T is the gradient vector of the limit state surface equation at the design acceptance point. The unit vector expression corresponding to this vector is
α Y = ( α Y 1 , a Y 2 , , α Y n ) T = g Y ( y * ) | | g Y ( y * ) | |
In the standardized state space, the relationship between the design checkpoint y * , the unit vector α Y , and the reliability indicator β is given by
y * = α Y β
By substituting Equations (22) and (23) into Equation (21) and considering that g y ( y * ) = 0 is satisfied at the design acceptance point y * , then it is obtained that
Z Q = | | g Y ( y * ) | | α Y T Y β + 1 2 ( Y α Y β ) T Q ( Y α Y β )
Among them,
Q = 2 g Y ( y * ) | | g Y ( y * ) | |
Using the unit vector α Y as the nth column element of the matrix, the orthogonal matrix generated by the Gram–Schmidt method is
H = h 11 h 12 α Y 1 h 21   h 22   α Y 2 h n 1 h n 2 α Y n
Using the orthogonal matrix H, an orthogonal transformation of the random vector Y is obtained.
Y = H U
The corresponding structure function becomes
Z = g U ( U ) = g U ( U 1 , U 2 , , U n )
The value of the Jacobian determinant transformed from Y to U is | J Y U | = | H | = 1 . In the U spatial coordinate system, the expression for the failure probability can be obtained through Equation (20) as
p f = 1 ( 2 π ) n g U ( U ) < 0 exp ( 1 2 u T u ) d u
Substituting Equation (27) into Equation (24) results in
Z Q = | | g Y ( y * ) | | ( U n β + 1 2 U ˜ T H T Q H U ˜ )
Among others, U ˜ = ( U 1 , U 2 , , U n β ) T .
In Equation (30), omitting the quadratic term related to U n β , we can get
Z Q = | | g Y ( y * ) | | U n β + 1 2 V T ( H T Q H ) n 1 V
where V = ( U 1 , U 2 , , U n 1 ) T , ( H T Q H ) n 1 denotes the matrix H T Q H of order ( n 1 ) × ( n 1 ) after crossing out its nth row and nth column. Substituting Z Q < 0 into Equation (31) yields
U n > β 1 2 V T ( H T Q H ) n 1 V
Thus the structural failure probability expressed by Equation (29) is
p f Q = 1 ( 2 π ) n 1 exp ln Φ ( β + 1 2 ν T ( H T Q H ) n 1 ν × exp ( 1 2 ν T ν ) d ν
If an orthogonal transformation is applied to the n 1 order random vector V
V = T ω
where T is an orthogonal matrix whose elements are composed of the eigenvectors of the ( n 1 ) × ( n 1 ) order matrix ( H T Q H ) n 1 . Thus Equation (31) can be further expressed as
Z Q = g ω ( ω ) = | | g Y ( y * ) | | ( U n β + 1 2 i = 1 n 1 κ i ω 2 )
where κ i ( i = 1 , 2 , , n 1 ) is the eigenvalue of the order matrix of ( H T Q H ) n 1 ( n 1 ) × ( n 1 ) and represents the principal curvature of the limit state surface in the ith direction. Figure 3 illustrates the relationship between the reliability index and the principal curvature of the limit state surface. The calculation leads to
p f Q Φ ( β ) i = 1 n 1 ( 1 β κ i )
The numerator term of Equation (36) is obtained based on the linearization of the limit state equation of the structure, which essentially represents the solution value of the first-order second-moment method, while the denominator term is a correction term based on the calculated value of the numerator term, which is capable of reflecting the quadratic nonlinear characteristic parameters of the limit state equation of the structure.
The direct probability design method is based on the first-order second-moment method to calculate the average value μ R and standard value R K of the resistance R according to the structural target reliability index, and then the cross-section design is carried out. When dealing with the nonlinear performance function problem, the nonlinear characteristics of the performance function are ignored, resulting in an insufficient calculation accuracy. Based on the direct probability design method and the second-order second-moment theory, this paper establishes a second-order second-moment approximate probability design method for structural members, considering the curvature of the limit state surface, so as to improve the reliability control accuracy when dealing with nonlinear performance function problems. The core innovation addresses the inherent limitations of traditional approximate probability design methods when applied to highly nonlinear problems. Unlike the direct probability design method, which is based on the first-order second-moment (FOSM) theory, the proposed method significantly enhances design accuracy by incorporating the second-order term of the Taylor expansion at the design check point. In contrast to the classical second-order second-moment (SORM) theory, which is typically confined to reliability analysis, this paper systematically integrates it into the direct probabilistic design framework. This integration establishes a comprehensive and high-precision probabilistic design system that shifts from ‘analysis’ to ‘design’. It facilitates reverse design with target reliability as the direct input, effectively overcoming the conservatism of traditional design methods while ensuring structural safety.
The second-order second-moment approximate probability design method for structural members considering the curvature of the limit state surface consists of the following. Firstly, the direct probability design method introduced in Section 2.2 is used to calculate the coordinate value of the design checking point of the performance function, and the random variable is transformed into a random variable that obeys the standard normal distribution by equal probability transformation at the design checking point. Then, the allowable failure probability p f is calculated according to the structural target reliability index β T , and the allowable failure probability p f is substituted into the above second-order second-moment method to solve the structural failure probability theory to calculate the modified structural reliability index β . Finally, the direct probability design method is used to calculate the average value μ R and standard value R K of the resistance R according to the modified structural reliability index β , and the section design is carried out. The specific calculation steps are as follows.
(1) Calculate the checkpoint x i * by direct probabilistic design method;
(2)Transform the checkpoints x i * into standard normal space y i * by performing an equal probability transformation;
Y i = Φ 1 [ F X i ( X i ) ]
(3) Calculate the matrix ( H T Q H ) n 1 according to Equations (25) and (26);
(4) Calculate the eigenvalues of the matrix ( H T Q H ) n 1   κ i ( i = 1 , 2 , , n 1 ) ;
(5) Calculate the allowable failure probability p f from the target reliability index β T ;
p f = Φ ( β T )
(6) Let p f Q = p f , and substitute p f Q and κ i into Equation (39) to obtain the corrected reliability index β ;
β = Φ 1 p f Q i = 1 n 1 ( 1 β T κ i )
(7) Substitute the modified reliability index β into the direct probabilistic design method to find the check point x i * , and from Equation (40) to find μ x i .
μ R = R * ( 1 + δ R 2 ) exp ( β ln ( 1 + δ R 2 ) cos θ R )
The flowchart of the approximate probabilistic design method based on second-order second-moment theory is shown in Figure 4. This engineering design method is rooted in probability theory and statistical methods. It involves quantifying the variability of uncertain factors, such as loads and material performance, to establish a target reliability index (e.g., βT = 3.2) as the basis for design. This approach mitigates the inherent overconservatism of conventional partial coefficient methods, achieving a balance between safety and cost-effectiveness. It is particularly well-suited for precision-critical engineering projects with stringent safety requirements. Nevertheless, this method exhibits a strong reliance on data, presents challenges in modeling, necessitates a substantial number of samples to determine the probability distribution of random variables, and involves a high computational complexity. In cases where variables exhibit nonlinearity or a non-normal distribution, it becomes essential to perform a second-order expansion of the function at the design verification point and employ iterative methods for resolution, resulting in exponential increases in computational complexity.
The computational cost of the proposed design method is approximately three times that of the direct probability design method based on the first-order second-moment method (FORM). This increased cost stems from three primary calculation stages: initially, determining the design check point through direct probability design iteration; next, adjusting the reliability index using second-order second-moment (SORM) theory; finally, incorporating the updated reliability index into the direct probability design framework for a second iteration, thereby significantly enhancing the accuracy of the final design results. This method offers strong integrability and can be seamlessly embedded into existing specification systems. It manifests in two primary applications: first, by determining optimal partial coefficients under specific load and resistance conditions through reverse calibration, constrained by a target reliability index, thereby updating the coefficient tables in current specifications; second, as a recommended advanced design method, it is included in the specification appendix to offer standardized design options for critical projects requiring high precision or dealing with complex nonlinear characteristics.

3. Algorithm Validation

Two examples are solved using both widely adopted design methods and those proposed in this paper. The results are verified through Monte Carlo simulations. These findings are compared to demonstrate the efficacy of the approximate probability design method based on second-order second-moment theory.
Case 1: A simply supported reinforced concrete slab with cross-sectional dimensions b  × h = 1000 mm × 500 mm, calculated span l = 3 m, subjected to a uniform variable load q k = 40 kN/m, k q = 0.698 (excluding the deadweight of the slab), concrete grade C30, f c k = 20.1 N/mm2, reinforcing bars of HRB335, yield strength f y k = 335 N/mm2. The limit state equation of the slab is [40]
g X ( X 1 , X 2 , X 3 ) = 8.5 X 1 X 2 0.0019 X 1 2 X 2 2 286.2 11250 X 3 = 0
The random variables are independent of each other, and the physical meanings and statistical information of the random variables are shown in Table 1. The target reliability index for the slab design is 3.2, and the mean value of the required area of reinforcement is determined to be μ X 1 .
Method 1: Direct probabilistic design method
(1) List the limit state equations and known conditions
g X ( X 1 , X 2 , X 3 ) = 8.5 X 1 X 2 0.0019 X 1 2 X 2 2 1431 11250 X 3 = 0
The variable X 1 obeys a lognormal distribution with a coefficient of variation δ X 1 = 0.05; then σ ln X 1 = 0.05 , and the standard deviation of the equivalent normal variable X 1 is
σ X 1 = X 1 * σ ln X 1 = 0.05 X 1 *
The variable X 2 follows a normal distribution with mean μ X 2 = 38 kN/cm2 and standard deviation σ X 2 = 2.66 kN/cm2; the variable X 3 obeys an extreme value type I distribution with mean μ X 3 = 0.279 kN/cm and standard deviation σ X 3 = 0.0807 kN/cm.
Equivalent normalization is performed to obtain the mean and standard deviation of the equivalent normal random variable X 3 corresponding to the original variable X3.
μ X 3 = X 3 * Φ 1 [ F X 3 ( X 3 * ) ] σ X 3 ,   σ X 3 = φ { Φ 1 [ F X 3 ( X 3 * ) ] } f X 3 ( X 3 * )
(2) Assigning initial values to the coordinates of the basic variable checkpoints
X 2 * = μ X 2 = 38 kN / cm 2 ,   X 2 * = μ X 2 = 0.2792 kN / cm   ,   X 1 * = 2.4900   c m 2
(3) Equivalent normalization treatment
σ X 1 = 0.05 X 1 * = 0.1245   cm 2
μ X 3 = X 3 * Φ 1 [ F X 3 ( X 3 * ) ] σ X 3 = 0.2654 kN / cm
σ X 3 = φ { Φ 1 [ F X 3 ( X 3 * ) ] } f X 3 ( X 3 * ) = 0.0766 kN / cm
(4) Calculate the direction cosine
g X ( x * ) X 1 = 8.5 x 2 * 0.0038 x 1 * x 2 * 2 ,   g X ( x * ) X 2 = 8.5 x 1 * 0.0038 x 2 * x 1 * 2 ,   g X ( x * ) X 3 = 11250
According to the formula for the direction cosine, it can be obtained that
α X 1 = 0.2407 ,   α X 2 = 0.3370 ,   α X 3 = 0.9102
(5) Calculate the coordinates of the new checkpoints
X 2 * = μ X 2 + α X 2 β T σ X 2 = 38 0.3370 × 3.2 × 2.66 = 35.1315   kN / cm 2
X 3 * = μ X 3 + α X 3 β T σ X 3 = 0.2654 + 0.9102 × 3.2 × 0.0766 = 0.4884   kN / cm
X 1 * = 4.0877   cm 2
(6) Repeat the calculation steps (3)~(5) until the relative error of the coordinates of the check points obtained from the two iterations before and after meets the accuracy requirements, and the iteration stops. Table 2 gives the check point coordinates of the iterative calculation process.
(7) Calculate the equivalent normal mean μ X 1 and mean μ X 1 of the variable X 1
μ X 1 = X 1 * α X 1 β T σ X 1 = 5.1564 + 0.1793 × 3.2 × 0.05 × 5.1564 = 5.3040   cm 2
μ X 1 = ( 1 + δ X 1 2 ) exp ( μ X 1 X 1 * 1 + ln X 1 * )             = ( 1 + 0.05 2 ) × exp ( 5.3040 5.1564 1 + ln 5.1564 ) = 5.3092 cm 2
Method 2: Second-order second-moment approximation probabilistic design method
(1) List the coordinates of the design acceptance points obtained by the iterative calculation of the direct probabilistic design method: X 1 * = 5.1564 cm2, X 2 * = 35.7259 kN/cm2, X 3 * = 0.6613 kN/m;
(2) Transform the coordinates of the checkpoints to the standard normal space by means of an equal probability transformation
X 1 = exp ( μ ln X 1 + σ ln X 1 Y 1 ) , X 2 = μ X 2 + σ X 2 Y 2 . X 3 = u ln { ln [ Φ ( Y 3 ) ] } α
where, μ ln X 1 = 1.6687 , σ ln X 1 = 0.05 , μ X 2 = 38 , σ X 2 = 2.66 , α = 15.9391 , u = 0.2430 ; substituting the above equation gives y 1 * = 0.5692 , y 2 * = 0.8549 , y 3 * = 3.0183 ;
(3) Calculate α Y
g X ( x * ) X 1 = 48.5 x 2 * 0.0038 x 1 * x 2 * 2 = 1707.7537
g X ( x * ) X 2 = 48.5 x 1 * 0.0038 x 2 * x 1 * 2 = 246.4757
g X ( x * ) X 3 = 11250
X 1 Y 1 = σ ln X 1 X 1 * = 0.05 × 5.1564 = 0.2578 ,   X 2 Y 2 = σ X 2 = 2.66 ,   X 3 Y 3 = 0.2073
g Y ( y * ) Y 1 = g X ( x * ) X 1 X 1 Y 1 = 1707.7537 × 0.2578 = 440.2589
g Y ( y * ) Y 2 = g X ( x * ) X 2 X 2 Y 2 = 246.4757 × 2.66 = 655.6253
g Y ( y * ) Y 3 = g X ( x * ) X 3 X 3 Y 3 = 2331.5625
| | g Y ( y * ) | | = i = 1 3 ( g Y ( y * ) Y i ) 2 = ( 440.2589 ) 2 + ( 655.6253 ) 2 + ( 2331.5625 ) 2 = 2461.6836
α Y 1 = g Y ( y * ) Y 1 / | g Y ( y * ) | | = 0.1789
α Y 2 = g Y ( y * ) Y 2 / | g Y ( y * ) | | = 0.2663
α Y 3 = g Y ( y * ) Y 3 / | g Y ( y * ) | | = 0.9471
(4) Using ( α Y q   α Y E   α Y I ) T as a column vector, the Schmidt orthogonalization method is used to determine H
H = h 11 h 12 α Y q h 21 h 22 α Y E h 31 h 32 α Y I = a 11 a 12 0.1789 a 21 a 22 0.2663 a 31 a 32 0.9471 = 0.5282 0.8301 0.1789 0.7862 0.5576 0.2663 0.3209 0 0.9471
(5) Calculate the matrix Q
2 g X ( x * ) X 1 2 = 0.0038 x 2 * 2 = 0.0038 × 35.7259 2 = 4.8504
2 g X ( x * ) X 2 2 = 0.0038 x 1 * 2 = 0.0038 × 5.1564 2 = 0.1010
2 g X ( x * ) X 1 X 2 = 2 g X ( x * ) X 1 X 2 = 48.5 0.0076 x 1 * x 2 * = 47.0999
2 X 1 Y 1 2 = ( σ ln X 1 ) 2 x 1 * = ( 0.05 ) 2 × 5.1564 = 0.0129 ,   2 X 2 Y 2 2 = 0 ,   2 X 3 Y 3 2 = 0.0656
2 g Y ( y * ) Y 1 2 = 2 g X ( x * ) X 1 2 ( X 1 Y 1 ) 2 + g X ( x * ) X 1 2 X 1 Y 1 2 = 21.6922
2 g Y ( y * ) Y 2 2 = 2 g X ( x * ) X 2 2 ( X 2 Y 2 ) 2 + g X ( x * ) X 2 2 X 2 Y 2 2 = 0.7149
2 g Y ( y * ) Y 3 2 = 2 g X ( x * ) X 3 2 ( X 3 Y 3 ) 2 + g X ( x * ) X 3 2 X 3 Y 3 2 = 738
2 g Y ( y * ) Y 1 Y 2 = 2 g Y ( y * ) Y 2 Y 1 = 2 g X ( x * ) X 1 X 2 X 1 Y 1 X 2 Y 2 = 32.3012
The remaining second-order mixed partial derivatives are all zero.
2 g Y ( y * ) = 2 g y ( y * ) Y 1 2 2 g Y ( y * ) Y 1 Y 2 2 g Y ( y * ) Y 1 Y 3 2 g Y ( y * ) Y 2 Y 1 2 g y ( y * ) Y 2 2 2 g Y ( y * ) Y 2 Y 3 2 g Y ( y * ) Y 3 Y 1 2 g Y ( y * ) Y 3 Y 2 2 g y ( y * ) Y 3 2 = 21.6922 32.3012 0 32.3012 0.7149 0 0 0 738
Q = 2 g Y ( y * ) | | g Y ( y * ) | | = 1 2461.6836 × 21.6922 32.3012 0 32.3012 0.7149 0 0 0 738 = 0.0088 0.0131 0 0.0131 0.0003 0 0 0 0.2998
(6) Calculate the eigenvalues and eigenvectors of the matrix ( H T Q H ) n 1
H T Q H = 0.5282 0.8301 0.1789 0.7862 0.5576 0.2663 0.3209 0 0.9471 T × 0.0088 0.0131 0 0.0131 0.0003 0 0 0 0.2998 × 0.5282 0.8301 0.1789 0.7862 0.5576 0.2663 0.3209 0 0.9471 = 0.0200 0.0084 0.1018 0.0084 0.0063 0.0029 0.1018 0.0029 0.2855
H T Q H The matrix after removing the last row and the last column of the matrix is
( H T Q H ) n 1 = 0.0200 0.0084 0.0084 0.0063
(7) The eigenvalues of the matrix ( H T Q H ) n 1 , i.e., the principal curvatures of the limit state surfaces, are calculated by the procedure of MATLAB (R2024b) software programming as κ 1 = 0.0240, κ 2 = 0.0023;
(8) Take the target reliability index β T = 3.2, according to the relationship between the reliability index and the probability of failure equation, to get the probability of failure p f = 6.8710 × 10 4 , so that p f Q = p f , substituting into the Equation (39), to find the reliability index β = 3.2130;
(9) Take the reliability index β = 3.2130 by the direct probabilistic design method and solve it to get the mean value of the area of reinforcement, μ X 1 = 541.9891 mm2.
Method 3: Partial coefficient method
Mid-span bending moment due to self-weight of the slab:
S G k = 1 8 g k l 0 2 = 1 8 × 12 × 3 2 = 13.5   kN · m
Mid-span bending moment from variable loads on the slab:
S Q k = 1 8 q k l 0 2 = 1 8 × 40 × 3 2 = 45   kN · m
The design value for the role of the plate is
γ G S G k + γ Q S Q k = ( 1.3 × 13.5 + 1.5 × 45 ) = 85.05   kN · m
γ G S G k + γ Q S Q k R k γ R = A s f y k ( h 0 A s f y k 2 α 1 b f c k ) γ R
For C30 concrete, α 1 = 1.0. Taking the effective height of the slab as h 0 = 485 mm, substituting b = 1000 mm, f c k = 20.1 N/mm2, f y k = 335 N/mm2, γ R = 1.15 into the above equation yields A s = 608.2427 mm2.
Method 4: Design value method
Taking the structural design base period as T = 50 a, k G = 1.06 , δ G = 0.07 , k R = 1.13 , δ R = 0.10 , k Q = 0.698 , δ Q = 0.288 , then
γ G = k G ( 1 + α G δ G β T ) = 1.06 × ( 1 + 0.28 × 0.07 × 3.2 ) = 1.126
γ R = 1 k R exp ( α R δ R β T ) = 1 1.13 × exp ( 0.8 × 0.1 × 3.2 ) = 1.143
γ Q = k Q ( 1 0.7797 δ Q { 0.5772 + ln [ ln Φ ( α Q β T ) ] } = 0.698 × ( 1 0.7797 × 0.288 × { 0.5772 + ln [ ln Φ ( 0.7 × 3.2 ) ] } = 1.293
The design value for the role of the plate is
γ G S G k + γ Q S Q k = ( 1.126 × 13.5 + 1.293 × 45 ) = 73.386   kN · m
Substituting the substitution coefficients into the practical expression gives A s = 520.9275 mm2.
MATLAB software is utilized to implement a Monte Carlo method program for computing the reliability index. By considering the actual distribution of reinforcement area, reinforcement yield strength, and uniform load as outlined in Table 1, a set of 1 × 107 samples is generated. These samples are then inserted into the limit state equation to conduct 1 × 107 simulation calculations. The failure probability of the structure is determined by dividing the instances where the function g X ( X 1 , X 2 , X 3 ) is less than 0 by the total number of simulations. Subsequently, the reliability index is computed using Formula (38). The mean value of the longitudinal rib area, determined through four design methods, is substituted into the Monte Carlo method program. The resulting relative error between the reliability index obtained from the four design methods and the target reliability index is presented in Table 3. Utilizing the partial coefficient method yielded a reinforcement consumption of 608.3437 mm2, with a Monte Carlo program output of β = 3.5896, exhibiting a relative error of 12.175%. Employing the design value method resulted in a reinforcement consumption of 520.9279 mm2, with a Monte Carlo program output of β = 3.0209, and a relative error of 5.597%. The direct probability design method led to a reinforcement consumption of 530.8092 mm2, with a Monte Carlo program output of β = 3.1066, demonstrating a relative error of 2.919%. Conversely, applying the design method proposed in this study resulted in a reinforcement consumption of 541.9891 mm2, with a Monte Carlo program output of β = 3.1889 and a relative error of 0.346%.
Figure 5 and Figure 6 present the performance comparison results of the four design methods, along with the Monte Carlo reliability index comparisons for each method. The partial coefficient method yields the highest structural reliability (quantified by the reliability index) but necessitates a notably larger reinforcement area, leading to suboptimal cost-effectiveness. In contrast, the direct probability design method and design value method result in relatively lower reinforcement quantities and correspondingly diminished structural reliability indices. In comparison to these approaches, the proposed method demonstrates superior calculation precision and strikes a more favorable equilibrium between reinforcement usage and structural reliability. These quantitative findings robustly validate the efficacy and superiority of the design method introduced in this study.
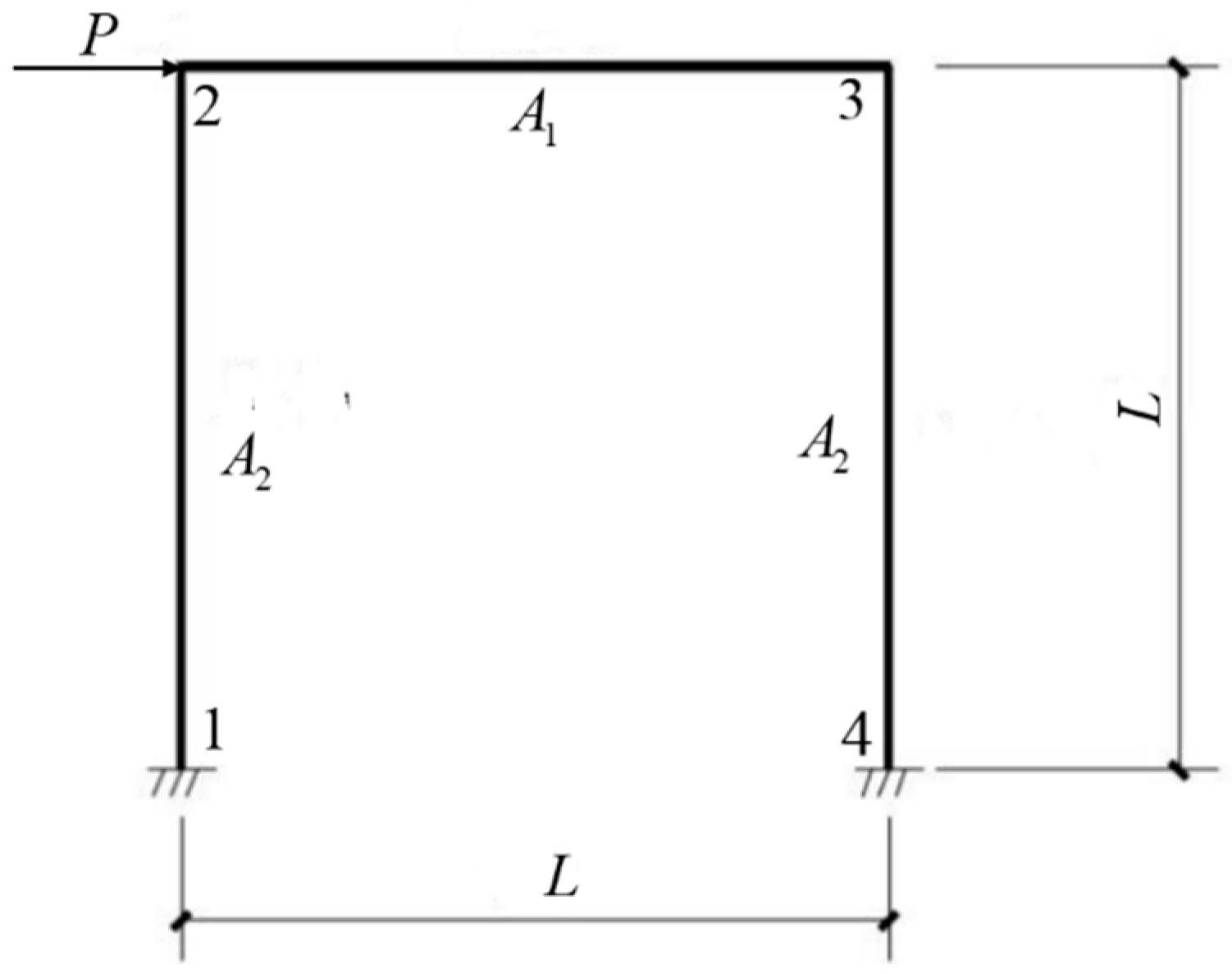
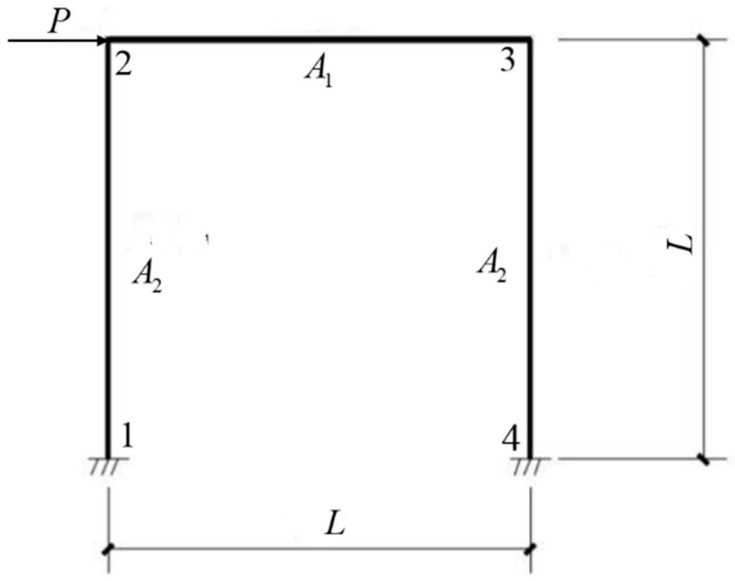
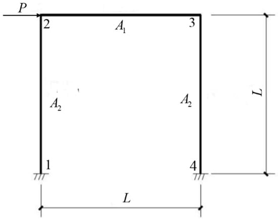
Case 2: Design of the cross-sectional area of the frame beam to satisfy the lateral limit state. The limit state equation for the structure depicted in Figure 7 is
Z = L 400 u 3 ( A 1 , E , P ) = L 400 12 P ( 48 A 1 2 + 32 A 2 2 ) ( 18 A 2 2 A 1 2 + 3 A 2 4 ) E = 0
Among them, u3 represents the horizontal displacement of vertex 3. The span length of the structure is L = 4 m, and the cross-sectional area of the column is A2 = 0.4 m2. These values remain constant regardless of variations in span length or cross-sectional area. The physical meaning and statistical information of the random variables are detailed in Table 4, and the mean value μ A 1 of the cross-sectional area A1 is determined.
Method 1: Direct probabilistic design method
(1) The variable P follows an extreme type I distribution with μ P = 20 kN/m and δ P = 0.25 ; The parameters of its probability distribution function are
α = 1.2826 σ P = 1.2826 20 × 0.25 = 0.2565 ,   u = μ P 0.5772 α = 17.7497
Let t = exp [ α ( P * u ) ] = exp [ 0.2565 ( P * 17.7497 ) ] . Then the probability density function and probability distribution function of P at the checking point are
f P ( P * ) = α exp { [ α ( P * u ) t ] } = 0.2565 exp { [ 0.2565 ( q * 17.7497 ) ] t ] } F P ( P * ) = exp ( t )
(2) Assigning initial values to the coordinates of the basic variable checkpoints
E * = μ E = 1500 Mpa ,   P * = μ P = 20 kN ,   A 1 * = 0.0492   m 2
(3) Equivalent normalization treatment
σ A 1 = 0.0998 A 1 * = 4.9101 × 10 3 ,   t = exp [ 0.2565 ( P * 17.7497 ) ] = 0.5614 f q ( q * ) = 0.2565 exp { [ 0.2565 ( P * 17.7497 ) ] t ] } = 0.0821 F P ( P * ) = exp ( t ) = 0.5705 μ P = P * Φ 1 [ F P ( P * ) ] σ P = 20 0.1773 × 4.7807 = 19.1523 kN σ P = φ { Φ 1 [ F P ( P * ) ] } f P ( P * ) = 0.3926 0.0821 = 4.7807 kN
(4) Calculate the direction cosine
g X ( x * ) A 1 = 0.0192 A 1 * E * 386 A 1 * P * ,   g X ( x * ) E = 9.6 × 10 3 A 1 2 * + 2.56 × 10 4 , g X ( x * ) P = 192 A 1 2 * + 20.48
According to the formula for the direction cosine, it can be gotten that
α A 1 = 0.0470 ,   α E = 0.3855 ,   α P = 0.9215
(5) Calculate the coordinates of the new checkpoints
E * = μ E + α E β T σ E = 1.5 × 10 6 0.3855 × 3.2 × 1.5 × 10 5 = 1.3280 × 10 6   kN / m 2 P * = μ P + α P β T σ P = 19.1523 + 4.7809 × 3.2 × 0.9215 = 33.2501 kN A 1 * = 0.2349   m 2
(6) Repeat calculation steps (3)~(5) until the relative error of the coordinates of the check points obtained from the two iterations before and after meets the accuracy requirements, and the iteration stops. Table 5 gives the check point coordinates of the iterative calculation process.
(7) Calculate the mean value μ A 1 of the cross-sectional area A1
μ A 1 = A 1 * α A 1 β T σ A 1 = 0.3417 + 0.1814 × 3.2 × 0.0998 × 0.3417 = 0.3615   m 2 μ A 1 = ( 1 + δ A 1 2 ) exp ( μ A 1 A 1 * 1 + ln A 1 * ) = 0.3629 m 2
Method 2: Second-order second-moment approximation probabilistic design method
(1) List the coordinates of the design acceptance points obtained by the iterative calculation of the direct probabilistic design method: P * = 42.7364 kN, E * = 1.3314 × 10 6 kN/m2, A 1 * = 0.3417 m2;
(2) Transform the coordinates of the checkpoints to the standard normal space by means of an equal probability transformation
A 1 = exp ( μ ln A 1 + σ ln A 1 Y A 1 ) ,   E = μ E + σ E Y E ,   P = u ln { ln [ Φ ( Y P ) ] } α .
where α = 0.2565 , u = 17.7497 , μ ln A 1 = 1.0156 , σ ln A 2 = 0.0998 , μ E = 1.5 × 10 6 , σ E = 1.5 × 10 5 ; substituting the above equation gives y A 1 * = 0.5834 , y E * = 1.1240 , y P * = 2.9290 ;
(3) Calculate α Y
α Y A 1 = g Y ( y * ) Y A 1 / | g Y ( y * ) | | = 0.1805 α Y E = g Y ( y * ) Y E / | g Y ( y * ) | | = 0.3554 α Y P = g Y ( y * ) Y P / | | g Y ( y * ) | | = 0.9171
(4) Using ( α Y q   α Y E   α Y I ) T as a column vector, the Schmidt orthogonalization method is used to determine H
H = h 11 h 12 α Y A 1 h 21 h 22 α Y E h 31 h 32 α Y P = a 11 a 12 0.1805 a 21 a 22 0.3554 a 31 a 32 0.9171 = 0.4037 0.8916 0.1805 0.7950 0.4528 0.3554 0.3875 0 0.9171
(5) Calculate the matrix Q
2 g Y ( y * ) = 2 g y ( y * ) Y q 2 2 g Y ( y * ) Y q Y E 2 g Y ( y * ) Y q Y I 2 g Y ( y * ) Y E Y q 2 g y ( y * ) Y E 2 2 g Y ( y * ) Y E Y I 2 g Y ( y * ) Y I Y q 2 g Y ( y * ) Y I Y E 2 g y ( y * ) Y I 2 = 40.3678 33.8818 56.5321 33.8818 0 0 56.5321 0 151.0497 Q = 2 g Y ( y * ) | | g Y ( y * ) | | = 0.0683 0.0573 0.0957 0.0573 0 0 0.0957 0 0.2809
(6) Calculate the eigenvalues and eigenvectors of the matrix ( H T Q H ) n 1
H T Q H = 0.0242 0.0217 0.1550 0.0217 0.0080 0.1027 0.1550 0.1027 0.1950
H T Q H The matrix after removing the last row and the last column of the matrix is
( H T Q H ) n 1 = 0.0242 0.0217 0.0217 0.0080
(7) The eigenvalues of the matrix ( H T Q H ) n 1 , i.e., the principal curvatures of the limit state surfaces, are calculated by the procedure of MATLAB software programming as κ 1 = 0.0189 , κ 2 = 0.0361 ;
(8) Take the target reliability index β T = 3.2 , according to the relationship between the reliability index and the probability of failure equation, to get the probability of failure p f = 6.8710 × 10 4 , so that p f Q = p f substituting into the Equation (39) to find the reliability index β = 3.2132 ;
(9) Take the reliability index β = 3.2132 by the direct probabilistic design method and solve it to get the mean value of the area of reinforcement μ A 1 = 0.3684 m 2 .
Using MATLAB software to implement the Monte Carlo method, the mean value μ A 1 of the cross-sectional area A1 of the beam, as calculated by the two design methods, is substituted. This yields the relative error between the reliability indices of the two design methods and the target reliability index, as presented in Table 6. Figure 8 presents a comparison of Monte Carlo reliability indices for various design methods. The Monte Carlo method program’s output for the direct probability design method is β = 3.1754, with a relative error of 0.769% compared to the target reliability index. For the design method introduced in this paper, the Monte Carlo method program yields β = 3.1927, with a relative error of just 0.228% against the target reliability index. These quantitative comparison results further validate the efficacy of the design method proposed in this paper.

4. Conclusions

(1) This paper introduces an enhanced approximate probabilistic design method that builds upon the direct probabilistic design approach, taking into account the nonlinear attributes of limit state surfaces. By utilizing the target reliability index as the primary design criterion, this method successfully mitigates the inherent conservatism of conventional partial coefficient methods and addresses the constraints of the direct probability method in handling nonlinear functions. Consequently, it achieves an improved cost-effectiveness without compromising structural safety. This approach is particularly well-suited for critical engineering designs that demand high precision and safety standards.
(2) Using the example of a simply supported plate, this paper quantitatively compares the proposed design method with the reinforcement design outcomes of the direct probability design method, partial coefficient method, and design value method. The calculated reinforcement areas from these four structural design approaches are similar, confirming the accuracy of the method presented in this study. Subsequent analysis indicates that the partial coefficient method exhibits conservatism and a lower cost-effectiveness, whereas the design value method and direct probability design method demonstrate greater cost-efficiency. However, their respective Monte Carlo simulation reliability indices exhibit notable deviations from the desired values.
(3) The design method proposed in this paper was validated through Monte Carlo simulations, demonstrating exceptional calculation accuracy. In two typical examples, the relative errors of the reliability indices obtained using the proposed method were 0.346% and 0.228%, respectively—significantly lower than those of the direct probability design method, which had relative errors of 2.919% and 0.769%, respectively. These results fully demonstrate the effectiveness and significant advantages of the proposed design method in practical engineering applications, offering a more accurate and reliable analysis tool for structural reliability design.

Author Contributions

Conceptualization, H.L. and Z.Z.; Methodology, H.L.; Software, Y.M. and F.Y.; Formal analysis, H.L.; Investigation, Y.M. and F.Y.; Writing – original draft, H.L. and Y.M.; Writing – review & editing, Z.Z. and F.W.; Supervision, Z.Z.; Project administration, Z.Z.; Funding acquisition, Z.Z. All authors have read and agreed to the published version of the manuscript.

Funding

This work was jointly supported by the Talent Recruitment Project of Hunan Province, China (grant no. 2023TJ-Z17), and Regional Scientific and Technological Cooperation and Exchange Project of the Hunan Association for Science and Technology (2024SKX-KJ-09).

Data Availability Statement

The original contributions presented in the study are included in the article, further inquiries can be directed to the corresponding author.

Conflicts of Interest

The authors declare no conflict of interest.

References

  1. Zhang, Z.; Li, W.; Ding, Z.; Wu, X. An approach to the selection of target reliability index of cable-stayed bridge’s main girder based on optimal structural parameter ratio from cost-benefit analysis. Structures 2020, 28, 2221–2231. [Google Scholar] [CrossRef]
  2. Ma, Y.F.; Guo, Z.; Wang, L.; Zhang, J.R. Probabilistic life prediction for reinforced concrete structures subjected to seasonal corrosion-fatigue damage. J. Struct. Eng. 2020, 146, 04020117. [Google Scholar] [CrossRef]
  3. Zhang, Z.; Li, H.; Xiong, J.; Wang, F.; Wei, L.; Ke, L. Determination of the target reliability index of the concrete main girder of long-span structures based on structural design service life. Buildings 2022, 12, 2249. [Google Scholar] [CrossRef]
  4. Wang, L.; Hu, Z.; Dang, C.; Beer, M. Refined parallel adaptive Bayesian quadrature for estimating small failure probabilities. Reliab. Eng. Syst. Saf. 2024, 244, 109953. [Google Scholar] [CrossRef]
  5. Zhang, Z.; Liu, Y.; Wang, L.; Li, W.; Ma, G. Probability Analysis of Duration of Stochastic Process Exceeding Fixed Threshold and Its Application on Structural Cumulative Damage and Fatigue Reliability Evaluation. ASCE-ASME J. Risk Uncertain. Eng. Syst. Part A Civ. Eng. 2024, 10, 04024007. [Google Scholar] [CrossRef]
  6. Freudenthal, A.M. The safety of structures. Trans. Am. Soc. Civ. Eng. 1947, 112, 125–159. [Google Scholar] [CrossRef]
  7. Freudenthal, A.M. Safety and the probability of structural failure. Trans. Am. Soc. Civ. Eng. 1956, 121, 1337–1375. [Google Scholar] [CrossRef]
  8. Cornell, C.A. A probability-based structural code. J. Proc. 1969, 66, 974–985. [Google Scholar]
  9. Lind, N.C.; Turkstra, C.J.; Wright, D.T. Safety, Economy, and Rationality in Structural Design. In Proceedings of the 7th Congress of the International Association for Bridge and Structural Engineering, Rio de Janeiro, Brazil, 10–16 August 1964; pp. 185–191. [Google Scholar]
  10. Hasofer, A.M.; Lind, N.C. Exact and invariant second-moment code format. J. Eng. Mech. Div. 1974, 100, 111–121. [Google Scholar] [CrossRef]
  11. Shinozuka, M. Basic Analysis of Structural Safety. J. Struct. Eng. 1983, 109, 721–740. [Google Scholar] [CrossRef]
  12. Rackwitz, R. First order reliability theories and stochastic models. In Proceedings of the 2nd ICOSSAR, Munich, Germany, 19–21 September 1977. [Google Scholar]
  13. Rackwitz, R.; Flessler, B. Structural reliability under combined random load sequences. Comput. Struct. 1978, 9, 489–494. [Google Scholar] [CrossRef]
  14. Liu, P.L.; Kiureghian, A.D. Multivariate distribution models with prescribed marginals and covariances. Probabilistic Eng. Mech. 1986, 1, 105–112. [Google Scholar] [CrossRef]
  15. Richards, D. An Introduction to Copulas (2nd ed.). J. Am. Stat. Assoc. 2010, 105, 445. [Google Scholar]
  16. Zhao, Y.G.; Lu, Z.H. Fourth-Moment Standardization for Structural Reliability Assessment. J. Struct. Eng. 2007, 133, 916–924. [Google Scholar] [CrossRef]
  17. Zhao, Y.G.; Ang, A.H.S. On the first-order third-moment reliability method. Struct. Infrastruct. Eng. 2012, 8, 517–527. [Google Scholar] [CrossRef]
  18. Wang, J.; Lu, Z.-H.; Saito, T.; Zhang, X.-G.; Zhao, Y.-G. A Simple Third-Moment Reliability Index. J. Asian Arch. Build. Eng. 2017, 16, 171–178. [Google Scholar] [CrossRef]
  19. Li, L.; Wu, T.; He, X.; Hao, J.; Wang, H.; Xu, H. Reliability Evaluation of Vortex-Induced Vibration for a Long-Span Arch Bridge. J. Bridg. Eng. 2018, 23, 05018002. [Google Scholar] [CrossRef]
  20. Kiureghian, A.D.; Stefano, M.D. Efficient Algorithm for Second-Order Reliability Analysis. J. Eng. Mech. 1991, 117, 2904–2923. [Google Scholar] [CrossRef]
  21. Zhao, Y.G.; Ono, T. Moment methods for structural reliability. Struct. Saf. 2001, 23, 47–75. [Google Scholar] [CrossRef]
  22. Zhang, L.W. An improved fourth-order moment reliability method for strongly skewed distributions. Struct. Multidiscip. Optim. 2020, 62, 1213–1225. [Google Scholar] [CrossRef]
  23. Lu, Z.H.; Hu, D.Z.; Zhao, Y.G. Second-order fourth-moment method for structural reliability. J. Eng. Mech. 2017, 143, 06016010. [Google Scholar] [CrossRef]
  24. Lu, Z.-H.; Cai, C.-H.; Zhao, Y.-G.; Leng, Y.; Dong, Y. Normalization of correlated random variables in structural reliability analysis using fourth-moment transformation. Struct. Saf. 2020, 82, 101888. [Google Scholar] [CrossRef]
  25. Das, P.K.; Zheng, Y. Cumulative formation of response surface and its use in reliability analysis. Probabilistic Eng. Mech. 2000, 15, 309–315. [Google Scholar] [CrossRef]
  26. Winkelmann, K.; Gorski, J. The use of response surface methodology for reliability estimation of composite engineering structures. J. Theor. Appl. Mech. 2014, 52, 1019–1032. [Google Scholar] [CrossRef]
  27. Zhang, Z.; Tao, M.; Li, B.; Wang, L.; Wei, G. DPIM-based global reliability analysis method for the cable-stayed bridges and the determination of global target reliability index. Eng. Struct. 2024, 302, 117330. [Google Scholar] [CrossRef]
  28. Movahedi, R.M. Reliability based analysis and optimum design of laterally loaded piles. Period. Polytech. Civ. Eng. 2017, 61, 491–497. [Google Scholar] [CrossRef][Green Version]
  29. Yang, C.; Jiang, Y.; Zhang, Z.; Jin, X. Loads and Structural Design Methods; Zhongnan University Press: Changsha, China, 2016. [Google Scholar][Green Version]
  30. Lind, N.C. Consistent partial safety factors. J. Struct. Div. 1971, 97, 1651–1669. [Google Scholar] [CrossRef]
  31. ISO2394; General Principles on Reliability for Structures. International Organization for Standardization: Geneva, Switzerland, 2015.
  32. EN1990; Basis of Structural Design. European Committee for Standardization: Brussels, Belgium, 2002.
  33. Kulkarni, A.M.; Datta, D. Probabilistic analysis of RC beams according to IS456:2000 in limit state of collapse. Struct. Eng. Mech. 2019, 71, 165–173. [Google Scholar]
  34. Kulkarni, A.M.; Datta, D. Reliability-based assessment of doubly reinforced beams for limit state of collapse. Curr. Sci. A Fortn. J. Res. 2020, 119, 944–953. [Google Scholar] [CrossRef]
  35. Zhang, Z.; Gong, W.; Xie, J.; Dai, G.; Su, W.; Qiao, J. Probabilistic limit state design method of the axial resistance of post grouting pile. J. Southeast Univ. (Engl. Ed.) 2022, 38, 166–170. [Google Scholar]
  36. Nazeeh, K.M.; Babu, G. Reliability-Based Robust Design of Raft Foundation and Effect of Spatial Variability. ASCE-ASME J. Risk Uncertain. Eng. Syst. Part A Civ. Eng. 2021, 7, 04021040. [Google Scholar] [CrossRef]
  37. Mascolo, I.; Guarracino, F.; Sarfarazi, S.; Corte, G.D. A proposal for a simple characterization of stainless steel connections through an equivalent yield strength. Structures 2024, 68, 107043. [Google Scholar] [CrossRef]
  38. Hohenbichler, M.; Rackwitz, R. Non-Normal Dependent Vectors in Structural Safety. J. Eng. Mech. Div. 1981, 107, 1227–1238. [Google Scholar] [CrossRef]
  39. Breitung, K. Asymptotic approximations for multinormal integrals. J. Eng. Mech. 1984, 110, 357–366. [Google Scholar] [CrossRef]
  40. Gong, J.; Wei, W. Principles of Reliability Design of Engineering Structures; Machinery Industry Press: Beijing, China, 2007. [Google Scholar]
Figure 1. Relationship between limit state equation and reliability index.
Figure 1. Relationship between limit state equation and reliability index.
Buildings 15 03421 g001
Figure 2. Flowchart of direct probability design method.
Figure 2. Flowchart of direct probability design method.
Buildings 15 03421 g002
Figure 3. Reliability index and principal curvature of limit state surface.
Figure 3. Reliability index and principal curvature of limit state surface.
Buildings 15 03421 g003
Figure 4. Flowchart of approximate probabilistic design method based on second-order second-moment theory.
Figure 4. Flowchart of approximate probabilistic design method based on second-order second-moment theory.
Buildings 15 03421 g004
Figure 5. Performance comparison of four structural design methods.
Figure 5. Performance comparison of four structural design methods.
Buildings 15 03421 g005
Figure 6. Comparison of Monte Carlo reliability indices of different design methods.
Figure 6. Comparison of Monte Carlo reliability indices of different design methods.
Buildings 15 03421 g006
Figure 7. Single-layer single-span frame schematic diagram.
Figure 7. Single-layer single-span frame schematic diagram.
Buildings 15 03421 g007
Figure 8. Comparison of Monte Carlo reliability indices of different design methods.
Figure 8. Comparison of Monte Carlo reliability indices of different design methods.
Buildings 15 03421 g008
Table 1. Physical meaning and statistical information of random variables.
Table 1. Physical meaning and statistical information of random variables.
Random VariablePhysical MeaningDistribution TypeAverage Value μ Coefficient of Variation δ
X 1 Area of reinforcing steellognormal distributionawaiting an answer0.05
X 2 Yield strength of reinforcementnormal distribution380 MPa0.07
X 3 Distributed loadextreme type I distribution27.92 kN / m 0.288
Table 2. Coordinates of check points for the iterative calculation process.
Table 2. Coordinates of check points for the iterative calculation process.
Number of Iterations X 1 * ( cm 2 ) X 2 * ( kN / cm 2 ) X 3 * ( kN / cm ) α X 1 α X 2 α X 3
12.4900380.2792 0.2407 0.33700.9102
24.087735.14190.4884 0.1878 0.28440.9401
34.988635.57950.6327 0.1798 0.26880.9463
45.152335.71160.6603 0.1793 0.26720.9468
55.156435.72590.6613 0.1793 0.26700.9469
Table 3. Results of the Monte Carlo method ( β T = 3.2).
Table 3. Results of the Monte Carlo method ( β T = 3.2).
MethodologiesAverage Steel Bar Area (mm2)Monte Carlo MethodRelative Error
Direct probabilistic design method530.8092 β = 3.10662.919 per cent
The method proposed in this paper541.9891 β = 3.18890.346 per cent
Partial coefficient method608.3437 β = 3.589612.175 per cent
Design value method520.9279 β = 3.02095.597 per cent
Table 4. Physical meaning and statistical information of random variables.
Table 4. Physical meaning and statistical information of random variables.
Random VariablePhysical MeaningsDistribution TypeMean Value μ Coefficient of Variation δ
A 1 Cross-section areaLognormal distributionAwaiting an answer0.10
E Elastic modulusNormal distribution1500 Mpa 0.10
P LoadExtreme type I distribution20 kN/m0.25
Table 5. Coordinates of check points for the iterative calculation process.
Table 5. Coordinates of check points for the iterative calculation process.
Number of Iterations A 1 * I * ( × 10 6 ) P * α A 1 α A 2 α P
10.04921.520 0.0470 0.38550.9215
20.23491.328033.2501 0.2089 0.35830.9099
30.32301.330941.2251 0.1875 0.35160.9167
40.34071.331342.6597 0.1817 0.35140.9172
50.34171.331442.7342 0.1814 0.35130.9185
60.34171.331442.7364 0.1814 0.35130.9185
Table 6. Results of the Monte Carlo method ( β T = 3.2 ).
Table 6. Results of the Monte Carlo method ( β T = 3.2 ).
MethodologiesAverage Area (cm2)Monte Carlo MethodRelative Error
Direct probabilistic design method3629 β = 3.17540.769%
The method proposed in this paper3684 β = 3.1927 0.228%
Disclaimer/Publisher’s Note: The statements, opinions and data contained in all publications are solely those of the individual author(s) and contributor(s) and not of MDPI and/or the editor(s). MDPI and/or the editor(s) disclaim responsibility for any injury to people or property resulting from any ideas, methods, instructions or products referred to in the content.

Share and Cite

MDPI and ACS Style

Liu, H.; Mao, Y.; Zhang, Z.; Yuan, F.; Wang, F. A Second-Order Second-Moment Approximate Probabilistic Design Method for Structural Components Considering the Curvature of Limit State Surfaces. Buildings 2025, 15, 3421. https://doi.org/10.3390/buildings15183421

AMA Style

Liu H, Mao Y, Zhang Z, Yuan F, Wang F. A Second-Order Second-Moment Approximate Probabilistic Design Method for Structural Components Considering the Curvature of Limit State Surfaces. Buildings. 2025; 15(18):3421. https://doi.org/10.3390/buildings15183421

Chicago/Turabian Style

Liu, Hanmin, Yicheng Mao, Zhenhao Zhang, Fang Yuan, and Fuming Wang. 2025. "A Second-Order Second-Moment Approximate Probabilistic Design Method for Structural Components Considering the Curvature of Limit State Surfaces" Buildings 15, no. 18: 3421. https://doi.org/10.3390/buildings15183421

APA Style

Liu, H., Mao, Y., Zhang, Z., Yuan, F., & Wang, F. (2025). A Second-Order Second-Moment Approximate Probabilistic Design Method for Structural Components Considering the Curvature of Limit State Surfaces. Buildings, 15(18), 3421. https://doi.org/10.3390/buildings15183421

Note that from the first issue of 2016, this journal uses article numbers instead of page numbers. See further details here.

Article Metrics

Back to TopTop