Next Article in Journal
Deterioration of Concrete Under Simulated Acid Rain Conditions: Microstructure, Appearance, and Compressive Properties
Previous Article in Journal
Navigating Complexity: Enhancing Infrastructure Megaproject Performance Through Effective Alliance Management Capability
 
 
Font Type:
Arial Georgia Verdana
Font Size:
Aa Aa Aa
Line Spacing:
Column Width:
Background:
Article

Morphological Characteristics and Sustainable Adaptive Reuse Strategies of Regional Cultural Architecture: A Case Study of Fenghuang Ancient Town, Xiangxi, China

School of Housing, Building and Planning, Universiti Sains Malaysia, Penang 11800, Malaysia
*
Author to whom correspondence should be addressed.
Buildings 2025, 15(1), 119; https://doi.org/10.3390/buildings15010119
Submission received: 6 November 2024 / Revised: 15 December 2024 / Accepted: 30 December 2024 / Published: 2 January 2025
(This article belongs to the Section Building Energy, Physics, Environment, and Systems)

Abstract

This study explores the application of sustainable adaptive reuse strategies in preserving historical and cultural buildings, with the goal of establishing a scientifically robust framework of indicators for systematic evaluation and practical application. Focusing on the diaojiaolou (stilted buildings) along the Tuojiang River in the ancient town of Fenghuang, the research integrates findings from an extensive literature review with a theoretical framework to propose a multidimensional indicator system encompassing preservation, rehabilitation, urban renewal, adaptive reuse, urban revitalization, and restoration. Through detailed field investigations and comprehensive case studies, the study examines the cultural significance of the stilted buildings, including their spatial organization, structural design, material composition, and decorative features. It also critically assesses the effectiveness of sustainable adaptive reuse strategies in promoting regional development. The findings reveal that these strategies not only preserve the cultural and historical integrity of the stilted buildings but also enhance their functionality to meet modern needs, achieving a balance among heritage conservation, environmental sustainability, and socio-economic progress. This research validates the scientific rigor and practical utility of the proposed six-dimensional indicator framework as an evaluative tool, offering a model for the sustainable development and cultural preservation of similar regional heritage assets.

1. Introduction and Literature

1.1. Introduction

The rapid advancement of modernization presents both opportunities and challenges for the conservation and adaptive reuse of traditional architecture, particularly for structures deeply rooted in regional cultural contexts. Regional cultural buildings not only are concentrated expressions of local lifestyles, spirituality, and cultural identity but also exemplify remarkable adaptability to environmental conditions, embodying rich historical and cultural significance [1,2,3]. These structures, as vessels of regional identity and traditional craftsmanship, encapsulate the wisdom of past generations and aesthetic values, reflecting a profound understanding of local environments, cultural traditions, and community needs. However, with the accelerated progress of modernization, traditional architectural heritage faces growing neglect and is frequently threatened by demolition or excessive restoration. These practices significantly endanger the preservation of their cultural significance and hinder the realization of their potential social value [4,5].
Fenghuang Ancient Town, located in Xiangxi, is recognized as one of China’s prominent historical and cultural cities and is celebrated for its distinctive regional culture and architectural heritage [6]. Founded in 1556, the ancient town of Fenghuang boasts a history spanning over four centuries. Its unique historical context has fostered a rich interplay of diverse ethnic traditions, particularly those of the Tujia, Miao, and Han peoples. The diaojiaolou along the banks of the Tuojiang River stand as iconic symbols of this intricate cultural synthesis [7,8]. The stilted buildings along both banks of the Tuojiang River are iconic cultural symbols that showcase local architectural techniques, natural materials, and sophisticated spatial organization. Initially, stilted structures emerged as elevated dwellings supported by tree trunks to mitigate damage from rain and wildlife. Over time, these structures evolved into wooden stilted houses to accommodate changing residential needs [9,10,11]. Characterized by their unique timber frameworks and elevated designs, these buildings harmonize seamlessly with their natural surroundings, reflecting a deep understanding of the local climate, topography, and cultural beliefs. However, with growing pressures from modernization and the tourism industry, many traditional stilted houses have been converted into guesthouses or other commercial spaces to cater to contemporary demands [12]. These structures increasingly adopt diverse functions while offering ‘cultural’ experiences, gradually undermining their traditional cultural identity [13]. Moreover, recurring natural disasters and vandalism intensify the threats to their structural integrity and long-term preservation [14,15].
Nonetheless, diaojiaolou hold significant potential for conservation and adaptive reuse, with their rich cultural heritage and modern relevance presenting valuable opportunities for advancing sustainable development research in the region. However, existing studies on the adaptive reuse of diaojiaolou remain scarce, often lacking systematic methodologies and comprehensive evaluation frameworks. This study seeks to address these gaps by examining the morphological characteristics of diaojiaolou, including spatial layout, structural design, material usage, and decorative elements. Furthermore, it proposes a scientifically grounded evaluation and implementation framework to balance the dual objectives of heritage preservation and contemporary functional adaptation.

1.2. Literature Review

1.2.1. Cultural Architectural Heritage Conservation and Regional Sustainable Development

Cultural and architectural heritage serves as a tangible manifestation of historical memory and regional identity, playing a critical role in cultural preservation, social cohesion, and economic development [16,17]. The conservation of such heritage transcends the mere retention of historical significance, as it also enhances cultural identity, advances environmental sustainability, and fosters economic vitality [18]. However, the accelerated pace of modernization and urbanization in recent decades has posed significant threats to these invaluable assets, necessitating integrated and holistic conservation strategies that reconcile the intrinsic values of traditional culture with the demands of contemporary society [19,20]. Among these strategies, adaptive reuse has emerged as a prominent and effective approach [3]. By imbuing heritage buildings with new functionalities, adaptive reuse harmoniously integrates cultural preservation with modern utility, extending the lifespan of historic structures while catalyzing regional economic and social development [21]. Empirical studies underscore the potential of adaptive reuse to achieve a synergistic alignment of cultural heritage preservation, economic benefits, and environmental sustainability provided that the authenticity and intrinsic value of the original structures are retained [22,23].
Moreover, an intrinsic synergy exists between the conservation of cultural and architectural heritage and regional sustainable development [24]. The Historic Urban Landscape (HUL) framework, advanced by UNESCO, advocates for the seamless integration of cultural heritage conservation into regional planning and development policies, thereby fostering a harmonious balance among cultural preservation, environmental stewardship, and economic revitalization [25]. Research has demonstrated that the preservation of cultural and architectural heritage not only stimulates regional tourism and fortifies community cultural identity but also drives local economic growth [26]. The amalgamation of traditional architectural forms with contemporary functionalities exemplifies the complementary interplay between conservation and development. Through systematic and strategic conservation efforts, it becomes possible to safeguard cultural values while simultaneously unlocking regional socio-economic benefits, thereby offering innovative frameworks and actionable pathways for cultural heritage preservation [27].

1.2.2. Morphological Characteristics of Regional Cultural Architecture

Regional cultural architecture represents the convergence of local cultural identity, environmental adaptation, and indigenous construction methodologies [28]. Research reveals that such buildings exhibit exceptional adaptability to regional conditions, with their spatial organization, structural designs, and material selections reflecting local topography, climatic conditions, and cultural ethos [29]. These architectural forms transcend functional responses to environmental exigencies; they serve as profound expressions of local cultural practices and social hierarchies [30,31]. Scholars posit that the spatial arrangements and typologies of these buildings encapsulate the values, beliefs, and behavioral norms of specific socio-cultural contexts. For instance, in southwestern China, diaojiaolou effectively address diverse functional requirements spanning familial, communal, and religious activities through innovative spatial configurations, underscoring their critical role in cultural continuity and social cohesion [32]. Furthermore, the intricate craftsmanship and decorative elements of these structures exemplify local aesthetic values and artisanal expertise [33,34]. The ornamental motifs embedded in traditional architecture not only reinforce the cultural identity of these buildings but also serve as repositories of historical narratives, functioning as indispensable mediums for cultural transmission [35,36].
The study of the morphological characteristics of regional cultural architecture carries substantial theoretical and practical significance [37,38]. It contributes to the enrichment of architectural theory, provides innovative insights for contemporary architectural design rooted in regional traditions, and establishes a scientific foundation for the conservation and adaptive reuse of cultural heritage [39]. In the context of globalization, emphasizing the preservation and promotion of distinctive local architectural forms is essential for maintaining cultural diversity [40]. However, the existing literature predominantly focuses on descriptive analyses of architectural forms and historical contexts, often neglecting the intricate relationship between morphological features and adaptive reuse strategies. This gap underscores the critical need for comprehensive research to bridge this lacuna [41,42,43].

1.2.3. Application of Adaptive Reuse in Cultural Architecture Research

The dual pressures of tourism-driven development and rapid modernization have placed cultural buildings at a crossroads, necessitating a delicate balance between maintaining cultural authenticity, preserving traditional craftsmanship, and addressing evolving environmental challenges [44]. In response to the growing demand for tourism, many heritage structures have been repurposed for commercial use, often at the expense of replacing traditional materials with modern alternatives, such as concrete, steel, and glass. This trend compromises the authenticity and historical integrity of these buildings [45,46,47]. The tension between safeguarding architectural originality and conforming to modern standards of safety and comfort has been further exacerbated by the dwindling availability of traditional materials and skilled artisans [48,49].
Adaptive reuse has consequently emerged as a pivotal paradigm in the conservation of cultural architecture [50]. Central to this approach is the functional reintegration of historic structures into the socio-economic fabric of modern society, thereby perpetuating their cultural significance and extending their operational lifespan [51]. Globally, adaptive reuse has been recognized as a pragmatic solution for harmonizing heritage conservation with modernization, effectively addressing preservation challenges while fostering regional economic revitalization and environmental sustainability [52,53]. Exemplary adaptive reuse projects demonstrate the ability to infuse historic buildings with renewed vitality by endowing them with innovative functions while preserving their authenticity and historical significance [54]. Beyond maintaining the physical integrity of heritage structures, adaptive reuse facilitates cultural continuity and local economic revitalization by reimagining their purpose in a contemporary context [55]. This approach prioritizes the respectful preservation of original architectural forms and cultural values while emphasizing environmental sustainability. Compared to demolition and reconstruction, adaptive reuse significantly reduces resource consumption, mitigates carbon emissions, and minimizes material wastage, aligning with global sustainability goals [56]. Research underscores the necessity of a robust, multidimensional evaluation framework to guide adaptive reuse practices, incorporating critical dimensions, such as historical significance, structural stability, economic feasibility, and community engagement [57].
Despite its myriad advantages, the practice of adaptive reuse faces persistent challenges. Striking an equilibrium between commercial viability and cultural preservation, mitigating the risks of over-commercialization, and safeguarding the interests of local communities remain pressing issues warranting further investigation [58]. Recent scholarship has increasingly shifted toward developing comprehensive, multidimensional frameworks that integrate cultural, economic, social, and environmental indicators, ensuring the sustainability and holistic value of adaptive reuse projects [59,60].

2. Theoretical Approaches

2.1. Adaptive Reuse Strategies and the Concept of Sustainability

Adaptive reuse strategies have emerged as a fundamental approach to conserving and repurposing cultural buildings, effectively preserving their historical and cultural significance while incorporating modern functionalities [61]. By bridging theoretical foundations and practical applications, adaptive reuse addresses the dual objectives of safeguarding heritage assets and meeting the evolving demands of modern society. Rooted in the principles of sustainable development, this approach seeks to extend the lifecycle of built heritage by assigning new purposes to structures while preserving their cultural, historical, and architectural integrity [62]. These strategies align with the three pillars of sustainability—environmental, economic, and social—making them a vital component of contemporary heritage conservation frameworks [63].
From an environmental perspective, adaptive reuse reduces the ecological impact of construction by minimizing demolition waste and conserving existing building materials [64]. Compared to new construction, repurposing structures significantly lowers energy consumption and resource extraction, contributing to global carbon reduction targets [65]. Additionally, this approach resonates with circular economy principles, treating buildings as reusable resources rather than disposable assets [66]. From an economic perspective, adaptive reuse serves as a driver of regional revitalization by attracting investment and generating employment. Transforming historic buildings for modern purposes not only stimulates local economies but also demonstrates the economic potential of heritage assets to deliver long-term value while preserving cultural authenticity—a core principle of heritage economics [67,68]. Furthermore, adaptive reuse is often more cost-effective than new construction, particularly in urban areas where land and resources are limited [69,70]. From a social perspective, adaptive reuse strengthens community identity and promotes cultural continuity. By preserving the historical and aesthetic integrity of buildings, this approach deepens the community’s connection to its cultural heritage. This aligns with UNESCO’s concept of “living heritage,” which emphasizes integrating cultural heritage into daily life [71,72]. Moreover, involving communities in adaptive reuse projects ensures that redesigned spaces address local needs and preferences, enhancing inclusivity and supporting long-term sustainability [73].
On a theoretical level, adaptive reuse integrates the diverse dimensions of heritage conservation, urban regeneration, and environmental sustainability, providing a structured framework for project evaluation. Key evaluation criteria include structural integrity, historical authenticity, and functional adaptability [74]. Rooted in sustainability theory, adaptive reuse offers a holistic approach to addressing the complex challenges of contemporary heritage conservation, aligning preservation efforts with environmental, economic, and social sustainability objectives. This dual theoretical and practical orientation establishes adaptive reuse as an essential strategy for the sustainable preservation and adaptive evolution of cultural heritage [75].

2.2. Theoretical Foundations of Cultural Building Conservation and Sustainable Adaptive Reuse

The conservation of cultural buildings is a multidimensional and holistic endeavor that incorporates various strategies, including preservation, restoration, urban renewal, urban revitalization, adaptive reuse, and reconstruction [62,76,77,78,79,80]. These approaches collectively aim to safeguard cultural heritage while seamlessly integrating it into contemporary urban contexts, ensuring its continued relevance and sustainability. Although each strategy addresses distinct objectives, their integration provides a comprehensive framework for addressing the complexities of cultural building conservation in modern environments.
Preservation focuses on protecting the cultural, historical, and architectural integrity of heritage structures through minimal intervention, thereby ensuring authenticity and stability [81]. Rehabilitation builds on preservation by adapting historic buildings to meet contemporary functional needs while maintaining their historical significance [82]. Urban renewal and urban revitalization expand the scope of conservation from individual buildings to the urban scale, fostering community engagement and economic regeneration. Urban renewal often involves large-scale redevelopment, while urban revitalization emphasizes the adaptive reuse and reimagining of existing structures to enhance their functionality, aesthetic appeal, and cultural resonance [83,84]. Reconstruction, by contrast, recreates buildings to reflect a specific historical period and is typically reserved for structures of exceptional cultural and historical significance. While its application is limited, reconstruction’s focus on historical accuracy provides valuable insights for architectural preservation [85]. Adaptive reuse, as a pivotal strategy, bridges the principles of preservation with functional transformation, establishing itself as a cornerstone of sustainable heritage management. This approach preserves the historical and architectural significance of cultural assets while repurposing them to meet contemporary needs, ensuring continued relevance without compromising heritage value [86]. Adaptive reuse is inherently aligned with the principles of sustainable development, addressing environmental concerns by reducing demolition waste and conserving the embodied energy in existing structures. It supports economic sustainability by attracting investment, creating jobs, and boosting tourism, while reinforcing social sustainability by preserving community landmarks and fostering cultural identity [87].
To effectively integrate sustainability principles into adaptive reuse practices, robust assessment indicators encompassing environmental, economic, and social dimensions are crucial [88]. Environmental indicators include energy efficiency, material conservation, and waste reduction; economic indicators evaluate cost-effectiveness, job creation, and long-term financial viability; and social indicators assess community engagement, cultural continuity, and the impact on local identity and social cohesion. These indicators ensure that adaptive reuse projects balance heritage conservation with sustainable development while addressing contemporary functional demands [89]. Figure 1 illustrates the theoretical framework of this study, highlighting the intricate relationship between adaptive reuse and sustainability. It provides a scientific foundation and practical roadmap for cultural heritage conservation, demonstrating how adaptive reuse strategies reconcile heritage preservation with the broader goals of sustainable development.

3. Methods and Materials

3.1. Study Area

3.1.1. Geographic and Environmental Influences

The subject of this study is Fenghuang Ancient Town, situated within the Xiangxi Tujia and Miao Autonomous Prefecture, China. Figure 2 presents an elevation map of the study area, generated using ArcGIS Pro 3.0.2 software. This map reveals that Fenghuang County is located on the western periphery of Hunan Province, featuring a compact, mountainous landscape with elevations ranging from 211 to 1043 m above sea level. The area’s intricate topography and geomorphology underscore its uniqueness as a mountainous urban settlement. The Tuojiang River traverses the study area from west to east, with a width that fluctuates between 20 to 30 m, contributing to a rustic and atmospheric landscape. The architecture of the stilted buildings leverages the region’s natural environment, adapting harmoniously to its complex geographic and climatic conditions with distinctive structural forms. These regional cultural structures are constructed along mountainous slopes and riverbanks, showcasing a sophisticated understanding of the terrain and natural landscape.
Fenghuang Ancient Town is located at the eastern edge of the Yunnan–Guizhou Plateau, characterized by a humid, mid-subtropical monsoon climate [90]. In response to the area’s damp and cold climatic conditions, as well as the presence of wildlife in the surrounding mountainous regions, local architecture often incorporates elevated ground floors. This design strategy not only mitigates flood risks but also utilizes the varying elevation of the terrain to provide improved ventilation and natural lighting, ensuring indoor comfort [91]. This adaptive building typology demonstrates the inhabitants’ profound understanding of and ability to coexist with the natural environment. The predominant use of local wood materials is both environmentally sustainable and economically feasible. The high elasticity and malleability of timber endow these stilted structures with excellent seismic resistance, making them particularly suitable for the dynamic geological conditions characteristic of mountainous areas [92].

3.1.2. Symbol of Historical Culture and Architectural Heritage: Fenghuang Ancient Town

Regional cultural architecture demonstrates remarkable adaptability to natural environments through distinctive structural forms, materials, and spatial layouts [93]. Fenghuang Ancient Town, constructed along the Tuojiang River, features traditional stilted wooden buildings that vividly reflect the lifestyles, spiritual beliefs, and customs of the Tujia and Miao ethnic groups [94]. The traditional architecture of Xiangxi’s minority regions serves as a tangible representation of cultural identity and historical continuity, embodying responses to cultural, environmental, and social contexts, while illustrating the lived wisdom of local inhabitants [95]. In Fenghuang, these stilted structures not only adapt to the topographical challenges of riverbanks but also encapsulate the communal life and spiritual heritage of the Tujia and Miao communities [96]. The morphological characteristics of these regional structures underscore the richness and diversity of local culture, embodying the concept of harmonious coexistence between humanity and nature [97]. Their extensive use of timber and locally sourced materials signifies a profound integration of traditional craftsmanship and architectural form [98,99].
Traditional architecture is inherently shaped by natural environmental factors, closely linked to local climate, topography, and cultural milieu [100]. The hydrological dynamics of the Tuojiang River and the surrounding mountainous terrain have significantly influenced the development of stilted buildings in the Fenghuang region [101]. To adapt to fluctuating river levels, stilt supports elevate these structures, shielding occupants from moisture and flooding [102]. The elevated floor design also enhances natural ventilation, effectively reducing indoor humidity—an essential feature in the region’s humid subtropical climate [103].
The cultural significance of traditional architecture is manifested through historical memory, social functionality, and symbolism [104]. Over centuries, the cultural traditions of the Tujia and Miao peoples have become deeply embedded in Fenghuang, fostering the unique cultural identity of this region. Decorative carvings and spatial arrangements in many traditional buildings convey profound symbolic meanings, embodying ethnic identity, historical narratives, and cultural significance [105,106]. The stilted buildings along the Tuojiang River incorporate totemic elements of Tujia and Miao heritage, using colors and patterns to express reverence for nature and ancestral worship [107,108,109,110,111,112]. The role of these traditional buildings in fostering community life and social interaction further symbolizes ethnic cohesion, reflecting the local social structure and cultural practices. Consequently, these structures fulfill not only functional purposes but also promote a unified cultural consciousness, aesthetic sensibility, and spiritual pursuit among the Tujia and Miao ethnic groups [113].

3.2. Research Methodology and Selected Indicators

This study systematically examines the morphological characteristics and strategic applications of regional cultural buildings within the framework of sustainable adaptive reuse. It is supported by a comprehensive research framework that effectively integrates theoretical insights with practical applications. The research employs a multi-methodological approach, incorporating an extensive literature review, field investigations, and in-depth case studies. A theoretical framework was initially developed through rigorous analysis of the existing literature and methodologies; this was complemented by consensus-building discussions among five domain experts (see Appendix A for expert details). This framework encapsulates six core dimensions—preservation, rehabilitation, urban regeneration, adaptive reuse, urban revitalization, and restoration. It establishes a structured foundation for exploring conservation strategies and sustainable development in historical and cultural architecture, thereby providing a robust theoretical basis for subsequent empirical investigations and case-specific analyses.
The empirical component focuses on the diaojiaolou along the Tuo River in Fenghuang Ancient Town (also known as Phoenix Ancient City or Phoenix Ancient Town), chosen as a representative case study. These structures, emblematic of the cultural heritage of the Tujia and Miao ethnic groups, are distributed along the river and hold profound symbolic and cultural significance [113]. The research scope encompasses the characteristic architectural clusters within the ancient city and its surrounding areas, enabling a holistic analysis of architectural typologies and their interactions with the natural environment. By employing historical documentation, precise on-site mapping, photographic surveys, and structured interviews, the study conducts a detailed investigation into the spatial organization, structural design, material selection, and ornamental elements of the diaojiaolou.
Based on empirical findings, the study developed a scientifically robust and practice-oriented evaluation framework. The study validated the theoretical framework’s indicators, with a focus on cultural integrity, structural resilience, functional coherence, socio-economic impact, and ecological synergy. These indicators underwent comprehensive evaluation to ensure the preservation and continuation of architectural heritage, the promotion of environmental sustainability, and alignment with the socio-economic priorities of regional development. This approach ensures both the theoretical rigor and practical applicability of the proposed system.
The proposed methodology and evaluation framework provide a solid foundation for advancing the interdisciplinary field of cultural heritage conservation and sustainable development. By using the hanging footstools of Phoenix Ancient City as a focal case, this research offers a scalable and replicable model for adaptive reuse applicable to other regions with a rich cultural and architectural heritage. Figure 3 visualizes the conceptual framework, elucidating the integrative approach that seamlessly bridges theoretical constructs and practical implementation.

3.3. Definition and Description of Indicators and Measurement Methods

To systematically assess the effectiveness of sustainable adaptive reuse strategies in preserving and advancing regional cultural architecture, this study proposes a comprehensive six-dimensional indicator framework. Each indicator is rigorously defined and contextualized, highlighting its alignment with the core objectives of cultural preservation, environmental sustainability, and socio-economic development. The evaluation methodology adopts an integrative approach, combining quantitative metrics with qualitative analysis to provide a holistic assessment of the specific impacts of adaptive reuse on the diaojiaolou of Phoenix Ancient Town.
Table 1 summarizes the core definitions, detailed descriptions, and measurement methodologies that constitute the six-dimensional indicator framework. Serving as a robust analytical tool, this framework facilitates systematic and multidimensional evaluation. In addition to measuring the cultural, environmental, and socio-economic outcomes of adaptive reuse strategies, it provides a scientifically grounded basis for informing the conservation and sustainable development of cultural architecture.

4. Results of Analysis and Discussion

This study examines the diaojiaolou along the Tuojiang River in Fenghuang Ancient Town, western Hunan, as a representative case study. It provides a comprehensive investigation into their architectural characteristics and contextual significance. The analysis addresses the geographical setting, natural environment, current state, and architectural typologies of these structures, exploring them through the multidimensional lenses of cultural integrity, structural stability, functional integration, socio-economic impact, and ecological harmony. Particular emphasis is placed on the cultural narratives expressed through their spatial configuration, structural innovation, material selection, and decorative elements. By synthesizing field observations and historical analysis, this study identifies the key morphological attributes of the diaojiaolou, emphasizing their profound cultural significance and regional specificity. The findings not only highlight the architectural and cultural distinctiveness of the area but also provide a rigorous scientific foundation for developing adaptive reuse strategies that harmonize historical preservation with sustainable development principles.

4.1. Results of Analysis

4.1.1. Spatial Layout of Architecture

Due to limited land resources and the influence of historical, political, and cultural factors, the spatial organization of Fenghuang Ancient Town is characterized by narrow alleys and stilted structures lining the Tuojiang River [114]. The urban block layout depicted in Figure 4 reflects a deliberate adaptation to the mountainous terrain and the periodic flooding of the Tuojiang River. Streets are arranged in a zigzagging linear pattern, extending parallel to the river and forming a distinctive spatial layout. The city wall delineates the streets from the inner urban area, safeguarding the core of the ancient town while visually enhancing the spatial relationship between the streets and the river. This configuration optimizes the use of space and integrates the natural landscape, contributing to a harmonious urban aesthetic. Furthermore, the city wall’s protective role is crucial for maintaining the historical and cultural integrity of the streetscape. This architectural approach exemplifies the ingenuity of local inhabitants in managing their natural environment, holds significant historical and cultural value, and evidences a deep connection with the natural landscape.
The single- and double-hung structures shown in Figure 5 represent the prototypical spatial forms of traditional stilted architecture in southwest China, with the “two-hung” style emerging as an evolution of earlier designs [115]. Many existing stilted buildings along the riverbanks of Fenghuang Ancient Town retain the understated elegance of the Ming and Qing Dynasties, incorporating folkloric elements of the Tujia and Miao ethnic groups, as well as features characteristic of Huizhou architecture [116]. From an overarching perspective, most of these building types adhere to the “two-house hanging” typology.
Figure 6a illustrates the floor layout of a traditional stilted building, typically comprising three levels: the ground floor, used for raising livestock and drying agricultural products; the middle floor, serving as the primary living space; and the upper floor, designated for storage. This tripartite structure addresses geographic constraints while conserving arable land. Figure 6b depicts the interior spatial configuration, which generally follows a three-room layout, with the central area serving as the main activity space and functional rooms positioned on either side. The central room, which is slightly larger, often functions as the family hall—a focal point for daily activities, guest reception, and familial ceremonies. The centrally located hearth serves multiple purposes, including heating, cooking, and social gatherings. The adjoining compartments may be adapted as bedrooms or kitchens, resulting in a compact and well-organized layout. Clear distinctions between public and private spaces ensure that living and resting areas remain separate, facilitating convenience while preserving privacy. This spatial organization not only meets functional needs but also illustrates the Tujia and Miao residents’ adaptation to familial culture, living customs, and environmental conditions. The efficient zoning and deliberate design epitomize the ingenuity inherent in traditional architecture and provide valuable reference points for modern residential design.
Many traditional stilted buildings have undergone transformation into guesthouses or commercial establishments, with their original residential functions gradually being supplanted by commercial uses. Typically, these converted stilted buildings have additional stories, reaching heights of 7 to 14 m. Interior remodeling allows these structures to meet the accommodation needs of modern tourists while retaining their external architectural features.
In these adapted buildings, the ground floor is often repurposed as a reception area, dining room, or guest accommodations, while upper floors primarily consist of guest rooms, corridors, laundry facilities, and recreational areas. During interior renovations, the central hall is generally transformed into a reception area or communal lounge while side rooms are converted into individual guest rooms. Modern amenities, including heating systems, air conditioning, modern plumbing, and energy-efficient lighting, have been introduced to enhance comfort and meet visitor expectations. This approach largely preserves the traditional appearance and structural characteristics of stilted buildings, allowing them to function not only as guesthouses or tourist attractions but also as conduits for cultural heritage transmission. Through moderate adaptation and cultural enrichment, these stilted buildings provide an immersive cultural experience, offering visitors a window into the rich heritage of the Tujia and Miao communities.

4.1.2. Structural Design

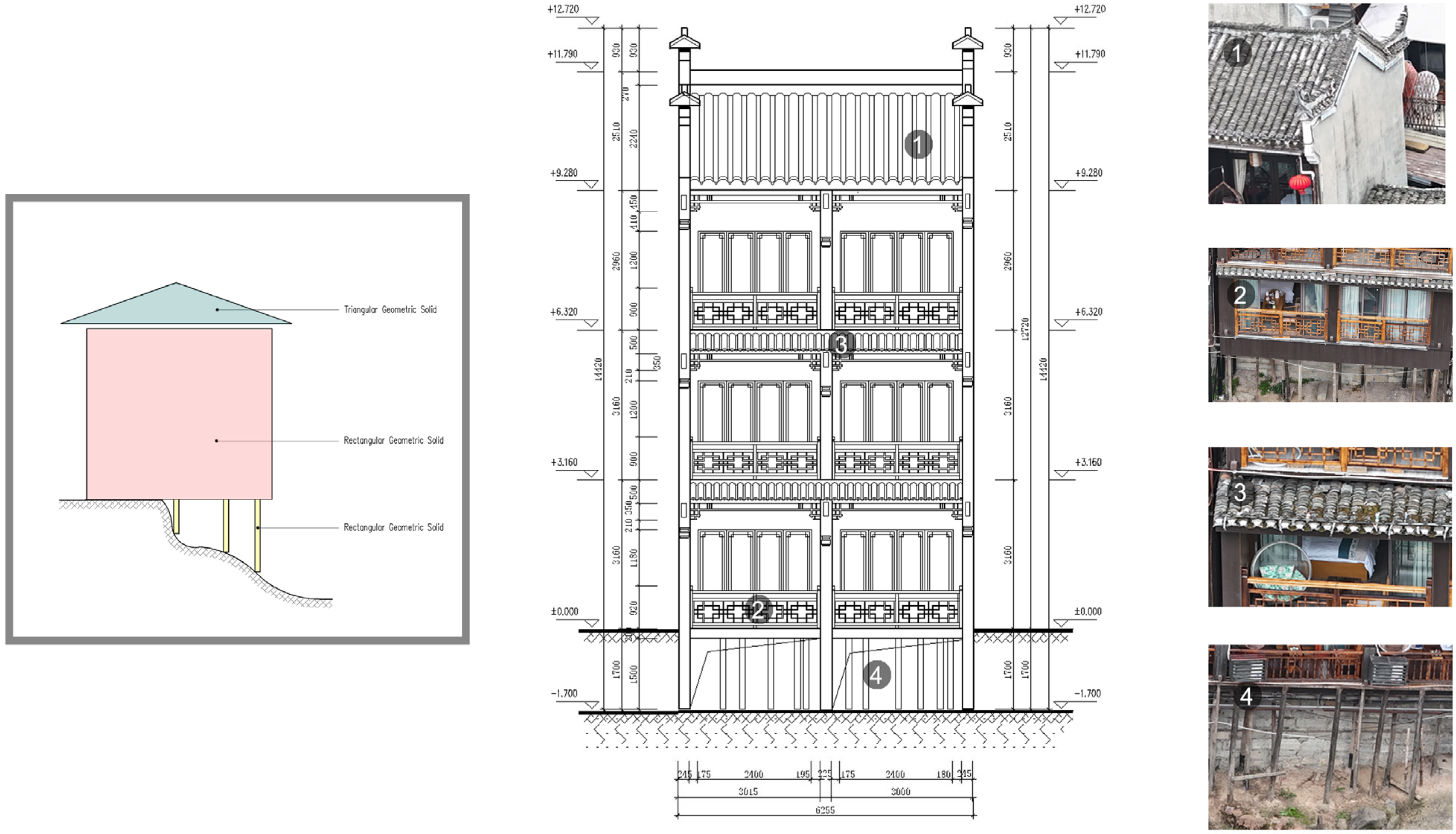
The stilted buildings of Fenghuang Ancient Town, also known as “Hanging Foot Towers,” primarily feature townhouse-style constructions situated along both banks of the Tuojiang River. Their external design is characterized by a vertical orientation, incorporating triangular and rectangular forms. As shown in Figure 7, these structures have an elevated ground floor, with the front section typically cantilevered over the river or riverbank, while the rear section rests on level terrain, adapting to elevation differences. This architectural configuration reflects the influence of local Tujia and Miao cultures, showcasing their adaptation to the challenging topography and natural environment. The façade facing the street is open, maintaining a light, minimalist aesthetic that encourages interaction with the surroundings.
The primary structural framework of the Hanging Foot Towers consists of locally sourced hardwoods renowned for their durability and resistance to decay. Timber beams and pillars are meticulously chosen to withstand regional seismic activity and heavy rainfall. The use of traditional mortise-and-tenon joinery not only enhances structural stability and flexibility but also facilitates disassembly and reconstruction, demonstrating profound craftsmanship and a deep understanding of timber properties. The steeply pitched roof, covered with traditional clay tiles, resists severe weather while blending harmoniously with the environment. Overhanging eaves protect the timber structure from rain, thereby extending the building’s longevity. Furthermore, intricate carvings on the eaves add cultural value, symbolizing protection, shelter, and harmonious coexistence with nature, reflecting the spiritual beliefs of the Tujia and Miao peoples.
The elevated foundation, supported by wooden stilts, is the defining feature of the Hanging Foot Towers, serving both functional and symbolic purposes. Functionally, the raised foundation mitigates the risk of flooding from the Tuojiang River. The stilt design also promotes airflow beneath the structure, effectively reducing humidity, which is particularly beneficial given the region’s humid subtropical climate. This foundation creates a buffer zone between the living spaces and the ground, preventing moisture and pest intrusion. Symbolically, the elevated foundation signifies the building’s profound connection with the natural environment, embodying the Tujia and Miao belief in harmonious coexistence with nature [117]. Additionally, the cantilevered balconies extending from the main structure are unique architectural elements that maximize spatial utility without expanding the footprint. Supported by timber stilts and beams, these balconies foster a dynamic relationship with the surrounding landscape, enhancing visual engagement with the river and mountains. Balcony railings are often adorned with intricate carvings, further enriching the structure’s aesthetic value and cultural depth.
The stilted buildings of Fenghuang have developed a distinctive architectural identity through the coordinated integration of various elements, including timber frameworks, overhanging eaves, elevated foundations, cantilevered balconies, and elaborate ornamentation. With the rise of modern tourism, these buildings have adeptly balanced functionality and aesthetic appeal while preserving their traditional cultural identity. This synthesis not only retains their historical significance but also enhances their functional and ornamental qualities, making them iconic landmarks and effective conduits for transmitting Tujia and Miao cultural heritage.

4.1.3. Material Selection

As a representation of regional cultural architecture, the selection of materials for the stilted buildings reflects a deep integration of local culture and the natural environment. Local cedar and pine serve as the primary construction materials, ideally suited to the region’s climatic conditions due to their resistance to humidity and pests. Their elasticity also enhances the stilted buildings’ seismic resilience, which is particularly crucial given the region’s challenging terrain and variable climate [118]. Additionally, these types of wood are well-suited for intricate carvings, resulting in façades that convey the cultural motifs of the Tujia and Miao communities. This choice of traditional materials represents an efficient use of natural resources while honoring the ancestral craftsmanship and cultural wisdom of local inhabitants.
In response to increasing functional demands, some stilted buildings have undergone restoration involving modern materials, as depicted in Figure 8. These interventions have altered their appearance, compromising their authenticity. Although these restorations address immediate practical concerns, they also raise significant issues regarding the erosion of traditional craftsmanship and the disruption of visual cohesion.
The foundations of the stilts are often reinforced with stones or bricks to enhance structural support and durability, particularly in flood-prone areas. Wooden stilts, typically crafted from rot-resistant hardwoods, are deeply embedded in the soil to ensure stability on unstable terrain. Figure 8a illustrates instances where traditional timber beams and columns have been replaced, but with concrete or steel elements to improve structural durability and to meet contemporary tourism and safety standards. While these modifications may extend the lifespan of the buildings, they risk diminishing the cultural authenticity and aesthetic integrity of these structures. Figure 8b,c highlights the gradual replacement of traditional wooden features with concrete, steel, and glass. Despite improving structural stability, such changes weaken the cultural continuity and historical value of these buildings, impeding their ability to fully convey the cultural essence of the Tujia and Miao peoples. Despite physical reinforcement, the historical and cultural significance of the buildings shown in Figure 8d is gradually being lost, severing ties with local traditional culture. This erosion not only undermines the cultural symbolism of the structures but also jeopardizes Fenghuang’s identity as a historical and cultural city.
To accommodate the growing influx of tourists, many stilted buildings have been equipped with modern amenities, such as plumbing, electricity, and air conditioning. While these improvements are essential for enhancing visitor comfort, they often compromise the original cultural features of the buildings, disrupting their architectural harmony. Due to the frequent occurrence of fires in Fenghuang, numerous stilted structures have been fitted with fire-resistant materials, including metal roofs and fire-resistant cladding. Although essential for safety, these modifications deviate from the traditional materials and construction techniques originally employed.
Nevertheless, modern interventions and reinforcements offer new perspectives for the sustainable use and preservation of stilted buildings. To achieve an appropriate balance between conserving traditional cultural characteristics and meeting contemporary requirements, a cautious renovation strategy should be adopted. Preference should be granted to modern materials that closely resemble traditional timber in both appearance and texture, and reversible construction techniques should be used whenever feasible. Moreover, modern amenities, such as air conditioning, electricity, and plumbing, should be installed in a manner that minimizes visual disruption, integrating them seamlessly into the traditional structures. With careful planning and design, it is possible to incorporate these amenities without compromising visual or cultural integrity.

4.1.4. Cultural Expression in Decorative Elements

Historically, the Xiangxi region was predominantly inhabited by the Miao and Tujia ethnic groups, whose cultural traditions deeply influenced the architectural ornamentation of Fenghuang Ancient Town [119]. Additionally, the architectural style was significantly shaped by Han Chinese elements, particularly Huizhou features brought by settlers from Jiangxi, including mountain wall designs, roof ridge configurations, and the iconic white walls with black tiles. This cultural amalgamation has produced the unique style and artistic character of Fenghuang Ancient Town’s stilted buildings, embodying a rich confluence of multiple cultural influences. The architectural decorative elements illustrate the symbiotic relationship among Tujia, Miao, and Han traditions, enhancing visual appeal while demonstrating the reciprocal influence of these ethnic groups on architectural art. Table 2 outlines the characteristics of the primary architectural decorative components and their functional purposes.
Field research reveals that decorative carvings are pervasive, further enriching the cultural significance and aesthetic appeal of these buildings. Motifs, often inspired by natural elements, mythology, and ethnic totems, are carved into roof ridges, doors, windows, pillars, and railings. These carvings not only enhance visual beauty but also convey the local community’s understanding of nature, spirituality, and their way of life, reflecting traditional reverence for nature and ancestor veneration [120,121]. In the adaptive reuse process, these decorative elements have been preserved, ensuring that the buildings continue to serve as cultural vessels while aligning with modern aesthetic preferences. This combination of cultural expression and functional adaptation has positioned these buildings as key platforms for cultural heritage preservation and exhibition. Table 3 provides an overview of common decorative motifs and their cultural symbolism.
These carved patterns serve not only as decoration but also as symbols of historical continuity and spiritual beliefs for the Tujia and Miao communities. Through these carvings, architecture presents a multidimensional cultural narrative, blending art with everyday life and transforming the living environment into a platform for cultural expression. Preserving these decorative elements during adaptive reuse is essential for the continuation of cultural heritage. Surveys indicate that, during modern renovations, architects and artisans strive to clean, repair, and reinforce existing decorations to protect them from damage during contemporary use. Wooden carvings on window panels and lintels are often coated with protective finishes to extend their lifespan and guard against weathering. Additionally, in response to modern aesthetic preferences, some renovation projects integrate contemporary design elements while maintaining traditional components, ensuring that decorative elements continue to convey cultural significance while catering to current aesthetic sensibilities.

4.2. Results of Discussion

This study conducts a systematic analysis of the morphological characteristics of diaojiaolou along the Tuo River in Fenghuang Ancient Town, highlighting their cultural expressions and environmental adaptability through spatial configuration, structural design, material selection, and decorative elements. Situated along riverbanks, these structures have withstood challenges such as flooding, high humidity, and extreme weather exacerbated by climate change. Their architectural design exemplifies remarkable adaptability to natural adversities [122,123]. The elevated structure and open ground-floor design effectively mitigate flood risks while providing versatile spaces for community activities. The structural composition of the diaojiaolou, combining a timber frame with a stone foundation, demonstrates the ingenuity of traditional craftsmen in addressing environmental challenges. The lightweight timber frame ensures structural stability, reduces stress on the foundation, and adapts to complex terrains. Simultaneously, the robust stone foundation provides resistance to flooding and ground moisture, significantly enhancing the building’s durability [124]. This design reflects both the resourcefulness of local architectural practices and their alignment with ecological sustainability. The selection of materials further underscores the symbiotic relationship between cultural heritage and environmental stewardship. The extensive use of locally sourced timber and stone reduces transportation costs and resource consumption while fostering regional identity and harmonizing the architecture with its natural surroundings [119]. The combination of timber’s flexibility and stone’s durability enables the diaojiaolou to navigate complex terrains while maintaining their structural integrity and cultural significance over time. Additionally, intricate wood carvings and vibrant paintings vividly showcase the artistic traditions and spiritual heritage of the Miao and Tujia ethnic groups. These decorative elements enhance aesthetic appeal and embody cultural symbols, serving as vital conduits for local art and heritage preservation.
The study validates the applicability of the six-dimensional indicator framework in sustainable adaptive reuse practices:
  • Conservation: The diaojiaolou retain a high degree of cultural integrity and historical authenticity. Although modern materials and technologies may introduce some degree of cultural dilution, meticulous restoration ensures the preservation of original features.
  • Rehabilitation: Structural reinforcements and the integration of modern amenities improve safety and comfort while balancing historical preservation with contemporary functionality.
  • Urban regeneration: Adaptive reuse enhances the surrounding urban infrastructure, including road networks, public spaces, and community facilities, thereby improving the area’s overall livability.
  • Adaptive reuse: Repurposing the diaojiaolou as lodging and commercial spaces extends their functional lifespan while enhancing economic value.
  • Urban revitalization: The reuse strategy promotes regional tourism, generates local employment opportunities, and revitalizes community dynamics.
  • Restoration: The incorporation of traditional materials and green infrastructure achieves ecological harmony and aesthetic enhancements, creating a model for the symbiotic development of culture and nature.
This study further emphasizes the pivotal role of adaptive reuse in cultural preservation, environmental sustainability, and regional economic development. By transforming the diaojiaolou into functional spaces, traditional forms and artistic expressions are preserved, regional cultural identity is strengthened, and a platform for cultural dissemination is established. Environmentally, the integration of natural ventilation, daylighting, and green design principles—combined with the use of locally sourced materials—minimizes energy consumption while aligning with ecological protection and sustainable development principles. Economically, adaptive reuse stimulates regional tourism, drives economic growth, generates employment opportunities, revitalizes local communities, and fosters a stronger sense of appreciation and ownership of cultural heritage among residents.
Despite these achievements, the study acknowledges several challenges and limitations. Structural aging, material degradation, and high maintenance costs remain significant concerns for historical buildings. Balancing traditional craftsmanship with modern technologies presents ongoing difficulties. Additionally, strict cultural heritage protection regulations often constrain the flexibility and innovation necessary for adaptive reuse, potentially conflicting with modernization demands [125]. Limited community awareness and participation in cultural heritage preservation, coupled with a preference for short-term economic gains over long-term cultural value, further hinder sustainable conservation efforts. To address these challenges, the study advocates for the development of targeted and flexible strategies that balance cultural preservation with modernization needs, ensuring the long-term sustainability and integration of heritage conservation practices.

5. Conclusions

This study systematically examined the practical outcomes and theoretical implications of sustainable adaptive reuse strategies, focusing on the regional cultural and architectural morphology of diaojiaolou in Fenghuang Ancient Town, western Hunan. By integrating theoretical frameworks, field investigations, and case studies, this research developed and validated a comprehensive evaluation framework encompassing six key dimensions: conservation, rehabilitation, urban renewal, adaptive reuse, urban revitalization, and restoration. This framework serves as a critical bridge between cultural heritage preservation and sustainable development, offering both theoretical insights and practical guidance for the implementation of adaptive reuse strategies.
The findings demonstrate that the proposed framework effectively balances the objectives of cultural heritage preservation, environmental sustainability, and socio-economic development, underscoring its robust applicability. First, through an analysis of cultural integrity, structural stability, functional integration, socio-economic impact, and ecological harmony, the study revealed how the spatial layout, structural design, material selection, and decorative elements of diaojiaolou reflect the region’s unique cultural identity and environmental adaptability. This analysis establishes a solid cultural and practical foundation for the conservation and adaptive reuse of these structures. Second, the strategy of structural reinforcement and functional transformation extends the service life of the diaojiaolou while repurposing them as lodgings and commercial spaces, thereby endowing them with renewed economic and social value. These interventions not only preserve the cultural authenticity of the structures but also optimize their functionality to meet contemporary needs. The six-dimensional framework thus emerges as a versatile tool for assessing the intricate interplay between heritage preservation and modern development needs, offering a replicable model for adaptive reuse in diverse cultural contexts.
Furthermore, the study introduced a scientifically robust assessment tool for evaluating how adaptive reuse strategies mediate the dual imperatives of preserving historical and cultural assets while accommodating modernization. However, it also identified several challenges and limitations, including technical complexities, regulatory constraints, and insufficient community engagement. To address these issues, this study advocates for a deeper exploration of the area’s potential and the adoption of targeted interventions to promote greater integration of cultural heritage preservation with regional development objectives. Future research could focus on quantifying evaluation methods or developing dynamic assessment models to monitor the long-term impacts of adaptive reuse projects, thereby enhancing the effectiveness and adaptability of these strategies.

Author Contributions

Conceptualization, J.W.; methodology, J.W. and S.A.Z.; software, J.W.; formal analysis, J.W.; data curation, J.W.; writing—original draft preparation, J.W.; writing—review and editing, J.W.; visualization, J.W.; supervision, S.A.Z. All authors have read and agreed to the published version of the manuscript.

Funding

This research received no external funding.

Data Availability Statement

Data are contained within the article.

Acknowledgments

The authors are grateful for the expertise and careful comments of the respected reviewers, which contributed to the quality of this work.

Conflicts of Interest

The authors declare no conflicts of interest.

Appendix A

Table A1. Expert Information.
Table A1. Expert Information.
No.FieldIdentity Research Expertise
1ArchitectureAssociate professorHistoric building conservation, regional architectural culture, heritage protection, and urban renewal
2ArchitectureAssociate professorEnvironmental sustainability, ecological building planning
3ArchitecturePh.D.Architectural sustainability, community development, and heritage tourism
4ArtProfessorEthnic culture and art, traditional decorative crafts, cultural heritage management
5ArtPh.D.Traditional cultural studies

References

  1. Cole, R.; Lorch, R. Buildings, Culture and Environment; Wiley: Hoboken, NJ, USA, 2003. [Google Scholar]
  2. Evans, G. Measure for measure: Evaluating the evidence of culture’s contribution to regeneration. In Culture-Led Urban Regeneration; Routledge: London, UK, 2020; pp. 116–140. [Google Scholar]
  3. Foster, G. Circular economy strategies for adaptive reuse of cultural heritage buildings to reduce environmental impacts. Resour. Conserv. Recycl. 2020, 152, 104507. [Google Scholar] [CrossRef]
  4. Tavakoli, H.; Marzbali, M.H. Urban public policy and the formation of dilapidated abandoned buildings in historic cities: Causes, impacts and recommendations. Sustainability 2021, 13, 6178. [Google Scholar] [CrossRef]
  5. Avrami, E. Creative destruction and the social (Re) construction of heritage. Int. J. Cult. Prop. 2020, 27, 215–237. [Google Scholar] [CrossRef]
  6. Li, R.; Yan, Y. Conservation and Innovation of Cultural Landscape Heritage for Residents of Historical Minority Areas. The Case of Fenghuang in Xiangxi, China. Master’s Thesis, Politecnico di Milano, Milan, Italy, 2019. [Google Scholar]
  7. Huang, J. A Study on the Association, Communication and Integration of Various Ethnic Groups in Xiangxi During the Ming and Qing Dynasties from the Perspective of Cultural Restraint and Balance—Based on a Historical Investigation of the Miao Border Wall. Comp. Study Cult. Innov. 2024, 8, 56–60. [Google Scholar]
  8. Liu, S. Ancient Buildings of Phoenix. Chin. Overseas Archit. 2019, 11, 22–25. [Google Scholar] [CrossRef]
  9. Sun, J. Changes in Traditional Architecture of the Tujia People in Western Hunan from the Reorganization of the Qing Dynasty: Focusing on Yongshun Hanging Footstools. Brick-Tile 2024, 01, 71–74. [Google Scholar] [CrossRef]
  10. Zhang, Y. A Study on the Architectural Structure of Traditional Wooden Hanging Footstools of the Miao Nationality. Beauty Times (City Ed.) 2023, 11, 10–12. [Google Scholar]
  11. Zhang, C. The Inheritance and Development of the Architectural Landscape of Tujia Suspended Building in Western Hubei under the Strategy of Rural Revitalization. Urban. Archit. 2023, 20, 90–93. [Google Scholar] [CrossRef]
  12. Shi, Y.; Zeng, G.; Hu, Y. Survey on the Current Situation of Tourist B&B in Fenghuang Ancient Town, Xiangxi, China. Co-Oper. Econ. Sci. 2021, 19, 100–104. [Google Scholar] [CrossRef]
  13. Özgit, H.; Yücelen, Ç.; Güden, N.; Ilkhanizadeh, S. Residents’ perceptions towards sustainability of cultural resources: The case of great inn. J. Tour. Cult. Chang. 2023, 21, 207–222. [Google Scholar] [CrossRef]
  14. Lin, J.; Yan, Y.; Shu, L.; Jiang, T.; Zhang, W.; Luo, Q. For the ancient city diagnosis to the fire disaster to find a prescription—To explore the ancient towns and villages in Hunan to enhance the fire prevention and control capacity of the road. Hunan Saf. Disaster Prev. 2023, 8, 18–22. [Google Scholar]
  15. Zheng, F. Scientific Flood Prevention and Dispatch Meteorological Early Warning Research in Fenghuang Ancient Town. Available online: https://kns.cnki.net/KCMS/detail/detail.aspx?dbname=SNAD&filename=SNAD000001922406 (accessed on 6 October 2024).
  16. Billore, S. Cultural Consumption and Citizen Engagement—Strategies for Built Heritage Conservation and Sustainable Development. A Case Study of Indore City, India. Sustainability 2021, 13, 2878. [Google Scholar] [CrossRef]
  17. Omar, S.Y.D.B. The Significance of Cultural Heritage in Fostering Economic Viability. Glob. J. Econ. Bus. 2022, 12, 414–424. [Google Scholar] [CrossRef]
  18. Elyasi, S.; Yamacli, R. Architectural Sustainability with cultural heritage values. Cult. Herit. Sci. 2023, 4, 55–61. [Google Scholar] [CrossRef]
  19. Foster, G.; Saleh, R. The adaptive reuse of cultural heritage in European circular city plans: A systematic review. Sustainability 2021, 13, 2889. [Google Scholar] [CrossRef]
  20. Ashrafi, B.; Kloos, M.; Neugebauer, C. Heritage Impact Assessment, beyond an Assessment Tool: A comparative analysis of urban development impact on visual integrity in four UNESCO World Heritage Properties. J. Cult. Herit. 2020, 47, 199–207. [Google Scholar] [CrossRef]
  21. Della Spina, L. Adaptive Sustainable Reuse for Cultural Heritage: A Multiple Criteria Decision Aiding Approach Supporting Urban Development Processes. Sustainability 2020, 12, 1363. [Google Scholar] [CrossRef]
  22. Farjami, E.; Türker, Ö.O. The Extraction of Prerequisite Criteria for Environmentally Certified Adaptive Reuse of Heritage Buildings. Sustainability 2021, 13, 3536. [Google Scholar] [CrossRef]
  23. Dell’Ovo, M.; Dell’Anna, F.; Simonelli, R.; Sdino, L. Enhancing the Cultural Heritage through Adaptive Reuse. A Multicriteria Approach to Evaluate the Castello Visconteo in Cusago (Italy). Sustainability 2021, 13, 4440. [Google Scholar] [CrossRef]
  24. Lamoria, J.; Mishra, A.; Kumar, N.; Colaco, P.; Bhatnagar, T.; Kenchappa, R.M.; Tusha. The Role of Sustainable Tourism in Enhancing Cultural Heritage Preservation: In-depth Analysis. Evol. Stud. Imaginative Cult. 2024, 8.2, 870–879. [Google Scholar] [CrossRef]
  25. Elwazani, S.; Khorshidifard, S. The public participation in the implementation of the UNESCO’s Historic Urban Landscape approach. J. Cult. Herit. Manag. Sustain. Dev. 2024. Epub ahead of printing. [Google Scholar] [CrossRef]
  26. Milio, G. Preserving Cultural Heritage, Enhancing Social Development, and Fostering Sustainable Tourism: The Role of Architecture in Himara’s Ancient Castle. Defensive Archit. Mediterr. 2024, XVI, 307–313. [Google Scholar] [CrossRef]
  27. Xu, M. Bridging traditions: The synergy of historical wisdom and modern sustainable practices in architecture. Appl. Comput. Eng. 2024, 66, 160–165. [Google Scholar] [CrossRef]
  28. Cao, J.; Zheng, L.; Guo, Y. Research on adaptive application of traditional lingnan building materials—Taking Macau as an example. E3S Web Conf. 2023, 371, 02039. [Google Scholar] [CrossRef]
  29. Sun, L. Study on the Cultural Impact of Local Materials in Regional Architectural Design. Commun. Humanit. Res. 2024, 45, 9–14. [Google Scholar] [CrossRef]
  30. Jiao, L.; Wu, Y.; Fang, K.; Liu, X. Typo-Morphological Approaches for Maintaining the Sustainability of Local Traditional Culture: A Case Study of the Damazhan and Xiaomazhan Historical Area in Guangzhou. Buildings 2023, 13, 2351. [Google Scholar] [CrossRef]
  31. Liu, H.; Li, B. Changes of Spatial Characteristics: Socio-Cultural Sustainability in Historical Neighborhood in Beijing, China. Sustainability 2021, 13, 6212. [Google Scholar] [CrossRef]
  32. Madhoui, M.; Belarbi, S. The Impact of the Daily Socio-Cultural Activities on the Spatial Organisation of the Traditional Residential Environment of Sidi Okba City, Algeria. Int. J. Innov. Stud. Sociol. Humanit. 2022, 7, 137–143. [Google Scholar] [CrossRef]
  33. Shi, L.; Ma, Y. Exploration and research on the applicability of sustainable design for ethnic minorities—Diaojiaolou. SHS Web Conf. 2023, 158, 01018. [Google Scholar] [CrossRef]
  34. Liang, Y.; Wu, Y. Historical Examination and Contemporary Conservation Challenges of the Architectural Decorations of Traditional Folk Houses of the Mulao People in the Hechi Region of China. Evol. Stud. Imaginative Cult. 2024, 8.1, 1081–1093. [Google Scholar] [CrossRef]
  35. Ren, T. A Study on the Symbolic Significance of Decorative Art of Huizhou Traditional Residential Buildings. OALib 2021, 8, e7815. [Google Scholar] [CrossRef]
  36. Wei, Y. Research on the Integration of Chinese Traditional Architectural Elements in Modern Architectural Design under Digital Technology Support. Appl. Math. Nonlinear Sci. 2024, 9, 1–14. [Google Scholar] [CrossRef]
  37. Wu, Y.; Shao, X.; Chen, G. Regional cultural expression of cultural architecture—Take the design works of Yichang History and Culture Theme Exhibition Hall as an example. Am. J. Hist. Cult. 2019, 2, 12. [Google Scholar] [CrossRef]
  38. Liu, S.; Zhao, J.; Chen, Y.; Zhang, S. Urban Morphology Classification and Organizational Patterns: A Multidimensional Numerical Analysis of Heping District, Shenyang City. Buildings 2024, 14, 3157. [Google Scholar] [CrossRef]
  39. Al-Adilee, S.M.S. The Influence of Culture and Heritage on Architectural Design. Am. J. Interdiscip. Innov. Res. 2024, 6, 56–74. [Google Scholar] [CrossRef]
  40. Prabowo, W.; Karsono, D. Degradation of Cultural Heritage Buildings. Proceeding Int. Conf. Eng. 2020, 1, 32–41. [Google Scholar] [CrossRef]
  41. Kahvecioğlu, B.; Selçuk, S.A. Adaptive Reuse in the Realm of Architecture: Global Research Trends and Gaps for the Future Studies. Sustainability 2023, 15, 9971. [Google Scholar] [CrossRef]
  42. Dymchenko, M. Architectural form: The space of experience and technological innovations in construction. Archit. Proc. High. Educ. 2023, 3, 83. [Google Scholar] [CrossRef]
  43. Dymchenko, M.; Brykova, N.; Lokonova, I. Architectural form as a subject of cultural communication. E3S Web Conf. 2021, 281, 02003. [Google Scholar] [CrossRef]
  44. Li, X. Study on the Tourism Development Path of Hanging-footed Building Creation Technique under the Perspective of Culture and Tourism Integration. Ind. Sci. Trib. 2024, 23, 21–23. [Google Scholar]
  45. Khorasgani, A.M.; Villalobos, M.H.; Eskandar, G.A. Sustaining historic cities: An approach using the ideas of landscape and place. ISVS e-J. 2023, 10, 320–332. [Google Scholar]
  46. Scriver, P. Placing in-between: Thinking through architecture in the construction of colonial-modern identities. In After Belonging; Routledge: London, UK, 2022; pp. 62–76. [Google Scholar]
  47. Zámolyi, F. The Significance of Traditional Materials and Their Substitution with Newly Available Materials: The Effects on House Form of the Atoni Building Culture. Int. J. Environ. Archit. Soc. 2021, 1, 95–110. [Google Scholar] [CrossRef]
  48. Alhojaly, R.A.; Alawad, A.A.; Ghabra, N.A. A Proposed Model of Assessing the Adaptive Reuse of Heritage Buildings in Historic Jeddah. Buildings 2022, 12, 406. [Google Scholar] [CrossRef]
  49. Miran, F.D.; Husein, H.A. Introducing a Conceptual Model for Assessing the Present State of Preservation in Heritage Buildings: Utilizing Building Adaptation as an Approach. Buildings 2023, 13, 859. [Google Scholar] [CrossRef]
  50. Arfa, F.H.; Zijlstra, H.; Lubelli, B.; Quist, W. Adaptive Reuse of Heritage Buildings: From a Literature Review to a Model of Practice. Hist. Environ. Policy Pract. 2022, 13, 148–170. [Google Scholar] [CrossRef]
  51. Nasrullah, N.; Syafri, S. Adaptive Reuse in Architecture: Transforming Heritage Buildings for Modern Functionality. J. Acad. Sci. 2024, 1, 395–406. [Google Scholar] [CrossRef]
  52. Owojori, O.; Okoro, C.; Chileshe, N. Current Status and Emerging Trends on the Adaptive Reuse of Buildings: A Bibliometric Analysis. Sustainability 2021, 13, 11646. [Google Scholar] [CrossRef]
  53. Vardopoulos, I. Adaptive Reuse for Sustainable Development and Land Use: A Multivariate Linear Regression Analysis Estimating Key Determinants of Public Perceptions. Heritage 2023, 6, 45. [Google Scholar] [CrossRef]
  54. Tunalı, S.K.; Güneş, S. Sustainability of Historical Buildings Through Reuse Projects: A Case Study of the Kadıköy District in Istanbul. J. Des. Plan. Aesthet. Res. 2024, 3, 97–121. [Google Scholar] [CrossRef]
  55. Kee, T. Sustainable adaptive reuse—Economic impact of cultural heritage. J. Cult. Herit. Manag. Sustain. Dev. 2019, 9, 165–183. [Google Scholar] [CrossRef]
  56. Pittau, F.; Giacomel, D.; Iannaccone, G.; Malighetti, L.E. Environmental Consequences of Refurbishment Versus Demolition and Reconstruction: A Comparative Life Cycle Assessment of an Italian Case Study. J. Green Build. 2020, 15, 155–172. [Google Scholar] [CrossRef]
  57. Bottero, M.; Datola, G.; Fazzari, D.; Ingaramo, R. Re-Thinking Detroit: A Multicriteria-Based Approach for Adaptive Reuse for the Corktown District. Sustainability 2022, 14, 8343. [Google Scholar] [CrossRef]
  58. Bortolotto, C. Commercialization without over-commercialization: Normative conundrums across heritage rationalities. Int. J. Herit. Stud. 2020, 27, 857–868. [Google Scholar] [CrossRef]
  59. Boix-Cots, D.; Pardo-Bosch, F.; Pujadas, P. Introducing the Comprehensive Value Function for Sustainability Full-Spectrum Assessment. Sustainability 2024, 16, 2617. [Google Scholar] [CrossRef]
  60. Stival, C.; Berto, R.; Morano, P.; Rosato, P. Reuse of Vernacular Architecture in Minor Alpine Settlements: A Multi-Attribute Model for Sustainability Appraisal. Sustainability 2020, 12, 6562. [Google Scholar] [CrossRef]
  61. Maha Shree, J.; Yogesvar, R.; Madhushri, R.; Vishal, R.; Eunice, J. Adaptive Reuse of Cultural Heritage. Int. Res. J. Adv. Eng. Manag. (IRJAEM) 2024, 2, 1188–1192. [Google Scholar] [CrossRef]
  62. Augustiniok, N.; Houbart, C.; Plevoets, B.; Van Cleempoel, K. Adaptive reuse of built heritage: Conserving and designing with values. J. Cult. Herit. Manag. Sustain. Dev. 2023. Epub ahead of printing. [Google Scholar] [CrossRef]
  63. Social sustainability. In The Fairchild Books Dictionary of Fashion; Fairchild Books: New York, NY, USA, 2022.
  64. Papamichael, I.; Voukkali, I.; Loizia, P.; Zorpas, A. Construction and demolition waste framework of circular economy: A mini review. Waste Manag. Res. 2023, 41, 1728–1740. [Google Scholar] [CrossRef]
  65. Hasik, V.; Escott, E.; Bates, R.; Carlisle, S.; Faircloth, B.; Bilec, M. Comparative whole-building life cycle assessment of renovation and new construction. Build. Environ. 2019, 161, 106218. [Google Scholar] [CrossRef]
  66. Timm, J.; Maciel, V.; Passuello, A. Towards Sustainable Construction: A Systematic Review of Circular Economy Strategies and Ecodesign in the Built Environment. Buildings 2023, 13, 2059. [Google Scholar] [CrossRef]
  67. Bosone, M.; De Toro, P.; Girard, L.F.; Gravagnuolo, A.; Iodice, S. Indicators for Ex-Post Evaluation of Cultural Heritage Adaptive Reuse Impacts in the Perspective of the Circular Economy. Sustainability 2021, 13, 4759. [Google Scholar] [CrossRef]
  68. Камалoва, Г.; Дауренбекoва, Т.К.; Gulnara, K. World Experience of Architectural Adaptation of Historical Heritage to a New Function. Bull. Kazakh Lead. Acad. Archit. Constr. 2023, 89, 43–52. [Google Scholar] [CrossRef]
  69. Chan, J.; Bachmann, C.; Haas, C. Potential economic and energy impacts of substituting adaptive reuse for new building construction: A case study of Ontario. J. Clean. Prod. 2020, 259, 120939. [Google Scholar] [CrossRef]
  70. Sanchez, B.; Esfahani, M.E.; Haas, C. A methodology to analyze the net environmental impacts and building’s cost performance of an adaptive reuse project: A case study of the Waterloo County Courthouse renovations. Environ. Syst. Decis. 2019, 39, 419–438. [Google Scholar] [CrossRef]
  71. Mladenovic-Ribic, N. Towards an integrative approach to the safeguarding of living heritage: Programmes of the center for the intangible cultural heritage of Serbia and the Ethnographic Museum in Belgrade. Glas. Etnogr. Instituta 2024, 72, 19–37. [Google Scholar] [CrossRef]
  72. Aziz, N.A.A.; Ariffin, N.F.M.; Ismail, N.; Alias, A. Community Participation in the Importance of Living Heritage Conservation and Its Relationships with the Community-Based Education Model towards Creating a Sustainable Community in Melaka UNESCO World Heritage Site. Sustainability 2023, 15, 1935. [Google Scholar] [CrossRef]
  73. Vardopoulos, I. Critical sustainable development factors in the adaptive reuse of urban industrial buildings. A fuzzy DEMATEL approach. Sustain. Cities Soc. 2019, 50, 101684. [Google Scholar] [CrossRef]
  74. Vardopoulos, I.; Stamopoulos, C.; Chatzithanasis, G.; Michalakelis, C.; Giannouli, P.; Pastrapa, E. Considering Urban Development Paths and Processes on Account of Adaptive Reuse Projects. Buildings 2020, 10, 73. [Google Scholar] [CrossRef]
  75. Mérai, D.; Veldpaus, L.; Pendlebury, J.; Kip, M. The Governance Context for Adaptive Heritage Reuse: A Review and Typology of Fifteen European Countries. Hist. Environ. Policy Pract. 2022, 13, 526–546. [Google Scholar] [CrossRef]
  76. Zhang, Y.; Dong, W.-M. Determining Minimum Intervention in the Preservation of Heritage Buildings. Int. J. Archit. Herit. 2019, 15, 698–712. [Google Scholar] [CrossRef]
  77. Clarke, N.J.; Kuipers, M.C.; Roos, J. Cultural resilience and the Smart and Sustainable City: Exploring changing concepts on built heritage and urban redevelopment. Smart Sustain. Built Environ. 2020, 9, 144–155. [Google Scholar] [CrossRef]
  78. Zeadat, Z.F. Adaptive reuse challenges of Jordan’s heritage buildings: A critical review. Int. J. Urban Sustain. Dev. 2024, 16, 95–107. [Google Scholar] [CrossRef]
  79. Sur, N.D.; Shendkar, A.E.M. Title of the Paper–Preserving the Past, Shaping the Future: Strategic Planning for Adaptive Reuse in India’s Heritage Precincts and Its Impact on Heritage Areas. In Proceedings of the International Conference on Climate Change, Cultural Heritage and Sustainable Habitat, Patna, India, 17–18 February 2024. [Google Scholar]
  80. Gravagnuolo, A.; Girard, L.F.; Kourtit, K.; Nijkamp, P. Adaptive re-use of urban cultural resources: Contours of circular city planning. City Cult. Soc. 2021, 26, 100416. [Google Scholar] [CrossRef]
  81. Borri, A.; Corradi, M. Architectural Heritage: A Discussion on Conservation and Safety. Heritage 2019, 2, 41. [Google Scholar] [CrossRef]
  82. Croitoru, G. Approaches Regarding the Functional and Structural Rehabilitation of Historical Monumental Buildings. OALib 2021, 8, e7497. [Google Scholar] [CrossRef]
  83. Vidyullatha, R.; Kumar, G.; Dileep, G. Adaptive Reuse of Heritage Buildings for Sustainable Urban Regeneration: Two Case Studies from India. Int. Soc. Study Vernac. Settl. 2023, 10, 290–313. [Google Scholar] [CrossRef]
  84. Taherkhani, R.; Hashempour, N.; Lotfi, M. Sustainable-resilient urban revitalization framework: Residential buildings renovation in a historic district. J. Clean. Prod. 2020, 286, 124952. [Google Scholar] [CrossRef]
  85. Holyk, J.; Bagrij, N.; Stetsko, I. Reconstruction of Buildings As a Method of Preserving Historical Buildings. Urban Dev. Spat. Plan. 2024, 86, 41–56. [Google Scholar] [CrossRef]
  86. Munshed, Z.A.; Ashour, A.S. Adaptive Reuse (AR) of Historical and Heritage Buildings Through Concepts of Addition and Expansion. BIO Web Conf. 2024, 97, 00104. [Google Scholar] [CrossRef]
  87. Tam, V.; Hao, J. Adaptive reuse in sustainable development. Int. J. Constr. Manag. 2019, 19, 509–521. [Google Scholar] [CrossRef]
  88. De Medici, S.; De Toro, P.; Nocca, F. Cultural Heritage and Sustainable Development: Impact Assessment of Two Adaptive Reuse Projects in Siracusa, Sicily. Sustainability 2019, 12, 311. [Google Scholar] [CrossRef]
  89. Foster, G.; Kreinin, H. A review of environmental impact indicators of cultural heritage buildings: A circular economy perspective. Environ. Res. Lett. 2020, 15, 043003. [Google Scholar] [CrossRef]
  90. Zou, Y.; Protection, B. Overview of Chinese Tea Culture Landscape. Int. Counc. Monum. Sites 2021, 11, 31. [Google Scholar]
  91. Wang, X. Analysis of the Relationship between Architectural Forms and Settlements—The Case of Tujia Hammock Buildings in Guizhou, Hunan and Chongqing. China Natl. Exhib. 2024, 59–61. [Google Scholar]
  92. Sun, D.; Li, L. Chinese traditional residential architecture treasure—Miao Village footstool construction technology. Knowl. Is Power 2023, 03, 58–61. [Google Scholar]
  93. Mao, T.; Li, Q. Research on the relationship between the formation of local construction culture and geographical environment based on adaptability analysis. J. King Saud Univ.-Sci. 2023, 35, 1–7. [Google Scholar] [CrossRef]
  94. Wei, Y. The Cradle of Wuchu Culture, the Hometown of Mountain Ghosts:The Historical and Cultural Origins of Vernacular Architecture and Characteristics of Vernacular Dwellings in Xiangxi. Herit. Archit. 2018, 03, 9–15. [Google Scholar] [CrossRef]
  95. Martínez, V.G.; Ma, G.; Pellegrini, P.; Costa, M.R. Vernacular architecture and cultural identity in shrinking rural settlements. ACE Arquit. Ciudad. Entorno 2022, 17, 11389. [Google Scholar] [CrossRef]
  96. Gao, C.; Wang, J.; Ren, Y. Comparative Study of Settlements and Architectures Space of Traditional Stilted Building of Miao Nationality and Tujia Nationality under the Influence of Central Plain Culture. Urban. Archit. 2019, 16, 17–21. [Google Scholar] [CrossRef]
  97. Li, Q.X.Y. The Anthropological Investigation of the Symbolic Meanings of Tujia Stilted House:A Case Study of Gongtan Town, Youyang County. J. Wenshan Univ. 2020, 33, 48–52. [Google Scholar]
  98. Huang, Z.; Qin, L. The Culture of Residential Buildings Promotes the Construction of Beautiful Countryside: Taking Dong Ethnic Wooden Structure Buildings as an Example. Front. Educ. Res. 2023, 6, 127–132. [Google Scholar]
  99. Muqoffa, M.; Himawan, K.; Juwana, W.E.; Adhi, R. Multifaceted Role of Construction Materials in Javanese Vernacular Houses. ISVS e-J. 2024, 11, 60–95. [Google Scholar] [CrossRef]
  100. Hermawan, H.; Švajlenka, J. Building envelope and the outdoor microclimate variable of vernacular houses: Analysis on the environmental elements in tropical coastal and mountain areas of Indonesia. Sustainability 2022, 14, 1818. [Google Scholar] [CrossRef]
  101. Han, B. Research on the Overall Association Mode of Landscaping and Cultural Space Structure in Fenghuang Ancient Town Based on Visual Domain Evaluation. Master’s Thesis, Xi’an University of Architecture and Technology, Xi’an, China, 2023. [Google Scholar]
  102. Hidayati, Z.; Noviana, M.; Rosyidi, M.F. Interior Modification of Residential Housing in Flood Prone Areas. Int. J. Disaster Manag. 2023, 5, 159–180. [Google Scholar] [CrossRef]
  103. Wang, K.; Liu, X. Exploring the Spatial Layout and Culture of Enshi Tujia Hammock Buildings. Theor. Res. Urban Constr. 2023, 01, 4–6. [Google Scholar]
  104. Jokilehto, J. A History of Architectural Conservation; Routledge: London, UK, 2017. [Google Scholar]
  105. Nilam, W. Fusion of Ornamental Art and Architectural Design: Exploring the Interplay and Creation of Unique Spatial Experiences. Stud. Art Archit. 2023, 2, 10–27. [Google Scholar] [CrossRef]
  106. Song, Y.; Liao, C. Research on the architectural features and artistic elements of traditional buildings in different regions of Jiangxi, China. Buildings 2023, 13, 1597. [Google Scholar] [CrossRef]
  107. Fan, J.W.Y. The Application of the Redesign of the Traditional Decorative Patterns of the Miao Nationality in Xiangxi in the Cloth Art and Accessories of the Homestay. Hunan Packag. 2023, 38, 82–85. [Google Scholar] [CrossRef]
  108. Meng, Z.; Jiang, L. An Analysis of the Architectural Decoration Culture of Tujia Ethnic Group in Western Hunan Province. J. Hunan Univ. Sci. Technol. (Soc. Sci. Ed.) 2022, 25, 152–157. [Google Scholar] [CrossRef]
  109. Yan, H. Wood Carving Patterns of Stilted Buildings of Tujia People in West Hunan. Master’s Thesis, Central South University of Forestry and Technology, Changsha, China, 2021. [Google Scholar]
  110. Huo, X. Inheritance and Development: On Xiangxi Miao’s Ancestor Worship. Relig. Stud. 2018, 03, 148–156. [Google Scholar]
  111. Hu, L. Story Narration and Belief Practice of Ancestor Worship—Take Banli Village in Huayuan County of Western Hunan Province as A Case. Master’s Thesis, Chongqing Technology and Business University, Chongqing, China, 2021. [Google Scholar]
  112. Zhang, Y. A Comparative Study of Primitive Religious Buildings Between Miao and Tujia Nationality in West Hunan. Master’s Thesis, Hunan University, Changsha, China, 2016. [Google Scholar]
  113. Hu, M.; Meng, Z. The Cultural Connotation of Xiangxi Tujia Hammock Architecture. Art 2022, 94–96. [Google Scholar]
  114. Wei, S. Ancient style and charm, the pearl of western Hunan: Fenghuang Ancient Town. Philat. Panor. 2022, 05, 36–37. [Google Scholar]
  115. Yang, Z. Hammock, the wisdom of the nation in the landscape. Bright. Youth 2024, 06, 44–46. [Google Scholar]
  116. Sun, H.; Gong, J.; Jiang, X. Analysis on the Plane Form and Characteristics of the Traditional Dwellings of the Miao Ethnic Group in Xiangxi. Chin. Overseas Archit. 2022, 06, 64–70. [Google Scholar]
  117. Ma, Q. Study on the differents between tujia and miao people’s folk houses in xiangxi area. Design 2020, 33, 124–125. [Google Scholar]
  118. Hao, G. Research on the Architectural Style and Conservation of Xiangxi Tujia Hanging Footstools. West Leather West 2019, 41, 48. [Google Scholar]
  119. Li, Y. Conservation Strategy of Traditional Houses in Western Hunan in the Context of Rural Revitalization—The Case of Tujia Hanging Footstools. Beauty Times (City Ed.) 2023, 7–9. [Google Scholar]
  120. Li, L. Fenghuang Ancient City Ancient Architecture Decorative Art and Tourism Development. Tour. Photogr. 2020, 2, 66–67. [Google Scholar]
  121. Huang, Y.; Yan, H. Analysis on Woodcarving Patterns Art and Folk Culture of Tujia Stilted Building. Furniture & Interior Design 2021, 07, 54–58. [Google Scholar] [CrossRef]
  122. Papathoma-Köhle, M.; Schlögl, M.; Garlichs, C.; Diakakis, M.; Mavroulis, S.; Fuchs, S. A wildfire vulnerability index for buildings. Sci. Rep. 2022, 12, 1–15. [Google Scholar] [CrossRef]
  123. Blavier, C.L.S.; Huerto-Cardenas, H.E.; Aste, N.; Del Pero, C.; Leonforte, F.; Della Torre, S. Adaptive measures for preserving heritage buildings in the face of climate change: A review. Build. Environ. 2023, 245, 110832. [Google Scholar] [CrossRef]
  124. Bai, Y.; Tan, Y. Research on the Characteristics of Ancient Architecture and Spatial Ageing Design in Western Hunan—The Case of Traditional Hanging Footstools. Heilongjiang Pict. 2021, 11, 92–94. [Google Scholar]
  125. Dalia, P.; Larbi, S. Problems of Legal Regulation of the Protection of Cultural Heritage As a Tourism Object. Humanit. Stud. 2022, 12, 122–129. [Google Scholar]
Figure 1. Theoretical framework of the study (drawn by the author).
Figure 1. Theoretical framework of the study (drawn by the author).
Buildings 15 00119 g001
Figure 2. Map of Fenghuang Ancient Town, Xiangxi, China (photograph and drawn by the author; elevation data sourced from the National Fundamental Geographic Information Database of China).
Figure 2. Map of Fenghuang Ancient Town, Xiangxi, China (photograph and drawn by the author; elevation data sourced from the National Fundamental Geographic Information Database of China).
Buildings 15 00119 g002
Figure 3. Framework of the study (drawn by the author).
Figure 3. Framework of the study (drawn by the author).
Buildings 15 00119 g003
Figure 4. Block layout plan (photograph by the author).
Figure 4. Block layout plan (photograph by the author).
Buildings 15 00119 g004
Figure 5. Spatial form (photograph by the author; drawn by the author).
Figure 5. Spatial form (photograph by the author; drawn by the author).
Buildings 15 00119 g005
Figure 6. (a) Traditional stilted building floor plan; (b) interior spatial layout of traditional stilted buildings (drawn by the author).
Figure 6. (a) Traditional stilted building floor plan; (b) interior spatial layout of traditional stilted buildings (drawn by the author).
Buildings 15 00119 g006
Figure 7. Design of main components of stilted buildings (photograph by the author; drawn by the author).
Figure 7. Design of main components of stilted buildings (photograph by the author; drawn by the author).
Buildings 15 00119 g007
Figure 8. Architectural alienation phenomena: (a) concrete and stone foundation; (b) concrete railings; (c) aluminum alloy glass and external air conditioning unit; (d) concrete-reinforced wooden piles (photograph by the author).
Figure 8. Architectural alienation phenomena: (a) concrete and stone foundation; (b) concrete railings; (c) aluminum alloy glass and external air conditioning unit; (d) concrete-reinforced wooden piles (photograph by the author).
Buildings 15 00119 g008
Table 1. Definition and description of indicators and measurement.
Table 1. Definition and description of indicators and measurement.
DimensionDefinitionDescriptionMeasurement Methods
ConservationThe extent to which the original cultural and historical attributes of the building are retained.Focuses on preserving cultural integrity and historical authenticity, including architectural details, traditional materials, and spatial configurations.Visual inspections, expert evaluations of architectural features, and comparative analyses using historical records and archival photographs.
RehabilitationThe process of improving structural integrity and integrating modern utilities without compromising heritage value.Encompasses structural reinforcement and modernization of essential facilities to meet current standards.Evaluation of modernized facilities for compliance, structural stability tests, and safety certifications.
Urban renewalThe enhancement of surrounding urban infrastructure to improve connectivity, accessibility, and functionality.Includes the development of road networks, public spaces, and community facilities associated with the adaptive reuse project.Mapping and analysis of infrastructure improvements, accessibility audits, and assessments of public usability and community engagement.
Adaptive reuseThe process of repurposing a building to accommodate new functions while preserving its heritage significance.Aims to extend the functional lifespan of the building by adapting it for modern uses.Documentation of new functional uses, cost–benefit analyses, and user surveys evaluating functional satisfaction and economic performance.
Urban revitalizationThe broader socio-economic impact of adaptive reuse on local employment, tourism, and community development.Assesses the extent to which reuse projects contribute to economic growth, job creation, and social cohesion.Analysis of tourism revenues and visitor statistics, employment data tracking, and community interviews to evaluate social and economic outcomes.
RestorationAesthetic and ecological enhancements to the building and its surrounding environment.Emphasizes the use of traditional materials and sustainable design principles to achieve visual and environmental harmony.Environmental impact assessments, expert reviews of restoration techniques and materials, and public feedback on aesthetic and ecological improvements.
Table 2. Decorative components.
Table 2. Decorative components.
No.Component NameCharacteristics and FunctionsIllustration
1Horse-head wallThe horse-head walls of stilted building clusters typically extend above the roofline, following the building’s contours in a streamlined form. The protruding parts resemble a saddle, with primary functions of wind, fire, and theft protection. The wall is topped with blue tiles symbolizing dragon scales, while the curved portions resemble phoenix tails, symbolizing the intertwining of dragon and phoenix, conveying the auspicious meaning “dragon and phoenix bring prosperity.”Buildings 15 00119 i001
2Roof ridgeThe roof ridge features a layered tile design, with a triangular ridge cap and upward-curving wings, often carved with phoenix motifs. The roof ridge not only serves as the watershed of the sloped roof but is also the highest component of the building, holding significant visual and symbolic importance.Buildings 15 00119 i002
3 Window latticeThe window lattice is not only a decorative element but also reflects architectural style and cultural essence. Patterns and symbols carved on the lattice have religious and cultural meanings, symbolizing residents’ beliefs, aesthetics, and traditions. The lattice also serves as a divider for windows, providing moderate privacy by blocking external views while facilitating indoor ventilation and natural lighting.Buildings 15 00119 i003
4Carved railingRailings are typically installed between columns to separate indoor and outdoor spaces, providing basic protection. The decorative carvings on the railings carry profound cultural and symbolic meanings, reflecting the traditional beliefs and lifestyles of the Tujia and Miao people and serving as an important vessel for cultural heritage.Buildings 15 00119 i004
5Overhanging eavesThe overhanging eaves of stilted buildings usually extend beyond the wall, forming a steep overhang to adapt to the humid and rainy climate. The overhanging eaves effectively protect the wooden structure from rain and sunlight, prolonging the lifespan of materials and enhancing the overall durability of the stilted buildings.Buildings 15 00119 i005
6Hanging ornamentsLocated beneath the eaves, hanging ornaments serve primarily as decorative components without structural functions. The carvings and decorations on these ornaments embody rich cultural meanings, often depicting local history, legends, and ethnic beliefs, and reflecting the cultural identity and spiritual aspirations of the Tujia and Miao people.Buildings 15 00119 i006
Table 3. Cultural symbolism of patterns.
Table 3. Cultural symbolism of patterns.
No.Pattern NameCultural SymbolismIllustration
1 Geometric patternsGeometric patterns in the architectural decorations of the Tujia and Miao people reflect an emphasis on harmony between humans and nature. These intricate geometric motifs carry mystical religious and spiritual symbolism, representing the sacredness of the universe and the natural order. Additionally, these patterns are believed to offer protection and ward off evil, providing residents with spiritual safety and shelter.Buildings 15 00119 i007
2Floral and botanical motifs Floral motifs embody a perfect blend of artistry, functionality, and cultural symbolism, representing vitality and prosperity. Frequently used in the decoration of beams, window lattices, and railings, floral motifs reflect the residents’ longing for a better life and reverence for nature.Buildings 15 00119 i008
3Phoenix motifThe phoenix motif is a symbolic element of Fenghuang Ancient Town, commonly used in roof ridge decorations to symbolize protective power, safeguarding households and buildings from misfortune. The phoenix represents “rebirth from the ashes,” symbolizing the cycle of life and immortality, expressing admiration for resilience and hope for the future. As a traditional local totem, the phoenix motif carries significant historical and cultural value, symbolizing the inheritance of ancestral wisdom.Buildings 15 00119 i009
4Rolling grass patterns Rolling grass patterns consist of continuous curves and spirals, resembling winding plant vines, symbolizing vitality and the endless cycle of nature. The meandering growth form expresses the lushness and vitality of the natural world, embodying the Tujia and Miao people’s reverence for the ever-renewing natural environment.Buildings 15 00119 i010
5Animal and plant composite motifsComposite motifs featuring both animals and plants combine cultural significance with aesthetic value. They symbolize vitality, auspiciousness, and harmony while carrying deep religious, spiritual, and cultural meanings. These motifs reflect the Tujia and Miao people’s profound understanding and reverence for nature, life, and cultural beliefs by blending animal and plant elements into dynamic, lively patterns.Buildings 15 00119 i011
Disclaimer/Publisher’s Note: The statements, opinions and data contained in all publications are solely those of the individual author(s) and contributor(s) and not of MDPI and/or the editor(s). MDPI and/or the editor(s) disclaim responsibility for any injury to people or property resulting from any ideas, methods, instructions or products referred to in the content.

Share and Cite

MDPI and ACS Style

Wang, J.; Zakaria, S.A. Morphological Characteristics and Sustainable Adaptive Reuse Strategies of Regional Cultural Architecture: A Case Study of Fenghuang Ancient Town, Xiangxi, China. Buildings 2025, 15, 119. https://doi.org/10.3390/buildings15010119

AMA Style

Wang J, Zakaria SA. Morphological Characteristics and Sustainable Adaptive Reuse Strategies of Regional Cultural Architecture: A Case Study of Fenghuang Ancient Town, Xiangxi, China. Buildings. 2025; 15(1):119. https://doi.org/10.3390/buildings15010119

Chicago/Turabian Style

Wang, Jingyi, and Safial Aqbar Zakaria. 2025. "Morphological Characteristics and Sustainable Adaptive Reuse Strategies of Regional Cultural Architecture: A Case Study of Fenghuang Ancient Town, Xiangxi, China" Buildings 15, no. 1: 119. https://doi.org/10.3390/buildings15010119

APA Style

Wang, J., & Zakaria, S. A. (2025). Morphological Characteristics and Sustainable Adaptive Reuse Strategies of Regional Cultural Architecture: A Case Study of Fenghuang Ancient Town, Xiangxi, China. Buildings, 15(1), 119. https://doi.org/10.3390/buildings15010119

Note that from the first issue of 2016, this journal uses article numbers instead of page numbers. See further details here.

Article Metrics

Back to TopTop