Abstract
As one of the key ways to realize the industrialization and green development of construction, prefabricated construction is conducive to saving resources and energy and improving labor productivity and quality. Aiming to solve the problem of the lack of standardization in the design of prefabricated residential buildings, which leads to the components not being universally used and the industrial characteristics not being fully embodied, while excessive standardization leads to a lack of personalization and flexibility, the modular design theory is applied to the standardized design of prefabricated residential buildings in this study. The application route of modular design theory in the standardized design is constructed, that is, “system decomposition—module design—module combination”. Taking residential buildings within a height of 54 m as an example, each basic functional module is standardized and combined into standard plans. At the same time, the functional space module design based on modular coordination and the module combination design based on the trinity of “modulus, pattern, and mode” are discussed. This research is of great significance for giving full play to the comprehensive benefits of prefabricated concrete structures in quality improvement, cost reduction, and rapid assembly.
1. Introduction
For a long time, labor-intensive, low-productivity, and high-risk problems have widely existed in the construction industry [1]. At present, the development environment of the construction industry has undergone profound changes, deep-seated contradictions accumulated in the traditional construction industry are becoming increasingly prominent, and the extensive growth of the production mode is unsustainable. Therefore, it is necessary to transform to a new production mode [2]. Construction industrialization and building prefabrication and assembly are important ways to change the development mode of the construction industry [3,4,5]. Compared with the traditional cast-in-site construction method, prefabricated buildings can significantly improve construction efficiency and reduce construction costs and on-site environmental pollution through factory production of building components and rapid assembly at the construction site [6,7,8,9]. However, for a long period, the graphic design of prefabricated buildings still adopts the design method of traditional cast-in-place concrete structures. As the traditional design method fails to fully consider the modular, prefabricated, and assembled features of prefabricated buildings, it leads to poor production and construction links and inefficient use of resources. Even the overall quality and safety of the building are affected, which seriously restricts the promotion of prefabricated buildings. Therefore, it is important to find a design method that is suitable for the production and construction of prefabricated buildings.
Many researchers [10,11,12] believe that the reason why the market has not yet formed the large-scale and batch development of prefabricated buildings is that they are not good at using standardized design principles. There is a natural internal consistency between the standardization of architectural design and the development of prefabricated buildings. On the one hand, through the standardization of each component, the quality control of each component can be realized, so as to ensure the safety of the whole building. On the other hand, through standardized design, the specifications and types of prefabricated products can be effectively reduced, and the original templates can be reused, so as to reduce unnecessary economic costs. Jaillon et al. [13] analyzed prefabricated public housing projects and found that standardized design can be achieved by associating standard prefabricated façade types with standard unit sizes that allow repetition, and the symmetry axis of standardized layout allows repetition. Bílková et al. [14] expounded the principles of standardized design in residential design, studied the spatial adaptability of housing, and explored how standardized design can meet the changing functional space needs of users throughout the life cycle. Nowakowski [15] believed that housing demand and economic factors were eroding the design standards of homes, which should be based on providing the highest possible level of comfort for users. Wu et al. [16] described the realization path of standardized design of prefabricated buildings, where graphic design is based on building units or sets and combines standardized units to form a whole building. These studies add standardization to the principles of architectural design, which improves the quality of off-site prefabrication and thus promotes the promotion of prefabricated buildings. However, they focus more on the principles and paths to achieving standardized design for prefabricated buildings in a macro way and are not sufficiently descriptive about the details. It turns out to be a failure to reflect the challenges encountered when applying standardized design. In addition, excessive standardization may lead to a lack of individuality and diversity in design.
With the development of the principle of standardization in the application, the modular design method can meet the needs of diversification and can efficiently realize the purpose of standardization, thus promoting the development of prefabricated buildings [17,18]. The modular design enables design flexibility and scalability by breaking down the building into interchangeable modular units. Isaac et al. [19] proposed a graph-based approach to resolving the conflict between standardized and individualized requirements for optimizing the modular design of buildings and demonstrated the application of the proposed method in a typical residential unit case study. Almashaqbeh et al. [20] proposed a model for optimizing modular design, which can help architectural planners find the optimal trade-off between minimizing the total cost of a building project and maximizing the functional performance of the floor plan and can efficiently determine the optimal floor plan design. Pan et al. [21] analyzed the characteristics and basic principles in the process of modular design and proposed detailed horizontal and vertical connection methods for modular concrete high-rise buildings. Taking a high-rise building as an example, Yang et al. [22] discussed the advantages of modular design in terms of spatial diversity, environmental adaptability, and ecological friendliness, and proposed the concept of “standardized units”, which can be adapted to different functional requirements through parallel connection and hybrid connection. By combining Knowledge-Based Engineering (KBE) theory with prefabricated buildings, Li et al. [23] developed a modular design tool for prefabricated components using Revit’s secondary development technology, which can satisfy the diversified component design of prefabricated buildings through the updatability of the system. The meticulous design of components was accomplished at a smaller level, thus enhancing the generality of modules.
In summary, these design methods help to improve the standardization and diversity of prefabricated residential buildings and have a significant impact on modern building design [24,25,26]. However, existing research on design methods for buildings lacks a certain degree of continuity and the design process is not intuitive. More studies focus on optimizing a certain stage of the design and ignore the interconnections between these stages. Existing research focuses more on cost optimization and customization, and seldom incorporates the realizability of the structural design and construction phases. These remain challenging issues in design.
In order to solve the above problems, this study proposes a design method for prefabricated buildings based on modular theory. This method combines the advantages of standardization and modularization and realizes the flexibility and innovation of design by improving the standardization degree of modules while maintaining the efficiency and reliability of buildings. Taking a prefabricated concrete residential building within a height of 54 m as an example, the design methods of system decomposition, module design, and module combination proposed in this study are applied. The module design of functional space with modular coordination is discussed, and the modular design system of “modulus, pattern, and mode” is proposed. It is expected that the results of this study can provide a reference and basis for the graphic design of prefabricated concrete buildings, lay a good foundation for the standardized construction of prefabricated buildings, and promote the sustainable development of the construction industry.
2. Prefabricated Residential Building System Decomposition
The research route of this study is shown in Figure 1. The design method is utilized by taking the prefabricated residential building as an example. The implementation of the modular design methodology is applied as an example with a model of a residential building within 54 m. Since modular design is more advantageous in mass production [27], the application is mainly demonstrated for apartment-type houses or two- to three-bedroom houses with greater demand. It is important to note that the application of the design method proposed in this study is not limited to these cases.
Figure 1.
Research route.
2.1. Decomposition Principles
System decomposition is an important concept in system engineering, which refers to the process of dividing a system into different levels and components based on the requirements, goals, functions, and characteristics of the system as a whole [28,29]. The number of elements constituting a modular system is huge and the combination methods are almost unlimited, so it is a huge challenge to directly deal with the system as a whole. It is essential to introduce the concept of system decomposition in the modular design of prefabricated buildings [21,30]. The complex building system is decomposed layer by layer according to certain standards, and then the modules with clear specific functions are optimized to form a module library. Afterward, modules in the module library can be reassembled to generate new systems in similar architectural designs. Analyzing the whole implementation process, it is found that the results of decomposition largely determine modular design efficiency and productivity [31,32,33]. Therefore, it is necessary to establish the following principles to improve the practicability of the decomposition results.
- (1)
- The choice of decomposition core. The purpose of system splitting needs to be clear, which is to optimize the subsystem design and then combine again. Separation should be systematic classification and refinement, rather than destructive disassembly. Understanding the system composition is a prerequisite for splitting. The system is composed of interrelated elements, each of which bears a specific function. The smallest split unit must meet the conditions of the module, that is, an independent unit with a certain function. Dividing the system by function is a common method, and it can also be split layer by layer according to the assembly structure or maintenance requirements of the system.
- (2)
- Selection of decomposition points. When the system is decomposed, the first analysis should be of the relationship between the functional elements. The principle of system decomposition is to maximize the degree of aggregation within the module and minimize the degree of combination between the modules [34]. The maximum degree of aggregation is because the larger the system scale is, the more complex the system is, and the more modular system can show its advantages. The minimum degree of integration is to hope that the interface structure between modules is simple and convenient for system assembly, maintenance, and replacement.
- (3)
- The determination of the level, scale, and quantity of the module. The efficiency of modularization depends on the level, scale, and quantity of module division. The smaller the module division, the simpler the optimized design but the larger the scale and costs. The amount of system decomposition is inversely proportional to the scale and cost. Excessive decomposition increases overall quantity and cost and limits scale. The best option is to achieve the optimal solution of medium scale and cost. At the same time, the extraction and typification of general elements, the standardization of atypical elements, and the coordination and matching of interfaces should be realized.
- (4)
- Extraction and typicalization of general elements. The decomposition of the system is to start with determining the main functional elements of the system, and then use these functional elements as the core to analyze their internal relations and group the closely related components. Then, these functional element groups are integrated and separated from the system to form units with specific functions to meet the needs of multiple object systems. Finally, these independent units are standardized and converted into modules to facilitate the use of the system.
- (5)
- Standardization of atypical elements. Through repeated analysis of multiple systems and extraction of common elements, it is found that there are still many atypical elements. In order to incorporate these atypical elements into the modular system, the following methods can be adopted: (i) as a dedicated module; (ii) as dedicated modules; (iii) adapting them to the new modularized system; (iv) grouping them into new modules to replace the original atypical elements; (v) designing dedicated interfaces on the corresponding modules or designing interface modules to harmonize these atypical elements with the new system; (vi) attaching or integrating the atypical elements into the major elements (modules); and (vii) appropriately categorizing these atypical elements and integrating them into structural modules.
- (6)
- Interface coordination and matching. In a modular product or system, it is crucial to coordinate and match the interfaces between modules. Whether the interface is well-designed or not directly affects the quality and efficiency of the system. The key to achieving interface coordination is interface standardization. When performing system decomposition, the arrangement and difficulty of the interface structure need to be considered. There are two ways to solve the interface problem: one is to connect the interface structure through the connector as part of the module; the other is to create interface modules as part of a modular system.
2.2. System Decomposition
The prefabricated residential building system includes professional engineering systems such as architecture, structural engineering, water supply and drainage engineering, electrical engineering, fire protection engineering, ventilation engineering, communication engineering, control engineering, intellectualization, and so on. These specialized engineering systems cannot exist independently and must continue to be decomposed.
At the building design level, the decomposition is carried out according to the system decomposition principles described in Section 2.1. The first step is to identify the core of the decomposition. The smallest decomposition unit must fulfill the condition of a module, that is, an independent unit with a defined function. The result is that a residential building is decomposed into a bedroom space, living room space, dining room space, kitchen space, bathroom space, balcony, and other accessory space units. Next is the choice of decomposition point. Choose the part of the system that has the smallest degree of combination and a simple interface structure, which is convenient for the assembly, maintenance, and replacement of the system. For residential building floor plan design, the parts with small degrees of combination of various functional modules are mostly the walls used to divide the space or the hallways to connect individual functional spaces. Then, the level and scale of the modules need to be clarified. They are divided into the following levels: (i) basic unit module and integrated functional module; (ii) functional modules combined to form the apartment layout; and (iii) apartment layout and traffic core combined to form the standard floor plan. Each level can be assembled into various outcomes, culminating in diversity based on modularity. After determining the above, the decomposed subsystems (modules) are designed by extracting and typifying the generic elements.
3. Prefabricated Residential Building Module Design
3.1. Design Principles
In architectural design, there has long been the concept of modulus, that is, the size of the general component is a multiple of 300 mm, and 300 mm is the smallest unit in the general sense of the building. This is the beginning of modular design in architectural design, and the typical design of residential functional modules in this study will also be carried out on the basis of modulus. The following principles are obeyed so that each space not only meets its specific functional requirements but also has a good experience of use and aesthetics.
- (1)
- Modular coordination [35]. This is an effective method to realize the standardized design of prefabricated buildings by using the modular coordination mechanism to coordinate the dimensional relationship between the structure and various parts and to complete the reasonable modular design [36]. The modular application of new building industrialization solves the modular coordination of various parts and components, makes building manufacturing scientific and technical, and ensures quality and efficiency.
- (2)
- Functional clarity. Each functional module should define its main function and be designed and laid out according to the function. For example, the bedroom should give priority to the sleep function, while the kitchen should focus on cooking and storage.
- (3)
- Humanized design. Consider the user’s behavior pattern and ergonomic principles to ensure that the spatial layout, furniture size, and facility installation are in line with human comfort and usage habits.
- (4)
- Efficient use of space. Through reasonable layout and multi-functional furniture selection, maximize the use of space. For example, in the bedroom, you can save storage space by choosing a bed frame with a storage function.
- (5)
- Ventilation and lighting [37]. Ensure that each functional module has good ventilation and lighting conditions to improve living comfort and health. For example, in toilet design, natural ventilation and adequate lighting should be considered.
- (6)
- Scalability. In the design process, it is necessary to consider possible future changes in demand, such as an increase in family members and changes in functional requirements. Therefore, it should be ensured that the design has a certain degree of scalability and flexibility. The modular design idea is adopted to make the functional modules detachable and reconfigurable, which is convenient for later transformation and upgrading. Design some variable spaces, such as movable partitions and multi-functional furniture, to adapt to different needs and changes.
3.2. Module Design
In the design of each functional module, the typical layout form of each module is summarized as shown in Table 1 by comprehensively considering the size of the building modulus [38], the size of each furniture arrangement, the size of human activity, and the space loan of each functional space. In practical applications, the dining table is arranged as far as possible in the L-shaped corner or next to a wall, so that the space will be relatively stable. Therefore, the dining room module is usually flexibly arranged in combination with other modules. The designer does not need to limit the scope of the wall but selects the appropriate place according to its spatial form.
Table 1.
Design of functional modules for prefabricated residential buildings (unit: mm).
There are many modules in the residence, which are collectively referred to as subsidiary modules because of their simple functions or small areas, such as the porch, aisle, and balcony. The porch is usually separated by a shoe cabinet or a locker. It is generally attached to the living room or restaurant and achieves the role of transition and buffering through space borrowing. Due to the attachment characteristic, the porch is usually only typical of its width. It is stipulated in Reference [39] that the net width of the entrance aisle should not be less than 1200 mm. The design will reserve a 100 mm decoration thickness on the usual basis to ensure a net width of 1200 mm. If it is necessary to set up storage space such as shoe cabinets, it needs to be widened on this basis. The porch of a small house can be combined with the living room and the restaurant to achieve the effect of space borrowing, which can increase the efficiency of space use to a certain extent. According to the specification requirements and common furniture sizes, the typical design widths of the porch are 1500 mm, 1800 mm, and 2100 mm, and the layouts are shown in Table 2.
Table 2.
Design of auxiliary modules and integrated functional modules for prefabricated residential buildings (unit: mm).
Although the balcony exists as an auxiliary module, its importance cannot be underestimated. The balcony module bears the responsibility of indoor and outdoor connection. At present, there are two kinds of balconies: one is the living balcony, and the other is the service balcony. The living balcony generally bears some leisure and entertainment functions in addition to drying clothes, while the service balcony is more to provide a placement platform for washing machines, dryers, and other electrical appliances. Similar to the porch, the balcony is usually attached to the living room, dining room, and bedroom modules. Therefore, the balcony module is generally limited to its width, and its length is determined by the functional module it is attached to. The following balcony width dimensions are summarized, with 300 mm as the modulus, and the common layout is shown in Table 2.
The above-mentioned functional modules are all designed based on a single function, but in actual residential applications, the trend of functional integration has emerged. For example, the LDK (living room/dining room/kitchen) integrated design reorganizes spaces in an integrated way by eliminating rigid partitions between multiple functional spaces. LDK integration removes the wall that separates the guest kitchen space. It not only broadens the visual space but also enlarges the overall use space. The soft separation in the space can be used as a storage space at the same time, which can maximize the use in a limited space. Of course, the LDK module is not perfect. For the cooking method of Chinese cooking and frying, the open kitchen will spread oil fumes to all parts of the room, so the most common in many apartments is the integrated layout of the living room and dining room. Another example is the design of the master suite, which combines the bedroom, bathroom module, and even the cloakroom into a new composite module. These integrated designs do not mean that the original basic unit modules are ineffective, but rather they are recombined, providing more possibilities and flexibility for the functional space. According to the common combinations, several typical layout forms are summarized, as shown in Table 2.
Even more families choose to incorporate the study into the function of the master bedroom suite to form a set of small, independent, and complete fully functional spaces, which realizes the “small family” of the master bedroom suite. Its core idea is that the modern bedroom is not simply limited to daily functions such as rest, but a set of small, independent, and complete fully functional spaces derived from the master’s will.
4. Prefabricated Residential Building Module Combination
4.1. Combination Principles
After the system is decomposed and the typical module design of the subsystem is carried out, a new system is formed by combining the modules in the module library. Reasonable zoning of different functional spaces in the form of regionalization can improve the use efficiency of indoor space and the quality of living in a limited area. Generally speaking, the functional partition of the set mainly includes public and private partitions, dynamic and static partitions, and clean and dirt partitions. Figure 2 shows the relationship between the three major partitions and sorts out the relative position relationship of each functional module in the house type.
Figure 2.
Diagram of the connection of the basic functional space.
An analysis of existing examples of modular buildings shows that the combination of modules is very varied. For example, the modules can be paralleled, staggered, continuous, or rotated, and some basic combinations can also be reused. Through the analysis and summary of the combination modes, it can be divided into direct combination, integrated combination, refitted combination, and indirect combination.
The functions that are parallel in the functional module of the residential building and can share the same wall can be directly combined, while the integrated module of the living room and dining room belongs to the integrated combination. The living room module and the dining room module of different specifications are loaded into a structural module to intensively combine the functions of the two. The refitted combination changes the interface of some modules, which adds some transformable functional spaces as activity spaces, so as to meet the changes in subsequent use and the diverse needs of different people. Auxiliary modules such as entrances, balconies, and air-conditioning units can be regarded as either an integrated combination or a refitted combination, which have been adjusted or changed to a certain extent to the interface or the module itself. Indirect combinations are also very common. If all the functional modules are assembled by means of integrated or direct combination, the resulting apartment layout cannot be used. The indirect combination of using the walkways can connect the functional modules in series.
When combining functional zones and combination methods to assemble the house type, there are also several points that need to be paid attention to. For example, reasonable moving lines, size matching, and good ventilation and lighting are all necessary conditions for the apartment layout design [37].
4.2. Combination Methodology
Based on modular coordination, this study introduces two elements, patterns and modes, and the trinity of “modulus, pattern, and mode” as a design method for prefabricated residential buildings is proposed. Under the limitation of satisfying the modulus, the changes in patterns and modes are used to create more diversified residential spaces.
- (1)
- Research on spatial combination patterns
A study on the house types of some existing fully assembled concrete residential projects in China shows that some excellent design schemes usually place the residential houses in 2–3 controlled “oblong boxes”, and each “oblong box” can contain multiple functional rooms. The house type designed based on this approach ensures that the longitudinal walls are basically co-axial, which is more conducive to the realization of the prefabricated structure. Based on this, “placing the residential house in 2–3 control boxes” is taken as a basic control rule when discussing the design pattern. If there are more than three oblong boxes in actual production, you can draw inferences based on the method. In the following study, a standard bay width is represented by Lk. An oblong box with a bay of Lk and a certain depth is called a BU (box unit), as shown in Figure 3. The setting of the specific value of Lk sets the modular network from a macroscopic perspective, which is the connection point between this design method and the classical modular network theory. As for the research on the specific method level of modular networks, many achievements have been made by industry peers, and there are relevant design specifications in China [35,38], so this study focuses on the pattern level and mode level.
Figure 3.
Conceptual view of the floor plan of the 2-BU and 3-BU patterns.
In Figure 3, the green parts represent the static zones of the house, including the bedroom, study, children’s room, etc. The red parts represent the dynamic zones, including the kitchen, dining room, bathroom, living room, entrance, etc. The BUs can be moved vertically in a staggered manner to create different architectural shapes. The LDK combination pattern is the key point. The combination of the kitchen, washroom, and entrance is the key point when the LDK is divided. The focus of the problem is how to keep the remaining parts of the BU of a dynamic zone after removing the space occupied by the LD to keep the width of the bay as Lk. When the LDK is integrated, the whole of the LDK can be put into a box to ensure that the width of the openings is Lk.
To explain this clearly, the concept of an “equal bay unit” is introduced, which refers to the rectangular space where the bay is Lk. In this rectangular space, it can contain only one function room, or it can be a combination of multiple function rooms and gray spaces. An equal bay unit consisting of one functional module is simple. In contrast, smaller spatial units in a home often need to be combined with each other or with gray space to maintain a complete equal bay unit, such as kitchens, bathrooms, porches, and hallways. The combined equal bay unit in Figure 4a is suitable for placement in the dynamic zone of the BU and connects with the LD to form a complete BU. The combined equal bay unit in Figure 4b is suitable for placement in the static zone of the BU and occupies part of the static zone space. These equal bay units help to form a complete 2-BU or 3-BU floor plan.
Figure 4.
Common combined equal bay units: (a) Kitchen–entrance combinations; (b) Kitchen–bathroom combinations (K: Kitchen; W: Bathroom).
In fact, the presence of more microscopic spatial elements than equal bay modular units can also help to maintain the constraints of the design while increasing the diversity of the design, such as the horizontal living room and the horizontal bathroom. The horizontal hall has sufficient lighting, which has more ways to influence the design of the house and can better meet the requirements of residents in terms of design and layout. The layout of the horizontal hall can be divided into the following two modes. The first pattern is the one of increasing depth. When the house is at the end of the standard floor plane, place the horizontal living room in the middle of the house, and light from the side wall, which is also called the “side living room” at this time, as shown in Figure 5a. The second pattern is the one of increasing the width. This pattern can be used no matter where the apartment is on the standard floor plan. This layout improves space utilization and reduces aisle area, which is common in large-scale residential layouts using the LDK integrated design. Although it cannot be simply summarized into the design constraints agreed in this section, the typical residential layout is optimized to 3.5-BU or 4.5-BU after minor improvements, as shown in Figure 5b,c.
Figure 5.
Horizontal hall floor plan: (a) Large-depth 2-BU pattern; (b) Large-width 3.5-BU pattern; (c) Large-width 4.5-BU pattern (B: Bedroom; D: Dining room; K: Kitchen; L: Living room; P: Porch; W: Bathroom).
In the actual design project, it is difficult to have a situation where all the units meet the needs of an integer number of BUs to combine. These BUs are often partially stretched or indented in the direction of the depth or bay according to actual needs, as shown in Figure 6a. Some adjustments are made between adjacent BUs in the house to make one side bay slightly larger and the other side bay slightly smaller, but the width of the whole house remains the same, as shown in Figure 6b. Balconies, bay windows, and other designs are also added to meet more living needs.
Figure 6.
Adaptability changes of typical house types: (a) Tail-plus; (b) Bay adjustment.
In summary, taking BU conforming to the modular network scale as a basic design unit provides a prerequisite for improving the partialization rate and standardization rate of building modules. The combination modes of BU with different quantities, different depths, and different splicing methods provide a guarantee for the diversity of building volumes at the macro level. The introduction of sub-pattern concepts such as a combined equal bay unit, horizontal bathroom, and horizontal living room gives designers more flexible space in the combination of space inside the house. Based on the spatial combination patterns of the above rules, many design prototypes have been formed. On this basis, designers can perform reasonable fine-tuning according to the specific requirements of the project, so as to meet the demands of all aspects as comprehensively as possible.
- (2)
- Spatial combinatorial modal research
In this study, mode refers to the state change that may occur in the residential spatial layout in time. The time dimension is introduced into the evaluation system of residential units, which requires the house design to pay attention to the different states in the whole life cycle of the house and provide flexible response schemes. The point of studying modality is to leave enough flexibility in the house design to accommodate future uses. The research method can draw on the attitude of “everyday urbanism”, focus on specific activities and existing situations in daily life, and solve social life problems from the perspective of ordinary users. Strategies to solve problems usually include: (i) merging modular spaces to create a large space that can be used flexibly; (ii) cutting within modular spaces to create new enclosed rooms to accommodate some new functions; and (iii) replacing the functions of equal spaces to more rationally configure and use functions to cope with changes in daily life.
The research will be based on concrete life scenarios, rather than purely at the level of abstract floor plans. For example, when a family lives in a dwelling, there may be a change in population size or lifestyle, which requires a change in the layout.
Scenario 1: how to adapt to different types of families, and as a suitable type of marriage room. The living conditions of couples and newly formed families may be completely different. One is the work of the 996 (12 h a day and 6 days a week) working model. Many times, the work that cannot be completed at the company will be brought home to be continued. At home, you hope to have a quiet and independent room to think and complete the daily work tasks. The other is that although the work task is still heavy, the nature of the work determines that it is mainly based on interpersonal communication. From time to time, parties are held at home, and some work exchanges are completed at the parties, so some large space is needed. The following Figure reflects a solution. The type on the upper left side in Figure 7 arranges an independent study room, which is suitable for the quiet completion of work tasks. The house type on the upper right side is merged into a hall within the scope of two BUs. The dining room and living room are placed within the scope of the opposite hall, which is very suitable for the party scene.
Figure 7.
Schematic diagrams of spatial combination modes.
Scenario 2: from a family of two to a family of three, the apartment space needs to make adaptive changes. Use the above apartment as an example to study the coping strategies to adapt to this situation. When a new member is added to the home, the study can be transformed into a children’s room. The transformation from the upper left to the lower left is shown in Figure 7. For some families, grandparents may also be living in the apartment to help bring up children. In this case, it is also possible to consider the new isolated room as the bedroom of the parents. The transformation from the upper right to the lower left is shown in Figure 7.
Scenario 3: the privacy problem is brought about by family pension. The aging of the population has become a global phenomenon [40,41,42]. Community pension is one of the many ways of providing for the elderly. Families can ask nursing workers to regularly enter the home every day to care for the elderly who cannot take care of themselves. In this scenario, if the care worker can enter the room where the elderly live directly after entering the house, it is of positive significance to protect the privacy of the family, as shown on the lower right side in Figure 7. In the above discussion of spatial combination modes, we adopt the combination of equal bay units, which provides a greater possibility for the realization of spatial replacement. Taking the following Figure as an example, we can see how to achieve the goal through space replacement or space cutting in this scenario. After moving the living room and dining room space to the right by the distance of an open room, the space is interchanged with a bedroom. The soft partition can be used between the bedroom and the aisle to ensure internal lighting. After entering the home, the care worker can quickly reach the old person’s room without having to go through the other living spaces of the family.
4.3. Module Combination
Due to the large number of modules and the composability, this section selects 1~2 modules from each functional module for residential layout combination analysis. Then, the combined residential layout is used to carry out the combination analysis of the standard layer, so as to show the variability of the combination and better highlight the diversity of modular design.
- (1)
- Function module combination and traffic modules
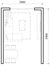
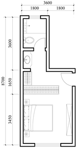
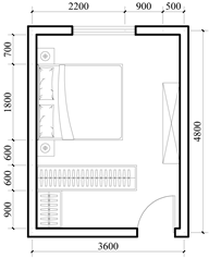
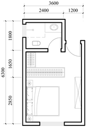
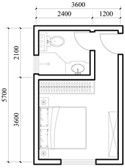
The modularization of the house type is divided into two steps. First of all, the BU theory is used to put the basic functions into the box, which is equivalent to giving the modules of the house a framework that meets the requirements of the assembly structure. Then, the specific typical modules will be arranged in this framework and combined with the practical situations to form economical and practical house types, as shown in Figure 8, Figure 9 and Figure 10. Figure 8 and Figure 9 show the 2-BU and 3-BU house plans, respectively, combined using the basic functional modules, from which the adaptive adjustments shown in Figure 6 are seen to be applied here. The previously mentioned house plans with 3.5-BU and 4.5-BU due to the inclusion of a horizontal hall are shown in Figure 10. It is important to make flexible adjustments as needed during the combination process.
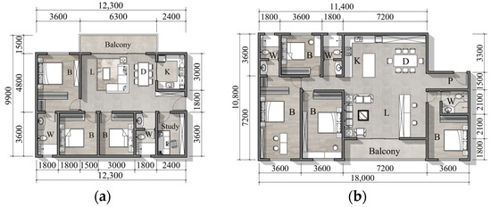
Figure 8.
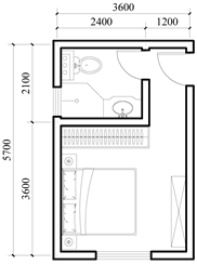
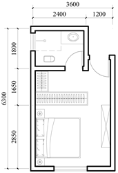
Typical plans of 2-BU (unit: mm): (a) Apartment layout A1; (b) Apartment layout A2; (c) Apartment layout A3.
Figure 9.
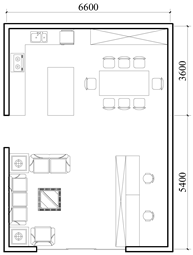
Typical plans of 3-BU (unit: mm): (a) Apartment layout B1; (b) Apartment layout B2.
Figure 10.
Typical plans with the large width and horizontal hall (unit: mm): (a) Apartment layout C1; (b) Apartment layout C2.
In the design of residential functional modules, almost all modules belong to the design and combination of the plan. Combining the functional modules into the apartment layout and the apartment layout into the standard floor plan, the whole design process is completed on the basis of the plan, and there is no connection between plans. The traffic module is taken as the main vertical design in the whole building system, and the various plane modules are connected as a whole, just like the trunk and branches of a tree, which are dispersed from the center. The layout is combined with the traffic module as the center so that the public area can be effectively controlled. In order to achieve the control of common areas, the transportation part of residential design is usually more compact and standardized. As a result, many residential design schemes share a transportation core, and it is also appropriate to introduce modular design to this section to limit the overall specification.
Taking the model of a residential building below 54 m as an example, under the premise of satisfying the building fire protection code [43], the traffic modules are analyzed and summarized, as shown in Figure 11. The evacuation stairs mainly use the conventional two-flight stairs. Each residential unit should be equipped with no less than two elevators, one of which should be set up as a fire elevator. The core tube of the tower type can be roughly divided into two types: corridors and no corridors. When there are many entrance doors that are scattered, the traffic module T1 is used, and each residential layout is connected in series by an inner corridor. When the entrance door is less or more concentrated, the traffic module T2 can be used, and the entrance door directly opens to the waiting hall or the front room. The core tube of the slab type is generally dispersed at both ends. When there are many residential layout combinations and the residential layout is large, the traffic module T3 can be used. The length “X” of the corridor can be adjusted according to the actual situation, but it should be noted that the distance from the entrance door to the safe evacuation exit needs to meet the requirements of fire protection. In this case, a staircase should be used as much as possible to solve the evacuation to ensure that the shared area is within a reasonable range.
Figure 11.
Traffic module (unit: mm): (a) Tower traffic module T1; (b) Tower traffic module T2; (c) Slab traffic module T3.
- (2)
- Apartment layout combination
According to the change in module selection and the number of modules, there will be numerous combination plans. In practice, not all apartment layouts can be combined, and the designer needs to screen and compare the modules to find a more economical and practical one. It is not usually the case that there is only one dwelling on a standard floor, so in this case, the designer needs to take into account the need for combinations between apartment layouts. When the units are combined into a tower type, this makes it necessary to have at least one gable to combine with the other units, and the combined gable should not have windows. If three or more layouts are to be combined in a slab type, an intermediate layout is required to connect the layouts. Generally speaking, the intermediate household as a connection is square and not too large, because a household that is too large will cause the side household to exceed the evacuation distance requirement, and a square one will be more suitable for splicing. Apartment layout A2 in Figure 8 is a form of intermediate house. Side households are less restrictive and there are more options.
The combination of apartment layouts is mainly determined by the number of households and the combination with vertical transportation, such as one elevator for two households, one elevator for four households, or even more. It can be combined in the form of a tower or a slab residence, which can be decided according to the actual project requirements. Different residential layouts can be combined into a standard plane, and different residential layouts can be replaced in the frame of the same standard plane, just as the functional modules in different residential layouts can be replaced.
Because of the limited space, this study only takes a few commonly used combinations as examples. For example, apartment layouts A1 and A2 are assembled with traffic module T1 into a tower-type building after being rotated and mirrored; apartment layout B1 is assembled with traffic module T2 into a tower-type building after being mirrored; and apartment layout A2 is assembled into a slab-type building with apartment layout A2 (A3 or C2) and a T3-type traffic module, respectively, as shown in Figure 12.
Figure 12.
Combined plans (unit: mm): (a) Combination of layouts A1 and A2; (b) Self-combination of layout B1; (c) Self-combination of layout A2; (d) Combination of layouts A2 and A3; (e) Combination of layouts A2 and C2.
It should be noted that in the combination process, it is necessary to fine-tune various types and modules according to the actual situation. The choice of house type combination should be based on the actual needs and the situation of the resident population. At the same time, attention should be paid to the use of space and living comfort. In urban planning and residential design, the needs and characteristics of different groups of people should be fully considered, and a variety of residential layouts should be provided in order to meet the different needs of society.
5. Discussion
5.1. Contribution and Application
In this study, a method applicable to the design of assembled residential buildings is proposed, which realizes the modular design of buildings through “system decomposition—module design—module combination”. A residential building under 54 m in China is taken as an example, and the design method proposed in this study is used to carry out a sample design of a prefabricated residential building with reference to the requirements of the code [35,37,38,39,43], which verifies the practicability of the method. This modular design method has the following advantages.
Firstly, it is practical and efficient. Starting from the modules that make up a huge system, the combination is carried out step by step, avoiding the problem of having no way to start the direct design. The proposed design method of “modulus, pattern, and mode” solves the problem of unsuccessful combination due to the neglect of module combination requirements during module design. The design results in the process can be used directly when encountering similar scenarios, which can significantly improve efficiency.
Secondly, integrity and flexibility. The proposed BU concept facilitates the combination of modules and structural design by limiting the bays and depths. This approach allows designers to customize different styles of modular units according to the functional requirements, spatial layout, and applicable population of different floors, thus meeting the individual needs of customers. After meeting the needs of structural design and determining the location of bearing walls, it is possible to combine and divide the space by removing and adding partition walls to change the function of the space.
Thirdly, improved quality and reduced cost. The degree of design standardization is improved by applying modular design to prefabricated buildings. Standardization is significant for mass production [44], and this production method can improve the quality of prefabricated components and reduce production costs.
In the application of the design method proposed in this study, attention should be paid to the idea of overall design. It is necessary to understand all the design processes before designing, which is more conducive to improving the design efficiency and applicability. Designers need to be in accordance with the positioning of building products and pay attention to the selection of the size of the functional space in the module design. The design organizations can carry out a wide range of module designs and combinations for various types of residential buildings to form a module library with a certain scale. This makes it possible to combine the modules as desired or even to use the combined plans directly with local adjustments.
5.2. Limitations and Future Work
This research still has limitations. Firstly, considering the structural design, the BU theory is proposed in this study, so the design method is more suitable for more regular prefabricated buildings. For buildings with irregular planes or small spaces, modules can be staggered or reduced as needed. Secondly, the typical illustrations of the design refer more to the requirements of residential buildings under 54 m in China, and the overall design is more in favor of economic housing. Outside of this range, the building needs to be designed with reference to the design method proposed in this study. It should be noted that the applicability of the methodology itself is not limited to the application of the typical plan examples. Since these designs are dependent on the master plan of the building, its location, individual needs, and so on, the contents of the codes on which the design is based are not presented in this study. Thirdly, this study prefers qualitative analysis and lacks quantitative assessment.
Future work can be carried out to address the limitations mentioned. The design methodology can be improved by exploring the modular design of irregular or multi-axis symmetrical buildings. This research will be integrated with information technology in the application process to realize data interactions between designers and form a database of the design results for easy access during the design phase to reduce repetitive design. In addition, special research projects can be carried out to evaluate the cost impact of different modular design strategies, or experiments can be designed to verify the effect of modular design on structural integrity and user adaptability. This quantitative analysis can demonstrate the advantages of this modular design method more intuitively and is more convincing and credible. These methods are of great significance in extending the application of research results and promoting the development of prefabricated construction.
6. Conclusions
As an important way to realize the industrialization of buildings, it is of great significance to improve the production quality and efficiency of prefabricated buildings for building safety and economic benefits. Through the research and analysis of the design method, a modular design method for prefabricated residential buildings is proposed and related designs are carried out for a residence within 54 m. The specific conclusions are drawn as follows.
- (1)
- The application route of modular design theory in the standardized design of prefabricated residential buildings is constructed, that is, “system decomposition—module design—module combination”.
- (2)
- Based on the practical application route, the residential building is decomposed into various functional modules according to the decomposition principles. Practical design solutions for basic functional spaces of residential buildings based on modular coordination are proposed—bedroom modules, living room modules, dining room modules, kitchen modules, bathroom modules, auxiliary modules, and so on.
- (3)
- A design method for prefabricated residential buildings based on the trinity of “modulus, pattern, and mode” is proposed. Using BUs with equal bay units as the basic puzzle elements, the efficiency of resource utilization is improved to a greater extent through a standardized modulus and pattern. The focus on mode makes the system-level design more flexible.
- (4)
- Based on the principle and method of module combination, functional modules are combined to construct a modular design combination scheme for prefabricated residential buildings. The basic functional modules are combined into basic apartment layouts according to the principle of functional requirements. Through the recombination of functional modules such as house types, auxiliary modules, and traffic modules, a complete standard layer plan is formed.
Author Contributions
Conceptualization, X.L. and X.Z.; methodology, X.L.; software, S.L.; validation, X.Z., Y.X. and S.L.; formal analysis, C.D.; investigation, X.L., C.L. and C.D.; resources, Y.X.; data curation, C.L.; writing—original draft preparation, X.Z. and Y.X.; writing—review and editing, X.L., C.L. and Q.C.; visualization, X.Z. and Q.C.; supervision, X.L.; project administration, X.L.; funding acquisition, X.L. All authors have read and agreed to the published version of the manuscript.
Funding
This research was funded by the National Natural Science Foundation of China (Grant No. 52178179).
Data Availability Statement
Data are contained within the article.
Conflicts of Interest
Authors C.L., Y.X. and S.L. were employed by Hunan Architectural Design Institute Group Co., Ltd. Author C.D. was employed by Hunan Academy of Building Research Co., Ltd. The remaining authors declare that the research was conducted in the absence of any commercial or financial relationships that could be construed as a potential conflict of interest.
References
- Kazaz, A.; Ulubeyli, S. Physical factors effecting productivity of Turkish construction workers. In Proceedings of the 22nd Annual ARCOM Conference, Birmingham, UK, 4–6 September 2006. [Google Scholar]
- Lachimpadi, S.K.; Pereira, J.J.; Taha, M.R.; Mokhtar, M. Construction waste minimisation comparing conventional and precast construction (Mixed system and IBS) methods in high-Rise buildings: A Malaysia case study. Resour. Conserv. Recycl. 2012, 68, 96–103. [Google Scholar] [CrossRef]
- Chen, Q.; Cai, B.; Lin, P. Introduction to Prefabricated Buildings; China Architecture & Building Press: Beijing, China, 2017. [Google Scholar]
- Jin, Z.; Xia, S.; Cao, H.; Geng, X.; Cheng, Z.; Sun, H.; Jia, M.; Liu, Q.; Sun, J. Evaluation and optimization of sustainable development level of construction industrialization: Case Beijing-Tianjin-Hebei region. Sustainability 2022, 14, 8245. [Google Scholar] [CrossRef]
- Costa, S.; Carvalho, M.S.; Pimentel, C.; Duarte, C. A systematic literature review and conceptual framework of construction industrialization. J. Constr. Eng. Manag. 2023, 149, 03122013. [Google Scholar] [CrossRef]
- He, R.; Li, M.; Gan, V.J.L.; Ma, J. BIM-enabled computerized design and digital fabrication of industrialized buildings: A case study. J. Clean. Prod. 2021, 278, 123505. [Google Scholar] [CrossRef]
- Sun, S.; Chen, Y.; Ma, L.; Xing, Y. Analysis of contribution factors of prefabricated buildings based on carbon neutrality. Concrete 2022, 11, 133–137. [Google Scholar]
- Tavares, V.; Gregory, J.; Kirchain, R.; Freire, F. What is the potential for prefabricated buildings to decrease costs and contribute to meeting EU environmental targets? Build. Environ. 2021, 206, 108382. [Google Scholar] [CrossRef]
- Li, Y.; Gao, Y.; Meng, X.; Liu, X.; Feng, Y. Assessing the air pollution abatement effect of prefabricated buildings in China. Environ. Res. 2023, 239, 117290. [Google Scholar] [CrossRef]
- Jaillon, L.; Poon, C. Design issues of using prefabrication in Hong Kong building construction. Constr. Manag. Econ. 2010, 28, 1025–1042. [Google Scholar] [CrossRef]
- Zhang, J.; Cai, J.; Su, Y.; He, Q.; Lin, X. Research and development and pilot application of innovative technology of prefabricated concrete. In Proceedings of the 8th International Conference on Civil Engineering, Nanchang, China, 4–5 December 2021. [Google Scholar]
- Anastasiades, K.; Goffin, J.; Rinke, M.; Buyle, M.; Audenaert, A.; Blom, J. Standardisation: An essential enabler for the circular reuse of construction components? A trajectory for a cleaner European construction industry. J. Clean. Prod. 2021, 298, 126864. [Google Scholar] [CrossRef]
- Jaillon, L.; Poon, C.S. The evolution of prefabricated residential building systems in Hong Kong: A review of the public and the private sector. Autom. Constr. 2009, 18, 239–248. [Google Scholar] [CrossRef]
- Bílková, A.; Kocurová, P.; Zdařilová, R. Standards of the universal design to stabilize the housing quality. In Advances and Trends in Engineering Sciences and Technologies III; CRC Press: London, UK, 2019; pp. 307–312. [Google Scholar]
- Nowakowski, P. Ergonomic shaping of functional and spatial program of housing. In Proceedings of the AHFE 2019 International Conference on Human Factors in Architecture, Sustainable Urban Planning and Infrastructure, Washington, DC, USA, 24–28 July 2019. [Google Scholar]
- Wu, L.; Bai, Y.; Tao, X. Research on the realization path of standardized design of prefabricated buildings. Sichuan Building Materials 2021, 47, 45–46. [Google Scholar]
- Xu, Z.; Zayed, T.; Niu, Y. Comparative analysis of modular construction practices in mainland China, Hong Kong and Singapore. J. Clean. Prod. 2020, 245, 118861. [Google Scholar] [CrossRef]
- Thai, H.-T.; Ngo, T.; Uy, B. A review on modular construction for high-rise buildings. Structures 2020, 28, 1265–1290. [Google Scholar] [CrossRef]
- Isaac, S.; Bock, T.; Stoliar, Y. A methodology for the optimal modularization of building design. Autom. Constr. 2016, 65, 116–124. [Google Scholar] [CrossRef]
- Almashaqbeh, M.; El-Rayes, K. Optimizing the modularization of floor plans in modular construction projects. J. Build. Eng. 2021, 39, 102316. [Google Scholar] [CrossRef]
- Pan, W.; Wang, Z.; Zhang, Y. Module equivalent frame method for structural design of concrete high-rise modular buildings. J. Build. Eng. 2021, 44, 103214. [Google Scholar] [CrossRef]
- Yang, P.; Wang, X. Exploration of high-rise building design from the perspective of standardization. J. Prog. Civ. Eng. 2023, 5. [Google Scholar] [CrossRef]
- Li, N.; Feng, Y.; Liu, J.; Ye, X.; Xie, X. Research on the modular design and application of prefabricated components based on KBE. Buildings 2023, 13, 2980. [Google Scholar] [CrossRef]
- Viana, D.; Tommelein, I.; Formoso, C. Using modularity to reduce complexity of industrialized building systems for mass customization. Energies 2017, 10, 1622. [Google Scholar] [CrossRef]
- Pakkanen, J.; Juuti, T.; Lehtonen, T.; Mämmelä, J. Why to design modular products? Procedia CIRP 2022, 109, 31–36. [Google Scholar] [CrossRef]
- Roxas, C.L.C.; Bautista, C.R.; Dela Cruz, O.G.; Dela Cruz, R.L.C.; De Pedro, J.P.Q.; Dungca, J.R.; Lejano, B.A.; Ongpeng, J.M.C. Design for manufacturing and assembly (DfMA) and design for deconstruction (DfD) in the construction industry: Challenges, trends and developments. Buildings 2023, 13, 1164. [Google Scholar] [CrossRef]
- Girmscheid, G.; Rinas, T. Business design modeling for industrialization in construction: Cooperative approach. J. Archit. Eng. 2012, 18, 164–175. [Google Scholar] [CrossRef]
- Chiriac, N.; Hölttä-Otto, K.; Lysy, D.; Suk Suh, E. Level of modularity and different levels of system granularity. J. Mech. Des. 2011, 133, 101007. [Google Scholar] [CrossRef]
- Komoto, H.; Tomiyama, T. Multi-disciplinary system decomposition of complex mechatronics systems. CIRP Ann. 2011, 60, 191–194. [Google Scholar] [CrossRef]
- Ghannad, P.; Lee, Y.-C. Optimizing modularization of residential housing designs for rapid postdisaster mass production of housing. J. Constr. Eng. Manag. 2023, 149, 04023046. [Google Scholar] [CrossRef]
- Gong, T.; Yang, J.; Hu, H.; Xu, F. Construction technology of off-site precast concrete buildings. Front. Eng. Manag. 2015, 2, 122. [Google Scholar] [CrossRef]
- Piran, F.A.S.; Lacerda, D.P.; Camargo, L.F.R.; Dresch, A. Effects of product modularity on productivity: An analysis using data envelopment analysis and malmquist index. Res. Eng. Des. 2020, 31, 143–156. [Google Scholar] [CrossRef]
- Tan, T.; Mills, G.; Papadonikolaki, E.; Li, B.; Huang, J. Digital-enabled design for manufacture and assembly (DfMA) in offsite construction: A modularity perspective for the product and process integration. Archit. Eng. Des. Manag. 2023, 19, 267–282. [Google Scholar] [CrossRef]
- Tong, S. Design Method and Application of Modularization Principle; China Standard Press: Beijing, China, 2000. [Google Scholar]
- JGJ/T 445-2018; Standard for Size Coordination of Industrialized Residential Buildings. China Architecture & Building Press: Beijing, China, 2018.
- Patelia, K.; Pitroda, J.; Bhavsar, J.J. Application of modular coordination concept in construction industry. In Proceedings of the National Conference CRDCE13, Gujarat, India, 20–21 December 2013. [Google Scholar]
- GB 50352-2019; Uniform Standard for Design of Civil Buildings. China Architecture & Building Press: Beijing, China, 2019.
- GB/T 50002-2013; Standard for Modular Coordination of Building. China Architecture & Building Press: Beijing, China, 2014.
- GB 50096−2011; Design Code for Residential Buildings. China Architecture & Building Press: Beijing, China, 2011.
- Chen, Q.; Zhang, Z.; Mao, Y.; Deng, R.; Shui, Y.; Wang, K.; Hu, Y. Investigating the influence of age-friendly community infrastructure facilities on the health of the elderly in China. Buildings 2023, 13, 341. [Google Scholar] [CrossRef]
- Rosenberg, M.; Tomioka, S.; Barber, S.L. Research to inform health systems’ responses to rapid population ageing: A collection of studies funded by the WHO Centre for Health Development in Kobe, Japan. Health Res. Policy Syst. 2022, 20, 128. [Google Scholar] [CrossRef]
- Tan, M.P. Healthcare for older people in lower and middle income countries. Age Ageing 2022, 51, afac016. [Google Scholar] [CrossRef] [PubMed]
- GB 55037-2022; General Code for Fire Protection of Buildings and Constructions. China Planning Press: Beijing, China, 2023.
- Wang, Z.; Zhang, M.; Sun, H.; Zhu, G. Effects of standardization and innovation on mass customization: An empirical investigation. Technovation 2016, 48–49, 79–86. [Google Scholar] [CrossRef]
Disclaimer/Publisher’s Note: The statements, opinions and data contained in all publications are solely those of the individual author(s) and contributor(s) and not of MDPI and/or the editor(s). MDPI and/or the editor(s) disclaim responsibility for any injury to people or property resulting from any ideas, methods, instructions or products referred to in the content. |
© 2024 by the authors. Licensee MDPI, Basel, Switzerland. This article is an open access article distributed under the terms and conditions of the Creative Commons Attribution (CC BY) license (https://creativecommons.org/licenses/by/4.0/).
































