Research on Opening Design Guidelines for Zero-Energy House Based on the Family Life Cycle
Abstract
1. Introduction
2. Methodology
2.1. Research Framework
2.2. Family Life Cycle Theory
- Beginning families;
- Family extension;
- Family extension;
- Families in the middle years;
- Aging families.
3. Analysis of Residents’ Behavioral Requirements and House Space Organization Based on Family Life Cycle
3.1. Analysis of Residents’ Behavioral Requirements at Various Stages of Family Structure Changes
- Basic Requirements: Refers to the primary activities, i.e., residential behaviors performed by residents in a housing unit in response to occupancy relationships.
- Auxiliary Requirements: Complementary to basic needs, i.e., the basic interactive behaviors that occur in a building after the residents have completed their occupancy behaviors.
- Composite Requirements: Activities that residents engage in occasionally in the house, i.e., other interactions that may occur after residents have satisfied primary occupancy and interaction behaviors. Composite requirements reflect the other functions that residents may perform in the house. Moreover, the choice of that requirement is phased and uncertain. Therefore, the quantity and frequency of satisfying the residents’ composite requirements reflect the efficiency of the residents’ behavior with the residents.
3.2. Correspondence between Residents’ Behavioral Requirements and Spatial Functions at Various Stages of the Life Cycle
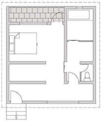
3.3. Beginning Families Stage Zero-Energy House Organization
3.4. Residents’ Spatial Function Changes Based on the Family Life Cycle
- Beginning families
- Family Extension
- Families as launching centers and families in the middle years
- Aging families
4. Analysis of Openings Based on Residents’ Behavioral Requirements Changes
4.1. Openings Layout for Zero-Energy Houses
4.2. Parametric Control of the Zero-Energy House Opening Scales
5. Opening Design Strategy
- Eaves
- Low-E Glass
- Wall Greening
- Casement Window
- Adjustable Reflector
- Light-Colored Material Painting
- Adjustable Exterior Sunshade Components
- Translucent Space Partition
6. Conclusions
Author Contributions
Funding
Data Availability Statement
Conflicts of Interest
References
- Global Alliance for Buildings and Construction. The Global Status Report for Buildings and Construction (Buildings-GSR); The UNEP: Nairobi, Kenya, 2022. [Google Scholar]
- Qin, Y.; Wang, L.; Yu, M.; Meng, X.; Fan, Y.; Huang, Z.; Luo, E.; Pijanowski, B. The spatio-temporal evolution and transformation mode of human settlement quality from the perspective of “production-living-ecological” spaces—A case study of Jilin Province. Habitat Int. 2024, 145, 103021. [Google Scholar] [CrossRef]
- Manioğlu, G.; Koçlar Oral, G. Effect of courtyard shape factor on heating and cooling energy loads in hot-dry climatic zone. Energy Procedia 2015, 78, 2100–2105. [Google Scholar] [CrossRef]
- Li, D.H.; Yang, L.; Lam, J.C. Zero energy buildings and sustainable development implications—A review. Energy 2013, 54, 1–10. [Google Scholar] [CrossRef]
- Torcellini, P.; Pless, S.; Deru, M.; Crawley, D. Zero Energy Buildings: A Critical Look at the Definition; NREL: Golden, Colorado, 2006.
- Marszal, A.J.; Heidelberg, P.; Bourrelle, J.S.; Musall, E.; Voss, K.; Sartori, I.; Napolitano, A. Zero Energy Building—A review of definitions and calculation methodologies. Energy Build. 2011, 43, 971–979. [Google Scholar] [CrossRef]
- Eguaras-Martínez, M.; Vidaurre-Arbizu, M.; Martín-Gómez, C. Simulation and evaluation of Building Information Modeling in a Real Pilot Site. Appl. Energy 2014, 114, 475–484. [Google Scholar] [CrossRef]
- Kim, J.; Hong, T.; Jeong, J.; Koo, C.; Kong, M. An integrated psychological response score of the occupants based on their activities and the indoor environmental quality condition changes. Build. Environ. 2017, 123, 66–77. [Google Scholar] [CrossRef]
- De Alegria Mancisidor, I.M.; De Basurto Uraga, P.D.; De Alegria Mancisidor, I.M.; De Arbulo Lopez, P.R. European Union’s renewable energy sources and energy efficiency policy review: The Spanish perspective. Renew. Sustain. Energy Rev. 2009, 13, 100–114. [Google Scholar] [CrossRef]
- Ma, Z.J.; Wang, S.W. Building energy research in Hong Kong: A review. Renew. Sustain. Energy Rev. 2009, 13, 1870–1883. [Google Scholar] [CrossRef]
- European Commission. EU Energy Statistical Pocketbook and Country Datasheets. Directorate-General for Energy. Available at EU Energy Statistical Pocketbook and Country Datasheets. 2023. Available online: https://energy.ec.europa.eu/data-and-analysis/eu-energy-statistical-pocketbook-and-country-datasheets_en (accessed on 3 August 2024).
- Chen, S.; Zhang, G.; Xia, X.; Chen, Y.; Setunge, S.; Shi, L. The impacts of occupant behavior on building energy consumption: A review. Sustain. Energy Technol. Assess. 2021, 45, 101212. [Google Scholar] [CrossRef]
- Joronen, K.; Rantanen, A. Family Life Cycle Stages. In Encyclopedia of Quality of Life and Well-Being Research; Michalos, A.C., Ed.; Springer: Dordrecht, The Netherlands, 2014. [Google Scholar] [CrossRef]
- Hill, R.; Hansen, D.A. The Identification of Conceptual Frameworks Utilized in Family Study. Marriage Fam. Living 1960, 22, 299–311. [Google Scholar] [CrossRef]
- Doling, J. The Family Life Cycle and Housing Choice. Urban Stud. 1976, 13, 55–58. [Google Scholar] [CrossRef]
- Glick, P.C. The Family Cycle. Am. Sociol. Rev. 1947, 12, 164–174. [Google Scholar] [CrossRef]
- Duvall, E.M. Family Development, 2nd ed.; LippincottP: Philadelphia, PA, USA, 1962. [Google Scholar]
- Umar, T. Developing Toolkits and Guidelines to Improve Safety Performance in the Construction Industry in Oman. Ph.D. Thesis, Kingston University, Surrey, UK, 2020. [Google Scholar] [CrossRef]
- Glen, H.; Elder, J.R. Families and Lives: Some Developments in Life-Course Studies. J. Fam. Hist. 1987, 12, 179–199. [Google Scholar] [CrossRef]
- Nash, S.C.; Feldman, S.S. Sex Role and Sex-Related Attributions: Constancy and Change Across the Family Life Cycle. Adv. Dev. Psychol. 2013, 1–35. [Google Scholar]
- Lansing, J.B.; Kish, L. Family Life Cycle as an Independent Variable. Am. Sociol. Rev. 1957, 22, 512–519. [Google Scholar] [CrossRef]
- McAuley, W.J.; Nutty, C.L. Residential Preferences and Moving Behavior: A Family Life-Cycle Analysis. J. Marriage Fam. 1982, 44, 301–309. [Google Scholar] [CrossRef]
- Stapleton, C.M. Reformulation of the Family Life-Cycle Concept: Implications for Residential Mobility. Environ. Plan. A Econ. Space 1980, 12, 1103–1118. [Google Scholar] [CrossRef]
- Maurice, W.Y.; Van Arsdol, D. Residential Mobility, Age, and the Life Cycle. J. Gerontol. 1977, 32, 211–221. [Google Scholar]
- McLeod, P.B.; Ellis, J.R. Housing Consumption Over the Family Life Cycle: An Empirical Analysis. Urban Stud. 1982, 19, 177–185. [Google Scholar] [CrossRef]
- McLeod, P.B.; Ellis, J.R. Alternative Approaches to the Family Life Cycle in the Analysis of Housing Consumption. J. Marriage Fam. 1983, 45, 699–708. [Google Scholar] [CrossRef]
- Preston, V.; Taylor, S.M. The family life cycle, leisure activities, and residential area evaluation. Can. Geogr. Can. 1981, 25, 46–59. [Google Scholar] [CrossRef]
- Guo, H.; Zheng, S.; Hu, Y.; Hong, J.; Wu, X.; Tang, M. Embodied energy use in the global construction industry. Appl. Energy 2019, 256, 113838. [Google Scholar] [CrossRef]
- Fritzsche, D.J. An Analysis of Energy Consumption Patterns by Stage of Family Life Cycle. J. Mark. Res. 1981, 18, 227–232. [Google Scholar] [CrossRef]
- Frey, C.J.; LaBay, D.G. A comparative study of energy consumption and conservation across family life cycle. Adv. Consum. Res. 1983, 10, 641–646. [Google Scholar]
- Keoleian, G.A.; Blanchard, S.; Reppe, P. Life-Cycle Energy, Costs, and Strategies for Improving a Single-Family House. J. Ind. Ecol. 2008, 4, 135–156. [Google Scholar] [CrossRef]
- Umar, T. Making future floating cities sustainable: A way forward. Proc. Inst. Civ. Eng.—Urban Des. Plan. 2020, 173, 214–237. [Google Scholar] [CrossRef]




| Stages of Family Development | Basic Requirements | Auxiliary Requirements | Composite Requirements |
|---|---|---|---|
| Beginning families | Residential requirement | Bath requirements, dressing requirements, cleaning requirements, meeting requirements, storage requirements | - |
| Family extension | Increased requirements for the number of residential spaces | Bath requirements, dressing requirements, cleaning requirements | Increased space requirements for children’s use |
| Families as launching centers | Children’s independent residence requirements | Bath requirements, dressing requirements, cleaning requirements, meeting requirements | Increased requirements for the area of meeting space |
| Families in the middle years | Children’s independent residence requirements, decreased frequency of children living in the space | Increased demand for activity space | |
| Aging families | Expanded requirements for residential space | Bath requirements, dressing requirements, cleaning requirements | Increased requirements for the use of space by caregivers |
| Residents’ Behavioral Requirements | Basic Requirements | Auxiliary Requirements | Composite Requirements | |||||
|---|---|---|---|---|---|---|---|---|
| Family Extension | Aging Families | |||||||
| Full-stage | Residential Requirement | Bath requirements, dressing requirements, cleaning requirements, meeting requirements, storage requirements | - | |||||
| Family Extension | Increased space requirements for children | |||||||
| Aging families | Increased space requirements for caregivers | |||||||
| Function | Residential Function | Dressing Function | Bath Function | Cleaning Function | Meeting Function | Storage Function | Children Use Function | Caregiver Use Function |
| Space | Bedroom | Dresser | Shower | Restroom | Living room | Cloakroom | Children room | Caregiver room |
| No. | Space Name | Function | Space Module Relationship |
|---|---|---|---|
| ① | Bedroom | Residential Function | 4n |
| ② | Cloakroom | Clothing storage Function | 2n |
| ③ | Living room | Meeting Function | 3n |
| ④ | Bath space | Bath Function, Dressing Function, Cleaning Function | 3n |
| ⑤ | Shower | Bath Function | n |
| ⑥ | Dresser | Dressing Function | n |
| ⑦ | Buffer space | Articulation of other spaces | n |
| ⑧ | Restroom | Cleaning Function | n |
| No. | Name | Spatial Functions | Factors Affecting Energy Consumption | Types |
|---|---|---|---|---|
| ① | Bedroom | Residential Function | High lighting and ventilation requirements | Served space |
| ② | Cloakroom | Clothing Storage Function | No lighting and ventilation requirements | Service space |
| ③ | Living room | Meeting Function | High lighting and ventilation requirements | Served space |
| ④ | Bath space | Bath Function, Dressing Function, Cleaning Function | Lower lighting requirements, higher ventilation requirements | Service space |
| ⑤ | Shower | Bath Function | Lower lighting requirements, higher ventilation requirements | |
| ⑥ | Dresser | Dressing Function | High lighting requirements | |
| ⑦ | Buffer space | Articulation of other spaces | No lighting and ventilation requirements | |
| ⑧ | Restroom | Cleaning Function | Lower lighting requirements, higher ventilation requirements |
| Stages of Family Development | Layout | Function Changes | New Space | Area Changes | Additional Need for Light | Openings Layout Requirements |
|---|---|---|---|---|---|---|
| Beginning families | ![]() | - | - | - | - | High natural lighting requirements |
| Family Extension | ![]() | Checkroom to children’s room | No | No changes | Yes | High natural lighting requirements |
| Families as launching centers | ![]() | Checkroom merged with Living room | Yes | Increase | No | High natural lighting requirements |
| Families in the middle years | ||||||
| Aging families | ![]() | Checkroom merged with bedroom | Yes | Slight increase | No | High natural lighting requirements |
![]() | Checkroom to caregiver room | No | No changes | Yes | Low natural lighting requirements |
| Stages of Family Development | No. | Name | Aera | The Openings |
|---|---|---|---|---|
| Beginning families | ① | Bedroom | No changes | Exterior door A |
| Family Extension | ||||
| Families as launching centers | ||||
| Families in the middle years | ||||
| Aging families (Stage 1) | Increase | Window A | ||
| Beginning families | ② | Cloakroom | No changes | Interior Door A |
| Family Extension | Children room | |||
| Families as launching centers | - | Functional replacement | Window E | |
| Families in the middle years | ||||
| Aging families (Stage 1) | ||||
| Aging families (Stage 2) | Caregiver room | No changes | ||
| Beginning families | ③ | Living room | No changes | Exterior door B |
| Family Extension | Window B | |||
| Families as launching centers | Living room | Increase | Interior Door B | |
| Families in the middle years | ||||
| Aging families | Living room | Decrease | ||
| All stages in family life cycle | ④ | Bath space | No changes | Window C |
| Window D | ||||
| Interior Door A | ||||
| Interior Door B | ||||
| Sliding Door A | ||||
| Sliding Door B | ||||
| All stages in family life cycle | ⑤ | Shower | No changes | Window C |
| Sliding Door A | ||||
| All stages in family life cycle | ⑥ | Dresser | No changes | Sliding Door A |
| ⑦ | Buffer space | No changes | Interior Door B | |
| All stages in family life cycle | ⑧ | Restroom | No changes | Window D |
| Sliding Door B |
| No | Name | Space Aera | Openings | Scales | Aera | R | k | J | |||||
|---|---|---|---|---|---|---|---|---|---|---|---|---|---|
| Data | Standard Data | Data | Standard Data | Data | Enhancement Ratio | ||||||||
| ① | Bedroom | 4n | Exterior door A | 900 × 2100 mm | 1.89 m2 | - | - | - | - | - | - | More than 1.41 m2 | 1.28 |
| Window A | 2100 × 2100 mm | 4.41 m2 | 0.447 | 1/6~1/8 | 6D/2.815-1.4 | 2.13D-1.4 | More than 0.73 | 3.2193 m2 | |||||
| ⑨ | Cloakroom | 2n | Interior Door A | 800 × 2100 mm | 1.68 m2 | - | - | - | - | - | - | More than 0.63 m2 | 2.97 |
| Children room | |||||||||||||
| Caregiver room | |||||||||||||
| Window E | 450 × 1500 mm | 0.675 m2 | 0.152 | 1/6~1/8 | - | - | More than 0.73 | - | More than 1.41 m2 | - | |||
| ② | Living room | 3n | Exterior door B | 900 × 2100 mm | 1.89 m2 | - | - | - | - | - | - | More than 1.04 m2 | 5.44 |
| Window B | 2400 × 1500 mm | 3.6 m2 | 0.495 | 1/6~1/4 | 6D/1.84-1.4 | 3.26D-1.4 | More than 1.86 | 6.696 m2 | |||||
| Interior Door B | 800 × 2100 mm | 1.68 m2 | - | - | - | - | - | - | |||||
| ④ | Bath space | 3n | Window C | 450 × 1500 mm | 0.675 m2 | 0.123 | Not less than 1/6 | 6D/0.707-1.4 Or 6D/0.34-1.4 | 8.57D-1.4 Or 17.65D-1.4 | - | 2.025 m2 | More than 1.57 m2 | 1.58 |
| Window D | 450 × 1500 mm | 0.675 m2 | 2.025 m2 | ||||||||||
| Interior Door A | 800 × 2100 mm | 1.68 m2 | - | - | - | - | - | - | |||||
| Interior Door B | 800 × 2100 mm | 1.68 m2 | - | - | - | - | - | - | |||||
| Sliding Door A | 800 × 2100 mm | 1.68 m2 | - | - | - | - | - | - | |||||
| Sliding Door B | 800 × 2100 mm | 1.68 m2 | - | - | - | - | - | - | |||||
| ⑤ | Shower | n | Window C | 450 × 1500 mm | 0.675 m2 | 0.139 | Not less than 1/6 | 6D/0.707-1.4 | 8.57D-1.4 | 3 | 2.025 m2 | More than 0.69 m2 | 1.93 |
| Sliding Door A | 800 × 2100 mm | 1.68 m2 | - | - | - | - | - | - | |||||
| ⑥ | Dresser | n | Sliding Door A | 800 × 2100 mm | 1.68 m2 | - | - | - | - | - | - | More than 0.44 m2 | Indirect lighting |
| ⑦ | Buffer space | n | Interior Door B | 800 × 2100 mm | 1.68 m2 | - | - | - | - | - | - | More than 0.21 m2 | |
| ⑧ | Restroom | n | Window D | 450 × 1500 mm | 0.675 m2 | 0.561 | Not less than 1/6 | 6D/0.34-1.4 | 17.65D-1.4 | 3 | 2.025 m2 | More than 0.17 m2 | 10.91 |
| Sliding Door B | 800 × 2100 mm | 1.68 m2 | - | - | - | - | - | - | |||||
| No. | Name | The Openings | Scales | Aera | Façade Area | G | ||
|---|---|---|---|---|---|---|---|---|
| Data | Standard Data | Enhancement Ratio | ||||||
| ① | Bedroom | Window A | 2100 × 2100 mm | 4.41 m2 | 12.814 m2 | 0.344 | Less than or equal to 0.35 | 0.017 |
| ② | Living room | Window B | 2400 × 1500 mm | 3.6 m2 | 20.04 m2 | 0.18 | Less than or equal to 0.25 | 0.28 |
| ③ | Bath space | Window C | 450 × 1500 mm | 0.675 m2 | 24.48 m2 | 0.055 | Less than or equal to 0.3 | 0.82 |
| Window D | 450 × 1500 mm | 0.675 m2 | ||||||
| ⑤ | Shower | Window C | 450 × 1500 mm | 0.675 m2 | 6.72 m2 | 0.1 | 0.667 | |
| ⑧ | Restroom | Window D | 450 × 1500 mm | 0.675 m2 | 17.76 m2 | 0.038 | 0.873 | |
| EEM Technology | Category | Factor Changes | ||||||||
|---|---|---|---|---|---|---|---|---|---|---|
| R | A | S | K | D | H | J | G | F | ||
| Eaves | Optimal control method | - | - | - | ↓ | - | ↓ | ↓ | - | - |
| Low-E Glass | - | - | - | - | - | - | ↑ | - | - | |
| Wall Greening | ↓ | ↓ | - | - | - | - | ↓ | ↓ | - | |
| Casement Window | Variable control method | ↑ | ↑ | - | - | - | - | ↑ | ↑ | - |
| Adjustable Reflector | - | - | - | - | - | - | ↑ | - | - | |
| Light-Colored Material Painting | ↑ | - | - | - | - | - | ↑ | - | - | |
| Adjustable Exterior Sunshade Components | ↓ | ↓ | - | - | - | - | ↓ | ↓ | - | |
| Translucent Space Partition | ↑ | - | - | - | - | - | ↑ | - | - | |
| Stages of Family Development | Layout | Function Changes | Space Maintenance | Space Separation | Openings Layout Requirements | Passive Design Methods | Factors |
|---|---|---|---|---|---|---|---|
| Beginning families | ![]() | - | - | - | High natural lighting requirements | Adjustable Reflector | J |
| Adjustable Exterior Sunshade Components | R, A, J, G | ||||||
| Eaves | K, H, J | ||||||
| Low-E Glass | J | ||||||
| Wall Greening | R, A, J, G | ||||||
| Casement Window | R, A, J, G | ||||||
| Family Extension | ![]() | - Checkroom to children’s room | No changes | - | Adjustable Reflector | J | |
| Translucent space partition | R, J | ||||||
| Families as launching centers | ![]() | Checkroom merged with Living room | Removal of the checkroom side wall | Movable and assembled deformed door | Adjustable Reflector | J | |
| Families in the middle years | Light-colored material painting | R, J, G | |||||
| Aging families | ![]() | Checkroom merged with bedroom - | Removal of the checkroom on the other side wall | Movable and assembled deformed door | Adjustable Reflector | J | |
| Light-colored material painting | R, J, G | ||||||
| Translucent space partition | R, J | ||||||
![]() | Checkroom to caregiver room | No changes | - | High natural lighting requirements | Adjustable Exterior Sunshade Components | R, A, J, G |
Disclaimer/Publisher’s Note: The statements, opinions and data contained in all publications are solely those of the individual author(s) and contributor(s) and not of MDPI and/or the editor(s). MDPI and/or the editor(s) disclaim responsibility for any injury to people or property resulting from any ideas, methods, instructions or products referred to in the content. |
© 2024 by the authors. Licensee MDPI, Basel, Switzerland. This article is an open access article distributed under the terms and conditions of the Creative Commons Attribution (CC BY) license (https://creativecommons.org/licenses/by/4.0/).
Share and Cite
Sun, X.; Dong, D.; Yang, Y.; Dong, Y. Research on Opening Design Guidelines for Zero-Energy House Based on the Family Life Cycle. Buildings 2024, 14, 2700. https://doi.org/10.3390/buildings14092700
Sun X, Dong D, Yang Y, Dong Y. Research on Opening Design Guidelines for Zero-Energy House Based on the Family Life Cycle. Buildings. 2024; 14(9):2700. https://doi.org/10.3390/buildings14092700
Chicago/Turabian StyleSun, Xun, Dekun Dong, Yang Yang, and Yifan Dong. 2024. "Research on Opening Design Guidelines for Zero-Energy House Based on the Family Life Cycle" Buildings 14, no. 9: 2700. https://doi.org/10.3390/buildings14092700
APA StyleSun, X., Dong, D., Yang, Y., & Dong, Y. (2024). Research on Opening Design Guidelines for Zero-Energy House Based on the Family Life Cycle. Buildings, 14(9), 2700. https://doi.org/10.3390/buildings14092700










