Next Article in Journal
Data-Driven Interpretable Machine Learning Prediction Method for the Bond Strength of Near-Surface-Mounted FRP-Concrete
Previous Article in Journal
Nonlinear Analysis of Prestressed Steel-Reinforced Concrete Beams Based on Bond–Slip Theory
 
 
Font Type:
Arial Georgia Verdana
Font Size:
Aa Aa Aa
Line Spacing:
Column Width:
Background:
Article

Maintenance Approaches Using 3D Scanning Point Cloud Visualization, and BIM+ Data Management: A Case Study of Dahei Mountain Buildings

by
Jingyi Zhan
1,†,
Tianyi Zhang
2,†,
Jinni Huang
3,‡ and
Ming Li
1,*
1
School of Architecture and Fine Arts, Dalian University of Technology, Dalian 116024, China
2
Faculty of Humanities and Arts, Macau University of Science and Technology, Taipa, Macau 999078, China
3
School of Architecture and Urban Planning, Beijing University of Civil Engineering and Architecture, Beijing 100044, China
*
Author to whom correspondence should be addressed.
Co-first author.
Second author.
Buildings 2024, 14(9), 2649; https://doi.org/10.3390/buildings14092649
Submission received: 8 July 2024 / Revised: 15 August 2024 / Accepted: 19 August 2024 / Published: 26 August 2024
(This article belongs to the Section Building Structures)

Abstract

This study investigates the utilization of 3D laser scanning, GPS, BIM and GIS technologies for safeguarding historical wooden structures. As a case study, it focuses on two historic Chinese wooden buildings, the Guanyin Pavilion and Tangwang Palace, renowned for their exceptional historical significance and intricate timber architecture. The Guanyin Pavilion was subjected to high-precision modeling and tilt monitoring, which found that certain columns had a maximum tilt angle of 0.7892°. Additionally, a general tilt tendency was seen across various structural elements. The measurements from the point cloud data exhibited an error range of ±10 mm. However, the relative errors in smaller components approached 2.5%, which necessitated regular verification through human measurements. Using GIS and BIM technology in Tangwang Palace facilitated the meticulous documentation and dynamic supervision of architectural components, encompassing historical development and present state. The maintenance records revealed persistent problems with the roof tiles and wooden beams, exposing structural vulnerabilities. During various maintenance intervals, it was observed that the roof tiles were frequently loose and separated, indicating potential flaws in the design or materials used. The application of these modern technologies enhances the effectiveness and precision of conservation efforts and provides a robust scientific foundation for the continuous monitoring and study of cultural heritage.

1. Introduction

Protecting ancient structures holds significant historical and cultural importance as a crucial component of cultural heritage. The increasing focus on preserving ancient buildings has been driven by advancements in science and technology, leading to the utilization of current technology in this field [1,2]. Conventional approaches to preserving old buildings include labor-intensive and time-consuming manual mapping and recording. These methods often fail to provide accurate and comprehensive information. Modern technologies like 3D laser scanning, Global Positioning System (GPS), Building Information Modeling (BIM), and Geographic Information System (GIS) have been employed to preserve ancient buildings, effectively addressing these challenges [3,4]. Scientists from various nations have adopted these techniques to investigate the conservation and safeguarding of traditional timber and masonry building materials in their respective countries. They have also utilized these methods to examine the types of damage, restoration principles, and reinforcement techniques employed in ancient timber-framed structures [5,6].
Laser scanning employs LiDAR technology to emit laser pulses and measure the time taken for their reflection, creating detailed 3D point clouds of historic structures. This process aids researchers in capturing precise geometries, surface textures, and structural intricacies that are crucial for restoration and preservation endeavors. Research has shown that the analysis and processing of point cloud data can accurately determine the physical and visual boundaries of structures [7,8]. Researchers have explored the integration of point cloud technology with 2D imagery to extract 3D information. This exploration involved the examination of four free and open-source software applications. The evaluation of these tools focused on their ability to generate point clouds and perform photogrammetric workflows, offering new insights and tools for the development and processing of point cloud data [9]. Additionally, the application of laser scanning and BIM technologies has significantly impacted as-built modeling, information management, and the overall performance of construction projects. The researchers examined the advantages of incorporating BIM technology into real projects by conducting a case study on a building that did not utilize this technology [10]. Moreover, laser scanning techniques and photogrammetry-based radiometric measurements have been employed to obtain precise building geometries. In addition, BIM has been established to oversee forthcoming restoration projects effectively [11,12]. Scientists suggested a method utilizing a 3D laser scanner and an algorithm for processing point cloud data to assess tunnel deformation. This technique involves the process of merging several point clouds and accurately aligning the point cloud data from different periods. The study’s findings offer crucial data for assessing the deformation performance of tunnels [13].
GPS employs satellite signals to offer accurate geolocation data, allowing researchers to record the positions and movements of ancient structures precisely. This data is essential for conducting site surveys, generating maps, and tracking changes over time due to environmental or human factors. One approach involves the use of uncrewed ground vehicles (UGVs) equipped with sensors such as laser distance sensors, accelerometers, gyroscopes, and GPS sensors to develop classifiers for monitoring and quantifying pavement construction progress [14,15]. A separate investigation was carried out to assess the precision of elevation measurements by comparing ground-based and aerial photogrammetry with Real Time Kinematic Global Positioning System (RTK-GPS) [16]. This method improves the precision of point cloud data, which is essential for examining topography, discontinuities, and other characteristics in surveyed regions [17]. Additionally, researchers combined Social Vulnerability Index (SVI) data with GPS tracks from young individuals to explore the relationship between streetscape diversity and the time spent on active transportation (AT) [18,19]. The study revealed a significant correlation between streetscape diversity and the duration of active transportation, suggesting that a broader variety of streetscapes promotes higher levels of physical activity in young individuals. A study conducted in Austria focused on residential research and aimed to create a knowledge base and cadastre of adobe architecture in the Weinfeldt region. This outcome was accomplished by employing mobile technology to leverage and integrate the specific local and historical knowledge of the residents [20].
BIM integrates architectural, structural, and engineering data to generate a unified 3D model. This model allows researchers to simulate and analyze ancient buildings’ physical and functional aspects. As a result, it facilitates accurate planning and visualization of conservation interventions [21,22]. Research has shown that BIM substantially affects the management of building projects by improving efficiency, precision, and overall project outcomes. Research has primarily focused on the benefits of BIM in managing building projects, highlighting improvements in data management, collaboration, and decision-making processes [23]. BIM enables the efficient coordination of different project elements by integrating detailed building information, leading to improved resource allocation and shorter project timelines [24]. Furthermore, researchers have investigated the use of BIM to preserve cultural heritage. These studies have focused on how BIM can effectively capture and depict architectural elements in 3D geometric models while maintaining accuracy [25]. The results suggest that BIM can effectively aid in preserving and restoring cultural heritage monuments by offering detailed and accurate 3D models. Moreover, research on virtual modeling and reconstruction of architectural and historic buildings has highlighted the essential graphical and semantic data required to evaluate the conservation status of these structures [26,27]. Researchers have employed point clouds, historical records, and bibliographic data to develop parametric libraries within Heritage Building Information Modeling (HBIM) [28,29]. This method facilitates the comprehensive recording and conservation of historical structures, guaranteeing the precise capture and organization of all pertinent data for future restoration endeavors.
GIS integrates spatial data with attribute information to enable the mapping and analysis of the environmental and cultural context of ancient buildings. This integration allows for a better understanding of spatial relationships and historical significance, aiding in making informed preservation decisions. A GIS-MCDM approach has been employed in sustainable urban planning to assess spatial appropriateness in difficult situations like deserts. This approach incorporates various variables to evaluate and direct urban development [30,31]. GIS has also enhanced public parcel management by developing tools and platforms that provide online access to both qualitative and quantitative data. Open Access Web GIS platforms allow for the access and evaluation of entire management procedures and records, which improves transparency and efficiency [32]. GIS technology has been applied to develop algorithms that automate the generation of real-time, personalized walking indexes, crucial for urban mobility. These algorithms utilize tailored comfort criteria derived from real-time data to optimize walking routes for urban populations [33,34]. GIS modeling approaches have been employed in analyzing commuting and residential placement decisions to investigate how environmental factors and amenities influence commuting behavior. These studies have shown that these elements substantially impact the decision-making process when it comes to choosing where to live and work. These findings offer valuable insights into the factors influencing residential choices [35,36]. In addition, GIS has been used to measure the social vulnerability and related risks of metropolitan regions. Composite metrics within a GIS framework have been used to detect and delineate geographical variability, providing policymakers and urban stakeholders with critical insights. This information is essential for developing focused and efficient programs to tackle urban difficulties [37,38].
This research explores preservation techniques for old buildings using advanced technologies like 3D laser scanning, GPS, BIM, and GIS. The case study focuses on two representative wooden structures, the Guanyin Pavilion and Tangwang Palace, located in Dahei Mountain. Through the use of 3D laser scanning and point cloud registration, we accomplished precise modeling and tilt monitoring of the Guanyin Pavilion. Additionally, by utilizing BIM and GIS technologies, we developed comprehensive records and dynamic data management for the architectural elements of Tangwang Palace. This included information on the architectural structure, historical development, existing issues, and maintenance planning. These approaches provide a viable solution for preserving cultural heritage by addressing issues like the lack of dynamic data integration and low modeling accuracy, challenges that traditional methods fail to adequately resolve. This study aims to demonstrate the effectiveness of current technologies in preserving old buildings, with a specific focus on the case studies of Guanyin Pavilion and Tangwang Palace (Figure 1).

2. Materials and Methods

The Guanyin Pavilion, located in the Dahei Mountain Scenic Area in Jinzhou District, Dalian City, Liaoning Province, China, is a Buddhist structure of significant historical and cultural importance (Figure 2). The Guanyin Pavilion is characterized by a lofty roof ridge and gracefully extended eaves. The roof is adorned with greenish-grey tiles that harmonize with the natural environment.
This study explores two methods for segmenting the Guanyin Pavilion: utilizing neighboring laser sites to match targets with the same name and introducing a planar target with absolute coordinates for overall coordinate transformation. The point cloud section of the Tongtian Column in the pavilion is analyzed using an ellipse fitting method. The center of the ellipse serves as a reference point for monitoring the tilting direction and angle of the Guanyin Pavilion [39,40].

2.1. Mapping of Guanyin Pavilion

2.1.1. Laser Data Acquisition

The Trimble X7 3D laser scanner was utilized for this project (Table 1). This scanner facilitates the transmission of data to TBC (version 2024.00), Trimble RealWorks (version 2024.10), or other software for analysis and design, thereby promoting seamless integration with other relevant software. The optimal measurement interval for the instrument used in this study was 10 m. The study ensured significant overlap between the two survey stations, with the distance between neighboring stations maintained at less than 5 m. A fixed scanning distance and consistent settings were maintained to ensure data consistency and repeatability. During accuracy testing, the relative error for close-range scanning was constrained to 2.5%, while for long-range scanning, it was constrained to 1%.
Traditional instruments such as inclinometers and deformeters are cost-effective, easy to deploy, and provide real-time data, making them ideal for continuous monitoring. However, these instruments are limited to measuring specific points or areas, thereby failing to capture comprehensive changes across an entire structure. In contrast, this study employed laser scanning, selected for its unmatched ability to capture the intricate details of complex structures such as the Guanyin Pavilion and Tangwang Palace. Laser scanning produced high-resolution 3D models that were essential for assessing the long-term stability of these buildings and developing precise restoration plans. Although more costly, its precision and the long-term utility of the data justify the investment.

2.1.2. Point Cloud Registration of Neighboring Sites

When a laser scanner scans a target from a specific location, it is often challenging to obtain comprehensive information due to limitations in observation angle and target geometry. Therefore, selecting multiple scanning locations is essential to create a complete 3D representation of the target. Since the laser scanning data obtained at each site are in their own coordinate systems, it is crucial to consolidate the point cloud data from multiple sites into a unified coordinate system [41]. The fundamental concept of fully automated Point Cloud Registration, which depends on the target, can be summarized as follows:
The point cloud data from each station are represented in a local coordinate system, with the scanner position as the origin. In other words, each laser point cloud’s coordinate system is independent and not interconnected. Consequently, a target is established in the field for Point Cloud Registration. The target surface must be perpendicular to the scanning direction and face the scanner. Additionally, the distance between the target and the scanner must be within the scanner’s effective range. It is recommended to place targets uniformly within the scanning or overlap range, maximizing the distance between them [42].
The same set of targets is scanned from multiple stations during the process. To ensure that the scanning results of each station include more than three targets with identical names, which are not located on the same line and face in adjacent stations, the scanner is equipped with the ability to search for targets within a specified field of view automatically. It can then accurately scan the targets with a high point density. The processing software can automatically extract the coordinates of each target’s center point. The association between each site cloud is precisely defined by control points with identical names. If the number of control point groups exceeds three, obtaining transformation parameters using the least squares method can result in more precise data merging from each station [43].
To ensure consistency and accuracy in the resultant model, we must transform and align our study’s point cloud data from multiple scanning stations. The transformation process is crucial for conducting a thorough structural investigation, particularly for monitoring the tilt direction and angle of the Tongtian Column. Our methodology utilizes ellipse fitting, relying on transformed and precisely aligned point cloud data to determine the central points of the column cross-sections. This method enables accurate tracking of structural alterations over some time. The essential data transformations were achieved using the following processes:
In the adjacent i-th combination of the (i + 1)th set of laser point clouds, Mi and Mi+1, N pairs of conjugate points are assumed to be recognized. The coordinates are represented as Xi, Yi, and Zi. Additionally, Xi, Yi, and Zi represent a set of conjugate point pairs. These pairs are defined by a functional relationship between rotational variables (ψi, ωi, and κi) and translational variables (Ti,X, Τi,Y, Τi,Z) as follows:
X i Y i Z i = λ i a 1 a 2 a 3 b 1 b 2 b 3 c 1 c 2 c 3 X i + 1 Y i + 1 Z i + 1 + T i , x T i , y T i , z
The error equation for the spatial 3D similarity transformation between the ith and (i + 1)th groups of discrete point clouds can be expressed in matrix form. This expression uses the scale factor λi, the rotation matrix Ri, and the direction cosines (ai, bi, and ci). The direction cosines depend on the rotation variables (φi, ωi, and κi).
v X i v Y i v Z i = 1 0 0 0 1 0 0 0 1       X Z 0 Y 0 Z Z X Y         Y X 0 d T i , X d T i , Y d T i , Z d λ i d φ i d ω i d κ i l X i l Y i l Z i
The observation corrections are denoted by vXi, vYi, and vZi, while the corrections for the estimated parameters are represented by dλi, dTi,X, dΤi,Y, dΤi,Z, dφi, dωi, and dκi. The transformation parameters between point clouds are calculated using target control points. For cases with redundant observations, an iterative solution is applied until the corrections for the unknowns are minimized. This process ensures precise coordinate unification between the halos of each site.

2.1.3. 3D Scanning

Due to the large size of the Guanyin Pavilion, this project uses GPS technology to establish three fixed reference points on its northern side. These points are then used for precise measurements with a total station involving closed-wire control measurements around the pavilion. In Figure 3, red triangles indicate the specific points used for control measurements. This study employed the China Geodetic Coordinate System 2000 (CGCS2000) to ensure precise measurements through satellite positioning and high-accuracy ground survey data.
The Guanyin Pavilion is a historic structure with three stories and four eaves. However, seven issues have been identified in its overall splicing: 1. The outdoor corridors are joined into a single-story structure. 2. The indoor spaces are joined into a single-story structure. 3. Both indoor and outdoor spaces are joined into a single-story structure. 4. The scanning process constructs a single, seamless structure. 5. The floors are joined through a splicing process. 6. The entire site of Guanyin Pavilion is scanned and joined as a whole. 7. The single-story structure of Guanyin Pavilion is scanned and joined as a whole.
This study includes a total of 92 laser scanning stations. Noise in the point cloud adversely impacts the matching approach, which relies on the nearest points, due to point errors. During the sequential alignment of surrounding point clouds to create a comprehensive landscape model, point inaccuracies accumulate progressively, affecting the overall accuracy of the Guanyin Pavilion’s splicing. This work employed a splicing strategy using several common targets in surrounding sites. Additionally, we intentionally included as many redundant targets as possible to increase the number of redundant observations. This approach ensures that the splicing process across one or two sites still has common targets for alignment. A total station is also used to determine the precise coordinates of the plane targets. These absolute coordinates are then used to establish a non-rigid transformation between the relative and absolute coordinate systems of the point cloud model. This process ensures that the point cloud coordinates align with the geodetic coordinates. Additionally, the study measured repeatability and accuracy using Root Mean Square Error (RMSE) (Table 2).
We computed the repeatability of the distance measurement using the following formula.
σ = i = 1 n ( x i x ¯ ) 2 n 1
The formula showed that the Trimble X7 has a distance measurement repeatability of 0.0052 m at 7.99 m, 0.0143 m at 25.57 m, and 0.0157 m at 40.86 m (Table 3). To assess the precision of the TLS distance measurements, we compared the laser scanning results with those obtained from a portable distance meter and a total station. The portable distance meter took three measurements for each section, and the mean value was used as the reference.
After applying the RMSE Formula (3), the RMSE for the total station measurements was found to be 0.0159 m. The RMSE for the measurements taken by the Trimble X7 was 0.0136 m. The Table 4 below shows the relative inaccuracy, calculated using the formula δ = L/ΔL × 100%.
The results show that the 3D laser scanner has a high level of precision, as the relative error of the 3D point cloud models remains within the acceptable range for engineering purposes. The error increases with distance, consistent with the expected behavior of laser scanning devices.

2.1.4. Study of the Existing Spatial Condition

To analyze the spatial preservation of the Guanyin Pavilion, we used point cloud slicing to visualize the columns in each section. We then imported the data into AutoCAD to precisely measure the diameter and spacing of each column on every floor. This process enabled us to determine the exact spatial locations and dimensions (in millimeters) of the columns, beams, and other critical components. Due to multiple renovations, the Tongtian Column of the Guanyin Pavilion exhibits a non-circular shape in the cross-section of the point cloud. To accurately calculate the tilt direction and angle of the Tongtian Column, ellipse fitting is recommended. This method involves determining the central location of the column in each segment by elliptical fitting. The formula defines the relationship between the center point (x0, y0) of an ellipse, a boundary point (xi, yi) on the point cloud, and the corresponding point p (x, y) on the ellipse. The best fit in the least squares sense is achieved by minimizing the sum of squares of the distances from all boundary points to the fitting points.
J = i = 1 n ( x i x 0 ) 2 + ( y i y 0 ) 2 ( x i x 0 ) 2 + ( y i y 0 ) 2 ( x i x 0 ) 2 ( x x 0 ) 2
The optimal ellipse fitted in the nonlinear least squares sense can be obtained by minimizing J. This process allows us to determine the centroid coordinates, the lengths of the major and minor axes, and the angle of rotation of the ellipse.
To gain a comprehensive understanding of each column’s inclination direction and magnitude, we connect the bottom and top centers of each column and present them in a three-dimensional format. This method enables the visualization of the vertical direction of each Tongtian column and allows precise measurement of its inclination direction and magnitude. Figure 4 shows the inclination direction of the columns. Table 5 shows the angle of inclination. The upper level of the Guanyin Pavilion exhibited minimal inclination.
How can the quality of 3D laser scanning results be assessed? We used conventional measurement techniques to evaluate the precision of 3D laser scanning results. Using the orthoimage of the uppermost layer of the Guanyin Pavilion as a case study, the width exceeds 16 m, and the ceiling height is 3.5 m. Both measurements have a margin of error of up to 10 mm, which meets the technical standards. However, the cross-sectional measurements of columns, beams, and purlins range from 200 mm to 400 mm, with an approximate inaccuracy of 10 mm. Although the absolute errors are similar, the relative error is significantly larger, exceeding 2.5% (Table 6). Therefore, the data for the Guanyin Pavilion should not be solely derived from orthoimages but should be corroborated by manual measurements. We compared the dimensions derived from the point cloud with those obtained by manual measurements. The following are key measurement data for the uppermost tier of the Guanyin Pavilion:

2.2. Dynamic Management of Data in Tangwang Palace

Tangwang Palace, a significant cultural site in Dalian, is located at the summit of Dahei Mountain. Named after Tang Emperor Li Shimin, one of the most renowned rulers in Chinese history, the palace features distinctive architectural design and intricate artwork (Figure 5 and Figure 6). Preserving Tangwang Palace requires thorough monitoring and control of both the exterior and interior components of the structure. The GIS is a powerful tool that facilitates macro management, information processing, and image visualization. It plays a vital role in protecting, managing, monitoring, and researching heritage. The primary benefit of BIM is its ability to effectively manage the entire lifespan of structures, a function that is also crucial for heritage building monitoring. By integrating these two methodologies, we have successfully documented all alterations in the cartographic data of Tangwang Palace over time.

2.2.1. Representation of Architectural Elements

On the GIS platform, the core area of Tangwang Palace includes various surface elements such as 13 dwellings, 21 gates, three shadow walls, two tree pools, and one well. These elements serve to record the attribute information of the heritage buildings (Figure 7). Unlike conventional documentation methods, the elements in GIS have distinct numerical and nominal designations that correspond to the actual heritage structures. This helps reduce the confusion caused by the simultaneous use of numerous names. For example, the cluster consists of thirteen dwellings named H001 to H013 in sequential order.
Furthermore, GIS facilitates the visual connection between information and physical items by allowing users to select certain information to retrieve corresponding physical objects, and vice versa. Figure 7, Figure 8, Figure 9, Figure 10, Figure 11, Figure 12 and Figure 13 show screenshots of the GIS interface, highlighting its distinction from conventional drawings that rely on a database to provide map components. These diagrams display various themes in GIS using the same set of map elements rather than separate images.
The essential data to be recorded for Tangwang Palace’s cultural treasures and buildings includes architectural structure, historical background, existing deterioration, and maintenance plans, among other aspects. This information can be recorded in a GIS and visually presented, with a level of detail comparable to architectural monoliths. In the core area of Tangwang Palace, there are four types of roof forms: hermitage, hard hill, scaffolding hard hill, and scaffolding hermitage. The distribution pattern of these roof forms is clear: the main palace features hermitage roofs, the secondary buildings on either side have hard hill roofs, the living area in the northern part has scaffolding hard hill roofs, and the ancillary rooms in the southern part have scaffolding hermitage roofs (Figure 8). The value of each building form, including the roof type, is recorded in GIS to facilitate retrieval for purposes such as monitoring, protection, management, research, and other uses related to cultural heritage and buildings.

2.2.2. Succession of Previous Maintenance Information

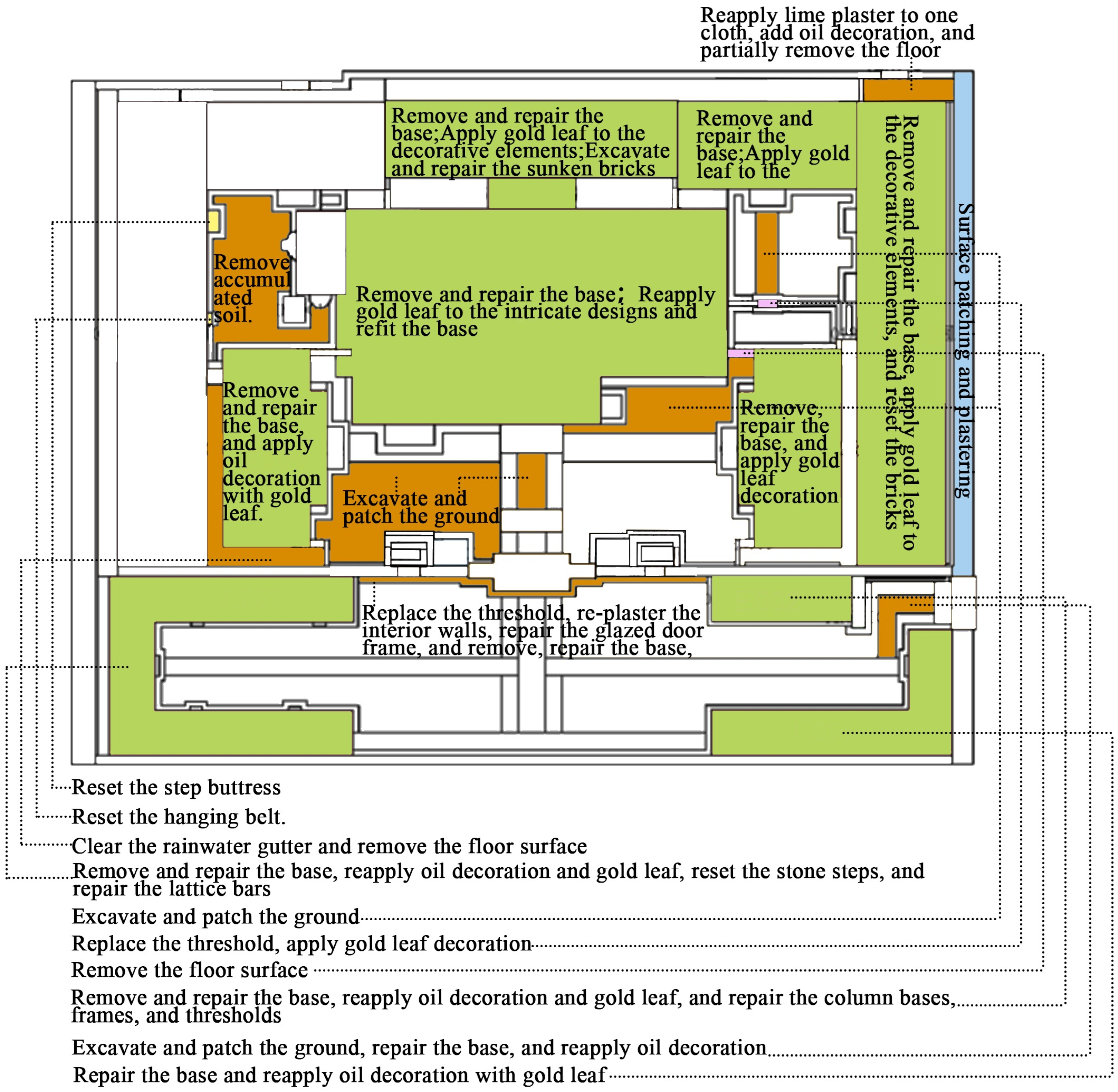
Tangwang Palace underwent maintenance three times: 1974, 1982, and 2000. The restoration efforts included exposing the tile roof, repairing the substantial wooden structures, fixing the ground, and refurbishing the oil decorations. In GISs, maintenance information is stored in a field corresponding to the year, with the building unit as the unit of measurement. This allows for the visualization of the maintenance status of a group of buildings in a specific year through drawings (Figure 9, Figure 10 and Figure 11) and the representation of a building unit’s maintenance status across all years through a data table. GIS enables the integration of space and time within a single platform [43].

2.2.3. Information Exchange and Assessment

The Tangwang Palace project was executed by subdividing various tasks, including the construction of the wooden structure, installation of the tile roof, construction of walls and floors, implementation of decorative elements, and application of color painting. While categorizing tasks to support the project enhances the thoroughness of research, it presents certain challenges when integrating the findings. Traditionally, designers must rely on regular communication and the comprehensive perspectives of each team member.
The survey findings and design programs in the GIS highlight the distinctive features of the heritage building. Once the survey and design work are completed, the results of each type of work will be entered into the information system. If a specific heritage building is selected, the corresponding survey findings and maintenance procedures can be displayed (Figure 12 and Figure 13).

3. Results

3.1. 3D Laser Scanning and Point Cloud Registration of Guanyin Pavilion

3.1.1. Point Cloud Data

This study uses Trimble RealWorks software (version 2024.10) to integrate data from various sources in the surrounding environment and buildings. The software can directly process raw point cloud data from different scanners. This process enables the alignment, visualization, exploration, and direct modification of point cloud data. The system can automatically extract and organize categories for various features such as roads, trees, buildings, and more.
The study imports point cloud data acquired through oblique photogrammetry into the point cloud processing software. In the software, the data is labeled with coordinates from the China Geodetic Coordinate System 2000. Subsequently, the point cloud data obtained from 3D laser scanning is transferred into the same software. Since both datasets include coordinates from the China Geodetic Coordinate System 2000, they are automatically aligned, creating a comprehensive and well-matched point cloud collection (Figure 14).

3.1.2. Data Preprocessing

During the denoising process of the point cloud data for Guanyin Pavilion, we used Trimble RealWorks software (version 2024.10) to modify and segment the merged point cloud data. This was done to eliminate extraneous points outside the primary structure of the target building. As a prominent landmark in the Daheishan Mountain Scenic Area, Guanyin Pavilion experiences significant human activity and noise disturbances caused by climatic conditions. As shown in the Figure 15 and Figure 16, the denoising process significantly reduced irrelevant, aberrant, and isolated points.
In order to ensure the consistency and seamless transitions of model alterations, the study conducted slicing and preservation of Guanyin Pavilion at various vertical levels and depth profiles. This approach simplifies the process of measuring and calibrating slices of point cloud data (Figure 17).

3.1.3. Model Construction

By importing the segmented point cloud data of Guanyin Pavilion into Autodesk Revit, a 3-dimensional information model can be generated. Constructing the 3D information model in Revit involves several steps, including creating elevation grids, designing family components, specifying materials, adjusting the model, and assembling the final structure (Figure 18). Each component’s position is calculated according to its corresponding location, while its dimensions are computed based on the point cloud data. After determining each component’s position and size, the family dimension parameters are established. Once each family element is completed, they are assembled to form the entire 3D construction model.
During the modeling process, data collaboration was conducted in Autodesk Revit to ensure coherence between the 3D model and the point cloud data, which involved generating point cloud slices. Simultaneously, surveying was conducted in Trimble RealWorks, with real-time comparisons and adjustments made using the point cloud data in Autodesk Revit to enhance the precision of the 3D building information model.

3.2. Dynamic Data Management of the Tangwang Palace

The integration of BIM and GIS in this context aims to facilitate precise documentation and analysis of the building’s components, as well as to support informed decision-making regarding its preservation and management. BIM will be used to accurately document and monitor individual building elements, while GIS will provide spatial analysis and visualization to understand the broader environmental and historical context.

3.2.1. Management of Building Components

BIM technology enables the monitoring and control of individual components of Tangwang Palace. It also records the geometric shape and attribute information of pedestal deterioration, facilitating the precise management of dynamic data.
The BIM model is directly linked to the underlying data. The foreground model displays the geometric shape of the square tiles, while the database stores information such as name, number, category, condition, and maintenance measures. These attributes are interconnected and indexed, as shown in Figure 19 and Table 7. By comprehensively recording the information of each square tile without compromising visibility, effective handling of large data volumes is ensured. GIS primarily focuses on cluster-level monitoring, whereas BIM delves into monitoring at the individual component level.

3.2.2. Management of Building Complexes

In the GIS platform, the architectural elements in the core area of Tangwang Temple are represented as surface elements, with the attribute information of each element recorded, including architectural form, history, current condition, and maintenance design (Table 8).
Additionally, numerous specialized assessments have been developed to address the current condition and decay of cultural heritage structures. These reports provide comprehensive information on timber buildings, tiled roofs, walls, and painted decorations. They include detailed assessments of defects and deterioration, as well as information on the tree species used for the timber (Figure 20). The design outcomes primarily focus on the intervention procedures for building components, including replacement, patching, and deconstruction. The data mentioned above exists in various formats, is managed by different methods, and has varying degrees of relevance.

4. Discussion

4.1. Application of 3D Laser Scanning and Point Cloud Registration Technology in Guanyin Pavilion

This study employed the Trimble X7 3D laser scanner for high-precision modeling and tilt monitoring of Guanyin Pavilion. Through multi-station scanning and point cloud registration, we achieved high-precision modeling of the pavilion’s overall structure, with errors controlled within ±1 mm. Data indicates that among the 92 scanning stations, the introduction of absolute coordinates for planar targets in overall coordinate transformation significantly reduced stitching errors in the point cloud data. Using the ellipse fitting method to monitor the tilt direction and angle of the Tongtian Column, we found an average tilt angle of 0.4635°, with a maximum of 0.7892° and a minimum of 0.2115°. In distance measurements, the Trimble X7 demonstrated repeatability of 0.0052367 m at 7.99 m, 0.0143128 m at 25.57 m, and 0.0157100 m at 40.86 m, indicating high measurement accuracy. During point cloud preprocessing, noise points were effectively reduced. In model construction, sliced point cloud data was imported into Autodesk Revit to establish a 3D information model of Guanyin Pavilion. Comparison results indicated that the absolute error between the 3D model and the point cloud data was within 10 mm, meeting engineering requirements.
In this study, 3D laser scanning demonstrated distinct advantages over other technologies. It achieves millimeter-level accuracy, far exceeding that of alternative methods, and can capture comprehensive 3D data of a building in a single scan, thus avoiding the data omissions commonly associated with traditional techniques. While traditional hand measurements are commonly used for simple structures, their accuracy is often compromised by human error. In contrast, 3D laser scanning not only captures detailed geometric shapes but also facilitates seamless data integration and dynamic monitoring through multi-station scanning and point cloud registration, enabling the timely detection and precise analysis of structural changes—capabilities that traditional methods struggle to offer. Moreover, 3D laser scanning is more efficient than other methods, allowing for the rapid completion of complex structural measurements while reducing time and labor costs. These advantages make 3D laser scanning particularly effective in the preservation of complex buildings, ensuring the structural accuracy and safety of the Guanyin Pavilion.

4.2. Dynamic Data Management of Tangwang Palace

In studying Tangwang Palace, we used GIS technology to reconstruct the maintenance history for 1974, 1982, and 2000. Detailed records and visual displays via the GIS platform provided a comprehensive understanding of the protection status and maintenance history of the building complex. For instance, the GIS platform allowed us to view maintenance work from different years on a map, revealing the restoration content and methods of each stage. Additionally, we integrated BIM technology to thoroughly record and manage the geometric shapes and attribute information of the buildings, including architectural forms, historical evolution, existing deterioration, and maintenance design. For example, the BIM system detailed the weathering of square tiles and their corresponding treatment measures. BIM technology allowed us to accurately record the names, categories, deterioration phenomena, and treatment measures of each square tile, displaying them visually and ensuring data integrity and ease of management.
In the maintenance of Tangwang Palace, the combination of BIM and GIS technologies represents the optimal approach, offering substantial advantages over traditional methods. GIS provides macro-level spatial management, enabling a visual representation of the historical evolution and maintenance status of the entire complex. In contrast, traditional methods typically offer only static maps or textual records, which fail to capture the architecture’s complexity. BIM, meanwhile, focuses on component-level details, meticulously documenting and monitoring the geometric shapes and attributes of each architectural element. This level of detail far exceeds that of traditional hand measurements or 2D drawings, which are not only time-consuming but also struggle to maintain data consistency and accuracy. By integrating BIM and GIS, we achieved a comprehensive understanding of both the overall condition of Tangwang Palace and its components, facilitating the development of more precise maintenance strategies. This integrated dynamic data management system not only enhances management efficiency but also establishes a solid foundation for future preservation efforts, allowing us to more effectively address long-term maintenance challenges.

5. Conclusions

By integrating 3D laser scanning, GPS, BIM, and GIS technologies in Guanyin Pavilion and Tangwang Palace, this study yields the following key conclusions:
  • By utilizing high-precision 3D laser scanning and point cloud registration technology, the overall structural model of Guanyin Pavilion was controlled within an error range of ±1 mm. Tilt monitoring data showed that the average tilt angle of the Tongtian Column was 0.4635°, with a maximum of 0.7892° and a minimum of 0.2115°. Additionally, point cloud data analysis revealed that the relative error in key structures such as columns and beams was within ±10 mm. Based on this data, it can be concluded that despite years of environmental exposure, Guanyin Pavilion remains structurally stable. However, minor tilting and dimensional changes in certain parts require regular monitoring and maintenance.
  • On the GIS platform, the building elements of Tangwang Palace were meticulously documented, and the maintenance history of 1974, 1982, and 2000 reconstructed. By examining this maintenance information, we found that certain building elements repeatedly exhibited issues and were repaired, indicating long-term structural weaknesses in these areas. The roof tiles, mentioned repeatedly in the maintenance records of 1974 and 2000, showed signs of loosening and detachment. Despite repairs during each maintenance cycle, the problem persisted, suggesting potential design or material deficiencies in the roof structure. Records show that the wooden beams experienced corrosion and breakage in multiple maintenance cycles. Particularly in the 1982 and 2000 repairs, the restoration of wooden beams was a significant focus, indicating that the beams are highly susceptible to environmental influences and require special attention to protective measures. Wall cracks were noted in the maintenance records of 1974 and 1982, primarily on the building’s south wall. Despite multiple fillings and reinforcements, the cracks persisted, potentially due to foundation settlement or material aging. BIM excels in targeted management by accurately documenting and tracking individual building components, including comprehensive analyses of deterioration patterns and the effectiveness of specific restoration measures. When integrated, BIM and GIS combine spatial data with detailed architectural information, providing a comprehensive and dynamic tool for heritage conservation. This integration enhances decision-making accuracy regarding maintenance priorities and resource allocation by leveraging GIS’s spatial visualization and BIM’s component-level data management.
Despite achieving some results, this study has certain limitations: the unique nature of the study object may limit the applicability of the findings to other types of ancient buildings. The complexity of Guanyin Pavilion’s structure and its unique historical background required specialized methods and technologies that may not be easily transferable to simpler wooden buildings or those with different historical contexts. Future research should focus on adapting these advanced methods and technologies to be more universally applicable, especially for buildings with varying structural complexities. Developing more cost-effective data collection and processing methods, such as portable, low-cost 3D scanning devices and simplified software, could make these technologies more accessible to a wider range of sites. Additionally, integrating emerging technologies like artificial intelligence and machine learning could enhance the adaptability and efficiency of these methods, promoting the sustainable protection and utilization of a broader spectrum of ancient wooden structures.

Author Contributions

Conceptualization, J.Z., T.Z. and J.H.; Methodology, J.Z., T.Z. and J.H.; Software, J.Z.; Validation, T.Z.; Investigation, J.Z., T.Z. and J.H.; Resources, J.Z. and M.L.; Data curation, J.H.; Writing—original draft, J.Z. and J.H.; Writing—review & editing, J.Z. and T.Z.; Visualization, J.Z., T.Z. and J.H.; Supervision, M.L.; Funding acquisition, T.Z. All authors have read and agreed to the published version of the manuscript.

Funding

This research received no external funding.

Data Availability Statement

The data presented in this study are available in this article.

Conflicts of Interest

The authors declare no conflict of interest.

References

  1. Bastem, S.S.; Cekmis, A. Development of historic building information modelling: A systematic literature review. Build. Res. Inf. 2021, 50, 527–558. [Google Scholar] [CrossRef]
  2. Morkūnaitė, Ž.; Kalibatas, D.; Kalibatienė, D. A bibliometric data analysis of multi-criteria decision making methods in heritage buildings. J. Civ. Eng. Manag. 2019, 25, 76–99. [Google Scholar] [CrossRef]
  3. Cardellicchio, F.; Acquavia, M.A.; Curcio, M.; Salvi, A.M. Evaluation of Calcarenite Degradation by X-ray Photoelectron Spectroscopy Analysis inside the Rupestrian Church of San Pietro Barisano (Matera, Southern Italy). Sustainability 2024, 16, 4634. [Google Scholar] [CrossRef]
  4. Günaydin, M.; Demirkir, C.; Altunişik, A.C.; Gezer, E.D.; Genç, A.F.; Okur, F.Y. Diagnosis and monitoring of historical timber velipaşa han building prior to restoration. Int. J. Archit. Herit. 2023, 17, 285–309. [Google Scholar] [CrossRef]
  5. Chun, Q.; Jin, H.; Dong, Y.; Hua, Y.; Han, Y. Research on mechanical properties of dingtougong mortise-tenon joints of Chinese traditional hall-style timber buildings built in the song and yuan dynasties. Int. J. Archit. Herit. 2020, 14, 729–750. [Google Scholar] [CrossRef]
  6. Fierascu, R.C.; Doni, M.; Fierascu, I. Selected Aspects Regarding the Restoration/Conservation of Traditional Wood and Masonry Building Materials: A Short Overview of the Last Decade Findings. Appl. Sci. 2020, 10, 1164. [Google Scholar] [CrossRef]
  7. Yang, R.-Y.; Sun, Y.-F.; Zhang, X.-F. Application and progress of reinforcement technology for Chinese ancient buildings with wood structure. Geotech. Geol. Eng. 2020, 38, 5695–5701. [Google Scholar] [CrossRef]
  8. Malinverni, E.S.; Pierdicca, R.; Paolanti, M.; Martini, M.; Morbidoni, C.; Matrone, F.; Lingua, A. Deep learning for semantic segmentation of 3D point cloud. Int. Arch. Photogramm. Remote Sens. Spat. Inf. Sci. 2019, 42, 735–742. [Google Scholar] [CrossRef]
  9. Wang, Y.; Cheng, Y.; Zlatanova, S.; Palazzo, E. Identification of Physical and Visual Enclosure of Landscape Space Units with the Help of Point Clouds. Spat. Cogn. Comput. 2020, 20, 257–279. [Google Scholar] [CrossRef]
  10. Harshit; Jain, K.; Zlatanova, S. Advancements in open-source photogrammetry with a point cloud standpoint. Appl. Geomat. 2023, 15, 781–794. [Google Scholar] [CrossRef]
  11. Wang, Y.; Cheng, Y.; Zlatanova, S.; Cheng, S. Quantitative Analysis Method of the Organizational Characteristics and Typical Types of Landscape Spatial Sequences Applied with a 3D Point Cloud Model. Land 2024, 13, 770. [Google Scholar] [CrossRef]
  12. Sadeghineko, F.; Lawani, K.; Tong, M. Practicalities of Incorporating 3D Laser Scanning with BIM in Live Construction Projects: A Case Study. Buildings 2024, 14, 1651. [Google Scholar] [CrossRef]
  13. Mozas-Calvache, A.T.; Gómez-López, J.M.; Pérez-García, J.L.; Vico-García, D.; Barba-Colmenero, V.; Fernández-Ordóñez, A. Multi-Sensor Geomatic Techniques for the 3D Documentation and Virtual Repositioning of Elements of the Church of S. Miguel (Jaén, Spain). Heritage 2024, 7, 2924–2943. [Google Scholar] [CrossRef]
  14. Jiang, Q.; Zhong, S.; Pan, P.-Z.; Shi, Y.; Guo, H.; Kou, Y. Observe the temporal evolution of deep tunnel’s 3D deformation by 3D laser scanning in the Jinchuan No. 2 Mine. Tunn. Undergr. Space Technol. 2020, 97, 103237. [Google Scholar] [CrossRef]
  15. Patel, T.; Guo, B.H.W.; van der Walt, J.D.; Zou, Y. Effective Motion Sensors and Deep Learning Techniques for Unmanned Ground Vehicle (UGV)-Based Automated Pavement Layer Change Detection in Road Construction. Buildings 2023, 13, 5. [Google Scholar] [CrossRef]
  16. Hu, X. Application of GPS Measurement Technology and Computer Technology in Visual Construction Simulation of Construction Engineering. Mob. Inf. Syst. 2022, 2022, 8374901. [Google Scholar] [CrossRef]
  17. Wang, G.; Mehari, A.; Genovese, P.V. The Relationship between Spatial Behavior and External Spatial Elements in Ancient Villages Based on GPS-GIS: A Case Study of Huangshan Hinterland, China. Sustainability 2024, 16, 3756. [Google Scholar] [CrossRef]
  18. Uzun, A.; Ghani, F.A.; Yenigun, H.; Tekin, I. A Novel GNSS Repeater Architecture for Indoor Positioning Systems in ISM Band. In Proceedings of the 2020 IEEE International Symposium on Antennas and Propagation and North American Radio Science Meeting, Montreal, QC, Canada, 5–10 July 2020; IEEE: Piscataway, NJ, USA, 2020. [Google Scholar] [CrossRef]
  19. Furby, B.; Akhavian, R. A Comprehensive Comparison of Photogrammetric and RTK-GPS Methods for General Order Land Surveying. Buildings 2024, 14, 1863. [Google Scholar] [CrossRef]
  20. Zhou, H.; Wang, J.; Widener, M.; Wilson, K. Examining the relationship between active transport and exposure to streetscape diversity during travel: A study using GPS data and street view imagery. Comput. Environ. Urban Syst. 2024, 110, 102105. [Google Scholar] [CrossRef]
  21. Schauppenlehner, T.; Eder, R.; Ressar, K.; Feiglstorfer, H.; Meingast, R.; Ottner, F. A Citizen Science Approach to Build a Knowledge Base and Cadastre on Earth Buildings in the Weinviertel Region, Austria. Heritage 2021, 4, 125–139. [Google Scholar] [CrossRef]
  22. Pocobelli, D.P.; Boehm, J.; Bryan, P.; Still, J.; Grau-Bové, J. BIM for heritage science: A review. Herit. Sci. 2018, 6, 30. [Google Scholar] [CrossRef]
  23. Muñiz Gómez, S.; Mosquera-Rey, E.; Corral, A. Construcción de una vivienda de madera con el sistema UBUILD. Inf. Construcción 2022, 74, e428. Available online: http://hdl.handle.net/2183/31093 (accessed on 10 August 2024). [CrossRef]
  24. Durdyev, S.; Ashour, M.; Connelly, S.; Mahdiyar, A. Barriers to the implementation of Building Information Modelling (BIM) for facility management. J. Build. Eng. 2022, 46, 103736. [Google Scholar] [CrossRef]
  25. Giuliani, F.; Gaglio, F.; Martino, M.; De Falco, A. A HBIM pipeline for the conservation of large-scale architectural heritage: The city Walls of Pisa. Herit. Sci. 2024, 12, 35. [Google Scholar] [CrossRef]
  26. Pinti, L.; Codinhoto, R.; Bonelli, S. A Review of Building Information Modelling (BIM) for Facility Management (FM): Implementation in Public Organisations. Appl. Sci. 2022, 12, 1540. [Google Scholar] [CrossRef]
  27. Raitviir, C.-R.; Lill, I. Conceptual Framework of Information Flow Synchronization throughout the Building Lifecycle. Buildings 2024, 14, 2207. [Google Scholar] [CrossRef]
  28. Machete, R.; Falcão, A.P.; Gonçalves, A.B.; Godinho, M.; Bento, R. Development of a Manueline Style Object Library for Hertage BIM. Int. J. Archit. Herit. 2022, 15, 1930–1941. [Google Scholar] [CrossRef]
  29. Crisan, A.; Pepe, M.; Costantino, D.; Herban, S. From 3D Point Cloud to an Intelligent Model Set for Cultural Heritage Conservation. Heritage 2024, 7, 1419–1437. [Google Scholar] [CrossRef]
  30. Yang, X.; Grussenmeyer, P.; Koehl, M.; Macher, H.; Murtiyoso, A.; Landes, T. Review of built heritage modelling: Integration of HBIM and other information techniques. J. Cult. Herit. 2020, 46, 350–360. [Google Scholar] [CrossRef]
  31. Huang, Y. Bibliometric analysis of GIS applications in heritage studies based on Web of Science from 1994 to 2023. Herit. Sci. 2024, 12, 57. [Google Scholar] [CrossRef]
  32. Pepe, M.; Costantino, D.; Alfio, V.S.; Restuccia, A.G.; Papalino, N.M. Scan to BIM for the digital management and representation in 3D GIS environment of cultural heritage site. J. Cult. Herit. 2021, 50, 115–125. [Google Scholar] [CrossRef]
  33. Abdelkarim, A.; Abdelhafez, M.H.H.; Elkhayat, K.; Alshenaifi, M.; Alfraidi, S.; Aldersoni, A.; Albaqawy, G.; Aldamaty, A.; Ragab, A. Spatial Suitability Index for Sustainable Urban Development in Desert Hinterland Using a Geographical-Information-System-Based Multicriteria Decision-Making Approach. Land 2024, 13, 986. [Google Scholar] [CrossRef]
  34. Maky, A.M.; AlHamaydeh, M.; Saleh, M. GIS-Based Regional Seismic Risk Assessment for Dubai, UAE, Using NHERI SimCenter R2D Application. Buildings 2024, 14, 1277. [Google Scholar] [CrossRef]
  35. Basiouka, S. The Hellenic Archaeological Cadastre: A Land Administration System Specifically Designed for the Documentation and Management of Cultural Heritage. Land 2024, 13, 955. [Google Scholar] [CrossRef]
  36. Al Shammas, T.; Gullón, P.; Klein, O.; Escobar, F. Development of a GIS-based walking route planner with integrated comfort walkability parameters. Comput. Environ. Urban Syst. 2023, 103, 101981. [Google Scholar] [CrossRef]
  37. Majumder, S.; Roy, S.; Bose, A.; Chowdhury, I.R. Multiscale GIS based-model to assess urban social vulnerability and associated risk: Evidence from 146 urban centers of Eastern India. Sustain. Cities Soc. 2023, 96, 104692. [Google Scholar] [CrossRef]
  38. Wang, H.; Shan, Y.; Xia, S.; Cao, J. Traditional Village Morphological Characteristics and Driving Mechanism from a Rural Sustainability Perspective: Evidence from Jiangsu Province. Buildings 2024, 14, 1302. [Google Scholar] [CrossRef]
  39. Ferro, A.; Lo Brutto, M.; Ventimiglia, G.M. A Scan-to-BIM Process for the Monitoring and Conservation of the Architectural Heritage: Integration of Thematic Information in a Hbim Model. Int. Arch. Photogramm. Remote Sens. Spat. Inf. Sci. 2023, 48, 549–556. [Google Scholar] [CrossRef]
  40. Liu, W.; Li, Z.; Sun, S.; Du, H.; Sotelo, M.A. Georeferencing kinematic modeling and error correction of terrestrial laser scanner for 3D scene reconstruction. Autom. Constr. 2021, 126, 103673. [Google Scholar] [CrossRef]
  41. Zhu, Z.; Rowlinson, S.; Chen, T.; Patching, A. Exploring the Impact of Different Registration Methods and Noise Removal on the Registration Quality of Point Cloud Models in the Built Environment: A Case Study on Dickabrma Bridge. Buildings 2023, 13, 2365. [Google Scholar] [CrossRef]
  42. Huang, X.; Mei, G.; Zhang, J.; Abbas, R. A Comprehensive Survey on Point Cloud Registration. arXiv 2021, arXiv:2103.02690. [Google Scholar] [CrossRef]
  43. Barazzetti, L.; Roncoroni, F. Generation of a Multi-Scale Historic BIM-GIS with Digital Recording Tools and Geospatial Information. Heritage 2021, 4, 3331–3348. [Google Scholar] [CrossRef]
Figure 1. Research Workflow Diagram of Guanyin Pavilion and Tangwang Palace.
Figure 1. Research Workflow Diagram of Guanyin Pavilion and Tangwang Palace.
Buildings 14 02649 g001
Figure 2. Location of Guanyin Pavilion and Tangwang Palace.
Figure 2. Location of Guanyin Pavilion and Tangwang Palace.
Buildings 14 02649 g002
Figure 3. Aerial View of Guanyin Pavilion.
Figure 3. Aerial View of Guanyin Pavilion.
Buildings 14 02649 g003
Figure 4. Vertical status and inclined status of columns.
Figure 4. Vertical status and inclined status of columns.
Buildings 14 02649 g004
Figure 5. Partial view of Tangwang Palace.
Figure 5. Partial view of Tangwang Palace.
Buildings 14 02649 g005
Figure 6. Plan of the Tangwang Palace.
Figure 6. Plan of the Tangwang Palace.
Buildings 14 02649 g006
Figure 7. Cultural heritage elements in GIS.
Figure 7. Cultural heritage elements in GIS.
Buildings 14 02649 g007
Figure 8. Visualization of roof patterns in GIS.
Figure 8. Visualization of roof patterns in GIS.
Buildings 14 02649 g008
Figure 9. Maintenance Records of Tangwang Palace in 1974.
Figure 9. Maintenance Records of Tangwang Palace in 1974.
Buildings 14 02649 g009
Figure 10. Maintenance Records of Tangwang Palace in 1982.
Figure 10. Maintenance Records of Tangwang Palace in 1982.
Buildings 14 02649 g010
Figure 11. Maintenance Records of Tangwang Palace in 2000.
Figure 11. Maintenance Records of Tangwang Palace in 2000.
Buildings 14 02649 g011
Figure 12. Disease Map of Tile Roofs in Core Buildings of Tangwang Palace.
Figure 12. Disease Map of Tile Roofs in Core Buildings of Tangwang Palace.
Buildings 14 02649 g012
Figure 13. Maintenance of Platforms in the Core Area of Tangwang Palace.
Figure 13. Maintenance of Platforms in the Core Area of Tangwang Palace.
Buildings 14 02649 g013
Figure 14. Point Cloud Data.
Figure 14. Point Cloud Data.
Buildings 14 02649 g014
Figure 15. Point cloud data before denoising.
Figure 15. Point cloud data before denoising.
Buildings 14 02649 g015
Figure 16. Point cloud data after denoising.
Figure 16. Point cloud data after denoising.
Buildings 14 02649 g016
Figure 17. Slicing of Point Cloud Data.
Figure 17. Slicing of Point Cloud Data.
Buildings 14 02649 g017
Figure 18. 3D Modeling Process.
Figure 18. 3D Modeling Process.
Buildings 14 02649 g018
Figure 19. BIM Documentation of Platform Foundation Diseases in the Annex.
Figure 19. BIM Documentation of Platform Foundation Diseases in the Annex.
Buildings 14 02649 g019
Figure 20. Condition Assessment of Main Timbers: Repairs and Wood Species in the Annex Hall of Tangwang Palace.
Figure 20. Condition Assessment of Main Timbers: Repairs and Wood Species in the Annex Hall of Tangwang Palace.
Buildings 14 02649 g020
Table 1. 3D Laser Scanner Parameters.
Table 1. 3D Laser Scanner Parameters.
ParameterCoefficientUnit
Laser TypeType I--
Pixel8 million--
Maximum Scanning Distance280m
Minimum Scanning Distance0.5m
Scanning Speed980,000points per second
Scanning Error±1mm
Vertical Field of View280°
Horizontal Field of View360°
GPS Navigation MethodIntegrated Signal Receiver--
Leveling Accuracy3
Imaging3 × 10MP
CalibrationAutomatic Calibration--
Table 2. Terrestrial laser scanning target distance meter.
Table 2. Terrestrial laser scanning target distance meter.
Distance GroupMeasurement 1 (m)Measurement 2 (m)Measurement 3 (m)Measurement 4 (m)Measurement 5 (m)
7.99 m7.9877.9997.9957.9867.989
25.57 m25.55825.58425.56425.54925.577
40.86 m40.83940.85340.85540.85840.882
Table 3. Comparison of Sample Distances.
Table 3. Comparison of Sample Distances.
Sample No.Handheld Meter (m)Total Station (m)Trimble X7 (m)
012.1682.1772.165
022.9862.9812.984
036.9546.9546.949
047.7877.7797.781
058.9698.9678.959
1935.76935.79535.737
Table 4. Relative Error Comparison.
Table 4. Relative Error Comparison.
Sample No.Total Station Relative ErrorTrimble X7 Relative Error
011/240.8881/643.299
021/597.1931/1259.654
030/01/1234.829
191/2336.9951/1542.739
Table 5. Tilt Angles of Columns.
Table 5. Tilt Angles of Columns.
Column NumberHelix AngleColumn NumberHelix AngleColumn NumberHelix Angle
10.502690.6720170.4828
20.5561100.7124180.3976
30.4974110.7704190.2643
40. 4635120.3580200.3486
50.7892130.2295210.3842
60.6914140.2401220.3250
70.6007150.2598230.4736
80.5442160.2115240.5899
Table 6. Data accuracy checks.
Table 6. Data accuracy checks.
PositionManual MeasurementsPoint Cloud MeasurementsAbsolute ErrorRelative Error
top floor width16,00016,010100.0625
Ceiling height3500349550.1429
Column diameter 125025552.0
Beam width 1300310103.33
Table 7. BIM Data on Pedestal Damage and Repairs.
Table 7. BIM Data on Pedestal Damage and Repairs.
Component NumberComponent NameComponent CategoryDamage PhenomenonTreatment Measures
T001Square TilePlatform BaseEfflorescencehardening treatment
T002Square TilePlatform BaseEfflorescencehardening treatment
T003Square TilePlatform BaseEfflorescencehardening treatment
T004Square TilePlatform BaseEfflorescencehardening treatment
T005Square TilePlatform BaseEfflorescencehardening treatment
T006Square TilePlatform BaseEfflorescencehardening treatment
T007Square TilePlatform BaseEfflorescencehardening treatment
T008Square TilePlatform BaseEfflorescencehardening treatment
T009Square TilePlatform BaseEfflorescencehardening treatment
T010Square TilePlatform BaseEfflorescencehardening treatment
Table 8. GIS Statistics and One-Click Export of Building Information.
Table 8. GIS Statistics and One-Click Export of Building Information.
NumberBuilding NameFunctionalTile Roof DamageRoof FormMajor Timber RepairPlatform Base Repair Display and Utilization
H001Duty room 1Merchandise salesDecayed wooden substrateCurved gable and hip roofRoof overhang repair Multi-functional
H002Duty room 2Merchandise salesDecayed wooden substrateCurved gable and hip roofRoof overhang repair Visitor guide
H003Duty room 3DiningDecayed wooden substrateCurved gable and hip roofRoof overhang repair Multi-functional
H004Tang Wang PalaceExhibitionAging waterproofing layer in the gutterHip roof Surface repairOriginal state display
H005I-shaped corridorExhibitionAging waterproofing layer in the gutterCurved gable roof Original state display
H006Rear hallExhibitionDecayed wooden substrateCurved gable roofRafter repair and inspectionPlatform edge repairOriginal state display
H007Plum PavilionStorage Deforming along with the wooden structureCurved gable roofRoof overhang repair Original state display
H008Annex hall 1Storage Disorderly variety of tile patternsGable roofCurrent condition reinforcementDismantlig and rebuilding platform edgeSpecial exhibition
H009Annex hall 2Storage Deforming along with the wooden structureGable roofRoof overhang repair Special exhibition
H010Fushou HallExhibitionDecayed wooden substrateCurved gable roofRafter repair and inspectionSurface repairOriginal state display
H011Wanan HallVacantLocalized rain leakageCurved gable roof Platform edge repairOriginal state display
H012Fushou Hall surrounding housesExhibitionDecayed wooden substrateGable roofRoof overhang repair Management office
H013Wanan Hall surrounding housesVacantDecayedGable roofRoof overhang repairRestoration of stone stepsManagement office
Disclaimer/Publisher’s Note: The statements, opinions and data contained in all publications are solely those of the individual author(s) and contributor(s) and not of MDPI and/or the editor(s). MDPI and/or the editor(s) disclaim responsibility for any injury to people or property resulting from any ideas, methods, instructions or products referred to in the content.

Share and Cite

MDPI and ACS Style

Zhan, J.; Zhang, T.; Huang, J.; Li, M. Maintenance Approaches Using 3D Scanning Point Cloud Visualization, and BIM+ Data Management: A Case Study of Dahei Mountain Buildings. Buildings 2024, 14, 2649. https://doi.org/10.3390/buildings14092649

AMA Style

Zhan J, Zhang T, Huang J, Li M. Maintenance Approaches Using 3D Scanning Point Cloud Visualization, and BIM+ Data Management: A Case Study of Dahei Mountain Buildings. Buildings. 2024; 14(9):2649. https://doi.org/10.3390/buildings14092649

Chicago/Turabian Style

Zhan, Jingyi, Tianyi Zhang, Jinni Huang, and Ming Li. 2024. "Maintenance Approaches Using 3D Scanning Point Cloud Visualization, and BIM+ Data Management: A Case Study of Dahei Mountain Buildings" Buildings 14, no. 9: 2649. https://doi.org/10.3390/buildings14092649

APA Style

Zhan, J., Zhang, T., Huang, J., & Li, M. (2024). Maintenance Approaches Using 3D Scanning Point Cloud Visualization, and BIM+ Data Management: A Case Study of Dahei Mountain Buildings. Buildings, 14(9), 2649. https://doi.org/10.3390/buildings14092649

Note that from the first issue of 2016, this journal uses article numbers instead of page numbers. See further details here.

Article Metrics

Back to TopTop