Next Article in Journal
Seismic Behavior of Composite Columns with High-Strength Concrete-Filled Steel Tube Flanges and Honeycomb Steel Webs Subjected to Freeze-Thaw Cycles
Previous Article in Journal
Experimental Study on Transport of Cd(II) and Cu(II) in Landfill Improved Clay Liners Building Material Containing Municipal Sludge-Activated Carbon
 
 
Font Type:
Arial Georgia Verdana
Font Size:
Aa Aa Aa
Line Spacing:
Column Width:
Background:
Article

Courtyards and Adjacent Spaces: Analyzing 26 Cases of Second-Order Proximity in Traditional Courtyard Houses of Yazd

by
Mina Zolfagharkhani
1,* and
Ahmad-Reza Foruzanmehr
2
1
Faculty of Art and Architecture, Science and Research Branch, Islamic Azad University, Semnan 3616743145, Iran
2
Faculty of Buildings and Civil Engineering, University of Sherbrooke, Sherbrooke, QC J1K 2R1, Canada
*
Author to whom correspondence should be addressed.
Buildings 2024, 14(9), 2639; https://doi.org/10.3390/buildings14092639
Submission received: 31 May 2024 / Revised: 16 July 2024 / Accepted: 20 August 2024 / Published: 25 August 2024
(This article belongs to the Section Architectural Design, Urban Science, and Real Estate)

Abstract

Iranian traditional residential architecture is renowned for its central-courtyard houses, which are admired for their grandeur. While the courtyards and nearby spaces receive considerable artistic and historical appreciation, those situated further away often receive less attention. These areas are typically considered auxiliary and less functional for living, thereby receiving limited attention in architectural discussions. This study examines 26 traditional central-courtyard houses to investigate how spaces located farther from the courtyard (‘second-order’) compare to those directly adjacent (‘first-order’). It challenges the assumption that distance from the courtyard correlates with reduced functionality. Surprisingly, the analysis identifies similar architectural characteristics in both second-order and first-order spaces, suggesting that distant areas may serve functional roles comparable to those nearer the courtyard.

1. Introduction

The central courtyards in historic Iranian homes play a fundamental role in daily life, echoing their physical centrality. Consequently, the spaces adjacent to these courtyards derive significant importance from their connection to this central feature. The contemporary literature consistently highlights the prominence of proximity to these spaces [1,2,3,4,5,6,7]. Thus, these areas primarily accommodate essential household activities, while more distant spaces predominantly support and facilitate these core functions. This distinction between primary living spaces and auxiliary service areas directs scholarly focus towards the courtyard and its immediate surroundings, termed “first-order spaces”, often overshadowing areas situated further away, referred to here as “second-order spaces”.
The rooms surrounding the courtyard’s perimeter, due to their strategic location, have received substantial attention from researchers. Multiple analyses have scrutinized their functionality, climatic considerations, and quantitative and qualitative design aspects [8,9,10,11]. Research indicates that these spaces adjacent to the courtyard possess ample floor plans that are well suited for residential purposes, both in quantity and quality [12,13,14,15,16,17,18,19,20,21]. The quantitative and qualitative attributes of these spaces serve as fundamental criteria for evaluating residential usage areas.
Conversely, a substantial research gap exists concerning second-order spaces due to their location within historical residences. These spaces have been conventionally categorized as service areas due to limited access to natural light and ventilation, resulting in relatively neglected quantitative and qualitative attributes [22]. While first-order spaces were generally more elaborate, implying a higher significance, this does not exclusively dictate a service-oriented role for the latter, particularly in the absence of empirical evidence from existing sources. Consequently, there is a scarcity of precise information regarding the intended functions and designs of these second-order spaces. This knowledge gap could lead to flawed design concepts and obscure factors relating to the climatic, social, and cultural performance of courtyard houses. Therefore, this paper aims to rectify this gap by improving our understanding of these spaces’ roles and investigating hypotheses regarding their qualitative and quantitative characteristics.
This paper addresses this research gap by scrutinizing 26 case-study courtyard houses in Yazd, central Iran, spanning various historical periods. Our focus is to unravel the functional and spatial disparities between second-order and first-order spaces. While the literature predominantly accentuates the strategic design and climatic considerations of courtyard-adjacent spaces, our study sheds light on the overlooked second-order spaces, challenging the conventional perception of their role and significance.
In this research, the focus was on selecting houses with minimal alterations and changes, such as decorations, in order to recognize the primary function of the spaces. Interior spaces could accommodate multiple functions in addition to their main one and have the potential to change functions over several centuries in response to changes in social conditions and people’s lives.
The houses were built in a compact and dense texture with a bearing wall made of clay and mud and a roof structure made of domes and vaults. The bearing wall system was effective in the shape of the geometry and arrangement of the space. In other words, there was a mutual and simultaneous connection in the planning of the space’s layout and the structure, in such a way that it was impossible to change the dimensions or remove and add the space because the walls of the space were the structure that supported the roof.
A full archeological approach to this topic is beyond the scope of the present research. The data collection method used in the present research limits its capacity to fully understand how all spaces in all buildings were used in the past and how the designs and their elements evolved over time. As such, only general comments can be made about construction techniques, and the impacts of some of these factors limit the scope of our conclusions.
This study comprises three sequential sections. The Section 2 delves into the historical context and the contemporary comprehension of the traditional Iranian courtyard house, focusing on its spatial functions. Following this, the Section 3 elucidates the methodology and design employed in the case study. Subsequently, the Section 4 analyses the results obtained from the case study. Finally, the paper concludes with a Section 5 that reflects on the findings and proposes potential avenues for future research.

2. Background

In the cities of central Iran, particularly in Yazd, the most prevalent traditional dwelling type is the single central courtyard, often one or occasionally two stories high [23]. Typically, these houses feature a symmetrical private central courtyard surrounded by rooms and loggias on two, three, or even all four sides. The courtyard often features a small water pool surrounded by mixed planting beds, serving as a focal point for light, fresh air, and a sense of tranquility and beauty [24]. Rooms typically connect to this central space, presenting varying sizes and designs. Historically, these rooms were utilized seasonally, guided not only by the season [3] but also by their physical and visual proximity to the courtyard [25,26].
The rooms adjacent to the courtyard, referred to in this study as first-order spaces, are categorized by varying labels that correspond to their seasonal utilization and physical dimensions [27]. Typically, their names correspond to their location as well as the number of door-windows facing the courtyard [28,29]. These door-windows, functioning akin to windows, comprise double doors leading directly into the courtyard [3]. Predominant among room types in traditional Iranian courtyard residences are three-door rooms (se-dari), five-door rooms (panj-dari), and sash-window rooms (orsi)) [29]. Occasionally, larger houses also featured seven-door rooms. Additional first-order spaces encompass upper-level rooms (bala-khaneh), corner rooms (gooshvar), and loggias (talar) [22].
These first-order spaces exhibit distinctive features beyond their connection to the courtyard. Typically, the larger rooms, around 40 m2 in size, are centrally located along the courtyard’s edges, while the smaller ones, approximately 11 m2, are positioned near the corners of the courtyard [19]. These spaces vary in ceiling height, ranging from 2.4 to 5.3 m [22], with guest areas often featuring higher ceilings to evoke a grand ambiance. The functionality of these first-order spaces is tailored to meet the needs of occupants throughout the year and for various occasions, all while adhering to climatic requirements.
The significance of first-order spaces is underscored by the incorporation of additional chambers and spaces connected to them, serving various purposes such as closet alcoves (ṣandoogh-khaneh), utilized for storage, extra sleeping quarters, or as more secluded areas [30]. These spaces are intricately designed with wall recesses intended for storing items like candles and books, contributing to the aesthetic allure of the rooms [18]. Moreover, these areas often featured windcatchers, employed to regulate temperature, although their implementation was constrained by construction limitations and associated costs [31]. The significance of these first-order spaces is further underscored by the ornamental treatment of their walls and ceilings, incorporating intricate designs like muqarnas and mirror works [32]. These decorative elements not only added to the visual richness of the spaces but also served as a testament to the craftsmanship and cultural richness embedded within the architectural fabric of these dwellings. They symbolized a convergence of functional and artistic considerations, elevating these spaces beyond mere utilitarianism to spaces of cultural and aesthetic significance within the architectural milieu of their time.
In contrast to first-order spaces, second-order areas lack direct access to the central courtyard, missing out on the benefits of direct daylight and natural ventilation [22]. They were typically connected to the central spaces, either directly or via corridors, resulting in a limited visual connection to the courtyard and reduced exposure to natural light and fresh air [22]. Unlike the expansive windows in first-order spaces, second-order areas often depended on smaller ceiling openings for ventilation and light. This architectural distinction has led architectural scholars to associate these spaces with a perceived lower importance, often categorizing them as service areas [22]. This distinction reinforces the division between spaces designed for habitation and those designated for service, highlighting the functional hierarchy inherent in the architectural arrangement.
Second-order spaces encompass a range of functional areas within architectural structures, including the kitchen, storage areas (anbar), pantry (pastoo), vestibule (hashti), attached heated-table chamber (korsi-khaneh), corner alcove (gooshvar), attached resting rooms, sleeping alcoves, and occasionally stables. Among these, while certain spaces like kitchens, stables, and toilets were evidently designed for service purposes, distinguishing the others solely as service spaces has proven challenging. The absence of clear delineation between service and non-service spaces is evident, prompting the question of whether the characterization of these areas as exclusively service-oriented is accurate. Factors such as distance from the central courtyard and a lack of natural light have traditionally justified their association with service areas [22]. However, this broad categorization may not entirely capture the nuanced functions and purposes of these spaces, suggesting a need for a more nuanced understanding beyond mere physical proximity and illumination constraints. This challenges conventional assumptions about the functional divisions within architectural layouts and underscores the complexity of spatial design and its interpretation within historical contexts.

3. Materials and Methods

According to the aim of this study, a sequence of logical deductions has culminated in the pursuit of this investigation:
  • The attributes that contribute to a space’s livability extend beyond mere access to light and courtyard views.
  • First-order spaces within the house were likely designed with these additional qualities.
  • If second-order spaces exhibit similar qualities, there exists a likelihood of them serving as living areas as well.
Exploring this further, this study utilizes both quantitative and qualitative analyses, common methods in architectural studies. However, a notable limitation emerges: the lack of well-defined criteria to differentiate residential areas from service spaces within these house designs. Essentially, domestic spaces lack clear, predetermined qualitative and quantitative features for each function until they are positioned on the plan, often leading to spaces serving multiple purposes.
To delve into this, this study reviewed previous research, pinpointing key criteria that are crucial for evaluating the features of first-order spaces. These criteria formed the cornerstone of the analysis and exploration of internal spaces in this study. Quantitative and qualitative characteristics specific to first-order spaces were meticulously identified within each criterion, serving as benchmarks to identify spaces with residential functionality. Consequently, spaces exhibiting the closest resemblance within each criterion were discerned as residential areas, drawing comparisons between their quantitative and qualitative attributes and those of second-order spaces.
To offer clarity, the criteria were categorized into two clusters: quantitative and qualitative. Quantitative criteria encompassed area (length × width) and height. Previous studies suggested that spaces adjacent to the courtyard typically had an average height of 4 m, with areas falling into two scales: larger spaces, such as the hall, averaging 40 m2, and smaller spaces, like rooms adjacent to the hall, averaging 11 m2. Therefore, the calculated dimensional mean for first-order spaces was used as the comparative baseline for the quantitative criteria.
The qualitative criteria, as observed in prior studies, encompass visual characteristics, methods of providing light, ventilation, access to the yard, roof structure, and secondary/supporting spaces. With the exception of lighting and yard access, the qualitative and quantitative features of second-order spaces align directly with those of first-order spaces across various criteria. Upon examining second-order spaces, two distinct approaches were identified concerning lighting and yard access. In terms of quality and similarity to first-order spaces, one method emerged as preferable, leading to a qualitative differentiation and superiority of certain non-adjacent spaces over others. Brief descriptions of the quality criteria are outlined below:
  • Courtyard Access: First-order spaces have direct access via a short side corridor, owing to their proximity to the yard. Second-order spaces, being farther from the yard, offer access through either a corridor or an intermediate space.
  • Supporting Spaces: Some first-order spaces house secondary rooms or closets dedicated to supporting and serving the connected space.
  • Niche and Wall Decorations: First-order spaces commonly feature visually intricate recessed wall decorations, exhibiting rich and symmetrical designs.
  • Lighting: Proximity to the courtyard grants first-order spaces direct natural light.
  • Roof Structure: The prevalent roof structures in domestic spaces are vaults and domes. Domed roofs, requiring more time and effort to construct, often signify the significance of the space.
  • Ventilation: Ventilation serves dual purposes—service-related, such as channels in stables and kitchens to remove smoke and odors, and climatic conditions, like windcatchers positioned near the house’s primary area in the summer section.
A scoring system has been applied to both quantitative and qualitative criteria for swift analysis and comparison, aiding in identifying functions and spaces exhibiting high similarity. As a result, certain features are deemed favorable and beneficial, while others may have a negative impact, leading to the exclusion of spaces for residential use. To streamline this process, this study included the kitchen platform criterion within the qualitative features, aiding in the elimination of spaces designated for service functions. Additionally, the presence of animal feeding platforms implies the use of the space as stables, while the existence of wells indicates its intended sanitary function. Moreover, the design featuring heads of wells or cisterns strongly suggests the room’s primary purpose as being sanitary in nature.

Case Studies

For this investigation, in December 2021, a total of twenty-six houses (refer to Table 1) were specifically chosen within the historic district of Yazd, situated in central Iran. Yazd was selected as a case study because it has the most vernacular central-courtyard houses in Iran and the Middle East. Its rich historical significance, unique architectural features like windcatchers and qanat systems, and recognition as a UNESCO World Heritage Site make it an exemplary model for studying central-courtyard houses in Iran. The selection criteria were twofold: firstly, the city’s profound significance and its emblematic status regarding this architectural typology, notably given its entire quarter being designated as a UNESCO World Cultural Heritage site. Secondly, due to constraints imposed by the COVID-19 pandemic, the authors were compelled to focus on cases where documentation was readily available and accessibility to their locations was feasible based on the authors’ prior familiarity with these sites.
The selected houses encompassed a broad historical spectrum, spanning from the Seljuq era of the 11th century to the First Pahlavid era of the 20th century. Distributed across various segments of the historic district, these cases were strategically positioned to holistically represent the entirety of this architectural typology (refer to Figure 1).
The information regarding the cases was gathered from two main sources: the Yazd Cultural Heritage office and predominantly through photography conducted by one of the authors. Site visits aimed to cross-reference the documented information with the current state of the houses, which varied significantly in condition—from near-ruins to fully restored and repurposed.
In cases of the latter, the houses’ mudbrick structure and adherence to restoration regulations ensured minimal layout changes, especially in recent times. However, limited access to certain rooms due to privacy or administrative reasons posed a constraint. Consequently, these rooms, lacking photographic documentation, were excluded from the study.
The floor plans of the houses were available either in CAD format or as scanned printed versions. Upon validation against on-site measurements, disparities of 0.1 m and 0.2 m were noted in the dimensions of rooms between the CAD and scanned versions, respectively. Considering that the average room area falls within 12–16 m2, these differences could result in a maximum average error of only 4%. Additionally, one of the authors conducted on-site measurements for the rooms’ heights.
For each house, the classification of spaces into first- and second-order categories was based on their accessibility to the courtyard. Spaces directly linked to or opening onto the courtyard were designated as first-order, while those accessed through corridors or confined areas without direct courtyard access were classified as second-order.
Following this classification, both qualitative and quantitative characteristics of the second-order spaces were gathered through field research and data sourced from the Yazd Cultural Heritage Organization.
A scoring system was implemented to identify second-order spaces that closely resembled the qualitative and quantitative attributes of the first-order spaces. This system involved assigning scores of 0, 1, or 2 to the qualitative and quantitative characteristics of the second-order spaces based on their similarity to the corresponding first-order spaces. For example, features such as the ventilation channel serving the stables and kitchen received a score of 0 due to their functional nature, while elements like the windcatcher were awarded a score of 2 owing to their significant impact on the climate comfort index (see Table 2 for detailed scoring).
The final score for each second-order space was calculated using the multiplication method, tailored to exclude spaces primarily designed for functional purposes. As a result, spaces featuring at least one attribute scoring zero were ultimately assigned a final score of zero.
In the subsequent phase, during each period, the second-order space with the highest score was scrutinized to enhance qualitative understanding. A comparative analysis was conducted between this space and one or more second-order spaces within the same house that had lower scores. This comparative assessment aimed to discern qualitative disparities between the spaces. Such comparisons proved crucial as they allowed for the determination of meaningful differences from lower-scoring second-order spaces while assessing similarities to first-order spaces. The significance of this analysis is exemplified in Section 4.1 pertaining to a highly scored space, illustrating the importance of distinguishing characteristics between spaces to either validate or refute the hypothesis.

4. Results

After analyzing 26 historical houses in Yazd City across various eras—Seljuk, Mozzafarid, Safavid, Zand and Afshar, Qajar, and Pahlalvid—a total of 125 second-order spaces were identified. Among these, 44 spaces demonstrated both qualitative and quantitative similarities to the first-order space (Table 3). Notably, space 2.9 in Golshan House (Qajar era) and space 2.3 in Karimi houses (Mozzafarid era) exhibited the lowest score of 2 and the highest score of 64, respectively.
Typically, these second-order spaces assume a rectangular form. Quantitatively, their dimensions span from 0.7 m to 5.2 m in width and 1.2 m to 8.7 m in length. The area covered by these spaces ranged between 1.32 square meters and 43.35 square meters, with an average area of 11.56 square meters.
These spaces exhibit a diverse array of qualitative characteristics. Notably, among the 44 spaces, 34 (77%) were connected to corridors, 32 (73%) featured wall recesses, 29 (67%) had ceiling openings, 9 (20%) included a subspace, and 12 (27%) were covered by domes. Interestingly, space 2.9 in Golshan House was the sole space within the studied selection that featured a windcatcher, a detail elaborated on later in this section. In subsequent subsections, four of the highest-scoring spaces will be presented and analyzed.

4.1. Space 2.8 in Ṭaagh Bolandha House (Seljuk Era)

Ṭāq Bolandhā house, also known as Ḵāne Bozorg (“large house”), is one of the oldest in Yazd. Space 2.8 (marked by dark shade and its white label in Figure 2) is one of the nine second-order spaces in this house. The room’s layout is a 4.15 × 4.35 rectangle with an area of 18.05 m2 and a height of 5.93 m. It is connected to a central courtyard by both a corridor and an iwan.
Considering the qualities, while there is an opening in the ceiling for lighting and ventilation, the room could have potentially received a considerable amount of light from the eyvan’s direction. This cannot be said with certainty because of a pair of doors with tinted glass panels that currently blocks most of that light. Whether this door was present in the house’s original state or if it had the same quality is also not known. Nevertheless, the decorative treatment of this door suggests that the room had some prominence, at least in later times.
The colorful door is also a piece of the symmetrical puzzle with a dozen wall recesses in the room. Most notably, there is a similar full-height arched recess opposite the door creating a strong central axis, emphasized by two small recesses at the sides of each larger recess. The other axis is also marked by three recesses, all rectangular, but with the side ones larger than the middle recess. One of the recesses was replaced by an opening that provided access to the corridor. The symmetry and richness of the recesses may attest to the visual importance of this room, which makes more sense if it was designed for long-term occupancy (Figure 3).
To better comprehend the significance of these characteristics, a visual comparison was conducted between a first-order space and three additional second-order spaces within the same house. Figure 4 displays photographs capturing the essence of the first-order space. While this particular room differs notably from room 2.8 due to its proximity to the courtyard and its brighter ambiance, it shares significant similarities in the richness and symmetry of its wall recesses and openings. In contrast, the remaining second-order spaces within the house (depicted in Figure 5) exhibit either simpler recesses (Figure 5a–c) or a complete absence of them (Figure 5d). Moreover, only one among these spaces (Figure 5d) receives illumination from the ceiling.
The distinctive features present within this particular space, particularly when compared to other areas in the house, suggest its designation as a ‘living’ space. Notably, it exhibited elaborate wall designs and employed relatively intricate and costly flooring materials. As such, it is plausible that this second-order space served as a hub for various daily activities.
Considering its location, nestled in the southern part of the house and shielded by a deeply shaded loggia (eyvan or iwan) that faced away from direct sunlight, this space seems purposefully designed for the sweltering summers of the city. This contrasts sharply with the visually akin first-order space, which welcomed the southern sun, offering a delightful experience during milder winters. Both rooms, although smaller in comparison to other first-order spaces, likely catered to intimate family gatherings and smaller-scale activities.

4.2. Space 2.3 in Karīmī House (Mozaffarid Era)

Karīmī house is a central-courtyard house with a relatively small courtyard that was typical of the Mozaffarid era. However, unlike the conventional design, this building was connected to a sizable garden, serving a comparable purpose for its adjoining spaces [33]. Within this house, space 2.3 stands out as the second-largest among the four second-order spaces, distinguished by darker shading in Figure 6.
The room was almost rectangular with an area of around 20 m2, dimensions of 5.6 m by 3.7 m, and a height of 4.3 m. It was accessed via two openings, one from a first-order space near the garden and the other through a corridor that was connected to the courtyard. In addition, the room had sole access to a small room at its northern edge.
The room’s ceiling was built on two structures (Figure 7b,c). In the rear, an arch covered the room along with its width. At the front, the room was covered with a dome instead. This difference created a sense of divided space with the rear part as a subspace that was considered a Shah-neshin [33]. The room also had a small support space in north (Figure 7d). The latter had originally been only accessed via the selected space but the northern wall had been opened at some point and later sealed again.
The room’s features were not arranged symmetrically, except for the recesses in the rear portion. The comparison between this room and other spaces in the house had curious outcomes. The first-order spaces had even less elaborate features than the selected room. Meanwhile, the large adjacent second-order space (Figure 8b) had a multitude of double-story symmetrical wall recesses. In contrast, the other second-order space (Figure 8a) had plain walls (space 2.4 was a sandoogh-khaneh (‘closet house’), and thus due to its distinct purpose was not included in the comparison).
The curious simplicity of the first-order space (Figure 9) in contrast with the emphasis on the second-order spaces (šāh-nešīn in the selected space and a gallery-like treatment of 2.2) defied the expectations of a typical traditional house. One way to make sense of it is to consider the extraordinary careful and reclusive architecture of the time, as a reaction to the devastating Mongol invasion decades earlier. One would imagine that people tried to hide the most important spaces deep inside the houses while keeping the outward appearance simple to avoid attention [33].

4.3. Space 2.1 in Nadeb House (Safavid Era)

Nadeb house is a well-preserved house from the Safavid era that is currently inhabited by a family. The selected room (2.1 on the floor plan, Figure 10) had a 5.8 m by 3.2 m rectangular layout with a height of 4.0 m and an area of 18.5 m2. It was located in the southern corner of the house, accessing the courtyard via a long corridor.
The room was covered with an arch structure without an opening for lighting. However, this was because all the ceiling openings in the house had been sealed from inside at some point, although the openings’ outline was still visible on the roof (Figure 11). Hence, the room originally had natural lighting through the ceiling.
The room features a very wide entrance from the corridor. Although this is rare in general, two other rooms (2.2 and a first-order in the east side of the courtyard) had such openings. However, accessing the same space (its “support” space in the north) via two openings is rare. Speculation about the reason for this double access would not be easy because one of the openings might have not been originally there, considering the arrangement of the wall recesses, as discussed below.
The walls had double-story symmetrical wall recesses on the western wall (three pairs) and southern walls (four pairs) with the lower ones having a header-like projection. While the divisions of the northern wall mirrored its southern counterpart on the plan, two of the divisions were replaced with the openings to the support space. The rear opening curiously did not have the same vertical proportions with wall recesses, making it difficult to imagine it had originally been a recess that was later carved out. However, the second one (closer to the corridor entrance, barely visible on the left of Figure 12) had this proportion as well as the upper recess. Considering that this part of the wall was not structural, a later modification of a recess into the opening cannot be ruled out.
The comparison with a first-order space (Figure 13) revealed a similar interior design (except for the courtyard window). The wall recesses were arranged in double-story pairs with a similar size and distance. The header-like projection of the lower recesses was similar in both spaces. On the other hand, other second-order spaces had plain walls in comparison (Figure 14) and also lacked the symmetry in both the selected room and the first-order space.
The architectural treatment of the selected space is more similar to a first-order space than a typical second-order space in Nādeb house. The selected room is relatively large and is supported by a large space as well. The southward location of the space points to a possible summer usage, being shaded from the sun and distanced and insulated from the hot open spaces by a buffer range of spaces and thick walls. It is also far from the entrances, ensuring the privacy of its occupants against guests and visitors. A living purpose for this space is imaginable.

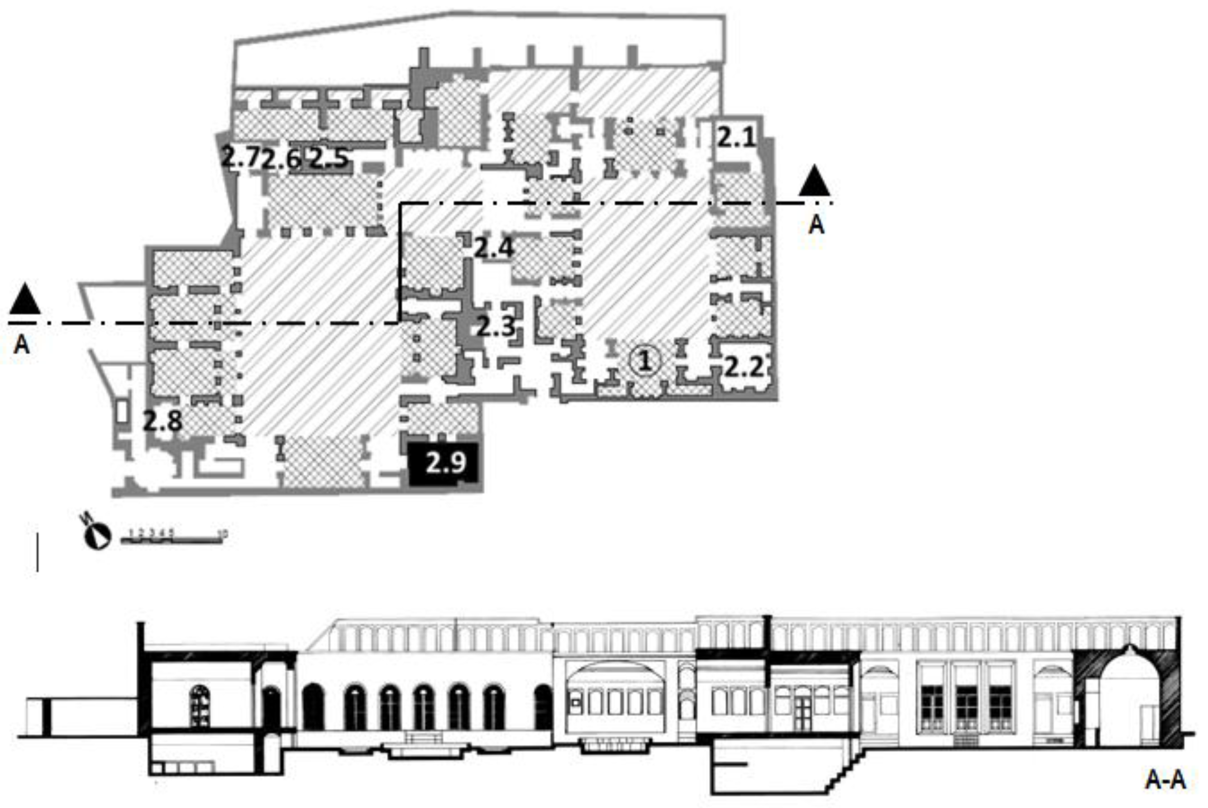
4.4. Space 2.9 in Golshan House (Qajar Era)

Golshan House is a large residential complex built in the 1800s that has been repurposed as hotel. Despite the considerable restoration work on the building, the structure and forms have been retained. Space 2.9 is located the southern corner of its larger courtyard (shown in Figure 15 with its label and dark shade).
The room consists of two rectangular parts with a combined area of 28.7 m2, making it the largest of the selected spaces in this paper. The main and larger part is almost a square, stretching 4.8 × 4.3 m, and the smaller rear portion is 4.3 × 1.9 m and is elevated by a 40 cm step. The room is accessed through a corridor from the same corner and by the first-order room at its north. Currently, the latter space is a bedroom with space 2.9 as its lounge (Figure 16). The bedroom’s floor is around 60 cm higher than the lounge’s, requiring two steps for transition.
The main part is covered with a dome that peaks at 6.2 m where an octagonal opening is carved to allow natural light in. It might have been possible to receive some light from the courtyard via the narrow bedroom and the wide corridor but the exact nature of the doors between the spaces is not known to let us investigate further. The rear portion is located under a wind tower, an oddity for a second-order space, and so does not have a structural ceiling. It, instead, has a decorative wooden lattice on top that may also moderate the breeze current.
Except for the openings, the walls of the main part are relatively plain without a recess. This contrasts with the rich treatment of the floor that was rare even for a first-degree order. The focal point of the room is an octagonal marble fountain whose vivid blue color highlights its importance against the yellowish brick floor (the potential original tiles). Meanwhile, the playful difference in elevation of this part, the rear portion, and the adjacent room adds to the richness of the design.
Although the fountain is the spatial focus of the room, its social focus was probably the rear portion. Its overseeing, elevated position hints to a shah-neshin which enjoyed the cool and slightly humid breeze that is vented out of the room via the wind tower after traveling over the fountain. The symmetrical wall recesses of which the main part was deprived also supports this purpose for the rear portion.
A comparison was made between this space and other spaces in this house. Figure 17 shows a similarly sized first-order space in the house (marked with an encircled “1” on the plan). The first-order space shows the common elaborate treatment of the walls with multiple recesses that was absent in the studied space. However, as mentioned, the floor of space 2.9 compensates for the plain walls. Most other second-order spaces in the house (Figure 18) have neither the recesses of the first-order space nor the playful floor of the studied space. They expectedly lack the shah-neshin too.
Structurally, the main part of the selected space shows great similarity to other second-order spaces. They have simple square-like layouts covered with a dome and receive light through the ceiling. In this sense, the selected space is very distant architecturally from a “living” first-order space. However, its rear elevated portion, its playful and elemental floor, and its well-ventilated space depart significantly from a typically plain second-order space. While it lacks visual similarity to a first-order space, it shares similarity in the degree of architectural attention by the designer, a fact that is absent in most second-order spaces.

5. Discussion and Conclusions

This study delved into the role of second-order spaces across 26 historical houses spanning eras from Seljuk to late Pahlavi. Methodically analyzing qualitative and quantitative features, we uncovered intriguing parallels between second-order spaces and their courtyard-adjacent counterparts, challenging conventional assumptions regarding their limited functionality.
This revelation prompts critical inquiries: Why do these indirectly lit spaces occupy the second layer, and what advantages do they offer over courtyard-adjacent areas? In the arid climate of Yazd City, these distant spaces act as a shelter against extreme temperatures, strategically positioned on the southern side to combat scorching summers.
Moreover, these spaces provide a haven for privacy and acoustic tranquility. Their distance from the courtyard aligns with the introverted architectural style prevalent in historical Yazd houses, shielding them from visibility and minimizing noise transfer, ensuring both privacy and acoustic comfort.
This recontextualization of non-adjacent spaces reveals meticulous design considerations aimed at enhancing comfort and serenity within historical courtyard houses. While direct access to nature is pivotal for sustainable architecture, our findings suggest the unforeseen comfort benefits of indirect access in certain conditions.
The presence of these distinct spatial zones not only denotes a hierarchical structuring concerning privacy levels within households but also yields considerable convenience and adaptability for inhabitants. The interplay of multiple proximate spaces offers occupants the flexibility to navigate diverse climatic, cultural, social, and familial contexts, thereby augmenting the sustainable nature of the dwelling. Furthermore, the varying degrees of natural light and illuminance within these areas significantly contribute to their functional diversity, amplifying the overall habitability of the residence. This multifaceted spatial configuration not only accommodates evolving resident requirements but also harmonizes with sustainable design principles, fostering an environment conducive to accommodating a spectrum of living scenarios.
Consequently, this study advocates for a reassessment of architectural norms, underscoring the significance of non-adjacent courtyard spaces for sustainable architecture and energy efficiency. Further exploration promises groundbreaking strides in sustainable architecture and green energy, necessitating comprehensive studies encompassing climatic, architectural, and societal dimensions for future advancements.
In essence, this exploration of second-order spaces within historical dwellings challenges conventional architectural hierarchies, revealing their pivotal role in enhancing comfort, privacy, and adaptability. These spaces, strategically distanced from central courtyards, offer not just shelter from extreme climates but sanctuaries of tranquility and flexibility. By redefining the significance of non-adjacent areas, this study advocates a paradigm shift in architectural considerations, emphasizing their crucial contribution to sustainable living. It beckons architects and scholars to reimagine spatial design, integrating these often-overlooked spaces into the forefront of sustainable architecture, recognizing their capacity to harmonize comfort, adaptability, and environmental consciousness within the tapestry of residential living.
The findings indicate that, except for direct access features and the absence of service-related attributes, second-order spaces closely resemble first-order spaces in both qualitative and quantitative characteristics. This shared design similarity suggests that certain second-order spaces can hold functional significance akin to that of first-order spaces.

Author Contributions

Conceptualization, M.Z. and A.-R.F.; methodology, M.Z.; formal analysis, M.Z.; investigation, M.Z. and A.-R.F.; data preparation, M.Z.; writing—original draft preparation, M.Z.; writing—review and editing, M.Z. and A.-R.F. All authors have read and agreed to the published version of the manuscript.

Funding

This research received no external funding.

Data Availability Statement

The authors confirm that the data supporting the findings of this study are available within the article.

Acknowledgments

The authors extend their thanks to Majid Olomi and Mohammad Katiraei of the Yazd Cultural Heritage Organization for their support. Additionally, they appreciate the contributions of Michael Ostwald from the University of New South Wales and Peiman Amini Behbahani from the Czech Technical University for their initial feedback and insightful comments that initiated this study.

Conflicts of Interest

The authors declare no conflict of interest.

References

  1. Amiriparyan, P.; Kiani, Z. Analyzing the Homogenous Nature of Central Courtyard Structure in Formation of Iranian Traditional Houses. Procedia—Soc. Behav. Sci. 2016, 216, 905–915. [Google Scholar] [CrossRef]
  2. Foruzanmehr, A. Thermal Comfort in Hot Dry Climates: Lessons from Traditional Dwellings in Iran; Routledge: London, UK, 2018; ISBN 978-1-138-69499-6. [Google Scholar]
  3. Foruzanmehr, A. Thermal comfort and practicality: Separate winter and summer rooms in Iranian traditional houses. Archit. Sci. Rev. 2016, 59, 1–11. [Google Scholar] [CrossRef]
  4. Hoseyni Zadeh Mehrjardi, S. Taein-e monasebtari jahat-e tabesh giri baraye hayat markazi khaneha-ye yazd, motaleh moredi khaneh Rasuliyan Yazd. Pazhuhesh Honar 2012, 2, 61–70. [Google Scholar]
  5. Hosseini, S.R.; Nik Ethegad, A.; Uson Guardiona, E.; Armesto Aira, A. Iranian courtyard housing: The role of social and cultural patterns to reach the spatial formation in the light of an accentuated privacy. Archit. City Environ. 2015, 10, 11–30. [Google Scholar] [CrossRef]
  6. Ghuchani, M.; Taji, M. Motalee naghsh-e faza-ye baz va olgu-ye por va khali khane va masjed dar memari sonati va baz afarini an dar moaser Iran. Motaleat-E Mohiti-Ye Haft Hesar 2018, 7, 89–102. [Google Scholar]
  7. Mazaheri, M.; Dezhdar, O.; Musavi, J. Tahlil-e naghsh-e hayat dar sakhtar-e fazaei khaneha-ye Irani ba bahre giri az ravesh-e nahve faza(space syntax). Hoviyat-E Shahr 2018, 12, 97–108. [Google Scholar]
  8. Amirbeiki Tafti, F.; Rezaeian, M.; Emadian Razavi, S.Z. Sunken courtyards as educational environments: Occupant’s perception and environmental satisfaction. Tunn. Undergr. Space Technol. 2018, 78, 124–134. [Google Scholar] [CrossRef]
  9. Asadi, S.; Fakhari, M.; Sendi, M. A study on the thermal behavior of traditional residential buildings: Rasoulian house case study. J. Build. Eng. 2016, 7, 334–342. [Google Scholar] [CrossRef]
  10. Heydari; Ali Akbar; Akbari, E.; Akbarī, Ā. Moghayeseh-ye tatbighi-ye randeman-e ʻamalkardi peykareh-bandi dar seh nezam-e khaneh ba peymun bozorg, peymun kuchak va khordeh peymun ba estefadeh az ravesh-e chideman-e faza. Memari Shahrsazi-E Arman. Shahr 2019, 28, 35–48. [Google Scholar]
  11. Taghi Zadeh, K.; Yazdani, M.M. Naghsh-e tadabir-e eghlimi mobtani bar jabejaei fasli dar teb-e sonati bar salamat-e ensan va tasir-e an bar shekl girī sazman-e fazaei memari maskuni sonati-ye iran. Motaleat-E Memari-Ye Iran 2018, 14, 97–123. [Google Scholar]
  12. Gharavi Alkhansari, M. Analysis of the Responsive Aspects of the Traditional Persian House. J. Archit. Urban. 2015, 39, 273–289. [Google Scholar] [CrossRef]
  13. Mahdavi Pur, H.; Mehrjerdi, S.; Akbar, A.; Eslami Nosrat Abadi, M. Barresi-ye naghsh-e tazeinat dar ertegha-ye keyfiyat fazayi khaneha-ye sonati yazd Bar asas-e motaleh moredi: Khane-ye Shafi-pur Yazd. Maskan Mohit-E Rusta 2017, 160, 133–149. [Google Scholar]
  14. Musavi, F.; Mahmudi Zarandi, M.; Tahbaz, M. Tasir-e hendeseh va sath-e nurgir-e panjerehha-ye otagha-ye zemestan-neshin bar ʻomgh-e nofuz-e nur-e ruz, motaleh moredi khanehha-ye sonati-ye Yazd. Hoviyat-E Shahr 2018, 12, 5–18. [Google Scholar]
  15. Pur Ahmadi, M.; Khanmohamadi, M.A.; Mozafar, F. Barresi-ye tahlili-ye tasir-e parametrha-ye kalbadi-ye pusteh dar ijad-e asayesh-e basari-ye khaneha-ye sonati-ye eghlim-e garm va khoshk-e Iran. Andisheh-E Memari 2021, 4, 135–153. [Google Scholar]
  16. Shakuri, R.; Seyed Khamushi, S.S. Keyfiyat-e enetaf paziri dar sonat-e memari-ye Irani olguye otagh-e shekam darideh dar khaneh-ye Irani, motaleh moredi khaneh Lariha-ye yazd. Maskan Mohit-E Rusta 2017, 159, 119–132. [Google Scholar]
  17. Soleymānī, M.; Mandegārī, K. Bazshenasi-ye osul-e khaneha-ye sonati-ye yazd dar pasokhguyi be niyazha-ye asasi ravan shenakhti bar asas-e teori-ye bar khasteh az zamineh. Honarha-Ye Ziba Memari Shahrsazi 2015, 2, 99–109. [Google Scholar]
  18. Soleymani, M.; Mondegari, K. Zibayi shenasi-ye khaneh-ye sonati-ye Iran, bazshenasi-ye moalefeha-ye zibayi bar asas-e mabani-ye barkhasteh az zamineh, motaleh moredi shahr-e yazd. Hoviyat-E Shahr 2017, 10, 67–78. [Google Scholar]
  19. Yazdi, Y.; Mofidi Shamirani, M.; Etesam, I. Meyarha-ye tarahi dar sakhtar-e hayat-e markazi va talar-e tabestan neshin-e khaneha-ye ghajar-e yazd. Motaleat-E Honar Eslami 2019, 15, 93–111. [Google Scholar]
  20. Yazdi, Y.; Mofidi Shamirani, M.; Etesam, I. Barresi-ye rabeteh-ye ajza-ye kalbadi-ye khaneha-ye bomi-ye eghlim-e garm va khoshk-e Iran, motaleh moredi: Khaneha-ye ghajari-ye yazd. Bagh Nazar 2021, 18, 59–76. [Google Scholar]
  21. Zandi Moheb, A. Shenakht va tahlil-e shesh khaneh-ye irani dar eghlimha-ye motefavet, golshani Yazd, Rasoliyan Yazd, emam jomeh Tehran, Borojerdiha-ye Kashan, Tabatabayi Kashan, Heydarzadeh Tabriz. Memari Shenasi 2019, 1, 1–18. [Google Scholar]
  22. Ghezelbash, M.; Abolzia, F. Alefba-ye Kalbod-e Khane-Ye Sonnati, Barnameh va Boodjeh, Daftar-e Tahghighat; Ministry of Program and Budget: Tehran, Iran, 1985.
  23. Foruzanmehr, A.; Vellinga, M. Vernacular Architecture: Questions of Comfort and Practicability. Build. Res. Inf. 2011, 39, 274–285. [Google Scholar] [CrossRef]
  24. Soltan Zadeh, H. Naghsh-e jografia dar shekl giri anva-e hayat dar khaneha-ye sonati-e Iran. Pazhuheshha-Ye Joghrafiya-Ye Ensani 2011, 75, 69–86. [Google Scholar]
  25. Pourmehdi Ghaem Maghami, H.; Khaki Ghasr, A. The Inside-Outside Relationship of Traditional Houses: A Case Study from Yazd, Iran. International J. Archit. Eng. Urban Plan. 2022, 32, 81–102. [Google Scholar] [CrossRef]
  26. Dormohamadi, M. Typology of historical houses in muzaffarid ERA: Case study of Ardakan City, Yazd, Iran. Int. Arch. Photogramm. Remote Sens. Spat. Inf. Sci.—ISPRS Arch. 2020, 54, 945–952. [Google Scholar] [CrossRef]
  27. Noghsan Mohammadi, M.R. Change and Continuity in Yazd—Iran. In Proceedings of the 9th International Conference on the Study and Conservation of Earthen Architecture, Yazd, Iran, 29 November–2 December 2003; pp. 427–439. [Google Scholar]
  28. Taghi, F.A. Ardakan: Housing on the Edge of the Desert. Ph.D. Thesis, University of Glasgow, Glasgow, Scotland, 1990. [Google Scholar]
  29. Memarian, G.H. House Typology in Iran: With Special Reference to Shiraz. Ph.D. Thesis, The University of Manchester, Manchester, UK, 1998. [Google Scholar]
  30. Bigdeli; Hamed; Bagheri, M.; Asadi, F. Barresi-ye naghsh-e khalvat dar memari-ye khaneha-ye sonai. Memari Shenasi 2019, 1, 70–79. [Google Scholar]
  31. Moghaddam, E.H.; Amindeldar, S.; Besharatizadeh, A. New approach to natural ventilation in public buildings inspired by Iranian’s traditional windcatcher. Procedia Eng. 2011, 21, 42–52. [Google Scholar] [CrossRef]
  32. Mirahmadi, A.; Hashem Pur, P. Tabyin sotuh-e shakheseha va marateb shafafiyat dar faza-ye memari khane-ye RasuliyAn Yazd. Honarha-Ye Ziba Memari Shahrsazi 2020, 25, 67–78. [Google Scholar]
  33. Khadem Zadeh, M.H. Memari-ye Doreh Al-e Mozafar Yazd (Ilkhani va Teymuri) ba Negahi be Banaha-Ye Asr-E Atabakan; Hampa: Tehran, Iran, 2011. [Google Scholar]
Figure 1. Plan of the historic city of Yazd (Iran), showing the location of the 26 cases measured and compared in this paper (see Table 1 for key).
Figure 1. Plan of the historic city of Yazd (Iran), showing the location of the 26 cases measured and compared in this paper (see Table 1 for key).
Buildings 14 02639 g001
Figure 2. Ground floor plan and section of Ṭaagh Bolandha house.
Figure 2. Ground floor plan and section of Ṭaagh Bolandha house.
Buildings 14 02639 g002
Figure 3. Photo from all sides of the space (taken by the author).
Figure 3. Photo from all sides of the space (taken by the author).
Buildings 14 02639 g003
Figure 4. Photos of the 1st-order space “1” on the plan (Figure 2): (a) Northwest and Southwest sides, (b) Northwest and Northeast sides, (c) Northeast side, (d) Southeast side (taken by the author).
Figure 4. Photos of the 1st-order space “1” on the plan (Figure 2): (a) Northwest and Southwest sides, (b) Northwest and Northeast sides, (c) Northeast side, (d) Southeast side (taken by the author).
Buildings 14 02639 g004
Figure 5. Photos of Three 2nd-order spaces on the plan (Figure 2): (a) 2.6, (b,c) 2.5, (d) 2.3, (photos taken by the author).
Figure 5. Photos of Three 2nd-order spaces on the plan (Figure 2): (a) 2.6, (b,c) 2.5, (d) 2.3, (photos taken by the author).
Buildings 14 02639 g005
Figure 6. The floor plan and section of Karimi house.
Figure 6. The floor plan and section of Karimi house.
Buildings 14 02639 g006
Figure 7. Photos of space 2.3: (a) Entrance door, (b) Northeast and Southeast sides, (c) Southeast and Southwest sides, (d) Support space (taken by the author).
Figure 7. Photos of space 2.3: (a) Entrance door, (b) Northeast and Southeast sides, (c) Southeast and Southwest sides, (d) Support space (taken by the author).
Buildings 14 02639 g007
Figure 8. Photos from two 2nd-order spaces: (a) space 2.4, (b) space 2.2 (taken by the author).
Figure 8. Photos from two 2nd-order spaces: (a) space 2.4, (b) space 2.2 (taken by the author).
Buildings 14 02639 g008
Figure 9. Photos of the 1st-order space “1” on the plan.
Figure 9. Photos of the 1st-order space “1” on the plan.
Buildings 14 02639 g009
Figure 10. The floor plan and section of Nadeb house (based on scans provided by the Heritage office).
Figure 10. The floor plan and section of Nadeb house (based on scans provided by the Heritage office).
Buildings 14 02639 g010
Figure 11. The ceiling openings on the roof that are sealed in the interior (the photo was provided by the occupants).
Figure 11. The ceiling openings on the roof that are sealed in the interior (the photo was provided by the occupants).
Buildings 14 02639 g011
Figure 12. A photo of the selected space. For privacy concerns, this was the only photo the author could take of this room.
Figure 12. A photo of the selected space. For privacy concerns, this was the only photo the author could take of this room.
Buildings 14 02639 g012
Figure 13. Two photos from the 1st-order space “1”, provided by the occupants.
Figure 13. Two photos from the 1st-order space “1”, provided by the occupants.
Buildings 14 02639 g013
Figure 14. The photos from two 2nd-order spaces, provided by the occupants (the upward angle is due to their privacy concerns).
Figure 14. The photos from two 2nd-order spaces, provided by the occupants (the upward angle is due to their privacy concerns).
Buildings 14 02639 g014
Figure 15. The floor plan and section of Golshan House (based on scans provided by the Heritage office).
Figure 15. The floor plan and section of Golshan House (based on scans provided by the Heritage office).
Buildings 14 02639 g015
Figure 16. Photos from space 2.9: (a) Southeast side, (b) Northeast and Southeast sides (taken by the author). The 1st-order room is seen through the two curtained openings.
Figure 16. Photos from space 2.9: (a) Southeast side, (b) Northeast and Southeast sides (taken by the author). The 1st-order room is seen through the two curtained openings.
Buildings 14 02639 g016
Figure 17. Photos from the 1st-order space “1”: (a) Northeast and Southeast sides. (b) Northwest and Southwest sides (taken by the author).
Figure 17. Photos from the 1st-order space “1”: (a) Northeast and Southeast sides. (b) Northwest and Southwest sides (taken by the author).
Buildings 14 02639 g017
Figure 18. Photos from some of the 2nd-order spaces: (a) 2.1, (b) 2.4, (c) 2.3, (d) 2.2. The small window and second level in 2.2 were added during the restoration (taken by the author).
Figure 18. Photos from some of the 2nd-order spaces: (a) 2.1, (b) 2.4, (c) 2.3, (d) 2.2. The small window and second level in 2.2 were added during the restoration (taken by the author).
Buildings 14 02639 g018
Table 1. The list of the selected houses. The numbers after them represent their label on the map (Figure 1).
Table 1. The list of the selected houses. The numbers after them represent their label on the map (Figure 1).
Era Era’s Span Houses
Seljuk and Atābakān1037–1252Ṭāq Bolandhā (1)
Ilkhanid and Mozaffarid1252–1393Bābā’ī (2), Ḥasan-ābādī (3), Ḵorāsānī (4), Karīmī (5), Lūkzāde (6), Najb (7), Sālār (8), Seyyed Gol-e-Sorḵ (9), Tavānā (10)
Safavid1501–1736Īlčī Ḵān (11), Malek Ṯābet (12), Mašrūṭe (13), Nādeb (14), Raštīhā (15), Vazīr (16)
Zand and Afsharid1737–1788Abrīšamī (17)
Qajar1789–1925Dr. Ḥojjat (18), Golšan (19), Ḵwāje Ḵeẓr (20), Ra’s Ḥoseynī (21), Raštīān (22), Rīsmānīān (23), Tehrānī (24)
Pahlavid I1925–1941Farroḵī Yazdī (25), Kāšefī (26)
Table 2. Scoring system to identify second-order spaces that resembled the first-order spaces.
Table 2. Scoring system to identify second-order spaces that resembled the first-order spaces.
ScoreHeightAreaAccessDecorationsLightingSupport SpaceRoof TypeVentilationCooking Platform
0 X < 11 YesYes
1X < 411 < X < 40SpaceNoDoorNoArchNoNo
2X > 4X > 40CorridorYesRoofYesDomeWindcatcher
Table 3. Scoring of second-order spaces that resembled the first-order spaces.
Table 3. Scoring of second-order spaces that resembled the first-order spaces.
EraHouse HeightAreaAccessDecorationsLightingSupport SpaceRoof TypeVentilationCooking PlatformFinal Score
Seljuk_AtabakanTagh bolandha2.37.1017.72CorridorNoRoofNoDomeNoNo16
2.42.9521.12CorridorYesDoorNoArchNoNo4
2.75.4119.48CorridorYesRoofNoDomeNoNo32
2.85.9318.01Corridor, SpaceYesRoofYesArchNoNo32
Ilkhanid_MuzaffaridTavana2.13.5614.85SpaceYesDoorNoArchNoNo2
Karimi2.24.3020.16CorridorYesRoofNoArchNoNo16
2.34.2720.72CorridorYesRoofYesDomeNoNo64
Seyyed Gole-sorkh’s2.14.0215.18CorridorNoRoofYesDomeNoNo32
2.34.1218.02CorridorYesRoofNoArchNoNo16
2.44.5517.60CorridorNoRoofNoArchNoNo8
Luck Zadeh2.23.7216.66CorridorYesRoofNoArchNoNo8
2.33.7025.55SpaceYesRoofNoArchNoNo4
SafavidIlchi Khan2.1 20.83CorridorYesDoorNoArchNoNo4
Rashtiha2.13.6925.69SpaceYesRoofNoArchNoNo4
2.53.4021.05SpaceYesRoofYesArchNoNo8
2.72.9116.40CorridorYesRoofNoArchNoNo8
Mashroteh2.13.1920.37CorridorYes Yes NoNo8
2.22.2318.76CorridorDoorNoArchNoNo2
Nadeb2.14.0218.56CorridorYesDoorYesArchNoNo16
2.24.2011.31CorridorYesDoorNoArchNoNo8
2.44.0423.40CorridorYesDoorNoArchNoNo8
Vazir2.33.8013.30SpaceYesRoofYesArchNoNo8
QajarTehrani2.14.5417.55CorridorYesRoofNoArchNoNo16
2.44.0412.40CorridorYesRoofYesArchNoNo32
2.64.9020.62CorridorYesRoofNoArchNoNo16
2.74.0911.66CorridorYesRoofNoDomeNoNo32
2.94.2219.50CorridorNoRoofNoArchNoNo8
2.1 12.88CorridorNoDoorNoArchNoNo2
2.125.1443.35CorridorYesRoofNoArchNoNo32
2.134.5414.10CorridorYesRoofNoArchNoNo16
Khajeh Khezr2.24.7020.32CorridorNoRoofNoDomeNoNo16
2.53.5813.24SpaceYesDoorNoArchNoNo2
2.6 13.23CorridorNoRoofNoDomeNoNo8
Golshan2.14.1415.79SpaceYesRoofNoDomeNoNo16
2.25.3317.22CorridorYesRoofNoDomeNoNo32
2.3 11.69CorridorYesRoofNoDomeNoNo16
2.96.2628.73CorridorYesRoofNoDomeWindcatcherNo64
Rismanian2.14.1122.16SpaceYesDoorNoArchNoNo4
2.3 23.38SpaceNoDoorNoArchNoNo1
2.134.9936.59CorridorNoRoofNoDomeNoNo16
Rashtian2.12.7620.85CorridorYesDoorNoArchNoNo4
2.44.8318.50CorridorNoDoorNoArchNoNo8
PahlavidKashefi2.15.2126.90CorridorNoDoorNoArchNoNo4
2.44.5714.94SpaceNoRoofNoArchNoNo4
Disclaimer/Publisher’s Note: The statements, opinions and data contained in all publications are solely those of the individual author(s) and contributor(s) and not of MDPI and/or the editor(s). MDPI and/or the editor(s) disclaim responsibility for any injury to people or property resulting from any ideas, methods, instructions or products referred to in the content.

Share and Cite

MDPI and ACS Style

Zolfagharkhani, M.; Foruzanmehr, A.-R. Courtyards and Adjacent Spaces: Analyzing 26 Cases of Second-Order Proximity in Traditional Courtyard Houses of Yazd. Buildings 2024, 14, 2639. https://doi.org/10.3390/buildings14092639

AMA Style

Zolfagharkhani M, Foruzanmehr A-R. Courtyards and Adjacent Spaces: Analyzing 26 Cases of Second-Order Proximity in Traditional Courtyard Houses of Yazd. Buildings. 2024; 14(9):2639. https://doi.org/10.3390/buildings14092639

Chicago/Turabian Style

Zolfagharkhani, Mina, and Ahmad-Reza Foruzanmehr. 2024. "Courtyards and Adjacent Spaces: Analyzing 26 Cases of Second-Order Proximity in Traditional Courtyard Houses of Yazd" Buildings 14, no. 9: 2639. https://doi.org/10.3390/buildings14092639

APA Style

Zolfagharkhani, M., & Foruzanmehr, A.-R. (2024). Courtyards and Adjacent Spaces: Analyzing 26 Cases of Second-Order Proximity in Traditional Courtyard Houses of Yazd. Buildings, 14(9), 2639. https://doi.org/10.3390/buildings14092639

Note that from the first issue of 2016, this journal uses article numbers instead of page numbers. See further details here.

Article Metrics

Back to TopTop