Next Article in Journal
Research on a Vibration Model of a Superstructure under the Vibration Load of Metro Trains
Previous Article in Journal
Vibration and Wave Propagation in High-Rise Industrial Buildings
 
 
Font Type:
Arial Georgia Verdana
Font Size:
Aa Aa Aa
Line Spacing:
Column Width:
Background:
Article

Research on Integrated Design of Prefabricated Steel Frame Structures Based on BIM Technology with a Focus on Structural Safety

1
Department of Civil Engineering & Architecture, Nanyang Normal University, Nanyang 473061, China
2
Vanadium Tailings Harmless Treatment and Recycling Research and Development Center, Nanyang 473061, China
*
Author to whom correspondence should be addressed.
Buildings 2024, 14(8), 2341; https://doi.org/10.3390/buildings14082341
Submission received: 22 June 2024 / Revised: 16 July 2024 / Accepted: 25 July 2024 / Published: 29 July 2024
(This article belongs to the Section Construction Management, and Computers & Digitization)

Abstract

To address the issue of inconsistencies between the 3D structural models built on Building Information Modeling (BIM) platforms and the original structural designs, thereby ensuring structural safety and reliability, this paper proposes an integrated design approach for prefabricated steel frame structures based on BIM technology with a primary focus on structural safety. The application of the integrated design methodology for prefabricated steel frame structures, leveraging BIM technology, is concretely demonstrated through case studies. These illustrations focus on pivotal aspects: assessing the overall safety performance of the structure, conducting meticulous analyses of beam-to-column connection nodes, and harnessing the outcomes of these evaluations to inform and direct the optimization of the structural design. The research findings presented herein offer insights and methodologies for applying BIM in safety assessments of prefabricated steel frame structures, thereby further refining the comprehensive framework of BIM engagement throughout the entire life cycle of prefabricated steel frame construction projects.

1. Introduction

The construction industry stands as a pivotal sector contributing significantly to the global Gross Domestic Product (GDP), accounting for roughly 6% of the world’s GDP and generating an annual revenue of approximately 10 trillion USD [1,2]. Despite its substantial economic impact, the productivity within the construction sector lags behind that of other industries [3]. Historically, it has always been prone to mistakes, high costs, and irreversibility in the building industry [4,5,6]. Building Information Modeling (BIM) presents an optimal process technology that can be employed throughout the entire lifespan of a building, enhancing the efficiency and precision of planning, design, and construction activities [7,8], thereby dramatically reducing expenses.
Xiaoxiao Xu et al. [9] conducted a thorough and comprehensive literature review to identify specific issues arising during the construction process and examined the application of BIM in addressing these challenges within construction practices. They developed a full-life-cycle BIM engagement framework, encompassing functions such as “Information Exchange”, “Design Review”, “Energy-related Quality Control”, “Whole-Life Commissioning”, and “Real-time Operation and Maintenance Management”. It is anticipated that this proposed framework will aid researchers and professionals in gaining a deeper insight into leveraging BIM for systematically enhancing the energy efficiency performance of buildings. Avendaño et al. [10] aimed to demonstrate an approach to applying Building Information Modeling for the integrated design, fabrication, and erection of steel structures, called BIM–DFE, in a real-world scenario. Lee et al. [11] simplified the utilization of Building Information Modeling (BIM), making it more accessible and user-friendly. Olanrewaju et al. [12] conducted a study examining the influence of BIM barriers encountered throughout the project life cycle in developing countries on the awareness and adoption of BIM. Their findings highlighted that the most crucial obstacles to the practical implementation of BIM include costs, standards, processes, economic factors, technological issues, business practices, inadequate training, and human resource challenges. Chen et al. [13] sought to fully explore the potential of BIM during the operations and maintenance phase by developing a BIM Maturity Assessment Model (BIM MAM). Vignali et al. [14] developed a plug-in that facilitates direct inference from design software to computation software, ensuring all necessary calculations are seamlessly integrated. The BIM tools employed in this endeavor were Autodesk AutoCAD Civil 3D for road geometry design and Revit Structure for tunnel structural projects. From the aforementioned research literature, it is evident that the application and research of BIM have primarily focused on the construction, operation, and maintenance phases. Studies concentrating on the design stage with an emphasis on the overall and detailed safety and reliability of structures are relatively scarce. This highlights a potential gap in the literature where the integration of BIM in the early design phases, particularly concerning structural safety assessments and the enhancement of both overall and detailed structural integrity, could be further explored and developed.
Steel structures have garnered heightened interest recently on account of their notable attributes, including strength, durability, and efficiency [15]. Lu and Korman argue that the advancement of BIM technology will significantly boost the development of modular steel buildings, ushering in new opportunities and challenges for this sector [16]. Saeed et al. have conducted research on the integration of BIM with modular construction systems based on the IFC standard, introducing standardized coding for prefabricated components [17]. Oti and colleagues combined BIM technology with steel construction, investigating how BIM can be utilized to reduce energy consumption in steel structures [18]. Basta et al. [5] proposed a deconstructability scoring methodology, implemented in Autodesk Revit, using Dynamo, for the quantitative assessment of steel structures’ deconstructability. Chen et al. [19] noted that the advantages of BIM are not fully exploited during the steel structure manufacturing phase; hence, they developed a BIM platform tailored for steel structure manufacturing. This platform aims to manage and visualize the manufacturing processes of steel fabrication enterprises. Wang et al. [20] proposed an innovative framework that enables virtual trial assembly of complex steel structures on a BIM platform. Su and colleagues [21] proposed a solution to address the issue of inadequate integration in modular steel building design systems. Their approach centers around synchronizing the modular sequence between architectural design and container manufacturing, establishing a modular framework for modular steel structures, and creating a database for components used in container architecture. Additionally, they advocate for the integration of BIM and Product Data Management (PDM) platforms to reinforce interdisciplinary coordination, enhance the integration of design processes, and promote a more cohesive and streamlined approach throughout the entire design life cycle. Sun and others [22] argue that rural constructions, constrained by building costs, cannot undergo professional design and scrutiny as urban structures do, thereby making it challenging to meet the required standards of safety and economy. In response to this, they propose the concept of intelligent design for rural light steel frame structures, which encompasses smart modeling and optimization. Compared to conventional manual design methods, this approach can shorten the design cycle by over 80%. Wang and colleagues [23], addressing the issue of low digitalization and high error rates in the design methodology of single-story steel structure factories, developed a BIM platform specifically for designing such facilities, transforming the traditional design process.
At present, research on steel structure BIM technology mainly focuses on the development and intelligent optimization of BIM platform software. While Revit, Archicad, and similar BIM software excel in structural design and documentation, they have limitations or inadequacies when it comes to structural analysis compared to dedicated structural analysis software. Although Revit and Archicad incorporate some basic structural analysis capabilities, their primary function remains as a design and documentation tool, with computation and analysis capabilities that are less robust than specialized software, such as SAP2000, ETABS, or STAAD.Pro. For intricate structures requiring precise calculations, such as nonlinear analyses, dynamic response assessments, or seismic evaluations, Revit and Archicad might not offer exhaustive solutions.
Steel structures are prone to collapse incidents during construction and normal usage, hence emphasizing the necessity to ensure their safety and reliability when applying BIM technology in the planning and design phases of steel structure buildings. Indeed, a prevailing challenge with current technology is that the 3D structural models built within BIM platforms often do not fully align with the original structural designs. Proceeding with construction, operation, and maintenance activities based on BIMs that deviate from the original design introduces substantial safety hazards.
The primary objective of this research is to address the issue where the 3D structural models constructed within BIM platforms deviate from the original structural designs.
Consequently, this paper adopts an approach that combines traditional, specialized structural analysis software with BIM software to conduct a more reliable safety assessment of steel structures. This integration ensures that the 3D structural models built on the BIM platform remain fundamentally consistent with the original structural design, thereby enhancing the accuracy and integrity of the analysis process. Therefore, this paper proposes an integrated design methodology for prefabricated steel frame structures based on BIM technology, adhering to principles of structural safety design.

2. An Integrated Design Approach for Prefabricated Steel Frame Structures Based on BIM Technology with a Focus on the Structural Safety Principle

The integrated design concept for prefabricated steel frame structures, grounded in the principle of structural safety and leveraging BIM technology, is illustrated in Figure 1.
To ensure that the 3D structural model built in the BIM platform is consistent with the original structural design and adhering to the principle of structural overall safety analysis, the 3D structural model constructed within the BIM platform will be examined. Upon conducting multiple inspections of the BIM 3D model and verifying that the 3D structural model aligns with the original design, should the structural overall stress analysis indicate that the structure does not meet safety requirements, it becomes necessary to recalibrate the design of the structure in accordance with established standards and perform calculations anew. When the structural overall force analysis confirms that the structure satisfies safety requirements, proceed to conduct detailed stress analyses on the beam–column connections of the structure. Once the stress performance of the beam–column connections meets the requirements, the BIM platform can then be utilized to generate two-dimensional fabrication drawings for the beam and column components. However, if the stress performance of these connections is found to be inadequate, optimization of the beam–column joints will be carried out until their stress-bearing capabilities meet the specified requirements.

3. Case Study on Integrated Design of Prefabricated Steel Frame Structures Utilizing BIM Technology

The specific integrated design methodology and steps are as follows: initially, Tekla Structures is employed to construct a three-dimensional (3D) model of the steel structure. Subsequently, SAP2000 is utilized to conduct a comprehensive structural analysis of the 3D model, encompassing load-induced stress analysis as well as elastic-plastic dynamic time–history analysis. If the overall structural stress meets the requirements, ABAQUS 6.14 software is then employed for the detailed analysis of the prefabricated steel structure node models, focusing primarily on the collapse resistance performance of node. Should these nodes satisfy the stress criteria, SolidWorks is used to generate two-dimensional (2D) fabrication drawings for the optimized nodal components of the prefabricated steel structure, while Tekla Structures produces 2D fabrication drawings for the beam and column elements. In instances where the detailed analysis of the prefabricated steel structure’s nodes does not fulfill the stress requirements, the nodes are redesigned according to the analysis outcomes until they meet the necessary stress criteria.
In addressing these issues encountered during model import/export between different software applications, especially the substantial data loss observed when transferring models between Tekla and SAP2000, or Tekla Structures and ABAQUS, this paper adopts the following measures. The design process initiates by meticulously constructing the model in SAP2000, guided by the construction drawings generated from Tekla Structures, to counteract data loss. To ensure the accuracy of the SAP2000 model, its calculation results are repeatedly compared against those from the original structural design computations. Model creation in ABAQUS, focusing on node details, is relatively straightforward, requiring only meticulous modeling based on node construction drawings.
For the interoperability between Tekla Structures and SolidWorks, the Standard ACIS Text (SAT) format is employed for export and import. Being native to SolidWorks, SAT files can be exported from and imported into Tekla Structures, preserving geometric shapes and some basic information. However, despite retaining key geometry, certain structural details may still be lost in translation, necessitating manual supplementation to ensure model completeness and integrity.
The key aspects to address in the integrated and optimized design of prefabricated steel frame structures based on BIM technology, with a primary focus on structural safety, are the assessment of the overall safety performance of the structure, encompassing load-bearing capacity, seismic resistance, among other properties, and the detailed mechanical performance analysis of beam-to-column connections. Consequently, this case study primarily delves into the research and analysis of two main areas: the evaluation of the overall safety performance of the structure, including its load-bearing and seismic performance characteristics, and the exploration of the mechanical behavior of beam–column joints.

3.1. Project Overview

The prefabricated steel frame structure comprises four bays in the X-direction and three bays in the Y-direction, with each span measuring 5 m. The detailed plan layout is illustrated in Figure 2. The structure consists of five floors, with the ground floor having a height of 3.9 m and the remaining floors at 3.3 m each. The elevation layout is depicted in Figure 3. The steel frame columns adopt a cross-section of HW350 × 350 × 12 × 19, while the frame beams use HN400 × 200 × 8 × 13 sections. All steel materials are of grade Q345B. Beam-to-column connections are achieved through web stiffener angles combined with base plate angles. High-strength bolts, with a diameter of 20 mm, are used throughout. Detailed diagrams of the connections are shown in Figure 4. The constant loads on each floor are 3 kN/m2 (excluding the self-weight of the structure), and the live loads are 2 kN/m2. The seismic fortification intensity is 8 degrees, with a basic earthquake acceleration value of 0.2 g. Only the seismic action in the Y-direction is considered; wind loads are not taken into account.

3.2. BIM-Based Overall Assembly of Prefabricated Steel Frame Structure

Employing Tekla Structures 2020 facilitates the overall assembly of the prefabricated steel frame structure by establishing a detailed 3D model. During the modeling process, in-depth design focusing on column connection nodes and beam–column connection nodes is essential. The resultant 3D model, illustrating this intricate assembly, is depicted in Figure 5.

3.3. Assessment of the Overall Safety Performance of Prefabricated Structure

3.3.1. Structural Calculation and Analysis

After the preliminary modeling of the structure is completed, SAP2000 is employed to systematically analyze and verify the components of the established prefabricated integral structure. The steel structure model constructed using SAP2000 is depicted in Figure 6. Force analysis is conducted on the structure, with bending moments and shear forces in a single frame in the Y-direction under Y-direction seismic action shown in Figure 7 and Figure 8, respectively. The bending moments and shear forces under the maximum load combination DSTL4 = 1.2DEAD + 0.6LIVE + 1.3QY (where DEAD represents dead load, LIVE live load, and QY the Y-direction seismic action) are illustrated in Figure 9 and Figure 10, respectively. The stress ratios of the structure are presented in Figure 11.
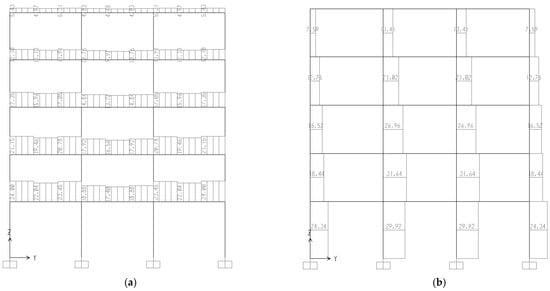
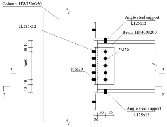
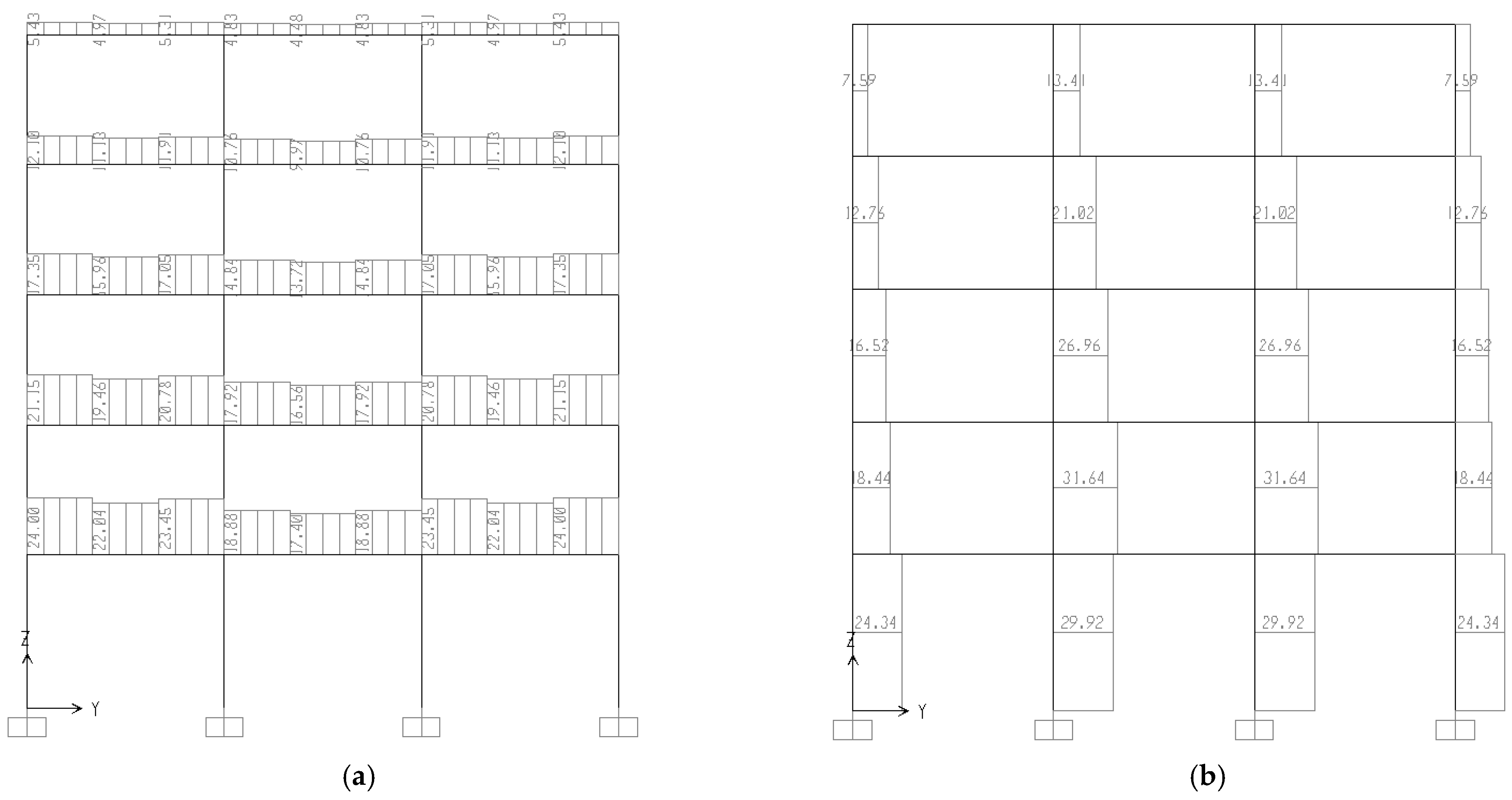
From Figure 7, Figure 8, Figure 9 and Figure 10, it is evident that the load-bearing capacity of the structure satisfies the code requirements under various loading conditions. The stress ratio of a steel member refers to the ratio of its effective stress to its ultimate stress. When the stress ratio exceeds 1.0, indicating that the stress surpasses the ultimate limit, the component may fail. As seen in Figure 11, the maximum stress ratio of the structural members in this example is 0.369, significantly lower than 1, indicating that no component will experience failure. All parts of the structure remain safely within their allowable stress limits.
The inter-story displacements of the structure under Y-direction seismic action are shown in Figure 12, while the inter-story displacements under the maximum load combination DSTL4 are depicted in Figure 13.
Figure 14 and Figure 15 illustrate the comparison of floor displacements and inter-story drift angles for the entire structure under Y-direction seismic action and load combination DSTL4.
The maximum inter-story drift angle of this structure occurs at the second floor under load combination DSTL4, with a value of 0.002576, which is less than the elastic inter-story drift angle limit of 0.004 required by the Code for Seismic Design of Buildings [24]. This fully satisfies the requirement that structures should remain undamaged under minor earthquakes.

3.3.2. Structural Dynamic Inelastic Time–History Analysis

  • Seismic Wave
Utilizing the Interacting P-M2-M3 Plastic Hinge model and incorporating geometric nonlinear P-Δ effects, the NORTHRIDGE-01_NO_967 (Natural Wave) earthquake record is employed for the structural dynamic inelastic time–history analysis. The primary component of this wave has a peak acceleration value of 100 cm/s2 (equivalent to 0.1 g), and the recording increment is set at 0.02 s. Details regarding the raw data of the NORTHRIDGE-01_NO_967 seismic wave along with its acceleration response spectrum are illustrated in Figure 16 and Figure 17, respectively.
  • Earthquake Wave Scaling
Real strong ground motion records often have peak accelerations that do not correspond to the basic intensity expected at the site of the structure being designed. Therefore, they cannot be used directly and require adjustment of their intensity according to the seismic design intensity of the structure. The peak accelerations of the selected earthquake records need to be amplified or attenuated by an appropriate factor so that they match the peak accelerations expected during frequent (minor), occasional (moderate), and rare (major) earthquakes as defined by the seismic design code. The reference values of peak accelerations for the three seismic resistance levels for buildings (minor earthquake, moderate earthquake, and major earthquake) are outlined in the following Table 1.
Accordingly, the corresponding scaling formula for adjusting the earthquake ground motion is:
A ( t ) = A max A max A ( t ) ,
In the formula, A ( t ) and A max denote the time history curve and peak value of the seismic wave, respectively; A max represents the peak ground motion acceleration required by the seismic design intensity for frequent (minor), standard (moderate), or rare (major) earthquakes; and A ( t ) and A max signify the time history curve and peak value of the original earthquake wave, respectively.
To conduct a ductile analysis of the structure under rare earthquake conditions, it is necessary to amplify the time–history curve data of the NORTHRIDGE-01_NO_967 (Natural Wave) earthquake by a factor of 4, thereby yielding a time–history curve with a corresponding peak acceleration value of 0.4 g. In the time–history analysis of the structure, the Newmark method is employed for time integration.
  • Structural Displacement Response
The time–history curves of the Y-direction displacement at nodes 98, 99, 100, 101, and 102 of each floor are shown in Figure 18, Figure 19, Figure 20, Figure 21 and Figure 22, respectively. For the detailed locations of nodes 98, 99, 100, 101, and 102, please refer to Figure 12 or Figure 13.
From Figure 18, Figure 19, Figure 20, Figure 21 and Figure 22, it can be observed that the maximum displacements of nodes from the first to the fifth floor under seismic time–history loading are 28.192 mm, 49.618 mm, 66.644 mm, 87.41 mm, and 102.939 mm, respectively. The corresponding maximum inter-story drift angles are 0.00723, 0.00649, 0.00516, 0.00629, and 0.00471. Among these, the maximum inter-story drift angle of 0.00723 exceeds the elastic inter-story drift limit for steel structures of 0.004. However, it remains significantly below the plastic inter-story drift limit for steel structures of 0.02. This indicates that, although the overall structure enters the plastic phase under the effect of a severe earthquake, it is far from reaching a collapse state, confirming the overall safety of the structure.

3.4. Analysis and Optimization of Prefabricated Steel Frame Joint Performance against Collapse and Column Junctions

3.4.1. Finite Element Model

Using ABAQUS, detailed analysis of prefabricated steel frame joints is conducted, followed by optimization of the joints. The numerical model for this process is depicted in Figure 23.
The material properties of Q345 steel are as follows: density is 7850 kg/m3, Young’s modulus is 2 × 105 MPa, and Poisson’s ratio is 0.28. In modeling, the plastic hardening behavior of Q345 steel is represented using the combined method. The high-strength bolt materials share the same density, Young’s modulus, and Poisson’s ratio as Q345 steel but possess a higher strength. The focus of the numerical simulation is on studying the deformation and failure of the angle steel and the main steel components, where Q345 steel fails when it reaches 730 MPa. To ensure that the high-strength bolts do not yield before the steel fails, the yield strength of the high-strength bolts is set at 980 MPa.
The contact relationships between bolts and angle steels, beam flanges, web plates, as well as between angle steels and beam flanges and web plates, are defined using the Mohr–Coulomb criterion. Tangential behavior is modeled with a Penalty function, with a friction coefficient of 0.1. Normal behavior is handled by employing a “Hard” Contact approach, while the constraint enforcement method utilized is Penalty.

3.4.2. Loading Scheme

A displacement control loading scheme is adopted, where the displacement at the beam end is incremented in one step to 500 mm.

3.4.3. Force Analysis

In terms of construction form, the performance of the node against collapse is analyzed as follows. The web double-angle steel beam–column joint belongs to a semi-rigid joint type, characterized by good ductility but relatively poor vertical load-bearing capacity. To enhance the vertical load-bearing capacity of the beam–column joint, a base plate angle steel is added at the bottom flange of the beam, on top of the double-angle steel connection at the web. Compared to the web double-angle steel beam–column joint, the configuration with additional base plate angle steel demonstrates superior resilience against progressive collapse.
The stress contour map of the beam–column joint with web double-angle steel plus base plate angle steel is shown in Figure 24.
Analysis of the stress variation indicates that the first signs of yielding in the web angle steel occur when the vertical load at the beam end reaches 11.93 kN, at which point the bending moment at the node is 28.825 kN·m. Furthermore, when the tensile zone of the web angle steel reaches its ultimate strength, the corresponding vertical load at the beam end is 21.137 kN, with the bending moment at the node amounting to 52.84 kN·m.
The ultimate bearing moment of the beam–column connection with web double-angle steel plus base plate angle steel is 52.84 kN·m, which is less than the maximum beam end moment under the DSTL4 load combination, amounting to 100.11 kN·m, as shown in Figure 9a. Consequently, it is evident that the bearing capacity of this connection is inadequate. Further optimization of the node design is imperative to augment its load-carrying capability.

3.4.4. Redesign the Node

Considering the inadequate vertical load-bearing capacity of the web double-angle steel plus base plate configuration, an additional angle steel connector is added to the upper flange of the beam, thereby designing the beam–column node connection as a dual-web angle steel and dual-flange angle steel configuration, as depicted in Figure 25. All other parameters remain consistent with the previously discussed double-angle steel with base plate beam–column connection node.
Utilizing a displacement-controlled loading protocol, the displacement at the beam end is applied in a single increment to 180.861 mm.
Figure 26 presents the stress contour map of the beam–column joint at a beam end displacement of 180.861 mm, while Figure 27 illustrates the relationship between the end load of the beam and the maximum stress in the upper flange angle steel of the beam–column joint.
Based on the analysis of stress variations, the initial yielding of the web angle steel corresponds to a vertical load at the beam end of 21.743 kN, at which the moment at the node is 54.358 kN·m. When the maximum tensile region of the web angle steel reaches 423.28 MPa, the corresponding vertical load at the beam end increases to 49.21 kN, with the node moment reaching 123.025 kN·m. This is significantly greater than the maximum beam end moment of 100.11 kN·m under the DSTL4 load combination. These findings indicate that the structure is safely within its load-bearing capacity.
The relationship curve between the beam end load and displacement for the double-web angle steel and double-flange angle steel connection node is shown in Figure 28. As indicated in Figure 28, throughout the loading process, the node load increases with the rise in displacement. Even when the moment at the node reaches 123.025 kN·m, the structure has still not reached the yield state, suggesting a robust performance.

4. Conclusions

This paper presents an integrated design approach for prefabricated steel frame structures based on BIM technology, with a focus on ensuring structural safety and reliability. It addresses the issue of inconsistencies between the 3D structural models built on BIM platforms and the original structural designs. The study primarily examines two aspects: the overall safety performance of prefabricated structures (including load-bearing and seismic capabilities) and the mechanical performance of beam–column connection nodes. Key research outcomes include:
  • Proposal of a methodology for utilizing SAP2000 software (V24) to perform calculations and dynamic inelastic analyses on the overall structure, outlining the thought process behind this approach.
  • Introduction of a strategy for employing ABAQUS software to conduct detailed mechanical performance analyses and redesigns of structural connection nodes.
This paper does not resolve the issue of seamless data interoperability among software including Tekla Structures, SAP2000, ABAQUS, and SolidWorks, which represents a limitation of the current research and points to the next direction for studying BIM integrated design. Addressing the challenge of flawless data exchange among these diverse platforms is identified as a crucial area for future investigation, with the aim of advancing BIM’s capability in facilitating comprehensive and cohesive structural design processes.
Through case studies, the feasibility and effectiveness of the BIM-based integrated design method for prefabricated steel frame structures, centered around ensuring structural safety, are demonstrated. This approach integrates advanced computational tools with BIM technologies to enhance the accuracy, efficiency, and safety assurance in the design of complex prefabricated structures.

Author Contributions

Conceptualization, X.W.; methodology, X.W. and P.W.; software, P.W. and X.W.; validation, P.W.; formal analysis, Y.L.; investigation, J.W.; resources, X.W.; writing—original draft preparation, P.W.; writing—review and editing, X.W.; visualization, W.C. All authors have read and agreed to the published version of the manuscript.

Funding

This research has been supported by Henan Provincial Science and Technology Research Project (242102321029, 242102230145, 242102241011), Key Scientific Research Project of Henan Higher Educational Institution (24A580003), Special Project of Nanyang Normal University (ZX2016009, 2022ZX024) and Research Teaching Demonstration Course of Nanyang Normal University (2023-YJKC-010), which are gratefully acknowledged.

Data Availability Statement

The data that support the findings of this study are available from the corresponding author upon reasonable request.

Acknowledgments

The authors deeply acknowledge the technical and financial support from Henan Xichuan cement Co., LTD., and Xichuan Beijing Jinyang Vanadium industry Co., LTD., under the cooperative project entitled “Vanadium tailings harmless treatment and recycling research and development center”.

Conflicts of Interest

The authors declare no conflicts of interest. The funders had no role in the design of the study.

References

  1. Avendaño, J.I.; Zlatanova, S.; Pérez, P.; Domingo, A.; Correa, C. Integration of BIM in steel building projects (BIM-DFE): A Delphisurvey. Buildings 2022, 12, 1439. [Google Scholar] [CrossRef]
  2. Barbosa, F.; Woetzel, J.; Mischke, J.; Ribeirinho, M.J.; Sridhar, M.; Parsons, M.; Bertram, N.; Brown, S. Reinventing Construction: A Route to Higher Productivity; Mckinsey Global Insititute: New York, NY, USA, 2017. [Google Scholar]
  3. Stojanovska-Georgievska, L.; Sandeva, I.; Krleski, A.; Spasevska, H.; Ginovska, M.; Panchevski, I.; Ivanov, R.; Perez Arnal, I.P.; Cerovsek, T.; Funtik, T. BIM in the center of digital transformation of the construction sector—The status of BIM adoption in North Macedonia. Buildings 2022, 12, 218. [Google Scholar] [CrossRef]
  4. Bahamid, R.A.; Doh, S.I.; Khoiry, M.A.; Kassem, M.A.; Al-Sharafi, M.A. The Current Risk Management Practices and Knowledge in the Construction Industry. Buildings 2022, 12, 1016. [Google Scholar] [CrossRef]
  5. Basta, A.; Serror, M.H.; Marzouk, M. A BIM-based framework for quantitative assessment of steel structure deconstructability. Autom. Constr. 2020, 111, 103064. [Google Scholar] [CrossRef]
  6. London, K.; Pablo, Z.; Gu, N. Explanatory defect causation model linking digital innovation, human error and quality improve-ment in residential construction. Autom. Constr. 2021, 123, 103505. [Google Scholar] [CrossRef]
  7. Succar, B. Building information modelling framework: A research and delivery foundation for industry stakeholders. Autom. Constr. 2009, 18, 357–375. [Google Scholar] [CrossRef]
  8. Liu, Y.; Li, M.; Wong, B.C.L.; Chan, C.M.; Cheng, J.C.P.; Gan, V.J.L. BIM-BVBS integration with openBIM standards for automatic prefabrication of steel reinforcement. Autom. Constr. 2021, 125, 103654. [Google Scholar] [CrossRef]
  9. Xu, X.; Mumford, T.; Zou, P.X. Life-cycle building information modelling (BIM) engaged framework for im- proving building energy performance. Energy Build. 2020, 231, 110496. [Google Scholar] [CrossRef]
  10. Avendaño, J.I.; Domingo, A.; Zlatanova, S. Building Information Modeling in Steel Building Projects Following BIM-DFE Methodology: A Case Study. Buildings 2023, 13, 2137. [Google Scholar] [CrossRef]
  11. Lee, C.Y.; Chong, H.Y.; Wang, X. Streamlining Digital Modeling and Building Information Modelling(BIM) Uses for the Oil and Gas Projects. Arch. Comput. Methods Eng. 2016, 25, 349–396. [Google Scholar] [CrossRef]
  12. Olanrewaju, O.I.; Kineber, A.F.; Chileshe, N.; Edwards, D.J. Modelling the relationship between Building Information Modelling (BIM) implementation barriers, usage and awareness on building project lifecycle. Build. Environ. 2022, 207, 108556. [Google Scholar] [CrossRef]
  13. Chen, Z.S.; Wang, Z.R.; Deveci, M.; Ding, W.; Pedrycz, W.; Skibniewski, M.J. Optimization-based probabilistic decision support for assessing building information modelling (BIM) maturity considering multiple objectives. Inf. Fusion 2024, 102, 102026. [Google Scholar] [CrossRef]
  14. Vignali, V.; Acerra, E.M.; Lantieri, C.; Di Vincenzo, F.; Piacentini, G.; Pancaldi, S. Building information Modelling (BIM) application for an existing road infrastructure. Autom. Constr. 2021, 128, 103752. [Google Scholar] [CrossRef]
  15. Wang, M.; Zhang, C. Performance indices and fragility assessment of steel frame structure with bolted low-yield-point steel connection components. Structures 2023, 58, 105379. [Google Scholar] [CrossRef]
  16. Lu, N.; Korman, T. Implementation of building information modeling (BIM) in modularconstruction: Benefits and challenges. In Proceedings of the Construction Research Congress, Banff, AB, Canada, 8–10 May 2010; pp. 1136–1145. [Google Scholar]
  17. Namini, S.B.; Meynagh, M.M.; Vahed, Y.K. Developing IFC standards for implementing industrialized building system components into BIM applications. In Proceedings of the International Conference on Construction and Project Management, Dubai, United Arab Emirates, 4–5 August 2012; pp. 133–137. [Google Scholar]
  18. Oti, A.H.; Tizani, W. BIM extension for the sustainability appraisal of conceptual steel design. Adv. Eng. Inform. 2014, 29, 89–95. [Google Scholar] [CrossRef]
  19. Chen, S.; Wu, J.; Shi, J. A BIM Platform for the Manufacture of PrefabricatedSteel Structure. Appl. Sci. 2020, 10, 8038. [Google Scholar] [CrossRef]
  20. Wang, Y.G.; He, X.J.; He, J.; Fan, C. Virtual trial assembly of steel structure based on BIM platform. Autom. Constr. 2022, 141, 104395. [Google Scholar] [CrossRef]
  21. Su, M.; Yang, B.; Wang, X. Research on Integrated Design of Modular Steel Structure Container Buildings Based on BIM. Adv. Civ. Eng. 2022, 2022, 4574676. [Google Scholar] [CrossRef]
  22. Sun, K.; Zhou, T.; Chen, Z.; Liu, H.; Yang, Z. Intelligent Design Concept of Rural Light Steel Frame Structure Based on BIM Technology and Genetic Algorithm. Int. J. Steel Struct. 2023, 23, 1343–1356. [Google Scholar] [CrossRef]
  23. Wang, D.; Lu, H. Development of a BIM Platform for the Design of Single-Story Steel Structure Factories. Buildings 2024, 14, 747. [Google Scholar] [CrossRef]
  24. GB 50011-2010; Code for Seismic Design of Buildings. Ministry of Housing and Urban-Rural Development of the People’s Republic of China: Beijing, China, 2016.
Figure 1. Integrated Design Concept for Prefabricated Steel Frame Structures Based on BIM Technology, with a Focus on Structural Safety Principle.
Figure 1. Integrated Design Concept for Prefabricated Steel Frame Structures Based on BIM Technology, with a Focus on Structural Safety Principle.
Buildings 14 02341 g001
Figure 2. Plan Layout Diagram of the Structure.
Figure 2. Plan Layout Diagram of the Structure.
Buildings 14 02341 g002
Figure 3. Elevation Diagram of the Structure.
Figure 3. Elevation Diagram of the Structure.
Buildings 14 02341 g003
Figure 4. Detailed Node Diagram (Units: mm): (a) Detailed Node Diagram; (b) 2-2; (c) 3-3.
Figure 4. Detailed Node Diagram (Units: mm): (a) Detailed Node Diagram; (b) 2-2; (c) 3-3.
Buildings 14 02341 g004
Figure 5. 3D Model of the Prefabricated Steel Frame Structure.
Figure 5. 3D Model of the Prefabricated Steel Frame Structure.
Buildings 14 02341 g005
Figure 6. Steel Structure Model.
Figure 6. Steel Structure Model.
Buildings 14 02341 g006
Figure 7. Bending Moment Diagram of a Y-Direction Frame Under Y-Direction Seismic Action (Unit: kN·m): (a) Beam Bending Moment Diagram; (b) Column Bending Moment Diagram.
Figure 7. Bending Moment Diagram of a Y-Direction Frame Under Y-Direction Seismic Action (Unit: kN·m): (a) Beam Bending Moment Diagram; (b) Column Bending Moment Diagram.
Buildings 14 02341 g007
Figure 8. Shear Force Diagram of a Y-Direction Frame Under Y-Direction Seismic Action (Unit: kN): (a) Beam Shear Force Diagram; (b) Column Shear Force Diagram.
Figure 8. Shear Force Diagram of a Y-Direction Frame Under Y-Direction Seismic Action (Unit: kN): (a) Beam Shear Force Diagram; (b) Column Shear Force Diagram.
Buildings 14 02341 g008
Figure 9. Bending Moment Diagram of a Y-Direction Frame Under Load Combination DSTL4 (Unit: kN·m): (a) Beam Bending Moment Diagram; (b) Column Bending Moment Diagram.
Figure 9. Bending Moment Diagram of a Y-Direction Frame Under Load Combination DSTL4 (Unit: kN·m): (a) Beam Bending Moment Diagram; (b) Column Bending Moment Diagram.
Buildings 14 02341 g009
Figure 10. Shear Force Diagram of a Y-Direction Frame Under Load Combination DSTL4 (Unit: kN): (a) Beam Shear Force Diagram; (b) Column Shear Force Diagram.
Figure 10. Shear Force Diagram of a Y-Direction Frame Under Load Combination DSTL4 (Unit: kN): (a) Beam Shear Force Diagram; (b) Column Shear Force Diagram.
Buildings 14 02341 g010
Figure 11. Stress Ratio of Structural Components.
Figure 11. Stress Ratio of Structural Components.
Buildings 14 02341 g011
Figure 12. Displacements of Each Floor under Y-direction Seismic Loading (unit: m): (a) Displacement of the 5th floor level; (b) Displacement of the 4th floor level; (c) Displacement of the 3rd floor level; (d) Displacement of the 2nd floor level; (e) Displacement of the 1st floor level.
Figure 12. Displacements of Each Floor under Y-direction Seismic Loading (unit: m): (a) Displacement of the 5th floor level; (b) Displacement of the 4th floor level; (c) Displacement of the 3rd floor level; (d) Displacement of the 2nd floor level; (e) Displacement of the 1st floor level.
Buildings 14 02341 g012
Figure 13. Floor Displacements at Each Level under Load Combination DSTL4 (unit: m): (a) Displacement of the 5th floor level; (b) Displacement of the 4th floor level; (c) Displacement of the 3rd floor level; (d) Displacement of the 2nd floor level; (e) Displacement of the 1st floor level.
Figure 13. Floor Displacements at Each Level under Load Combination DSTL4 (unit: m): (a) Displacement of the 5th floor level; (b) Displacement of the 4th floor level; (c) Displacement of the 3rd floor level; (d) Displacement of the 2nd floor level; (e) Displacement of the 1st floor level.
Buildings 14 02341 g013
Figure 14. Comparative Diagram of Floor Displacements for the Overall Structure Under Y-direction Seismic Action and Load Combination DSTL4.
Figure 14. Comparative Diagram of Floor Displacements for the Overall Structure Under Y-direction Seismic Action and Load Combination DSTL4.
Buildings 14 02341 g014
Figure 15. Comparative Diagram of Inter-story Drift Angles for Each Floor of the Overall Structure Under Y-direction Seismic Action and Load Combination DSTL4.
Figure 15. Comparative Diagram of Inter-story Drift Angles for Each Floor of the Overall Structure Under Y-direction Seismic Action and Load Combination DSTL4.
Buildings 14 02341 g015
Figure 16. Original Information of the NORTHRIDGE-01_NO_967 Seismic Wave.
Figure 16. Original Information of the NORTHRIDGE-01_NO_967 Seismic Wave.
Buildings 14 02341 g016
Figure 17. Comparison Chart of the NORTHRIDGE-01_NO_967 Seismic Wave Spectrum with Code-Specified Spectrum.
Figure 17. Comparison Chart of the NORTHRIDGE-01_NO_967 Seismic Wave Spectrum with Code-Specified Spectrum.
Buildings 14 02341 g017
Figure 18. Time–history Curve of Y-direction Displacement at Node 98 on the 1st Floor.
Figure 18. Time–history Curve of Y-direction Displacement at Node 98 on the 1st Floor.
Buildings 14 02341 g018
Figure 19. Time–history Curve of Y-direction Displacement at Node 99 on the 2nd Floor.
Figure 19. Time–history Curve of Y-direction Displacement at Node 99 on the 2nd Floor.
Buildings 14 02341 g019
Figure 20. Time–history Curve of Y-direction Displacement at Node 100 on the 3rd Floor.
Figure 20. Time–history Curve of Y-direction Displacement at Node 100 on the 3rd Floor.
Buildings 14 02341 g020
Figure 21. Time–history Curve of Y-direction Displacement at Node 101 on the 4th Floor.
Figure 21. Time–history Curve of Y-direction Displacement at Node 101 on the 4th Floor.
Buildings 14 02341 g021
Figure 22. Time–history Curve of Y-direction Displacement at Node 102 on the 5th Floor.
Figure 22. Time–history Curve of Y-direction Displacement at Node 102 on the 5th Floor.
Buildings 14 02341 g022
Figure 23. Numerical Model of Prefabricated Beam–column Joint in ABAQUS.
Figure 23. Numerical Model of Prefabricated Beam–column Joint in ABAQUS.
Buildings 14 02341 g023
Figure 24. Stress Contour Map of the Beam–column Joint.
Figure 24. Stress Contour Map of the Beam–column Joint.
Buildings 14 02341 g024
Figure 25. Detailed Node Diagram (Unit: mm).
Figure 25. Detailed Node Diagram (Unit: mm).
Buildings 14 02341 g025
Figure 26. Stress Contour Map of the Beam–Column Joint at a Beam End Displacement of 180.861 mm.
Figure 26. Stress Contour Map of the Beam–Column Joint at a Beam End Displacement of 180.861 mm.
Buildings 14 02341 g026
Figure 27. Graph of Beam End Load Versus Maximum Stress in Upper Flange Angle Steel of Beam–column Joint.
Figure 27. Graph of Beam End Load Versus Maximum Stress in Upper Flange Angle Steel of Beam–column Joint.
Buildings 14 02341 g027
Figure 28. Variation Curve of Beam End Load Versus Displacement.
Figure 28. Variation Curve of Beam End Load Versus Displacement.
Buildings 14 02341 g028
Table 1. Reference Peak Acceleration Values.
Table 1. Reference Peak Acceleration Values.
Seismic Design ClassificationFrequent Earthquake (Minor Earthquake)Design Basis Earthquake (Moderate Earthquake)Rare Earthquake (Major Earthquake)
8 Degree0.07 g0.2 g0.4 g
Disclaimer/Publisher’s Note: The statements, opinions and data contained in all publications are solely those of the individual author(s) and contributor(s) and not of MDPI and/or the editor(s). MDPI and/or the editor(s) disclaim responsibility for any injury to people or property resulting from any ideas, methods, instructions or products referred to in the content.

Share and Cite

MDPI and ACS Style

Wang, P.; Wang, X.; Chen, W.; Li, Y.; Wang, J. Research on Integrated Design of Prefabricated Steel Frame Structures Based on BIM Technology with a Focus on Structural Safety. Buildings 2024, 14, 2341. https://doi.org/10.3390/buildings14082341

AMA Style

Wang P, Wang X, Chen W, Li Y, Wang J. Research on Integrated Design of Prefabricated Steel Frame Structures Based on BIM Technology with a Focus on Structural Safety. Buildings. 2024; 14(8):2341. https://doi.org/10.3390/buildings14082341

Chicago/Turabian Style

Wang, Pengfei, Xiaofei Wang, Wei Chen, Yan Li, and Junguo Wang. 2024. "Research on Integrated Design of Prefabricated Steel Frame Structures Based on BIM Technology with a Focus on Structural Safety" Buildings 14, no. 8: 2341. https://doi.org/10.3390/buildings14082341

APA Style

Wang, P., Wang, X., Chen, W., Li, Y., & Wang, J. (2024). Research on Integrated Design of Prefabricated Steel Frame Structures Based on BIM Technology with a Focus on Structural Safety. Buildings, 14(8), 2341. https://doi.org/10.3390/buildings14082341

Note that from the first issue of 2016, this journal uses article numbers instead of page numbers. See further details here.

Article Metrics

Back to TopTop