Next Article in Journal
Head-Integrated Detecting Method for Workers under Complex Construction Scenarios
Next Article in Special Issue
The Evaluation National Green Building Index Based on a Survey of Personnel Satisfaction: The Case of Hubei Province, China
Previous Article in Journal
Investigations on Driving Factors of Coordination Development of Rural Infrastructure and Ecological Environment: The Case of Western China
Previous Article in Special Issue
Effect of Orientation and Skylight Area Ratio on Building Energy Efficiency in the Qinghai–Tibet Plateau
 
 
Font Type:
Arial Georgia Verdana
Font Size:
Aa Aa Aa
Line Spacing:
Column Width:
Background:
Review

Scopes for Improvements in Energy Conservation and Thermomechanical Performance of Building Blocks in the Kingdom of Bahrain: A Literature Review

by
Payal Ashish Modi
1,*,
Abdelgadir Mohamed Mahmoud
1 and
Yousif Abdalla Abakr
2
1
Razak Faculty of Technology and Informatics, University of Technology, Kuala Lumpur 54100, Malaysia
2
Department of Mechanical Engineering, University of Nottingham, Semenyih 43500, Malaysia
*
Author to whom correspondence should be addressed.
Buildings 2024, 14(4), 861; https://doi.org/10.3390/buildings14040861
Submission received: 30 January 2024 / Revised: 12 March 2024 / Accepted: 16 March 2024 / Published: 22 March 2024
(This article belongs to the Special Issue Building Energy-Saving Technology—2nd Edition)

Abstract

In regions with hot climates such as Bahrain, the utilization of air conditioning is indispensable in both public and private buildings to attain thermally comfortable indoor environments. External walls, constructed with building blocks, play a crucial role in the heat penetration into the building system. Despite extensive research on the cavity designs of building blocks, there has been a lack of comparison between individual block systems and integrated multi-block systems, considering both thermal and mechanical performance criteria simultaneously. Therefore, it is imperative to gather and review information on key parameters influencing the thermomechanical performance of building blocks, along with investigating techniques used to evaluate these parameters according to international standards. This review primarily focuses on these aspects. Additionally, it presents the historical evolution of housing types and the standard procedures followed by the Bahraini Government and block manufacturing companies in alignment with energy efficiency policies in Bahrain. Ultimately, this review aims to inspire researchers to explore other viable and innovative designs for enhancing the thermal insulation of building walls. By doing so, this work will contribute to Bahrain’s 2030 goals of fostering sustainability and mitigating environmental impact at a local level, while also aligning with the United Nations’ Sustainable Development Goals (SDGs) for 2030, specifically SDG 11, which aims to “make cities and human settlements sustainable”.

1. Introduction

At the turn of the 21st century, the high level of consumption of fossil fuels and dramatic shifts in the global climate patterns left no economic sectors untouched, including the building industry. Buildings, responsible for nearly 40% of energy consumption and approximately one third of greenhouse gas emissions, primarily devote this energy to heating and cooling purposes [1]. The majority of this energy is lost or gained through the building envelope, which resembles a container punctuated by doors, windows, roofs, external walls, and ventilations. Consequently, the design of each of these elements significantly impacts the energy efficiency of building envelopes. With rapid urbanization, architectural design as a whole plays a pivotal role in energy consumption [2]. Additionally, human comfort within buildings is influenced by building-related characteristics [3,4]. Implementing energy efficiency measures in buildings holds long-term implications, given their extended lifespan. If established energy efficiency practices are adopted, global building energy demand could decrease by one-third by 2050 [5]. Efforts towards this end are underway globally, resulting in the development of sustainable materials and technologies, such as phase change materials, green building materials, and advanced insulation materials [6]. Energy-efficient and renewable energy technologies focusing on HVAC systems, lighting, and building walls [7,8], and building-integrated photovoltaic systems are also being developed [9]. The latest advancements include the integration of Industry 4.0 technologies like [10] deep learning [11] to forecast building energy consumption. Moreover, smart solutions like photovoltaic green roofs [12] and building automation systems, employing machine learning and Internet of Things (IoT) technologies, are enhancing energy efficiency in buildings [13]. Sustainable energy technologies, such as nanofluid-based solar collectors, are being explored to achieve net-zero energy goals [14].
In hot climates, notably in the Gulf countries, the high energy demand and diminishing fossil fuel reserves are major concerns. Consequently, enhancing the energy efficiency of building walls has become a critical research area, particularly in regions like the Gulf, where high atmospheric temperatures persist for a significant portion of the year. Thus, the measurement and investigation of Thermal Resistance [15] alongside the Mechanical Strength of building walls [16] are crucial, providing real-time insights and serving as a basis for more effective insulation techniques [17,18], especially when combined with numerical modeling applications. This review paper primarily focuses on such investigations in the Kingdom of Bahrain.

Need for the Investigation of Building Blocks in Bahrain

The Kingdom of Bahrain, being one of the Gulf countries, experiences a hot and humid climate for most months of the year. Over the past twenty years, Bahrain’s total primary energy supply has grown by 4.2%, total final energy consumption has grown by 5.3%, and non-industrial electricity consumption has grown by 6.6% per year [19]. The primary energy consumption for Bahrain increased from 0.38 (1.11 × 108 MWh) quadrillion Btu in 2000 to 0.67 quadrillion Btu (1.96 × 108 MWh) in 2019, growing at an average annual rate of 3.14% [20]. Per capita energy consumption reached 9.7 toe (112.81 MWh) in 2019 (three times higher than the Middle East average and five times the global average), while electricity consumption per capita was 21 MWh, which was five times the Middle East average and seven times the global average [21]. In the Kingdom of Bahrain, the residential sector used most of the grid electricity, accounting for 49.5% of total grid consumption during the baseline period. The commercial sector was the second-largest user, accounting for 36.6% during the same period. Around 60% of the residential sector’s annual electricity use is related to air conditioning, which is similar for the commercial sector, at 55% annual electricity use [19]. The residential and commercial sectors therefore have high potential for significant energy efficiency improvements. In accordance with the available data from the Ministry of Electricity and Water (MEW-2021) [22] of the Kingdom of Bahrain, there has been an increase of 5% in the population during the period from 2017 to 2021. Eventually, the per capita consumption of electrical energy has significantly increased, thereby increasing the requirements to meet the national energy needs. The total energy consumption in all sectors has increased from 16,559 to 18,091 kWh (9.25%), with the total per capita energy consumption increasing from 11,083 to 11,871 kWh (7.10%) for the period from 2017 to 2021 [22], as shown in Figure 1, while the electricity consumption in different sectors with respect to per capita consumption is shown in Figure 2. It is interesting to note that 2019 and 2020 were the years of COVID-19 during which the majority of industrial and commercial services were under lockdown conditions. Therefore, in Figure 2, it can be observed that for this time period, there exists a drop in energy consumption in industrial and commercial sectors while there is a clear increase in the domestic sector.
Bahrain has five electrical power stations with a combined capacity of 4794 MW. Additionally, with other private power links (Alba link and GCC link), the net capacity turns out to be 5994 MW (MEW-2021) [22], as shown in Figure 3.
Figure 4 depicts Bahrain’s sizable generating capacity, having serviced a peak load of 3751 MW in 2021. Based on consistent increases in population and energy consumption trends and no significant energy improvement plans in Bahrain, it is estimated that the annual peak demand is likely to be over 5400 MW by 2030 [23]. The linear trendlines of Figure 1 and Figure 4 also support this outcome.
The Economic Development Board (EDB) expects 56,208 households to qualify for social (subsidized) housing by 2030. The report shows that non-Bahraini housing demand is expected to increase from an estimated 61,117 housing units today to 121,581 in 2030. Total housing demand (Bahraini and non-Bahraini) is expected to increase to 346,718 in 2030, up from a current stock of 145,181. Additionally, due to the geographical location of Bahrain, it experiences a hot climate for most months of the year, i.e., from April to November, and the warmest month is August, with an average temperature of 39 °C, as shown in Figure 5. The average annual maximum temperature is 31 °C, and the average annual minimum temperature is 23.5 °C. However, the average annual percentage of humidity is high, up to 73% [24], due to which the effective heat felt is much higher than the actual temperature.
These reasons contribute to the fact that residents rely heavily on air conditioners to obtain a comfortable indoor temperature. Around 47–57% of the electricity demand in summer is related to the usage of air conditioners [25].
It was estimated that 6.34 TWh of electrical energy was used for cooling during May to October 2016, most of which was utilized during the months of June to September, and these results were translated into a total electricity cost of 507.443 million USD [26]. There are two major energy efficiency opportunities for the residential and commercial sectors in Bahrain: first, to significantly reduce the electricity used in buildings, and second, to improve the thermal efficiency of buildings.

2. Motivation

In the Kingdom of Bahrain, only three research studies in this direction have been undertaken. Hasan Radhi in 2016 [27] investigated the cool roof strategy and its potential in Bahrain. Thermal simulations of five standard roofs were performed during summer days. These included lightweight concrete screed, bituminous roofing felt, tile-light, tile-dark, and metal decking. Results show that by using light tile roofs and metal decking roofs, almost 80% of the sunlight can be reflected by the surface, and only 20% of the sunlight heats the building. However, this study mainly focused on the roof systems of buildings in Bahrain. Modi Payal in 2017 [28] designed and developed a mini-scale hot box to evaluate the thermal resistance of an insulation building block prototype using experimental and analytical methods. However, this study mainly focused on affirmation and validation of the experimental results with the thermal performance results of the block from the manufacturing companies. The analysis of Moncef Kranti in 2018 [23] indicated that the development and enforcement of a more stringent building energy efficiency code improves the energy productivity of buildings, as well as the country, with a reduction of over 87 MW in peak demand. However, this study mainly dealt with the implementation of new energy efficiency codes and PV systems in buildings. Eventually, it is clear that not much research is conducted on the technicalities of the walls, which are mainly responsible for the majority of energy transfers through a building. These technicalities of a wall include their thermal and mechanical performances, aggregate materials, insulation materials, dimensions, cavity designs, mechanical strength, thermal resistance, and so on. On one hand, very limited work is presented by the researchers, while on the other hand, the government of Bahrain has been very active and agile.
The Bahrain Economic Vision 2030 [29] states, “Bahraini nationals and residents enjoy a sustainable and attractive living environment,” and some major steps are undertaken in this direction. To improve the efficiency of AC units available for retail, the government enacted a Minimum Energy Performance Standard (MEPS) and energy efficiency labeling of small AC units (Ministerial Order No. 70/2015) [30]. Thermal Insulation regulations were introduced in 1999 (Ministerial Order No. 8/1999) [31], which mandated all buildings over four stories to be insulated and stipulated minimum requirements for the efficiency of the envelope of residential and commercial buildings. In 2012, the regulations were extended to cover all buildings (Ministerial Order No. 63/2012) [32]. The current review can be considered as one step forward in the research area, as it provides appropriate information with regard to the influential factors for the performance of building blocks, in general. While this review is mainly focused on Bahrain, it is simultaneously important to mention the history of the houses and their building blocks. Along with that, the local standard procedures followed for thermal and mechanical testing and government approvals with allowable technical parameters of blocks are clearly presented. The information from the present work will be helpful in the future for extended numerical/analytical/experimental investigations of building blocks in Bahrain. On a global level, this study is also aligned with one of the 17 sustainable goals (SDGS) [33] set by the United Nations’ 2030 Agenda. Sustainable Development Goal 11 aims to “make cities and human settlements sustainable,” which promotes inclusive, safe, resilient, and sustainable construction industry activities.

3. Influential Factors for the Performance of Building Blocks

The performance of building blocks is mainly affected by three main parameters, as discussed in Section 3.1, Section 3.2 and Section 3.3.

3.1. Aggregate Materials

Various interesting analyses and proposals regarding modified building blocks’ aggregate materials have been presented by researchers. This includes changes in the aggregates of the concrete and material concentrations to improve the thermal and mechanical performance of masonry blocks. A study shows that special masonry mortar made up of sintered coal gangue, obtained as an industrial waste, can save 65% of energy compared to normal cement mortar, which can save only 50% of energy. Keeping the same conditions, numerical simulation shows that the maximum heat flow of sintered coal gangue insulation block is 23.48 W/m2 °C, while that of the ordinary clay block is 66.48 W/m2 °C [34]. The special masonry mortar can provide better thermal performance compared to traditional clay brick. It has been observed that the manufacturing procedure of cement used in mortar involves huge emissions of CO2 (approximately 1 ton of CO2 for 1 ton of cement production). Recent research in this direction shows that Geopolymerization Technology is an effective method of converting wastes consisting of alumina and silica into useful products. The structural performance of geopolymers is similar to that of Ordinary Portland Cement (OPC), and therefore, geopolymers can easily replace OPC, thereby reducing energy consumption and CO2 emissions. So, geopolymers can replace ordinary Portland cement [35]. However, the use of geopolymers in building blocks has not been investigated. In another study, customized mortar blocks were cast as a replacement for Ordinary Portland Cement (OPC) with varying amounts of Date Palm Ash (DPA) in the range of 10–30%. Experiments and simulation results depicted that thermal resistance (R-value) of the block loaded with 10%, 20%, and 30% DPA, in comparison to the control block (0% DPA), increased by 9.6%, 8.1%, and 47.4%, respectively. As per Noman Ashraf [36], DPA is a promising insulation material as it can reduce the average monthly indoor temperature by 2 °C without compromising the physical, chemical, and mechanical properties of the block, and cost analysis shows that the block with 30% DPA is the most effective, with a unit cost of $2.76. However, although, in this study, ASTM C90 standard [37] was followed to maintain the density and hence the mechanical strength of the blocks, appropriate analysis to measure the mechanical strength of the blocks was not presented. Another study shows that a new concrete material with red mud aggregate is preferred over natural basalt aggregate, as the red mud has higher wettability to the cement paste, strong adhesion, and enhanced mechanical properties compared to the basalt aggregate, which is a mixture of basalt and limestone. Results show that it increases the compressive strength of the modified block by over 10% and flexural strength by over 20% [38]. It seems that red mud can be a good option for use in concrete aggregate. The latest study shows that researchers are exploring the possible use of Recycled Concrete Aggregate (RCA) as another option for an aggregate material [39,40] or Recycled Expanded Polystyrene (EPS) [41] to manufacture the blocks. With this, the compressive strength of the block will be slightly lowered; however, its manufacturing process is environmentally friendly). These studies show good mechanical analysis; however, thermal analysis was not conducted.
Waleed A. Al-Awash [42] conducted research on different blocks by implementing changes in the aggregates (partially replacing sand with insulation materials—expanded polystyrene EPS, low-density polyethylene LDPB, vermiculate VL, volcanic scoria VS, crushed crumb-rubber RU) and produced a control block with three-row rectangular cavities to reduce the effective thermal conductivity. Experimental tests were conducted considering the selected control block design and varied insulation materials. Results showed that the VS (volcanic scoria)-treated block had optimum performance with a 15% increment in thermal resistance over the control block and 318% over the market block. This study presents good experimental and analytical (Ansys) results for the blocks of Saudi Arabia. However, optimum performance was obtained by considering only the thermal and economic criteria; however, mechanical analysis was not conducted. In a similar study [43], insulation materials (perlite, rubber, and polyethylene) were added to concrete mixtures to produce proposed optimized hollow blocks followed by an experimentation process. The insulation materials were ranked in increasing order of their performance as perlite, rubber, and polyethylene. The thermal conductivity of the proposed optimized blocks was reduced up-to 40% as compared to the conventional ones available in the market. The study shows good analytical and experimental investigation, including thermal and mechanical parameters, to prove that perlite, rubber, and polyethylene are good aggregate materials.

3.2. Insulation Materials

While following the recommendations presented by the researchers with regard to insulation materials in building blocks, it was observed that traditional thermal insulation materials like polystyrene and mineral wool are still in demand [44,45]. However, varieties of nature-based thermal insulation materials have been rediscovered as less amounts of fossil fuels are required for their production. Nature-based thermal insulation materials can be grouped as follows: rediscovered materials—cork, wood wool, fiberboard, etc.; recently introduced materials—cellulose insulation, cotton, sheep wool, etc.; and insulation materials in an experimental stage—cornstalk block, corncob board, palm fibers, etc. From market research, as shown in Figure 6, it is found that currently, all over the world, 57% of the rediscovered materials are used, with 43% of recently introduced materials, out of which cellulose, comprising 32%, is used as thermal insulation materials, while the remaining is still in the experimental stage [46]. Eventually, palm fiber is a good insulation material with a low thermal conductivity of 0.041 W/m K and can be a good option for Gulf countries.
A good comparison between two specific insulation materials like wood fiber and mineral wool has been presented by Lars Gullbrekken [47], which shows that the air permeability of wood fiber insulation is nearly 50% higher than that of mineral wool despite its high density, and consequently, in order to achieve the same U-value, 20 mm and 30 mm less insulation layers are required for the 250 mm and 400 mm walls, respectively. This study shows a good comparison between conventional insulation—mineral wool— and the newly developed wood fiber. Currently, the most widely accepted insulation materials are Phase Change Materials (PCM) that are integrated into the hollow bricks of building walls, thereby improving the thermal performance of external building walls [48,49]. The high latent heat of fusion of PCMs reduces the heat flow through the building envelope, which further stabilizes and reduces indoor temperature fluctuations [48]. However, this study does not clearly specify the placements of PCMs in the hollow blocks that can provide optimum thermal performance. Refs. [50,51] conducted an extensive numerical investigation on the integration of PCM into building walls to establish the key conditions required for effective utilization of PCM in reducing heat gains in the cooling season and heat losses in the hot season. Results show that PCM-integrated walls are advantageous mostly in moderate climates and that employing PCMs in building walls does not always lead to improvement. In fact, as shown in Figure 7, incorrect placements of PCMs can substantially increase energy use in buildings. The heat gain is higher for x = 0.0 and 1.0 while it is lowest at x = 0.5 [50].
Analysts are looking forward to investigating effective insulation materials and techniques to propose newer methods to reduce energy consumption. A good approach using plant fibers, recycled wastes, photochromic glass [52], agricultural wastes [53], or coconut fibers [54] as applications for green construction materials on building walls to contribute to sustainable development has been proposed.
However, Raad Homod [55] preferred to undergo a comparative study of building walls with traditional ones. Hybrid vernacular buildings made of hard external mud wall with finishing layers of a composite of clay and straw on the interior and exterior sides were compared with hybrid vernacular buildings made of AAC (Autoclaved Aerated Concrete). It was reported that AAC buildings consume 47.83% more energy compared to Vernacular buildings. In this study, the traditional approach of using mud and straw has been used in developing hybrid buildings, and they have turned out to be more effective. However, the moisture gain of the walls was not discussed. It is a general assumption that the application of insulation material layers on the exterior walls plays a vital role in enhancing the energy efficiency of the buildings. Iffa Emishaw [56] implemented this technique and used Polyisocyanurate-PIR rigid boards, as they have high thermal resistance compared to other commonly used insulation materials applied on the exterior wall. The results showed that PIR accumulated a small amount of moisture compared to other insulation boards, which can work well in colder climates; however, for other climatic conditions, due to lower permeance, its use for exterior walls may not be very desirable. Eventually, PIR is not suitable for hot countries like Bahrain. This means that insulation materials need to be selected based on climatic conditions [57,58]. As such, research depicts that the application of a small thickness of aerogel-based rendering on the exterior surface of insulated or non-insulated walls significantly reduces heat losses and removes the risk of moisture, thereby improving the energy efficiency of the buildings [59,60].
Various studies have been carried out to utilize industrial waste in the insulation industry as well. Over 60 million tons of Aluminum (Al) are produced annually, requiring sustainable and eco-friendly recycling methods for Al waste. In the research done by Thenappa [61], Al metal waste is utilized in the fabrication of Al hydroxide aerogels using a cost-effective and environmentally friendly process. Thus, the aerogels manufactured. with changes in the contents of Al and Polyvinyl Alcohol (PVA) as a binder, exhibit low density (0.06–0.108 g/cm3), high porosity (92.3–95.5%), low electrical conductivity ([1.8–5.2] × 10−8 S/m), ultra-low thermal conductivity 0.028–0.032 W/mK (as shown in Table 1), and are capable of bearing high temperatures of 800 °C with less than 50% decomposition. Therefore, synthesized aerogels can be promising candidates for engineering applications such as thermal insulation of buildings and pipes to expand the usage of recycled Al [61]. The implementation of the usage of aerogel and hence aluminum in building insulation can be helpful to Bahrain as it comprises a company named ALBA, which is the world’s largest aluminum smelter with a production capacity of 1.651 M mtpa [62].
The most important point to note is that although new insulation materials are being developed and proposed, block manufacturing companies still use polymer-based materials like polystyrene and polyurethane foam. As such, these materials have huge environmental impacts during their production process. Therefore, researchers should keep in mind that the new materials they develop should not only have excellent properties but should also be environment friendly, like composite materials [63,64] or industrial by-products [65,66].

3.3. Geometrical Configurations of Cavities of Blocks

Various studies have been conducted to investigate the effects of varied geometrical configurations of hollow concrete building blocks on their thermal resistance, thereby considering different modes of heat transfer: conduction, convection, and radiation [67,68]. In one such study conducted by M.P. Morales [69], it was observed that a rhomboid layout of voids with a longer diagonal at right angles to the heat flux, alongside rhomboidal cavities at grooves and tongues in alternate rows, breaks the thermal bridge and can be a good option to improve the thermal resistance of blocks (as seen in Figure 8b). With this type of arrangement, the direct thermal bridge in the block was broken, and around a 16% improvement was observed in the thermal properties of the block compared to the original one with rectangular cavities (as seen in Figure 8a), which was used in Spain, thereby keeping the U value below 0.57 W/m2K, which was well within the range of Spanish regulations. However, convection and radiation modes of heat transfers were neglected, and mechanical analysis of the blocks was not conducted.
In a similar study by Yuan Zhang [70], it was found that for the same block width, the thermal performance can be improved remarkably by increasing the number of hole rows compared increasing the hole thickness, as shown in Figure 9. So, it is advisable to increase the hole rows with a staggered arrangement over increasing the hole thickness if the hole thickness is larger than 0.02 m. Factors influencing the thermal performance of the blocks are ranked in descending order as follows: (a) raising block thickness (with an increase in hole spacing), (b) increasing hole rows with small hole thickness, (c) raising block thickness (with a rise in hole thickness), (d) increasing hole rows with large hole thickness, (e) reducing the hole number of each row, (f) staggered arrangement of holes [70,71]. This study provides good insights into the various structural factors that affect the thermal resistance of the block; however, it is limited to only rectangular-shaped cavities within the block. An important factor to be noted is that changes in the number and dimensions of cavities of the block significantly affect the mechanical strength of the block, although this lack related analysis in the study [70].
H. Ghailane [72] investigated the reduction of heat flow through hollow clay bricks with cylindrical voids (as per the sample shown in Figure 10) of varying numbers, diameters, and cavity filling materials (air, wool, and expanded foam), relative to solid blocks. The findings presented a reduction in energy consumption through the usage of hollow blocks compared to solid blocks. It was found that effective reduction in the thermal conductivity of hollow blocks was obtained when the volume of the voids and the reduction in the cross-sectional area for heat transfer was more than 10%, as shown in Figure 10. The figure provides results for cavities filled with air; however, similar results were obtained for wool and expanded foam. Nevertheless, this study was limited to only cylindrical-shaped cavities, and a comparative study of cylindrical cavities with widely used rectangular cavities was not conducted. Also, changes in the structural configuration might have significantly affected the mechanical properties of the block, which was not discussed. Additionally, only the conduction mode of heat transfer was considered across the thickness of the blocks, while the convection and radiation modes of heat transfer at either side of the block and within the air cavities were neglected.
In 2020, a numerical two-dimensional steady state analysis was conducted by Marcelo Fogiatto [73] to study the effect of baffles within the rectangular cavities of blocks as shown in Figure 11 was tested. It was observed that the rate of heat transfer in rectangular cavities were reduced by 22.2% when baffles were introduced within these cavities. In 2020, Ahmed S. Al-Tamimi [43] developed a 3D FEM model to propose an optimal geometry of hollow blocks with rectangular cavities (as shown in Figure 12) with higher thermal efficiency compared to the hollow blocks available in the market. From Ahmed’s studies, it was concluded that thermal flow of heat can be reduced by increasing the Hollow Ratio (the total area of holes in a block/the cross-sectional area of the block), Aspect Ratio (the width perpendicular to heat flow/height of the cavity) and reducing the cavity width (parallel to heat flux) [43]. Further, results showed that, the baffles in rectangular cavities had a greater influence compared to rectangular cavities [73].
However, the tested blocks had one particular shapes of cavities; either had rectangular or circular cavities, while no block was tested that had both rectangular and circular cavities in one model. Also, for the staggered arrangement, it was observed that the complexity of the staggered arrangement of cavities on the extreme sides of the blocks could further investigate the thermal performance of the blocks. Moreover, the mechanical strength of the blocks was not investigated, and no experimental analysis was conducted.
In [43], an excellent analysis was conducted to show that for the same Hollow Ratios, rectangular cavities were better than the cylindrical ones, including appropriate experimental, thermal, and mechanical analyses. However, again, no block having both types of cavities was tested. Secondly, the optimal design was proposed by considering thermal analysis, without simultaneously considering both thermal and mechanical analyses. Thirdly, the complexity of staggered arrangement on extreme sides of the blocks was less.
Apparently, a three-dimensional CFD-based numerical study, considering the conduction method in the solid part of the block and the convection method in the cavities and wall surfaces (inner and outer), was carried out by Erdem Cuce [74] in 2020, in which rectangular cavities were arranged in a staggered pattern at the sides of the blocks. The results showed that the depth of cavities within the hollow enclosure, with continuous hollow cavities from top to bottom, provided a maximum improvement of 53% with U value of 0.43 W/m2K as compared to the commercially used hollow block with a U-value of 0.916 W/m2K. However, increasing the depth of cavities notably reduced the weight of the blocks. While thermal analysis of the design of the cavities and the joints of the blocks were performed to propose some optimized blocks, later, the mechanical strength of the blocks was investigated only for these optimized blocks. Therefore, the simultaneous consideration of thermal and mechanical parameters was missing.
Out of the three study possibilities discussed in the above sections, it can be observed that to increase the thermal performance of the building blocks, the first two possibilities of proposing new insulation materials/techniques and new aggregate materials may not be cost-effective, as they may increase the material cost, and hence, the overall cost of the block may increase. Conversely, the third possibility involves suggestions for modifications of the cavities of the block, which would contribute to enhancing the internal design without increasing the price of the block. It is very clear that the performance of the block depends on various parameters of the internal design, including the Aspect Ratio of the cavity (the ratio of width perpendicular to heat flux to the height), Hollow Ratio (the ratio of the total area of the block to the cross-sectional area of the block), thermal bridges, number of cavities, number of rows of cavities, dimension of cavities parallel and perpendicular to heat flux, and linear or staggered arrangement of the cavities. These parameters are summarized in Table 2. These parameters not only contribute to changes in thermal performance but the mechanical performance of the block as well. Therefore, there is a requirement to introduce a single non-dimensional criterion that can evaluate the effectiveness of building blocks in terms of thermal and structural parameters for better comparison and selection purposes.

4. Influential Technical Parameters for the Performance of Building Blocks

The main influential technical parameters responsible for the performance of building blocks are discussed in Section 4.1 and Section 4.2.

4.1. Thermal Transmittance (U-Value)

The thermal behavior of building walls and their energy consumption can be determined by evaluating the thermal and mechanical (thermo–mechanical) properties of such systems. Apparently, thermal transmittance (U-value) and mechanical strength of the wall system become the most important parameters in the overall thermo-mechanical performance of a building.

4.1.1. Evaluation Techniques for Thermal Transmittance (U-Value)

There are two main methods to evaluate the thermal transmittance of building wall systems:
(i)
Theoretical method
(ii)
Experimental method
Theoretical Method
As per the BRE publication ‘Conventions for U-value calculations’, the different U-value theoretical calculation methods are:
  • Calculation by simplified method using a BRE U-value calculator.
  • Calculation by ‘numerical methods’ using different computer simulation software.
  • Combination of calculation and numerical methods.
    -
    However, the theoretical evaluation of thermal transmittance (U-value) becomes difficult in existing building walls. Two main difficulties that are encountered are:
    -
    Traditional buildings are built using non-homogenous materials whose thermal conductivity values are not available.
    -
    Destructive methods are required to be adopted in order to establish exact dimensions of layers of the wall.
Experimental Method
Various experimental methods for measuring the thermal transmittance (U-value) or thermal resistance (R-value) of a building wall element have been developed. These methods further include measurements and analyses of wall systems within controlled environment (in-lab) or in real environments (on-site). In 2013, Abdulaziz Almujahid [75] constructed a test room measuring 600 × 730 cm2 with a height of 220 cm to evaluate the thermal performance of building wall systems under real conditions (on-site method). The surface area of each wall system was 120 × 120 cm2, thereby accumulating most varieties of blocks manufactured in the country. Each module of the block was separated by 20 cm-thick siporex insulation material on all sides, allowing heat flow only in the normal direction to the wall surface. The roof consisted of corrugated metal sheet insulated with 5 cm fiber glass insulation. The room inside was air conditioned using two split ac units, each with a capacity of 1.5 tons. The purpose of air conditioning the room was to simulate real conditions. In another experimental study measuring the thermo–mechanical properties of building blocks used in hot desert arid climates, Miloud Hatia conducted research in 2021 [76], for which different models of wall systems (on-site method) were constructed, as shown in Figure 13. Transient heat transfer conditions, along with the effects of radiation heat transfer, were studied. It was noticed that during the first hours, the temperature inside was higher than outside because during the daytime, the slab made of concrete had absorbed and stored heat. In the early hours, with minimal solar radiation, the wall lost heat (the heat was transferred from the hot medium to the cold medium). But, from the middle of the day untill 17:00, the external temperature remained higher than the interior (due to solar radiation). After 17:00, the opposite became true, and the system behaved as a storehouse of building elements (slab and walls).
Waleed A. Al-Awsh [42] conducted experimental and numerical investigations on innovative masonry walls for industrial and residential buildings in Saudi Arabia in 2020. Compared to the previous two studies, the experimental work in this study was conducted in the controlled environment of a laboratory room (in-lab method). The samples of blocks (Figure 14) were tested using a specific device called a guarded hot plate instrument (Figure 15). The temperature difference across the blocks’ thickness was maintained from 30° C to 40 °C, while the measurements were noted on an hourly basis until they reach steady-state values to eventually evaluate the thermal conductivity of the blocks. In one such study, a mathematical model was developed to evaluate the R-value, heat flux, and thermal diffusivity of individual masonry blocks based on experimental results in a controlled environment [77], while in other studies, the experimental results were compared with numerical results for a multilayered wall [78], or the experimental results were compared with modeled data [79].
To summarize, a good attempt was made by Abdulaziz Almujahid [75] to consider real transient conditions by building a test room and conducting experiments in real environmental conditions (on-site method). Miloud Hatia [76] effectively discussed the effects of radiation on the thermal behaviour of walls by conducting real experiments in open environmental conditons (on-site method). However, in both studies, readings were noted after 24 h based on the assumption that the system reaches a steady-state condition within that time period. On the other hand, Waleed A. Al-Awsh [42] validated the results by comparing experimental measurements in a controlled environment (in-lab method) with the computational fluid dynamics (CFD) model implemented by the Ansys Fluent program. However, since on-site (uncontrolled environment) analysis was not conducted, it is not clear as to how the results would be affected by changes in ambient conditions.
Since, in most nations, the topic of measuring the thermal performance of building walls is of high importance in energy conservation campaigns, a common trusted procedure is required to be followed as a reference. Therefore, standards for experimental methods have been developed and are widely used [75,76,80,81] by researchers in this field. These standards include the International standard ISO 9869 [82] and the American standard ASTM 1046 and 1155 [83]. The standard procedures, descriptions, measuring methods, measurement equipment, conditions, etc., in the on-site method, which is also named the ‘In-Situ method’, are well-discussed in both ISO and ASTM standards. These two standards were compared by I. A. Atsonios [84] in 2017, and it was found that other than small differences in details, the principles of the two standards remain the same. The In-Situ method evaluates the U-value of a wall system under steady-state conditions using temperature sensors on both sides of the wall element and a heat flow meter on one side of the wall, preferably the inner side of the wall, which has higher stability in temperature. As per the International Standard ISO 9869-1 [82], it is always difficult to achieve steady-state conditions in on-site problems. Therefore, a few methods have been developed to overcome this difficulty:
-
Achieving steady-state conditions using a hot and cold box, which is commonly used in laboratory experimentation methods (ISO 8990) [85].
-
Assuming that the mean values of temperatures and heat flow rates over a long period of time provide an estimation of steady-state conditions (Average Method)
-
Implementing dynamic theory to consider variations in temperatures and heat flow rates in the analysis of the recorded data.
When observing the difference between in-lab and on-site methods (as seen in Table 3) for the thermal performance of walls, the In-Situ technique is highly recommended. The most popular method of the In-Situ technique is the Average Method, as suggested in ISO 9869 standard [82], using one heat flux sensor and two thermocouples [81].
However, there are two main problems that are encountered when using the In-Situ average method. Firstly, the issue of the long duration of measurements due to unstable boundary conditions, and secondly, the problem with the precision of the U-value. As per ISO 9869 [82], considering that all conditions are satisfied to report an acceptable U-value, the main criteria to fulfill and stop the measurement include the following:
-
The measurement period should exceed 72 h with a certain range of fixed intervals.
-
The R-value obtained at the end of the test should not deviate by more than 5% from the value obtained 24 h before.
-
The R-value obtained by analyzing the data from the first time-period during INT (2 × DT/3) should not deviate by more than 5% from the values obtained from the data the last time period of the same duration. DT is the duration of test in days and INT is the integer part.
In 2018, Arash Rasooli [81] demonstrated a minor modification in the standard In-Situ average method to improve the results with regard to the duration and precision. As shown in Figure 16, an additional heat flux sensor, opposite to the first one, was incorporated into the wall system. The two R-values differ for each heat flux sensor and eventually converge, thereby obtaining an average R-value with higher precision in a shorter time period.

4.2. Compressive Strength of Insulation Building Block

Different tests are required to measure the strength of concrete before using it in a construction project. These strength measurement tests include compressive strength [86,87], tensile strength [88,89], and flexural strength [90]. However, in the case of building blocks, the compressive strength of concrete blocks is a crucial parameter to determine suitability in building construction work, including high-rise buildings. Concrete masonry blocks are generally made of cement, aggregate, and water. The compressive strength test is of high importance as walls are constructed by placing blocks one above the other, and the compression on the blocks increases gradually from the top to bottom layers, with the lowest layer bearing the maximum load for the entire wall. In accordance with historical practice, the compressive strength of concrete is usually determined from standard procedures that include sampling, making, curing, and testing of specimens [91]. ASTM Standard C 140-08 [92] provides various testing procedures commonly used for evaluating the characteristics of concrete masonry units and related concrete units. Methods are provided for sampling, measurement of dimensions, compressive strength, density, absorption, moisture content, flexural load, and ballast weight. All these methods are not used for all types of concrete units; however, specific testing and reporting procedures are included in this standard [93,94,95]. Further, the testing of physical quantities of sample blocks includes the following procedures, as shown in Figure 17.
In addition to unit compressive strength testing, specimens are tested in a compression testing machine wherein the load is applied gradually at a rate of 140 kg/sq cm/min until the specimen fails. The load at failure, when divided by the area of the specimen, yields the compressive strength of the concrete. The strength of concrete increases with age; for example, the strength is 1% on day 1 and 99% on day 28 [96].
The compressive strength test of the blocks is conducted as per ASTM C140 [92], according to which 3.45 MPa is the minimum strength requirement of an individual block. In 2020, Waleed A. Al-Awsh [42] conducted compressive tests on individually controlled designs. Sample blocks were first dried out, weighed, and capped using a special high-strength cement mortar for uniform pressure distribution. Rigid plates were placed on the top and bottom surfaces of the blocks for uniform load distribution over the cross-sectional area. Later, the load was applied gradually at a rate of 0.3 kN per second until the specimen failed. The failure load was divided by the net normal area of the block to calculate the compressive strength of the block. Concrete masonry blocks of two types, solid and hollow, using four different mortars were constructed and tested by Tatheer Zahra in 2021 [94] for compressive tests using the prism method. Results showed that the compressive strengths of hollow blocks varied from 12.5 to 15.6 MPa, while for solid blocks, they varied from 15.4 to 21.0 MPa for different mortars used. The material behavior of the blocks and mortar were simulated using the ‘Concrete Damage Plasticity Model’ (CDP), which includes the failure mechanisms of tensile and compressive crushing. Apparently, both thermal transmittance and compressive strength are equally important for the performance of building blocks. Therefore, there is a requirement to establish a single parameter to measure the thermal and mechanical behavior of building blocks.

5. Houses and Building Blocks in the Kingdom of Bahrain

5.1. History of Houses in Bahrain

The Kingdom of Bahrain is an island country and is one of the smallest in the Middle East. Traces depict that the island was inhabited in 3000 B.C. Initially, people lived in straw, stone, and mud houses, as shown in Figure 18.
In the past 200 years, the country started to gain its architectural identity when people started to move in to houses made up of bearing walls. These house structures consisted mainly of 60 cm-wide walls, which were grounded 50 cm deep to form the foundation. The thickness in the foundation was 1 m. Irregular desert stones of different sizes were used to build the walls, joined together using a mortar mixture of sand, gypsum/limestone, and water in particular ratios. The gaps between the big stones were filled by smaller stones and gravel, followed by a layer of mortar to make the walls smooth. Approximately five layers of stone above ground level were arranged, upon which a layer of timber wooden round beams was applied around the perimeter of the house as shown in Figure 19. These beams were strengthened by diagonal connections using 1 cm diameter rope. The space between the timber beams was again filled with stones, followed by a mortar mixture.
One such traditional house, built in 1834 and located in Muharraq, the traditional city of Bahrain, is shown in Figure 20. This house was selected for renovation and rehabilitation purposes, and the images below depict its condition prior to the renovation work [97].
When modern industries came to Bahrain in the 1950s, the materials used for constructing buildings were more industrialized than traditional methods. The most common material used for construction was concrete. Bahraini houses are now built with walls made of concrete blocks, followed by a layer of cement plaster and paint, as shown in Figure 21.

5.2. History of Building Blocks in Bahrain

The leading companies that began manufacturing concrete blocks during the 1950s were Haji Hasan group, ‘Al Manaratain’, and ‘Bahrain Blocks [98,99]. To this day, they remain the largest manufacturers in Bahrain, with a variety of block types. Al Manaratain’s [98] history extends back to 1959, when it started as a manufacturer of local manual blocks. Over the last fifty years, the company has evolved to become an industry leaders in the production of concrete blocks and other products. The rising demand for blocks encouraged the group to acquire additional machinery throughout its existence, resulting in a large industrial expansion in 1985 in the form of another company named Bahrain Blocks.
In 1995, the company introduced a fully automated block with the capability to manufacture 45,000 concrete blocks per day to increase its manufacturing capability and quality standards. Bahrain Blocks presently manufactures various varieties of concrete blocks, including the insulation blocks that are included in the present study. Other companies such as Middle East Block Factory [100], Aljalahma Blocks [101], RedX company [102], Ahmed Isa Block factory [103], etc., that came into production later in the late 1990s and 2000s have a lower scale in concrete block production, mainly focused on hollow blocks.
Varieties of blocks are manufactured in the Kingdom. Some simple blocks, as shown in Figure 22, are used to build compound walls of a house or for the partition walls between two rooms of a house or for the pavement. However, there are some other blocks that are specifically manufactured to build the outer walls of a house or a building, as shown in Figure 23. These blocks are called ‘Insulation block’.

5.3. Initial Data Collection and Standard Procedures for Building Blocks in Bahrain

In order to propose an improvement in the performance of the building blocks, it is important to review the existing scenario in the Kingdom. For this, the following activities were conducted:
  • Collect information from the Ministry of Electricity and Water Authorities (EWA) of the Kingdom of Bahrain.
  • Collect information from the leading insulation block manufacturing companies in Bahrain, particularly related to the internal and external designs of blocks, cavities, materials, strength, and application parameters.
  • Collect information from the block testing laboratories in Bahrain related to the thermal and mechanical properties of the building blocks.
The collected data were reviewed for further analysis.
The government body, Electricity and Water Authority (EWA) of Bahrain, has set a certain value of thermal transmittance (U-value) for the insulation blocks. As per ministerial order 63/2012 [32], the maximum allowable U-value of the block is 0.57 W/m2 °C. After testing the samples, the test report issued by the Ministry of Works includes all the thermal and mechanical characteristics of the blocks. However, it mainly focuses on the thermal resistance (R-value) and thermal transmittance (U-value) of the block. Eventually, it is clear that the most important parameter of an insulation block is the U-value, followed by its mechanical strength.
All the companies in the Kingdom more or less manufacture blocks with identical designs, with almost similar thermal and mechanical characteristics required to fulfill the conditions laid down by the government of the Kingdom. Companies cannot merely manufacture and sell the blocks directly in the market. Instead, a standard procedure, as shown in Figure 24, is required to be followed by each company for each variety of block they manufacture.

5.4. Comparison of Widely Used Insulation Building Blocks in Bahrain

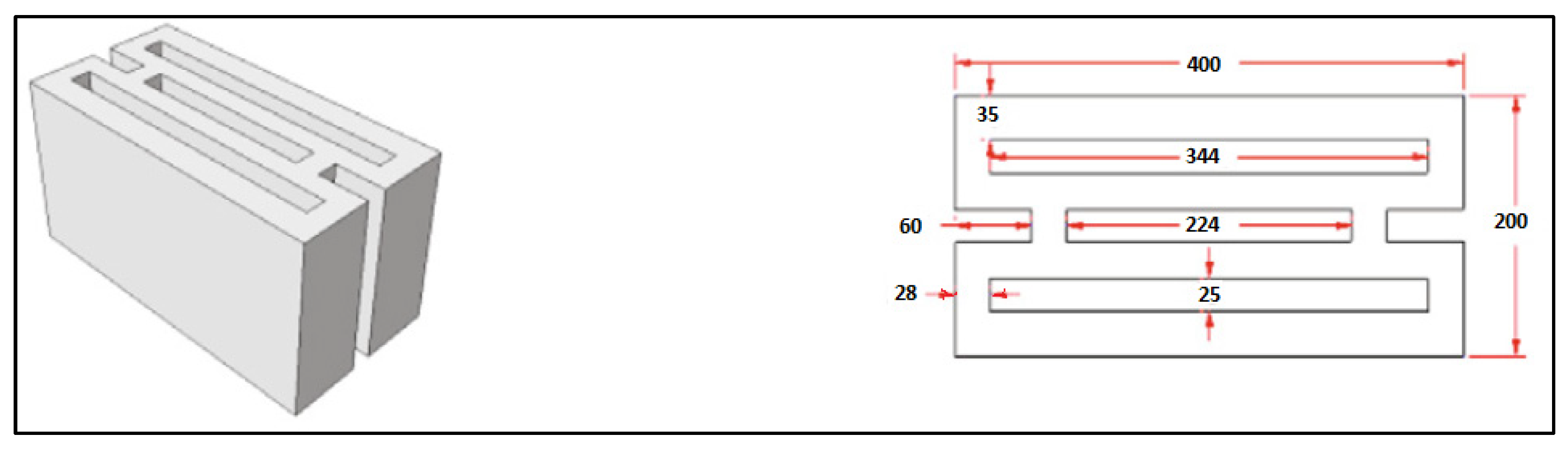
In accordance with discussions with leading manufacturing companies in Bahrain, namely Al Manaratain and Bahrain Blocks, it is clear that two types of insulation blocks are widely used for the construction of buildings in Bahrain, as shown in Figure 25, due to their desirable thermal and mechanical parameters, which are compared in Table 4.
It was also clear that after a few years, the Sandwich block had issue with the formation of cracks on the walls, while no such issues were observed in the IMSI block. Eventually, in today’s context, the IMSI block can be considered one of the preferred options for detailed investigation in the near future.

6. Conclusions

The Kingdom of Bahrain is grappling with a significant challenge of escalating energy consumption, particularly driven by air conditioning systems in both residential and commercial buildings. Recognizing the potential for substantial reductions in building energy demand through energy efficiency initiatives, the government has formulated ministerial orders and aligned with Bahrain Economic Vision 2030 [29] to foster sustainable construction practices. These efforts are in line with SDG 11 of the United Nations’ 2030 agenda [5]. This paper delves into the influential factors affecting building block performance, including aggregate materials, insulation, and cavity geometries. It also outlines the two major technical parameters to predict the performance of building blocks: thermal transmittance and compressive strength. Thermal transmittance can be evaluated using theoretical and experimental methods, while the later has two types—in-lab and In-Situ methods. The need for both these testing methods, in particular, under real environmental conditions as per ISO [82,85] and ASTM [37,83,92], is well-emphasized in this paper. The study also presents the standard procedure to measure the compressive strength of the building blocks under ASTM Standards.
Despite limited research on improving the thermal and mechanical performance of Bahrain’s building blocks, there is a pressing need for investigation. The paper provides insights into the historical evolution of building materials in Bahrain and highlights the shift towards more efficient blocks with insulation. It was observed that the type of materials used for building walls has evolved to adapt to changes in environmental conditions. Due to modernization, mud, straw, and clay in walls of the houses were replaced with hollow blocks; however, it was found that these houses were not comfortable. So, to find thermal comfort in present times, people are looking for more efficient building blocks with insulation inserted in their cavities. Eventually, the varieties of blocks currently manufactured in Bahrain were discussed in this paper, among which the IMSI block is the most popular one. This paper also depicts the standard procedure followed by block manufacturing companies in the country to obtain approval from the government to sell their products in the market. However, the test reports presented by manufacturers to the government include testing done under controlled environments (in-lab) and for a limited number of blocks, which varies from one to three blocks. Nevertheless, the results of a wall may vary in real environmental conditions, particularly when there exists a wall consisting of a multi-block system with plaster. Hence, the paper concludes by proposing various paths for future research, between individual and multi-block systems using both in-lab and In-Situ methods. A few of these future scopes are listed below:
  • Propose improved aggregate materials.
  • Propose improved insulation materials.
  • Propose improved cavity designs.
  • Evaluate the difference in performance for an individual block system compared to a multi-block system in controlled environmental (in-lab) conditions.
  • Evaluate the difference in performance for an individual block system compared to a multi-block system in real environmental (In-Situ) conditions.
  • Evaluate the difference in performance of both systems for the two methods: in-lab and In-situ methods.
  • Propose a single non-dimensional factor to simultaneously measure the thermal and mechanical performance of both individual and multi-block systems.
It is understood that on a global level, a lot of research is consistently ongoing in the field of energy conservation for buildings and their materials. However, a considerable amount of work needs to be done in Bahrain. Overall, this review aims to lay the groundwork for technical analyses and testing procedures to optimize Bahrain’s building block performance in energy conservation.

Author Contributions

Conceptualization, P.A.M.; methodology, P.A.M.; data curation, P.A.M.; validation, A.M.M.; writing-original draft preparation, P.A.M.; writing-review and editing, A.M.M.; visualization, Y.A.A.; supervision, Y.A.A. All authors have read and agreed to the published version of the manuscript.

Funding

This research received no external funding.

Data Availability Statement

Not applicable.

Conflicts of Interest

The authors declare no conflict of interest.

References

  1. Cao, X.; Dai, X.; Liu, J. Building energy-consumption status worldwide and the state-of-the-art technologies for zero-energy buildings during the past decade. Energy Build. 2016, 128, 198–213. [Google Scholar] [CrossRef]
  2. Sansaniwal, S.K.; Mathur, J.; Mathur, S. Review of practices for human thermal comfort in buildings: Present and future perspectives. Int. J. Ambient. Energy 2022, 43, 2097–2123. [Google Scholar] [CrossRef]
  3. Andargie, M.S.; Touchie, M.; O’Brien, W. A review of factors affecting occupant comfort in multi-unit residential buildings. J. Affect. Disord. 2019, 160, 106182. [Google Scholar] [CrossRef]
  4. Cascone, S.; Leuzzo, A. Thermal Comfort in the Built Environment: A Digital Workflow for the Comparison of Different Green Infrastructure Strategies. Atmosphere 2023, 14, 685. [Google Scholar] [CrossRef]
  5. Sustainable Energy for All, Building Efficiency Accelerator. 2015. Available online: https://www.seforall.org/partners/building-efficiency-accelerator (accessed on 15 March 2024).
  6. Rashid, F.L.; Al-Obaidi, M.A.; Dulaimi, A.; Mahmood, D.M.N.; Sopian, K. A Review of Recent Improvements, Developments, and Effects of Using Phase-Change Materials in Buildings to Store Thermal Energy. Designs 2023, 7, 90. [Google Scholar] [CrossRef]
  7. Wani, A.A.; Shahadat, M.; Ali, S.W.; Ahammad, S.Z.; Uddin, M.K. Recent advances and future perspectives of polymer-based magnetic nanomaterials for detection and removal of radionuclides: A review. J. Mol. Liq. 2022, 365, 119976. [Google Scholar] [CrossRef]
  8. Christopher, S.; Vikram, M.; Bakli, C.; Thakur, A.K.; Ma, Y.; Ma, Z.; Xu, H.; Cuce, P.M.; Cuce, E.; Singh, P. Renewable energy potential towards attainment of net-zero energy buildings status—A critical review. J. Clean. Prod. 2023, 405, 136942. [Google Scholar] [CrossRef]
  9. Maghrabie, H.M.; Abdelkareem, M.A.; Al-Alami, A.H.; Ramadan, M.; Mushtaha, E.; Wilberforce, T.; Olabi, A.G. State-of-the-Art Technologies for Building-Integrated Photovoltaic Systems. Buildings 2021, 11, 383. [Google Scholar] [CrossRef]
  10. Bilal, M.; Afzal, M.; Irfan, M.; Musarat, M.A. Energy Efficient Buildings in the Industry 4.0 Era: A Review. Preprints 2023, 2023100301. [Google Scholar] [CrossRef]
  11. Olu-Ajayi, R.; Alaka, H.; Sulaimon, I.; Sunmola, F.; Ajayi, S. Building energy consumption prediction for residential buildings using deep learning and other machine learning techniques. J. Build. Eng. 2022, 45, 103406. [Google Scholar] [CrossRef]
  12. Shafique, M.; Luo, X.; Zuo, J. Photovoltaic-green roofs: A review of benefits, limitations, and trends. Sol. Energy 2020, 202, 485–497. [Google Scholar] [CrossRef]
  13. Metallidou, C.K.; Psannis, K.E.; Egyptiadou, E.A. Energy Efficiency in Smart Buildings: IoT Approaches. IEEE Access 2020, 8, 63679–63699. [Google Scholar] [CrossRef]
  14. Said, Z.; Iqbal, M.; Mehmood, A.; Le, T.T.; Ali, H.M.; Cao, D.N.; Nguyen, P.Q.P.; Pham, N.D.K. Nanofluids-based solar collectors as sustainable energy technology towards net-zero goal: Recent advances, environmental impact, challenges, and perspectives. Chem. Eng. Process.-Process. Intensif. 2023, 191, 109477. [Google Scholar] [CrossRef]
  15. Na Talang, R.P.; Sirivithayapakorn, S. Comparing environmental burdens, economic costs and thermal resistance of different materials for exterior building walls. J. Clean. Prod. 2018, 197, 1508–1520. [Google Scholar] [CrossRef]
  16. Ruiz, G.; Zhang, X.; Edris, W.F.; Cañas, I.; Garijo, L. A comprehensive study of mechanical properties of compressed earth blocks. Constr. Build. Mater. 2018, 176, 566–572. [Google Scholar] [CrossRef]
  17. Vrachopoulos, M.G.; Koukou, M.K.; Kotsiovelos, G.; Kravvaritis, E.; Ioannidou, P. Experimental evaluation of the performance of reflective insulation for improvement of indoor thermal environmental conditions. WSEAS Trans. Environ. Dev. 2006, 2, 173–177. [Google Scholar]
  18. Shi, T.; Zhang, X.; Hao, H.; Chen, C. Experimental and numerical investigation on the compressive properties of interlocking blocks. Eng. Struct. 2021, 228, 111561. [Google Scholar] [CrossRef]
  19. World Bank. Kingdom of Bahrain Energy Efficiency Program (KEEP); World Bank: Washington, DC, USA, 2016. [Google Scholar]
  20. World Data Atlas, Bahrain Energy. 2019. Available online: https://knoema.com/atlas/Bahrain/Primary-energy-consumption#:~:text=In%202019%2C%20primary%20energy%20consumption,average%20annual%20rate%20of%203.14%25 (accessed on 15 March 2024).
  21. Alnaser, N. Building integrated renewable energy to achieve zero emission in Bahrain. Energy Build. 2015, 93, 32–39. [Google Scholar] [CrossRef]
  22. MEW (Ministry of Electricity and Water). Annual Report 2021 Bahrain; EWAStatistics2021.pdf; MEW (Ministry of Electricity and Water): Manama, Bahrain, 2021.
  23. Krarti, M.; Dubey, K. Benefits of energy efficiency programs for residential buildings in Bahrain. J. Build. Eng. 2018, 18, 40–50. [Google Scholar] [CrossRef]
  24. Bahrain Weather. (n.d.). Climate. Available online: https://www.bing.com/ck/a?!&&p=5ef09116abced6edJmltdHM9MTcxMDk3OTIwMCZpZ3VpZD0xYTJhZjA4NS0wYTM2LTY5OWMtMjllMC1lMTVlMGIzZjY4NmUmaW5zaWQ9NTE5NQ&ptn=3&ver=2&hsh=3&fclid=1a2af085-0a36-699c-29e0-e15e0b3f686e&psq=Climate.+Available+online%3a+https%3a%2f%2fweather-and-climate.com%2faverage-monthly-min-max-Temperature%2cBahrain%2cBahrain&u=a1aHR0cHM6Ly93d3cuYmFocmFpbndlYXRoZXIuZ292LmJoL2NsaW1hdGU&ntb=1 (accessed on 15 March 2024).
  25. Ma-Investment. Thermal Insulation in Buildings; Ma-Investment: Houston, TX, USA, 2016. [Google Scholar]
  26. Bayram, I.S.; Al-Qahtani, M.; Saffouri, F.; Koc, M. Estimating the Cost of Summer Cooling in Bahrain. In Proceedings of the 2017 9th IEEE-GCC Conference and Exhibition (GCCCE), Manama, Bahrain, 8–11 May 2017; pp. 1–9. [Google Scholar]
  27. Radhi, H.; Sharples, S.; Taleb, H.; Fahmy, M. Will cool roofs improve the thermal performance of our built environment? A study assessing roof systems in Bahrain. Energy Build. 2017, 135, 324–337. [Google Scholar] [CrossRef]
  28. Modi, P.; Bushehri, R.; Georgantopoulou, C.; Mavromatidis, L. Design and development of a mini scale hot box for thermal efficiency evaluation of an insulation building block prototype used in Bahrain. Adv. Build. Energy Res. 2017, 11, 130–151. [Google Scholar] [CrossRef]
  29. Bahrain Economic Vision 2030. Available online: https://www.bing.com/ck/a?!&&p=5b16bfc9398feee6JmltdHM9MTcxMDk3OTIwMCZpZ3VpZD0xYTJhZjA4NS0wYTM2LTY5OWMtMjllMC1lMTVlMGIzZjY4NmUmaW5zaWQ9NTIxNQ&ptn=3&ver=2&hsh=3&fclid=1a2af085-0a36-699c-29e0-e15e0b3f686e&psq=Bahrain+Economic+Vision+2030&u=a1aHR0cDovL2JhaHJhaW4uYmgvYmFocmFpbjIwMzA&ntb=1 (accessed on 15 March 2024).
  30. Ministerial Order 70/2015, Energy Efficiency Labelling of AC Units. Electricity Conservation Tips. Available online: https://www.ewa.bh/en/Conservation/Electricity/electricity-conservation-tips (accessed on 15 March 2024).
  31. Ministerial Order 08/1999. Available online: https://www.ewa.bh/en/Conservation/Electricity/Documents/GuidelinesThermalInsulationImp.pdf (accessed on 15 March 2024).
  32. Ministerial Order 63/2012. Available online: https://www.bing.com/ck/a?!&&p=caf68c760227bd38JmltdHM9MTcxMDk3OTIwMCZpZ3VpZD0xYTJhZjA4NS0wYTM2LTY5OWMtMjllMC1lMTVlMGIzZjY4NmUmaW5zaWQ9NTE5Ng&ptn=3&ver=2&hsh=3&fclid=1a2af085-0a36-699c-29e0-e15e0b3f686e&psq=%3a+https%3a%2f%2fwww.ewa.bh%2fen%2fConservation%2fElectricity%2fbuilding-regulations&u=a1aHR0cHM6Ly93d3cuZXdhLmJoL2VuL0NvbnNlcnZhdGlvbi9FbGVjdHJpY2l0eS9idWlsZGluZy1yZWd1bGF0aW9ucw&ntb=1 (accessed on 15 March 2024).
  33. United Nations, Sustainable Goals 2030 Agenda. Available online: https://sdgs.un.org/topics/sustainable-cities-and-human-settlements (accessed on 15 March 2024).
  34. Hongxia, Z.; Kang, P.; Baoquan, C.; Xuanyi, L. Numerical Simulation of Thermal Theory of Sintered Coal Gangue Self-Insulation Block and Wall. MATEC Web Conf. 2018, 175, 01021. [Google Scholar] [CrossRef]
  35. Shehata, N.; Sayed, E.T.; Abdelkareem, M.A. Recent progress in environmentally friendly geopolymers: A review. Sci. Total. Environ. 2021, 762, 143166. [Google Scholar] [CrossRef]
  36. Ashraf, N.; Nasir, M.; Al-Kutti, W.; Al-Maziad, F.A. Assessment of thermal and energy performance of masonry blocks pre-pared with date palm ash. Mater. Renew. Sustain. Energy 2020, 9, 17. [Google Scholar] [CrossRef]
  37. ASTM C90; Standard Specification for Load Bearing Concrete Masonry Units. Available online: https://www.uop.edu.jo/PDF%20File/uop%20%5BArchitecture_Ebook%5D_Masonry_Design_and_Detailing_For_Architects_and_Contractors-20615_Part279.pdf (accessed on 15 March 2024).
  38. Li, X.; Zhang, Q.; Mao, S. Investigation of the bond strength and microstructure of the interfacial transition zone between cement paste and aggregate modified by Bayer red mud. J. Hazard. Mater. 2021, 403, 123482. [Google Scholar] [CrossRef]
  39. Guo, Z.; Tu, A.; Chen, C.; Lehman, D.E. Mechanical properties, durability, and life-cycle assessment of concrete building blocks incorporating recycled concrete aggregates. J. Clean. Prod. 2018, 199, 136–149. [Google Scholar] [CrossRef]
  40. Guo, Z.; Kong, X.; Zhang, J.; Sun, Y.; Tu, A.; Jiang, T. Life-cycle assessment of concrete building blocks incorporating recycled concrete aggregates—A case study in China. In Woodhead Publishing Series in Civil and Structural Engineering, Advances in Construction and Demolition Waste Recycling; Woodhead Publishing: Sawston, UK, 2020; pp. 515–535. ISBN 9780128190555. [Google Scholar] [CrossRef]
  41. Pavlu, T.; Fortova, K.; Divis, J.; Hajek, P. The Utilization of Recycled Masonry Aggregate and Recycled EPS for Concrete Blocks for Mortarless Masonry. Materials 2019, 12, 1923. [Google Scholar] [CrossRef] [PubMed]
  42. Al-Awsh, W.A.; Qasem, N.A.; Al-Amoudi, O.S.B.; Al-Osta, M.A. Experimental and numerical investigation on innovative masonry walls for industrial and residential buildings. Appl. Energy 2020, 276, 115496. [Google Scholar] [CrossRef]
  43. Al-Tamimi, A.S.; Al-Amoudi, O.S.B.; Al-Osta, M.A.; Ali, M.R.; Ahmad, A. Effect of insulation materials and cavity layout on heat transfer of concrete masonry hollow blocks. Constr. Build. Mater. 2020, 254, 119300. [Google Scholar] [CrossRef]
  44. Schiavoni, S.; D’Alessandro, F.; Bianchi, F.; Asdrubali, F. Insulation materials for the building sector: A review and comparative analysis. Renew. Sustain. Energy Rev. 2016, 62, 988–1011. [Google Scholar] [CrossRef]
  45. Awoyera, P.O.; Akinrinade, A.D.; Galdino, A.G.D.S.; Althoey, F.; Kirgiz, M.S.; Tayeh, B.A. Thermal insulation and mechanical characteristics of cement mortar reinforced with mineral wool and rice straw fibers. J. Build. Eng. 2022, 53, 104568. [Google Scholar] [CrossRef]
  46. Bozsaky, D. Nature-Based Thermal Insulation Materials from Renewable Resources—A State-Of-The-Art Review. Slovak J. Civ. Eng. 2019, 27, 52–59. [Google Scholar] [CrossRef]
  47. Gullbrekken, L.; Grynning, S.; Gaarder, J.E. Thermal Performance of Insulated Constructions—Experimental Studies. Buildings 2019, 9, 49. [Google Scholar] [CrossRef]
  48. Mahdaoui, M.; Hamdaoui, S.; Msaad, A.A.; Kousksou, T.; El Rhafiki, T.; Jamil, A.; Ahachad, M. Building bricks with phase change material (PCM): Thermal performances. Constr. Build. Mater. 2020, 269, 121315. [Google Scholar] [CrossRef]
  49. Hasan, A.; Al-Sallal, K.A.; Alnoman, H.; Rashid, Y.; Abdelbaqi, S. Effect of Phase Change Materials (PCMs) Integrated into a Concrete Block on Heat Gain Prevention in a Hot Climate. Sustainability 2016, 8, 1009. [Google Scholar] [CrossRef]
  50. Kishore, R.A.; Bianchi, M.V.; Booten, C.; Vidal, J.; Jackson, R. Optimizing PCM-integrated walls for potential energy savings in U.S. Buildings. Energy Build. 2020, 226, 110355. [Google Scholar] [CrossRef]
  51. Patel, B.; Rathore, P.K.S.; Gupta, N.K.; Sikarwar, B.S.; Sharma, R.; Kumar, R.; Pandey, A. Location optimization of phase change material for thermal energy storage in concrete block for development of energy efficient buildings. Renew. Energy 2023, 218, 119306. [Google Scholar] [CrossRef]
  52. Wang, H.; Chiang, P.-C.; Cai, Y.; Li, C.; Wang, X.; Chen, T.-L.; Wei, S.; Huang, Q. Application of Wall and Insulation Materials on Green Building: A Review. Sustainability 2018, 10, 3331. [Google Scholar] [CrossRef]
  53. Souza, A.B.; Ferreira, H.S.; Vilela, A.P.; Viana, Q.S.; Mendes, J.F.; Mendes, R.F. Study on the feasibility of using agricultural waste in the production of concrete blocks. J. Build. Eng. 2021, 42, 102491. [Google Scholar] [CrossRef]
  54. Iwaro, J.; Mwasha, A. Effects of Using Coconut Fiber–Insulated Masonry Walls to Achieve Energy Efficiency and Thermal Comfort in Residential Dwellings. J. Arch. Eng. 2019, 25, 04019001. [Google Scholar] [CrossRef]
  55. Homod, R.Z.; Almusaed, A.; Almssad, A.; Jaafar, M.K.; Goodarzi, M.; Sahari, K.S. Effect of different building envelope materials on thermal comfort and air-conditioning energy savings: A case study in Basra city, Iraq. J. Energy Storage 2020, 34, 101975. [Google Scholar] [CrossRef]
  56. Iffa, E.; Tariku, F.; Simpson, W.Y. Highly Insulated Wall Systems with Exterior Insulation of Polyisocyanurate under Different Facer Materials: Material Characterization and Long-Term Hygrothermal Performance Assessment. Materials 2020, 13, 3373. [Google Scholar] [CrossRef]
  57. Dong, Y.; Kong, J.; Mousavi, S.; Rismanchi, B.; Yap, P.-S. Wall Insulation Materials in Different Climate Zones: A Review on Challenges and Opportunities of Available Alternatives. Thermo 2023, 3, 38–65. [Google Scholar] [CrossRef]
  58. Rehman, H.U. Experimental performance evaluation of solid concrete and dry insulation materials for passive buildings in hot and humid climatic conditions. Appl. Energy 2017, 185, 1585–1594. [Google Scholar] [CrossRef]
  59. Yang, J.; Wu, H.; Xu, X.; Huang, G.; Xu, T.; Guo, S.; Liang, Y. Numerical and experimental study on the thermal performance of aerogel insulating panels for building energy efficiency. Renew. Energy 2019, 138, 445–457. [Google Scholar] [CrossRef]
  60. Golder, S.; Narayanan, R.; Hossain, R.; Islam, M.R. Experimental and CFD Investigation on the Application for Aerogel Insulation in Buildings. Energies 2021, 14, 3310. [Google Scholar] [CrossRef]
  61. Thenappa, S.; Nguyen, P.T.; Do, N.H.; Le, D.K.; Thai, Q.B.; Le, P.K.; Phan-Thien, N.; Duong, H.M. Correction to: Advanced fabrication and multi-properties of aluminium hydroxide aerogels from aluminium wastes. J. Mater. Cycles Waste Manag. 2021, 23, 1276. [Google Scholar]
  62. ALBA-2021. Available online: https://www.albasmelter.com/en/article/alba-discloses-its-financial-results-for-the-fourth-quarter-and-full-year-of-2021 (accessed on 15 March 2024).
  63. Abu-Jdayil, B.; Mourad, A.-H.; Hittini, W.; Hassan, M.; Hameedi, S. Traditional, state-of-the-art and renewable thermal building insulation materials: An overview. Constr. Build. Mater. 2019, 214, 709–735. [Google Scholar] [CrossRef]
  64. Reboul, N.; Larbi, A.S.; Ferrier, E. Two-way bending behaviour of hollow concrete block masonry walls reinforced by composite materials. Compos. Part B Eng. 2018, 137, 163–177. [Google Scholar] [CrossRef]
  65. Asdrubali, F.; D’Alessandro, F.; Schiavoni, S. A review of unconventional sustainable building insulation materials. Sustain. Mater. Technol. 2015, 4, 1–17. [Google Scholar] [CrossRef]
  66. Martinez-Amariz, A.; Muñoz, L.P.; Posso, F.; Bellon, D. Compressive evaluation of mansory bricks produced with industrial byproduct aggregates. Int. J. Appl. Ceram. Technol. 2020, 17, 2681–2689. [Google Scholar] [CrossRef]
  67. Antar, M.A. Thermal radiation role in conjugate heat transfer across a multiple-cavity building block. Energy 2010, 35, 3508–3516. [Google Scholar] [CrossRef]
  68. Huelsz, G.; Barrios, G.; Rojas, J. Evaluation of heat transfer models for hollow blocks in whole-building energy simulations. Energy Build. 2019, 202, 109338. [Google Scholar] [CrossRef]
  69. Morales, M.; Juárez, M.; Muñoz, P.; Gómez, J. Study of the geometry of a voided clay brick using non-rectangular perforations to optimise its thermal properties. Energy Build. 2011, 43, 2494–2498. [Google Scholar] [CrossRef]
  70. Zhang, Y.; Wang, Q. Influence of Hollow Block’s Structural Configuration on the Thermal Characteristics of Hollow Block Wall. Procedia Eng. 2017, 205, 2341–2348. [Google Scholar] [CrossRef]
  71. Ismaiel, M.; Chen, Y.; Cruz-Noguez, C.; Hagel, M. Thermal resistance of masonry walls: A literature review on influence factors, evaluation, and improvement. J. Build. Phys. 2022, 45, 528–567. [Google Scholar] [CrossRef]
  72. Ghailane, H.; Ahamat, M.A.; Padzi, M.M.; Beddu, S. Steady-state heat flow through hollow clay bricks. IOP Conf. Series Mater. Sci. Eng. 2020, 834, 012021. [Google Scholar] [CrossRef]
  73. Fogiatto, M.A.; Santos, G.H.d.; Catelan, J.V.R. Numerical Two-Dimensional Steady-State Evaluation of the Thermal Transmittance Reduction in Hollow Blocks. Energies 2019, 12, 449. [Google Scholar] [CrossRef]
  74. Erdem, C.U.; Cuce, P.M.; Besir, A.B. Improving thermal resistance of lightweight concrete hollow bricks: A numerical optimi-sation research for a typical masonry unit. J. Energy Syst. 2020, 4, 121–144. [Google Scholar]
  75. Almujahid, A.; Kaneesamkandi, Z. Construction of a test room for evaluating thermal performance of building wall systems under real conditions. Measurement 2013, 2. [Google Scholar]
  76. Hatia, M.; Kriker, A.; Belatrache, D. Experimental Study of the Thermo-Mechanical Properties of Building Blocks Used in Hot Desert Arid Climate. EAI Endorsed Trans. Energy Web 2020, 8. [Google Scholar] [CrossRef]
  77. Vivancos, J.-L.; Soto, J.; Perez, I.; Ros-Lis, J.V.; Martínez-Máñez, R. A new model based on experimental results for the thermal characterization of bricks. Build. Environ. 2009, 44, 1047–1052. [Google Scholar] [CrossRef]
  78. Mavromatidis, L.E.; Michel, P.; El Mankibi, M.; Santamouris, M. Study on transient heat transfer through multilayer thermal insulation: Numerical analysis and experimental investigation. Build. Simul. 2010, 3, 279–294. [Google Scholar] [CrossRef]
  79. Bruno, R.; Ferraro, V.; Bevilacqua, P.; Arcuri, N. On the assessment of the heat transfer coefficients on building components: A comparison between modeled and experimental data. Build. Environ. 2022, 216, 108995. [Google Scholar] [CrossRef]
  80. Yang, Y.; Chen, Z.; Wu, T.V.; Sempey, A.; Batsale, J.-C. In situ methodology for thermal performance evaluation of building wall: A review. Int. J. Therm. Sci. 2022, 181, 107687. [Google Scholar] [CrossRef]
  81. Rasooli, A.; Itard, L. In-situ characterization of walls’ thermal resistance: An extension to the ISO 9869 standard method. Energy Build. 2018, 179, 374–383. [Google Scholar] [CrossRef]
  82. ISO 9869-1; Thermal Insulation, Building Elements, In-Situ Measurement of Thermal Resistance and Thermal Transmittance-Part 1: Heat Flow Meter Method. BSI: London, UK, 2014. Available online: https://www.bing.com/ck/a?!&&p=dd21a8746fb356c7JmltdHM9MTcxMDk3OTIwMCZpZ3VpZD0xYTJhZjA4NS0wYTM2LTY5OWMtMjllMC1lMTVlMGIzZjY4NmUmaW5zaWQ9NTE5Nw&ptn=3&ver=2&hsh=3&fclid=1a2af085-0a36-699c-29e0-e15e0b3f686e&psq=ISO+9869-1%3b&u=a1aHR0cHM6Ly93d3cuaXNvLm9yZy9zdGFuZGFyZC81OTY5Ny5odG1s&ntb=1 (accessed on 15 March 2024).
  83. ASTM 1046 and 1155. Available online: www.astm.org (accessed on 15 March 2024).
  84. Atsonios, I.A.; Mandilaras, I.D.; Kontogeorgos, D.A.; Founti, M.A. A comparative assessment of the standardized methods for the in–situ measurement of the thermal resistance of building walls. Energy Build. 2017, 154, 198–206. [Google Scholar] [CrossRef]
  85. ISO 8990; Thermal Insulation-Determination of Steady-State Thermal Transmission Properties-Calibrated and Guarded Hot Box. 2019. Available online: https://www.iso.org/standard/16519.html (accessed on 15 March 2024).
  86. Fortes, E.S.; Parsekian, G.A.; Camacho, J.S.; Fonseca, F.S. Compressive strength of masonry constructed with high strength concrete blocks. Rev. Ibracon Estruturas Mater. 2017, 10, 1273–1319. [Google Scholar] [CrossRef]
  87. Aubert, J.E.; Maillard, P.; Morel, J.-C.; Al Rafii, M. Towards a simple compressive strength test for earth bricks? Mater. Struct. 2016, 49, 1641–1654. [Google Scholar] [CrossRef]
  88. Álvarez-Pérez, J.; Mesa-Lavista, M.; Chávez-Gómez, J.H.; Miguel, G.F.-S. Experimental investigation on tensile strength of hollow concrete blocks. Mater. Struct. 2021, 54, 164. [Google Scholar] [CrossRef]
  89. Haach Vladimir, G. Development of a New Test for Determination of Tensile Strength of Concrete Blocks. 2013. Available online: https://hdl.handle.net/1822/26309 (accessed on 15 March 2024).
  90. Bae, B.-I.; Choi, H.-K.; Choi, C.-S. Flexural Strength Evaluation of Reinforced Concrete Members with Ultra High Performance Concrete. Adv. Mater. Sci. Eng. 2016, 2016, 2815247. [Google Scholar] [CrossRef]
  91. Chen, W.F. The Civil Engineering Handbook. 2002. Available online: https://books.google.com.bh/books?id=9Q3OBQAAQBAJ&printsec=frontcover&dq=civil+engineering+material+handbook&hl=en&sa=X&ved=2ahUKEwi1qrbw-dz6AhXC_rsIHW8pC4EQuwV6BAgKEAY#v=onepage&q=civil%20engineering%20material%20handbook&f=false (accessed on 15 March 2024).
  92. ASTM C140-99b. 2003. Available online: https://standards.globalspec.com/std/3806313/astm-c140-99b (accessed on 15 March 2024).
  93. Sitton, J.D.; Zeinali, Y.; Heidarian, W.H.; Story, B.A. Effect of mix design on compressed earth block strength. Constr. Build. Mater. 2018, 158, 124–131. [Google Scholar] [CrossRef]
  94. Zahra, T.; Thamboo, J.; Asad, M. Compressive strength and deformation characteristics of concrete block masonry made with different mortars, blocks and mortar beddings types. J. Build. Eng. 2021, 38, 102213. [Google Scholar] [CrossRef]
  95. Holmes, N.; O’Malley, H.; Cribbin, P.; Mullen, H.; Keane, G. Performance of masonry blocks containing different proportions of incinator bottom ash. Sustain. Mater. Technol. 2016, 8, 14–19. [Google Scholar] [CrossRef]
  96. The Constructor, Building Ideas, Compressive Strength of Concrete-Cube Test [PDF], Procedure, Results. Available online: https://theconstructor.org/concrete/compressive-strength-concrete-cube-test/1561/ (accessed on 15 March 2024).
  97. Sirriyeh, M.M. The House of Bahrain Press Heritage; Sustainable Development and Planning II; WIT Press: Southampton, UK, 2005; Volume 2. [Google Scholar]
  98. Al-Manratain Company. Bahrain Building Material Supplier Since 1959—Al Manaratain; Al-Manratain Company: Jidhaf, Bahrain, 1959. [Google Scholar]
  99. Bahrain Blocks, Company, Home|Bahrain Blocks. Available online: https://www.bing.com/ck/a?!&&p=f42ef0deeeed66acJmltdHM9MTcxMDk3OTIwMCZpZ3VpZD0xYTJhZjA4NS0wYTM2LTY5OWMtMjllMC1lMTVlMGIzZjY4NmUmaW5zaWQ9NTIwNA&ptn=3&ver=2&hsh=3&fclid=1a2af085-0a36-699c-29e0-e15e0b3f686e&psq=bahrain+blocks+company+bahrain+official+website&u=a1aHR0cHM6Ly9iYWhyYWluYmxvY2tzLmNvbS8&ntb=1 (accessed on 15 March 2024).
  100. Middle East Block Company, Al-Ali Group. AMA GROUP|Building Materials. Available online: https://al-aali.com/ (accessed on 15 March 2024).
  101. Aljalahma Blocks. Ahmed Rashid Aljalahma & Brothers Co. Available online: https://aljalahmacompany.com (accessed on 15 March 2024).
  102. RedX Company. RedX Industries. Available online: https://www.bing.com/ck/a?!&&p=3b1b3014f4975d98JmltdHM9MTcxMDk3OTIwMCZpZ3VpZD0xYTJhZjA4NS0wYTM2LTY5OWMtMjllMC1lMTVlMGIzZjY4NmUmaW5zaWQ9NTIxMA&ptn=3&ver=2&hsh=3&fclid=1a2af085-0a36-699c-29e0-e15e0b3f686e&psq=redex+industries+bahrain+official+website&u=a1aHR0cHM6Ly93d3cucmVkeGluZHVzdHJpZXMuY29tLw&ntb=1 (accessed on 15 March 2024).
  103. Ahmed Isa Block Factor; Ahmed Isa Block Factory S.P.C—Manufacturing and Supplying Concrete Masonry Block. Ahmed Isa Block Factory|Buildeey. Available online: https://buildeey.com/profile/ahmed-isa-block-factory (accessed on 15 March 2024).
Figure 1. Increase in per capita electrical energy consumption in Bahrain: 2017–2021.
Figure 1. Increase in per capita electrical energy consumption in Bahrain: 2017–2021.
Buildings 14 00861 g001
Figure 2. Increase in energy consumption in different sectors with respect to per capita electrical energy consumption in Bahrain: 2017–2021.
Figure 2. Increase in energy consumption in different sectors with respect to per capita electrical energy consumption in Bahrain: 2017–2021.
Buildings 14 00861 g002
Figure 3. Bahrain’s power stations and their capacities in MW.
Figure 3. Bahrain’s power stations and their capacities in MW.
Buildings 14 00861 g003
Figure 4. Comparison of maximum and minimum loads with the installed electrical energy generating capacity in Bahrain.
Figure 4. Comparison of maximum and minimum loads with the installed electrical energy generating capacity in Bahrain.
Buildings 14 00861 g004
Figure 5. Average minimum and maximum temperatures in Bahrain [24].
Figure 5. Average minimum and maximum temperatures in Bahrain [24].
Buildings 14 00861 g005
Figure 6. Market distribution of nature-based thermal insulation materials.
Figure 6. Market distribution of nature-based thermal insulation materials.
Buildings 14 00861 g006
Figure 7. Variable location of PCM in the wall and its effect on cumulative heat gain [50].
Figure 7. Variable location of PCM in the wall and its effect on cumulative heat gain [50].
Buildings 14 00861 g007
Figure 8. Sections of block with rectangular cavities (a) and rhomboidal cavities (b) [69].
Figure 8. Sections of block with rectangular cavities (a) and rhomboidal cavities (b) [69].
Buildings 14 00861 g008
Figure 9. Rectangular cavities and comparison of the effects of hole thickness and hole rows on the thermal resistance of the block while keeping the block width constant [70].
Figure 9. Rectangular cavities and comparison of the effects of hole thickness and hole rows on the thermal resistance of the block while keeping the block width constant [70].
Buildings 14 00861 g009
Figure 10. Cylindrical cavities and effects of % volume of voids on thermal conductivity [72].
Figure 10. Cylindrical cavities and effects of % volume of voids on thermal conductivity [72].
Buildings 14 00861 g010
Figure 11. Comparison of heat transfer through models of hollow blocks with rectangular cavities without baffles and with baffles [73].
Figure 11. Comparison of heat transfer through models of hollow blocks with rectangular cavities without baffles and with baffles [73].
Buildings 14 00861 g011
Figure 12. Proposed model of hollow block with optimal geometry [43].
Figure 12. Proposed model of hollow block with optimal geometry [43].
Buildings 14 00861 g012
Figure 13. Wall construction and testing with varieties of block materials [76].
Figure 13. Wall construction and testing with varieties of block materials [76].
Buildings 14 00861 g013
Figure 14. Block and sample of hot guarded plate (insulated by polysterene) [42].
Figure 14. Block and sample of hot guarded plate (insulated by polysterene) [42].
Buildings 14 00861 g014
Figure 15. Guarded hot plate instrument [42].
Figure 15. Guarded hot plate instrument [42].
Buildings 14 00861 g015
Figure 16. General configuration of ISO 9869 standard measurement with one extra heat flux sensor [81].
Figure 16. General configuration of ISO 9869 standard measurement with one extra heat flux sensor [81].
Buildings 14 00861 g016
Figure 17. Testing physical quantities of sample blocks.
Figure 17. Testing physical quantities of sample blocks.
Buildings 14 00861 g017
Figure 18. Early Bahraini houses made of straw, stone, and mud.
Figure 18. Early Bahraini houses made of straw, stone, and mud.
Buildings 14 00861 g018
Figure 19. Bahraini house around 200 years ago.
Figure 19. Bahraini house around 200 years ago.
Buildings 14 00861 g019
Figure 20. Bahraini house in the year 1834: front view, roof, external wall, and internal wall [97].
Figure 20. Bahraini house in the year 1834: front view, roof, external wall, and internal wall [97].
Buildings 14 00861 g020
Figure 21. Modern-day Bahraini houses.
Figure 21. Modern-day Bahraini houses.
Buildings 14 00861 g021
Figure 22. Simple building blocks of Bahrain.
Figure 22. Simple building blocks of Bahrain.
Buildings 14 00861 g022
Figure 23. Insulation building blocks of Bahrain.
Figure 23. Insulation building blocks of Bahrain.
Buildings 14 00861 g023
Figure 24. Flowchart representing the steps followed by the company for legal certification of insulation blocks.
Figure 24. Flowchart representing the steps followed by the company for legal certification of insulation blocks.
Buildings 14 00861 g024
Figure 25. Sandwich block and IMSI block.
Figure 25. Sandwich block and IMSI block.
Buildings 14 00861 g025
Table 1. Thermal conductivity of Aluminum Hydroxide Aerogels with different contents of Al and PVA [61].
Table 1. Thermal conductivity of Aluminum Hydroxide Aerogels with different contents of Al and PVA [61].
Sample NameAluminum (Al) Content
wt. (%)
PVA Content
wt. (%)
Thermal Conductivity Kavg (W/m K)
AA10.252.00.029 ± 0.003
AA20.502.00.031 ± 0.001
AA30.752.00.032 ± 0.001
AA40.501.00.028 ± 0.002
AA50.501.50.030 ± 0.001
Table 2. Summary of the effect of variations in geometrical parameters of cavities on the thermal performance of blocks from the literature [43,67,68,69,70,71,72,73,74].
Table 2. Summary of the effect of variations in geometrical parameters of cavities on the thermal performance of blocks from the literature [43,67,68,69,70,71,72,73,74].
Effective Geometrical ParametersParameterThermal Resistance (R)
Number of cavitiesDecreasesIncreases
Number of rows of cavitiesIncreasesIncreases
Width of cavity (parallel to heat flux)DecreasesIncreases
Thickness of cavity (perpendicular to heat flux)IncreasesIncreases
Aspect Ratio (width perpendicular to flow of heat/cavity height)IncreasesIncreases
Hollow Ratio (total area of holes in a block/the cross-sectional area of the block)IncreasesIncreases
Thermal bridgesDecreasesIncreases
Staggered arrangementIncreasesIncreases
Table 3. Summary of factors under consideration for in-lab and in-situ methods.
Table 3. Summary of factors under consideration for in-lab and in-situ methods.
Sr. No.Factors under ConsiderationIn-Lab MethodIn-Situ Method
1Evaluation of thermal performance of walls considering the actual climatic conditionsNoYes
2Consideration of large temperature driftsNoYes
3Consideration of wind velocityNoYes
4Consideration of moisture contentNoYes
5Consideration of material agingNoYes
6Consideration of 1D heat transfer conditionsYesYes
7Consideration of transient heat transfer conditionsYesYes
8Realistic actual heat flux measurementsNoYes
9Realistic actual temperature measurementsNoYes
10Short measurement timesYesNo
11Accuracy of results if conditions are followed appropriatelyNoYes
13Preferred method on international levelNoYes
14Accuracy with low temperature gradientsYesNo
15Stability of boundary conditionsYesNo
Table 4. Comparison table of Sandwich and IMSI insulation blocks.
Table 4. Comparison table of Sandwich and IMSI insulation blocks.
Block Type8″ Sandwich Insulation 8″ IMSI Insulation
Overall dimensions 400 mm × 200 mm × 200 mm400 mm × 200 mm × 200 mm
Thermal Conductivity (k)0.1251 W/m K0.2330 W/m K
Thermal Transmittance (U)0.6255 W/m2 K (Non-standalone)1.165 W/m2 K (Non-standalone)
Compressive Strength7.9 N/mm212.2 N/mm2
Weight 19 g18 kg
Disclaimer/Publisher’s Note: The statements, opinions and data contained in all publications are solely those of the individual author(s) and contributor(s) and not of MDPI and/or the editor(s). MDPI and/or the editor(s) disclaim responsibility for any injury to people or property resulting from any ideas, methods, instructions or products referred to in the content.

Share and Cite

MDPI and ACS Style

Modi, P.A.; Mahmoud, A.M.; Abakr, Y.A. Scopes for Improvements in Energy Conservation and Thermomechanical Performance of Building Blocks in the Kingdom of Bahrain: A Literature Review. Buildings 2024, 14, 861. https://doi.org/10.3390/buildings14040861

AMA Style

Modi PA, Mahmoud AM, Abakr YA. Scopes for Improvements in Energy Conservation and Thermomechanical Performance of Building Blocks in the Kingdom of Bahrain: A Literature Review. Buildings. 2024; 14(4):861. https://doi.org/10.3390/buildings14040861

Chicago/Turabian Style

Modi, Payal Ashish, Abdelgadir Mohamed Mahmoud, and Yousif Abdalla Abakr. 2024. "Scopes for Improvements in Energy Conservation and Thermomechanical Performance of Building Blocks in the Kingdom of Bahrain: A Literature Review" Buildings 14, no. 4: 861. https://doi.org/10.3390/buildings14040861

APA Style

Modi, P. A., Mahmoud, A. M., & Abakr, Y. A. (2024). Scopes for Improvements in Energy Conservation and Thermomechanical Performance of Building Blocks in the Kingdom of Bahrain: A Literature Review. Buildings, 14(4), 861. https://doi.org/10.3390/buildings14040861

Note that from the first issue of 2016, this journal uses article numbers instead of page numbers. See further details here.

Article Metrics

Back to TopTop