Scopes for Improvements in Energy Conservation and Thermomechanical Performance of Building Blocks in the Kingdom of Bahrain: A Literature Review
Abstract
1. Introduction
Need for the Investigation of Building Blocks in Bahrain
2. Motivation
3. Influential Factors for the Performance of Building Blocks
3.1. Aggregate Materials
3.2. Insulation Materials
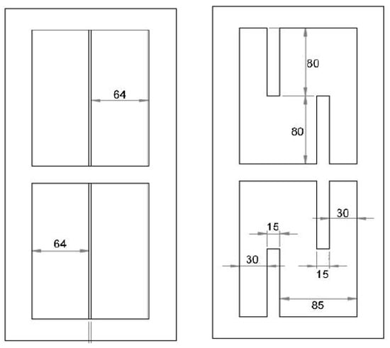
3.3. Geometrical Configurations of Cavities of Blocks
4. Influential Technical Parameters for the Performance of Building Blocks
4.1. Thermal Transmittance (U-Value)
4.1.1. Evaluation Techniques for Thermal Transmittance (U-Value)
- (i)
- Theoretical method
- (ii)
- Experimental method
Theoretical Method
- Calculation by simplified method using a BRE U-value calculator.
- Calculation by ‘numerical methods’ using different computer simulation software.
- Combination of calculation and numerical methods.
- -
- However, the theoretical evaluation of thermal transmittance (U-value) becomes difficult in existing building walls. Two main difficulties that are encountered are:
- -
- Traditional buildings are built using non-homogenous materials whose thermal conductivity values are not available.
- -
- Destructive methods are required to be adopted in order to establish exact dimensions of layers of the wall.
Experimental Method
- -
- Achieving steady-state conditions using a hot and cold box, which is commonly used in laboratory experimentation methods (ISO 8990) [85].
- -
- Assuming that the mean values of temperatures and heat flow rates over a long period of time provide an estimation of steady-state conditions (Average Method)
- -
- Implementing dynamic theory to consider variations in temperatures and heat flow rates in the analysis of the recorded data.
- -
- The measurement period should exceed 72 h with a certain range of fixed intervals.
- -
- The R-value obtained at the end of the test should not deviate by more than 5% from the value obtained 24 h before.
- -
- The R-value obtained by analyzing the data from the first time-period during INT (2 × DT/3) should not deviate by more than 5% from the values obtained from the data the last time period of the same duration. DT is the duration of test in days and INT is the integer part.
4.2. Compressive Strength of Insulation Building Block
5. Houses and Building Blocks in the Kingdom of Bahrain
5.1. History of Houses in Bahrain
5.2. History of Building Blocks in Bahrain
5.3. Initial Data Collection and Standard Procedures for Building Blocks in Bahrain
- Collect information from the Ministry of Electricity and Water Authorities (EWA) of the Kingdom of Bahrain.
- Collect information from the leading insulation block manufacturing companies in Bahrain, particularly related to the internal and external designs of blocks, cavities, materials, strength, and application parameters.
- Collect information from the block testing laboratories in Bahrain related to the thermal and mechanical properties of the building blocks.
5.4. Comparison of Widely Used Insulation Building Blocks in Bahrain
6. Conclusions
- Propose improved aggregate materials.
- Propose improved insulation materials.
- Propose improved cavity designs.
- Evaluate the difference in performance for an individual block system compared to a multi-block system in controlled environmental (in-lab) conditions.
- Evaluate the difference in performance for an individual block system compared to a multi-block system in real environmental (In-Situ) conditions.
- Evaluate the difference in performance of both systems for the two methods: in-lab and In-situ methods.
- Propose a single non-dimensional factor to simultaneously measure the thermal and mechanical performance of both individual and multi-block systems.
Author Contributions
Funding
Data Availability Statement
Conflicts of Interest
References
- Cao, X.; Dai, X.; Liu, J. Building energy-consumption status worldwide and the state-of-the-art technologies for zero-energy buildings during the past decade. Energy Build. 2016, 128, 198–213. [Google Scholar] [CrossRef]
- Sansaniwal, S.K.; Mathur, J.; Mathur, S. Review of practices for human thermal comfort in buildings: Present and future perspectives. Int. J. Ambient. Energy 2022, 43, 2097–2123. [Google Scholar] [CrossRef]
- Andargie, M.S.; Touchie, M.; O’Brien, W. A review of factors affecting occupant comfort in multi-unit residential buildings. J. Affect. Disord. 2019, 160, 106182. [Google Scholar] [CrossRef]
- Cascone, S.; Leuzzo, A. Thermal Comfort in the Built Environment: A Digital Workflow for the Comparison of Different Green Infrastructure Strategies. Atmosphere 2023, 14, 685. [Google Scholar] [CrossRef]
- Sustainable Energy for All, Building Efficiency Accelerator. 2015. Available online: https://www.seforall.org/partners/building-efficiency-accelerator (accessed on 15 March 2024).
- Rashid, F.L.; Al-Obaidi, M.A.; Dulaimi, A.; Mahmood, D.M.N.; Sopian, K. A Review of Recent Improvements, Developments, and Effects of Using Phase-Change Materials in Buildings to Store Thermal Energy. Designs 2023, 7, 90. [Google Scholar] [CrossRef]
- Wani, A.A.; Shahadat, M.; Ali, S.W.; Ahammad, S.Z.; Uddin, M.K. Recent advances and future perspectives of polymer-based magnetic nanomaterials for detection and removal of radionuclides: A review. J. Mol. Liq. 2022, 365, 119976. [Google Scholar] [CrossRef]
- Christopher, S.; Vikram, M.; Bakli, C.; Thakur, A.K.; Ma, Y.; Ma, Z.; Xu, H.; Cuce, P.M.; Cuce, E.; Singh, P. Renewable energy potential towards attainment of net-zero energy buildings status—A critical review. J. Clean. Prod. 2023, 405, 136942. [Google Scholar] [CrossRef]
- Maghrabie, H.M.; Abdelkareem, M.A.; Al-Alami, A.H.; Ramadan, M.; Mushtaha, E.; Wilberforce, T.; Olabi, A.G. State-of-the-Art Technologies for Building-Integrated Photovoltaic Systems. Buildings 2021, 11, 383. [Google Scholar] [CrossRef]
- Bilal, M.; Afzal, M.; Irfan, M.; Musarat, M.A. Energy Efficient Buildings in the Industry 4.0 Era: A Review. Preprints 2023, 2023100301. [Google Scholar] [CrossRef]
- Olu-Ajayi, R.; Alaka, H.; Sulaimon, I.; Sunmola, F.; Ajayi, S. Building energy consumption prediction for residential buildings using deep learning and other machine learning techniques. J. Build. Eng. 2022, 45, 103406. [Google Scholar] [CrossRef]
- Shafique, M.; Luo, X.; Zuo, J. Photovoltaic-green roofs: A review of benefits, limitations, and trends. Sol. Energy 2020, 202, 485–497. [Google Scholar] [CrossRef]
- Metallidou, C.K.; Psannis, K.E.; Egyptiadou, E.A. Energy Efficiency in Smart Buildings: IoT Approaches. IEEE Access 2020, 8, 63679–63699. [Google Scholar] [CrossRef]
- Said, Z.; Iqbal, M.; Mehmood, A.; Le, T.T.; Ali, H.M.; Cao, D.N.; Nguyen, P.Q.P.; Pham, N.D.K. Nanofluids-based solar collectors as sustainable energy technology towards net-zero goal: Recent advances, environmental impact, challenges, and perspectives. Chem. Eng. Process.-Process. Intensif. 2023, 191, 109477. [Google Scholar] [CrossRef]
- Na Talang, R.P.; Sirivithayapakorn, S. Comparing environmental burdens, economic costs and thermal resistance of different materials for exterior building walls. J. Clean. Prod. 2018, 197, 1508–1520. [Google Scholar] [CrossRef]
- Ruiz, G.; Zhang, X.; Edris, W.F.; Cañas, I.; Garijo, L. A comprehensive study of mechanical properties of compressed earth blocks. Constr. Build. Mater. 2018, 176, 566–572. [Google Scholar] [CrossRef]
- Vrachopoulos, M.G.; Koukou, M.K.; Kotsiovelos, G.; Kravvaritis, E.; Ioannidou, P. Experimental evaluation of the performance of reflective insulation for improvement of indoor thermal environmental conditions. WSEAS Trans. Environ. Dev. 2006, 2, 173–177. [Google Scholar]
- Shi, T.; Zhang, X.; Hao, H.; Chen, C. Experimental and numerical investigation on the compressive properties of interlocking blocks. Eng. Struct. 2021, 228, 111561. [Google Scholar] [CrossRef]
- World Bank. Kingdom of Bahrain Energy Efficiency Program (KEEP); World Bank: Washington, DC, USA, 2016. [Google Scholar]
- World Data Atlas, Bahrain Energy. 2019. Available online: https://knoema.com/atlas/Bahrain/Primary-energy-consumption#:~:text=In%202019%2C%20primary%20energy%20consumption,average%20annual%20rate%20of%203.14%25 (accessed on 15 March 2024).
- Alnaser, N. Building integrated renewable energy to achieve zero emission in Bahrain. Energy Build. 2015, 93, 32–39. [Google Scholar] [CrossRef]
- MEW (Ministry of Electricity and Water). Annual Report 2021 Bahrain; EWAStatistics2021.pdf; MEW (Ministry of Electricity and Water): Manama, Bahrain, 2021.
- Krarti, M.; Dubey, K. Benefits of energy efficiency programs for residential buildings in Bahrain. J. Build. Eng. 2018, 18, 40–50. [Google Scholar] [CrossRef]
- Bahrain Weather. (n.d.). Climate. Available online: https://www.bing.com/ck/a?!&&p=5ef09116abced6edJmltdHM9MTcxMDk3OTIwMCZpZ3VpZD0xYTJhZjA4NS0wYTM2LTY5OWMtMjllMC1lMTVlMGIzZjY4NmUmaW5zaWQ9NTE5NQ&ptn=3&ver=2&hsh=3&fclid=1a2af085-0a36-699c-29e0-e15e0b3f686e&psq=Climate.+Available+online%3a+https%3a%2f%2fweather-and-climate.com%2faverage-monthly-min-max-Temperature%2cBahrain%2cBahrain&u=a1aHR0cHM6Ly93d3cuYmFocmFpbndlYXRoZXIuZ292LmJoL2NsaW1hdGU&ntb=1 (accessed on 15 March 2024).
- Ma-Investment. Thermal Insulation in Buildings; Ma-Investment: Houston, TX, USA, 2016. [Google Scholar]
- Bayram, I.S.; Al-Qahtani, M.; Saffouri, F.; Koc, M. Estimating the Cost of Summer Cooling in Bahrain. In Proceedings of the 2017 9th IEEE-GCC Conference and Exhibition (GCCCE), Manama, Bahrain, 8–11 May 2017; pp. 1–9. [Google Scholar]
- Radhi, H.; Sharples, S.; Taleb, H.; Fahmy, M. Will cool roofs improve the thermal performance of our built environment? A study assessing roof systems in Bahrain. Energy Build. 2017, 135, 324–337. [Google Scholar] [CrossRef]
- Modi, P.; Bushehri, R.; Georgantopoulou, C.; Mavromatidis, L. Design and development of a mini scale hot box for thermal efficiency evaluation of an insulation building block prototype used in Bahrain. Adv. Build. Energy Res. 2017, 11, 130–151. [Google Scholar] [CrossRef]
- Bahrain Economic Vision 2030. Available online: https://www.bing.com/ck/a?!&&p=5b16bfc9398feee6JmltdHM9MTcxMDk3OTIwMCZpZ3VpZD0xYTJhZjA4NS0wYTM2LTY5OWMtMjllMC1lMTVlMGIzZjY4NmUmaW5zaWQ9NTIxNQ&ptn=3&ver=2&hsh=3&fclid=1a2af085-0a36-699c-29e0-e15e0b3f686e&psq=Bahrain+Economic+Vision+2030&u=a1aHR0cDovL2JhaHJhaW4uYmgvYmFocmFpbjIwMzA&ntb=1 (accessed on 15 March 2024).
- Ministerial Order 70/2015, Energy Efficiency Labelling of AC Units. Electricity Conservation Tips. Available online: https://www.ewa.bh/en/Conservation/Electricity/electricity-conservation-tips (accessed on 15 March 2024).
- Ministerial Order 08/1999. Available online: https://www.ewa.bh/en/Conservation/Electricity/Documents/GuidelinesThermalInsulationImp.pdf (accessed on 15 March 2024).
- Ministerial Order 63/2012. Available online: https://www.bing.com/ck/a?!&&p=caf68c760227bd38JmltdHM9MTcxMDk3OTIwMCZpZ3VpZD0xYTJhZjA4NS0wYTM2LTY5OWMtMjllMC1lMTVlMGIzZjY4NmUmaW5zaWQ9NTE5Ng&ptn=3&ver=2&hsh=3&fclid=1a2af085-0a36-699c-29e0-e15e0b3f686e&psq=%3a+https%3a%2f%2fwww.ewa.bh%2fen%2fConservation%2fElectricity%2fbuilding-regulations&u=a1aHR0cHM6Ly93d3cuZXdhLmJoL2VuL0NvbnNlcnZhdGlvbi9FbGVjdHJpY2l0eS9idWlsZGluZy1yZWd1bGF0aW9ucw&ntb=1 (accessed on 15 March 2024).
- United Nations, Sustainable Goals 2030 Agenda. Available online: https://sdgs.un.org/topics/sustainable-cities-and-human-settlements (accessed on 15 March 2024).
- Hongxia, Z.; Kang, P.; Baoquan, C.; Xuanyi, L. Numerical Simulation of Thermal Theory of Sintered Coal Gangue Self-Insulation Block and Wall. MATEC Web Conf. 2018, 175, 01021. [Google Scholar] [CrossRef]
- Shehata, N.; Sayed, E.T.; Abdelkareem, M.A. Recent progress in environmentally friendly geopolymers: A review. Sci. Total. Environ. 2021, 762, 143166. [Google Scholar] [CrossRef]
- Ashraf, N.; Nasir, M.; Al-Kutti, W.; Al-Maziad, F.A. Assessment of thermal and energy performance of masonry blocks pre-pared with date palm ash. Mater. Renew. Sustain. Energy 2020, 9, 17. [Google Scholar] [CrossRef]
- ASTM C90; Standard Specification for Load Bearing Concrete Masonry Units. Available online: https://www.uop.edu.jo/PDF%20File/uop%20%5BArchitecture_Ebook%5D_Masonry_Design_and_Detailing_For_Architects_and_Contractors-20615_Part279.pdf (accessed on 15 March 2024).
- Li, X.; Zhang, Q.; Mao, S. Investigation of the bond strength and microstructure of the interfacial transition zone between cement paste and aggregate modified by Bayer red mud. J. Hazard. Mater. 2021, 403, 123482. [Google Scholar] [CrossRef]
- Guo, Z.; Tu, A.; Chen, C.; Lehman, D.E. Mechanical properties, durability, and life-cycle assessment of concrete building blocks incorporating recycled concrete aggregates. J. Clean. Prod. 2018, 199, 136–149. [Google Scholar] [CrossRef]
- Guo, Z.; Kong, X.; Zhang, J.; Sun, Y.; Tu, A.; Jiang, T. Life-cycle assessment of concrete building blocks incorporating recycled concrete aggregates—A case study in China. In Woodhead Publishing Series in Civil and Structural Engineering, Advances in Construction and Demolition Waste Recycling; Woodhead Publishing: Sawston, UK, 2020; pp. 515–535. ISBN 9780128190555. [Google Scholar] [CrossRef]
- Pavlu, T.; Fortova, K.; Divis, J.; Hajek, P. The Utilization of Recycled Masonry Aggregate and Recycled EPS for Concrete Blocks for Mortarless Masonry. Materials 2019, 12, 1923. [Google Scholar] [CrossRef] [PubMed]
- Al-Awsh, W.A.; Qasem, N.A.; Al-Amoudi, O.S.B.; Al-Osta, M.A. Experimental and numerical investigation on innovative masonry walls for industrial and residential buildings. Appl. Energy 2020, 276, 115496. [Google Scholar] [CrossRef]
- Al-Tamimi, A.S.; Al-Amoudi, O.S.B.; Al-Osta, M.A.; Ali, M.R.; Ahmad, A. Effect of insulation materials and cavity layout on heat transfer of concrete masonry hollow blocks. Constr. Build. Mater. 2020, 254, 119300. [Google Scholar] [CrossRef]
- Schiavoni, S.; D’Alessandro, F.; Bianchi, F.; Asdrubali, F. Insulation materials for the building sector: A review and comparative analysis. Renew. Sustain. Energy Rev. 2016, 62, 988–1011. [Google Scholar] [CrossRef]
- Awoyera, P.O.; Akinrinade, A.D.; Galdino, A.G.D.S.; Althoey, F.; Kirgiz, M.S.; Tayeh, B.A. Thermal insulation and mechanical characteristics of cement mortar reinforced with mineral wool and rice straw fibers. J. Build. Eng. 2022, 53, 104568. [Google Scholar] [CrossRef]
- Bozsaky, D. Nature-Based Thermal Insulation Materials from Renewable Resources—A State-Of-The-Art Review. Slovak J. Civ. Eng. 2019, 27, 52–59. [Google Scholar] [CrossRef]
- Gullbrekken, L.; Grynning, S.; Gaarder, J.E. Thermal Performance of Insulated Constructions—Experimental Studies. Buildings 2019, 9, 49. [Google Scholar] [CrossRef]
- Mahdaoui, M.; Hamdaoui, S.; Msaad, A.A.; Kousksou, T.; El Rhafiki, T.; Jamil, A.; Ahachad, M. Building bricks with phase change material (PCM): Thermal performances. Constr. Build. Mater. 2020, 269, 121315. [Google Scholar] [CrossRef]
- Hasan, A.; Al-Sallal, K.A.; Alnoman, H.; Rashid, Y.; Abdelbaqi, S. Effect of Phase Change Materials (PCMs) Integrated into a Concrete Block on Heat Gain Prevention in a Hot Climate. Sustainability 2016, 8, 1009. [Google Scholar] [CrossRef]
- Kishore, R.A.; Bianchi, M.V.; Booten, C.; Vidal, J.; Jackson, R. Optimizing PCM-integrated walls for potential energy savings in U.S. Buildings. Energy Build. 2020, 226, 110355. [Google Scholar] [CrossRef]
- Patel, B.; Rathore, P.K.S.; Gupta, N.K.; Sikarwar, B.S.; Sharma, R.; Kumar, R.; Pandey, A. Location optimization of phase change material for thermal energy storage in concrete block for development of energy efficient buildings. Renew. Energy 2023, 218, 119306. [Google Scholar] [CrossRef]
- Wang, H.; Chiang, P.-C.; Cai, Y.; Li, C.; Wang, X.; Chen, T.-L.; Wei, S.; Huang, Q. Application of Wall and Insulation Materials on Green Building: A Review. Sustainability 2018, 10, 3331. [Google Scholar] [CrossRef]
- Souza, A.B.; Ferreira, H.S.; Vilela, A.P.; Viana, Q.S.; Mendes, J.F.; Mendes, R.F. Study on the feasibility of using agricultural waste in the production of concrete blocks. J. Build. Eng. 2021, 42, 102491. [Google Scholar] [CrossRef]
- Iwaro, J.; Mwasha, A. Effects of Using Coconut Fiber–Insulated Masonry Walls to Achieve Energy Efficiency and Thermal Comfort in Residential Dwellings. J. Arch. Eng. 2019, 25, 04019001. [Google Scholar] [CrossRef]
- Homod, R.Z.; Almusaed, A.; Almssad, A.; Jaafar, M.K.; Goodarzi, M.; Sahari, K.S. Effect of different building envelope materials on thermal comfort and air-conditioning energy savings: A case study in Basra city, Iraq. J. Energy Storage 2020, 34, 101975. [Google Scholar] [CrossRef]
- Iffa, E.; Tariku, F.; Simpson, W.Y. Highly Insulated Wall Systems with Exterior Insulation of Polyisocyanurate under Different Facer Materials: Material Characterization and Long-Term Hygrothermal Performance Assessment. Materials 2020, 13, 3373. [Google Scholar] [CrossRef]
- Dong, Y.; Kong, J.; Mousavi, S.; Rismanchi, B.; Yap, P.-S. Wall Insulation Materials in Different Climate Zones: A Review on Challenges and Opportunities of Available Alternatives. Thermo 2023, 3, 38–65. [Google Scholar] [CrossRef]
- Rehman, H.U. Experimental performance evaluation of solid concrete and dry insulation materials for passive buildings in hot and humid climatic conditions. Appl. Energy 2017, 185, 1585–1594. [Google Scholar] [CrossRef]
- Yang, J.; Wu, H.; Xu, X.; Huang, G.; Xu, T.; Guo, S.; Liang, Y. Numerical and experimental study on the thermal performance of aerogel insulating panels for building energy efficiency. Renew. Energy 2019, 138, 445–457. [Google Scholar] [CrossRef]
- Golder, S.; Narayanan, R.; Hossain, R.; Islam, M.R. Experimental and CFD Investigation on the Application for Aerogel Insulation in Buildings. Energies 2021, 14, 3310. [Google Scholar] [CrossRef]
- Thenappa, S.; Nguyen, P.T.; Do, N.H.; Le, D.K.; Thai, Q.B.; Le, P.K.; Phan-Thien, N.; Duong, H.M. Correction to: Advanced fabrication and multi-properties of aluminium hydroxide aerogels from aluminium wastes. J. Mater. Cycles Waste Manag. 2021, 23, 1276. [Google Scholar]
- ALBA-2021. Available online: https://www.albasmelter.com/en/article/alba-discloses-its-financial-results-for-the-fourth-quarter-and-full-year-of-2021 (accessed on 15 March 2024).
- Abu-Jdayil, B.; Mourad, A.-H.; Hittini, W.; Hassan, M.; Hameedi, S. Traditional, state-of-the-art and renewable thermal building insulation materials: An overview. Constr. Build. Mater. 2019, 214, 709–735. [Google Scholar] [CrossRef]
- Reboul, N.; Larbi, A.S.; Ferrier, E. Two-way bending behaviour of hollow concrete block masonry walls reinforced by composite materials. Compos. Part B Eng. 2018, 137, 163–177. [Google Scholar] [CrossRef]
- Asdrubali, F.; D’Alessandro, F.; Schiavoni, S. A review of unconventional sustainable building insulation materials. Sustain. Mater. Technol. 2015, 4, 1–17. [Google Scholar] [CrossRef]
- Martinez-Amariz, A.; Muñoz, L.P.; Posso, F.; Bellon, D. Compressive evaluation of mansory bricks produced with industrial byproduct aggregates. Int. J. Appl. Ceram. Technol. 2020, 17, 2681–2689. [Google Scholar] [CrossRef]
- Antar, M.A. Thermal radiation role in conjugate heat transfer across a multiple-cavity building block. Energy 2010, 35, 3508–3516. [Google Scholar] [CrossRef]
- Huelsz, G.; Barrios, G.; Rojas, J. Evaluation of heat transfer models for hollow blocks in whole-building energy simulations. Energy Build. 2019, 202, 109338. [Google Scholar] [CrossRef]
- Morales, M.; Juárez, M.; Muñoz, P.; Gómez, J. Study of the geometry of a voided clay brick using non-rectangular perforations to optimise its thermal properties. Energy Build. 2011, 43, 2494–2498. [Google Scholar] [CrossRef]
- Zhang, Y.; Wang, Q. Influence of Hollow Block’s Structural Configuration on the Thermal Characteristics of Hollow Block Wall. Procedia Eng. 2017, 205, 2341–2348. [Google Scholar] [CrossRef]
- Ismaiel, M.; Chen, Y.; Cruz-Noguez, C.; Hagel, M. Thermal resistance of masonry walls: A literature review on influence factors, evaluation, and improvement. J. Build. Phys. 2022, 45, 528–567. [Google Scholar] [CrossRef]
- Ghailane, H.; Ahamat, M.A.; Padzi, M.M.; Beddu, S. Steady-state heat flow through hollow clay bricks. IOP Conf. Series Mater. Sci. Eng. 2020, 834, 012021. [Google Scholar] [CrossRef]
- Fogiatto, M.A.; Santos, G.H.d.; Catelan, J.V.R. Numerical Two-Dimensional Steady-State Evaluation of the Thermal Transmittance Reduction in Hollow Blocks. Energies 2019, 12, 449. [Google Scholar] [CrossRef]
- Erdem, C.U.; Cuce, P.M.; Besir, A.B. Improving thermal resistance of lightweight concrete hollow bricks: A numerical optimi-sation research for a typical masonry unit. J. Energy Syst. 2020, 4, 121–144. [Google Scholar]
- Almujahid, A.; Kaneesamkandi, Z. Construction of a test room for evaluating thermal performance of building wall systems under real conditions. Measurement 2013, 2. [Google Scholar]
- Hatia, M.; Kriker, A.; Belatrache, D. Experimental Study of the Thermo-Mechanical Properties of Building Blocks Used in Hot Desert Arid Climate. EAI Endorsed Trans. Energy Web 2020, 8. [Google Scholar] [CrossRef]
- Vivancos, J.-L.; Soto, J.; Perez, I.; Ros-Lis, J.V.; Martínez-Máñez, R. A new model based on experimental results for the thermal characterization of bricks. Build. Environ. 2009, 44, 1047–1052. [Google Scholar] [CrossRef]
- Mavromatidis, L.E.; Michel, P.; El Mankibi, M.; Santamouris, M. Study on transient heat transfer through multilayer thermal insulation: Numerical analysis and experimental investigation. Build. Simul. 2010, 3, 279–294. [Google Scholar] [CrossRef]
- Bruno, R.; Ferraro, V.; Bevilacqua, P.; Arcuri, N. On the assessment of the heat transfer coefficients on building components: A comparison between modeled and experimental data. Build. Environ. 2022, 216, 108995. [Google Scholar] [CrossRef]
- Yang, Y.; Chen, Z.; Wu, T.V.; Sempey, A.; Batsale, J.-C. In situ methodology for thermal performance evaluation of building wall: A review. Int. J. Therm. Sci. 2022, 181, 107687. [Google Scholar] [CrossRef]
- Rasooli, A.; Itard, L. In-situ characterization of walls’ thermal resistance: An extension to the ISO 9869 standard method. Energy Build. 2018, 179, 374–383. [Google Scholar] [CrossRef]
- ISO 9869-1; Thermal Insulation, Building Elements, In-Situ Measurement of Thermal Resistance and Thermal Transmittance-Part 1: Heat Flow Meter Method. BSI: London, UK, 2014. Available online: https://www.bing.com/ck/a?!&&p=dd21a8746fb356c7JmltdHM9MTcxMDk3OTIwMCZpZ3VpZD0xYTJhZjA4NS0wYTM2LTY5OWMtMjllMC1lMTVlMGIzZjY4NmUmaW5zaWQ9NTE5Nw&ptn=3&ver=2&hsh=3&fclid=1a2af085-0a36-699c-29e0-e15e0b3f686e&psq=ISO+9869-1%3b&u=a1aHR0cHM6Ly93d3cuaXNvLm9yZy9zdGFuZGFyZC81OTY5Ny5odG1s&ntb=1 (accessed on 15 March 2024).
- ASTM 1046 and 1155. Available online: www.astm.org (accessed on 15 March 2024).
- Atsonios, I.A.; Mandilaras, I.D.; Kontogeorgos, D.A.; Founti, M.A. A comparative assessment of the standardized methods for the in–situ measurement of the thermal resistance of building walls. Energy Build. 2017, 154, 198–206. [Google Scholar] [CrossRef]
- ISO 8990; Thermal Insulation-Determination of Steady-State Thermal Transmission Properties-Calibrated and Guarded Hot Box. 2019. Available online: https://www.iso.org/standard/16519.html (accessed on 15 March 2024).
- Fortes, E.S.; Parsekian, G.A.; Camacho, J.S.; Fonseca, F.S. Compressive strength of masonry constructed with high strength concrete blocks. Rev. Ibracon Estruturas Mater. 2017, 10, 1273–1319. [Google Scholar] [CrossRef]
- Aubert, J.E.; Maillard, P.; Morel, J.-C.; Al Rafii, M. Towards a simple compressive strength test for earth bricks? Mater. Struct. 2016, 49, 1641–1654. [Google Scholar] [CrossRef]
- Álvarez-Pérez, J.; Mesa-Lavista, M.; Chávez-Gómez, J.H.; Miguel, G.F.-S. Experimental investigation on tensile strength of hollow concrete blocks. Mater. Struct. 2021, 54, 164. [Google Scholar] [CrossRef]
- Haach Vladimir, G. Development of a New Test for Determination of Tensile Strength of Concrete Blocks. 2013. Available online: https://hdl.handle.net/1822/26309 (accessed on 15 March 2024).
- Bae, B.-I.; Choi, H.-K.; Choi, C.-S. Flexural Strength Evaluation of Reinforced Concrete Members with Ultra High Performance Concrete. Adv. Mater. Sci. Eng. 2016, 2016, 2815247. [Google Scholar] [CrossRef]
- Chen, W.F. The Civil Engineering Handbook. 2002. Available online: https://books.google.com.bh/books?id=9Q3OBQAAQBAJ&printsec=frontcover&dq=civil+engineering+material+handbook&hl=en&sa=X&ved=2ahUKEwi1qrbw-dz6AhXC_rsIHW8pC4EQuwV6BAgKEAY#v=onepage&q=civil%20engineering%20material%20handbook&f=false (accessed on 15 March 2024).
- ASTM C140-99b. 2003. Available online: https://standards.globalspec.com/std/3806313/astm-c140-99b (accessed on 15 March 2024).
- Sitton, J.D.; Zeinali, Y.; Heidarian, W.H.; Story, B.A. Effect of mix design on compressed earth block strength. Constr. Build. Mater. 2018, 158, 124–131. [Google Scholar] [CrossRef]
- Zahra, T.; Thamboo, J.; Asad, M. Compressive strength and deformation characteristics of concrete block masonry made with different mortars, blocks and mortar beddings types. J. Build. Eng. 2021, 38, 102213. [Google Scholar] [CrossRef]
- Holmes, N.; O’Malley, H.; Cribbin, P.; Mullen, H.; Keane, G. Performance of masonry blocks containing different proportions of incinator bottom ash. Sustain. Mater. Technol. 2016, 8, 14–19. [Google Scholar] [CrossRef]
- The Constructor, Building Ideas, Compressive Strength of Concrete-Cube Test [PDF], Procedure, Results. Available online: https://theconstructor.org/concrete/compressive-strength-concrete-cube-test/1561/ (accessed on 15 March 2024).
- Sirriyeh, M.M. The House of Bahrain Press Heritage; Sustainable Development and Planning II; WIT Press: Southampton, UK, 2005; Volume 2. [Google Scholar]
- Al-Manratain Company. Bahrain Building Material Supplier Since 1959—Al Manaratain; Al-Manratain Company: Jidhaf, Bahrain, 1959. [Google Scholar]
- Bahrain Blocks, Company, Home|Bahrain Blocks. Available online: https://www.bing.com/ck/a?!&&p=f42ef0deeeed66acJmltdHM9MTcxMDk3OTIwMCZpZ3VpZD0xYTJhZjA4NS0wYTM2LTY5OWMtMjllMC1lMTVlMGIzZjY4NmUmaW5zaWQ9NTIwNA&ptn=3&ver=2&hsh=3&fclid=1a2af085-0a36-699c-29e0-e15e0b3f686e&psq=bahrain+blocks+company+bahrain+official+website&u=a1aHR0cHM6Ly9iYWhyYWluYmxvY2tzLmNvbS8&ntb=1 (accessed on 15 March 2024).
- Middle East Block Company, Al-Ali Group. AMA GROUP|Building Materials. Available online: https://al-aali.com/ (accessed on 15 March 2024).
- Aljalahma Blocks. Ahmed Rashid Aljalahma & Brothers Co. Available online: https://aljalahmacompany.com (accessed on 15 March 2024).
- RedX Company. RedX Industries. Available online: https://www.bing.com/ck/a?!&&p=3b1b3014f4975d98JmltdHM9MTcxMDk3OTIwMCZpZ3VpZD0xYTJhZjA4NS0wYTM2LTY5OWMtMjllMC1lMTVlMGIzZjY4NmUmaW5zaWQ9NTIxMA&ptn=3&ver=2&hsh=3&fclid=1a2af085-0a36-699c-29e0-e15e0b3f686e&psq=redex+industries+bahrain+official+website&u=a1aHR0cHM6Ly93d3cucmVkeGluZHVzdHJpZXMuY29tLw&ntb=1 (accessed on 15 March 2024).
- Ahmed Isa Block Factor; Ahmed Isa Block Factory S.P.C—Manufacturing and Supplying Concrete Masonry Block. Ahmed Isa Block Factory|Buildeey. Available online: https://buildeey.com/profile/ahmed-isa-block-factory (accessed on 15 March 2024).

























| Sample Name | Aluminum (Al) Content wt. (%) | PVA Content wt. (%) | Thermal Conductivity Kavg (W/m K) |
|---|---|---|---|
| AA1 | 0.25 | 2.0 | 0.029 ± 0.003 |
| AA2 | 0.50 | 2.0 | 0.031 ± 0.001 |
| AA3 | 0.75 | 2.0 | 0.032 ± 0.001 |
| AA4 | 0.50 | 1.0 | 0.028 ± 0.002 |
| AA5 | 0.50 | 1.5 | 0.030 ± 0.001 |
| Effective Geometrical Parameters | Parameter | Thermal Resistance (R) |
|---|---|---|
| Number of cavities | Decreases | Increases |
| Number of rows of cavities | Increases | Increases |
| Width of cavity (parallel to heat flux) | Decreases | Increases |
| Thickness of cavity (perpendicular to heat flux) | Increases | Increases |
| Aspect Ratio (width perpendicular to flow of heat/cavity height) | Increases | Increases |
| Hollow Ratio (total area of holes in a block/the cross-sectional area of the block) | Increases | Increases |
| Thermal bridges | Decreases | Increases |
| Staggered arrangement | Increases | Increases |
| Sr. No. | Factors under Consideration | In-Lab Method | In-Situ Method |
|---|---|---|---|
| 1 | Evaluation of thermal performance of walls considering the actual climatic conditions | No | Yes |
| 2 | Consideration of large temperature drifts | No | Yes |
| 3 | Consideration of wind velocity | No | Yes |
| 4 | Consideration of moisture content | No | Yes |
| 5 | Consideration of material aging | No | Yes |
| 6 | Consideration of 1D heat transfer conditions | Yes | Yes |
| 7 | Consideration of transient heat transfer conditions | Yes | Yes |
| 8 | Realistic actual heat flux measurements | No | Yes |
| 9 | Realistic actual temperature measurements | No | Yes |
| 10 | Short measurement times | Yes | No |
| 11 | Accuracy of results if conditions are followed appropriately | No | Yes |
| 13 | Preferred method on international level | No | Yes |
| 14 | Accuracy with low temperature gradients | Yes | No |
| 15 | Stability of boundary conditions | Yes | No |
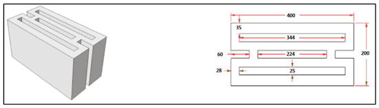
| Block Type | 8″ Sandwich Insulation | 8″ IMSI Insulation |
|---|---|---|
| Overall dimensions | 400 mm × 200 mm × 200 mm | 400 mm × 200 mm × 200 mm |
| Thermal Conductivity (k) | 0.1251 W/m K | 0.2330 W/m K |
| Thermal Transmittance (U) | 0.6255 W/m2 K (Non-standalone) | 1.165 W/m2 K (Non-standalone) |
| Compressive Strength | 7.9 N/mm2 | 12.2 N/mm2 |
| Weight | 19 g | 18 kg |
Disclaimer/Publisher’s Note: The statements, opinions and data contained in all publications are solely those of the individual author(s) and contributor(s) and not of MDPI and/or the editor(s). MDPI and/or the editor(s) disclaim responsibility for any injury to people or property resulting from any ideas, methods, instructions or products referred to in the content. |
© 2024 by the authors. Licensee MDPI, Basel, Switzerland. This article is an open access article distributed under the terms and conditions of the Creative Commons Attribution (CC BY) license (https://creativecommons.org/licenses/by/4.0/).
Share and Cite
Modi, P.A.; Mahmoud, A.M.; Abakr, Y.A. Scopes for Improvements in Energy Conservation and Thermomechanical Performance of Building Blocks in the Kingdom of Bahrain: A Literature Review. Buildings 2024, 14, 861. https://doi.org/10.3390/buildings14040861
Modi PA, Mahmoud AM, Abakr YA. Scopes for Improvements in Energy Conservation and Thermomechanical Performance of Building Blocks in the Kingdom of Bahrain: A Literature Review. Buildings. 2024; 14(4):861. https://doi.org/10.3390/buildings14040861
Chicago/Turabian StyleModi, Payal Ashish, Abdelgadir Mohamed Mahmoud, and Yousif Abdalla Abakr. 2024. "Scopes for Improvements in Energy Conservation and Thermomechanical Performance of Building Blocks in the Kingdom of Bahrain: A Literature Review" Buildings 14, no. 4: 861. https://doi.org/10.3390/buildings14040861
APA StyleModi, P. A., Mahmoud, A. M., & Abakr, Y. A. (2024). Scopes for Improvements in Energy Conservation and Thermomechanical Performance of Building Blocks in the Kingdom of Bahrain: A Literature Review. Buildings, 14(4), 861. https://doi.org/10.3390/buildings14040861

