Next Article in Journal
Sustainable High-Performance Concrete Using Zeolite Powder: Mechanical and Carbon Footprint Analyses
Previous Article in Journal
Holistic Assessment for Social Housing Retrofitting: Integrating Seismic, Energy, and Social Aspects in the REHOUSE Project
 
 
Font Type:
Arial Georgia Verdana
Font Size:
Aa Aa Aa
Line Spacing:
Column Width:
Background:
Article

Interaction Between Gender and Space: A Study on the Genealogy of Feminist Architecture

1
School of Architecture, Southeast University, Nanjing 210096, China
2
School of Art and Design, Wanjiang University of Technology, Ma’anshan 243031, China
3
College of Architecture and Urban Planning, Tongji University, Shanghai 200092, China
*
Author to whom correspondence should be addressed.
Buildings 2024, 14(11), 3658; https://doi.org/10.3390/buildings14113658
Submission received: 29 September 2024 / Revised: 4 November 2024 / Accepted: 15 November 2024 / Published: 17 November 2024
(This article belongs to the Section Architectural Design, Urban Science, and Real Estate)

Abstract

The exploration and advancement of feminism are vital for addressing critical issues such as social progress, equitable education, and healthcare access. This paper comprehensively examines the feminist movement’s impact on architecture over the past century, identifying key trends and significant areas to establish an academic foundation for feminist architecture. A literature review on feminism in urban planning, architecture, landscape design, and urban safety highlights the current research focus on feminist architectural development. Furthermore, this paper traces the evolution of feminist architecture through both purpose-driven and process-oriented approaches, exploring the interplay between feminist and modern architectural practices. It specifically examines the development of feminist architecture within the Chinese context from two perspectives: the influence of feminist thought on architecture and the evolution of gendered spaces within the “Residence and Courtyard” model. By comparing the internal logic of feminist architectural development in China and the West, this study investigates how geopolitical culture and regional differences shape the future trajectory of this field. Unlike traditional feminist architectural research, which often emphasizes women’s practices within specific feminist ideologies or focuses on visual culture and psychological interpretations of gendered spaces, this paper redefines the scope of feminist architectural studies through a comparative analysis of historical and contemporary contexts, and Eastern and Western perspectives, employing a systematic genealogical approach.

1. Introduction

The feminist movement emerged in response to deep-rooted gender inequalities that have persisted throughout history. In numerous societies, women have faced systemic discrimination imposed by legal, social, and cultural institutions, including limitations on voting rights, education, and economic opportunities. Feminism’s impact on architecture highlights the interplay between biological and social gender within the movement. Since the mid-19th century, the growing influence of feminism has significantly shaped the evolution of architecture [1]. Firstly, feminism has propelled architecture towards greater diversity and inclusivity [2]. For example, Tigran Haas proposed using a feminist analytical framework to explore urban design issues, integrating findings from interdisciplinary studies such as cultural urbanism and pluralist urbanism. This approach emphasizes the importance of gender inclusiveness in creating public spaces that are more open and supportive of everyday activities [3]. Some feminist architects argue that the experiences and needs of marginalized communities are also critical aspects of inclusive design, such as creating accessible spaces for people with disabilities and designing public spaces that are safe and welcoming for women [4]. Shivers-Blackwell and Smith contend that feminist architects seek to create spaces that challenge traditional gender roles and expectations, promoting more equitable and inclusive gender expressions [5]. This includes designing spaces without gender-segregated areas and creating environments that welcome transgender and gender-nonconforming individuals [6]. Secondly, feminism has intensified the focus on gender equality within the field, encouraging the participation of women as architects, designers, and leaders and advocating for gender equality policies [7]. However, this progression has also introduced challenges, including cultural resistance and increased costs. For example, additional indicators and research focus are needed to ensure the achievement of gender equality [8]. Nasrullah Agha Jani points out that due to the foundational differences and the existence of diversity, complete justice between men and women cannot be realized [9]. Additionally, some view the feminist movement as a challenge to traditional architectural practices, potentially impeding progress. Although the COVID-19 pandemic has ended, its impact continues to reshape architecture and urban planning, driving complex changes, especially from a feminist perspective [10]. There is a renewed emphasis on balancing family and work life, prompting updates to work environments to accommodate these needs. Issues such as social distancing and hygiene have also gained renewed attention. Feminist architecture can address these challenges by creating inclusive spaces that mitigate gender inequalities, such as increasing childcare facilities and enhancing urban planning. Moreover, digital trends are transforming the demand for work and social spaces, requiring innovative thinking on how to use technology to create more adaptable and inclusive environments.
Despite these advancements, a clear and systematic genealogy of feminist architecture remains elusive. Most research has concentrated on women’s professional practices or specific spatial types, lacking a holistic understanding of feminism’s overall trajectory and its relationship with modern architecture. This paper will analyze feminist architecture from the following main perspectives.
A Bibliometric Analysis of Feminist Architecture Research: This section focuses on the period following the 1960s when feminist architecture emerged as a formal academic discipline and began to gain widespread attention. Utilizing CiteSpace 4.0.R5 and a comprehensive review of the relevant literature, this study will highlight the key research directions and themes that have shaped feminist architectural studies in recent years.
A Genealogical Retrospective on Feminist Architecture: This section will trace the development of architectural ideas during the first and second waves of feminism, from the 1850s to the 1970s. It will systematically analyze how feminist thought influenced architectural theory and practice, examining its evolution in goal and process-oriented approaches within various social contexts.
The Development of Feminist Architecture in Chinese Context: This section will explore the path of feminist thought in China, analyzing its impact on gender and spatial issues. It will also compare the similarities and differences between Eastern and Western feminist architecture, evaluating how feminist architecture has been adapted within the Chinese context.
Figure 1 shows the overall structure of this paper. This paper aims to provide new perspectives on feminist architecture, contribute to the further exploration and development of the field, and lay a foundation for future academic research and innovative practices.

2. Bibliometric Analysis of Feminist Architecture Disciplinary Evolution: 1960s–Present

In the field of architecture, it is widely acknowledged that the decline of modernism in the 1960s and 70s, alongside the emergence of the second wave of feminism, significantly contributed to the development of feminist architectural theory [11]. A landmark event in this context was the “Women in Architecture” symposium held at the University of Virginia in 1972, which marked a pivotal moment in elevating feminist perspectives within architectural discourse [12]. Therefore, this section conducts a bibliometric study on the development of feminist architecture since the 1960s.
In the current study, CiteSpace 4.0.R5 was employed for co-citation analysis, utilizing its robust features to visualize co-citation networks and research clusters. Data were obtained from the Web of Science™ Core Collection, specifically from the Science Citation Index and Social Sciences Citation Index. This yielded 5104 articles with titles containing the terms “feminist” and “architecture”. By analyzing the number and trends of publications in the field of feminist architecture from the 1960s to 2023, the following conclusions emerge (Figure 2). It is important to note that in order to ensure the papers analyzed in the following sections reflect the impact of gender differences on space, the specific selection criteria will adhere to the following principles:
(1)
Relevance of Topic: Papers focused on feminist architecture and related issues, including gender space theory, the roles of women in architectural design and urban planning, and interdisciplinary studies on environment and gender, will be selected.
(2)
Academic Source: To ensure the academic rigor and authority of the selected literature, priority will be given to research published in high-impact, peer-reviewed journals.
(3)
Citation Frequency: Papers with a higher citation count will be chosen to identify influential research within the field.
(4)
Interdisciplinary Perspectives: Studies that incorporate perspectives from other relevant disciplines (such as public safety and ecology) will be included to form a more comprehensive understanding.
The number of publications has shown a fluctuating upward trend since 1990, with a significant increase in published papers post-2016. The development of feminist architecture research can be divided into two main phases: the first phase, from 1961 to 2016, was characterized by slow growth, where feminist architecture research gradually emerged, particularly in developed countries. The second phase, from 2016 to the present, was marked by rapid development, where research in feminist architecture has gained extensive attention, and the number of related publications has increased rapidly. Scholars from various disciplines have studied feminist architecture using diverse methods and techniques.
The keyword clustering statistics show that the primary research content of feminist architecture includes risk assessment, gender, air pollution, conservation, and physical activity, focusing on the physical living environment and macro-level data analysis (Figure 3). To analyze the development of feminist architecture more clearly, the search scope was further refined to TS = feminist architecture and the research field of Architecture. Table 1 shows that before 2009, the focus was primarily on gender differences and education. From 2009 to 2016, research directions diversified, including neural networks, adaptive studies, and female characteristics. Since 2016, in addition to continuing previous research directions, new studies on deep learning, machine learning, and systematic engineering have emerged.
By reviewing specific references, this paper outlines the different stages of development in feminist architecture, highlighting the views of various authors as summarized in Table 2 below. Overall, the existing research on feminist architecture mainly focuses on urban planning, followed by family communities and public safety. The development of feminist architecture is characterized by the following aspects: an emphasis on gender equality and inclusivity, promoting community participation and female equality through urban planning and design (e.g., Jane Jacob [13]) and exploring the importance of women in household and community spaces (e.g., Dolores Hayden [14]); attention to women’s safety in urban landscapes and public spaces, proposing safe and inclusive design suggestions (e.g., Elizabeth Wilson [15]; Anastasia Loukaitou-Sideris [16]); a focus on how residential and community design supports women in balancing work and family roles (e.g., Sherry Ahrentzen [12]) and addressing gender needs in suburban design (e.g., A Forsyth [17]); analyses of how architectural modernization affects women’s consumer culture (e.g., Gabrielle Esperdy [18]), addressing gender biases in urban planning (e.g., Leslie Kern [19]) and advocating for more inclusive and equitable urban spaces; and calls for increased female participation and representation in the architecture industry and consideration of gender and inclusivity in design (e.g., Despina Stratigakos [20]; Nina Rappaport, [21]). These studies collectively demonstrate the trend of feminist architecture in pursuing gender equality and social inclusivity.
This section reviews the genealogical studies of feminist architecture across multiple countries, encompassing research findings from the United States, the United Kingdom, Australia, and multinational teams, as shown in Table 3. These studies span from the 19th to the 21st century, delving into the professional trajectories, social impacts, and significant contributions of female architects in modern architecture and design. Scholars like Karen Burns from Australia challenge traditional narratives of women’s architectural history through transnational research projects. At the same time, Annmarie Adams from Canada focuses on the close relationship between gender and the architectural profession. Research by Madhavi Desai in India reveals the complex relationship between female architects and modernism. Doris Cole from the United States provides a unique historical perspective on North American female architects.
Building on this, this paper chooses the development of feminist architecture in both Chinese and Western contexts as a comparative research perspective based on the following considerations: First, as the core of the East Asian cultural sphere, localized research on feminist architecture in China is relatively scarce and needs to be expanded and deepened. Second, comparing Chinese and Western contexts can help reveal the commonalities and differences in feminist architecture across different cultural settings, showcasing diverse strategies, design philosophies, and social impacts in addressing gender discrimination and professional barriers. Finally, through comparative studies, this study can present a more comprehensive view of the contributions of global female architects and promote cross-cultural theoretical exchange and practical collaboration, jointly advancing the vigorous development and widespread dissemination of feminist architecture worldwide.

3. A Genealogical Retrospective on Feminist Architecture: 1850s–1960s

It is generally believed in academia that the development of feminism can be divided into three main stages: liberal feminism, radical feminism, and postmodern feminism. These stages represent distinct yet interconnected movements, where the viewpoints of various feminist schools intersect and influence each other. Analyzing the impact of feminism on modern architectural development or distinguishing the focal points of feminist architecture in different historical periods is central to genealogical research. Feminist architecture encompasses both the architectural practices of women and the evolution of the built environment from a female perspective [51,52]. It can also be described as the study of architectural discourse and construction activities from a feminist viewpoint [42]. The majority of research on this topic focuses on the period following the 1960s and 1970s, particularly exploring the connections between postmodernism and feminist architecture. Theoretical perspectives from this era often emphasize the study of female characteristics and the influence of the second wave of feminism.
This paper challenges the notion of limiting feminist architectural analysis to the postmodern context, suggesting that a broader perspective is necessary to fully understand its development. It proposes a re-evaluation of feminist architecture from both process-oriented and goal-oriented perspectives, arguing that earlier periods also offer valuable insights into the evolution of feminist thought in architecture. By examining the intersections of feminist theory and architectural practice across different historical contexts, this study aims to provide a more comprehensive understanding of the impact of feminism on the built environment. To clarify the research methods employed, the process-oriented approach relies on diachronic analysis, tracing the development of feminist architecture through significant social events, such as the two World Wars and the two waves of feminism. This method is well established, as seen in Doris Cole’s phased study of women’s architectural history. In contrast, the goal-oriented perspective focuses on tracing the origins of different feminist movements, similar to Dolores Hayden’s distinctions among various feminist thoughts in The Grand Domestic Revolution.

3.1. Process-Oriented Study—Evolution Through Social Development

According to Marxist feminism, gender inequality is fundamentally intertwined with class society, where women’s labor in both production and reproduction is exploited and oppressed [53], and is closely connected to economic structures. In this context, the different stages of the feminist movement’s development also represent a process of liberating productivity. From this perspective, the evolution of feminist architecture in conjunction with social development can be categorized into the following stages, based on levels of productivity and the progression of social relations: the mid-19th century to the outbreak of World War I, the period from 1914 to the 1950s, and from the 1960s to the present.

3.1.1. Mid-19th Century to Pre-WWI: The Emergence of Women’s Architectural Practices

In the mid-19th century, Western capitalist countries experienced the first and second Industrial Revolutions, bringing significant advancements in building technology and shifts in social ideologies. Influenced by Enlightenment thought and socialist movements, feminist theory began to mature. The first feminist movement aimed to equate domestic labor with social production and advocate for women’s equal rights in education and professions. Liberal and material feminism were the leading schools of thought during this period. Liberal feminism focused on collective rights, promoting fundamental rights, encouraging women to pursue architectural education, and establishing women’s rights institutions. Material feminism concentrated on women in the home, aiming to liberate those constrained by domestic production.
In architectural education and practice, from the 1860s onwards, the architectural education system in American universities became more established. In 1871, Cornell University began admitting female architecture students [54], and by 1900, the Massachusetts Institute of Technology allowed women to study landscape architecture, a first for the field in the US [55]. In Europe, the Helsinki University of Technology in Finland admitted female students in 1888, followed by other European countries gradually permitting women to study architecture. In addition, architectural societies also began accepting female members, with the American Institute of Architects (AIA) admitting its first female member, Louise B. Bethune, in 1888 [56] and the Royal Institute of British Architects (RIBA) following with Ethel M. Charles in 1898 [57]. Despite these advancements, women often participated in architectural practices as patrons or tracers in architectural firms. They faced significant limitations due to the lack of property rights for married women, which restricted their professional independence. During this period, women architects began to design influential public buildings, such as British architect Hilda Mason’s St. Andrew’s Church, the first concrete church in the UK, which showcased an innovative use of materials and design principles. Similarly, American architect Sophia Hayden’s Women’s Building at the Chicago World’s Fair in 1893 was a significant milestone, providing a prominent platform for showcasing women’s contributions to architecture and the arts [58].
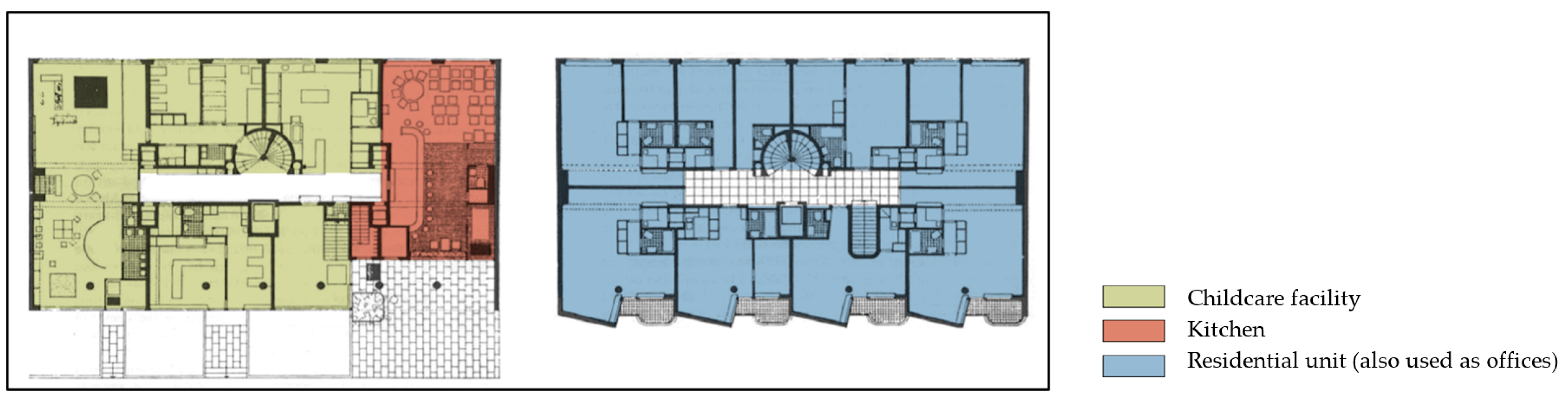
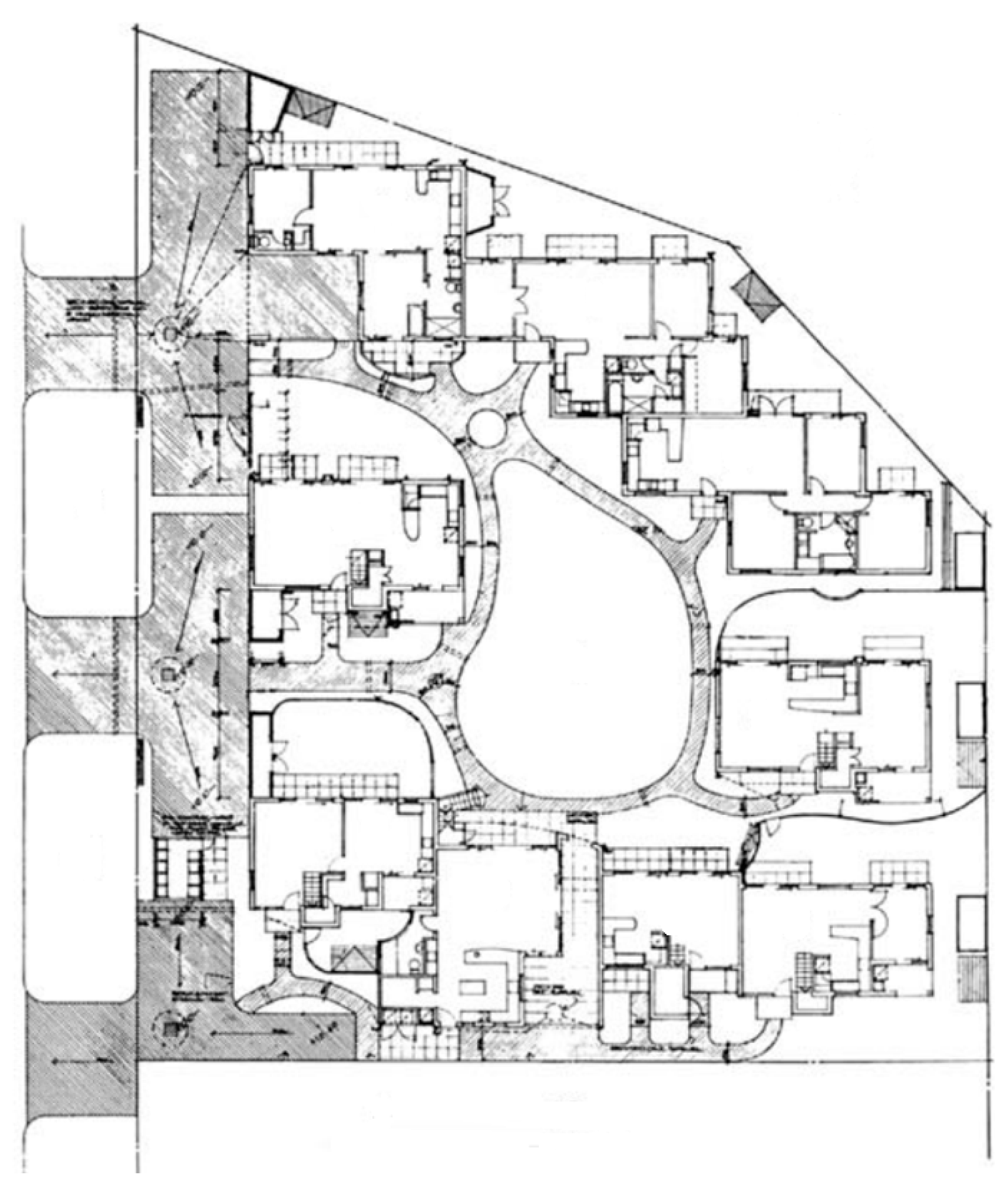
From the perspective of the relationship between gender and space, feminist architects during this period attempted to separate women-related spaces such as kitchens, dining rooms, and childcare areas from residential designs (Figure 4). In terms of kitchens and dining rooms, in 1890, American architect Leonard E. Ladd designed an improved community prototype in Philadelphia, characterized by a community consisting of 24 units without kitchens, with a public kitchen arranged along the corridors. Regarding childcare spaces, they can be categorized into independent, layered, and mixed arrangements. Independent arrangements refer to facilities within the community for communal use; for example, in the cooperative community designed by American architect Mary Coleman Stuckert in the 1890s, childcare facilities became central alongside other public amenities [59]. Layered arrangements often distinguish public service spaces from residential areas by placing them on lower or semi-basement floors, as seen in the cooperative workers’ housing designed by British architect E. W. Godwin in 1874. Mixed arrangements refer to childcare facilities integrated with residential units on the same floor. Generally, early childcare facilities had lower requirements for light and ventilation, often disturbing residents, as seen in the rental apartments introduced by the Tenement House Building Company in the 1880s. This period also saw the emergence of female-oriented public buildings designed to address the needs of women and children, such as maternity hospitals and childcare centers. A notable example is the Familistère [60], an early model of a modern childcare center designed by French architect Jean-Baptiste André Godin in 1859. Godin’s design incorporated innovative features to create safe and nurturing environments for children, reflecting the growing awareness of women’s roles in child-rearing and early childhood education. Additionally, the architectural design of commercial spaces began to reflect gendered considerations. Establishing the first department store in the US in the 1880s was a landmark event in retail architecture [61]. These stores prioritized spaces catering specifically to women’s shopping needs, featuring amenities such as rest areas, tea rooms, and ladies’ lounges. This focus on creating comfortable and inviting environments for female shoppers highlighted the evolving understanding of women as significant consumers.

3.1.2. Interwar Period to the 1950s: Suppression and Stagnation of Women’s Architectural Practice

During this phase, labor shortages in wartime allowed women to enter previously male-dominated fields, including architecture, creating more opportunities for women architects [63].
In architectural education and practice, schools began admitting women to maintain adequate enrollment. For instance, the Harvard Graduate School of Design (GSD) started accepting female students during World War II. Specialized architectural education for women emerged, such as the Cambridge School founded by Henry Atherton Frost in 1915 [64] and Germany’s Bauhaus, which promoted coeducation in 1919 [65]. Furthermore, the professional recognition of women architects grew, reflected in increasing memberships in architectural societies. Women-led organizations, such as La Confrérie Alongine in 1915 and the Association of Women in Architecture in 1948, established professional standards from a female perspective. Female architects typically engaged in architectural design in two ways: by accepting commissions from women’s organizations—such as Julia Morgan, who was commissioned by the Young Women’s Christian Association (YWCA) to design numerous public building projects during the war [66]—or by collaborating with male architects, such as Marion Mahony with Frank Lloyd Wright and Lilly Reich with Mies van der Rohe [67]. This era also saw women architects designing a broader range of public buildings, including hospitals, university facilities, offices, and museums. Notable examples include Lina Bo Bardi’s São Paulo Museum of Art in Brazil [68], a landmark of modernist architecture that showcases her innovative design approach. British architect Jane Drew managed large-scale architectural projects independently, highlighting the growing recognition and capabilities of women in the field [69].
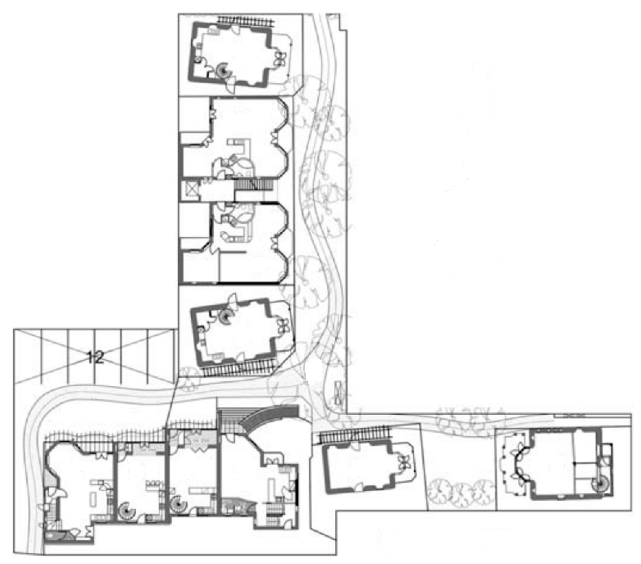
From the perspective of gender and space relations, feminist architects of this period persisted in redefining the female role in domestic matters through the design of community and residential architecture, striving to address these issues by incorporating workspaces with childcare facilities. Dutch architect Otto Fick was the first to propose a residential design that combined workplaces with childcare facilities in 1903. Following this, Swedish architect Sven Markelius designed several residences based on this concept, effectively organizing kitchens, living areas, and office or childcare spaces within the same dwelling (Figure 5). This juxtaposition challenged the traditional separation of work and home environments, serving as a spatial prototype for Dolores Hayden’s HOMES (Homemakers Organization for a More Egalitarian Society) architectural practice in the 1960s and SOHO (Small Office and Home Office) practices.

3.1.3. 1960s to the Present: Towards the Construction of a Neutral Order of Feminist Architecture

The 1960s were characterized by intensified social and economic tensions, challenging traditional rationalism and giving rise to postmodernism and the second wave of feminism, which brought feminist architecture into academic discourse.
In architectural education and practice, legal advancements, such as the Civil Rights Act of 1964, indirectly enhanced the rights of women architects [70], encouraging educational institutions to admit more female teachers and students. At the same time, numerous women-focused architectural organizations emerged (Figure 6). During this period, radical feminism, ecofeminism, and cultural feminism became the dominant influence, shaping the theoretical framework of feminist architecture. Female architects attempted to construct theoretical systems in the field of public architecture that aligned with feminist principles. Their research perspectives included public safety, urban design, and buildings associated with women. Specific manifestations of these developments include the following:
(1)
Emphasis on women’s safety in urban open spaces: Concepts such as Crime Prevention Through Environmental Design (CPTED) aimed to prevent crimes against women by designing and adjusting the environmental layout of urban open spaces [71]. While CPTED has played a positive role in enhancing women’s sense of security in urban spaces, it may also lead to over-surveillance and “securitized” designs, restricting women’s freedom of movement and the vibrancy of public spaces. Women may feel monitored and constrained, affecting their comfort in public spaces.
(2)
Development of female-centered design methods in public architecture: Influenced by the postmodern critique of rationalism, design shifted from purely rational constructs to a focus on bodily perceptions and individual consciousness. For example, Denise Scott Brown’s participation in the design of Franklin Court in 1976 incorporated interactive elements that engaged the body and space in historical understanding [72]. Although the postmodern critique of rationalism prompted a more embodied and conscious approach to architectural design, it may also result in designs that prioritize formal innovation over practical functionality and sustainability. Additionally, an excessive emphasis on individual experience may diminish the universality and inclusivity of architecture as a social public product.
(3)
Expansion of architectural types and space usage related to women: In the 1970s, shopping malls increased across the United States. The emergence of pedestrian malls in the 1960s transformed family-oriented shopping centers into entertaining urban parks, diversifying women’s shopping and leisure spaces [73]. Concurrently, the rise of the women’s health movement led to the establishment of specialized buildings serving women, such as shelters for battered women, rape prevention centers, and urban birthing centers [74]. The proliferation of shopping malls, pedestrian streets, and women’s health facilities provided women with more shopping and leisure spaces, and it may also have exacerbated commercialization and consumerism, neglecting other needs of women in public life, such as education and political participation. The over-development of shopping centers may lead to a homogenization of city center functions, reducing the diversity and vibrancy of public spaces.
(4)
Impact of anti-feminists on public architecture practice: In the 1980s, the neo-conservative administration led by President Reagan advocated for traditional family values and resisted the social reforms promoted by feminism. Anti-feminists believed that government-provided social services, such as daycare centers and shelters, constituted inappropriate interference in the private family domain [75]. Consequently, the U.S. government reduced funding for these facilities, limiting women’s development in the public sphere. However, this impact is not irreversible. Through social advocacy and policy adjustments, the importance of support services for women can be gradually restored and enhanced.
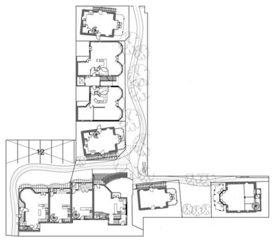
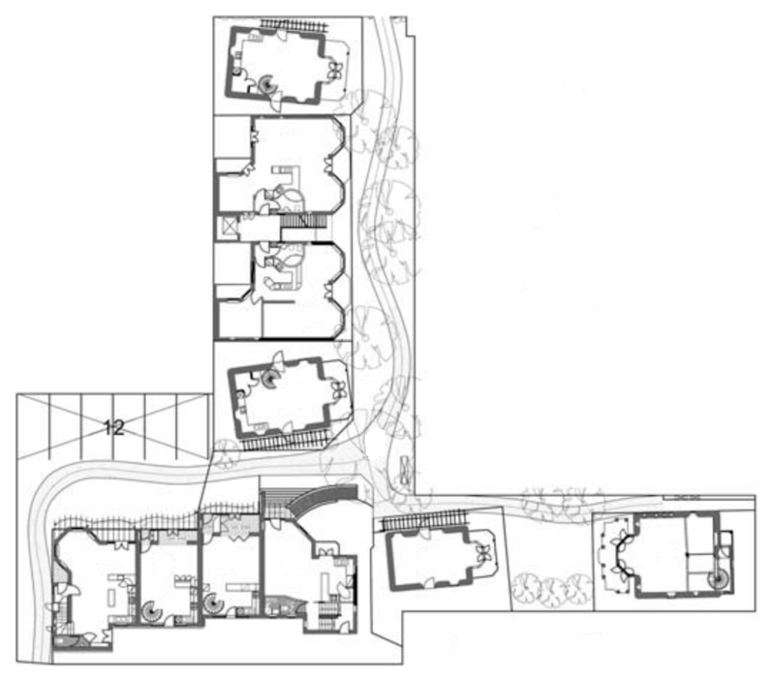
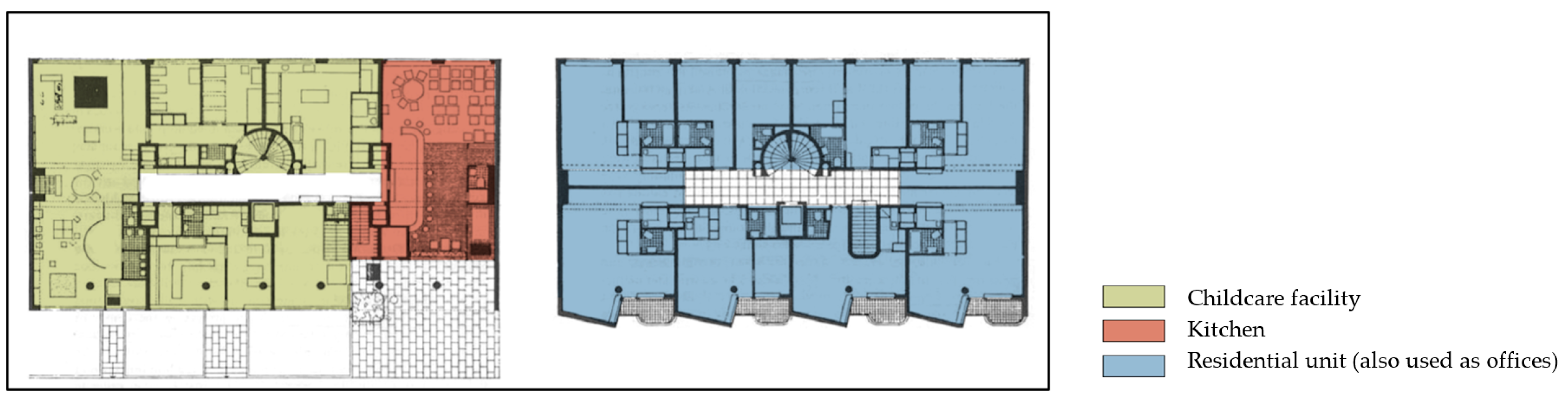
From the perspective of the relationship between gender and space, feminist architects during this phase began to prioritize spatial designs tailored for marginalized female groups. These groups, distinguished from women in conventional family structures, possess distinct housing needs stemming from their unique social circumstances. Exemplary projects, such as Nina West’s Fiona House (Figure 7), embody design elements explicitly catering to single mothers. The structure encompasses two distinct sections: one dedicated to single mothers and their children and another featuring an autonomous childcare facility along with an outdoor play area for the kids. The residential component is seamlessly connected by a central corridor, linking the living units on both sides.

3.2. Purpose-Oriented Study—Based on Different Feminist Ideologies

According to Marx and Engels, the feminist movement aims to dismantle patriarchy and abolish private property [76]. In this context, one of the goals of feminist architecture can be understood as the elimination or weakening of the household as an economic unit [77]. The development of feminist architecture can be seen as a series of steps toward achieving this objective, which can be divided into three main stages: In the initial stage, the socialization of housework, led by material feminism, focuses on liberating family space; In the development stage, radical feminism emphasizes community and urban planning by creating women’s apartments (Figure 8), communities, and feminist cities; In a further development, postmodern feminism guides the system construction of a feminist architecture.

3.2.1. The Socialization of Domestic Labor Led by Material Feminism

Material feminists advocated restructuring household spaces to socialize domestic tasks. This shift is rooted in the desire to elevate the status of women’s domestic contributions through innovative residential designs and shared community functions. The following explores how these changes have manifested in residential buildings, mainly through the evolution of kitchen design, the introduction of female-oriented thinking in the design of residential projects, and the reimagining of community and neighborhood relations in response to shifting family dynamics.
In the design of residential buildings, this change is manifested through the clustering and integration of service facilities. Since the Industrial Revolution, the transformation of social and economic structures has altered traditional family relations. Material feminists advocated for the Community Cooperation Concept, focusing on the socialization of domestic labor. These primarily consisted of cooperative housekeeping groups, like the Homesgarth residential project (Figure 9) [78]. Improvements and innovations in modern kitchen spaces also played a significant role. Material feminists’ focus on domestic spaces spurred in-depth research into kitchen design. American designer Catherine Beecher pioneered kitchen design by analyzing women’s needs and using ergonomics to improve kitchen layouts, reducing labor time [79]. Her designs are considered precursors to modern kitchens. Later, the kitchen became a focal point in feminist architectural studies, with pioneers like Christine Frederick and Margarete Schütte-Lihotzky leading innovations in kitchen workflows and furniture design [80]. Later on, with the rise of the second feminist movement, material feminists began to advocate equal rights and responsibilities in professional and family life. In the 1960s, Dolores Hayden’s Homemakers Organization for a More Egalitarian Society (HOMES) aimed to create work opportunities within residential areas. HOMES featured daycare and domestic service centers, meeting community needs and providing employment for women, thus socializing domestic labor. Nina West’s Fiona House [14] for single mothers combined housing with childcare facilities, addressing both employment and childcare needs. Organizations such as the Women’s Development Corporation (WDC) [81], founded in 1979, have developed housing projects for single mothers, designing units to accommodate women with unique identities.

3.2.2. Women’s Apartments, Women’s Communities, and Feminist Cities Led by Radical Feminism

Radical feminism has profoundly shaped the development of women’s living spaces, communities, and urban planning. This approach critiques traditional gender biases inherent in residential spaces and strives to create environments that better meet women’s needs.
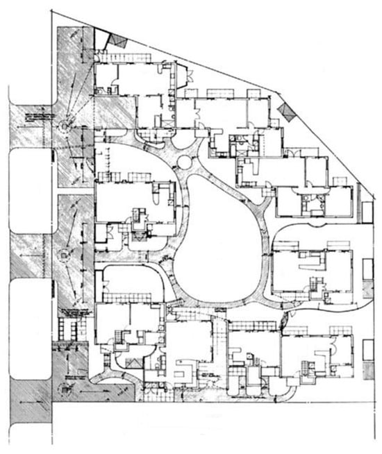
The design of women’s apartments critiques traditional residential space gender biases, aiming to create living spaces that meet women’s needs and foster a female-friendly environment. The Jane Addams Hull House in Chicago serves as a pioneering example. This social reform experiment provided accommodation, education, and community services for working-class women, significantly improving their living conditions and offering vocational training [82]. The Hull House model highlighted the potential of residential spaces to support women’s empowerment and self-sufficiency. The idea of women’s communities or community design based on feminist thinking can be traced back to late 19th-century London, where women’s groups established supportive environments to enhance women’s social status and autonomy [83]. These community designs incorporate feminist architectural thinking to separate women’s workspaces, such as childcare and kitchens, from the household. Figure 10 summarizes several community planning models based on different cooperative design concepts during this period. It can be seen that the redistribution of domestic space is still a critical factor in leading urban community planning. Radical feminists in the 1960s further advanced these ideas by advocating for eliminating traditional family functions and establishing new moral and social standards. An example is Joan Pepper’s Adobeland, a women’s community where female residents managed and operated the community, reflecting feminist principles in communal living [84]. The concept of feminist cities emerged from the 1970s feminist movement, driven by the need to address urban planning’s gender biases. Urban planner Jane Jacobs’s “Eyes on the Street” theory emphasized the importance of active street life and community involvement in improving safety and comfort and promoting gender equality [85]. Jacobs’s ideas have significantly influenced the development of inclusive and equitable urban spaces. Her emphasis on community participation and human-scale urbanism has been instrumental in creating urban environments that are safer and more accommodating for all genders.
Radical feminist-led initiatives in women’s apartments, communities, and feminist cities provide crucial references for promoting gender equality in urban development. These efforts underscore the importance of considering women’s unique needs in urban planning, leading to more equitable and supportive living spaces for everyone.

3.2.3. Eco-Friendly City Planning Solutions and Gardens Movement Led by Ecological Feminism

In the 1960s and 1970s, ecofeminism emerged as a significant social movement, emphasizing the close relationship between women and nature and aiming to address the interconnections among the built environment, nature, and gender. Ecofeminism advocates for applying an ethic of care in urban design and economic development to resolve potential conflicts between ecological and feminist agendas. [86] It calls for a reimagining of urban spaces and economic structures by enhancing the interconnectedness, flexibility, and diversity of individuals and society. Ecofeminism posits that the home is not merely a private space but also a site for political, economic, and social activities, advocating for the dismantling of public–private divides and extending care throughout the urban fabric and public realm in pursuit of true urban sustainability and social justice. For example, Christie Walk, an ecological urban project, showcases ecofeminism’s pursuit of embeddedness, flexibility, and diversity in the concept of home through designs that incorporate high-density mixed-use, on-site energy generation, and rainwater harvesting. Pinakarri reflects feminist ideals of social justice in urban spaces through community collaboration, resource sharing, and diverse tenancy types (Figure 11 and Figure 12). [87] These examples not only challenge traditional public–private boundaries but also extend care across the community, providing support for achieving urban sustainability and social justice.
Additionally, the Gardens Movements represent another critical practice advocated by ecofeminism during this period. Liz Christy’s “Urban Gardening Movement” in New York became a landmark manifestation of ecofeminism within ecological landscapes. [88] This movement transformed neglected urban lots into vibrant community gardens, beautifying the environment while fostering social revitalization and cohesion among residents. Historically, environmental movements have faced criticism for being dominated by individuals—particularly upper-class leaders focused on conservation and recreational interests—whose concerns often overlook the real needs of marginalized and oppressed groups. As James Cone pointedly remarked, “White people care more about the endangered whale and the spotted owl than they do about the survival of young blacks in our nation’s cities” [89]. In response to such critiques, the Modesto Flores Garden in New York exemplifies ecofeminism’s principles, emerging from the genuine needs of the community rather than imposed from above. This garden has become a central hub for community celebrations and cultural activities, helping new immigrants reconnect with their cultural heritage in New York’s multicultural landscape. In contrast, community gardens are often viewed in the context of ecofeminism as feminist spaces that challenge gendered social norms and alter personal identities. As “safe spaces”, community gardens enable women to escape threats and experiences of marginalization [90].

3.2.4. Constructing a Feminist Architectural System Led by Postmodern Feminism

Postmodern feminist architecture redefines the field through female perspectives, breaking away from traditional male-centric narratives and emphasizing individual differences and cultural diversity. Given the complexity of feminist thought during the postmodern era, this section analyzes the Feminist Architectural System through the lens of gender subjects and space, summarizing it into several key aspects:
(1)
The relationship between space and gender identity: Juhani Pallasmaa argues that architecture should express individual and cultural identity through sensory experiences. He emphasizes the importance of tactile and visual elements, making architecture an extension of both personal and cultural identity [91].
(2)
Emotional expression of gender subjects in space: Deborah Fausch explores how feminist architectural design prioritizes emotional expression and user experience in spatial configurations [92]. She notes that feminist architects focus on creating spaces that reflect and support the diverse identities of gender subjects, transforming spaces into vessels for cultural and gender expression.
(3)
Hierarchical relationships between gender subjects and space: French feminist philosopher Anne Dufourmantelle and others examine the social power dynamics embedded in architectural spaces, deconstructing power structures to reveal how social power is distributed and exercised [93].
Practical applications of these theoretical frameworks can be seen in various projects worldwide. For instance, Restorative Ground in New York, designed by the feminist architecture collective WIP Collaborative, aims to create an inclusive and accessible space with designated areas for play, work, and rest. The project’s focus on interdisciplinary, democratic design reflects feminist ideals by prioritizing accessibility, collaboration, and the diverse needs of its users. Similarly, Muf architecture/art, known for its feminist approach that challenges traditional building codes, collaborates with local communities and integrates art into public spaces. Their design of Barking Town Square embodies feminist architectural principles by creating inclusive, social, and interactive environments that cater to a diverse urban population. Organizations like Matrix and Part W are dedicated to promoting feminist architecture and design, emphasizing gender equality, inclusivity, and community participation. By incorporating gender and cultural analysis, postmodern feminist architecture broadens research scopes, introduces innovative design concepts, and influences urban planning. This approach fosters the development of inclusive and equitable urban spaces, contributing to a more gender-neutral urban environment. Through these efforts, postmodern feminist architecture redefines architectural practice and plays a crucial role in advancing gender equality and societal progress.
Overall, the development of feminist architecture based on different feminist ideologies can be categorized into three primary strands in its initial phase: the conflict between social gender and biological sex, the harmonization of social gender and biological sex, and anti-feminist perspectives. Each strand focuses on different aspects of architectural activities.
(1)
Opposition between social gender and biological sex: Liberal and radical feminism represent this strand, which emphasizes women’s practice and education (liberal) and the creation of women-specific facilities (radical). During the postmodern period, this perspective began to merge with the integration strand, moving towards establishing a neutral order in urban spaces.
(2)
Integration of social gender and biological sex: This strand, which includes material feminism and social feminism, seeks breakthroughs in family spaces and domestic environments. Addressing the intersection of social and biological gender promotes restructuring community spaces to support gender equality, contributing to the development of gender-neutral urban spatial orders in the postmodern era.
(3)
Anti-feminism: Anti-feminist movements have resisted women’s education and practice at various stages, impacting the integration of feminist principles in architectural practice. This strand has posed significant challenges to the advancement of feminist architecture, often attempting to maintain traditional gender roles and limit women’s participation in the field.
Understanding these three strands allows for a better grasp of the diverse approaches and challenges within feminist architecture and their influence on the evolution of architectural practice and theory.

4. The Development of Feminist Architecture in Chinese Context

With the advent of the Industrial Revolution and economic globalization, feminist movements gradually swept across the world, each developing unique local characteristics. This paper selects China as a case study for comparing Western and Chinese feminist architecture due to the distinct nature of its feminist development. Unlike in the West, where feminism has seen broad social participation across different classes, the evolution of feminism in China has been marked by a strong class bias. Elite intellectuals and the influence of the state apparatus during specific historical periods have mainly driven it. In architecture, this is reflected in the prominence of individual female architects and the realization of national objectives rather than the formation of feminist collectives or organizations. This section will explore the similarities and differences between Western and Chinese feminist architecture from the perspectives of ideological evolution, women’s professional practice in architecture, and gendered spaces.

4.1. The Evolution of Feminist Thought in China and Its Connection to Women’s Architectural Practice

This section will analyze the development of feminist thought in China by dividing it into key historical periods, such as the Hundred Days’ Reform, the May Fourth Movement, and the Cooperative Movement. It will also make an interaction between Chinese feminist thought and representative feminist movements in the West during the same period. Additionally, it will examine the development of women’s architectural education and practice against this backdrop.

4.1.1. Liberal Feminist Thought in the Hundred Days’ Reform: The Core Demand for Equality

The rise of the Hundred Days’ Reform in the late 19th and early 20th centuries marked a pivotal moment in the evolution of feminist thought in China. Influenced by Western ideas of liberalism and natural rights, Chinese reformists focused on women’s rights, advocating for gender equality. In The Book of Great Unity, Kang Youwei argued that while men and women differ physiologically, they should be equal regarding humanity and rights. This thinking signaled the emergence of liberal feminism in China, with a strong emphasis on legal gender equality and the belief that women should have the same opportunities as men in politics, economics, and education. Reformist intellectuals such as Liang Qichao and Tan Sitong also championed educational reform, believing that improving women’s education was crucial to achieving gender equality [94]. Although the practical impact of early liberal feminist thought was limited, it laid a vital foundation for future feminist movements by raising awareness and fostering intellectual discourse.
Women’s architectural education and practice also made notable strides during this period. Missionary-run girls’ schools began to emerge in treaty port cities. In 1844, the English Presbyterian Society for Promoting Female Education in the East sent missionary A. Deshi to Ningbo, where she established China’s first girls’ boarding school, Yongjiang Female Middle School, marking the start of formal education for women. Although these schools were initially created for religious purposes, they gradually incorporated modern subjects, including practical architectural knowledge. Since universities were not yet open to women, missionary schools became the primary means for women to access higher education. In 1898, reformist Jing Yuanshan founded the Jingzheng Girls’ School, China’s first private girls’ school, further advancing female education [95]. By 1907, the Qing government officially approved regulations for establishing girls’ primary and normal schools, marking the first legal recognition of women’s education in China. The Gardening Textbook, published by the Commercial Press in Shanghai in 1915, is the earliest recorded landscape design book intended for female students. These developments not only advanced women’s education but also laid the groundwork for the emergence of female professionals, including architects, in the years to come.

4.1.2. Material Feminist Thought in Anarchist Practice: Challenging the Traditional Family Structure

In contrast to the moderate approach of liberal feminism within the Reformist movement, anarchists advocated for a radical upheaval of the traditional gender system. In the early 20th century, as anarchist thought began to spread into China, some intellectuals viewed women’s liberation as an integral part of the broader social revolution. They argued that women should completely free themselves from the constraints of family and marriage to achieve absolute gender equality. Anarchists believed that the family and marriage institutions were the root causes of women’s oppression, and thus, true liberation could only be achieved by abolishing these structures. Figures such as Liu Shifu and Liu Shipei, prominent anarchists, published numerous articles related to women’s liberation in journals like Tianyi Bao and New Century, addressing radical issues such as women’s labor and the abolition of marriage [96]. The anarchist vision of women’s emancipation boldly challenged the traditional gender order, seeking to achieve gender equality through radical social transformation. This ideology peaked around the May Fourth Movement and profoundly influenced the early stages of China’s women’s movement.

4.1.3. Marxist Feminist Thought After the May Fourth Movement: Dual Liberation of Class and Gender

After the May Fourth Movement, Marxist feminist thought in China gradually gained prominence, emphasizing the dual liberation of class and gender. Intellectuals increasingly recognized the deep connection between gender and class oppression, arguing that women’s subjugation was not merely a result of gender discrimination but also entrenched in the capitalist economic structure. From a Marxist historical materialist perspective, women’s liberation was considered essential to the broader proletarian struggle, with true emancipation achievable only through participation in productive labor and class struggle. Engels’ argument that “the degree of female emancipation is the measure of general emancipation” was widely cited, highlighting that women’s liberation required a return to public labor [97]. Guided by these principles, Marxist feminism in China advocated that women should not be restricted to domestic roles but should actively engage in social movements. This ideology was applied practically during the social movements of the 1920s and 1930s. The Communist Party of China increasingly embraced Marxist feminist ideas, promoting gender equality as a fundamental aspect of revolutionary practice. Women’s emancipation was seen not just as a cause for women but as an integral part of the broader proletarian revolution.
During this period, discussions about gender equality in education progressed, and some universities began admitting women, enabling them to receive comprehensive architectural training. In 1920, Peking University became the first to lift its ban on female students, allowing women access to formal education and facilitating their entry into architecture [98]. Notable female architects, including Lin Huiyin and Zhang Yuquan, emerged during this time. In 1928, Lin Huiyin co-founded the Department of Architecture at Northeastern University in Shenyang with her husband, Liang Sicheng [99]. In 1930, the Department of Architecture at the College of Engineering, National Central University in Nanjing, admitted its first cohort of female students, including Zhang Yuquan. In 1931, Lin Huiyin became the first female member of the Society for Research in Chinese Architecture, and in 1933, she became the first female member of the Architectural Society of China. In 1936, Lin Huiyin obtained China’s first China’s architectural technician license, marking the official recognition of women in architecture. In 1942, Zhang Yuquan took over Dadi Architectural Firm, becoming China’s first independent female architect.
Overall, the development of women’s architectural education and practice during this period was closely tied to intellectual elites such as Lin Huiyin and Zhang Yuquan. Their success was partly due to the socio-political climate of the time when class struggle and national liberation movements in the 1920s to 1940s provided women with more opportunities to engage with society. On the other hand, their achievements were also supported by influential male architects like their husbands, Liang Sicheng and Fei Kang. However, it is essential to note that opportunities for women to receive architectural education and practice were still limited to a small group of affluent intellectuals. During this period, less than 20% of the Chinese population had access to education, and the proportion of women who received architectural education and later practiced in the field was even rarer. This is evident from the low percentage of female admissions in the architecture departments at Northeastern University in Shenyang and Central University in Nanjing over the years.

4.1.4. Socialist Feminist Practice After the Founding of New China: The Degendering of Mass Production Society

The founding of New China in 1949 marked the beginning of a new era of socialist revolution and construction, during which socialist thought was widely practiced and promoted. Mao Zedong’s famous slogan, “Women hold up half the sky”, encouraged women to step out of the domestic sphere and into the workforce, driving the progress of gender equality in practical terms [100]. During this period, the state implemented legislation and policies to ensure women’s equal economic, political, and social rights. The 1954 Constitution of the People’s Republic of China explicitly enshrined gender equality, and laws like the Marriage Law abolished feudal marriage practices, ensuring women’s equal status in the family and society. The government actively promoted women’s participation in social production alongside the 1954 collectivization movement and the subsequent People’s Commune movement. Women played significant roles in factories, agricultural production, and political spheres, becoming critical actors in national governance. Their liberation was not just about achieving gender equality but also about a comprehensive restructuring of social hierarchies and power relations through a socialist revolution. Despite the rising participation of women in the labor force, opportunities for women to engage in higher architectural education were limited. As a result, women’s involvement in architecture during this period was significant as laborers, with few advancing into design and planning roles, which required higher educational qualifications. Additionally, the state-driven economic planning led to a shift in the architecture sector from private practice to collective design and construction managed by the state. Female architects were primarily tasked with executing national planning directives, leaving little room for innovation, and architectural styles leaned toward functionality and standardization. For instance, Lin Huiyin participated in the design and construction of the Monument to the People’s Heroes in Tiananmen Square in 1951 [101], and Wang Weiyu contributed to the design of the Mao Zedong Memorial Hall in 1976.
The nationwide restructuring of universities in 1952 led to a “science-over-humanities” trend in Chinese academia, significantly weakening the humanities and social sciences. At the same time, disciplines like architecture and landscape design thrived in response to the era’s demands. In 1951, the “Landscape Group” was officially established within the Department of Construction at Tsinghua University, marking the first time the landscape discipline stood independently in China, with the inaugural class including several female students [102]. With movements like the People’s Commune and the Great Leap Forward, the following years saw the rapid expansion of universities in China and a notable increase in female students. During this period, pioneering female architect Luo Xiaowei established the teaching of foreign architectural history at Tongji University and played a crucial role in modern architectural history and education. Her teaching and research deepened the understanding of traditional and contemporary Chinese architecture and influenced gender perspectives and professional practices in the Chinese architectural field. However, by 1966, the Cultural Revolution severely impacted architectural education and career development, particularly for female architects. Many were sent to rural areas for labor reform, which disrupted or even entirely halted their careers. Around this time, Mao Zedong’s “May 7th Directive” led to the termination of landscape programs, and Tongji University’s establishment of the “Commune 57” transformed it into a political stronghold. Teaching was merged with practical work on construction sites, completely negating the foundation of systematic theoretical education. The disappearance of architectural programs quickly spread nationwide.
It was not until the late 1970s that the gender structure in the Chinese architecture industry began to shift. Overall, the development of feminist architectural theory in China during this period was primarily subsumed and destroyed by the broader socialist movement. In particular, the 1952 nationwide restructuring of universities, which led to the massive downsizing of social sciences, indirectly contributed to the undermining of feminist architectural theory.

4.1.5. Post-Reform and Opening-Up Era: Exploring Feminist Architectural Practices

In the Post-Reform and Opening-Up Era, there were numerous design practices embodying feminist principles, such as the China National Women’s Federation building located on Chang’an Street in Beijing. This building, initiated in the early 1990s, features a unique curved design that symbolically conveys the profound meaning of “women hold up half the sky”. Although curved structures are not uncommon in Beijing’s urban landscape, this building has sparked widespread social discussion due to its close association with women’s themes. Some critics argue that its soft lines showcase a feminine aesthetic value in the urban landscape, likening it to a brilliant gem on Chang’an Street. In contrast, others contend that its design overly emphasizes feminine characteristics [50].
In the context of modernist architecture, expressing feminist principles through pure architectural language presents a significant challenge, yet this has not deterred architects from attempting to incorporate abstract feminist ideas into their designs. A notable example is the North Yard scenic area on the Tsinghua University campus. In celebration of the university’s 90th anniversary, architect Wang Lifang transformed it into a garden area serving the student community. The design of North Yard is known for its simplicity while successfully creating a pleasant environment, with its design philosophy embodying the essence of feminism. It adheres to a people-centered approach, avoiding an intentional pursuit of unusual shapes and instead focusing on enhancing the users’ spatial experience and comfort [90]. The design cleverly utilizes existing topographical features, such as mounds, transforming them into unique landscapes. The internal layout of the area is diverse, featuring open plazas for gatherings and quiet paths for reflection, thereby meeting the varied activity needs of users.
Overall, due to the Chinese architectural field’s long-standing emphasis on visual impact and scale, buildings that prioritize sensory experience and daily life have often been marginalized or overlooked. As society evolves towards greater democracy, equality, and respect for individual life values, traditional, visually oriented architectural expressions that primarily serve the social elite have gradually revealed their limitations. While the connection between feminine forms and their underlying values may have frayed over history, feminist principles continue to offer architects a powerful source of inspiration, enabling them to create more humane, diverse, and accessible architectural environments that resonate with the daily lives of ordinary people.

4.2. Exploring Gendered Space in China Through the Relationship Between “Residence and Courtyard”

Unlike Western architectural theories, which focus on the dichotomy between public and private spaces, the exploration of gendered spaces in traditional Chinese society revolves around the relationship between “residence and courtyard”. This relationship reflects the allocation and use of domestic spaces, which are closely tied to the division of gender roles. Beginning in the Zhou Dynasty, a hierarchical gender order favoring male dominance was firmly established, and the separation of gendered spaces became an integral social norm. The architectural forms represented by “residence and courtyard” resulted from functional spatial divisions and served as mechanisms to uphold gender hierarchies and reinforce feudal ethics. The clear distinction between “inside and outside” within courtyard spaces concretized and institutionalized these gender roles. This section examines gender issues within residential spaces across different historical periods, exploring how spatial divisions influenced women’s social status and family roles. Through the lens of gendered spaces, it identifies potential factors behind the divergent evolution of feminist architecture in Western and Chinese contexts.

4.2.1. Ming and Qing Dynasties: The Breakthrough and Reconstruction of “Residence and Courtyard”

During the Ming and Qing Dynasties, urbanization and the development of the commodity economy allowed women to engage in financial activities, particularly in the cotton and handicraft industries, where their labor gained recognition. This shift altered their status within the family and society. The rise of the “talented women” culture gave some women opportunities to break free from the confines of traditional ethics, granting them more space for intellectual and cultural development [103]. However, courtyard spaces continued to play a significant role in reinforcing the gender order, and gender segregation within family structures persisted. Although women in the scholar-gentry class could roam private gardens, compose poetry, and enjoy nature, this freedom remained confined within the closed walls of the gardens, still subject to feudal ethical constraints (Figure 13 and Figure 14). For example, in Dream of the Red Chamber, Cao Xueqin describes how women of a feudal household enjoyed relative freedom within the Grand View Garden. Still, this freedom was limited to the hidden spaces of the courtyard and could not break the gender restrictions of family and society. Elements like walls and flower screens in garden design not only served as gender boundaries but also provided women with limited spaces for activity, offering a constrained sense of freedom. However, this freedom remained a minor breakthrough within the confines of the garden, far from achieving true gender equality.
Some ethnic minorities in China also present examples of breaking traditional gender and space norms, such as the Tulou, particularly among the Tujia people. For instance, the “Huaiyuan Tulou” functions similarly to Soviet-era communal housing units, featuring communal kitchens facilitating efficient resource utilization (Figure 15). This spatial design can be seen as an early concept of managing household kitchen functions at the community level, thereby innovating the relationship between gender and space.

4.2.2. Republic of China Era: Gradually Escaping the Constraints of “Residence and Courtyard”

During the Republican Era, driven by the New Culture Movement and the influx of Western ideas, Chinese society began questioning and challenging the feudal gender order. The New Village Movement played a significant role in dismantling the spatial constraints imposed on women by traditional courtyards [104]. In these New Villages, the increase in public facilities and the emphasis on collective living created more opportunities for women to participate in social activities, particularly in education, healthcare, and handicrafts. Women gradually moved beyond the confines of the inner courtyards and began to engage in the construction and use of public spaces. The designs of the New Village Movement deliberately focused on expanding public spaces, breaking the spatial limitations imposed on women by traditional family structures. Public facilities such as healthcare centers, schools, and cooperatives became central to women’s daily lives, offering them new opportunities for social interaction and involvement in collective affairs (Figure 16 and Figure 17). However, despite these changes, traditional gender divisions within the family persisted, and women’s primary roles continued to revolve around domestic responsibilities. This showed that the deeply ingrained influence of traditional gendered spaces had not been eliminated.

4.2.3. The Cooperative Movement and People’s Commune Era: Shifts in Gendered Spaces

The Cooperative Movement and People’s Commune of the 1950s marked a turning point in transforming gendered spaces in China. With the dismantling of the traditional family-based production system, women were encouraged to participate in collective labor and public activities [106], which redefined their roles in both the household and society. Establishing People’s Communes, featuring collective living arrangements such as communal dining halls and nurseries, alleviated women’s domestic responsibilities, fostering greater gender equality in social production. Additionally, new housing models, like “tube-shaped apartments”, (Figure 18), shifted focus away from private family spaces to public communal spaces, offering women expanded opportunities for public engagement. These structural changes reflected broader shifts in family dynamics and reimagined gender roles within public and private spheres. As women’s activities increasingly extended beyond the domestic realm, traditional gender segregation in family life gradually dissolved. The Cooperative Movement provided women with greater freedom and public participation and set the stage for ongoing transformations in gendered spaces.

4.2.4. The Influence of Western Social Trends on Feminist Design Techniques in “Residence and Courtyard”: Taking the Rococo Style as an Example

Western social trends have subtly influenced the development of feminist architecture in China. The Rococo style, which emerged in 18th-century Europe, not only reflected society’s pursuit of luxury and romance but also provided a platform for women’s participation in spatial design. For instance, Madame de Pompadour, an advocate and patron of Rococo art, promoted the integration of delicate fabrics and soft colors in the design, creating enchanting interiors that highlighted women’s aesthetics and lifestyles. Correspondingly, Chinese design also evolved during the same period. While influenced by Western styles, it retained a rich foundation in traditional culture. A notable example is the Summer Palace in Beijing, where the garden design incorporates curved elements characteristic of Rococo yet places greater emphasis on symbolic meaning and cultural connotation. The long corridors and stone bridges of the Summer Palace serve not only as pathways for visitors but also as embodiments of cultural exchange and natural beauty, reflecting a philosophical approach to space in Chinese design. Furthermore, in furniture design, the lightness and elegance of the Rococo style resonate with certain Chinese furniture pieces. For instance, the “Taishi chair” from the Qing Dynasty and the curved sofas of Rococo both exemplify a pursuit of comfort and aesthetics. However, the former prioritizes functionality and cultural heritage. This combination of function and beauty showcases a unique approach to Chinese design when absorbing foreign elements. Overall, the interaction between the Rococo style and Chinese design has enriched their respective artistic expressions and fostered a renewed recognition of women’s roles in the design field. Through borrowing and integration, both styles emphasize a balance between aesthetics and functionality in spatial design. This convergence represents a crucial cultural dialog in the history of feminist architecture.
Comparing gendered spaces in China and the West reveals distinct trajectories in feminist architectural development. In China, the transformation has been more gradual, aligning with first-wave feminism’s emphasis on equality, mainly through the Cooperative Movement of the 1950s. This contrasts with Western radical feminism, which stresses women’s unique characteristics. Post-1970s Reform and Opening Up in China further reduced the class-based tensions, shifting the focus toward a more inclusive Social Security System to achieve gender equality. Examining gendered spaces offers fresh perspectives on the localization of feminist architectural theory in China, emphasizing its unique historical and cultural context.

5. Discussion: Redefine the Essence and Scope of Feminist Architecture

Reviewing the entire history of feminist architecture in both Chinese and Western contexts reveals the underlying influences of political, economic, and cultural factors. Placing the issue of feminist architecture within the broader narrative of modern architectural development, this paper defines the essence and scope of feminist architecture as follows:
Research Focus: Feminist architecture can be analyzed through the dual lenses of opposition and integration concerning social gender and biological sex. From an oppositional perspective, feminist architecture challenges societal frameworks that define gender roles, as seen in the historical struggles for professional recognition, educational rights, and the establishment of feminist-centric cities and communities. Conversely, from an integrative perspective, feminist architecture addresses gender differentiation through spatial redesign, beginning with more inclusive residential spaces and evolving to encompass specialized environments such as pregnancy and prenatal care centers. In the postmodern era, feminist architecture has broadened its scope to tackle more significant issues, including safety and ecology, with the goal of creating a more neutral spatial order.
Driving Forces: The development of feminist architecture can be analyzed through two dimensions: the interplay of passive and active forces, and the relationship between rational and irrational elements (Figure 19).
(1)
Passive and Active Forces: The evolution of feminist architecture is influenced by both passive forces, which involve top-down efforts by social elites within a male-dominated framework to gradually integrate feminist principles into mainstream architecture, and active forces that emerge from grassroots movements within the working class. These active forces directly challenge gender inequities through architectural practices, highlighting lived experiences and personal agency.
(2)
Rational and Irrational Dimensions: Additionally, the sensible aspects of feminist architecture extend traditional rationality while introducing new concepts as part of modernization, creating structured frameworks for feminist principles. In contrast, the irrational dimensions embrace elements that redefine architectural norms from a female perspective, breaking away from male-centric narratives and incorporating fragmented storytelling and body theories.
A balanced approach that integrates both passive and active forces, and rational and irrational elements, is crucial for fully understanding the potential of feminist architecture. This duality enriches architectural discourse and ensures the effective integration of feminist principles into both theory and practice.
Feminist principles: This paper presents feminist principles informed by the project experiences of the feminist architectural organization Matrix and insights from Karen A. Franck on feminist cognition and analytical methods. Fundamental principles include creating gender-neutral and non-binary spaces within residential architecture to foster family participation in public life and to support diverse family structures, all while maintaining affordability across socio-economic groups. It emphasizes the importance of safety and accessibility in public spaces to promote a secure and lively community environment. For minority groups, the principles prioritize inclusivity and local identity by incorporating varied spatial characteristics and addressing anti-racism to reflect the community’s aspirations. Finally, it advocates for collaborative and participatory design approaches, involving owners and users throughout the architectural process, from initial concept development to final design solutions, and ensuring that their perspectives shape the outcome.
To further compare the development of feminist architecture in China and the West, it is evident that feminist architecture in China has predominantly followed a top-down approach, primarily driven by government initiatives and intellectual elites. In contrast, the evolution of feminist architecture in the West, particularly during the first wave of feminism, was also led by elites but became a more collaborative process during the second wave, involving both elite and grassroots actors. This divergence explains why feminist architectural organizations and related social movements have historically been more prominent in the West. Notably, the radical feminism of the 1960s and its corresponding architectural theories did not gain significant traction in China. This phenomenon is closely linked to China’s unique political, social, and cultural context. From the early 20th century through the founding of the People’s Republic of China, the nation underwent extensive political revolutions and social transformations. The triumph of the socialist revolution established class struggle as the dominant paradigm for societal change, with socialist feminism—focused on class emancipation and labor equality—superseding anarchist and radical feminist currents. The radical feminist advocacy for the abolition of marriage and family institutions, along with its provocative critiques of traditional social relations, conflicted with the state’s centralized revolutionary objectives and imperatives for social stability, thus precluding the long-term establishment of radical feminist ideas in China. Furthermore, radical feminism’s emphasis on individual gender antagonism was at odds with the collectivist ethos deeply ingrained in Chinese society, particularly concerning economics, culture, and family structures. Unlike the individualist orientation of Western radical feminism, which prioritizes personal freedom and autonomy, Chinese cultural traditions emphasize family cohesion and social responsibility, with collective well-being often outweighing individual interests. This cultural framework was further reinforced through state policies after the establishment of the People’s Republic, which, while promoting gender equality, encouraged women to fulfill dual roles in both domestic and public spheres. Consequently, the individualist tendencies of radical feminism were incongruent with China’s dominant cultural and ideological narratives. Another significant factor contributing to the absence of a sustained radical feminist movement in China is the state’s institutionalization of gender equality following the founding of the People’s Republic. Gender equality was integrated into the broader national development and social welfare agenda, with the state actively facilitating women’s participation in labor, education, and politics through legal protections and economic policies. This state-led approach diminished the need for grassroots mobilization and confrontational activism central to the radical feminist agenda, progressively reducing the social space for radical feminism. The discontinuation of radical feminist thought in China results from a confluence of factors, including the predominance of political revolution, the collectivist values embedded within Chinese cultural traditions, and the state’s institutionalized promotion of gender equality. This unique historical trajectory has shaped the development of feminist architectural practices in China, aligning them more closely with the nation’s modernization objectives rather than radical feminist ideologies and, in some instances, evolving into critiques of the existing architectural paradigm.

6. Findings

By integrating the relevant literature and a historical analysis of floor plans, this paper summarizes the driving forces behind the development of feminist architecture in both Eastern and Western contexts. The summary focuses on four key aspects: Social Changes and Population Structure, Ideological Trends, Policies and Regulations, and Architectural and Technological Innovations. Figure 20 provides a framework for understanding the development of feminist architecture. The specific period analyzed extends beyond the three stages of feminist architectural development mentioned earlier, adding the time between the First Industrial Revolution and the First Feminist Movement to introduce the historical context. In different periods, specific events or factors significantly impacted gendered spaces more than others (as indicated by the red dashed boxes in the figure). Additionally, these events are categorized based on their influence on women’s architectural education and practice, feminist architectural design, and anti-feminist events, corresponding to different legends.
This paper further analyzes the influence of feminism on the development of modern architecture from the perspective of gendered space. The discussion of “gendered space” in this paper is defined within a specific scope. The spaces analyzed are categorized into three scales: Building Scale, Community Scale, and Urban Scale. At the Building Scale, the focus is on the development of the townhouse, which mainly represents the nuclear family model [107]. The townhouse was the primary residential form before the modernist movement and an effective solution to housing large populations before the advent of high-rise buildings [108], spanning from the Industrial Revolution to the development of postmodernism. Using the birthplace of the Industrial Revolution, the UK, as an example, this paper selects the representative terraced house (the British term for townhouse) as the research subject for examining the relationship between gendered spaces. At the Community Scale and Urban Scale, this paper analyzes case studies related to the differentiation of gendered spaces at the community and urban levels during the two waves of feminism. Figure 21 summarizes the historical relationships between the layouts of gendered spaces at different scales and the factors that may have influenced these layouts. The diagram draws on space syntax principles, where solid-line circles represent physically enclosed spaces by architectural elements such as walls, and dashed-line circles represent physically open spaces. The lines connecting the circles indicate the connectivity between spaces, with the orange representing female-related spaces.

7. Conclusions

This paper presents a comprehensive analysis of feminist architecture, tracing its evolution from the 19th century to the present day. It focuses mainly on the interplay between gender and space in Western and Chinese contexts. In studying Western feminist architecture, this paper moves beyond traditional approaches that either focus on the evolution of specific feminist theories related to architectural practices during particular periods [62], trace changes in women’s roles in architectural education and practice over time [22], or emphasize theoretical reviews of feminist architecture across different eras [109]. Instead, it combines purpose-oriented approaches (architectural practices corresponding to various feminist schools) with process-oriented ones (the evolution of women’s architectural education, profession, and practice within the context of modern architectural development). The examination of Chinese feminist architecture is similarly divided into two sections. The first explores how the evolution of the “Residence and Courtyard” spatial relationship reflects women’s ideas and values in traditional Chinese gendered spaces. The second analyzes the development of feminist architecture in China through the lens of its localized adaptation, summarizing the history of feminist architecture development from a broader perspective. The results demonstrate that feminist architecture has undergone significant transformations, from advocating for women’s architectural education and practice in the early stages to constructing a neutral and inclusive urban order in the postmodern era. In the Chinese context, the development of feminist architecture has been shaped by unique historical and cultural factors, with a gradual shift towards gender equality through socialist movements and policies.
This study of feminist architecture challenges societal frameworks that dictate gender roles, embodying an integrative approach that addresses gender differentiation through spatial reimagination. By examining the gendered dimensions of space, research across both Chinese and Western contexts can deepen and diversify the global landscape of gender/cultural understanding. Future research must also critically engage with the influence of contemporary social movements on architectural design and practice, scrutinizing how these movements reshape spatial norms and values. Equally essential is exploring pathways to integrate feminist principles into mainstream architectural education and practice to foster a profession that actively promotes inclusivity and equity. This focus on feminist architecture holds the potential to advance environments that are humane, diverse, and accessible, resonating with the lived experiences of individuals across varied social and cultural contexts.

Author Contributions

Conceptualization, Z.X. and X.L.; Methodology, Z.X., X.H. and X.L.; Software, Z.X. and X.L.; Validation, Z.X. and C.D.; Investigation, X.H.; Resources, C.D.; Data curation, X.H.; Writing—original draft, Z.X. and C.D.; Writing—review & editing, Z.X. and X.L. All authors have read and agreed to the published version of the manuscript.

Funding

This study has been funded by the Postgraduate Research & Practice Innovation Program of Jiangsu Province (Grant No. KYCX19_0090).

Data Availability Statement

The data presented in this study are available on request from the corresponding author. The data are not publicly available due to further study needs.

Conflicts of Interest

The authors declare no conflicts of interest.

References

  1. Burns, K.; Brown, L. Telling Transnational Histories of Women in Architecture. Archit. Hist. 2020, 8, 15. [Google Scholar] [CrossRef]
  2. Parra-Martínez, J.; Gutiérrez-Mozo, M.E.; Gilsanz-Díaz, A. Inclusive higher education and the built environment. A research and teaching agenda for gender mainstreaming in architecture studies. Sustainability 2021, 13, 2565. [Google Scholar] [CrossRef]
  3. Haas, T.; Mehaffy, M. Achieving Humanist Cities: Learning from Urban Feminism and Feminist Planning. Glob. J. Cult. Stud. 2024, 3, 29–41. [Google Scholar] [CrossRef]
  4. Orr, J. Feminist architecture? Built Environ. 2017, 43, 157–169. [Google Scholar]
  5. Shivers-Blackwell, S.; Smith, E.C. Feminist Inquiry and Architecture: From Disciplinarity to Intersectionality; Routledge: New York, NY, USA, 2018. [Google Scholar]
  6. Wilson-Fetrow, Z.E. Meaningless Involvement: How Traditional Modes of Involvement Exclude Transgender People from Environmental Justice. Ecol. LQ 2021, 48, 843. [Google Scholar]
  7. Ortiz Escalante, S.; Gutiérrez Valdivia, B. Planning from below: Using feminist participatory methods to increase women’s participation in urban planning. Gend. Dev. 2015, 23, 113–126. [Google Scholar] [CrossRef]
  8. Blum, R.W.; Boyden, J.; Erulkar, A.; Kabiru, C.; Wilopo, S. Achieving gender equality requires placing adolescents at the center. J. Adolesc. Health 2019, 64, 691–693. [Google Scholar] [CrossRef]
  9. Agha Jani, N. Dilemma of feminism with gender equality. Women’s Strateg. Stud. 2010, 12, 7–48. [Google Scholar]
  10. Mayer, B.; Boston, M. Residential built environment and working from home: A New Zealand perspective during COVID-19. Cities 2022, 129, 103844. [Google Scholar] [CrossRef]
  11. Hewitt, N.A. Feminist frequencies: Regenerating the wave metaphor. Fem. Stud. 2012, 38, 658–680. [Google Scholar] [CrossRef]
  12. Ahrentzen, S. The space between the studs: Feminism and architecture. Signs J. Women Cult. Soc. 2003, 29, 179–206. [Google Scholar] [CrossRef]
  13. Gans, H.J. Jane Jacobs: Toward an Understanding of “Death and Life of Great American Cities”. City Community 2006, 5, 213–215. [Google Scholar] [CrossRef]
  14. Hayden, D. What would a non-sexist city be like? Speculations on housing, urban design, and human work. Signs J. Women Cult. Soc. 1980, 5, S170–S187. [Google Scholar] [CrossRef]
  15. Wilson, E. The contradictions of culture: Cities, culture, women. In The Contradictions of Culture; Sage Publications: New York, NY, USA, 2000; pp. 1–192. [Google Scholar]
  16. Loukaitou-Sideris, A. Urban form and social context: Cultural differentiation in the uses of urban parks. J. Plan. Educ. Res. 1995, 14, 89–102. [Google Scholar] [CrossRef]
  17. Forsyth, A. Constructing Suburbs: Competing Voices in a Debate over Urban Growth; Routledge: New York, NY, USA, 2005. [Google Scholar]
  18. Esperdy, G. Modernizing Main Street: Architecture and Consumer Culture in the New Deal; University of Chicago Press: Chicago, IL, USA, 2010. [Google Scholar]
  19. Kern, L. Feminist City: Claiming Space in a Man-Made World; Verso Books: London, UK, 2021. [Google Scholar]
  20. Stratigakos, D. Where Are the Women Architects? Princeton University Press: Princeton, NJ, USA, 2016. [Google Scholar]
  21. Rappaport, N. Hybrid factory|Hybrid city. Built Environ. 2017, 43, 72–86. [Google Scholar] [CrossRef]
  22. Cole, D. From Tipi to Skyscraper A History of Women in Architecture; distributed by G. Braziller; i press: Boston, MA, USA; New York, NY, USA, 1973. [Google Scholar]
  23. Weisman, L. Discrimination by Design: A Feminist Critique of the Man-Made Environment; University of Illinois Press: Champaign, IL, USA, 1994. [Google Scholar]
  24. Hayden, D. The Power of Place: Urban Landscapes as Public History; MIT Press: Cambridge, MA, USA, 1997. [Google Scholar]
  25. Fainstein, S.S.; Servon, L.J. Gender and Planning: A Reader; Rutgers University Press: New Brunswick, NJ, USA, 2005. [Google Scholar]
  26. Spain, D. Gendered Spaces; Univ of North Carolina Press: Chapel Hill, NC, USA, 2000. [Google Scholar]
  27. Pain, R. Gender, race, age and fear in the city. Urban Stud. 2001, 38, 899–913. [Google Scholar] [CrossRef]
  28. Angotti, T.; Irazábal, C. Planning latin American cities: Dependencies and “Best Practices”. Lat. Am. Perspect. 2017, 44, 4–17. [Google Scholar] [CrossRef]
  29. Greed, C. Inclusive Urban Design: Public Toilets; Routledge: London, UK, 2007. [Google Scholar]
  30. Low, S. Behind the Gates: Life, Security, and the Pursuit of Happiness in Fortress America; Routledge: New York, NY, USA, 2004. [Google Scholar]
  31. Giuliano, G.; Hanson, S. The Geography of Urban Transportation; Guilford Publications: New York, NY, USA, 2017. [Google Scholar]
  32. Watson, S. City Publics: The (Dis)Enchantments of Urban Encounters; Routledge: London, UK, 2013. [Google Scholar]
  33. Young, I.M. Inclusion and Democracy; Oxford University Press: New York, NY, USA, 2002. [Google Scholar]
  34. Loukaitou-Sideris, A.; Ehrenfeucht, R. Sidewalks: Conflict and Negotiation over Public Space; MIT Press: Cambridge, MA, USA, 2011. [Google Scholar]
  35. Minton, A. The paradox of safety and fear: Security in public space. Archit. Des. 2018, 88, 84–91. [Google Scholar] [CrossRef]
  36. Talen, E. City Rules: How Regulations Affect Urban Form; Island Press: Washington, DC, USA, 2012. [Google Scholar]
  37. Rose, G. Feminism & Geography: The Limits of Geographical Knowledge; University of Minnesota Press: Minneapolis, MN, USA, 1993. [Google Scholar]
  38. Brown, L.A. Contested Spaces: Abortion Clinics, Women’s Shelters and Hospitals: Politicizing the Female Body; Routledge: New York, NY, USA, 2016. [Google Scholar]
  39. Miranne, K.B.; Young, A.H. Gendering the City: Women, Boundaries, and Visions of Urban Life; Rowman & Littlefield: Lanham, MD, USA, 2000. [Google Scholar]
  40. Ardener, S. Women and Space: Ground Rules and Social Maps; Routledge: London, UK, 2021. [Google Scholar]
  41. Willis, J.; Hanna, B. Women Architects in Australia, 1900–1950; Royal Australian Institute of Architects: Canberra, Australia, 2001. [Google Scholar]
  42. Adams, A.; Tancred, P. Designing Women: Gender and the Architectural Profession; University of Toronto Press: Toronto, ON, USA, 2000. [Google Scholar]
  43. Desai, M. Women Architects and Modernism in India; Routledge: London, UK, 2017. [Google Scholar]
  44. Somaya, B.; Mehta, U.; Mohaney, S.; Simoes, G. An Emancipated Place. In An Emancipated Place: The Proceedings of the Conference and Exhibition held in Mumbai, February, 2000; The HECAR Foundation: Mumbai, India.
  45. Torre, S. Women in American Architecture. A Historic and Contemporary Perspective; Watson-Guptill: New York, NY, USA, 1977. [Google Scholar]
  46. Lorenz, C. Women in Architecture: A Contemporary Perspective; Rizzoli International Publications: New York, NY, USA, 1993. [Google Scholar]
  47. Friedman, A.T. Women and the Making of the Modern House: A Social and Architectural History; Yale University Press: New Haven, CT, USA, 2006. [Google Scholar]
  48. Toy, M. The Architect: Women in Contemporary Architecture; Watson-Guptill: New York, NY, USA, 2001. [Google Scholar]
  49. Martin, B.; Sparke, P. Women’s Places: Architecture and Design 1860–1960; Routledge: New York, NY, USA, 2003. [Google Scholar]
  50. Teng, J. Feminist Architectural Theory; China Architecture & Building Press: Beijing, China, 2014. [Google Scholar]
  51. Hayden, D.; Wright, G. Architecture and Urban Planning; The University of Chicago Press: Chicago, IL, USA, 1976; pp. 924–932. [Google Scholar]
  52. Allaback, S. The First American Women Architects; University of Illinois Press: Champaign, IL, USA, 2008. [Google Scholar]
  53. Gimenez, M.E. Capitalism and the oppression of women: Marx revisited. Sci. Soc. 2005, 69, 11–32. [Google Scholar] [CrossRef]
  54. Gürel, M.Ö.; Anthony, K.H. The canon and the void: Gender, race, and architectural history texts. J. Archit. Educ. 2006, 59, 66–76. [Google Scholar] [CrossRef]
  55. Krall, D.W. Were They Feminists? Men Who Mentored Early Women Landscape Architects. In Women in Landscape Architecture: Essays on History and Practice; McFarland: Jefferson, NC, USA, 2011; pp. 76–82. [Google Scholar]
  56. Lester, M.M. “Lady Architect”: The Work and Writings of Minerva Parker Nichols in Late Nineteenth-Century Philadelphia. Pa. Mag. Hist. Biogr. 2019, 143, 33–58. [Google Scholar] [CrossRef]
  57. Sherriff, C. Arnold Mitchell (1863–1944): ‘Fecundity’ and ‘Versatility’ in an Early Twentieth-Century Architect. Archit. Hist. 2012, 55, 199–235. [Google Scholar] [CrossRef]
  58. Palm, R.M. Women Muralists, Modern Woman and Feminine Spaces: Constructing Gender at the 1893 Chicago World’s Columbian Exposition. J. Des. Hist. 2010, 23, 123–143. [Google Scholar] [CrossRef]
  59. Pearson, L.F. Socialised Domestic Work and the Garden City. In The Architectural and Social History of Cooperative Living; Palgrave Macmillan: London, UK, 1988; pp. 56–85. [Google Scholar]
  60. Lallement, M. An Experiment Inspired by Fourier: JB Godin’s Familistere in Guise. J. Hist. Sociol. 2012, 25, 31–49. [Google Scholar] [CrossRef]
  61. Leach, W.R. Transformations in a culture of consumption: Women and department stores, 1890–1925. J. Am. Hist. 1984, 71, 319–342. [Google Scholar] [CrossRef]
  62. Hayden, D. The Grand Domestic Revolution: A History of Feminist Designs for American Homes, Neighborhoods, and Cities; MIT Press: Cambridge, MA, USA, 1982. [Google Scholar]
  63. Oldenziel, R. Decoding the silence: Women engineers and male culture in the US, 1878–1951. Hist. Technol. Int. J. 1997, 14, 65–95. [Google Scholar] [CrossRef]
  64. Madsen, K.; Furlong, J.F. Women, land, design: Considering connections. Landsc. J. 1994, 13, 88–101. [Google Scholar] [CrossRef]
  65. Ray, K.R. Bauhaus Hausfraus: Gender formation in design education. J. Archit. Educ. 2001, 55, 73–80. [Google Scholar] [CrossRef]
  66. McNeill, K. “WOMEN WHO BUILD”: Julia Morgan & Women’s Institutions. Calif. Hist. 2012, 89, 41–75. [Google Scholar]
  67. Colomina, B. Collaborations: The private life of modern architecture. J. Soc. Archit. Hist. 1999, 58, 462–471. [Google Scholar] [CrossRef]
  68. Lima, Z.R. The faces of Janus: Modernism and hybridisation in the architecture of Lina Bo Bardi. J. Archit. 2006, 11, 257–267. [Google Scholar] [CrossRef]
  69. Nunes, I.L. Jane Drew and Minnette De Silva Pioneering Participatory Architecture in Mid-Century India and Sri Lanka. Joelho-J. Archit. Cult. 2024, 15, 59–72. [Google Scholar] [CrossRef]
  70. Bailey, M.J.; Helgerman, T.; Stuart, B.A. How the 1963 Equal Pay Act and 1964 Civil Rights Act Shaped the Gender Gap in Pay. Q. J. Econ. 2024, 139, 1827–1878. [Google Scholar] [CrossRef]
  71. Casteel, C.; Peek-Asa, C. Effectiveness of crime prevention through environmental design (CPTED) in reducing robberies. Am. J. Prev. Med. 2000, 18, 99–115. [Google Scholar] [CrossRef]
  72. Fausch, D. The Context of Meaning is Everyday Life: Venturi and Scott Brown’s Theories of Architecture and Urbanism; Princeton University: Princeton, NJ, USA, 1999. [Google Scholar]
  73. Pojani, D. Santa Monica’s Third Street Promenade: The failure and resurgence of a downtown pedestrian mall. Urban Des. Int. 2008, 13, 141–155. [Google Scholar] [CrossRef]
  74. Janovicek, N. No Place to Go: Local Histories of the Battered Women’s Shelter Movement; UBC Press: Vancouver, BC, Canada, 2011. [Google Scholar]
  75. Faludi, S. Backlash: The Undeclared War Against American Women; Crown: New York, NY, USA, 2009. [Google Scholar]
  76. Haug, F. Marxism-feminism. Hist. Mater. 2016, 24, 257–270. [Google Scholar] [CrossRef]
  77. Hartmann, H.I. The family as the locus of gender, class, and political struggle: The example of housework. Signs J. Women Cult. Soc. 1981, 6, 366–394. [Google Scholar] [CrossRef]
  78. Vestbro, D.U. From collective housing to cohousing—A summary of research. J. Archit. Plan. Res. 2000, 17, 164–178. [Google Scholar]
  79. Schneiderman, D. The prefabricated kitchen: Substance and surface. Home Cult. 2010, 7, 243–262. [Google Scholar] [CrossRef]
  80. Kılınç, K. Homemaker or professional? Girls’ schools designed by Ernst Egli and Margarete Schütte-Lihotzky in Ankara, 1930–1938. New Perspect. Turk. 2013, 48, 101–128. [Google Scholar] [CrossRef]
  81. Sen, A.; AL, M. Women Entrepreneurship. PalArch’s J. Archaeol. Egypt/Egyptol. 2021, 18, 69–77. [Google Scholar]
  82. Gross, M. Collaborative experiments: Jane Addams, Hull House and experimental social work. Soc. Sci. Inf. 2009, 48, 81–95. [Google Scholar] [CrossRef]
  83. Walkowitz, J.R. City of Dreadful Delight: Narratives of Sexual Danger in Late-Victorian London; University of Chicago Press: Chicago, IL, USA, 1992. [Google Scholar]
  84. Campbell, K.M. Unsettling Womyn’s Land: Property, Sovereignty, and the Radical Imagination of Lesbian Feminist Thought. Doctoral Dissertation, The University of North Carolina at Chapel Hill, Chapel Hill, NC, USA, 2023. [Google Scholar]
  85. Cozens, P.; Hillier, D. Revisiting Jane Jacobs’s ‘Eyes on the Street’ for the twenty-first century: Evidence from environmental criminology. Urban Wisdom Jane Jacobs 2012, 10, 9780203095171. [Google Scholar]
  86. Crabtree, L. Disintegrated houses: Exploring ecofeminist housing and urban design options. Antipode 2006, 38, 711–734. [Google Scholar] [CrossRef]
  87. Jordan, S. Woman and home: An investigation into equitable forms of housing. Plan. News 2012, 38, 17–18. [Google Scholar]
  88. Baudry, S. Reclaiming urban space as resistance: The infrapolitics of gardening. Rev. Française D’études Américaines 2012, 1, 32–48. [Google Scholar] [CrossRef]
  89. Outka, P. Introduction: The Sublime and the Traumatic. In Race and Nature from Transcendentalism to the Harlem Renaissance; Palgrave Macmillan: New York, NY, USA, 2008. [Google Scholar]
  90. Braga Bizarria, M.T.; Palomino-Schalscha, M.; Stupples, P. Community gardens as feminist spaces: A more-than-gendered approach to their transformative potential. Geogr. Compass 2022, 16, e12608. [Google Scholar] [CrossRef]
  91. Pallasmaa, J. The sixth sense: The meaning of atmosphere and mood. Archit. Des. 2016, 86, 126–133. [Google Scholar] [CrossRef]
  92. Fausch, D. She said, he said: Denise Scott Brown and Kenneth Frampton on popular taste. Footprint 2011, 77–90. [Google Scholar] [CrossRef]
  93. Dufourmantelle, A. Defense of Secrets; Fordham Univ Press: New York, NY, USA, 2021. [Google Scholar]
  94. Bai, L. Children and the survival of China: Liang Qichao on education before the 1898 Reform. Late Imp. China 2001, 22, 124–155. [Google Scholar] [CrossRef]
  95. Bond, J. Dreaming the New Woman: An Oral History of Missionary Schoolgirls in Republican China; Oxford University Press: Oxford, UK, 2024. [Google Scholar]
  96. Dirlik, A. Anarchism in early twentieth century China: A contemporary perspective. J. Mod. Chin. Hist. 2012, 6, 131–146. [Google Scholar] [CrossRef]
  97. Engels, F. The Origin of the Family, Private Property and the State; Wellred Books: London, UK, 2001. [Google Scholar]
  98. Dexin, X.I.E.; Changfa, X.I.E.; Tingting, T.A.N.G. Participation of Different Forces and Coeducation in Peking University: From Reports of Newspaper Media, 1918–1920. Cross-Cult. Commun. 2014, 10, 65. [Google Scholar]
  99. Fairbank, W. Liang and Lin: Partners in Exploring China’s Architectural Past; University of Pennsylvania Press: Philadelphia, PA, USA, 1994. [Google Scholar]
  100. Finlayson, R. Half the Sky, or Half a Lie? Unfulfilled Promises to Women in Republican China. BYU Asian Stud. J. 2018, 5, 4. [Google Scholar]
  101. Song, W. The Aesthetic versus the Political: Lin Huiyin and Modern Beijing. Chin. Lit. Essays Artic. Rev. (CLEAR) 2014, 36, 61–94. [Google Scholar]
  102. Gao, L.; Lin, G. Landscape Architecture Education in China: The pioneering work of Sun Xiaoxiang. In The Routledge Handbook of Landscape Architecture Education; Routledge: New York, NY, USA, 2022; pp. 315–325. [Google Scholar]
  103. Cao, H. The Survival Dilemmas of Qinglou Talented Women in the Late Ming Dynasty and Their Encounters with the Patriarchal Order. Ming Qing Yanjiu 2024, 27, 155–186. [Google Scholar] [CrossRef]
  104. Zhu, Q. The production of everyday space for workers: The new village movement in China, 1919–1936. Positions 2022, 30, 429–453. [Google Scholar] [CrossRef]
  105. Yang, Y. Space and anxiety: New village in the 1920s–1950s of China. Time Archit. 2017, 2, 21–29. [Google Scholar]
  106. Andors, P. Social revolution and woman’s emancipation: China during the Great Leap Forward. Bull. Concerned Asian Sch. 1975, 7, 33–42. [Google Scholar] [CrossRef]
  107. Whitehand, J.W.R.; Carr, C.M. England’s interwar suburban landscapes: Myth and reality. J. Hist. Geogr. 1999, 25, 483–501. [Google Scholar] [CrossRef]
  108. Aranda, L.A. The Influence of Space Standards on Housing Typologies: The Evolution of the Nuclear Family Dwelling in England. Urban Plan. 2024, 9. [Google Scholar]
  109. Rendell, J.; Penner, B.; Borden, I. Gender space architecture. In An Interdisciplinary Introduction, New York/NY; Routledge: New York, NY, USA, 2000. [Google Scholar]
Figure 1. Paper structure diagram.
Figure 1. Paper structure diagram.
Buildings 14 03658 g001
Figure 2. Number of feminist architecture research documents from 1960 to 2023.
Figure 2. Number of feminist architecture research documents from 1960 to 2023.
Buildings 14 03658 g002
Figure 3. Keyword clustering diagram.
Figure 3. Keyword clustering diagram.
Buildings 14 03658 g003
Figure 4. Relevant architectural projects of feminist architecture from the mid-19th century to pre-WWI (from left to right: floor plan of cooperative workers’ housing designed by E. W. Godwin, 1874; partial second-floor plan of an improved community designed by Leonard E. Ladd, 1890; cooperative community designed by Mary Coleman Stuckert, 1890s) [62].
Figure 4. Relevant architectural projects of feminist architecture from the mid-19th century to pre-WWI (from left to right: floor plan of cooperative workers’ housing designed by E. W. Godwin, 1874; partial second-floor plan of an improved community designed by Leonard E. Ladd, 1890; cooperative community designed by Mary Coleman Stuckert, 1890s) [62].
Buildings 14 03658 g004
Figure 5. Service housing designed by Sven Markelius, 1935 [62].
Figure 5. Service housing designed by Sven Markelius, 1935 [62].
Buildings 14 03658 g005
Figure 6. Timeline of women in architectural education and public practice.
Figure 6. Timeline of women in architectural education and public practice.
Buildings 14 03658 g006
Figure 7. Perspective and floor plan of Nina West’s Fiona House, the 1960s [62].
Figure 7. Perspective and floor plan of Nina West’s Fiona House, the 1960s [62].
Buildings 14 03658 g007
Figure 8. Waterlow Court, designed by M. H. Baillie Scott, 1909 [62].
Figure 8. Waterlow Court, designed by M. H. Baillie Scott, 1909 [62].
Buildings 14 03658 g008
Figure 9. Homesgarth, 1909 (left is the floor plan of Homesgarth; right is its exterior and interior photos) [62].
Figure 9. Homesgarth, 1909 (left is the floor plan of Homesgarth; right is its exterior and interior photos) [62].
Buildings 14 03658 g009
Figure 10. Cooperative community types based on feminist architecture. The red color on the figure represent public service facilities (kitchen, dining hall, etc.).
Figure 10. Cooperative community types based on feminist architecture. The red color on the figure represent public service facilities (kitchen, dining hall, etc.).
Buildings 14 03658 g010
Figure 11. Christie Walk site plan in Adelaide, with strawbale cottages, apartments, townhouses, shared spaces, and permaculture gardens [87].
Figure 11. Christie Walk site plan in Adelaide, with strawbale cottages, apartments, townhouses, shared spaces, and permaculture gardens [87].
Buildings 14 03658 g011
Figure 12. Pinakarri site plan in Hamilton Hill, showing public rentals, private homes, common house, shared spaces, and permaculture gardens [87].
Figure 12. Pinakarri site plan in Hamilton Hill, showing public rentals, private homes, common house, shared spaces, and permaculture gardens [87].
Buildings 14 03658 g012
Figure 13. The illustration of women’s handicraft by Qiu Ying from the Ming Dynasty.
Figure 13. The illustration of women’s handicraft by Qiu Ying from the Ming Dynasty.
Buildings 14 03658 g013
Figure 14. The illustration of seeking knowledge at the Lakeside Pavilion by Wang Gong and You Zhao from the Qing Dynasty (both depicting scenes of women receiving skills training and participating in public life).
Figure 14. The illustration of seeking knowledge at the Lakeside Pavilion by Wang Gong and You Zhao from the Qing Dynasty (both depicting scenes of women receiving skills training and participating in public life).
Buildings 14 03658 g014
Figure 15. First floor plan and functional anatomy diagram of Huaiyuan Tulou in Nanjing, Fujian Province, 1905, China. “A-A” on the figure represents a section symbol.
Figure 15. First floor plan and functional anatomy diagram of Huaiyuan Tulou in Nanjing, Fujian Province, 1905, China. “A-A” on the figure represents a section symbol.
Buildings 14 03658 g015
Figure 16. Diagram of Model New Village, 1922, China [105].
Figure 16. Diagram of Model New Village, 1922, China [105].
Buildings 14 03658 g016
Figure 17. Diagrams of Hebei New Village by Duan Shengwu, 1937, China [105].
Figure 17. Diagrams of Hebei New Village by Duan Shengwu, 1937, China [105].
Buildings 14 03658 g017
Figure 18. The ground floor plan of the tube-shaped apartment in Changsha, 1970.
Figure 18. The ground floor plan of the tube-shaped apartment in Changsha, 1970.
Buildings 14 03658 g018
Figure 19. The inherent logic trend chart of feminist architecture.
Figure 19. The inherent logic trend chart of feminist architecture.
Buildings 14 03658 g019
Figure 20. Analysis of historical events and developments shaping feminist architecture in the East and West. (The red text represents the situation in China, while the black text corresponds to the West.)
Figure 20. Analysis of historical events and developments shaping feminist architecture in the East and West. (The red text represents the situation in China, while the black text corresponds to the West.)
Buildings 14 03658 g020
Figure 21. The historical relationship between gendered spaces of varying scales and their influences.
Figure 21. The historical relationship between gendered spaces of varying scales and their influences.
Buildings 14 03658 g021
Table 1. Top 25 keywords with the strongest citation bursts.
Table 1. Top 25 keywords with the strongest citation bursts.
KeywordsYearStrengthBeginEnd1984–2023 *
architecture19943.7820122013▂▂▂▂▂▂▂▂▂▂▂▂▂▂▂▂▂▂▂▂▂▃▃▂▂▂▂▂▂▂▂▂▂
women19942.0420182021▂▂▂▂▂▂▂▂▂▂▂▂▂▂▂▂▂▂▂▂▂▂▂▂▂▂▂▃▃▃▃▂▂
linkage map19991.8319992002▂▂▂▂▂▂▂▂▃▃▃▃▂▂▂▂▂▂▂▂▂▂▂▂▂▂▂▂▂▂▂▂▂
genetic architecture19991.8420142018▂▂▂▂▂▂▂▂▂▂▂▂▂▂▂▂▂▂▂▂▂▂▂▂▂▂▂▂▂▃▃▃▃
education20031.7420032012▂▂▂▂▂▂▂▂▂▂▂▂▂▃▃▃▃▃▃▃▃▃▃▂▂▂▂▂▂▂▂▂▂
gender difference20082.1120082012▂▂▂▂▂▂▂▂▂▂▂▂▂▂▂▂▂▃▃▃▃▃▂▂▂▂▂▂▂▂▂▂▂
growth20091.9220092010▂▂▂▂▂▂▂▂▂▂▂▂▂▂▂▂▂▂▃▃▂▂▂▂▂▂▂▂▂▂▂▂▂
neural network20093.0120202023▂▂▂▂▂▂▂▂▂▂▂▂▂▂▂▂▂▂▂▂▂▂▂▂▂▂▂▂▂▃▃▃▃
female feature20101.5420102014▂▂▂▂▂▂▂▂▂▂▂▂▂▂▂▂▂▂▂▃▃▃▃▃▂▂▂▂▂▂▂▂▂
adaptation20111.3620162019▂▂▂▂▂▂▂▂▂▂▂▂▂▂▂▂▂▂▂▂▂▂▂▂▂▃▃▃▃▂▂▂▂
gender equality20131.8920132018▂▂▂▂▂▂▂▂▂▂▂▂▂▂▂▂▂▂▂▂▂▂▃▃▃▃▃▃▂▂▂▂▂
academic performance20161.7820162017▂▂▂▂▂▂▂▂▂▂▂▂▂▂▂▂▂▂▂▂▂▂▂▂▂▃▃▂▂▂▂▂▂
convolutional neural network20162.8920192023▂▂▂▂▂▂▂▂▂▂▂▂▂▂▂▂▂▂▂▂▂▂▂▂▂▂▂▂▃▃▃▃▃
system20182.8620182023▂▂▂▂▂▂▂▂▂▂▂▂▂▂▂▂▂▂▂▂▂▂▂▂▂▂▂▃▃▃▃▃▃
machine learning20192.2220192020▂▂▂▂▂▂▂▂▂▂▂▂▂▂▂▂▂▂▂▂▂▂▂▂▂▂▂▂▃▃▂▂▂
deep learning202010.7320202023▂▂▂▂▂▂▂▂▂▂▂▂▂▂▂▂▂▂▂▂▂▂▂▂▂▂▂▂▂▃▃▃▃
model20202.7420202021▂▂▂▂▂▂▂▂▂▂▂▂▂▂▂▂▂▂▂▂▂▂▂▂▂▂▂▂▂▃▃▂▂
convolutional neural network (CNN)20202.3120202023▂▂▂▂▂▂▂▂▂▂▂▂▂▂▂▂▂▂▂▂▂▂▂▂▂▂▂▂▂▃▃▃▃
recognition20201.8420202023▂▂▂▂▂▂▂▂▂▂▂▂▂▂▂▂▂▂▂▂▂▂▂▂▂▂▂▂▂▂▃▃▃
women architect20212.7220212023▂▂▂▂▂▂▂▂▂▂▂▂▂▂▂▂▂▂▂▂▂▂▂▂▂▂▂▂▂▂▃▃▃
performance20212.7220212023▂▂▂▂▂▂▂▂▂▂▂▂▂▂▂▂▂▂▂▂▂▂▂▂▂▂▂▂▂▂▃▃▃
* The red on the table represents a surge in the number of occurrences of the corresponding keywords within that interval, which can be understood as reflecting the research trends and directions during that period.
Table 2. Compilation of literature on feminist architecture.
Table 2. Compilation of literature on feminist architecture.
AuthorYearPerspectiveField
Jane Jacob [13]1961Promoting community participation and female equality through urban planning and designUrban Planning
Doris Cole [22]1973Documenting and studying women’s contributions to architectureArchitectural Practice
Dolores Hayden [14]1980Impact of feminism on architecture, emphasizing women’s importance in family and community spacesFamily Community
Elizabeth Wilson [15]1991Explored safety issues in urban landscapes, particularly women’s safety in public spacesLandscape
Leslie Kanes Weisman [23]1994Discussed women’s roles in urban planning, proposing feminist urban planning conceptsUrban Planning
Anastasia Loukaitou-Sideris [16]1995Studied women’s use patterns in urban parks, suggesting safe and inclusive design recommendationsLandscape
Dolores Hayden [24]1997Examined how urban planning reflects and influences gender identity and power structuresUrban Planning
Susan Fainstein [25]2000Emphasized that urban planning should consider gender differences to create inclusive and equal citiesUrban Planning
Daphne Spain [26]2000Investigated the role of gender in spatial distribution, advocating for gender-considerate urban designUrban Planning
Rachel Pain [27]2001Analyzed safety perceptions of different groups in urban environments, highlighting challenges women face in public spaces at nightPublic Safety
Angotti T [28] 2017Discussed the link between gender and safety in Latin American cities, calling for gender perspectives in urban planning for inclusivity and sustainabilityUrban Planning
Clara Greed [29]2007Advocated for the integration of feminist principles in urban planning and design for social inclusivity and sustainabilityUrban Planning
Setha Low [30]2004Studied the impact of gated communities on women’s sense of safetyFamily Community
A Forsyth [17]2005Analyzed the neglect of women’s needs in suburban design, proposing more equitable design solutionsFamily Community
G Giuliano [31]2017Examined how urban transport planning affects women’s travel experiences and safety, suggesting improvements for gender equalityUrban Planning
Sophie Watson [32]2013Analyzed how urban spaces reflect and exacerbate gender inequalities, proposing gender-equal urban planning strategiesUrban Planning
Iris Marion Young [33]2002Explored how urban planning shapes and reflects social relations, calling for more focus on gender and equality in urban planningUrban Planning
Gabrielle Esperdy [18]2010Investigated how architectural modernization affects women’s consumer culturePublic Building
Anastasia Loukaitou-Sideris [34]2011Analyzed the impact of urban landscape design on gender equality, emphasizing the creation of safe and inclusive urban environments for different gendersLandscape
Anna Minton [35]2011Discussed control and fear in modern cities, analyzing how these factors affect women’s urban experiencesPublic Safety
Emily Talen [36]2012Explored the concept of “woman-friendly cities” in urban design, advocating for the design of urban spaces to meet women’s needs and enhance their sense of safetyUrban Planning
Gillian Rose [37]2016Introduced the concept of “emotional geography”, highlighting the importance of emotional and affective dimensions in urban spaces for gender equalityUrban Planning
Despina Stratigakos [20]2016Discussed gender inequality in the architecture profession, calling for increased participation and representation of women in architectureArchitectural Practice
LA Brown [38]2016Explored how architectural design affects women’s safety and privacy in sensitive environmentsPublic Building
Nina Rappaport [21]2017Emphasized that architectural design and urban planning should consider gender and inclusivity to create more just urban environmentsUrban Planning
KB Miranne [39]2000Investigated how urban planning impacts and is influenced by gender identity and power structures, calling for more inclusive and anti-discriminatory urban planning conceptsUrban Planning
Leslie Kern [19]2021Analyzed gender bias in urban planning and the social construction of women’s spaces, advocating for more inclusive and equal urban spacesUrban Planning
Shirley Ardener [40]2021Studied women’s spaces in urban environments, suggesting improvements through architectural design to enhance women’s quality of lifePublic Building
Table 3. An overview of feminist architectural research across countries.
Table 3. An overview of feminist architectural research across countries.
CountryAuthorArticle TitleResearch Perspective
AustraliaKaren Burns [1]“Telling Transnational Histories of Women in Architecture, 1960–2015”Challenges traditional periods, geography, and analytical terms in women’s architectural history through a transnational research project, emphasizing the influence of global and local geographies.
Julie Willis, Bronwyn Hanna [41]“Women Architects in Australia, 1900–1950”Explores the history and contributions of Australian women architects from 1900 to 1950.
CanadaAnnmarie Adams, Peta Tancred [42]“Designing Women: Gender and the Architectural Profession”Studies the relationship between gender and the architectural profession in the Canadian building industry.
IndiaMadhavi Desai [43]“Women Architects and Modernism in India”Investigates the relationship between Indian women architects and modernism, revealing innovative approaches and protest analyses by these architects.
Brinda Somaya, Urvashi Mehta [44]“An Emancipated Place: 2000 Plus, Women in Architecture”Focuses on women architects in South Asia, particularly in India.
USADoris Cole [22]“From Tipi to Skyscraper: A History of Women in Architecture”Focuses on the history of women architects in North America, from tipis to skyscrapers.
Susana Torre [45]“Women in American ArchitectureProvides a historical and contemporary perspective on women architects in the U.S.
Claire Lorenz [46]Women and Architecture; A Contemporary Perspective”Explores the relationship between women and architecture from a contemporary perspective.
Alice Friedman [47]“Women and the Making of the Modern Home”Compares the role of women in the making of modern homes across North America and Western Europe.
UKMaggie Toy [48]“The Architect: Women in Contemporary Architecture”Primarily focuses on women architects in North America and the UK, while also including those from Western Europe and Japan.
Brenda Martin, Penny Sparke [49]“Women’s Places: Architecture and Design 1860–1960”Studies the relationship between women and architecture/design from 1860 to 1960, with a focus on transatlantic and European contexts.
ChinaJingru Teng [50]“Feminist Architectural Theory”Summarizes the development of Western feminist architecture that emerged in the 1960s and 1970s.
Disclaimer/Publisher’s Note: The statements, opinions and data contained in all publications are solely those of the individual author(s) and contributor(s) and not of MDPI and/or the editor(s). MDPI and/or the editor(s) disclaim responsibility for any injury to people or property resulting from any ideas, methods, instructions or products referred to in the content.

Share and Cite

MDPI and ACS Style

Xu, Z.; Huang, X.; Li, X.; Duan, C. Interaction Between Gender and Space: A Study on the Genealogy of Feminist Architecture. Buildings 2024, 14, 3658. https://doi.org/10.3390/buildings14113658

AMA Style

Xu Z, Huang X, Li X, Duan C. Interaction Between Gender and Space: A Study on the Genealogy of Feminist Architecture. Buildings. 2024; 14(11):3658. https://doi.org/10.3390/buildings14113658

Chicago/Turabian Style

Xu, Zhixin, Xia Huang, Xiaoming Li, and Chenhao Duan. 2024. "Interaction Between Gender and Space: A Study on the Genealogy of Feminist Architecture" Buildings 14, no. 11: 3658. https://doi.org/10.3390/buildings14113658

APA Style

Xu, Z., Huang, X., Li, X., & Duan, C. (2024). Interaction Between Gender and Space: A Study on the Genealogy of Feminist Architecture. Buildings, 14(11), 3658. https://doi.org/10.3390/buildings14113658

Note that from the first issue of 2016, this journal uses article numbers instead of page numbers. See further details here.

Article Metrics

Back to TopTop