Georadar Survey and Simulation for Subsurface Investigation at Historical Mosque of Sorghatmesh, Cairo, Egypt
Abstract
1. Introduction
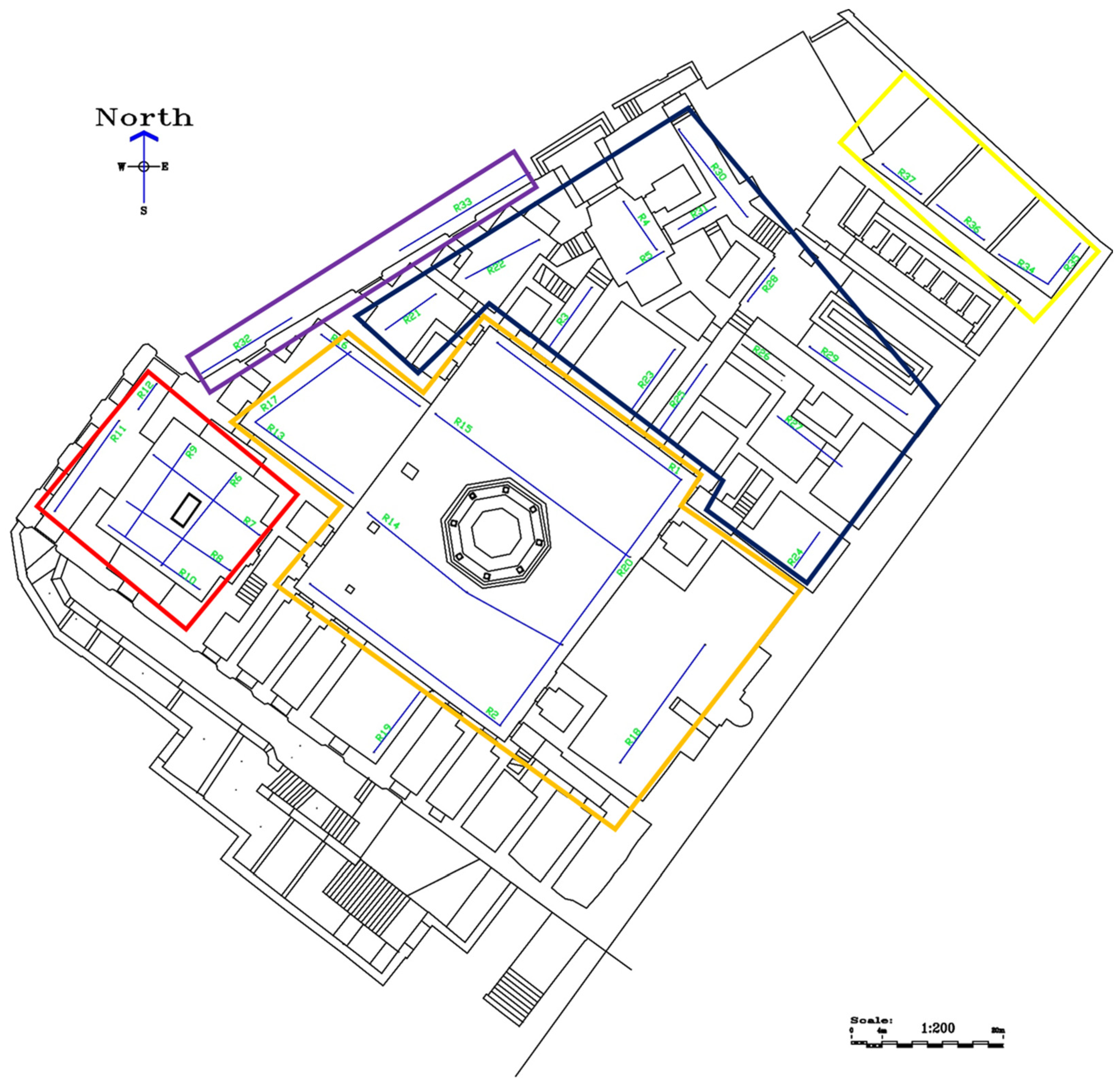
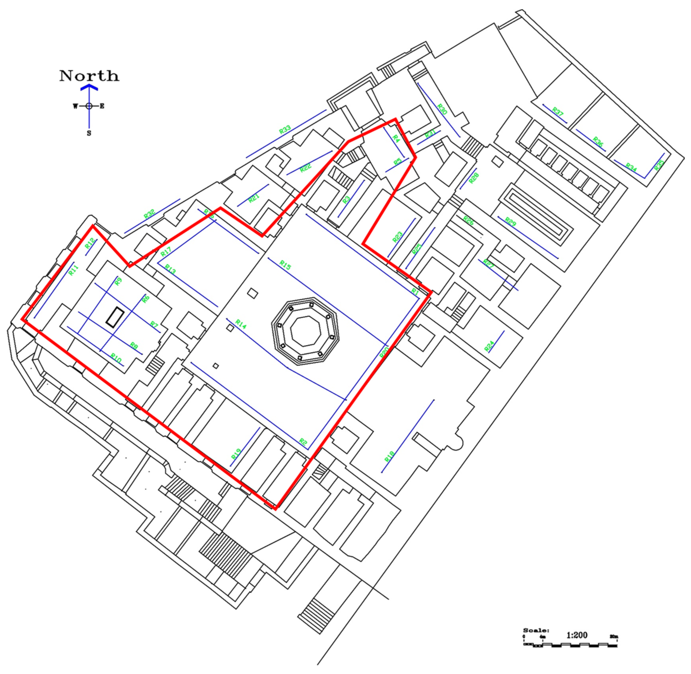
2. Site Characteristics
3. Georadar Survey
4. Data Interpretation
4.1. GPR Data Interpretation
4.2. Trial Pit Validation
5. Georadar Simulation
6. Discussion
7. Conclusions
Author Contributions
Funding
Data Availability Statement
Acknowledgments
Conflicts of Interest
Glossary of Technical Terms
| Term | Definition |
| GPR, Georadar | The ground-penetrating radar device. |
| Radargram | The subsurface image obtained from the GPR device. |
| gprMax | An open-source library for 2D and 3D GPR wave simulation. |
| FDTD method | The Finite Difference Time Domain method is a numerical technique that solves Maxwell’s equations in the time domain by discretizing space and time. |
Appendix A









References
- Abd al-Wahab, H. Book of Tarikh al-Masajid al-Athariya bil Qahira [History of Monumental Mosques in Cairo]; Egyptian General Authority for Books: Cairo, Egypt, 1994.
- Al-Maqrizi. Al-mawā’iz wa’l-i’tibār bi-dhikr al-khiţaţ wa’l-āthār [Exhortations and Contemplation of the Recollection of Plans and Monuments]; 2 Volumes; Dār al-Tịbāʻah al-Misṛīyah: Cairo, Egypt, 1853. [Google Scholar]
- Walker, B.J. On Archives and Archaeology: Reassessing Mamluk Rule from Documentary Sources and Jordanian Fieldwork. In Material Evidence and Narrative Sources: Interdisciplinary Studies of the History of the Muslim Middle East; Talmon-Heller, D., Cytryn-Silverman, K., Eds.; Brill: Leiden, The Netherlands, 2015; p. 120. [Google Scholar]
- Salem, a.-S.M.A.a.-A. al-Ma’din al-Masriya-Nazra ‘Amma ‘an aslaha wa tatawuriha mundu al-fath al-‘arabi hatta al-fath al-Othmani [The Egyptian Minaret—A General View of Its Origin and Development from the Arab Conquest until the Ottoman Conquest]; General Authority for Government Printing Offices: Cairo, Egypt, 1959.
- Creswell, K.A.C. Muslim Architecture of Egypt; Hacker Art Books: New York, NY, USA, 1960; Volume 2. [Google Scholar]
- Behrens-Abouseif, D. Islamic Architecture in Cairo; Brill: Leiden, The Netherlands, 1989. [Google Scholar]
- Jarrar, S.; Riedlmayer, A.; Spurr, J.B. Resources for the Study of Islamic Architecture; Aga Khan Program for Islamic Architecture: Cambridge, MA, USA, 1994. [Google Scholar]
- Kessler, C. Funerary Architecture within the City. In Colloque International Sur L’histoire du Caire; Ministry of Culture of the Arab Republic of Egypt: Cairo, Egypt, 1969; pp. 385–403. [Google Scholar]
- Elkarmoty, M.; Colla, C.; Gabrielli, E.; Papeschi, P.; Bonduà, S.; Bruno, R. In-situ GPR test for three-dimensional mapping of the dielectric constant in a rock mass. J. Appl. Geophys. 2017, 146, 1–15. [Google Scholar] [CrossRef]
- Annan, A.P. Ground Penetrating Radar Principles, Procedures, and Applications; Sensors & Software: Mississauga, ON, Canada, 2003. [Google Scholar]
- Elkarmoty, M.; Tinti, F.; Kasmaeeyazdi, S.; Bonduà, S.; Bruno, R. 3D modeling of discontinuities using GPR in a commercial size ornamental limestone block. Constr. Build. Mater. 2018, 166, 81–86. [Google Scholar] [CrossRef]
- Daniels, D.J. Ground Penetrating Radar; The Institute of Electrical Engineers: London, UK, 2004. [Google Scholar]
- Elkarmoty, M.; Colla, C.; Gabrielli, E.; Bonduà, S.; Bruno, R. Deterministic three-dimensional rock mass fracture modeling from geo-radar survey: A case study in a sandstone quarry in Italy. Environ. Eng. Geosci. 2017, 23, 314–331. [Google Scholar] [CrossRef]
- Reynolds, J.M. An Introduction to Applied and Environmental Geophysics; John Wiley & Sons, Ltd.: West Sussex, UK, 2011. [Google Scholar]
- Elkarmoty, M.; Tinti, F.; Kasmaeeyazdi, S.; Giannino, F.; Bonduà, S.; Bruno, R. Implementation of a Fracture Modeling Strategy Based on Georadar Survey in a Large Area of Limestone Quarry Bench. Geosciences 2018, 8, 481. [Google Scholar] [CrossRef]
- Yelfm, R.J. Application of ground penetrating radar to civil and geotechnical engineering. Electromagn. Phenom. 2007, 7, 103–117. [Google Scholar]
- Elkarmoty, M.; Colla, C.; Gabrielli, E.; Bonduà, S.; Bruno, R. Application of low frequency GPR antenna to fractures detection and 3D visualization in a new quarry bench (E-poster). In Proceedings of the International Conference on Geophysics, Orlando, CO, USA, 6–7 October 2016. [Google Scholar]
- Sambuelli, L.; Comina, C.; Catanzariti, G.; Barsuglia, F.; Morelli, G.; Porcelli, F. The third KV62 radar scan: Searching for hidden chambers adjacent to Tutankhamun’s tomb. J. Cult. Herit. 2019, 39, 288–296. [Google Scholar] [CrossRef]
- Ranalli, D.; Scozzafava, M.; Tallini, M. Ground penetrating radar investigations for the restoration of historic buildings: The case study of the Collemaggio Basilica (L’Aquila, Italy). J. Cult. Herit. 2004, 5, 91–99. [Google Scholar] [CrossRef]
- Novo, A.; Solla, M.; Fenollós, J.L.M.; Lorenzo, H. Searching for the remains of an Early Bronze Age city at Tell Qubr Abu al-’Atiq (Syria) through archaeological investigations and GPR imaging. J. Cult. Herit. 2014, 15, 575–579. [Google Scholar] [CrossRef]
- Barilaro, D.; Branca, C.; Gresta, S.; Imposa, S.; Leone, A.; Majolino, D. Ground penetrating radar (GPR) surveys applied to the research of crypts in San Sebastiano’s church in Catania (Sicily). J. Cult. Herit. 2007, 8, 73–76. [Google Scholar] [CrossRef]
- Pérez-Gracia, V.; García, F.; Pujades, L.G.; Drigo, R.G.; Di Capua, D. GPR survey to study the restoration of a Roman monument. J. Cult. Herit. 2008, 9, 89–96. [Google Scholar] [CrossRef]
- Deiana, R. The contribution of geophysical prospecting to the multidisciplinary study of the Sarno Baths, Pompeii. J. Cult. Herit. 2019, 40, 274–279. [Google Scholar] [CrossRef]
- Russo, S. Integrated assessment of monumental structures through ambient vibrations and ND tests: The case of Rialto Bridge. J. Cult. Herit. 2016, 19, 402–414. [Google Scholar] [CrossRef]
- D’Aranno, P.J.; De Donno, G.; Marsella, M.; Orlando, L.; Renzi, B.; Salviani, S.; Santarelli, M.L.; Scifoni, S.; Sonnessa, A.; Verri, F.; et al. High-resolution geomatic and geophysical techniques integrated with chemical analyses for the characterization of a Roman wall. J. Cult. Herit. 2016, 17, 141–150. [Google Scholar] [CrossRef]
- Moropoulou, A.; Bakolas, A.; Karoglou, M.; Delegou, E.T.; Labropoulos, K.C.; Katsiotis, N.S. Diagnostics and protection of Hagia Sophia mosaics. J. Cult. Herit. 2013, 14, e133–e139. [Google Scholar] [CrossRef]
- Puente, I.; Solla, M.; Lagüela, S.; Sanjurjo-Pinto, J. Reconstructing the Roman Site “Aquis Querquennis” (Bande, Spain) from GPR, T-LiDAR and IRT Data Fusion. Remote Sens. 2018, 10, 379. [Google Scholar] [CrossRef]
- Leucci, G.; Persico, R.; Soldovieri, F. Detection of fractures from GPR data: The case history of the Cathedral of Otranto. J. Geophys. Eng. 2007, 4, 452–461. [Google Scholar] [CrossRef]
- Neubauer, W.; Eder-Hinterleitner, A.; Seren, S.; Melichar, P. Georadar in the Roman civil town Carnuntum, Austria: An approach for archaeological interpretation of GPR data. Archaeol. Prospect. 2002, 9, 135–156. [Google Scholar] [CrossRef]
- Abbas, A.M.; Kamei, H.; Helal, A.; Atya, M.A.; Shaaban, F.A. Contribution of geophysics to outlining the foundation structure of the Islamic Museum, Cairo, Egypt. Archaeol. Prospect. 2005, 12, 167–176. [Google Scholar] [CrossRef]
- Cataldo, R.; D’Agostino, D.; Leucci, G. Insights into the Buried Archaeological Remains at the Duomo of Lecce (Italy) Using Ground-penetrating Radar Surveys. Archaeol. Prospect. 2012, 19, 157–165. [Google Scholar] [CrossRef]
- Leucci, G.; Di Giacomo, G.; Ditaranto, I.; Miccoli, I.; Scardozzi, G. Integrated Ground-penetrating Radar and Archaeological Surveys in the Ancient City of Hierapolis of Phrygia (Turkey). Archaeol. Prospect. 2013, 20, 285–301. [Google Scholar] [CrossRef]
- Teixidó, T.; Peña, J.A.; Fernández, G.; Burillo, F.; Mostaza, T.; Zancajo, J. Ultradense Topographic Correction by 3D-Laser Scanning in Pseudo-3D Ground-penetrating Radar Data: Application to the Constructive Pattern of the Monumental Platform at the Segeda I Site (Spain). Archaeol. Prospect. 2014, 21, 113–123. [Google Scholar] [CrossRef]
- Matera, L.; Persico, R.; Bianco, N.; Leopizzi, G.; Leopizzi, G. Joined Interpretation of Buried Anomalies from Ground Penetrating Radar Data and Endoscopic Tests. Archaeol. Prospect. 2016, 23, 301–309. [Google Scholar] [CrossRef]
- Ribolini, A.; Bini, M.; Isola, I.; Coschino, F.; Baroni, C.; Salvatore, M.C.; Zanchetta, G.; Fornaciari, A. GPR versus Geoarchaeological Findings in a Complex Archaeological Site (Badia Pozzeveri, Italy). Archaeol. Prospect. 2017, 24, 141–156. [Google Scholar] [CrossRef]
- Utsi, E.C.; Colls, K.S. The GPR Investigation of the Shakespeare Family Graves. Archaeol. Prospect. 2017, 24, 335–352. [Google Scholar] [CrossRef]
- Bianchini Ciampoli, L.; Santarelli, R.; Loreti, E.M.; Ten, A.; Benedetto, A. Structural detailing of buried Roman baths through GPR inspection. Archaeol. Prospect. 2020, 30, 3–11. [Google Scholar] [CrossRef]
- Pieraccini, M.; Miccinesi, L.; Conti, A.; Fiorini, L.; Tucci, G.; Pieri, I.; Corazzini, S. Integration of GPR and TLS for investigating the floor of the ‘Salone dei Cinquecento’ in Palazzo Vecchio, Florence, Italy. Archaeol. Prospect. 2020, 30, 27–32. [Google Scholar] [CrossRef]
- De Giorgi, L.; Lazzari, M.; Leucci, G.; Persico, R. Geomorphological and non-destructive GPR survey for the conservation of frescos in the rupestrian churches of Matera (Basilicata, southern Italy). Archaeol. Prospect. 2020, 30, 47–55. [Google Scholar] [CrossRef]
- Feng, J.; Siegler, M.A.; White, M.N. Shallow Regolith Structure and Obstructions Detected by Lunar Regolith Penetrating Radar at Chang’E-5 Drilling Site. Remote Sens. 2022, 14, 3378. [Google Scholar] [CrossRef]
- Jaufer, R.M.; Ihamouten, A.; Goyat, Y.; Todkar, S.S.; Guilbert, D.; Assaf, A.; Dérobert, X. A Preliminary Numerical Study to Compare the Physical Method and Machine Learning Methods Applied to GPR Data for Underground Utility Network Characterization. Remote Sens. 2022, 14, 1047. [Google Scholar] [CrossRef]
- Guo, S.; Xu, Z.; Li, X.; Zhu, P. Detection and Characterization of Cracks in Highway Pavement with the Amplitude Variation of GPR Diffracted Waves: Insights from Forward Modeling and Field Data. Remote Sens. 2022, 14, 976. [Google Scholar] [CrossRef]
- Hong, S.; Chen, D.; Dong, B. Numerical simulation and mechanism analysis of GPR-based reinforcement corrosion detection. Constr. Build. Mater. 2022, 317, 125913. [Google Scholar] [CrossRef]
- Wong, P.T.; Lai, W.W. Characterization of Complex Dielectric Permittivity of Concrete by GPR Numerical Simulation and Spectral Analysis. J. Nondestruct. Eval. 2022, 41, 1. [Google Scholar] [CrossRef]
- Puntu, J.M.; Chang, P.-Y.; Lin, D.-J.; Amania, H.H.; Doyoro, Y.G. A Comprehensive Evaluation for the Tunnel Conditions with Ground Penetrating Radar Measurements. Remote Sens. 2021, 13, 4250. [Google Scholar] [CrossRef]
- Liu, S.; Lu, Q.; Li, H.; Wang, Y. Estimation of Moisture Content in Railway Subgrade by Ground Penetrating Radar. Remote Sens. 2020, 12, 2912. [Google Scholar] [CrossRef]
- Alani, A.M.; Soldovieri, F.; Catapano, I.; Giannakis, I.; Gennarelli, G.; Lantini, L.; Ludeno, G.; Tosti, F. The Use of Ground Penetrating Radar and Microwave Tomography for the Detection of Decay and Cavities in Tree Trunks. Remote Sens. 2019, 11, 2073. [Google Scholar] [CrossRef]
- Zeng, X.; McMechan, G.A. GPR characterization of buried tanks and pipes. Geophysics 1997, 62, 797–806. [Google Scholar] [CrossRef]
- Kubiak, W.B. Al Fustat: Its Foundation and Early Urban Development; American University in Cairo Press: Cairo, Egypt, 1987. [Google Scholar]
- Warren, C.; Giannopoulos, A.; Giannakis, I. gprMax: Open source software to simulate electromagnetic wave propagation for Ground Penetrating Radar. Comput. Phys. Commun. 2016, 209, 163–170. [Google Scholar] [CrossRef]











| Depth Range | 200 ns |
|---|---|
| Sample | 512 |
| Scan Step | 0.03 |
| No. | Processing Function | Notes |
|---|---|---|
| 1 | Time zero correction | |
| 2 | Bandpass filtering | (300 to 900 for 700 MHz) (100 to 700 for 250 MHz) |
| 3 | Linear gain | |
| 4 | Smooth gain |
| Zone | GPR Lines |
|---|---|
| A | 6,7,8,9,10,11,12 |
| B | 1,2,13,14,15,16,17,18,19,20 |
| C | 32,33 |
| D | 3,4,5,21,22,23,24,25,26,27,28,29,30,31 |
| E | 34,35,36,37 |
Disclaimer/Publisher’s Note: The statements, opinions and data contained in all publications are solely those of the individual author(s) and contributor(s) and not of MDPI and/or the editor(s). MDPI and/or the editor(s) disclaim responsibility for any injury to people or property resulting from any ideas, methods, instructions or products referred to in the content. |
© 2024 by the authors. Licensee MDPI, Basel, Switzerland. This article is an open access article distributed under the terms and conditions of the Creative Commons Attribution (CC BY) license (https://creativecommons.org/licenses/by/4.0/).
Share and Cite
Elkarmoty, M.; Allam, H.E.; Helal, K.; Ahmed, F.; Bonduà, S.; Mourad, S.A. Georadar Survey and Simulation for Subsurface Investigation at Historical Mosque of Sorghatmesh, Cairo, Egypt. Buildings 2024, 14, 3653. https://doi.org/10.3390/buildings14113653
Elkarmoty M, Allam HE, Helal K, Ahmed F, Bonduà S, Mourad SA. Georadar Survey and Simulation for Subsurface Investigation at Historical Mosque of Sorghatmesh, Cairo, Egypt. Buildings. 2024; 14(11):3653. https://doi.org/10.3390/buildings14113653
Chicago/Turabian StyleElkarmoty, Mohamed, Hussien E. Allam, Khalid Helal, Fathy Ahmed, Stefano Bonduà, and Sherif A. Mourad. 2024. "Georadar Survey and Simulation for Subsurface Investigation at Historical Mosque of Sorghatmesh, Cairo, Egypt" Buildings 14, no. 11: 3653. https://doi.org/10.3390/buildings14113653
APA StyleElkarmoty, M., Allam, H. E., Helal, K., Ahmed, F., Bonduà, S., & Mourad, S. A. (2024). Georadar Survey and Simulation for Subsurface Investigation at Historical Mosque of Sorghatmesh, Cairo, Egypt. Buildings, 14(11), 3653. https://doi.org/10.3390/buildings14113653

