Experimental Study on Horizontal Resistance Parameter of Gravelly Soil Considering Slope Gradient Factor
Abstract
1. Introduction
2. Similarity Ratio of Test Model
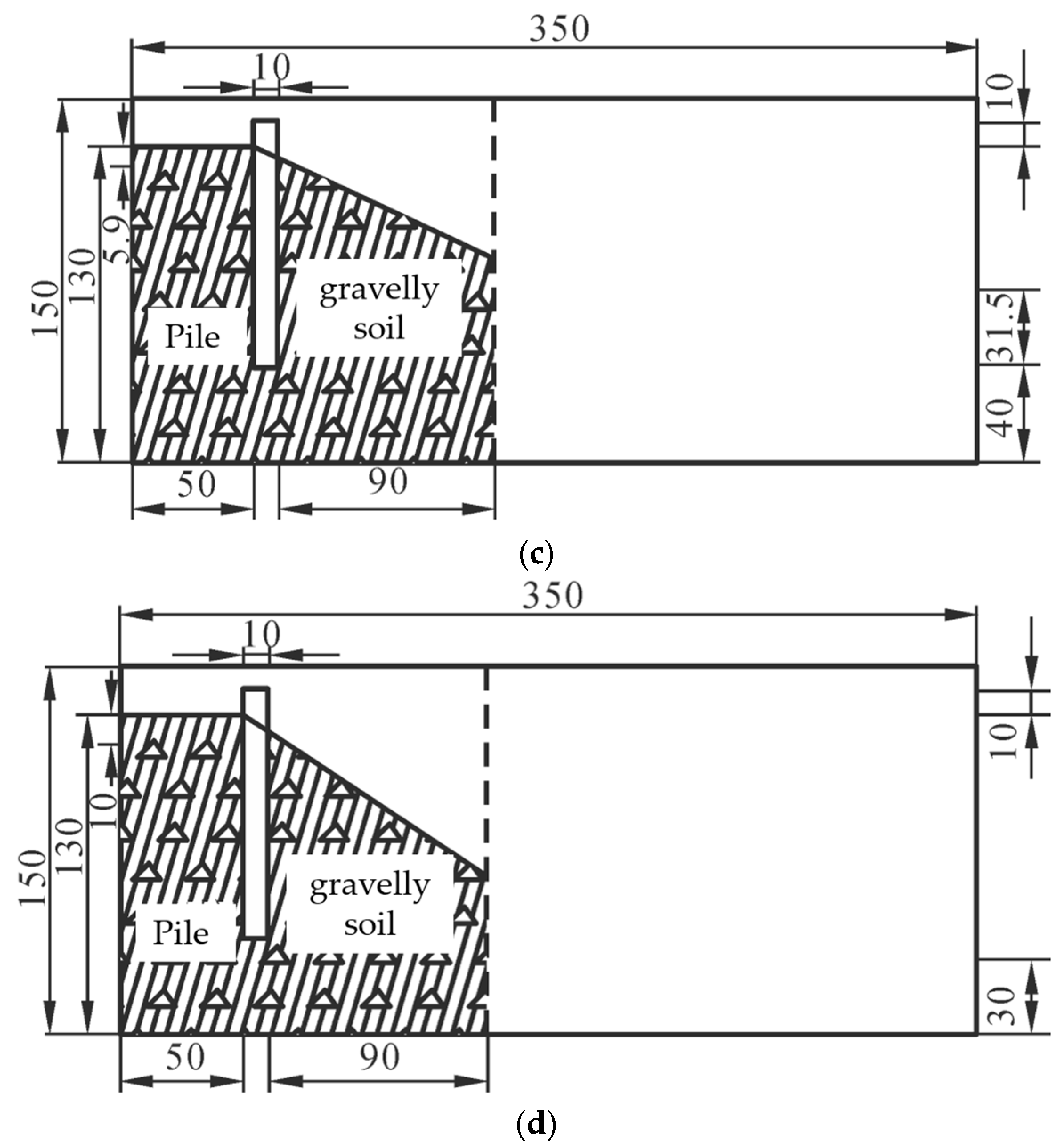
3. Modeling
3.1. Pile Model
3.2. Soil Model
3.3. Monitoring Elements
4. Data Analysis
4.1. Horizontal–Displacement Relationships of Pile–Soil Interaction
- Linear deformation stage. At this stage, the top displacement under each step of loading was relatively small. With increased loading, the displacement of the pile top increased in an approximately linear law. When the loading increased in increments of 0.3–0.5 kN, the pile top displacement increased by around 0.2–0.4 mm compared to the prior loading step.
- Non-linear deformation stage. The pile top load was between critical and ultimate loads. As loading increased by intervals of 0.3–0.5 kN, the displacement of pile top increased by around 0.5–10 mm compared to the prior loading step and the pile top loading exhibited non-linear variation in displacement.
- Accelerated deformation stage. The pile top loading enters the post-stage of ultimate loading. For identical loading increments, the displacement of the pipe top increases by approximately 2 cm compared to the prior loading step. At this time, the displacement, with loading, tends to increase.
- (1)
- Linear deformation stage: the displacement of the pile top under each level of load is relatively small. For every 0.3–0.5 kN increase in load, the displacement of the pile top increases by about 0.2–0.4 mm relative to the previous level of load. At this point, there are no obvious cracks in the soil around the pile.
- (2)
- non-linear deformation stage: the pile head load is between the critical and ultimate loads. For every increase of 0.3–0.5 kN in load, the pile top displacement increases by about 0.5–10 mm relative to the previous level of load. At this stage, there is an increase in the number and size of micro cracks in the soil around the pile.
- (3)
- Accelerated deformation stage: when the pile top load enters the ultimate load stage, under the same load increment conditions, the displacement of the pile top increases by about 2 cm relative to the previous level load, and the displacement shows an accelerating trend with the load. The cracks in the soil have undergone a qualitative change, and the soil behind the pile is separated from the pile. The crack develops rapidly and accelerates step by step with the load. The crack extends towards a certain angle in front of the pile, but it has not yet penetrated.
4.2. Soil Horizontal Resistance under Various Loading Grades
5. Soil Horizontal Resistance Distribution Laws of Slope Soil
5.1. Soil Horizontal Resistance Parameters
5.2. Proposed Distribution Mode of Soil Resistance
- (1)
- PhasesⅠ: When the horizontal load is small (less than the critical load), the soil in front of the pile is in the linear deformation stage and the soil horizontal resistance (pu1) of the pile side is smaller than the ultimate soil resistance along the pile (Figure 10b).
- (2)
- PhasesⅡ: When the load further increases and is greater than the critical load, but less than the ultimate load, the soil in the upper section above the neutral point of the pile enters a non-linear deformation stage while the lower part remains in the linear deformation stage (Figure 10c). At this time, the soil at the depth above the resistance neutral point of soil first reaches the ultimate resistance state (pu2) and the depth gradually increases with increased load.
- (3)
- PhasesⅢ: The horizontal load is greater than the ultimate load (pu3). The soil above and below the resistance neutral point of soil gradually approaches the ultimate resistance state of soil (Figure 10d).
- (1)
- Because shallow (<2 m) soil is affected by the slope gradient and other conditions, the proportion of the resistance loss is large and the soil enters the accelerated deformation stage under the action of a small thrust.
- (2)
- The depth of soil can provide relatively large resistance to the deformation caused by thrust, and the resistance is relatively larger than that of shallow soil.
- (3)
- The transmission depth of thrust is limited. Although the soil at medium and shallow buried depth has entered a linear or non-linear deformation stage, the soil at that depth may still be in the range of linear deformation and may not reach its ultimate resistance state.
6. Discussion
6.1. Soil Initial Modulus kini
6.2. Ultimate Resistance of Foundation Soil pu
7. Conclusions
Author Contributions
Funding
Data Availability Statement
Conflicts of Interest
References
- Fu, Y.S. Soil Mechanics and Geotechnical Engineering, 5th ed.; Tsinghua University Publishing House Co., Ltd.: Beijing, China, 2009. [Google Scholar]
- Kim, M.; Kim, Y.; Ko, J. Full-Scale Lateral Load Test of Large-Diameter Drilled Shaft for Building Construction on Marine Deposits. Buildings 2024, 14, 2596. [Google Scholar] [CrossRef]
- Zhao, Q.H.; Chen, J.B.; Peng, S.Q. Terrain slope angle effect on p–y curves for piles in gravelly soil. Arab. J. Geosci. 2020, 13, 537. [Google Scholar] [CrossRef]
- Chen, J.B.; Zhao, Q.H.; Peng, S.Q. Study on The Distribution of Horizontal Resistance of Soil Slope in Gravel Soil Slope. J. Eng. Geol. 2018, 26, 959–968. [Google Scholar]
- Fu, C.Z.; Jiang, J.; Ou, X.D.; Long, Y.H.; Zhang, T. An improved calculation method of lateral ultimate bearing capacity of rigid pile in sandy soil foundation. J. Cent. South Univ. (Sci. Technol.) 2021, 52, 3668–3679. [Google Scholar]
- Sivapriya, S.V.; Gandhi, S.R. Soil-Structure Interaction of Pile in a Sloping Ground Under Different Loading Conditions. Geotech. Geol. Eng. 2020, 38, 1185–1194. [Google Scholar] [CrossRef]
- Nimityongskul, N.; Kawamata, Y.; Rayamajhi, D.; Ashford, S.A. Full-Scale Tests on Effects of Slope on Lateral Capacity of Piles Installed in Cohesive Soils. J. Geotech. Geoenviron. Eng. 2018, 144, 04017103. [Google Scholar] [CrossRef]
- Zhang, L.; Zhao, M.H.; Zou, X.J. Behavior of Laterally Loaded Piles in Multilayered Soils. Int. J. Geomech. 2015, 15, 6014017. [Google Scholar] [CrossRef]
- Chae, K.S.; Ugai, K.; Wakai, A. Lateral resistance of short single piles and pile groups located near slopes. Int. J. Geomech. 2004, 4, 93–103. [Google Scholar] [CrossRef]
- Zhao, Q.H.; Jiang, J.F.; Zheng, T.; Peng, Y.; Wang, Y. New Procedure for Lateral Earth Pressure Calculation in Finite Soil of Sloping Condition. J. Eng. Geol. 2022, 30, 1882–1892. [Google Scholar]
- Georgiadis, K.; Georgiadis, M. Development of p–y curves for undrained response of piles near slopes. Comput. Geotech. 2012, 40, 53–61. [Google Scholar] [CrossRef]
- JGJ94 Technical Code for Building Pile Foundations; China Architecture & Building Press: Beijing, China, 2008.
- Zhao, Q.H.; Peng, S.Q. Rock and Soil Retaining and Anchorage Engineering; Sichuan University Press: Chengdu, China, 2008. [Google Scholar]
- Wang, W.; Zhang, X.; Yu, S.; Guan, J. Effect of Cyclic Soil Freezing and Thawing on the Lateral Load Response of Bridge Pile Foundations. Buildings 2024, 14, 2540. [Google Scholar] [CrossRef]
- Jiang, J.; Fu, C.Z.; Chai, W.C.; Zhang, T.; Ou, X.D. Analytical solution of lateral bearing capacity of rigid single piles based on modified shaft resisting moment. Chin. J. Rock Mech. Eng. 2022, 41, 1910–1922. [Google Scholar]
- Jones, K.; Sun, M.; Lin, C. Numerical analysis of group effects of a large pile group under lateral loading. Comput. Geotech. 2022, 144, 104660. [Google Scholar] [CrossRef]
- American Petroleum Institute. Recommended Practice for Planning, Designing and Constructing Fixed Offshore Platforms-Working Stress Design; API Publishing Services: Washington, DC, USA, 2001. [Google Scholar]
- Reese, L.C. Single Piles and Pile Groups Under Lateral Loading, 2nd ed.; CRC Press: Boca Raton, FL, USA, 2011. [Google Scholar]
- Zhang, X.; Tang, L.; Li, X.; Ling, X.; Chan, A. Effect of the combined action of lateral load and axial load on the pile instability in liquefiable soils. Eng. Struct. 2020, 205, 110074. [Google Scholar] [CrossRef]
- Zhang, X.Y.; Guan, J.D.; Chen, X.C.; Pei, W.S.; Yu, S.S.; Wang, Y.; Wang, W.P. Effect of permafrost on seismic performance of railway bridge pile foundation with elevated cap. Int. J. Struct. Stab. Dyn. 2022, 22, 2241002. [Google Scholar] [CrossRef]
- Cui, J. Structural analysis of high-rise buildings under lateral loads. Highl. Sci. Eng. Technol. 2023, 75, 209–214. [Google Scholar] [CrossRef]
- Poulos, H.G. Behavior of laterally loaded piles near a cut or slope. Aust. Geomech. J. 1976, 6, 6–12. [Google Scholar]
- Guo, W.D. Laterally loaded rigid piles in cohesionless soil. Can. Geotech. J. 2008, 45, 676–697. [Google Scholar] [CrossRef]
- Georgiadis, K. The effect of surcharge load on the lateral resistance of a row of piles in clay. In Proceedings of the 8th European Conference on Numerical Methods in Geotechnical Engineering, Delft, The Netherlands, 18–20 June 2014; Volume 2. [Google Scholar]
- Teramoto, S.; Niimura, T.; Akutsu, T.; Kimura, M. Evaluation of ultimate behavior of actual large-scale pile group foundation by in-situ lateral loading tests and numerical analysis. Soils Found. 2018, 58, 819–837. [Google Scholar] [CrossRef]
- Byrne, B.W.; McAdam, R.A.; Burd, H.J.; Beuckelaers, W.J.; Gavin, K.G.; Houlsby, G.T.; Zdravković, L. Monotonic laterally loaded pile testing in a stiff glacial clay till at Cowden. Géotechnique 2020, 70, 970–985. [Google Scholar] [CrossRef]
- Gabr, M.A.; Borden, R.H. Lateral Analysis of Piers Constructed on Slopes. J. Geotech. Eng. 1990, 116, 1831–1850. [Google Scholar] [CrossRef]
- Wu, F.; Shi, B.L.; Zhuo, Y. Nonlinear m method for piles under lateral load. Chin. J. Rock Mech. Eng. 2009, 9, 1398–1401. [Google Scholar]
- Georgiadis, K.; Georgiadis, M. Undrained Lateral Pile Response in Sloping Ground. J. Geotech. Geoenviron. Eng. 2010, 15, 1488–1500. [Google Scholar] [CrossRef]
- Chen, J.B. Research on the Distribution Law of Horizontal Resistance of Gravel Soil Slope Soil; Chengdu University of Technology: Chengdu, China, 2017. [Google Scholar]
- Fleming, W.G.K.; Randolph, A.J.; Elson, W.K. Pilling Engineering; Surrey University Press: London, UK, 1991. [Google Scholar]
- LeBlanc, C.; Houlsby, G.T.; Byrne, B.W. Response of stiff piles in sand to long-term cyclic lateral loading. Géotechnique 2010, 60, 79–90. [Google Scholar] [CrossRef]
- GB50010; Code for Design of Concrete Structures. China Architecture & Building Press: Beijing, China, 2011.
- GBT50123; Standard for Geotechnical Testing Method. China Architecture & Building Press: Beijing, China, 2019.
- EN 1997-1:2007; European Committee for Standardization. Eurocode 7 Geotechnical Design-Part 2 Ground Investigation and Testing. British Standards Institution: London, UK, 2007.













| Soil Properties | Physical Mechanical Parameter | Test Curve | |
|---|---|---|---|
| Gravel soil | γ (kg/m3) | 22.7 | ![]() |
| C (kPa) | 7–10 | ||
| φ (°) | 42 | ||
| Cu | 13.8 | ||
| Depth | 0° | 15° | 30° | 45° | Soil Pressure–Displacement Curve | ||||
|---|---|---|---|---|---|---|---|---|---|
| kini | pu | kini | pu | kini | pu | kini | pu | ||
| 0.15 m | 9.5 | 40 | 4.8 | 30 | 2.99 | 20 | 1.66 | 8 | ![]() |
| 0.25 m | 17.7 | 146 | 12.4 | 103 | 5.75 | 45 | 4.32 | 25 | ![]() |
| 0.4 m | 26 | 200 | 19.7 | 150 | 7.56 | 100 | 6.61 | 30 | ![]() |
| 0.5 m | 34.3 | 254 | 27 | 197 | 9.37 | 155 | 8.9 | 35 | For buried depth below 0.4 m, only the calculated results are listed in the table. |
| 0.7 m | 42.6 | 308 | 39 | 299 | 37 | 300 | 37 | 250 | |
Disclaimer/Publisher’s Note: The statements, opinions and data contained in all publications are solely those of the individual author(s) and contributor(s) and not of MDPI and/or the editor(s). MDPI and/or the editor(s) disclaim responsibility for any injury to people or property resulting from any ideas, methods, instructions or products referred to in the content. |
© 2024 by the authors. Licensee MDPI, Basel, Switzerland. This article is an open access article distributed under the terms and conditions of the Creative Commons Attribution (CC BY) license (https://creativecommons.org/licenses/by/4.0/).
Share and Cite
Wang, Y.; Chen, J.; Pan, Z.; Yang, L.; Zhang, H.; Wu, X. Experimental Study on Horizontal Resistance Parameter of Gravelly Soil Considering Slope Gradient Factor. Buildings 2024, 14, 3346. https://doi.org/10.3390/buildings14113346
Wang Y, Chen J, Pan Z, Yang L, Zhang H, Wu X. Experimental Study on Horizontal Resistance Parameter of Gravelly Soil Considering Slope Gradient Factor. Buildings. 2024; 14(11):3346. https://doi.org/10.3390/buildings14113346
Chicago/Turabian StyleWang, Yanfang, Jibin Chen, Zhengwei Pan, Lan Yang, Hui Zhang, and Xinjia Wu. 2024. "Experimental Study on Horizontal Resistance Parameter of Gravelly Soil Considering Slope Gradient Factor" Buildings 14, no. 11: 3346. https://doi.org/10.3390/buildings14113346
APA StyleWang, Y., Chen, J., Pan, Z., Yang, L., Zhang, H., & Wu, X. (2024). Experimental Study on Horizontal Resistance Parameter of Gravelly Soil Considering Slope Gradient Factor. Buildings, 14(11), 3346. https://doi.org/10.3390/buildings14113346





