Structural Analysis of Masonry Square Vaults in the Italian Region of Apulia
Abstract
1. Introduction
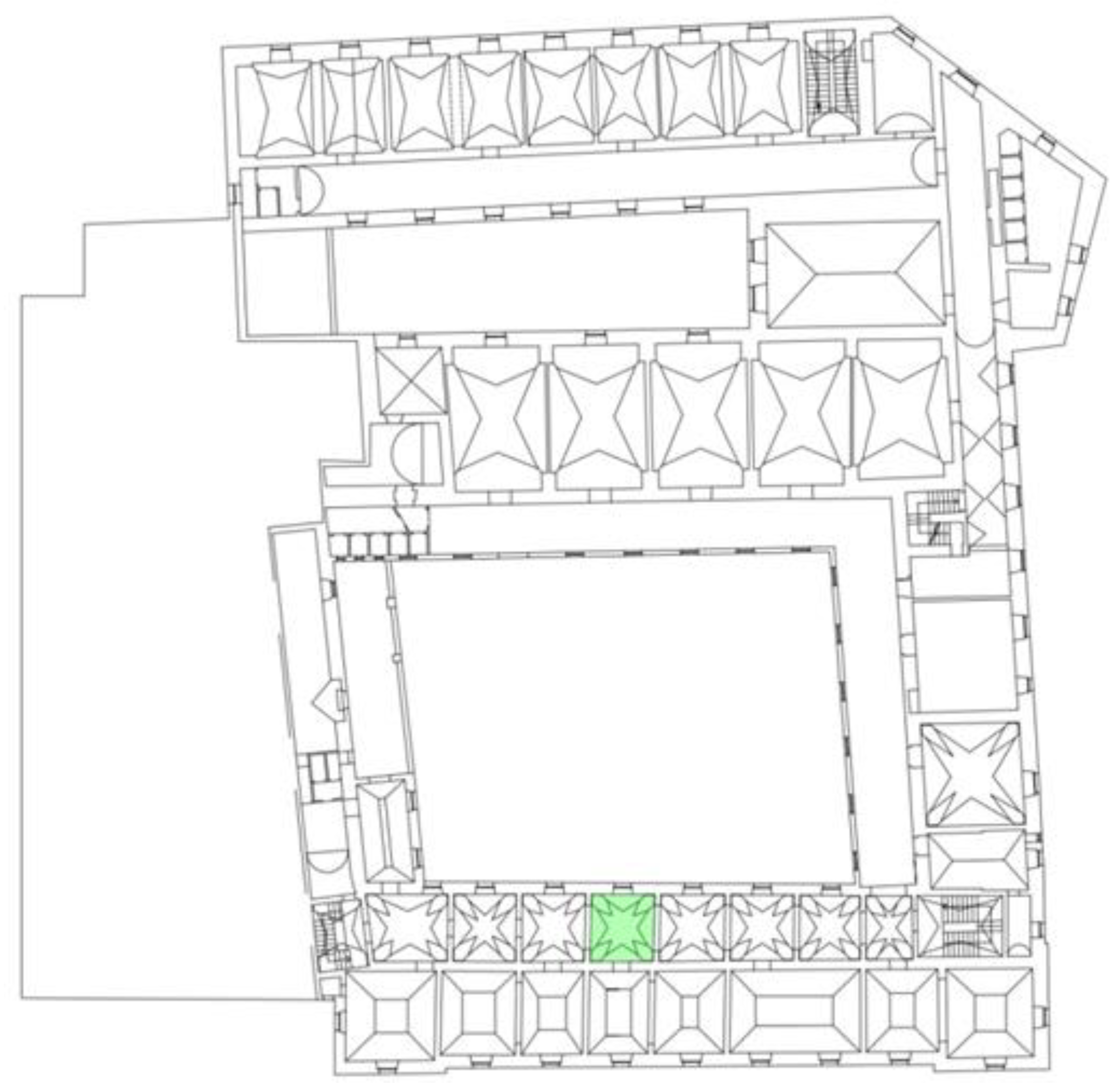
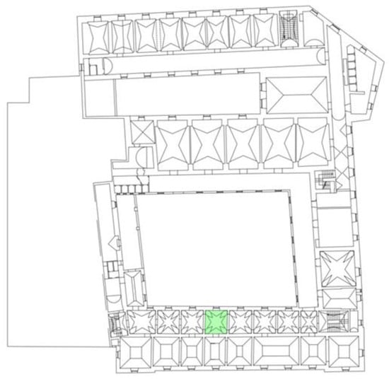
2. Teresiani Scalzi’s Monastery: History and Survey
3. Geometry and Crack Framework of the Vault
3.1. Geometry of the Vault
3.2. Crack Inspection




4. Non-Linear Incremental Analysis of the Vault
4.1. Material Properties
- -
- On the basis of the visual investigations and of the values suggested in the literature, the compression strength was set to 26 daN/cm2.
- -
- Analogously, the tensile strength was set to 2.6 daN/cm2, based on data from the literature, according to which the tensile strength of masonry is about 1/20 ÷ 1/10 of its compression strength.
4.2. Incremental Analysis under Vertical Loads
- -
- vertical loads;
- -
- specific weight: 16 kN/m3;
- -
- live load: 1.0 kN/m2;
- -
- thrust of the vaults of adjacent rooms.
- -
- increase the vertical loads until the tensile strength is reached in one node;
- -
- insert cracks or hinges where the maximum values of tensile stress have occurred; the crack is obtained by separating two adjacent shell elements.
4.2.1. Load Level 1
- If the failure is related to the membrane state or it occurs along the intersection between the horizontal vault and the vertical arch, a part of shell can be eliminated in order to simulate the crack. Therefore, the mesh is refined and some small shell elements are eliminated (represented by a filled line in Figure 24).
- In the other cases (mainly when the failure is related to the banding behavior), the adjacent shell elements can be released in their relative rotation along the dotted line, represented in Figure 24.
4.2.2. Load Level 2
- cracks on keystones;
- propagation of this crack on the vault;
- cracks along the four arches;
- propagation of these cracks on the surface of the vault;
- removal of supports at the base of posts in order to allow the rigid rotation;
- cracks close to the arch imposts;
- formation of a rigid body mechanism.
4.3. Incremental Analysis under Horizontal Loads
- vertical loads;specific weight: 16 kN/m3 (applied following the same approach detailed in Section 4.2);live load: 1.0 kN/m2.
- Thrust of the vaults of adjacent rooms. As in the previous analysis, a nodal force (10 kN in direction x and 10 kN in direction y, in green in Figure 34), equivalent to the thrust of a cross vault, has been applied in each corner, and a distributed load (4.4 kN/m, in red in Figure 34), equivalent to the thrust of a hipped vault, has been imposed on the wall with the door.
- Horizontal static load equivalent to earthquake in the weakest direction (less stiffness) with an intensity appropriate to the geographical location and provided by the following relation [29]:where Fh depends mainly on the response spectrum of the geographical area and is provided in § 3.2.3.5 of [29] on the basis of nominal life Vn, importance factor Cu, and knowledge level LC:
- LC 1 (low knowledge level), which corresponds to a Confidence Factor equal to 1.35;
- Cu = 1.5;
- Vn = 50 years;
- Locality: Lecce.
- With vertical loads, the maximum tensile stress is in the keystone.
- With seismic loads, the maximum tensile stress occurs, of course, at the bottom of both piers, as the earthquake acts in both directions.
5. Conclusions
Author Contributions
Funding
Data Availability Statement
Conflicts of Interest
References
- Gaetani, A.; Monti, G. Design and analysis of cross vaults along history. Int. J. Archit. Herit. 2016, 10, 841–856. [Google Scholar] [CrossRef]
- Mahini, S.S. Smeared crack material modelling for the nonlinear analysis of CFRP-strengthened historical brick vaults with adobe piers. Constr. Build. Mater. 2015, 74, 201–218. [Google Scholar] [CrossRef]
- Milani, G.; Lourenço, P.B. Simple homogenized model for the nonlinear analysis of FRP-strengthened masonry structures: Structural applications. J. Eng. Mech. 2013, 139, 77–93. [Google Scholar] [CrossRef]
- Ramaglia, G.; Lignola, G.P.; Prota, A. Collapse analysis of slender masonry barrel vaults. Eng. Struct. 2016, 117, 86–100. [Google Scholar] [CrossRef]
- Gaetani, G.; Lourenço, P.B.; Monti, G.; Milani, G. A parametric investigation on the seismic capacity of masonry cross vaults. Eng. Struct. 2017, 148, 686–703. [Google Scholar] [CrossRef]
- Alforno, M.; Venuti, F.; Monaco, A.; Calderini, C. Seismic behaviour of cross vaults with different brick pattern. Bull. Earthq. Eng. 2022, 20, 3921–3939. [Google Scholar] [CrossRef]
- Alcindor, M.; Jackson, D. Transmitting Culture through Building System: The Case of the Tile Vault. Buildings 2023, 13, 873. [Google Scholar] [CrossRef]
- Brandonisio, G.; De Angelis, F.; De Luca, A. Safety Factor of Masonry Arches under Gravity Loads. Buildings 2022, 12, 2059. [Google Scholar] [CrossRef]
- Vintzileou, E.; Mouzakis, C.; Karapitta, L.; Miltiadou-Fezans, A. Shake-table Testing of a Cross Vault. Buildings 2022, 12, 1984. [Google Scholar] [CrossRef]
- Gusella, V.; Liberotti, R. Seismic Vulnerability of Sub-Structures: Vantitelli’s Modulus in Murena Palace. Buildings 2020, 10, 164. [Google Scholar] [CrossRef]
- Zanaz, A.; Yotte, S.; Fouchal, F.; Chateauneuf, A. Efficient masonry vault inspection by Monte Carlo simulations: Case of hidden defect. Case Stud. Struct. Eng. 2016, 5, 1–12. [Google Scholar] [CrossRef]
- Rossi, M.; Calderini, C.; Lagomarsino, S. Experimental testing of the seismic in plane displacement capacity of masonry cross vaults through a scale model. Bull. Earthq. Eng. 2016, 14, 261–281. [Google Scholar] [CrossRef]
- Block, P.; Lachauer, L. Three-dimensional funicular analysis of masonry vaults. Mech. Res. Commun. 2014, 56, 53–60. [Google Scholar] [CrossRef]
- Fraddosio, A.; Lepore, N.; Piccioni, M.D. Thrust surface method: An innovative approach for the three-dimensional lower bound Limit Analysis of masonry vaults. Eng. Struct. 2020, 202, 109846. [Google Scholar] [CrossRef]
- Gattesco, N.; Boem, I.; Andretta, V. Experimental behaviour of non-structural masonry vaults reinforced through fibre-reinforced mortar coating and subjected to cyclic horizontal loads. Eng. Struct. 2018, 172, 419–431. [Google Scholar] [CrossRef]
- Coisson, E.; Ferretti, D.; Pagliari, F. A comparison between traditional and modern approaches for the structural modelling of brick masonry barrel vaults. In Proceedings of the 12th International Conference on Structural Analysis of Historical Constructions, SAHC 2020, Barcelona, Spain, 29 September–1 October 2021. [Google Scholar]
- Bianchini, N.; Mendes, N.; Lourenço, P.B.; Calderini, C.; Rossi, M. Seismic assessment of masonry cross vaults through numerical nonlinear static and dynamic analysis. In Proceedings of the 7th ECCOMAS Thematic Conference on Computational Methods in Structural Dynamics and Earthquake Engineering, Crete, Greece, 24–26 June 2019. [Google Scholar]
- Panettera, A. Notizie della città di Lecce (1610–1650). In App.ce a Rivista Storica Salentina; Palumbo, P., Ed.; Congedo Publisher: Lecce, Italy, 1904; Volume II. [Google Scholar]
- Paone, M. Studi Salentini; Centro di Studi Salentini: Lecce, Italy, 1961; Volume XII, pp. 404–405. [Google Scholar]
- Vacca, N. In rovina un capolavoro del bel barocco leccese. La Gazzetta del Mezzogiorno, 5 December 1904. [Google Scholar]
- Paone, M. I Teresiani in Lecce. In Archivio Storico Pugliese; Società di Storia Patria per la Puglia: Bari, Italy, 1965; Volume XVIII, pp. 209–215. [Google Scholar]
- Conte, C.; Aiello, M.A.; Ranieri, C.; Fabbrocino, G. Experimental and numerical modal analysis of masonry curved structures: Lecce’s edge vaults. In Proceedings of the XIV Conference ANIDIS—Associazione Nazionale Italiana di Ingegneria Sismica, Bari, Italy, 18–22 September 2011. [Google Scholar]
- Colaianni, V.G. Le Volte Leccesi. Internal Report—Institute of Architecture and Urban Planning of the Faculty of Engineering; University of Bari, Dedalo Libri Publisher: Turin, Italy, 1967. [Google Scholar]
- Pelliccio, A.; Saccucci, M. Interpreting Lecce Vaults with Analytical-Geometrical Models. Nexus Netw. J. 2020, 22, 915–935. [Google Scholar] [CrossRef]
- Pelliccio, A.; Saccucci, M.; Grande, E. A key nexus for vault system from Lecce: Stereometric correlation between shape and structure. In Nexus 2018 Architecture and Mathematics Conference Book; Kim Williams Book: Turin, Italy, 2018; pp. 209–215. [Google Scholar]
- Fallacara, G. The Lecce Vault: History, Construction Techniques, and New Design Perspectives. Nuts Bolts Constr. Hist. 2012, 3, 99–105. [Google Scholar]
- Direttiva del Presidente del Consiglio dei Ministri del 9 Febbraio, Supplemento Ordinario n. 54 alla G.U. n. 47 del 26 Febbraio 2011. Valutazione e Riduzione del Rischio Sismico del Patrimonio Culturale [In Italian]. Available online: https://www.gazzettaufficiale.it/eli/id/2011/02/26/11A02374/sg (accessed on 18 June 2023).
- Mallardo, V.; Malvezzi, R.; Milani, E.; Milani, G. Seismic vulnerability of historical masonry buildings: A case study in Ferrara. Eng. Struct. 2008, 30, 2223–2241. [Google Scholar] [CrossRef]
- NTC 2018, Decreto Ministeriale 17 Gennaio 2018, Norme Tecniche per le Costruzioni [In Italian], Ministry of Infrastructures and Transportations. 2018. Available online: https://www.gazzettaufficiale.it/eli/id/2018/02/20/18A00716/sg (accessed on 18 June 2023).
- Circolare 21 Gennaio 2019, n. 7 C.S.LL.PP. Istruzioni per l’applicazione dell’«Aggiornamento delle “Norme Tecniche per le Costruzioni”» di cui al Decreto Ministeriale 17 Gennaio 2018 [In Italian], Ministry of Infrastructures and Transportations. 2019. Available online: https://www.gazzettaufficiale.it/eli/id/2019/02/11/19A00855/sg (accessed on 18 June 2023).
- PROfessional Structural Analysis Program_PRO_Sap, User’s Guide. April 2019. Available online: https://www.2si.it/it/download-manuali-ed-esempi/ (accessed on 18 June 2023).














































| Vault 1 | Vault 2 | Vault 3 | |
|---|---|---|---|
| Thrust | kN | 4.4 kN/m | kN |
Disclaimer/Publisher’s Note: The statements, opinions and data contained in all publications are solely those of the individual author(s) and contributor(s) and not of MDPI and/or the editor(s). MDPI and/or the editor(s) disclaim responsibility for any injury to people or property resulting from any ideas, methods, instructions or products referred to in the content. |
© 2023 by the authors. Licensee MDPI, Basel, Switzerland. This article is an open access article distributed under the terms and conditions of the Creative Commons Attribution (CC BY) license (https://creativecommons.org/licenses/by/4.0/).
Share and Cite
De Fabrizio, M.; Mallardo, V. Structural Analysis of Masonry Square Vaults in the Italian Region of Apulia. Buildings 2023, 13, 1997. https://doi.org/10.3390/buildings13081997
De Fabrizio M, Mallardo V. Structural Analysis of Masonry Square Vaults in the Italian Region of Apulia. Buildings. 2023; 13(8):1997. https://doi.org/10.3390/buildings13081997
Chicago/Turabian StyleDe Fabrizio, Maristella, and Vincenzo Mallardo. 2023. "Structural Analysis of Masonry Square Vaults in the Italian Region of Apulia" Buildings 13, no. 8: 1997. https://doi.org/10.3390/buildings13081997
APA StyleDe Fabrizio, M., & Mallardo, V. (2023). Structural Analysis of Masonry Square Vaults in the Italian Region of Apulia. Buildings, 13(8), 1997. https://doi.org/10.3390/buildings13081997

