Transfer Length and Prestress Losses of a Prestressed Concrete Box Girder with 18 mm Straight Strands
Abstract
:1. Introduction
2. Details of a Prestressed Box Girder and Material Properties
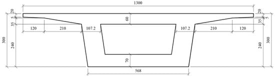
2.1. Section Dimensions
2.2. Material Properties
3. Transfer Length of 18 mm Strands
3.1. Existing Equations of Transfer Length
- = diameter of the strand (mm).
- = the effective stress in prestressing strands after losses (MPa).
- = stress of prestressing strands after detension (MPa);
- = basic anchorage length (mm);
- = design bond strength (MPa);
- = 1.0 for gradual release and 1.25 for sudden release;
- = 0.5 for verifying the transverse stress due to prestress transfer in the anchorage zone;
- = 0.5 for strands.
3.2. Comparison of Predicted and Measured Transfer Lengths
4. Prestressed Losses
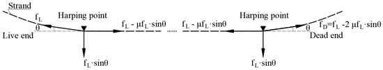
4.1. Stress Loss Due to Strand Harping
- = live end force (kN);
- = dead end force (kN);
- = harping angle of strand (degree).
4.2. Prestress Losses at Different Stages
- (1)
- Prestress Loss due to elastic shortening
- fcgp = concrete stress at cgp (MPa).
- Ep = modulus of elasticity of strand (MPa);
- Eci = modulus of elasticity of concrete at detension (MPa);
- = gross area of strands (mm2);
- = gross area of girder section (mm2);
- = average strands eccentricity at midspan (mm);
- = the stress in strands immediately prior to transfer (MPa);
- = moment of inertia of the gross girder section (mm4);
- = midspan moment due to self-weight (N·mm).
- ΔL = longitudinal shortening of the girder (m);
- L = length of the box girder (m).
- (2)
- Time-dependent Prestress Losses
- = correction factor for relative humidity;
- = correction factor for specified concrete strength at time of prestress transfer to the concrete member;
- = loss due to relaxation taken as 16.5 MPa herein.
- = prestress loss due to shrinkage of concrete (MPa);
- = prestress loss due to creep of concrete (MPa).
- (3)
- Total prestress losses
5. Conclusions and Discussion
Author Contributions
Funding
Data Availability Statement
Conflicts of Interest
Nomenclature
| gross area of girder section | L | length of the box girder | |
| gross area of strands | Lt | transfer length of strands | |
| C | distance from concrete surface to closest center of strand | midspan moment due to self-weight | |
| diameter of the strand | stress of prestressing strands after detension | ||
| average strands eccentricity at midspan | 1.0 for gradual release and 1.25 for sudden release | ||
| Ep | modulus of elasticity of strand | 0.5 for verifying the transverse stress due to prestress transfer in the anchorage zone | |
| Eci | modulus of elasticity of concrete at detension | 0.5 for strands | |
| design bond strength | the friction factor | ||
| concrete compressive strength at detension | harping angle of strand | ||
| fcgp | concrete stress at cgp | correction factor for relative humidity | |
| dead end force | correction factor for specified concrete strength at time of prestress transfer to the concrete member | ||
| live end force | loss due to elastic shortening | ||
| the stress in strands immediately prior to transfer | time-dependent prestress losses | ||
| the effective stress in prestressing strands after losses | loss due to relaxation | ||
| effective stress in prestressed strand at detension | prestress loss due to shrinkage of concrete | ||
| moment of inertia of the gross girder section | prestress loss due to creep of concrete | ||
| basic anchorage length |
References
- Schualer, G. Producer’s experience with 10,000 psi concrete and 0.7-in. diameter strands. HPC Bridge Views, 1 March 2009; Issue 54. [Google Scholar]
- Ma, Z.J.; Burdette, E.G. Transfer Length and Girder-End Confinement of AASHTO-PCI BT Girders with Larger Capacity Prestressing Strands; Technical Report: RES-2010-23; The University of Tennessee Knoxville: Knoxville, TN, USA, 2011. [Google Scholar]
- Salazar, J.; Yousepour, H.; Katz, A.; Abyaneh, R.A.; Kim, H.; Garber, D.; Hrynyk, T.; Bayrak, O. Benefits of using 0.7 in. (18 mm) diameter strands in precast, pretensioned girders: A parametric investigation. PCI J. 2017, 62, 59–75. [Google Scholar] [CrossRef]
- AASHTO. AASHTO LRFD Bridge Design Specifications, 8th ed.; American Association of State Highway and Transportation Officials: Washington, DC, USA, 2017. [Google Scholar]
- Jiang, X.; Ban, X.L.; Ma, L.; Su, Y.H.; Cao, Q.; Zhang, Z.Y.; Guo, J.C. Prestressed concrete box girder with high-capacity strands-monitoring and analysis during fabrication. Buildings 2022, 12, 911. [Google Scholar] [CrossRef]
- Russell, B.W.; Burns, N.H. Measured transfer lengths of 0.5 and 0.6 in. strands in pretensioned concrete. PCI J. 1996, 49, 44–65. [Google Scholar] [CrossRef]
- Song, W.C.; Ma, Z.J.; Vadivelu, J. Transfer length and splitting force calculation for pretensioned concrete girders with high-capacity strands. J. Bridge Eng. 2014, 19, 04014026. [Google Scholar] [CrossRef]
- Jin, K.K.; Jun, M.Y.; Hong, J.Y. Experimental evaluation of transfer length in pretensioned concrete beams using 2400-MPa prestressed strands. J. Struct. Eng. 2016, 142, 04020186. [Google Scholar]
- Dang, C.N.; Floyd, R.W.; Hale, W.M.; Martí-Vargas, J.R. Measured development lengths of 0.7 in. (17.8 mm) strands for pretensioned beams. ACI Struct. J. 2016, 113, 525–535. [Google Scholar] [CrossRef]
- Dang, C.N.; Hale, W.M.; Martí-Vargas, J.R. Quantification of bond performance of 18-mm prestressing steel. Constr. Build. Mater. 2018, 159, 451–462. [Google Scholar] [CrossRef]
- Dang, C.N.; Martí-Vargas, J.R.; Hale, W.M. Bond mechanism of 18-mm prestressing strands: New insights and design applications. Struct. Eng. Mech. 2020, 76, 67–81. [Google Scholar]
- Jiang, X.; Cabage, J.; Jing, Y.; John, Z.; Burdette, E.G. Effect of embedment length on bond of 18 mm (0.7 in.) strand by pullout test. ACI Struct. J. 2017, 114, 707–717. [Google Scholar] [CrossRef]
- Jiang, X.; Gui, Q.; Ma, Z.J. Pretensioned pullout test of 18mm (0.7 in.) diameter strand with different embedment lengths. Struct. Concr. 2019, 20, 1842–1857. [Google Scholar] [CrossRef]
- Jiang, X.; Ma, Z.J. Prestress losses for AASHTO type I girder with larger capacity strands. In Proceedings of the PCI Convention and National Bridge Conference, Texas, TX, USA, 21–24 September 2013. [Google Scholar]
- Garber, D.B.; Gallardo, J.M.; Deschenes, D.J.; Bayrak, O. Prestress loss calculations: Another perspective. PCI J. 2016, 61, 68–85. [Google Scholar] [CrossRef]
- Mohebbi, A.; Graybeal, B. Prestress loss model for ultra-high performance concrete. Eng. Struct. 2022, 252, 113645. [Google Scholar] [CrossRef]
- Almohammedi, A.; Murray, C.D.; DANG, C.N.; Hale, W.M. Investigation of measured prestress losses compared with design prestress losses in AASHTO Types II, II, IV, and VI bridge girders. PCI J. 2021, 66, 32–48. [Google Scholar] [CrossRef]
- Thedy, J.; Liao, K.W.; Tseng, C.C.; Liu, C.M. Bridge health monitoring via displacement reconstruction-based NB-IoT technology. Appl. Sci. 2020, 10, 8878. [Google Scholar] [CrossRef]
- Bonopera, M.; Chang, K.C. Novel method for identifying residual prestress force in simply supported concrete girder-bridges. Adv. Struct. Eng. 2021, 24, 3238–3251. [Google Scholar] [CrossRef]
- Bagge, N.; Nilimaa, J.; Blanksvärd, T.; Elfgren, L. Instrumentation and full-scale test of a post-tensioned concrete bridge. Nord. Concr. Res. 2014, 51, 63–83. [Google Scholar]
- Bagge, N.; Nilimaa, J.; Elfgren, L. In-situ methods to determine residual prestress forces in concrete bridges. Eng. Struct. 2017, 135, 41–52. [Google Scholar] [CrossRef]
- GB/T 50081-2002; Standard for Test Method of Mechanical Properties on Ordinary Concrete. China Architecture Publishing & Media Co., Ltd.: Beijing, China, 2002.
- American Concrete Institute (ACI) Committee 318. Building Code Requirements for Structural Concrete (ACI 318-19) and Commentary; ACI: Farmington Hills, MI, USA, 2019. [Google Scholar]
- Comité Euro-International Du Beton and the Federation Internationale de la Précontrainte (CEB-FIP). Model Code 2010; CEB-FIP: Lausanne, Switzerland, 2010. [Google Scholar]
- Martin, L.D.; Scott, N.L. Development of prestress strand in Pretensioned Members. ACI J. 1976, 73, 453–456. [Google Scholar]
- Zia, P.; Mostafa, T. Development Length of Prestressing Strands. PCI J. 1977, 22, 54–65. [Google Scholar]
- Mitchell, D.; Cook, W.D.; Khan, A.A.; Tham, T. Influence of high strength concrete on transfer and development length of pretensioning strand. PCI J. 1993, 38, 52–66. [Google Scholar] [CrossRef]
- Deatherage, J.H.; Burdette, E.G.; Chew, C.K. Development length and lateral spacing requirements of prestressing strand for prestressed concrete bridge girders. PCI J. 1994, 39, 70–83. [Google Scholar] [CrossRef]
- Oh, B.H.; Lim, S.N.; Lee, M.K.; Yoo, S.W. Analysis and prediction of transfer length in pretensioned, prestressed concrete members. ACI Struct. J. 2012, 111, 549–559. [Google Scholar] [CrossRef]











| Time (d) | 3 | 6 | 14 | 28 |
|---|---|---|---|---|
| Compressive Strength (MPa) | 32.0 | 50.1 | 56.4 | 62.0 |
| Modulus of Elasticity (MPa) | 32,200 | 35,700 | 41,300 | 43,000 |
| Researcher | Equation |
|---|---|
| Martin and Scott (1976) [25] | |
| Zia and Mostafa (1977) [26] | |
| Russell and Burns (1993) [6] | |
| Mitchell, Cook and Khan et al. (1993) [27] | |
| Deatherage, Burdette and Chew et al. (1994) [28] | |
| Oh, Lim and Lee et al. (2012) [29] |
| Days after Detension (d) | Concrete Strain at cgp (με) | Prestress Losses (MPa) |
|---|---|---|
| 3 | 110 | 21.5 |
| 6 | 138 | 26.9 |
| 14 | 182 | 35.5 |
| 28 | 243 | 47.4 |
Disclaimer/Publisher’s Note: The statements, opinions and data contained in all publications are solely those of the individual author(s) and contributor(s) and not of MDPI and/or the editor(s). MDPI and/or the editor(s) disclaim responsibility for any injury to people or property resulting from any ideas, methods, instructions or products referred to in the content. |
© 2023 by the authors. Licensee MDPI, Basel, Switzerland. This article is an open access article distributed under the terms and conditions of the Creative Commons Attribution (CC BY) license (https://creativecommons.org/licenses/by/4.0/).
Share and Cite
Jiang, X.; Chen, H.; Zhou, Y.; Ma, L.; Du, J.; Zhang, W.; Li, Y. Transfer Length and Prestress Losses of a Prestressed Concrete Box Girder with 18 mm Straight Strands. Buildings 2023, 13, 1939. https://doi.org/10.3390/buildings13081939
Jiang X, Chen H, Zhou Y, Ma L, Du J, Zhang W, Li Y. Transfer Length and Prestress Losses of a Prestressed Concrete Box Girder with 18 mm Straight Strands. Buildings. 2023; 13(8):1939. https://doi.org/10.3390/buildings13081939
Chicago/Turabian StyleJiang, Xin, Haoxuan Chen, Yongjun Zhou, Lin Ma, Jianqun Du, Wei Zhang, and Yunli Li. 2023. "Transfer Length and Prestress Losses of a Prestressed Concrete Box Girder with 18 mm Straight Strands" Buildings 13, no. 8: 1939. https://doi.org/10.3390/buildings13081939
APA StyleJiang, X., Chen, H., Zhou, Y., Ma, L., Du, J., Zhang, W., & Li, Y. (2023). Transfer Length and Prestress Losses of a Prestressed Concrete Box Girder with 18 mm Straight Strands. Buildings, 13(8), 1939. https://doi.org/10.3390/buildings13081939

