Exploring Sign System Design for a Medical Facility: A Virtual Environment Study on Wayfinding Behaviors
Abstract
1. Introduction
1.1. Wayfinding
1.2. Sign Systems in Indoor Space
1.3. Wayfinding Research in the Virtual Environment
2. Method
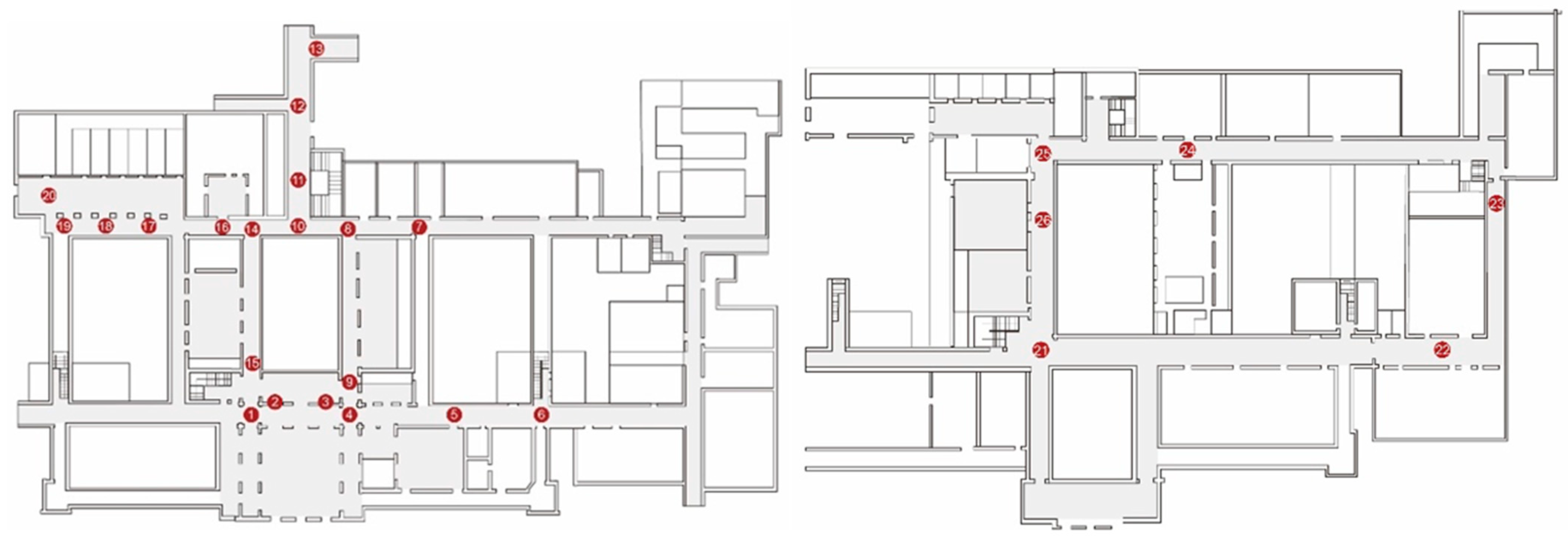
2.1. Situation Investigation and Material Design
2.1.1. Field Exploration
2.1.2. Material Design
2.2. Participants
2.3. Experiment Design
2.4. New Sign System Design
2.4.1. Hanging-Style Sign System
2.4.2. Wall Sign System
2.4.3. Color-Coded Design Proposals
3. Results
3.1. Wayfinding Performance
3.1.1. Task Completion Time
- Analysis of T3 and T10 in the pretest
- Analysis of T3 and T11 in the posttest
3.1.2. Valid Rate of Signs
- Analysis of T6 and T12 in the pretest
- Analysis of T6 and T12 in the posttest
3.2. Participant Feedback
3.2.1. Overall Environmental Assessment
3.2.2. Results of Semi-Structured Interviews
3.3. Individual Differences in Participants
3.4. The Effect of Color Coding on Wayfinding Performance
4. Discussion
4.1. Wayfinding for Moving between Floors
4.2. Weak Points in Information Architecture
4.3. The Impact of Basic Wayfinding with/without 3D Gaming Experience on Wayfinding Performance in a Virtual Environment
4.4. Pros and Cons of Virtual Environments for Wayfinding Research in Medical Facilities
4.5. Design Priorities and Recommendations for Future Sign Systems
- Hanging-style sign design
- How information is arranged
- Wall sign design
- Other recommendations
5. Conclusions
Study Limitations and Recommendations for Follow-Up Studies
Author Contributions
Funding
Institutional Review Board Statement
Informed Consent Statement
Data Availability Statement
Acknowledgments
Conflicts of Interest
Appendix A





References
- Weisman, J. Evaluating Architectural Legibility. Environ. Behav. 1981, 13, 189–204. [Google Scholar] [CrossRef]
- Carpman, J.R.; Grant, M.A.; Simmons, D.A. Hospital Design and Wayfinding. Environ. Behav. 1985, 17, 296–314. [Google Scholar] [CrossRef]
- O’Neill, M.J. Evaluation of a Conceptual Model of Architectural Legibility. Environ. Behav. 1991, 23, 259–284. [Google Scholar] [CrossRef]
- Water, T.; Wrapson, J.; Reay, S.; Ford, K. Making Space Work: Staff Socio-Spatial Practices in a Paediatric Outpatient Department. Health Place 2018, 50, 146–153. [Google Scholar] [CrossRef]
- Symonds, P.; Brown, D.H.K.; Lo Iacono, V. Exploring an Absent Presence: Wayfinding as an Embodied Sociocultural Experience. Sociol. Res. Online 2017, 22, 48–67. [Google Scholar] [CrossRef]
- Lynch, K. The Image of the City; The MIT Press: Cambridge, MA, USA, 1964. [Google Scholar]
- Arthur, P.; Passini, R. Wayfinding: People, Sings, and Architecture; Focus Strategic Communications Incorporated: Brantford, ON, Canada, 2002; ISBN 0973182202. [Google Scholar]
- Allen, G.L. Cognitive Abilities in the Service of Wayfinding: A Functional Approach. Prof. Geogr. 1999, 51, 555–561. [Google Scholar] [CrossRef]
- Golledge, R.G. Wayfinding Behavior: Cognitive Mapping and Other Spatial Processes; Golledge, R.G., Ed.; Johns Hopkins University Press: Baltimore, MD, USA, 1999; ISBN 978-0801859939. [Google Scholar]
- Carpman, J.R.; Grant, M.A.; Simmons, D.A. No More Mazes. Prog. Arch. 1985, 66, 156–157. [Google Scholar]
- Carling, T.; Böök, A.; Lindberg, E. Spatial Orientation and Wayfinding in the Designed Environment: A Conceptual Analysis and Some Suggestions for Postoccupancy Evaluation. J. Archit. Plan. Res. 1986, 3, 55–64. [Google Scholar]
- Evans, G.W.; McCoy, J.M. When Buildings Don’t Work: The Role of Architecture in Human Health. J. Environ. Psychol. 1998, 18, 85–94. [Google Scholar] [CrossRef]
- Stea, D. Image and Environment; Routledge: Oxfordshire, UK, 2017; ISBN 9780203789155. [Google Scholar]
- Conroy-Dalton, R.A. Spatial Navigation in Immersive Virtual Environments; University of London, University College London: London, UK, 2001. [Google Scholar]
- Jamshidi, S.; Ensafi, M.; Pati, D. Wayfinding in Interior Environments: An Integrative Review. Front. Psychol. 2020, 11, 2930. [Google Scholar] [CrossRef] [PubMed]
- Aksoy, E.; Aydın, D.; İskifoğlu, G. Hastanelerde Plan Şeması ve Yön Bulma Kararları Arasındaki Ilişkinin Analizi. MEGARON Yıldız Tech. Univ. Fac. Archit. E-J. 2020, 15, 509–520. [Google Scholar] [CrossRef]
- Baskaya, A.; Wilson, C.; Özcan, Y.Z. Wayfinding in an Unfamiliar Environment. Environ. Behav. 2004, 36, 839–867. [Google Scholar] [CrossRef]
- Gath-Morad, M.; Thrash, T.; Schicker, J.; Hölscher, C.; Helbing, D.; Aguilar Melgar, L.E. Visibility Matters during Wayfinding in the Vertical. Sci. Rep. 2021, 11, 18980. [Google Scholar] [CrossRef]
- Hölscher, C.; Meilinger, T.; Vrachliotis, G.; Brösamle, M.; Knauff, M. Up the down Staircase: Wayfinding Strategies in Multi-Level Buildings. J. Environ. Psychol. 2006, 26, 284–299. [Google Scholar] [CrossRef]
- Kuliga, S.F.; Thrash, T.; Dalton, R.C.; Hölscher, C. Virtual Reality as an Empirical Research Tool—Exploring User Experience in a Real Building and a Corresponding Virtual Model. Comput. Environ. Urban Syst. 2015, 54, 363–375. [Google Scholar] [CrossRef]
- Nothegger, C.; Winter, S.; Raubal, M. Selection of Salient Features for Route Directions. Spat. Cogn. Comput. 2004, 4, 113–136. [Google Scholar] [CrossRef]
- Smitshuijzen, E. Signage Design Manual; Lars Müller Publishers: Baden, Switzerland, 2007; ISBN 978-3-03778-096-1. [Google Scholar]
- Heft, H. The Ecological Approach to Navigation: A Gibsonian Perspective. Constr. Cogn. Maps 1996, 32, 105–132. [Google Scholar] [CrossRef]
- Norman, D.A. Cognition in the Head and in the World: An Introduction to the Special Issue on Situated Action. Cogn. Sci. 1993, 17, 1–6. [Google Scholar] [CrossRef]
- Dalton, R.C. The Secret Is To Follow Your Nose. Environ. Behav. 2016, 35, 107–131. [Google Scholar] [CrossRef]
- Jiang, S.; Allison, D.; Duchowski, A.T. Hospital Greenspaces and the Impacts on Wayfinding and Spatial Experience: An Explorative Experiment Through Immersive Virtual Environment (IVE) Techniques. HERD Health Environ. Res. Des. J. 2022, 15, 206–228. [Google Scholar] [CrossRef]
- Min, Y.H.; Ha, M. Contribution of Colour-Zoning Differentiation to Multidimensional Spatial Knowledge Acquisition in Symmetrical Hospital Wards. Indoor Built Environ. 2021, 30, 787–800. [Google Scholar] [CrossRef]
- Wong, B. Color Coding. Nat. Methods 2010, 7, 573. [Google Scholar] [CrossRef] [PubMed]
- Ozcelik, E.; Karakus, T.; Kursun, E.; Cagiltay, K. An Eye-Tracking Study of How Color Coding Affects Multimedia Learning. Comput. Educ. 2009, 53, 445–453. [Google Scholar] [CrossRef]
- Keller, T.; Gerjets, P.; Scheiter, K.; Garsoffky, B. Information Visualizations for Knowledge Acquisition: The Impact of Dimensionality and Color Coding. Comput. Hum. Behav. 2006, 22, 43–65. [Google Scholar] [CrossRef]
- Nurdiansyah, D.M.R.; Asyid, S.A.; Parmawati, A. Using color coding to improve students’ english vocabulary ability. PROJECT Prof. J. Engl. Educ. 2019, 2, 358. [Google Scholar] [CrossRef]
- McDonald, J.E.; Molander, M.E.; Noel, R.W. Color-Coding Categories in Menus. In Proceedings of the SIGCHI Conference on Human Factors in Computing Systems–CHI ’88; ACM Press: New York, NY, USA, 1 May 1988; Volume Part F130202, pp. 101–106. [Google Scholar]
- Lamberski, R.J.; Dwyer, F.M. The Instructional Effect of Coding (Color and Black and White) on Information Acquisition and Retrieval. Educ. Commun. Technol. J. 1983, 31, 9–21. [Google Scholar] [CrossRef]
- Wang, Y.; Punithakumar, K.; Boulanger, P. The Impact of Color Coding in Virtual Reality Navigation Tasks. In Proceedings of the Optical Architectures for Displays and Sensing in Augmented Virtual, and Mixed Reality (AR, VR, MR); Kress, B.C., Peroz, C., Eds.; SPIE: Bellingham, WA, USA, 19 February 2020; Volume 11310, p. 40. [Google Scholar]
- Grieves, M. Digital Twin: Manufacturing Excellence through Virtual Factory Replication. White Paper 2014, 1, 1–7. [Google Scholar]
- Githens, G. Product Lifecycle Management: Driving the Next Generation of Lean Thinking by Michael Grieves. J. Prod. Innov. Manag. 2007, 24, 278–280. [Google Scholar] [CrossRef]
- Batty, M. Digital Twins. Environ. Plan B Urban Anal. City Sci. 2018, 45, 817–820. [Google Scholar] [CrossRef]
- Haag, S.; Anderl, R. Digital Twin–Proof of Concept. Manuf. Lett. 2018, 15, 64–66. [Google Scholar] [CrossRef]
- Minerva, R.; Lee, G.M.; Crespi, N. Digital Twin in the IoT Context: A Survey on Technical Features, Scenarios, and Architectural Models. Proc. IEEE 2020, 108, 1785–1824. [Google Scholar] [CrossRef]
- Larsen, C.R.; Oestergaard, J.; Ottesen, B.S.; Soerensen, J.L. The Efficacy of Virtual Reality Simulation Training in Laparoscopy: A Systematic Review of Randomized Trials. Acta Obstet. Gynecol. Scand. 2012, 91, 1015–1028. [Google Scholar] [CrossRef] [PubMed]
- Darken, R.P.; Sibert, J.L. Wayfinding Strategies and Behaviors in Large Virtual Worlds. In Proceedings of the SIGCHI Conference on Human Factors in Computing Systems Common Ground–CHI ’96; ACM Press: New York, NY, USA, 1996; pp. 142–149. [Google Scholar]
- Tanja-Dijkstra, K.; Pahl, S.; White, M.P.; Andrade, J.; Qian, C.; Bruce, M.; May, J.; Moles, D.R. Improving Dental Experiences by Using Virtual Reality Distraction: A Simulation Study. PLoS ONE 2014, 9, e91276. [Google Scholar] [CrossRef] [PubMed]
- Loomis, J.M.; Blascovich, J.J.; Beall, A.C. Immersive Virtual Environment Technology as a Basic Research Tool in Psychology. Behav. Res. Methods Instrum. Comput. 1999, 31, 557–564. [Google Scholar] [CrossRef]
- Cliburn, D.; Winlock, T.; Rilea, S.; Van Donsel, M. Dynamic Landmark Placement as a Navigation Aid in Virtual Worlds. In Proceedings of the 2007 ACM Symposium on Virtual Reality Software and Technology; ACM: New York, NY, USA, 5 November 2007; pp. 211–214. [Google Scholar]
- Morganti, F.; Carassa, A.; Geminiani, G. Planning Optimal Paths: A Simple Assessment of Survey Spatial Knowledge in Virtual Environments. Comput. Hum. Behav. 2007, 23, 1982–1996. [Google Scholar] [CrossRef]
- Ulrich, R.S.; Zimring, C.; Zhu, X.; DuBose, J.; Seo, H.B.; Choi, Y.S.; Quan, X.; Joseph, A. A Review of the Research Literature on Evidence-Based Healthcare Design. HERD 2008, 1, 61–125. [Google Scholar] [CrossRef]
- Dong, W.; Qin, T.; Yang, T.; Liao, H.; Liu, B.; Meng, L.; Liu, Y. Wayfinding Behavior and Spatial Knowledge Acquisition: Are They the Same in Virtual Reality and in Real-World Environments? Ann. Am. Assoc. Geogr. 2022, 112, 226–246. [Google Scholar] [CrossRef]
- Kalantari, S.; Tripathi, V.; Rounds, J.D.; Mostafavi, A.; Snell, R.; Cruz-Garza, J.G. Evaluating Wayfinding Designs in Healthcare Settings through EEG Data and Virtual Response Testing. bioRxiv 2021. bioRxiv:2021.02.10.430638. [Google Scholar] [CrossRef]
- Al-Sharaa, A.; Adam, M.; Amer Nordin, A.S.; Alhasan, A.; Mundher, R.; Zaid, O. Enhancing Wayfinding Performance in Existing Healthcare Facilities Using Virtual Reality Environments to Revise the Distribution of Way-Showing Devices. Buildings 2022, 12, 790. [Google Scholar] [CrossRef]
- Bos, J.E.; Bles, W.; Groen, E.L. A Theory on Visually Induced Motion Sickness. Displays 2008, 29, 47–57. [Google Scholar] [CrossRef]
- Kennedy, R.S.; Drexler, J.; Kennedy, R.C. Research in Visually Induced Motion Sickness. Appl. Ergon. 2010, 41, 494–503. [Google Scholar] [CrossRef] [PubMed]
- Keshavarz, B.; Golding, J.F. Motion Sickness: Current Concepts and Management. Curr. Opin. Neurol. 2022, 35, 107–112. [Google Scholar] [CrossRef] [PubMed]
- Ma, S.-F. Exploring the Way-Finding Ability of College Students and Its Affecting Factors; Chiao Tung University: Hsinchu, Taiwan, 2008. [Google Scholar]
- Ishikawa, T.; Murasawa, K.; Okabe, A. Wayfinding and Art Viewing by Users of a Mobile System and a Guidebook. J. Locat. Based Serv. 2009, 3, 277–293. [Google Scholar] [CrossRef]
- Rosenfeld, L.; Morville, P.; Arango, J. Information Architecture: For the Web and Beyond EBook: Rosenfeld, Louis, Morville, Peter, Arango, Jorge: Kindle Store, 4th ed.; O’Reilly Media: Sebastopol, CA, USA, 2015. [Google Scholar]
- Huang, Z.; Benyoucef, M. Usability and Credibility of E-Government Websites. Gov. Inf. Q. 2014, 31, 584–595. [Google Scholar] [CrossRef]
- Koffka, K. Principles of Gestalt Psychology; Routledge: Abingdon, UK, 2013; ISBN 9781136306815. [Google Scholar]
- Wakimoto, D.K. Librarians and Graphic Design: Preparation, Roles, and Desired Support. Public Serv. Q. 2015, 11, 171–182. [Google Scholar] [CrossRef]
- Watzman, S.; Re, M. Visual Design Principles For Usable Interfaces: Everything Is Designed: Why We Should Think Before Doing. In Human-Computer Interaction: Design Issues, Solutions, and Applications; CRC Press: Boca Raton, FL, USA, 2009; pp. 19–44. [Google Scholar]
- Madson, M.; Goodwin, K. Color Coding the “Labyrinth”: How Staff Perceived a Two-Part Intervention to Improve Wayfinding in an Adult Emergency Department. HERD 2021, 14, 429–441. [Google Scholar] [CrossRef]



















| Overall, I think the spatial layout of this hospital can be well-oriented. |
| Overall, I think the hospital sign system is helpful for wayfinding. |
| Overall, I think the hospital sign system is easy to understand. |
| Overall, I think the hospital’s hanging-style sign system from the ceiling is straightforward to understand. |
| Overall, I think the hospital’s hanging-style sign system from the ceiling has helped me a lot. |
| Overall, I think the signs on this hospital’s walls are straightforward to understand. |
| Overall, I think the wall signs of this hospital have helped me a lot. |
| M | SD | t-Value | p-Value | ||
|---|---|---|---|---|---|
| T1 | pretest | 51.00 | 36.11 | 2.506 *** | 0.000 |
| posttest | 30.56 | 28.73 | |||
| T2 | pretest | 42.97 | 20.23 | 1.439 | 0.078 |
| posttest | 36.53 | 15.21 | |||
| T3 | pretest | 143.53 | 69.65 | 1.279 | 0.103 |
| posttest | 122.72 | 60.19 | |||
| T4 | pretest | 50.97 | 25.67 | 2.508 ** | 0.008 |
| posttest | 37.19 | 17.53 | |||
| T5 | pretest | 29.69 | 38.80 | 2.476 ** | 0.009 |
| posttest | 12.22 | 9.35 | |||
| T6 | pretest | 69.06 | 47.10 | 3.371 *** | 0.000 |
| posttest | 36.50 | 27.71 | |||
| T7 | pretest | 62.19 | 31.86 | 3.536 *** | 0.000 |
| posttest | 36.50 | 25.95 | |||
| T8 | pretest | 56.47 | 47.57 | 2.481 ** | 0.009 |
| posttest | 34.84 | 12.97 | |||
| T9 | pretest | 71.72 | 46.77 | 3.43 *** | 0.000 |
| posttest | 40.69 | 20.79 | |||
| T10 | pretest | 259.16 | 85.29 | 13.696 *** | 0.000 |
| posttest | 45.75 | 22.24 | |||
| T11 | pretest | 74.50 | 33.62 | −0.135 | 0.447 |
| posttest | 75.47 | 22.87 | |||
| T12 | pretest | 160.06 | 116.05 | 3.648 *** | 0.000 |
| posttest | 73.94 | 66.10 |
| M | SD | t-Value | p-Value | ||
|---|---|---|---|---|---|
| T1 | pretest | 0.63 | 0.31 | −3.170 ** | 0.001 |
| posttest | 0.85 | 0.24 | |||
| T2 | pretest | 0.84 | 0.21 | −6.35 | 0.264 |
| posttest | 0.87 | 0.17 | |||
| T3 | pretest | 0.36 | 0.17 | 2.160 * | 0.018 |
| posttest | 0.28 | 0.11 | |||
| T4 | pretest | 0.84 | 0.19 | 0.514 | 0.305 |
| posttest | 0.82 | 0.17 | |||
| T5 | pretest | 0.63 | 0.36 | −4.159 *** | 0.000 |
| posttest | 0.92 | 0.32 | |||
| T6 | pretest | 0.30 | 0.33 | 0.099 | 0.461 |
| posttest | 0.29 | 0.32 | |||
| T7 | pretest | 0.49 | 0.13 | −8.003 *** | 0.000 |
| posttest | 0.73 | 0.11 | |||
| T8 | pretest | 0.84 | 0.22 | 1.225 | 0.113 |
| posttest | 0.78 | 0.15 | |||
| T9 | pretest | 0.56 | 0.22 | −2.777 ** | 0.004 |
| posttest | 0.70 | 0.17 | |||
| T10 | pretest | 0.17 | 0.07 | −23.270 *** | 0.000 |
| posttest | 0.89 | 0.16 | |||
| T11 | pretest | 0.61 | 0.27 | −2.270 ** | 0.014 |
| posttest | 0.74 | 0.18 | |||
| T12 | pretest | 0.12 | 0.13 | −7.208 *** | 0.000 |
| posttest | 0.42 | 0.19 |
| M | SD | t-Value | p-Value | ||
|---|---|---|---|---|---|
| T1 | pretest | 2.44 | 1.29 | 2.662 | 0.050 |
| posttest | 1.69 | 0.93 | |||
| T2 | pretest | 1.94 | 0.95 | 1.603 | 0.057 |
| posttest | 1.59 | 0.76 | |||
| T3 | pretest | 3.00 | 1.46 | 0.582 | 0.282 |
| posttest | 2.81 | 1.09 | |||
| T4 | pretest | 1.91 | 0.96 | 1.659 | 0.051 |
| posttest | 1.53 | 0.84 | |||
| T5 | pretest | 1.69 | 0.96 | 3.001 ** | 0.002 |
| posttest | 1.53 | 0.84 | |||
| T6 | pretest | 2.59 | 1.48 | 2.818 ** | 0.004 |
| posttest | 1.69 | 1.06 | |||
| T7 | pretest | 2.50 | 1.34 | 3.083 ** | 0.002 |
| posttest | 1.59 | 0.98 | |||
| T8 | pretest | 2.06 | 0.98 | 1.865 * | 0.034 |
| posttest | 1.66 | 0.75 | |||
| T9 | pretest | 2.50 | 1.19 | 2.502 ** | 0.008 |
| posttest | 1.84 | 0.88 | |||
| T10 | pretest | 3.84 | 1.30 | 6.253 *** | 0.000 |
| posttest | 1.97 | 1.09 | |||
| T11 | pretest | 2.28 | 1.17 | 0.316 | 0.377 |
| posttest | 2.19 | 1.20 | |||
| T12 | pretest | 3.28 | 1.49 | 2.984 ** | 0.002 |
| posttest | 2.25 | 1.27 |
| M | SD | t-Value | p-Value | ||
|---|---|---|---|---|---|
| T1 | pretest | 3.00 | 1.37 | −3.878 *** | 0.000 |
| posttest | 4.13 | 0.91 | |||
| T2 | pretest | 3.56 | 1.19 | −3.518 *** | 0.000 |
| posttest | 4.47 | 0.84 | |||
| T3 | pretest | 2.72 | 1.33 | −1.545 | 0.064 |
| posttest | 3.19 | 1.09 | |||
| T4 | pretest | 3.56 | 1.08 | −3.031 ** | 0.002 |
| posttest | 4.31 | 0.90 | |||
| T5 | pretest | 3.53 | 1.08 | −5.107 *** | 0.000 |
| posttest | 4.69 | 0.69 | |||
| T6 | pretest | 2.78 | 1.16 | −3.898 *** | 0.000 |
| posttest | 3.84 | 1.02 | |||
| T7 | pretest | 3.22 | 1.04 | −3.597 *** | 0.000 |
| posttest | 4.13 | 0.98 | |||
| T8 | pretest | 3.53 | 1.16 | −2.763 ** | 0.004 |
| posttest | 4.22 | 0.79 | |||
| T9 | pretest | 3.00 | 1.27 | −3.177 ** | 0.001 |
| posttest | 3.91 | 1.00 | |||
| T10 | pretest | 1.69 | 1.03 | −8.833 *** | 0.000 |
| posttest | 4.03 | 1.09 | |||
| T11 | pretest | 2.72 | 1.20 | −3.084 ** | 0.002 |
| posttest | 3.66 | 1.23 | |||
| T12 | pretest | 1.91 | 1.00 | −5.412 *** | 0.000 |
| posttest | 3.47 | 1.30 |
| OVERALL, I THINK… | M | SD | t-Value | p-Value | |
|---|---|---|---|---|---|
| the spatial layout of this hospital can be well-oriented. | pretest | 2.53 | 1.05 | −3.574 *** | 0.0005 |
| posttest | 3.59 | 1.32 | |||
| the hospital sign system is helpful for wayfinding. | pretest | 3.56 | 1.01 | −4.506 *** | 0.000 |
| posttest | 4.53 | 0.67 | |||
| the hospital sign system is easy to understand. | pretest | 2.75 | 1.02 | −6.307 *** | 0.000 |
| posttest | 4.28 | 0.92 | |||
| the hospital’s hanging-style sign system from the ceiling is straightforward to understand. | pretest | 3.00 | 1.22 | −4.981 *** | 0.000 |
| posttest | 4.31 | 0.86 | |||
| the hospital’s hanging-style sign system from the ceiling has helped me a lot. | pretest | 3.75 | 0.80 | −3.735 *** | 0.000 |
| posttest | 4.50 | 0.80 | |||
| the signs on this hospital’s walls are straightforward to understand. | pretest | 2.81 | 0.97 | −5.424 *** | 0.000 |
| posttest | 4.19 | 1.06 | |||
| the wall signs of this hospital have helped me a lot. | pretest | 2.66 | 1.00 | −4.481 *** | 0.000 |
| posttest | 3.94 | 1.27 |
| OVERALL, I THINK… | M | SD | t-Value | p-Value | |
|---|---|---|---|---|---|
| the spatial layout of this hospital can be well-oriented. | Conventional format | 3.56 | 1.15 | −0.132 | 0.448 |
| Color-coded format | 3.63 | 1.50 | |||
| the hospital sign system is helpful for wayfinding. | Conventional format | 4.38 | 0.72 | −1.333 | 0.097 |
| Color-coded format | 4.69 | 0.60 | |||
| the hospital sign system is easy to understand. | Conventional format | 4.19 | 0.98 | −0.568 | 0.288 |
| Color-coded format | 4.81 | 0.40 | |||
| the hospital’s hanging-style sign system from the ceiling is straightforward to understand. | Conventional format | 4.19 | 0.91 | −0.819 | 0.210 |
| Color-coded format | 4.44 | 0.81 | |||
| the hospital’s hanging-style sign system from the ceiling has helped me a lot. | Conventional format | 4.19 | 0.98 | −2.357 * | 0.015 |
| Color-coded format | 4.81 | 0.40 | |||
| the signs on this hospital’s walls are straightforward to understand. | Conventional format | 3.94 | 1.24 | −1.351 | 0.094 |
| Color-coded format | 4.44 | 0.81 | |||
| the wall signs of this hospital have helped me a lot. | Conventional format | 3.94 | 1.24 | 0.000 | 1.000 |
| Color-coded format | 3.94 | 1.34 |
Disclaimer/Publisher’s Note: The statements, opinions and data contained in all publications are solely those of the individual author(s) and contributor(s) and not of MDPI and/or the editor(s). MDPI and/or the editor(s) disclaim responsibility for any injury to people or property resulting from any ideas, methods, instructions or products referred to in the content. |
© 2023 by the authors. Licensee MDPI, Basel, Switzerland. This article is an open access article distributed under the terms and conditions of the Creative Commons Attribution (CC BY) license (https://creativecommons.org/licenses/by/4.0/).
Share and Cite
Wang, C.-Y.; Chen, C.-I.; Zheng, M.-C. Exploring Sign System Design for a Medical Facility: A Virtual Environment Study on Wayfinding Behaviors. Buildings 2023, 13, 1366. https://doi.org/10.3390/buildings13061366
Wang C-Y, Chen C-I, Zheng M-C. Exploring Sign System Design for a Medical Facility: A Virtual Environment Study on Wayfinding Behaviors. Buildings. 2023; 13(6):1366. https://doi.org/10.3390/buildings13061366
Chicago/Turabian StyleWang, Ching-Yuan, Ching-I Chen, and Meng-Cong Zheng. 2023. "Exploring Sign System Design for a Medical Facility: A Virtual Environment Study on Wayfinding Behaviors" Buildings 13, no. 6: 1366. https://doi.org/10.3390/buildings13061366
APA StyleWang, C.-Y., Chen, C.-I., & Zheng, M.-C. (2023). Exploring Sign System Design for a Medical Facility: A Virtual Environment Study on Wayfinding Behaviors. Buildings, 13(6), 1366. https://doi.org/10.3390/buildings13061366

