Abstract
Residential buildings have a list of functions, and one of the top priories is the thermal comfort of its occupants. Thermal comfort can be one of the measurements of successful building performance, and it can be addressed in various ways to provide a good quality indoor climate. The way to address the need for thermal comfort determines the consumption and conservation of energy. Adapting passive strategies and thermal mass to a building can reduce energy consumption significantly. Applying these strategies to a building does not need additional investment from the initial capital, and renovating a building to implement the strategy will cut the energy usage of a building and save the additional financing of new technology for heating and cooling, ventilation, and so on. In this study, two residential buildings located in North Cyprus with the same geographical location, climate zone, and different construction materials were studied. The study aimed to make a technical test to reduce energy consumption and improve energy conservation in the building by applying passive solar and energy efficiency design strategies (PSEEDS). The thermal mass has been used and discussed as an improbable energy technique alongside other insulation materials and shading devices. The article discusses and compares the energy consumption and thermal comfort of traditional Mediterranean houses with contemporary houses. The study uses 2D drawings, 3D modeling, and energy simulation programs to evaluate energy consumption in both real and assumed scenarios. The study finds that traditional Mediterranean homes, with their thick walls and built-in shading mechanisms, require less energy for heating and cooling than contemporary houses. The implementation of passive solar energy efficient design strategies (PSEEDS) significantly reduces energy consumption in both types of houses, but traditional Mediterranean houses still show more efficiency due to their higher thermal mass. The research demonstrates that improving windows, examining the orientation of the structure, altering shade devices, and decreasing infiltration rates can reduce overall energy consumption by up to 34.71% To sum up, in this study, PSEEDS, the performance of thermal mass, and pre-design measures significantly decrease energy consumption. In addition, implementing passive strategies during a renovation of a building also compensates for the investment and lifecycle cost of new technologies and energy usage.
1. Introduction
Lighting, heating, cooling, ventilation, and other energy-intensive processes are the primary reason for the exact purpose of higher energy consumption in buildings. Additionally, energy is consumed during the manufacturing of the building materials; meanwhile, the transportation of those components from their place of manufacture to their final destination also consumes additional energy. The building industry has a huge potential for energy reductions as worldwide awareness of energy and environmental concerns rises. As a result, energy conservation in buildings refers to reducing the energy required for a building’s lifecycle (construction, operation, and maintenance) through pre-design measures, orientation, and use of climatic conditions, such as passive strategies, high thermal mass, renewable energy sources, and natural ventilation which play key roles for energy conservation as well as thermal comfort.
Concern over the usage of fossil fuels and their effects on the environment is on the rise. The prospect of climate change and global warming has increased awareness of the connection between environmental pollution, energy usage, and economic growth [1]. The relationship between economic expansion, energy consumption, and carbon emissions is statistically significant. Both rich and emerging nations have seen significant increases in energy consumption, and it is anticipated that this trend will continue.
In 2019, the building and construction industry accounted for 36% of worldwide final energy consumption and 39% of energy-related carbon dioxide (CO2) emissions, according to the International Energy Agency’s (IEA) 2020 report on energy usage in buildings. This makes it the biggest end-use sector for energy, surpassing both industry and transportation.
Although progress has been achieved in increasing the energy efficiency of buildings, notably in developed nations, the report adds that the fast development of building stock in developing economies means that total energy consumption and emissions from the sector are still on the rise. The IEA stresses the need for more ambitious and integrated policies and initiatives to increase energy efficiency and decrease emissions in the building sector [2].
Numerous studies have been carried out globally on building envelope designs, construction, sensitivity and optimization, life-cycle analysis, control of heating, ventilation, and air conditioning (HVAC) installations, and lighting systems to improve building energy conservation [3].
Researchers investigated the energy efficiency of a net-zero energy building (NZEB) in a tropical environment in a paper published in the journal Energy and Buildings in 2021. The research assessed the energy-saving efficacy of different design options, such as the use of shading devices, green roofs, and natural ventilation. These design solutions may dramatically decrease energy consumption and increase interior comfort in tropical NZEBs [4].
The energy performance of a multifamily residential structure in the United States was the subject in 2020. The research assessed the effect of several HVAC management systems, including occupancy-based ventilation and set-point reset, on the energy consumption of the building. Using these management measures may result in substantial energy savings and enhanced indoor air quality, according to the findings [5].
The proliferation of HVAC systems in response to the increased demand for enhanced thermal comfort in the built environment was a key contributor to the growth in energy consumption. The main energy end-use in developed countries is often HVAC, which accounts for nearly half of all energy used in buildings, notably non-domestic buildings. According to a recent literature review on indoor environmental conditions, building occupants place a higher value on thermal comfort than they do on indoor air quality, visual and auditory comfort, and other factors. This also has an impact on how the building envelope is designed in general, and how the opening and glazing systems are designed in particular. Therefore, it’s critical to understand both historical and contemporary developments in thermal comfort, as well as how they affect how much energy is consumed in buildings.
Passive solar architecture is an excellent technique for energy-efficient building design in cold regions. This approach highlights the importance of optimizing building orientation and layout, as well as utilizing high-performance glass and thermal insulation, to maximize solar gain and minimize heat loss. Additionally, the use of thermal mass to store solar heat during the day and release it at night, as well as the implementation of natural ventilation systems to further improve energy efficiency [6,7].
As noted in the review by [8] and the research by [9], passive cooling strategies are essential for energy-efficient building design, especially in hot and humid areas. These sources emphasize the need of constructing buildings with shading devices and thermal insulation to limit heat gain, as well as the usage of natural ventilation systems to increase airflow and lower internal temperatures. Ref. [8] also proposes the use of evaporative cooling systems and radiant cooling panels, and [9] advocates for the use of reflecting surfaces and green roofs to further improve passive cooling tactics. As proven in the case study by [10], a comprehensive approach to energy-efficient building design is crucial for reaching net-zero energy usage by merging a variety of passive design tactics with active systems such as solar panels and energy-efficient HVAC systems.
This paper analyzed the energy consumption of two residential buildings in the Mediterranean climate zone presents a review of the implementation of energy conservation research, work development, and discussion of the built environment. The aim is to conduct a technical study using passive solar and energy-efficient design strategies to minimize energy consumption and increase energy conservation in buildings (PSEEDS). Along with various insulating materials and shading systems, the thermal mass has been employed and explored as an unlikely energy strategy.
The study limits itself to these two residential building which are located in North Cyprus within the Mediterranean climate zone and the analysis is limited to the data collected from the actual house, building energy simulation software, and modeling programs. The different case scenarios taken for the energy consumption simulation were also limited to the wall and flooring system, glazing and opening, shading device, and building orientation.
2. Materials and Methods
According to the literature analysis, several new building simulation programs have been created in the last few decades. According to research by [11], the most essential qualities for architects and engineers are user-friendliness, accuracy, and interoperability. Due to the ease of use, interoperability, and quality of data processing and interpretation, well-known simulation tools Energy Plus and BEopt with the help of AutoCAD are used. The study used a simulation program and modeling based on various case scenarios from literature and researcher assumptions. The results from the computer simulation of an actual traditional Mediterranean house (scenario 1), a contemporary house (scenario 2), the assumptions of a traditional Mediterranean house (scenario 3), and a contemporary house (scenario 4) PSEEDS are compared using comparative methods.
Energy Plus and BEopt software provides nearly accurate analytical comparisons based on quantitative data collection and some parameters. It offers minimum, maximum, and average values for case-specific parameters. The main parameters used in the study are shown in Table 1. Computer programs analyze sunshine penetration via façades. Excel sheets are used to examine the data and measurement instrument outputs (energy consumption and conservation). Consider the researcher’s error rate. Simulation on a computer is the most sophisticated approach for obtaining output values and quantitative findings for comparing existing with the assumption house (Figure 1).
Table 1.
Summer of parameters for simulation of the four-case scenario.
Figure 1.
Brief simulation map scenarios considered.
2.1. Key Assumptions
It assumed that four occupants are living in three bedrooms and two bathrooms built up in 400.98 m2 area houses. North Cyprus weather (Mediterranean climate) was obtained from the Meteoblue web source and the American Society of Heating, Refrigerating and Air-conditioning Engineers (ASHRAE) from the EnergyPlus program. For the simulation purpose, the occupants behave as follows:
- On weekdays, occupants leave the house from 8:00 to 16:00, from 16:00 to 18:00, half of the occupants are considered back in the house, and finally from 18:00 to 8:00 all occupants are considered inside the house;
- On weekends, all the occupants are assumed inside the house all day.
2.2. Modelling the Assumption Houses
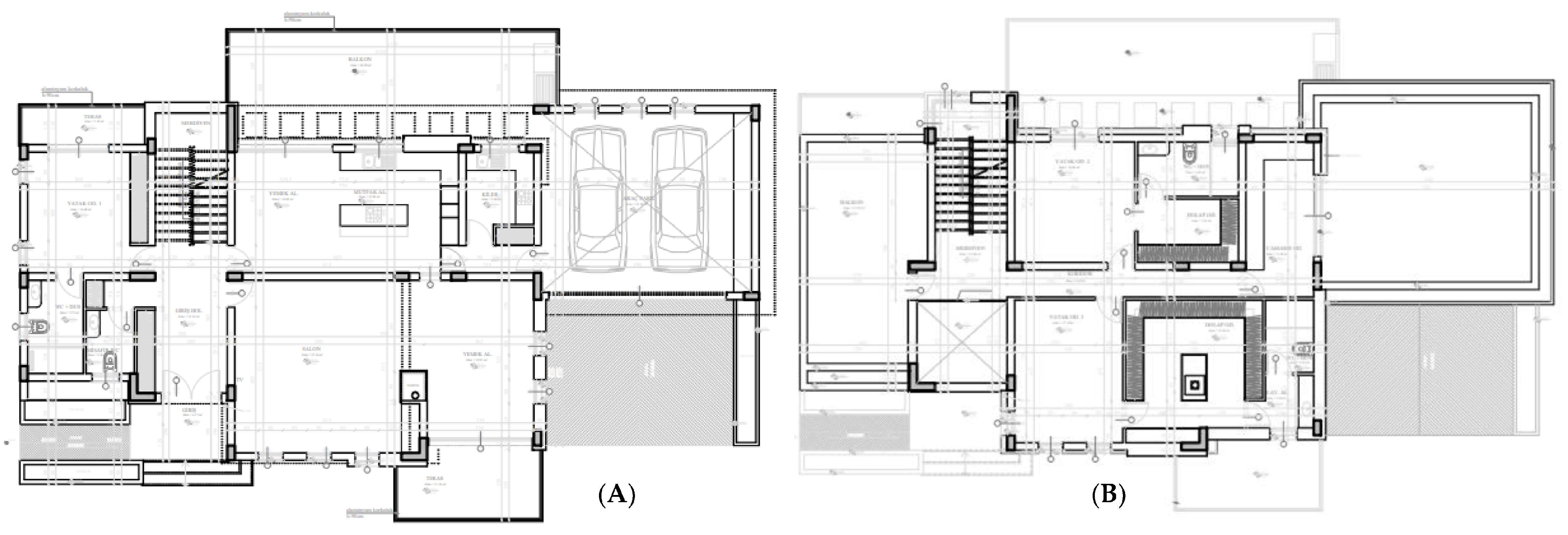
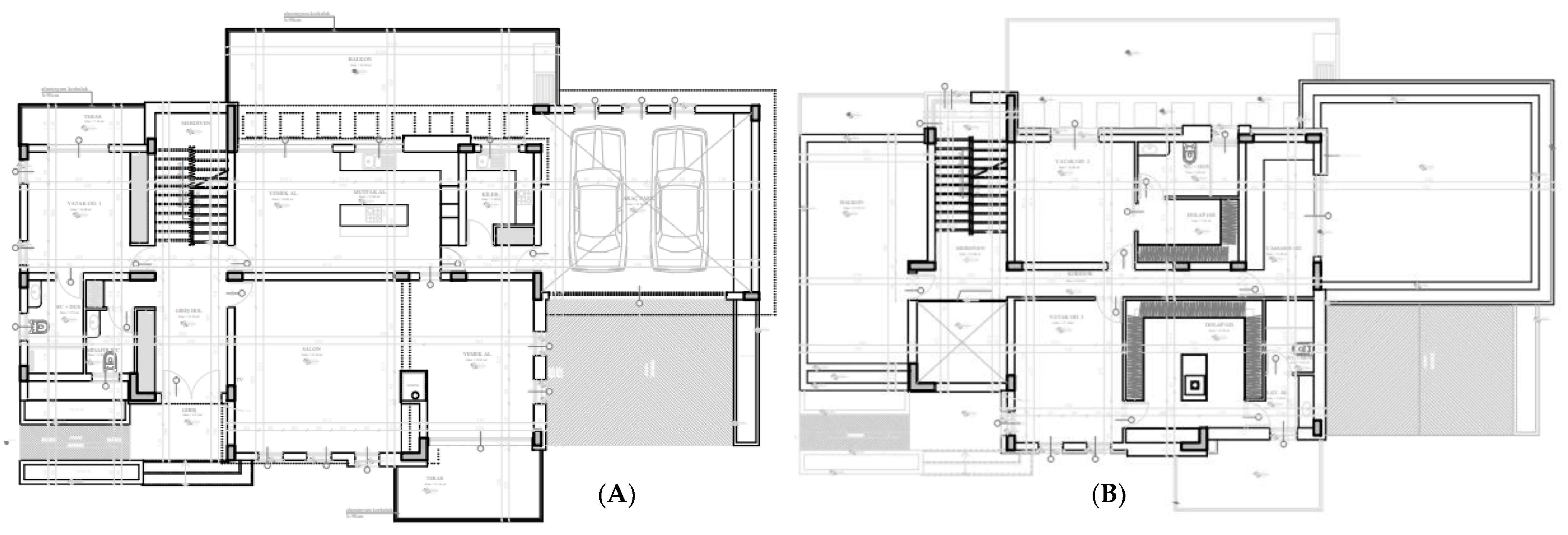
The study involves two different residential houses, traditional Mediterranean (scenario 1) and contemporary (scenario 2) houses as shown in Figure 2. Both residential housing units were modeled with AutoCAD as shown in Figure 3, Figure 4, Figure 5 and Figure 6 and analyzed using BEopt and Energy Plus computer programs. The actual house built-up area is 400.98 m2, scenario 1 with a length of 24.45 m,16.4 m in width, and 24.6 m in length, whereas 16.3 m is the width of scenario 2. Both actual houses are two stories linked by a staircase and face towards the south.
Figure 2.
Location of traditional Mediterranean (A) and contemporary houses (B). Source: Google map.
Figure 3.
Traditional Mediterranean house ground floor (A) and first floor plan (B).
Figure 4.
Contemporary house ground floor (A) and first floor plan (B).
Figure 5.
3D model of both traditional Mediterranean (A) and contemporary (B) houses.
Figure 6.
Average temperatures and precipitation. Source: meteoblue.com.
As seen in the accompanying Figure 2 Google map, both study houses are situated in the hamlet of Akdoğan, North Cyprus, less than 10 min walking distance apart or 550 M. Following the main and access roads, both houses face south. As seen in Figure 3 and Figure 4, the building entrance is likewise positioned on the south side of the structure. Comparing the traditional Mediterranean house to the second scenario (contemporary house), the traditional Mediterranean house has bigger rooms and also has little bit larger windows (openings) than the second case according to the plans. This is due to the fact that the typical houses in the region were designed to accommodate the climate of the Mediterranean, hence providing natural ventilation.
In contrast, the contemporary house has a slightly smaller windows than the typical houses in the region. The contemporary house regulates the indoor temperature by installing more insulation on the walls and floor system or by using non-natural means such as air conditioning (AC), heaters, and other devices. The Mediterranean houses utilize thermal mass in lieu of extra insulating materials.
The distinctive subtropical climate of North Cyprus offers both advantages and disadvantages for the construction of energy-efficient buildings. North Cyprus experiences hot, dry summers, wet winters, and brief autumn and spring seasons. The region’s average annual temperature is 17.5 °C (Figure 6) [12]. The maximum mean temperature or the greatest temperature, experienced in North Cyprus on a normal day each month is represented by the solid red line in the weather image. The dashed red and blue lines depict the average of the warmest day and the coldest night in each month, while the solid blue line displays the average lowest temperature. Regional weather (30 km area) averages for last 30 years. Local conditions may differ. These facts offer crucial knowledge for creating structures that are both energy-efficient and capable of maintaining a suitable interior temperature.
The wind is one meteorological feature in North Cyprus that significantly affects how energy efficiency of the design. The chart shows the number of days per month when a certain wind speed prevails. For building design, the brisk winds from December to April and the calm breezes from June to October are crucial factors. For instance, structures made to make use of wind energy for ventilation and cooling can benefit from strong winds, whereas structures made to withstand high winds can benefit from calm winds.
The North Cyprus wind rise shows the yearly hours in kilometers per hour (Km/h) that a certain wind direction blows (Figure 7). The direction of the prevailing wind should be considered when choosing the optimal orientation for a building’s design since wind-resistant buildings that utilize natural ventilation will benefit from being orientated in that direction. The wind rises in North Cyprus demonstrate that the wind generally blows from the SW to the NE, which is important information for constructing structures that take advantage of the prevailing wind direction.
Figure 7.
North Cyprus wind rose. Source: Meteoblue.com.
In all four scenarios, the study took into account using electricity as the only energy source for the residence. All four scenarios’ zones were taken into account for the simulation. This choice was probably taken to streamline the investigation and guarantee that the findings held for all four possible outcomes. It’s crucial to remember, too, that using electricity as your primary source of energy might present some energy efficiency challenges. For instance, fossil fuels, which are non-renewable and create hazardous pollutants, are commonly used to produce power. Furthermore, electricity is frequently produced in centralized power facilities, which can cause substantial energy losses during transmission.
Buildings in North Cyprus should be designed to take into account the subtropical climate, the brisk and calm breezes, and the usage of electricity as the sole energy source if they are to be energy-efficient. Strong winds may be used for ventilation and cooling, buildings can be oriented to benefit from the direction of the prevailing wind, and renewable energy sources and energy-saving technology can be used to reduce energy demand. For instance, architects and builders may include insulation and shading to minimize heat absorption and loss, and they can create naturally ventilated structures to do away with the need for mechanical cooling and heating systems. Adding renewable energy sources, like solar panels, can lessen dependency on power produced from fossil fuels.
In conclusion, North Cyprus’s subtropical temperature, powerful and steady winds, and exclusive reliance on electricity give both possibilities and difficulties for the construction of energy-efficient buildings. Building designers may develop structures that are cozy, energy-efficient, and sustainable by taking these considerations into account and using renewable energy sources. The materials and methods used in the study have been summarized as shown in Table 2.
Table 2.
Summary of section three methodology of the study.
3. Key Parameters of Passive Solar Design and Thermal Comfort
As a method for producing an interior atmosphere that is as comfortable for the climate as feasible, passive solar architecture is highly regarded. We may all live in passive solar-designed homes in an ideal world. In practice, site limitations like overshadowing and aspect may prevent solar penetration throughout the winter. Passive solar architecture would be constrained under these circumstances.
There are two types of energy-efficient homes: (i) passive solar designs and (ii) non-passive solar designs, which may combine energy-saving techniques like high-performance glass, advanced insulation technology, or creative shading techniques. This study focused on passive solar design and related topics only.
Passive solar homes adjust indoor temperatures using sunlight, wind, and vegetation. This design maximizes solar energy by precisely arranging windows, walls, and floors to collect and distribute solar radiation throughout the living area. Thermal mass, which absorbs and releases heat during the day, is also used in passive solar designs. The passive solar design also includes insulation, ventilation, and shading devices like overhangs and trellises. Passive solar architecture reduces the need for mechanical heating and cooling, lowering the home’s environmental impact and energy expenses.
Non-passive solar homes use technology and construction elements to save energy. Non-passive solar designs may not use sunlight to adjust indoor temperatures. Instead, they employ advanced insulation technology, high-performance glass, and energy-efficient appliances to save heating and cooling costs. Rooftop solar panels with geothermal heating and cooling systems may minimize a non-passive solar home’s carbon footprint.
3.1. Passive Solar Design Strategy
Utilizing natural energy flows to ensure thermal comfort is the goal of passive design. Using the right building orientation, building materials, and landscape are important. To avoid or reduce heat gain, structures should be appropriately orientated and the building envelope’s material should be specified. Additionally, shading must be provided to reduce sun radiation [13]. For enhancing health and well-being in the built environment, these tactics and strategies can also be strengthened by a variety of characteristics, such as the use of technology and customizable controls.
The building envelope serves as a barrier between the natural and artificial while creating a home to maximize human comfort. Visual, thermal, and acoustical comfort are a few of the key factors that influence human comfort. Along with the technology utilized, building envelopes are crucial for achieving the appropriate degree of comfort. These technologies, which enable our conveniences, can be active, passive, or hybrid—a blend of both active and passive—in nature.
Systems known as passive technologies rely on renewable energy sources to keep us comfortable without the need for artificial energy. The project’s location’s local climate has a significant impact on the passive design strategies that are used. The methods take advantage of plentiful natural resources and are sustainable. Utilizing such methods contributes to the transformation of building envelopes into organic living systems that can support human existence.
3.2. Glass Façade Performance
The three major principles of glass façade performance are i. visual Comfort, ii. thermal comfort, and iii. Solar radiation. A glass building envelope divides the internal and outside environments. Differing conditions provide environmental loads. The most critical environmental loads are temperature, moisture, and air pressure. Both exterior and interior temperature variables (occupant activities, ventilation, and heating equipment) contribute to temperature load [14].
- i.
- Visual comfort: is achieved when the human eyes get enough light without straining to see certain activities [15];
- ii.
- Thermal comfort: Temperatures between 24 °C and 26 °C provide adequate thermal comfort. Body façade temperature is 33–34 °C or less while inactive, whereas interior temperatures rise with exercise. A temperature of 45 °C or less may induce irreparable brain damage and death. Thus, maintaining a comfortable body temperature is essential for health [16]; mentioned in Fanger, 1970 study;
- iii.
- Solar radiation: Solar radiation has a big impact on the glass façade. It raises surface temperatures, causing rapid drying and inward vapor flow in the glass façade. Radiation travels parallel to two surfaces. This information helps anticipate solar radiation location, time, and intensity depending on the orientation and path of the sun and building [17].
Comparatively, the Mediterranean house has somewhat larger windows and a higher window coverage than the contemporary house, but both traditional and contemporary houses have a low percentage of glass coverage, as seen by the images of the building envelope (Figure 8).
Figure 8.
Study building façade information for traditional Mediterranean (A) and contemporary (B) houses.
3.3. Shading Device Design
The building’s cost may be reduced in a variety of ways thanks to the shading design. Additionally, it aids in reducing direct sunlight and achieving diffused daylight for the comfort of the occupant’s eyes. The window’s orientation affects the size and kind of shading. Depending on the window orientation, the typical North Cyprus (Cyprus Turkish) house design types are shown in Figure 9. In general, vertical fenestration is needed to block the sun from the east and west, whereas horizontal shading elements function effectively in north and south orientation. The shade pattern for the southwest and southeast direction is the toughest, though. The sun is at a medium height in these directions. Because of this, using either horizontal or vertical shade devices will not reduce glare; rather, a mix of both forms of shading is needed to reduce the intensity of the sun.
Figure 9.
Typical Cyprus Turkish house and its shading device technicians.
As seen in Figure 5 and Figure 8, both study houses use deep overhanging approaches in different contexts. Typical Mediterranean houses use deep overhangs (A), window shading (C), and extended balconies as shading devices as their primary means of shade (Figure 9). In contrast, the primary characteristic of the contemporary house is their flat (terrace) roofs and indoor shade. The study attempts to identify dwellings that share the same or similar environments, and in both instances, the dwellings have deep overhangs for shade.
3.4. Building Orientation
Buildings should be designed such that residents may make use of shaded indoor and outdoor living spaces during hot weather and bright indoor and outdoor living spaces with wind protection during cold weather. The installation of passive technologies within the design is governed by the orientation of the building blocks. Additionally, it controls the size and placement of windows, which have an impact on a building’s lighting and climate control. If combined with passive design techniques, proper orientation can result in a considerable decrease in lighting and space conditioning load.
The bulk of the rooms in well-designed structures should be oriented toward the equator, and the spaces should be laid up in this fashion. Thus, the early and afternoon low-angle summer sun shines on the eastern and western sides. Summer sun angles in the sky make it simple to shade windows with just a wide roof overhang or a horizontal shade. The building’s longer north and south sides benefit from the low-angle winter sun. When the structure needs warmth in the winter, the roof overhang or shade on the equator side should let the sun shine in. In the summer, it should offer appropriate protection from high-angle sun [18].
3.5. Thermal Mass
In hot temperature zones, clay bricks and masonry, which have high thermal mass capacities and can support internally acceptable climates, are frequently employed as building materials [19]; as mentioned in Rapoport, 1969 study. Understanding elements that impact the thermal design of buildings, such as the thermal performance and thermal insulation of building materials, is necessary to devise methods for reducing the amount of energy consumed. The link between a material’s thermal characteristics and the thermal cycle it must regulate determines the material’s utility for thermal efficiency.
High concentrated heat capacity, high density, and thermal conductivity are necessary for thermal mass to ensure that heat fluxes into and out of the material coincide with the thermal cycle of the occupied area [20]. While steel has a too-high thermal conductivity and timber is a too-sluggish heat absorber, materials like concrete and clay brick often have a useful thermal mass. A material’s capacity to absorb and release heat during thermal cycles is referred to as admittance or thermal mass and it depends on its density, thickness, and thermal conductivity [21]. The following variables affect a material’s thermal mass:
- Thermal capacity: the quantity of thermal energy required to raise a kilogram of a material’s temperature by one degree Kelvin (1°K);
- Density: varies according to the mass (or weight) per unit volume. Density and thermal mass have a positive connection; they both rise as thermal mass does. The unit of density is kg/m3;
- Thermal conductivity: assesses a material’s capacity to transmit heat. To facilitate thermal absorption and release in a way that synchronizes with the building’s cooling and heating cycle, it is preferred for materials with high thermal mass to have moderate thermal conductivity. Watts per meter Kelvin (W/mkal) is the unit used to express thermal conductivity.
(Figure 10) Both houses have a large thermal mass, but their building methods vary. Traditional houses have thick walls ranging from 40 to 60 cm, whereas contemporary structures employ 20 cm for exterior walls and 10–15 cm for internal walls, in addition to a heating and cooling system. Both kinds of houses used clay bricks of varied sizes and thicknesses to achieve the desired results.
Figure 10.
Study building thermal mass information for traditional Mediterranean (A) and contemporary (B) houses.
3.6. Thermal Comfort
Thermal comfort represents subjective contentment with one’s thermal environment [22]. This model was constructed by calculating thermal satisfaction, which is usually above 85%. According to research, the human body’s thermoregulatory system maintains 33–34 °C. This system’s metabolic balance determines thermal comfort.
Thermal comfort parameters: Personal and environmental variables impact thermal comfort, according to [22]. Air temperature, mean radiant temperature, airspeed, and humidity are the latter. In addition to that, ASHRAE defines several terms in terms of the thermal environmental conditions required for human occupation. This research employed thermally comfortable circumstances to achieve its purpose. This paper used ASHRAE beside [22].
Thermal comfort is the state of mind that conveys contentment with the surrounding temperature. Due to the vast physiological and psychological differences between individuals, it is difficult to accommodate everyone in a place. Not everyone needs the same environmental circumstances to be comfortable. Extensive laboratory and field data have been gathered to give the required statistical data to define thermally pleasant conditions for a specific proportion of occupants. According to ASHRAE, six key aspects must be considered when determining thermal comfort conditions that provide thermal comfort. In some conditions, a variety of secondary variables influence comfort.
4. Results and Discussion
In this section, the simulation results of all four scenarios of traditional Mediterranean (scenarios 1 and 3) and contemporary (scenarios 2 and 4) houses are summarized and presented in the form of tabular and graphs and discussed in detail.
4.1. Traditional Mediterranean
The reason why this study simulates traditional houses in the Mediterranean climate is to measure the total energy consumption to achieve thermal comfort for the occupants within that particular building and aimed to compare loads of energy consumed by the traditional Mediterranean and contemporary houses in the same climate zone. The actual (scenario 1 without PSEEDS) and the assumption (scenario 3 with PSEEDS) and the actual houses (scenarios 1 and 2 without PSEEDS) were used as a benchmark for comparing the effectiveness of PSEEDS. Nevertheless, the actual houses also provide insights into the energy demand for both actual houses and other residential units in the study area.
Both actual and assumption scenarios under traditional Mediterranean house energy consumption have been calculated as explained under the Methods section of the study using 2D drawing, 3D modeling, and energy simulation (BEopt and EnergyPlus) programs. The results for both actual and assumed scenarios are summarized in Table 3. The assumption scenario is adopted PSEEDS to improve the thermal comfort of the occupants and save energy required for maintaining the indoor and outdoor environment. Notwithstanding, the assumption house which adopts PSEEDS achieved a convincing percentage of energy reduction of the required consumption for heating and cooling, and 69.8% energy conservation in heating requirements can be achieved. The energy requirement for cooling has been reduced by 9.3%. As learned from the results, the adoption of PSEEDS has a significant effect on reducing the energy required for heating. Traditional Mediterranean houses are designed and built to be comfortable for their Mediterranean climate so by its nature, the high thermal mass in the wall, the headroom, openings, and built-in shading devices maintain comfort during all summer times.
Table 3.
The energy requirement of traditional Mediterranean (actual and assumption) houses for heating and cooling.
Moreover, the total annual energy consumption was reduced by 34.71% after adopting the strategy with the right measure and applications. Such as upgrading glazing, considering the building’s orientation, modifying the shading devices, and reducing infiltration rates.
4.2. Contemporary House
The contemporary house has two scenarios as shown in Figure 1 simulation houses which are scenarios 2 and 4. The construction of the houses is a concrete slab on both the ground and first floor with clay brick walls 20 centimeters thick. It simulated the same method of the traditional Mediterranean house using BEopt and EnergyPlus. For contemporary house scenario 2 without PSEEDS and scenario 4 with PSEEDS, the Cyprus weather data considered for the simulation and the data obtained from the Meteoblue web source and the American Society of Heating, Refrigerating and Air-conditioning Engineers (ASHRAE) from the EnergyPlus program
As shown in Table 4, a significant reduction in energy consumption has been registered as the results obtained from the simulation program. By adopting PSEEDS, 31.38% energy conservation has been achieved in the annual heating and cooling energy usage. Individual heating loads have conserved 73% per year. Although yearly cooling loads only saw a minor improvement of 6.1%, these outcomes are comparable to those shown for the traditional Mediterranean (scenarios 1 and 3). But compared to the traditional Mediterranean, the contemporary house with PSEEDS appears to have minor energy consumption throughout the winter. This shows that contemporary houses with the integration of PSEEDS have less efficiency to maintain the indoor environment. This is simply because the traditional Mediterranean house has a high thermal mass in comparison to the contemporary house. The thermal mass helps to maintain the heat loss in all seasons, and because of that, the traditional Mediterranean house takes advantage of the contemporary house in addition to PSEEDS.
Table 4.
The energy requirement of contemporary (actual and assumption) houses for heating and cooling.
4.3. Indoor-Outdoor Temperatures
The average temperatures have been picked for both summer and winter, the data obtained from Met Office weather forecasts. The selected days are assumed to be the peak day for both summer and winter, and those seven days were tested to conform to the indoor thermal comfort alongside the outdoor temperatures. The average days for winter of the 12th of December to the 18th of December and the 11th of September to the 17th of September were selected.
Indoor–outdoor temperatures shown in Figure 11 represent the temperature of traditional Mediterranean houses with and without PSEEDS and Figure 12 shows the indoor–outdoor temperature of contemporary houses with and without PSEEDS, and there is no HVAC operating during the study. Comparing the indoor temperature of both actual houses turned out that the contemporary house shows a minor fluctuation. The traditional Mediterranean house maintains the indoor and has a more constant temperature. The reason has been explained in the previous section (the traditional Mediterranean house has a ticking wall with high thermal mass) and because of that, the heat gain is not easily lost.
Figure 11.
Indoor–outdoor temperatures in traditional Mediterranean houses during winter.
Figure 12.
Indoor–outdoor temperatures of the contemporary house during winter.
The traditional Mediterranean house required very low energy for heating because of its high thermal mass, and the contemporary house required more energy for heating in comparison to the traditional Mediterranean house. Figure 13 and Figure 14 show the same result for summer days: the contemporary house more likely following the outside temperature than the traditional Mediterranean house. In a nutshell, the traditional Mediterranean house required less energy than the contemporary house.
Figure 13.
Indoor–outdoor temperatures of the contemporary house during summer.
Figure 14.
Indoor–outdoor temperatures of traditional Mediterranean houses during summer.
4.4. Energy Savings
Comparing both the actual and assumed (improved with PSEEDS) houses, significant energy conservation has been noted from the simulation results in Table 3 and Table 4. The traditional Mediterranean house required less energy in comparison to the contemporary house, and this is because of the high thermal mass of its walls. The thermal mass serves as the thermal storage, it absorbs the summer heat during the day and releases it during the night with cooling breezes, and during winter, thermal mass absorbs the heat from the sun and releases it into the house during the night [23]. The thermal mass helps to keep the indoor environment comfortable for the occupants. Further, as the thermal mass decreases, the heat gain also declines with it. Comparing both Table 3 and Table 4 gives an energy conservation of 422.96 kWh/yr. (34.71%) for traditional Mediterranean houses, and contemporary houses were reduced by 31.38% (552.69 kWh/yr.), and energy conservation has been achieved.
As shown in Figure 11, Figure 12, Figure 13 and Figure 14, adopting PSEEDS and applying high thermal mass effectively on both traditional Mediterranean and contemporary houses gave significant energy conservation as shown in Figure 15 and Table 3 and Table 4. The energy consumption was reduced by 34.71% for the traditional Mediterranean house and 31.38% for a contemporary house during the summer (Table 5). Furthermore, applying high thermal mass plays a significant role in heating and cooling energy load demand on both types of houses.
Figure 15.
Comparisons between the results obtained from the simulation process and different parameters.
Table 5.
Summer of energy conservation analysis and thermal comfort.
The study measured the overall energy consumption and indoor–outdoor temperatures for traditional Mediterranean and contemporary houses in a Mediterranean climatic zone using modeling programs (BEopt and EnergyPlus). Due to its high thermal mass, which helped preserve internal comfort and lower energy consumption, the typical Mediterranean house was found to use less energy. Both traditional and contemporary houses experienced considerable energy savings as a result of the adoption of PSEEDS measures.
5. Conclusions
This research studied the most common residential buildings type on the island (Cyprus) which is the traditional or typical Mediterranean house and the new emerging house type (contemporary house) and tries to integrate reasonable and affordable energy conservation strategies which are passive solar and thermal mass to reduce the total consumption of energy in Akdoğan, north Cyprus.
The study considers two actual houses and two assumption houses, and four of the houses were studied and analyzed from start to finish using computer programs. The simulation houses are actual traditional Mediterranean houses without PSEEDS (scenario 1), assumed traditional Mediterranean houses with PSEEDS (scenario 3), an actual contemporary house without PSEEDS (scenario 2), and lastly, assumed contemporary houses with PSEEDS.
The study has found results that indicate significant energy conservation by integrating passive solar and energy efficiency design strategies and high thermal mass. The study mainly improved and upgraded the following four bold points:
- Glass façade performance, opening and ventilations;
- Shading device design;
- Building orientation;
- High thermal mass.
From the simulation results, the study learned that integrating the PSEEDS and high thermal mass during or after construction will provide a significant energy load conservation. The results show 34.71% and 31.38% energy reduction for both types of houses has been achieved. The high thermal mass roles were bold for energy load reduction, a small change in thermal mass has a high impact when it comes to energy conservation alongside PSEEDS. The other impact was the orientation and ventilation of each building. The orientation of a building is a key part of PSEEDS. To get the required solar gain, the buildings have to face the right pole. In this arrangement, the solar gains can be increased and the heating absorbed by the thermal mass can be increased too.
Considering PSEEDS and high thermal mass before construction is highly recommended. That saves the time and cost of modifications, but it is still highly affordable to apply on already functioning buildings as well. Except for the building orientation, all other strategies can be applied easily. By simply increasing the thermal mass and applying PSEEDS, a 55% energy load reduction can be achieved as compared to an actual contemporary house.
In simple calculations, the 34.71% energy saved from the traditional Mediterranean house can calculate the future 30 years’ energy costs by using the current energy cost (Electricity Authority of T.R.N.C, 2023) which is 3.3237 Turkish Lira, without adding the inflation rate. Thirty years of energy saving is going to be 12,688.8 kWh, and it can save up to 42,173.67 Turkish Lira. As for the contemporary house, the energy saving in the next 30 years is 16,580.7 kWh and 55,109.27 Turkish Lira.
Author Contributions
Both authors contributed to the development, analysis, writing, and revision of the paper: conceptualization. Methodology, formal analysis, investigation, writing original draft preparation, review, editing, and visualization, M.T.B.; supervision, C.A. All authors have read and agreed to the published version of the manuscript.
Funding
This research received no external funding.
Institutional Review Board Statement
Not applicable.
Informed Consent Statement
Not applicable.
Data Availability Statement
The data that used in this study are available upon request from the authors.
Conflicts of Interest
The authors declare no conflict of interest.
References
- Govindaraju, V.G.R.C.; Tang, C.F. The Dynamic Links Between CO2 Emissions, Economic Growth and Coal Consumption in China and India. Appl. Energy 2013, 104, 310–318. [Google Scholar] [CrossRef]
- IEA. Energy Efficiency 2020: Buildings; International Energy Agency: Paris, France, 2020. [Google Scholar]
- Chung, W. Review of Building Energy-Use Performance Benchmarking Methodologies. Appl. Energy 2011, 88, 1470–1479. [Google Scholar] [CrossRef]
- Nguyen, H.; Pham, Q.; Le, T.; Tan, D. Energy Performance of a Tropical Net-Zero Energy Building with Multiple Passive Design Strategies: An Experimental Study. Energy Build. 2021, 26, 88–96. [Google Scholar]
- Deng, Z.; Yu, X.; Yan, D.; Zhang, X.; Bai, X. Energy Performance Evaluation of a Multifamily Residential Building with Improved HVAC Control Strategies. Build. Environ. 2020, 4, 1–12. [Google Scholar]
- Sapci, E.; Paiva, C.M.; Melo, A.L. Passive Solar Design Optimization for Energy-Efficient Residential Buildings in Cold Climates. Energy Build. 2021, 2, 23–27. [Google Scholar]
- Wei, J.; Ma, Z.; Zhao, J. A Review of Passive Solar Heating Systems for Energy-Efficient Buildings in Cold Climates. Energy Build. 2022, 2, 3–5. [Google Scholar]
- Sankhayan, S.S.; Sharma, R.K. A Review of Energy-Efficient and Sustainable Passive Cooling Techniques for Building Applications. Renew. Sustain. Energy Rev. 2021, 61, 156–171. [Google Scholar]
- Wong, C.K.; Mui, K.W.; Wong, A.W.C. Development of an Energy-Efficient Envelope Design for High-Rise Residential Buildings in the Hot and Humid Climate of Hong Kong. Energy Build. 2022, 3, 5–12. [Google Scholar]
- Hu, R.; Clevenger, C.M.; Biswas, J.A. A Holistic Approach to Energy-Efficient Design in Residential Buildings: Case Study of a Net Zero Energy Building in the United States. Energy Build. 2022, 6, 1–15. [Google Scholar]
- Attia, S.; Hensen, J.L.M.; Beltrán, L.; De Herde, A. Selection Criteria for Building Performance Simulation Tools: Contrasting Architects’ and Engineers’ Needs. J. Build. Perform. Simul. 2012, 5, 155–169. [Google Scholar] [CrossRef]
- The World Bank Group. Climate Change Knowledge Portal. Available online: https://climateknowledgeportal.worldbank.org/country/cyprus/climate-data-historical (accessed on 28 December 2022).
- Agboola, O. Importance of Climate to Architectural Designs in Nigeria. Env. Issues Agric Dev. Ctries. 2011, 3, 15–28. [Google Scholar]
- Clarke, J.; Johnstone, C. Assessing and Benchmarking the Performance of Advanced Building Façades. In Materials for Energy Efficiency and Thermal Comfort in Buildings; Woodhead Publishing: Sawston, UK, 2010; pp. 484–502. [Google Scholar]
- David, M.; Donn, M.; Garde, F.; Lenoir, A. Assessment of the Thermal and Visual Efficiency of Solar Shades. Build. Environ. 2011, 46, 1489–1496. [Google Scholar] [CrossRef]
- Mohamed, N.; Al-Jaroodi, J.; Jawhar, I.; Kesserwan, N. Data-Driven Security for Smart City Systems: Carving a Trail. IEEE Access 2020, 8, 147211–147230. [Google Scholar] [CrossRef]
- Permasteelisa Group 2022. Available online: https://www.permasteelisagroup.com/news-detail?news=2579 (accessed on 6 January 2023).
- Aksoy, U.T.; Inalli, M. Impacts of Some Building Passive Design Parameters on Heating Demand for a Cold Region. Build. Environ. 2006, 41, 1742–1754. [Google Scholar] [CrossRef]
- Sharaf, F. The Impact of Thermal Mass on Building Energy Consumption: A Case Study in Al Mafraq City in Jordan. Cogent Eng. 2020, 7, 1804092. [Google Scholar] [CrossRef]
- Yu, J.; Yang, C.; Tian, L.; Liao, D. A Study on Optimum Insulation Thicknesses of External Walls in Hot Summer and Cold Winter Zone of China. Appl. Energy 2009, 86, 2520–2529. [Google Scholar] [CrossRef]
- Venkiteswaran, V.K.; Liman, J.; Alkaff, S.A. Comparative Study of Passive Methods for Reducing Cooling Load. Energy Procedia 2017, 142, 2689–2697. [Google Scholar] [CrossRef]
- ASHRAE Standard 55; Standards of Human Comfort; Relative and Absolute. Boduch, M., Fincher, W., Eds.; The University of Texas at Austin: Austin, TX, USA, 2013.
- Bambrook, S.; Sproul, A.; Jacob, D. Exploring the Zero Energy House Concept for Sydney. In Proceedings of the Solar09 47th Australian and New Zealand Solar Energy Society Annual Conference, Townsville, Qld, Australia, 29 September–2 October 2009. [Google Scholar]
Disclaimer/Publisher’s Note: The statements, opinions and data contained in all publications are solely those of the individual author(s) and contributor(s) and not of MDPI and/or the editor(s). MDPI and/or the editor(s) disclaim responsibility for any injury to people or property resulting from any ideas, methods, instructions or products referred to in the content. |
© 2023 by the authors. Licensee MDPI, Basel, Switzerland. This article is an open access article distributed under the terms and conditions of the Creative Commons Attribution (CC BY) license (https://creativecommons.org/licenses/by/4.0/).














