Next Article in Journal
Automatic Detection of Pedestrian Crosswalk with Faster R-CNN and YOLOv7
Next Article in Special Issue
The Right to Comfort in Social Housing: Energy and Thermal Performances as Parameters of a Systemic Analysis
Previous Article in Journal
Firm Size and Artificial Intelligence (AI)-Based Technology Adoption: The Role of Corporate Size in South Korean Construction Companies
Previous Article in Special Issue
Exploring the Interplay between Thermal and Visual Perception: A Critical Review of Studies from 1926 to 2022
 
 
Font Type:
Arial Georgia Verdana
Font Size:
Aa Aa Aa
Line Spacing:
Column Width:
Background:
Article

Good Architecture Matters: The Architect’s Perspective on Design for Ageing and Energy Efficiency

Faculty of Architecture, University of Porto, 4150-564 Porto, Portugal
*
Author to whom correspondence should be addressed.
Buildings 2023, 13(4), 1067; https://doi.org/10.3390/buildings13041067
Submission received: 3 January 2023 / Revised: 6 April 2023 / Accepted: 14 April 2023 / Published: 18 April 2023

Abstract

Custom-built solutions for ageing, urban regeneration, energy efficiency, thermal performance, and well-being are contemporary challenges that have prompted considerable research over the past decades. In the construction field, subjects such as energy efficiency and thermal performance are often addressed within the scope of mandatory regulations, the suitability of construction solutions and the incorporation of technical equipment. Considering four residential structures for older adults under construction in Portugal, this paper aims to highlight the importance of a comprehensive approach to these issues, including architectural quality as the main target. In pursuit of this, a cohesive set of intervention principles guided the analysis: the adaptive reuse of raw materials; taking advantage of the site’s conditions; vegetation (type and location); construction options and durability; solar exposure and shading; the pedagogy of building use; and the comfort and thermal perception. Several reflections emerge from the analysis: good architectural design must consider dynamic models incorporating each context and the site’s conditions; the culture of use and maintenance and the notion of “adaptive comfort” are primary factors to enhance thermal performance and energy efficiency; and each building is a unique result of a complex negotiation process. Bridging research through practice, and multidisciplinary scientific integration enable engagement with reality and raise awareness of the constraints and challenges to innovation in LTC design.

1. Introduction

The urban areas of many contemporary cities encounter a multidimensional cluster of challenges requiring a holistic approach to problem-solving on every relevant decision-making scale. Metropolitan areas’ aged population is growing rapidly, and cities are facing dramatic climate changes and energy consumption issues. According to Mauree et al. [1] (p. 1), in 2018, “urban areas are responsible for more than 70% of the emissions” of greenhouse gases. Furthermore, the building sector is one of the most significant energy consumers in the EU, representing around 40% of final energy consumption and 60% of electricity consumption (construction, usage, renovation and demolition) ([2], [3] p. 1).
As reported by the World Health Organisation (WHO, 2022) [4], rapid population ageing poses challenges for governments and policymakers in many contemporary societies. As in most European countries, in Portugal, the population is ageing at a fast pace and this phenomenon is related to several factors such as increased life expectancy and the continued decline in fertility rates, in line with the phenomena described in most countries [5].
According to the study of Bárrios et al. in 2018 [6] (p. 2), “Portugal is one of the European countries that require greater attention to this phenomenon, with older age cohorts representing a considerable part of the population”. The authors [6] (p. 2) synthesise relevant data in this context: “According to Eurostat, in 2018, 21.5% of Portugal’s population was aged 65 years or above, representing the third highest figure in the EU28 (19.7%) after Greece (21.8%) and Italy (22.3%). In the same year, Portuguese citizens aged 80 years or older represented 6.3% of the population, above the EU28 mean (5.6%), and only surpassed by Greece (6.9%) and Italy (7%)”. Also, the 2020 Portuguese National Statistics Institute report [7] highlights that “the ageing ratio in Portugal will almost double, from 159 to 300 elderly people for every 100 young persons in 2080 as a result of the decrease in the young population and the increase in the elderly population”. (Figure 1).
In Portugal, the societal caregiving model frequently relies on the family to ensure older adults’ assistance. More recently, government programmes such as the Independent Life Support Model (MAVI) [9] implemented in 2017 (Decree Law 129/2017 of 9 October [10], followed by Ordinance 342/2017, 9 November [11], recently amended by Ordinance 287/2020, 16 December [12]) introduced the provision of a personal assistance service to support persons with severe disability or incapacity in daily activities.
Moreover, in recent decades, several long-term care solutions have emerged as an alternative to the “traditional” nursing home, especially in the private market. The assisted living residences that emerged in the early 2000s are an example of such cases [13,14].
Research on Ageing, well-being and energy efficiency in buildings offers numerous opportunities for interdisciplinary studies that are committed to interprofessional collaboration, with the creation of critical priorities and comprehensive perspectives that can be effectively communicated to funding bodies, policymakers, and stakeholders.
This paper aims to study the architectural design solutions of four residential structures for older adults currently under construction in Portugal (Figure 2). It seeks to explore the implemented design models by connecting several contemporary challenges: custom-built solutions for the ageing, urban regeneration, energy efficiency and well-being. These issues are addressed from a holistic perspective and a scientific approach grounded on practice-led research as a working method.
More specifically, the hypothesis that is advanced in this paper is that within architectural design, issues such as energy efficiency and thermal comfort are frequently only addressed from the viewpoint of mandatory regulations, the suitability of the construction solutions and the incorporation of technical equipment. However, these issues must be considered from a broader perspective, including architectural quality. Therefore, the abstraction of scientific data provided by the different fields that participate in the design process necessarily needs to be questioned when incorporated into the project.
Concepts and instruments directly related to the architectural quality dimension, such as adequate urban integration, solar exposure, vegetation, building maintenance, ways of using, and suitable spatial organisation, providing views, daylight, and access to fresh air, are frequently underestimated in energy efficiency-driven discourses connected with energy certification. Some of these aspects have been explored by bioclimatic architecture studies in recent decades [15,16,17,18,19] and are highly present in traditional architecture. Additionally, these notions are crucial in every building design but particularly relevant when targeting inhabitants with specific needs, such as those older adults for whom ageing in their homes is not viable.
Thus, the research questions that guide the study are as follows: in the design of these four residential structures, what was the approach to energy efficiency on different scales, from the urban environment point of view to the perceptions of comfort and well-being? What is the role of intermediate exterior spaces in these buildings? How can spatial organisation enhance the perception of thermal comfort among the residents?
The paper is divided into six sections, with two main parts: Section 3, dedicated to Design for Ageing: current challenges versus architectural practice constraints and Section 4, From regulation to comprehensive design practices in energy efficiency, which focusses on energy efficiency and thermal performance subjects. Both chapters have a similar structure, namely, Section 3.1 and Section 4.1 establish the particularities of the core subject, theoretical framework, and our approach to the Portuguese context. The ensuing subchapters focus on the analysis of the case studies. Section 3.2 and Section 3.3 provide a general characterisation of the programme, context, site, and regulatory constraints. Section 4.2 elaborates on the diverse responses to a set of design principles within the scope, confronting empirical knowledge gained by practice with a scientific background of relevant research in each topic.

2. Materials and Methods

Four case studies were selected at different construction stages to address the issue of design for ageing residents and current energy efficiency challenges. The projects were developed by a Porto-based architecture office, Nuno Valentim, Arquitectura e Reabilitação, LDA, which adopts a practice-led research approach to frame its work. The architect in charge is also deeply involved in teaching and research in refurbishment and passive design strategies at the Faculty of Architecture of the University of Porto. Each building complex has a highly diverse urban site and context, occupying plots of land along the riverside (Vila Nova de Gaia, Coimbra, Porto), in areas in transformation (Coimbra) or in the historic city centre (Braga).
In the four selected projects, a set of cross-cutting concerns regarding urban framing and site integration may be noted, namely:
  • The dialogue between the scale of the new buildings and the dominant scale of the surroundings.
  • The use of local heritage as an identity reference.
  • The choice of facade claddings, namely types of materials, colours and finishings, aiming to establish connections with the local pre-existence.
  • The enhancement of the surrounding natural areas and the creation of green spaces for collective use.
  • The organisation of the site plan to optimise solar orientation, exterior views, and the visual and volumetric impact of the new construction on the surrounding environment.
The importance attributed to the site’s conditions and surrounding nature in the approach to these projects is in line with a design and construction tradition that is well-known and common to the architects from the Porto School of Architecture, following the influences of Fernando Távora and Álvaro Siza [20,21,22,23,24,25]. As summarized by Bergdoll [26] in “Siza: Notes on nature”, “Nature, for Siza, as he writes and draws in such symbiotic harmony, is more about the nature of the site, the inhabitation of the site, of the terrain, of the place as it is about an abstracted notion of Nature in the 18th century or the ecological consciousness per se as it developed over the decades of his own early practice… Nor is it simply a pragmatic relationship to resources, to a healthy respect for solar orientation, for water resources, or prevailing winds as in Vitruvius’s first book. Siza’s nature is also the poesis of the site”.
In this short text from the English republication of Siza’s book “Imagining the Evident”, from the first Italian edition in 1998 [27], Bergdoll [26] makes an enlightening statement that transports us from poetics to contemporary urgencies: “That first line—‘“Architecture has no meaning unless in relation to NATURE”’—might also be read as a foreboding of the environmental and climate crisis that is an essential part of our existence now, two decades after these lines were first printed in Italian (translated from the Portuguese)…”.
These thoughts bring us to the purpose of the environmental concern that underlies the discussion of this paper. According to the architectural project authors of the residential structures for older adults under analysis, a cohesive set of principles guided the interventions regarding energy efficiency and thermal performance:
  • the adaptive reuse of raw materials;
  • taking advantage of the site’s conditions;
  • vegetation (type and location);
  • construction options and durability;
  • solar exposure and shading;
  • the pedagogy of building use; and
  • the comfort and thermal perception.
The adopted research framework follows the main steps of qualitative research: General research question(s); Selection of relevant site(s) and subjects; Collection of relevant data; Interpretation of data; Conceptual and theoretical work; Writing up findings/conclusions [28] (p. 384), introducing specific features and adaptations connected to practice-led research.
Methodologically, the developed research engages practitioners (architects deeply connected to practice), considering the empirical knowledge (i.e., the knowledge gained from experiment and observation rather than from theory) gained through their daily architectural projects and construction.
Research in architecture has its characteristics and specific features, especially considering that the practice of architects is a primordial means of achieving new cognition through experience and “through work with form and space”, as argued by Hauberg [29] (pp. 47–48). Roggema [30] (p. 2) underlines the principle that “Design research is both the study of design and the process of knowledge production that occurs through the act of design”. Rosemann [31] (p. 67) highlights the goal of exploring new possibilities and innovative solutions. Additionally, Luck [32] (pp. 5–7) emphasizes the methodological specificity of practice-led research, i.e., research conducted through practice, and the challenges that emerge when it is confronted with scientific research knowledge production.
Thus, when addressing recent scientific research on the afore-mentioned set of principles, a particular focus is placed on the balance among a broad set of factors (e.g., client, programme, site, regulatory constraints, sustainability, and budget, among several others). This balance is necessarily established through architectural practice, by incorporating the perspective of the design authors, the context, and the quality of the built result into the discussion.
Following the definition of the general question and the selection of the case studies/architectural projects, relevant data were collected from all the written documents and graphic materials related to the licensing process of the four selected projects (architectural and mandatory engineering projects); the authors of the architectural projects were interviewed and provided information regarding their options. One of the key findings to emerge from the interpretation of the data was that, despite the extensive scientific detail of the engineering projects and mandatory certifications, the architectural designers stated that the project exceeds the technical requirements regarding energy efficiency and thermal building performance.
In this step, their practice-led research prompted the definition of the conceptual framework by theorizing several principles related to the subjects under the scope. Although no radically new concepts emerged from the architects’ discourses, the above finding made it possible to establish connections between several elements. The process led to the collection of further data, namely scientific writings on the specified design principles.
The defined principles and general framework were then confronted with several scientifically based studies on each topic, necessarily interdisciplinary, ranging from the social sciences to the engineering fields, whereby their relevance in the contemporary landscape was confirmed. Bryman [28] (p. 385) states, “As such, the literature becomes significant at later stages of helping to inform theoretical ideas as they emerge from the data and as a way of contextualizing the significance of the findings”.
These principles are further developed in Section 4, through four selected case studies corresponding to private institutions in the north of Portugal, with a view to illustrating a cross-disciplinary approach to energy-efficient architecture for the ageing society. Additionally, the study has fostered deeper knowledge on the frameworks and constraints associated with the implementation of private LTC solutions in Portugal, and the regulatory framework regarding Energy certification in this context.

3. Design for Ageing: Current Challenges versus Architectural Practice Constraints (Programme, Regulation, Site, Context)

3.1. Long-Term Care (LTC) and Ageing in Place Challenges

As our contemporary societies are getting older, the provision of well-being services and residential solutions for the fast-growing population of older adults with chronic conditions has been a focal topic in all the relevant policy-making fields for Ageing.
An age-sensitive analysis of urban history distinguishes between the dominant spatial manifestations of intergenerational relations in urban development. First, integrating the young and old at the household level was the dominant model in preindustrial communities (still the most common situation in Portugal). Later, according to Laws [33] (p. 688), the dynamic of the industrial city triggered small-scale separations of the generations, which required specific built environments; among the consequences of this, the rise of nursing homes and long-term care centres may be mentioned.
Over the past decades, a significant boost in efforts has been seen to shift the idea of caring services from the traditional slant of hospital-like institutions [34] (p. 112) to “ageing in place” strategies [35] (p. 2), [36] (p. 145). This latter concept is regarded as a means of ensuring that older adults maintain their independence, autonomy, and connection to social support, including friends and family, as also mentioned by Wiles et al. [37] (p. 357). Moreover, it is part of a governmental and societal strategy to replace (or delay) institutionalisation, promoting the permanence of older adults in their local communities near family or support services. Authors such as Demirkan et al. have clarified that these strategies naturally have an impact on housing design, from setting key issues, influencing decision making and affecting the establishment of intervention priorities [38,39,40], to the integration of the inhabitants in the process [41].
Beyond this fact, according to Vasunilashorn et al. [42] (p. 4), the relevance of this topic has also increased over time due to the greater availability of noninstitutional care solutions, such as community housing, congregate housing, and boarding homes. Addressing alternative dwellings for senior citizens in view of their varying degrees of fragility and dependence, Martín [43] mentions models such as: single senior dwellings shared senior homes; intergenerational arrangements; supervised dwellings; assisted living; institutional residences; and, finally, geriatric institutions.
In recent studies (2019), Alders et al. [44] (p. 83) state that “the trend of ageing-in-place seems to be partly driven by technological advancement, changing preferences and culture, and partly by changes in health policy”. Although ageing in place is becoming the most popular idea in age-friendly policies for many societies, the demand for nursing homes and institutional care centres is inevitable since some older adults may face great difficulty living independently. Furthermore, professional care for predominantly older people with chronic diseases and physical or mental disorders and disabilities can enhance their quality of life.
In Alders et al.’s studies [44] (p. 83), when focusing on specific contexts, such as The Netherlands, it is argued that although the demand for institutional LTC has reduced due to ageing in place policies since 2015, “As the number of people over 80 years will double over the next 20 years, in the future the declining demand for institutional LTC due to ageing-in-place might be offset by a growing population in need for institutional LTC”. They also underline that “Not only the quantity but also the type and quality of institutional care that will be demanded is likely to change, because of changing ideas, expectations and preferences of how institutional care should be provided. Traditionally, institutional care for the impaired elderly was hospital-like and clinically oriented… For more than a decade, however, the delivery of institutional LTC has been shifting to a homelike environment in a nursing home” [44] (p. 84).
These transitions and new expectations should also be considered in light of the 2020 pandemic. Several 2020 studies focus on the impact of the COVID-19 pandemic on long-term care facilities [45,46,47,48] and particularly the need to reassess architectural spatial standards and quality of design, which is the specific focus of Andersen et al. in a study from 2021 [49] (p. 1520). This study identifies the urgent need to examine these “design models and provide alternative and holistic models that balance infection control and quality of life at multiple spatial scales in existing and proposed settings” [49] (p. 1519).
Andersen et al. [49] (p. 1520) also argue that designing for improved quality of life implies meeting several needs, namely “Community involvement and interaction”, “Proximity to a person’s home community”, “Contact with a familiar neighbourhood”, “Access to local services or shops”, “Spiritual well-being”, and “Homelike environment and privacy”, and that design issues should be considered across key spatial scales (from site location to building details). As regards what the authors refer to as “Micro-scale Issues” related to the Site and the Building, they underline that early research suggests the benefits of small-scale (typically 10–12 residents), homelike settings with dedicated staff. Sandvoll et al. [50] (p. 8) conclude that it is crucial to help create a ‘sense of place’, assisting the residents in feeling at home and in undertaking pursuits that suit their uniqueness. Additionally, the transitional spaces (intermediate spaces), supporting the residents’ daily activities, are mentioned as key aspects to consider in design.
Recent research on LTC preferences, such as by Lemos et al. [51] (p. 10), has systematically shown that older Portuguese adults’ preferred arrangements are still family-based solutions.
In Portugal, a National Network of Long-Term Care Services (Rede Nacional de Cuidados Continuados Integrados, RNCCI) has been in place since 2006. Nevertheless, there is no single paradigm for the organisation and provision of LTC services. In the last two decades, private investment in residential structures for older people has increased, mainly due to changes in the availability of family support and the lack of state-funded or capable social responses. In fact, according to Cardoso et al. [52] (p. 394), although an essential share of LTC services in Portugal has been provided by private, not-for-profit providers (namely Misericórdias) since 2006, the government has assumed the responsibility of developing the network of LTC services and of ensuring further funding so that the network can respond to the population’s needs for LTC.
News on the media in Portugal have drawn attention to the design of nursing homes [53,54], due to the recent pandemic. This news elicited the fact that as older adults are particularly vulnerable to severe disease or death from diseases such as COVID-19, new models need to be taken into consideration. Nursing homes have been found to prevent physical and mental frailty in older residents and to mitigate the chronic loneliness caused by the circumstances of the pandemic. Taking these aspects into consideration, studies such as Araujo et al. [55] (p. 84) bring attention, to the fact that, in 2022, decision-makers need to acknowledge that older people living in nursing homes have several health needs (beyond physical health-related needs), which should determine the implementation of new strategies to cover all those demands, including the buildings’ design.

3.2. The Private Approach to LTC Architecture in Portugal

The above-mentioned framework indicates the need for renewed LTC models with smaller functional units and fewer residents. This discourse is supported by design researchers in Spain, such as Martín in 2020 [56] and Pérez-Duarte Fernández & Cruz Petit in 2017 [57], who refer to a societal context that has many similarities with Portugal. However, in Portugal, the reality of construction opportunities in urban centres remains anchored on a logic of economic profitability, whereby projects are leveraged by the initiatives of private foreign investors, as is the case of the four residences in this study.
According to the architecture designers, in these specific cases, the model sought by the developer usually matches the design of compact buildings, a hotel-like scheme with a central corridor and rooms arranged in a line and is presented as the most profitable arrangement. For promoters, the expansion of the facilities represents the multiplication of functional units and, consequently, of the number of employees assigned to each service which, from their perspective, hugely affects the economic viability of the operations.
The four selected projects follow the promoters’ pre-established programmes and are characterized by the viability of the financial operation, which translates into buildings of considerable size (between 80 and 120 residents) divided into a variable number of functional units. The buildings’ targets are a diverse audience and an unknown recipient. Additionally, the programme is defined from the perspective of future transformation flexibility, for example, into Continuous Care Units. The rooms are preferably single, with accessible bathroom facilities. The residential structures accommodate a varied set of services and collective spaces adapted to the everyday needs of this type of building.
At the functional programme level, the projects are equally regulated by: (1) the legislation in force in Portugal for residential structures for older adults (locally known as ERPI—Estruturas Residenciais para Pessoas Idosas), namely the specifications and requirements of specific areas and services laid down in Ordinance 67/2012 of 21 March [58], defining the organisation, operation and installation conditions, and (2) Decree-Law 33/2014 of 4 March [59], which defines the legal framework for setting up, operating and supervising social support establishments managed by private entities.
All staff and resident living areas, including the bedrooms, must comply with local (Porto, Vila Nova de Gaia, and Coimbra) regulations that consider these residential structures as Service facilities (and not residential or hotel types, as in Lisbon’s regulations). This fact impacts the buildings’ volumetric aspect (ceiling heights set at 3.00 m instead of 2.70 m) and their evaluation regarding energy efficiency certification.
Above all, Ordinance 67/2012 of 21 March determines the programme, spaces, functional relations, number of users, and accessibility, among other parameters that shape the architectural and constructive solution. Nevertheless, the understanding of the regulation in the country’s different regions has given rise to varying interpretations by the local Social Security and Regional Health Administration services, translating into differences among the four case studies. The most evident interpretative “tensions” are related to the number and location of sanitary support facilities, geriatric baths, support rooms with pantries and nursing support. Licensing entities frequently adopt a narrow interpretation of the normative quantification foreseen in Ordinance 67/2012, ignoring its openness and flexibility and the architectural particularities of the sites.
The design of residents’ spaces and paths considers the provisions of Decree-Law 163/2006 of 8 August [60], the regulatory framework that regulates accessibility factors in Portugal regarding all types of buildings. The Portuguese legislation framing the “accessibility regime for buildings and establishments receiving the general public, public roads and residential buildings” dates back to 2006, having been updated by Decree-Law 125/2017 of 4 October [61], and, recently, by Ordinance 301/2019 of 12 September [62], which establishes the design methods to improve accessibility for people with reduced mobility in pre-existing residential buildings.
This detailed document addresses a vast number of topics, namely the design of shared spaces: mechanical means of vertical communication; provision of parking spaces; accessible routes; manoeuvring spaces for a 180° rotation in circulations; dimensioning of entrance spaces; dimensioning, disposition, and compulsory equipment of the sanitary installations; specifications relative to staircases, coverings, and openings in the fire exits, among others.
The concerns emerging from the COVID-19 pandemic resulted in adjustments to the Porto project as of 2020, namely the segregation of service circuits. Nevertheless, some aspects had already been taken into consideration in the Vila Nova de Gaia, Coimbra, and Braga projects, particularly the interconnection between indoor and outdoor areas and the possibility of isolating functional areas.

3.3. Four Residential Structures for Older People (ERPI’s Programme, Site, Context)

3.3.1. Case Study 1: Braga, Portugal (2017—Project; 2022—Under Construction)

This complex is in the historic centre of Braga, on a plot of land delimited by three streets and occupying an area of 1085 square meters. The existing properties were vacant, with only some of the facades remaining and preserved in ruins.
The proposed construction occupies the boundary of the plots, giving continuity to the pre-existing urban front. An outdoor garden area is designed inside the new block. The construction volume consists of a three-storey building with a recessed floor. The structures are characterised by a heterogeneous language, dictated, on the one hand, by the city council’s requirement to reproduce the existing facades in one of the streets (Figure 3 and Figure 4). On the other hand, in the new construction, the span metric, the design of balconies, and the architectural and plastic decorative elements foster a sense of continuity with the environment and local identity.
The residential structure’s functional programme was dimensioned for a maximum available capacity of 80 residents, distributed across 52 bedrooms, 24 individual and 28 double, varying from 21.5 to 34 square meters.
The functional areas are distributed throughout the floors as follows: Level 2 Basement, parking, storage, technical areas, laundry, and supply; Level 1 Basement, staff areas, kitchen, common area with dining areas, living rooms and activity rooms; Ground Floor, reception, and administrative areas; bedroom area; 1st to 3rd Floor, bedroom areas and support areas.

3.3.2. Case Study 2: Vila Nova de Gaia, Portugal (2017—Project; 2022—Under Construction)

This building complex is in Vila Nova de Gaia, close to the marina, an urban area in transformation. The plot has a total area of 4969 square meters, with a regular shape and a steep slope facing north. On the eastern side of the surroundings, there is a predominance of single-family dwellings with 2–3 floors. In contrast, the western side accommodates extensive green areas that frame the “Palacete de São Paio”, a small-scale historical building with patrimonial heritage value.
The complex is built into the hillside through two buildings with the same volume (ground floor + 4 floors), connected to a partially underground construction. These buildings offer privileged views over the riverfront and seafront. According to the authors of the architectural project, the dimensions and height of “Palacete de São Paio” were taken as reference measures for the location and volume of the proposed buildings (Figure 5 and Figure 6).
The structure is designed for 120 residents in 120 individual rooms, organised into three functional areas (two in the south building and one in the north building).
Between the two main buildings and the connecting area, the programme is distributed as follows: Level 2 Basement, parking, storage, and technical areas; Level 1 Basement, car access, covered outdoor area; Entrance Floor with connection to the upper reception, common areas, swimming pool and gym with access to outdoor areas, services; Ground Floor: reception area, administrative areas, cafeteria, living and activity zones, services, kitchen; 1st to 5th Floors: bedroom areas and associated services [63].

3.3.3. Case Study 3: Coimbra, Portugal (2017—Project; 2022—Under Construction)

This project stems from the rehabilitation and expansion of the “Fábrica Ideal”, a former industrial building, now designed as a residential structure for 120 residents (100 rooms, 80 single and 20 double). This complex occupies a total area of 5000 square meters, located on the riverfront. The site is noteworthy for the urban sprawl along the river and the railway, which is currently being transformed by the implementation of hotel industry buildings.
The old “Fábrica Ideal” building was damaged by a fire in 2011 and only the facades remained intact. The project addresses the intention of the City Council and includes rehabilitating the exterior envelope and the reconstruction of the roofs (volume A), as well as constructing a new building (volume B), thus assuring the project’s viability. Its volume (ground floor + 3) and configuration allow for transitioning scales to the existing north hotel (Figure 7 and Figure 8).
The former building’s refurbishment consists of common areas on the ground floor, service areas in the basement, and rooms on the upper floors. The new facility mainly organises a large set of rooms. Both buildings are connected, and their configuration creates a courtyard garden for the residents.

3.3.4. Case Study 4: Porto, Portugal (Project 2020)

This project is located in D. Pedro V Street, Porto, an important axis that connects the riverside to the upper part of the city. The chosen plot has good solar exposure (south and east) and the possibility of visual perspectives of the river. The surroundings contrast large-scale buildings along the main street with the rural areas and small-scale facilities facing east (Figure 9).
The building is designed as a single slab with six storeys and an organic shape on the first floor. This floor, which differs from the others, is characterised by the volumes protruding to the east. This volumetry was defined in view of the urban, visual and scale relations to be established by the new building with the existing and projected neighbouring constructions. It also considered the “large scale” of D. Pedro V Street and the small scale of the valley to the east (Figure 10).
The building’s exterior envelope will be coated in ceramic material and face brick in reference to the area’s industrial heritage and in dialogue with other nearby constructions. The brick colour will also help to “merge” the building into the valley-amidst the woodland, the granite walls, the rocky outcrops, and the ceramic colour of the existing roofs.
This structure will have a maximum capacity of 120 residents, corresponding to three functional units. The residents will be accommodated in 106 rooms, 92 single rooms and 14 double rooms-room areas may vary from a minimum of 18.5 to a maximum of 28 square meters.
The First Floor houses the main entrance, reception, management and administrative areas, technical management, technical and meeting rooms, residents’ common areas, including living and activity rooms and dining room, gymnasium, and hairdresser. The living and activity rooms were dimensioned to serve Functional Units 2 and 3.
Floor 2 (Functional Unit 1) holds accommodation facilities for 20 residents distributed across 20 individual rooms, dining room, living/activity room, services, and nursing support.
Floors 3 and 4 (Functional Unit 2) distribute accommodation for 48 residents across 42 rooms (36 single and six double). A living room also complements each floor with a pantry, geriatric bath areas and nursing support. This unit’s living/activity and dining rooms are on the ground floor.
Floors 5 and 6 (Functional Unit 3) hold accommodation for 52 residents distributed across 44 rooms (36 single and eight double) and associated services. This unit’s living/activity and dining rooms are located on the first floor.

4. From Regulation to Comprehensive Design Practices in Energy Efficiency

4.1. Energy Efficiency and Thermal Performance, Regulation, and Certification Criteria

In recent decades, awareness of climate change and the need to revise urban planning policies has increased noticeably. Nevertheless, historically, according to Mauree et al. [1] (p. 2) in 2018, “contemporary cities were not designed with climate change in mind. Urban geometries, surfaces, building forms, and envelopes (wall, roof, floor, physical characteristics such as insulation, glazing ratio, etc.) were designed according to organisational and aesthetic ideals rather than adapting to climatic changes, which is only becoming an issue nowadays”. Or, more precisely, at least in the last three decades, when climate change became a significant topic.
In this situation, in order to adapt cities to this issue, a logical type of intervention would involve alterations to the building envelope [1] (p. 2). Therefore, adaptation is a vital strategy for outdoor and indoor thermal comfort when cities encounter global warming and new legal requirements for energy consumption. In this regard, according to Ascione et al. [64] (p. 10831), several parameters characterise “the thermo-physical performance of the building shell, such as the thermal transmittance, the thermal capacity, the behaviour of the transparent envelope, and the radiative properties of external coatings”.
In Portugal, the Buildings Energy Certification System (SCE) was implemented through the publication of Decree-Law 78/2006 of 4 April [65], following directive 2002/91/EC of the European Parliament and the Council of 16 December 2002 on the energy performance of buildings. The Portuguese regulation states that all existing, new, or refurbished residential, commercial, or office buildings must have an Energy Certificate. According to Vaquero [66], from its initial implementation to the present day, the regulation has undergone several changes, impacting the leading indicators of buildings’ energy efficiency and calculation methodologies.
The SCE was approved by law in 2013 (Decree-Law 118/2013 of 20 August [67]), along with the Regulation on Energy Performance of Residential Buildings (REH) and the Regulation on Energy Performance of Buildings for Commerce and Services (RECS) regarding all properties, whether for sale or lease, new or old. The SCE was recently updated by Decree-Law 101-D/2020 of 7 December [68]. In 2020, the Energy class of the commercial and services building stock was highly diverse, of which the most representative classes were B- and C (Figure 11).
The Portuguese Agency for Energy (ADENE) is responsible for publishing the Energy Certificate. It attests a property’s energy efficiency through a system staggered from A–F, which distinguishes the more efficient properties from the others. It includes information regarding energy consumption characteristics related to air conditioning and sanitary hot water and indicates measures to reduce energy consumption. Some actions may involve, for example, installing double glazing or reinforcing insulation. This certificate is valid for ten years for residential buildings and small-scale commercial and service buildings and eight years for larger commercial and service facilities.
Several factors determine the energy rating of a building, including: the construction year; location of the property; type of dwelling; areas; environment characteristics, i.e., walls, roofs, and floors; air conditioning equipment: ventilation, cooling, and heating; and equipment associated with the production of sanitary hot water.
The certificate displays:
  • Performance indicators (that determine the energy class of the building and the efficiency in energy use, including the contribution of renewable energy sources. They are presented against a reference value and calculated under standard conditions
  • Energy class (from A to F)
  • Renewable energy sources
  • Contribution of renewable energy to the energy consumption of the building
  • Estimated CO2 emissions due to energy consumption
  • Thermal behaviour of the building elements (walls, roof, floor, windows)
  • Heat losses and gains of the building
  • Proposals for improvement measures
An analysis of the certificates currently being issued points to a lack of consideration of several fundamental factors in the design of a quality architectural project and which have an impact on the energy performance of the building. These principles or fundamentals are anchored on a particular idea of architecture, which guides the project design and integrates the engineering projects (thermal, acoustics and remaining infrastructures), not as an addition but as part of a comprehensive strategy.
The four residential structures for the elderly under study fully comply with the Portuguese regulatory framework regarding the Buildings Energy Certification System (SCE) and the Regulation on Energy Performance of Buildings for Commerce and Services (RECS), Decree-Law 101-D/2020 of 7 December [68], as they are supported by specific projects for specialties such as thermal behaviour and Energy Efficiency. The construction solutions, technical options, and selected equipment are specified in these projects and can be summarized in the following descriptions.
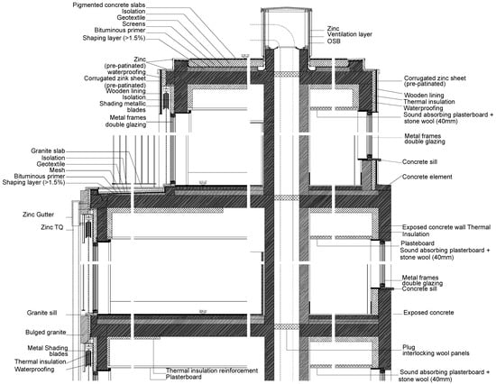
The opaque building envelope is well insulated in the four case studies. In Vila Nova de Gaia, Braga, and Coimbra (2017 projects), for the air conditioning of the bedrooms, offices, and living/activity rooms, direct expansion, and heat pump-type variable refrigerant flow (VRV) systems will be installed. The dining room and kitchen will be air-conditioned using air handling units (AHU), with direct expansion batteries fed with refrigerant by a two-pipe system connected to the respective outdoor unit. Ventilation will be carried out mechanically through air handling units with heat recovery (except for the kitchen) and by fans for air supply and extraction. For domestic hot water production (DHW), a solar thermal system will be installed consisting of solar collectors supported by wall-mounted natural gas condensing boilers. The lighting system is highly efficient, with luminaires equipped with LED lamps.
According to the Buildings Energy Certification System (SCE), these three projects have been certified with energy class B, B- representing the minimum for new buildings, (the case of Vila Nova de Gaia buildings) and C, for refurbishments with significant intervention (Coimbra and Braga examples). The contribution of renewable energy to the energy consumption of the buildings is calculated to be 9% in the Braga project, 11% in the Vila Nova de Gaia project, and 26% in the Coimbra project.
It should be noted that unlike the above-mentioned projects, the more recent project in Porto (2020 project) obtained an A rating due to the use of a solar photovoltaic system, which increases the use of renewable energy systems in the energy supply to 28%. From the point of view of energy efficiency, this building was considered exemplary in the certification process, with no improvements being proposed (Figure 12).
None of the four projects were certified by green building rating systems, designed to assess the performance of buildings from the point of view of environmental sustainability. Although these standards and certification systems are acknowledged and currently being implemented in Portugal, according to the architectural authors, the promoters did not express an interest in acquiring certification beyond mandatory energy efficiency since there is a latent view that the applied standards are rigid and potentially subversive. Nevertheless, it should be noted that in recent decades, evolving concepts and certification standards have progressively shifted from building sustainability features to guidelines prioritizing the health and well-being of the buildings’ occupants. Standards such as the WELL certification [69] consider factors such as Thermal comfort, but extend the scope to Air, Water, Light, Nourishment, Movement, Sound, Materials, Mind and Community. This approach could be helpful in settings where occupants may have unique needs related to ageing or health [70].

4.2. Seven Principles for Good Design Practices beyond Regulation and Energy Efficiency Certification

Xu et al. [71] (p. 2) show that the impact factors of the building energy performance gap can be grouped into three categories: design stage-factors; construction stage-factors; and operation stage-factors. Regarding design stage-factors, an integrated design strategy must consider both the aesthetic and technical aspects of architecture to create a sustainable built environment with essential links to local and climate conditions. Authors such as Corvacho et al. [3] (p. 18) underline that in environmentally responsive architecture, the reduction of a building’s energy needs can be pursued through an adequate combination of four key factors: (i) urban integration; (ii) design strategies; (iii) building technologies; and (iv) energy efficiency of all the systems and equipment used in the building.
Given the design approach of the architecture team of the residential structures under study, along with a broader understanding of the contemporary challenges facing LCT facilities, the first two mentioned key factors were the main focus of this study, namely urban integration and design strategies, as they are strictly connected to the disciplinary scope of Architecture. The architects’ perspective in regard to the four case studies brought to light and highlighted seven distinguishable principles to address the issue of energy efficiency. These principles are as follows:
  • the adaptive reuse of raw materials
  • taking advantage of the site’s conditions
  • vegetation (type and location, thermal perception, etc.)
  • construction options and durability
  • solar exposure and shading (double shading, natural ventilation and warming, etc.)
  • the pedagogy of building use
  • the comfort and thermal perception
Coping with the energy consumption and global warming crisis through long-term sustainability calls for a broader range of considerations to support bioclimatic design strategies. These principles are geared towards laying out an energy-efficient design and use from a pre-existing built environment to user intervention.
By adding the dimension of architectural quality (good architecture, i.e., Durable, Useful, Beautiful, in the sense of Vitruvius, but also suitable, sustainable, and inclusive) to the discussion, direct connections will be established between these seven principles and the four case studies selected as paradigmatic materialisations. All the case studies incorporate these principles to some degree. In this study, the choice was made to highlight a pair of projects where each topic is more expressive.

4.2.1. The Adaptive Reuse of Raw Materials

The imperative selective use of materials in sustainable design covers two areas of importance. Primarily, it is closely related to the significance of the building envelope. Mauree et al. [1] (p. 2) emphasise that “The envelope characteristics directly affect the heating and cooling loads generated to ensure indoor comfort”, and consequently, thermal comfort conditions. In addition, the authors argue that “the envelopes constitute an essential element in an urban site, transforming the microclimate, which in turn has a substantial impact on building energy demand and outdoor and indoor comfort”.
Secondly, Tiwari [72] (p. 1128) argues that building materials, from procurement, manufacturing, process, and recycling to transporting and on-site assembly, often constitute approximately 70% of construction costs in developing countries. Therefore, a sustainable approach to ensure suitable materials and construction techniques should be based on incorporating the effects of the thermal properties of the materials and embodied energy of the built environment into the construction process.
De Abreu [73] (p. 32) states that architectural sustainability focuses on three main aspects. The first is related to decreasing the waste of energy, both in the building and dwelling processes, the second is to limit the use of hazardous building materials and increase their recyclability, and the third is to promote the use of environmentally friendly materials and building processes. In terms of waste per year, in Europe, building construction produces around 820 million tons of construction and demolition waste, which, according to Eurostat [74] (p. 166), is around 46% of the total amount of total waste generated. Kamaruzzaman [75] (p. 1) underlines that this issue also leads to the use of huge amounts of raw material and to substantial environmental damage. Accordingly, the adaptive reuse of raw materials is a sustainable strategy to optimise energy consumption.
To maintain continuity of the urban elevation in the historic centre of Braga, where the intervention area of the project is characterised by surroundings of buildings with diverse centuries of construction, the adaptive reuse of materials provides two-fold benefits to both aesthetic and sustainable energy use purposes.
According to a study by Graf & Marino [76] (p. 35) “by putting different measures in place, the conservation of existing envelopes can be assured in compliance with energy standards”. In the project in Braga, the optimal justified demolition of the exterior envelope of the existing buildings is quite evident. Some of the pre-existing elements with architectural value, such as the blue-tiled facade, despite its state of degradation, were still qualified to be reused. Later on in the construction phase, these tiles were removed and reused on the new building’s facade. In addition to the tiles, massive granite curbs were reinstated from the existing granite gaps on the facades of São Vicente Street. This option made it possible to reduce the building’s waste and to reintegrate some of the facade’s existing coatings with identity value (Figure 13, Figure 14, Figure 15 and Figure 16).
Bullen & Love [77] (p. 33) describe adaptive reuse as “a process that changes a disused or ineffective item into a new item that can be used for a different purpose and adapting this process for buildings can contribute to sustainability and climate change by reducing CO2 emissions… Increasing the life of a building through reuse can lower material, transport, and energy consumption and pollution and thus significantly contribute to sustainability”. The adaptive reuse of materials makes profit by generating less waste, using fewer materials, consuming less energy in shipping and excavating, and using less energy than demolition and rebuilding. In the case of construction considered as urban renewal, the adaptive reuse of some building components such as facades also enhances the sense of continuity of the place and social sustainability.
In Coimbra, the site of the project is an old factory (Figure 17). The option was taken to maintain the main facades of the existing building to contribute to the continuity of the identity of the place (the industrial memory) and to a substantial reduction in waste from demolitions. The energy performance of these surfaces was improved by replacing the damaged parts, installing efficient windows and insulation, and reducing the impact of the thermal bridges. Additionally, to achieve a progressive reduction in Operating Energy and to consider the share of the Embodied Energy in the overall effective energy balance, the project takes advantage of the raw materials to minimise the amount of excavation required to implement the new architectural structures.

4.2.2. Taking Advantage of the Site’s Conditions

The contribution of the site’s conditions to the sustainable performance of a building and urban context is a critical element in achieving a passive design strategy. As explained by Altman [78] (p. 210), “Passive design is about taking advantage of natural energy flows to maintain thermal comfort”. The author [78] (p. 209) also mentions that it is about using an appropriate strategy that can be employed in buildings in all types of climates worldwide, considering issues such as orientation, ventilation, shading devices, thermal mass, insulation, and daylighting.
In stages as early as site building implantation, the condition of the site can be analysed considering the following:
  • climate condition: solar access and shading, wind direction
  • topography and vegetation: elevation, slope gradient
  • pre-existing and neighbouring buildings
Passive design is a significant part of environmental design and approaches utilising several techniques. The assumption of the effects of these factors leads to an optimistic passive design which determines building orientation, fenestration location, and size, and shaded or solar-accessed outdoor and indoor spaces. Additionally, the topographic situation of the site’s conditions benefits from thermal inertia and wind repercussion.
In Vila Nova de Gaia, the project’s site is characterised by its relatively regular shape and the steep slope towards the north. The project has taken these specific conditions of the site into careful consideration, taking advantage of the solar exposure and the possibility of privileged views of the riverfront. The building’s integration through its volumetric definition and materials is also noteworthy. The red brick used on the facades blends into the surfaces of the neighbouring roofs in red ceramic tile (Figure 18 and Figure 19). Additionally, the size of the two volumes and their implantation and exterior spaces are close to the proportions and strategy of the adjoining palace to the west.
In keeping with the immediate surroundings, retaining walls are also used to transition from buildings to outdoor spaces and surrounding streets. These walls/terraces/gardens are, in this case, mainly occupied by programmes for common use (indoor swimming pools and mobility rooms, for example), making it possible to fragment and resize the perceived height of the volumes (Figure 20).
Moreover, a sustainable construction strategy addresses the importance of using building materials at a reasonable distance from the construction site to reduce energy consumption and toxic waste from material transportation. That was the case in all four projects, where national brands, production and assembly were considered. It should be noted that all the projects try to use materials in their original state, without painting finishing, with natural brick in Gaia (Figure 18), natural concrete in Coimbra (Figure 21), natural stone in Braga, and handmade tiles in Porto. These choices will increase the durability of the building and decrease the need for future maintenance.
The response to the site’s conditions often determines a negotiation within the building’s planned programme, in the case of projects related to urban renewal or the pre-existing conditions such as neighbouring buildings and valuable elements. Such was the case of the Vila Nova de Gaia project, where the architects were able to negotiate the division of the complex into two separate buildings instead of the desired compact volume.
However, in Porto, on a larger piece of land, the strategy adopted was one of volumetric concentration in one volume. It was not only a response to the dominant implantations in the surroundings but also a means of freeing up land, conserving the scale and correctly framing the beautiful valley of Massarelos and the fine mesh of the Caminhos do Romântico in Porto. The setback of the building in relation to the street allows for a reading of the centenary supporting wall of D. Pedro V Street (Figure 22, Figure 23 and Figure 24).

4.2.3. Vegetation (Type and Location, Thermal Perception)

Studies such as that of Well & Ludwig [79] show how urbanised areas have a higher air and surface temperature than natural ones. Santamouris [80] argues that in central areas mainly, the continuous replacement of vegetation with buildings and roads severely affects the radiation balance. This, in turn, further influences the temperature regime of the environment. Under these circumstances, the comfort index for those living in big cities is quite different from those living in suburban and rural areas.
The annual average air temperatures in cities are 1 to 3 °C higher than in the surrounding landscapes. This temperature difference is known as the urban heat island (UHI) effect [79] (p. 192). The modified land surface (i.e., built, and paved areas) and reduced vegetation in cities commonly cause an increase in the sensible heating of the environment, resulting from the absorption of incident solar radiation and the retention of heat by drier, denser surface materials.
On the one hand, using green areas in dense inner parts of cities and the systematic installation of individual components such as green facades, green roofs and trees in the vicinity of the building affects the building’s energy consumption due to the change in the imposed heat load into the building envelope. These elements also affect outdoor thermal comfort. On the other hand, physical well-being can be significantly influenced by the general meteorological climate and the urban microclimate. Therefore, providing comfortable outdoor space increases the frequency of outdoor activities of older adults and effectively improves their quality of life. Outdoor thermal comfort contributes significantly to urban liveability. Gatto & Buccolieri [81] (p. 19) believe that the cooling effects of vegetation also depend “on the surrounding characteristics like building height and density, location of trees within the street, or surface materials”.
Grass planting and green areas facilitate temperature maintenance in thermal comfort zones. According to Well & Ludwig (2020), in Mediterranean regions, one should plant deciduous species and evergreen species are in equal numbers to balance the different effects on thermal comfort in summer and winter. In this regard, and according to Golasi et al. [82] (p. 3), application of the recently proposed MOCI (Mediterranean Outdoor Comfort Index) empirical index for the evaluation of the outdoor thermal comfort of the Mediterranean population may be helpful. Salata et al. [83] (p. 59) define this index as a tool to predict the average vote of a large group of people evaluating thermal comfort in an outdoor environment. The independent variables of the MOCI are: mean radiant temperature; air temperature; wind velocity; relative humidity; and clothing insulation.
In Coimbra, the green area plays a complementary role in assisting with the volumetric composition of the project to meet exterior thermal comfort and avoid overheating the solid surfaces of the central open areas in summer. This also reduces the heat load on the outer envelope and, consequently, the energy consumption for cooling in summer (Figure 25).
The project also envisaged a lake intended not only for visual and thermal comfort but also to increase the effective biodiversity of these spaces—creating yet another reason for observation and connection for residents to nearby natural areas.
Kleerekoper et al. [84] describe how the evaporation from urban areas is decreased as a result of “waterproofed surfaces”, with fewer permeable materials and less vegetation than in rural areas. Consequently, more energy is put into sensible heat and less into latent heat. While permeable materials (green regions) enable cooling by evaporation, hard materials accumulate heat. Moreover, short-wave radiation is absorbed in low albedo materials [84] (p. 133).
Thus, in the Porto project, the design considers maintaining the natural green spaces to the extent of their suitability to the programme of the project. The location and density of the masses and tree species provide shade, lower the temperature of the building’s surroundings through the shadow projected onto the pavement and function as natural “blinds” when they are positioned to shade the glass openings. These trees are also decisive for the stabilization and fixation of the soil, especially in areas of uneven topography with slopes and terraces, enhancing water retention in the land (Figure 26).
In addition to these more obvious positive aspects, deciduous tree planting has an enormous annual thermal benefit since it allows the passage of the sun in winter and provides shade in summer. It should also be noted that the very organic matter (leaves) of the trees and the cuts and pruning of the remaining vegetation produce organic matter with the potential to feed the soil itself, creating an internal maintenance and feeding cycle for these species.

4.2.4. Construction Options and Durability

Durability, low maintenance energy requirements, environmentally friendly and renewable materials, and construction techniques are key factors in extending the definition of sustainable and energy-efficient architecture. The environmental aspects of urban construction are not limited to the construction’s duration. Indeed, they extend to the building’s life. The durability of building materials facilitates adaptation in the function of the structure and reuse of the materials. One of the most effective means of saving energy is to preserve and reuse existing buildings. However, until recently, the concept of embodied energy has never gained great visibility beyond some environmental protection groups.
Regarding environmental and energy issues, it is more advantageous to preserve and reuse existing buildings. However, as noted by Marques [85] (p. 224), this practice depends on the materials’ durability, which may be defined as their ability to sustain a minimum performance level under degradative conditions.
To minimise waste during construction, reducing the environmental cost of repairing or replacing building components can be considered a requirement to build a sustainable high-performance built environment.
In Braga, the construction options and durability were crucial aspects of the project’s development, with the diversification of constructive facade details according to each building’s characteristics (refurbishment or new construction, or solar exposure, for example). This approach resulted in different thermal insulation solutions of the external envelope (XPS, EPS or rock wool) combined with simple or double walls in concrete or brick (Figure 27 and Figure 28) One of the main concerns of the architectural design was the use of standard constructive solutions, which guarantee uncomplicated local workforce execution. Additionally, careful attention was given to the choice of materials, namely their durability and ageing performance (brick, granite, and concrete). Therefore, a careful reading of the circumstances and the specific local construction traditions is critical in the constructive architectural options. The quality of the building results mainly from the balance that can be achieved between the design and the local construction execution skills.
In Vila Nova de Gaia, the large extension of the facades results from the implantation in two volumes and from the several inhabited floors required to control the steep pre-existing slope and the connection of the two constructions. The red bricks in both buildings, despite requiring a double wall (the wet outer wall and the inner dry wall), are highly durable and do not call for maintenance/painting. The exposed reinforced concrete used on all the landscaped terraces and walls in contact with the ground levels is long-lasting and maintenance-free. All the glazed areas are also in a natural colour (anodised aluminium) without paint and on a recessed plane as far as the brick and reinforced concrete are concerned, thus materialising the idea of an excavated mass. Inside, the project continues these natural finishing principles: brick, tile, and wood on the walls; stone, parquet, and linoleum on the floors (Figure 29).
These options also translate into a building with high interior thermal inertia, with obvious advantages for the Portuguese Atlantic climate. They significantly reduce the need for cooling in summer and allow energy accumulation, later induced in the building in winter.

4.2.5. Solar Exposure and Shading

Passive solar exposure strategies are effective means of decreasing the insulation and energy demands of buildings. Appropriate shading design can significantly impact thermal comfort during summer, blocking the direct sun while allowing for passive solar heating during winter.
Grynning & Time [86] (pp. 183–184) underline several factors to be considered to fully understand the performance of the glazed parts of a facade. In addition to energy use for heating, cooling, and lighting, visual comfort must also be satisfactory to classify a system as performing well:
  • Daylight and solar heat gains—effect on cooling and heating demands;
  • Daylight, visual transmission—illuminance levels and artificial light;
  • Thermal transmittance of glazing units with in-between shading; and
  • Daylight—glare indexes and visual comfort.
Facades with recessed areas are the aesthetic and functional skin of a building. Referring to the study by Valladares-Rendón & Schmid [87] (p. 461), the target of a self-shading facade is to lower insulation on the opaque and glazing elements of the building during a period where this is necessary. Decreased heat gains on the building envelope can reduce energy demands to cool the interior during the summer.
In addition to the thermal advantages of shading these spaces, the COVID-19 pandemic has demonstrated the need for and the enormous benefits of interconnecting outdoor and indoor areas. In practice, the inhabitants have privacy but can enjoy sun exposure; they can protect themselves but also expand the perceived spaces of the rooms, they can manage to personalize and humanize these areas with vegetation, small gardens, etc.
Double shading (with autonomous elements on the outside and inside of the glass) is used in the four case studies (except for a part of the buildings in Coimbra and Braga, for reasons pertaining to the heritage framework).
This two-fold strategy makes it possible to take advantage of solar incidence throughout all the seasons of the year—enabling solar gains in winter (using solely interior shading to create the “greenhouse effect”) or using only external shading for a thermal barrier (not allowing solar radiation to reach the windows).
This shading solution was decisive in the Vila Nova de Gaia project. Its exceptional location provides enjoyment of a unique setting: sea, river, historic port, city views and natural landscape. The possibility of contemplating the horizon line through a window or watching the movement of boats in the Afurada marina are palliatives for residents, whatever their circumstances. In this residential structure, managing the views, sun exposure and comfort was one of the challenges since the facades face all the solar quadrants. Double shading was fundamental, but with variations, for example, in the facades facing north where the external shading was suppressed.
The proximity of the four facades of each building also fosters cross ventilation and, in outdoor spaces, the benefit of the building’s own shade offset by ephemeral shading or afforestation. (Figure 30 and Figure 31).

4.2.6. Pedagogy of Building Use

The pedagogy of building use is not a new discourse in architecture. Henderson (1996) addresses the example of the Modern Movement in the 1920s, corresponding to the German woman’s movement that followed the World War in Frankfurt when the development of the social ideal of the neus leben (new life) and modernised household culture gained international recognition [88]. Architects and professionals invested in educating housewives in the School for the Modern Housewife on how to use space and how modern small Frankfurt kitchens should be used with maximum efficiency and comfort.
Indeed, the pedagogy of building use lies in reaching the maximum efficiency of the building as a sensible element. Given the importance of inhabiting a building sustainably, an active pedagogy towards use of the building’s elements enhances the performance of the built environment. In the case of LTC structures and architecture for ageing, the equivalence between passive sustainable design, active user intervention, and smart controlling systems leads to an optimal balance of indoor comfort and energy consumption. Matching an energy-efficient design with the user’s pedagogy to take advantage of passive strategies (to heat during wintertime and cool during the summer) improves the building’s thermal function. The practice of adaptive use of the fenestrations to circulate the air and passive ventilation and proper implementation of shading, so as to receive the maximum solar heat in winter and to minimize the greenhouse effect in summer, can be described among some of the most favoured adaptive measures by users. The usage of thermal mass to make a shift in heat flow is also among users’ dependence strategies to provide sustainable thermal comfort.
Applying smart systems and technology can improve users’ success in achieving the comprehensive management of thermal comfort and energy use which contributes to sustainable architecture, namely the possibility of remotely monitoring and operating the entire system to establish an energy-efficient built environment. In this regard, as mentioned by Doukas, et al. [89] (p. 3568), “intelligent building energy management can be an innovative and useful decision support system, aiming at guarantying [sic] the desirable levels of living quality as well as energy savings for environmental protection”.
In the case of the projects under study, employees and residents can actively take advantage of the Atlantic climate in the four selected projects by directly managing shading, using the outside blind in summer and just the inside in wintertime. This action will drastically reduce heating/cooling needs and the annual energy balance. Furthermore, the use of water, energy, laundries, kitchens, waste, and consumption can be reduced through an active pedagogy of use; as with the scheduled maintenance of the building, communication with users on this topic should be regular and planned.

4.2.7. Comfort and Thermal Perception

A large body of studies attests to the importance of the relationship between adaptive thermal comfort and the perception of occupants, as in the research conducted by Nikolopoulou & Steemers [90], Schweiker and Wagner [91], Carlucci et al. [92], and more recently, Liu et al. [93] who examine the effects of relevant environmental and physiological factors, among other aspects. These factors may be independent but at the same time interrelated in their contribution to the total cognition of thermal comfort.
The idea of an adaptive approach to thermal comfort lies in the consideration that different actions can be taken to achieve comfort, including modifying the environment, and the rate of body heat loss, among others. Nicol [94] (p. 105) states that this notion is also related to the range of temperatures that people find comfortable in buildings. He adds, “People are not the passive recipients of the thermal environment as is often suggested by diagrams of the heat balance”.
In addition, Mishra & Ramgopal [95] (p. 94) believe that adaptive models rely on the ability of occupants to adapt to changes in their thermal environment in such a manner as to restore their comfort.
The age of the occupants and the climatic region are among the factors considered in the contribution to the issue of thermal comfort. Existing studies recognise the need to establish thermal comfort standards for each climatic zone and different users. The survey recently conducted by Baquero and Forcada [96] (p. 11) shows that, generally, the comfort zone of older people is broader than that of adults in the Mediterranean climate. It is found to be between 19.4 °C and 32.3 °C.
Since adaptive comfort is a parameter of significant individual variability, its management will always involve monitoring, knowledge, and the implementation of dynamic models rather than parameterization/predictions based on classic calculation models, which are traditionally designed for standard behaviour and temperature peaks. A building management policy based on adaptive comfort translates into significant reductions in consumption, for example, treating users in a way that is tailored to their level of dependence or autonomy. As is known, the needs of a dependent patient who remains in his bed or room without physical activity throughout the day will differ from those of an autonomous resident. As mentioned, in the four selected projects, users can individually manage thermal comfort and discomfort by controlling direct solar incidence or using mediation spaces with the outside, namely green sun-exposed or shaded areas.

5. Discussion: A Matter of Useful Design and Comprehensive Approaches

The reasoning behind this paper is that that good architectural design must be grounded on dynamic models considering the reality and particularities of each specific context. Additionally, it underlines the ideas of “adaptative comfort” and the building’s culture of use and maintenance. The main argument is that the thermal performance of the building should take into consideration the quality of design, which implies a complex set of principles beyond those currently addressed in the regulations. Architects incorporate these principles in their daily practice. In this paper, the authors sought both to theorize them and to establish a connection with recent scientific knowledge production in the field of energy efficiency.
  • Bridging empirical knowledge construction and multidisciplinary scientific research integration: challenges for architectural studies
Beyond delivering results, the aim of the current study was to discuss a common challenge in the disciplinary areas of architecture when confronting practice, theory, “practice-led research”, and scientific knowledge production, namely, how operative connections are produced between these fields. By working, researching, discussing (and writing) closely with architects who are deeply engaged in practice, the creation of more operative bridges is fostered between the reality—of architectural practice, promoters’ ambitions, regulatory frameworks and negotiations, municipalities’ agendas, etc.—and academic research. Furthermore, design decision-making and operational strategies require collaboration and communication between the multiple actors such as healthcare professionals, gerontologists, engineers, interior designers, architects, and construction professionals, to promote occupant comfort and well-being [97,98].
In architectural practice, a project is always a response (selected from several possibilities) to resolve a particular problem. This means different responses for different places: an integrated architectural project will always propose a unique, detailed, and attentive solution for the reality in which it will have to operate; the significant differences between the four analysed works are a testament to this. Also, no two authors are the same; with the same territory, program and regulatory framework, another architect would produce different solutions. Likewise, the programme defined for the building has an enormous weight in the proposed solution. It can vary between co-creation processes and pre-established definitions presented by the developer based on the target users’ profiles.
This reasoning underlines that the issue of debating the relationship between architectural research, scientific research, and architectural practice is complex, as each can be carried out differently. For instance, the research on architectural works and the research conducted through practice (i.e., through direct activities that take place in the practice or field) have different objectives and methods of approach. This has been seen over recent decades [32], with diverging understandings since the disciplinary specificity of architectural research has implications for the methodological approaches, the chosen instruments and the validation of the results.
Böhm [99] (pp. 67–68) underlines the fact that architects’ design relies mainly upon “tacit knowledge”, as defined by Michael Polanyi [100] in the 1960s, i.e., “personal, pre-logical, and sensual knowledge (…) that can never be fully rationalised”, and “design research as the field in which this knowledge is cultivated and produced”, concluding that “the strong dependency on tacit knowledge differentiates design research in architecture from research conducted in the sciences”. The research conducted in this paper strongly adheres to this perspective.
2.
The reality of private LTC solutions in Portugal: obstacles and innovation
As highlighted by most recent studies, the future of LTC solutions should be geared towards smaller functional units, home-like models with integrated services, promoting the use of outdoor areas and connections with the communities. These renovated models are not only among the user’s preferences but are seen as ideal for healthy and active ageing [43,44,46,49,51,56].
In Portugal, as in several European countries, the desirable innovation among private LTC solutions must tackle the need for promoters’ investment profitability since they are currently the main driving force in the area. Additionally, the constraints of strict regulations regarding the functional organization of these residential structures may act as an obstacle to the experimentation of innovative solutions. For instance, the specific regulatory framework applicable to LTC architecture in Portugal does not extend to engineering projects. One example is that, in the case of the Fire Safety project, these residential structures must be classified as “Hospitals”, which translates into a considerable increase in requirements: equipment, fire compartments, exits, etc. This disproportionate level of security leads to a greater intrusiveness of solutions, less flexibility, and higher costs, and, in rehabilitating existing buildings. A greater likelihood of discarding heritage values and demolishing existing matter.
Against this backdrop, the architect’s role as a mediation and negotiation agent must be foregrounded, promoting transfers and counterparts with promoters and licensing entities, and introducing progressive changes in established market-driven paradigms.
In the aftermath of the COVID-19 pandemic, scientific knowledge points to optimal, desirable solutions and the need for innovative models. In the private promotion field, the connection with reality (and the specific features of the selected case studies)—from the site to the stakeholders involved in each operation—shows that in the urban context, some degree of innovation is noticeable, although undermined by (regulatory and economic) constraints:
  • the coexistence of residents in different states of health and support dependency: in the four LTC residential structures, there are rooms designed for entirely dependent residents (with continuous care), rooms for residents who need intermittent support and rooms/floors designed for fully autonomous and independent residents who use the ERPI as accommodation or in a hotel regime.
  • the coexistence of these different states of autonomy and the design of the services involved in this diversified support makes it possible for the environment among the residents to be diverse and to function as a vital stimulus.
  • the buildings’ potential to adapt to demand, circumstance, and local culture.
  • the choice of central locations, close to services, shopping facilities, and leisure areas.
The extraordinary location of the four case studies also allows independent residents or those with less severe limitations to enjoy the urban and natural surroundings adjacent to the boundaries of the four ERPI:
  • The Mondego and downtown area in Coimbra;
  • The fishing centre of Afurada and the natural park of the Douro estuary of Vila Nova de Gaia;
  • The Massarelos valley and the Porto riverside;
  • The historic centre of Braga.

6. Conclusions: Energy Efficiency Approaches beyond Quantitative Aspects: Genius Loci, Architectural Theory and Practice, Negotiation, and Resilient Modes of Inhabitation

In architectural practice, energy efficiency is often seen as a technical issue that must be solved by thermal specialists during the project’s licensing process, attending to specific regulations and mandatory certification. A holistic and historical approach to the subject reveals that energy efficiency primarily takes advantage of the site’s condition and considers an integrated view of the design and construction process.
Some reflections may emerge from this study regarding energy efficiency approaches in the Portuguese context:
  • regulations and certification systems have an excessively specialized and compartmentalized character, making it challenging to articulate other requirements and mandatory regulatory frameworks (programmes, infrastructures, fire safety, etc.);
  • energy ratings based on the current certification system rely excessively on equipment incorporation rather than passive, architecturally integrated solutions;
  • the conventional calculation models that respond to these requirements do not allow for an adaptive approach to needs, i.e., in the same project, they do not consider the coexistence of different solutions/systems, with varying performances, for the same architectural element (for example, the use of double shading). It was not possible to implement adaptive approaches in the four case studies under analysis due to regulative constraints; and
  • control of the implemented constructive and infrastructure solutions (thermal monitoring, ventilation, and adaptive comfort) could help bring abstract models closer to the reality of operating buildings and thus reduce the critical distances between design and reality.
In conclusion, this paper makes the balancing and decision process more explicit or visible for a set of works where architectural, environmental and attention/comfort qualities for residents are acknowledged. The outcome of this analysis exercise is information and not a prescription. Projects considered good practices, i.e., good architecture, are contextualised and interpreted in the context of ageing but without the intention of creating checklists or reproducible models, as made visible by the differences in the case studies.

7. Perspectives for the Future

The adopted methodological research process, grounded in reality on the one hand, and seeking multidisciplinary scientific integration on the other, has served to shed further light upon the challenges and obstacles to innovation regarding environmental balance and generational inclusion. The complexity of managing information from various sources is inherent to architectural practice, and its quality also stems from the balance of this management.
The article points to future perspectives that target the four case studies as well as the design of future buildings or the conditions of existing ones:
  • the development of dynamic models better suited to residential structures for older people is needed. Qualitative, variable, and adaptive data must be weighted with equal relevance against traditional comfort performance parameters in decision-making in these more complex models;
  • the promotion and adoption of multidisciplinary Post-Occupancy Evaluations related to inhabitants, health indicators, outdoor conditions, and use of systems is necessary to evaluate and validate design solutions based on integrated strategies beyond mandatory regulation (or certification requirements). Building performance monitoring should include indoor environment studies and energy consumption through onsite measurements; human-building interactions and environmental perceptions analysis foster essential user feedback on the design options;
  • a balance must be established between architectural responses, attention to the local reality, ageing inhabiting models and users’ preferences and needs. This implies a harmonious intersection in the future between material and immaterial reality (with norms and regulatory constraints, users’ health, well-being, needs and preferences, societal and construction challenges), not necessarily within the scope of green building certifications.
Additionally, architectural design, environmental balance, and generational inclusion, the three pillars that guide the main argument of this paper, and the underlying discussion, could be a direct response to the three thematic concerns of the New European Bauhaus: “beautiful, sustainable, together” [101].

Author Contributions

Conceptualization, G.L. and R.J.G.R.; investigation, G.L., A.M. and N.V.; resources, N.V.; writing—original draft preparation, G.L. and A.M.; writing—review and editing, G.L., A.M. and N.V.; visualisation, N.V. and A.M.; supervision, R.J.G.R. All authors have read and agreed to the published version of the manuscript.

Funding

This article was developed with the support of the Center for Studies in Architecture and Urbanism of the Faculty of Architecture of the University of Porto (CEAU-FAUP) and funded by the Foundation for Science and Technology (FCT, Lisbon, Portugal) under the project UIDB/00145/2020. Azar Mohammadpanah had a research scholarship funded by the same project. Gisela Lameira research is also funded by FCT through the Scientific Employment Stimulus programme (CEEC Institutional 2017).

Data Availability Statement

No new data were created in this study. Data sharing is not applicable to this article.

Acknowledgments

Residential structure at Braga: Project: 2015–2019; Construction: 2020–2022; Architects: Nuno Valentim Lopes, Frederico Eça, Juliano Ribas; Collaborators: Margarida Carvalho, Otília Ayres Pereira, José Tavares, Rita Furtado, Elia Bernardos, Simone Fangini. Residential structure at Coimbra: Project: 2017–2019; Construction: 2020–2022; Architects: Nuno Valentim Lopes, Frederico Eça, Filipa Ferreira; Collaborators: Ricardo Murça, Gonçalo Morgado, José Tavares. Residential structure at Vila Nova de Gaia: Project: 2015–2019; Construction: 2020–2022; Architects: Nuno Valentim Lopes, Frederico Eça; Collaborators: Nuno Borges, Otília Ayres Pereira, Gonçalo Morgado, Ailton Correia. Residential structure at Porto: Project: 2019–2022; Construction: 2023–; Architects: Nuno Valentim Lopes, Frederico Eça, Diogo Pinheiro; Collaborators: Elsa Pinto, Filipa Ferreira, Adriana Sacramento, Alexandra Gouveia Santos. All architectural drawings: © Nuno Valentim, Arquitectura e Reabilitação, LDA.

Conflicts of Interest

Nuno Valentim, one of the authors of the paper, is co-author of the architectural projects of the four case studies. The funders had no role in the design of the study; in the collection, analyses, or interpretation of data; in the writing of the manuscript; or in the decision to publish the results.

References

  1. Mauree, D.; Coccolo, S.; Perera, A.; Nik, V.; Scartezzini, J.-L.; Naboni, E. A New Framework to Evaluate Urban Design Using Urban Microclimatic Modeling in Future Climatic Conditions. Sustainability 2018, 10, 1134. [Google Scholar] [CrossRef]
  2. In focus: Energy Efficiency in Buildings. Available online: https://ec.europa.eu/info/news/focus-energy-efficiency-buildings-2020-lut-17_en (accessed on 30 November 2022).
  3. Corvacho, H.; Brandão Alves, F.; Rocha, C. A Reflection on Low Energy Renovation of Residential Complexes in Southern Europe. Sustainability 2016, 8, 987. [Google Scholar] [CrossRef]
  4. WHO. Ageing and Health. Key Facts. Available online: https://www.who.int/news-room/fact-sheets/detail/ageing-and-health (accessed on 29 November 2022).
  5. WHO. World Report on Ageing and Health; World Health Organization: Geneva, Switzerland, 2015. [Google Scholar]
  6. Bárrios, M.J.; Marques, R.; Alexandre Fernandes, A. Aging with health: Aging in place strategies of a Portuguese population aged 65 years or older. Rev. Saúde Publica 2020, 54. [Google Scholar] [CrossRef]
  7. Instituto Nacional de Estatística I.P.I. Projections of Resident Population in Portugal; Instituto Nacional de Estatística: Lisbon, Portugal, 2020.
  8. Instituto Nacional de Estatística I.P.I. Resident Population Projections. Resident Population in Portugal Could Decrease from the Current 10.3 Million to 8.2 Million in 2080. Available online: https://www.ine.pt/xportal/xmain?xpid=INE&xpgid=ine_destaques&DESTAQUESdest_boui=406534255&DESTAQUESmodo=2&xlang=en (accessed on 27 January 2023).
  9. UN-DESA. The Independent Life Support Model (MAVI). Strategy and Planning Office/Ministry of Labour, Solidarity and Social Security of Portugal (Government) #SDGAction33769. Available online: https://sdgs.un.org/partnerships/independent-life-support-model-mavi (accessed on 29 November 2022).
  10. Diário da República n.º 194/2017, Série I de 2017-10-09. Available online: https://dre.pt/dre/legislacao-consolidada/decreto-lei/2017-114242873 (accessed on 30 November 2022).
  11. Diário da República n.º 216/2017, Série I de 2017-11-09. Available online: https://dre.pt/dre/detalhe/portaria/342-2017-114161345 (accessed on 30 November 2022).
  12. Diário da República n.º 243/2020, Série I de 2020-12-16, páginas 5–7. Available online: https://data.dre.pt/eli/port/287/2020/12/16/p/dre/pt/html (accessed on 30 November 2022).
  13. Matias, P. “Ageing in place”: Reflections on the concept and challenges for Portugal. Espaços Construídos Espaços Vividos. Rev. Online FAUL 2017, 1, 78. [Google Scholar]
  14. Matias, P. Soluções Residenciais para Idosos em Portugal no Séc. XXI. Design de Ambientes e Privacidade. Ph.D. Thesis, Universidade de Lisboa, Lisbon, Portugal, 2016. [Google Scholar]
  15. Gonçalves, H.; Graça, J.M. Conceitos Bioclimáticos para os Edifícios em Portugal, DGGE/IP-3E ed.; Ministry of Economy: Lisbon, Portugal, 2004.
  16. Tzikopoulos, A.F.; Karatza, M.C.; Paravantis, J.A. Modeling energy efficiency of bioclimatic buildings. Energy Build. 2005, 37, 529–544. [Google Scholar] [CrossRef]
  17. Ilter, S. Exploring Design Principles of Bioclimatic Architecture and Double Skin Facades as A Convincing Tool for Energy Saving. J. Contemp. Urban Aff. 2018, 2, 60–66. [Google Scholar] [CrossRef]
  18. Sarkar, A. A Methodology for Energy-Efficient Shelter Design with Bioclimatic Design Tools. IUP J. Archit. 2010, II, 7–23. [Google Scholar]
  19. Correia Guedes, M.; Pinheiro, M.; Manuel Alves, L. Sustainable architecture and urban design in Portugal: An overview. Renew. Energy 2009, 34, 1999–2006. [Google Scholar] [CrossRef]
  20. Machado, C. Álvaro Siza and the Fragmented City. Athens J. Archit. 2015, 1, 177–186. [Google Scholar] [CrossRef]
  21. Sampaio, C.G.S. Alvar Aalto and Álvaro Siza: The Link between Architecture and Nature in the Construction of Place. Athens J. Archit. 2015, 1, 207–220. [Google Scholar] [CrossRef]
  22. Levit, R.A. Language, sites and types: A consideration of the work of Alvaro Siza. J. Archit. 1996, 1, 227–252. [Google Scholar] [CrossRef]
  23. Agarez, R.C. A self-conscious architectural historiography: Notes from (post)modern Portugal. J. Archit. 2020, 25, 1089–1114. [Google Scholar] [CrossRef]
  24. Mota, N. The Teacup and the Motorcycle. Situating the Circumstance in Fernando Távora’s Reconceptualisation of Architectural Modernism. Codes and Continuities. OASE 2014, 92, 96–103. [Google Scholar]
  25. Mota, N. Between Populism and Dogma: Álvaro Siza’s Third Way. Footpr. Delft Archit. Theory J. 2011, 35–58. [Google Scholar] [CrossRef]
  26. Bergdoll, B. Siza: Notes on Nature. 2021. Available online: https://www.monadebooks.com/archive/barrybergdoll (accessed on 20 November 2022).
  27. Siza, Á. Alvaro Siza: Immaginare L’Evidenza; Laterza: Bari, Italy, 1998. [Google Scholar]
  28. Bryman, A. Social Research Methods, 4th ed.; Oxford University Press: New York, NY, USA, 2012. [Google Scholar]
  29. Hauberg, J. Research by Design—A research strategy. AE Rev. Lusófona Arquit. Educ. 2011, 5, 46–56. [Google Scholar]
  30. Roggema, R. Research by Design: Proposition for a Methodological Approach. Urban Sci. 2016, 1, 2. [Google Scholar] [CrossRef]
  31. Rosemann, J. Research by Design in Urbanism. In Proceedings of the Research by Design: International Conference Faculty of Architecture Delft University of Technology in Co-Operation with the EAAE/AEEA, Delft, The Netherlands, 1–3 November 2000. [Google Scholar]
  32. Luck, R. Design research, architectural research, architectural design research: An argument on disciplinarity and identity. Des. Stud. 2019, 65, 152–166. [Google Scholar] [CrossRef]
  33. Laws, G. “The Land of Old Age”: Society’s Changing Attitudes toward Urban Built Environments for Elderly People. Ann. Assoc. Am. Geogr. 2010, 83, 672–693. [Google Scholar] [CrossRef]
  34. Eijkelenboom, A.; Verbeek, H.; Felix, E.; van Hoof, J. Architectural factors influencing the sense of home in nursing homes: An operationalization for practice. Front. Archit. Res. 2017, 6, 111–122. [Google Scholar] [CrossRef]
  35. Mahoney, A.R.; Frank, J.B. The Paradox of Aging in Place in Assisted Living. Contemp. Sociol. 2003, 32, 565–566. [Google Scholar] [CrossRef]
  36. Serrano-Jiménez, A.; Barrios-Padura, Á.; Molina-Huelva, M. Sustainable building renovation for an ageing population: Decision support system through an integral assessment method of architectural interventions. Sustain. Cities Soc. 2018, 39, 144–154. [Google Scholar] [CrossRef]
  37. Wiles, J.L.; Leibing, A.; Guberman, N.; Reeve, J.; Allen, R.E. The meaning of “aging in place” to older people. Gerontologist 2012, 52, 357–366. [Google Scholar] [CrossRef]
  38. Demirkan, H.; Olguntürk, N. A priority-based ‘design for all’ approach to guide home designers for independent living. Archit. Sci. Rev. 2013, 57, 90–104. [Google Scholar] [CrossRef]
  39. Demirkan, H. Frameworks for Decision-Making in Design for the Aging. In The Handbook of Interior Design; Wiley: Hoboken, NJ, USA, 2015. [Google Scholar]
  40. Demİrkan, H.; Afacan, Y. Setting The Key Issues And A Prioritization Strategy For Designing Sustainable Interior Environments. Metu J. Fac. Archit. 2018, 35, 201–219. [Google Scholar] [CrossRef]
  41. Demirbilek, O.; Demirkan, H. Involving the Elderly in the Design Process. Archit. Sci. Rev. 1998, 41, 157–163. [Google Scholar] [CrossRef]
  42. Vasunilashorn, S.; Steinman, B.A.; Liebig, P.S.; Pynoos, J. Aging in place: Evolution of a research topic whose time has come. J. Aging Res. 2012, 2012, 120952. [Google Scholar] [CrossRef]
  43. Martín, P. Major questions. Building for the Elderly. Arquitectura Viva 196. Senior Housing, 30 August 2017; 15–21. [Google Scholar]
  44. Alders, P.; Schut, F.T. Trends in ageing and ageing-in-place and the future market for institutional care: Scenarios and policy implications. Health Econ. Policy Law 2019, 14, 82–100. [Google Scholar] [CrossRef]
  45. Fallon, A.; Dukelow, T.; Kennelly, S.P.; O’Neill, D. COVID-19 in nursing homes. QJM 2020, 113, 391–392. [Google Scholar] [CrossRef]
  46. Giacobbe, A. How the COVID-19 Pandemic Will Change the Built Environment. Available online: https://www.architecturaldigest.com/story/covid-19-design (accessed on 20 August 2022).
  47. Barnett, M.L.; Grabowski, D.C. Nursing Homes Are Ground Zero for COVID-19 Pandemic. JAMA Health Forum 2020, 1, e200369. [Google Scholar] [CrossRef]
  48. Trabucchi, M.; De Leo, D. Nursing homes or besieged castles: COVID-19 in northern Italy. Lancet Psychiatry 2020, 7, 387–388. [Google Scholar] [CrossRef]
  49. Andersen, J.; Bilfeldt, A.; Mahler, M.; Sigbrand, L. How Can Urban Design and Architecture Support Spatial Inclusion for Nursing Home Residents? In Social Exclusion in Later Life; Walsh, K., Scharf, T., Van Regenmortel, S., Wanka, A., Eds.; Springer: Cham, Switzerland, 2021; Volume 28, pp. 397–408. [Google Scholar]
  50. Sandvoll, A.M.; Hjertenes, A.-M.; Board, M. Perspectives on activities in nursing homes. Int. Pract. Dev. J. 2020, 10, 1–12. [Google Scholar] [CrossRef]
  51. Lemos, R.; Lopes, A.; Dias, I.; Barros, H. Portuguese Older Persons’ Views about Living in a Nursing Home: Challenges to the Rehabilitation of the Image of LTC in Post-Pandemic Times. Int. J. Environ. Res. Public Health 2022, 19, 10566. [Google Scholar] [CrossRef] [PubMed]
  52. Cardoso, T.; Oliveira, M.; Póvoa, A.B.; Nickel, S. Modeling the demand for long-term care services under uncertain information. Health Care Manag. Sci. 2012, 15, 385–412. [Google Scholar] [CrossRef] [PubMed]
  53. Roxo, A.; Sat, C. COVID-19, lares de idosos e arquitectura: Novos projectos precisam-se! Público, 24 September 2020. [Google Scholar]
  54. Araújo, A. Pandemia alterou a forma de construir lares e residências para seniores. Expresso, 9 August 2020. [Google Scholar]
  55. Araujo, O.; Sequeira, C.; Ferre-Grau, C.; Sousa, L. Nursing homes in Portugal during the COVID-19 outbreak: Challenges for the future. Enferm. Clin. 2022, 32, 83–91. [Google Scholar] [CrossRef]
  56. Martín, P. Challenges of Elderly Nursing Homes. The Life of the Elderly. Aquitectura Viva 225. Life and Virus, 30 June 2020; 44–47. [Google Scholar]
  57. Pérez-Duarte Fernández, A.; Cruz Petit, B. Gerohabitación, cohabitación, indeterminación: Tres estrategias de proyecto para la tercera edad/Senior housing, cohabitation, indetermination: Three project strategies for the elderly. In Proyecto, Progreso, Arquitectura; Editorial de Universidad de Sevilla: Sevilla, Spain, 2017; Volume 16, pp. 74–87. [Google Scholar]
  58. Diário da República n.º 58/2012, Série I de 2012-03-21, páginas 1324–1329. Available online: https://data.dre.pt/eli/port/67/2012/03/21/p/dre/pt/html (accessed on 30 November 2022).
  59. Diário da República n.º 44/2014, Série I de 2014-03-04, páginas 1688–1701. Available online: https://data.dre.pt/eli/dec-lei/33/2014/03/04/p/dre/pt/html (accessed on 30 November 2022).
  60. Diário da República n.º 152/2006, Série I de 2006-08-08. Available online: https://data.dre.pt/eli/dec-lei/163/2006/p/cons/20190718/pt/html (accessed on 30 November 2022).
  61. Diário da República n.º 192/2017, Série I de 2017-10-04, páginas 5592–5594. Available online: https://data.dre.pt/eli/dec-lei/125/2017/10/04/p/dre/pt/html (accessed on 30 November 2022).
  62. Diário da República n.º 175/2019, Série I de 2019-09-12, páginas 128–133. Available online: https://data.dre.pt/eli/port/301/2019/09/12/p/dre/pt/html (accessed on 30 November 2022).
  63. Nunes, S. Residential structure for older aldults. Vila Nova de Gaia. Nuno Valentim Arquitectura e Reabilitação. 2023. Available online: https://www.youtube.com/watch?v=2GZwhCXFzzQ (accessed on 30 November 2022).
  64. Ascione, F.; Bianco, N.; De Masi, R.; Mauro, G.; Vanoli, G. Design of the Building Envelope: A Novel Multi-Objective Approach for the Optimization of Energy Performance and Thermal Comfort. Sustainability 2015, 7, 10809–10836. [Google Scholar] [CrossRef]
  65. Diário da República n.º 67/2006, Série I-A de 2006-04-04, páginas 2411–2415. Available online: https://data.dre.pt/eli/dec-lei/78/2006/04/04/p/dre/pt/html (accessed on 30 November 2022).
  66. Vaquero, P. Buildings Energy Certification System in Portugal: Ten years later. Energy Rep. 2020, 6, 541–547. [Google Scholar] [CrossRef]
  67. Diário da República n.º 159/2013, Série I de 2013-08-20, páginas 4988–5005. Available online: https://data.dre.pt/eli/dec-lei/118/2013/08/20/p/dre/pt/html (accessed on 30 November 2022).
  68. Diário da República n.º 237/2020, 1º Suplemento, Série I de 2020-12-07, páginas 21–45. Available online: https://data.dre.pt/eli/dec-lei/101-d/2020/12/07/p/dre/pt/html (accessed on 30 November 2022).
  69. WELL Building Standard®. International Building Institute. Available online: https://standard.wellcertified.com/v3/well (accessed on 30 November 2022).
  70. Clements-Croome, D. Chapter Four Buildings for health and wellbeing. In Designing Buildings for People. Sustainable Liveable Architecture; The Crowood Press Ltd.: Ramsbury, UK, 2020. [Google Scholar]
  71. Xu, X.; Zou, P.X.W. Analysis of factors and their hierarchical relationships influencing building energy performance using interpretive structural modelling (ISM) approach. J. Clean. Prod. 2020, 272, 122650. [Google Scholar] [CrossRef]
  72. Tiwari, P. Energy efficiency and building construction in India. Build. Environ. 2001, 36, 1127–1135. [Google Scholar] [CrossRef]
  73. de Abreu, P.M. Sustainable Aesthetic in Architecture. In Handbook of Lifelong Learning for Sustainable Development; World Sustainability Series; Springer: Berlin/Heidelberg, Germany, 2018; pp. 321–357. [Google Scholar]
  74. Gálvez-Martos, J.-L.; Styles, D.; Schoenberger, H.; Zeschmar-Lahl, B. Construction and demolition waste best management practice in Europe. Resour. Conserv. Recycl. 2018, 136, 166–178. [Google Scholar] [CrossRef]
  75. Kamaruzzaman, S.N.B.; Mohamed, N.; Alauddin, K.; Ali, A.S.B.; Azmi, N.F.B.; Chua, S.J.L. The Criteria For Decision Making In Adaptive Reuse Towards Sustainable Development. MATEC Web Conf. 2016, 66, 00092. [Google Scholar] [CrossRef]
  76. Graf, F.; Marino, G. Modern and Green: Heritage, Energy, Economy. Mod. Sustain. 2011, 32–39. [Google Scholar] [CrossRef]
  77. Bullen, P.; Love, P. A new future for the past: A model for adaptive reuse decision-making. Built Environ. Proj. Asset Manag. 2011, 1, 32–44. [Google Scholar] [CrossRef]
  78. Altan, H.; Hajibandeh, M.; Tabet Aoul, K.A.; Deep, A. Passive Design. In ZEMCH: Toward the Delivery of Zero Energy Mass Custom Homes; Noguchi, M., Ed.; Springer International Publishing: Cham, Switzerland, 2016; pp. 209–236. [Google Scholar]
  79. Well, F.; Ludwig, F. Blue–green architecture: A case study analysis considering the synergetic effects of water and vegetation. Front. Archit. Res. 2020, 9, 191–202. [Google Scholar] [CrossRef]
  80. Santamouris, M. Energy and Climate in the Urban Built Environment; Routledge: London, UK, 2013. [Google Scholar]
  81. Gatto, E.; Buccolieri, R.; Aarrevaara, E.; Ippolito, F.; Emmanuel, R.; Perronace, L.; Santiago, J.L. Impact of Urban Vegetation on Outdoor Thermal Comfort: Comparison between a Mediterranean City (Lecce, Italy) and a Northern European City (Lahti, Finland). Forests 2020, 11, 228. [Google Scholar] [CrossRef]
  82. Golasi, I.; Salata, F.; de Lieto Vollaro, E.; Coppi, M.; de Lieto Vollaro, A. Thermal Perception in the Mediterranean Area: Comparing the Mediterranean Outdoor Comfort Index (MOCI) to Other Outdoor Thermal Comfort Indices. Energies 2016, 9, 550. [Google Scholar] [CrossRef]
  83. Salata, F.; Golasi, I.; de Lieto Vollaro, R.; de Lieto Vollaro, A. Outdoor thermal comfort in the Mediterranean area. A transversal study in Rome, Italy. Build. Environ. 2016, 96, 46–61. [Google Scholar] [CrossRef]
  84. Kleerekoper, L.; van Esch, M.; Salcedo, T.B. How to make a city climate-proof, addressing the urban heat island effect. Resour. Conserv. Recycl. 2012, 64, 30–38. [Google Scholar] [CrossRef]
  85. Marques, B.; Loureiro, C.R. Sustainable Architecture: Practices and Methods to Achieve Sustainability in Construction. Int. J. Eng. Technol. 2013, 5, 223–226. [Google Scholar] [CrossRef]
  86. Grynning, S.; Time, B.; Matusiak, B. Solar shading control strategies in cold climates—Heating, cooling demand and daylight availability in office spaces. Sol. Energy 2014, 107, 182–194. [Google Scholar] [CrossRef]
  87. Valladares-Rendón, L.G.; Schmid, G.; Lo, S.-L. Review on energy savings by solar control techniques and optimal building orientation for the strategic placement of façade shading systems. Energy Build. 2017, 140, 458–479. [Google Scholar] [CrossRef]
  88. Henderson, S.R. A Revolution in the Woman’s Sphere: Grete Lihotzky and the Frankfurt Kitchen. In Architecture and Feminism; Coleman, D., Danze, E., Henderson, C., Eds.; Prinston Architectural Press: New York, NY, USA, 1996; pp. 221–253. [Google Scholar]
  89. Doukas, H.; Patlitzianas, K.D.; Iatropoulos, K.; Psarras, J. Intelligent building energy management system using rule sets. Build. Environ. 2007, 42, 3562–3569. [Google Scholar] [CrossRef]
  90. Nikolopoulou, M.; Steemers, K. Thermal comfort and psychological adaptation as a guide for designing urban spaces. Energy Build. 2003, 35, 95–101. [Google Scholar] [CrossRef]
  91. Schweiker, M.; Wagner, A. A framework for an adaptive thermal heat balance model (ATHB). Build. Environ. 2015, 94, 252–262. [Google Scholar] [CrossRef]
  92. Carlucci, S.; Bai, L.; de Dear, R.; Yang, L. Review of adaptive thermal comfort models in built environmental regulatory documents. Build. Environ. 2018, 137, 73–89. [Google Scholar] [CrossRef]
  93. Liu, S.; Xie, Y.; Zhu, Y.; Lin, B.; Cao, B.; Wong, N.H.; Niu, J.; Fang, Z.; Lai, D.; Liu, W.; et al. Comparative analysis on indoor and outdoor thermal comfort in transitional seasons and summer based on multiple databases: Lessons learnt from the outdoors. Sci. Total Env. 2022, 848, 157694. [Google Scholar] [CrossRef] [PubMed]
  94. Nicol, J.F. Adaptive comfort. Build. Res. Inf. 2011, 39, 105–107. [Google Scholar] [CrossRef]
  95. Mishra, A.K.; Ramgopal, M. Field studies on human thermal comfort—An overview. Build. Environ. 2013, 64, 94–106. [Google Scholar] [CrossRef]
  96. Baquero, M.T.; Forcada, N. Thermal comfort of older people during summer in the continental Mediterranean climate. J. Build. Eng. 2022, 54, 104680. [Google Scholar] [CrossRef]
  97. Altomonte, S.; Allen, J.; Bluyssen, P.M.; Brager, G.; Heschong, L.; Loder, A.; Schiavon, S.; Veitch, J.A.; Wang, L.; Wargocki, P. Ten questions concerning well-being in the built environment. Build. Environ. 2020, 180, 106949. [Google Scholar] [CrossRef]
  98. Pannier, M.-L.; Lemoine, C.; Amiel, M.; Boileau, H.; Buhé, C.; Raymond, R. Multidisciplinary post-occupancy evaluation of a multifamily house: An example linking sociological, energy and LCA studies. J. Build. Eng. 2021, 37, 102139. [Google Scholar] [CrossRef]
  99. Böhm, B. Tacit Knowledge and the Politics of Architectural Design Research. In Against and for Method Revisiting Architectural Design as Research; Silberberger, J., Ed.; ETH Zurich Research Collection: Zurich, Switzerland, 2021; pp. 66–85. [Google Scholar]
  100. Polanyi, M. The Tacit Dimension; University of Chicago Press: Chicago, IL, USA, 1966. [Google Scholar]
  101. New European Bauhaus: Beautiful|Sustainable|Together. Available online: https://new-european-bauhaus.europa.eu/index_en (accessed on 29 November 2022).
Figure 1. Resident population, 65 and over age group, Portugal, 1991–2080 (estimate and projections) Source: PORDATA and INE. ©Instituto Nacional de Estatística [8].
Figure 1. Resident population, 65 and over age group, Portugal, 1991–2080 (estimate and projections) Source: PORDATA and INE. ©Instituto Nacional de Estatística [8].
Buildings 13 01067 g001
Figure 2. Location of the case studies.
Figure 2. Location of the case studies.
Buildings 13 01067 g002
Figure 3. Braga. Aerial view.
Figure 3. Braga. Aerial view.
Buildings 13 01067 g003
Figure 4. Braga. General plan.
Figure 4. Braga. General plan.
Buildings 13 01067 g004
Figure 5. Vila Nova de Gaia. Aerial view.
Figure 5. Vila Nova de Gaia. Aerial view.
Buildings 13 01067 g005
Figure 6. Vila Nova de Gaia. General plan.
Figure 6. Vila Nova de Gaia. General plan.
Buildings 13 01067 g006
Figure 7. Coimbra. Aerial view.
Figure 7. Coimbra. Aerial view.
Buildings 13 01067 g007
Figure 8. Coimbra. General plan.
Figure 8. Coimbra. General plan.
Buildings 13 01067 g008
Figure 9. Porto. Model.
Figure 9. Porto. Model.
Buildings 13 01067 g009
Figure 10. Porto. General plan.
Figure 10. Porto. General plan.
Buildings 13 01067 g010
Figure 11. Energy class (from A to F) of the commercial and services building stock in 2020 in Portugal. © ADENE statistics.
Figure 11. Energy class (from A to F) of the commercial and services building stock in 2020 in Portugal. © ADENE statistics.
Buildings 13 01067 g011
Figure 12. Energy certificate. Building in Porto. © ADENE.
Figure 12. Energy certificate. Building in Porto. © ADENE.
Buildings 13 01067 g012
Figure 13. Braga. Sections.
Figure 13. Braga. Sections.
Buildings 13 01067 g013
Figure 14. Braga. Ground-floor plan.
Figure 14. Braga. Ground-floor plan.
Buildings 13 01067 g014
Figure 15. Building at Braga. ©João Ferrand.
Figure 15. Building at Braga. ©João Ferrand.
Buildings 13 01067 g015
Figure 16. Building at Braga. ©João Ferrand.
Figure 16. Building at Braga. ©João Ferrand.
Buildings 13 01067 g016
Figure 17. Coimbra. Old factory. ©João Ferrand.
Figure 17. Coimbra. Old factory. ©João Ferrand.
Buildings 13 01067 g017
Figure 18. Vila Nova de Gaia. ©João Ferrand.
Figure 18. Vila Nova de Gaia. ©João Ferrand.
Buildings 13 01067 g018
Figure 19. Vila Nova de Gaia. ©João Ferrand.
Figure 19. Vila Nova de Gaia. ©João Ferrand.
Buildings 13 01067 g019
Figure 20. Vila Nova de Gaia. Ground-floor plan.
Figure 20. Vila Nova de Gaia. Ground-floor plan.
Buildings 13 01067 g020
Figure 21. Coimbra. New building. ©João Ferrand.
Figure 21. Coimbra. New building. ©João Ferrand.
Buildings 13 01067 g021
Figure 22. Porto. Site.
Figure 22. Porto. Site.
Buildings 13 01067 g022
Figure 23. Porto. Model.
Figure 23. Porto. Model.
Buildings 13 01067 g023
Figure 24. Porto. Main facade.
Figure 24. Porto. Main facade.
Buildings 13 01067 g024
Figure 25. Coimbra. Ground-floor plan.
Figure 25. Coimbra. Ground-floor plan.
Buildings 13 01067 g025
Figure 26. Porto. Ground-floor plan.
Figure 26. Porto. Ground-floor plan.
Buildings 13 01067 g026
Figure 27. Braga. Constructive section (old building).
Figure 27. Braga. Constructive section (old building).
Buildings 13 01067 g027
Figure 28. Braga. Constructive section (new building).
Figure 28. Braga. Constructive section (new building).
Buildings 13 01067 g028
Figure 29. Vila Nova de Gaia. Construction section.
Figure 29. Vila Nova de Gaia. Construction section.
Buildings 13 01067 g029
Figure 30. Vila Nova de Gaia. ©João Ferrand.
Figure 30. Vila Nova de Gaia. ©João Ferrand.
Buildings 13 01067 g030
Figure 31. Vila Nova de Gaia. ©João Ferrand.
Figure 31. Vila Nova de Gaia. ©João Ferrand.
Buildings 13 01067 g031
Disclaimer/Publisher’s Note: The statements, opinions and data contained in all publications are solely those of the individual author(s) and contributor(s) and not of MDPI and/or the editor(s). MDPI and/or the editor(s) disclaim responsibility for any injury to people or property resulting from any ideas, methods, instructions or products referred to in the content.

Share and Cite

MDPI and ACS Style

Lameira, G.; Ramos, R.J.G.; Valentim, N.; Mohammadpanah, A. Good Architecture Matters: The Architect’s Perspective on Design for Ageing and Energy Efficiency. Buildings 2023, 13, 1067. https://doi.org/10.3390/buildings13041067

AMA Style

Lameira G, Ramos RJG, Valentim N, Mohammadpanah A. Good Architecture Matters: The Architect’s Perspective on Design for Ageing and Energy Efficiency. Buildings. 2023; 13(4):1067. https://doi.org/10.3390/buildings13041067

Chicago/Turabian Style

Lameira, Gisela, Rui Jorge Garcia Ramos, Nuno Valentim, and Azar Mohammadpanah. 2023. "Good Architecture Matters: The Architect’s Perspective on Design for Ageing and Energy Efficiency" Buildings 13, no. 4: 1067. https://doi.org/10.3390/buildings13041067

APA Style

Lameira, G., Ramos, R. J. G., Valentim, N., & Mohammadpanah, A. (2023). Good Architecture Matters: The Architect’s Perspective on Design for Ageing and Energy Efficiency. Buildings, 13(4), 1067. https://doi.org/10.3390/buildings13041067

Note that from the first issue of 2016, this journal uses article numbers instead of page numbers. See further details here.

Article Metrics

Back to TopTop