Seismic Performance and Calculation Method of Precast Reduced Beam Section Connection
Abstract
:1. Introduction
2. Experimental Program
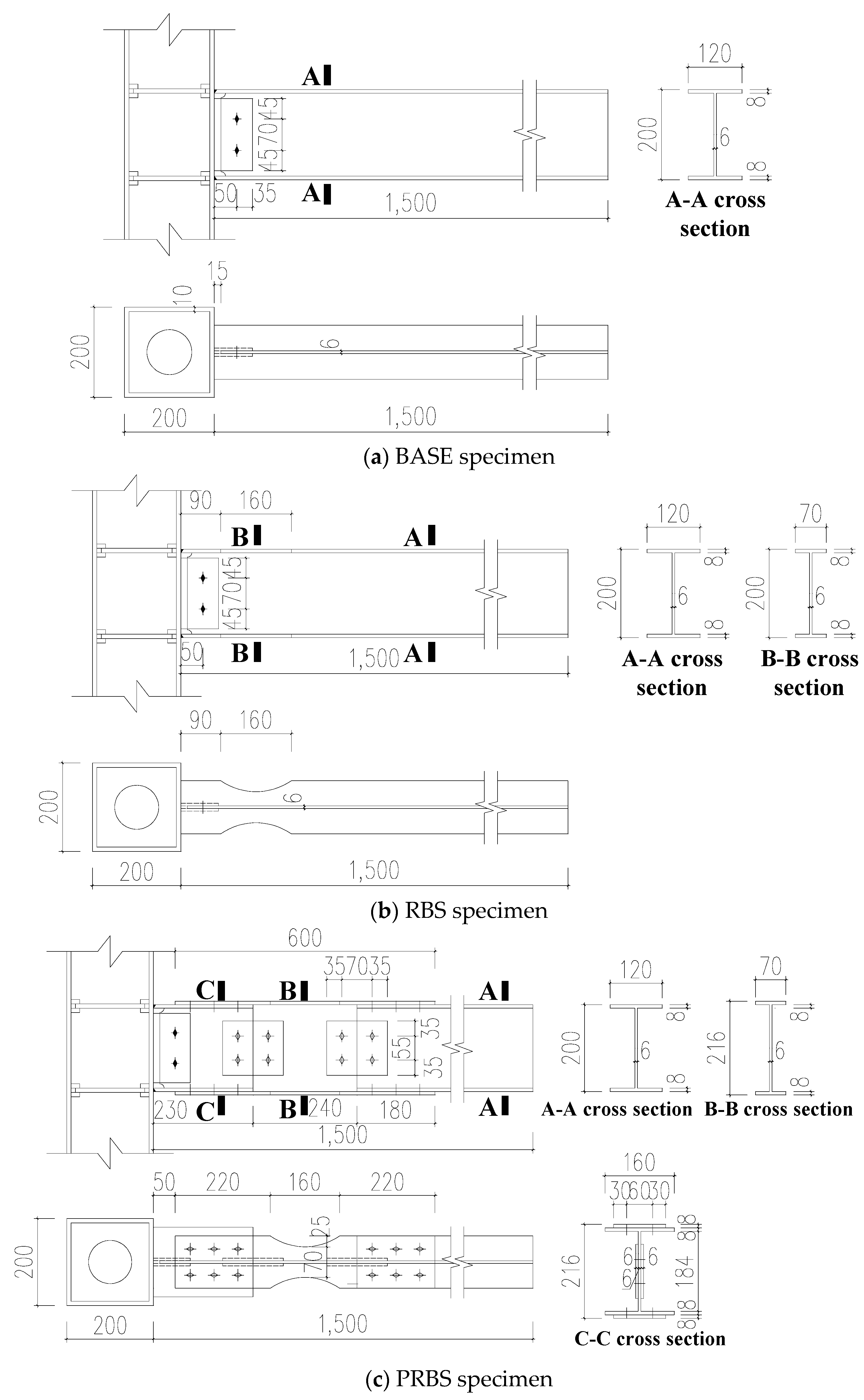
2.1. Test Specimens
2.2. Materials
2.3. Loading Device and Measurement Scheme
3. Test Phenomena and Failure Modes
3.1. BASE Specimen
3.2. RBS Specimen
3.3. PRBS Specimen
3.4. PRBS-R Specimen
3.5. Failure Modes of Specimens
4. Comparative Analysis of Results
4.1. Hysteresis Loop
4.2. Skeleton Curve
4.3. Stiffness Degradation
4.4. Strain Distribution
4.5. Seismic Performance Index
4.6. Energy Dissipation Capacity
5. Finite Element Analysis
5.1. Finite Element Model
5.2. Model Verification
5.3. Parametric Analysis
6. Bearing Capacity for the PRBS Connection
- Calculation of the Ultimate Bearing Capacity
7. Conclusions
- (1)
- Compared with the BASE and RBS connection joints, the PRBS connection had a higher bearing capacity, ductility, and energy dissipation capacity. The energy dissipation of the PRBS connection was realized by bolt slippage and plastic deformation of the dog-bone-style splice section. Moreover, the novel connection could effectively relocate the plastic hinge and cause plastic damage concentrated in the dog-bone-style splice section.
- (2)
- After the test, the main components of the PRBS connection were undamaged, resulting in a rapid repair of the joint. In addition, the repaired PRBS still exhibited stable mechanical properties, which could ensure the safe service of the overall structure.
- (3)
- The FE model formulated in this study demonstrated excellent accuracy in predicting the mechanical behavior, failure mode, stiffness, and bearing capacity of the specimens. Furthermore, the results of the parametric analysis revealed that the flange thickness exerted the most significant influence on the load-bearing capacity of the model. The load-bearing capacity of the model was negatively correlated with the weakening width but positively correlated with the flange thickness. Moreover, as the flange bolt diameter increased, the load-bearing capacity of the model initially increased and then decreased.
- (4)
- Based on the experimental data and observed failure phenomena, the possible yield and damage modes of the PRBS connection were analyzed, and a simplified calculation method for the yield and ultimate bearing capacities of the PRBS connection was proposed. The calculation results were in good agreement with the experimental results.
Author Contributions
Funding
Data Availability Statement
Conflicts of Interest
References
- Tremblay, R.; Timler, P.; Bruneau, M.; Filiatrault, A. Performance of steel structures during the 1994 Northridge earthquake. Can. J. Civ. Eng. 1995, 22, 338–360. [Google Scholar] [CrossRef]
- Xu, Q.; Chen, H.R.; Li, W.Y.; Zheng, S.S.; Zhang, X.H. Experimental investigation on seismic behavior of steel welded connections considering the influence of structural forms. Eng. Fail. Anal. 2022, 139, 106499. [Google Scholar] [CrossRef]
- Fanaie, N.; Nadalipour, Z.; Sarkhosh, O.S.; Faegh, S.S. Elastic drift amplification factor in steel moment frames with double reduced beam section (DRBS) connections. J. Build. Eng. 2021, 43, 102563. [Google Scholar] [CrossRef]
- Horton, T.A.; Hajirasouliha, I.; Davison, B.; Ozdemir, Z. More efficient design of reduced beam sections (RBS) for maximum seismic performance. J. Constr. Steel Res. 2021, 183, 106728. [Google Scholar] [CrossRef]
- Mansouri, A.; Shakiba, M.R.; Fereshtehpour, E. Two novel corrugated web reduced beam section connections for steel moment frames. J. Build. Eng. 2021, 43, 103187. [Google Scholar] [CrossRef]
- Deylami, A.; Tabar, A.M. Promotion of cyclic behavior of reduced beam section connection restraining beam web to local buckling. Thin Walled Struct. 2013, 73, 112–120. [Google Scholar] [CrossRef]
- Chen, S.J.; Yeh, C.H.; Chu, J.M. Ductile steel beam-to-column connections for seismic resistance. J. Struct. Eng. 1996, 122, 1292–1299. [Google Scholar] [CrossRef]
- Lee, C.H.; Jeon, S.W.; Kim, J.H.; Uang, C.M. Effects of panel zone strength and beam web connection method on seismic performance of reduced beam section steel moment connections. J. Struct. Eng. 2005, 131, 1854–1865. [Google Scholar] [CrossRef]
- Paul, S.; Deb, S.K. Experimental study on a new V-cut RBS and CFT connections with bidirectional bolts under cyclic loadings. J. Build. Eng. 2022, 46, 103688. [Google Scholar] [CrossRef]
- Tabar, A.M.; Alonso-Rodriguez, A.; Tsavdaridis, K.D. Building retrofit with reduced web (RWS) and beam (RBS) section limited-ductility connections. J. Constr. Steel Res. 2022, 197, 107459. [Google Scholar] [CrossRef]
- Xu, Y.; Dai, Y.; Jia, Y.L. Study on the mechanical performances of aluminum assembled hub joints under axial loads. J. Build. Eng. 2022, 50, 104147. [Google Scholar] [CrossRef]
- Zhang, R.J.; Zhang, Y.; Li, A.Q.; Yang, T.Y. Experimental study on a new type of precast beam-column joint. J. Build. Eng. 2022, 51, 104252. [Google Scholar] [CrossRef]
- Li, S.; Xu, T.T.; Ding, S.H.; Li, X.L.; Guo, H.C.; Liu, Y.H. Seismic performance of a new assembled beam-column joint with cantilever beam splicing. J. Constr. Steel Res. 2022, 196, 107432. [Google Scholar] [CrossRef]
- Oh, S.H.; Kim, Y.J.; Ryu, H.S. Seismic performance of steel structures with slit dampers. Eng. Struct. 2009, 31, 1997–2008. [Google Scholar] [CrossRef]
- Soltanabadi, R.; Farhad, B. Experimental studies on a combined damper for repairable steel moment connections. Int. J. Steel Struct. 2018, 18, 211–224. [Google Scholar] [CrossRef]
- Huang, L.; Sun, Q.; Deng, P.; Zhang, M.L.; Shan, R.; Peng, B. Study on seismic behavior of earthquake-damaged frame structures with rapid reversibility. Build. Struct. 2021, 51, 81–87. (In Chinese) [Google Scholar]
- Ma, Z.H.; Zhang, J.G.; Liang, H.Z.; Li, L.Y. Numerical research on prefabricated frame joint based on artificial dissipative plastic hinge under low-reversed loading. China Civ. Eng. J. 2020, 53 (Suppl. S2), 162–168. (In Chinese) [Google Scholar]
- Ye, J.F.; Yan, G.Y.; Liu, R.Y.; Xue, P.R.; Wang, D. Hysteretic behavior of replaceable steel plate damper for prefabricated joint with earthquake resilience. J. Build. Eng. 2022, 46, 103714. [Google Scholar] [CrossRef]
- Zhang, A.L.; Wang, Q.; Jiang, Z.Q.; Yang, X.F.; Zhang, H. Experimental study of earthquake-resilient prefabricated steel beam-column joints with different connection forms. Eng. Struct. 2019, 187, 299–313. [Google Scholar] [CrossRef]
- Jiang, Z.Q.; Yang, X.F.; Dou, C.; Pi, Y.L.; Li, R. Design theory of earthquake-resilient prefabricated beam-column steel joint with double flange cover plates. Eng. Struct. 2020, 209, 110005. [Google Scholar] [CrossRef]
- Zhang, H.; Su, M.Z.; Lian, M.; Cheng, Q.Q.; Guan, B.L.; Gong, H.X. Experimental and numerical study on the seismic behavior of high-strength steel framed-tube structures with end-plate-connected replaceable shear links. Eng. Struct. 2020, 223, 111172. [Google Scholar] [CrossRef]
- Özkılıç, Y.O.; Bozkurt, M.B. Numerical validation on novel replaceable reduced beam section connections for moment-resisting frames. Structures 2023, 50, 63–79. [Google Scholar] [CrossRef]
- Özkılıç, Y.O. A new replaceable fuse for moment resisting frames: Replaceable bolted reduced beam section connections. Steel Compos. Struct. 2020, 35, 353–370. [Google Scholar]
- Özkılıç, Y.O.; Bozkurt, M.B.; Topkaya, C. Mid-spliced end-plated replaceable links for eccentrically braced frames. Eng. Struct. 2021, 237, 112225. [Google Scholar] [CrossRef]
- Özkılıç, Y.O. Optimized stiffener detailing for shear links in eccentrically braced frames. Steel Compos. Struct. 2021, 39, 35–50. [Google Scholar]
- Özkılıç, Y.O. Interaction of flange and web slenderness, overstrength factor and proposed stiffener arrangements for long links. J. Constr. Steel Res. 2022, 190, 107150. [Google Scholar] [CrossRef]
- Özkılıç, Y.O.; Topkaya, C. Extended end-plate connections for replaceable shear links. Eng. Struct. 2021, 240, 112385. [Google Scholar] [CrossRef]
- Özkılıç, Y.O. Cyclic and monotonic performance of stiffened extended end-plate connections with large-sized bolts and thin end-plates. Bull Earthq. Eng. 2022, 20, 7441–7475. [Google Scholar] [CrossRef]
- Özkılıç, Y.O.; Un, E.M.; Topkaya, C. Frictional mid-spliced shear links for eccentrically braced frames. Earthq. Eng. Struct. Dyn. 2023, 1–22. [Google Scholar] [CrossRef]
- Özkılıç, Y.O. Cyclic and monotonic performance of unstiffened extended end-plate connections having thin end-plates and large-bolts. Eng Struct. 2023, 281, 115794. [Google Scholar] [CrossRef]
- GB/50017-2017; Standard for Design of Steel Structures. National Standards of the People’s Republic of China. China Architecture & Building Press: Beijing, China, 2017. (In Chinese)
- AISC/ANSI 358-16; Prequalified Connections for Special and Intermediate Steel Moment Frames for Seismic Applications. American Institute of Steel Construction (AISC): Chicago, IL, USA, 2016.
- Qi, H.; Hu, S.W.; Wang, P.Y.; Xue, X.; Shan, C.X.; Li, W.H.; Wang, K.; Li, J.H. Seismic performance of precast tubular web reduced beam section connection. Structures 2022, 43, 1259–1274. [Google Scholar] [CrossRef]
- GB/T 50081-2019; Standard for Test Methods of Concrete Physical and Mechanical Properties. National Standards of the People’s Republic of China; China Building Industry Press: Beijing, China, 2019. (In Chinese)
- GB/T 2975-2018; Steel and Steel Products-Location and Preparation of Samples and Test Pieces for Mechanical Testing. National Standards of the People’s Republic of China; Standards Press of China: Beijing, China, 2018. (In Chinese)
- GB/T 2281-2021; Metallic Materials-Tensile Testing-Part 1: Method of Test at Room Temperature. National Standards of the People’s Republic of China; Standards Press of China: Bejing, China, 2010. (In Chinese)
- JGJ/T 101-2015; Specification for Seismic Test of Buildings. Industry Standards of the People’s Republic of China; China Architecture & Building Press: Beijing, China, 2015. (In Chinese)
- Wu, K.; Xu, C.; Cao, P.Z.; Lin, S.Q.; Chen, F. Experimental study on the flexural behavior of profile steel-steel fiber reinforced concrete composite beams. China Civ. Eng. J. 2019, 52, 41–52. (In Chinese) [Google Scholar]
- Guo, Z.H.; Shi, X.D. Reinforced Concrete Theory and Analyse; Tsinghua University Press: Beijing, China, 2003. (In Chinese) [Google Scholar]
- Wang, K.; Wang, Y.H.; Zhou, X.H.; Su, H.; Tan, J.K.; Kong, W.B.; Peng, T. Lateral behaviour and failure modes of buckling-restrained beam-only-connected steel plate shear walls. Eng. Fail. Anal. 2022, 142, 106833. [Google Scholar] [CrossRef]
- Zhang, A.L.; Guo, Z.P.; Liu, X.C. Seismic performance of Z-type cantilever beam splices of column–tree connection. J. Constr. Steel Res. 2017, 133, 97–111. [Google Scholar] [CrossRef]
- JGJ 82-2011; Technical Specification for High Strength Bolt Connections of Steel Structures. Industry Standards of the People’s Republic of China; China Architecture & Building Press: Beijing, China, 2011. (In Chinese)























| Member | Coupon Location | Thickness t (mm) | Yield Strength (MPa) | Ultimate Strength (MPa) | Young’s Modulus (MPa) | Ultimate Strain |
|---|---|---|---|---|---|---|
| Column | Square steel tube | 10 | 303.3 | 448.3 | 202,115.0 | 0.178 |
| Beam | Flange | 8 | 281.7 | 435.0 | 201,738.0 | 0.185 |
| Web | 6 | 348.3 | 513.3 | 216,503.7 | 0.152 |
| Specimen | Δy/mm | Py/kN | Pm/kN | Δu/mm | μ |
|---|---|---|---|---|---|
| BASE | 23.32 | 48.44 | 56.12 | 53.60 | 2.30 |
| RBS | 24.39 | 42.00 | 49.76 | 80.40 | 3.30 |
| PRBS | 26.11 | 49.14 | 61.23 | 87.10 | 3.33 |
| PRBS-R | 27.91 | 45.66 | 55.82 | 93.80 | 3.53 |
| Model | Weakening Width D/mm | Flange Thickness /mm | Flange Bolt Diameter /mm | Bolt Hole Diameter /mm |
|---|---|---|---|---|
| P25-8-16 | 25 | 8 | 16 | 17.5 |
| P0-8-16 | 0 | 8 | 16 | 17.5 |
| P5-8-16 | 5 | 8 | 16 | 17.5 |
| P10-8-16 | 10 | 8 | 16 | 17.5 |
| P15-8-16 | 15 | 8 | 16 | 17.5 |
| P20-8-16 | 20 | 8 | 16 | 17.5 |
| P30-8-16 | 30 | 8 | 16 | 17.5 |
| P35-8-16 | 35 | 8 | 16 | 17.5 |
| P25-4-16 | 25 | 4 | 16 | 17.5 |
| P25-6-16 | 25 | 6 | 16 | 17.5 |
| P25-10-16 | 25 | 10 | 16 | 17.5 |
| P25-12-16 | 25 | 12 | 16 | 17.5 |
| P25-8-12 | 25 | 8 | 12 | 13.5 |
| P25-8-14 | 25 | 8 | 14 | 15.5 |
| P25-8-18 | 25 | 8 | 18 | 20.0 |
| P25-8-20 | 25 | 8 | 20 | 22.0 |
| FE Model | FE Value | Calculated Value | Error | |||
|---|---|---|---|---|---|---|
| /kN | /kN | /kN | /kN | δy | δu | |
| P25-8-16 | 51.06 | 64.53 | 47.22 | 64.08 | −7.53% | −0.70% |
| P0-8-16 | 52.35 | 67.35 | 52.92 | 64.08 | 1.08% | −4.85% |
| P5-8-16 | 52.01 | 66.69 | 52.92 | 64.08 | 1.74% | −3.92% |
| P10-8-16 | 51.96 | 66.04 | 52.92 | 64.08 | 1.84% | −2.97% |
| P15-8-16 | 51.45 | 65.39 | 52.92 | 64.08 | 2.86% | −2.00% |
| P20-8-16 | 50.12 | 64.76 | 51.95 | 64.08 | 3.65% | −1.06% |
| P30-8-16 | 46.76 | 62.98 | 42.48 | 64.08 | −9.15% | 1.75% |
| P35-8-16 | 41.64 | 61.22 | 37.75 | 64.08 | −9.35% | 4.67% |
| P25-4-16 | 30.53 | 39.92 | 27.88 | 36.90 | −8.69% | −7.56% |
| P25-6-16 | 40.96 | 52.56 | 38.69 | 50.36 | −5.53% | −4.19% |
| P25-10-16 | 55.77 | 72.25 | 55.90 | 78.06 | 0.23% | 8.04% |
| P25-12-16 | 59.12 | 85.56 | 64.74 | 92.30 | 9.52% | 7.87% |
| P25-8-12 | 45.36 | 53.56 | 43.58 | 58.27 | −3.93% | 8.79% |
| P25-8-14 | 51.65 | 67.76 | 47.22 | 66.90 | −8.58% | −1.27% |
| P25-8-18 | 45.35 | 58.08 | 47.22 | 61.06 | 4.12% | 5.15% |
| P25-8-120 | 42.62 | 54.85 | 47.22 | 57.29 | 10.79% | 4.46% |
| Specimen | Experimental Value | Calculated Value | Error | |||
|---|---|---|---|---|---|---|
| /kN | /kN | /kN | δy | δu | ||
| PRBS | 49.14 | 61.23 | 47.22 | 64.08 | −3.91% | 4.65% |
| PRBS-R | 45.66 | 55.82 | 47.22 | 64.08 | 3.40% | 14.80% |
Disclaimer/Publisher’s Note: The statements, opinions and data contained in all publications are solely those of the individual author(s) and contributor(s) and not of MDPI and/or the editor(s). MDPI and/or the editor(s) disclaim responsibility for any injury to people or property resulting from any ideas, methods, instructions or products referred to in the content. |
© 2023 by the authors. Licensee MDPI, Basel, Switzerland. This article is an open access article distributed under the terms and conditions of the Creative Commons Attribution (CC BY) license (https://creativecommons.org/licenses/by/4.0/).
Share and Cite
Qi, H.; Hu, S.; Xue, X.; Shan, C.; Li, W.; Wang, Y.; Wang, P. Seismic Performance and Calculation Method of Precast Reduced Beam Section Connection. Buildings 2023, 13, 2653. https://doi.org/10.3390/buildings13102653
Qi H, Hu S, Xue X, Shan C, Li W, Wang Y, Wang P. Seismic Performance and Calculation Method of Precast Reduced Beam Section Connection. Buildings. 2023; 13(10):2653. https://doi.org/10.3390/buildings13102653
Chicago/Turabian StyleQi, Hao, Shaowei Hu, Xiang Xue, Changxi Shan, Wenhao Li, Yajia Wang, and Peiyi Wang. 2023. "Seismic Performance and Calculation Method of Precast Reduced Beam Section Connection" Buildings 13, no. 10: 2653. https://doi.org/10.3390/buildings13102653
APA StyleQi, H., Hu, S., Xue, X., Shan, C., Li, W., Wang, Y., & Wang, P. (2023). Seismic Performance and Calculation Method of Precast Reduced Beam Section Connection. Buildings, 13(10), 2653. https://doi.org/10.3390/buildings13102653

