Finite Element Analysis of Frames with Reinforced Concrete Encased Steel Composite Columns
Abstract
:1. Introduction
2. Finite Element Analysis
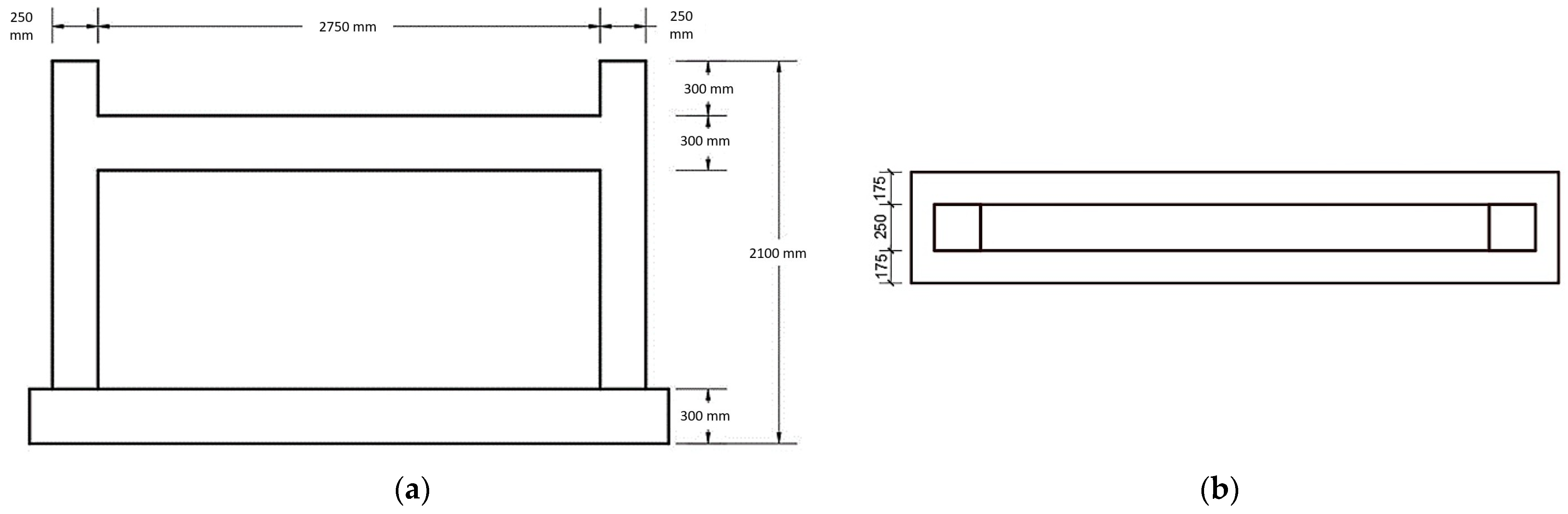
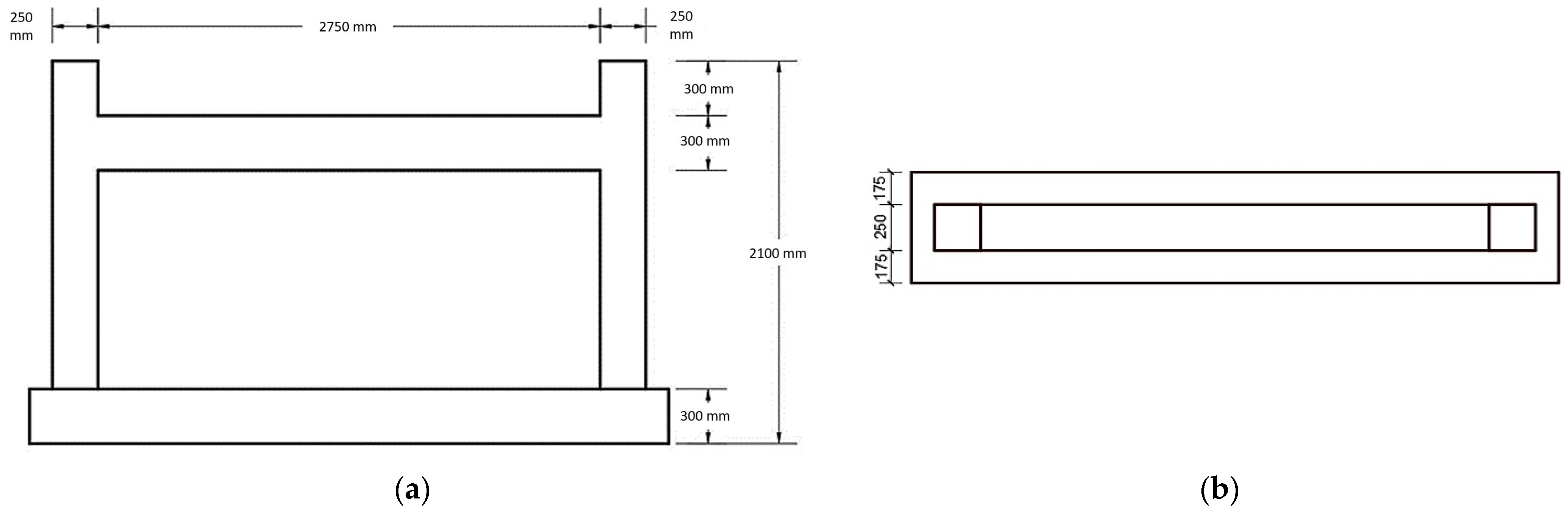
2.1. General Layout
2.2. Analytical Parameters
2.2.1. Concrete
2.2.2. Reinforcement Steel
2.2.3. I-Shaped and Square-Shaped Steel Sections
2.3. Loading Mechanism
2.4. Boundary Conditions
3. Verification of the First Two Models’ Benchmark Results
3.1. Cracks and Failure Patterns
3.2. Hysteresis Loops
3.3. Energy Dissipation
3.4. Stiffness Degradation
4. Prediction of Frame Behaviors with Various Parameters
4.1. Cracks and Failure Patterns
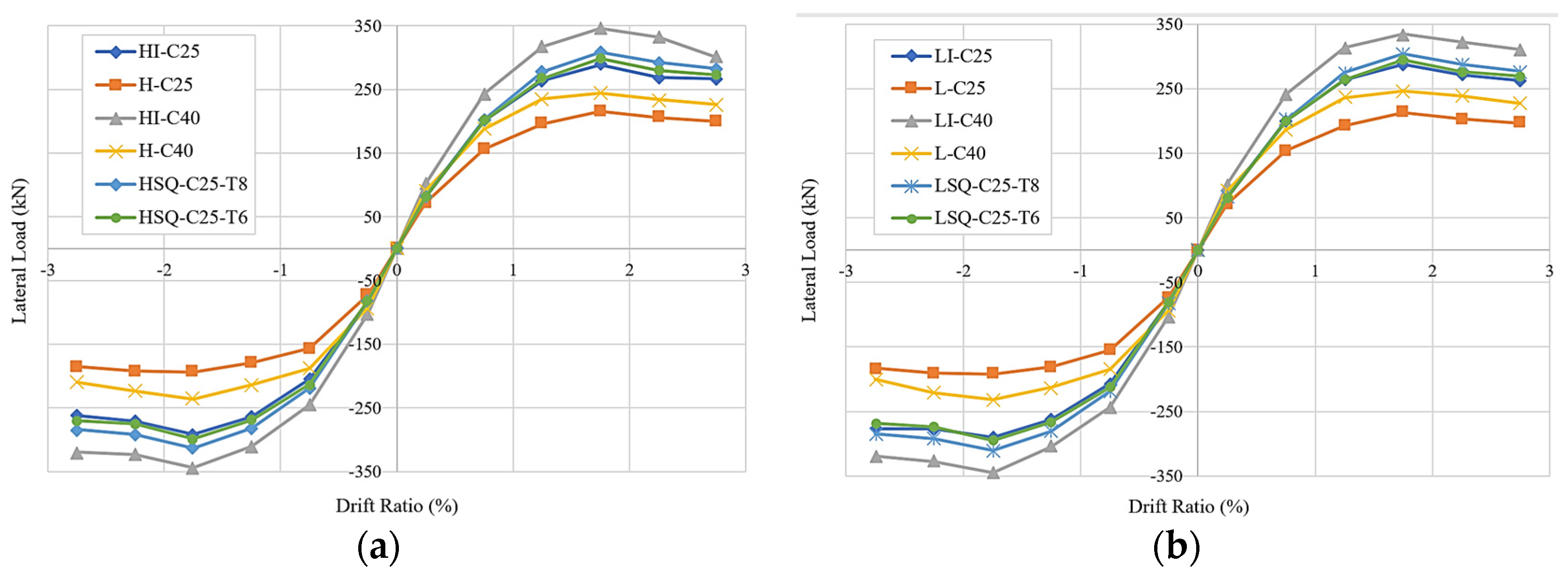
4.2. Envelope Curves
- The models HI-C40 and LI-C40 with C40 concrete showed similar patterns compared to the HI-C25 and LI-C25 models with C25 concrete. The higher strength of concrete resulted in an average increase in their peak load values by 18.9 and 17.5% for the HD and LD models, respectively. These results were very similar to those of non-composite columns with C25 and C40 concrete. The average increase in the peak load values of the HD and LD models was 17.3 and 18%, respectively.
- The existence of a steel section substantially increased the lateral load carrying capacity of the frame models. The lateral load capacities of the HI-C25 and LI-C25 models with composite columns were approximately 41.5 and 42.0% greater than those of the H-C25 and L-C25 models with non-composite columns, respectively. In the frame models with C40 concrete, the lateral load capacities of the HI-C40 and LI-C40 models increased by approximately 43.5 and 42.0% compared to models with non-composite columns.
- When compared to LD frame models, HD models showed a slight increase in their ultimate lateral load carrying capacities due to the existence of closely spaced transverse reinforcements. This increase was in the range of 0.1 to 1.75% compared to the LD models.
- Hollow square-shaped structural steel section models with 6 and 8 mm thicknesses resulted in increases in lateral load carrying capacity of 3.5 and 7.0%, on average, compared to models with an I-shaped steel section.
4.3. Stiffness Degradation
4.4. Energy Dissipation
5. Conclusions and Recommendations
- The analytical results were quite consistent with the test results when characteristic parameters, such as the peak loads at each cycle, crack patterns, failure modes, and stiffness degradation, were compared. However, as discussed in Section 2.3, the loading schemes that was used in the FE analyses and testing had minor differences, which is believed to have lead to some negligible discrepancies between the FE and test results. Nevertheless, the most apparent difference was observed in the hysteresis loop cycles. The loop cycle areas of the models were greater than those obtained from the tested frames. As discussed in Section 3.2, the pinching behavior that was experienced during the tests was the cause of these discrepancies.
- The concrete surface cracks of the high ductile (HD) and low ductile (LD) frame models exhibited very similar patterns. The HD and LD frame models with composite columns failed at a drift ratio of 2% due to the element erosion at the lower corner of the beam–column joint.
- Compared to the models with I-shaped steel sections, the high and low ductile models with hollow square-shaped structural steel with C25 concrete (the HSQ-C25 and LSQ-C25 models) and 6 and 8 mm thicknesses experienced more concrete element erosion and failure at the lower corner of the column–beam joint. Similar types of failures were also observed for the models with composite columns and C40 concrete. The frame models with composite columns had no failure near the column base due to the additional stiffness that was provided by the structural steel.
- Compared to the frames with non-composite columns, the lateral load capacity of the frame with composite columns increased by an average of 42%. When the concrete class was increased from C25 to C40, the lateral load capacity of the frame increased by an average of 18%.
- Using a square-shaped steel section in a column instead of an I-shaped one increased the models’ lateral load carrying capacity by 3.5% for the square-shaped steel with a 6 mm thickness and 7% in case of an 8 mm thickness. The increase in the ultimate load carrying capacity of the HD frame models compared to the LD frame models with square-shaped steel and 6 and 8 mm wall thicknesses was in the range of 0.1% to 1.75%. These small increments indicated that thicker square shaped steel was not effective in increasing the lateral load capacity of a frame.
- The stiffness degradation of the high and low ductile models with composite columns and an I-shaped steel section of HEB 100 with C40 concrete (HI-C40 and LI-C40 models) displayed the best structural performance out of all other models, while the models with non-composite columns exhibited a less desirable structural performance. The existence of a steel section in a column had the highest impact on a model’s stiffness degradation. Increasing the concrete class had the second largest impact.
- Greater energy dissipation was observed in the HI-C40 and LI-C40 models with composite columns. The energy dissipation capacities of the same models with non-composite columns were fairly close to those with the composite columns, until the drift ratio of 1.75%. The difference in the energy dissipation became more apparent beyond this drift ratio, reaching a maximum of 30% at the final drift ratio of 2.75%.
- There was a distinct difference between the hysteresis of the tested frames and the FE models. This difference was attributed to pinching behavior observed in the tested frames beyond the 0.5% drift ratio due to the continuous widening and propagation of cracks at their column–beam joints during subsequent pull and push cycles. Following the closure of these cracks, the frames were brought back to their initial conditions at rest. However, the models in the FE analyses lacked this pinching behavior. Therefore, their hysteresis loops exhibited a somewhat different pattern specifically beyond the 0.5% drift ratio.
- The results of the analyses indicate that frame failure was triggered by cracks in the lower corner of the column–beam joint. During the subsequent pull and push cycles, these cracks widened and eventually resulted in a failure in the concrete member at the lower corner of the column–beam joint. This eventually led to the failure of the frame.
- The lateral load carrying capacities of the models with square-shaped steel sections were slightly better than the models with I-shaped sections.
- Using a higher transverse steel reinforcement ratio near the column–beam joints resulted in a very slight increase in ductility and bearing capacities.
- Frame models with non-composite columns were the only ones that exhibited concrete element erosion near the base, leading to failure coupled with member erosion at the column-beam joint.
- Using structural steel while constructing a composite column is recommended since it is an effective way to achieve a higher capacity in a column–beam joint.
- Based on the analytical results, it was determined that the shape of a steel section did not have a significant impact on the lateral load carrying capacity of a frame, as long as equal cross-sectional areas were used.
- Increasing the concrete class alone did not have a significant impact on the lateral load carrying capacity of a frame. Therefore, in order to increase the lateral load capacity of a frame, it is highly recommended to construct them with composite columns.
- Since frame failure was triggered by the cracks occurring in the lower corner of the column–beam joint, it is important to pay close attention to the reinforcement details at this location. It is recommended to strengthen this lower corner joint if the lateral load capacity of the frame must be increased.
- In this study, some challenges were encountered during the FE analyses of the frames. These challenges can be grouped into two categories: (a) duration and (b) the inadequate number of studies conducted on this research topic. The total duration of the simulation was the main challenge of this study. The study initially had the goal of examining the impact of many more cyclic loads on frame behavior, the varying of lateral loads acting at different velocities, and the structural behaviors of multiple floors (two or more) constructed with the same frame. However, the challenge with respect to duration prevented attempts to pursue further FE analyses. Another challenge, as indicated in Section 1, was related to the inadequate number of past studies conducted in this field using LS-DYNA. This was clearly one of this study’s goals, since more feedback was needed to efficiently address the issues related to the FE modeling of the frames, as discussed in this article.
Author Contributions
Funding
Institutional Review Board Statement
Informed Consent Statement
Data Availability Statement
Conflicts of Interest
References
- Taranath, B.S. Steel, Concrete & Composite Design of Tall Buildings, 2nd ed.; McGraw Hill: New York, NY, USA, 1997. [Google Scholar]
- Kim, J.; LaFave, J.M. Joint Shear Behavior of Reinforced Concrete Beam-Column Connections Subjected to Seismic Lateral Loading; NSEL Report Series; Report No. NSEL-020; Department of Civil and Environmental Engineering, University of Illinois at Urbana-Champaign: Urbana, IL, USA, 2009. [Google Scholar]
- Najafgholipour, M.A.; Dehghan, S.M.; Dooshabi, A.; Niroomandi, A. Finite element analysis of reinforced concrete beam-column connections with governing joint shear failure mode. Lat. Am. J. Solids Struct. 2017, 14, 1200–1225. [Google Scholar] [CrossRef] [Green Version]
- Mirza, S.; Lacroix, E. Comparative strength analyses of concrete-encased steel composite columns. J. Struct. Eng. 2004, 130, 1941–1953. [Google Scholar] [CrossRef]
- Chen, C.; Wang, C.; Sun, H. Experimental study on seismic behavior of full-encased steel-concrete composite columns. J. Struct. Eng. 2014, 140, 04014024. [Google Scholar] [CrossRef]
- Campian, C.; Nagy, Z.; Pop, M. Behavior of fully encased steel-concrete composite columns subjected to monotonic and cyclic loading. Procedia Eng. 2015, 117, 444–456. [Google Scholar] [CrossRef]
- Chen, C.C.; Chen, C.C.; Hoang, T.T. Role of concrete confinement of wide-flange structural steel shape in steel reinforced concrete columns under cyclic loading. Eng. Struct. 2016, 110, 79–87. [Google Scholar] [CrossRef]
- Zhu, W.; Jia, J.; Gao, J.; Zhang, F. Experimental study on steel reinforced high-strength concrete columns under cyclic lateral force and constant axial load. Eng. Struct. 2016, 125, 191–204. [Google Scholar] [CrossRef]
- Lacki, P.; Derlatka, A.; Kasza, P. Comparison of steel-concrete composite column and steel column. Compos. Struct. 2018, 202, 82–88. [Google Scholar] [CrossRef]
- Zhao, X.; Wen, F.; Chen, Y.; Hu, J.; Yang, X.; Dai, L.; Cao, S. Experimental study on the static performance of steel reinforced concrete columns with high encased steel ratios. Struct. Des. Tall Spec. Build. 2018, 27, e1536. [Google Scholar] [CrossRef]
- Anuntasena, W.; Lenwari, A.; Thepchatri, T. Finite element modelling of concrete—Encased steel columns subjected to eccentric loadings. Eng. J. 2019, 23, 299–310. [Google Scholar] [CrossRef]
- Lai, B.; Richard Liew, J.Y.; Hoang, A.N.; Xiong, M. Experimental study on high strength concrete encased steel composite short columns. Eng. Struct. 2019, 201, 109841. [Google Scholar] [CrossRef]
- Lai, B.; Richard Liew, J.Y.; Venkateshwaran, A.; Li, S.; Xiong, M.J. Assessment of high-strength concrete encased steel composite columns subject to axial compression. J. Constr. Steel Res. 2020, 164, 105765. [Google Scholar] [CrossRef]
- Gautham, A.; Sahoo, D.R. Behavior of steel-reinforced composite concrete columns under combined axial and lateral cyclic loading. J. Build. Eng. 2021, 39, 102305. [Google Scholar] [CrossRef]
- Zhu, J.N.; Yang, K.J.; Li, X.W.; Li, R.W. Finite element analysis on crack resistance behavior of the abnormal joint of SRC column and RC Beam. Appl. Mech. Mater. 2013, 351–352, 61–66. [Google Scholar] [CrossRef]
- Kong, J.; Zou, Y.; Li, C.; Wan, Z.W. Nonlinear numerical analysis of SRC frame end joint. Adv. Mater. Res. 2013, 753–755, 1151–1155. [Google Scholar] [CrossRef]
- Pan, P.; Lam, A.; Lin, X.; Li, Y.; Ye, L. Cyclic loading tests and finite element analyses on performance of ring beam connections. Eng. Struct. 2013, 56, 682–690. [Google Scholar] [CrossRef]
- Wang, Q.; Shi, Q.; Tao, Y. Experimental and numerical studies on the seismic behavior of steel reinforced concrete compression-bending members with new-type section steel. Adv. Struct. Eng. 2016, 19, 255–269. [Google Scholar] [CrossRef]
- Deng, Z.; Xu, C.; Zeng, J.; Wang, H.; Wu, X.; Xiang, P. Seismic performance and shear bearing-capacity of truss SRC beam-column frame joints. Adv. Struct. Eng. 2020, 24, 1311–1325. [Google Scholar] [CrossRef]
- Wu, C.; Yu, S.; Liu, J.; Chen, G. Development and testing of hybrid precast steel-reinforced concrete column-to- H shape steel beam connections under cyclic loading. Eng. Struct. 2020, 211, 110460. [Google Scholar] [CrossRef]
- Peng, S.; Xu, C.; Lu, M.; Yang, J. Experimental research and finite element analysis on seismic behavior of CFRP-strengthened seismic-damaged composite steel-concrete frame columns. Eng. Struct. 2018, 155, 50–60. [Google Scholar] [CrossRef]
- Xu, C.; Peng, S.; Wang, C.; Ma, Z. Influence of the degree of damage and confinement materials on the seismic behavior of RC beam-SRC column composite joints. Compos. Struct. 2020, 231, 111002. [Google Scholar] [CrossRef]
- LS-DYNA Keyword User’s Manual; Livermore Software Technology Corporation: Livermore, CA, USA, 2020; Volumes I–III.
- Tunc, G.; Dakhil, A.; Mertol, H.C. Experimental Analysis of the Behavior of Composite Column-Reinforced Concrete Beam Joints. Arab. J. Sci. Eng. 2021, 46, 10785–10801. [Google Scholar] [CrossRef]
- Degée, H.; Plumier, A.; Mihaylov, B.; Dragan, D.; Bogdan, T.; Popa, N. Smart Composite Components—Concrete Structures Reinforced by Steel Profiles, SmartCoCo; Research Programme of the Research Funds for Coal and Steel, TGS8, RFSR-CT-2012-00031; European Commission: Brussels, Belgium, 2016. [Google Scholar]
- TEC 2018; Turkish Earthquake Code for Buildings. AFAD, Ministry of Interior, Disaster and Emergency Management Presidency: Ankara, Turkey, 2018. (In Turkish)
- TS 500; Requirements for Design and Construction of Reinforced Concrete Structures. Turkish Standards Institution: Ankara, Turkey, 2000. (In Turkish)
- Schwer, L. The Winfrith concrete model: Beauty or beast? Insights into the Winfrith concrete model. In Proceedings of the 8th European LS-DYNA Users Conference, Strasbourg, France, 23–24 May 2011; pp. 23–24. [Google Scholar]
- Syed, M. Flexural Behavior of High-Strength Concrete Slender Walls—Analytical Study. Master’s Thesis, State University of New York at Buffalo, Buffalo, NY, USA, 2019. [Google Scholar]
- Haghi, N.; Epackachi, S.; Kazemi, M.T. Cyclic performance of composite shear walls with boundary elements. Structures 2020, 27, 102–117. [Google Scholar] [CrossRef]
- Asgarpoor, M.; Gharavi, A.; Epackachi, S. Investigation of various concrete materials to simulate seismic response of RC structures. Structures 2021, 29, 1322–1351. [Google Scholar] [CrossRef]
- Epackachi, S.; Whittaker, A.S. Experimental, Numerical, and Analytical Studies on the Seismic Response of Steel-Plate Concrete (SC) Composite Shear Walls; Technical Report MCEER-16-0001; State University of New York at Buffalo: Buffalo, NY, USA, 2016. [Google Scholar]
- Epackachi, S.; Whittaker, A.S. A validated numerical model for predicting the in-plane seismic response of lightly reinforced, low-aspect ratio reinforced concrete shear walls. Eng. Struct. 2018, 168, 589–611. [Google Scholar] [CrossRef]
- Comité Euro-International du Béton. CEB-FIP Model Code 1990: Design Code; Thomas Telford Publishing: London, UK, 1993. [Google Scholar]
- Epackachi, S.; Luna, B.; Whittaker, A.S. Numerical investigation of the in-plane behavior of low-aspect ratio reinforced concrete shear walls. In Proceedings of the 23rd International Conference on Structural Mechanics in Reactor Technology (SMiRT 23), Manchester, UK, 10–14 August 2015. [Google Scholar]
- Polat, E.; Bruneau, M. Modeling cyclic inelastic in-plane flexural behavior of concrete filled sandwich steel panel walls. Eng. Struct. 2017, 148, 63–80. [Google Scholar] [CrossRef]
- Schwer, L. Modeling rebar: The forgotten sister in reinforced concrete modeling. In Proceedings of the 13th International LS-DYNA® Users Conference, Detroit, MI, USA, 8–10 June 2014. [Google Scholar]
- Sadraie, H.; Khaloo, A.; Soltani, H. Dynamic performance of concrete slabs reinforced with steel and GFRP bars under impact loading. Eng. Struct. 2019, 191, 62–81. [Google Scholar] [CrossRef]
- Soboyejo, W. Mechanical Properties of Engineered Materials; CRC Press: Boca Raton, FL, USA, 2002. [Google Scholar]
- Nguyen, V.Q.; Nizamani, Z.A.; Park, D.; Kwon, O.S. Numerical simulation of damage evolution of Daikai station during the 1995 Kobe earthquake. Eng. Struct. 2020, 206, 110180. [Google Scholar] [CrossRef]
- Omran, M.E.; Mollaei, S. Assessment of empirical formulas for estimating residual axial capacity of blast damaged RC columns. Eur. J. Sustain. Dev. 2017, 6, 383–396. [Google Scholar] [CrossRef]
- Coleman, D.K. Evaluation of Concrete Modeling in LS-DYNA for Seismic Application. Master’s Thesis, The University of Texas at Austin, Austin, TX, USA, 2016. [Google Scholar]
- Moehle, J.P. Displacement-based design of RC structures subjected to earthquakes. Earthq. Spectra 1992, 8, 403–428. [Google Scholar] [CrossRef]
- Rodriguez, M.E.; Aristizabal, J.C. Evaluation of a seismic damage parameter. Earthq. Eng. Struct. Dyn. 1999, 28, 463–477. [Google Scholar] [CrossRef]
- FEMA P440A. Effects of Strength and Stiffness Degradation on Seismic Response; FEMA: Washington, DC, USA, 2009.





















| Structural Member | Size (mm) | Reinforcement | ||||
|---|---|---|---|---|---|---|
| Beam | LD, HD | 250 × 300 | Longitudinal | Transverse | ||
| Top | Bottom | Confinement Zone | Mid-Zone | |||
| 4 Ø 12 | 4 Ø 12 | Ø 8@75 mm | Ø 8@140 mm | |||
| Column | HD | 250 × 250 | Longitudinal | Transverse | ||
| Confinement Zone | Mid-Zone | |||||
| 8 Ø 10 | Ø 8@50 mm | Ø 8@120 mm | ||||
| LD | 250 × 250 | Longitudinal | Transverse | |||
| Confinement Zone | Mid-Zone | |||||
| 8 Ø 10 | Ø 8@70 mm | Ø 8@120 mm | ||||
| Model Name | Ductility | Steel Section Availability | Concrete Class | Steel Section Type |
|---|---|---|---|---|
| HI-C25 | High | Available | C25 | I-section (1) |
| LI-C25 | Low | Available | C25 | I-section (1) |
| H-C25 | High | Not available | C25 | Not applicable (2) |
| L-C25 | Low | Not available | C25 | Not applicable (2) |
| HI-C40 | High | Available | C40 | I-section (1) |
| LI-C40 | Low | Available | C40 | I-section (1) |
| H-C40 | High | Not available | C40 | Not applicable (2) |
| L-C40 | Low | Not available | C40 | Not applicable (2) |
| HSQ-C25-T8 | High | Available | C25 | Square section with 8 mm thickness (3) |
| LSQ-C25-T8 | Low | Available | C25 | Square section with 8 mm thickness (3) |
| HSQ-C25-T6 | High | Available | C25 | Square section with 6 mm thickness (4) |
| LSQ-C25-T6 | Low | Available | C25 | Square section with 6 mm thickness (4) |
| Parameter | Value |
|---|---|
| Mass Density | 2400 kgf/m3 |
| Modulus of Elasticity | 23,500 MPa |
| Tangent Modulus of Elasticity | 11,750 MPa |
| Poisson’s Ratio | 0.18 |
| Compressive Strength | 25 MPa |
| Tensile Strength | 2.578 MPa |
| Crack Width | 0.0545 mm |
| Aggregate Size Diameter | 10 mm |
| Mass Density (kgf/m3) | Modulus of Elasticity (GPa) | Poisson’s Ratio | Yield Stress (MPa) | Ultimate Strain | |
|---|---|---|---|---|---|
| Steel Reinforcement | 7850 | 215 | 0.3 | 428 | 0.2 |
| Structural Steel Sections | 7850 | 215 | 0.3 | 317 | 0.2 |
| Drift Ratio (%) | 0 | 0.25 | 0.50 | 0.75 | 1 | 1.25 | 1.5 | 1.75 | 2 | 2.25 | 2.5 | 2.75 |
|---|---|---|---|---|---|---|---|---|---|---|---|---|
| Lateral Displ. (mm) | 0 | 3.75 | 7.5 | 11.25 | 15 | 18.75 | 22.5 | 26.25 | 30 | 33.75 | 37.5 | 41.25 |
| Drift Ratio (%) | Lateral Forces (kN) | Differences in Lateral Forces (%) | ||||
|---|---|---|---|---|---|---|
| HI-C25 | Tested HD | LI-C25 | Tested LD | HI-C25/Tested HD | LI-C25/Tested LD | |
| 0.25 | 81.06 | 74.97 | 81.30 | 83.28 | 8.12 | −2.38 |
| −0.25 | −83.06 | −90.47 | −81.39 | −84.34 | −8.19 | −3.50 |
| 0.5 | 140.90 | 124.40 | 142.43 | 144.30 | 13.26 | −1.30 |
| −0.5 | −145.20 | −124.40 | −148.54 | −144.30 | 16.72 | 2.94 |
| 0.75 | 201.10 | 176.50 | 200.10 | 187.30 | 13.94 | 6.83 |
| −0.75 | −205.10 | −176.50 | −206.44 | −187.01 | 16.20 | 10.39 |
| 1 | 240.00 | 221.10 | 241.64 | 223.75 | 8.55 | 8.00 |
| −1 | −242.00 | −221.70 | −240.84 | −223.75 | 9.16 | 7.64 |
| 1.25 | 263.00 | 248.30 | 263.88 | 248.50 | 5.92 | 6.19 |
| −1.25 | −263.00 | −247.90 | −262.74 | −248.50 | 6.09 | 5.73 |
| 1.5 | 279.00 | 281.10 | 280.30 | 265.80 | −0.75 | 5.46 |
| −1.5 | −279.50 | −281.10 | −283.10 | −265.80 | −0.57 | 6.51 |
| 1.75 | 289.00 | 289.61 | 287.90 | 277.00 | −0.21 | 3.94 |
| −1.75 | −291.20 | −289.60 | −289.90 | −277.00 | 0.55 | 4.66 |
| Model Name | Lateral Load Capacities (kN) | |||||||||||
|---|---|---|---|---|---|---|---|---|---|---|---|---|
| Drift Ratio (%) (1) | ||||||||||||
| +0.25 | −0.25 | +0.75 | −0.75 | +1.25 | −1.25 | +1.75 | −1.75 | +2.25 | −2.25 | +2.75 | −2.75 | |
| HI-C25 | 81.1 | −83.1 | 201.1 | −205.1 | 263.2 | −263.9 | 288.8 | −291.5 | 268.5 | −271.0 | 266.9 | −261.8 |
| LI-C25 | 81.4 | −81.4 | 200.1 | −206.5 | 263.9 | −262.8 | 288.0 | −290.0 | 271.3 | −277.3 | 262.7 | −276.9 |
| H-C25 | 72.7 | −73.0 | 156.3 | −156.5 | 196.1 | −179.5 | 216.0 | −194.0 | 205.9 | −192.3 | 200.0 | −185.0 |
| L-C25 | 72.0 | −72.9 | 154.7 | −155.1 | 193.0 | −181.0 | 213.0 | −192.0 | 203.0 | −190.5 | 197.0 | −183.0 |
| HI-C40 | 102.0 | −102.0 | 243.1 | −245.0 | 317.0 | −311.0 | 345.9 | −344.2 | 331.9 | −323.1 | 300.2 | −319.5 |
| LI-C40 | 102.0 | −103.0 | 241.8 | −243.1 | 313.8 | −304.5 | 334.6 | −344.8 | 322.2 | −327.5 | 310.9 | −319.5 |
| H-C40 | 91.6 | −93.9 | 188.0 | −188.0 | 235.5 | −214.1 | 244.6 | −236.5 | 233.8 | −223.9 | 226.0 | −209.5 |
| L-C40 | 91.6 | −93.9 | 187.1 | −184.5 | 235.9 | −212.9 | 246.9 | −231.4 | 238.8 | −221.3 | 227.5 | −200.2 |
| HSQ-C25-T8 | 82.0 | −82.3 | 202.8 | −218.3 | 277.2 | −281.7 | 308.2 | −313.1 | 292.0 | −291.5 | 282.7 | −284.0 |
| LSQ-C25-T8 | 82.0 | −82.7 | 201.6 | −218.6 | 274.9 | −280.4 | 304.5 | −310.7 | 287.4 | −292.4 | 277.2 | −284.2 |
| HSQ-C25-T6 | 81.0 | −81.2 | 200.8 | −213.3 | 267.3 | −268.7 | 298.8 | −298.8 | 279.6 | −274.9 | 272.6 | −270.1 |
| LSQ-C25-T6 | 81.0 | −81.0 | 200.8 | −212.6 | 263.7 | −266.2 | 294.7 | −294.7 | 275.9 | −274.2 | 269.2 | −268.5 |
Publisher’s Note: MDPI stays neutral with regard to jurisdictional claims in published maps and institutional affiliations. |
© 2022 by the authors. Licensee MDPI, Basel, Switzerland. This article is an open access article distributed under the terms and conditions of the Creative Commons Attribution (CC BY) license (https://creativecommons.org/licenses/by/4.0/).
Share and Cite
Tunc, G.; Othman, M.M.; Mertol, H.C. Finite Element Analysis of Frames with Reinforced Concrete Encased Steel Composite Columns. Buildings 2022, 12, 375. https://doi.org/10.3390/buildings12030375
Tunc G, Othman MM, Mertol HC. Finite Element Analysis of Frames with Reinforced Concrete Encased Steel Composite Columns. Buildings. 2022; 12(3):375. https://doi.org/10.3390/buildings12030375
Chicago/Turabian StyleTunc, Gokhan, Mohammed Moatasem Othman, and Halit Cenan Mertol. 2022. "Finite Element Analysis of Frames with Reinforced Concrete Encased Steel Composite Columns" Buildings 12, no. 3: 375. https://doi.org/10.3390/buildings12030375
APA StyleTunc, G., Othman, M. M., & Mertol, H. C. (2022). Finite Element Analysis of Frames with Reinforced Concrete Encased Steel Composite Columns. Buildings, 12(3), 375. https://doi.org/10.3390/buildings12030375

