Space Performance Assessment of a Relocatable Health Facility: Mosul Hospital as a Case Study
Abstract
1. Introduction
2. Literature Review
2.1. Relocatable Hospital Development
2.2. Space Assessment in Hospital
3. Space Performance
3.1. Dimensional Requirement
3.2. Functional Efficiency
3.2.1. Wayfinding
3.2.2. Accessibility
4. Research Method
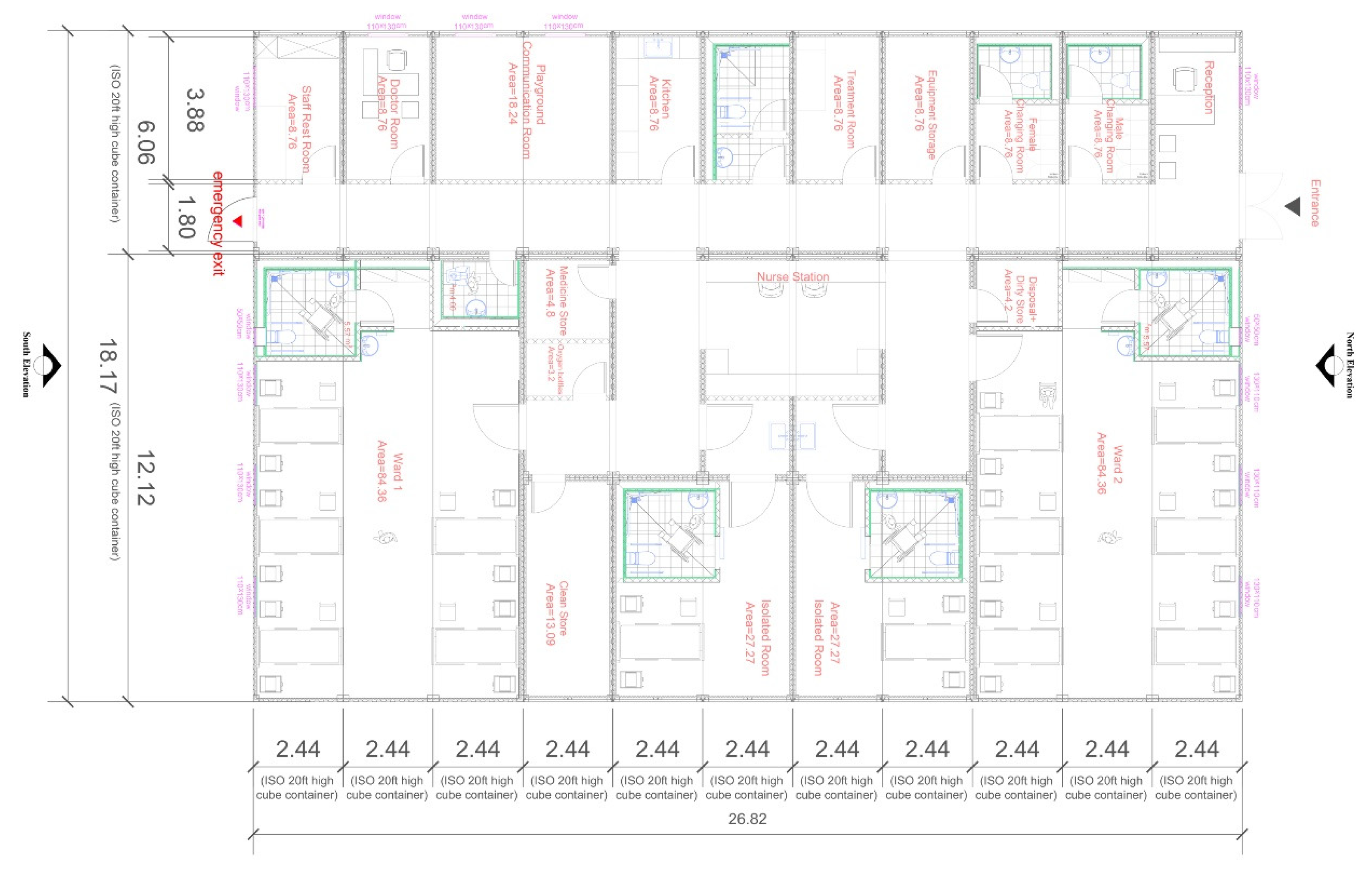
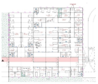
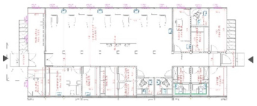
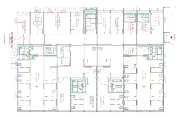
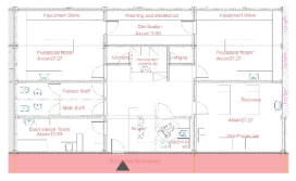
5. Case Study
6. Results
6.1. Results Related to Dimensional Requirements
6.2. Results Related to Space Syntax
6.2.1. Wayfinding Results
6.2.2. Accessibility Results
7. Conclusions
Author Contributions
Funding
Data Availability Statement
Acknowledgments
Conflicts of Interest
Appendix A









References
- Kyrö, R.; Jylhä, T.; Peltokorpi, A. Embodying circularity through usable relocatable modular buildings. Facilities 2019, 37, 75–90. [Google Scholar] [CrossRef]
- Abuin, E.B. Kinetic Performance: A Study in Portable Architecture. Master’s Thesis, Florida International University, Miami, FL, USA, 2004; p. 1132. Available online: https://digitalcommons.fiu.edu/etd/1132 (accessed on 16 February 2022).
- Lewandowski, K. Growth in the Size of Unit Loads and Shipping Containers from Antique to WWI. Packag. Technol. Sci. 2016, 29, 451–478. [Google Scholar] [CrossRef]
- Rodrigue, J.P. World Container Production, 2007, The Geography of Transport Systems. Hofstra University. 2013. Available online: https://transportgeography.org/wp-content/uploads/GTS_Third_Edition.pdf (accessed on 16 February 2022).
- Why Relocatable, Smit: Mobile Equipment B.V. Available online: https://smit.one/whyrelocatable.html (accessed on 3 July 2022).
- Minner, K. Mobile Hospital/Kukil Han. Available online: https://www.archdaily.com/153047/mobile-hospital-kukil-han (accessed on 27 July 2022).
- Cilento, K. Mobile Hospital/Hord Coplan Macht + Spevco. Available online: https://www.archdaily.com/54890/mobile-hospital-hord-coplan-macht-spevco (accessed on 27 July 2022).
- Dursun, P. Space Syntax in Architectural Design. In Proceedings of the 6th International Space Syntax Symposium, Istanbul, Turkey, 12–15 June 2007. [Google Scholar]
- Arslan, H.D.; Köken, B. Evaluation of the Space Syntax Analysis in Post-Strengthening Hospital Buildings. Archit. Res. 2016, 6, 88–97. [Google Scholar] [CrossRef]
- Pramanik, A.; Haymaker, J.; Swarts, M.; Zimring, C. Integrating clinic process flow, space syntax and space adjacency analysis: Formalization of computational method in building programming. SIGRADI 2015, 2, 262–272. [Google Scholar] [CrossRef][Green Version]
- Setola, N.; Borgianni, S.; Martinez, M.; Tobari, E. The Role of Spatial Layout of Hospital Public Spaces in Informal patient-medical Staff Interface. In Proceedings of the Ninth International Space Syntax Symposium, Sejong University, Seoul, Korea, 31 October—3 November 2013. [Google Scholar]
- Chen, M.; Ko, Y.; Hsieh, W. Exploring the Planning and Configuration of the Hospital Wayfinding System by Space Syntax: A Case Study of Cheng Ching Hospital, Chung Kang Branch in Taiwan. ISPRS Int. J. Geo-Inf. 2021, 10, 570. [Google Scholar] [CrossRef]
- Setola, N. A New Approach to the Flows System Analysis in the Teaching Hospitals. In Proceedings of the 7th International Space Syntax Symposium, Stockholm, Sweden, 8–11 June 2009; Available online: https://sss7.org/Proceedings/10ArchitecturalResearchandArchitecturalDesign/S099_Setola.pdf (accessed on 3 April 2022).
- Khan, N. Constructing Genotype in Hospital Design: A comparative study of the layouts of hospital buildings in Bangladesh. In Proceedings of the Ninth International Space Syntax Symposium, Sejong University, Seoul, Korea, 31 October–3 November 2013. [Google Scholar]
- Beck, M.; Turkienicz, B. Visibility and permeability: Complementary syntactical attributes of wayfinding. In Proceedings of the Seventh International Space Syntax Symposium, Royal Institute of Technology, Stockholm, Sweden, 1–7 September 2009. [Google Scholar]
- Sadek, A.H. A comprehensive approach to facilitate wayfinding in healthcare facilities. Des. Health 2015, 3, 1–11. [Google Scholar] [CrossRef]
- Facility Guidelines Institute. Guidelines for Design and Construction of Hospitals and Outpatient Facilities; Includes ANSI/ASHRAE/ASHE; Facility Guidelines Institute: New York, NY, USA, 2018; ISBN 978-0-87258-943-8. (eBook edition). [Google Scholar]
- Neufert, E. Architects’ Data, 4th ed.; Wiley-Blackwell: New York, NY, USA, 2019; ISBN 978-1-119-28435-2. [Google Scholar]
- Lynch, K. The Image of the City; MIT Press: Cambridge, MA, USA, 1960. [Google Scholar]
- Mollerup, P. Wayshowing in the hospital. AMJ 2009, 1, 112–114. [Google Scholar] [CrossRef]
- Carpman, J.R.; Grant, M.A.; Simmons, D.A. Hospital Design and Wayfinding: A Video Simulation Study. Environ. Behav. 1985, 17, 296–314. [Google Scholar] [CrossRef]
- Carroll, B.J. Human Cognitive Abilities: A Survey of Factor-Analytic Studies; Cambridge University Press: Cambridge, UK, 1993. [Google Scholar]
- O’Neill, M.J. Effects of Signage and Floor Plan Configuration on Wayfinding Accuracy. Environ. Behav. 1991, 23, 553–574. [Google Scholar] [CrossRef]
- Haq, S.; Luo, Y. Space Syntax in Healthcare Facilities Research: A Review. HERD Health Environ. Res. Des. J. 2012, 5, 98–117. [Google Scholar] [CrossRef] [PubMed]
- Cambridge Dictionary, Cambridge Dictionary Official Website. Available online: https://dictionary.cambridge.org/ (accessed on 21 February 2022).
- Cocina, G.G. Responding to User Cultural Needs in Hospitals with the Support of Space Syntax Analysis. Available online: https://www.semanticscholar.org/paper/Responding-to-user-cultural-needs-in-hospitals-with-Cocina/f47389e1640c8ce4027edb3b277fa655d019283b (accessed on 23 June 2022).
- Wagner, M. Recovery and Rehabilitation Mosul: Strengthening the Resilience of Vulnerable Populations in Nineveh, Iraq. Available online: https://www.giz.de/en/worldwide/83031.html (accessed on 4 August 2022).
- Al-Sayed, K. Space Syntax Methodology; Bartlett School of Architecture, UCL: London, UK, 2018. [Google Scholar]






| Functional Efficiency | Factors | Indicator | Space Syntax Map | Space Syntax Indicator |
| Way Finding | Entry field of view | Isovist | Isovist Area | |
| Corridors integration | Axial map | Integration | ||
| Accessibility | Patient-staff relation | VGA | Connectivity | |
| Integration | ||||
| Plan Complexity | Convex Map | Depth |
| Emergency Plan | Dimensions Details | |||
|---|---|---|---|---|
| Description | Standard | In Plan | Def. | |
![]() | Single-bed Patient Room | 11.15 m2 | 13.09 m2 | 1.94+ |
| Multiple-bed Patient Room, Per bed | 9.29 m2 | 19.58 m2 | +10.29 | |
| 15 m2 | +5.71 | |||
| Ambulance Ent. Width | 1.83 m | 2.3 m | +0.47 | |
| Trauma Room | 23.23 m2 | 48.24 m2 | +25 | |
| Treatment Room | 11.15 m2 | 13.34 m2 | +2.19 | |
| Consultation Room | 11.15 m2 | 13.34 m2 | +2.19 | |
| Clearance around stretcher. | 1.52 m | 2 m | +0.48 | |
| Operating Room | 30 m2 | 48.24 m2 | +18.24 | |
| Nurse Work Ares | 25 m2 | 26.15 m2 | +1.15 | |
| Staff Rest | 15 m2 | 9.12 m2 | −5.88 | |
| Clean Room | 10 m2 | 6.41 m2 | −3.59 | |
| Corridor | 2.25 m | 2.25 m | 0 | |
| Service Corridor | 1.5 m | 2.18 m | 0.68 | |
| Dialysis Plan | Dimensions Details | |||
|---|---|---|---|---|
| Description | Standard | In Plan | Def. | |
![]() | Examination Room | 11.15 m2 | 18.23 m2 | +7.08 |
| Treatment Area, Per Chair | 7.44 m2 | 9.89 m2 | +2.45 | |
| Clearance Between chairs | 1.22 m | 1.5 m | +0.28 | |
| From Nurse Station to Chair | 1.83 m | 1.9 m | +0.07 | |
| Isolated Room | 9.29 m | 13.09 m2 | +3.8 | |
| Nurse Work Area | 15 m2 | 18.9 m2 | +3.9 | |
| Staff Rest | 15 m2 | 13.09 m2 | −1.91 | |
| Clean Room | 10 m2 | 8.76 m2 | −1.24 | |
| Corridor | 1.5 m | 1.8 m | +0.3 | |
| Pediatric Plan | Dimensions Details | |||
|---|---|---|---|---|
| Description | Standard | In Plan | Def. | |
![]() | Single-bed Patient Room | 9.29 m2 | 19.67 m2 | +10.38 |
| Multiple-bed Patient Room, Per bed | 7.43 m2 | 11.42 m2 | +3.99 | |
| Treatment Room | 11.15 m2 | 8.76 m2 | +2.19 | |
| Nurse work Ares | 15 m2 | 17.27 m2 | +2.27 | |
| Staff Rest | 15 m2 | 8.76 m2 | −6.24 | |
| Clean Room | 10 m2 | 13.09 m2 | +3.09 | |
| Corridor | 2.25 m | 2.25 m | 0 | |
| Service Corridor | 1.5 m | 1.8 m | +0.3 | |
| Outpatient Plan | Dimensions Details | |||
|---|---|---|---|---|
| Description | Standard | In Plan | Def. | |
![]() | Consultation Room | 11.15 m2 | 13.09 m2 | +1.94 |
| 18.28 m2 | +7.13 | |||
| Treatment room | 11.15 m2 | 18.24 m2 | +7.09 | |
| Examination room | 7.43 m2 | 13.09 m2 | +5.66 | |
| ENT | 20 m2 | 18.09 m2 | −1.91 | |
| Clean Room | 10 m2 | 8.78 m2 | −1.22 | |
| Laboratory | 15 m2 | 13.09 m2 | −1.91 | |
| Corridor | 2.25 m | 1.8 m | −0.45 | |
| Radiology Plan | Dimensions Details | |||
|---|---|---|---|---|
| Description | Standard | In Plan | Def. | |
![]() | Ultrasound Examination or Procedure Rooms | 11.15 m2 | 13.35 m2 | +2.2 |
| X-Ray | 20 m2 | 27.27 m2 | +7.27 | |
| Consultation Room | 11.15 m2 | 13.09 m2 | +1.94 | |
| Control | 10 m2 | 13.09 m2 | +3.09 | |
| Storage | 10 m2 | 14.66 m2 | +4.66 | |
| Service Corridor | 1.5 m | 1.12 m | −0.38 | |
| Endoscopy Plan | Dimensions Details | |||
|---|---|---|---|---|
| Description | Standard | In Plan | Def. | |
![]() | Procedure Room | 11.15 m2 | 27.27 m2 | +16.12 |
| Clearance at each side, head, and foot of the stretcher | 1.07 m | 1.35 m2 | +0.28 | |
| Pre-Procedure, Per bed | 5.58 m2 | 5.6 m2 | +0.02 | |
| Pre-Procedure clearance. | 1.52 m | 1.2 m | −0.3 | |
| Post-Procedure, Per bed | 7.43 m2 | 8.03 m2 | +0.6 | |
| Post-Procedure clearance. | 1.52 m | 1.2 m | −0.32 | |
| Sterilization | 10 m2 | 13.09 m2 | +3.09 | |
| Consultation Room | 11.15 m2 | 13.09 m2 | +1.94 | |
| Laboratory Plan | Dimensions Details | |||
|---|---|---|---|---|
| Description | Standard | In Plan | Def. | |
![]() | Taking Blood samples | 5.76 m2 | 10 m2 | +4.24 |
| Laboratory Work | 35 m2 | 70 m2 | +35 | |
| Storage | 10 m2 | 6.74 m2 | −3.26 | |
| Ward Plan | Dimensions Details | |||
|---|---|---|---|---|
| Description | Standard | In Plan | Def. | |
![]() | Single-bed Patient Room | 11.15 m2 | 16.85 m2 | +5.7 |
| Multiple-bed Patient Room, Per bed | 9.29 m2 | 11.41 m2 | +1.85 | |
| 12.62 m2 | +3.33 | |||
| Clearance multiple-bed | 1.52 m | 1.78 m | +0.26 | |
| Ward Corridor | 2.25 m | 2.25 m | 0 | |
| Service Corridor | 1.5 m | 1.9 m | +0.4 | |
| Nurse work Ares | 25 m2 | 26 m2 | +1 | |
| Procedure Room | 11.15 m2 | 10.16 m2 | −0.99 | |
| Staff Rest | 15 m2 | 10.48 m2 | −4.52 | |
| Clean Room | 10 m2 | 10.03 m2 | +0.03 | |
| Emergency | Dialysis | Pediatric | Outpatient |
![]() | ![]() | ![]() | ![]() |
| Helios Clinic, Gotha, Arch.: Worner+ Partner. | Hellos Clinic, Gotha, Arch.: Worner+ Partner. | Velbert Municipal Hospital. | Oskar-Ziethen Hospital, Arch.: Deubzer Architekten. |
| Radiology | Endoscopy | Laboratory | Wards |
![]() | ![]() | ![]() | ![]() |
| St Johann Nepomuk Catholic Hospital, Arch.: Thiede Klosges. | Beizig Hospital Arch.: Thiede Klosges | Soltau Distric Hospital. Arch.: Poelzig + Biermann | St Elisabeth Hospital, Halle. Arch.: U + A Weicken |
| Department | Area (Case Study) | Ares Example (Nufert) |
|---|---|---|
| Emergency | 1208 m2 | 750 m2 |
| Dialysis | 324.8 m2 | 522 m2 |
| Pediatric | 486.5 m2 | 566 m2 |
| Outpatient | 443 m2 | 532 m2 |
| Radiology | 310 m2 | 466 m2 |
| Endoscopy | 180 m2 | 160 m2 |
| Laboratory | 134.5 m2 | 177 m2 |
| Ward | 1137 m2 | 914 m2 |
| Departments | Isovist Area | ||
|---|---|---|---|
| Relocatable Hospital | Examples | Def. | |
| Emergency | ![]() | ![]() | |
| 155 | 136.1 | +18.9 | |
| Dialysis | ![]() | ![]() | |
| 102.2 | 93.7 | +8.5 | |
| Pediatric | ![]() | ![]() | |
| 95.7 | 121.4 | −25.7 | |
| Outpatient | ![]() | ![]() | |
| 111.8 | 31.2 | +80.6 | |
| Radiology | ![]() | ![]() | |
| 73.2 | 62.9 | +10.3 | |
| Endoscopy | ![]() | ![]() | |
| 45.4 | 26.7 | +18.7 | |
| Laboratory | ![]() | ![]() | |
| 55.6 | 36.6 | +19 | |
| Wards | ![]() | ![]() | |
| 182.1 | 140.9 | +41.2 | |
Coverage of the viewing area from a point in the entrance | |||
| Departments | Axial Map/Integration | ||
|---|---|---|---|
| Relocatable Hospital | Examples | Def. | |
| Emergency | ![]() | ![]() | |
| 5.32 | 5.25 | +0.07 | |
| Dialysis | ![]() | ![]() | |
| 9.76 | 8.37 | +1.39 | |
| Pediatric | ![]() | ![]() | |
| 5.79 | 6.6 | −0.81 | |
| Outpatient | ![]() | ![]() | |
| 6.85 | 4.8 | +2.05 | |
| Radiology | ![]() | ![]() | |
| 5.51 | 6.19 | −0.68 | |
| Endoscopy | ![]() | ![]() | |
| 8.13 | 6.52 | +1.61 | |
| Laboratory | ![]() | ![]() | |
| 8.03 | 5.62 | +2.41 | |
| Wards | ![]() | ![]() | |
| 5.85 | 7.46 | −1.61 | |
![]() | |||
| Departments | VGA/Connectivity | Def. | |
|---|---|---|---|
| Relocatable Hospital | Examples | ||
| Emergency | ![]() | ![]() | |
| 765.5 | 555.5 | +210 | |
| Dialysis | ![]() | ![]() | |
| 766.4 | 487.5 | +278.9 | |
| Pediatric | ![]() | ![]() | |
| 471.9 | 522.4 | −50.5 | |
| Outpatient | ![]() | ![]() | |
| 548.9 | 271.5 | +277.4 | |
| Radiology | ![]() | ![]() | |
| 323 | 633.8 | −310.8 | |
| Endoscopy | ![]() | ![]() | |
| 355.3 | 481 | −125.7 | |
| Laboratory | ![]() | ![]() | |
| 538.2 | 308.8 | +229.4 | |
| Wards | ![]() | ![]() | |
| 742.6 | 573.5 | +169.1 | |
![]() | |||
| Departments | VGA/integration | ||
|---|---|---|---|
| Relocatable Hospital | Examples | Def. | |
| Emergency | ![]() | ![]() | |
| 5.29 | 5.52 | −0.23 | |
| Dialysis | ![]() | ![]() | |
| 9.3 | 6.38 | +2.92 | |
| Pediatric | ![]() | ![]() | |
| 5.07 | 6.67 | −1.6 | |
| Outpatient | ![]() | ![]() | |
| 6.49 | 4.45 | +2.04 | |
| Radiology | ![]() | ![]() | |
| 5.42 | 7.72 | −2.3 | |
| Endoscopy | ![]() | ![]() | |
| 8.11 | 7.11 | +1 | |
| Laboratory | ![]() | ![]() | |
| 12.95 | 6.12 | +6.83 | |
| Wards | ![]() | ![]() | |
| 6.69 | 6.55 | +0.14 | |
![]() | |||
| Departments | Convex Map/Depth | ||
|---|---|---|---|
| Relocatable Hospital | Examples | Def. | |
| Emergency | ![]() | ![]() | |
| 4.89 | 2.95 | −1.94 | |
| Dialysis | ![]() | ![]() | |
| 2.88 | 2.18 | −0.7 | |
| Pediatric | ![]() | ![]() | |
| 2.82 | 2.63 | −0.19 | |
| Outpatient | ![]() | ![]() | |
| 1.88 | 2.79 | +0.91 | |
| Radiology | ![]() | ![]() | |
| 3.67 | 2.1 | −1.57 | |
| Endoscopy | ![]() | ![]() | |
| 2.2 | 2.78 | +0.58 | |
| Laboratory | ![]() | ![]() | |
| 1.93 | 2.6 | +0.67 | |
| Wards | ![]() | ![]() | |
| 3.46 | 2.54 | −0.92 | |
![]() | |||
| Departments | Functional Efficiency | ||||
|---|---|---|---|---|---|
| Way Finding | Accessibility | ||||
| Entry Field of View | Corridors Integration | Patient-Staff Relation | Plan Complexity | ||
| Isovist | Axial Map | VGA | Convex Map | ||
| Isovist Area | Integration | Connectivity | Integration | Depth | |
| Emergency | +0.19 | +0.07 | +2.10 | −0.23 | −1.94 |
| Dialysis | +0.08 | +1.39 | +2.79 | +2.92 | −0.7 |
| Pediatric | −0.25 | −0.81 | −0.51 | −1.6 | −0.19 |
| Outpatient | +0.8 | +2.05 | +2.77 | +2.04 | +0.91 |
| Radiology | +0.10 | −0.68 | −3.11 | −2.3 | −1.57 |
| Endoscopy | +0.19 | +1.61 | −1.26 | +1 | +0.58 |
| Laboratory | +0.19 | +2.41 | +2.29 | +6.83 | +0.67 |
| Wards | +0.41 | −1.61 | +1.69 | +0.14 | −0.92 |
Publisher’s Note: MDPI stays neutral with regard to jurisdictional claims in published maps and institutional affiliations. |
© 2022 by the authors. Licensee MDPI, Basel, Switzerland. This article is an open access article distributed under the terms and conditions of the Creative Commons Attribution (CC BY) license (https://creativecommons.org/licenses/by/4.0/).
Share and Cite
Ismael, Z.K.; Khalil, K.F. Space Performance Assessment of a Relocatable Health Facility: Mosul Hospital as a Case Study. Buildings 2022, 12, 1539. https://doi.org/10.3390/buildings12101539
Ismael ZK, Khalil KF. Space Performance Assessment of a Relocatable Health Facility: Mosul Hospital as a Case Study. Buildings. 2022; 12(10):1539. https://doi.org/10.3390/buildings12101539
Chicago/Turabian StyleIsmael, Zhiman Khairi, and Kadhim Fathel Khalil. 2022. "Space Performance Assessment of a Relocatable Health Facility: Mosul Hospital as a Case Study" Buildings 12, no. 10: 1539. https://doi.org/10.3390/buildings12101539
APA StyleIsmael, Z. K., & Khalil, K. F. (2022). Space Performance Assessment of a Relocatable Health Facility: Mosul Hospital as a Case Study. Buildings, 12(10), 1539. https://doi.org/10.3390/buildings12101539





































































































